Шариковые направляющие для выдвижных ящиков размеры: Технологические размеры и отступы для установки выдвижных ящиков
Технологические размеры и отступы для установки выдвижных ящиков
Сборка сборкой, но чтобы мебель, сделанная своими руками, радовала глаз и душу, необходимо не просто качественно её собрать, но и правильно рассчитать размеры деталей. Если говорить о выдвижных ящиках, то здесь очень важно, чтобы качественно собранная конструкция легко и непринуждённо скользила по своим направляющим, не раздражая необходимостью прикладывать усилия, чтобы выдвинуть ящик. Также, не очень приятно, когда выдвижной ящик проваливается из-за того, что проём, почему-то шире, чем надо. Безусловно, становится немного грустно от того, что выдвижной ящик полностью не заезжает, потому что он длиннее, чем необходимо. Все эти проблемы могут возникнуть, если вы неправильно рассчитаете размеры и отступы в процессе проектирования мебели, а именно – выдвижных ящиков. Поэтому, давайте для начала разберёмся, с размерами и отступами, а уж затем будем приступать, непосредственно, к изготовлению и сборке выдвижных ящиков.
Несмотря на то, что роликовые и шариковые направляющие – это «две большие разницы», между ними есть много общего. Например, у них общие размерные диапазоны, а также они имеют одинаковые зазоры для установки. Проще говоря, расчёт размеров и отступов под установку выдвижных ящиков на роликовых направляющих имеет те же параметры, что и для шариковых направляющих.
Расчёт ширины выдвижного ящика
А теперь давайте перейдём к конкретным цифрам. Итак, по технологии проектирования мебели ширина выдвижного ящика должна быть на 26мм меньше, чем ширина проёма, в который его надо установить. Получается, что под установку направляющих выделяется по 13мм с каждой стороны.
На рисунке мы чётко видим все расчётные параметры для установки выдвижных ящиков на роликовых или телескопических направляющих. Обратите внимание, что расчёт ширины выдвижного ящика производится не относительно габаритной ширины тумбы, а относительно внутреннего проёма для выдвижного ящика. В данном примере у нас габаритная ширина тумбы равна 400мм, а внутренняя – 368мм.
Внутренний проём – это габаритная ширина минус толщина двух переборок. В нашем примере тумба изготавливается из ДСП толщиной 16мм. Таким образом, внутренний проём получился равным: 400-16-16=368мм. Вот такая простая арифметика.
И вот теперь именно относительно ширины проёма мы рассчитываем ширину выдвижного ящика. У нас она равна: 368-26=342мм. Вот, собственно и всё. Хотя, с одной стороны, вроде как всё, но если хорошенько подумать, то не совсем. Вот смотрите, если, габарит днища тумбы равен ровно 400мм, то переборка, однозначно будет прикручиваться с небольшим смещением внутрь (как правило – это смещение идёт на толщину кромки, в нашем случае – это кромка 0,5мм, поэтому смещение будет где-то на1мм). Таким образом, внутренний размер проёма уменьшится на 1мм с каждой стороны. В результате получим следующее: 400-16-16-1-1=366мм. А выдвижной ящик тогда будет иметь ширину: 366мм-26мм=340мм. Как видите, его ширина отличается на 2мм от предыдущих расчетов. И в нашей ситуации именно эта ширина будет рассчитана верно.
Вы можете возразить: «Что там эти 2мм? Какую они погоду могут сделать в процессе установки выдвижного ящика?» Однако в мебельном деле иногда и 2мм могут сыграть свою злую роль. В данном случае, более широкий выдвижной ящик может стать причиной «тугого хода» ящика по направляющим. Так что, лучше расчеты под установку выдвижных ящиков производить очень внимательно и щепетильно, чтобы не было потом, как говорится, «мучительно больно…»
Расчёт длины выдвижного ящика
Относительно расчета длины ящика нужно, прежде всего, знать о том, что роликовые и шариковые направляющие бывают следующей длины: 250мм, 300мм, 350мм, 400мм, 450мм, 500мм, 550мм, 600мм. Это, так сказать самые популярные размеры. Также бывают шариковые направляющие длиной до 800мм. По роликовым направляющим, насколько мне известно, имеется ограничение длины до 650мм. Хотя, можно уточнить эти параметры у продавца фурнитуры, уж кто-кто, а он точно знает, что у него есть в продаже.
Казалось бы, что рассчитать длину выдвижного ящика проще простого: если ставим направляющие длиной 500мм, то и соответственно, длина ящика будет равна 500мм.
Но для наших людей 4 сантиметра – это не просто 4см. Нет, для нас это – ЧЕТЫРЕ САНТИМЕТРА! И борьба за них будет жесткой и принципиальной.
Итак, в нашей ситуации, внутренняя глубина тумбы равна 490мм. Понятно, что ящик длиной 500мм сюда не поместится. Получается, надо ставить выдвижной ящик на направляющие длиной 450мм. Но ведь свободное полезное пространство у нас 490мм. Не отдадим врагу 40мм! Ну, там не 40мм, а, где-то 35мм (5мм можно оставить на форс-мажорные ситуации, которые могут возникнуть в процессе сборки мебели). В общем, делаем выдвижной ящик длиной в 485мм и радуемся дополнительно отвоёванному пространству. Правда такой ящик не будет до конца выезжать, ибо направляющие-то у нас короче. Но ведь это, же не критично. Всё равно будет достаточно доступа к вещам, хранящимся в ящике. А вот вместительность конструкции мы увеличили. Замечательно!
Хочу ещё обратить ваше внимание вот на что. Дело в том, что выдвижные ящики бывают с внутренними и наружными фасадами. Так вот, при расчёте длины выдвижного ящика с внутренним фасадом, надо всегда помнить о толщине этого самого фасада.
То есть, если внутренняя глубина тумбы равна 490мм, то полезное свободное пространство (при условии, что фасад имеет толщину 16мм) будет равно: 490мм-16мм-1мм=473мм. Вот от этого размера и «танцуем» при расчёте длины выдвижного ящика. А 1мм я отбросил для того, чтобы внутренний фасад ящика был немножко углублён внутрь тумбы. Кстати, и направляющие прикручиваем, отступив от края переборки где-то 17мм. Чтобы фасад «ушёл» внутрь.
Расчёт высоты выдвижного ящика
К расчету высоты выдвижного ящика необходимо подходить исходя из особенностей нашей мебельной конструкции. Однако существует некий общепринятый стандарт расчета высоты выдвижных ящиков. В узких мебельных кругах, «правилом хорошего тона» считается делать высоту выдвижного ящика на 40-50мм меньше, чем высота фасада. Это даёт некую возможность «для манёвра» сборщику мебели в процессе установки выдвижных ящиков и регулировки фасадов.
Лично я в данной ситуации предпочитаю не нарушать многовековые мебельные традиции, и выполняю расчёт высоты выдвижных ящиков именно по этой формуле: «Высота фасада (минус) 40 (50)мм (равно) Высота выдвижного ящика».
Советую вам, также прислушаться к данной методике расчета высоты выдвижных ящиков, и тогда у вас появляется дополнительный шанс сделать своими руками качественную мебель.
Ну, кажется, всё рассказал, о расчетах размеров и отступов для установки выдвижных ящиков. Что же, теперь, пожалуй, можно переходить к сборке выдвижных ящиков.
Расчёт выдвижных ящиков встроенного шкафа купе
Рассчитаем размеры деталей выдвижных ящиков встроенного шкафа купе, который мы сделаем своими руками.
Исходными данными будут размеры проёма для выдвижных ящиков из эскиза: высота 784 мм,
ширина 600 мм, глубина 550 мм.
Рассчитаем отдельно длины и высоты деталей. Подробная инструкция и чертежи ниже помогут вам не запутаться и не ошибиться в расчётах.
Расчёт длин стенок и фасадов выдвижных ящиков
Сначала посмотрим на выдвижной ящик сверху. Тёмно-серым цветом на рисунке обозначены боковые стенки каркаса из ЛДСП, пунктиром —
задняя капитальная стена.
Несмотря на обилие размеров на эскизе, «свобода выбора» невелика — мы можем изменять только величины зазоров — между фасадом и боковыми стенками,
и между задней стенкой ящика и задней капитальной стеной (выделены красным шрифтом).
В результате будут изменяться только расчётные длины фасада и боковых стенок (выделены синим шрифтом).
Объясняется это тем, что при подготовке эскиза наполнения встроенного шкафа-купе уже была задана
ширина проёма, в котором должен помещаться ящик — 600 мм. Также была задана и глубина наполнения — 550 мм.
Известна толщина ЛДСП — 16 мм, и толщина шариковой направляющей — 13 мм (подробнее о направляющих — чуть ниже).
Таким образом, для определения длин деталей выдвижного ящика нужно только определиться с зазорами и аккуратно всё рассчитать.
Расчёт высоты деталей выдвижных ящиков
Для расчёта высоты деталей выдвижных ящиков посмотрим на них сбоку. На рисунке верхняя и нижняя полки каркаса закрашены серым цветом,
между ними располагаются ящики.
Направляющие выдвижных ящиков на рисунке не обозначены, так как на расчёт высоты деталей они не влияют.
Высота пространства для размещения четырех выдвижных ящиков равна 784 мм — в соответствии с эскизом
наполнения. Начнём с расчёта высоты фасадов.
Фасады выдвижных ящиков в моём шкафу-купе одновременно служат «ручками», чтобы ящики можно было выдвигать.
Здесь встречаемся с первым ограничением.
Минимальный зазор по высоте между фасадами соседних ящиков должен быть таким, чтобы пальцы рук при открывании ящика не задевали ящик
сверху или полку над самым верхним ящиком.
Исходя из своего опыта, это расстояние должно быть не менее 30 мм. Я заложил 35 мм.
Между нижним краем фасада нижнего ящика и полкой под ним также должен быть зазор. В моём примере — 3 мм.
Тогда получим, что высота каждого фасада составит 160 мм. Рассчитано по формуле: (784 мм — 4х35 мм — 3 мм) / 4 = 160,25 мм.
Округляем до 160 мм. «Лишний» 1 мм заложу на верхний зазор — всё равно фасады придется устанавливать по месту.
Да и полки над и под ящиками могут встать с небольшим отклонением по высоте от расчётных значений.
Примечание: Если в нижнем ящике будут храниться относительно тяжелые вещи,
необходимо также учесть насколько будет под их тяжестью прогибаться дно ящика из ЛДВП.
Возможно потребуется дно нижнего ящика приподнять над расположенной под ним полкой.
Это повлияет на все приведённые ниже расчёты высоты деталей ящиков.
Боковая и задняя стенки ящика имеют одинаковую высоту.
При расчёте я исходил из следующих соображений.
Снизу отступил от нижнего края фасада каждого ящика 5 мм — это 3 мм на толщину дна из ЛДВП, и 2 мм — на погрешность установки фасада
(см.эскиз верхнего ящика на рисунке).
Вверху опустил верхний край боковой стенки на 10 мм по отношению к верхнему краю фасада — так ящик будет выглядеть посимпатичнее, мне кажется.
Таким образом, высота боковых и задней стенок ящика составила 145 мм.
Высота передней стенки ящика меньше, чем у боковых.
Связано это с тем, что фасад ящика используется в качестве «ручки». Пальцы руки при открывании ящика не должны захватывать его переднюю стенку,
на которую крепится фасад. Экспериментальным путём определил, что верхний край передней стенки ящика должен находиться ниже верхнего края фасада
не менее чем на 55 мм.
Таким образом, высота передней стенки ящика составила 100 мм.
На рисунке на эскизах верхнего и нижнего ящиков я нанес все ограничения, а на эскизе второго ящика сверху — результаты расчётов высоты стенок.
Высота передней стенки получилась равной 100 мм, высота боковых и задней стенок — по 145 мм.
Я сразу сделал сводную табличку деталей ящиков — с указанием мест наклейки кромок и толщины кромки. В табличке появилась
и деталь из ЛДВП 3 мм — это днища ящиков.
Добавлю ещё несколько слов о направляющих для выдвижных ящиков.
Направляющие для выдвижных ящиков
Направляющие для выдвижных ящиков бывают роликовые и шариковые.
Роликовые направляющие (с колёсиками) громко гремят и ход у них меньше — значительная часть ящика в крайнем —
«выдвинутом» положении остаётся как бы «не выдвинутой». Поэтому я их не использую, хотя они и самые дешёвые, как говорят.
Шариковые (или телескопические) направляющие я встречал двух видов — обычные и усиленные.
Отличаются они только высотой: у обычных направляющих высота 35 мм, у усиленных — 45 мм.
В ящиках для хранения лёгких вещей под пространство высотой около 20 см между соседними ящиками и шириной ящика порядка 60 см, как в моём случае,
я использовал обычные направляющие (см.фото). Если же ящики выше/шире или предназначены для хранения вещей тяжелее белья, скорее всего, потребуются усиленные направляющие.
Толщина шариковой направляющей в сборе не зависит от того — обычная или усиленная, и составляет 13 мм.
Насколько мне известно, толщина практически всех «ходовых» шариковых направляющих одинаковая — 13 мм. Если у вас будут сомнения на этот счёт,
то можно перед расчётом деталей ящика сходить в магазин мебельной фурнитуры, попросить показать имеющийся ассортимент, измерить толщину направляющей.
Длину шариковой напрявляющей нужно выбирать не более длины боковой стенки ящика, кратно 50 мм в меньшую сторону.
В моём случае длина боковой стенки ящика составила 530 мм, поэтому использовались шариковые направляющие длиной 500 мм.
Длины шариковых направляющих бывают разные, кратные 50 мм. Когда искал направляющие для своего шкафа-купе, были доступны длины
от 250 мм до 600 мм для обычных направляющих, и от 300 мм до 550 мм для усиленных направляющих. Если нужны другие длины, наверное, имеет смысл поискать.
Теперь можно переходить к расчету деталей дверей.
Инструкция для расчета ящиков и рекомендации по выбору лучших направляющих
Бывают ситуации, когда в тумбах с распашными фасадами и обычными полками необходимо установить выдвижные ящики. Такая простая модернизация помогает увеличить вместительность корпуса и делает эксплуатацию мебели удобнее. Самый простой способ – установить готовые выдвижные корзины. Однако не всех устраивает цена этих выдвижных систем.
Чтобы снизить расходы, можно самостоятельно сделать ящики и интегрировать их в корпус тумб. Эта статья поможет подобрать направляющие и расскажет, как правильно рассчитать размеры деталей для сборки выдвижных элементов.
В каких тумбах можно установить ящики?
Каких-либо ограничений и запретов в этом случае не существует. Условие одно – фасады не должны мешать выдвижению ящиков из корпусов. Их чаще всего устанавливают в кухонных модулях, шкафах-купе, письменных столах, пеналах и обычных тумбах с распашными дверками. О том, как исключить возможные помехи при выдвижении, читайте в специальном материале на сайте ИМ «Кронас».
Как выбрать направляющие для комплектации ящиков?
При покупке направляющих в большинстве случаев обращают внимание на их длину и стоимость. Это неверный поход, способный негативно повлиять на характеристики выдвижных элементов. Существует несколько важных критериев, которые влияют на выбор направляющих:
Самый лучший вариант – направляющие скрытого монтажа с доводчиками и функцией полного выдвижения.
Однако они стоят дороже других моделей, поэтому их выбирают в основном для комплектации мебели, к эстетике которой предъявляют строгие требования. В большинстве ситуаций можно использовать обычные шариковые направляющие полного выдвижения. Для более удобной эксплуатации можно выбрать модели с доводчиками.
Роликовые направляющие рекомендуется использовать только при комплектации мебели эконом-класса, которую планируется заменить в скором будущем. Эти выдвижные системы по всем пунктам уступают современным шариковым моделям, поэтому их популярность постепенно снижается. Еще одна область применения таких направляющих – недорогая и максимально простая мебель в мастерских, производственных помещениях и т.д.
Для изготовления ящиков с усиленным дном можно выбрать метабоксы. Эти выдвижные системы изготовлены на основе роликовых направляющих. Их отличие от базовой модификации заключается в том, что они изначально укомплектованы боковинами из окрашенной эмалью стали. Боковые стенки метабоксов оснащены ходовыми роликами из пластика и заодно выполняют функцию выдвижной каретки.
Такие системы можно выбрать для комплектации кухни, если стоимость скрытых шариковых направляющих превышает выделенный бюджет.
Изготовление ящиков
Подготовить детали для сборки ящиков в домашних условиях при помощи электролобзика не получится, так как требуется строгое соблюдение точных размеров и углов. Расхождение даже на (+/-) 1,5-2 мм приведет к тому, что ящики либо не поместятся в проеме, либо их будет заклинивать при движении. Несоответствие углов 90 градусов приводит к перекосам и тоже негативно сказывается на эксплуатационных характеристик. Теоретически можно добиться точности размеров и углов в домашних условиях. Помимо элетролобзика, для этих целей потребуется ручной фрезер. Однако этот способ слишком пыльный, долгий и трудоемкий.
Лучше всего заказать детали в цеху с форматно-раскроечным станком. Если требуется порезка большого количества крупных деталей (для нескольких ящиков с дном из ЛДСП в тумбы на кухню), то имеет смысл сразу купить лист недорогой ламинированной плиты и заказать ее раскрой.
Сложнее, когда детали небольшие и их немного, но и даже в таком случае чаще всего удается решить вопрос. Рекомендуется сразу заказать оклейку тонкой ПВХ-кромкой всех видимых сторон деталей для сборки ящиков.
Как правильно выбрать длину направляющих?
Длина направляющих должна быть примерно на 20-30 мм меньше глубины корпуса. Такая рекомендация объясняется тем, что у ящика впереди фиксируется фасад-накладка, толщина которого составляет 16-19 мм. Кроме того, направляющие нужно на 2-3 мм «утопить» вглубь корпуса. Это требуется для страховки, чтобы в случае незначительного перекоса ящик не выступал вперед и не мешал закрытию фасадов.
При этом нужно учитывать, что шаг у направляющих составляет 50 мм. Например, если глубина тумбы составляет 410 мм, то подойдут направляющие длиной в 350 мм. В таких случаях рекомендуется выбирать модели полного выдвижения, чтобы часть ящика не оставалась в корпусе. Кроме того, можно увеличить длину боковых стенок до 380-385 мм. Это позволит с максимально эффективно использовать пространство внутри корпуса.
Однако всегда нужно следить за тем, чтобы суммарная глубина ящика вместе с фасадом и допуском не превышала аналогичный габарит корпуса тумбы.
Расчет деталей для ящиков
При раскрое деталей для сборки ящиков чаще всего используют плиту ЛДСП толщиной 16 или 18 мм. Этот параметр имеет значение при определении длины передних и задних стенок. Дальнейшие расчеты зависят от того, какие направляющие выбраны для комплектации ящиков.
Шариковые и роликовые направляющие
При выборе обычных моделей шариковых направляющих между внутренними сторонами вертикальных стоек и корпуса ящика должен быть зазор 25-26 мм – по 12,5-13 мм на каждую сторону. Более точное значение зависит от толщины металла, который используют при изготовлении направляющих. Однако 1 мм принципиальной роли не играет, поэтому можно делать суммарный зазор 26 мм.
Высота ящиков с дном из ДВП или ХДФ может варьироваться в пределах от 50 до 180 мм. Увеличивать или уменьшать этот габарит не рекомендуется.
Для сборки более высоких ящиков целесообразно использовать дно из ЛДСП. В качестве примера приведем пример расчета деталей для ящиков с дном их ДВП/ХДФ, которые планируется установить в тумбе с глубиной корпуса 460 мм и шириной 600 мм, с учетом, что для изготовления деталей планируется использовать ЛДСП (16 мм):
- Длина боковых стенок (L) – этот параметр соответствует длине направляющих или может быть больше. В данном случае для комплектации лучше всего подойдут системы длиной 400 мм. Однако в корпусе можно поместить более глубокий ящик с максимально допустимой L=435 мм.
- Длина передней и задней стенок (S) – при использовании 16-миллеметровой плиты длина боковин составит: S=568 (внутренний проем) — 32 (суммарная толщина двух боковин) – 26 (допуск на направляющие) = 510 мм.
- Габариты фасада на ящик – ширина накладки должна быть на 4 мм меньше размера внутреннего проема, а высота накладки рассчитывается по специальной формуле: h= H/N-4 мм.
H — высота проема;
N — количество ящиков в проеме.
Фасады внутренних ящиков нельзя комплектовать обычными ручками – они будут выступать за пределы корпуса и не дадут закрыться дверным полотнам. Для оснащения накладок нужно использовать врезные ручки или делать на верхней стороне фасада небольшое радиусное углубление, чтобы можно было захватить ящик рукой. Для внутренних выдвижных элементов чаще всего выбирают второй вариант.
Если использовать плиту толщиной 18 мм, длина боковин и габариты накладок останутся прежними, а длина передней и задней стенок уменьшится на 4 мм.
Длина и ширина дна из ДВП/ХДФ должны быть на 1 мм меньше аналогичных размеров ящиков в сборе. В данном случае – 434х541 мм.
Метабоксы
При изготовлении ящиков с использованием метабоксов со стальными боковинами и дно, и задние стенки раскраивают из ЛДСП. В отличие от роликовых направляющих при расчете суммарной ширины ящика следует отнимать не 25-26 мм, а 31 мм. То есть габариты деталей должны быть следующие:
- Ширина дна – S=568-31=537 мм.

- Глубина дна – теоретически этот размер равен длине направляющих, но на практике может оказаться на 4-5 мм меньше. То есть в нашем случае глубина может составить 395-400 мм.
- Длина задней стенки – такая же как и ширина дна: L=537 мм.
- Высота задней стенки – этот параметр зависит от модели метабокосов. Стальные боковины могут иметь высоту 55; 86; 118 и 150 мм. В зависимости от модификации от одного из указанных параметров необходимо отнять толщину дна (16 или 18 мм) – это и будет высота задней стенки ящика из метабоксов.
В некоторых ситуациях можно увеличить высоту задней стенки. В таком случае необходимо приобрести специальные рейлинги. Они крепятся к фасаду и задней стенке и являются своеобразным продолжением стальных боковин метабоксов. Размеры накладок для метабоксов определяются так же, как и при расчете фасадов для ящиков с обычными направляющими.
Направляющие скрытого монтажа
Для этих выдвижных систем нужно готовить ящики с дном из ЛДСП, которое может быть как накладным, так и внутренним.
Особенность этих направляющих заключается в том, что у ящиков боковины выше передних и задних стенок. Разница составляет 10-15 мм и зависит от модели направляющей. Поскольку дно накладное, должна быть учтена и его толщина (16-18 мм). Этот вид направляющих подходит для изготовления глубоких ящиков с высотой стенок до 250-300 мм. В этом случае детали дна ящиков для тумбы с внутренним просветом 568 мм и глубиной 460 мм будут иметь следующие размеры:
- Боковые стойки – увеличить глубину ящика не получится, так как это не позволяет сделать конструкция направляющих. Придется даже немного уменьшить на 10мм – это требует инструкция по установке. Поскольку для данного случая нужно использовать модель L=400 мм, длина боковин составит 390 мм. Высота деталей h=250 мм.
- Передние и задние стенки – длина этих деталей составит L=568-42=524 мм. Для моделей, представленных в ИМ «Кронас», от ширины внутреннего просвета нужно отнять 42 мм. Для направляющих других марок эта величина может быть другой.
Высота передних и задних стенок в этом случае составит h=250 (высота боковин) -16 (толщина дна) -13 (зазор внизу между боковинами и дном) = 221 мм. - Размеры дна – длина детали такая же, как и у боковин L=390 мм, а ширина составляет 524 мм и совпадает с шириной передних и задних стенок.
В случае использования направляющих скрытого монтажа для комплектации внутренних высоких ящиков, можно обойтись без фасадов накладок. Это позволит использовать для корпуса с глубиной 460 мм направляющую L=450 мм и увеличить габариты ящиков.
Заключение
Примеры расчетов для 3 видов выдвижных систем – лишь шаблон алгоритма действий. При вычислении размеров деталей ящиков для определенной модели направляющих необходимо сверяться с информацией из инструкции. Принцип расчета остается прежним, а вот допуски могут измениться.
Расчет роликовых направляющих для выдвижного ящика
Для одного выдвижного ящика нужно две пары направляющих. Одни направляющие крепятся на ящик, а другие на стойки мебели.
Рассмотрим вариант тумбы с выдвижными ящиками.
Для того чтобы спроектировать, а потом и установить ящики нужно знать следующие параметры:
- высота фасадов ящиков
- размер ящиков – ширина, глубина, высота
- размеры для крепления направляющих на стойки
Например, нужно сделать тумбу на три ящика. Размеры тумбы: ширина – 420 мм, высота без ножек – 560 мм, глубина – 505 мм.
Крышка комода будет нависать над фасадами, фасады будут накладные. Для расчета ящиков будут использоваться параметры роликовых направляющих.
Первое с чем нужно определиться – высота фасадов. Рисуем схему тумбу, вид сбоку. Сначала проставляем обязательные зазоры: между крышкой комода и всеми остальными фасадами – 3мм, отступ от низа тумбы – 4 мм.
Теперь нужно рассчитать рабочую высоту тумбы для фасадов. Общая высота тумбы 630 мм, толщина крышки и нижней полки 18 мм, высота ножек 70 мм: 630-18-18-70 = 523 мм
Рассчитываем высоту фасадов:
- Плюсуем все зазоры и отступы: 3+3+3+4 = 13
- От рабочей высоты комода отнимаем полученную сумму: 523 -13 = 510
- Делим полученный результат на количество фасадов: 510 : 3 = 170
Высота одного фасада 170 мм.
Ширина фасада меньше общей ширины изделия на 6 мм: 420 – 6 = 414 мм.
Толщина одной пары роликовых направляющих 12,5мм. Общая толщина двух пар роликовых направляющих 12,5 + 12,5 = 25мм. Добавим еще один миллиметр для того чтобы исключить задевание головок саморезов за направляющие, общий зазор равен – 26мм.
Теперь нужно разметить линии крепления направляющих к стойкам комода. Разметку нужно всегда начинать от верхнего края детали. И даже если вы немного ошибетесь, внизу это не будет заметно. Для разметки можно использовать следующее правило: линия, на которую будет прикручиваться направляющая должна быть на 35мм выше низа фасада.
В этой тумбе 3 ящика, должно быть 3 линии.
Считаем:
1-я линия. 3(отступ от верха) + 170(высота фасада) – 35 = 138 мм
2-я линия. 3 + 170 + 3(зазор между фасадами) + 170 – 35 = 311 мм
3-я линия. 3 + 170 + 3 + 170 + 3 + 170 – 35 = 484 мм
Расчет ящика
Приветствую Вас на bokovina.ru ! Выдвижные ящики очень удобная организация хранения вещей.
И сейчас Вы узнаете как сделать более удобным свой дом. Прочитав этот текст, Вы рассчитаете и соберёте любые выдвижные ящики для своих конкретных целей.
Важно понять схему конструкции тумбы с ящиками и тогда будет не обязательно запоминать все необходимые цифры. Достаточно иметь рулетку и тогда Вы с лёгкостью впишите и рассчитаете ящики из любого материала и с любыми направляющими.
Для выдвижения ящика нужны направляющие. Для крепления направляющих необходимы боковины. Т.е. схема такова – боковина,направляющая, ящик,направляющая, боковина. Зная габариты тумбы, толщину боковины и толщину направляющей, Вы просчитаете размер ящика.
Чтобы рассчитать размер ящика замеряем толщину направляющей и толщину боковины. Складываем и полученную сумму умножаем на 2, потому-что у нас две направляшки и две боковины. Отнимаем результат от общих габаритов и получаем ширину ящика.
Конструкция
Ящик состоит из четырёх планок.
Две боковые и между ними задняя и лобовая. Чтобы рассчитать заднюю и лобовую, следует знать общую ширину. От общей ширины отнимаем толщину двух планок и получаем длину лобовой и задней. Размер дна равен габаритам ящика минус 4 мм.
Глубина тумбы всегда на 5 мм больше длины направляющей. Иначе ящик будет упираться в заднюю стенку и не плотно закрываться. Например длина направляющей 450 мм, значит тумба в глубину должна быть не меньше 455 мм, больше сколько угодно.
В шаговой доступности от Вас, размещена услуга по расчёту корпусной мебели.
Пример с цифрами
Тумба 400 мм из ЛДСП 16 мм. Внутренний размер тумбы 368 мм, т.к. 16+16=32 и 400-32=368. Ширина ящика 341 мм, т.к. от внутреннего размера 368 отнимаем толщину двух направляшек 13+13=26. Для лёгкого хождения добавляем 1 мм, итого 368-27= 341 мм.
Длина лобовой и задней планки = От общей ширины ящика 341 отнимаем толщину двух боковых планок 32 и получаем 309 мм.
Допустим габариты ящика равны 500*341. Чтобы рассчитать дно следует от габаритов ящика отнять по 4 мм и получаем размер дна ящика 496*337
Усиление дна
Когда установлены слабые крепежи дна — днище отлетает. Поэтому необходимо усилить дно планками из 16 мм или 10 мм плиты. Поверх ДВПО или ХДФ прикручиваем саморезами или евровинтами планки шириной примерно 100 мм вдоль или поперек, по наименьшему размеру.
Стандартная глубина или высота ящика 100 мм и 250 мм. Наименьшая глубина ограниченна высотой направляющей, наибольшая глубина ограниченна высотой тумбы.Решаете, что конкретно Вы собираетесь хранить в нём. Соответственно выбираем глубинуне путать с длинной выдвижного ящика.
Заключение
Как видите простые математические действия. Если Вам понятна схема сборки тумбы с ящиками, то Вы без особого труда и излишней суеты справитесь с задачей. Если всё-таки у Вас появились вопросы смело задавайте их в комментариях, ниже статьи.
Я с удовольствием отвечу на них.
Если Вам понадобится деталировка корпусной и встроенной мебели , обращайтесь. Мы обязательно обсудим условия сотрудничества и придём к единому мнению. За умеренный процент за свой труд, я подготовлю для Вас подробный проект, в назначенные сроки.
Что бы Вам хотелось добавить к этой статье?
Расскажите мне о своём опыте в комментариях.
Мне будет очень интересно послушать Ваши истории!
С хорошими мыслями о Вас, всегда в опилках 🙂
Ре́кун Дмитрий.
Твитнуть
Не забудьте поделиться этой статьёй в социальных сетях
Установка полозьев для ящиков. Размеры и особенности шариковых направляющих для выдвижных ящиков. Использование роликовых направляющих в конструкции выдвижного ящика
При сборке мебели фабричного производства вопрос о монтаже направляющих на выдвижные ящики вовсе не стоит.
Разметка для правильной установки обычно производится (причем, очень точно), и инструкция по установке прилагается. Учитываем, что вся фурнитура при этом есть в наличии и вам не придется подбирать какие-либо элементы для крепежа. А вот при ремонте мебели или при ее производстве приходится самостоятельно рассчитывать положение направляющих для выдвижных элементов мебели.
Шариковые направляющие
При выборе направляющих предпочтение все чаще отдается шариковому варианту. И это неспроста: шариковые полозья по многим параметрам превосходят все иные конструкции направляющих. Они обеспечивают легкое выдвижение ящиков, достаточно легко крепятся и регулируются, способны фиксировать выдвижной элемент в обычном его положении.
Купить их в торговой сети перестало быть проблемой, поэтому осталось научиться их правильно крепить к мебели. Для обеспечения этого процесса вам потребуются:
- направляющие;
- шурупы;
- шуруповерт;
- линейка;
- карандаш;
- шило.

Качество элемента
При покупке обращаем внимание на ее длину (она должна быть не менее 70% от длины выдвижных ящиков) и комплектность. Лучше сразу приобретать конструкцию вместе с шурупами, чтобы потом не получить дополнительных проблем. Легкость движения частей конструкции проверьте еще в магазине.
Шариковые варианты состоят из двух частей. Чтобы их рассоединить (а это необходимо для крепежа), нажмите на резиновый фиксатор и просто выдвиньте внутреннюю часть направляющей. Она и будет непосредственно крепиться на выдвижной элемент.
Особенности крепежа к ящику
Крепить устройства на ящики можно в двух вариантах: по нижнему краю боковой стенки ящика или в центральной их части. Крепление направляющих вдоль центральной оси выдвижных ящиков рекомендуется использовать, если размеры самих ящиков достаточно большие. В этом случае нагрузка на конструкции будет меньше, что обеспечит их долговечность. Так устройства крепить проще, но сложнее их точно отрегулировать.
Берете для упрощения дополнительно инструмент под названием уровень.
Только многократные замеры помогут сделать все качественно. Без строительного уровня в этом случае тоже не обойтись. В остальных случаях шариковые направляющие следует крепить по нижнему краю. И здесь тоже может быть несколько вариантов установки: заподлицо с фасадной панелью выдвижного ящика или с небольшим отступом вглубь. Проще закрепить шариковую конструкцию именно по первому варианту. Так и дополнительную разметку делать не придется, и расчеты проводить не будет необходимости. Фасадную панель ящика предстоит отсоединить.
Возьмите в руки направляющую и проложите ее к боковой панели. В местах крепления шилом сделайте отверстия. Так вам будет легче завернуть шурупы строго перпендикулярно панелям. Шляпки не будут торчать и препятствовать работе. Непосредственно на ящики шариковую конструкцию можно сразу крепить стационарно. А вот на боковые панели тумбы делать этого не рекомендуется.
Разметка и регулировка
Обратите внимание, что шариковые направляющие имеют как горизонтальные, так и вертикальные отверстия.
Они предназначены для регулировки положения. Обычные круглые отверстия необходимы для окончательной фиксации. Для крепления конструкции на боковую панель тумбы необходимо произвести тщательную разметку. Отступите от нижней панели тумбы около 3 мм и на этой высоте проведите карандашом горизонтальную линию. Вдоль этой линии расположите направляющую (линия должна оказаться строго под направляющей) и заверните (не до упора) шурупы во все отверстия, имеющие продолговатую форму.
Теперь можно проверить их установку при помощи выдвижного ящика: совмещаем части направляющей и проверяем движение. Если все сделано правильно, то ящик должен двигаться легко. При полном закрытии ящика должны сработать оба фиксатора. Если всего этого нет, то шариковые устройства необходимо отрегулировать. Слегка отпустите шурупы и добейтесь устранения всех недостатков. И только после этого окончательно все шурупы должны быть прикручены до упора. На последнем этапе прикручиваем фиксирующие шурупы. Остается только установить панельную планку на выдвижной ящик и зафиксировать ее с помощью шурупов.
В первое время фиксаторы будут работать слишком жестко: открыть выдвижной ящик можно будет только с большим усилием.
Пугаться этого не стоит: со временем фиксаторы разработаются, и все станет значительно проще. Если вас это не устраивает, то вы можете установить шариковые направляющие и без фиксаторов.
Шариковые конструкции без фиксаторов тоже не сложно приобрести. Ну а если таких найти не удалось, то сами фиксаторы легко снять и с обычных направляющих.
Значительно сложнее установить шариковые устройства на выдвижные ящики, которые до этого были монтированы роликовыми. Дело в том, что роликовые направляющие обычно чуть шире, поэтому установка иных разновидностей может показаться неразрешимой проблемой. В реальности все не так уж сложно: достаточно подложить под направляющую прочную шину с каждой стороны, чтобы нивелировать разницу в толщине.
Если выдвижные элементы расположены друг над другом, то вам без расчетов обойтись не удастся.
Существуют даже определенные расчетные формулы, которые выражают зависимость между размерами выдвижных ящиков и местом, где необходимо установить направляющую. Проще все же обзавестись технологической картой, где все расчеты будут уже произведены.
Оптимальный метод
Интересный способ разметки, который полностью исключает все недочеты монтажа, рекомендуют народные умельцы. Сначала они советуют прикрутить направляющие к выдвижным элементам и соединить обе части. Евровинты, на которых монтирован корпус мебели, необходимо отпустить, чтобы позволить боковым панелям отходить в сторону.
На внешнюю часть направляющей (ту часть, что должна прилегать к боковой панели корпуса), наносится слой любого красящего вещества. Выдвижной ящик аккуратно устанавливается в необходимое положение. Под него рекомендуется подложить лист картона, чтобы обеспечить необходимый зазор между днищем ящика и нижней панелью корпуса. После этого винты затягиваются до упора. Красящее вещество даст точный отпечаток на поверхности.
Именно на этом месте и следует прикрутить шариковую направляющую к боковым панелям. Метод прост до гениальности: точнее направляющую уже невозможно будет поставить. Недостаток только в том, что корпус мебели придется подвергнуть частичному демонтажу.
Заднюю панель точно придется отделять, так как она будет препятствовать свободному перемещению боковых панелей. Стоит ли это делать, чтобы установить направляющую? Способ хоть и точный, но не самый быстрый.
- Роликовые направляющие
- Установка механизмов
- Завершение работ
Неправильный монтаж направляющих на боковых стенках ящика может привести к неприятным последствиям, которые вызывают искривление всей конструкции.
Это в дальнейшем обусловит неправильную эксплуатацию изделия, что приведет к его быстрой поломке.
Чтобы избежать подобных ошибок, необходимо сразу ознакомиться со способом монтажа выдвижного ящика.
Роликовые направляющие
В настоящее время самое широкое распространение имеют 2 вида направляющих, имеющих роликовую и шариковую конструкции.
Направляющие роликового типа имеют невысокую стоимость, благодаря этому качеству они очень широко используются в мебельных конструкциях, чаще всего – на стенках ящика.
Роликовые направляющие имеют очень простую конструкцию, которая состоит из 2 частей. Первая часть должна крепиться на боковой стенке выдвижного ящика, а вторая часть – на внутренней стенке шкафа, тумбы и т. д. Эти направляющие могут быть выполнены из стали или алюминия. На направляющих, которые устанавливаются на ящики, имеются ролики, обеспечивающие их движение. Чтобы исключить шум во время движения роликов, их конструкцию могут покрыть резиновой оболочкой.
Так как направляющие на роликах не являются конструкцией, предназначенной для выполнения закрытого монтажа, то на их поверхность наносится покрытие из эмали, нужной для придания красивого внешнего вида всей конструкции. Чаще всего используется краска белого, черного или коричневого цветов.
Конструкция этих направляющих похожа на рельсы, которые позволяют выполнять открывание и закрывание различных движущихся элементов мебели и не прикладывать к этому больших усилий.
Обусловлено это создающимся инерционным моментом, который возникает после небольшого толчка на ящик.
Вернуться к оглавлению
Установка механизмов
В последнее время использование роликовых механизмов получило широкое распространение. Обусловлено это наличием в квартирах и домах компьютеров, которые устанавливаются на специальные компьютерные столы. Такие столы имеют выезжающую полочку для возможности установки на ней клавиатуры. Также подобные механизмы могут быть на различных выдвижных ящичках, полках и этажерках. Собрать такие элементы мебели можно собственными силами. Главное, ответственно подойти к этому делу.
Для установки понадобятся следующие инструменты:
- дрель;
- линейка;
- карандаш;
- саморезы.
Сама схема установки имеет довольно простую последовательность и выполняется очень легко. Для начала монтажа необходимо произвести разметку на стенках ящика. Делать это нужно точно, чтобы не допустить дальнейших перекосов, которые могут возникнуть в движущихся частях.
Далее необходимо с помощью дрели просверлить отверстия, причем они не должны быть сквозными. Глубина их должна быть в 12-14 мм – это вызвано длиной саморезов и толщиной листа ДСП. Аналогичные отверстия нужно сделать и на корпусе ящика (они должны точно совпадать с предыдущими).
Вернуться к оглавлению
Завершение работ
Для дальнейшего монтажа необходимо расположить ящик таким образом, чтобы конец одного рельса, находящегося на нем, упирался в стенку спереди. Это позволит ролику находиться в задней части элемента. После этого нужно выполнить крепление рельсов, используя для этого саморезы. При этом следует учесть, что шляпка саморезов не должна выступать за тело рельса более чем на 1 мм. Подобным образом выполняется крепление и на противоположной стенке ящика.
Следующий шаг – выполнение монтажа направляющих в шкафу. Для этого рельс располагают таким образом, чтобы он находился в перпендикулярном положении относительно фасада. При этом ролик, находящийся на рельсе, должен располагаться в передней части шкафа.
На теле направляющих рельсов имеется множество прорезей и отверстий, которые предназначены для регулировки их положения при осуществлении крепления саморезами. Выполняя их монтаж в шкафу, лучше пользоваться удлиненными прорезями, так как они позволят выполнить нужную регулировку. Выполнив настройку и закрепив направляющую, необходимо сделать ту же операцию на противоположной стороне.
После этого можно вставить ящики на направляющие. Если все было сделано правильно и никаких перекосов при этом не допущено, то движение ящика должно быть ровным и мягким без прикладывания больших усилий.
Установку роликовых направляющих выполнить довольно легко, и она не займет много времени. Для этого необходимо подготовить нужный инструмент и иметь минимальные навыки его использования.
Перед началом проектирования необходимо определиться с типом направляющих, которые будут использоваться. Я расскажу, как спроектировать ящик с роликовыми направляющими и с накладными фасадами.
Вот так выглядят роликовые направляющие:
Для одного выдвижного ящика нужно две пары направляющих. Одни направляющие крепятся на ящик, а другие на стойки мебели.
Для того чтобы спроектировать, а потом и установить ящики нужно знать следующие параметры:
– высота фасадов ящиков;
– размер ящиков – ширина, глубина, высота;
– размеры для крепления направляющих на стойки.
Например, нужно сделать комод на четыре ящика. Размеры комода: ширина – 800мм, высота без ножек – 800мм, глубина –440 мм.
Крышка комода будет нависать над фасадами, будут накладные. Для расчета ящиков будут использоваться параметры роликовых направляющих.
Первое с чем нужно определиться – высота фасадов. Рисуем схему комода, вид сбоку. Сначала проставляем обязательные зазоры: между крышкой комода и верхним фасадом – 4мм; между фасадами – 2-3мм, отступ от низа тумбы –2 мм.
Рассчитываем высоту фасадов:
1) плюсуем все зазоры и отступы: 4+2+2+2+2=12;
2) от рабочей высоты комода отнимаю полученную сумму: 784 -12 = 772;
3) делю полученный результат на количество фасадов: 772: 4 = 193
Высота одного фасада 193 мм.
Ширина фасада меньше общей ширины изделия на 4мм: 800 – 4 = 796мм.
Ящик состоит из двух боковин, передней, задней стенки и дна.
Передняя и задняя стенки вкладываются между боковинами. Для широких ящиков можно добавить еще одну деталь: стяжная планка ящика. Она предотвратит провисание дна ящика. Стяжная планка крепится между передней и задней стенками. Снизу прибивается дно из ДВП. Дно нужно крепить ко всем стенкам и к стяжной планке.
Определимся с размерами деталей ящика.
Для определения высоты стенок ящика я пользуюсь правилом – высота ящика минимум на 50мм меньше высоты фасада ящика. В моем случае 193 -50 = 143мм. Округляю до 140мм.
Длина боковых стенок равна длине направляющих. Глубина комода 440мм, будут использоваться роликовые направляющие длиной 400мм, значит, длина боковых стенок равна – 400мм.
Сначала определяем ширину проема комода – от общей ширины отнимаем толщину двух стоек по 16мм: 800 – (16*2) = 768.
Между боковой стенкой ящика и стойкой комода должен быть промежуток равный толщине направляющей
Толщина одной пары роликовых направляющих 12,5мм.
Общая толщина двух пар роликовых направляющих 12,5 + 12,5 = 25мм. Добавим еще один миллиметр для того чтобы исключить задевание головок саморезов за направляющие, общий зазор равен – 26мм.
Для того чтобы узнать ширину передней стенки ящика нужно от ширины проема отнять толщину направляющих и толщину боковых стенок ящика. Толщина направляющих уже известна – 26мм, а толщина боковых стенок ящика равна 16 + 16 = 32мм.
Ширина передней (задней) стенки равна: 768 – (26 + 32) = 710мм.
Получились детали таких размеров:
боковая стенка 400 х 140 – 2шт;
передняя (задняя) стенка 710 х 140 – 2шт;
дно 737 х 395.
Теперь нужно разметить линии крепления направляющих к стойкам комода. Разметку нужно всегда начинать от верхнего края детали. И даже если вы немного ошибетесь, внизу это не будет заметно. Для разметки я пользуюсь следующим правилом: линия, на которую будет прикручиваться направляющая должна быть на 35мм выше низа фасада.
У меня четыре ящика, должно быть четыре линии.
Считаю:
1-я линия. 4(отступ от верха) + 193(высота фасада) – 35 = 162мм
2-я линия. 4 + 193 + 2(зазор между фасадами) + 193 – 35 = 357мм
3-я линия. 4 + 193 + 2 + 193 + 2 + 193 – 35 = 552мм
4-я линия. 4 + 193 + 2 + 193 + 2 + 193 + 2 + 193 – 35 = 747мм
Механизм роликовых направляющих представляет собой пару так называемых рельс, между которыми устанавливается несколько (2 и более) маленьких колесиков.
Роликовые направляющие — самые простые в плане устройства и монтажа направляющие.
Последние обеспечивают движение обеих частей устройства в двух противоположных направлениях, то есть позволяют как увеличивать длину конструкции, так и возвращать ее в исходное состояние.
Перемещение происходит в одной плоскости (обычно горизонтальной) и ограничено размерами полозьев.
Материал каждой составляющей оказывает значительное влияние не только на степень подвижности направляющих, но и на долговечность всего механизма. Чтобы максимально продлить срок службы устройства, рельсы изготавливаются из металла, а для обеспечения необходимого хода полозьям ролики производятся из пластика.
Роликовые направляющие для ящиков.
Главной причиной использования роликовых направляющих является практически полное отсутствие трения между движущимися частями.
А ведь этот процесс неукоснительно приводит к повреждению и последующему разрушению взаимодействующих поверхностей и конструкции в целом.
Можно найти роликовые направляющие для ящиков глубиной от 250 до 800 мм, то есть практически на все случаи.
Вдобавок из-за трения требуется гораздо больше усилий для перемещения полозьев, которое к тому же происходит с меньшей скоростью.
Покрыты роликовые направляющие прочной эпоксидной эмалью.
Обладая собственным набором полезных свойств, шариковые направляющие достаточно давно конкурируют с роликовыми.
Шариковые направляющие также как и роликовые состоят их двух частей. Одна из них крепится на ящик, другая на боковую стенку.
В первом случае в роли комплектующей, обеспечивающей подвижность импровизированным рельсам, выступает небольшой шарик, а во втором – маленький ролик.
Механизм шариковых направляющих.
Механизм роликовых направляющих.
И даже несмотря на то, что при изготовлении последнего могут быть использованы подшипники, содержащие сферические элементы, именно эта особенность механизмов послужила причиной их названия.
Роликовые направляющие выдерживают динамическую нагрузку до 25 кг.
Если говорить о популярности указанных устройств, то наиболее распространенными считаются все же роликовые изделия.
Минусы роликовых направляющих это шум с которым они выдвигаются и закрываются.
На их востребованность повлиял тот факт, что шариковые направляющие гораздо чаще встречаются в неразборном варианте. Это не столько препятствует монтажу или затрудняет установку, сколько серьезно ограничивает сферу применения механизма.
Разновидностей шариковых направляющих много, различаются они в основном по высоте, а также по степени выдвижения и наличию доводчика.
Использование роликовых направляющих в конструкции выдвижного ящика
С некоторых пор область применения роликовых направляющих неразрывно связана с мебельным производством.
Именно в этой сфере чаще всего задействованы такие предметы.
Устройство обычно используется для изготовления гардеробов со складными штангами, обувных тумб со скрытыми нишами и шкафов с выдвижными ящиками. Так как последние распространены в большей степени, о них и пойдет речь в дальнейшем.
Пример использования роликовых направляющих для выдвижения ящиков в тумбе.
Крепление механизма осуществляется на боковые стенки короба с внешней стороны, что не способствует уменьшению полезного пространства самого ящика.
Роликовые направляющие – это направляющие частичного выдвижения.
Это значит, что полностью ящик выдвинуть вы не сможете.
Для того, чтобы не повредить заднюю стенку шкафа и не отсоединить от него ящик, полозья содержат специальные ограничители, принимающие вид искусственных неровностей на поверхности рельсы.
Правильный расчет и монтаж – это основа успешного применения роликовых направляющих.
А в целях предоставления дополнительных возможностей , касающихся снятия и установки ящика, основные комплектующие имеют технологические отверстия.
Шариковые направляющие не позволили бы вытаскивать и вставлять ящик после сборки мебели без нарушения ее фасадов.
Монтаж роликовых направляющих для выдвижных ящиков
Использование механизма с нажимными толкателями, выполняющими также роль ограничителей, позволяет без потери функциональности сохранить внешний вид фасадов мебели и ее заднюю стенку.
Тумба с установленными роликовыми направляющими.
Устанавливаем сами ящики внутрь короба и получаем готовый предмет мебели.
ВИДЕО: Установка роликовых направляющих.
50 фото-идей выдвижных ящиков с различными механизмами:
При самостоятельном изготовлении мебели – различных шкафчиков с наличием выдвижных ящиков – ключевым моментом в сборке является монтаж направляющих. Роликовые направляющие обеспечивают процесс движения выдвижного элемента.
Механизм выдвижной системы достаточно прост и включает в себя ролики и полозья, по которым они перемещаются.Ролики фиксируются на внешней стороне короба ящика. Полозья для их движения устанавливаются внутри шкафа по боковым сторонам свободной ниши. При выполнении сборки механизма очень важно установить элементы так, чтобы они четко совпадали. Если будет допущена неточность, то мебель будет испорчена. В лучшем случае механизм будет заедать и работать не гладко. В худшем случае собрать выдвижной ящик не удастся, а все примененные материалы будут испорчены. Кроме того, демонтировать механизм может быть достаточно проблематично. Перед проведением работ нужно выполнить несложные расчеты, чтобы получить желаемый результат.
Расчет направляющих
Чтобы ящики идеально занимали отведенное им место, нужно выполнить расчеты для роликовых направляющих перед тем, как их установить. Описать порядок вычислений лучше всего на примере. Если нужно соорудить, например, прикроватную тумбу с двумя одинаковыми выдвижными ящиками, то прежде всего нужно измерить ее параметры.
Для тумбы с высотой боковин 367, высотой цоколя 70 и зазором между фасадами высота одного фасада получится: (368-70-2*3)/2=146 мм.
При одинаковых размерах элементов оптимальный вариант их монтажа – сделать их взаимозаменяемыми.
Для этого при расчете обязательно учитываются крайние положения ящиков. Кроме того, следует обратить внимание на перехлест фасадов и каркаса тумбы. Нижняя граница установки роликовых направляющих определяется дном тумбы. При установке короба на нее дно должно совпадать с ее нижним ребром.
Во избежание задевания дна тумбы нужно добавить 4 мм на шляпку самореза. Высота крепления нижнего элемента механизма будет равна сумме высоты шляпки самореза и величины осевой линии отверстия, то есть в данном примере: 18+4=22 мм. Можно рассчитать расположение деталей механизма от нижнего торца боковины тумбы. В этом случае: цоколь+толщина дна+высота крепления направляющей от дна=70+16+22=108 мм.
Стоит обратить внимание, что головка самореза, как правило, меньше 4 мм.
Ее средние размеры – 1-1,5. Размер принимается за 4 для универсальности расчета. Полученные его результаты будут применимы и в том случае, если для изготовления тумбы будет использоваться материал толщиной 18 мм, а не 16. При этом небольшой зазор все равно останется.
Таким же порядком проводятся расчеты высоты фасада для верхнего элемента, только с учетом размещения нижних. После выполнения расчетов и разметки по полученным данным можно переходить к монтажу.
Качественная фурнитура — это обязательное условие для изготовления добротной корпусной мебели. От технических характеристик комплектующих зависит прочность, долговечность и уровень комфорта кухонь, комодов, горок, тумб и шкафов-купе.
Существует несколько типов выдвижных систем, отличающихся сложностью конструкции, стоимостью и удобством использования:
- роликовые направляющие;
- шариковые направляющие;
- метабоксы;
- тандемы;
- тандембоксы;
- леграбоксы.
Обычно установка направляющих для выдвижных ящиков представляет собой несложную схему, с которой может справиться даже непрофессионал.
Установка направляющих для выдвижных ящиков своими руками потребует внимательного изучения инструкции, немного времени и навыков работы с шуруповертом.
Роликовые направляющие для выдвижных ящиков
Эти направляющие обычно используются для изготовления мебели в массовом производстве. Изготавливаются из стали, сверху наносится эпоксидная краска белого, серого, черного или коричневого цвета. Длина направляющих может быть различна: от 250 мм до 600 мм с шагом 50 мм. Она специально подбирается под размер ящиков.
Вес, который удерживают роликовые направляющие в движении, составляет не более 15 кг. Существенными минусами этого типа направляющих являются их шумность при перемещении, недолговечность и неполное выкатывание ящиков.
Установка роликовых направляющих для требует точного расчета. При неверном вычислении срок эксплуатации роликов значительно уменьшается, также вероятно раннее возникновение проблем с движением ящиков.
для выдвижных ящиков
Производятся из штампованной стали с анодированным покрытием.
Их конструкция принципиально отличается от роликовых направляющих. Для скольжения ящика по полозьям используется обойма с металлическими шариками, заполненная вязкой смазкой. Это дает относительно бесшумную эксплуатацию и увеличивает срок службы. Существуют модели, оснащенные встроенными доводчиками, которые предотвращают шумный удар ящика о стойку корпуса при резком захлопывании. Система имеет два металлических элемента: один крепится к внутренней стенке изделия, а другой — к ящику. Чтобы разделить эти две части, нужно использовать фиксатор.
Шариковые направляющие бывают полного или частичного выкатывания. Направляющие полного выдвижения (или телескопические) позволяют вытащить ящик за границы корпуса мебели, что максимально увеличивает обзор внутреннего пространства. Направляющие неполного выдвижения оставляют необозримой область около 50 мм от заднего торца ящика. Длина направляющих составляет от 200 до 600 мм с шагом в 50 мм. Предельная нагрузка направляющих высотой 35 мм — 30 кг.
Также существуют усиленные направляющие, их высота составляет 45 мм, а предельная нагрузка — до 45 кг.
Метабоксы
Это разновидность роликовых направляющих. Стальные полозья этих направляющих увеличены до высоты ящика и полностью заменяют его деревянные боковые стенки. Отсюда и название — метабоксы или металлбоксы. Ролики крепятся к боковинам. Высота боковых стенок — от 54 мм до 150 мм. Увеличить высоту можно специальными рейлингами. Дно метабокса делают из ДСП, ограничивая наполнение весом до 20 кг. Чем короче ящик, тем большая нагрузка допустима.
В креплении фасада к метабоксу предусмотрена вертикальная и горизонтальная регулировка, которая позволяет точно выровнять его по отношению к корпусу. Чаще всего метабоксы находят применение в изготовлении серийных кухонь бюджетной категории.
Тандемы
Тандемы — направляющие скрытого монтажа. Бывают двух видов: полного и частичного выдвижения. Ящик на такие направляющие крепится сверху, полностью скрывая их под боковинами и дном.
Мягкое скольжение (даже при нагрузке до 50 кг) обеспечивается по принципу подшипника: блоком стальных шариков, расположенных с четырех сторон полозьев (система квадро), или цилиндров — иголок. Крепление позволяет отрегулировать положение ящика относительно корпуса и снять ящик с направляющих без инструментов. Тандемы выпускаются в нескольких вариантах:
- с доводчиком — обычное открывание за ручку и плавное закрывание;
- с механизмом tip on или push to open — открывается прикосновением к фасаду;
- с электромеханическим открыванием.
Тандембоксы
Тандембокс — ящик, состоящий из металлических боковин с двойными стенками, дно обычно из ЛДСП, задня стенка выполнена из металла или ЛДСП и направляющих скрытого монтажа. Это те же тандемы, укомплектованные двойными боковыми стенками. Возможно дополнительное наращивание высоты ящика рейлингами и специальным профилем. Некоторые производители делают наращивание из стеклянных планок.
Для организации внутреннего пространства ящика предусмотрены дополнительные опции: передвижные разделители, контейнеры и подставки для столовых приборов и баночек для специй.
Ящики леграбокс
Самые современные и дорогие системы направляющих для выдвижных ящиков, занимающие высокую позицию в перечне всех мебельных комплектующих. Усиленная конструкция стабильно выдерживает нагрузку уже до 60 кг. Матовая поверхность нержавеющей стали подчеркивает строгость и изысканность стильного дизайна леграбокса.
Монтаж этого типа систем предполагает ювелирную точность сверления фасадов и боковых стенок, абсолютно выверенных расчетов при изготовлении деталей из ДСП. Также обязательно правильно и аккуратно провести фрезеровку дна.
Производители мебельной фурнитуры предлагают и другие способы применения направляющих. Например, крепление выдвижных корзин, сеток, контейнеров различного назначения.
Общие рекомендации по установке направляющих для выдвижных ящиков
Как установить все правильно? Расчет деталей при установке направляющих для выдвижных ящиков можно произвести по формулам, которые производители предоставляют для своих изделий.
Обычно вся необходимая информация также содержится в инструкции.
Залогом успешной установки направляющих для выдвижных ящиков является точная разметка. Все направляющие должны быть установлены на одном уровне и строго параллельно друг другу. Удобнее всего делать разметку до сборки изделия на ровной горизонтальной поверхности при достаточном освещении.
Существует два способа установки фасада ящика: наружный и внутренний. При наружном способе установки фасад закрывает собой торец корпуса. Тогда направляющую нужно крепить вплотную к внешнему торцу стойки изделия. При внутреннем способе торец стойки изделия находится в одной плоскости с фасадом. Направляющую при креплении необходимо отодвинуть внутрь от видимого торца на толщину фасада.
Инструкция по установке роликовых направляющих для выдвижных ящиков
Теперь поговорим об установке роликовых направляющих. При установке роликовых направляющих для выдвижных ящиков комплект нужно разделить на правую и левую стороны, а потом на внутренние и наружные части.
Левая наружная деталь имеет П-образный профиль, правая наружная — G-образный, внутренние — Г-образный.
На всех частях направляющих имеются отверстия для их фиксации и регулировки на деталях при помощи саморезов. По линиям разметки на стойки корпуса изделия прикручиваются соответствующие части направляющих. Нужно сделать так, чтобы ролики на них находились ближе к лицевому торцу детали. К уже собранному ящику крепятся Г-образные детали направляющих. При этом ролики должны быть расположены у заднего торца ящика.
Собирается изделие, вставляются ящики, навешиваются фасады и ручки. Установка завершается.
Инструкция по установке шариковых направляющих
При установке шариковых направляющих для выдвижных ящиков нужно отделить внутреннюю часть направляющей от внешней. Для этого нужно найти с внутренней стороны направляющей пластмассовый язычок и вытянуть узкую часть.
По предварительной разметке необходимо прикрутить внешнюю деталь направляющей к стойке, а внутреннюю — к боковой стенке ящика.
Собрать изделие, вставить ящики, навесить фасады. Установка для выдвижных ящиков закончена.
Что насчет ящиков с доводчиком? Установка направляющих для выдвижных ящиков с доводчиком выполняется аналогично. Здесь все достаточно просто. Установка шариковых направляющих «Боярд» для выдвижных ящиков или систем других производителей происходит идентичным образом.
Мы покажем, как установить их в корпус с фасадной рамой, где требуется добавить монтажные кронштейны сзади, а иногда и спереди. В корпус, не имеющий фасадной рамы, такие направляющие устанавливаются еще проще.
Перед тем как приступить к изготовлению шкафа с ящиками или комода, советуем заранее купить выдвижные направляющие или, по крайней мере, выяснить их точные размеры и особенности монтажа. Затем изготовьте корпус с учетом размеров направляющих. Выдвижные ящики должны быть строго прямоугольными и не иметь перекосов.
Большинство направляющих, которые крепятся к ящикам с боков, имеют в собранном виде толщину около 12,5 мм.
Поэтому, определяя размеры ящиков, следует вычесть 25 мм из ширины проема, чтобы получить место для установки направляющих. (Направляющие, устанавливаемые снизу, обычно имеют толщину 10 мм. Инструкции по их монтажу даны в конце этой статьи.) Если для крепления направляющих к задней стенке корпуса нужно использовать кронштейны, уменьшите длину ящика, чтобы он не упирался в кронштейны при закрывании.
Роликовые направляющие недороги и доступны
Их преимущества
- Они обычно продаются по цене менее $10 за пару, и их можно найти в большинстве торговых центров.
- Ящичные части таких направляющих прилегают к боковым стенкам снизу и сбоку, поэтому их почти невозможно установить неправильно.
- По сравнению с другими типами направляющих, они менее чувствительны к небольшим перекосам, так как между краями канавки и пластиковым роликом есть зазоры около 1 мм.
- Им не требуется смазка, и они идеально подходят для запыленных помещений, например, столярной мастерской.

Для упрощения монтажа мы прикрепили корпусную часть направляющих к задней стенке с помощью стандартных кронштейнов, продающихся отдельно. Перед началом работы разделите направляющие на две части: ящичную и корпусную.
Сначала установите направляющие в корпус
1.
Расположите корпусную часть направляющей на фасадной раме, чуть сдвинув ее передний край вглубь проема. Рекомендуем пользоваться монтажным приспособлением, с помощью которого удобно удерживать корпусную часть в нужном положении (фото А, В)
или просто придерживать ее рукой, чтобы выровнять, как описано в следующем шаге. Просверлите направляющее отверстие и вверните один шуруп в фасадную раму.
Удерживая направляющую перпендикулярно фасадной раме, закрепите ее шурупом. Магнитное приспособление фирмы Kreg облегчает работу.
Если корпус стоит на горизонтальной поверхности, можно выровнять направляющие с помощью небольшого уровня, закрепленного малярным скотчем.
2.
Измерьте зазор между боковой стенкой корпуса и направляющей, чтобы установить ее под прямым углом к фасадной раме (фото С).
Для уверенности, что направляющая параллельна боковой стенке, измерьте расстояния спереди и сзади.
Ввернув в горизонтальную прорезь один шуруп, можно регулировать положение ящика из стороны в сторону после монтажа второй направляющей.
3.
Вверните шуруп в одну из горизонтальных прорезей на фланце заднего кронштейна (фото
D
).
4.
Проделайте шаги 1-3
с другой стороны проема.
Теперь займитесь ящиком
С помощью прилагающихся шурупов закрепите направляющую сначала у передней стенки ящика. Затем вверните шуруп у дальнего конца.
1.
Прикрепите ящичную часть направляющей к боковой стенке ящика, сдвинув ее на 1 мм назад от передней стороны (фото Е).
Проделайте то же самое с другой стороны ящика.
2.
Вставьте ящик в корпус и проверьте правильность работы направляющих. Если ящик застревает, ослабьте шурупы крепления задних кронштейнов и отрегулируйте положение обеих корпусных частей, чтобы ролики катились плавно.
Если обнаружится перекос, ослабьте шурупы крепления задних кронштейнов и сдвигайте задние концы направляющих вниз, пока зазоры не исчезнут.
3.
С помощью линейки убедитесь, что передняя стенка ящика расположена вровень с корпусом (фото
F
).
Если требуется немного приподнять или опустить ящик, сначала вверните шурупы в середину вертикальной прорези задних кронштейнов. Удалите шурупы из горизонтальных прорезей, поправьте положение ящика, сдвинув его вверх или вниз, а затем снова вверните шурупы в горизонтальные прорези.
4.
Выровняв переднюю сторону ящика с фасадной рамой и добившись плавности хода, вверните шурупы в остальные отверстия, чтобы окончательно закрепить направляющие на месте.
(Если ящики будут врезными, то их передние стенки будут лицевыми поверхностями. Если к передним стенкам планируется крепить фальшпанели, сделайте это после установки направляющих и их регулировки).
Шариковые направляющие для больших нагрузок
Их преимущества
Прикрепите их сначала к ящику
1.
Вначале устанавливаются ящичные части направляющих. Сдвинув части направляющей и выровняв их с низом и передней стенкой ящика, закрепите передний конец, ввернув шуруп в вертикальную прорезь (фото
G
).
Затем добавьте шуруп у другого конца.
3.
Проделайте то же самое с другой стороны ящика, затем отделите корпусные части направляющих.
Теперь — корпус
Уперев отгиб фланца в фасадную раму и удерживая направляющую горизонтально, прикрепите ее к раме двумя шурупами.
1.
Вставьте корпусную часть направляющей в передний монтажный фланец (который продается отдельно) и плотно прижмите отогнутую заднюю часть фланца к задней стороне фасадной рамы, чтобы создать необходимый отступ (фото Н).
2.
Прикрепите сверху направляющей малярным скотчем небольшой уровень (или используйте уровень с магнитным основанием) и с его помощью выровняйте корпусную часть горизонтально. (Сначала с помощью клиньев требуется добиться горизонтальности самого корпуса.
) Измерьте зазор между направляющей и боковой стенкой, чтобы добиться параллельности.
С помощью центрирующего сверла сделайте отверстия, а затем вверните шуруп в середину горизонтальной прорези, чтобы отрегулировать положение ящика.
3.
Закрепите задний монтажный кронштейн на задней стенке (фото I).
4.
Аккуратно вставьте ящик в корпус и плавно задвигайте, чтобы сработали обе защелки. Для регулировки применяйте те же методы, что и для роликовых направляющих, начиная с шага 4.
5.
Вверните шурупы в остальные отверстия, чтобы окончательно закрепить направляющие.
Нижние направляющие полностью скрыты от взгляда
Их преимущества
- Благодаря их расположению ширина ящика может быть почти равной ширине проема, требуются только 3-миллиметровые зазоры с каждой стороны.
- Использование одной-единственной направляющей в середине ящика уменьшает затраты на фурнитуру.
Если устанавливать для каждого ящика только одну нижнюю направляющую, нужно уменьшить нагрузку примерно вдвое по сравнению с такими же ящиками, имеющими две направляющие.
(Одиночные направляющие обычно рассчитаны на нагрузку около 12 кг.) Для их установки требуются не только шурупы — дно ящика должно иметь толщину 12 мм, или нужно добавить проставку, как показано на нижнем фото
в начале статьи. Большинство направляющих этого типа имеют толщину 10 мм, но под дном ящика следует оставить пространство высотой 12 мм. Это обеспечит зазор между стенками ящика и фасадной рамой.
Сначала прикрепите к ящику
1.
Для врезного ящика выровняйте направляющую посередине его ширины вровень с передней стенкой. Если ящик имеет накладную фальшпанель, сделайте вырезы в нижних краях стенок (фото
J
),
чтобы расположить направляющую вровень с передней стенкой ящика.
3.
Выровняйте направляющую и прикрепите ее шурупами спереди и сзади (фото К).
Разметьте на передней и задней стенках линии с отступом 3 мм от направляющей и сделайте пропилы до самого дна ящика Остальное удалите стамеской.
Закрепив передний конец направляющей одним шурупом, измерьте расстояние до боковой стенки, чтобы обеспечить параллельность.
Как крепить к корпусу
1.
Прикрепите передний конец направляющей к фасадной раме одним шурупом (фото
L
).
Для врезного ящика сначала закрепите на задней стороне фасадной рамы бобышку толщиной 1 9 мм, к которой будет крепиться направляющая.
2.
Используя монтажный кронштейн, прикрепите второй конец направляющей к задней стенке корпуса, контролируя перпендикулярность по отношению к фасадной раме. Если в корпусе под ящиком есть пылезащитная панель, можно прикрепить направляющую непосредственно к ней, а не к задней стенке.
Прикрепите корпусную часть посередине проема фасадной рамы, сдвинув назад на 1 мм. Возможно, шуруп придется ввернуть под небольшим углом из-за мешающей перекладины вверху.
Антифрикционные накладки не только не дают ящику покачиваться, но также делают его скольжение более плавным.
3.
Для дополнительной поддержки ящика и предотвращения перекосов установите антифрикционные накладки в углах проема фасадной рамы, где по ним будут скользить боковые стенки (фото М).
Наиболее популярными среди мебельщиков на сегодняшний день являются телескопические (шариковые) направляющие полного и неполного выдвижения, которые имеют ряд преимуществ: невысокая стоимость, простота установки и регулировки, плавный и бесшумный ход, устойчивость к нагрузкам, долгий срок службы. Рассмотрим, как быстро и правильно установить шариковые направляющие для выдвижных ящиков.
Комплект шариковых направляющих
состоит из двух стальных симметричных телескопических полозьев: левой и правой, каждая из которых разбирается на две составные части, двигающиеся друг относительно друга при помощи металлических шариков подшипников, что обеспечивает надежность и плавность хода. Более широкое основание крепится на боковины, а узкая выдвижная часть – на сам ящик.
Расчет деталей выдвижного ящика.
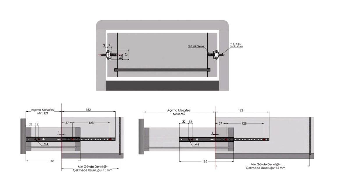
В сборе выдвижной ящик без фасада, по ширине (между ящиком и боковиной изделия) должен иметь зазоры в 13 мм с каждой стороны (или зазор делается по инструкции к конкретной шариковой направляющей).
По глубине ящик должен быть равен длине направляющей, обычно они имеют длину от 250 до 800 мм с шагом в 50 мм. Так же не необходимо оставить зазор минимум в 10 мм между задней стенкой комода и задней стенкой ящика. По высоте его обычно делают исходя из потребностей человека, высота обычно составляет 80 – 250 мм.
Установка шариковых направляющих.
Разводим шариковые направляющие до упора, нажимая на пластмассовый черный язычок, вытягиваем узкую планку.
На боковине ящика отмечается линия по центру и накручивается узкая выдвижная планка. На боковине изделия отмечается линия монтажа с учетом расположения ящиков и установленной направляющей на ящике. Таким же образом устанавливается основание направляющей с другой стороны, после чего ящик просто заводится на свое место в изделии.
Давно собирался написать урок по работе с роликовыми направляющими. Вот, наконец то, сподобился. Присадочные схемы я уже выкладывал вот в . Теперь только голая практика.
Для примера я буду собирать простенькую тумбочку с тремя выдвижными ящиками.
Начнем с ящиков. Собираются они легко и просто на (по паре в каждый угол). Боковые стенки идут накладными, то есть на них конфирматы вворачиваются в пласть, а передняя и задняя стенки — вкладные, то есть в их торец.
Потом накладываем на место заднюю стенку, тщательно выравниваем и предварительно крепим тремя гвоздиками (два в одну стенку и один в соседнюю), чтобы дно не смещалось.
После этого переворачиваем ящик и с помощью рулетки или линейки проверяем его диагонали. Они должны быть равны.
Если нет, вырываем одинокий гвоздик, выгибаем ящик, как надо и забиваем его обратно. Как только геометрия ящика пришла в соответствие, можно прикручивать дно на постоянную основу (саморезами). Причем в переднюю и заднюю стенки просто самореами, а в боковые сразу крепим и направляйку. Сначала накладываем ее, выравниваем и засверливаем отверстия тонким сверлом.
Затем в эти отверстия вворачиваем саморезы.
С ящиками пока закончили, перейдем к разметке стоек. Я пользуюсь следующей методикой (минимум математики). Итак, сначала отмечаем на переднем крае стойки границы фасадов с межфасадными промежутками. Можно фасады не прикладывать, а просто воспользоваться линейкой, но так нагляднее.
Обратите внимание, что нижний фасад накладной, то есть, он закрывает нижний горизонт, а, значит, отступать от нижнего края стойки надо на 16 мм меньше.
Теперь размечаем сами направляйки. Для этого надо прикинуть, как будут располагаться выдвижные ящики: они должны быть ближе к нижнему краю фасадов, но не выступать за их габариты, направляющие на самих ящиках находятся строго снизу. Для большей наглядности можно приложить направляйки к стойкам и посмотреть, как они будут смотреться (ориентируемся на наши отметки фасадов). Я обычно отступаю от края фасада вверх по 20 мм и провожу перпендикуляр к переднему краю.
На этом перпендикуляре откладываем 37 мм и эту точку накалываем шилом (это получается центр второго отверстия на направляющей.
Укладываем ее на разметочную линию, чтобы ее было видно во всех отверстиях. В первое отверстие вворачиваем саморез, а на карандашной линии (по центру отверстия в направляющей) накалываем еще одну точку. В нее так же заворачиваем саморез (можно усилить еще одним, но в данном примере мы ограничимся парочкой).
Обратите внимание, что передний край направляйки отстоит от края стойки на 2 мм.
Данную манипуляцию повторяем для всех трех пар направляющих (то есть, для обоих стоек).
В принципе, присадка выдвижной системы на этом заканчивается, но добьем тумбочку до конца.
Собираем короб (прикручиваем на конфирматы нижний горизонт с ножками).
Ставим в пазы заднюю стенку, (крепим ее уголками) верхний горизонт крепим на монтажные уголки (можно на минификсы, что сложнее, но аккуратнее).
Ставим средний горизонт. В принципе, короб тумбы готов.
Устанавливаем сами ящики внутрь короба. В из передних стенках сверлятся отверстия под саморезы (для ).
Для этого же наклеивается двусторонний скотч.Размечаем и крепим на каждый фасад по ручке-скобе. Винтики надо использовать с потайной головкой, или заглублять их шляпки)
Осталось закрепить сами фасады на ящиках. Подробно я технологию » уже описывал — останавливаться не буду.
В общем, в результате всех манипуляций, получилась вот такая простенькая и аккуратная тумбочка в поликлинику.
Как рассчитать ящик под шариковые направляющие
Технологические размеры и отступы для установки выдвижных ящиков
Сборка сборкой, но чтобы мебель, сделанная своими руками, радовала глаз и душу, необходимо не просто качественно её собрать, но и правильно рассчитать размеры деталей. Если говорить о выдвижных ящиках, то здесь очень важно, чтобы качественно собранная конструкция легко и непринуждённо скользила по своим направляющим, не раздражая необходимостью прикладывать усилия, чтобы выдвинуть ящик. Также, не очень приятно, когда выдвижной ящик проваливается из-за того, что проём, почему-то шире, чем надо.
Безусловно, становится немного грустно от того, что выдвижной ящик полностью не заезжает, потому что он длиннее, чем необходимо. Все эти проблемы могут возникнуть, если вы неправильно рассчитаете размеры и отступы в процессе проектирования мебели, а именно – выдвижных ящиков. Поэтому, давайте для начала разберёмся, с размерами и отступами, а уж затем будем приступать, непосредственно, к изготовлению и сборке выдвижных ящиков.
Несмотря на то, что роликовые и шариковые направляющие – это «две большие разницы», между ними есть много общего. Например, у них общие размерные диапазоны, а также они имеют одинаковые зазоры для установки. Проще говоря, расчёт размеров и отступов под установку выдвижных ящиков на роликовых направляющих имеет те же параметры, что и для шариковых направляющих.
Расчёт ширины выдвижного ящика
А теперь давайте перейдём к конкретным цифрам. Итак, по технологии проектирования мебели ширина выдвижного ящика должна быть на 26мм меньше, чем ширина проёма, в который его надо установить.
Получается, что под установку направляющих выделяется по 13мм с каждой стороны.
На рисунке мы чётко видим все расчётные параметры для установки выдвижных ящиков на роликовых или телескопических направляющих. Обратите внимание, что расчёт ширины выдвижного ящика производится не относительно габаритной ширины тумбы, а относительно внутреннего проёма для выдвижного ящика. В данном примере у нас габаритная ширина тумбы равна 400мм, а внутренняя – 368мм. Внутренний проём – это габаритная ширина минус толщина двух переборок. В нашем примере тумба изготавливается из ДСП толщиной 16мм. Таким образом, внутренний проём получился равным: 400-16-16=368мм. Вот такая простая арифметика.
И вот теперь именно относительно ширины проёма мы рассчитываем ширину выдвижного ящика. У нас она равна: 368-26=342мм. Вот, собственно и всё. Хотя, с одной стороны, вроде как всё, но если хорошенько подумать, то не совсем. Вот смотрите, если, габарит днища тумбы равен ровно 400мм, то переборка, однозначно будет прикручиваться с небольшим смещением внутрь (как правило – это смещение идёт на толщину кромки, в нашем случае – это кромка 0,5мм, поэтому смещение будет где-то на1мм).
Таким образом, внутренний размер проёма уменьшится на 1мм с каждой стороны. В результате получим следующее: 400-16-16-1-1=366мм. А выдвижной ящик тогда будет иметь ширину: 366мм-26мм=340мм. Как видите, его ширина отличается на 2мм от предыдущих расчетов. И в нашей ситуации именно эта ширина будет рассчитана верно.
Вы можете возразить: «Что там эти 2мм? Какую они погоду могут сделать в процессе установки выдвижного ящика?» Однако в мебельном деле иногда и 2мм могут сыграть свою злую роль. В данном случае, более широкий выдвижной ящик может стать причиной «тугого хода» ящика по направляющим. Так что, лучше расчеты под установку выдвижных ящиков производить очень внимательно и щепетильно, чтобы не было потом, как говорится, «мучительно больно…»
Расчёт длины выдвижного ящика
Относительно расчета длины ящика нужно, прежде всего, знать о том, что роликовые и шариковые направляющие бывают следующей длины: 250мм, 300мм, 350мм, 400мм, 450мм, 500мм, 550мм, 600мм. Это, так сказать самые популярные размеры.
Также бывают шариковые направляющие длиной до 800мм. По роликовым направляющим, насколько мне известно, имеется ограничение длины до 650мм. Хотя, можно уточнить эти параметры у продавца фурнитуры, уж кто-кто, а он точно знает, что у него есть в продаже.
Казалось бы, что рассчитать длину выдвижного ящика проще простого: если ставим направляющие длиной 500мм, то и соответственно, длина ящика будет равна 500мм. Но для наших людей 4 сантиметра – это не просто 4см. Нет, для нас это – ЧЕТЫРЕ САНТИМЕТРА! И борьба за них будет жесткой и принципиальной.
Итак, в нашей ситуации, внутренняя глубина тумбы равна 490мм. Понятно, что ящик длиной 500мм сюда не поместится. Получается, надо ставить выдвижной ящик на направляющие длиной 450мм. Но ведь свободное полезное пространство у нас 490мм. Не отдадим врагу 40мм! Ну, там не 40мм, а, где-то 35мм (5мм можно оставить на форс-мажорные ситуации, которые могут возникнуть в процессе сборки мебели). В общем, делаем выдвижной ящик длиной в 485мм и радуемся дополнительно отвоёванному пространству.
Правда такой ящик не будет до конца выезжать, ибо направляющие-то у нас короче. Но ведь это, же не критично. Всё равно будет достаточно доступа к вещам, хранящимся в ящике. А вот вместительность конструкции мы увеличили. Замечательно!
Хочу ещё обратить ваше внимание вот на что. Дело в том, что выдвижные ящики бывают с внутренними и наружными фасадами. Так вот, при расчёте длины выдвижного ящика с внутренним фасадом, надо всегда помнить о толщине этого самого фасада. То есть, если внутренняя глубина тумбы равна 490мм, то полезное свободное пространство (при условии, что фасад имеет толщину 16мм) будет равно: 490мм-16мм-1мм=473мм. Вот от этого размера и «танцуем» при расчёте длины выдвижного ящика. А 1мм я отбросил для того, чтобы внутренний фасад ящика был немножко углублён внутрь тумбы. Кстати, и направляющие прикручиваем, отступив от края переборки где-то 17мм. Чтобы фасад «ушёл» внутрь.
Расчёт высоты выдвижного ящика
К расчету высоты выдвижного ящика необходимо подходить исходя из особенностей нашей мебельной конструкции.
Однако существует некий общепринятый стандарт расчета высоты выдвижных ящиков. В узких мебельных кругах, «правилом хорошего тона» считается делать высоту выдвижного ящика на 40-50мм меньше, чем высота фасада. Это даёт некую возможность «для манёвра» сборщику мебели в процессе установки выдвижных ящиков и регулировки фасадов.
Лично я в данной ситуации предпочитаю не нарушать многовековые мебельные традиции, и выполняю расчёт высоты выдвижных ящиков именно по этой формуле: «Высота фасада (минус) 40 (50)мм (равно) Высота выдвижного ящика».
Советую вам, также прислушаться к данной методике расчета высоты выдвижных ящиков, и тогда у вас появляется дополнительный шанс сделать своими руками качественную мебель.
Ну, кажется, всё рассказал, о расчетах размеров и отступов для установки выдвижных ящиков. Что же, теперь, пожалуй, можно переходить к сборке выдвижных ящиков.
Расчёт выдвижных ящиков встроенного шкафа-купе своими руками
Рассчитаем размеры деталей выдвижных ящиков встроенного шкафа купе, который мы сделаем своими руками.
Исходными данными будут размеры проёма для выдвижных ящиков из эскиза: высота 784 мм, ширина 600 мм, глубина 550 мм.
Рассчитаем отдельно длины и высоты деталей. Подробная инструкция и чертежи ниже помогут вам не запутаться и не ошибиться в расчётах.
Расчёт длин стенок и фасадов выдвижных ящиков
Сначала посмотрим на выдвижной ящик сверху. Тёмно-серым цветом на рисунке обозначены боковые стенки каркаса из ЛДСП, пунктиром — задняя капитальная стена.
Несмотря на обилие размеров на эскизе, «свобода выбора» невелика — мы можем изменять только величины зазоров — между фасадом и боковыми стенками, и между задней стенкой ящика и задней капитальной стеной (выделены красным шрифтом).
В результате будут изменяться только расчётные длины фасада и боковых стенок (выделены синим шрифтом).
Объясняется это тем, что при подготовке эскиза наполнения встроенного шкафа-купе уже была задана ширина проёма, в котором должен помещаться ящик — 600 мм. Также была задана и глубина наполнения — 550 мм.
Известна толщина ЛДСП — 16 мм, и толщина шариковой направляющей — 13 мм (подробнее о направляющих — чуть ниже).
Таким образом, для определения длин деталей выдвижного ящика нужно только определиться с зазорами и аккуратно всё рассчитать.
Расчёт высоты деталей выдвижных ящиков
Для расчёта высоты деталей выдвижных ящиков посмотрим на них сбоку. На рисунке верхняя и нижняя полки каркаса закрашены серым цветом, между ними располагаются ящики. Направляющие выдвижных ящиков на рисунке не обозначены, так как на расчёт высоты деталей они не влияют.
Высота пространства для размещения четырех выдвижных ящиков равна 784 мм — в соответствии с эскизом наполнения. Начнём с расчёта высоты фасадов.
Фасады выдвижных ящиков в моём шкафу-купе одновременно служат «ручками», чтобы ящики можно было выдвигать. Здесь встречаемся с первым ограничением.
Минимальный зазор по высоте между фасадами соседних ящиков должен быть таким, чтобы пальцы рук при открывании ящика не задевали ящик сверху или полку над самым верхним ящиком.
Исходя из своего опыта, это расстояние должно быть не менее 30 мм. Я заложил 35 мм.
Между нижним краем фасада нижнего ящика и полкой под ним также должен быть зазор. В моём примере — 3 мм.
Тогда получим, что высота каждого фасада составит 160 мм. Рассчитано по формуле: (784 мм — 4х35 мм — 3 мм) / 4 = 160,25 мм. Округляем до 160 мм. «Лишний» 1 мм заложу на верхний зазор — всё равно фасады придется устанавливать по месту. Да и полки над и под ящиками могут встать с небольшим отклонением по высоте от расчётных значений.
Примечание: Если в нижнем ящике будут храниться относительно тяжелые вещи, необходимо также учесть насколько будет под их тяжестью прогибаться дно ящика из ЛДВП. Возможно потребуется дно нижнего ящика приподнять над расположенной под ним полкой. Это повлияет на все приведённые ниже расчёты высоты деталей ящиков.
Боковая и задняя стенки ящика имеют одинаковую высоту.
При расчёте я исходил из следующих соображений. Снизу отступил от нижнего края фасада каждого ящика 5 мм — это 3 мм на толщину дна из ЛДВП, и 2 мм — на погрешность установки фасада (см.
эскиз верхнего ящика на рисунке).
Вверху опустил верхний край боковой стенки на 10 мм по отношению к верхнему краю фасада — так ящик будет выглядеть посимпатичнее, мне кажется.
Таким образом, высота боковых и задней стенок ящика составила 145 мм.
Высота передней стенки ящика меньше, чем у боковых.
Связано это с тем, что фасад ящика используется в качестве «ручки». Пальцы руки при открывании ящика не должны захватывать его переднюю стенку, на которую крепится фасад. Экспериментальным путём определил, что верхний край передней стенки ящика должен находиться ниже верхнего края фасада не менее чем на 55 мм.
Таким образом, высота передней стенки ящика составила 100 мм.
На рисунке на эскизах верхнего и нижнего ящиков я нанес все ограничения, а на эскизе второго ящика сверху — результаты расчётов высоты стенок.
Высота передней стенки получилась равной 100 мм, высота боковых и задней стенок — по 145 мм.
Я сразу сделал сводную табличку деталей ящиков — с указанием мест наклейки кромок и толщины кромки.
В табличке появилась и деталь из ЛДВП 3 мм — это днища ящиков.
Добавлю ещё несколько слов о направляющих для выдвижных ящиков.
Направляющие для выдвижных ящиков
Направляющие для выдвижных ящиков бывают роликовые и шариковые.
Роликовые направляющие (с колёсиками) громко гремят и ход у них меньше — значительная часть ящика в крайнем — «выдвинутом» положении остаётся как бы «не выдвинутой». Поэтому я их не использую, хотя они и самые дешёвые, как говорят.
Шариковые (или телескопические) направляющие я встречал двух видов — обычные и усиленные. Отличаются они только высотой: у обычных направляющих высота 35 мм, у усиленных — 45 мм.
В ящиках для хранения лёгких вещей под пространство высотой около 20 см между соседними ящиками и шириной ящика порядка 60 см, как в моём случае, я использовал обычные направляющие (см.фото). Если же ящики выше/шире или предназначены для хранения вещей тяжелее белья, скорее всего, потребуются усиленные направляющие.
Толщина шариковой направляющей в сборе не зависит от того — обычная или усиленная, и составляет 13 мм.
Насколько мне известно, толщина практически всех «ходовых» шариковых направляющих одинаковая — 13 мм. Если у вас будут сомнения на этот счёт, то можно перед расчётом деталей ящика сходить в магазин мебельной фурнитуры, попросить показать имеющийся ассортимент, измерить толщину направляющей.
Длину шариковой напрявляющей нужно выбирать не более длины боковой стенки ящика, кратно 50 мм в меньшую сторону. В моём случае длина боковой стенки ящика составила 530 мм, поэтому использовались шариковые направляющие длиной 500 мм.
Длины шариковых направляющих бывают разные, кратные 50 мм. Когда искал направляющие для своего шкафа-купе, были доступны длины от 250 мм до 600 мм для обычных направляющих, и от 300 мм до 550 мм для усиленных направляющих. Если нужны другие длины, наверное, имеет смысл поискать.
Теперь можно переходить к расчету деталей дверей.
Пример расчета размеров выдвижных ящиков в шкаф-купе
Расчет размеров деталей при изготовлении шкафа-купе своими руками, в виде горизонтальных полок и вертикальных стоевых обычно затруднений не вызывает.
А вот если во внутреннем наполнении решено использовать выдвижные ящики, возникает заминка. Приведем пример расчета размеров деталей выдвижного ящика для установки в шкафу-купе.
Хитрость, облегчающая расчеты и монтаж выдвижных ящиков в шкафу-купе
Проще всего для установки и сборки проектировать ящики в шкаф-купе отдельным модулем.
Он представляет собой короб с желаемым числом выдвижных ящиков – одним, двумя, тремя и более.
- Верхняя крышка модуля выполняет роль обычной полки.
- Ширина модуля равна внутренней ширине секции, в которую планируется установить ящики.
- В процессе уже собранного каркаса шкафа-купе можно установить ящики на самой удобной высоте, прикрутив стяжными болтами к боковым стенкам секции. Обычно на уровне 900-1200 мм от пола.
Наиболее практичный вариант для шкафа-купе – установка на ящик телескопических (шариковых) направляющих. Впрочем, приведенные ниже расчеты аналогичны и для роликовых направляющих, для их установки требуются абсолютно такие же зазоры между коробом ящика и боковыми стенками.
Разница только в способе крепежа: телескопические шариковые направляющие принято крепить по центру боковины ящика, а роликовые – по низу, захватывая днище.
Расчет размеров выдвижного ящика на примере
Рассматриваемый модуль: короб с одним встроенным ящиком.
Размеры ВхШхГ: 200х500х460 мм.
Учитывайте, что глубина модуля вместе с фасадом не может быть больше глубины внутренней перегородки шкафа (она должна быть меньше ее, как минимум, на глубину фасада).
Расчет габаритов короба:
- Боковины 168х460 мм (2шт).
- Верх/низ 500х460 мм (2шт).
Толщина ЛДСП 16 мм. Чтобы рассчитать размеры детали, «зажатой» между горизонталями или вертикалями, нужно от габаритных размеров отнять двойную толщину, то есть 16х2=32 мм. В нашем случае 200-32=168.
Расчет корпуса ящиков:
- Боковины ящика 450х120 мм (2шт).
- Лоб ящика (перед/зад) 410х120 мм (2шт).
Высоту выдвижного ящика мы приняли 120 мм из тех соображений, что внутренний его проем равен 168 мм и если отнять зазоры сверху и снизу по 20 мм, то получим 128 мм.
Вот и берем, грубо, 120 мм. Строго говоря, это может быть и 100 мм, и 130 мм – четких стандартов на этот счет нет. Для новичков стоит проектировать боковины ящика поменьше (конечно, в разумных пределах), так будет проще разметить крепеж под направляющие и не «пролететь».
Лоб ящика для шариковых и роликовых направляющих рассчитывается по формуле: от габаритов модуля (ящика вместе с боковыми стенками, к которым будут крепится направляющие) отнимается 90 мм, в нашем случае 500-90=410 мм.
90 мм – это постоянная величина, если для изготовления мебели используется ЛДСП толщиной 16 мм.
Так как шкаф купе имеет заднюю стенку, то на данный короб (внешний) заднюю стенку можно не набивать. Нужно только вырезать дно из ДВП на выдвижной ящик, размером 448х440 мм.
- Длина 448 мм получена по длине боковины ящика (450 мм) за минусом 2 мм.
- Ширина вычисляется по лбу ящика 410+16х2-2=448 мм.
И последнее, что нужно рассчитать – это фасад.
Рассчитывается он элементарно.
Убираем по 3 мм от общего габаритного размера по высоте и по ширине, и получаем 197мм на 497мм – это и будет размер фасада.
Но это чистовой размер. Данный фасад (мы его планируем сделать так же из ЛДСП) должен быть оклеен кромкой ПВХ толщиной 2 мм. Значит, его заготовка из ЛДСП должна быть меньше на 2 мм с каждой стороны, или на 4 мм по вертикальному размеру и 4 мм по горизонтальному.
Получим: 193х493 мм – это размер фасада из ДСП под поклейку кромкой (т.е. тот размер, который должен быть в карте раскроя листов ДСП).
Вот таким нехитрым способом, можно рассчитать подобный модуль для его встраивания в шкаф купе.
Шариковые направляющие для ящиков, разновидности в зависимости от высоты, нюансы расчёта и монтажа
Что такое шариковые направляющие для ящиков?
Шариковые направляющие активно применятся мебельщиками для выдвижения ящиков. В основе шариковых направляющих обычно добротное железо, модификаций много и производителей также много.
Шариковые направляющие названы так потому, что движения составляющих направляющих происходит за счет металлических шариков, как в подшипниках.
Прочные стальные шарики движутся внутри профиля, обеспечивая стабильное легкое скольжение ящиков из любого материала и любого размера, даже при высоких нагрузках.
Конструкцию шариковых направляющих придумал наш русский инженер Кульков, поэтому можно встретить еще такое название как направляющие Кулькова. Но вот на коммерческую основу продажу таких направляющих поставили за рубежом.
| Рис. 1. Ящик на шариковых направляющих |
На шариковые направляющие устанавливают выдвижные корзины в шкафы купе, корзины для моющих средств. На страницах сайта описано интересное применение направляющих для выдвижения оригинальных обувниц в шкафу купе.
В принципе, к шариковым направляющим можно отнести и направляющие Tandem от BLUM, которые чуть ли не один в один скопировали множество других производителей фурнитуры.
В статье рассмотрим шариковые направляющие от GTV, марка польская, но в последнее время выпускают и в Китае, вроде бы качество от этого пострадало не сильно.
Направляющие GTV продаются повсеместно в европейской части России, цена у них приемлемая, ближе к Востоку скорей всего продают китайские аналоги.
Ещё одно название шариковых направляющих, которое вы можете встретить это телескопические направляющие.
| Рис. 2. Тумба с ящиками на шариковых направляющих |
Шариковые направляющие GTV
Разновидности шариковых направляющих в зависимости от высоты:
Шариковые направляющие высотой 17 мм
Направляющие высотой 17 мм длина от 182 мм до 438 мм, держат нагрузку до 8-10 кг. Направляющие частичного выдвижения. Производитель рекомендует фрезеровать на боковине ящика паз глубиной 10 мм и высотой 17 мм. Отличное решение для использования в комодах. При монтаже направляющая в сборе крепится к боковой стенке изделия, а затем с помощью винтов к боковине ящика.
| Рис. 3. Шариковые направляющие высотой 17 мм |
Рис. 4. Схема монтажа шариковых направляющих высотой 17 мм |
Шариковые направляющие высотой 27 мм
Направляющие высотой 27 мм, длиной от 250 мм до 500 мм с шагом 50 мм, выдерживают нагрузку 15 кг. В отличие от первого варианта разбираются, фрезеровка паза на боковой стенке ящика не требуется. Для расчета габаритов ящика по ширине необходимо откинуть 22 мм от ширины внутреннего проема изделия.
| Рис. 5. Шариковые направляющие высотой 27 мм |
| Рис. 6. Схема монтажа шариковых направляющих высотой 27 мм |
Шариковые направляющие высотой 35 мм
Направляющие высотой 35, длиной от 250 мм до 500 мм, выдерживают нагрузку более 20 кг, есть варианты полного выдвижения. В целом напоминает направляющую высотой 27 мм.
| Рис. 7. Шариковые направляющие высотой 35 мм |
Шариковые направляющие высотой 45 мм
Шариковые направляющие высотой 45 мм самый распространенный и активно применяемый вид шариковых направляющих.
Есть разные модификации длиной от 250 до 700 мм. Выдерживают нагрузки уже серьезные до 36-38 кг.
Направляющие перед монтажом необходимо разъединить, для этого необходимо поднять или опустить черный рычажок.
| Рис. 8. Схема разъедания шариковой направляющей на составляющие |
| Рис. 9. Вытаскивание ящика на шариковых направляющих |
Такая система разъединения на большинстве шариковых направляющих, в том числе и для корзин устанавливаемых в тумбы на кухне.
На фото ниже приведена выдвижная корзина для посуды с креплением к дну перевернутая «на попа». Нажимаем черный рычажок и отделяем корзину от направляющих, далее проблем с установкой корзины не будет.
| Рис. 10. Корзина на шариковых направляющих |
Для расчета габаритов ящика по ширине необходимо от внутренней ширины корпуса вычесть 26 мм, как и для роликовых направляющих.
| Рис. 11. Схема монтажа шариковых направляющих высотой 45 мм |
Выпускают шариковые направляющие высотой 45 мм полного и частичного выдвижения, с доводчиком или без. Кроме того, есть шариковая направляющие системы Push to open, то есть нажми, чтобы открыть, ручка для открытия ящика не требуется. Напоминают систему под названием TIP ON для направляющих Tandem Blum.
| Рис. 12. Шариковая направляющая частичного выдвижения |
| Рис. 13. Шариковая направляющая полного выдвижения |
А у производителя Hettich есть шариковые направляющие сверхполного выдвижения.
| Рис. 14. Шариковая направляющая сверхполного выдвижения |
| Рис. 15. Шариковая направляющая с доводчиком |
Рис. 16. Шариковая направляющая с системой Push to open |
Наш способ расчёта монтажа шариковых направляющих
Рассмотрим самый распространенный способ расчета шариковых направляющих, программа не требуется.
Берем нашу базовую тумбу высотой 720 мм без учета ножек и шириной 600 мм с двумя фасадами высотой 356 м, ящиками высотой 150 мм. Ящики при высоте фасада в 356 мм можно сделать высотой и 200, и 250 мм, всё зависит от вашего или желания заказчика.
Шариковые направляющие обычно крепят по центральной оси боковой стенки ящика, хотя некоторые предпочитают крепить ближе к нижней кромке боковины ящика.
| Рис. 17. Базовая тумба на шариковых направляющих |
Расчет будем вести для варианта монтажа направляющей по оси боковой стенки ящика. Чертим простенький чертежик, можно от руки, как на рисунке. Перед разметкой определитесь, какие будут зазоры между фасадами, в нашем варианте зазор между фасадами примем 4 мм, а сверху и снизу по 2 мм.
| Рис. 18. Схема расчёта шариковых направляющих |
Ось сверления первой шариковой направляющей = 2+34+75 = 111 мм, где:
- 2 – это зазор 2 мм снизу (фасад накладывается на горизонталь толщиной 16 мм на 14 мм, остается 2 мм)
- 34 – расстояние от нижнего края фасада до нижнего края ящика
- 75 – это середина боковой стенки ящика, общая высота ящика 150 мм. Если дно ящика из ДВП накладное, то высота с учетом ДВП будет 153 мм. Но, для расчетов все равно берем 150 мм.
Ось сверления второй шариковой направляющей = 2+356+4+34+75 = 471 мм, где:
- 2 – это зазор 2 мм снизу 356 – высота нижнего фасада
- 4 – зазор между фасадами
- 34 – расстояние от нижнего края фасада до нижнего края ящика
- 75 – это середина боковой стенки ящика.
| Рис. 19. Схема расчёта шариковых направляющих с размерами |
Из схемы следует, что можно точно рассчитать сверление передней стенки ящика и места для насечек для крепления фасада саморезами.
Горизонтальная ось сверления передней стенки ящика = 75 мм, от правого и левого краев передней стенки отступаем по 50 мм и получаем координаты сверления передней стенки.
Точка по оси X под саморезы на фасаде = 34+75=109 мм, где:
- 34 – расстояние от нижнего края фасада до нижнего края ящика
- 75 – это середина боковой стенки ящика.
Точка по оси Y, для насечек под саморезы для правого и левого краев фасада = 50+16+13+14 = 93 мм, где:
- 50 – отступы по оси X от краев при сверлении передней стенки ящика
- 16 – толщина боковой стенки ящика
- 13 – зазор для установки шариковой направляющей
- 14 – наложение фасада на боковую стенку корпуса (то есть 2 мм остается зазор между краем боковой стенки и краем фасада при толщине боковой стенки корпуса 16 мм).
Обычно расчетов никаких не ведут, а просто сверлят по четыре отверстия в передней стенке ящика, замеряют необходимые отступы, ставят ящик на фасад и прикручиваю первые два самореза.
Делают примерку, если нормально, то закручивают оставшиеся два самореза. Нет, откручивают, смещают на необходимо расстояние и снова проверяют.
После расчета переходим к разметке. Разметку ведем с помощью рулетки, железной линейки твердого карандаша. Места крепления направляющих с помощью саморезов керним с помощью керна или делаем насечки с помощью шила.
Максимально точная разметка аккуратность при установке шариковых направляющих позволят избежать перекосов ящиков и иных проблем с дальнейшим креплением фасадов.
Первая точка по оси 37 мм, следующие точки с шагом 32 мм, см схему. Если фасады вкладные, то есть находятся между боковыми стенками, то добавляйте к 37 мм ещё толщину фасада.
Как рассчитать выдвижные ящики под телескопические направляющие
В этой статье мы с вами научимся определять размеры выдвижных ящиков (с накладными фасадами), делать их разметку и установку.
Изначально, для изготовления короба и ящиков, будет использоваться ДСП толщиной 16мм, и выдвижной фурнитурой будут телескопические направляющие.
Итак, сначала разберемся, как рассчитать размеры ящиков.
Любой такой элемент мебели, состоит из четырех деталей.
Как правило, две фронтальные детали располагаются между двумя боковыми (на которые потом крепятся полозья от телескопических направляющих).
Для того чтобы высчитать размеры фронтальных деталей, нам нужно знать ширину всего короба.
Пусть, она будет равна S.
Для расчета, нам, так же, нужно знать зазоры, которые необходимо дать на телескопические направляющие. Они равны 13мм (на каждую направляющую).
Теперь, исходя из устройства самого ящика, высчитаем размер его фронтальной детали (Sфр):
Sфр = S-32-26-32 = S-90 (мм, все размеры, в дальнейшем, будут в миллиметрах), где: 32 – толщина двух боков короба, 26 – допуски под направляющие с двух сторон (13+13=26), 32 – толщина двух боковых деталей ящика.
Формулу Sфр = S-90 можно использовать в случае, если, как было сказано выше, толщина ДСП равна 16мм.
Если, например, толщина ДСП будет равна 18мм, то:
Sфр = S-36-26-36 = S-98
Боковые детали ящика, обычно равны размерам самих направляющих, которые бывают:
Самый распространенный вариант (например, для изготовления кухонных гарнитуров – короб, глубиной 460мм, под направляющие, размером 450мм).
Высота ящиков зависит от высоты фасадов, которые должны быть на них установлены.
Например, в нашем варианте, верхний фасад будет иметь стандартную высоту 140мм, и под него высота может быть равной 100мм.
А вот для двух остальных фасадов, высотой по 291мм, эту высоту можно брать, например, 120, 150, 180….В нашем случае, она будет равна – 200мм.
Теперь, довольно ответственный момент – разметка боков короба под установку «телескопов».
Разметка должна быть правильной, так как выдвижные ящики должны находиться внутри короба на определенном расстоянии друг от друга. Все это «завязано» на положении фасадов и зазоров между ними.
Итак, как сделать такую разметку?
Для начала, нужно определиться с положением фасада относительно выдвижного ящика.
В случае с верхним фасадом – он будет располагаться строго по центральной оси ящика.
Зазоры между деталями ящика и крайними гранями фасада (по высоте) будут равны 20мм (сверху и снизу).
Остальные два фасада будут располагаться так, чтобы расстояние между деталями ящика и нижней гранью фасада, было равно, например, 25мм.
Дело в том, что самый нижний фасад будет перекрывать короб (по низу) заподлицо.
Так как нижний горизонт короба имеет толщину 16мм, должен еще быть зазор между этим горизонтом и выдвижным ящиком (чтобы последний мог двигаться, не цепляя этот горизонт).
25-16=9 (мм). Это и будет величина зазоры.
Даже, если в этот расчет включить толщину ДВП (из которого будет сделано дно ящика), толщина которого, например, будет равна 3мм, то:
Как видите, зазор есть, все будет работать.
И последнее условие: Для простоты расчетов, та часть телескопической направляющей, которая будет крепиться на выдвижной ящик, будет крепиться строго по его центру.
Итак, общая высота короба – 730мм.
Размеры фасадов: 140мм и 291мм.
Верхний зазор между фасадом и коробом равен 4мм, и зазоры между фасадами – по 2мм.
Размечаем бок с верхней части вниз.
Но для того, чтобы начать делать разметку, нужно определить положение оси направляющей на выдвижном ящике с фасадом.
В случае с верхним фасадом, оно будет равно 70мм сверху и снизу.
В случае же с двумя другими фронтами, оно высчитывается следующим образом:
Так как зазор между фронтом и ящиком (снизу) равен 25мм, и половина высоты самого ящика (200мм) равна 100мм, то расстояние от низа фасада до центральной оси ящика будет равна:
Тогда расстояние от верхней грани фасада до этой центральной оси будет равно:
291-125=166 (мм), где 291 – высота фасада.
Этих двух размеров нам будет достаточно.
Итак, рассчитываем положение верхней направляющей (все размеры будут в миллиметрах):
4+70=74, где 4 – зазор между верхним фасадом и верхней гранью короба.
74+70+2+166=312. Это положение оси под второй выдвижной ящик.
312+125+2+166=605 – положение оси под третий (нижний) ящик.
Чтобы сделать проверку на правильность расчета, нужно к последнему размеру (605мм) добавить расстояние от центральной оси нижнего ящика к низу фасада (125мм), так как этот фасад полностью перекрывает короб снизу, и мы должны получить высоту всего короба, которая равна 730мм.
Расчет выдвижных ящиков с роликовыми и шариковыми направляющими
Выдвижными механизмами оснащается практически любая корпусная мебель, начиная от оснований кроватей и заканчивая навесными кухонными шкафами. Это удобная система хранения для чего угодно: различных мелочей, канцелярии, белья, инструмента и кухонной утвари. Каким образом произвести расчет выдвижного ящика зависит только от типа выбранных направляющих. И нет разницы, если выбраны роликовые или шариковые.
Роликовые или шариковые направляющие, какие выбрать?
С точки зрения расчета ящиков – формулы для роликовых направляющих и шариковых абсолютно одинаковы. Вы можете в любой момент поменять на комоде, в тумбе или шкафу одни на другие без каких-либо изменений в конструкции мебели. Единственный нюанс, останутся отверстия от крепежа, которые можно как-то замаскировать, поскольку:
- Роликовые направляющие крепятся по нижнему краю ящика, с захватом днища.
- Шариковые направляющие принято крепить по центру боковины ящика.

Если говорить о том, какие направляющие из вышеперечисленных лучше, то ответ кроется в закладываемом на изготовление корпусной мебели бюджете.
Роликовые направляющие – это эконом. На поточную офисную мебель ставят именно их. Как и в принципе на любые выдвижные ящики корпусной мебели эконом-класса, включая кухонную, ставят обычные роликовые направляющие. Фурнитура такого плана вполне практичная и долговечная. Если сильно не нагружать ящик (а сделать этого «не даст» и днище из тонкого ДВП), то прослужит она десятилетия. Конструкция роликовых направляющих такова, что ломаться там нечему.
Шариковые направляющие полного выдвижения по стоимости и эксплуатационным характеристикам классом повыше. Выдвижной ящик, оснащенный ими, выдвигается полностью, без перекрытия задней части верхней полкой (столешницей), что очень удобно для обзора всего хранимого в нем. Также шариковые направляющие могут «похвастать» плавным приятным ходом. Есть варианты со встроенным доводчиком (их можно идентифицировать по встроенной внутри механизма пружине с пластмассовым ограничителем).
При выборе выдвижных механизмов не стоит гнаться за дешевизной. Очень многое зависит от толщины металла и точности калибровки. Китайские аналоги с тонким металлом очень быстро выходят из строя – сами направляющие сминаются и гнутся, ролики и шариковые подшипники вылетают даже при некритичных нагрузках. Поэтому будьте внимательны при покупке и отдавайте предпочтение качественным, ходовым позициям известных бюджетных брендов.
Расчет выдвижных ящиков
Чтобы не было путаницы и недопонимания, определим исходные данные:
Мебель изготовлена из ламинированного ДСП толщиной 16 мм, для днища используется ДВП толщиной 4 мм.
- Ширина шкафа/тумбы (внешнего габарита) = Х.
- Высота ниши под установку выдвижных ящиков в шкафу/тумбе (за минусом накладной столешницы) = Y.
- Глубина стоевой (боковины) шкафа/тумбы = Z.
Расчет фасада ящика
Как ни крути, расчет внутренней части короба во многом зависит от фасадной части.
Фасад может быть внутренним (закатываться за боковые стенки корпуса) и накладным.
Как видно из чертежа, выбор накладного или внутреннего фасада может повлиять на глубину ящика. В случае вкладного он закатывается глубже на толщину фасада (-20 мм от глубины стоевой).
Высота фасада ящиков обычно варьируется в пределах 150-200 мм. Все зависит от того, что будет храниться внутри. Под документы и канцелярские принадлежности в офисных тумбах делают ящики поменьше, глубиной 120-150 мм, редко 180 мм. Бельевые ящики комода проектируют поглубже, начиная от 180 мм и заканчивая 250 мм. Под игрушки и постельные принадлежности ящики могут быть еще глубже по высоте фасада, но в этом случае обязательно нужно усиливать дно, ребром жесткости или перегородками.
Размер фасадов выдвижных ящиков с учетом технологического зазора рассчитывается по аналогии с остальными дверцами, более подробно можно почитать здесь. Если кратко – от габаритов по внешнему периметру отнимается 2-3 мм, между соседними фасадами зазор также составляет 2-3 мм.
Пример, как рассчитать фасады для двух выдвижных ящиков относительно нашей тумбы с габаритами X*Y*Z.
- Внутренний фасад: (X-16*2-3)x((Y-16*2)/2-3)
- Накладной фасад: (X-3)x(Y/2-3)
Высота и длина фасада может меняться местами, если есть текстура и желаемое направление рисунка – продольное или поперечное. При кромлении фасадов ПВХ по периметру необходимо учесть толщину кромки!
Как рассчитать боковину ящика
Направляющие для выдвижных ящиков предлагаются в продаже с шагом 50, начиная от 250 мм и заканчивая 550/600 мм. У производителей фурнитуры в каталогах всегда есть подобная раскладка, по которой можно сориентироваться в размерах и разметке под крепеж.
размеры роликовых направляющих размеры шариковых направляющих
Таким образом, и глубина боковин ящиков берется с шагом 50. Для самых неглубоких ящиков 250 мм, и далее, соотнося глубину стоевой шкафа/тумбы с длиной подходящей направляющей – 300, 350, 400 мм и т.
д.
Самая узкая боковина шкафа/тумбы для встраивания – 260 мм для накладного фасада и 280 мм для внутреннего фасада (под направляющую 250 мм). Требуемый зазор по переднему краю для монтажа обычно 2 мм. Сзади зазор произвольный, от 1-2 см и до 5см. Если остается больше, лучше приобрести направляющие подлиннее, чтобы не терять пространство за ящиком. Получается:
(глубина ящика)=длине направляющей и меньше Z не более чем на 50 мм.
Как рассчитать лоб (переднюю и заднюю часть) ящика
Если опять же обратиться к каталогам производителей, то можно увидеть, что зазор между боковинами корпуса шкафа/тумбы и ящиков составляет порядка 12,5-12,7 мм.
На самом деле, при расчетах эти цифры округляют, вычитая 13 мм. Так выдвижной ящик более свободно ходит и проще регулируется.
На чертеже схема расчета ящика наглядна и понятна. Таким образом, для расчета «лба» выдвижного ящика нужно отнять от габаритов шкафа/тумбы толщину ДСП 4 раза (по 2 с каждой стороны) и зазор 13 мм также с двух сторон.
16*4+13*2=90. Получается:
(длина лба)=Х-90мм.
Как рассчитать глубину ящика
Относительно глубины особых стандартов нет. Обычно под фасадом (Z5) оставляют 10-20 мм, а над фасадом 30-80 мм.
Таким образом, если, к примеру, высота фасада равна 150 мм, то глубина ящика будет порядка 80-100 мм. Я в расчетах опираюсь на карты кроя. Если уменьшение глубины ящиков позволит более компактно разместить детали на листе ЛДСП, то этим стоит воспользоваться. Бывают ситуации, когда несколько деталей вылазят на новый лист, а стоит «поиграть» с такими вот непринципиальными размерами деталей, как получается сэкономить на покупке целого листа с огромным остатком!
Расчет дна из ДВП
Есть два способа установить дно ДВП – внахлест и в паз. В первом случае дно прибивается к каркасу выдвижного ящика с обратной стороны. Во втором – задвигается в специальный паз.
- При креплении внахлест отнимают на зазор 2мм. То есть ((длина лба)+16*2-2)х((глубина ящика)-2).
- При глубине паза А мм с каждой стороны добавляют к внутреннему размеру (А-2) мм с каждой стороны. То есть ((длина лба)+ (А-2)*2)х((глубина ящика)-16*2+(А-2)*2).
Расчет выдвижного ящика на примере
Как рассчитать размеры деталей для выдвижных ящиков в нишу шириной 400 мм, глубиной 500 мм и высотой 600 мм. Пусть будут внутренние фасады, зазор не 3, а 4 мм для каждого (по 2 мм с каждой стороны) с учетом кромки толщиной 0,5мм. Дно крепится внахлест.
Формулы удобнее всего вносить в табличную форму эксель, указывая названия деталей и их размер (длину и ширину), количество.
Окончательное руководство по выбору направляющих для выдвижных ящиков шкафа
Вес
является важным фактором, потому что вы хотите, чтобы выдвижные направляющие для выдвижных ящиков служили в течение всего срока службы. Ключ к окупаемости ваших денег — убедиться, что вы получаете продукт, который выдерживает столько веса, сколько вам потребуется.
Как правило, большинство горок рассчитаны на нагрузку 75, 100 или 150 фунтов.
Это ключевой момент в таких местах, как кухня, где тяжелые кастрюли и сковороды могут легко сломать меньшие горки.OVIS предлагает экспертные рекомендации по использованию и установке сверхмощных направляющих для ящиков, которые могут выдерживать до 500 фунтов. статической нагрузки.
Вес направляющих ящика определяется в соответствии со спецификациями следующих стандартных программ. В общем, все направляющие ящиков рассчитаны на длину 18 дюймов. Более длинные слайды будут иметь меньшую грузоподъемность, слайды короче 18 дюймов — более высокие. Подробную информацию см. В списке нижеперечисленных руководящих органов.
Существует два типа значений грузоподъемности.Номинальная нагрузка должна включать вес ящика как часть общей нагрузки.
1. Статическая нагрузка: Максимальный вес ящика без циклической нагрузки. Ползун должен выдерживать нагрузку без коробления
2. Динамическая нагрузка: Эта нагрузка определяется включением выдвижного ящика с весами в течение заданного количества циклов.
Задвижка должна функционировать с минимальными изменениями требуемого усилия открытия и закрытия на протяжении всего испытания.
Как правило, номинальная грузоподъемность указана для 450 мм (18 дюймов.) длинный выдвижной ящик на ящик шириной 450 мм (18 дюймов). Тестовый ящик открывается из центра ящика и выполняет заданное количество циклов в соответствии с отраслевыми стандартами. Такие факторы, как скорость, количество и частота циклов, тормозное усилие, пройденное расстояние, чрезмерная вибрация, неравномерно распределенные нагрузки, неправильная установка и неправильное обращение, могут вызвать преждевременный выход из строя и снизить производительность и ожидаемый срок службы направляющих ящиков.
Стандарты испытательного органа
- ANSI / BIFMA X5.5-2008 Американский национальный институт стандартов / Ассоциация производителей промышленной мебели для бизнеса
- ANSI / KCMA A161.1-2006 Американский национальный институт стандартов / Ассоциация производителей кухонных шкафов
- ANSI-BHMA A 156.
9-2010 Американский национальный институт стандартов / Ассоциация производителей оборудования - NSF / ANSI 2 Национальный санитарный фонд пищевого оборудования (международный) / Американский национальный институт стандартов
- SEFA-8-2007 Объединение научного оборудования и мебели
- WI Деревообрабатывающий институт (Калифорния)
Обратите внимание, что вышеперечисленные стандарты не публикуются публично, вы должны быть членом ассоциации, чтобы просмотреть подробную информацию о стандартах, защищенных авторским правом.
Отключает
Разъединители — это механизмы, позволяющие вынуть ящик из его корпуса. Существует три распространенных типа разъединителей: рычажные, рельсовые и фрикционные. Каждый немного отличается в зависимости от бренда:
- Рычажные разъединители оснащены внутренним рычагом, который при нажатии позволяет ящику свободно выдвигаться.
- Отсоединяемые направляющие оснащены защелкой, которая позволяет поднять ящик с направляющей и вытащить его из стола или шкафа, в котором он находится.

- Фрикционные разъединители, в отличие от рычажных и рельсовых разъединителей, не требуют манипуляций с защелкой или рычагом, а просто позволяют открывать затвор против силы удерживающего его шарикоподшипника.
- OVIS также предлагает множество запирающихся направляющих ящиков. Некоторые из них имеют немного более сложные механизмы выпуска и идеально подходят для мобильных приложений, таких как использование в доме на колесах.
Цвета
- Также есть несколько вариантов цвета или внешнего вида направляющих ящика, которые вы хотите.
- Большинство слайдов, предлагаемых сегодня в отрасли, имеют металлическую цинковую отделку, которая защищает их от коррозии в относительно не влажной среде.
- Некоторые бренды начинают предлагать черные направляющие для ящиков, которые хорошо сочетаются с темным или черным тонированным деревом.
- OVIS также имеет несколько направляющих для ящиков из хромированной стали, которые придают направляющим ящикам более изысканный вид.

- Не забывайте, что всегда есть направляющие для монтажа под столешницу, если вы хотите подчеркнуть естественные черты самой древесины ящика.
Бренды
Несмотря на то, что за последние 25 с лишним лет в бизнесе существует множество брендов направляющих для ящиков, OVIS стремилась предлагать продукцию только от лучших производителей, которые, как мы знаем, удовлетворят ваши потребности. Вот некоторые из проверенных брендов выдвижных ящиков, которые мы предлагаем:
направляющих для выдвижных ящиков: раскрытие тайны | Журнал WOOD
Как и в судне на воздушной подушке, ящики, прикрепленные к сегодняшним металлическим направляющим, скользят внутрь и наружу, как будто парят на воздушной подушке.Но слайды бывают разных типов, и определение того, что купить, может запутать. Вот как выбрать лучший для работы.
Из чего состоит слайд
Направляющие ящика имеют две ответные части.
Профиль ящика прикрепляется к ящику и вставляется в профиль шкафа, который прикрепляется к шкафу, или опирается на него. Шариковые подшипники или нейлоновые ролики позволяют деталям плавно перемещаться относительно друг друга.
Верхние направляющие с шарикоподшипниками обычно несут более высокие нагрузки.Продуманная конструкция и сверхпрочные материалы делают их дороже роликовых направляющих, днище.
Видеть или не видеть
Одно из первых соображений при выборе слайда — это то, хотите ли вы, чтобы он отображался при открытии ящика. Некоторые видимые слайды бывают разных цветов (белый, слоновая кость, коричневый или черный), чтобы они лучше сочетались со светлыми или темными ящиками.
Скрыть этот слайд
Чтобы скрыть слайды, которые в противном случае были бы видны спереди, добавьте фальшивую переднюю часть ящика или сделайте переднюю часть ящика с выступом шире, чем коробка.
Подумайте о доступе к ящику
Направляющие ящика различаются еще и тем, насколько далеко они позволяют открывать ящик.
Overtravel Слайды имеют телескопическую конструкцию, которая позволяет выдвижному ящику выступать за пределы шкафа. Используйте их, когда нависающие столешницы мешают доступу к ящикам. Убедитесь, что расположение шкафа позволяет полностью открыть ящик.
Полное выдвижение выдвигается и выдвигается, что позволяет выдвигать ящик по всей длине.Выбирайте их, когда вам нужен легкий доступ к задней части ящика, как в ящик для файлов.
7 / 8
-расширение направляющие позволяют выдвигать ящик 7 ⁄ 8
длины — хороший компромисс между 3 ⁄ 4
— и полного выдвижения.
3 ⁄ 4
-расширение слайды, как нетрудно догадаться, позволяют открывать ящик 3 ⁄ 4
его длины.Выберите этот тип слайда, когда разблокированный доступ ко всему ящику не имеет большого значения или когда пространство ограничивает расстояние, на которое ящик может выдвигаться.
Варианты взвешивания
Типичные направляющие для легких нагрузок имеют номинальный вес до 75 фунтов, средние — до 100 фунтов, а сверхмощные — более 100 фунтов, — ниже .
Значения веса относятся к паре направляющих (если для установки требуется пара), поэтому две направляющие весом 100 фунтов не могут выдержать 200 фунтов.
Более длинные горки имеют более прочную конструкцию, чем более короткие горки того же класса. Например, 18-дюймовая горка, рассчитанная на 100 фунтов, будет толще, чем 16-дюймовая горка с таким же рейтингом. У более короткого слайда есть преимущество.
После принятия решения о типе, расширении и весе определите слайд подходящего размера для проекта.
Слайды весом 100 фунтов выдерживают вес 100 фунтов при условии, что ящик будет, и если вы привинтите их к твердой древесине или фанере в соответствии с инструкциями производителя.МДФ и другие композитные материалы также не удерживают винты.
Измерение слайдов
Точные измерения гарантируют, что вы купите слайды, которые подходят для вашего шкафа. Следуйте этим советам, чтобы убедиться, что все идет гладко:
Слайды бывают длиной от 10 до 28 дюймов. Слишком короткая задвижка не позволяет ящику открыться полностью, а слишком длинный не поместится в шкафу. Чтобы определить правильную длину, измерьте внутреннюю глубину шкафа (за лицевой рамкой, если она есть) и выберите слайд на следующий размер короче этого измерения.
Поскольку толщина направляющих ящика и ширина проема ящика являются фиксированными, лучше всего построить ящик с ящиком так, чтобы он соответствовал разнице между ними после сборки шкафа. Например, для большинства роликовых направляющих и направляющих на шарикоподшипниках с боковой установкой требуется 1 ⁄ 2
«монтажного пространства с каждой стороны. Чтобы использовать их в проеме ящика шириной 12 дюймов, сделайте ящик шириной 11 дюймов.
Для неглубоких ящиков или выдвижного лотка купите направляющую не выше лотка или ящика.
Рекомендации по установке
Для бескаркасных шкафов просто прикрутите профиль шкафа к боковой стороне шкафа, параллельно дну шкафа. В шкафах с лицевой рамкой передняя часть ползуна прикрепляется к стойке с лицевой рамкой, фото ниже . Чтобы выровнять и закрепить заднюю часть салазок, производители предоставляют кронштейны и стойки, которые крепятся либо сбоку, либо сзади корпуса. Вы также можете создать свои собственные стойки из обрезков дерева.
Закрепите переднюю часть слайда на лицевой раме.Кронштейн сзади сдвигается, чтобы достать до задней части корпуса. Для этого потребуется подрамник или спинка шкафа толщиной не менее 1⁄2 дюйма.
Используйте винты того типа, который рекомендован или предоставлен производителем, поскольку слишком горбатые головки винтов могут помешать плавному перемещению слайдов. Многие слайды имеют несколько отверстий и прорезей, чтобы можно было точно настроить положение ящика и приспособить к различным вариантам монтажа, фото ниже .
Прорези для винтов позволяют регулировать положение ящика внутрь, наружу, вверх и вниз.Правильно расположив ящик, вверните винты в отверстия, чтобы зафиксировать ползун на месте.
Кроме того, слайды в руке должны крепиться на определенной стороне, фото ниже ; неуправляемые слайды крепятся с обеих сторон.
Знай справа налево. На направляющих, которые необходимо установить на определенной стороне шкафа (если смотреть спереди на шкаф), нанесено это обозначение.
Теперь, когда вы знаете варианты, просто рассмотрите все требования к установке и выберите слайд, который лучше всего подходит для вашего проекта.
Некоторые необычные функции
Производители предоставляют несколько вариантов, чтобы добавить роскоши работе выдвижных ящиков.
Мягкое закрывание выдвигается медленно, когда ящик закрывается, чтобы он не хлопал.
Самозакрывающиеся направляющие развивают концепцию и закрывают ящик простым легким нажатием на переднюю часть ящика.
Сенсорное освобождение слайды делают обратное — при касании ящик открывается; полезно для гладких шкафов без тяги.
Постепенное движение ползуны обеспечивают плавное скольжение, потому что все сегменты движутся одновременно, вместо того, чтобы один сегмент достиг конца своего хода, прежде чем он начнет тянуть следующий.
Фиксатор и фиксатор Слайды удерживаются в установленном положении до тех пор, пока они не будут нажаты, предотвращая непреднамеренное движение — идеально для небольших подставок для приборов или разделочных досок.
Лучшие направляющие для выдвижных ящиков для шкафов с мягким закрыванием и многое другое
Фото: amazon.com
Мы редко задумываемся о том, как открываются и закрываются наши шкафы и ящики — то есть, если только они не скрипят при движении и не скользят по своим рельсам так легко, как следовало бы. Ящики вашей мебели должны работать легко и тихо.
Этого легко добиться с помощью высококачественных направляющих для ящиков, которые просты в использовании и установке.
Направляющие ящиков с мягким закрыванием имеют высококачественные демпферы, предотвращающие захлопывание ящиков при их закрытии. Они также оснащены пружинами, которые помогают аккуратно вернуть ящик в шкаф.Слайды с полным расширением полезны, потому что они позволяют легко просматривать и получать доступ к содержимому всего ящика. Читайте дальше, чтобы узнать больше о том, как выбрать лучшие направляющие для ящиков для вашего следующего проекта DIY на кухне или в ванной.
- ЛУЧШИЙ В ЦЕЛОМ: LONTAN 20-дюймовые направляющие для выдвижных ящиков Металлические направляющие для ящиков
- НАИЛУЧШЕЕ Боковое крепление: Направляющие для бокового крепления с полным выдвижением PROMARK
- НАИЛУЧШЕЕ ОТКРЫТЫЕ: Тандемные направляющие для выдвижных ящиков Blum
- НАИЛУЧШИЕ НАПРАВЛЯЮЩИЕ CEN Accuride 1029 Слайд с центральным креплением
- ЛУЧШИЙ В ЕВРОПЕ: Liberty 14-дюймовая направляющая с нижним креплением
Фото: freepik.
com
Типы направляющих для ящиков
Существует несколько стилей направляющих для ящиков: с боковым креплением, под крепление, с центральным креплением и европейское. Тип слайдов, который лучше всего подходит для ваших нужд, будет зависеть от вашего бюджета, веса ваших ящиков и размера зазора между ящиками и шкафами.
Боковое крепление
Самыми популярными направляющими для ящиков являются направляющие с боковым креплением, которые, как следует из названия, прикрепляются к бокам ящиков и шкафов.Хотя эти направляющие не поддерживают нижнюю часть ящика, они все же могут выдерживать большой вес. Направляющие ящиков с боковым креплением продаются парами и работают с помощью одного из двух механизмов: шарикоподшипников или роликов. Направляющие с шарикоподшипниками обычно изготавливаются из высококачественной стали и помогают ящикам скользить тихо и легко. Направляющие ящиков с боковым креплением работают на роликах и дешевле, но ящики на роликах обычно не могут выдвигаться так далеко, как на шарикоподшипниках.
Одним из основных преимуществ боковых направляющих ящиков является то, что вы можете легко вынимать ящики из шкафов без использования инструментов.Однако одним из недостатков боковых направляющих является то, что вы можете видеть их, когда ящик открыт. Чтобы установить эти направляющие, у вас должен быть зазор около ½ дюйма между каждой стороной выдвижного ящика и шкафом.
Подставка
Направляющие ящика под подставку продаются парами и крепятся к бокам шкафа. Они подключаются к запорным устройствам, которые крепятся к нижней части ящика. Поскольку они не видны при открытом ящике, эти направляющие — популярный выбор для тех, кто не хочет, чтобы металлическая фурнитура отвлекала от внешнего вида их деревянной мебели.Направляющие ящика для установки под столешницу обычно бесшумны и не издают металлического щелчка, как некоторые другие направляющие.
Недостатком направляющих для установки под нижнюю часть является то, что они обычно дороже, чем другие типы направляющих для ящиков. Хотя они не требуют большого зазора между сторонами ящика и шкафа, у них есть определенные требования к свободному пространству над и под ящиком. По этим причинам направляющие для ящиков под столешницу обычно используются в высококачественной мебели, изготовленной на заказ.
Центральное крепление
В то время как большинство направляющих ящиков поставляются в комплектах по два, направляющие с центральным креплением имеют только один кронштейн, который крепится к нижней стороне ящика. Изготовленные из дерева или металла и довольно простые в установке, направляющие ящика с центральным креплением менее популярны, чем другие типы направляющих, потому что они могут легко выйти из равновесия, в результате чего содержимое вашего ящика смещается и скользит. Еще одним недостатком направляющих для ящиков с центральным креплением является то, что они не выдерживают такой большой вес, как другие типы направляющих.По этой причине они не подходят для ящиков с тяжелыми предметами.
Европейские направляющие
Европейские направляющие, также известные как нижние направляющие для выдвижных ящиков, прикрепляются к нижнему краю ящика и боковой стороне шкафа. Одним из преимуществ европейских слайдов является то, что они просты в установке: их просто прикрепляют к нижнему краю ящика, поэтому при размещении не приходится гадать. А поскольку в них используются нейлоновые ролики, а не шариковые подшипники, они, как правило, также недороги.Два недостатка европейских направляющих для выдвижных ящиков заключаются в том, что они, как правило, имеют меньшую грузоподъемность, чем направляющие для бокового или нижнего крепления, а функция мягкого закрытия не всегда доступна для этого типа направляющих.
Что следует учитывать при выборе лучших направляющих для выдвижных ящиков
Хотя вы можете предположить, что все направляющие для выдвижных ящиков работают одинаково, на их функциональность могут влиять несколько характеристик. Прежде чем покупать лучшие выдвижные ящики для своих проектов по благоустройству дома, прочтите, чтобы узнать о некоторых из наиболее важных качеств и функций, которые следует учитывать.
Размер
Прежде всего, убедитесь, что выбранные вами направляющие ящика соответствуют размеру ваших шкафов. Направляющие ящика бывают разной длины, стандартные размеры варьируются от 12 до 24 дюймов. Чтобы определить, какая длина вам нужна, вам сначала нужно определить, какие у вас шкафы — безрамные или с лицевыми рамами.
- Для бескаркасных шкафов не требуется задний монтажный кронштейн. Чтобы определить требуемую длину слайдов, просто измерьте общую глубину шкафа и вычтите толщину передней части ящика.
- Лицевая рамка Шкафы имеют рамку вокруг передней части корпуса шкафа и требуют заднего монтажного кронштейна. Это означает, что при измерении важно вычесть ½ дюйма для кронштейна, а также толщину передней части ящика.
Материал
Направляющие ящика обычно изготавливаются из дерева или металла.
- Деревянные направляющие для ящиков часто используются в высококачественной мебели, и для их изготовления требуется профессиональное мастерство.У них традиционный классический вид. Однако они, как правило, изнашиваются быстрее, чем их металлические аналоги, и не дают гибкости для полного выдвижения ящиков. В зависимости от температуры и влажности в вашем доме эти слайды также могут деформироваться и прилипать.
- Металлические направляющие для выдвижных ящиков могут быть не такими эстетичными, как деревянные, но они более прочные и довольно просты в установке. Они состоят из роликового или шарикоподшипникового механизма, оба из которых не подвержены воздействию температуры и влажности.Металлические направляющие ящика могут быть как самозакрывающимися, так и плавно закрывающимися. Поскольку некоторые типы металлических направляющих ящиков видны, когда ящик открыт, вам следует покупать направляющие с отделкой, которая дополняет отделку вашей мебели.
Грузоподъемность
Сколько веса может выдержать направляющая выдвижного ящика, — это один из способов оценки его качества — чем больше грузоподъемность, тем лучше. Слайды, которые предназначены для тяжелого содержимого, прочнее и долговечнее, чем те, которые не выдерживают такой большой вес.Некоторые стили направляющих для ящиков, такие как центральное крепление и европейское, имеют тенденцию иметь меньшую грузоподъемность, чем стили с нижним и боковым креплением. Лучшие выдвижные ящики имеют емкость не менее 75 фунтов. Большинство стандартных опций ограничены грузоподъемностью 100 фунтов, хотя изделия с более высокими нагрузками доступны по более высокой цене.
Антикоррозийный элемент
Некоторые металлические направляющие покрыты химическим веществом, защищающим от ржавчины и коррозии. В то время как нержавеющая сталь предназначена для защиты от ржавчины, другие виды стали подвержены коррозии, если они подвергаются воздействию влаги, что не является необычным для кухонь и ванных комнат.Антикоррозийное покрытие продлит срок службы направляющих вашего ящика и обычно встречается на высококачественных направляющих.
Шарикоподшипник
Металлические направляющие ящика поставляются с нейлоновыми роликами или металлическими шарикоподшипниками.
- Направляющие для ящиков с пластиковыми или нейлоновыми роликами , как и европейские роликовые направляющие, обычно более доступны. Это хороший выбор для ящиков, которым не требуется большой вес. Некоторые предназначены для работы с самозакрывающимися ящиками.
- Направляющие с шарикоподшипниками , как правило, более прочные и имеют большую грузоподъемность. Большинство ящиков с плавным закрыванием и самозакрывающихся ящиков имеют шарикоподшипники.
Наш лучший выбор
Теперь, когда вы знаете больше о выдвижных ящиках, пора начинать делать покупки. Рекомендации по выбору лучших выдвижных ящиков учитывают указанные выше особенности, включая тип, размер, материал и вес.
Фото: amazon.com
Эти плавно закрывающиеся боковые направляющие для ящиков от LONTAN доступны по цене и эффективны.Они полностью выдвигаются, поэтому вы можете легко увидеть и получить доступ ко всему содержимому ящика. Эти направляющие изготовлены из холоднокатаной стали и оснащены стальным шарикоподшипниковым механизмом, обеспечивающим плавную работу. Более того, в них встроены гидравлические амортизаторы, поэтому ящики открываются и закрываются бесшумно. С помощью фиксирующих боковых рычагов ящики можно снимать без использования каких-либо инструментов.
Направляющие с мягким закрыванием LONTAN имеют вес 100 фунтов, поэтому они вмещают столько кухонных принадлежностей или столько банных принадлежностей, сколько вы можете уместить в ящик.
Фото: amazon.com
Эти боковые направляющие полного выдвижения от компании PROMARK изготовлены из холоднокатаной стали и имеют антикоррозийное покрытие. Благодаря высококачественному механизму на шарикоподшипниках они открываются и закрываются плавно и бесшумно. Эти направляющие для ящиков рассчитаны и на длительную транспортировку: на них нанесено антикоррозийное покрытие для защиты от коррозии, и они могут выдерживать до 100 фунтов веса, поэтому они подходят для ящиков, в которых находятся тяжелые предметы.
Эти слайды доступны различной длины, от 12 до 24 дюймов.Они доступны в упаковках по пять или десять наборов, что идеально подходит для тех, кто хочет полностью обновить кухню своими руками.
Фото: amazon.com
Как и все направляющие для ящиков, устанавливаемые под столешницу, они от Blum не видны, когда ящик открыт, что делает их незаменимым помощником, если у вас есть качественная деревянная мебель, которую вы хотите показать с максимальной пользой. Эти скользящие направляющие ящиков с плавным закрытием имеют большие встроенные демпферы, позволяющие им открываться и закрываться тихо и плавно. Они сертифицированы Ассоциацией производителей оборудования Builders Hardware Manufacturers Association (BHMA), поэтому вы можете быть уверены, что получаете высококачественный продукт.
Эта модель имеет длину 15 дюймов, но также доступны варианты с диагональю 9 дюймов, 12 дюймов, 18 дюймов и 21 дюйм, обеспечивая решение независимо от глубины ваших ящиков. Они разработаны для ящиков с толщиной стороны от ½ до дюйма. Эти слайды, сделанные в США, поставляются в комплекте со всеми винтами и аксессуарами, необходимыми для оснащения одного ящика.
Фото: amazon.com
Эта направляющая для ящиков с центральным креплением от Accuride имеет длину 15 дюймов и предназначена для ящиков шириной до 16 дюймов.Он оснащен стальными шарикоподшипниками и выдвигается на три четверти, поэтому остается вне поля зрения, когда ящик открыт. Как и другие направляющие для выдвижных ящиков с центральным креплением, Accuride не выдерживает большого веса — его грузоподъемность составляет всего 35 фунтов, поэтому он лучше всего подходит для легких условий эксплуатации.
Полная установленная длина составляет 14⅞ дюйма и предназначена для использования с ящиками глубиной от 12⅝ дюймов до 14½ дюймов.
Фото: amazon.com
Европейские направляющие ящиков с нижним креплением доступны по цене и просты в установке.Эта пара от Liberty изготовлена из штампованной стали с белым эпоксидным покрытием и идеально сочетается с белой мебелью. Эти самозакрывающиеся направляющие для ящиков имеют вращающийся механизм и выдвигаются на три четверти.
Эти слайды можно приобрести в упаковках по одному, два, три или четыре набора слайдов, что делает их подходящими для больших и малых проектов. Они доступны в длине от 12 до 24 дюймов. Как и большинство направляющих в европейском стиле, направляющие с нижним креплением Liberty имеют меньший вес — всего 50 фунтов, поэтому они подходят для ящиков с одеждой и личными вещами, но, возможно, не для тяжелого кухонного оборудования.
Часто задаваемые вопросы о направляющих для выдвижных ящиков
Если у вас все еще есть вопросы о том, как выбрать лучшие направляющие для выдвижных ящиков, вам могут помочь следующие часто задаваемые вопросы.
В. Какой размер направляющих ящика мне нужен?
Размер направляющих для ящиков, которые вам нужны, зависит от глубины ваших ящиков и шкафа. Проще говоря, направляющие ящика должны быть того же размера, что и ваш ящик, после вычитания глубины лицевой стороны ящика.
В. Как измерить размеры ящиков для слайдов?
Выньте ящик из шкафа и переверните ящик вверх дном.Измерьте расстояние от нижней части передней части ящика до задней части ящика; то есть измерьте все, кроме передней части ящика. Затем округлите результат до ближайшего целого числа: например, для 15-дюймового ящика потребуется 15-дюймовый слайд.
В. Будет ли проблема, если я выберу слайдер с пластиковым фиксатором?
Ползунки с фиксирующими штифтами из нержавеющей стали прослужат дольше и будут более прочными, чем слайдеры с пластиковыми фиксирующими штифтами.
Линейные направляющие для ящиков | Firgelli Automation
Наши направляющие для выдвижных ящиков на шарикоподшипниках с полным выдвижением (иногда называемые направляющими) специально разработаны, чтобы быть компактными, бесшумными и исключительно плавными при высоких нагрузках.Это делает их подходящими для множества приложений, связанных с выдвижными ящиками, таких как шкаф и перемещение тяжелых компонентов, скрытых от глаз. Наши салазки способны нести тяжелые грузы через удлинители с длинным ходом, предлагая самые длинные в отрасли варианты хода и максимальную грузоподъемность. Как выбрать, что лучше всего подходит для вашего приложения? Есть 3 варианта, которые стоит рассмотреть. Во-первых, длина удлинителя. Затем грузоподъемность, а затем место установки. Наши направляющие для ящиков имеют 10 различных вариантов расширения и могут выдерживать вес до 400 фунтов.Кроме того, их можно установить сбоку или под шкафом.
Вам нужно мягкое закрытие? Наши выдвижные ящики оснащены функцией мягкого закрывания, чтобы они не отскакивали назад, если вы их закрыли.
Строите ли вы ящики или выдвижные полки, эти направляющие можно использовать в любое время, когда вам потребуется плавное управляемое движение. Они отлично подходят для приложений, где вам нужно нести большой вес в любом шкафу. Они поставляются предварительно смазанными, поэтому все, что вам нужно сделать, это установить их.Благодаря нашей универсальной конструкции крепления установка проста.
Нужна помощь с установкой? Мы создали полезную «Базовую инструкцию по установке pdf»
Как правильно выбрать направляющие для ящиков? Эта статья может помочь.
Особенности и преимущества
- Грузоподъемность: 400 фунтов (181 кг)
- Телескопическая конструкция (полное выдвижение) — они выдвигаются дальше по сравнению с их закрытой длиной.
- Максимальное удлинение хода — 50 дюймов (дюйм).Для 60-дюймовых удлинителей перейдите сюда «Длинные направляющие выдвижных ящиков»
- Монтаж: двусторонний
- Холоднокатаная сталь марки 235 и шарикоподшипники из нержавеющей стали
- Исключительно плавный и тихий
- Схема отверстий 32 мм
- В один комплект входят две направляющие для ящиков
- Какие бывают типы выдвижных ящиков? Посетите написанную нами статью под названием «Какие бывают типы выдвижных ящиков»
- Как установить направляющие ящика? Прочтите сообщение в нашем блоге «Как установить слайды с выдвижными ящиками»
Нужна грузоподъемность? мы также предлагаем «Сверхмощные направляющие для ящиков»
| Номер модели | Длина во втянутом состоянии | Удлиненная длина |
| 250ММ-10ZN | 10 « | 20 « |
| 300ММ-12ZN | 12 « | 24 « |
| 500ММ-20ZN | 19.5 ” | 39,5 дюйма |
| 600ММ-24ZN | 23,5 дюйма | 47,5 дюйма |
| 750ММ-30ZN | 29,5 « | 59 « |
| 800MM-32ZN | 31,5 дюйма | 63,5 дюйма |
| 850MM-34ZN | 33,5 « | 66,75 дюйма |
| 900ММ-36ZN | 35,5 « | 70,75 « |
| 1000ММ-40ZN | 40 дюймов | 80 дюймов |
| 1250MM-50ZN | 50 дюймов | 100 ” |
Слайды для ящиков Демо-видео
Видеообзор направляющих / направляющих ящика
Технические чертежи
Щелкните слайд ящика, на котором вы хотите загрузить чертеж с размерами
Загрузка 3D-моделей (.ШАГ)
Как установить направляющие для выдвижных ящиков с полным выдвижением
С помощью моего уникального метода без математики установить направляющие для ящиков с полным выдвижением легко! С первого раза вы можете получить идеальные выдвижные ящики — без лишних хлопот и царапин на голове.
Что такое направляющие ящика с полным выдвижением?
Направляющие ящика полного выдвижения, упомянутые в этом руководстве, — это
- Боковое крепление
- Обычно серебристый металл цвета
- Полностью выдвигается из шкафа, поэтому весь ящик выдвигается из шкафа
- Шарикоподшипник гладкий
- Наиболее распространенные выдвижные ящики в хозяйственных магазинах и в Интернете
- Обычно бывают четных размеров (10 дюймов, 12 дюймов, 14 дюймов и т. Д.).
- Может быть «сверхмощным», что означает выдерживать большие нагрузки.
- Может использоваться не только для выдвижных ящиков (раздвижные столы, выдвижная мебель, выдвижные крючки и т. Д.).
Видео установки направляющих ящика
В этом видео я описываю свой метод, когда устанавливаю ящик на кухне, используя направляющие ящика полного выдвижения.
Пошаговая инструкция: как установить направляющие ящика
Если вы предпочитаете читать и диаграммы, я также составил пошаговый метод установки направляющих в выдвижной ящик.
1. Подготовьте шкаф
- Избегайте ящиков шириной более 3 футов — ящики будут шататься, когда они выдвигаются, и могут провисать, если они будут слишком большими.
- Убедитесь, что шкаф «квадратный» изнутри — это означает, что внутренняя часть шкафа НЕ имеет форму трапеции или параллелограмма.
- При установке непосредственно во внутреннюю часть шкафа, обратите внимание на какие-либо изгибы стенок шкафа, где ящик может защемиться, когда он задвигается — это особенно часто, когда для сборки шкафа используется массивная древесина и доски 1x12s (или аналогично) основа и чаша внутрь или наружу.
- Если у шкафа есть лицевая рамка, полностью поднимающиеся вверх ножки или другие детали, которые не позволяют выдвижному ящику выдвигаться вперед, выведите наружу внутреннюю часть шкафа. Вам НЕ нужно полностью поддерживать направляющую ящика, поэтому НЕ нужно встраивать всю внутреннюю часть шкафа внутрь.
- При отделке внутренней части шкафа убедитесь, что полосы отделки расположены там, где к ним можно прикрутить направляющие ящика.
2. Установите элементы шкафа в шкаф
- Обратите внимание, как отверстия под винты для элемента шкафа и элемента ящика расположены на одной линии, по центру направляющей ящика? Итак, все, что нам нужно сделать, это нарисовать линии там, где мы хотим, чтобы центр выдвижных ящиков находился в центре, и вкрутить их в наши линии.
- Определите, где вы хотите установить центр направляющей ящика, и сделайте отметку.Это может варьироваться в зависимости от того, где вы хотите разместить ящик или насколько глубокий ящик. Я предпочитаю по возможности держать слайды ближе к месту, где находится тяга или ручка ящика.
- С помощью уровня проведите линию внутри шкафа по отметкам. Проведите такую же линию с обеих сторон внутренней части шкафа.
- Установите элемент шкафа на направляющую ящика так, чтобы винты находились по центру вашей линии.
- По возможности используйте винты внутри U-образных выступов, так как это позволит вам немного отрегулировать, если понадобится позже.
- Внутренние грани ящика: удерживайте направляющие ящика на расстоянии от лицевой стороны ящика спереди, если используется лицевая сторона ящика.
- Наложение лицевых сторон ящика: направляющие ящика должны быть установлены немного сзади от передней части шкафа.
FAQ: Какой длины должны быть выдвижные ящики?
Мне нравится покупать самые длинные выдвижные ящики, которые поместятся в шкафу с небольшим пространством для маневра.
3. Установите элементы ящика на боковые панели ящика
- Обрежьте стороны ящика по длине направляющих ящика.
- Поместите боковую панель ящика там, где она должна быть установлена в шкафу, и отметьте центральное положение направляющей ящика на доске. Повторите для обеих сторон.
- Нарисуйте горизонтальные линии на боковых панелях ящика параллельно верхнему краю боковой панели ящика
- Установить элемент ящика по бокам ящика, вкрутить винты в линию
- После того, как направляющие ящика будут установлены по бокам ящика, вставьте их в элемент шкафа и убедитесь, что стороны скользят правильно.
- Измерьте расстояние между сторонами спереди и сзади, обрежьте переднюю и заднюю части ящика так, чтобы они равнялись меньшему из двух размеров.Лучше строить на меньшей стороне, чем на слишком большой.
Часто задаваемые вопросы: Какой материал использовать для ящика ящика?
Можно использовать самые разные материалы, самый простой — это стандартные доски 1x, например доски 1×6. Вы также можете использовать фанеру, разрезанную на полосы, или пиломатериалы, соединенные пальцами (отличный выбор для ящиков с стабильными размерами).
4. Обработка ящика
- Соберите остальную часть ящика, прикрепив переднюю и заднюю части по бокам.Я предпочитаю карманные отверстия, но вы также можете использовать гвозди и клей или строительные саморезы диаметром ~ 2 дюйма.
- Прикрепите дно к боковым сторонам ящика, а также спереди и сзади. Обычно я использую фанеру 1/4 дюйма с гвоздями 3/4 дюйма и клеем.
- Для больших дно ящиков вы можете использовать фанеру 3/8 дюйма, скобы 1 дюйм и клей.
- Убедитесь, что нижняя часть прилегает к ящику под прямым углом.
- Установите ящик в шкаф и убедитесь, что он идеально скользит.
5. Регулировка направляющих полного выдвижения ящика
Если ваш ящик НЕ выдвигается так, как вам хотелось бы, вы можете вносить изменения, если ящик меньше отверстия.Слишком большой ящик необходимо уменьшить в размерах.
- Направляющие ящика полного выдвижения имеют выступы, которые можно отогнуть наружу, чтобы создать пространство между направляющими ящика и шкафом.
- Если возможно, посмотрите на нижнюю часть ящика и на то, как он движется по линии с выдвижным ящиком, и проверьте, где ящик не перпендикулярно шкафу
- Отогните язычки, чтобы зафиксировать направляющие ящика
- Регулируйте, пока ящик не будет скользить идеально.
- Если ящик заедает вертикально, ослабьте винты на элементах ящика и отрегулируйте ящик вверх или вниз, пока он не скользит идеально.
6. Лицевая сторона ящика
Лицевая панель ящика используется для очистки передней части шкафа и полного закрытия внутреннего пространства. Это не важно для функции ящика, но может украсить шкаф и сделать его законченным.
- Отрежьте лицевую панель ящика до нужного размера. Для внутренних ящиков я предпочитаю оставлять зазор около 1/8 дюйма по всей поверхности ящика.
- Просверлите отверстия для фурнитуры в лицевой стороне ящика.
- Поместите лицевую панель ящика над ящиком и прикрепите временными винтами через отверстия для оборудования ящика.Если вы не можете использовать отверстия для фурнитуры ящика, можно использовать двусторонний скотч или гвозди для гвоздей размером 1-1 / 4 дюйма.
- Откройте ящик и прикрутите ящик к задней стороне лицевой панели ящика винтами 1-1 / 4 дюйма (можно использовать винты с отверстиями для карманов).
- Если вы продвинулись через отверстия для оборудования, удалите винты и завершите установку оборудования шкафа.
Надеюсь, этот урок поможет вам установить ящики проще, быстрее и лучше. Если у вас есть какие-либо советы, которые вам помогут, оставьте, пожалуйста, ниже в комментариях.
Спасибо и удачного катания!
Ана
Как выбрать слайд
Выбирая телескопические направляющие или направляющие на шариковых подшипниках Thomas Regout International, вы выбираете высококачественное и индивидуальное решение. Чтобы выбрать идеальный слайд для вашего приложения, воспользуйтесь нашим селектором продуктов.
Наш ассортимент — возможности
В наш ассортимент входят телескопические направляющие от легких до тяжелых, различных типов.
Если у вас есть особый запрос на дизайн, с нашим отделом исследований и разработок вы можете совместно разработать слайд именно так, как вы хотите. Если вам нужна помощь в подборе идеального слайда, воспользуйтесь нашим селектором продуктов. Если вам потребуется дополнительная помощь, обратитесь в наш отдел продаж или к одному из наших дистрибьюторов.
Мы доставляем товар со склада в Маастрихте в любую точку мира. Мы являемся партнером, который ежедневно организует морские и авиаперевозки, кроме того, у нас есть большой опыт работы со складами VMI.Мы можем быстро и качественно ответить на ваши заказы и организовать транспортировку в соответствии с вашими пожеланиями. дистрибьюторы.
Направляющие одинарного выдвижения
Направляющие с одинарным выдвижением представляют собой направляющие для холоднокатаных выдвижных ящиков с 2 балками, состоящие из внутреннего и внешнего профиля, которые соединены между собой сепаратором шарикоподшипника. Ход этих горок составляет максимум 75%. Длина варьируется от 200 мм до 700 мм, а грузоподъемность этих направляющих на шарикоподшипниках составляет от 35 кг до 91 кг.Эти одинарные выдвижные направляющие подходят для легких применений, таких как выдвижные ящики для кухонь и ванных комнат, а также офисная мебель.
Все наши направляющие имеют стандартную антикоррозийную оцинковку синего цвета. Материал прошел 120-часовой тест в солевом тумане (ISO-9227 / ASTM-B 117). Наряду с синей отделкой мы также можем предложить черную пассивацию или предварительную гальванизацию.
Для завершения вашего индивидуального дизайна у нас есть различные функции, такие как встроенные замки, кронштейны и системы мягкого закрытия.Загляните на наш канал на Youtube, чтобы узнать о функциональных возможностях телескопической направляющей для шарикоподшипников .
Полное выдвижение
Направляющие полного выдвижения состоят из трех профилей: внутреннего, среднего и внешнего. Рядом с этим вариантом у нас также есть ползун с 4 балками с внутренним, средним, еще одним средним и внешним профилем. Все они соединены между собой сепараторами шариковых подшипников для плавного скольжения. Эти телескопические направляющие можно использовать для тяжелых условий эксплуатации.Допустимая нагрузка составляет от 28 кг до 289 кг на основе различных цикловых испытаний. Эти типы горок производятся разной длины и удлинения, которое составляет от 100% до 180%.
Направляющие на шариковых подшипниках стандартно имеют антикоррозийное цинкование синего цвета. Рядом с основным слайдером вы можете выбирать из различных функций, чтобы создать свой собственный слайд. Загляните на наш канал на Youtube, чтобы увидеть функциональные возможности наших телескопических направляющих для шарикоподшипников .Существуют разные возможности открывания и закрывания задвижки, но существуют разные возможности монтажа. Наряду с синей отделкой вы также можете выбрать другую отделку или материалы, такие как алюминий, предварительно оцинкованную или нержавеющую сталь.
Одиночное двустороннее перемещение означает, что ползун может перемещаться в двух направлениях.
Полный двухсторонний ход означает, что ползун может перемещаться в двух направлениях.
Как заказать ящики — Часть 1
Это часть 1 из 4 статей о том, как заказать новые или сменные ящики для ящиков. Я уже много лет отвечал на вопросы о том, как заказать новые или замененные ящики для ящиков.Итак, я подумал, что, возможно, пришло время вернуться к шагам, необходимым для размещения заказа на новые или заменяемые ящики с выдвижными ящиками. Вот варианты и шаги, которые вы будете делать, чтобы определить, какой тип ящика ящика, какой размер и какое слайд-оборудование Вам подходит:
- Как выбрать направляющие ящика
- Как выбрать материал ящика для ящика
- Как выбрать тип ящика для ящика
- Стандартный ящик для ящиков
- Коробка с выдвижным ящиком
- Выкатной ящик с высокой спинкой
- Как измерить размер вашего нового ящика или сменного ящика
В этой статье обсуждается первый шаг или выбор набора выдвижных ящиков для нового или замененного ящика.
Направляющие в европейском стиле из эпоксидной смолы — Направляющие из эпоксидной смолы в европейском стиле доступны от многих различных производителей, являются направляющими строительного класса и обычно являются наименее дорогими направляющими для выдвижных ящиков. Слайд Epoxy Euro будет относительно легко установить и потребует стандартного зазора 1/2 дюйма между ящиком ящика и каждой стороной отверстия ящика. Для слайда Epoxy Euro потребуется полный зазор 3/4 дюйма на высоте ящик в зависимости от высоты проема. Или вы можете заказать ящик с выдвижным ящиком на 2 дюйма меньше длины выбранных слайдов.Это необходимо из-за того, что ползун загружается и фиксируется в корпусной части ползуна. Вам придется наклонять или опускать переднюю часть ящика при вставке или извлечении ящика, чтобы вытащить ящик из корпусной части направляющей. Этот наклон или опускание ящика может создать проблему, если ящик слишком высокий или если ящик слишком длинный, так как падение или опускание приведет к тому, что ящик с ящиком ударится о верхнюю направляющую отверстия ящика, и вы не будете возможность вставить ящик ящика в проем.Этой проблемы можно избежать, уменьшив высоту или длину ящика. Направляющие Epoxy Euro можно использовать как в лицевом, так и в безрамном корпусе. При установке в шкаф с лицевой рамой вам, скорее всего, понадобится задний монтажный кронштейн для поддержки заднего конца салазок при установке. Обычная установка безрамных шкафов — прикрепление направляющих непосредственно к боковым стенкам внутренней части шкафа. При креплении к боковым стенкам не забывайте о длине винтов, чтобы винт не прошел сквозь корпус.Европейские направляющие из эпоксидной смолы имеют частичное выдвижение, что просто означает, что, когда ваш ящик или полка полностью выдвинуты, они будут выдвигаться или выдвигаться только примерно на 3/4 длины направляющих. Скрытая область ящика при использовании направляющих ящика с частичным выдвижением [/ caption] Стандартная грузоподъемность для направляющих Epoxy Euro составляет от 50 до 100 фунтов. Основное преимущество этой горки — цена. Это самая низкая цена, детали могут быть взаимозаменяемыми и не требуют особых навыков для установки. Я обнаружил, что жизненный цикл составляет около 5 лет, в зависимости от использования.
Полное выдвижение, направляющие на шарикоподшипниках — Полное выдвижение, направляющие на шарикоподшипниках — следующий шаг вперед по сравнению с суппортом для строительных работ и, как правило, стоят немного дороже. Полностью выдвижной ползун на шарикоподшипниках будет относительно легко установить, и для него потребуется стандартный зазор 1/2 «± 1/16» между ящиком для выдвижных ящиков и каждой стороной его отверстия. Просто возьмите проем ящика или шкафа и вычтите 1-1 / 16 дюйма, чтобы определить ширину ящика. Как и на предыдущем слайде, ползунок полного выдвижения на шарикоподшипниках можно использовать как в лицевой раме, так и в безрамном шкафу.При установке в шкаф с лицевой рамой вам, скорее всего, понадобится задний монтажный кронштейн для поддержки заднего конца салазок при установке. Обычная установка безрамных шкафов — прикрепление направляющих непосредственно к боковым стенкам внутренней части шкафа. При креплении к боковым стенкам не забывайте о длине винтов, чтобы винт не прошел сквозь корпус. Для их установки рекомендуется использовать винт с полукруглой головкой №8 — 7/16 дюйма (низкий профиль). Как следует из названия, направляющие на шарикоподшипниках с полным выдвижением имеют удлинение на всю длину, что означает, что когда ваш ящик или полка полностью расширенный, он будет выдвигаться или расширяться на всю длину слайдов.При использовании выдвижных ящиков с выдвижными ящиками полного выдвижения нет скрытых областей [/ caption] Для слайдов полного выдвижения потребуется зазор от 1/4 до 3/8 дюймов по высоте. Это минимальный зазор, обеспечивающий примерно 1/8 — 3/16 дюйма между ящиком и нижней направляющей проема и 1/8 — 3/16 дюйма между ящиком ящика и верхней направляющей проема. Зазоры по высоте меньше при полном выдвижении, шарикоподшипники скользят, потому что они вставляются и удаляются «прямо» и не требуют опускания передней части ящика.Направляющая на шарикоподшипнике обеспечивает более плотное ощущение ящика и работает немного тише. По возможности мы рекомендуем полностью выдвигать направляющие на шарикоподшипниках для боковых направляющих ящиков. Основное преимущество использования ползуна на шарикоподшипниках с полным выдвижением — это удлинение и плавность хода. Полноразмерные направляющие на шарикоподшипниках позволяют использовать ящик с чуть более высоким ящиком. Этот слайд имеет конкурентоспособную цену и не требует особых навыков для установки.Я обнаружил, что жизненный цикл составляет около 10 с лишним лет, в зависимости от использования.
Скрытые направляющие для нижнего монтажа — С момента своего появления на рынке скользящие направляющие для ящиков с мягким закрытием и самозакрыванием для нижнего монтажа были популярны и будут оставаться в будущем. Это выдвижной ящик, который все думают, что они хотят … Давайте взглянем на слайд, его использование и ограничения. В данной статье мы имеем в виду только современные модели направляющих для установки под столешницу, такие как BLUM 563, KV MuV, Vitus USE или аналогичные направляющие для выдвижных ящиков, и что конструкция вашего выдвижного ящика будет поддерживать использование этих направляющих.Подробности ниже.
- Нижняя или нижняя направляющая требует специальной подготовки / рассмотрения, например:
- Специальные расчеты для ширины выдвижного ящика
- Доступность с шагом 3 дюйма вместо шага 2 дюйма
- Специальная конструкция ящика для выдвижных ящиков, требующая углубления на 1/2 дюйма под ящиком для размещения выдвижных элементов (наш стандартный метод строительства)
- Специальные «выемки» и «расточки» ящика для размещения направляющих (доступны при заказе ящика)
- Установка запорного устройства на нижней части выдвижного ящика коробки (обычно продается отдельно)
| Запорные устройства Blum, установленные на дне ящика |
| На задней части ящика имеются необходимые «насечки и расточки» для типичных направляющих для установки под столешницу |
| Большинство направляющих для ящиков, устанавливаемых под столешницу, имеют полное выдвижение |
Этот ящик демонстрирует легкость доступа при использовании полного выдвижения, салазки для установки под крепление [/ caption] Прежде всего, чтобы измерить использование салазок, вы, должно быть, уже решили, из какого материала будет материал ящика и какой толщины материал ящика.Эти направляющие изготавливаются для трех основных ящиков толщиной; 1/2 дюйма, 5/8 дюйма и 3/4 дюйма. 3/4 дюйма — наименее распространенный размер, и для него обычно требуется специальная модель салазок, если таковая имеется. Некоторые производители делают , а не , делают модель выдвижных опор для нижней установки для сторон выдвижных ящиков толщиной 3/4 дюйма. После того, как вы определили толщину материала боковых сторон ящика, у вас должны быть следующие зазоры для ящика.
- Указанные ниже зазоры равны в сумме для обеих сторон…
- Для боковых стенок ящика толщиной 1/2 дюйма потребуется зазор шириной 5/8 дюйма.
- Для сторон ящика толщиной 5/8 дюйма потребуется зазор шириной 3/8 дюйма.
- Для боковых стенок ящика толщиной 3/4 дюйма потребуется зазор шириной 7/16 дюйма.
- Для всех этих направляющих, независимо от толщины сторон ящика, потребуется комбинированный зазор 3/4 дюйма или больше для высоты
- Пример: Ящик из березы толщиной 5/8 дюйма — ширина ящика шкафа 16 дюймов — ширина ящика будет 15-5 / 8 дюймов.
Теперь, когда вы определили, какой будет ширина и высота вашего выдвижного ящика, вы можете выбрать глубину ящика. Эти слайды обычно доступны с шагом 3 дюйма от 9 дюймов до 30 дюймов. Наиболее распространены размеры от 15 до 21 дюймов, так как они обычно подходят для ванной или кухонного шкафа. Обязательно подумайте общая общая длина салазок для обеспечения зазора в вашем шкафу. Для типичных 21-дюймовых салазок под монтажом потребуется около 22 дюймов от передней до задней части.Для стандартной длины направляющих потребуется дополнительно около 1 дюйма для установки зазора. Конкретная информация о зазоре доступна для каждого из производителей направляющих. Обычная установка направляющих ящика аналогична установке направляющих, устанавливаемых сбоку … Направляющие для установки под монтажом могут быть установлены в любом из лицевую раму или шкаф в бескаркасном стиле, и может потребоваться использование задних монтажных кронштейнов. Конкретные инструкции по установке обычно доступны у каждого производителя.

Высота передних и задних стенок в этом случае составит h=250 (высота боковин) -16 (толщина дна) -13 (зазор внизу между боковинами и дном) = 221 мм.

4. Схема монтажа шариковых направляющих высотой 17 мм
16. Шариковая направляющая с системой Push to open
9-2010 Американский национальный институт стандартов / Ассоциация производителей оборудования
