Размер штор как определить: Как определить размер штор
Как определить размер штор
Не знаете, как определить размер штор? С вами «Штора на дом», эксперт в мире штор и домашнего текстиля. Найдите 3 минуты и мы гарантируем, что за это время вы узнаете, как правильно подобрать нужный вам размер штор и избежать ошибок.
Приготовьте рулетку, ручку и лист бумаги, чтобы фиксировать все замеры. Для удобства вы можете скачать специальную форму-памятку для записи расчетов, которая была приготовлена для Вас.
Итак, приступаем:
Для того чтобы точно определить размеры штор, лучше всего сразу установить карниз. Это обезопасит Вас от возможных неприятностей, связанных с неправильными замерами.
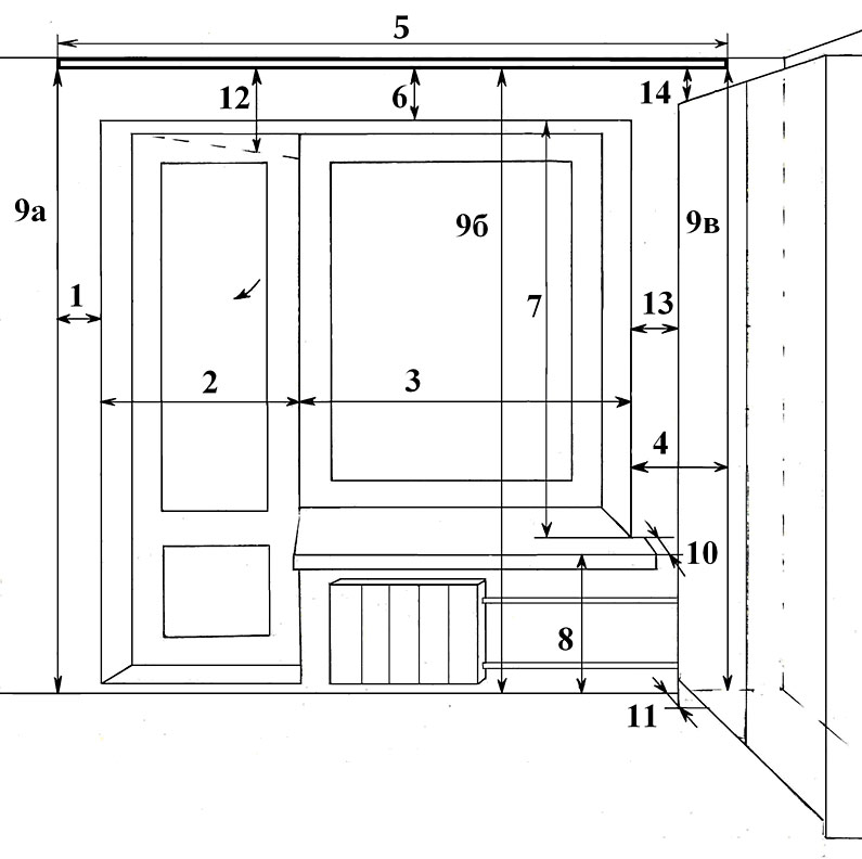
1. Определяем длину будущих штор. Снимать мерки следует начинать с замеров расстояния от крючка карниза до пола. Такие замеры необходимо произвести как минимум в 3-х местах для исключения неточностей измерений, связанных с неровностью пола и потолка. Если Вам нравится, когда шторы «лежат» на полу, необходимо прибавить к высоте штор 20-50 см снизу.
Не советуем использовать сантиметр — может пострадать точность результатов.
Фиксируем результаты замеров.
Если Ваши шторы будут крепиться на петлях, кулиске или люверсах, измеряйте длину будущей шторы, начиная с самого карниза.
2. Определяем ширину будущих штор. Замеряем расстояние между правым и левым держателями карниза и делим на 2. Получили минимальную ширину портьеры.
3. Учитываем пышность. Не стоит забывать, что штора на окне красиво смотрится, когда она создает мягкие складки. Поэтому пользуемся правилом для определения пышности:
Плотные ткани имеют коэффициент пышности 2:1. ткани средней плотности — 2,5:1, легкие ткани — 3:1.
Это значит, что найденную нами минимальную ширину шторы умножаем на 2, 2,5 или 3 в зависимости от типа ткани нашей будущей шторы.
4. Закладываем припуск на заход полотен по центру. Это чаще всего 5-10 см.
5.
Определяем окончательный размер штор согласно измерениям.
Вот и все, вы готовы к покупке штор. Спасибо что были с нами!
Как выбрать размер штор? от компании Домалетто
Содержание:
Как выбрать размер штор? Для этого вам, конечно, следует запастись рулеткой (желательно рулонной металлической), калькулятором (или ручкой с листом бумаги), однако перед этим будет полезно прочитать несколько несложных советов.
Карниз
И первый из советов — ориентируемся на длину струны карниза и высоту от пола до струны, а для этого карниз желательно уже установить. Длину измеряем от правого до левого держателя карниза.
Как рассчитать метраж штор в высоту (длину)
Если штора будет вешаться на крючки, высота измеряется от крючка до пола. Если же это люверсы, петли или кулиски — от самого карниза до пола. Если вы хотите, чтобы полотно было не просто до пола, но и частично ниспадало на него, стоит прибавить к результатам замера от 20 см до полуметра.
Как правильно измерить шторы в ширину
Минимальная ширина одной шторы равна расстоянию от левого до правого держателя карниза. Но даже если вы хотите повесить только одну штору (как и одну гардину) — не забывайте про складки! Чего уж говорить, если в соответствии с классикой таких штор будет две. В этом случае мы делим расстояние между держателями на 2 — это и будет минимальной шириной обеих портьер.
Учитываем пышность (складки). Поскольку складки «забирают» ширину, то ее нужно увеличивать, а насколько — зависит от плотности ткани. У разных по плотности тканей она различна.
-
У плотных этот коэффициент равен 1,5… 2. Значит, минимальную ширину умножаем на цифру в этих пределах.
-
У тканей средней плотности эта цифра — 2… 2,5, соответственно умножаем на 2… 2,5.
-
У легких тканей типа вискозы — 2,5… 3. Соответственно, множим на цифру от 2,5 до 3.
Указанные цифры несколько условны, однако здесь неизменно одно правило — коэффициент пышности у тюлевых тканей выше (2-3), чем у портьерных (1,5-2).
Соответствие длины карниза и ширины основных штор
Идеальной считается складка 1:1,7, но у всех разные вкусы, поэтому ниже мы предлагаем условное соотношение серийного размера штор с карнизами стандартной длины:
-
Шторы шириной 140 см (каждая) для карниза от 180 до 250 см длиной
-
Шторы шириной 180 см (каждая) для карниза от 220 до 300 см длиной
-
Шторы шириной 200 см (каждая) для карниза от 250 до 350 см длиной
-
Шторы шириной 220 см (каждая) для карниза от 280 до 400 см длиной
-
Шторы шириной 240 см (каждая) для карниза от 300 до 450 см длиной
Перехлест
Если вы планируете повесить шторы в перехлест по центру, это еще примерно плюс 5-10 сантиметров к ширине каждого полотна. Плюсуем и их!
Что еще важно знать
Натуральные ткани больше подвержены усадке, чем синтетические. Поэтому, если вы купили для штор именно их, целесообразно будет воспользоваться коэффициентом с наибольшим показателем, указанным в списке (соответственно 2, 2,5 и 3).
Надеемся, что наши советы о том, как рассчитать ширину и высоту шторы на окно, окажутся полезны, и ваши гардины и шторы будут смотреться в интерьере дома во всем своем великолепии.
Как правильно рассчитать размер штор, расчет для ширины и длины 300, 260, 150 см.
Занавески, шторы или гардины – предметы интерьера, выполняющие в помещении несколько функций, но их длина, ширина (и даже толщина) зависит не только от назначения. И, чтобы определить размер штор правильно, необходим индивидуальный подход, даже в типовых решениях.
Оконные шторы
Прежде, чем взяться за метры и сантиметры, надо бы сначала определить, для какого помещения выбираем занавес. Конечно, в любом из них (будь то спальня, детская комната, кухня или гостиная) оконные шторы выполняют одинаковые функции:
- ограждают от света снаружи;
- закрывают от взглядов с улицы;
- украшают или дополняют интерьер и экстерьер дома.

Вместе с тем, место назначения надо учитывать, чтобы правильно выбрать материал для занавесок. Например, для детской комнаты и кухни лучше использовать гладко-фактурные синтетические ткани – материал не маркий и легко моющийся.
При подборе фактуры и расцветки декоратор, художник или дизайнер по интерьеру может не понадобиться. Особенно, когда комната давно обставлена, а шторы приобретаются, чтобы обновить ее внутреннее убранство.
Основные правила подбора элементов интерьера усвоить несложно и своими силами. Например, основной цветовой принцип гласит: к теплым тонам обоев, художественно-оштукатуренных или окрашенных стен подбираются ткани теплых, к холодным – холодных тонов. В частности, если шторы подобраны в цвет, но на 1 – 2 тона (по цветовой шкале) темнее обоев, то привнесут в комнату чуть больше домашнего тепла и уюта. Еще лучше, если ширина штор позволяет оставлять на их поверхности мягкие складки, даже когда окна полностью закрыты.
Шторы контрастирующего с обоями цвета визуально уменьшают пространство комнаты. Одинаковый с обоями цвет оконного текстиля на визуальное восприятие кубатуры не влияет и подходит для небольших помещений. Если стену с окном надо приблизить, то удачными будут яркие гардины насыщенного цвета (лучше теплых тонов). Если же ее надо отдалить, то следует подобрать:
- более светлую расцветку;
- холодные тона.
Когда в помещении используются фотообои или настенная живопись, или стены оформляются в разные цвета, то шторы следует подбирать в тон с основным фоном интерьера.
Технический нюанс: Прежде чем рассчитать длину штор, укрепите над окном карниз. Оптимальное расстояние от верхнего края оконного проема до карниза составляет 7,5 – 12,5 см. Чтобы эффективно раздвигать занавески и допускать внутрь или закрывать внешний свет, карнизная рейка должна выступать на 15 – 20 см по боковым краям окна.
Комната
Комната может быть предназначена для приема гостей, для отдыха (спальня), для работы (кабинет/офис) или быть универсальной – кабинет-спальня; студия-гостиная; кухня-столовая. В любом случае, чтобы выбрать ткань и рассчитать размер штор, соображения будут одинаковы для всех перечисленных помещений.
Метры
Какой длины должны быть шторы в комнате, определяем, исходя из размера окон; высоты потолка или расстояния от пола до рейки (гардинного карниза) плюс-минус размер зажимов для ткани. Для обеспечения точности в см лучше использовать рулетку с жесткой сантиметровой лентой или же метровую линейку.
Для оформления окна существует несколько стандартных дизайнерских решений по длине:
- до подоконника;
- ниже подоконника;
- до пола;
- до пола с запасом.

В последнем случае запас 5 – 25 см обычно рекомендуют для крупной тюлевой занавеси (типа рыбацкая сеть). Длина «До подоконника» хороша для простых ситцевых занавесок, без рисунка. В то же время хорошо будет смотреться ажурная отделка по краям или ажурная структура всей мини-шторы. Такие решения уместны в студии или в гостиной, оформленной в оригинальном Ар-Деко, или в стиле Кантри (Деревенский).
Длина «До пола» рекомендуется из расчета оставить зазор 1 – 3 см, который необходим для удобства пользования шторами и уборки помещения
В целом, наиболее универсальным для типовой квартиры со стандартными окнами получается размер 200х260 см. Этот «стандарт» в равной мере касается и прозрачных и плотных занавесок. Ширина 260 см может быть составной, если используются две шторы по 130 или комбинация из трех, например 100+80+80 см.
Если ширина окон составляет около или более 3-х метров, то очень часто рекомендуется использовать две плотные занавески стандартной ширины 200 см.
Как правило для комнатного окна рекомендуется использовать одну тюлевую гардину. При этом рекомендуется ширина с запасом, в частности для 3-метрового окна ширина может быть 3,3 – 3,6 м. Второй вариант: две тюлевые шторы шириной 180 – 200 см.
Стили
Для комнат в стиле минимализма (однотонные обои, немного лаконичной мебели, пол с простым покрытием) подойдут скорее жалюзи или ролетта, чем мягкие тканевые изделия. В то же время не исключаются и тканевые гардины (в том числе классические), а особого уюта минималистическим интерьерам придает подобранная по цвету мягкая средне- или крупноячеистая тюлевая штора теплого оттенка. На фото 1 показан интерьер в стиле минимализма, но с тканевым решением для окон. Такие решения (скорее лаконизм, чем минимализм) характерны для помещений в скандинавском стиле.
Шторы в минималистическом интерьере
Барокко, рококо, викторианское изобилие и респектабельность интерьера удачно дополнят тяжелые гардины с бахромой и воланами – и сами, и в комбинации с ажурным тюлем (см.
фото 2). Размеры обычно не выходят за рамки своеобразных стандартов: 200х260 см; 220х200 и 260х180 (для комнат с высоким потолком). При двойной комбинации тюль и шторы подбираются под преобладающие в интерьере оттенки, в частности, под белый потолок – белая же тюль, под розовые стены – гардины винно-красного цвета.
Шторы барокко в каминном зале
Деревенский стиль Кантри (Прованс) с большими окнами приветствует решения сложного кроя с драпировкой, кисточками и длиной до пола (см. фото).
Шторы в гостиной стиля Прованс
На малоформатные окна подойдут белые занавески с простым рельефным (белая или светлая вышивка) или перфорированным рисунком. Размер шторы подбирается по ширине оконного проема с минимальным запасом (5 – 7 см), а длина может быть, как в пол окна, так и по всей высоте оконного проема.
В интерьер оформленный в плавных линиях гармонично впишутся шторы того же цвета, но на несколько тонов светлее или темнее, например, светло-розовый и фуксия; лазурный и небесно-голубой, зеленый и аквамарин, серый и серебристый. Отделанные деревом стены удачно дополнит коньячный цвет.
Рисунок, нанесенный на шторы, может соответствовать рисунку обоев (как галстук соответствует рубашке), а может и создавать контраст. То и другое принимается, в зависимости от общего интерьерного стиля. Тань с блестками и перламутром хорошо впишется в интерьер барокко с его бронзовой и золотистой лепниной. Геометрические узоры на шторах удачно дополнят такие же фигуры на стенах, при этом не следует гоняться за соизмеримостью. Крупные (10х10 и даже 15х15 см) фигуры на ткани удачно дополнят мелкие сантиметровые квадратики-треугольники-кружочки на рисунке обоев. Вариантов такого контраста несколько:
- крупные фигуры на ткани и средние или крупные на стене;
- мелкие или средние – крупные или средние;
- мелкие – средние или мелкие.

Все они будут создавать свое настроение, а выбирать надо либо по вкусу, либо по рекомендации специалиста по дизайну.
Кухня, детская, ванная комната
Известно, что на размеры штор влияют привычки пользователей помещения и (или) назначение самого помещения, то есть, микроклимат. Особым микроклиматом и дополнительными требованиями ко всем материалам интерьера в любой квартире, любом доме отличаются кухня, детская и ванная или смежный санузел.
Кухонное пространство
Как известно, кухня – помещение, в котором мы двигаемся более активно, чем в спальне или, например в гостиной. Второй нюанс – чистота воздуха – даже при наличии эффективной вытяжки, кухонные испарения имеют место. Третье обстоятельство, влияющее на размер штор – наличие открытого огня (правда, лишь когда плита стоит в непосредственной близости от окон). Соответственно условиям, кухонные шторы должны быть:
- легко моющиеся;
- менее длинные, чем в комнате;
- из трудно-горючего или негорючего материала (желательно).

Длина кухонных штор должна быть не ниже подоконника, а то и лишь в пол-окна. Ширину прозрачной тюли надо подобрать по ширине окна. Ширина плотной, светозащитной ткани подбирается индивидуально (так же, как и ее цвет). Как правило, хватает 200 см, но возможны варианты, например, «100+100 см»; «120+120»; «70+70» и т.д.
Детская
Дети, как известно, двигаются активнее взрослых, а в пользовании шторами более небрежны, чем их родители, бабушки и дедушки. Потому в детской комнате приветствуются более простые для пользования короткие форматы:
- до подоконника;
- на 3 – 10 см ниже подоконника;
- на 2 – 5 см выше пола.
Дети, случается, используют оконные занавески в качестве гигиенической салфетки или полотенца. Соответственно, следует выбрать цветной материал (еще лучше – с узором, маскирующим возможные пятна), конечно же, он должен соответствовать гигиеническим требованиям для детских помещений.
При ширине окна метр с небольшим ширина тюлевой занавески может быть строго по размеру окна или на 10 – 30 см больше. Для светозащитной шторы размеры подбираются с достаточным запасом. Практика показывает, что и для детской комнаты очень часто подходит «взрослый» стандарт 200х260 см.
Ванная/санузел
Окна в ванной комнате встречаются довольно редко, но если они есть, то занавески обычно нужны так же, как и в других помещения. Воздух в ванной отличается повышенной влажностью, из-за чего материал штор должен быть не гигроскопичным (желательно) и стойким к гниению. Приветствуется синтетические ткани светлых тонов, желательно теплых, если в ванной прохладно и яркие холодные тона, когда прохлада необходима.
Высота и ширина окна в ванной редко превышает 1 метр так, что с размерами штор здесь особо не разгуляешься. Конечно, в ванной случаются и более габаритные окна, но при любом формате, ширина должна полностью покрывать оконный проем, а длина штор может быть любой – от «До пола» до «В пол окна».
Правила подбора шторы по цвету и рисунку соблюдаются те же, что и для обычных комнат (см. выше). Уместно использовать и такую вещь, как ролетта, которая обычно очень хорошо сочетается с плиточными стенами.
В завершение, наверное, следует напомнить, что длинные шторы и украшают интерьер, и эффективно скрывают недостатки оконного проема.
Обратите внимание: очень часто шторы отличается изрядными размерами, потому в интерьер вносят очень ощутимый акцент. Иначе говоря, они могут и обогатить, и свести к минимуму стиль всего помещения.
ширина и высота, направление рисунка
→ Пошив штор → Размер штор
Ширина шторы — это расстояние от левого края готовой шторы до правого в растянутом состоянии. Реальная ширина шторы больше визуальной, в складке. Коэффициент на складку для тюлевых тканей 2-3, для портьерных — 1.5 -3.
Высота шторы — это расстояние от верхнего края шторы, где она цепляется за карниз, до нижнего края, где она либо висит над полом, либо лежит на нём.
Ширина ткани = ширина рулона с тканью.
При покупке ткани для штор цены принято указывать за погонный метр ткани, при любой её ширине.
Направление рисунка
Рисунок поперёк кромки рулона
Если рисунок направлен перпендикулярно, «поперёк», от края до края, то ширина ткани = максимальная высота готовой шторы. Вы платите за погонный метр ширины шторы. Это называется «Набирать ширину».
При таком направлении рисунка, если вам не хватает высоты для шторы (например ткань 280, а потолок 300), единственный способ добрать высоту — надшить ткань сплошной полосой (можно с люверсами) или использовать петли. Операция требует дополнительной работы и материала, и, по возможности, её следует избегать.
Рисунок вдоль кромки рулона
Если рисунок направлен вдоль кромки рулона то ширина ткани = ширина готовой шторы. Вы платите за погонный метр высоты шторы.
Это называется «Набирать высоту».
При таком направлении рисунка, если ткань имеет ширину 150 см, а ширина шторы должна быть 300 см, то полотна сшиваются. Для тканей с рисунком в этом случае необходимо учитывать шаг повторения паттерна — раппорт.
Сшить можно любое количество полотен, например из 3 полотен по 150см можно сделать 2 шторы шириной 225 см.
При оформлении заказа калькулятор считает стоимость для набора ширины. Расчёт стоимости для набора высоты производится вручную нашим специалистом, так как в этом случае имеются ряд нюансов, например, тот же подбор раппорта.
Дополнительная информация:
РАЗМЕР ШТОР | Домино
Точные и правильные размеры будущих штор — это первый шаг на пути к перевоплощению Вашей комнаты или дома.
Имея понимание, какие именно размеры штор Вам нужны, Вы без труда сможете, в том числе, понять, какую именно сборку (коэффициент сборки) Вы должны будете заказать при покупке штор.
Ширина штор зависит от длины Вашего карниза, длину Вы можете устанавливать такую, какая Вам больше нравится.
Если Вы определились с тем, какого размера и какой формы Вы хотели бы видеть шторы на Ваших окнах, вооружились рулеткой или сантиметровой лентой, приступайте к замерам в соответствии с нашими рекомендациями. Если Вы сделаете всё правильно, Вы получите необходимые размеры.
Измеряем ширину
Мы рекомендуем использовать металлическую рулетку. Она жестче, чем матерчатая сантиметровая лента, да и более точная. Традиционно, с точки зрения дизайна, карниз или гардина должна быть расположена выше окна или проёма на 15 см. и шире окна или проема на 15-20 см. в обе стороны. Если вы используете карниз или гардину во всю ширину стены, то измерить следует расстояние между оконечными фиксаторами (часто их роль выполняют специальные заглушки, декоративные насадки или наконечники).
Когда Вы определили ширину Ваших будущих штор по карнизу, самое время рассчитать необходимую ширину штор для того, чтобы в полностью закрытом положении Ваши шторы имели мягкую, красивую складку.
Для этого рекомендуем использовать нехитрый расчет:
- Если шторы на шторной ленте: длину карниза умножаем на 2-3;
- Если шторы на люверсах или петлях: длину карниза умножаем на 1,8;
К полученной ширине прибавьте ещё 15 см., чтобы в закрытом положении Ваши шторы как бы перекрывали друг друга в середине. Но это только при условии, что Ваше окно одето в две шторы.
Измеряем высоту
Теперь настало время определиться с высотой Ваших будущих штор. Если Вы выбрали высоту «по подоконник», следует учесть, что в данном случае необходимо выбрать высоту либо на 1,5 см выше подоконника, либо ниже на 15 см.
, чтобы сквозняки и блики с улицы не мешали Вам в будущем. Если под подоконником у Вас есть радиатор отопления, мы рекомендуем высоту штор сделать на 3 см. выше него, с тем, чтобы тепло свободно поступало в комнату.
Если же Вы решили сделать высоту, что называется «в пол», то длину лучше взять с таким расчетом, чтобы шторы не доставали до пола 1,5 см. В этом случае Вы избежите преждевременной порчи низа шторы, которая будет тереться об пол, в случае, если будет доставать до самого пола.
Помните, что подоконник и пол не всегда ровные, потому для уверенности измерьте расстояние от низа крючка карниза до пола посредине окна (карниза) и по краям окна (карниза).
Чтобы Ваши шторы свисали свободно и имели именно ту длину, которая вам необходимо, учитывайте следующее:
1. Шторы на шторной ленте
По умолчанию используется шторная лента шириной 6 сантиметров, имеющая 2 ряда карманов, за которые цепляются крючки.
Лента пришивается к верхнему краю шторы таким образом, чтобы:
- Первый ряд карманов был в 1.
5 см от верхнего края шторы - Второй ряд карманов был в 3 см от верхнего края шторы
Опционально (например, если нужно закрыть карниз) над шторной лентой можно выпустить немного ткани — т.н. «гребешок». Гребешок не рекомендуется делать больше 2-3 см, иначе ткань некрасиво «отвалится».
Если необходимо расстояние от верхнего края шторы до кармана 4.5 см, без гребешка, то шторную ленту можно пришить «вверх ногами».
Такие нестандартные моменты обсуждаются индивидуально.
Таким образом, для того, чтобы рассчитать высоту шторы, вам необходимо замерить расстояние от точки крепления крючка до нижнего края будущей шторы, и прибавить к этому расстоянию 3 см.
Например: Вы хотите штору «в пол». Измеряем расстояние от крючка до пола — пусть 247 см. Прибавляем 3 см — получаем 250.
Именно этот размер необходимо указывать в заказе. Зацеплять крючки в этом случае вы будете за центральные карманы (которые в 3 см от верхнего края шторы).
Эти 3 сантиметра сверху как раз закроют крючок.
2. Шторы на люверсах
Для того, чтобы узнать необходимую высоту штор на люверсах, необходимо замерить расстояние от верхней точки карниза (точка, где люверс внутренней стороной соприкасается с карнизом) и прибавить к этому 3 см. Всё.
Именно эту высоту необходимо указывать в заказе. Если необходим гребешок побольше — вопрос решается индивидуально. В отличии от крепления на шторной ленте, проблема отваливания ткани не стоит, так как люверсная лента, на которой монтируются люверсы, отлично держит верхний край.
Ширина штор | .
Ширина штор определяется на начальном этапе проектирования портьер. Как правильно рассчитать ширину штор самому? Какие бывают нормы и требования? Некоторые советы.
Любому, вновь приобретающему новые шторы интересно знать, сколько нужно ткани на шторы, как она будет выглядеть при разном наполнении и сколько, в конце концов, нужно купить ткани на шторы.
В этой статье поговорим немного о ткани на вашу ширину штор.
Для определения ширины для ваших штор неплохо бы составить представление о наполнении ткани в визуальном смысле и увидеть, как оно смотрится на окне, это наполнение.
Ширина штор
Наполнение ширины штор
- Минимальное наполнение ширины штор
На фото вы можете увидеть различные варианты наполнения. Первое наполнение — это шторы с коэффициентом 1:1.5, то есть, к примеру, при ширине карниза 3 метра, ткани надо будет 4.5 метра. На фото можно увидеть, что наполнение минимально, ткань смотрится очень скромно. Такая ширина штор не позволит нашему глазу разгуляться.
- Среднее наполнение ширины штор
Среднее фото — это ширина штор с коэффициентом 1:2, то есть, при той же ширине карниза потребуется уже 6 метров ткани, самое оптимальное и популярное наполнение в шторах.
- Полное наполнение ширины штор
Последнее, самое правое наполнение, показано в коэффициенте 1:2.5. Богатое и самое красивое наполнение для вашей ширины штор. Без сомнения, один из самых лучших вариантов выбора декорирования портьер.
В моей практике очень часто встречались такие моменты, когда после того, как выбрано минимальное наполнение, приходилось что-то придумывать с портьерами, после так называемой «обкатки» в интерьере, две портьеры дополнять третьей, добавлять комбинированные портьеры и т.д.
Поэтому, выбирайте заранее, глядя на фото, нужное для вас наполнение штор, считайте соответственно вашего размера карниза, ширину штор. Ваша формула — это ширина карниза, помноженная на выбранный коэффициент наполнения.
Ширина штор
Если у вас еще не стоит карниз и вы не знаете, какой размер карниза приобрести, читайте статью «замер штор», которая поможет вам сделать это правильно.
И все же бывают исключения. В каких случаях целесообразно минимальное наполнение ширины штор?
В том случае, если вам не требуется занавешивать шторы, и они будут нести только декоративную функцию, радовать глаз окружающих, нужно рассчитывать ширину штор иначе.
О том, какие бывают декоративные портьеры, можно прочесть здесь.
Ширина декоративных штор
Для того, чтобы рассчитать наполнение штор декоративных, подойдите к окну и посмотрите, какое пространство на простенке будут занимать ваши декоративные шторы. Почему на простенке, спросите вы?
Представьте декоративную портьеру не на простенке, а на самом окне. Постоянное занавешивание светового проема однозначно будет мешать восприятию, и вы её со временем сдвинете на стеновой проем.
Итак, после того как определились с шириной, можно приступать к расчету ширины декоративных штор.
Допустим, желаемая ширина декорирования составляет 0,5 метра. Тогда самым оптимальным будет решение взять коэффициент наполнения 1:3. В нашем случае это 1,5 метра.
Можно ли больше? Конечно, да. Можно ли меньше? Нежелательно.
Важно понять, что ткань имеет свойство драпироваться даже в натянутом состоянии. А для декоративных штор важна их красота, которой мы добиваемся не только качеством ткани, но и количеством.
Ширина штор
Исключения:
А можно ли в виде исключения сделать ширину штор минимальной?
Да, в случае, если вы будете пользоваться шторами для занавешивания только в ночное время, можно наполнение штор сделать минимальным, то есть по ширине карниза.
И все же, учтите, если, при ширине карниза в 3 метра, шторы будут шириной тоже 3 метра, тогда велика вероятность, что в занавешенном состоянии у вас будут просветы все по той же причине, ткань драпируется даже в натянутом состоянии.
Придется взять ткани больше сантиметров на 20 — 30 на этот случай.
Совет дизайнера:
Такие шторы нужно сделать функциональными, поэтому, мы с вами не сможем ее собрать ни на складку, ни на сборку. В раскрытом состоянии, в дневное время, шторы висят по простенкам в свободном, можно сказать хаотичном, состоянии.
Для того, чтобы придать интересную форму вашим шторам в дневном режиме, приобретите подхваты — магниты.
Они помогут легко задрапировать ваши шторы утром и также легко снимутся вечером. Вам даже не потребуется монтировать стеновой крючок для подхвата. Они притягиваются сами к себе магнитом и шторы можно декорировать на любом уровне по высоте.
Ширина штор
Норма ширины штор
Еще с давних времен, минимальным наполнением штор считалось наполнение 1:1.5. Можно взять это требование за основу, сшить шторы с таким наполнением, а уже потом, когда ваши шторы будут висеть на окне, вы увидите, какое наполнение штор достойно вашего окна.
Ошибка в расчетах ширины штор
Что делать, если вы ошиблись в расчетах, а шторы уже висят?
Не расстраивайтесь, всегда есть выход. Дополните ваши шторы контрастной портьерой в дополнение, и ваш декор заиграет новыми красками, добавит изюминки вашему интерьеру.
Если у вас две портьеры, дополните их небольшими планками. Такие шторы будут выглядеть завершенными элементами, и никто не догадается, что вы их комбинировали в безвыходной ситуации.
Ширина штор
Ширина штор
Ещё о комбинированных портьерах можно прочесть здесь.
А как вы рассчитываете обычно ширину штор? Поделитесь своими советами с читателями.
Вам понравилась статья?
Подписывайтесь на рассылку, делитесь статьей с друзьями в социальных сетях, оставляйте комментарии.
Также по этой теме:
размеры, крепления, материалы, фактуры и типы ткани
Подбирая шторы на окна, обычно сначала обращают внимание на цвет и дизайн, а потом уже на технические характеристики. Мы же предлагаем в первую очередь разобраться с технической стороной вопроса. Тогда вы сможете сразу рассматривать только подходящие варианты и не тратить время впустую.
Мы занимаемся разработкой и производством текстиля для дома 5 лет. За это время накопили приличный багаж знаний по тому какие шторы бывают и какими свойствами обладают. Также мы изучили запросы и отзывы наших покупателей, которые помогли нам определить основные проблемы при выборе и эксплуатации штор. На основе всего этого и был составлен наш гид по подбору.
Мы не будем рассматривать все виды штор, а только те, что представлены в нашем каталоге — прямые в пол. Так как достоверно и емко знаем только про то, чем занимаемся сами.
Такой тип еще называют классическими, гардинами и портьерами. Стандартно их размещают в спальню, гостиную или зал, но иногда их можно увидеть на кухне, балконе и прочих помещениях в доме.
В гиде разберем детально следующие вопросы:
- Как подобрать размер и какие варианты есть у нас? Что сначала: карниз или штора? Как снимать мерки и что стоит учесть?
- Как крепятся наши шторы? Про наши крепления и их способы установки.
- Какие материалы штор используем мы и почему? Про синтетическую основу и смесовые ткани.
- Какие бывают фактуры, типы ткани и рисунка? Наши примеры. Про жаккард, блэкаут, вышивку и другие
По итогу мы сформируем чек-лист по выбору штор и свои рекомендации, которые помогут быстро и уверенно ориентироваться в каталоге. Чек-лист будет ждать вас в конце гида.
Как подобрать размер?
Мерить размер штор нужно после установки карниза.
От его конфигурации зависит то, какие варианты оформления окон вам подойдут. Потолочный и настенный карниз может состоять из нескольких рядов для одновременной установки тюля и занавесок, а может иметь одну штангу, струну или шину.
Шторы
Naturel установлены на струнный карниз при помощи крючков.
Если карниз установлен
То все совсем просто. Измеряем длину карниза и расстояние от пола до карниза.
Если карниза нет
То нужно предварительно выполнить несколько пунктов:
Определитесь с желаемым типом оформления окна
Хотите шторы от потолка до пола? Или планируете закрыть шторами все пространство от стены до стены? А если нужно только закрыть окно, то насколько? Тут выбор зависит от вкусовых предпочтений, высоты потолка, габаритов комнаты.
По месту размещения есть несколько стандартных правил, которые стоит учесть:
-
Если длина карниза без наконечников будет шире окна минимум по 30 см с каждой стороны, шторы будет удобно отодвинуть в стороны, впустив в помещение больше естественного света, а при закрытии окон просветы по краям будут минимальными.
-
Оптимальная высота настенного карниза: 1/3 расстояния от потолка до верхнего проема окна. Иными словами, делим это расстояние на 3 части. Расположение карниза на верхней части ближе к потолку позволит зрительно увеличить пространство.
Выберите и установите подходящий карниз
Потолочный, настенный, скрытый или штанга, струнный, профильный и так далее.
Далее измеряем длину карниза и расстояние от пола до карниза соответственно
Важно! Делайте замеры по левой и правой стороне окна. Никто не может похвастаться идеально ровными стенами и полом. Будет неприятно в дальнейшем обнаружить перекос. Обратите внимание и на нагрузку, которую может выдержать место размещения карниза и сам карниз. Если планируете повесить тяжелые портьеры, то стоит позаботиться о дополнительном усилении стены/потолка и выбрать карниз из прочного материала.
Габариты есть, что дальше? А дальше мы также отталкиваемся от предпочтений по оформлению. Шторы могут висеть почти вплотную к полу или лежать на полу. Могут висеть плотными фалдами или легкой волной.
Выбираем длину штор
Если хотите, чтобы шторы висели, то отнимите 1-3 см от предыдущих измерений по длине. Если не уверены в ровности пола, то лучше отступить 3-4 см. Чем больше отступ, тем меньше полотно соберет пыли.
Если хотите, чтобы шторы лежали на полу, то наоборот прибавьте к длине 20-30 см. В этом случае также учитывайте плотность материала штор — чем легче и мягче ткань, тем лучше она драпируется.
Полотно шторы
New Pink на 1-2 см выше уровня пола.
Полотно шторы
Naturel ниже уровня пола. Ткань аккуратно собрана в клубок.
Выбираем ширину штор
Касаемо ширины, учтите дополнительный запас ткани на складки.
Если не планируете вешать штору фалдами, а просто хотите закрыть окно, то суммарная ширина штор должна быть больше ширины окна на 60-70 см. Так вы сможете при желании полностью зашторить окно без просветов по краям и между шторами.
Если планируете формировать большое количество складок, то для плотных тканей суммарная ширина должна быть больше в 2-2,5 раза, легкие полотна — в 3 раза шире окна или расстояния, которое хотите закрыть шторами.
Имея показатели ширины и высоты желаемых штор, можно обратиться за услугами индивидуального пошива в ателье или купить готовые.
Готовые шторы
Boho с креплением, размер: 200х270 см.
В нашем магазине представлены готовые шторы следующих размеров (ШхД):
Готовые шторы производители стараются делать максимально длинными с учетом технических ограничений, ценовой политики и востребованности. Мы одни из таких. В промышленных масштабах мы способны предложить тот или иной дизайн по оптимальной цене и вам не придется выбирать ткань, выбирать крепление, обшивать края.
Но, возможно, придется обрезать полотна по длине или подгибать, используя клеевую тесьму. Последний вариант подойдет только для легких тканей.
Тип крепления будущей шторы на карниз также может повлиять на выбор размера. Подробнее про крепления далее.
Как крепить шторы? Разбираемся со способами крепления
На рынке существуют множество типов креплений. Для наших портьер мы используем сразу два: кулиска и шторная лента. Причина тому — универсальность. Независимо от карниза и способа крепления к нему, полотно можно повесить одним из способов. Продев карниз через «шторный карман» или с помощью крючков, зацепив за петли шторной ленты.
Крепление на кулиске. Карниз диаметром не более 3,5 см продевается через шторный «карман».
Крепление на шторной ленте шириной 7 см с петлями в 3 ряда. Крючки продеваются через петли на ленте. В зависимости от выбора ряда петель можно незначительно регулировать высоту штор до 4 см, скрыть или открыть крепления.
Установите крючки в каждую петлю на расстоянии 3,5 см или с шагом объединяя петли для создания драпировки.
Крепежи для шторной ленты могут быть разные. Пластиковые или металлические, крючки или зажимы. Для более плотных штор лучше использовать металлические во избежание деформации креплений.
При креплении шторы на «крокодильчики» за край полотна со шторной лентой, ткань не деформируется со временем.
Еще один плюс шторной ленты — возможность легко моделировать складки. С помощью продольных нитей на ленте можно фиксировать ширину полотна, создав карандашные складки. Потяните за нити, равномерно расправьте складки и зафиксируйте результат узлом. Такой способ позволяет создать аккуратные складки.
Какие материалы штор используем мы и почему?
Для своих штор мы выбрали полиэстер, потому как его свойства лучшим образом проявляют себя в быту. В зависимости от способа обработки нити и присутствия в составе натуральных волокон, шторы обладают определенными свойствами, тактильными ощущениями и визуальным эффектом.
Разделяем состав полотна на две категории:
Шторы из 100% полиэстера. Износостойкие и просты в уходе. Могут быть разных фактур. Шторы типа блэкаут способны блокировать свет.
Шторы с добавлением хлопка. Состав: 15% — хлопок; 85% — полиэстер. Полиэфирные волокна в составе делают изделие износостойким и простым в уходе, хлопок придает натуральную фактуру и мягкость
Шторы с добавлением льна. Состав: 20% — лен; 80% — полиэстер. Полиэфирные волокна (полиэстер) в составе делают изделие износостойким, простым в уходе и нивелируют природную жесткость льна. При этом лен сохраняет свои антибактериальные свойства и создает натуральную фактуру.
Как видите, в основе любых наших занавесок на окна использован полиэстер. Ткань не дает усадки после первой стирки. Уход за ними прост и предполагает ручную или машинную стирку при температуре до 30°С. Полотна можно гладить при температуре до 110°С. Не рекомендуем сушить в барабане и отбеливать.
Химчистка допустима в деликатном режиме.
Полиэстер в народе незаслуженно наделен негативными характеристиками. Разбираемся как материал ведет себя в быту:
Плюсы
- Прочная и износостойкая ткань, не деформируется после многих стирок;
- Устойчивая к свету и температуре. Такие шторы не выгорают и не выцветают, даже в самой солнечной комнате при использовании качественных красителей;
- Ткань грязеустойчивая, а значит не придется часто стирать;
- Материал легче натуральных тканей, а значит создает меньшую нагрузку на карниз;
- Ткань хорошо имитирует разную фактуру;
- Простота в уходе. Легко стирается, быстро сохнет и почти не мнется. Влажные шторы можно сразу повесить на окно, под собственным весом они расправятся сами;
- Не скатывается;
- Полиэстер хорошо справляется со светопоглощением. Шторы из 100% полиэфирных волокон затемняют комнату лучше по сравнению со шторами натурального состава подобных фактур.

Минусы
- Имеет синтетический блеск в зависимости от типа ткани;
- Свойство накапливать статическое электричество.
Плюсы в быту незаменимы и способны нивелировать минусы.
Фактуры, типы ткани и рисунка
В зависимости от способов обработки нитей можно получить ткани разного типа с определенной фактурой и свойством.
Жаккард — это тип ткани, при котором рисунок формируется за счет переплетения нитей. Позволяет создавать целостные, рельефные изображения на ткани за счет чередования нитей разных фактур, цветов и комбинирования разных типов плетения. Ткань может быть выполнена из нитей одного цвета, но чаще всего используют разные цвета, что придает рисунку контраст и объем. Оборотная сторона жаккардовой ткани является инверсией лицевой (по принципу позитива и негатива в фотографии). Это сложный и дорогостоящий тип ткани. Помимо эстетических и тактильных качеств отличается особой прочностью.
Пример штор с жаккардовым рисунком
Печать
Самый распространенный способ нанесения изображения на ткань. При правильном уходе краска не тускнеет после стирок и не выгорает на солнце. В нашем каталоге представлены как многоцветные портьеры с детализированным рисунком, так и геометрические принты нанесенные золотой и серебряной краской.
Пример штор с печатным рисунком
Бархат
Плотная ткань с коротким ворсом, что делает ее особенно приятной на ощупь. Бархат обладает свойствами частично поглощать шум и свет. В нашем каталоге эти шторы представлены с тисненым рисунком.
Пример бархатных штор
Вышивка
Рисунок нанесен на вышивальном оборудовании. Декоративный элемент не портится после стирок.
Пример штор с вышивкой
Тиснение
Рисунок наносится при помощи клише под высокой температурой. Благодаря чему рельеф сохраняется после множества стирок.
Пример штор с тисненым рисунком
Люрекс
Металлизированная нить пронизывающая ткань, придает полотну сияние. Иногда люрекс добавляют в нити для вышивки.
Пример штор с люрексом
С добавлением льна и хлопка
Полотно имеет приятные тактильные ощущения и натуральную фактуру нитей. Шторы нашего каталога производятся из переработанных материалов.
Пример штор с добавлением натуральных материалов
Блэкаут (димаут)
В производстве ткани используют сложное сплетение из трех нитей. Внешние слои ткани остаются декоративными, внутренний слой состоит из черных нитей огнезащитного полиэфирного волокна, благодаря которым ткань практически не пропускает свет. Такие шторы более плотные и могут влиять на температурный режим помещения, что делает их более дорогостоящими в производстве. Светоблокирующая способность не влияет на декоративность штор. Рисунок и фактура могут быть разной.
Обратная сторона штор остается эстетически приятной. Темные нити незаметны.
Пример затемняющих штор
С технической точки зрения, шторы блэкаут нашего магазина правильней будет назвать — димаут. Отличие от блэкаут заключается в отсутствие прорезиненной подложки с оборотной стороны полотна, обладающей 100% светоблокирующей функцией. Наши занавески блокируют свет на 80%. Но, так как термин dimout мало знаком большинству людей, мы все же называем шторы blackout. И те, и другие занавески являются хорошим вариантом для любителей поспать подольше в темноте.
Наши шторы блэкаут (димаут) при плотном прилегании к окну, частично пропускают свет и частично подавляют шум. Цвет штор на просвет не меняется, в отличие от штор без светоблокирующей функции. На фото шторы
Oasis.
В зависимости от плотности ткани и способа плетения нити, шторы без светоблокирующих свойств пропускают свет и даже могут менять оттенок на просвет. На фото шторы
Naturel.
У нас есть отдельная
статья про шторы блэкаут. Рассказываем, почему хорошо спать в полной темноте.
Для закрепления знаний составили финальный чек-лист по подбору готовых штор:
-
Карниз уже установлен: учитываем его габариты и нагрузку. Карниз не установлен: определяемся с типом штор, подбираем конфигурацию карниза, выбираем расположение, производим замеры, устанавливаем; -
Подбираем длину штор относительно пола; -
Определяем ширину штор и кол-во полотен; -
Выбираем тип крепления: шторная лента или кулиска; -
Подбираем крепеж в варианте со шторной лентой; -
Выбираем состав полотна; -
Определяемся с типом ткани и фактурой, выбираем рисунок.
И напоследок, наши рекомендации, которые предостерегут вас от негативного опыта при покупке штор:
Проверяйте, как ведет себя ткань при естественном освещении на просвет и при вечернем, когда свет падает на нее. На просвет ткань может менять цвет и интенсивность рисунка. Искусственное освещение также способно увести оттенок в холодную или теплую гамму;
Заказывайте шторы в интернет-магазинах с доставкой на дом. В конкретном помещении будет проще сразу оценить насколько данный аксессуар вписывается в ваш интерьер.
Теперь вы знаете больше и можете приступать к выбору и покупке подходящих штор на окна.
Как измерить окна для штор
«,» tooltipToggleOffText «:» Переключите переключатель, чтобы получить
БЕСПЛАТНУЮ доставку на следующий день!
«,» tooltipDuration «:» 5 «,» tempUnavailableMessage «:» Скоро вернусь! «,» TempUnavailableTooltipText «:»
Мы прилагаем все усилия, чтобы снова начать работу.
- Временно приостановлено в связи с высоким спросом.
- Продолжайте проверять наличие.
«,» hightlightTwoDayDelivery «:» false «,» locationAlwaysElhibited «:» false «,» implicitOptin «:» false «,» highlightTwoDayDelivery «:» false «,» isTwoDayDeliveryTextEnabled «:» false «,» useTestingApi » «,» ndCookieExpirationTime «:» 30 «},» typeahead «: {» debounceTime «:» 100 «,» isHighlightTypeahead «:» true «,» shouldApplyBiggerFontSizeAndCursorWithPadding «:» true «,» isBackgroundGreyoutEnabled} «:» false » locationApi «: {» locationUrl «:» https: // www.walmart.com/account/api/location»,»hubStorePages»:»home,search,browse»,»enableHubStore»:»false»},»perimeterX»:{«isEnabled»:»true»},»oneApp «: {«drop2»: «true», «hfdrop2»: «true», «heartingCacheDuration»: «60000», «hearting»: «true»}, «feedback»: {«showFeedbackSuccessSnackbar»: «true», «feedbackSnackbarDuration» : «3000»}, «webWorker»: {«enableGetAll»: «false», «getAllTtl»: «
0″}, «search»: {«searchUrl»: «/ search /», «enabled»: «false» , «tooltipText»: «
Скажите нам, что вам нужно
«, «tooltipDuration»: 5000, «nudgeTimePeriod»: 10000}}}, «uiConfig»: {«webappPrefix»: «», «artifactId»: «верхний колонтитул -app «,» applicationVersion «:» 20.
0.52 «,» applicationSha «:» 2b2fa7ae7cc148e01ffe2ff445132d34fe71577a «,» applicationName «:» header-footer «,» node «:» 18412a6c-0ef7-4737-85c4-3130e7e8ccb5 «,» cloud «-a13-prod oneOpsEnv «:» prod-a «,» profile «:» PROD «,» basePath «:» / globalnav «,» origin «:» https://www.walmart.com «,» apiPath «:» / header- нижний колонтитул / электрод / api «,» loggerUrl «:» / заголовок-нижний колонтитул / электрод / api / logger «,» storeFinderApi «: {» storeFinderUrl «:» / store / ajax / preferred-flyout «},» searchTypeAheadApi «: { «searchTypeAheadUrl»: «/ search / autocomplete / v1 /», «enableUpdate»: false, «typeaheadApiUrl»: «/ typeahead / v2 / complete», «taSkipProxy»: false}, «emailSignupApi»: {«emailSignupUrl»: » / account / electro / account / api / subscribe «},» feedbackApi «: {» fixedFeedbackSubmitUrl «:» / customer-survey / submit «},» logging «: {» logInterval «: 1000,» isLoggingAPIEnabled «: true,» isQuimbyLoggingFetchEnabled «: true,» isLoggingFetchEnabled «: true,» isLoggingCacheStatsEnabled «: true},» env «:» production «},» envInfo «: {» APP_SHA «:» 2b2fa7ae7cc148e01ERS2ff4451 «APP:0.
52-2b2fa7 «},» expoCookies «: {}}
Как измерить шторы и портьеры
Покупка новых штор и драпировок для дома — занятие увлекательное. От выбора стиля и дизайна для улучшения внешнего вида комнаты до просмотра трансформации вашего дома — на протяжении всего проекта есть на что рассчитывать. Однако выбор размера штор или драпировок является наиболее важным шагом в процессе покупки.
Чтобы помочь вам понять, как измерить портьеры и занавески, мы создали это простое пошаговое руководство, которое поможет вам подобрать идеальный размер.Читайте дальше, чтобы узнать, как измерить окна для штор!
Что нужно измерить для портьер
Прежде чем измерять шторы и портьеры, убедитесь, что у вас есть необходимые инструменты и ресурсы, чтобы максимально упростить этот процесс. Это обеспечит точность и эффективность ваших измерений. Вот что вам нужно иметь под рукой, прежде чем измерять окна для штор:
- Рулетка стальная
- Табурет лестница или стремянка
- Бумага и карандаш
Измерение штор и портьер
Измерение драпировки может быть простым процессом, если вы выполните следующие действия.
Приведенные ниже инструкции помогут вам точно измерить размер штор, чтобы подобрать наиболее подходящую для вашего окна.
Шаг 1. Выберите одну панель или пару
Перед тем, как начать процесс измерения, важно решить, будет ли ваша драпировка состоять из одной панели, покрывающей весь промежуток окна, или пары панелей, которые будут встречаться в середине окна. Каждый вариант предлагает уникальный эстетический дизайн, поэтому определите, хотите ли вы одинарные или двойные панели, прежде чем выбирать ткань.
Чтобы помочь вам сделать выбор между двумя вариантами, вот основные преимущества и определяющие особенности одинарных штор по сравнению с парными драпировками:
Однослойная драпировка
- Предназначен для покрытия всего пролета или как декоративная стационарная панель
- Сводится в сторону для создания стильного эффекта
- Отлично подходит для угловых окон
Драпировочная пара
- Вешается по обе стороны окна и близко к середине
- Рекомендуется для прозрачных тканей и многослойных тканей
В зависимости от того, какой вариант вы выберете, процесс измерения штор будет разным.
Если вы выберете однопанельные шторы, вам следует измерить всю длину окна. Если вы выберете пару панелей для драпировки, вы измерите полную длину окна, разделенную на два. Однако если вам нужна «неравная пара», вам нужно будет заказывать каждую панель отдельно как отдельные панели.
Шаг 2: Выберите общую ширину покрытия драпировки
После выбора между одинарными или двойными шторами вам необходимо измерить ширину области, которую вы хотите закрыть: это будет ширина для заказа . Если вы уже выбрали оборудование и драпировка должна быть работоспособной (открывать и закрывать), общая ширина покрытия должна равняться тому же пролету слева направо, что и оборудование.
Совет эксперта : По возможности мы рекомендуем выступать от краев окон или дверей на 6–12 дюймов с каждой стороны. Это поможет сделать пространство больше, а также сохранит как можно больше естественного света, когда панели драпировки открыты. Этот совет применим также к измерению штор со складками.
Шаг 3. Выберите длину готовой драпировки
Последний шаг в процессе — выбор длины готовой драпировки. Для этого возьмите мерную ленту. Для драпировки для настенного крепления измеряйте расстояние от верхней части того места, где вы будете крепить фурнитуру к полу. Для потолочных штор и штор измерьте расстояние от потолка до пола.
Совет эксперта: В зависимости от выбранного вами уникального стиля драпировки могут быть другие факторы, которые следует учитывать при ваших измерениях.Например, если вы хотите, чтобы ваши шторы были «лужами», то практическое правило — добавить 1–4 дюйма к длине ваших мерок. Для любых штор, которые будут часто открываться и закрываться, вычтите ½ дюйма для зазора до пола, чтобы избежать перетаскивания и износа. Наконец, если у вас неровный пол, убедитесь, что вы сделали небольшой перерыв (”- ¾”) или лужу (1–4 дюйма), чтобы закрыть любые щели в полу.
Экономьте время и подпишитесь на бесплатное измерение сегодня!
Точное измерение — самый важный шаг перед заказом новых оконных штор.
Следуйте этим инструкциям, чтобы убедиться, что ваши измерения верны. Однако, если вы действительно хотите обеспечить идеальную посадку, изготовление драпировки на заказ — лучший способ получить именно то, что вам нужно. Магазин Shade Store предлагает бесплатные профессиональные измерения по всей стране. Воспользуйтесь этой услугой и зарегистрируйтесь для бесплатного измерения сегодня!
8 шагов для измерения окна для штор
Правильный размер окон имеет жизненно важное значение, если ваши шторы будут хорошо выглядеть.Но как убедиться, что все сделано правильно?
Мы здесь, чтобы помочь вам шаг за шагом пройти весь процесс! Читайте наше руководство, как измерить окно для штор. А когда вы закончите, вы сможете с уверенностью покупать новые шторы!
Итак, приступим…
Инструменты для измерения размеров штор
- Рулетка металлическая
- Ручка и карандаш (или смартфон с приложением для заметок)
- Если есть возможность, друг в помощь
Как измерить окно для штор
youtube.com/embed/aXcx6BG1tdQ» frameborder=»0″ allowfullscreen=»allowfullscreen»>
Шаг 1. Определитесь, какие занавески вам нужны
Стиль купленных вами штор будет влиять как на ваши размеры, так и на тип опоры или дорожки, которые вам нужны.Вот почему лучше выбрать это в первую очередь.
Шторы с проушинами имеют ряд проушин вверху, и их необходимо подвешивать к карнизу. Шест продевается через проушины, поэтому должен быть достаточно тонким, чтобы его можно было удобно разместить.
Гофрированные шторы, напротив, подвешиваются на кольцах на шесте или на крючках на направляющих.
Есть два основных типа плиссированных штор: складки и карандаш. Складки шире, а складки ткани в верхней части занавески имеют форму кубков.(По этой причине их также иногда называют складками-бокалами.)
И, наконец, занавески с волнами. Для этого требуется специальный рельс, поставляемый вместе со шторами. Их измерение немного отличается, и процесс описан на этапах с 6 по 8.
Вам также нужно будет решить, покупать ли шторы или делать их самостоятельно. Если вы покупаете их, ознакомьтесь с инструкциями по измерению, предоставленными продавцом.
Совет от профессионала: При выборе штор учитывайте общий вид вашей комнаты.Шторы с люверсами и волнами придают современный вид, а складки — более классические.
Шаг 2. Измерьте ширину карниза для штор или направляющей
Когда дело доходит до ширины штор, ключевым параметром измерения является карниз или направляющая.
Если у вас есть карниз, то желаемое измерение — это отрезок между наконечниками. Если вместо наконечников есть заглушки, измерьте расстояние между ними.
Если ваши шторы будут свисать с направляющей, измерьте полную ширину направляющей.Некоторые треки будут перекрываться. Если у вас есть, включите в свои измерения ширину перекрытия.
Если возможно, попросите друга подержать другой конец измерительной ленты.
Это гарантирует, что он остается параллельным рельсу или шесту, сохраняя точность измерения.
Запишите ширину.
Совет для профессионалов: Проверьте свои измерения еще раз, чтобы убедиться в отсутствии ошибок.
Шаг 3: Добавьте дополнительную ширину
Если вы покупаете готовые занавески, ширина, которую вы измерили на шаге 3, может соответствовать ширине, которую вам нужно купить.Но так бывает не всегда.
Готовые шторы со складками изготавливаются из дополнительной ткани, поэтому складки добавляют объем при закрытых шторах. Если вы купите пару штор шириной 48 дюймов, они закроют окно шириной 48 дюймов.
Но вы также должны учитывать перекрытие при закрытых шторах. Для удобной посадки без зазоров мы рекомендуем добавить к размеру дополнительные 12 дюймов.
И если вы покупаете плоскую шторную панель — например, вуаль — вам не нужно, чтобы она висела полностью плоской.
Добавьте полноты, по крайней мере, удвоив размер, который вы сделали на шаге 2, чтобы получить желаемую ширину панели. Для более роскошного вида вы можете даже утроить размер.
Если вы шьете шторы самостоятельно, вам также понадобится дополнительная ткань. Сколько еще будет, зависит от того, будете ли вы делать шторы с прорезями, складками или карандашными складками. И если ваши шторы будут с рисунком, вам также нужно будет учесть повтор рисунка.
Шаг 4. Определитесь с длиной занавески
А теперь подумайте, какой длины должны быть ваши шторы.Шторы в пол могут выглядеть роскошно и эффектно. Но если у вас под окнами установлены радиаторы или мебель, они могут оказаться непрактичными.
Занавески, которые падают на подоконник, легче снимать и чистить. А если вы собираетесь выбрать плотную ткань для штор, они меньше нагружают дорожку или шест.
Вы также можете выбрать, заканчивать ли шторы на подоконнике или чуть выше него. Занавески, которые заканчиваются сверху, не будут изнашиваться внизу, когда они будут задвинуты на место.
Те, которые заканчиваются чуть ниже, будут лучше изолировать вашу комнату.
Шаг 5: Измерьте необходимое падение завесы
Если вы устанавливаете новый карниз для штор или столб, убедитесь, что он на месте, прежде чем выполнять этот шаг. Это гарантирует, что вы получите точное измерение.
Если вы хотите, чтобы ваши шторы были длиной до пола, они должны быть на высоте около 0,6 дюйма над полом. Ваш глаз не заметит разницы, но это предотвратит их перетаскивание и повреждение по нижнему краю.
По той же причине шторы, предназначенные для отделки подоконника, должны находиться примерно на 0,6 дюйма выше него.
Если ваши шторы собираются закончить чуть ниже подоконника, они должны быть на 6 или 7 дюймов ниже него. В качестве альтернативы, если под окном стоит радиатор, они должны быть на дюйм выше него.
Если вы используете карниз для штор, измерьте расстояние от верха пути. Вам нужна длина оттуда до нижней части штор.
Если вы используете карниз и выбрали плиссированные шторы, решите, хотите ли вы, чтобы кольца были видны.
Если вы хотите, чтобы они отображались, начните измерение с нижней части кольца. Если вы предпочитаете, чтобы они были закрыты, вместо этого измеряйте от верха колец.
Если вы собираетесь использовать занавески с проушинами, измерьте длину от верха стойки.
Теперь, когда у вас есть шторы по всей ширине, вы готовы отправиться за покупками!
Совет для профессионалов: Если вы собираетесь изготавливать занавески с проушинами самостоятельно, добавьте к длине дополнительные 1,25 дюйма.В результате над петелькой останется небольшое количество ткани. Если вы покупаете их на заказ, большинство производителей добавят это автоматически, но для уверенности проверьте их рекомендации по измерению.
Для измерения размеров волновых штор
Шаг 6: Выберите, хотите ли вы, чтобы ваши шторы вписывались в оконную нишу или за ее пределами.
Чтобы получить точные размеры волновых штор, сначала решите, где вы хотите их повесить.
Обычно рекомендуется сесть за окном.Это будет наиболее эффективно блокировать свет, и вы получите максимальную изоляцию от ваших штор.
Но если это непрактично, занавески с волнами будут так же хорошо смотреться внутри ниши.
Шаг 7. Измерьте ширину штор.
Первым делом нужно измерить оконную нишу.
Если ваши шторы будут висеть снаружи, вам понадобится только одно измерение ширины. Просто убедитесь, что ваша металлическая измерительная лента ровная во время измерения.Теперь решите, какой объем перекрытия вы хотите получить по бокам. Добавьте дополнительные, чтобы учесть это.
Если вы хотите, чтобы шторы висели внутри ниши, измерьте ширину вверху, посередине и внизу. Запишите самое узкое из измерений. Сколько вычесть из этого, производитель выберет, чтобы шторы комфортно сидели.
Совет для профессионалов: Для эркерных окон волновые шторы должны закрываться прямо через залив. Выполните тот же процесс, что и при развешивании штор за оконной нишей, рассматривая весь пролив как нишу.
Шаг 8: Измерьте падение
Теперь измерьте расстояние от верха до низа выемки. Если ваши шторы будут висеть внутри него, снова измерьте в трех местах и выберите наименьшее измерение. Как и в случае с шириной, производитель сделает из нее небольшой вычет, чтобы шторы подходили по размеру.
Если ваши шторы будут выступать за выемку, добавьте шесть дюймов к полученному вами размеру. Этим объясняется перекрытие в верхней части выемки.Теперь решите, насколько вы хотите, чтобы шторы перекрывали нижнюю часть. Добавьте и эту сумму. Это даст вам окончательное измерение падения занавески.
Дополнительные наконечники
Если у вашего окна еще нет карниза для штор или направляющей, вам нужно будет купить ее подходящего размера.
Возьмите рулетку и измерьте ширину окна. Если можете, попросите друга помочь убедиться, что лента остается ровной. Запишите измерение.
Теперь добавьте от 12 до 14 дюймов к ширине.Если вы покупаете карниз для штор, то ширина должна быть именно такой.
Если вы выбираете карниз для штор, это ширина карниза между любыми наконечниками или заглушками.
Дополнительная ширина позволит вашей занавесочной дорожке или штанге выступать над окном на 6-7 дюймов с каждой стороны. Это будет означать, что у вас будет место, чтобы полностью открыть шторы и пропустить как можно больше света.
При установке карниза для штор поместите его примерно на 6 дюймов над окном.
Время новых штор!
Надеемся, вам понравилось наше руководство по измерению размеров окна для штор.Внимательно проверьте свои мерки, и вы не потратите много денег на шторы, которые вам не подходят! И не забудьте добавить дополнительную ширину для перекрытий.
Если вы нашли это полезным, прокомментируйте и дайте нам знать. Нам бы очень хотелось услышать, как прошел ваш проект!
Как измерить занавески? размер штор на заказ по сравнению с размерами окон — Loft Curtains
Какой ширины должны быть шторы?
Чтобы панели штор в закрытом состоянии выглядели просторными, их общая ширина должна составлять 2 к 2.
5 раз ширины окна / штанги. Это означает, что если вы заказываете G rommet style или R od-pocket style , общая ширина драпировки должна быть как минимум в 2 раза больше ширины окна / штанги.
French плиссе и Tailored плиссе Панели имеют 2: 1 до 2.2: 1 заполненности , поэтому, если вы заказываете французскую плиссировку или Tailored плиссировку в стиле заголовка, вам следует заказывать панели, которые соответствовать ширине окна (штанги).Они красиво закроют ваше окно.
Занавески в стиле складчатой ряби имеют от 1,6x до 2,4x встроенная полнота , вы можете заказать стиль складывания ряби на странице нестандартных штор. Обязательно введите ширину покрытия (ширину гусеницы / штанги).
Исключения: если вы вешаете шторы только для обрамления окна и не собираетесь их закрывать, можно округлить ширину в 1,5 раза в меньшую сторону.
Ширина задней части стопки
Какой длины должны быть шторы?
На этот вопрос нет правильного и неправильного ответа.Основное правило гласит, что всегда лучше подниматься выше и во всю длину, независимо от размера ваших окон.
Где должны быть верхушки штор?
Дорожки
выглядят лучше всего, когда они крепятся непосредственно к потолку. Они отлично сочетаются со шторами в полный рост. Между потолком и окном обычно монтируют штанги. Если вам сложно решить, куда идти. Следуйте правилу третей.
Где должны быть днища штор?
- Парящий над полом. Создает «дышащий» парящий вид. Если вы хотите, чтобы шторы были прямыми, это лучший вариант.
- Просто ударился об пол. Трудно сделать правильно, но он создает индивидуальный классический и индивидуальный образ.
- Лужа. Панели доходят до пола на один — три дюйма.
Он добавляет пространству уюта. Это лучший вариант для тех, кто ищет европейский стиль и романтическую атмосферу. Еще одним преимуществом выбора является то, что вам не нужно беспокоиться о точном измерении длины.Обратной стороной является необходимость в высоком уходе, и если у вас есть домашние животные, это может быть не лучший выбор.
Измерьте расстояние от пола до места, где вы будете вешать стержень, затем округлите вверх. При необходимости вы всегда можете попросить химчистку немного подшить их. Изготовленные на заказ панели идеально подходят для очень больших окон и для создания индивидуального внешнего вида.
Как измерить шторы / блог Home Focus
Мерка для штор — немного курицы и яйца; ты должен сначала поднять свой шест? Стоит ли измерять голое окно? Я здесь, чтобы сказать вам, что любое из них нормально, если вы понимаете, что делаете.
В идеальном мире при измерении штор вы должны начинать с чистого листа; окно без стойки / перил, но иногда оно уже есть, и вам нужно решить, какой размер купить.
Я говорю, что в идеальном мире, потому что вы всегда можете повесить шест к вашим шторам, но если шторы имеют только 229 см перепад, а вы уже повесили свой шест на 235 см над землей, вы довольно снукер. Вскоре я объясню, что делать в каждом конкретном случае, но сначала позвольте мне дать вам несколько советов, которыми можно руководствоваться при измерении для ваших штор
.
Мой первый и самый важный совет при измерении штор — использовать металлическую рулетку.Я много лет проработал в магазинах Home Focus / Hickeys и видел всякие безумные вещи; куски веревки, кусочки шерсти, полиэтиленовые пакеты и тот печально известный случай, когда женщина сказала мне, что ее окно в полтора раза длиннее ее руки !! Позвольте мне сказать вам, люди, эти штуки растягиваются или выглядят странно и могут привести к неточным измерениям.
Второе предложение, которое я предлагаю при измерении штор, — использовать то, что вы знаете; если вам удобны дюймы, используйте дюймы. Столбы и готовые шторы будут иметь размеры, указанные в дюймах и сантиметрах, и, если вы действительно испытываете затруднения, наши сотрудники помогут вам преобразовать их.
Измерение без опоры / направляющей вверх:
Измерьте ширину окна по горизонтали, от штукатурки до штукатурки и сверху вниз. Затем добавьте 6 дюймов (15 см) над окном и 6–10 дюймов (15-25 см) с каждой стороны окна, чтобы учесть размер стойки / поручня. Это необходимо для того, чтобы шторы освещали окно при открытии, обеспечивая максимальное проникновение света в вашу комнату. Обычно чем больше окно, тем шире столб.
Измерение полюсом вверх:
Если у вас есть столб наверху, измерьте ширину столба, не считая наконечников (концов), измерьте падение непосредственно под столбом до того места, где вы хотите, чтобы занавески падали.
Измерение с рейкой вверх:
Если у вас есть перила вверх, измерьте ширину перил, включая любые перекрытия или обратные пути, измерьте падение от верха перил до того места, где вы хотите, чтобы занавески падали.
Если вы думаете о производстве штор на заказ, остановитесь здесь и посетите ближайший магазин, вооружившись этой информацией.
Если вы собираетесь купить занавески Ready Made, читайте дальше:
Итак, теперь, когда мы выяснили, какого размера может быть наш столб / поручень, нам нужно выяснить, какой размер шторы покупать.Не вдаваясь в подробности, вы хотите, чтобы ваши шторы были примерно в два раза шире вашего шеста / перил, это в основном для того, чтобы они были красиво собраны и выглядели наилучшим образом.
Используйте небольшую удобную таблицу ниже, чтобы определить, какая ширина вам нужна:
Теперь, когда вы знаете ширину, перепад — более очевидная перспектива: вы можете повесить шторы чуть ниже подоконника, на батарею отопления или на пол. Я перечислил стандартные размеры в таблице ниже, так что вам остается только выбрать, какой из них ближе всего к желаемой дропе.
Давайте сделаем реальный пример измерения для штор:
Возьмите это окно в нашей тренировочной комнате здесь:
Я измерил ширину по горизонтали = 43 дюйма (109 см)
Падение к низу = 34,5 дюйма (88 см)
Таким образом, добавляя 6 дюймов (15 см) с каждой стороны, мы оцениваем, что наша шеста должна иметь ширину 55 дюймов (139 см), а добавляя 6 дюймов (15 см) выше, мы получаем 40,5 дюймов (103 см).
Итак, если судить по таблицам, размер наших занавесей должен быть 66 дюймов x 54 дюйма (167 см x 137 см), и вот оно что !!
Теперь вы знаете, какой размер вам нужен, купите наш великолепный ассортимент готовых штор.
Как измерить занавески
Роль штор двояка: во-первых, они являются мощным средством украшения, которое может связать всю комнату вместе, визуально расширить ее, но они также способствуют тому, чтобы помочь вам хорошо выспаться ночью или просто сохранить уединение в вашем собственном доме. . Вот как выбрать идеальный комплект штор для окна:
- Для большей точности используйте металлическую рулетку.
- Измерьте в нескольких точках, потому что подоконники и полы не всегда ровные.
1. Измерьте тягу / направляющую
Начните с измерения ширины вашей удочки / гусеницы без наконечников (декоративных элементов на конце). Если у вас его еще нет, измерьте ширину окна и добавьте к этому числу 12-16 дюймов (30-40 см): стержни / направляющие обычно устанавливаются на расстоянии 6-8 дюймов (15-20 см) от окно по обе стороны.
2. Рассчитайте ширину завесы
Для большинства оконных обработок требуется в 2-3 раза больше материала для достижения надлежащей полноты (также называемый сборкой ).Если вы используете размеры стержня / направляющей как есть, ваши шторы будут закрывать ширину, но ткань будет расплющиваться по всему окну. Чтобы они перекрывали друг друга, добавьте еще 2,5 см к размеру ширины.
Чтобы добиться правильного складывания при закрытой шторке, умножьте ширину штанги / направляющей на два. Для более роскошного вида или если шторы полупрозрачные, умножьте ширину штанги / направляющей на три. Например: если ширина вашей штанги / гусеницы составляет 36 дюймов (91 см), вам понадобятся занавески шириной не менее 72 дюймов (182 см) или две панели для штор по 36 дюймов (91 см).
3. Рассчитать длину завесы (падение)
Теперь, когда вы выбрали нужную ширину, вам нужно решить, какой длины должны быть ваши шторы. Есть три распространенных ниспадающих занавеса: подоконник — заканчивается на расстоянии примерно 1 дюйма (2,5 см) от подоконника, полный — заканчивается на расстоянии примерно 2,5 см от пола, и лужа — простирается примерно на 1-3 дюйма ( 2,5-8 см) на полу.
После того, как вы выберете правильный спуск, измерьте расстояние от вершины стержня / направляющей до того места, где вы хотите, чтобы занавески заканчивались.Если у вас еще не установлена штанга / направляющая, обратите внимание, что они обычно устанавливаются на 4 дюйма (10 см) выше оконной рамы.
Обратите внимание на заголовки! В MagicLinen мы предлагаем четыре разных заголовка штор: верхняя часть, карман для штанги, лента для верхней части (складка карандаша) и завязки. Верхние выступы, карманы для стержней и лента для заголовка входят в длину шторной панели и имеют диаметр примерно 2 дюйма (5 см). Галстуки не входят в указанную длину — длина галстуков в развязанном состоянии составляет 12 дюймов (30 см).
Помимо заголовков, оформленных в разных стилях, мы также предлагаем различные варианты дизайна, в том числе однотонные, двухцветные, с оборкой или отделкой из помпонов. Выберите тот, который лучше всего подходит к вашему интерьеру! Также помните, что мы можем изготовить шторы на заказ по вашим размерам — просто свяжитесь с нами.
Как измерить шторы
Шторы — очень важный элемент в доме, они не только обеспечивают защиту от непогоды и уединение, но также являются отличной возможностью для дизайна интерьера.Однако, чтобы они выглядели наилучшим образом, вам нужно научиться правильно измерять шторы.
Не может быть стандартного правила для измерения штор, так как стиль, внешний вид и тип штор имеют решающее значение. При этом в этом удобном руководстве будут рассмотрены основные параметры, чтобы вы не остались в стороне!
Красивая оконная отделка привносит стиль в ваш дом, но правильные размеры окон и штор жизненно важны для обеспечения наилучшего внешнего вида. Читайте дальше, чтобы узнать, как правильно определить размер штор и создать поистине потрясающий элемент для вашего интерьера.
Начните с выбора способа монтажа
Первый шаг перед тем, как вы начнете измерять занавески, — это выбрать технику крепления, которую вы выберете. Это очень важно, поскольку становится частью вашего измерения. Главное — решить, хотите ли вы установить шторы снаружи или внутри оконной рамы. Эти два варианта создадут две совершенно разные эстетики, поэтому прежде чем делать выбор, рассмотрите их внешний вид.
Эти два варианта можно разбить следующим образом:
1.
Шторы для наружного монтажа
Это наиболее распространенный способ крепления штор. Шторы, установленные за пределами оконной рамы, означают, что штанга прикреплена к стене для поддержки. Этот стиль подвешивания создает иллюзию большего окна, а также обеспечивает полное покрытие, которое гораздо эффективнее блокирует весь естественный свет. Это придаст вашему интерьеру более роскошный вид.
2. Внутренняя установка штор
Немного реже из-за особого внешнего вида, который создает внутреннее крепление, этот метод предусматривает закрепление карниза внутри оконной рамы.Это обеспечивает более минималистичный и обтекаемый вид. Единственный недостаток, который некоторые могут посчитать недостатком, — это то, что шторы, устанавливаемые внутри, не будут полностью блокировать свет. Этот вариант лучше для тех, кто желает добиться современного образа.
Натан Думлао
Далее нужно рассчитать длину стержня
Длина карниза для штор обычно составляет от 3 до 6 дюймов за оконную раму. Однако это будет зависеть от того, где вы будете устанавливать удилище. Варианты установки стержня включают внутри, под или над креплением трима, и все эти варианты по-разному влияют на длину.
Вот соображения, которые необходимо учитывать для каждого варианта:
- Крепление с внутренней отделкой
Если вы стремитесь к более обтекаемому виду с подвесными шторами изнутри оконной рамы, вам понадобятся карнизы с защитными заглушками. Вы можете выбрать подходящую удочку с расширяемой конструкцией, и, в соответствии с современным стилем, вы захотите, чтобы ваша удочка была такой же ширины, как внутренняя часть окна. Вы можете пойти немного шире, если хотите, чтобы шторы выглядели собранными. - Крепление для нижней кромки
Допустим, верхняя часть оконной рамы имеет дизайн или внешний вид, который вам нравится, и который вы хотите, чтобы она оставалась видимой. Установка карниза под обшивкой продемонстрирует мастерство изготовления каркаса без ущерба для конфиденциальности или стиля. В этом случае вы будете нацелены на стержень, который находится на расстоянии 3-5 дюймов за ширину окна с обеих сторон. - Крепление над окантовкой
Чаще всего его размещают на высоте примерно 6–12 дюймов над оконной рамой.Это зависит от доступного пространства между потолком и верхней частью окна. Ваши шторы можно повесить на высоту 20 дюймов над рамой, что придаст длинному виду. Правило — чем шире и выше ваш карниз; тем больше будет ваше окно.
Эта следующая часть также зависит от конкретного дизайна интерьера, который вы собираетесь создать. Выбирая правильную длину, нужно учитывать то, как вы планируете повесить шторы, различные варианты которых создадут разнообразный образ.
Вы можете выбрать из следующего:
- Над подоконником: Обычно на 1 см выше подоконника.
- Под подоконником: шторы, оканчивающиеся примерно на 15 см ниже подоконника.
- Длина до пола: в зависимости от стиля обычно используются шторы, которые заканчиваются на 1 см над полом.
Как измерить ширину и длину
Стандартное правило гласит, что ваши шторы примерно в 1,5–3 раза больше ширины вашего окна. Это может варьироваться в зависимости от выбранной вами полноты и стиля, которого вы хотите достичь.Если вы выбрали более объемные шторы, вы получите более декадентский вид, а шторы меньшей ширины придадут более индивидуальный вид.
При покупке занавесок всегда полезно убедиться, что они идут в паре, если занавески продаются отдельно с помощью «панелей», вам нужно будет вдвое увеличить указанную ширину. Вы можете использовать скатерть или одеяло, чтобы сравнить полные размеры.
Когда дело доходит до измерения длины, вам нужно определить расстояние от нижней части панели до гнезда для удочки.Имейте в виду, что длина, которую вы выберете, будет зависеть от вашего способа подвешивания и желаемого образа. Всегда кладите измерительную ленту в верхний внутренний угол окна или вверху оконной рамы и измеряйте желаемую длину.
Если вы имеете дело с более высоким размещением занавески, вам необходимо отмерить от верхней оконной рамы 20 дюймов, чтобы создать удлиненный вид.
Как измерить проушины штор
Если вы хотите установить шторы с проушинами, их нужно будет повесить на карнизы.Чтобы измерить, просто найдите размер между наконечниками или декоративными краями, которые дадут вам ширину.
Внутренний край проушины устанавливается на 3 см от верха шторы. Учитывайте это при измерении, чтобы шторы не висели слишком коротко. Измерьте расстояние от верха шеста до того места, где вы хотите, чтобы занавески закончились, затем добавьте 3 см сверху.
Например, если готовое падение с вершины шеста составляет 220 см, ваше падение фактически составит 223 см.Итак, вы бы заказали шторы с проушинами 223 см.
Орлова Мария
Часто задаваемые вопросы
Как мне узнать, какой размер шторы купить?
Хотя это в некоторой степени зависит от внешнего вида и стиля штор, к которым вы стремитесь и которые вы используете, для большинства штор и оконных работ требуется в два-три раза больше материала для тех, кто надеется на полноту внешнего вида своей занавески.
Начните с измерения ширины карниза слева направо; Обычно ширина готовой занавески должна быть как минимум вдвое больше ширины вашего окна, чтобы стандартная штора выглядела полной.Важно отметить, что это применимо для полного вида занавеси, те, кто предпочитает более современный и минималистский стиль, сохранят размер своей занавески ближе к фактическому размеру окна.
Вы измеряете каждую штору?
Если вы покупаете готовые шторы, они обычно продаются парами. Размер на упаковке подскажет вам размер одной плоской занавески. Отдельные листы часто называют панелями. Требуемая сумма будет зависеть от размера ваших окон.Еще один фактор, который следует учитывать, — это стиль занавески, которую вы хотите иметь. Тем, кто стремится к полному и целому виду, часто нужно увеличить длину окна вдвое, чтобы добиться этого. Для более минималистичного вида размер материала должен быть близок к размеру ваших окон.
Как изготавливаются мерные шторы?
При определении размера штор всегда рекомендуется использовать металлическую рулетку. Ширина всегда указывается в первую очередь.Например, 46 x 54 дюйма (117 x 137 см) будет означать, что каждая штора имеет ширину 46 дюймов (117 см) с перепадом в 54 дюйма (137 см). Есть еще несколько факторов, которые следует учитывать, например, техника крепления штор и конкретный стиль, который вы надеетесь достичь. Обязательно перепроверьте все свои расчеты, прежде чем размещать индивидуальный заказ.
Удачи, украшая свое пространство!
Правильные шторы могут кардинально изменить и улучшить внешний вид комнаты. Они, безусловно, предлагают некоторые функциональные преимущества, но самое интересное — это дизайн! Еще раз проверьте все свои измерения, чтобы убедиться, что вы рассчитали правильные размеры, а затем выбирайте цветовую схему.
Если вам нужна небольшая помощь, мир штор можно значительно улучшить с помощью ряда опытных мастеров. Вы можете получить помощь в ремонте жалюзи, установке, установке и ремонте карнизов, а также в общих поставках и помощи с занавесками и жалюзи.



5 см от верхнего края шторы

