ΠΠ΅ΡΠ°Π±ΠΎΠΊΡΡ Π΄Π»Ρ Π²ΡΠ΄Π²ΠΈΠΆΠ½ΡΡ ΡΡΠΈΠΊΠΎΠ² ΡΠ°Π·ΠΌΠ΅ΡΡ: ΠΡΠ΄Π²ΠΈΠΆΠ½ΡΠ΅ ΡΡΠΈΠΊΠΈ ΠΠ΅ΡΠ°Π±ΠΎΠΊΡ (METABOX) | ΠΠ΅Π±Π΅Π»ΡΠ½Π°Ρ ΡΡΡΠ½ΠΈΡΡΡΠ° BLUM
ΠΠ½ΡΡΡΡΠΊΡΠΈΡ Π΄Π»Ρ ΡΠ°ΡΡΠ΅ΡΠ° ΡΡΠΈΠΊΠΎΠ² ΠΈ ΡΠ΅ΠΊΠΎΠΌΠ΅Π½Π΄Π°ΡΠΈΠΈ ΠΏΠΎ Π²ΡΠ±ΠΎΡΡ Π»ΡΡΡΠΈΡ Π½Π°ΠΏΡΠ°Π²Π»ΡΡΡΠΈΡ
ΠΡΠ²Π°ΡΡ ΡΠΈΡΡΠ°ΡΠΈΠΈ, ΠΊΠΎΠ³Π΄Π° Π² ΡΡΠΌΠ±Π°Ρ Ρ ΡΠ°ΡΠΏΠ°ΡΠ½ΡΠΌΠΈ ΡΠ°ΡΠ°Π΄Π°ΠΌΠΈ ΠΈ ΠΎΠ±ΡΡΠ½ΡΠΌΠΈ ΠΏΠΎΠ»ΠΊΠ°ΠΌΠΈ Π½Π΅ΠΎΠ±Ρ ΠΎΠ΄ΠΈΠΌΠΎ ΡΡΡΠ°Π½ΠΎΠ²ΠΈΡΡ Π²ΡΠ΄Π²ΠΈΠΆΠ½ΡΠ΅ ΡΡΠΈΠΊΠΈ. Π’Π°ΠΊΠ°Ρ ΠΏΡΠΎΡΡΠ°Ρ ΠΌΠΎΠ΄Π΅ΡΠ½ΠΈΠ·Π°ΡΠΈΡ ΠΏΠΎΠΌΠΎΠ³Π°Π΅Ρ ΡΠ²Π΅Π»ΠΈΡΠΈΡΡ Π²ΠΌΠ΅ΡΡΠΈΡΠ΅Π»ΡΠ½ΠΎΡΡΡ ΠΊΠΎΡΠΏΡΡΠ° ΠΈ Π΄Π΅Π»Π°Π΅Ρ ΡΠΊΡΠΏΠ»ΡΠ°ΡΠ°ΡΠΈΡ ΠΌΠ΅Π±Π΅Π»ΠΈ ΡΠ΄ΠΎΠ±Π½Π΅Π΅. Π‘Π°ΠΌΡΠΉ ΠΏΡΠΎΡΡΠΎΠΉ ΡΠΏΠΎΡΠΎΠ± β ΡΡΡΠ°Π½ΠΎΠ²ΠΈΡΡ Π³ΠΎΡΠΎΠ²ΡΠ΅ Π²ΡΠ΄Π²ΠΈΠΆΠ½ΡΠ΅ ΠΊΠΎΡΠ·ΠΈΠ½Ρ. ΠΠ΄Π½Π°ΠΊΠΎ Π½Π΅ Π²ΡΠ΅Ρ ΡΡΡΡΠ°ΠΈΠ²Π°Π΅Ρ ΡΠ΅Π½Π° ΡΡΠΈΡ Π²ΡΠ΄Π²ΠΈΠΆΠ½ΡΡ ΡΠΈΡΡΠ΅ΠΌ. Π§ΡΠΎΠ±Ρ ΡΠ½ΠΈΠ·ΠΈΡΡ ΡΠ°ΡΡ ΠΎΠ΄Ρ, ΠΌΠΎΠΆΠ½ΠΎ ΡΠ°ΠΌΠΎΡΡΠΎΡΡΠ΅Π»ΡΠ½ΠΎ ΡΠ΄Π΅Π»Π°ΡΡ ΡΡΠΈΠΊΠΈ ΠΈ ΠΈΠ½ΡΠ΅Π³ΡΠΈΡΠΎΠ²Π°ΡΡ ΠΈΡ Π² ΠΊΠΎΡΠΏΡΡ ΡΡΠΌΠ±. ΠΡΠ° ΡΡΠ°ΡΡΡ ΠΏΠΎΠΌΠΎΠΆΠ΅Ρ ΠΏΠΎΠ΄ΠΎΠ±ΡΠ°ΡΡ Π½Π°ΠΏΡΠ°Π²Π»ΡΡΡΠΈΠ΅ ΠΈ ΡΠ°ΡΡΠΊΠ°ΠΆΠ΅Ρ, ΠΊΠ°ΠΊ ΠΏΡΠ°Π²ΠΈΠ»ΡΠ½ΠΎ ΡΠ°ΡΡΡΠΈΡΠ°ΡΡ ΡΠ°Π·ΠΌΠ΅ΡΡ Π΄Π΅ΡΠ°Π»Π΅ΠΉ Π΄Π»Ρ ΡΠ±ΠΎΡΠΊΠΈ Π²ΡΠ΄Π²ΠΈΠΆΠ½ΡΡ ΡΠ»Π΅ΠΌΠ΅Π½ΡΠΎΠ².
Π ΠΊΠ°ΠΊΠΈΡ ΡΡΠΌΠ±Π°Ρ ΠΌΠΎΠΆΠ½ΠΎ ΡΡΡΠ°Π½ΠΎΠ²ΠΈΡΡ ΡΡΠΈΠΊΠΈ?
ΠΠ°ΠΊΠΈΡ
-Π»ΠΈΠ±ΠΎ ΠΎΠ³ΡΠ°Π½ΠΈΡΠ΅Π½ΠΈΠΉ ΠΈ Π·Π°ΠΏΡΠ΅ΡΠΎΠ² Π² ΡΡΠΎΠΌ ΡΠ»ΡΡΠ°Π΅ Π½Π΅ ΡΡΡΠ΅ΡΡΠ²ΡΠ΅Ρ. Π£ΡΠ»ΠΎΠ²ΠΈΠ΅ ΠΎΠ΄Π½ΠΎ β ΡΠ°ΡΠ°Π΄Ρ Π½Π΅ Π΄ΠΎΠ»ΠΆΠ½Ρ ΠΌΠ΅ΡΠ°ΡΡ Π²ΡΠ΄Π²ΠΈΠΆΠ΅Π½ΠΈΡ ΡΡΠΈΠΊΠΎΠ² ΠΈΠ· ΠΊΠΎΡΠΏΡΡΠΎΠ². ΠΡ
ΡΠ°ΡΠ΅ Π²ΡΠ΅Π³ΠΎ ΡΡΡΠ°Π½Π°Π²Π»ΠΈΠ²Π°ΡΡ Π² ΠΊΡΡ
ΠΎΠ½Π½ΡΡ
ΠΌΠΎΠ΄ΡΠ»ΡΡ
, ΡΠΊΠ°ΡΠ°Ρ
-ΠΊΡΠΏΠ΅, ΠΏΠΈΡΡΠΌΠ΅Π½Π½ΡΡ
ΡΡΠΎΠ»Π°Ρ
, ΠΏΠ΅Π½Π°Π»Π°Ρ
ΠΈ ΠΎΠ±ΡΡΠ½ΡΡ
ΡΡΠΌΠ±Π°Ρ
Ρ ΡΠ°ΡΠΏΠ°ΡΠ½ΡΠΌΠΈ Π΄Π²Π΅ΡΠΊΠ°ΠΌΠΈ. Π ΡΠΎΠΌ, ΠΊΠ°ΠΊ ΠΈΡΠΊΠ»ΡΡΠΈΡΡ Π²ΠΎΠ·ΠΌΠΎΠΆΠ½ΡΠ΅ ΠΏΠΎΠΌΠ΅Ρ
ΠΈ ΠΏΡΠΈ Π²ΡΠ΄Π²ΠΈΠΆΠ΅Π½ΠΈΠΈ, ΡΠΈΡΠ°ΠΉΡΠ΅ Π² ΡΠΏΠ΅ΡΠΈΠ°Π»ΡΠ½ΠΎΠΌ ΠΌΠ°ΡΠ΅ΡΠΈΠ°Π»Π΅ Π½Π° ΡΠ°ΠΉΡΠ΅ ΠΠ Β«ΠΡΠΎΠ½Π°ΡΒ».
ΠΠ°ΠΊ Π²ΡΠ±ΡΠ°ΡΡ Π½Π°ΠΏΡΠ°Π²Π»ΡΡΡΠΈΠ΅ Π΄Π»Ρ ΠΊΠΎΠΌΠΏΠ»Π΅ΠΊΡΠ°ΡΠΈΠΈ ΡΡΠΈΠΊΠΎΠ²?
ΠΡΠΈ ΠΏΠΎΠΊΡΠΏΠΊΠ΅ Π½Π°ΠΏΡΠ°Π²Π»ΡΡΡΠΈΡ Π² Π±ΠΎΠ»ΡΡΠΈΠ½ΡΡΠ²Π΅ ΡΠ»ΡΡΠ°Π΅Π² ΠΎΠ±ΡΠ°ΡΠ°ΡΡ Π²Π½ΠΈΠΌΠ°Π½ΠΈΠ΅ Π½Π° ΠΈΡ Π΄Π»ΠΈΠ½Ρ ΠΈ ΡΡΠΎΠΈΠΌΠΎΡΡΡ. ΠΡΠΎ Π½Π΅Π²Π΅ΡΠ½ΡΠΉ ΠΏΠΎΡ ΠΎΠ΄, ΡΠΏΠΎΡΠΎΠ±Π½ΡΠΉ Π½Π΅Π³Π°ΡΠΈΠ²Π½ΠΎ ΠΏΠΎΠ²Π»ΠΈΡΡΡ Π½Π° Ρ Π°ΡΠ°ΠΊΡΠ΅ΡΠΈΡΡΠΈΠΊΠΈ Π²ΡΠ΄Π²ΠΈΠΆΠ½ΡΡ ΡΠ»Π΅ΠΌΠ΅Π½ΡΠΎΠ². Π‘ΡΡΠ΅ΡΡΠ²ΡΠ΅Ρ Π½Π΅ΡΠΊΠΎΠ»ΡΠΊΠΎ Π²Π°ΠΆΠ½ΡΡ ΠΊΡΠΈΡΠ΅ΡΠΈΠ΅Π², ΠΊΠΎΡΠΎΡΡΠ΅ Π²Π»ΠΈΡΡΡ Π½Π° Π²ΡΠ±ΠΎΡ Π½Π°ΠΏΡΠ°Π²Π»ΡΡΡΠΈΡ :
Π‘Π°ΠΌΡΠΉ Π»ΡΡΡΠΈΠΉ Π²Π°ΡΠΈΠ°Π½Ρ β Π½Π°ΠΏΡΠ°Π²Π»ΡΡΡΠΈΠ΅ ΡΠΊΡΡΡΠΎΠ³ΠΎ ΠΌΠΎΠ½ΡΠ°ΠΆΠ° Ρ Π΄ΠΎΠ²ΠΎΠ΄ΡΠΈΠΊΠ°ΠΌΠΈ ΠΈ ΡΡΠ½ΠΊΡΠΈΠ΅ΠΉ ΠΏΠΎΠ»Π½ΠΎΠ³ΠΎ Π²ΡΠ΄Π²ΠΈΠΆΠ΅Π½ΠΈΡ. ΠΠ΄Π½Π°ΠΊΠΎ ΠΎΠ½ΠΈ ΡΡΠΎΡΡ Π΄ΠΎΡΠΎΠΆΠ΅ Π΄ΡΡΠ³ΠΈΡ ΠΌΠΎΠ΄Π΅Π»Π΅ΠΉ, ΠΏΠΎΡΡΠΎΠΌΡ ΠΈΡ Π²ΡΠ±ΠΈΡΠ°ΡΡ Π² ΠΎΡΠ½ΠΎΠ²Π½ΠΎΠΌ Π΄Π»Ρ ΠΊΠΎΠΌΠΏΠ»Π΅ΠΊΡΠ°ΡΠΈΠΈ ΠΌΠ΅Π±Π΅Π»ΠΈ, ΠΊ ΡΡΡΠ΅ΡΠΈΠΊΠ΅ ΠΊΠΎΡΠΎΡΠΎΠΉ ΠΏΡΠ΅Π΄ΡΡΠ²Π»ΡΡΡ ΡΡΡΠΎΠ³ΠΈΠ΅ ΡΡΠ΅Π±ΠΎΠ²Π°Π½ΠΈΡ. Π Π±ΠΎΠ»ΡΡΠΈΠ½ΡΡΠ²Π΅ ΡΠΈΡΡΠ°ΡΠΈΠΉ ΠΌΠΎΠΆΠ½ΠΎ ΠΈΡΠΏΠΎΠ»ΡΠ·ΠΎΠ²Π°ΡΡ ΠΎΠ±ΡΡΠ½ΡΠ΅ ΡΠ°ΡΠΈΠΊΠΎΠ²ΡΠ΅ Π½Π°ΠΏΡΠ°Π²Π»ΡΡΡΠΈΠ΅ ΠΏΠΎΠ»Π½ΠΎΠ³ΠΎ Π²ΡΠ΄Π²ΠΈΠΆΠ΅Π½ΠΈΡ. ΠΠ»Ρ Π±ΠΎΠ»Π΅Π΅ ΡΠ΄ΠΎΠ±Π½ΠΎΠΉ ΡΠΊΡΠΏΠ»ΡΠ°ΡΠ°ΡΠΈΠΈ ΠΌΠΎΠΆΠ½ΠΎ Π²ΡΠ±ΡΠ°ΡΡ ΠΌΠΎΠ΄Π΅Π»ΠΈ Ρ Π΄ΠΎΠ²ΠΎΠ΄ΡΠΈΠΊΠ°ΠΌΠΈ.
Π ΠΎΠ»ΠΈΠΊΠΎΠ²ΡΠ΅ Π½Π°ΠΏΡΠ°Π²Π»ΡΡΡΠΈΠ΅ ΡΠ΅ΠΊΠΎΠΌΠ΅Π½Π΄ΡΠ΅ΡΡΡ ΠΈΡΠΏΠΎΠ»ΡΠ·ΠΎΠ²Π°ΡΡ ΡΠΎΠ»ΡΠΊΠΎ ΠΏΡΠΈ ΠΊΠΎΠΌΠΏΠ»Π΅ΠΊΡΠ°ΡΠΈΠΈ ΠΌΠ΅Π±Π΅Π»ΠΈ ΡΠΊΠΎΠ½ΠΎΠΌ-ΠΊΠ»Π°ΡΡΠ°, ΠΊΠΎΡΠΎΡΡΡ ΠΏΠ»Π°Π½ΠΈΡΡΠ΅ΡΡΡ Π·Π°ΠΌΠ΅Π½ΠΈΡΡ Π² ΡΠΊΠΎΡΠΎΠΌ Π±ΡΠ΄ΡΡΠ΅ΠΌ. ΠΡΠΈ Π²ΡΠ΄Π²ΠΈΠΆΠ½ΡΠ΅ ΡΠΈΡΡΠ΅ΠΌΡ ΠΏΠΎ Π²ΡΠ΅ΠΌ ΠΏΡΠ½ΠΊΡΠ°ΠΌ ΡΡΡΡΠΏΠ°ΡΡ ΡΠΎΠ²ΡΠ΅ΠΌΠ΅Π½Π½ΡΠΌ ΡΠ°ΡΠΈΠΊΠΎΠ²ΡΠΌ ΠΌΠΎΠ΄Π΅Π»ΡΠΌ, ΠΏΠΎΡΡΠΎΠΌΡ ΠΈΡ
ΠΏΠΎΠΏΡΠ»ΡΡΠ½ΠΎΡΡΡ ΠΏΠΎΡΡΠ΅ΠΏΠ΅Π½Π½ΠΎ ΡΠ½ΠΈΠΆΠ°Π΅ΡΡΡ.
ΠΡΠ΅ ΠΎΠ΄Π½Π° ΠΎΠ±Π»Π°ΡΡΡ ΠΏΡΠΈΠΌΠ΅Π½Π΅Π½ΠΈΡ ΡΠ°ΠΊΠΈΡ
Π½Π°ΠΏΡΠ°Π²Π»ΡΡΡΠΈΡ
β Π½Π΅Π΄ΠΎΡΠΎΠ³Π°Ρ ΠΈ ΠΌΠ°ΠΊΡΠΈΠΌΠ°Π»ΡΠ½ΠΎ ΠΏΡΠΎΡΡΠ°Ρ ΠΌΠ΅Π±Π΅Π»Ρ Π² ΠΌΠ°ΡΡΠ΅ΡΡΠΊΠΈΡ
, ΠΏΡΠΎΠΈΠ·Π²ΠΎΠ΄ΡΡΠ²Π΅Π½Π½ΡΡ
ΠΏΠΎΠΌΠ΅ΡΠ΅Π½ΠΈΡΡ
ΠΈ Ρ.Π΄.
ΠΠ»Ρ ΠΈΠ·Π³ΠΎΡΠΎΠ²Π»Π΅Π½ΠΈΡ ΡΡΠΈΠΊΠΎΠ² Ρ ΡΡΠΈΠ»Π΅Π½Π½ΡΠΌ Π΄Π½ΠΎΠΌ ΠΌΠΎΠΆΠ½ΠΎ Π²ΡΠ±ΡΠ°ΡΡ ΠΌΠ΅ΡΠ°Π±ΠΎΠΊΡΡ. ΠΡΠΈ Π²ΡΠ΄Π²ΠΈΠΆΠ½ΡΠ΅ ΡΠΈΡΡΠ΅ΠΌΡ ΠΈΠ·Π³ΠΎΡΠΎΠ²Π»Π΅Π½Ρ Π½Π° ΠΎΡΠ½ΠΎΠ²Π΅ ΡΠΎΠ»ΠΈΠΊΠΎΠ²ΡΡ Π½Π°ΠΏΡΠ°Π²Π»ΡΡΡΠΈΡ . ΠΡ ΠΎΡΠ»ΠΈΡΠΈΠ΅ ΠΎΡ Π±Π°Π·ΠΎΠ²ΠΎΠΉ ΠΌΠΎΠ΄ΠΈΡΠΈΠΊΠ°ΡΠΈΠΈ Π·Π°ΠΊΠ»ΡΡΠ°Π΅ΡΡΡ Π² ΡΠΎΠΌ, ΡΡΠΎ ΠΎΠ½ΠΈ ΠΈΠ·Π½Π°ΡΠ°Π»ΡΠ½ΠΎ ΡΠΊΠΎΠΌΠΏΠ»Π΅ΠΊΡΠΎΠ²Π°Π½Ρ Π±ΠΎΠΊΠΎΠ²ΠΈΠ½Π°ΠΌΠΈ ΠΈΠ· ΠΎΠΊΡΠ°ΡΠ΅Π½Π½ΠΎΠΉ ΡΠΌΠ°Π»ΡΡ ΡΡΠ°Π»ΠΈ. ΠΠΎΠΊΠΎΠ²ΡΠ΅ ΡΡΠ΅Π½ΠΊΠΈ ΠΌΠ΅ΡΠ°Π±ΠΎΠΊΡΠΎΠ² ΠΎΡΠ½Π°ΡΠ΅Π½Ρ Ρ ΠΎΠ΄ΠΎΠ²ΡΠΌΠΈ ΡΠΎΠ»ΠΈΠΊΠ°ΠΌΠΈ ΠΈΠ· ΠΏΠ»Π°ΡΡΠΈΠΊΠ° ΠΈ Π·Π°ΠΎΠ΄Π½ΠΎ Π²ΡΠΏΠΎΠ»Π½ΡΡΡ ΡΡΠ½ΠΊΡΠΈΡ Π²ΡΠ΄Π²ΠΈΠΆΠ½ΠΎΠΉ ΠΊΠ°ΡΠ΅ΡΠΊΠΈ. Π’Π°ΠΊΠΈΠ΅ ΡΠΈΡΡΠ΅ΠΌΡ ΠΌΠΎΠΆΠ½ΠΎ Π²ΡΠ±ΡΠ°ΡΡ Π΄Π»Ρ ΠΊΠΎΠΌΠΏΠ»Π΅ΠΊΡΠ°ΡΠΈΠΈ ΠΊΡΡ Π½ΠΈ, Π΅ΡΠ»ΠΈ ΡΡΠΎΠΈΠΌΠΎΡΡΡ ΡΠΊΡΡΡΡΡ ΡΠ°ΡΠΈΠΊΠΎΠ²ΡΡ Π½Π°ΠΏΡΠ°Π²Π»ΡΡΡΠΈΡ ΠΏΡΠ΅Π²ΡΡΠ°Π΅Ρ Π²ΡΠ΄Π΅Π»Π΅Π½Π½ΡΠΉ Π±ΡΠ΄ΠΆΠ΅Ρ.
ΠΠ·Π³ΠΎΡΠΎΠ²Π»Π΅Π½ΠΈΠ΅ ΡΡΠΈΠΊΠΎΠ²
ΠΠΎΠ΄Π³ΠΎΡΠΎΠ²ΠΈΡΡ Π΄Π΅ΡΠ°Π»ΠΈ Π΄Π»Ρ ΡΠ±ΠΎΡΠΊΠΈ ΡΡΠΈΠΊΠΎΠ² Π² Π΄ΠΎΠΌΠ°ΡΠ½ΠΈΡ
ΡΡΠ»ΠΎΠ²ΠΈΡΡ
ΠΏΡΠΈ ΠΏΠΎΠΌΠΎΡΠΈ ΡΠ»Π΅ΠΊΡΡΠΎΠ»ΠΎΠ±Π·ΠΈΠΊΠ° Π½Π΅ ΠΏΠΎΠ»ΡΡΠΈΡΡΡ, ΡΠ°ΠΊ ΠΊΠ°ΠΊ ΡΡΠ΅Π±ΡΠ΅ΡΡΡ ΡΡΡΠΎΠ³ΠΎΠ΅ ΡΠΎΠ±Π»ΡΠ΄Π΅Π½ΠΈΠ΅ ΡΠΎΡΠ½ΡΡ
ΡΠ°Π·ΠΌΠ΅ΡΠΎΠ² ΠΈ ΡΠ³Π»ΠΎΠ². Π Π°ΡΡ
ΠΎΠΆΠ΄Π΅Π½ΠΈΠ΅ Π΄Π°ΠΆΠ΅ Π½Π° (+/-) 1,5-2 ΠΌΠΌ ΠΏΡΠΈΠ²Π΅Π΄Π΅Ρ ΠΊ ΡΠΎΠΌΡ, ΡΡΠΎ ΡΡΠΈΠΊΠΈ Π»ΠΈΠ±ΠΎ Π½Π΅ ΠΏΠΎΠΌΠ΅ΡΡΡΡΡΡ Π² ΠΏΡΠΎΠ΅ΠΌΠ΅, Π»ΠΈΠ±ΠΎ ΠΈΡ
Π±ΡΠ΄Π΅Ρ Π·Π°ΠΊΠ»ΠΈΠ½ΠΈΠ²Π°ΡΡ ΠΏΡΠΈ Π΄Π²ΠΈΠΆΠ΅Π½ΠΈΠΈ. ΠΠ΅ΡΠΎΠΎΡΠ²Π΅ΡΡΡΠ²ΠΈΠ΅ ΡΠ³Π»ΠΎΠ² 90 Π³ΡΠ°Π΄ΡΡΠΎΠ² ΠΏΡΠΈΠ²ΠΎΠ΄ΠΈΡ ΠΊ ΠΏΠ΅ΡΠ΅ΠΊΠΎΡΠ°ΠΌ ΠΈ ΡΠΎΠΆΠ΅ Π½Π΅Π³Π°ΡΠΈΠ²Π½ΠΎ ΡΠΊΠ°Π·ΡΠ²Π°Π΅ΡΡΡ Π½Π° ΡΠΊΡΠΏΠ»ΡΠ°ΡΠ°ΡΠΈΠΎΠ½Π½ΡΡ
Ρ
Π°ΡΠ°ΠΊΡΠ΅ΡΠΈΡΡΠΈΠΊ.
Π’Π΅ΠΎΡΠ΅ΡΠΈΡΠ΅ΡΠΊΠΈ ΠΌΠΎΠΆΠ½ΠΎ Π΄ΠΎΠ±ΠΈΡΡΡΡ ΡΠΎΡΠ½ΠΎΡΡΠΈ ΡΠ°Π·ΠΌΠ΅ΡΠΎΠ² ΠΈ ΡΠ³Π»ΠΎΠ² Π² Π΄ΠΎΠΌΠ°ΡΠ½ΠΈΡ
ΡΡΠ»ΠΎΠ²ΠΈΡΡ
. ΠΠΎΠΌΠΈΠΌΠΎ ΡΠ»Π΅ΡΡΠΎΠ»ΠΎΠ±Π·ΠΈΠΊΠ°, Π΄Π»Ρ ΡΡΠΈΡ
ΡΠ΅Π»Π΅ΠΉ ΠΏΠΎΡΡΠ΅Π±ΡΠ΅ΡΡΡ ΡΡΡΠ½ΠΎΠΉ ΡΡΠ΅Π·Π΅Ρ. ΠΠ΄Π½Π°ΠΊΠΎ ΡΡΠΎΡ ΡΠΏΠΎΡΠΎΠ± ΡΠ»ΠΈΡΠΊΠΎΠΌ ΠΏΡΠ»ΡΠ½ΡΠΉ, Π΄ΠΎΠ»Π³ΠΈΠΉ ΠΈ ΡΡΡΠ΄ΠΎΠ΅ΠΌΠΊΠΈΠΉ.
ΠΡΡΡΠ΅ Π²ΡΠ΅Π³ΠΎ Π·Π°ΠΊΠ°Π·Π°ΡΡ Π΄Π΅ΡΠ°Π»ΠΈ Π² ΡΠ΅Ρ Ρ Ρ ΡΠΎΡΠΌΠ°ΡΠ½ΠΎ-ΡΠ°ΡΠΊΡΠΎΠ΅ΡΠ½ΡΠΌ ΡΡΠ°Π½ΠΊΠΎΠΌ. ΠΡΠ»ΠΈ ΡΡΠ΅Π±ΡΠ΅ΡΡΡ ΠΏΠΎΡΠ΅Π·ΠΊΠ° Π±ΠΎΠ»ΡΡΠΎΠ³ΠΎ ΠΊΠΎΠ»ΠΈΡΠ΅ΡΡΠ²Π° ΠΊΡΡΠΏΠ½ΡΡ Π΄Π΅ΡΠ°Π»Π΅ΠΉ (Π΄Π»Ρ Π½Π΅ΡΠΊΠΎΠ»ΡΠΊΠΈΡ ΡΡΠΈΠΊΠΎΠ² Ρ Π΄Π½ΠΎΠΌ ΠΈΠ· ΠΠΠ‘Π Π² ΡΡΠΌΠ±Ρ Π½Π° ΠΊΡΡ Π½Ρ), ΡΠΎ ΠΈΠΌΠ΅Π΅Ρ ΡΠΌΡΡΠ» ΡΡΠ°Π·Ρ ΠΊΡΠΏΠΈΡΡ Π»ΠΈΡΡ Π½Π΅Π΄ΠΎΡΠΎΠ³ΠΎΠΉ Π»Π°ΠΌΠΈΠ½ΠΈΡΠΎΠ²Π°Π½Π½ΠΎΠΉ ΠΏΠ»ΠΈΡΡ ΠΈ Π·Π°ΠΊΠ°Π·Π°ΡΡ Π΅Π΅ ΡΠ°ΡΠΊΡΠΎΠΉ. Π‘Π»ΠΎΠΆΠ½Π΅Π΅, ΠΊΠΎΠ³Π΄Π° Π΄Π΅ΡΠ°Π»ΠΈ Π½Π΅Π±ΠΎΠ»ΡΡΠΈΠ΅ ΠΈ ΠΈΡ Π½Π΅ΠΌΠ½ΠΎΠ³ΠΎ, Π½ΠΎ ΠΈ Π΄Π°ΠΆΠ΅ Π² ΡΠ°ΠΊΠΎΠΌ ΡΠ»ΡΡΠ°Π΅ ΡΠ°ΡΠ΅ Π²ΡΠ΅Π³ΠΎ ΡΠ΄Π°Π΅ΡΡΡ ΡΠ΅ΡΠΈΡΡ Π²ΠΎΠΏΡΠΎΡ. Π Π΅ΠΊΠΎΠΌΠ΅Π½Π΄ΡΠ΅ΡΡΡ ΡΡΠ°Π·Ρ Π·Π°ΠΊΠ°Π·Π°ΡΡ ΠΎΠΊΠ»Π΅ΠΉΠΊΡ ΡΠΎΠ½ΠΊΠΎΠΉ ΠΠΠ₯-ΠΊΡΠΎΠΌΠΊΠΎΠΉ Π²ΡΠ΅Ρ Π²ΠΈΠ΄ΠΈΠΌΡΡ ΡΡΠΎΡΠΎΠ½ Π΄Π΅ΡΠ°Π»Π΅ΠΉ Π΄Π»Ρ ΡΠ±ΠΎΡΠΊΠΈ ΡΡΠΈΠΊΠΎΠ².
ΠΠ°ΠΊ ΠΏΡΠ°Π²ΠΈΠ»ΡΠ½ΠΎ Π²ΡΠ±ΡΠ°ΡΡ Π΄Π»ΠΈΠ½Ρ Π½Π°ΠΏΡΠ°Π²Π»ΡΡΡΠΈΡ ?
ΠΠ»ΠΈΠ½Π° Π½Π°ΠΏΡΠ°Π²Π»ΡΡΡΠΈΡ
Π΄ΠΎΠ»ΠΆΠ½Π° Π±ΡΡΡ ΠΏΡΠΈΠΌΠ΅ΡΠ½ΠΎ Π½Π° 20-30 ΠΌΠΌ ΠΌΠ΅Π½ΡΡΠ΅ Π³Π»ΡΠ±ΠΈΠ½Ρ ΠΊΠΎΡΠΏΡΡΠ°. Π’Π°ΠΊΠ°Ρ ΡΠ΅ΠΊΠΎΠΌΠ΅Π½Π΄Π°ΡΠΈΡ ΠΎΠ±ΡΡΡΠ½ΡΠ΅ΡΡΡ ΡΠ΅ΠΌ, ΡΡΠΎ Ρ ΡΡΠΈΠΊΠ° Π²ΠΏΠ΅ΡΠ΅Π΄ΠΈ ΡΠΈΠΊΡΠΈΡΡΠ΅ΡΡΡ ΡΠ°ΡΠ°Π΄-Π½Π°ΠΊΠ»Π°Π΄ΠΊΠ°, ΡΠΎΠ»ΡΠΈΠ½Π° ΠΊΠΎΡΠΎΡΠΎΠ³ΠΎ ΡΠΎΡΡΠ°Π²Π»ΡΠ΅Ρ 16-19 ΠΌΠΌ. ΠΡΠΎΠΌΠ΅ ΡΠΎΠ³ΠΎ, Π½Π°ΠΏΡΠ°Π²Π»ΡΡΡΠΈΠ΅ Π½ΡΠΆΠ½ΠΎ Π½Π° 2-3 ΠΌΠΌ Β«ΡΡΠΎΠΏΠΈΡΡΒ» Π²Π³Π»ΡΠ±Ρ ΠΊΠΎΡΠΏΡΡΠ°.
ΠΡΠΎ ΡΡΠ΅Π±ΡΠ΅ΡΡΡ Π΄Π»Ρ ΡΡΡΠ°Ρ
ΠΎΠ²ΠΊΠΈ, ΡΡΠΎΠ±Ρ Π² ΡΠ»ΡΡΠ°Π΅ Π½Π΅Π·Π½Π°ΡΠΈΡΠ΅Π»ΡΠ½ΠΎΠ³ΠΎ ΠΏΠ΅ΡΠ΅ΠΊΠΎΡΠ° ΡΡΠΈΠΊ Π½Π΅ Π²ΡΡΡΡΠΏΠ°Π» Π²ΠΏΠ΅ΡΠ΅Π΄ ΠΈ Π½Π΅ ΠΌΠ΅ΡΠ°Π» Π·Π°ΠΊΡΡΡΠΈΡ ΡΠ°ΡΠ°Π΄ΠΎΠ².
ΠΡΠΈ ΡΡΠΎΠΌ Π½ΡΠΆΠ½ΠΎ ΡΡΠΈΡΡΠ²Π°ΡΡ, ΡΡΠΎ ΡΠ°Π³ Ρ Π½Π°ΠΏΡΠ°Π²Π»ΡΡΡΠΈΡ ΡΠΎΡΡΠ°Π²Π»ΡΠ΅Ρ 50 ΠΌΠΌ. ΠΠ°ΠΏΡΠΈΠΌΠ΅Ρ, Π΅ΡΠ»ΠΈ Π³Π»ΡΠ±ΠΈΠ½Π° ΡΡΠΌΠ±Ρ ΡΠΎΡΡΠ°Π²Π»ΡΠ΅Ρ 410 ΠΌΠΌ, ΡΠΎ ΠΏΠΎΠ΄ΠΎΠΉΠ΄ΡΡ Π½Π°ΠΏΡΠ°Π²Π»ΡΡΡΠΈΠ΅ Π΄Π»ΠΈΠ½ΠΎΠΉ Π² 350 ΠΌΠΌ. Π ΡΠ°ΠΊΠΈΡ ΡΠ»ΡΡΠ°ΡΡ ΡΠ΅ΠΊΠΎΠΌΠ΅Π½Π΄ΡΠ΅ΡΡΡ Π²ΡΠ±ΠΈΡΠ°ΡΡ ΠΌΠΎΠ΄Π΅Π»ΠΈ ΠΏΠΎΠ»Π½ΠΎΠ³ΠΎ Π²ΡΠ΄Π²ΠΈΠΆΠ΅Π½ΠΈΡ, ΡΡΠΎΠ±Ρ ΡΠ°ΡΡΡ ΡΡΠΈΠΊΠ° Π½Π΅ ΠΎΡΡΠ°Π²Π°Π»Π°ΡΡ Π² ΠΊΠΎΡΠΏΡΡΠ΅. ΠΡΠΎΠΌΠ΅ ΡΠΎΠ³ΠΎ, ΠΌΠΎΠΆΠ½ΠΎ ΡΠ²Π΅Π»ΠΈΡΠΈΡΡ Π΄Π»ΠΈΠ½Ρ Π±ΠΎΠΊΠΎΠ²ΡΡ ΡΡΠ΅Π½ΠΎΠΊ Π΄ΠΎ 380-385 ΠΌΠΌ. ΠΡΠΎ ΠΏΠΎΠ·Π²ΠΎΠ»ΠΈΡ Ρ ΠΌΠ°ΠΊΡΠΈΠΌΠ°Π»ΡΠ½ΠΎ ΡΡΡΠ΅ΠΊΡΠΈΠ²Π½ΠΎ ΠΈΡΠΏΠΎΠ»ΡΠ·ΠΎΠ²Π°ΡΡ ΠΏΡΠΎΡΡΡΠ°Π½ΡΡΠ²ΠΎ Π²Π½ΡΡΡΠΈ ΠΊΠΎΡΠΏΡΡΠ°. ΠΠ΄Π½Π°ΠΊΠΎ Π²ΡΠ΅Π³Π΄Π° Π½ΡΠΆΠ½ΠΎ ΡΠ»Π΅Π΄ΠΈΡΡ Π·Π° ΡΠ΅ΠΌ, ΡΡΠΎΠ±Ρ ΡΡΠΌΠΌΠ°ΡΠ½Π°Ρ Π³Π»ΡΠ±ΠΈΠ½Π° ΡΡΠΈΠΊΠ° Π²ΠΌΠ΅ΡΡΠ΅ Ρ ΡΠ°ΡΠ°Π΄ΠΎΠΌ ΠΈ Π΄ΠΎΠΏΡΡΠΊΠΎΠΌ Π½Π΅ ΠΏΡΠ΅Π²ΡΡΠ°Π»Π° Π°Π½Π°Π»ΠΎΠ³ΠΈΡΠ½ΡΠΉ Π³Π°Π±Π°ΡΠΈΡ ΠΊΠΎΡΠΏΡΡΠ° ΡΡΠΌΠ±Ρ.
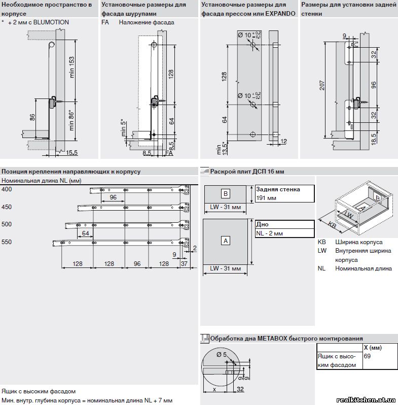
Π Π°ΡΡΠ΅Ρ Π΄Π΅ΡΠ°Π»Π΅ΠΉ Π΄Π»Ρ ΡΡΠΈΠΊΠΎΠ²
ΠΡΠΈ ΡΠ°ΡΠΊΡΠΎΠ΅ Π΄Π΅ΡΠ°Π»Π΅ΠΉ Π΄Π»Ρ ΡΠ±ΠΎΡΠΊΠΈ ΡΡΠΈΠΊΠΎΠ² ΡΠ°ΡΠ΅ Π²ΡΠ΅Π³ΠΎ ΠΈΡΠΏΠΎΠ»ΡΠ·ΡΡΡ ΠΏΠ»ΠΈΡΡ ΠΠΠ‘Π ΡΠΎΠ»ΡΠΈΠ½ΠΎΠΉ 16 ΠΈΠ»ΠΈ 18 ΠΌΠΌ. ΠΡΠΎΡ ΠΏΠ°ΡΠ°ΠΌΠ΅ΡΡ ΠΈΠΌΠ΅Π΅Ρ Π·Π½Π°ΡΠ΅Π½ΠΈΠ΅ ΠΏΡΠΈ ΠΎΠΏΡΠ΅Π΄Π΅Π»Π΅Π½ΠΈΠΈ Π΄Π»ΠΈΠ½Ρ ΠΏΠ΅ΡΠ΅Π΄Π½ΠΈΡ ΠΈ Π·Π°Π΄Π½ΠΈΡ ΡΡΠ΅Π½ΠΎΠΊ. ΠΠ°Π»ΡΠ½Π΅ΠΉΡΠΈΠ΅ ΡΠ°ΡΡΠ΅ΡΡ Π·Π°Π²ΠΈΡΡΡ ΠΎΡ ΡΠΎΠ³ΠΎ, ΠΊΠ°ΠΊΠΈΠ΅ Π½Π°ΠΏΡΠ°Π²Π»ΡΡΡΠΈΠ΅ Π²ΡΠ±ΡΠ°Π½Ρ Π΄Π»Ρ ΠΊΠΎΠΌΠΏΠ»Π΅ΠΊΡΠ°ΡΠΈΠΈ ΡΡΠΈΠΊΠΎΠ².
Π¨Π°ΡΠΈΠΊΠΎΠ²ΡΠ΅ ΠΈ ΡΠΎΠ»ΠΈΠΊΠΎΠ²ΡΠ΅ Π½Π°ΠΏΡΠ°Π²Π»ΡΡΡΠΈΠ΅
ΠΡΠΈ Π²ΡΠ±ΠΎΡΠ΅ ΠΎΠ±ΡΡΠ½ΡΡ
ΠΌΠΎΠ΄Π΅Π»Π΅ΠΉ ΡΠ°ΡΠΈΠΊΠΎΠ²ΡΡ
Π½Π°ΠΏΡΠ°Π²Π»ΡΡΡΠΈΡ
ΠΌΠ΅ΠΆΠ΄Ρ Π²Π½ΡΡΡΠ΅Π½Π½ΠΈΠΌΠΈ ΡΡΠΎΡΠΎΠ½Π°ΠΌΠΈ Π²Π΅ΡΡΠΈΠΊΠ°Π»ΡΠ½ΡΡ
ΡΡΠΎΠ΅ΠΊ ΠΈ ΠΊΠΎΡΠΏΡΡΠ° ΡΡΠΈΠΊΠ° Π΄ΠΎΠ»ΠΆΠ΅Π½ Π±ΡΡΡ Π·Π°Π·ΠΎΡ 25-26 ΠΌΠΌ β ΠΏΠΎ 12,5-13 ΠΌΠΌ Π½Π° ΠΊΠ°ΠΆΠ΄ΡΡ ΡΡΠΎΡΠΎΠ½Ρ.
ΠΠΎΠ»Π΅Π΅ ΡΠΎΡΠ½ΠΎΠ΅ Π·Π½Π°ΡΠ΅Π½ΠΈΠ΅ Π·Π°Π²ΠΈΡΠΈΡ ΠΎΡ ΡΠΎΠ»ΡΠΈΠ½Ρ ΠΌΠ΅ΡΠ°Π»Π»Π°, ΠΊΠΎΡΠΎΡΡΠΉ ΠΈΡΠΏΠΎΠ»ΡΠ·ΡΡΡ ΠΏΡΠΈ ΠΈΠ·Π³ΠΎΡΠΎΠ²Π»Π΅Π½ΠΈΠΈ Π½Π°ΠΏΡΠ°Π²Π»ΡΡΡΠΈΡ
. ΠΠ΄Π½Π°ΠΊΠΎ 1 ΠΌΠΌ ΠΏΡΠΈΠ½ΡΠΈΠΏΠΈΠ°Π»ΡΠ½ΠΎΠΉ ΡΠΎΠ»ΠΈ Π½Π΅ ΠΈΠ³ΡΠ°Π΅Ρ, ΠΏΠΎΡΡΠΎΠΌΡ ΠΌΠΎΠΆΠ½ΠΎ Π΄Π΅Π»Π°ΡΡ ΡΡΠΌΠΌΠ°ΡΠ½ΡΠΉ Π·Π°Π·ΠΎΡ 26 ΠΌΠΌ.
ΠΡΡΠΎΡΠ° ΡΡΠΈΠΊΠΎΠ² Ρ Π΄Π½ΠΎΠΌ ΠΈΠ· ΠΠΠ ΠΈΠ»ΠΈ Π₯ΠΠ€ ΠΌΠΎΠΆΠ΅Ρ Π²Π°ΡΡΠΈΡΠΎΠ²Π°ΡΡΡΡ Π² ΠΏΡΠ΅Π΄Π΅Π»Π°Ρ ΠΎΡ 50 Π΄ΠΎ 180 ΠΌΠΌ. Π£Π²Π΅Π»ΠΈΡΠΈΠ²Π°ΡΡ ΠΈΠ»ΠΈ ΡΠΌΠ΅Π½ΡΡΠ°ΡΡ ΡΡΠΎΡ Π³Π°Π±Π°ΡΠΈΡ Π½Π΅ ΡΠ΅ΠΊΠΎΠΌΠ΅Π½Π΄ΡΠ΅ΡΡΡ. ΠΠ»Ρ ΡΠ±ΠΎΡΠΊΠΈ Π±ΠΎΠ»Π΅Π΅ Π²ΡΡΠΎΠΊΠΈΡ ΡΡΠΈΠΊΠΎΠ² ΡΠ΅Π»Π΅ΡΠΎΠΎΠ±ΡΠ°Π·Π½ΠΎ ΠΈΡΠΏΠΎΠ»ΡΠ·ΠΎΠ²Π°ΡΡ Π΄Π½ΠΎ ΠΈΠ· ΠΠΠ‘Π. Π ΠΊΠ°ΡΠ΅ΡΡΠ²Π΅ ΠΏΡΠΈΠΌΠ΅ΡΠ° ΠΏΡΠΈΠ²Π΅Π΄Π΅ΠΌ ΠΏΡΠΈΠΌΠ΅Ρ ΡΠ°ΡΡΠ΅ΡΠ° Π΄Π΅ΡΠ°Π»Π΅ΠΉ Π΄Π»Ρ ΡΡΠΈΠΊΠΎΠ² Ρ Π΄Π½ΠΎΠΌ ΠΈΡ ΠΠΠ/Π₯ΠΠ€, ΠΊΠΎΡΠΎΡΡΠ΅ ΠΏΠ»Π°Π½ΠΈΡΡΠ΅ΡΡΡ ΡΡΡΠ°Π½ΠΎΠ²ΠΈΡΡ Π² ΡΡΠΌΠ±Π΅ Ρ Π³Π»ΡΠ±ΠΈΠ½ΠΎΠΉ ΠΊΠΎΡΠΏΡΡΠ° 460 ΠΌΠΌ ΠΈ ΡΠΈΡΠΈΠ½ΠΎΠΉ 600 ΠΌΠΌ, Ρ ΡΡΠ΅ΡΠΎΠΌ, ΡΡΠΎ Π΄Π»Ρ ΠΈΠ·Π³ΠΎΡΠΎΠ²Π»Π΅Π½ΠΈΡ Π΄Π΅ΡΠ°Π»Π΅ΠΉ ΠΏΠ»Π°Π½ΠΈΡΡΠ΅ΡΡΡ ΠΈΡΠΏΠΎΠ»ΡΠ·ΠΎΠ²Π°ΡΡ ΠΠΠ‘Π (16 ΠΌΠΌ):
- ΠΠ»ΠΈΠ½Π° Π±ΠΎΠΊΠΎΠ²ΡΡ ΡΡΠ΅Π½ΠΎΠΊ (L) β ΡΡΠΎΡ ΠΏΠ°ΡΠ°ΠΌΠ΅ΡΡ ΡΠΎΠΎΡΠ²Π΅ΡΡΡΠ²ΡΠ΅Ρ Π΄Π»ΠΈΠ½Π΅ Π½Π°ΠΏΡΠ°Π²Π»ΡΡΡΠΈΡ ΠΈΠ»ΠΈ ΠΌΠΎΠΆΠ΅Ρ Π±ΡΡΡ Π±ΠΎΠ»ΡΡΠ΅. Π Π΄Π°Π½Π½ΠΎΠΌ ΡΠ»ΡΡΠ°Π΅ Π΄Π»Ρ ΠΊΠΎΠΌΠΏΠ»Π΅ΠΊΡΠ°ΡΠΈΠΈ Π»ΡΡΡΠ΅ Π²ΡΠ΅Π³ΠΎ ΠΏΠΎΠ΄ΠΎΠΉΠ΄ΡΡ ΡΠΈΡΡΠ΅ΠΌΡ Π΄Π»ΠΈΠ½ΠΎΠΉ 400 ΠΌΠΌ. ΠΠ΄Π½Π°ΠΊΠΎ Π² ΠΊΠΎΡΠΏΡΡΠ΅ ΠΌΠΎΠΆΠ½ΠΎ ΠΏΠΎΠΌΠ΅ΡΡΠΈΡΡ Π±ΠΎΠ»Π΅Π΅ Π³Π»ΡΠ±ΠΎΠΊΠΈΠΉ ΡΡΠΈΠΊ Ρ ΠΌΠ°ΠΊΡΠΈΠΌΠ°Π»ΡΠ½ΠΎ Π΄ΠΎΠΏΡΡΡΠΈΠΌΠΎΠΉ L=435 ΠΌΠΌ.
- ΠΠ»ΠΈΠ½Π° ΠΏΠ΅ΡΠ΅Π΄Π½Π΅ΠΉ ΠΈ Π·Π°Π΄Π½Π΅ΠΉ ΡΡΠ΅Π½ΠΎΠΊ (S) β ΠΏΡΠΈ ΠΈΡΠΏΠΎΠ»ΡΠ·ΠΎΠ²Π°Π½ΠΈΠΈ 16-ΠΌΠΈΠ»Π»Π΅ΠΌΠ΅ΡΡΠΎΠ²ΠΎΠΉ ΠΏΠ»ΠΈΡΡ Π΄Π»ΠΈΠ½Π° Π±ΠΎΠΊΠΎΠ²ΠΈΠ½ ΡΠΎΡΡΠ°Π²ΠΈΡ: S=568 (Π²Π½ΡΡΡΠ΅Π½Π½ΠΈΠΉ ΠΏΡΠΎΠ΅ΠΌ) — 32 (ΡΡΠΌΠΌΠ°ΡΠ½Π°Ρ ΡΠΎΠ»ΡΠΈΠ½Π° Π΄Π²ΡΡ
Π±ΠΎΠΊΠΎΠ²ΠΈΠ½) β 26 (Π΄ΠΎΠΏΡΡΠΊ Π½Π° Π½Π°ΠΏΡΠ°Π²Π»ΡΡΡΠΈΠ΅) = 510 ΠΌΠΌ.

- ΠΠ°Π±Π°ΡΠΈΡΡ ΡΠ°ΡΠ°Π΄Π° Π½Π° ΡΡΠΈΠΊ β ΡΠΈΡΠΈΠ½Π° Π½Π°ΠΊΠ»Π°Π΄ΠΊΠΈ Π΄ΠΎΠ»ΠΆΠ½Π° Π±ΡΡΡ Π½Π° 4 ΠΌΠΌ ΠΌΠ΅Π½ΡΡΠ΅ ΡΠ°Π·ΠΌΠ΅ΡΠ° Π²Π½ΡΡΡΠ΅Π½Π½Π΅Π³ΠΎ ΠΏΡΠΎΠ΅ΠΌΠ°, Π° Π²ΡΡΠΎΡΠ° Π½Π°ΠΊΠ»Π°Π΄ΠΊΠΈ ΡΠ°ΡΡΡΠΈΡΡΠ²Π°Π΅ΡΡΡ ΠΏΠΎ ΡΠΏΠ΅ΡΠΈΠ°Π»ΡΠ½ΠΎΠΉ ΡΠΎΡΠΌΡΠ»Π΅: h= H/N-4 ΠΌΠΌ.
H — Π²ΡΡΠΎΡΠ° ΠΏΡΠΎΠ΅ΠΌΠ°;
N — ΠΊΠΎΠ»ΠΈΡΠ΅ΡΡΠ²ΠΎ ΡΡΠΈΠΊΠΎΠ² Π² ΠΏΡΠΎΠ΅ΠΌΠ΅.
Π€Π°ΡΠ°Π΄Ρ Π²Π½ΡΡΡΠ΅Π½Π½ΠΈΡ ΡΡΠΈΠΊΠΎΠ² Π½Π΅Π»ΡΠ·Ρ ΠΊΠΎΠΌΠΏΠ»Π΅ΠΊΡΠΎΠ²Π°ΡΡ ΠΎΠ±ΡΡΠ½ΡΠΌΠΈ ΡΡΡΠΊΠ°ΠΌΠΈ β ΠΎΠ½ΠΈ Π±ΡΠ΄ΡΡ Π²ΡΡΡΡΠΏΠ°ΡΡ Π·Π° ΠΏΡΠ΅Π΄Π΅Π»Ρ ΠΊΠΎΡΠΏΡΡΠ° ΠΈ Π½Π΅ Π΄Π°Π΄ΡΡ Π·Π°ΠΊΡΡΡΡΡΡ Π΄Π²Π΅ΡΠ½ΡΠΌ ΠΏΠΎΠ»ΠΎΡΠ½Π°ΠΌ. ΠΠ»Ρ ΠΎΡΠ½Π°ΡΠ΅Π½ΠΈΡ Π½Π°ΠΊΠ»Π°Π΄ΠΎΠΊ Π½ΡΠΆΠ½ΠΎ ΠΈΡΠΏΠΎΠ»ΡΠ·ΠΎΠ²Π°ΡΡ Π²ΡΠ΅Π·Π½ΡΠ΅ ΡΡΡΠΊΠΈ ΠΈΠ»ΠΈ Π΄Π΅Π»Π°ΡΡ Π½Π° Π²Π΅ΡΡ Π½Π΅ΠΉ ΡΡΠΎΡΠΎΠ½Π΅ ΡΠ°ΡΠ°Π΄Π° Π½Π΅Π±ΠΎΠ»ΡΡΠΎΠ΅ ΡΠ°Π΄ΠΈΡΡΠ½ΠΎΠ΅ ΡΠ³Π»ΡΠ±Π»Π΅Π½ΠΈΠ΅, ΡΡΠΎΠ±Ρ ΠΌΠΎΠΆΠ½ΠΎ Π±ΡΠ»ΠΎ Π·Π°Ρ Π²Π°ΡΠΈΡΡ ΡΡΠΈΠΊ ΡΡΠΊΠΎΠΉ. ΠΠ»Ρ Π²Π½ΡΡΡΠ΅Π½Π½ΠΈΡ Π²ΡΠ΄Π²ΠΈΠΆΠ½ΡΡ ΡΠ»Π΅ΠΌΠ΅Π½ΡΠΎΠ² ΡΠ°ΡΠ΅ Π²ΡΠ΅Π³ΠΎ Π²ΡΠ±ΠΈΡΠ°ΡΡ Π²ΡΠΎΡΠΎΠΉ Π²Π°ΡΠΈΠ°Π½Ρ.
ΠΡΠ»ΠΈ ΠΈΡΠΏΠΎΠ»ΡΠ·ΠΎΠ²Π°ΡΡ ΠΏΠ»ΠΈΡΡ ΡΠΎΠ»ΡΠΈΠ½ΠΎΠΉ 18 ΠΌΠΌ, Π΄Π»ΠΈΠ½Π° Π±ΠΎΠΊΠΎΠ²ΠΈΠ½ ΠΈ Π³Π°Π±Π°ΡΠΈΡΡ Π½Π°ΠΊΠ»Π°Π΄ΠΎΠΊ ΠΎΡΡΠ°Π½ΡΡΡΡ ΠΏΡΠ΅ΠΆΠ½ΠΈΠΌΠΈ, Π° Π΄Π»ΠΈΠ½Π° ΠΏΠ΅ΡΠ΅Π΄Π½Π΅ΠΉ ΠΈ Π·Π°Π΄Π½Π΅ΠΉ ΡΡΠ΅Π½ΠΎΠΊ ΡΠΌΠ΅Π½ΡΡΠΈΡΡΡ Π½Π° 4 ΠΌΠΌ.
ΠΠ»ΠΈΠ½Π° ΠΈ ΡΠΈΡΠΈΠ½Π° Π΄Π½Π° ΠΈΠ· ΠΠΠ/Π₯ΠΠ€ Π΄ΠΎΠ»ΠΆΠ½Ρ Π±ΡΡΡ Π½Π° 1 ΠΌΠΌ ΠΌΠ΅Π½ΡΡΠ΅ Π°Π½Π°Π»ΠΎΠ³ΠΈΡΠ½ΡΡ ΡΠ°Π·ΠΌΠ΅ΡΠΎΠ² ΡΡΠΈΠΊΠΎΠ² Π² ΡΠ±ΠΎΡΠ΅. Π Π΄Π°Π½Π½ΠΎΠΌ ΡΠ»ΡΡΠ°Π΅ β 434Ρ 541 ΠΌΠΌ.
ΠΠ΅ΡΠ°Π±ΠΎΠΊΡΡ
ΠΡΠΈ ΠΈΠ·Π³ΠΎΡΠΎΠ²Π»Π΅Π½ΠΈΠΈ ΡΡΠΈΠΊΠΎΠ² Ρ ΠΈΡΠΏΠΎΠ»ΡΠ·ΠΎΠ²Π°Π½ΠΈΠ΅ΠΌ ΠΌΠ΅ΡΠ°Π±ΠΎΠΊΡΠΎΠ² ΡΠΎ ΡΡΠ°Π»ΡΠ½ΡΠΌΠΈ Π±ΠΎΠΊΠΎΠ²ΠΈΠ½Π°ΠΌΠΈ ΠΈ Π΄Π½ΠΎ, ΠΈ Π·Π°Π΄Π½ΠΈΠ΅ ΡΡΠ΅Π½ΠΊΠΈ ΡΠ°ΡΠΊΡΠ°ΠΈΠ²Π°ΡΡ ΠΈΠ· ΠΠΠ‘Π.
Π ΠΎΡΠ»ΠΈΡΠΈΠ΅ ΠΎΡ ΡΠΎΠ»ΠΈΠΊΠΎΠ²ΡΡ
Π½Π°ΠΏΡΠ°Π²Π»ΡΡΡΠΈΡ
ΠΏΡΠΈ ΡΠ°ΡΡΠ΅ΡΠ΅ ΡΡΠΌΠΌΠ°ΡΠ½ΠΎΠΉ ΡΠΈΡΠΈΠ½Ρ ΡΡΠΈΠΊΠ° ΡΠ»Π΅Π΄ΡΠ΅Ρ ΠΎΡΠ½ΠΈΠΌΠ°ΡΡ Π½Π΅ 25-26 ΠΌΠΌ, Π° 31 ΠΌΠΌ. Π’ΠΎ Π΅ΡΡΡ Π³Π°Π±Π°ΡΠΈΡΡ Π΄Π΅ΡΠ°Π»Π΅ΠΉ Π΄ΠΎΠ»ΠΆΠ½Ρ Π±ΡΡΡ ΡΠ»Π΅Π΄ΡΡΡΠΈΠ΅:
- Π¨ΠΈΡΠΈΠ½Π° Π΄Π½Π° β S=568-31=537 ΠΌΠΌ.
- ΠΠ»ΡΠ±ΠΈΠ½Π° Π΄Π½Π° β ΡΠ΅ΠΎΡΠ΅ΡΠΈΡΠ΅ΡΠΊΠΈ ΡΡΠΎΡ ΡΠ°Π·ΠΌΠ΅Ρ ΡΠ°Π²Π΅Π½ Π΄Π»ΠΈΠ½Π΅ Π½Π°ΠΏΡΠ°Π²Π»ΡΡΡΠΈΡ , Π½ΠΎ Π½Π° ΠΏΡΠ°ΠΊΡΠΈΠΊΠ΅ ΠΌΠΎΠΆΠ΅Ρ ΠΎΠΊΠ°Π·Π°ΡΡΡΡ Π½Π° 4-5 ΠΌΠΌ ΠΌΠ΅Π½ΡΡΠ΅. Π’ΠΎ Π΅ΡΡΡ Π² Π½Π°ΡΠ΅ΠΌ ΡΠ»ΡΡΠ°Π΅ Π³Π»ΡΠ±ΠΈΠ½Π° ΠΌΠΎΠΆΠ΅Ρ ΡΠΎΡΡΠ°Π²ΠΈΡΡ 395-400 ΠΌΠΌ.
- ΠΠ»ΠΈΠ½Π° Π·Π°Π΄Π½Π΅ΠΉ ΡΡΠ΅Π½ΠΊΠΈ β ΡΠ°ΠΊΠ°Ρ ΠΆΠ΅ ΠΊΠ°ΠΊ ΠΈ ΡΠΈΡΠΈΠ½Π° Π΄Π½Π°: L=537 ΠΌΠΌ.
- ΠΡΡΠΎΡΠ° Π·Π°Π΄Π½Π΅ΠΉ ΡΡΠ΅Π½ΠΊΠΈ β ΡΡΠΎΡ ΠΏΠ°ΡΠ°ΠΌΠ΅ΡΡ Π·Π°Π²ΠΈΡΠΈΡ ΠΎΡ ΠΌΠΎΠ΄Π΅Π»ΠΈ ΠΌΠ΅ΡΠ°Π±ΠΎΠΊΠΎΡΠΎΠ². Π‘ΡΠ°Π»ΡΠ½ΡΠ΅ Π±ΠΎΠΊΠΎΠ²ΠΈΠ½Ρ ΠΌΠΎΠ³ΡΡ ΠΈΠΌΠ΅ΡΡ Π²ΡΡΠΎΡΡ 55; 86; 118 ΠΈ 150 ΠΌΠΌ. Π Π·Π°Π²ΠΈΡΠΈΠΌΠΎΡΡΠΈ ΠΎΡ ΠΌΠΎΠ΄ΠΈΡΠΈΠΊΠ°ΡΠΈΠΈ ΠΎΡ ΠΎΠ΄Π½ΠΎΠ³ΠΎ ΠΈΠ· ΡΠΊΠ°Π·Π°Π½Π½ΡΡ ΠΏΠ°ΡΠ°ΠΌΠ΅ΡΡΠΎΠ² Π½Π΅ΠΎΠ±Ρ ΠΎΠ΄ΠΈΠΌΠΎ ΠΎΡΠ½ΡΡΡ ΡΠΎΠ»ΡΠΈΠ½Ρ Π΄Π½Π° (16 ΠΈΠ»ΠΈ 18 ΠΌΠΌ) β ΡΡΠΎ ΠΈ Π±ΡΠ΄Π΅Ρ Π²ΡΡΠΎΡΠ° Π·Π°Π΄Π½Π΅ΠΉ ΡΡΠ΅Π½ΠΊΠΈ ΡΡΠΈΠΊΠ° ΠΈΠ· ΠΌΠ΅ΡΠ°Π±ΠΎΠΊΡΠΎΠ².
Π Π½Π΅ΠΊΠΎΡΠΎΡΡΡ
ΡΠΈΡΡΠ°ΡΠΈΡΡ
ΠΌΠΎΠΆΠ½ΠΎ ΡΠ²Π΅Π»ΠΈΡΠΈΡΡ Π²ΡΡΠΎΡΡ Π·Π°Π΄Π½Π΅ΠΉ ΡΡΠ΅Π½ΠΊΠΈ. Π ΡΠ°ΠΊΠΎΠΌ ΡΠ»ΡΡΠ°Π΅ Π½Π΅ΠΎΠ±Ρ
ΠΎΠ΄ΠΈΠΌΠΎ ΠΏΡΠΈΠΎΠ±ΡΠ΅ΡΡΠΈ ΡΠΏΠ΅ΡΠΈΠ°Π»ΡΠ½ΡΠ΅ ΡΠ΅ΠΉΠ»ΠΈΠ½Π³ΠΈ. ΠΠ½ΠΈ ΠΊΡΠ΅ΠΏΡΡΡΡ ΠΊ ΡΠ°ΡΠ°Π΄Ρ ΠΈ Π·Π°Π΄Π½Π΅ΠΉ ΡΡΠ΅Π½ΠΊΠ΅ ΠΈ ΡΠ²Π»ΡΡΡΡΡ ΡΠ²ΠΎΠ΅ΠΎΠ±ΡΠ°Π·Π½ΡΠΌ ΠΏΡΠΎΠ΄ΠΎΠ»ΠΆΠ΅Π½ΠΈΠ΅ΠΌ ΡΡΠ°Π»ΡΠ½ΡΡ
Π±ΠΎΠΊΠΎΠ²ΠΈΠ½ ΠΌΠ΅ΡΠ°Π±ΠΎΠΊΡΠΎΠ².
Π Π°Π·ΠΌΠ΅ΡΡ Π½Π°ΠΊΠ»Π°Π΄ΠΎΠΊ Π΄Π»Ρ ΠΌΠ΅ΡΠ°Π±ΠΎΠΊΡΠΎΠ² ΠΎΠΏΡΠ΅Π΄Π΅Π»ΡΡΡΡΡ ΡΠ°ΠΊ ΠΆΠ΅, ΠΊΠ°ΠΊ ΠΈ ΠΏΡΠΈ ΡΠ°ΡΡΠ΅ΡΠ΅ ΡΠ°ΡΠ°Π΄ΠΎΠ² Π΄Π»Ρ ΡΡΠΈΠΊΠΎΠ² Ρ ΠΎΠ±ΡΡΠ½ΡΠΌΠΈ Π½Π°ΠΏΡΠ°Π²Π»ΡΡΡΠΈΠΌΠΈ.
ΠΠ°ΠΏΡΠ°Π²Π»ΡΡΡΠΈΠ΅ ΡΠΊΡΡΡΠΎΠ³ΠΎ ΠΌΠΎΠ½ΡΠ°ΠΆΠ°
ΠΠ»Ρ ΡΡΠΈΡ Π²ΡΠ΄Π²ΠΈΠΆΠ½ΡΡ ΡΠΈΡΡΠ΅ΠΌ Π½ΡΠΆΠ½ΠΎ Π³ΠΎΡΠΎΠ²ΠΈΡΡ ΡΡΠΈΠΊΠΈ Ρ Π΄Π½ΠΎΠΌ ΠΈΠ· ΠΠΠ‘Π, ΠΊΠΎΡΠΎΡΠΎΠ΅ ΠΌΠΎΠΆΠ΅Ρ Π±ΡΡΡ ΠΊΠ°ΠΊ Π½Π°ΠΊΠ»Π°Π΄Π½ΡΠΌ, ΡΠ°ΠΊ ΠΈ Π²Π½ΡΡΡΠ΅Π½Π½ΠΈΠΌ. ΠΡΠΎΠ±Π΅Π½Π½ΠΎΡΡΡ ΡΡΠΈΡ Π½Π°ΠΏΡΠ°Π²Π»ΡΡΡΠΈΡ Π·Π°ΠΊΠ»ΡΡΠ°Π΅ΡΡΡ Π² ΡΠΎΠΌ, ΡΡΠΎ Ρ ΡΡΠΈΠΊΠΎΠ² Π±ΠΎΠΊΠΎΠ²ΠΈΠ½Ρ Π²ΡΡΠ΅ ΠΏΠ΅ΡΠ΅Π΄Π½ΠΈΡ ΠΈ Π·Π°Π΄Π½ΠΈΡ ΡΡΠ΅Π½ΠΎΠΊ. Π Π°Π·Π½ΠΈΡΠ° ΡΠΎΡΡΠ°Π²Π»ΡΠ΅Ρ 10-15 ΠΌΠΌ ΠΈ Π·Π°Π²ΠΈΡΠΈΡ ΠΎΡ ΠΌΠΎΠ΄Π΅Π»ΠΈ Π½Π°ΠΏΡΠ°Π²Π»ΡΡΡΠ΅ΠΉ. ΠΠΎΡΠΊΠΎΠ»ΡΠΊΡ Π΄Π½ΠΎ Π½Π°ΠΊΠ»Π°Π΄Π½ΠΎΠ΅, Π΄ΠΎΠ»ΠΆΠ½Π° Π±ΡΡΡ ΡΡΡΠ΅Π½Π° ΠΈ Π΅Π³ΠΎ ΡΠΎΠ»ΡΠΈΠ½Π° (16-18 ΠΌΠΌ). ΠΡΠΎΡ Π²ΠΈΠ΄ Π½Π°ΠΏΡΠ°Π²Π»ΡΡΡΠΈΡ ΠΏΠΎΠ΄Ρ ΠΎΠ΄ΠΈΡ Π΄Π»Ρ ΠΈΠ·Π³ΠΎΡΠΎΠ²Π»Π΅Π½ΠΈΡ Π³Π»ΡΠ±ΠΎΠΊΠΈΡ ΡΡΠΈΠΊΠΎΠ² Ρ Π²ΡΡΠΎΡΠΎΠΉ ΡΡΠ΅Π½ΠΎΠΊ Π΄ΠΎ 250-300 ΠΌΠΌ. Π ΡΡΠΎΠΌ ΡΠ»ΡΡΠ°Π΅ Π΄Π΅ΡΠ°Π»ΠΈ Π΄Π½Π° ΡΡΠΈΠΊΠΎΠ² Π΄Π»Ρ ΡΡΠΌΠ±Ρ Ρ Π²Π½ΡΡΡΠ΅Π½Π½ΠΈΠΌ ΠΏΡΠΎΡΠ²Π΅ΡΠΎΠΌ 568 ΠΌΠΌ ΠΈ Π³Π»ΡΠ±ΠΈΠ½ΠΎΠΉ 460 ΠΌΠΌ Π±ΡΠ΄ΡΡ ΠΈΠΌΠ΅ΡΡ ΡΠ»Π΅Π΄ΡΡΡΠΈΠ΅ ΡΠ°Π·ΠΌΠ΅ΡΡ:
- ΠΠΎΠΊΠΎΠ²ΡΠ΅ ΡΡΠΎΠΉΠΊΠΈ β ΡΠ²Π΅Π»ΠΈΡΠΈΡΡ Π³Π»ΡΠ±ΠΈΠ½Ρ ΡΡΠΈΠΊΠ° Π½Π΅ ΠΏΠΎΠ»ΡΡΠΈΡΡΡ, ΡΠ°ΠΊ ΠΊΠ°ΠΊ ΡΡΠΎ Π½Π΅ ΠΏΠΎΠ·Π²ΠΎΠ»ΡΠ΅Ρ ΡΠ΄Π΅Π»Π°ΡΡ ΠΊΠΎΠ½ΡΡΡΡΠΊΡΠΈΡ Π½Π°ΠΏΡΠ°Π²Π»ΡΡΡΠΈΡ
. ΠΡΠΈΠ΄Π΅ΡΡΡ Π΄Π°ΠΆΠ΅ Π½Π΅ΠΌΠ½ΠΎΠ³ΠΎ ΡΠΌΠ΅Π½ΡΡΠΈΡΡ Π½Π° 10ΠΌΠΌ β ΡΡΠΎ ΡΡΠ΅Π±ΡΠ΅Ρ ΠΈΠ½ΡΡΡΡΠΊΡΠΈΡ ΠΏΠΎ ΡΡΡΠ°Π½ΠΎΠ²ΠΊΠ΅. ΠΠΎΡΠΊΠΎΠ»ΡΠΊΡ Π΄Π»Ρ Π΄Π°Π½Π½ΠΎΠ³ΠΎ ΡΠ»ΡΡΠ°Ρ Π½ΡΠΆΠ½ΠΎ ΠΈΡΠΏΠΎΠ»ΡΠ·ΠΎΠ²Π°ΡΡ ΠΌΠΎΠ΄Π΅Π»Ρ L=400 ΠΌΠΌ, Π΄Π»ΠΈΠ½Π° Π±ΠΎΠΊΠΎΠ²ΠΈΠ½ ΡΠΎΡΡΠ°Π²ΠΈΡ 390 ΠΌΠΌ.
ΠΡΡΠΎΡΠ° Π΄Π΅ΡΠ°Π»Π΅ΠΉ h=250 ΠΌΠΌ. - ΠΠ΅ΡΠ΅Π΄Π½ΠΈΠ΅ ΠΈ Π·Π°Π΄Π½ΠΈΠ΅ ΡΡΠ΅Π½ΠΊΠΈ β Π΄Π»ΠΈΠ½Π° ΡΡΠΈΡ Π΄Π΅ΡΠ°Π»Π΅ΠΉ ΡΠΎΡΡΠ°Π²ΠΈΡ L=568-42=524 ΠΌΠΌ. ΠΠ»Ρ ΠΌΠΎΠ΄Π΅Π»Π΅ΠΉ, ΠΏΡΠ΅Π΄ΡΡΠ°Π²Π»Π΅Π½Π½ΡΡ Π² ΠΠ Β«ΠΡΠΎΠ½Π°ΡΒ», ΠΎΡ ΡΠΈΡΠΈΠ½Ρ Π²Π½ΡΡΡΠ΅Π½Π½Π΅Π³ΠΎ ΠΏΡΠΎΡΠ²Π΅ΡΠ° Π½ΡΠΆΠ½ΠΎ ΠΎΡΠ½ΡΡΡ 42 ΠΌΠΌ. ΠΠ»Ρ Π½Π°ΠΏΡΠ°Π²Π»ΡΡΡΠΈΡ Π΄ΡΡΠ³ΠΈΡ ΠΌΠ°ΡΠΎΠΊ ΡΡΠ° Π²Π΅Π»ΠΈΡΠΈΠ½Π° ΠΌΠΎΠΆΠ΅Ρ Π±ΡΡΡ Π΄ΡΡΠ³ΠΎΠΉ. ΠΡΡΠΎΡΠ° ΠΏΠ΅ΡΠ΅Π΄Π½ΠΈΡ ΠΈ Π·Π°Π΄Π½ΠΈΡ ΡΡΠ΅Π½ΠΎΠΊ Π² ΡΡΠΎΠΌ ΡΠ»ΡΡΠ°Π΅ ΡΠΎΡΡΠ°Π²ΠΈΡ h=250 (Π²ΡΡΠΎΡΠ° Π±ΠΎΠΊΠΎΠ²ΠΈΠ½) -16 (ΡΠΎΠ»ΡΠΈΠ½Π° Π΄Π½Π°) -13 (Π·Π°Π·ΠΎΡ Π²Π½ΠΈΠ·Ρ ΠΌΠ΅ΠΆΠ΄Ρ Π±ΠΎΠΊΠΎΠ²ΠΈΠ½Π°ΠΌΠΈ ΠΈ Π΄Π½ΠΎΠΌ) = 221 ΠΌΠΌ.
- Π Π°Π·ΠΌΠ΅ΡΡ Π΄Π½Π° β Π΄Π»ΠΈΠ½Π° Π΄Π΅ΡΠ°Π»ΠΈ ΡΠ°ΠΊΠ°Ρ ΠΆΠ΅, ΠΊΠ°ΠΊ ΠΈ Ρ Π±ΠΎΠΊΠΎΠ²ΠΈΠ½ L=390 ΠΌΠΌ, Π° ΡΠΈΡΠΈΠ½Π° ΡΠΎΡΡΠ°Π²Π»ΡΠ΅Ρ 524 ΠΌΠΌ ΠΈ ΡΠΎΠ²ΠΏΠ°Π΄Π°Π΅Ρ Ρ ΡΠΈΡΠΈΠ½ΠΎΠΉ ΠΏΠ΅ΡΠ΅Π΄Π½ΠΈΡ ΠΈ Π·Π°Π΄Π½ΠΈΡ ΡΡΠ΅Π½ΠΎΠΊ.
Π ΡΠ»ΡΡΠ°Π΅ ΠΈΡΠΏΠΎΠ»ΡΠ·ΠΎΠ²Π°Π½ΠΈΡ Π½Π°ΠΏΡΠ°Π²Π»ΡΡΡΠΈΡ ΡΠΊΡΡΡΠΎΠ³ΠΎ ΠΌΠΎΠ½ΡΠ°ΠΆΠ° Π΄Π»Ρ ΠΊΠΎΠΌΠΏΠ»Π΅ΠΊΡΠ°ΡΠΈΠΈ Π²Π½ΡΡΡΠ΅Π½Π½ΠΈΡ Π²ΡΡΠΎΠΊΠΈΡ ΡΡΠΈΠΊΠΎΠ², ΠΌΠΎΠΆΠ½ΠΎ ΠΎΠ±ΠΎΠΉΡΠΈΡΡ Π±Π΅Π· ΡΠ°ΡΠ°Π΄ΠΎΠ² Π½Π°ΠΊΠ»Π°Π΄ΠΎΠΊ. ΠΡΠΎ ΠΏΠΎΠ·Π²ΠΎΠ»ΠΈΡ ΠΈΡΠΏΠΎΠ»ΡΠ·ΠΎΠ²Π°ΡΡ Π΄Π»Ρ ΠΊΠΎΡΠΏΡΡΠ° Ρ Π³Π»ΡΠ±ΠΈΠ½ΠΎΠΉ 460 ΠΌΠΌ Π½Π°ΠΏΡΠ°Π²Π»ΡΡΡΡΡ L=450 ΠΌΠΌ ΠΈ ΡΠ²Π΅Π»ΠΈΡΠΈΡΡ Π³Π°Π±Π°ΡΠΈΡΡ ΡΡΠΈΠΊΠΎΠ².
ΠΠ°ΠΊΠ»ΡΡΠ΅Π½ΠΈΠ΅
ΠΡΠΈΠΌΠ΅ΡΡ ΡΠ°ΡΡΠ΅ΡΠΎΠ² Π΄Π»Ρ 3 Π²ΠΈΠ΄ΠΎΠ² Π²ΡΠ΄Π²ΠΈΠΆΠ½ΡΡ
ΡΠΈΡΡΠ΅ΠΌ β Π»ΠΈΡΡ ΡΠ°Π±Π»ΠΎΠ½ Π°Π»Π³ΠΎΡΠΈΡΠΌΠ° Π΄Π΅ΠΉΡΡΠ²ΠΈΠΉ. ΠΡΠΈ Π²ΡΡΠΈΡΠ»Π΅Π½ΠΈΠΈ ΡΠ°Π·ΠΌΠ΅ΡΠΎΠ² Π΄Π΅ΡΠ°Π»Π΅ΠΉ ΡΡΠΈΠΊΠΎΠ² Π΄Π»Ρ ΠΎΠΏΡΠ΅Π΄Π΅Π»Π΅Π½Π½ΠΎΠΉ ΠΌΠΎΠ΄Π΅Π»ΠΈ Π½Π°ΠΏΡΠ°Π²Π»ΡΡΡΠΈΡ
Π½Π΅ΠΎΠ±Ρ
ΠΎΠ΄ΠΈΠΌΠΎ ΡΠ²Π΅ΡΡΡΡΡΡ Ρ ΠΈΠ½ΡΠΎΡΠΌΠ°ΡΠΈΠ΅ΠΉ ΠΈΠ· ΠΈΠ½ΡΡΡΡΠΊΡΠΈΠΈ.
ΠΡΠΈΠ½ΡΠΈΠΏ ΡΠ°ΡΡΠ΅ΡΠ° ΠΎΡΡΠ°Π΅ΡΡΡ ΠΏΡΠ΅ΠΆΠ½ΠΈΠΌ, Π° Π²ΠΎΡ Π΄ΠΎΠΏΡΡΠΊΠΈ ΠΌΠΎΠ³ΡΡ Π½Π΅ΠΌΠ½ΠΎΠ³ΠΎ ΠΈΠ·ΠΌΠ΅Π½ΠΈΡΡΡΡ.
ΠΠ°ΠΏΡΠ°Π²Π»ΡΡΡΠΈΠ΅ Π΄Π»Ρ Π²ΡΠ΄Π²ΠΈΠΆΠ½ΡΡ ΡΡΠΈΠΊΠΎΠ² Π»ΡΠ±ΡΡ ΡΠ°Π·ΠΌΠ΅ΡΠΎΠ²: ΡΠ΅Π»Π΅ΡΠΊΠΎΠΏΠΈΡΠ΅ΡΠΊΠΈΠ΅, ΡΠ°ΡΠΈΠΊΠΎΠ²ΡΠ΅, ΡΠΎΠ»ΠΈΠΊΠΎΠ²ΡΠ΅, Ρ Π΄ΠΎΠ²ΠΎΠ΄ΡΠΈΠΊΠΎΠΌ
ΠΠ΄Π΅Ρ ΡΠΎΠ·Π΄Π°Π½ΠΈΡ Π½Π°ΡΠ΅ΠΉ ΠΊΠΎΠΌΠΏΠ°Π½ΠΈΠΈ Π±ΡΠ»Π° ΠΏΡΠΎΠ΄ΠΈΠΊΡΠΎΠ²Π°Π½Π° Π½Π°ΠΌ ΡΠΈΡΡΠ°ΡΠΈΠ΅ΠΉ Π½Π° ΠΌΠ΅Π±Π΅Π»ΡΠ½ΠΎΠΌ ΡΡΠ½ΠΊΠ΅
Π² ΡΠ΅ Π½Π΅ ΡΠ°ΠΊΠΈΠ΅ Π΄Π°Π»Π΅ΠΊΠΈΠ΅ 90 Π³ΠΎΠ΄Ρ, ΠΊΠΎΠ³Π΄Π° ΠΏΠΎΠ½ΡΡΠΈΡ ΠΊΠΎΠΌΠΏΠ»Π΅ΠΊΡΠ½ΠΎΠ³ΠΎ ΠΎΠ±ΡΠ»ΡΠΆΠΈΠ²Π°Π½ΠΈΡ ΠΊΡΡΡΠ°ΡΠ½ΡΡ
ΠΌΠ΅Π±Π΅Π»ΡΡΠΈΠΊΠΎΠ²,
ΡΠΌΠ΅ΡΡΠΈΡ
ΡΠ°Π±ΠΎΡΠ°ΡΡ ΡΡΠΊΠ°ΠΌΠΈ ΠΈ Π³ΠΎΠ»ΠΎΠ²ΠΎΠΉ, ΠΏΡΠ°ΠΊΡΠΈΡΠ΅ΡΠΊΠΈ Π½Π΅ Π±ΡΠ»ΠΎ.
Π ΠΏΠ΅ΡΠ²ΡΠ΅ ΠΆΠ΅ ΠΌΠ΅ΡΡΡΡ Π½Π°ΡΠ΅ΠΉ ΡΠ°Π±ΠΎΡΡ ΠΌΡ ΠΏΠΎΠ½ΡΠ»ΠΈ, ΡΡΠΎ Π½Π°Ρ
ΠΎΠ΄ΠΈΠΌΡΡ Π½Π° Π²Π΅ΡΠ½ΠΎΠΌ ΠΏΡΡΠΈ. ΠΡΠΈ ΠΎΠ±ΡΠ΅Π½ΠΈΠΈ Ρ Π»ΡΠ΄ΡΠΌΠΈ,
ΠΊΠΎΡΠΎΡΡΡ
ΠΌΡ ΠΎΠ±ΡΠ»ΡΠΆΠΈΠ²Π°Π»ΠΈ Π² ΡΠΎ Π²ΡΠ΅ΠΌΡ, Π·Π²ΡΡΠ°Π»ΠΈ Π²ΠΏΠΎΠ»Π½Π΅ ΡΠ°Π·ΡΠΌΠ½ΡΠ΅ ΠΏΡΠ΅Π΄Π»ΠΎΠΆΠ΅Π½ΠΈΡ ΠΏΠΎ ΡΡΠΎΠ²Π΅ΡΡΠ΅Π½ΡΡΠ²ΠΎΠ²Π°Π½ΠΈΡ
ΠΏΠΎΠ»ΡΡΠ°Π΅ΠΌΡΡ
ΡΡΠ»ΡΠ³ ΠΈ ΡΠ°ΡΡΠΈΡΠ΅Π½ΠΈΡ Π°ΡΡΠΎΡΡΠΈΠΌΠ΅Π½ΡΠ° ΡΠΎΠΏΡΡΡΡΠ²ΡΡΡΠΈΡ
ΡΠΎΠ²Π°ΡΠΎΠ². Π’Π°ΠΊΠΈΠΌ ΠΎΠ±ΡΠ°Π·ΠΎΠΌ Π½Π°ΡΠ°Π»ΠΎΡΡ Π½Π°ΡΠ΅
Π±ΡΡΠ½ΠΎΠ΅ ΡΠ°Π·Π²ΠΈΡΠΈΠ΅.
Π 2005 Π³ΠΎΠ΄Ρ Π΄Π»Ρ Π½Π°Ρ ΡΡΠ°Π» ΠΎΡΠ΅Π²ΠΈΠ΄Π½ΡΠΌ ΡΠ°ΠΊΡ, ΡΡΠΎ ΠΏΠΎΡΡΠ΅ΠΏΠ΅Π½Π½ΠΎ Ρ Π½Π°ΡΠΈΡ
ΠΊΠ»ΠΈΠ΅Π½ΡΠΎΠ² ΠΏΠΎΡΠ²Π»ΡΠ΅ΡΡΡ ΠΏΠΎΡΡΠ΅Π±Π½ΠΎΡΡΡ
ΠΈ Π²ΠΎΠ·ΠΌΠΎΠΆΠ½ΠΎΡΡΡ ΠΏΠΎΠΊΡΠΏΠ°ΡΡ ΡΠΎΠ²Π°ΡΡ OnLine.
Π ΡΠ²ΡΠ·ΠΈ Ρ ΡΡΠΈΠΌ, Π±ΡΠ»ΠΎ ΠΏΡΠΈΠ½ΡΡΠΎ ΡΠ΅ΡΠ΅Π½ΠΈΠ΅ ΡΠΎΠ·Π΄Π°ΡΡ ΠΈΠ½ΡΠ΅ΡΠ½Π΅Ρ
ΠΌΠ°Π³Π°Π·ΠΈΠ½ Π΄Π»Ρ ΡΠΎΠ²ΡΠ΅ΠΌΠ΅Π½Π½ΡΡ
ΠΌΠ΅Π±Π΅Π»ΡΡΠΈΠΊΠΎΠ² ΠΈ ΡΠΎΠ·Π½ΠΈΡΠ½ΡΡ
ΠΊΠ»ΠΈΠ΅Π½ΡΠΎΠ².
Π Π½Π°ΡΠ΅ΠΌ Π½ΠΎΠ²ΠΎΠΌ ΡΠ΅ΡΠ²ΠΈΡΠ΅ ΠΌΡ ΠΏΡΠ΅Π΄ΠΎΡΡΠ°Π²ΠΈΠ»ΠΈ Π±ΡΡΡΡΡΡ Π²ΠΎΠ·ΠΌΠΎΠΆΠ½ΠΎΡΡΡ ΡΠ°Π·ΠΎΠ±ΡΠ°ΡΡΡΡ Π² ΠΎΠ³ΡΠΎΠΌΠ½ΠΎΠΌ ΠΊΠΎΠ»ΠΈΡΠ΅ΡΡΠ²Π΅
ΡΠΎΠ²Π°ΡΠΎΠ², Π½Π΅ΠΎΠ±Ρ
ΠΎΠ΄ΠΈΠΌΡΡ
Π΄Π»Ρ ΠΈΠ·Π³ΠΎΡΠΎΠ²Π»Π΅Π½ΠΈΡ ΠΈΠ½Π΄ΠΈΠ²ΠΈΠ΄ΡΠ°Π»ΡΠ½ΠΎΠΉ ΠΌΠ΅Π±Π΅Π»ΠΈ.
ΠΠ½ΡΠ΅ΡΠ½Π΅Ρ ΠΌΠ°Π³Π°Π·ΠΈΠ½ Π’ΠΎΡΠ³ΠΎΠ²ΠΎΠΉ ΠΠ°ΡΠΊΠΈ ΠΠΠΠ‘ ΠΏΠΎΡΡΠ΅ΠΏΠ΅Π½Π½ΠΎ Π½Π°Π±ΠΈΡΠ°Π» ΠΏΠΎΠΏΡΠ»ΡΡΠ½ΠΎΡΡΡ Π½Π΅ ΡΠΎΠ»ΡΠΊΠΎ Π² ΡΠ²ΠΎΠ΅ΠΌ ΡΠ΅Π³ΠΈΠΎΠ½Π΅,
Π½ΠΎ ΠΈ ΠΏΠΎ Π²ΡΠ΅ΠΉ ΡΠ΅ΡΡΠΈΡΠΎΡΠΈΠΈ Π£ΠΊΡΠ°ΠΈΠ½Ρ. Π‘ Π½Π°ΠΌΠΈ Π½Π°ΡΠ°Π»ΠΈ ΡΠΎΡΡΡΠ΄Π½ΠΈΡΠ°ΡΡ ΠΌΠ½ΠΎΠ³ΠΈΠ΅ ΠΌΠ΅Π±Π΅Π»ΡΡΠΈΠΊΠΈ ΠΈΠ· ΡΠ°Π·Π½ΡΡ
ΡΠ΅Π³ΠΈΠΎΠ½ΠΎΠ², Π³Π΄Π΅ ΠΎΠ±ΡΠ»ΡΠΆΠΈΠ²Π°Π½ΠΈΠ΅ Π½Π΅ ΡΠΎ, ΡΡΠΎ ΠΎΠ½Π»Π°ΠΉΠ½, Π° Π΄Π°ΠΆΠ΅ ΠΎΡΠ»Π°ΠΉΠ½, Π΄ΠΎ ΡΠΈΡ
ΠΏΠΎΡ Π½Π° ΠΎΡΠ΅Π½Ρ Π½ΠΈΠ·ΠΊΠΎΠΌ ΡΡΠΎΠ²Π½Π΅.
ΠΠΎΡΡΠ΅ΠΏΠ΅Π½Π½ΠΎ Ρ Π½Π°Ρ ΡΡΠ°Π»ΠΈ ΠΏΠΎΡΠ²Π»ΡΡΡΡΡ ΠΊΠ»ΠΈΠ΅Π½ΡΡ ΠΈΠ· Π³ΠΎΡΠΎΠ΄ΠΎΠ² ΠΌΠΈΠ»Π»ΠΈΠΎΠ½Π½ΠΈΠΊΠΎΠ², Π² ΠΊΠΎΡΠΎΡΡΡ
Ρ ΠΊΠ°ΠΆΠ΄ΡΠΌ Π³ΠΎΠ΄ΠΎΠΌ
ΡΡΠ°Π½ΠΎΠ²ΠΈΠ»ΠΎΡΡ Π²ΡΠ΅ ΡΡΡΠ΄Π½Π΅Π΅ ΠΈ ΡΡΡΠ΄Π½Π΅Π΅ ΠΏΠ΅ΡΠ΅ΠΌΠ΅ΡΠ°ΡΡΡΡ ΠΈΠ· ΡΠΎΡΠΊΠΈ Π Π² ΡΠΎΡΠΊΡ Π.
Π ΡΠ°ΠΊ, ΠΈΠ· Π³ΠΎΠ΄Π° Π² Π³ΠΎΠ΄, ΡΠ°Π±ΠΎΡΠ°Ρ Π½Π°Π΄ ΡΠ»ΡΡΡΠ΅Π½ΠΈΠ΅ΠΌ Π½Π°ΡΠ΅Π³ΠΎ ΡΠ΅ΡΠ²ΠΈΡΠ°, ΠΊ 2010 Π³ΠΎΠ΄Ρ ΠΌΡ Π²ΡΡΠ»ΠΈ Π² Π»ΠΈΠ΄Π΅ΡΡ ΠΏΠΎ
ΠΎΠ±ΡΠ»ΡΠΆΠΈΠ²Π°Π½ΠΈΡ ΠΊΠ»ΠΈΠ΅Π½ΡΠΎΠ² ΠΎΠ½Π»Π°ΠΉΠ½ Π² ΡΠ°ΠΊΠΎΠΉ ΡΠ·ΠΊΠΎΡΠΏΠ΅ΡΠΈΠ°Π»ΠΈΠ·ΠΈΡΠΎΠ²Π°Π½Π½ΠΎΠΉ Π½ΠΈΡΠ΅, ΠΊΠ°ΠΊ ΠΌΠ΅Π±Π΅Π»ΡΠ½Π°Ρ ΡΡΡΠ½ΠΈΡΡΡΠ°.
Π
ΡΡΠΎΠΌ ΠΆΠ΅ Π³ΠΎΠ΄Ρ Π±ΡΠ»ΠΎ ΠΏΡΠΈΠ½ΡΡΠΎ ΡΠ΅ΡΠ΅Π½ΠΈΠ΅ ΠΎ Π²ΡΡΡΠ°Π²Π»Π΅Π½ΠΈΠΈ ΡΠΎΡΠΎΠ³ΡΠ°ΡΠΈΠΉ ΡΠΎΠ²Π°ΡΠΎΠ² ΡΠΎΠ±ΡΡΠ²Π΅Π½Π½ΠΎΠ³ΠΎ ΠΏΡΠΎΠΈΠ·Π²ΠΎΠ΄ΡΡΠ²Π°:
ΡΠΊΠ°ΡΠΎΠ², ΠΏΡΠΈΡ
ΠΎΠΆΠΈΡ
, Π΄ΠΈΠ²Π°Π½ΠΎΠ² Π΄Π»Ρ ΠΎΠ½Π»Π°ΠΉΠ½ ΠΏΡΠΎΠ΄Π°ΠΆΠΈ. ΠΡΠΎ ΡΠ΅ΡΠ΅Π½ΠΈΠ΅ ΡΠ°ΠΊΠΆΠ΅ Π±ΡΠ»ΠΎ ΡΡΠΏΠ΅ΡΠ½ΡΠΌ ΠΈ ΠΏΡΠΈΠ²Π΅Π»ΠΎ Π½Π°Ρ ΠΊ
ΡΠ°ΡΡΠΈΡΠ΅Π½ΠΈΡ Π°ΡΡΠΎΡΡΠΈΠΌΠ΅Π½ΡΠ° ΠΌΠ΅Π±Π΅Π»ΠΈ ΠΈ Π΄ΠΎΠ³ΠΎΠ²ΠΎΡΠ΅Π½Π½ΠΎΡΡΠΈ Ρ Π΄ΡΡΠ³ΠΈΠΌΠΈ ΠΏΡΠΎΠΈΠ·Π²ΠΎΠ΄ΠΈΡΠ΅Π»ΡΠΌΠΈ ΠΎ ΡΠ΅Π°Π»ΠΈΠ·Π°ΡΠΈΠΈ ΠΈΡ
ΡΠΎΠ²Π°ΡΠΎΠ² Π½Π° Π½Π°ΡΠ΅ΠΉ ΠΏΠ»ΠΎΡΠ°Π΄ΠΊΠ΅.
Π‘Π΅Π³ΠΎΠ΄Π½Ρ ΠΌΡ ΠΎΡΠ΅Π½Ρ ΡΡΠ°ΡΠ΅Π»ΡΠ½ΠΎ ΠΎΡΠ½ΠΎΡΠΈΠΌΡΡ ΠΊ Π²ΡΠ±ΠΎΡΡ Π½Π°ΡΠΈΡ
ΠΏΠ°ΡΡΠ½Π΅ΡΠΎΠ²-ΠΏΠΎΡΡΠ°Π²ΡΠΈΠΊΠΎΠ² ΠΈ ΠΏΠΎΡΡΠΎΡΠ½Π½ΠΎ ΡΠ°Π±ΠΎΡΠ°Π΅ΠΌ
Π½Π°Π΄ ΠΏΠΎΠ²ΡΡΠ΅Π½ΠΈΠ΅ΠΌ ΡΡΠΎΠ²Π½Ρ ΡΠ΅ΡΠ²ΠΈΡΠ° Π΄Π»Ρ Π½Π°ΡΠΈΡ
ΠΊΠ»ΠΈΠ΅Π½ΡΠΎΠ².
ΠΡΠΎ Π½Π΅ ΠΏΡΠΎΡΡΠΎ ΡΠ»ΠΎΠ²Π°, ΠΊΠΎΡΠΎΡΡΠ΅ ΡΠΊΡΠ°ΡΠ°ΡΡ ΡΡΠΎΡ ΡΠ΅ΠΊΡΡ. ΠΠ°ΠΆΠ΄ΡΠΉ ΡΠΎΡΡΡΠ΄Π½ΠΈΠΊ, ΠΊΠΎΡΠΎΡΠΎΠ³ΠΎ ΠΌΡ ΠΏΡΠΈΠ½ΠΈΠΌΠ°Π΅ΠΌ Π½Π°
ΡΠ°Π±ΠΎΡΡ, ΠΏΡΠΈΠ΄Π΅ΡΠΆΠΈΠ²Π°Π΅ΡΡΡ ΠΊΠ»ΡΡΠ΅Π²ΠΎΠΉ ΡΠ΅Π½Π½ΠΎΡΡΠΈ ΠΊΠΎΠΌΠΏΠ°Π½ΠΈΠΈ — ΠΡ ΠΡΠΏΠΎΠ»Π½ΡΠ΅ΠΌ Π’ΠΎ, Π§ΡΠΎ ΠΠΎΠΎΠ±Π΅ΡΠ°Π»ΠΈ ΠΠ»ΠΈΠ΅Π½ΡΡ Π‘
ΠΠ΅ΡΠ²ΠΎΠ³ΠΎ Π Π°Π·Π° Π Π’ΠΎΡΠ½ΠΎ ΠΠΎΠ²ΡΠ΅ΠΌΡ. ΠΡΠΎ ΠΆΠ΅ ΡΡΠ΅Π±ΠΎΠ²Π°Π½ΠΈΠ΅ ΠΎΡΠ½ΠΎΡΠΈΡΡΡ ΠΈ ΠΊ Π½Π°ΡΠΈΠΌ ΠΏΠΎΡΡΠ°Π²ΡΠΈΠΊΠ°ΠΌ.
ΠΡΠ΅ ΠΎΡΠ·ΡΠ²Ρ, ΠΊΠΎΡΠΎΡΡΠ΅ Π΅ΡΡΡ Π² ΡΠ°Π·Π΄Π΅Π»Π΅ Β«ΠΡΠ·ΡΠ²ΡΒ», Π΄Π΅ΠΉΡΡΠ²ΠΈΡΠ΅Π»ΡΠ½ΠΎ Π½Π°ΠΏΠΈΡΠ°Π½Ρ Π½Π°ΡΠΈΠΌΠΈ ΠΊΠ»ΠΈΠ΅Π½ΡΠ°ΠΌΠΈ, Π° Π½Π΅
ΠΏΡΠΈΡΡΠ½ΡΡΡ Π·Π° Β«ΡΡΠΈΒ».
ΠΡ Π²ΡΠ΅Π³Π΄Π° ΠΏΡΠΈΠ²Π΅ΡΡΡΠ²ΡΠ΅ΠΌ ΠΊΠΎΠ½ΡΡΡΡΠΊΡΠΈΠ²Π½ΡΡ ΠΊΡΠΈΡΠΈΠΊΡ ΠΈ Π±ΡΠ΄Π΅ΠΌ ΠΠ°ΠΌ Π·Π° Π½Π΅Π΅ Π±Π»Π°Π³ΠΎΠ΄Π°ΡΠ½Ρ.
ΠΠ°Π΄Π΅Π΅ΠΌΡΡ, ΡΡΠΎ ΡΠΎΡΡΡΠ΄Π½ΠΈΡΠ΅ΡΡΠ²ΠΎ Ρ Π½Π°ΠΌΠΈ Π±ΡΠ΄Π΅Ρ Π΄Π»Ρ ΠΠ°Ρ ΠΏΠΎΠ»Π΅Π·Π½ΡΠΌ, ΠΈ ΠΎΡ ΡΡΠΎΠ³ΠΎ ΠΆΠΈΠ·Π½Ρ ΡΡΠ°Π½Π΅Ρ ΡΡΡΠ΅
ΠΠ΅ΡΠ°Π±ΠΎΠΊΡΡ ΠΈ Π½Π°ΠΏΡΠ°Π²Π»ΡΡΡΠΈΠ΅
ΠΠ΅ΡΠ°Π±ΠΎΠΊΡΡ ΠΈ Π½Π°ΠΏΡΠ°Π²Π»ΡΡΡΠΈΠ΅
ΠΠ΅ΡΠ°Π±ΠΎΠΊΡ
ΠΠ΅ΡΠ°Π±ΠΎΠΊΡΡ (Π΄ΡΡΠ³ΠΈΠ΅ Π½Π°Π·Π²Π°Π½ΠΈΡ: ΠΌΠ΅ΡΠ°Π»Π±ΠΎΠΊΡΡ; Π±ΠΎΠΊΠΎΠ²ΠΈΠ½Ρ Π΄Π»Ρ ΡΡΠΈΠΊΠΎΠ²) ΠΈΡΠΏΠΎΠ»ΡΠ·ΡΡΡΡΡ, Π² ΠΎΡΠ½ΠΎΠ²Π½ΠΎΠΌ, ΠΏΡΠΈ ΠΏΡΠΎΠΈΠ·Π²ΠΎΠ΄ΡΡΠ²Π΅ ΡΠ°ΠΊΠΎΠΉ ΠΌΠ΅Π±Π΅Π»ΠΈ, ΠΊΠ°ΠΊ ΠΊΡΡ ΠΎΠ½Π½Π°Ρ ΠΈ ΠΎΡΠΈΡΠ½Π°Ρ ΠΌΠ΅Π±Π΅Π»Ρ.
ΠΠ΅ΡΠ°Π±ΠΎΠΊΡΡ ΡΠ΄Π΅Π»Π°Π½Ρ Π½Π° Π±Π°Π·Π΅ ΡΠΎΠ»ΠΈΠΊΠΎΠ²ΡΡ Π½Π°ΠΏΡΠ°Π²Π»ΡΡΡΠΈΡ , Π½ΠΎ ΠΈΠΌΠ΅ΡΡ ΡΠ΅ΡΡΡΠ·Π½ΡΠ΅ ΠΎΡΠ»ΠΈΡΠΈΡ.
ΠΠΎΠΌΠΏΠ»Π΅ΠΊΡ ΠΌΠ΅ΡΠ°Π±ΠΎΠΊΡΠΎΠ² ΡΠΎΡΡΠΎΠΈΡ ΠΈΠ· Π΄Π²ΡΡ
ΠΎΠΏΠΎΡΠ½ΡΡ
Π½Π°ΠΏΡΠ°Π²Π»ΡΡΡΠΈΡ
(Π»Π΅Π²Π°Ρ ΠΈ ΠΏΡΠ°Π²Π°Ρ) ΠΈ Π΄Π²ΡΡ
Π½Π°ΠΏΡΠ°Π²Π»ΡΡΡΠΈΡ
, ΡΠ²Π»ΡΡΡΠΈΡ
ΡΡ ΠΎΠ΄Π½ΠΎΠ²ΡΠ΅ΠΌΠ΅Π½Π½ΠΎ Π±ΠΎΠΊΠΎΠ²ΡΠΌΠΈ ΡΡΠ΅Π½ΠΊΠ°ΠΌΠΈ ΡΡΠΈΠΊΠ° (Π»Π΅Π²Π°Ρ ΠΈ ΠΏΡΠ°Π²Π°Ρ). ΠΡΠΎ ΠΎΠ΄Π½ΠΎ ΠΈΠ· ΡΠ΄ΠΎΠ±ΡΡΠ² ΠΌΠ΅ΡΠ°Π±ΠΎΠΊΡΠΎΠ², ΡΠ°ΠΊ ΠΊΠ°ΠΊ Π½Π΅ Π½ΡΠΆΠ½ΠΎ ΠΈΠ·Π³ΠΎΡΠΎΠ²Π»ΡΡΡ Π±ΠΎΠΊΠΎΠ²ΡΠ΅ ΡΡΠ΅Π½ΠΊΠΈ ΡΡΠΈΠΊΠ° ΠΈΠ· ΠΠΠ‘Π ΠΈΠ»ΠΈ Π΄ΡΡΠ³ΠΎΠ³ΠΎ ΠΌΠ°ΡΠ΅ΡΠΈΠ°Π»Π°. ΠΠ΅ΠΎΠ±Ρ
ΠΎΠ΄ΠΈΠΌΠΎ ΡΠΎΠ»ΡΠΊΠΎ ΡΠ΄Π΅Π»Π°ΡΡ Π΄Π½ΠΎ, Π·Π°Π΄Π½ΡΡ ΡΡΠ΅Π½ΠΊΡ ΠΈ ΡΠ°ΡΠ°Π΄ ΡΡΠΈΠΊΠ° ΡΡΠ΅Π±ΡΠ΅ΠΌΠΎΠ³ΠΎ ΡΠ°Π·ΠΌΠ΅ΡΠ°. Π ΡΠΎ, ΡΡΠΎ Π΄Π½ΠΎ ΠΈΠ·Π³ΠΎΡΠ°Π²Π»ΠΈΠ²Π°Π΅ΡΡΡ ΠΈΠ· ΠΠΠ‘Π (Π² ΠΎΡΠ½ΠΎΠ²Π½ΠΎΠΌ ΡΠΎΠ»ΡΠΈΠ½Π° ΠΠΠ‘Π ΡΠ°Π²Π½Π° 16ΠΌΠΌ), Π° Π½Π΅ ΠΈΠ· ΠΠΠ (Π² ΠΎΡΠ½ΠΎΠ²Π½ΠΎΠΌ ΡΠΎΠ»ΡΠΈΠ½Π° ΠΠΠ ΡΠΎΠ²Π½Π° 4ΠΌΠΌ), ΠΏΡΠΈΠ΄Π°ΡΡ ΠΈΠ·Π΄Π΅Π»ΠΈΡ Π½Π΅ΠΎΠ±ΡΡΠ°ΠΉΠ½ΡΡ ΠΏΡΠΎΡΠ½ΠΎΡΡΡ ΠΈ Π½Π°Π΄ΡΠΆΠ½ΠΎΡΡΡ.
ΠΡΡ ΠΎΠ΄Π½ΠΈΠΌ ΠΏΠ»ΡΡΠΎΠΌ ΠΌΠ΅ΡΠ°Π±ΠΎΠΊΡΠΎΠ², ΡΠ²Π»ΡΡΡΡΡ ΠΊΡΠ΅ΠΏΠ»Π΅Π½ΠΈΡ Π΄Π»Ρ ΡΠ°ΡΠ°Π΄Π°, ΠΊΠΎΡΠΎΡΡΠ΅ ΠΈΠΌΠ΅ΡΡ ΡΠ΅Π³ΡΠ»ΠΈΡΠΎΠ²ΠΊΡ, ΠΎΠ±Π΅ΡΠΏΠ΅ΡΠΈΠ²Π°ΡΡΡΡ, ΡΡΡΠ°Π½ΠΎΠ²ΠΊΡ ΡΠ°ΡΠ°Π΄Π° ΡΡΠΈΠΊΠ° ΡΠΎΠ²Π½ΠΎ ΠΏΠΎ ΠΊΠΎΡΠΏΡΡΡ ΠΌΠ΅Π±Π΅Π»ΠΈ.
ΠΠ΅ΡΠ°Π±ΠΎΠΊΡΠ’Π°ΠΊΠΆΠ΅, Π΄Π»Ρ ΠΌΠ΅ΡΠ°Π±ΠΎΠΊΡΠΎΠ², ΡΡΡΠ΅ΡΡΠ²ΡΡΡ ΡΠΏΠ΅ΡΠΈΠ°Π»ΡΠ½ΡΠ΅ ΠΏΠ»Π°Π½ΠΊΠΈ Π½Π°ΡΠ°ΡΠΈΠ²Π°Π½ΠΈΡ, ΠΊΠΎΡΠΎΡΡΠ΅ ΠΏΠΎΠ·Π²ΠΎΠ»ΡΡΡ ΡΠ²Π΅Π»ΠΈΡΠΈΡΡ ΡΠ°Π±ΠΎΡΡΡ Π²ΡΡΠΎΡΡ ΠΌΠ΅ΡΠ°Π±ΠΎΠΊΡΠ° Π΄ΠΎ Π½ΡΠΆΠ½ΠΎΠ³ΠΎ ΡΠ°Π·ΠΌΠ΅ΡΠ°, Π° ΡΠΈΡΡΠ΅ΠΌΡ ΡΠ°Π·Π΄Π΅Π»Π΅Π½ΠΈΡ ΠΏΠΎΠ·Π²ΠΎΠ»ΡΡ ΠΏΡΠ°Π²ΠΈΠ»ΡΠ½ΠΎ ΠΎΡΠ³Π°Π½ΠΈΠ·ΠΎΠ²Π°ΡΡ ΡΠ°Π±ΠΎΡΠ΅Π΅ ΠΏΡΠΎΡΡΡΠ°Π½ΡΡΠ²ΠΎ Π²Π½ΡΡΡΠΈ ΡΠ°ΠΌΠΎΠ³ΠΎ ΠΌΠ΅ΡΠ°Π±ΠΎΠΊΡΠ°.ΡΡ ΠΈΠΌΠ΅ΡΡ ΡΠ°Π·Π»ΠΈΡΠ½ΡΡ Π²ΡΡΠΎΡΡ (ΠΈΠΌΠ΅Π΅ΡΡΡ Π² Π²ΠΈΠ΄Ρ Π²ΡΡΠΎΡΠ° Π±ΠΎΠΊΠΎΠ²ΡΡ Π½Π°ΠΏΡΠ°Π²Π»ΡΡΡΠΈΡ ): 86 ΠΌΠΌ, 118 ΠΌΠΌ, 150 ΠΌΠΌ. ΠΠ°ΠΆΠ΄Π°Ρ ΠΈΠ· ΡΡΠΈΡ Π²ΡΡΠΎΡ ΠΈΠΌΠ΅Π΅Ρ Π΄Π»ΠΈΠ½Ρ: 270ΠΌΠΌ, 300ΠΌΠΌ, 350ΠΌΠΌ, 400ΠΌΠΌ, 450ΠΌΠΌ, 500ΠΌΠΌ, 550ΠΌΠΌ.
Β
ΠΠΈΡΠ°, Π² ΠΊΠΎΡΠΎΡΡΡ ΡΡΡΠ°Π½Π°Π²Π»ΠΈΠ²Π°Π΅ΡΡΡ ΠΌΠ΅ΡΠ°Π±ΠΎΠΊΡΡ, Π΄ΠΎΠ»ΠΆΠ½Π° Π±ΡΡΡ ΡΡΡΠΎΠ³ΠΎ ΠΏΠΎΠ΄ ΡΠ³Π»Π°ΠΌΠΈ Π² 90 Π³ΡΠ°Π΄ΡΡΠΎΠ². ΠΠ΅ΡΠ΅Π΄Π½ΠΈΠ΅ ΠΊΡΠΎΠΌΠΊΠΈ Π΄Π΅ΡΠ°Π»Π΅ΠΉ Π½ΠΈΡΠΈ Π΄ΠΎΠ»ΠΆΠ½Ρ Π½Π°Ρ ΠΎΠ΄ΠΈΡΡΡΡ Π² ΠΎΠ΄Π½ΠΎΠΉ ΠΏΠ»ΠΎΡΠΊΠΎΡΡΠΈ.
ΠΠ΅ΡΠ°Π±ΠΎΠΊΡΡ ΠΎΡΠ΅Π½Ρ ΠΏΡΠΎΡΡΡ ΠΈ ΡΠ΄ΠΎΠ±Π½Ρ, ΠΊΠ°ΠΊ Π² ΠΈΠ·Π³ΠΎΡΠΎΠ²Π»Π΅Π½ΠΈΠΈ ΠΈ ΠΌΠΎΠ½ΡΠ°ΠΆΠ΅ ΠΌΠ΅Π±Π΅Π»ΡΠ½ΡΡ ΠΈΠ·Π΄Π΅Π»ΠΈΠΉ, ΡΠ°ΠΊ ΠΈ Π² ΠΈΡΠΏΠΎΠ»ΡΠ·ΠΎΠ²Π°Π½ΠΈΠΈ ΠΌΠ΅Π±Π΅Π»ΠΈ.
ΠΠ°ΠΏΡΠ°Π²Π»ΡΡΡΠΈΠ΅
ΠΠ°ΠΏΡΠ°Π²Π»ΡΡΡΠΈΠ΅ — ΡΡΠΎ ΡΠΏΠ΅ΡΠΈΠ°Π»ΠΈΠ·ΠΈΡΠΎΠ²Π°Π½Π½Π°Ρ ΡΡΡΠ½ΠΈΡΡΡΠ° Π΄Π»Ρ Π²ΡΠ΄Π²ΠΈΠΆΠ½ΡΡ
ΡΡΠΈΠΊΠΎΠ² ΠΈ Π΄ΡΡΠ³ΠΈΡ
ΡΠ»Π΅ΠΌΠ΅Π½ΡΠΎΠ² ΠΌΠ΅Π±Π΅Π»ΠΈ.
ΠΠΎ ΡΠΏΠΎΡΠΎΠ±Ρ Π²ΡΠ΄Π²ΠΈΠΆΠ΅Π½ΠΈΡ Π½Π°ΠΏΡΠ°Π²Π»ΡΡΡΠΈΠ΅ Π±ΡΠ²Π°ΡΡ ΡΠ°ΡΡΠΈΡΠ½ΠΎΠ³ΠΎ ΠΈ ΠΏΠΎΠ»Π½ΠΎΠ³ΠΎ Π²ΡΠΊΠ°ΡΠ°. ΠΠΎΠ»Π½ΡΠΉ Π²ΡΠΊΠ°Ρ Π½Π°ΠΏΡΠ°Π²Π»ΡΡΡΠΈΡ ΠΎΠ·Π½Π°ΡΠ°Π΅Ρ, ΡΡΠΎ, Π½Π°ΠΏΡΠΈΠΌΠ΅Ρ, ΡΡΠΈΠΊ ΠΈΠ»ΠΈ Π΄Π²Π΅ΡΡ ΡΠΊΠ°ΡΠ°, ΠΏΡΠΈ ΠΎΡΠΊΡΡΠ²Π°Π½ΠΈΠΈ, Π²ΡΠ΄Π²ΠΈΠ³Π°Π΅ΡΡΡ Π½Π° Π²ΡΡ Π³Π»ΡΠ±ΠΈΠ½Ρ, ΡΠ»ΡΡΡΠ°Ρ Π΄ΠΎΡΡΡΠΏ ΠΊ Π΅Π³ΠΎ ΡΠΎΠ΄Π΅ΡΠΆΠΈΠΌΠΎΠΌΡ.
Π ΠΏΡΠΎΠΈΠ·Π²ΠΎΠ΄ΡΡΠ²Π΅ ΠΈΡΠΏΠΎΠ»ΡΠ·ΡΡΡΡΡ ΡΠΎΠ»ΠΈΠΊΠΎΠ²ΡΠ΅ Π½Π°ΠΏΡΠ°Π²Π»ΡΡΡΠΈΠ΅ «FGV» ΡΠ°ΡΡΠΈΡΠ½ΠΎΠ³ΠΎ Π²ΡΠΊΠ°ΡΠ°, ΠΌΠ΅ΡΠ°Π±ΠΎΠΊΡΡ ΠΏΠΎΠ»Π½ΠΎΠ³ΠΎ ΠΈ ΡΠ°ΡΡΠΈΡΠ½ΠΎΠ³ΠΎ Π²ΡΠΊΠ°ΡΠ° ΡΠΈΡΠΌ «FGV» ΠΈ «Blum», ΠΈ ΡΠ°Π½Π΄Π΅ΠΌΠ±ΠΎΠΊΡΡ ΠΏΠΎΠ»Π½ΠΎΠ³ΠΎ ΠΈ ΡΠ°ΡΡΠΈΡΠ½ΠΎΠ³ΠΎ Π²ΡΠΊΠ°ΡΠ° «Blum», ΡΠ°ΡΠΈΠΊΠΎΠ²ΡΠ΅ Π½Π°ΠΏΡΠ°Π²Π»ΡΡΡΠΈΠ΅ ΠΏΠΎΠ»Π½ΠΎΠ³ΠΎ Π²ΡΠΊΠ°ΡΠ° «Hafele».
ΠΠ»Π°Π²Π½ΠΎΠ΅ ΠΊΠ°ΡΠ΅ΡΡΠ²ΠΎ Π½Π°ΠΏΡΠ°Π²Π»ΡΡΡΠΈΡ — Π»Π΅Π³ΠΊΠΎΡΡΡ ΠΈ Π±Π΅ΡΡΡΠΌΠ½ΠΎΡΡΡ ΡΠ°Π±ΠΎΡΡ. Π‘Π°ΠΌΡΠΌ Π»ΡΡΡΠΈΠΌ ΡΠ΅ΡΠ΅Π½ΠΈΠ΅ΠΌ Ρ ΡΡΠΎΠΉ ΡΠΎΡΠΊΠΈ Π·ΡΠ΅Π½ΠΈΡ ΡΠ²Π»ΡΡΡΡΡ ΡΠ°Π½Π΄Π΅ΠΌΠ±ΠΎΠΊΡΡ.
ΠΠ½ΠΈ ΠΌΠΎΠ³ΡΡ Π±ΡΡΡ ΡΡΠ°Π»ΡΠ½ΡΠΌΠΈ, Ρ ΡΡΠΎΡΠΎΠΏΠ»Π°ΡΡΠΎΠ²ΡΠΌ ΡΠΎΠ»ΠΈΠΊΠΎΠΌ, ΠΈΠ»ΠΈ, Π² Π±ΠΎΠ»Π΅Π΅ Π΄ΠΎΡΠΎΠ³ΠΎΠΉ ΡΠΈΡΡΠ΅ΠΌΠ΅, — ΠΈΠ· ΡΠ²Π΅ΡΠ½ΠΎΠ³ΠΎ ΠΌΠ΅ΡΠ°Π»Π»Π° (Π΄ΡΡΠ°Π»ΡΠΌΠΈΠ½ΠΈΡ) Ρ ΡΠ΅ΡΠ»ΠΎΠ½ΠΎΠ²ΡΠΌ ΡΠΎΠ»ΠΈΠΊΠΎΠΌ. ΠΠΎ Π²ΡΠ΅Ρ ΡΠΎΠ»ΠΈΠΊΠ°Ρ ΡΠΎΠ΄Π΅ΡΠΆΠ°ΡΡΡ ΡΡΠΎΠΏΠ»Π΅Π½Π½ΡΠ΅ ΠΏΠΎΠ΄ΡΠΈΠΏΠ½ΠΈΠΊΠΈ. Π ΡΠΈΡΡΠ΅ΠΌΠ°Ρ ΠΊΠ»Π°ΡΡΠ° «Π»ΡΠΊΡ» Π΄ΡΡΠ°Π»ΡΠΌΠΈΠ½ΠΈΠ΅Π²ΡΠ΅ Π½Π°ΠΏΡΠ°Π²Π»ΡΡΡΠΈΠ΅ Π΄ΠΎΠΏΠΎΠ»Π½ΠΈΡΠ΅Π»ΡΠ½ΠΎ ΠΏΠΎΠ»ΠΈΡΡΡΡΡΡ, Π° ΡΠΎΠ»ΠΈΠΊΠΈ ΡΠ½Π°Π±ΠΆΠ΅Π½Ρ ΡΠΏΠ΅ΡΠΈΠ°Π»ΡΠ½ΡΠΌΠΈ ΡΠ΅ΡΠΎΡΠΊΠ°ΠΌΠΈ Π΄Π»Ρ ΠΎΡΠΈΡΡΠΊΠΈ ΠΌΠ΅ΠΆΠΏΠ°Π·ΠΎΠ²ΠΎΠ³ΠΎ ΠΏΡΠΎΡΡΡΠ°Π½ΡΡΠ²Π°.
Β
ΡΠ±ΠΎΡΠΊΠ° ΠΌΠ΅ΡΠ°Π±ΠΎΠΊΡΠΎΠ²
Β
Β
Β
Β
Β
Β
Β
Β
Β
Β
Β
Β
Β
Π΄ΠΎΠ²ΠΎΠ΄ΡΠΈΠΊΒ
Β
Β
Π Π°ΡΡΠ΅Ρ ΡΠΎΡΡΠ°Π²Π»ΡΡΡΠΈΡ ΠΈΠ· ΠΠΠ‘Π Π΄Π»Ρ ΡΠΈΡΡΠ΅ΠΌΡ ΠΌΠ΅ΡΠ°Π±ΠΎΠΊΡ
ΠΠ°ΠΊ ΡΠ°Π½Π΅Π΅ Π³ΠΎΠ²ΠΎΡΠΈΠ»ΠΎΡΡ, Π΄Π½ΠΈΡΠ° ΠΏΠΎΠ΄ΠΎΠ±Π½ΡΡ
ΡΡΠΈΠΊΠΎΠ² ΠΈ ΠΈΡ
Π·Π°Π΄Π½ΠΈΠ΅ ΡΡΠ΅Π½Ρ Π²ΡΡΠ΅Π·Π°ΡΡΡΡ ΠΈΠ· ΠΠΠ‘Π.
ΠΠ΄Π΅ Π΅Π³ΠΎ ΡΠ°Π·Π΄ΠΎΠ±ΡΡΡ, ΡΠΆΠ΅ ΠΎΠΏΠΈΡΠ°Π½ΠΎ Π² ΡΠ°Π·Π΄Π΅Π»Π΅, ΠΏΠΎΡΠ²ΡΡΠ΅Π½Π½ΠΎΠΌ ΡΠΎΠ»ΠΈΠΊΠΎΠ²ΡΠΌ Π½Π°ΠΏΡΠ°Π²Π»ΡΡΡΠΈΠΌ. ΠΡΠ°Π²Π΄Π°, ΡΠ΅ΠΉΡΠ°Ρ ΠΌΠ°ΡΠ΅ΡΠΈΠ°Π»Π° Π±ΡΠ΄Π΅Ρ Π½ΡΠΆΠ½ΠΎ Π±ΠΎΠ»Π΅Π΅, ΠΏΠΎΡΠΎΠΌΡ Π½Π΅ΠΎΠ±Ρ
ΠΎΠ΄ΠΈΠΌΠΎ Π±ΡΡΡ Π³ΠΎΡΠΎΠ²ΡΠΌ ΠΊ Π³ΠΎΡΠ°Π·Π΄ΠΎ Π±ΠΎΠ»Π΅Π΅ ΡΡΡΠΎΠ²ΡΠΌ ΡΠ°ΡΡ
ΠΎΠ΄Π°ΠΌ. Π’ΠΎΡΠ½ΡΡ ΡΡΠΌΠΌΡ ΠΏΡΠΈΠ²Π΅ΡΡΠΈ Π² ΡΠ΅ΠΉ ΡΠ°Π· Π½Π΅Π»ΡΠ·Ρ, ΠΏΠΎΡΠΎΠΌΡ ΡΡΠΎ ΠΎΠ½Π° Π·Π°Π²ΠΈΡΠΈΡ ΡΡ
ΠΎΠ΄Ρ ΠΎΡ ΠΌΠ½ΠΎΠ³ΠΈΡ
ΠΏΡΠΈΡΠΈΠ½: ΠΏΠΎΠ»Π½ΠΎΡΡ ΠΈΠ·Π±ΡΠ°Π½Π½ΠΎΠ³ΠΎ ΠΌΠ°ΡΠ΅ΡΠΈΠ°Π»Π°, ΠΈΠ·Π³ΠΎΡΠΎΠ²ΠΈΡΠ΅Π»Ρ ΠΠΠ‘Π, ΠΏΠ»ΠΎΡΠ°Π΄ΠΈ Π΄Π½Π° ΠΈ Π²ΡΡΠΎΡΡ Π·Π°Π΄Π½Π΅ΠΉ ΡΡΠ΅Π½Ρ. ΠΠ»Ρ ΠΏΡΠΎΠΈΠ·Π²ΠΎΠ΄ΡΡΠ²Π° ΡΡΠΈΡ
ΡΠΎΡΡΠ°Π²Π»ΡΡΡΠΈΡ
ΠΏΠΎΡΡΠ΅Π±ΡΡΡΡΡ ΠΎΠ³ΡΠΎΠΌΠ½ΡΠ΅ ΠΊΡΡΠΎΡΠΊΠΈ, ΠΏΠΎΡΠΎΠΌΡ ΠΈ ΡΠ΅Π½Π° ΡΠ°ΡΡΡΠΈΡΡΠ²Π°ΡΡΡΡ Π±ΡΠ΄Π΅Ρ ΠΈΠ½Π°ΡΠ΅, ΡΠΎΠ²Π΅ΡΡΠ΅Π½Π½ΠΎ Π½Π΅ ΡΠ°ΠΊ, ΠΊΠ°ΠΊ ΡΠ°ΡΠΊΡΠΎΠΉ ΠΌΠ°Π»Π΅Π½ΡΠΊΠΈΡ
ΡΠΎΡΡΠ°Π²Π»ΡΡΡΠΈΡ
ΠΈΠ· Π½Π΅Π½Π°Π΄ΠΎΠ±Π½ΡΡ
ΠΎΠ±ΡΠ΅Π·ΠΊΠΎΠ².
Π§ΡΠΎΠ± Π½Π°ΠΉΡΠΈ ΡΠΈΡΠΈΠ½Ρ Π΄Π½ΠΈΡΠ°, Π½Π΅ΠΎΠ±Ρ
ΠΎΠ΄ΠΈΠΌΠΎ ΠΎΡ Π²Π΅Π»ΠΈΡΠΈΠ½Ρ Π²Π½ΡΡΡΠ΅Π½Π½Π΅Π³ΠΎ ΠΏΡΠΎΠ΅ΠΌΠ° ΠΌΠΎΠ΄ΡΠ»Ρ ΠΎΡΠ½ΡΡΡ 31 ΠΌΠΈΠ»Π»ΠΈΠΌΠ΅ΡΡΠΎΠ² (Π΄Π»Ρ ΡΠΎΠ»ΠΈΠΊΠΎΠ²ΡΡ
Π½Π°ΠΏΡΠ°Π²Π»ΡΡΡΠΈΡ
ΠΌΡ Π·Π°Π±ΠΈΡΠ°Π»ΠΈ 25 ΠΌΠΈΠ»Π»ΠΈΠΌΠ΅ΡΡΠΎΠ² β Π½Π΅ ΡΠΏΡΡΠ°ΠΉΡΠ΅). ΠΠ»ΡΠ±ΠΈΠ½Π° ΠΎΠΏΡΠ΅Π΄Π΅Π»ΡΠ΅ΡΡΡ ΠΌΠ΅ΡΠΎΠ΄ΠΎΠΌ ΠΈΠ·ΠΌΠ΅ΡΠ΅Π½ΠΈΡ, ΠΏΠΎΡΠΎΠΌΡ ΡΡΠΎ Π·Π°ΡΠ²Π»Π΅Π½Π½ΡΠ΅ ΡΠ°Π·ΠΌΠ΅ΡΡ ΠΌΠ΅ΡΠ°Π±ΠΎΠΊΡΠ° ΠΌΠΎΠ³ΡΡ Π² ΡΠΈΠ»Ρ ΡΠ°Π·Π»ΠΈΡΠ½ΡΡ
ΠΎΠ±ΡΡΠΎΡΡΠ΅Π»ΡΡΡΠ² ΠΎΡΠ»ΠΈΡΠ°ΡΡΡΡ ΠΎΡ ΡΠ΅Π°Π»ΡΠ½ΡΡ
ΡΠΎΡΠΌΠ°ΡΠΎΠ² Π½Π° 1-3 ΠΌΠΈΠ»Π»ΠΈΠΌΠ΅ΡΡΠΎΠ². Π’Π°ΠΊΠΎΠ΅ Π½Π΅ΡΠΎΠΎΡΠ²Π΅ΡΡΡΠ²ΠΈΠ΅ ΠΌΠΎΠΆΠ΅Ρ ΠΏΠΎΡΠ»ΡΠΆΠΈΡΡ ΠΏΡΠ΅Π΄ΠΏΠΎΡΡΠ»ΠΊΠΎΠΉ Π²ΠΎΠ·Π½ΠΈΠΊΠ½ΠΎΠ²Π΅Π½ΠΈΡ ΡΠ΅Π»ΠΈ ΠΌΠ΅ΠΆ Π΄Π½ΠΎΠΌ ΠΈ ΡΠ°ΡΠ°Π΄ΠΎΠΌ ΡΡΠΈΠΊΠ°, ΠΈΠ»ΠΈ ΠΆΠ΅ Π² ΠΌΠ΅ΡΡΠ΅ ΡΡΡΠΊΠΎΠ²ΠΊΠΈ Π±ΠΎΠΊΠΎΠ²ΡΡ
ΡΡΠ΅Π½ ΠΌΠ΅ΡΠ°Π±ΠΎΠΊΡΠ° Ρ ΡΠΎΠΉ ΠΆΠ΅ Π½Π°ΠΊΠ»Π°Π΄ΠΊΠΎΠΉ.
ΠΠ°ΡΡΡΠ°Π± Π·Π°Π΄Π½Π΅ΠΉ ΡΡΠ΅Π½Ρ ΡΠ°ΠΊΠ°Ρ ΠΆΠ΅, ΠΊΠ°ΠΊ ΠΈ Ρ Π΄Π½ΠΈΡΠ°, Π° Π²ΠΎΡ Π΅Π΅ Π²ΡΡΠΎΡΠ° Π½Π°Ρ ΠΎΠ΄ΠΈΡΡΡ Π² Π·Π°Π²ΠΈΡΠΈΠΌΠΎΡΡΠΈ ΠΎΡ Π³Π°Π±Π°ΡΠΈΡΠ° ΡΠ°ΡΠ°Π΄Π° ΠΈ Π±ΠΎΠΊΠΎΠ²ΡΡ ΡΡΠ΅Π½, ΠΏΠΎΠ»Π½ΠΎΡΡ ΠΠΠ‘Π ΠΈ ΡΠΎΠ³ΠΎ, ΡΡΠ°Π½Π΅ΡΠ΅ Π»ΠΈ Π²Ρ ΠΈΡΠΏΠΎΠ»ΡΠ·ΠΎΠ²Π°ΡΡ ΡΠ΅ΠΉΠ»ΠΈΠ½Π³ΠΈ. ΠΠ»Ρ Π³Π»ΡΠ±ΠΎΡΠ°ΠΉΡΠΈΡ ΡΡΠΈΠΊΠΎΠ² Ρ Π²ΡΠΏΠΎΠΌΠΎΠ³Π°ΡΠ΅Π»ΡΠ½ΡΠΌΠΈ ΠΎΠ³ΡΠ°Π½ΠΈΡΠΈΡΠ΅Π»ΡΠΌΠΈ ΠΏΠΎ ΠΊΡΠ°ΡΠΌ ΠΈ Π²ΡΡΠΎΡΠ°ΠΉΡΠ΅ΠΉ Π½Π°ΠΊΠ»Π°Π΄ΠΊΠΈ Π² 283-355 ΠΌΠΈΠ»Π»ΠΈΠΌΠ΅ΡΡΠΎΠ² Π²ΡΡΠ΅Π·Π°ΡΡΡΡ Π·Π°Π΄Π½ΠΈΠ΅ ΡΡΠ΅Π½Ρ Π½Π° 80-100 ΠΌΠΈΠ»Π»ΠΈΠΌΠ΅ΡΡΠΎΠ² ΠΌΠ΅Π½Π΅Π΅ Π²ΡΡΠΎΡΡ ΡΠ°ΡΠ°Π΄Π°. Π ΠΏΡΠΈΠΌΠ΅ΡΡ, ΠΊΠΎΠ³Π΄Π° Ρ ΡΠ΅Π±Ρ ΡΠ°ΡΠ°Π΄ ΡΡΠΈΠΊΠ° ΠΎΠ±ΡΠ°Π·ΡΠ΅Ρ 355 ΠΌΠΈΠ»Π»ΠΈΠΌΠ΅ΡΡΠΎΠ², ΡΠΎ ΡΠ°ΡΡΠΌΠ°ΡΡΠΈΠ²Π°Π΅ΠΌΠ°Ρ Π΄Π΅ΡΠ°Π»Ρ ΠΎΠ±ΡΠ·Π°Π½Π° Π±ΡΡΡ 250-270 ΠΌΠΈΠ»Π»ΠΈΠΌΠ΅ΡΡΠΎΠ². ΠΠ»Ρ ΡΠΈΡΡΠ°ΡΠΈΠΉ, ΠΊΠΎΠ³Π΄Π° ΡΠ΅ΠΉΠ»ΠΈΠ½Π³ΠΈ Π½Π΅ ΡΠΏΠΎΡΡΠ΅Π±Π»ΡΡΡΡΡ, Π²ΡΡΠΎΡΠ° Π·Π°Π΄Π½Π΅ΠΉ ΡΡΠ΅Π½Ρ ΠΎΠ±ΡΠ°Π·ΡΠ΅Ρ ΡΠ°Π·Π½ΠΈΡΡ Π±ΠΎΠΊΠΎΠ²ΠΎΠΉ ΡΡΠ΅Π½Ρ ΠΌΠ΅ΡΠ°Π±ΠΎΠΊΡΠ° ΠΈ ΠΏΠΎΠ»Π½ΠΎΡΡ Π΄Π½Π° (16 ΠΈΠ»ΠΈ ΠΆΠ΅ 18 ΠΌΠΈΠ»Π»ΠΈΠΌΠ΅ΡΡΠΎΠ²).
Π‘Π±ΠΎΡΠΊΠ° ΠΎΠ±ΠΎΠ»ΠΎΡΠΊΠΈ ΠΈ ΡΡΡΠ°Π½ΠΎΠ²ΠΊΠ° ΡΡΠΈΠΊΠΎΠ² Ρ ΡΠΈΡΡΠ΅ΠΌΠΎΠΉ ΠΌΠ΅ΡΠ°Π±ΠΎΠΊΡ
Π‘Π±ΠΎΡΠΊΠ° ΠΎΠ±ΠΎΠ»ΠΎΡΠΊΠΈ ΠΏΠΎΠ΄ΠΎΠ±Π½ΡΡ
ΡΡΠΈΠΊΠΎΠ² Π½Π°ΡΠΈΠ½Π°Π΅ΡΡΡ ΡΠΎ ΡΠΊΡΡΡΠΈΠ²Π°Π½ΠΈΡ ΠΊΠΎΠ½ΡΠΈΡΠΌΠ°ΡΠ°ΠΌΠΈ Π΄Π½Π° Ρ Π·Π°Π΄Π½Π΅ΠΉ ΡΡΠ΅Π½ΠΎΠΉ. Π‘ΠΌΠΎΡΡΠΈΡΠ΅ Π·Π° ΡΠ΅ΠΌ, ΡΡΠΎΠ± Π½Π΅ Π±ΡΠ»ΠΎ ΡΠΌΠ΅ΡΠ΅Π½ΠΈΡ ΡΠΎΡΡΠ°Π²Π»ΡΡΡΠΈΡ
. Π‘ΠΎΠ΅Π΄ΠΈΠ½ΠΈΠ² Π²ΡΠ΅ Π΄Π΅ΡΠ°Π»ΠΈ, Π½Π΅ΠΎΠ±Ρ
ΠΎΠ΄ΠΈΠΌΠΎ ΡΠΊΡΠ΅ΠΏΠΈΡΡ Π±ΠΎΠΊΠΎΠ²ΡΠ΅ ΡΡΠ΅Π½Ρ. ΠΠ° ΡΡΠΎΠΌ ΡΠ°Π³Π΅ Π½Π΅ΠΎΠ±Ρ
ΠΎΠ΄ΠΈΠΌΠΎ ΠΈΠ·Π±Π°Π²ΠΈΡΡΡΡ ΠΎΡ ΠΌΠ°Π»Π΅Π½ΡΠΊΠΈΡ
ΡΡΠ΄ΠΈΠΌΠ΅Π½ΡΠ°ΡΠ½ΡΡ
ΡΠ°ΡΡΠ΅ΠΉ, ΠΈΠΌΠ΅ΡΡΠΈΡ
ΡΡ Π²ΠΏΠ΅ΡΠ΅Π΄ΠΈ ΠΆΠ΅Π»Π΅Π·Π½ΡΡ
Π±ΠΎΠΊΠΎΠ²ΠΈΠ½.
ΠΡΠΎ ΠΌΠ°Π»Π΅Π½ΡΠΊΠΈΠ΅ ΠΆΠ΅Π»Π΅Π·Π½ΡΠ΅ Π²ΡΡΡΡΠΏΡ, ΠΊΠΎΠΈ ΠΊΠ°ΡΠ΄ΠΈΠ½Π°Π»ΡΠ½ΠΎΠ³ΠΎ Π²ΠΎΠ·Π΄Π΅ΠΉΡΡΠ²ΠΈΡ Π½Π° ΡΡΠ½ΠΊΡΠΈΠΎΠ½Π°Π»ΡΠ½ΠΎΡΡΡ ΠΌΠ΅ΡΠ°Π±ΠΎΠΊΡΠΎΠ² Π½Π΅ ΠΎΠΊΠ°Π·ΡΠ²Π°ΡΡ, ΠΏΠΎΡΠΎΠΌΡ ΠΈΡ
Π»ΡΡΡΠ΅ ΡΡ
ΠΎΠ΄Ρ ΠΎΡΠΊΡΡΠΈΡΡ ΠΏΠ°ΡΡΠ°ΡΠΈΠΆΠ°ΠΌΠΈ.
Π£ΡΡΠ°Π½ΠΎΠ²ΠΈΡΠ΅ Π² ΠΏΠ°ΡΡΠΎΠ½ ΡΡΡΠΎΠΏΠΎΠ²Π΅ΡΡΠ° ΠΈΠ»ΠΈ ΠΆΠ΅ Π΄ΡΠ΅Π»ΠΈ ΡΠ²Π΅ΡΠ»ΠΎ ΠΏΠΎΠΏΠ΅ΡΠ΅ΡΠ½ΠΈΠΊΠΎΠΌ 3 ΠΌΠΈΠ»Π»ΠΈΠΌΠ΅ΡΡΠΎΠ². ΠΠΎΠΊΠΎΠ²ΡΠ΅ ΡΡΠ΅Π½Ρ ΠΌΠ΅ΡΠ°Π±ΠΎΠΊΡΠ° Π»ΡΡΡΠ΅ ΡΠΊΡΠ΅ΠΏΠ»ΡΡΡ Π²Π΄Π²ΠΎΠ΅ΠΌ (ΠΎΠ΄ΠΈΠ½ ΡΠ΅Π»ΠΎΠ²Π΅ΠΊ ΠΏΡΠΈΠ΄Π΅ΡΠΆΠΈΠ²Π°Π΅Ρ ΠΊΠΎΠ½ΡΡΡΡΠΊΡΠΈΡ) Π² ΡΠ°ΠΊΠΎΠ²ΠΎΠΉ ΠΏΠΎΡΠ»Π΅Π΄ΠΎΠ²Π°ΡΠ΅Π»ΡΠ½ΠΎΡΡΠΈ:
- Π‘ΠΊΡΡΡΠ΅Π½Π½ΡΠ΅ Π΄Π½ΠΈΡΠ΅ ΠΈ Π·Π°Π΄Π½ΡΡ ΡΡΠ΅Π½Π° ΡΡΠ°Π²ΡΡΡΡ Π½Π° ΡΠ΅Π±ΡΠΎ, Π½Π° ΠΈΡ Π½Π°ΠΊΠ»Π°Π΄ΡΠ²Π°Π΅ΡΡΡ Π±ΠΎΠΊΠΎΠ²ΠΈΠ½Π°, ΠΈ Π΄Π΅Π»Π°ΡΡΡΡ Π² 3-Ρ ΠΌΠ΅ΡΡΠ°Ρ Π½Π°ΠΊΠΎΠ»ΠΊΠΈ ΡΠΈΠ»ΠΎΠΌ.
- ΠΠΎΠΊΠΎΠ²Π°Ρ ΡΡΠ΅Π½Π° ΡΠ½ΠΈΠΌΠ°Π΅ΡΡΡ ΠΈ Π²ΡΡΠ²Π΅ΡΠ»ΠΈΠ²Π°ΡΡΡΡ ΠΌΠ°Π»Π΅Π½ΡΠΊΠΈΠ΅ ΡΠ³Π»ΡΠ±Π»Π΅Π½ΠΈΡ Π² ΡΠ΅Π»Π΅ ΠΠΠ‘Π.
- ΠΠΎΠ·Π²ΡΠ°ΡΠ°Π΅ΡΠ΅ Π΄Π΅ΡΠ°Π»Ρ Π½Π° ΠΌΠ΅ΡΡΠ΅ΡΠΊΠΎ ΠΈ Π²ΠΊΡΡΡΠΈΠ²Π°Π΅ΡΠ΅ ΡΡΡΡΠΏΡ.
- Π―ΡΠΈΠΊ ΠΏΠ΅ΡΠ΅Π²ΠΎΡΠ°ΡΠΈΠ²Π°Π΅ΡΡΡ Π½Π° ΠΈΠ½ΡΡ ΡΡΠΎΡΠΎΠ½Ρ, ΠΈ Π²ΡΠ΅ Π΄Π΅ΡΠ½ΠΈΡ ΠΏΠΎΠ²ΡΠΎΡΡΡΡΡΡ.
ΠΡΠ΅ΠΏΠ»Π΅Π½ΠΈΠ΅ ΡΠΈΠ½ ΡΠ½ΡΡΡΠΈ ΠΌΠΎΠ΄ΡΠ»Ρ, ΡΡΡΠ°Π½ΠΎΠ²ΠΊΠ° Π΄Π²ΡΡΠΎΠΊ ΠΈ ΡΠ΅ΠΉΠ»ΠΈΠ½Π³ΠΎΠ²
Π Π°Π·ΠΌΠ΅ΡΠΊΠ° Π±ΠΎΠΊΠΎΠ²ΡΡ
Π²Π΅ΡΡΠΈΠΊΠ°Π»ΡΠ½ΡΡ
ΡΡΠΎΠ΅ΠΊ ΠΌΠΎΠ΄ΡΠ»Ρ ΡΠ°ΠΊ ΠΆΠ΅ ΠΏΡΠΎΠΈΡΡ
ΠΎΠ΄ΠΈΡ ΡΡΡΡ ΠΏΠΎ Π΄ΡΡΠ³ΠΎΠΌΡ, ΡΠ΅ΠΌ Π΄Π»Ρ ΡΡΠΈΠΊΠΎΠ² Ρ ΡΠΎΠ»ΠΈΠΊΠΎΠ²ΡΠΌΠΈ Π½Π°ΠΏΡΠ°Π²Π»ΡΡΡΠΈΠΌΠΈ. Π ΡΡΠΎΠΌ ΡΠ»ΡΡΠ°Π΅ ΠΆΠ΅Π»Π΅Π·Π½Π°Ρ Π±ΠΎΠΊΠΎΠ²Π°Ρ ΡΡΠ΅Π½Π° ΠΌΠ΅ΡΠ°Π±ΠΎΠΊΡΠ° ΡΠ°Π·ΠΌΠ΅ΡΠ΅Π½Π° Π½ΠΈΠΆΠ΅ Π½Π°ΠΏΡΠ°Π²Π»ΡΡΡΠ΅ΠΉ ΡΠΈΠ½Ρ, ΠΏΠΎΡΠΎΠΌΡ ΠΌΠ΅ΡΡΠ΅ΡΠΊΠΎ Π΄Π»Ρ ΠΊΡΠ΅ΠΏΠ΅ΠΆΠ° 1-Π³ΠΎ ΠΊΠΎΠΌΠΏΠ»Π΅ΠΊΡΠ° ΠΎΠΏΡΠ΅Π΄Π΅Π»ΡΠ΅ΡΡΡ ΡΠ°ΠΊ: Π±Π΅ΡΠ΅ΡΡΡ Π²ΡΡΠΎΡΠ° Π±ΠΎΠΊΠΎΠ²ΠΈΠ½Ρ, ΠΈ ΠΊ Π½Π΅ΠΉ ΠΏΡΠΈΠ±Π°Π²Π»ΡΡΡΡΡ 15 ΠΌΠΈΠ»Π»ΠΈΠΌΠ΅ΡΡΠΎΠ² β ΡΡΠΎ ΠΈ Π±ΡΠ΄Π΅Ρ ΡΠ°ΡΡΡΠΎΡΠ½ΠΈΠ΅, Π½Π° ΠΊΠΎΡΠΎΡΠΎΠΌ ΡΠ»Π΅Π΄ΡΠ΅Ρ ΠΏΡΠΈΠΊΡΡΡΠΈΠ²Π°ΡΡ Π±ΠΎΠΊΠΎΠ²ΡΠ΅ ΡΠΈΠ½Ρ 1-Π³ΠΎ ΡΡΠΈΠΊΠ°.
ΠΡΠ΅Π΄ΡΡΠΎΡΡΠ°Ρ ΠΏΠΎΡΠ»Π΅Π΄ΠΎΠ²Π°ΡΠ΅Π»ΡΠ½ΠΎΡΡΡ Π΄Π΅ΠΉΡΡΠ²ΠΈΠΉ, Π²ΠΊΠ»ΡΡΠ°Ρ ΡΡΠ½ΠΊΡΠΈΡ ΠΈΠ½ΡΡΠ°Π»Π»ΡΡΠΈΠΈ, ΡΡΠΎΠΏΡΠΎΡΠ΅Π½ΡΠ½ΠΎ ΡΡ
ΠΎΠΆΠ° Ρ ΠΏΠΎΡΡΠ΄ΠΊΠΎΠΌ ΠΈΡΠΏΠΎΠ»Π½Π΅Π½ΠΈΡ ΡΠ°Π±ΠΎΡ ΠΏΡΠΈ ΡΡΡΠ°Π½ΠΎΠ²ΠΊΠ΅ ΡΠΎΠ»ΠΈΠΊΠΎΠ²ΡΡ
Π½Π°ΠΏΡΠ°Π²Π»ΡΡΡΠΈΡ
.
Π£ΡΡΠ°Π½ΠΎΠ²ΠΊΠ° Π΄Π²ΡΡΠΎΠΊ Π½Π΅ ΠΈΠΌΠ΅Π΅Ρ Π½ΠΈΡΠ΅Π³ΠΎ ΠΎΠ±ΡΠ΅Π³ΠΎ Ρ ΠΏΡΠ΅Π΄ΡΠ΅ΡΡΠ²ΡΡΡΠ΅ΠΉ ΡΠ΅Ρ Π½ΠΎΠ»ΠΎΠ³ΠΈΠ΅ΠΉ, ΠΏΠΎΡΠΎΠΌΡ ΡΡΠΎ ΠΌΠ΅ΡΠ°Π±ΠΎΠΊΡΡ ΠΈΠΌΠ΅ΡΡ ΡΠΏΠ΅ΡΠΈΠ°Π»ΡΠ½ΡΡ ΠΊΡΠ΅ΠΏΠ΅ΠΆΠ½ΡΡ ΡΡΡΠ½ΠΈΡΡΡΡ. ΠΠ½Π° ΠΏΡΠ΅Π΄ΡΡΠ°Π²Π»ΡΠ΅Ρ ΠΈΠ· ΡΠ΅Π±Ρ 2 Π½ΠΈΠΊΠ΅Π»ΠΈΡΠΎΠ²Π°Π½Π½ΡΡ ΠΆΠ΅Π»Π΅Π·Π½ΡΡ ΡΠ³Π»Π°, ΡΠΎΠ΅Π΄ΠΈΠ½Π΅Π½Π½ΡΡ Π²ΠΈΠ½ΡΠΎΠΌ Ρ ΠΏΡΠΈΠΆΠΈΠΌΠ°ΡΡΠ΅ΠΉ ΠΏΠ»Π°Π½ΠΊΠΎΠΉ. ΠΠ° ΠΎΠ΄Π½ΠΎΠΉ ΡΡΠΎΡΠΎΠ½Π΅ ΡΠ³Π»Π°, ΠΊ ΠΊΠΎΡΠΎΡΠΎΠΉ ΠΏΡΠΈΠΊΡΡΡΠΈΠ²Π°Π΅ΡΡΡ ΡΠ°ΡΠ°Π΄, ΠΏΡΠΎΠ΄Π΅Π»Π°Π½Ρ ΠΏΡΠΎΡΠ΅Π·ΠΈ Π΄Π»Ρ Π΅Π²ΡΠΎ-Π²ΠΈΠ½ΡΠΎΠ² ΠΈΠ»ΠΈ ΠΆΠ΅ ΡΡΡΡΠΏΠΎΠ², Π° Ρ Π±ΠΎΠΊΠΎΠ²ΠΎΠΉ ΡΡΠΎΡΠΎΠ½Ρ ΠΈΠΌΠ΅Π΅ΡΡΡ ΠΎΡΠ΅ΡΠ΅Π΄Π½ΠΎΠΉ Π²ΠΈΠ½Ρ, ΡΠΎΠ·Π΄Π°Π½Π½ΡΠΉ Π΄Π»Ρ ΡΠ΅Π³ΡΠ»ΠΈΡΠΎΠ²ΠΊΠΈ Π²Π²Π΅ΡΡ -Π²Π½ΠΈΠ·. Π£ΡΡΠ°Π½ΠΎΠ²ΠΊΠ° Π΄Π²ΡΡΠΎΠΊ ΠΈΡΠΏΠΎΠ»Π½ΡΠ΅ΡΡΡ ΠΏΠΎΡΠ»Π΅Π΄ΡΡΡΠΈΠΌ ΠΎΠ±ΡΠ°Π·ΠΎΠΌ:
- Π ΠΌΠΎΠ΄ΡΠ»Ρ Π²ΡΡΠ°Π²Π»ΡΡΡΡΡ ΠΎΠ±ΠΎΠ»ΠΎΡΠΊΠΈ ΡΡΠΈΠΊΠΎΠ².
- ΠΠ° Π±ΠΎΠΊΠΎΠ²ΡΠ΅ ΡΡΠ΅Π½Ρ ΠΌΠ΅ΡΠ°Π±ΠΎΠΊΡΠΎΠ² Π½Π°Π΄Π΅Π²Π°ΡΡΡΡ ΠΈ ΠΏΡΠΈΠΊΡΠ΅ΠΏΠ»ΡΡΡΡΡ ΠΊΡΠ΅ΠΏΠ΅ΠΆΠ½ΠΎ-ΡΠ΅Π³ΡΠ»ΠΈΡΠΎΠ²ΠΎΡΠ½ΡΠ΅ ΡΠ³ΠΎΠ»ΠΊΠΈ.
- Π‘ ΠΏΠΎΠΌΠΎΡΡΡ ΡΡΠ»Π΅ΡΠΊΠΈ Π²ΡΠΌΠ΅ΡΡΡΡΡΡ ΡΠΎΡΠΊΠΈ Π²Ρ ΠΎΠ΄Π° ΡΡΡΡΠΏΠΎΠ² Π²ΠΎ Π²Π½ΡΡΡΠ΅Π½Π½ΡΡ ΡΡΠΎΡΠΎΠ½Ρ ΡΠ°ΡΠ°Π΄Π°. ΠΠ΅ Π·Π°ΠΏΠ°ΠΌΡΡΠΎΠ²ΡΠ²Π°ΠΉΡΠ΅ ΠΎ Π΄ΠΎΠΏΡΡΠΊΠ°Ρ ΠΈ Π·Π°Π·ΠΎΡΠ°Ρ .
- ΠΠΎΡΠ»Π΅ ΡΠ°Π·ΠΌΠ΅ΡΠΊΠΈ ΡΠ°ΡΠ°Π΄Π° Π²ΡΡΠ²Π΅ΡΠ»ΠΈΠ²Π°ΡΡΡΡ ΡΠ³Π»ΡΠ±Π»Π΅Π½ΠΈΡ ΠΏΠΎΠ΄ Π΅Π²ΡΠΎ-Π²ΠΈΠ½Ρ (5 ΠΌΠΈΠ»Π»ΠΈΠΌΠ΅ΡΡΠΎΠ²) ΠΈΠ»ΠΈ ΠΆΠ΅ ΡΡΡΡΠΏ (3 ΠΌΠΈΠ»Π»ΠΈΠΌΠ΅ΡΡΠΎΠ²).

- Π£Π³ΠΎΠ»ΠΊΠΈ ΡΠ½ΠΈΠΌΠ°ΡΡΡΡ Ρ Π±ΠΎΠΊΠΎΠ²ΠΈΠ½ ΡΡΠΈΠΊΠΎΠ² ΠΈ ΠΏΡΠΈΠΊΡΡΡΠΈΠ²Π°ΡΡΡΡ ΠΊ Π½Π°ΠΊΠ»Π°Π΄ΠΊΠ°ΠΌ.
- Π€Π°ΡΠ°Π΄Ρ Ρ ΠΊΡΠ΅ΠΏΠ΅ΠΆΠ½ΠΎΠΉ ΡΡΡΠ½ΠΈΡΡΡΠΎΠΉ Π½Π°Π΄Π΅Π²Π°ΡΡΡΡ Π½Π° ΠΎΠ±ΠΎΠ»ΠΎΡΠΊΠΈ ΡΡΠΈΠΊΠΎΠ² ΠΈ ΠΏΡΠΈΠΊΡΠ΅ΠΏΠ»ΡΡΡΡΡ ΠΌΠ΅ΡΠΎΠ΄ΠΎΠΌ ΠΏΡΠΈΡΡΠ³ΠΈΠ²Π°Π½ΠΈΡ ΠΏΡΠΈΠΆΠΈΠΌΠ°ΡΡΠ΅ΠΉ ΠΏΠ»Π°Π½ΠΊΠΈ.
- ΠΡΠΏΠΎΠ»Π½ΡΠ΅ΡΡΡ ΡΠ΅Π³ΡΠ»ΠΈΡΠΎΠ²ΠΊΠ° Π½Π°ΠΊΠ»Π°Π΄ΠΎΠΊ Ρ ΠΏΠΎΠΌΠΎΡΡΡ ΠΏΡΠ΅Π΄Π½Π°ΠΌΠ΅ΡΠ΅Π½Π½ΠΎ ΠΏΡΠ΅Π΄ΡΡΠΌΠΎΡΡΠ΅Π½Π½ΡΡ ΠΏΡΠΈΡΠΏΠΎΡΠΎΠ±Π»Π΅Π½ΠΈΠΉ. ΠΠΏΡΠ°Π²ΠΎ-Π²Π»Π΅Π²ΠΎ ΡΡΡ Π΄Π΅ΡΠ°Π»Ρ Π²ΠΎΠ·ΠΌΠΎΠΆΠ½ΠΎ ΡΠ΄Π²ΠΈΠ½ΡΡΡ, ΠΎΡΠ»Π°Π±ΠΈΠ² ΠΌΠ°Π»ΠΎΡΡΡ ΠΊΡΠ΅ΠΏΠ΅ΠΆΠ½ΡΠ΅ ΡΡΡΡΠΏΡ, Π° ΠΏΠΎΠ΄Π½ΡΡΡ ΠΈΠ»ΠΈ ΠΆΠ΅ ΠΎΠΏΡΡΡΠΈΡΡ ΡΠ°ΡΠ°Π΄ Π²ΠΎΠ·ΠΌΠΎΠΆΠ½ΠΎ, Π²ΡΠ°ΡΠ°Ρ ΡΠ΅Π³ΡΠ»ΠΈΡΠΎΠ²ΠΎΡΠ½ΡΠΉ Π²ΠΈΠ½Ρ.
ΠΠ»Ρ ΠΈΠ½ΡΡΠ°Π»Π»ΡΡΠΈΠΈ ΡΠ΅ΠΉΠ»ΠΈΠ½Π³ΠΎΠ² Π½Π΅ΠΎΠ±Ρ ΠΎΠ΄ΠΈΠΌΠΎ ΠΏΡΠΎΡΠ²Π΅ΡΠ»ΠΈΡΡ 2 ΠΎΡΠ²Π΅ΡΡΡΠΈΡ ΠΏΠΎΠ΄ ΠΏΠ»Π°ΡΡΠΌΠ°ΡΡΠΎΠ²ΡΠ΅ Π²ΡΡΠ»ΠΊΠΈ. Π‘Π΄Π΅Π»Π°ΠΉΡΠ΅ ΡΡΠΎ ΠΏΠΎΠ½Π°ΡΠ°Π»Ρ Π½Π° ΠΊΠ°ΠΊΠΎΠΌ-Π½ΠΈΠ±ΡΠ΄Ρ ΠΎΠ±ΡΠ΅Π·ΠΊΠ΅, Π² Π±ΠΎΠ»ΡΡΠΈΠ½ΡΡΠ²Π΅ ΡΠ»ΡΡΠ°Π΅Π² Π² ΡΠ°ΠΊΠΎΠΌ ΡΠ»ΡΡΠ°Π΅ ΡΠΏΠΎΡΡΠ΅Π±Π»ΡΠ΅ΡΡΡ ΡΠ²Π΅ΡΠ»ΠΎ ΠΏΠΎΠΏΠ΅ΡΠ΅ΡΠ½ΠΈΠΊΠΎΠΌ 9 ΠΈΠ»ΠΈ ΠΆΠ΅ 10 ΠΌΠΈΠ»Π»ΠΈΠΌΠ΅ΡΡΠΎΠ².
ΠΡΠΎΠ³ΡΠ°ΠΌΠΌΠ° Π΄Π»Ρ ΡΠ°ΡΡΠ΅ΡΠ° Π΄Π½Π° ΠΈ Π·Π°Π΄Π½Π΅ΠΉ ΡΡΠ΅Π½ΠΊΠΈ ΠΠ΅ΡΠ°Π±ΠΎΠΊΡ Π‘ΠΊΠ°ΡΠ°ΡΡ
Β
Β
ΠΠ±Π·ΠΎΡ ΠΌΠ΅Π±Π΅Π»ΡΠ½ΡΡ Π½Π°ΠΏΡΠ°Π²Π»ΡΡΡΠΈΡ Π΄Π»Ρ Π²ΡΠ΄Π²ΠΈΠΆΠ½ΡΡ ΡΡΠΈΠΊΠΎΠ²
ΠΡΠ½ΠΎΠ²Π½ΠΎΠΉ Π·Π°Π΄Π°ΡΠ΅ΠΉ Π½Π°ΠΏΡΠ°Π²Π»ΡΡΡΠΈΡ
ΡΠ²Π»ΡΠ΅ΡΡΡ ΠΎΠ±Π΅ΡΠΏΠ΅ΡΠ΅Π½ΠΈΠ΅ Π±Π΅ΡΡΡΠΌΠ½ΠΎΠΉ ΠΈ ΠΏΠ»Π°Π²Π½ΠΎΠΉ ΡΠ°Π±ΠΎΡΡ Π²ΡΠ΄Π²ΠΈΠΆΠ½ΡΡ
ΡΡΠΈΠΊΠΎΠ². Π ΡΠΎΠΌΡ ΠΆΠ΅, ΡΠ°ΠΊΠΈΠ΅ ΡΠΈΡΡΠ΅ΠΌΡ ΠΎΠ±Π΅ΡΠΏΠ΅ΡΠΈΠ²Π°ΡΡ Π½Π°Π΄ΡΠΆΠ½ΠΎΡΡΡ ΠΈ ΡΠ΄ΠΎΠ±ΡΡΠ²ΠΎ ΡΠΊΡΠΏΠ»ΡΠ°ΡΠ°ΡΠΈΠΈ, ΡΡΠΎ ΠΈΠ³ΡΠ°Π΅Ρ Π½Π΅ΠΌΠ°Π»ΠΎΠ²Π°ΠΆΠ½ΡΡ ΡΠΎΠ»Ρ Π΄Π»Ρ Π΄ΠΎΠΌΠΎΡ
ΠΎΠ·ΡΠ΅ΠΊ.
Π ΠΏΡΠΎΡΠ»ΠΎΠΌ Π²ΡΠ΄Π²ΠΈΠΆΠ½ΡΠ΅ ΡΡΠΈΠΊΠΈ ΡΠΊΠΎΠ»ΡΠ·ΠΈΠ»ΠΈ ΠΏΠΎ Π΄Π΅ΡΠ΅Π²ΡΠ½Π½ΡΠΌ ΠΏΠΎΠ»ΠΎΠ·ΡΡΠΌ, ΡΡΠΎ ΡΠΎΠΏΡΠΎΠ²ΠΎΠΆΠ΄Π°Π»ΠΎΡΡ ΡΡΠΌΠΎΠ²ΡΠΌΠΈ ΡΡΡΠ΅ΠΊΡΠ°ΠΌΠΈ. ΠΠ»Ρ ΡΠΎΠ³ΠΎ ΡΡΠΎΠ±Ρ ΠΎΡΠΊΡΡΡΡ ΡΡΠΈΠΊ, ΡΡΠ΅Π±ΠΎΠ²Π°Π»ΠΎΡΡ ΠΏΡΠΈΠ»ΠΎΠΆΠΈΡΡ Π½Π΅ΠΊΠΎΡΠΎΡΠΎΠ΅ ΡΡΠΈΠ»ΠΈΠ΅. Π’Π΅ΠΏΠ΅ΡΡ ΠΆΠ΅ ΠΏΠΎΠ»ΡΠ·ΠΎΠ²Π°ΡΡΡΡ ΠΌΠ΅Π±Π΅Π»ΡΡ Ρ Π²ΡΠ΄Π²ΠΈΠΆΠ½ΡΠΌΠΈ ΡΡΠΈΠΊΠ°ΠΌΠΈ Π»Π΅Π³ΠΊΠΎ ΠΈ ΠΏΡΠΈΡΡΠ½ΠΎ, ΡΡΠΎ ΠΎΠ±Π΅ΡΠΏΠ΅ΡΠΈΠ²Π°Π΅ΡΡΡ Π±Π»Π°Π³ΠΎΠ΄Π°ΡΡ Π²ΡΡΡΠΎΠ΅Π½Π½ΡΠΌ Π² ΠΊΠΎΠ½ΡΡΡΡΠΊΡΠΈΡ Π½Π°ΠΏΡΠ°Π²Π»ΡΡΡΠΈΠΌ.
ΠΠ° ΡΠ΅Π³ΠΎΠ΄Π½ΡΡΠ½ΠΈΠΉ Π΄Π΅Π½Ρ ΡΡΡΠ΅ΡΡΠ²ΡΠ΅Ρ Π½Π΅ΡΠΊΠΎΠ»ΡΠΊΠΎ Π²ΠΈΠ΄ΠΎΠ² ΠΏΠΎΠ΄ΠΎΠ±Π½ΠΎΠΉ ΡΡΡΠ½ΠΈΡΡΡΡ, ΠΊΠΎΡΠΎΡΠ°Ρ ΠΎΡΠ»ΠΈΡΠ°Π΅ΡΡΡ ΠΌΠ΅ΠΆΠ΄Ρ ΡΠΎΠ±ΠΎΠΉ ΠΊΠΎΠ½ΡΡΡΡΠΊΡΠΈΠ²Π½ΡΠΌΠΈ ΠΎΡΠΎΠ±Π΅Π½Π½ΠΎΡΡΡΠΌΠΈ ΠΈ ΡΠΏΠΎΡΠΎΠ±ΠΎΠΌ ΠΌΠΎΠ½ΡΠ°ΠΆΠ°. Π Π΄Π°Π½Π½ΠΎΠΉ ΡΡΠ°ΡΡΠ΅ ΠΌΡ ΡΠ°ΡΡΠΊΠ°ΠΆΠ΅ΠΌ Π²Π°ΠΌ ΠΎ ΡΠΎΠΌ, ΠΊΠ°ΠΊΠΈΠ΅ Π±ΡΠ²Π°ΡΡ Π²ΠΈΠ΄Ρ Π½Π°ΠΏΡΠ°Π²Π»ΡΡΡΠΈΡ , Π° ΡΠ°ΠΊΠΆΠ΅ ΡΠ°ΡΠΊΡΠΎΠ΅ΠΌ ΡΠ΅ΠΊΡΠ΅ΡΡ ΠΈΡ ΡΠ°Π±ΠΎΡΡ.
ΠΠΈΠ΄Ρ Π½Π°ΠΏΡΠ°Π²Π»ΡΡΡΠΈΡ
Π Π·Π°Π²ΠΈΡΠΈΠΌΠΎΡΡΠΈ ΠΎΡ ΠΊΠΎΠ½ΡΡΡΡΠΊΡΠΈΠ²Π½ΡΡ ΠΎΡΠΎΠ±Π΅Π½Π½ΠΎΡΡΠ΅ΠΉ ΡΠ°Π·Π»ΠΈΡΠ°ΡΡ ΡΠ»Π΅Π΄ΡΡΡΠΈΠ΅ ΡΠ°Π·Π½ΠΎΠ²ΠΈΠ΄Π½ΠΎΡΡΠΈ Π½Π°ΠΏΡΠ°Π²Π»ΡΡΡΠΈΡ Π΄Π»Ρ Π²ΡΠ΄Π²ΠΈΠΆΠ½ΡΡ ΡΡΠΈΠΊΠΎΠ²:
- Π ΠΎΠ»ΠΈΠΊΠΎΠ²ΡΠ΅;
- ΠΠΎΠ»Π½ΠΎΠ³ΠΎ Π²ΡΠ΄Π²ΠΈΠΆΠ΅Π½ΠΈΡ;
- Π‘ Π΄ΠΎΠ²ΠΎΠ΄ΡΠΈΠΊΠΎΠΌ;
- ΠΠ±ΡΠ°ΡΠ½ΠΎΠ³ΠΎ Π΄Π΅ΠΉΡΡΠ²ΠΈΡ;
- Π‘ΠΊΡΡΡΠΎΠ³ΠΎ ΠΌΠΎΠ½ΡΠ°ΠΆΠ°;
- ΠΠ΅ΡΠ°Π±ΠΎΠΊΡΡ ΠΈ ΡΠ°Π½Π΄Π΅ΠΌΠ±ΠΎΠΊΡΡ.
Π Π°ΡΡΠΌΠΎΡΡΠΈΠΌ ΠΊΠ°ΠΆΠ΄ΡΠΉ Π²ΠΈΠ΄ Π±ΠΎΠ»Π΅Π΅ ΠΏΠΎΠ΄ΡΠΎΠ±Π½ΠΎ.
Π ΠΎΠ»ΠΈΠΊΠΎΠ²ΡΠ΅ Π½Π°ΠΏΡΠ°Π²Π»ΡΡΡΠΈΠ΅
ΠΠΎΠ΄ΠΎΠ±Π½ΡΠ΅ ΡΠΈΡΡΠ΅ΠΌΡ Π²ΠΏΠ΅ΡΠ²ΡΠ΅ ΠΏΠΎΡΠ²ΠΈΠ»ΠΈΡΡ Π½Π° ΠΎΡΠ΅ΡΠ΅ΡΡΠ²Π΅Π½Π½ΠΎΠΌ ΡΡΠ½ΠΊΠ΅ ΠΏΡΠΈΠΌΠ΅ΡΠ½ΠΎ Π»Π΅Ρ 15 Π½Π°Π·Π°Π΄ ΠΈ ΡΡΠ°Π·Ρ Π·Π°Π²ΠΎΠ΅Π²Π°Π»ΠΈ ΠΏΠΎΠΏΡΠ»ΡΡΠ½ΠΎΡΡΡ ΡΡΠ΅Π΄ΠΈ ΠΏΠΎΡΡΠ΅Π±ΠΈΡΠ΅Π»Π΅ΠΉ ΠΈ ΠΏΡΠΎΠΈΠ·Π²ΠΎΠ΄ΠΈΡΠ΅Π»Π΅ΠΉ ΠΌΠ΅Π±Π΅Π»ΡΠ½ΠΎΠΉ ΠΏΡΠΎΠ΄ΡΠΊΡΠΈΠΈ.
Π‘Π΅Π³ΠΎΠ΄Π½Ρ ΡΠΎΠ»ΠΈΠΊΠΎΠ²ΡΠ΅ Π½Π°ΠΏΡΠ°Π²Π»ΡΡΡΠΈΠ΅ Π½Π°ΡΡΠΎΠ»ΡΠΊΠΎ Π²ΠΎΡΡΡΠ΅Π±ΠΎΠ²Π°Π½Ρ, ΡΡΠΎ Π±Π΅Π· Π½ΠΈΡ
Π½Π΅ ΠΎΠ±Ρ
ΠΎΠ΄ΠΈΡΡΡ ΠΏΡΠ°ΠΊΡΠΈΡΠ΅ΡΠΊΠΈ Π½ΠΈ ΠΎΠ΄Π½ΠΎ ΠΌΠ΅Π±Π΅Π»ΡΠ½ΠΎΠ΅ ΠΈΠ·Π΄Π΅Π»ΠΈΠ΅.
Π ΠΎΡΠ½ΠΎΠ²Π½ΡΠΌ ΠΏΡΠ΅ΠΈΠΌΡΡΠ΅ΡΡΠ²Π°ΠΌ ΡΠ°ΠΊΠΎΠΉ ΡΡΡΠ½ΠΈΡΡΡΡ ΠΎΡΠ½ΠΎΡΡΡΡΡ:
- ΠΠ»Π°Π²Π½ΡΠΉ Ρ ΠΎΠ΄;
- ΠΡΡΡΡΡΡΠ²ΠΈΠ΅ ΠΏΠΎΡΡΠ΅Π±Π½ΠΎΡΡΠΈ Π² ΡΠΌΠ°Π·ΠΊΠ΅;
- ΠΡΠ³ΠΊΠΎΡΡΡ ΠΌΠΎΠ½ΡΠ°ΠΆΠ° (Π½Π΅ ΡΡΠ΅Π±ΡΠ΅ΡΡΡ ΡΠ²Π΅ΡΠ»Π΅Π½ΠΈΠ΅ Π΄ΠΎΠΏΠΎΠ»Π½ΠΈΡΠ΅Π»ΡΠ½ΡΡ ΠΎΡΠ²Π΅ΡΡΡΠΈΠΉ ΠΏΠΎΠ΄ ΡΠ°ΠΌΠΎΡΠ΅Π·Ρ).
ΠΠΎΠ½ΡΠΈΡΡΡΡΡΡ ΡΠΎΠ»ΠΈΠΊΠΎΠ²ΡΠ΅ Π½Π°ΠΏΡΠ°Π²Π»ΡΡΡΠΈΠ΅ ΠΏΠΎ ΠΎΠ±Π΅ ΡΡΠΎΡΠΎΠ½Ρ ΠΎΡΠ²Π΅ΡΡΡΠΈΡ, ΠΏΡΠ΅Π΄Π½Π°Π·Π½Π°ΡΠ΅Π½Π½ΠΎΠ³ΠΎ Π΄Π»Ρ ΡΡΡΠ°Π½ΠΎΠ²ΠΊΠΈ ΡΡΠΈΠΊΠ°. ΠΡΠΈ ΡΡΠΎΠΌ Π½Π΅ ΡΡΡΠ΅ΡΡΠ²ΡΠ΅Ρ ΠΆΡΡΡΠΊΠΈΡ ΡΡΠ΅Π±ΠΎΠ²Π°Π½ΠΈΠΉ ΠΊ ΡΠΎΡΠ½ΠΎΡΡΠΈ Π³Π°Π±Π°ΡΠΈΡΠ½ΡΡ ΡΠ°Π·ΠΌΠ΅ΡΠΎΠ² (Π² ΠΏΡΠ΅Π΄Π΅Π»Π°Ρ ΡΠ°Π·ΡΠΌΠ½ΠΎΠ³ΠΎ, Π΅ΡΡΠ΅ΡΡΠ²Π΅Π½Π½ΠΎ) ΠΏΡΠ΅Π΄ΠΌΠ΅ΡΠΎΠ² ΠΌΠ΅Π±Π΅Π»ΠΈ ΠΈ, Π½Π΅ΠΏΠΎΡΡΠ΅Π΄ΡΡΠ²Π΅Π½Π½ΠΎ, ΡΠ°ΠΌΠΎΠ³ΠΎ Π²ΡΠ΄Π²ΠΈΠΆΠ½ΠΎΠ³ΠΎ ΡΡΠΈΠΊΠ°.
ΠΡΠΈ Π½Π΅ΠΊΠΎΡΡΠ΅ΠΊΡΠ½ΠΎΠΉ ΡΡΡΠ°Π½ΠΎΠ²ΠΊΠ΅ ΠΈΠ·Π΄Π΅Π»ΠΈΡ Π½Π° ΠΏΠΎΠ²Π΅ΡΡ Π½ΠΎΡΡΠΈ ΠΏΠΎΠ»Π° ΠΏΠ΅ΡΠ΅ΠΊΠΎΡ ΠΌΠΎΠΆΠ½ΠΎ ΠΏΠΎΠΏΡΠ°Π²ΠΈΡΡ ΠΊΠΎΡΡΠ΅ΠΊΡΠΈΡΠΎΠ²ΠΊΠΎΠΉ ΡΠΎΠ»ΠΈΠΊΠΎΠ²ΡΡ Π½Π°ΠΏΡΠ°Π²Π»ΡΡΡΠΈΡ .Β ΠΡ ΡΠΌΠΎΠΆΠ΅ΡΠ΅ Ρ Π»Π΅Π³ΠΊΠΎΡΡΡΡ ΠΎΡΡΠ΅Π³ΡΠ»ΠΈΡΠΎΠ²Π°ΡΡ ΠΏΠΎΠ»ΠΎΠΆΠ΅Π½ΠΈΠ΅ Π»ΠΈΡΠ΅Π²ΠΎΠΉ ΡΠ°ΡΡΠΈ ΡΡΠΈΠΊΠ° Π² ΡΡΡΡ ΠΊΠΎΠΎΡΠ΄ΠΈΠ½Π°ΡΠ°Ρ .
Π Π°Π·ΠΌΠ΅Ρ, Π° ΠΈΠΌΠ΅Π½Π½ΠΎ Π΄Π»ΠΈΠ½Π°, Π΄Π°Π½Π½ΠΎΠΉ ΡΠ°Π·Π½ΠΎΠ²ΠΈΠ΄Π½ΠΎΡΡΠΈ ΡΡΡΠ½ΠΈΡΡΡΡ ΠΌΠΎΠΆΠ΅Ρ Π²Π°ΡΡΠΈΡΠΎΠ²Π°ΡΡΡΡ Π² ΠΏΡΠ΅Π΄Π΅Π»Π°Ρ ΠΎΡ 250 Π΄ΠΎ 600 ΠΌΠΈΠ»Π»ΠΈΠΌΠ΅ΡΡΠΎΠ².
Π‘ΠΈΡΡΠ΅ΠΌΡ ΠΏΠΎΠ»Π½ΠΎΠ³ΠΎ Π²ΡΠ΄Π²ΠΈΠΆΠ΅Π½ΠΈΡ
ΠΠ°Π·Ρ ΡΠ°ΠΊΠΎΠΉ ΡΠΈΡΡΠ΅ΠΌΡ ΡΠΎΡΡΠ°Π²Π»ΡΠ΅Ρ ΡΠ°ΡΠΈΠΊΠΎΠ²ΡΠΉ ΠΏΠΎΠ΄ΡΠΈΠΏΠ½ΠΈΠΊ.
Π’Π°ΠΊΠΈΠ΅ Π½Π°ΠΏΡΠ°Π²Π»ΡΡΡΠΈΠ΅, Π±Π»Π°Π³ΠΎΠ΄Π°ΡΡ ΡΠ²ΠΎΠΈΠΌ ΠΊΠΎΠ½ΡΡΡΡΠΊΡΠΈΠ²Π½ΡΠΌ ΠΎΡΠΎΠ±Π΅Π½Π½ΠΎΡΡΡΠΌ, ΠΎΠ±Π΅ΡΠΏΠ΅ΡΠΈΠ²Π°ΡΡ ΠΏΠΎΠ»Π½ΠΎΠ΅ ΠΈ ΠΏΠ»Π°Π²Π½ΠΎΠ΅ ΠΎΡΠΊΡΡΠ²Π°Π½ΠΈΠ΅. ΠΠ΄Π½Π°ΠΊΠΎ, ΠΈΡΠΏΠΎΠ»ΡΠ·ΠΎΠ²Π°Π½ΠΈΠ΅ ΡΠ°ΠΊΠΎΠΉ ΡΡΡΠ½ΠΈΡΡΡΡ ΠΏΠΎΡΡΠ΅Π±ΡΠ΅Ρ Π±ΠΎΠ»ΡΡΠΈΡ
, ΠΏΠΎ ΡΡΠ°Π²Π½Π΅Π½ΠΈΡ Ρ ΡΠΎΠ»ΠΈΠΊΠΎΠ²ΠΎΠΉ ΡΠΈΡΡΠ΅ΠΌΠΎΠΉ, ΡΡΠΈΠ»ΠΈΠΉ Π΄Π»Ρ ΡΠΊΡΠΏΠ»ΡΠ°ΡΠ°ΡΠΈΠΈ ΡΡΠΈΠΊΠ°.
Π‘Π΅Π³ΠΎΠ΄Π½Ρ Π½Π° ΡΡΠ½ΠΊΠ΅ ΠΏΡΠ΅Π΄ΡΡΠ°Π²Π»Π΅Π½ΠΎ Π±ΠΎΠ»ΡΡΠΎΠ΅ ΡΠ°Π·Π½ΠΎΠΎΠ±ΡΠ°Π·ΠΈΠ΅ Π½Π°ΠΏΡΠ°Π²Π»ΡΡΡΠΈΡ ΡΠΈΡΡΠ΅ΠΌ ΠΏΠΎΠ»Π½ΠΎΠ³ΠΎ Π²ΡΠ΄Π²ΠΈΠΆΠ΅Π½ΠΈΡ, ΠΊΠΎΡΠΎΡΡΠ΅ ΡΠ°ΡΡΡΠΈΡΠ°Π½Ρ Π½Π° ΡΠ°Π·Π»ΠΈΡΠ½ΡΠ΅ ΠΏΠΎΠΊΠ°Π·Π°ΡΠ΅Π»ΠΈ Π½Π°Π³ΡΡΠ·ΠΊΠΈ. ΠΠ΄Π½Π°ΠΊΠΎ, Π½Π΅ΠΎΠ±Ρ ΠΎΠ΄ΠΈΠΌΠΎ ΠΏΠΎΠΌΠ½ΠΈΡΡ, ΡΡΠΎ ΡΡΡΠ°Π½Π°Π²Π»ΠΈΠ²Π°ΡΡ ΡΠ°ΠΊΡΡ ΡΡΡΠ½ΠΈΡΡΡΡ ΡΠ»Π΅Π΄ΡΠ΅Ρ Ρ Π±ΠΎΠ»ΡΡΠΎΠΉ ΠΎΡΡΠΎΡΠΎΠΆΠ½ΠΎΡΡΡΡ.
Π ΠΏΡΠΎΡΠΈΠ²Π½ΠΎΠΌ ΡΠ»ΡΡΠ°Π΅ Π΅ΡΡΡ ΡΠΈΡΠΊ ΠΏΠΎΠ²ΡΠ΅Π΄ΠΈΡΡ ΠΏΠΎΠ΄ΡΠΈΠΏΠ½ΠΈΠΊ, ΡΡΠΎ ΠΏΡΠΈΠ²Π΅Π΄ΡΡ ΠΊ ΡΠΎΠΊΡΠ°ΡΠ΅Π½ΠΈΡ ΡΠΊΡΠΏΠ»ΡΠ°ΡΠ°ΡΠΈΠΎΠ½Π½ΠΎΠ³ΠΎ ΡΡΠΎΠΊΠ° ΠΈΠ·Π΄Π΅Π»ΠΈΡ ΠΈΠ»ΠΈ ΠΏΠΎΠ»Π½ΠΎΠΌΡ Π²ΡΡ ΠΎΠ΄Ρ Π΅Π³ΠΎ ΠΈΠ· ΡΡΡΠΎΡ.
ΠΠ°ΠΏΡΠ°Π²Π»ΡΡΡΠΈΠ΅ Ρ Π΄ΠΎΠ²ΠΎΠ΄ΡΠΈΠΊΠΎΠΌ
ΠΠΎ ΡΡΡΠΈ, ΡΠ°ΠΊΠΈΠ΅ ΡΠΈΡΡΠ΅ΠΌΡ ΠΏΠΎ ΠΊΠΎΠ½ΡΡΡΡΠΊΡΠΈΠΈ Π°Π½Π°Π»ΠΎΠ³ΠΈΡΠ½Ρ ΠΏΡΠ΅Π΄ΡΠ΄ΡΡΠΈΠΌ Ρ ΠΎΠ΄Π½ΠΎΠΉ ΡΠΎΠ»ΡΠΊΠΎ ΡΠ°Π·Π½ΠΈΡΠ΅ΠΉ β ΡΠ°ΠΊΠΈΠ΅ Π½Π°ΠΏΡΠ°Π²Π»ΡΡΡΠΈΠ΅ Π΄ΠΎΠΏΠΎΠ»Π½ΠΈΡΠ΅Π»ΡΠ½ΠΎ ΠΎΠ±ΠΎΡΡΠ΄ΡΡΡΡΡ Π΄Π΅ΠΌΠΏΡΠ΅ΡΠ°ΠΌΠΈ ΠΈ Π΄ΠΎΠ²ΠΎΠ΄ΡΠΈΠΊΠΎΠΌ.
ΠΠ΅ΠΌΠΏΡΠ΅ΡΡ ΠΎΠ±Π΅ΡΠΏΠ΅ΡΠΈΠ²Π°ΡΡ ΠΏΠ»Π°Π²Π½ΠΎΠ΅ ΠΈ Π±Π΅ΡΡΡΠΌΠ½ΠΎΠ΅ Π·Π°ΠΊΡΡΠ²Π°Π½ΠΈΠ΅ ΡΡΠΈΠΊΠ°, Π° ΡΠ°ΠΊΠΆΠ΅ Π²ΡΡΡΡΠΏΠ°ΡΡ Π² ΠΊΠ°ΡΠ΅ΡΡΠ²Π΅ Π°ΠΌΠΎΡΡΠΈΠ·Π°ΡΠΎΡΠ° Π² ΡΠ»ΡΡΠ°Π΅ ΠΏΡΠΈΠ»ΠΎΠΆΠ΅Π½ΠΈΡ ΠΈΠ·Π±ΡΡΠΎΡΠ½ΠΎΠ³ΠΎ ΡΡΠΈΠ»ΠΈΡ Π² ΠΏΡΠΎΡΠ΅ΡΡΠ΅ Π΅Π³ΠΎ Π·Π°ΠΊΡΡΡΠΈΡ.
ΠΠΎΠ²ΠΎΠ΄ΡΠΈΠΊΠΈ ΠΆΠ΅ ΡΡΡΠ°Π½Π°Π²Π»ΠΈΠ²Π°ΡΡΡΡ Π΄Π»Ρ ΡΠΎΠ³ΠΎ, ΡΡΠΎΠ±Ρ ΠΏΠΎΠ΄Ρ Π²Π°ΡΠΈΡΡ ΡΠΎΡΡΠ°Π²Π»ΡΡΡΡΡ ΠΌΠ΅Π±Π΅Π»ΠΈ Π² ΠΊΡΠ°ΠΉΠ½Π΅ΠΌ ΠΏΠΎΠ»ΠΎΠΆΠ΅Π½ΠΈΠΈ ΠΈ ΠΎΡΡΡΠ΅ΡΡΠ²ΠΈΡΡ Π΅Ρ ΠΏΠ»Π°Π²Π½ΠΎΠ΅ Π΄ΠΎΠ·Π°ΠΊΡΡΡΠΈΠ΅.
ΠΠΎΠ΄ΠΎΠ±Π½ΡΠ΅ ΡΠΈΡΡΠ΅ΠΌΡ ΠΎΡΠ»ΠΈΡΠ°ΡΡΡΡ Π²ΡΡΠΎΠΊΠΈΠΌ ΡΡΠΎΠ²Π½Π΅ΠΌ Π½Π°Π΄ΡΠΆΠ½ΠΎΡΡΠΈ ΠΈ ΡΠΏΠΎΡΠΎΠ±Π½Ρ Π²ΡΠ΄Π΅ΡΠΆΠΈΠ²Π°ΡΡ Π±ΠΎΠ»ΡΡΠΈΠ΅ Π½Π°Π³ΡΡΠ·ΠΊΠΈ, ΡΡΠΎ Π΄Π΅Π»Π°Π΅Ρ ΠΈΡ Π΄ΠΎΠ²ΠΎΠ»ΡΠ½ΠΎ ΠΏΠΎΠΏΡΠ»ΡΡΠ½ΡΠΌΠΈ ΡΡΠ΅Π΄ΠΈ ΠΏΡΠΎΠΈΠ·Π²ΠΎΠ΄ΠΈΡΠ΅Π»Π΅ΠΉ ΠΌΠ΅Π±Π΅Π»ΡΠ½ΡΡ ΠΈΠ·Π΄Π΅Π»ΠΈΠΉ.
ΠΠ°ΠΏΡΠ°Π²Π»ΡΡΡΠΈΠ΅ ΠΎΠ±ΡΠ°ΡΠ½ΠΎΠ³ΠΎ Π΄Π΅ΠΉΡΡΠ²ΠΈΡ
ΠΠΎΠ΄ΠΎΠ±Π½Π°Ρ ΡΠ°Π·Π½ΠΎΠ²ΠΈΠ΄Π½ΠΎΡΡΡ ΠΌΠ΅Π±Π΅Π»ΡΠ½ΠΎΠΉ ΡΡΡΠ½ΠΈΡΡΡΡ ΠΏΡΠ°ΠΊΡΠΈΡΠ΅ΡΠΊΠΈ Π½Π΅ ΠΎΡΠ»ΠΈΡΠ°Π΅ΡΡΡ ΠΎΡ Π½Π°ΠΏΡΠ°Π²Π»ΡΡΡΠΈΡ Ρ Π΄ΠΎΠ²ΠΎΠ΄ΡΠΈΠΊΠΎΠ². ΠΠ΄ΠΈΠ½ΡΡΠ²Π΅Π½Π½ΡΠΌ ΠΈΡΠΊΠ»ΡΡΠ΅Π½ΠΈΠ΅ΠΌ ΡΠ²Π»ΡΠ΅ΡΡΡ ΡΠΎ, ΡΡΠΎ ΠΎΡΠΊΡΡΡΠΈΠ΅ ΡΡΠΈΠΊΠ° ΠΏΡΠΈ ΡΡΡΠ°Π½ΠΎΠ²ΠΊΠ΅ ΡΠ°ΠΊΠΎΠΉ ΡΠΈΡΡΠ΅ΠΌΡ ΠΏΡΠΎΠΈΡΡ ΠΎΠ΄ΠΈΡ Π·Π° ΡΡΡΡ Π½Π°ΠΆΠ°ΡΠΈΡ Π½Π° Π½Π΅Π³ΠΎ.
ΠΠ· ΡΡΠΎΠ³ΠΎ Π²ΡΡΠ΅ΠΊΠ°Π΅Ρ ΠΈ Π΄ΠΎΡΡΠΎΠΈΠ½ΡΡΠ²ΠΎ Π½Π°ΠΏΡΠ°Π²Π»ΡΡΡΠΈΡ ΠΎΠ±ΡΠ°ΡΠ½ΠΎΠ³ΠΎ Π΄Π΅ΠΉΡΡΠ²ΠΈΡ β ΠΎΡΡΡΡΡΡΠ²ΠΈΠ΅ ΡΡΡΠ΅ΠΊ Π½Π° ΠΏΡΠ΅Π΄ΠΌΠ΅ΡΠ°Ρ ΠΌΠ΅Π±Π΅Π»ΠΈ.
Π‘ΠΈΡΡΠ΅ΠΌΡ ΡΠΊΡΡΡΠΎΠ³ΠΎ ΠΌΠΎΠ½ΡΠ°ΠΆΠ°
Π’Π°ΠΊΠΈΠ΅ Π½Π°ΠΏΡΠ°Π²Π»ΡΡΡΠΈΠ΅ Π² ΠΏΠΎΡΠ»Π΅Π΄Π½Π΅Π΅ Π²ΡΠ΅ΠΌΡ Π½Π°Π±ΠΈΡΠ°ΡΡ Π²ΡΡ Π±ΠΎΠ»ΡΡΡΡ ΠΏΠΎΠΏΡΠ»ΡΡΠ½ΠΎΡΡΡ ΠΈ ΠΌΠΎΠ³ΡΡ ΠΎΠ±ΠΎΡΡΠ΄ΠΎΠ²Π°ΡΡΡΡ ΠΊΠ°ΠΊ Π΄ΠΎΠ²ΠΎΠ΄ΡΠΈΠΊΠ°ΠΌΠΈ, ΡΠ°ΠΊ ΠΈ ΡΠΈΡΡΠ΅ΠΌΠ°ΠΌΠΈ ΠΎΠ±ΡΠ°ΡΠ½ΠΎΠ³ΠΎ Π΄Π΅ΠΉΡΡΠ²ΠΈΡ.
ΠΡΠ½ΠΎΠ²Π½ΡΠΌ ΠΈΡ
Π΄ΠΎΡΡΠΎΠΈΠ½ΡΡΠ²ΠΎΠΌ ΡΠ²Π»ΡΠ΅ΡΡΡ ΡΠΎ, ΡΡΠΎ ΠΌΠΎΠ½ΡΠΈΡΡΡΡΡΡ ΠΎΠ½ΠΈ ΠΏΠΎΠ΄ Π΄Π½ΠΎΠΌ ΡΡΠΈΠΊΠ°, Π±Π»Π°Π³ΠΎΠ΄Π°ΡΡ ΡΠ΅ΠΌΡ ΡΠΎΠ·Π΄Π°ΡΡΡΡ ΡΡΡΠ΅ΠΊΡ ΠΏΠ°ΡΠ΅Π½ΠΈΡ ΡΠ»Π΅ΠΌΠ΅Π½ΡΠ° Π² Π²ΠΎΠ·Π΄ΡΡ
Π΅.
Π ΡΠΎΠΌΡ ΠΆΠ΅, ΡΠ°ΠΊΠ°Ρ ΡΡΡΠ½ΠΈΡΡΡΠ° ΠΎΡΠ»ΠΈΡΠ°Π΅ΡΡΡ Π²ΡΡΠΎΠΊΠΎΠΉ ΡΡΠ΅ΠΏΠ΅Π½ΡΡ Π½Π°Π΄ΡΠΆΠ½ΠΎΡΡΠΈ, ΠΎΠ±Π΅ΡΠΏΠ΅ΡΠΈΠ²Π°Π΅Ρ ΠΏΠ»Π°Π²Π½ΡΠΉ ΠΈ Π±Π΅ΡΡΡΠΌΠ½ΡΠΉ Ρ
ΠΎΠ΄ ΠΈΠ·Π΄Π΅Π»ΠΈΡ, Π° ΡΠ°ΠΊΠΆΠ΅ ΠΌΡΠ³ΠΊΠΎΠ΅ Π·Π°ΠΊΡΡΠ²Π°Π½ΠΈΠ΅.
ΠΠ΅ΡΠ°Π±ΠΎΠΊΡΡ ΠΈ ΡΠ°Π½Π΄Π΅ΠΌΠ±ΠΎΠΊΡΡ
ΠΠΎΠ΄ΠΎΠ±Π½ΠΎΠ΅ Π½Π°Π·Π²Π°Π½ΠΈΠ΅ ΡΠ²Π»ΡΠ΅ΡΡΡ Π½Π΅ ΡΠΎΠ²ΡΠ΅ΠΌ ΠΊΠΎΡΡΠ΅ΠΊΡΠ½ΡΠΌ, ΡΠ°ΠΊ ΠΊΠ°ΠΊ ΠΎΡΠ½ΠΎΡΠΈΡΡΡ ΠΊ ΡΡΡΠ½ΠΈΡΡΡΠ΅ Blum (Π±Π»ΡΠΌ). ΠΠ΄Π½Π°ΠΊΠΎ, ΠΎΠ½ΠΎ Π΄ΠΎΡΡΠ°ΡΠΎΡΠ½ΠΎ ΠΏΡΠΎΡΠ½ΠΎ Π²ΠΎΡΠ»ΠΎ Π² ΠΎΠ±ΠΈΡ ΠΎΠ΄ ΠΏΡΠΎΠΈΠ·Π²ΠΎΠ΄ΠΈΡΠ΅Π»Π΅ΠΉ ΠΌΠ΅Π±Π΅Π»ΠΈ ΠΈ ΡΠΈΡΠΎΠΊΠΎ ΠΈΡΠΏΠΎΠ»ΡΠ·ΡΠ΅ΡΡΡ ΠΏΠΎ ΠΎΡΠ½ΠΎΡΠ΅Π½ΠΈΡ ΠΊ ΡΠΈΡΡΠ΅ΠΌΠ°ΠΌ ΠΎΡ Π΄ΡΡΠ³ΠΈΡ ΠΏΡΠΎΠΈΠ·Π²ΠΎΠ΄ΠΈΡΠ΅Π»Π΅ΠΉ, ΡΠ°ΠΊΠΈΡ ΠΊΠ°ΠΊ, Π½Π°ΠΏΡΠΈΠΌΠ΅Ρ, Hettich (Ρ ΡΡΠΈΡ) ΠΈ Boyard (Π±ΠΎΡΡΠ΄).
ΠΡΠ½ΠΎΠ²Π½ΡΠΌΠΈ ΠΎΡΠΎΠ±Π΅Π½Π½ΠΎΡΡΡΠΌΠΈ, Ρ Π°ΡΠ°ΠΊΡΠ΅ΡΠ½ΡΠΌΠΈ Π΄Π»Ρ Π²ΡΠ΅ΠΉ ΡΡΡΠ½ΠΈΡΡΡΡ ΠΏΠΎΠ΄ΠΎΠ±Π½ΠΎΠ³ΠΎ ΡΠΎΠ΄Π°, ΡΠ²Π»ΡΡΡΡΡ:
- ΡΠ°ΡΠΏΠΎΠ»ΠΎΠΆΠ΅Π½ΠΈΠ΅ Π½Π°ΠΏΡΠ°Π²Π»ΡΡΡΠ΅ΠΉ Π²Π½ΡΡΡΠΈ ΠΌΠ΅ΡΠ°Π»Π»ΠΈΡΠ΅ΡΠΊΠΎΠΉ Π±ΠΎΠΊΠΎΠ²ΠΎΠΉ ΡΡΠ΅Π½ΠΊΠΈ;
- Π½Π°Π»ΠΈΡΠΈΠ΅ Π΄Π΅ΠΌΠΏΡΠ΅ΡΠΎΠ² ΠΈ Π΄ΠΎΠ²ΠΎΠ΄ΡΠΈΠΊΠ°.
ΠΡΠ΅ΠΈΠΌΡΡΠ΅ΡΡΠ²ΠΎΠΌ ΡΠ°Π½Π΄Π΅ΠΌΠ±ΠΎΠΊΡΠΎΠ² ΠΏΠ΅ΡΠ΅Π΄ ΡΠΈΡΡΠ΅ΠΌΠ°ΠΌΠΈ ΡΠΊΡΡΡΠΎΠ³ΠΎ ΠΌΠΎΠ½ΡΠ°ΠΆΠ° ΡΠ²Π»ΡΠ΅ΡΡΡ ΡΠΎ, ΡΡΠΎ ΠΎΠ½ΠΈ ΡΠΏΠΎΡΠΎΠ±Π½Ρ Π²ΡΠ΄Π΅ΡΠΆΠΈΠ²Π°ΡΡ Π³ΠΎΡΠ°Π·Π΄ΠΎ Π±ΠΎΠ»ΡΡΠΈΠ΅ Π½Π°Π³ΡΡΠ·ΠΊΠΈ, ΠΎΠ±Π»Π°Π΄Π°ΡΡ ΠΏΡΠ΅ΠΊΡΠ°ΡΠ½ΡΠΌ Π΄ΠΈΠ·Π°ΠΉΠ½ΠΎΠΌ ΠΈ Ρ ΠΎΡΠΎΡΠΈΠΌΠΈ ΡΠΊΡΠΏΠ»ΡΠ°ΡΠ°ΡΠΈΠΎΠ½Π½ΡΠΌΠΈ ΠΊΠ°ΡΠ΅ΡΡΠ²Π°ΠΌΠΈ.
ΠΡΠ»ΠΈ ΡΠΊΠ°Π·Π°ΡΡ Π΄ΡΡΠ³ΠΈΠΌΠΈ ΡΠ»ΠΎΠ²Π°ΠΌΠΈ, ΡΠΎ ΡΠ°ΠΊΠΈΠ΅ ΡΠΈΡΡΠ΅ΠΌΡ, ΡΡΡ Π½Π°Π·Π²Π°Π½ΠΈΠ΅ ΠΏΡΠΎΠΈΠ·ΠΎΡΠ»ΠΎ ΠΎΡ ΡΡΡΠ½ΠΈΡΡΡΡ Π±Π»ΡΠΌ, ΠΎΠ±ΡΠ΅Π΄ΠΈΠ½ΠΈΠ»ΠΈ Π² ΡΠ΅Π±Π΅ Π²ΡΡ ΡΠ°ΠΌΠΎΠ΅ Π»ΡΡΡΠ΅Π΅.
ΠΠ΄Π½Π°ΠΊΠΎ, Π² Π²ΠΈΠ΄Ρ ΡΠ»ΠΎΠΆΠ½ΠΎΡΡΠΈ ΠΊΠΎΠ½ΡΡΡΡΠΊΡΠΈΠΈ ΠΈ ΡΡΠΎΠΈΠΌΠΎΡΡΡ ΡΠ°ΠΊΠΎΠΉ ΡΠΈΡΡΠ΅ΠΌΡ Π΄ΠΎΡΡΠ°ΡΠΎΡΠ½ΠΎ Π²ΡΡΠΎΠΊΠ°Ρ.
ΠΠΎΡΡΠΎΠΌΡ, ΠΊΠ°ΠΊ ΠΏΡΠ°Π²ΠΈΠ»ΠΎ, ΡΡΡΠ°Π½Π°Π²Π»ΠΈΠ²Π°ΡΡΡΡ ΡΠ°Π½Π΄Π΅ΠΌΠ±ΠΎΠΊΡΡ ΡΠΎΠ»ΡΠΊΠΎ Π² ΡΠ»ΠΈΡΠ½ΠΎΠΉ Π΄ΠΎΡΠΎΠ³ΠΎΡΡΠΎΡΡΠ΅ΠΉ ΠΌΠ΅Π±Π΅Π»ΠΈ.
ΠΠ°ΠΊ Π²ΠΈΠ΄ΠΈΡΠ΅, ΡΠΎΠ²ΡΠ΅ΠΌΠ΅Π½Π½ΡΠ΅ ΠΏΡΠΎΠΈΠ·Π²ΠΎΠ΄ΠΈΡΠ΅Π»ΠΈ ΠΌΠ΅Π±Π΅Π»ΡΠ½ΠΎΠΉ ΡΡΡΠ½ΠΈΡΡΡΡ Π²ΡΠΏΡΡΠΊΠ°ΡΡ Π½Π°ΠΏΡΠ°Π²Π»ΡΡΡΠΈΠ΅, ΠΎΡΠΈΠ΅Π½ΡΠΈΡΠΎΠ²Π°Π½Π½ΡΠ΅ Π½Π° Π»ΡΠ±ΠΎΠΉ Π²ΠΊΡΡ ΠΈ ΡΠΈΠ½Π°Π½ΡΠΎΠ²ΡΠ΅ Π²ΠΎΠ·ΠΌΠΎΠΆΠ½ΠΎΡΡΠΈ ΠΏΠΎΡΡΠ΅Π±ΠΈΡΠ΅Π»Ρ. Π ΡΠΎΠ»ΡΠΊΠΎ ΠΎΡ Π²Π°Ρ Π·Π°Π²ΠΈΡΠΈΡ, ΠΊΠ°ΠΊΠ°Ρ ΡΠΈΡΡΠ΅ΠΌΠ° Π±ΡΠ΄Π΅Ρ ΡΡΡΠ°Π½ΠΎΠ²Π»Π΅Π½Π° Π² Π²Π°ΡΠΈΡ ΠΏΡΠ΅Π΄ΠΌΠ΅ΡΠ°Ρ ΠΈΠ½ΡΠ΅ΡΡΠ΅ΡΠ°.
ΠΠΏΡΠ΅Π΄Π΅Π»ΠΈΡΡΡΡ Ρ Π²ΡΠ±ΠΎΡΠΎΠΌ Π½Π΅ΠΎΠ±Ρ ΠΎΠ΄ΠΈΠΌΡΡ Π½Π°ΠΏΡΠ°Π²Π»ΡΡΡΠΈΡ Π΄Π»Ρ Π²Π°ΡΠ΅ΠΉ ΠΌΠ΅Π±Π΅Π»ΠΈ ΠΏΠΎΠΌΠΎΠ³ΡΡ ΡΠΎΡΠΎ, ΠΊΠΎΡΠΎΡΡΠ΅ Π²Ρ Π²ΠΈΠ΄ΠΈΡΠ΅ Π½Π° Π½Π°ΡΠ΅ΠΌ ΡΠ°ΠΉΡΠ΅.
Π Π°Π·Π½ΡΠ΅ Π²ΠΈΠ΄Ρ Π½Π°ΠΏΡΠ°Π²Π»ΡΡΡΠΈΡ Π΄Π»Ρ Π²ΡΠ΄Π²ΠΈΠΆΠ½ΡΡ ΡΡΠΈΠΊΠΎΠ² β Π‘Π΄Π΅Π»Π°Π΅ΠΌ ΠΌΠ΅Π±Π΅Π»Ρ ΡΠ°ΠΌΠΈ
ΠΠ΄ΡΠ°Π²ΡΡΠ²ΡΠΉΡΠ΅ Π΄ΡΡΠ·ΡΡ!
Π ΡΡΠΎΠΉ ΡΡΠ°ΡΡΠ΅ ΠΌΡ Ρ Π²Π°ΠΌΠΈ ΠΏΠΎΠ³ΠΎΠ²ΠΎΡΠΈΠΌ ΠΎ Π²ΡΠ΄Π²ΠΈΠΆΠ½ΠΎΠΉ ΡΡΡΠ½ΠΈΡΡΡΠ΅.
ΠΠ°ΠΌΠ΅ΡΠ½ΡΠΌ ΠΏΡΠ΅ΠΈΠΌΡΡΠ΅ΡΡΠ²ΠΎΠΌ ΡΠΎΠ²ΡΠ΅ΠΌΠ΅Π½Π½ΠΎΠΉ ΠΌΠ΅Π±Π΅Π»ΠΈ ΡΠ²Π»ΡΠ΅ΡΡΡ Π½Π°Π»ΠΈΡΠΈΠ΅ Π² Π½Π΅ΠΉ Π²ΡΠ΄Π²ΠΈΠΆΠ½ΡΡ ΡΠΈΡΡΠ΅ΠΌ, ΠΈΠ»ΠΈ ΠΊΠ°ΠΊ ΠΈΡ Π΅ΡΠ΅ Π½Π°Π·ΡΠ²Π°ΡΡ β Π½Π°ΠΏΡΠ°Π²Π»ΡΡΡΠΈΡ .
ΠΡΠ΄Π²ΠΈΠΆΠ½ΡΠ΅ ΡΡΠΈΠΊΠΈ, Π½Π° Π½ΠΈΡ
ΡΡΡΠ°Π½ΠΎΠ²Π»Π΅Π½Π½ΡΠ΅, Π²ΡΠ΄Π²ΠΈΠ³Π°ΡΡΡΡ Π»Π΅Π³ΠΊΠΎ ΠΈ ΡΠ΄ΠΎΠ±Π½ΠΎ, ΠΈ ΠΏΠΎΠ»ΡΠ·ΠΎΠ²Π°ΡΠ΅Π»ΠΈ ΡΠ°ΠΊΠΎΠΉ ΠΌΠ΅Π±Π΅Π»ΠΈ Π»ΠΈΡΡ ΠΈΠ½ΠΎΠ³Π΄Π° Ρ Π½Π΅Π΄ΠΎΡΠΌΠ΅Π½ΠΈΠ΅ΠΌ Π²ΡΠΏΠΎΠΌΠΈΠ½Π°ΡΡ, ΠΊΠ°ΠΊ Π² ΡΡΠ°ΡΡΡ
ΠΌΠΎΠ΄Π΅Π»ΡΡ
ΠΏΡΠΈΡ
ΠΎΠ΄ΠΈΠ»ΠΎΡΡ Π²ΡΠ΄Π²ΠΈΠ³Π°ΡΡ Π³ΡΠΎΠΌΠΎΠ·Π΄ΠΊΠΈΠ΅ ΡΡΠΈΠΊΠΈ, ΠΏΡΠΈΠ»Π°Π³Π°Ρ Π½Π΅ΠΌΠ°Π»ΡΠ΅ ΡΡΠΈΠ»ΠΈΡ ΠΈ ΠΎΠΏΠ°ΡΠ°ΡΡΡ ΠΏΠ΅ΡΠ΅ΠΊΠΎΡΠ°.
Π¨Π°ΡΠΈΠΊΠΈ ΠΈΠ»ΠΈ ΡΠΎΠ»ΠΈΠΊΠΈ: ΡΡΠΎ Π²ΡΠ±ΡΠ°ΡΡ
Π‘ΡΡΠ΅ΡΡΠ²ΡΠ΅Ρ Π΄Π²Π° ΡΠΈΠΏΠ° Π²ΡΠ΄Π²ΠΈΠΆΠ½ΡΡ ΡΠΈΡΡΠ΅ΠΌ, Π΄Π΅ΠΉΡΡΠ²ΠΈΠ΅ ΠΊΠΎΡΠΎΡΡΡ ΠΎΡΠ½ΠΎΠ²Π°Π½ΠΎ Π½Π° ΠΏΠ΅ΡΠ΅ΠΌΠ΅ΡΠ΅Π½ΠΈΠΈ ΠΏΡΠΎΡΠΈΠ»ΠΈΡΠΎΠ²Π°Π½Π½ΡΡ ΠΎΠΏΡΠ΅Π΄Π΅Π»Π΅Π½Π½ΡΠΌ ΠΎΠ±ΡΠ°Π·ΠΎΠΌ ΠΌΠ΅ΡΠ°Π»Π»ΠΈΡΠ΅ΡΠΊΠΈΡ Π½Π°ΠΏΡΠ°Π²Π»ΡΡΡΠΈΡ ΠΏΠΎΡΡΠ΅Π΄ΡΡΠ²ΠΎΠΌ ΡΠ°ΡΠΈΠΊΠΎΠ² Π»ΠΈΠ±ΠΎ ΡΠΎΠ»ΠΈΠΊΠΎΠ².
Π¨Π°ΡΠΈΠΊΠΎΠ²ΡΠ΅ ΠΈ ΡΠΎΠ»ΠΈΠΊΠΎΠ²ΡΠ΅ ΡΠΈΡΡΠ΅ΠΌΡ Π²ΡΠΏΡΡΠΊΠ°ΡΡΡΡ Π² Π½Π΅ΡΠΊΠΎΠ»ΡΠΊΠΈΡ ΡΡΠ°Π½Π΄Π°ΡΡΠ½ΡΡ ΠΌΠΎΠ΄ΠΈΡΠΈΠΊΠ°ΡΠΈΡΡ , ΠΏΡΠ΅Π΄Π½Π°Π·Π½Π°ΡΠ΅Π½Π½ΡΡ Π΄Π»Ρ ΡΠ°Π·Π½ΡΡ Π²ΠΈΠ΄ΠΎΠ² Π²ΡΠ΄Π²ΠΈΠΆΠ½ΡΡ ΠΊΠΎΠ½ΡΡΡΡΠΊΡΠΈΠΉ ΠΈ ΡΠ°Π·Π½ΠΎΠΉ Π½Π°Π³ΡΡΠ·ΠΊΠΈ Π½Π° Π½ΠΈΡ . ΠΠ»Ρ ΠΏΡΠ°Π²ΠΈΠ»ΡΠ½ΠΎΠ³ΠΎ Π²ΡΠ±ΠΎΡΠ° Π²ΡΠ΄Π²ΠΈΠΆΠ½ΠΎΠΉ ΡΠΈΡΡΠ΅ΠΌΡ ΡΠ»Π΅Π΄ΡΠ΅Ρ ΠΈΠ·ΡΡΠΈΡΡ Π²ΡΠ΅ ΠΈΡ ΠΎΡΠΎΠ±Π΅Π½Π½ΠΎΡΡΠΈ ΠΈ ΠΏΡΠ΅ΠΈΠΌΡΡΠ΅ΡΡΠ²Π°.
Π ΠΎΠ»ΠΈΠΊΠΎΠ²ΡΠ΅ ΡΠΈΡΡΠ΅ΠΌΡ Π±ΡΠ²Π°ΡΡ ΠΏΠΎΠ»Π½ΠΎΠ³ΠΎ ΠΈ Π½Π΅ΠΏΠΎΠ»Π½ΠΎΠ³ΠΎ Π²ΡΠ΄Π²ΠΈΠΆΠ΅Π½ΠΈΡ, Π½ΠΎ ΡΡΠΎΠΈΠΌΠΎΡΡΡ ΡΡΠΈΡ ΡΠ°Π·Π½ΠΎΠ²ΠΈΠ΄Π½ΠΎΡΡΠ΅ΠΉ ΠΎΡΠ»ΠΈΡΠ°Π΅ΡΡΡ ΠΏΡΠΈΠΌΠ΅ΡΠ½ΠΎ Π² 4-5 ΡΠ°Π·. Π ΠΏΠΎΡΠΊΠΎΠ»ΡΠΊΡ Π² ΠΌΠ΅Π±Π΅Π»ΠΈ ΡΡΠ΅Π±ΡΠ΅ΡΡΡ ΠΏΡΠΈΠΌΠ΅Π½Π΅Π½ΠΈΠ΅ Π½Π΅ΡΠΊΠΎΠ»ΡΠΊΠΈΡ ΠΊΠΎΠΌΠΏΠ»Π΅ΠΊΡΠΎΠ² Π²ΡΠ΄Π²ΠΈΠΆΠ½ΡΡ ΡΠΈΡΡΠ΅ΠΌ, ΡΡΠΎ ΠΌΠΎΠΆΠ΅Ρ ΡΡΡΠ΅ΡΡΠ²Π΅Π½Π½ΠΎ ΠΏΠΎΠ²Π»ΠΈΡΡΡ Π½Π° Π΅Π΅ ΡΡΠΎΠΈΠΌΠΎΡΡΡ.
ΠΠΎ ΠΎΠ½ΠΈ Π΄ΠΎΡΡΠ°ΡΠΎΡΠ½ΠΎ ΡΡΠΌΠ½ΡΠ΅ Π² Π΄Π΅ΠΉΡΡΠ²ΠΈΠΈ, ΠΈ Π½Π΅ΠΊΠΎΡΠΎΡΡΠ΅ ΠΈΡ Π²ΠΈΠ΄Ρ ΠΎΡΠ½Π°ΡΠ°ΡΡ ΠΎΠ±ΡΠ΅Π·ΠΈΠ½Π΅Π½ΡΠΌ ΡΠΎΠ»ΠΈΠΊΠΎΠΌ Π΄Π»Ρ ΡΠ½ΠΈΠΆΠ΅Π½ΠΈΡ ΡΡΠΌΠ°. Π’Π°ΠΊΠΈΠ΅ Π½Π°ΠΏΡΠ°Π²Π»ΡΡΡΠΈΠ΅ ΡΠ°ΠΊΠΆΠ΅ Π½Π΅ΡΠΊΠΎΠ»ΡΠΊΠΎ Π΄ΠΎΡΠΎΠΆΠ΅.
ΠΠΎΠ»Π΅Π΅ ΡΠ΅Π½ΡΠ°Π±Π΅Π»ΡΠ½ΡΠΌ Π²Π°ΡΠΈΠ°Π½ΡΠΎΠΌ ΠΏΡΠΈ ΠΏΠΎΠ΄ΡΡΠ΅ΡΠ΅ Π·Π°ΡΡΠ°Ρ ΠΈ ΡΠΎΠΎΡΠ½ΠΎΡΠ΅Π½ΠΈΠΈ ΡΠ΅Π½Ρ ΠΈ ΠΊΠ°ΡΠ΅ΡΡΠ²Π° ΠΏΡΠ΅Π΄ΡΡΠ°Π²Π»ΡΡΡΡΡ ΡΠ°ΡΠΈΠΊΠΎΠ²ΡΠ΅ Π½Π°ΠΏΡΠ°Π²Π»ΡΡΡΠΈΠ΅, ΠΊΠΎΡΠΎΡΡΠ΅ ΠΏΡΠ°ΠΊΡΠΈΡΠ΅ΡΠΊΠΈ Π±Π΅ΡΡΡΠΌΠ½Ρ, Π² Π±ΠΎΠ»ΡΡΠΈΠ½ΡΡΠ²Π΅ ΡΠ°Π·Π½ΠΎΠ²ΠΈΠ΄Π½ΠΎΡΡΠ΅ΠΉ ΡΠ°ΡΡΡΠΈΡΠ°Π½Ρ Π½Π° ΠΏΠΎΠ»Π½ΠΎΠ΅ Π²ΡΠ΄Π²ΠΈΠΆΠ΅Π½ΠΈΠ΅ ΡΡΠΈΠΊΠΎΠ² ΠΈ ΡΠΏΠΎΡΠΎΠ±Π½Ρ Π²ΡΠ΄Π΅ΡΠΆΠΈΠ²Π°ΡΡ Π³ΠΎΡΠ°Π·Π΄ΠΎ Π±ΠΎΠ»ΡΡΡΡ Π½Π°Π³ΡΡΠ·ΠΊΡ, ΡΠ΅ΠΌ ΡΠ°ΠΌΡΠ΅ ΠΌΠΎΡΠ½ΡΠ΅ ΡΠΎΠ»ΠΈΠΊΠΎΠ²ΡΠ΅ ΡΠΈΡΡΠ΅ΠΌΡ β Π½Π΅ΠΊΠΎΡΠΎΡΡΠ΅ ΠΌΠΎΠ΄ΠΈΡΠΈΠΊΠ°ΡΠΈΠΈ ΠΌΠΎΠ³ΡΡ Π±ΡΡΡ Π½Π°Π³ΡΡΠΆΠ΅Π½Ρ Π²Π΅ΡΠΎΠΌ Π΄ΠΎ 60 ΠΊΠ³ (ΡΡΠΈ Π½Π°ΠΏΡΠ°Π²Π»ΡΡΡΠΈΠ΅ Π΅ΡΠ΅ Π½Π°Π·ΡΠ²Π°ΡΡ βΡΠ΅Π»Π΅ΡΠΊΠΎΠΏΠΈΡΠ΅ΡΠΊΠΈΠΌΠΈβ).
ΠΡΠΈ ΡΡΠΎΠΌ ΠΎΠ½ΠΈ ΠΏΡΠ΅Π²ΠΎΡΡ
ΠΎΠ΄ΡΡ ΡΠΎΠ»ΠΈΠΊΠΎΠ²ΡΠ΅ ΡΠΈΡΡΠ΅ΠΌΡ ΠΏΠΎ ΡΠ΅Π½Π΅ ΠΏΡΠΈΠΌΠ΅ΡΠ½ΠΎ Π² Π΄Π²Π° ΡΠ°Π·Π°.
ΠΡΠΈΡΠΌΠ΅ΡΠΈΠΊΠ° Π΄ΠΎΡΡΠ°ΡΠΎΡΠ½ΠΎ ΠΏΡΠΎΡΡΠ° β Π»ΡΡΡΠ΅ ΠΏΠΎΡΡΠ°ΡΠΈΡΡΡΡ Π½Π° Π±ΠΎΠ»Π΅Π΅ ΠΊΠ°ΡΠ΅ΡΡΠ²Π΅Π½Π½ΡΠ΅ ΠΏΠΎ ΠΌΠ½ΠΎΠ³ΠΈΠΌ ΠΏΠΎΠΊΠ°Π·Π°ΡΠ΅Π»ΡΠΌ ΡΠΈΡΡΠ΅ΠΌΡ.
Π ΡΡΠ΄Π΅ ΡΠΏΠ΅ΡΠΈΡΠΈΡΠ΅ΡΠΊΠΈΡ ΠΌΠ΅Π±Π΅Π»ΡΠ½ΡΡ ΠΊΠΎΠ½ΡΡΡΡΠΊΡΠΈΠΉ, ΠΏΡΠ΅Π΄Π½Π°Π·Π½Π°ΡΠ΅Π½Π½ΡΡ Π΄Π»Ρ Ρ ΡΠ°Π½Π΅Π½ΠΈΡ ΡΡΠΆΠ΅Π»ΡΡ ΠΏΡΠ΅Π΄ΠΌΠ΅ΡΠΎΠ², Π½ΡΠΆΠ½ΠΎ ΠΈΡΠΏΠΎΠ»ΡΠ·ΠΎΠ²Π°ΡΡ ΠΈΡΠΊΠ»ΡΡΠΈΡΠ΅Π»ΡΠ½ΠΎ ΡΠ°ΡΠΈΠΊΠΎΠ²ΡΠ΅ ΡΠΈΡΡΠ΅ΠΌΡ.
ΠΠ½ΠΈ ΠΎΠ±Π΅ΡΠΏΠ΅ΡΠΈΠ²Π°ΡΡ ΡΡΠ°Π±ΠΈΠ»ΡΠ½ΠΎΠ΅ Π²ΡΠ΄Π²ΠΈΠΆΠ΅Π½ΠΈΠ΅ ΡΡΠΈΠΊΠΎΠ² Ρ ΠΈΠ½ΡΡΡΡΠΌΠ΅Π½ΡΠ°ΠΌΠΈ Π² Π²Π΅ΡΡΡΠ°ΠΊΠ°Ρ , Π²ΡΠ΄Π΅ΡΠΆΠΈΠ²Π°ΡΡ Π·Π½Π°ΡΠΈΡΠ΅Π»ΡΠ½ΡΠΉ Π²Π΅Ρ ΡΡΠΈΠΊΠΎΠ² ΡΠΏΠ΅ΡΠΈΠ°Π»ΡΠ½ΠΎΠ³ΠΎ ΠΎΠ±ΠΎΡΡΠ΄ΠΎΠ²Π°Π½ΠΈΡ Π°ΡΡ ΠΈΠ²ΠΎΠ², ΠΌΡΠ·Π΅Π΅Π², ΡΠΊΠ»Π°Π΄ΠΎΠ² ΠΈ Ρ.ΠΏ. ΠΡΠΈ ΡΡΠΎΠΌ ΡΠΎΠ»ΡΠΊΠΎ ΡΠ°ΡΠΈΠΊΠΎΠ²ΡΠ΅ Π½Π°ΠΏΡΠ°Π²Π»ΡΡΡΠΈΠ΅ Π²ΡΠΏΡΡΠΊΠ°ΡΡΡΡ Π΄Π»Ρ Π½Π΅Π±ΠΎΠ»ΡΡΠΈΡ ΡΡΠΈΠΊΠΎΠ² Π΄Π»ΠΈΠ½ΠΎΠΉ ΠΎΡ 150 ΠΌΠΌ.
ΠΡΠ΅ ΠΎΠ΄Π½ΠΎ ΠΏΡΠ΅ΠΈΠΌΡΡΠ΅ΡΡΠ²ΠΎ ΡΠ°ΡΠΈΠΊΠΎΠ²ΡΡ ΡΠΈΡΡΠ΅ΠΌ ΠΏΠ΅ΡΠ΅Π΄ ΡΠΎΠ»ΠΈΠΊΠΎΠ²ΡΠΌΠΈ ΡΠΎΡΡΠΎΠΈΡ Π² ΡΠΎΠΌ, ΡΡΠΎ ΠΎΠ½ΠΈ ΠΏΠΎΠ·Π²ΠΎΠ»ΡΡΡ Π»ΡΠ±ΡΠ΅ Π²Π°ΡΠΈΠ°Π½ΡΡ ΠΌΠΎΠ½ΡΠ°ΠΆΠ° β Π½Π° ΠΏΠ»ΠΎΡΠΊΠΎΡΡΠΈ, ΡΠ°ΡΠΏΠΎΠ»ΠΎΠΆΠ΅Π½Π½ΡΠ΅ ΡΠ±ΠΎΠΊΡ, ΡΠ²Π΅ΡΡ Ρ ΠΈ ΡΠ½ΠΈΠ·Ρ ΠΎΡ Π²ΡΠ΄Π²ΠΈΠΆΠ½ΠΎΠΉ ΠΊΠΎΠ½ΡΡΡΡΠΊΡΠΈΠΈ.
Β«ΠΡΠΎΠ΄Π²ΠΈΠ½ΡΡΡΠ΅Β» ΡΡΠΈΠΊΠΈ: ΠΌΠ΅ΡΠ°Π±ΠΎΠΊΡΡ ΠΈ ΡΠ°Π½Π΄Π΅ΠΌΠ±ΠΎΠΊΡΡ
ΠΠ΅ΡΠ°Π±ΠΎΠΊΡΡ (ΠΌΠ΅ΡΠ°Π»Π»ΠΎΠ±ΠΎΠΊΡΡ) β ΡΡΠΎ ΡΡΠΈΠΊΠΈ, ΠΎΡΠ½Π°ΡΠ΅Π½Π½ΡΠ΅ ΡΠΎΠ»ΠΈΠΊΠΎΠ²ΡΠΌΠΈ ΡΠΈΡΡΠ΅ΠΌΠ°ΠΌΠΈ, ΠΊΠΎΡΠΎΡΡΠ΅ ΡΠ²Π»ΡΡΡΡΡ ΠΈΡ
ΡΠΎΡΡΠ°Π²Π½ΠΎΠΉ ΡΠ°ΡΡΡΡ, Π° ΠΈΠΌΠ΅Π½Π½ΠΎ Π±ΠΎΠΊΠΎΠ²ΡΠΌΠΈ ΡΡΠ΅Π½ΠΊΠ°ΠΌΠΈ Ρ Π½Π°ΠΏΡΠ°Π²Π»ΡΡΡΠΈΠΌΠΈ.
ΠΠΏΠΎΡΠ½ΡΠ΅ ΡΠ»Π΅ΠΌΠ΅Π½ΡΡ ΡΡΠΎΠΉ Π²ΡΠ΄Π²ΠΈΠΆΠ½ΠΎΠΉ ΡΠΈΡΡΠ΅ΠΌΡ ΠΊΡΠ΅ΠΏΡΡΡΡ ΠΊ ΡΡΠ΅Π½ΠΊΠ°ΠΌ ΠΌΠ΅Π±Π΅Π»ΠΈ.
Π ΠΎΠ»ΠΈΠΊΠΈ Π² ΠΌΠ΅ΡΠ°Π±ΠΎΠΊΡΠ°Ρ Π²ΡΠΏΠΎΠ»Π½Π΅Π½Ρ ΠΈΠ· ΠΎΡΠ΅Π½Ρ ΠΏΡΠΎΡΠ½ΠΎΠΉ ΠΏΠ»Π°ΡΡΠΌΠ°ΡΡΡ, Π° ΡΠΎΠ»ΠΈΠΊΠΎΠ²Π°Ρ ΡΠΈΡΡΠ΅ΠΌΠ° Π² Π²ΠΈΠ΄Π΅ ΠΌΠ΅ΡΠ°Π±ΠΎΠΊΡΠ° Π³ΠΎΡΠ°Π·Π΄ΠΎ Π½Π°Π΄Π΅ΠΆΠ½Π΅Π΅ ΠΎΠ±ΡΡΠ½ΠΎΠΉ.
ΠΠ½ΠΈ ΠΏΡΠΎΠΈΠ·Π²ΠΎΠ΄ΡΡΡΡ Π² Π½Π΅ΡΠΊΠΎΠ»ΡΠΊΠΈΡ ΡΡΠ°Π½Π΄Π°ΡΡΠ½ΡΡ ΡΠ°Π·ΠΌΠ΅ΡΠ°Ρ , Π½ΠΎ ΠΌΠΎΠ³ΡΡ Π½Π°ΡΠ°ΡΠΈΠ²Π°ΡΡΡΡ ΠΏΠΎ Π²ΡΡΠΎΡΠ΅ ΠΎΡΠ΄Π΅Π»ΡΠ½ΡΠΌΠΈ ΠΏΠ»Π°Π½ΠΊΠ°ΠΌΠΈ. Π’Π°ΠΊ ΠΆΠ΅ ΠΎΠ½ΠΈ Π½Π΅ΡΠ΅Π΄ΠΊΠΎ Π΄ΠΎΠΏΠΎΠ»Π½ΡΡΡΡΡ Π³ΠΈΠ΄ΡΠ°Π²Π»ΠΈΡΠ΅ΡΠΊΠΈΠΌ Π΄ΠΎΠ²ΠΎΠ΄ΡΠΈΠΊΠΎΠΌ Π΄Π»Ρ ΡΠ΄ΠΎΠ±ΡΡΠ²Π° Π·Π°ΠΊΡΡΡΠΈΡ ΡΡΠΈΠΊΠΎΠ².
ΠΠ΅ΡΠ°Π±ΠΎΠΊΡΡ ΠΈΠ·Π³ΠΎΡΠ°Π²Π»ΠΈΠ²Π°ΡΡ ΠΈΠ· ΡΠΎΠ½ΠΊΠΎΠΉ ΠΏΡΠΎΡΠ½ΠΎΠΉ Π»ΠΈΡΡΠΎΠ²ΠΎΠΉ ΡΡΠ°Π»ΠΈ ΠΈ ΠΏΠΎΠΊΡΡΠ²Π°ΡΡ ΡΠΌΠ°Π»ΡΠΌΠΈ ΡΠ°Π·Π½ΡΡ ΡΠ²Π΅ΡΠΎΠ², ΡΡΠΎ ΠΏΠΎΠ·Π²ΠΎΠ»ΡΠ΅Ρ Π²ΡΠ±ΡΠ°ΡΡ Π½Π°ΠΈΠ±ΠΎΠ»Π΅Π΅ ΠΏΠΎΠ΄Ρ ΠΎΠ΄ΡΡΠΈΠΉ ΠΊ Π²Π½Π΅ΡΠ½Π΅ΠΌΡ Π²ΠΈΠ΄Ρ ΠΌΠ΅Π±Π΅Π»ΠΈ Π²Π°ΡΠΈΠ°Π½Ρ ΠΎΠΊΡΠ°ΡΠΊΠΈ. ΠΠ°ΠΊΡΠΈΠΌΠ°Π»ΡΠ½Π°Ρ Π½Π°Π³ΡΡΠ·ΠΊΠ° Π½Π° ΠΌΠ΅ΡΠ°Π±ΠΎΠΊΡ Π² ΠΎΡΠΊΡΡΡΠΎΠΌ ΠΏΠΎΠ»ΠΎΠΆΠ΅Π½ΠΈΠΈ Π½Π΅ Π΄ΠΎΠ»ΠΆΠ½Π° ΠΏΡΠ΅Π²ΡΡΠ°ΡΡ 20 ΠΊΠ³.
ΠΠ° ΠΈΡΠΏΠΎΠ»ΡΠ·ΠΎΠ²Π°Π½ΠΈΠΈ ΡΠ°ΡΠΈΠΊΠΎΠ²ΡΡ ΡΠΈΡΡΠ΅ΠΌ ΡΡΡΠΎΠΈΡΡΡ ΠΊΠΎΠ½ΡΡΡΡΠΊΡΠΈΡ ΡΠ°Π½Π΄Π΅ΠΌΠ±ΠΎΠΊΡΠΎΠ².
ΠΡ ΠΎΠ±ΡΡΠ½ΠΎ ΠΈΠ·Π³ΠΎΡΠ°Π²Π»ΠΈΠ²Π°ΡΡ ΠΈΠ· ΠΠ‘Π, ΠΈ ΡΠΎΠ»ΡΠΊΠΎ Π±ΠΎΠΊΠΎΠ²ΠΈΠ½Ρ ΠΌΠΎΠ³ΡΡ Π±ΡΡΡ ΠΈΠ· ΠΌΠ΅ΡΠ°Π»Π»Π° ΠΈΠ»ΠΈ ΡΡΠ΅ΠΊΠ»Π°, ΠΈΠ½ΠΎΠ³Π΄Π° ΠΈΠΌΠ΅ΡΡ ΡΡΡΠ±ΡΠ°ΡΡΠΉ ΡΠ΅Π»Π»ΠΈΠ½Π³.
Π’Π°Π½Π΄Π΅ΠΌΠ±ΠΎΠΊΡΡ Π²ΡΠ΄Π΅ΡΠΆΠΈΠ²Π°ΡΡ Π²Π΅Ρ, Π² Π΄Π²Π°-ΡΡΠΈ ΡΠ°Π·Π° ΠΏΡΠ΅Π²ΡΡΠ°ΡΡΠΈΠΉ Π²ΠΎΠ·ΠΌΠΎΠΆΠ½ΠΎΡΡΠΈ ΠΌΠ΅ΡΠ°Π±ΠΎΠΊΡΠΎΠ².
ΠΠ²ΡΠΎΠΌΠ°ΡΠΈΡΠ΅ΡΠΊΠΈΠΉ Π΄ΠΎΠ²ΠΎΠ΄ΡΠΈΠΊ ΠΏΠΎΠ·Π²ΠΎΠ»ΡΠ΅Ρ ΠΏΠ»Π°Π²Π½ΠΎ Π·Π°ΠΊΡΡΠ²Π°ΡΡ Π΄Π°ΠΆΠ΅ ΡΡΠΆΠ΅Π»ΠΎ Π½Π°Π³ΡΡΠΆΠ΅Π½Π½ΡΠΉ ΡΡΠΈΠΊ.
Π’Π°Π½Π΄Π΅ΠΌΠ±ΠΎΠΊΡΡ Π±Π΅ΡΡΡΠΌΠ½Ρ ΠΈ ΡΠ²Π»ΡΡΡΡΡ Π΅Π΄ΠΈΠ½ΡΡΠ²Π΅Π½Π½ΡΠΌ Π²Π°ΡΠΈΠ°Π½ΡΠΎΠΌ Π΄Π»Ρ ΠΌΠ΅Π±Π΅Π»ΠΈ, Π³Π΄Π΅ ΠΏΡΠ΅Π΄ΡΡΠΌΠΎΡΡΠ΅Π½Ρ Π²ΡΡΠΎΠΊΠΈΠ΅ ΡΡΠΈΠΊΠΈ.
Π‘ΠΎΠ²ΡΠ΅ΠΌ ΡΠ°Π½ΡΠ°ΡΡΠΈΡΠ΅ΡΠΊΠΈ Π²ΡΠ³Π»ΡΠ΄ΡΡ ΡΠ°Π½Π΄Π΅ΠΌΠ±ΠΎΠΊΡΡ, ΠΎΡΠ½Π°ΡΠ΅Π½Π½ΡΠ΅ ΡΠ»Π΅ΠΊΡΡΠΎΠΏΡΠΈΠ²ΠΎΠ΄ΠΎΠΌ, β ΡΠΎΠ»ΡΠΊΠΎ ΠΏΡΠΈΠΊΠΎΡΠ½ΡΠ²ΡΠΈΡΡ ΠΊ ΡΠ°ΡΠ°Π΄Ρ ΡΡΠΈΠΊΠ° Π±Π΅Π· Π²ΡΡΠΊΠΎΠ³ΠΎ ΡΡΠΈΠ»ΠΈΡ ΠΌΠΎΠΆΠ½ΠΎ Π²ΡΠ΄Π²ΠΈΠ½ΡΡΡ ΠΈΠ»ΠΈ Π·Π°Π΄Π²ΠΈΠ½ΡΡΡ ΡΡΠΈΠΊ.
Π‘ΡΠΎΠΈΠΌΠΎΡΡΡ ΡΡΠΈΡ ΡΠΈΡΡΠ΅ΠΌ, Π΅ΡΡΠ΅ΡΡΠ²Π΅Π½Π½ΠΎ, Π·Π°ΠΌΠ΅ΡΠ½ΠΎ Π²ΡΡΠ΅ Π² ΡΡΠ°Π²Π½Π΅Π½ΠΈΠΈ Ρ ΠΌΠ΅ΡΠ°Π±ΠΎΠΊΡΠ°ΠΌΠΈ, Π½ΠΎ ΠΏΡΠ΅Π²ΠΎΡΡ ΠΎΠ΄ΡΡΠ΅Π΅ ΠΊΠ°ΡΠ΅ΡΡΠ²ΠΎ ΠΈ Π²ΠΎΠ·ΠΌΠΎΠΆΠ½ΠΎΡΡΠΈ Π½Π΅ΠΎΡΠΏΠΎΡΠΈΠΌΡ.
ΠΠ° ΡΡΠΎΠΌ Π²ΡΠ΅.
ΠΠΎ Π²ΡΡΡΠ΅ΡΠΈ.
ΠΠ°ΠΏΡΠ°Π²Π»ΡΡΡΠΈΠ΅ ΠΈ ΠΌΠ΅ΡΠ°Π±ΠΎΠΊΡΡ . ΠΡΠΎΠ΅ΠΊΡΠΈΡΠΎΠ²Π°Π½ΠΈΠ΅ ΠΈ Π΄ΠΈΠ·Π°ΠΉΠ½ ΠΌΠ΅Π±Π΅Π»ΠΈ Π½Π° ΠΊΠΎΠΌΠΏΡΡΡΠ΅ΡΠ΅
ΠΠ°ΠΏΡΠ°Π²Π»ΡΡΡΠΈΠ΅ ΡΠ»ΡΠΆΠ°Ρ Π΄Π»Ρ ΠΊΡΠ΅ΠΏΠ»Π΅Π½ΠΈΡ Π²ΡΠ΄Π²ΠΈΠΆΠ½ΡΡ
ΡΡΠΈΠΊΠΎΠ², ΠΊΠΎΡΠ·ΠΈΠ½ ΠΈ ΠΏΠΎΠ»ΠΎΠΊ ΠΈ ΠΎΠ±ΡΡΠ½ΠΎ ΡΠ²Π»ΡΡΡΡΡ ΠΏΠ°ΡΠ½ΠΎΠΉ ΡΡΡΠ½ΠΈΡΡΡΠΎΠΉ. ΠΡΡΠ·ΠΎΠΏΠΎΠ΄ΡΠ΅ΠΌΠ½ΠΎΡΡΡ Π½Π°ΠΏΡΠ°Π²Π»ΡΡΡΠΈΡ
Π·Π°Π²ΠΈΡΠΈΡ ΠΎΡ ΠΈΡ
ΡΠ°Π·ΠΌΠ΅ΡΠ° ΠΈ ΠΊΠΎΠ½ΡΡΡΡΠΊΡΠΈΠΈ ΠΈ ΠΎΠ±ΡΡΠ½ΠΎ ΡΠΎΡΡΠ°Π²Π»ΡΠ΅Ρ 15β40Β ΠΊΠ³. ΠΠ°ΠΆΠ΄Π°Ρ ΡΠΎΠ»ΠΈΠΊΠΎΠ²Π°Ρ Π½Π°ΠΏΡΠ°Π²Π»ΡΡΡΠ°Ρ ΡΠΎΡΡΠΎΠΈΡ ΠΈΠ· Π΄Π²ΡΡ
ΠΏΡΠΎΡΠΈΠ»ΠΈΡΠΎΠ²Π°Π½Π½ΡΡ
ΠΏΠΎΠ»ΠΎΠ·ΡΠ΅Π² Ρ ΠΏΠ»Π°ΡΡΠΌΠ°ΡΡΠΎΠ²ΡΠΌ ΡΠΎΠ»ΠΈΠΊΠΎΠΌ, ΠΎΠ΄Π½ΠΎ ΠΈΠ· ΠΊΠΎΡΠΎΡΡΡ
ΠΊΡΠ΅ΠΏΠΈΡΡΡ ΠΊ ΡΡΠ΅Π½ΠΊΠ΅ ΠΊΠΎΡΠΏΡΡΠ° ΠΌΠ΅Π±Π΅Π»ΠΈ, Π° Π΄ΡΡΠ³ΠΎΠ΅Β β ΠΊ ΡΡΠ΅Π½ΠΊΠ΅ ΡΡΠΈΠΊΠ°. Π ΠΎΠ»ΠΈΠΊΠΎΠ²ΡΠ΅ Π½Π°ΠΏΡΠ°Π²Π»ΡΡΡΠΈΠ΅ Π΄ΠΎΡΡΠ°ΡΠΎΡΠ½ΠΎ Π΄Π΅ΡΠ΅Π²Ρ, Π²ΡΠΏΡΡΠΊΠ°ΡΡΡΡ ΡΠ°Π·Π½ΡΡ
ΡΠ²Π΅ΡΠΎΠ² Π΄Π»ΠΈΠ½ΠΎΠΉ ΠΎΡ 300 Π΄ΠΎ 550Β ΠΌΠΌ, Π½ΠΎ ΠΎΠ±Π»Π°Π΄Π°ΡΡ ΡΡΠ΄ΠΎΠΌ Π½Π΅Π΄ΠΎΡΡΠ°ΡΠΊΠΎΠ².
ΠΠ»Π°Π²Π½ΡΠΉ ΠΈΠ· Π½ΠΈΡ
Β β ΠΎΠ³ΡΠ°Π½ΠΈΡΠ΅Π½Π½Π°Ρ Π³Π»ΡΠ±ΠΈΠ½Π° Π²ΡΠ΄Π²ΠΈΠΆΠ΅Π½ΠΈΡ, ΡΠΎΡΡΠ°Π²Π»ΡΡΡΠ°Ρ ΠΎΠΊΠΎΠ»ΠΎ 70Β % Π³Π»ΡΠ±ΠΈΠ½Ρ ΡΡΠΈΠΊΠ° ΠΈΠ»ΠΈ Π΄Π»ΠΈΠ½Ρ ΡΠ°ΠΌΠΎΠΉ Π½Π°ΠΏΡΠ°Π²Π»ΡΡΡΠ΅ΠΉ. ΠΡΠ»ΠΈ ΡΠΈΡΠΈΠ½Π° ΡΡΠΈΠΊΠ° Π·Π½Π°ΡΠΈΡΠ΅Π»ΡΠ½ΠΎ ΠΏΡΠ΅Π²ΡΡΠ°Π΅Ρ Π΅Π³ΠΎ Π³Π»ΡΠ±ΠΈΠ½Ρ, ΡΠΎ Π²ΠΎΠ·ΠΌΠΎΠΆΠ΅Π½ ΠΏΠ΅ΡΠ΅ΠΊΠΎΡ ΠΈ Π·Π°ΠΊΠ»ΠΈΠ½ΠΈΠ²Π°Π½ΠΈΠ΅ ΡΠΎΠ»ΠΈΠΊΠΎΠ²ΡΡ
Π½Π°ΠΏΡΠ°Π²Π»ΡΡΡΠΈΡ
.
Π¨Π°ΡΠΈΠΊΠΎΠ²ΡΠ΅ Π½Π°ΠΏΡΠ°Π²Π»ΡΡΡΠΈΠ΅ (ΡΠΈΡ.Β 2.14) ΠΌΠ΅Π½Π΅Π΅ ΠΏΠΎΠ΄Π²Π΅ΡΠΆΠ΅Π½Ρ ΠΈΠ·Π½ΠΎΡΡ, ΠΎΠ±Π»Π°Π΄Π°ΡΡ ΠΌΡΠ³ΠΊΠΈΠΌ Ρ ΠΎΠ΄ΠΎΠΌ ΠΈ Π±ΠΎΠ»ΡΡΠ΅ΠΉ ΠΌΠ΅Ρ Π°Π½ΠΈΡΠ΅ΡΠΊΠΎΠΉ ΠΏΡΠΎΡΠ½ΠΎΡΡΡΡ, ΡΡΡΠΎΠΉΡΠΈΠ²ΠΎΡΡΡΡ ΠΊ ΠΏΠ΅ΡΠ΅ΠΊΠΎΡΡ ΠΈ Π±ΠΎΠΊΠΎΠ²ΡΠΌ Π½Π°Π³ΡΡΠ·ΠΊΠ°ΠΌ.
Π ΠΈΡ.Β 2.14. Π’Π΅Π»Π΅ΡΠΊΠΎΠΏΠΈΡΠ΅ΡΠΊΠΈΠ΅ ΡΠ°ΡΠΈΠΊΠΎΠ²ΡΠ΅ Π½Π°ΠΏΡΠ°Π²Π»ΡΡΡΠΈΠ΅
Π‘ΡΡΠ΅ΡΡΠ²ΡΡΡ Π΄Π²ΡΡ β ΠΈ ΡΡΠ΅Ρ ΡΠ»Π΅ΠΌΠ΅Π½ΡΠ½ΡΠ΅ (ΡΠ΅Π»Π΅ΡΠΊΠΎΠΏΠΈΡΠ΅ΡΠΊΠΈΠ΅) ΠΊΠΎΠ½ΡΡΡΡΠΊΡΠΈΠΈ. ΠΠΎΡΠ»Π΅Π΄Π½ΠΈΠ΅ Π½Π°Π·ΡΠ²Π°ΡΡ Β«Π½Π°ΠΏΡΠ°Π²Π»ΡΡΡΠΈΠΌΠΈ ΠΏΠΎΠ»Π½ΠΎΠ³ΠΎ Π²ΡΠ΄Π²ΠΈΠΆΠ΅Π½ΠΈΡΒ». ΠΠ»ΠΈΠ½Π° ΡΠ°ΡΠΈΠΊΠΎΠ²ΡΡ Π½Π°ΠΏΡΠ°Π²Π»ΡΡΡΠΈΡ Β β ΠΎΡ 300 Π΄ΠΎ 550Β ΠΌΠΌ. Π‘ΠΈΡΡΠ΅ΠΌΡ Π²ΡΠ΄Π²ΠΈΠΆΠ΅Π½ΠΈΡ Π΄Π»Ρ ΡΠ΅ΡΡΠ°ΡΡΡ ΠΊΠΎΡΠ·ΠΈΠ½, Π²ΡΠΊΠ°ΡΠ½ΡΡ ΠΌΠΎΠ΄ΡΠ»Π΅ΠΉ ΠΈ ΠΏΠΎΠ»ΠΎΠΊ ΠΎΡΠ»ΠΈΡΠ°ΡΡΡΡ ΠΎΡ ΠΎΠ±ΡΡΠ½ΡΡ ΡΠ°ΡΠΈΠΊΠΎΠ²ΡΡ Π½Π°ΠΏΡΠ°Π²Π»ΡΡΡΠΈΡ Π½Π°Π»ΠΈΡΠΈΠ΅ΠΌ Π΄ΠΎΠΏΠΎΠ»Π½ΠΈΡΠ΅Π»ΡΠ½ΡΡ ΠΊΡΠ΅ΠΏΠ»Π΅Π½ΠΈΠΉ ΠΈ ΡΡΠΎΠ΅ΠΊ.
ΠΠ΅ΡΠ°Π±ΠΎΠΊΡΡΒ β Π³ΠΎΡΠΎΠ²ΡΠ΅ ΠΏΠ°ΡΠ½ΡΠ΅ ΠΌΠ΅ΡΠ°Π»Π»ΠΈΡΠ΅ΡΠΊΠΈΠ΅ Π±ΠΎΠΊΠΎΠ²ΡΠ΅ ΡΡΠ΅Π½ΠΊΠΈ ΡΡΠΈΠΊΠΎΠ² ΡΠ°Π·Π»ΠΈΡΠ½ΠΎΠΉ Π³Π»ΡΠ±ΠΈΠ½Ρ ΠΈ Π²ΡΡΠΎΡΡ, ΡΠ½Π°Π±ΠΆΠ΅Π½Π½ΡΠ΅ ΡΠΎΠ»ΠΈΠΊΠΎΠ²ΡΠΌΠΈ ΠΈΠ»ΠΈ ΡΠ°ΡΠΈΠΊΠΎΠ²ΡΠΌΠΈ Π½Π°ΠΏΡΠ°Π²Π»ΡΡΡΠΈΠΌΠΈ, ΠΏΠ»ΠΎΡΠ°Π΄ΠΊΠ°ΠΌΠΈ Π΄Π»Ρ ΠΊΡΠ΅ΠΏΠ»Π΅Π½ΠΈΡ Π΄Π½Π° ΠΈ Π·Π°Π΄Π½Π΅ΠΉ ΡΡΠ΅Π½ΠΊΠΈ ΠΈ ΡΠ΅Π³ΡΠ»ΠΈΡΡΠ΅ΠΌΡΠΌ ΠΊΡΠ΅ΠΏΠ»Π΅Π½ΠΈΠ΅ΠΌ Π΄Π»Ρ ΡΠ°ΡΠ°Π΄Π° ΡΡΠΈΠΊΠ°.
Π―ΡΠΈΡΠ½ΡΠ΅ ΡΠΈΡΡΠ΅ΠΌΡ ΡΠ»ΡΠΆΠ°Ρ Π΄Π°Π»ΡΠ½Π΅ΠΉΡΠΈΠΌ ΡΠ°Π·Π²ΠΈΡΠΈΠ΅ΠΌ ΠΈΠ΄Π΅ΠΈ ΠΌΠ΅ΡΠ°Π±ΠΎΠΊΡΠ° ΠΈ Π²ΠΊΠ»ΡΡΠ°ΡΡ Π² ΡΠ΅Π±Ρ Π΄ΠΎΠΏΠΎΠ»Π½ΠΈΡΠ΅Π»ΡΠ½ΡΠ΅ ΡΠ»Π΅ΠΌΠ΅Π½ΡΡ: ΠΎΠ³ΡΠ°Π½ΠΈΡΠΈΡΠ΅Π»ΡΠ½ΡΠ΅ ΡΠ΅ΠΉΠ»ΠΈΠ½Π³ΠΈ Π΄Π»Ρ Π²ΡΡΠΎΠΊΠΈΡ
ΡΡΠΈΠΊΠΎΠ², ΠΏΠ΅ΡΠ΅Π³ΠΎΡΠΎΠ΄ΠΊΠΈ ΠΈ ΡΠ°Π·Π΄Π΅Π»ΠΈΡΠ΅Π»ΠΈ. ΠΠ°ΠΈΠ±ΠΎΠ»Π΅Π΅ Π΄ΠΎΡΠΎΠ³ΠΈΠ΅ ΡΡΠΈΡΠ½ΡΠ΅ ΡΠΈΡΡΠ΅ΠΌΡ ΠΎΠ±ΠΎΡΡΠ΄ΠΎΠ²Π°Π½Ρ ΡΠΊΡΡΡΡΠΌΠΈ Π½Π°ΠΏΡΠ°Π²Π»ΡΡΡΠΈΠΌΠΈ, Π΄ΠΎΠ²ΠΎΠ΄ΡΠΈΠΊΠ°ΠΌΠΈ ΠΈ Π΄Π΅ΠΌΠΏΡΠ΅ΡΠ°ΠΌΠΈ. ΠΠ° ΠΎΡΠ½ΠΎΠ²Π΅ ΠΌΠ΅ΡΠ°Π±ΠΎΠΊΡΠΎΠ² ΠΈ ΡΡΠΈΡΠ½ΡΡ
ΡΠΈΡΡΠ΅ΠΌ Π»Π΅Π³ΠΊΠΎ ΡΠΎΠ±ΠΈΡΠ°ΡΡΡΡ Π²ΡΠ΄Π²ΠΈΠΆΠ½ΡΠ΅ ΡΡΠΈΠΊΠΈ ΠΏΡΠΎΠΈΠ·Π²ΠΎΠ»ΡΠ½ΠΎΠΉ ΡΠΈΡΠΈΠ½Ρ ΠΈ Π²ΡΡΠΎΡΡ. ΠΠ· Π°ΡΡΠΎΡΡΠΈΠΌΠ΅Π½ΡΠ° ΠΌΠΎΠΆΠ½ΠΎ Π²ΡΠ±ΡΠ°ΡΡ ΠΌΠ΅ΡΠ°Π±ΠΎΠΊΡΡ Π³Π»ΡΠ±ΠΈΠ½ΠΎΠΉ ΠΎΡ 300 Π΄ΠΎ 600Β ΠΌΠΌ Ρ ΡΠ°Π·Π»ΠΈΡΠ½ΠΎΠΉ Π²ΡΡΠΎΡΠΎΠΉ Π±ΠΎΠΊΠΎΠ²ΡΡ
ΡΡΠ΅Π½ΠΎΠΊ.
ΠΠ°Π½Π½ΡΠΉ ΡΠ΅ΠΊΡΡ ΡΠ²Π»ΡΠ΅ΡΡΡ ΠΎΠ·Π½Π°ΠΊΠΎΠΌΠΈΡΠ΅Π»ΡΠ½ΡΠΌ ΡΡΠ°Π³ΠΌΠ΅Π½ΡΠΎΠΌ.
ΠΡΠΎΠ΄ΠΎΠ»ΠΆΠ΅Π½ΠΈΠ΅ Π½Π° ΠΠΈΡΠ Π΅Ρ
ΠΠ°ΠΊ ΡΡΡΠ°Π½ΠΎΠ²ΠΈΡΡ ΡΠ°ΡΠΈΠΊΠΎΠ²ΡΠ΅ Π½Π°ΠΏΡΠ°Π²Π»ΡΡΡΠΈΠ΅. Π‘Ρ Π΅ΠΌΡ ΡΠ±ΠΎΡΠΊΠΈ ΠΊΠΎΠΌΠΎΠ΄ΠΎΠ² Π½Π° ΡΠ°ΡΠΈΠΊΠΎΠ²ΡΡ Π½Π°ΠΏΡΠ°Π²Π»ΡΡΡΠΈΡ
ΠΠ½ΠΎΠ³ΠΈΡ
Π½Π°ΡΠΈΠ½Π°ΡΡΠΈΡ
ΠΌΠ°ΡΡΠ΅ΡΠΎΠ², ΡΠ΅ΡΠΈΠ²ΡΠΈΡ
ΡΠΎΠ±ΠΈΡΠ°ΡΡ ΠΌΠ΅Π±Π΅Π»Ρ ΡΠ²ΠΎΠΈΠΌΠΈ ΡΡΠΊΠ°ΠΌΠΈ, ΠΏΡΠ³Π°Π΅Ρ ΡΠ°ΠΌΠΎΡΡΠΎΡΡΠ΅Π»ΡΠ½Π°Ρ ΡΡΡΠ°Π½ΠΎΠ²ΠΊΠ° Π²ΡΠ΄Π²ΠΈΠΆΠ½ΡΡ
ΡΡΠΈΠΊΠΎΠ².
ΠΠ° ΡΠ°ΠΌΠΎΠΌ Π΄Π΅Π»Π΅, Π½ΠΈΡΠ΅Π³ΠΎ ΡΠ»ΠΎΠΆΠ½ΠΎΠ³ΠΎ Π² ΡΡΠΎΠΌ Π½Π΅Ρ. Π ΠΏΡΠ΅Π΄Π²Π°ΡΠΈΡΠ΅Π»ΡΠ½ΠΎ ΡΠΎΡΡΠ°Π²Π»ΡΡΡ ΠΊΠ°ΠΊΠΈΠ΅-ΡΠΎ ΠΊΠ°ΡΡΡ ΠΏΡΠΈΡΠ°Π΄ΠΊΠΈ ΠΈ Π΄Π΅Π»Π°ΡΡ ΡΠ»ΠΎΠΆΠ½ΡΠ΅ ΠΌΠ°ΡΠ΅ΠΌΠ°ΡΠΈΡΠ΅ΡΠΊΠΈΠ΅ ΡΠ°ΡΡΠ΅ΡΡ Π½Π΅ Π½ΡΠΆΠ½ΠΎ. ΠΡΠΈ ΡΠ²ΠΎΠ΅ΠΌ ΠΎΠΏΡΡΠ΅ ΡΠ°Π±ΠΎΡΡ Π½Π° ΠΏΡΠΎΠΈΠ·Π²ΠΎΠ΄ΡΡΠ²Π΅ Ρ Π·Π½Π°Π»Π° ΡΠΎΠ»ΡΠΊΠΎ ΠΎΠ΄Π½ΠΎΠ³ΠΎ ΡΠ±ΠΎΡΡΠΈΠΊΠ°, ΠΊΠΎΡΠΎΡΡΠΉ ΡΠΊΡΡΠΏΡΠ»Π΅Π·Π½ΠΎ Π²ΡΡΡΠΈΡΡΠ²Π°Π» Π²ΡΠ΅ Π΄ΠΎ ΠΌΠΈΠ»Π»ΠΈΠΌΠ΅ΡΡΠ°, ΠΏΡΠ΅ΠΆΠ΄Π΅ ΡΠ΅ΠΌ ΡΡΡΠ°Π½ΠΎΠ²ΠΈΡΡ Π½Π°ΠΏΡΠ°Π²Π»ΡΡΡΠΈΠ΅ Π΄Π»Ρ Π²ΡΠ΄Π²ΠΈΠΆΠ½ΡΡ
ΡΡΠΈΠΊΠΎΠ². ΠΡΠ΅ ΠΎΡΡΠ°Π»ΡΠ½ΡΠ΅ Π΄Π΅Π»Π°Π»ΠΈ Β«Π½Π° Π³Π»Π°Π·ΠΎΠΊΒ», ΡΠΎΠ±Π»ΡΠ΄Π°Ρ Π»ΠΈΡΡ ΡΠ»Π΅ΠΌΠ΅Π½ΡΠ°ΡΠ½ΡΠ΅ ΠΏΡΠ°Π²ΠΈΠ»Π° Π³Π΅ΠΎΠΌΠ΅ΡΡΠΈΠΈ. Π Β«ΡΠ°Π±ΠΎΡΠ°Π»ΠΎΒ» Π½ΠΈΡΡΡΡ Π½Π΅ Ρ
ΡΠΆΠ΅.
Π§ΡΠΎ Π½ΡΠΆΠ½ΠΎ Π·Π½Π°ΡΡ, ΠΏΡΠ΅ΠΆΠ΄Π΅ ΡΠ΅ΠΌ Π½Π°ΡΠ°ΡΡ ΡΡΡΠ°Π½Π°Π²Π»ΠΈΠ²Π°ΡΡ Π²ΡΠ΄Π²ΠΈΠΆΠ½ΡΠ΅ ΡΡΠΈΠΊΠΈ
ΠΡΠΈΠ½ΡΠΈΠΏ ΠΊΡΠ΅ΠΏΠ»Π΅Π½ΠΈΡ ΠΏΠΎΠ»ΠΎΠ·ΡΠ΅Π² ΠΊ Π±ΠΎΠΊΠΎΠ²ΠΈΠ½Π°ΠΌ ΡΡΠΌΠ±Ρ ΠΎΠ΄ΠΈΠ½Π°ΠΊΠΎΠ² ΠΏΡΠ°ΠΊΡΠΈΡΠ΅ΡΠΊΠΈ Π΄Π»Ρ Π²ΡΠ΅Ρ Π²ΡΠ΄Π²ΠΈΠΆΠ½ΡΡ ΡΠΈΡΡΠ΅ΠΌ. ΠΠ°ΠΊ ΠΏΡΠ°Π²ΠΈΠ»ΠΎ, ΠΎΡ ΠΏΠ΅ΡΠ΅Π΄Π½Π΅Π³ΠΎ ΠΊΡΠ°Ρ ΠΎΡΡΡΡΠΏΠ°ΡΡ 2 ΠΌΠΌ ΠΈ Π΄Π°Π»Π΅Π΅ ΠΏΡΠΈΠΊΡΡΡΠΈΠ²Π°ΡΡ ΠΏΠΎ ΠΊΡΠ°ΠΉΠ½ΠΈΠΌ ΡΡΡΠ°Π½ΠΎΠ²ΠΎΡΠ½ΡΠΌ ΠΎΡΠ²Π΅ΡΡΡΠΈΡΠΌ ΠΈ Π½Π΅ΡΠΊΠΎΠ»ΡΠΊΠΈΠΌ ΡΠ΅Π½ΡΡΠ°Π»ΡΠ½ΡΠΌ, Π² Π·Π°Π²ΠΈΡΠΈΠΌΠΎΡΡΠΈ ΠΎΡ ΡΠ°Π·ΠΌΠ΅ΡΠ° ΡΠ°ΠΌΠΈΡ Π½Π°ΠΏΡΠ°Π²Π»ΡΡΡΠΈΡ .
Π Π°Π·Π»ΠΈΡΠ°Π΅ΡΡΡ ΡΠΎΠ»ΡΠΊΠΎ ΡΠ°ΡΡΠ΅Ρ Π²ΡΡΠΎΡΡ, Π½Π° ΠΊΠΎΡΠΎΡΡΡ ΠΊΡΠ΅ΠΏΡΡ ΠΏΠΎΠ»ΠΎΠ·ΠΊΠΈ.
ΠΡΡΡ ΡΡΠΈ ΠΎΡΠ½ΠΎΠ²Π½ΡΡ ΡΠΈΠΏΠ° Π½Π°ΠΏΡΠ°Π²Π»ΡΡΡΠΈΡ Π΄Π»Ρ Π²ΡΠ΄Π²ΠΈΠΆΠ½ΡΡ ΡΡΠΈΠΊΠΎΠ², Ρ ΡΠ°Π·Π»ΠΈΡΠ½ΡΠΌ ΠΏΠΎΠ»ΠΎΠΆΠ΅Π½ΠΈΠ΅ΠΌ ΠΏΠΎΠ»ΠΎΠ·ΡΠ΅Π²:
- ΠΠΎ Π½ΠΈΠΆΠ½Π΅ΠΌΡ ΠΊΡΠ°Ρ (Π΄Π½Ρ).
Π‘Π°ΠΌΡΠ΅ ΠΏΡΠΎΡΡΡΠ΅ ΠΈ Π±ΡΠ΄ΠΆΠ΅ΡΠ½ΡΠ΅ ΡΠΎΠ»ΠΈΠΊΠΎΠ²ΡΠ΅ Π½Π°ΠΏΡΠ°Π²Π»ΡΡΡΠΈΠ΅ ΡΡΡΠ°Π½Π°Π²Π»ΠΈΠ²Π°ΡΡΡΡ ΡΡΡΠΎΠ³ΠΎ ΠΏΠΎΠ΄ Π΄Π½ΠΎ ΡΠ°ΠΌΠΎΠ³ΠΎ ΠΊΠΎΡΠΎΠ±Π° ΡΡΠΈΠΊΠ°, Π²Π½Π°Ρ Π»Π΅ΡΡ Π½Π° ΠΠΠ.
ΠΠ°ΠΊ ΡΠΎΠ±ΡΡΠ²Π΅Π½Π½ΠΎ ΠΈ ΡΠ°ΠΌΡΠ΅ Π΄ΠΎΡΠΎΠ³ΠΎΡΡΠΎΡΡΠΈΠ΅ Π²Π°ΡΠΈΠ°Π½ΡΡ ΠΎΡΠ½Π°ΡΠ΅Π½ΠΈΡ Π²ΡΠ΄Π²ΠΈΠΆΠ½ΡΡ
ΡΡΠΈΠΊΠΎΠ² β ΡΠ°Π½Π΄Π΅ΠΌΠ±ΠΎΠΊΡΡ. ΠΠ½ΠΈ ΡΠ°ΠΊΠΆΠ΅ ΡΡΡΠ°Π½Π°Π²Π»ΠΈΠ²Π°ΡΡΡΡ ΠΏΠΎ Π½ΠΈΠΆΠ½Π΅ΠΌΡ ΡΡΠΎΠ²Π½Ρ ΠΊΠΎΡΠΎΠ±Π° ΡΡΠΈΠΊΠ°. - ΠΠΎ ΡΠ΅Π½ΡΡΡ Π±ΠΎΠΊΠΎΠ²ΠΈΠ½Ρ ΡΡΠΈΠΊΠ°.
Π¨Π°ΡΠΈΠΊΠΎΠ²ΡΠ΅ ΡΠ΅Π»Π΅ΡΠΊΠΎΠΏΠΈΡΠ΅ΡΠΊΠΈΠ΅ Π΄Π°ΡΡ Π±ΠΎΠ»ΡΡΡΡ ΡΠ²ΠΎΠ±ΠΎΠ΄Ρ ΠΏΡΠΈ ΠΌΠΎΠ½ΡΠ°ΠΆΠ΅ β ΠΈΡ ΠΌΠΎΠΆΠ½ΠΎ ΠΊΡΠ΅ΠΏΠΈΡΡ ΠΏΠΎ Π»ΡΠ±ΠΎΠΌΡ ΡΡΠΎΠ²Π½Ρ Π±ΠΎΠΊΠΎΠ²ΠΈΠ½Ρ ΠΊΠΎΡΠΎΠ±Π° ΡΡΠΈΠΊΠ°. ΠΠΎ Π²ΡΠ΅-ΡΠ°ΠΊΠΈ Π»ΡΡΡΠ΅ ΠΎΡΡΠ°Π½ΠΎΠ²ΠΈΡΡΡΡ Π½Π° ΡΠ΅Π½ΡΡΠ°Π»ΡΠ½ΠΎΠΌ. ΠΠ°ΠΊ ΠΏΠΎΠΊΠ°Π·ΡΠ²Π°Π΅Ρ ΠΏΡΠ°ΠΊΡΠΈΠΊΠ°, ΡΡΡΠ°Π½ΠΎΠ²ΠΊΠ° ΠΈ ΡΠ΅Π³ΡΠ»ΠΈΡΠΎΠ²ΠΊΠ° ΡΠΏΡΠΎΡΠ°Π΅ΡΡΡ Π² ΡΠ°Π·Ρ. - Π‘ Π²Π΅ΡΡ
Π½ΠΈΠΌ ΠΊΡΠ΅ΠΏΠ»Π΅Π½ΠΈΠ΅ΠΌ.
Π£ ΠΌΠ΅ΡΠ°Π±ΠΎΠΊΡΠΎΠ² (ΠΌΠ΅ΡΠ°Π»ΠΎΠ±ΠΎΠΊΡΠΎΠ²) ΠΏΠΎΠ»ΠΎΠ·ΡΡ ΡΠΎΠ»ΠΈΠΊΠΎΠ²ΠΎΠΉ Π½Π°ΠΏΡΠ°Π²Π»ΡΡΡΠ΅ΠΉ ΡΠ°ΡΠΏΠΎΠ»ΠΎΠΆΠ΅Π½Ρ ΠΏΠΎ Π²Π΅ΡΡ Π½Π΅ΠΌΡ ΡΡΠΎΠ²Π½Ρ.
Π ΠΊΠ°ΠΆΠ΄ΠΎΠΌ ΡΠ»ΡΡΠ°Π΅ ΡΡΠΈΠΊ Π±ΡΠ΄Π΅Ρ Β«ΡΠ°Π΄ΠΈΡΡΡΡΒ» Π°Π±ΡΠΎΠ»ΡΡΠ½ΠΎ ΠΏΠΎ-ΡΠ°Π·Π½ΠΎΠΌΡ. Π Π°ΡΡΠΌΠΎΡΡΠΈΠΌ Π½Π° ΠΏΡΠΈΠΌΠ΅ΡΠ΅ ΡΠ΅ΡΡΠ΅ΠΆΠ° ΠΎΠ±ΡΡΠ½ΠΎΠ³ΠΎ ΠΊΠΎΠΌΠΎΠ΄Π° Ρ ΡΡΠ΅ΠΌΡ ΡΡΠΈΠΊΠ°ΠΌΠΈ. ΠΠ»Ρ ΠΎΠ±Π»Π΅Π³ΡΠ΅Π½ΠΈΡ Π·Π°Π΄Π°ΡΠΈ ΠΏΡΠ΅Π΄ΠΏΠΎΠ»ΠΎΠΆΠΈΠΌ, ΡΡΠΎ ΡΡΠΈΠΊΠΈ Π½Π°ΡΠΈΠ½Π°ΡΡ ΡΡΡΠ°Π½Π°Π²Π»ΠΈΠ²Π°ΡΡ Ρ Π½ΠΈΠ·Π° Π±ΠΎΠΊΠΎΠ²ΠΈΠ½Ρ ΡΠ°ΠΌΠΎΠΉ ΡΡΠΌΠ±Ρ, Π±Π΅Π· Π²ΡΡΠ΅ΡΠ° Π½Π° ΡΠΎΠΊΠΎΠ»ΡΠ½ΡΡ ΠΊΠΎΡΠΎΠ±ΠΊΡ ΠΈ Π΄Π½ΠΎ. ΠΡΠΎ Π²ΠΎΠ·ΠΌΠΎΠΆΠ½ΠΎ Π² ΡΠ»Π΅Π΄ΡΡΡΠ΅ΠΌ Π²Π°ΡΠΈΠ°Π½ΡΠ΅.
- ΠΡΡΠΎΡΠ° Π±ΠΎΠΊΠΎΠ²ΠΈΠ½ ΡΡΠΌΠ±Ρ ΡΠ°Π²Π½Π° 668 ΠΌΠΌ (ΠΏΡΠΈ Π²ΡΡΠΎΡΠ΅ ΠΊΠΎΠΌΠΎΠ΄Π° Π±Π΅Π· Π½ΠΎΠΆΠ΅ΠΊ 700 ΠΌΠΌ).
- ΠΡΡΠΎΡΠ° ΡΡΠΈΠΊΠΎΠ² ΡΠ°Π²Π½Π° 150 ΠΌΠΌ ΠΏΡΠΈ Π²ΡΡΠΎΡΠ΅ ΡΠ°ΡΠ°Π΄ΠΎΠ² 221 ΠΌΠΌ.

ΠΠ°ΠΊ ΡΡΡΠ°Π½ΠΎΠ²ΠΈΡΡ ΡΠΎΠ»ΠΈΠΊΠΎΠ²ΡΠ΅ Π½Π°ΠΏΡΠ°Π²Π»ΡΡΡΠΈΠ΅
ΠΠ°Ρ Π²Π°Ρ Π΄Π½ΠΈΡΠ° ΡΠ°ΡΡΡΡ ΠΏΠΎΠ»ΠΎΠ·ΡΠ΅Π², ΠΊΠΎΡΠΎΡΡΠ΅ ΠΊΡΠ΅ΠΏΡΡΡΡ ΠΊ ΡΡΠΈΠΊΡ, ΠΎΡΡΡΠ΅ΡΡΠ²Π»ΡΠ΅ΡΡΡ Π½Π° Π²ΡΡΠΎΡΠ΅ 8-10 ΠΌΠΌ, Π² Π·Π°Π²ΠΈΡΠΈΠΌΠΎΡΡΠΈ ΠΎΡ ΡΠΎΠ»ΡΠΈΠ½Ρ Π΄Π½Π° (ΠΠΠ).
ΠΠΎΠ·ΡΠΌΠ΅ΠΌ ΠΎΡΡΡΡΠΏ ΠΎΡ Π΄Π½Π° Π΄ΠΎ Π½ΠΈΠΆΠ½Π΅Π³ΠΎ ΠΊΡΠ°Ρ ΡΠ°ΡΠ°Π΄Π° ΡΠ°Π²Π½ΡΠΌ 20 ΠΌΠΌ (ΠΎΠ±ΡΡΠ½ΠΎ ΠΎΠ½ ΠΊΠΎΠ»Π΅Π±Π»Π΅ΡΡΡ Π² ΠΏΡΠ΅Π΄Π΅Π»Π°Ρ 10-30 ΠΌΠΌ).
Π‘Ρ Π΅ΠΌΠ° ΡΡΡΠ°Π½ΠΎΠ²ΠΊΠΈ ΡΠΎΠ»ΠΈΠΊΠΎΠ²ΡΡ Π½Π°ΠΏΡΠ°Π²Π»ΡΡΡΠΈΡ Π±ΡΠ΄Π΅Ρ Π²ΡΠ³Π»ΡΠ΄Π΅ΡΡ ΡΠ»Π΅Π΄ΡΡΡΠΈΠΌ ΠΎΠ±ΡΠ°Π·ΠΎΠΌ.
ΠΡΠΈ ΡΡΠΎΠΌ Π½Π΅ Π±ΡΠ΄Π΅Ρ Π½ΠΈΠΊΠ°ΠΊΠΎΠΉ Π±Π΅Π΄Ρ, Π΅ΡΠ»ΠΈ ΠΎΠΊΡΡΠ³Π»ΠΈΡΡ Π·Π½Π°ΡΠ΅Π½ΠΈΡ. ΠΠ·ΡΡΡ Π½Π΅ ΡΡΠΎΠ²Π΅Π½Ρ Π²ΡΡΠΎΡ 32/255/478, Π° ΠΎΠΊΡΡΠ³Π»ΠΈΡΡ Π΄Π»Ρ ΡΠ΄ΠΎΠ±ΡΡΠ²Π° Π΄ΠΎ 40/260/280. ΠΠ»Π°Π²Π½ΠΎΠ΅, Π·Π°ΠΊΡΠ΅ΠΏΠΈΡΡ ΡΠΎΠ»ΠΈΠΊΠΎΠ²ΡΠ΅ Π½Π°ΠΏΡΠ°Π²Π»ΡΡΡΠΈΠ΅ ΠΎΠ΄ΠΈΠ½Π°ΠΊΠΎΠ²ΠΎ Ρ ΠΎΠ±Π΅ΠΈΡ ΡΡΠΎΡΠΎΠ½.
ΠΠ°ΠΊ ΡΡΡΠ°Π½ΠΎΠ²ΠΈΡΡ ΡΠ°ΡΠΈΠΊΠΎΠ²ΡΠ΅ Π½Π°ΠΏΡΠ°Π²Π»ΡΡΡΠΈΠ΅
ΠΡΠΈ Π°Π½Π°Π»ΠΎΠ³ΠΈΡΠ½ΠΎΠΌ Π΄ΠΎΠΏΡΡΠΊΠ΅ ΠΏΠΎΠ΄ Π΄Π½ΠΈΡΠ΅ΠΌ Π² 20 ΠΌΠΌ, ΡΡ Π΅ΠΌΠ° ΡΡΡΠ°Π½ΠΎΠ²ΠΊΠΈ ΡΠ°ΡΠΈΠΊΠΎΠ²ΡΡ Π½Π°ΠΏΡΠ°Π²Π»ΡΡΡΠΈΡ Π±ΡΠ΄Π΅Ρ Π²ΡΠ³Π»ΡΠ΄Π΅ΡΡ ΡΠ»Π΅Π΄ΡΡΡΠΈΠΌ ΠΎΠ±ΡΠ°Π·ΠΎΠΌ.
ΠΡΠ»ΠΈΡΠΈΠ΅ Π² ΡΠΎΠΌ, ΡΡΠΎ ΠΏΡΠΈΠ½ΡΡΠΎ ΡΡΡΠ°Π½Π°Π²Π»ΠΈΠ²Π°ΡΡ ΡΠ°ΡΠΈΠΊΠΎΠ²ΡΠ΅ Π½Π°ΠΏΡΠ°Π²Π»ΡΡΡΠΈΠ΅ ΠΏΠΎ ΡΠ΅Π½ΡΡΡ Π±ΠΎΠΊΠΎΠ²ΠΈΠ½Ρ. ΠΠΎΡΠΊΠΎΠ»ΡΠΊΡ ΠΎΠ½ΠΈ Π±ΡΠ²Π°ΡΡ ΡΠ°Π·Π½ΠΎΠΉ ΡΠΈΡΠΈΠ½Ρ, ΠΏΡΠΎΡΠ΅ Π½Π΅ ΡΠ΄Π²ΠΈΠ³Π°ΡΡ ΠΈΡ Π²ΡΡΠ΅ ΠΈΠ»ΠΈ Π½ΠΈΠΆΠ΅.
Π’Π°ΠΊΠΆΠ΅ Π·Π½Π°ΡΠ΅Π½ΠΈΡ 99/322/545 ΠΌΠΎΠΆΠ½ΠΎ ΠΎΠΊΡΡΠ³Π»ΠΈΡΡ ΠΈ ΡΠ΄Π΅Π»Π°ΡΡ, Π΄ΠΎΠΏΡΡΡΠΈΠΌ, 100/330/550.
ΠΠ°ΠΊ ΡΡΡΠ°Π½ΠΎΠ²ΠΈΡΡ ΠΌΠ΅ΡΠ°Π±ΠΎΠΊΡΡ Π½Π° Π²ΡΠ΄Π²ΠΈΠΆΠ½ΠΎΠΉ ΡΡΠΈΠΊ
ΠΡΠ»ΠΈΡΠΈΡΠ΅Π»ΡΠ½Π°Ρ ΠΎΡΠΎΠ±Π΅Π½Π½ΠΎΡΡΡ Π²ΡΠ΄Π²ΠΈΠΆΠ½ΠΎΠ³ΠΎ ΡΡΠΈΠΊΠ° Ρ ΠΌΠ΅ΡΠ°Π»Π»ΠΈΡΠ΅ΡΠΊΠΈΠΌΠΈ Π±ΠΎΠΊΠΎΠ²ΠΈΠ½Π°ΠΌΠΈ β ΡΡΠΎ Π΅Π³ΠΎ ΠΊΡΠ΅ΠΏΠ»Π΅Π½ΠΈΠ΅ ΠΏΠΎ Π²Π΅ΡΡ Π½Π΅ΠΌΡ ΠΊΡΠ°Ρ. Π’ΡΡ Π³Π»Π°Π²Π½ΠΎΠ΅ ΠΏΡΠ°Π²ΠΈΠ»ΡΠ½ΠΎ ΠΏΠΎΠ΄ΠΎΠ±ΡΠ°ΡΡ Π²ΡΡΠΎΡΡ ΠΌΠ΅ΡΠ°Π±ΠΎΠΊΡΠΎΠ² ΠΎΡΠ½ΠΎΡΠΈΡΠ΅Π»ΡΠ½ΠΎ Π²Π΅ΡΡΠΈΠΊΠ°Π»ΠΈ ΡΠ°ΡΠ°Π΄Π°. ΠΠ½Π° ΠΌΠΎΠΆΠ΅Ρ Π±ΡΡΡ 54 ΠΌΠΌ (ΠΎΠΏΡΠΈΠΌΠ°Π»ΡΠ½ΠΎ Π΄Π»Ρ ΡΡΡΠ°Π½ΠΎΠ²ΠΊΠΈ Π² ΡΠ·ΠΊΡΡ Π½ΠΈΡΡ ΠΏΠΎΠ΄ Π²ΡΡΡΠΎΠ΅Π½Π½ΠΎΠΉ Π΄ΡΡ ΠΎΠ²ΠΊΠΎΠΉ Π½Π° ΠΊΡΡ Π½Π΅), 86, 118 ΠΈΠ»ΠΈ 150 ΠΌΠΌ. ΠΡΠ»ΠΈ ΡΡΠ΅Π±ΡΠ΅ΡΡΡ ΡΡΠΈΠΊ Π³Π»ΡΠ±ΠΆΠ΅ β Π΅Π³ΠΎ ΠΌΠΎΠΆΠ½ΠΎ Β«Π½Π°ΡΠ°ΡΡΠΈΡΡΒ» Ρ ΠΏΠΎΠΌΠΎΡΡΡ ΠΎΠ΄Π½ΠΎΠ³ΠΎ ΠΈΠ»ΠΈ Π΄Π²ΡΡ ΡΡΠ΄ΠΎΠ² ΡΠΏΠ΅ΡΠΈΠ°Π»ΡΠ½ΡΡ ΡΠ΅ΠΉΠ»ΠΈΠ½Π³ΠΎΠ².
Π Π½Π°ΡΠ΅ΠΌ ΡΠ»ΡΡΠ°Π΅ ΠΎΠΏΡΠΈΠΌΠ°Π»ΡΠ½ΠΎ Π²Π·ΡΡΡ ΠΌΠ΅ΡΠ°Π±ΠΎΠΊΡ 150 ΠΌΠΌ, ΡΡ Π΅ΠΌΠ° ΡΡΡΠ°Π½ΠΎΠ²ΠΊΠΈ Π±ΡΠ΄Π΅Ρ Π²ΡΠ³Π»ΡΠ΄Π΅ΡΡ ΡΠ»Π΅Π΄ΡΡΡΠΈΠΌ ΠΎΠ±ΡΠ°Π·ΠΎΠΌ.
ΠΠ°ΠΊ ΠΈ Π² ΠΏΡΠ΅Π΄ΡΠ΄ΡΡΠΈΡ Π²Π°ΡΠΈΠ°Π½ΡΠ°Ρ , Π΄ΠΎΠΏΡΡΡΠΈΠΌΡ ΠΎΠΊΡΡΠ³Π»Π΅Π½ΠΈΡ Π΄Π»Ρ ΡΠ΄ΠΎΠ±ΡΡΠ²Π°: Π²ΠΌΠ΅ΡΡΠΎ 134/357/580 Π²ΠΏΠΎΠ»Π½Π΅ ΠΌΠΎΠΆΠ½ΠΎ Π²Π·ΡΡΡ 130/360/580.
ΠΠ°ΠΊ ΡΡΡΠ°Π½ΠΎΠ²ΠΈΡΡ ΡΠ°ΡΠ°Π΄Ρ Π½Π° Π²ΡΠ΄Π²ΠΈΠΆΠ½ΠΎΠΉ ΡΡΠΈΠΊ
Π€Π°ΡΠ°Π΄Ρ Π½Π° Π²ΡΠ΄Π²ΠΈΠΆΠ½ΡΠ΅ ΡΡΠΈΠΊΠΈ Π²ΡΠ΅Π³Π΄Π° ΡΡΡΠ°Π½Π°Π²Π»ΠΈΠ²Π°ΡΡ ΠΏΠΎΡΠ»Π΅ Β«ΠΏΡΠΎΠ±ΡΒ» ΠΈ Π²ΡΡΠ°Π²Π½ΠΈΠ²Π°Π½ΠΈΡ Π²Π½ΡΡΡΠ΅Π½Π½Π΅Π³ΠΎ ΠΊΠΎΡΠΎΠ±Π°.
Π‘Π½Π°ΡΠ°Π»Π° Π½Π΅ΠΎΠ±Ρ ΠΎΠ΄ΠΈΠΌΠΎ ΡΠ±Π΅Π΄ΠΈΡΡΡΡ, ΡΡΠΎ ΡΡΠΈΠΊ Π΄Π²ΠΈΠ³Π°Π΅ΡΡΡ ΡΠ²ΠΎΠ±ΠΎΠ΄Π½ΠΎ ΠΈ ΠΏΠ»Π°Π²Π½ΠΎ, Π½Π΅ ΠΏΠ΅ΡΠ΅ΠΊΠ°ΡΠΈΠ²Π°Π΅ΡΡΡ ΠΏΡΠΈ Π΄Π²ΠΈΠΆΠ΅Π½ΠΈΠΈ ΠΈ Π½Π΅ Π·Π°Π΅Π΄Π°Π΅Ρ.
Π’ΠΎΠ»ΡΠΊΠΎ ΠΏΠΎΡΠΎΠΌ Ρ ΠΏΠΎΠΌΠΎΡΡΡ ΡΠΏΠ΅ΡΠΈΠ°Π»ΡΠ½ΡΡ
ΠΏΠΎΠ΄ΠΊΠ»Π°Π΄ΠΎΠΊ (ΡΠ³ΠΎΠ΄ΡΡΡΡ ΠΎΠ±ΡΠ΅Π·ΠΊΠΈ ΠΠΠ, Π΄Π΅ΡΠ΅Π²ΡΠ½Π½Π°Ρ ΠΈΠ»ΠΈ ΠΏΠ»Π°ΡΡΠΌΠ°ΡΡΠΎΠ²Π°Ρ Π»ΠΈΠ½Π΅ΠΉΠΊΠ°) ΠΏΡΠΈΠΊΠΈΠ΄ΡΠ²Π°Π΅ΡΡΡ ΡΠ°Π²Π½ΠΎΠΌΠ΅ΡΠ½ΠΎΠ΅ ΠΏΠΎΠ»ΠΎΠΆΠ΅Π½ΠΈΠ΅ ΡΠ°ΡΠ°Π΄ΠΎΠ².
ΠΠ°ΡΠ΅ΠΌ, Ρ ΠΏΠΎΠΌΠΎΡΡΡ Π΄Π²ΡΡ ΡΡΠΎΡΠΎΠ½Π½Π΅Π³ΠΎ ΡΠΊΠΎΡΡΠ° ΡΠ°ΡΠ°Π΄ ΡΠΈΠΊΡΠΈΡΡΠ΅ΡΡΡ ΠΈ ΠΏΡΠΈΡΡΠ³ΠΈΠ²Π°Π΅ΡΡΡ ΠΈΠ·Π½ΡΡΡΠΈ Π½Π° ΡΠ°ΠΌΠΎΡΠ΅Π·Ρ 4Ρ 30. Π‘ΠΊΠ²ΠΎΠ·Π½ΠΎΠ΅ ΠΊΡΠ΅ΠΏΠ»Π΅Π½ΠΈΠ΅ ΡΡΡΠΊΠΈ ΡΠ°ΠΊΠΆΠ΅ Β«Π΄Π΅ΡΠΆΠΈΡΒ» ΡΠ°ΡΠ°Π΄. ΠΠΎ Π·Π°ΡΠ²Π΅ΡΠ»ΠΈΠ²Π°ΡΡΡΡ ΠΏΠΎΠ΄ ΡΡΡΠΊΡ ΡΡΠΎΠΈΡ ΡΠΎΠ»ΡΠΊΠΎ ΠΏΠΎΡΠ»Π΅ ΡΠΎΠ³ΠΎ, ΠΊΠ°ΠΊ ΡΠ°ΡΠ°Π΄ Π½Π°Π΄Π΅ΠΆΠ½ΠΎ Π·Π°ΡΠΈΠΊΡΠΈΡΠΎΠ²Π°Π½.
ΠΠ°ΠΊ Π½Π΅ Π΄ΠΎΠΏΡΡΡΠΈΡΡ ΠΎΡΠΈΠ±ΠΎΠΊ ΠΏΡΠΈ ΡΡΡΠ°Π½ΠΎΠ²ΠΊΠ΅
ΠΡΠ»ΠΈ ΡΠ°ΠΌΠΈ ΡΠ΅Π»ΡΡΡ Π½Π°ΠΏΡΠ°Π²Π»ΡΡΡΠΈΡ ΠΏΡΠΈΠΊΡΡΡΠ΅Π½Ρ Π½Π° ΠΎΠ΄Π½ΠΎΠΌ ΡΡΠΎΠ²Π½Π΅, ΡΡΡΠΎΠ³ΠΎ Π½Π°ΠΏΡΠΎΡΠΈΠ² Π΄ΡΡΠ³ Π΄ΡΡΠ³Π° ΠΈ ΡΡΠΈΠΊ Π½ΠΈΠΊΠ°ΠΊ Π½Π΅ ΠΏΠ΅ΡΠ΅ΠΊΠ°ΡΠΈΠ²Π°Π΅ΡΡΡ Π² ΠΏΡΠΎΡΠ΅ΡΡΠ΅ Π²ΡΠ΄Π²ΠΈΠΆΠ΅Π½ΠΈΡ, ΡΠΎ Π²ΡΠ΅ Π±ΡΠ΄Π΅Ρ Β«ΡΠ°Π±ΠΎΡΠ°ΡΡΒ» Ρ ΠΎΡΠΎΡΠΎ.
ΠΡΠΎ Π³Π»Π°Π²Π½ΠΎΠ΅ ΠΏΡΠ°Π²ΠΈΠ»ΠΎ Π² ΡΡΡΠ°Π½ΠΎΠ²ΠΊΠ΅ Π»ΡΠ±ΠΎΠ³ΠΎ ΡΡΠΈΠΊΠ° β ΡΠΎΠ±Π»ΡΡΡΠΈ ΡΠΎΠΎΡΠ½ΠΎΡΡΡ.
ΠΡΠΎΡΡΠΌ ΠΏΡΠ°Π²ΠΈΠ»ΠΎΠΌ ΠΌΠΎΠΆΠ½ΠΎ Π²ΡΠ΄Π΅Π»ΠΈΡΡ ΠΈ Π½Π΅ΠΎΠ±Ρ ΠΎΠ΄ΠΈΠΌΠΎΡΡΡ ΡΠΎΠΎΡΠ½ΠΎΡΠΈΡΡ Π²ΡΡΠΎΡΡ Π±ΠΎΠΊΠΎΠ²ΠΈΠ½ ΡΠ°ΠΌΠΎΠ³ΠΎ ΠΊΠΎΡΠΎΠ±Π° ΡΡΠΈΠΊΠ° Ρ Π²ΡΡΠΎΡΠΎΠΉ ΡΠ°ΡΠ°Π΄ΠΎΠ². ΠΡΠ΅ΠΆΠ΄Π΅ ΡΠ΅ΠΌ Π½Π°ΡΠ°ΡΡ ΠΈΡ Β«ΡΠ°ΡΠΏΡΠ΅Π΄Π΅Π»Π΅Π½ΠΈΠ΅Β» ΠΏΠΎ Π²ΡΡΠΎΡΠ΅. Π Π΅ΠΊΠΎΠΌΠ΅Π½Π΄ΡΡ ΡΡΠ°Π·Ρ ΡΠ΄Π΅Π»Π°ΡΡ ΠΌΠ΅ΡΠΊΠΈ ΠΊΠ°ΡΠ°Π½Π΄Π°ΡΠΎΠΌ Π½Π° ΡΠΎΡΡΠ΅ ΠΊΠΎΡΠΏΡΡΠ°, ΠΎΡΠΌΠ΅ΡΠΈΠ² ΠΏΠΎΠ»ΠΎΠΆΠ΅Π½ΠΈΠ΅ ΡΠ°ΡΠ°Π΄ΠΎΠ², ΡΡΠΎΠ±Ρ ΠΈΠΌΠ΅ΡΡ Π½Π°Π³Π»ΡΠ΄Π½ΠΎΠ΅ ΠΏΡΠ΅Π΄ΡΡΠ°Π²Π»Π΅Π½ΠΈΠ΅.
ΠΠ»Π°Π²Π½ΡΠΉ ΠΏΠΎΠ΄Π²ΠΎΠ΄Π½ΡΠΉ ΠΊΠ°ΠΌΠ΅Π½Ρ β ΡΡΠΎ Π½Π΅ΡΠ°ΡΠΈΠΎΠ½Π°Π»ΡΠ½ΠΎΠ΅ ΡΠ°ΡΠΏΡΠ΅Π΄Π΅Π»Π΅Π½ΠΈΠ΅ Π½Π°ΠΏΡΠ°Π²Π»ΡΡΡΠΈΡ Ρ ΡΠΎΡΠΊΠΈ Π·ΡΠ΅Π½ΠΈΡ ΠΏΠΎΠ»Π΅Π·Π½ΠΎΠ³ΠΎ ΠΎΠ±ΡΠ΅ΠΌΠ° ΡΠ°ΠΌΠΎΠ³ΠΎ ΡΡΠΈΠΊΠ°.
ΠΠ°ΠΏΡΠΈΠΌΠ΅Ρ, Π½Π° ΡΠΎΡΠΎ β Π²ΡΠ΄Π²ΠΈΠΆΠ½ΡΠ΅ ΡΡΠΈΠΊΠΈ Π² ΠΏΠ΅Π½Π°Π»Π΅ ΡΡΠ½ΠΊΡΠΈΠΎΠ½ΠΈΡΡΡΡ Π°Π±ΡΠΎΠ»ΡΡΠ½ΠΎ Π½ΠΎΡΠΌΠ°Π»ΡΠ½ΠΎ.
ΠΠΎ ΠΈΠ·-Π·Π° ΡΠΎΠ³ΠΎ, ΡΡΠΎ Π²Π΅ΡΡ Π½ΠΈΠΉ Π²ΡΠ΄Π²ΠΈΠΆΠ½ΠΎΠΉ ΡΡΠΈΠΊ Β«Π·Π°Π΄ΡΠ°Π»ΠΈΒ» ΡΠ»ΠΈΡΠΊΠΎΠΌ Π²ΡΡΠΎΠΊΠΎ, Π΅Π³ΠΎ Π²ΠΌΠ΅ΡΡΠΈΡΠ΅Π»ΡΠ½ΠΎΡΡΡ ΡΠΈΠ»ΡΠ½ΠΎ ΡΡΠ΅Π·Π°Π½Π°. ΠΠ°Π·Π°Π»ΠΎΡΡ Π±Ρ, Π·Π°ΡΠΎ ΡΡΠ΅Π΄Π½ΠΈΠΉ ΡΡΠΈΠΊ Π±ΠΎΠ»Π΅Π΅ Π²ΠΌΠ΅ΡΡΠΈΡΠ΅Π»Π΅Π½. ΠΠΎ Π½Π΅Ρ. ΠΠΈΠΆΠ½ΠΈΠΉ ΠΊΡΠ°ΠΉ ΡΠ°ΡΠ°Π΄Π° Π²Π΅ΡΡ Π½Π΅Π³ΠΎ ΡΡΠΈΠΊΠ° Β«Π½Π΅ Π΄Π°Π΅ΡΒ» Π·Π°Π³ΡΡΠΆΠ°ΡΡ ΡΡΠ΅Π΄Π½ΠΈΠΉ ΡΡΠΈΠΊ ΠΏΠΎ Π²ΡΠ΅ΠΉ Π²ΡΡΠΎΡΠ΅ ΠΎΠ±ΡΠ°Π·ΠΎΠ²Π°Π²ΡΠ΅ΠΉΡΡ Π½ΠΈΡΠΈ.
ΠΠ° ΡΠ°ΠΌΠΎΠΌ Π΄Π΅Π»Π΅, ΡΡΠΎΡ ΠΌΠΎΠΌΠ΅Π½Ρ Π½Π΅ ΠΊΡΠΈΡΠΈΡΠ΅Π½. Π Π΅ΡΠ»ΠΈ Π΅Π³ΠΎ Π½Π΅ Π²ΡΠ΄Π΅Π»ΠΈΡΡ, ΡΠΎ ΡΠ°ΠΌ Π²Π»Π°Π΄Π΅Π»Π΅Ρ ΠΈ Π½Π΅ Π·Π°ΠΌΠ΅ΡΠΈΡ. ΠΠΎ ΡΠΎΡ, ΠΊΡΠΎ Π΄Π΅Π»Π°Π», ΠΎΠ±ΡΠ·Π°ΡΠ΅Π»ΡΠ½ΠΎ Π±ΡΠ΄Π΅Ρ ΠΏΠΎΠΌΠ½ΠΈΡΡ, ΡΡΠΎ Π»ΡΡΡΠ΅ Π±ΡΠ»ΠΎ Π±Ρ ΠΏΠΎ-Π΄ΡΡΠ³ΠΎΠΌΡ.
ΠΠΎΡΠ°Π³ΠΎΠ²Π°Ρ ΠΈΠ½ΡΡΡΡΠΊΡΠΈΡ ΡΡΡΠ°Π½ΠΎΠ²ΠΊΠΈ Π²ΡΠ΄Π²ΠΈΠΆΠ½ΠΎΠ³ΠΎ ΡΡΠΈΠΊΠ°
ΠΡΠ΅ΠΆΠ΄Π΅ ΡΠ΅ΠΌ ΡΡΡΠ°Π½ΠΎΠ²ΠΈΡΡ Π½Π°ΠΏΡΠ°Π²Π»ΡΡΡΠΈΠ΅ Π²ΡΠ΄Π²ΠΈΠΆΠ½ΠΎΠ³ΠΎ ΡΡΠΈΠΊΠ°, ΡΠ»Π΅Π΄ΡΠ΅Ρ ΠΏΡΠ°Π²ΠΈΠ»ΡΠ½ΠΎ ΠΎΠΏΡΠ΅Π΄Π΅Π»ΠΈΡΡ ΠΏΠΎΠ»ΠΎΠΆΠ΅Π½ΠΈΠ΅ ΠΊΡΠ΅ΠΏΠ΅ΠΆΠ°. Π Π°ΡΡΠ΅ΡΡ β ΡΡΠΎ ΠΏΠ΅ΡΠ²ΡΠΉ ΡΠ°Π³ Π² ΡΡΡΠ°Π½ΠΎΠ²ΠΊΠ΅.
Π¨Π°Π³ 1 β ΠΎΠΏΡΠ΅Π΄Π΅Π»Π΅Π½ΠΈΠ΅ ΠΏΠΎΠ»ΠΎΠΆΠ΅Π½ΠΈΡ ΡΡΠΈΠΊΠΎΠ² Π²Π½ΡΡΡΠΈ ΡΡΠΌΠ±Ρ
Π§Π΅ΠΌ Π±ΠΎΠ»ΡΡΠ΅ ΡΠ°Π·Π½ΠΈΡΠ° ΠΌΠ΅ΠΆΠ΄Ρ Π²ΡΡΠΎΡΠΎΠΉ ΡΠ°ΡΠ°Π΄Π° ΠΈ Π²ΡΡΠΎΡΠΎΠΉ Π±ΠΎΠΊΠΎΠ²ΠΈΠ½ ΡΡΠΈΠΊΠ°, ΡΠ΅ΠΌ Π±ΠΎΠ»ΡΡΠ΅ ΡΠ»Π΅Π΄ΡΠ΅Ρ Π΄Π΅Π»Π°ΡΡ Π·Π°Π·ΠΎΡ. ΠΡΠΎ Π΄Π΅Π»Π°Π΅ΡΡΡ ΠΈΠ· ΡΠΎΠΎΠ±ΡΠ°ΠΆΠ΅Π½ΠΈΠΉ ΡΡΡΠΎΠΉΡΠΈΠ²ΠΎΡΡΠΈ ΠΊΡΠ΅ΠΏΠ»Π΅Π½ΠΈΡ: Π²Π΅Π΄Ρ ΡΠ°ΡΠ°Π΄ ΠΊΡΠ΅ΠΏΠΈΡΡΡ ΠΊ Π±ΠΎΠΊΠΎΠ²ΠΈΠ½Π°ΠΌ ΡΠ°ΠΌΠΎΠ³ΠΎ ΡΡΠΈΠΊΠ° ΠΈ ΡΠΎΡΠΊΠΈ ΠΊΡΠ΅ΠΏΠ»Π΅Π½ΠΈΡ Π΄ΠΎΠ»ΠΆΠ½Ρ Π±ΡΡΡ ΠΏΡΠΈΠ±Π»ΠΈΠΆΠ΅Π½Ρ ΠΊ ΡΠ΅Π½ΡΡΡ.
ΠΡΡΠ°Π²ΡΠ΅Π΅ΡΡ ΡΠ°ΡΡΡΠΎΡΠ½ΠΈΠ΅ ΡΠ°Π²Π½ΠΎΠΌΠ΅ΡΠ½ΠΎ ΡΠ°ΡΠΏΡΠ΅Π΄Π΅Π»ΡΠ΅ΡΡΡ ΠΌΠ΅ΠΆΠ΄Ρ ΠΎΡΡΠ°Π»ΡΠ½ΡΠΌΠΈ ΡΡΠΈΠΊΠ°ΠΌΠΈ.
ΠΡΠΈΡΠ΅ΠΌ ΡΠ½ΠΈΠ·Ρ ΠΊΠΎΡΠΎΠ±Π° ΡΡΠΈΠΊΠ° ΠΏΡΠΈΠ½ΡΡΠΎ ΠΎΡΡΠ°Π²Π»ΡΡΡ ΡΡΠΎΠ»ΡΠΊΠΎ ΠΆΠ΅, ΡΠΊΠΎΠ»ΡΠΊΠΎ ΠΎΡΡΡΡΠΏΠ°Π»ΠΎΡΡ Π½Π° Π½ΠΈΠΆΠ½Π΅ΠΌ.
ΠΠΎΠ΄ΠΎΠ±Π½ΡΠ΅ ΡΠ°ΡΡΠ΅ΡΡ Π½Π΅ΡΠ»ΠΎΠΆΠ½ΡΠ΅. ΠΠ΅Π»ΠΈΡΠΈΠ½Ρ ΡΠ°ΡΡΡΠΎΡΠ½ΠΈΠΉ ΠΌΠΎΠΆΠ½ΠΎ Π²ΡΡΠΈΡΠ»ΡΡΡ Ρ ΠΏΠΎΠΌΠΎΡΡΡ ΠΊΠ°Π»ΡΠΊΡΠ»ΡΡΠΎΡΠ° ΠΈΠ»ΠΈ Π²ΡΡΠ΅ΡΡΠΈΠ²Π°ΡΡ Π² ΠΌΠ°ΡΡΡΠ°Π±Π΅. ΠΠ½ΠΎΠ³ΠΈΠ΅ ΡΠ±ΠΎΡΡΠΈΠΊΠΈ ΠΏΡΠΈΠΊΠΈΠ΄ΡΠ²Π°ΡΡ ΡΡΠ°Π·Ρ Π½Π° ΠΊΠΎΡΠΏΡΡΠ΅, ΠΎΡΠΌΠ΅ΡΡΡ ΡΡΠ»Π΅ΡΠΊΠΎΠΉ ΠΎΡ ΡΠΎΡΠΊΠΈ Π΄ΠΎ ΡΠΎΡΠΊΠΈ.
ΠΠΎΠ³Π΄Π° ΠΏΠΎΠ»ΠΎΠΆΠ΅Π½ΠΈΠ΅ ΡΡΠΈΠΊΠΎΠ² ΠΎΠΏΡΠ΅Π΄Π΅Π»Π΅Π½ΠΎ, ΠΎΡΡΠ΅ΡΡΠΈΠ²Π°ΡΡ ΠΌΠ΅ΡΡΠ° ΠΊΡΠ΅ΠΏΠ»Π΅Π½ΠΈΡ ΠΏΠΎΠ»ΠΎΠ·ΡΠ΅Π². Π Π·Π°Π²ΠΈΡΠΈΠΌΠΎΡΡΠΈ ΠΎΡ Π²ΡΠ΄Π²ΠΈΠΆΠ½ΠΎΠΉ ΡΠΈΡΡΠ΅ΠΌΡ, ΡΡΠΎ ΠΌΠΎΠΆΠ΅Ρ Π±ΡΡΡ ΡΠ΅Π½ΡΡ, Π½ΠΈΠΆΠ½ΠΈΠΉ ΠΈΠ»ΠΈ Π²Π΅ΡΡ Π½ΠΈΠΉ ΠΊΡΠ°ΠΉ Π±ΠΎΠΊΠΎΠ²ΠΈΠ½Ρ ΡΡΠΈΠΊΠ°.
ΠΠΎΡΠ»Π΅ ΡΠ°ΡΡΠ΅ΡΠΎΠ² ΠΏΡΠΈΡΡΡΠΏΠ°ΡΡ ΠΊ ΠΌΠΎΠ½ΡΠ°ΠΆΡ Π½Π°ΠΏΡΠ°Π²Π»ΡΡΡΠΈΡ Π²ΡΠ΄Π²ΠΈΠΆΠ½ΠΎΠ³ΠΎ ΡΡΠΈΠΊΠ°. ΠΡΠΎ Π±ΡΠ΄Π΅Ρ Π²ΡΠΎΡΡΠΌ ΡΠ°Π³ΠΎΠΌ Π² ΡΡΡΠ°Π½ΠΎΠ²ΠΊΠ΅.
Π¨Π°Π³ 2 β ΠΊΡΠ΅ΠΏΠ΅ΠΆ Π½Π°ΠΏΡΠ°Π²Π»ΡΡΡΠΈΡ
ΡΡΠΈΠΊΠΎΠ² Π²Π½ΡΡΡΠΈ ΡΡΠΌΠ±Ρ
Π‘ΡΡΠΎΠ³ΠΎ Π½Π°ΠΏΡΠΎΡΠΈΠ² Π΄ΡΡΠ³ Π΄ΡΡΠ³Π° Π½Π°ΡΡΠΆΠ½ΡΡ ΡΠ°ΡΡΡ ΠΏΠΎΠ»ΠΎΠ·ΡΠ΅Π² ΠΊΡΠ΅ΠΏΡΡ ΠΊ Π±ΠΎΠΊΠΎΠ²ΠΈΠ½Π°ΠΌ ΡΡΠΌΠ±Ρ, Π° Π²Π½ΡΡΡΠ΅Π½Π½ΡΡ β ΠΊ ΡΠ°ΠΌΠΈΠΌ ΡΡΠΈΠΊΠ°ΠΌ (ΠΈΡΠΊΠ»ΡΡΠ΅Π½ΠΈΠ΅ΠΌ ΡΠ»ΡΠΆΠ°Ρ ΠΌΠ΅ΡΠ°Π±ΠΎΠΊΡΡ, Ρ ΠΊΠΎΡΠΎΡΡΡ Π²Π½ΡΡΡΠ΅Π½Π½ΠΈΠ΅ Π½Π°ΠΏΡΠ°Π²Π»ΡΡΡΠΈΠ΅ ΡΠΆΠ΅ Π²ΡΡΡΠΎΠ΅Π½Ρ Π² ΡΠΎΠ±ΡΠ°Π½Π½ΡΠ΅ ΡΡΠΈΠΊΠΈ).
ΠΠ°ΡΠ΅ΠΌ ΠΏΡΠΎΠ±ΡΡΡ Π·Π°Π΄Π²ΠΈΠ½ΡΡΡ ΠΊΠΎΡΠΎΠ±Π° ΡΡΠΈΠΊΠΎΠ² Π²Π½ΡΡΡΡ ΡΡΠΌΠ±Ρ, ΡΠ΅Π³ΡΠ»ΠΈΡΡΡΡ ΡΠ°ΠΊ, ΡΡΠΎΠ±Ρ Π΄ΠΎΠ±ΠΈΡΡΡΡ ΠΏΠ»Π°Π²Π½ΠΎΠ³ΠΎ ΠΈ ΡΠ°Π²Π½ΠΎΠΌΠ΅ΡΠ½ΠΎΠ³ΠΎ Π΄Π²ΠΈΠΆΠ΅Π½ΠΈΡ.
Π¨Π°Π³ 3 β ΡΠ΅Π³ΡΠ»ΠΈΡΠΎΠ²ΠΊΠ° ΠΏΠ»Π°Π²Π½ΠΎΠ³ΠΎ Ρ
ΠΎΠ΄Π° Π½Π°ΠΏΡΠ°Π²Π»ΡΡΡΠΈΡ
ΡΡΠΈΠΊΠΎΠ² Π²Π½ΡΡΡΠΈ ΡΡΠΌΠ±Ρ
ΠΠ°ΡΠ΅ΠΌ ΠΏΡΠΈΡΡΡΠΏΠ°ΡΡ ΠΊ ΡΡΡΠ°Π½ΠΎΠ²ΠΊΠ΅ ΡΠ°ΡΠ°Π΄ΠΎΠ².
ΠΠΎ ΠΏΡΠ΅Π΄Π²Π°ΡΠΈΡΠ΅Π»ΡΠ½ΠΎ Π²ΡΠΌΠ΅ΡΡΡΡ ΡΠ°Π²Π½ΠΎΠΌΠ΅ΡΠ½ΡΠ΅ Π·Π°Π·ΠΎΡΡ ΠΌΠ΅ΠΆΠ΄Ρ Π½ΠΈΠΌΠΈ Ρ ΠΏΠΎΠΌΠΎΡΡΡ ΠΏΠΎΠ΄ΡΡΡΠ½ΠΎΠ³ΠΎ ΠΌΠ°ΡΠ΅ΡΠΈΠ°Π»Π° β ΡΠ°Π·Π»ΠΈΡΠ½ΡΡ
ΠΏΠΎΠ΄ΠΊΠ»Π°Π΄ΠΎΠΊ Π½ΡΠΆΠ½ΠΎΠΉ ΡΠΎΠ»ΡΠΈΠ½Ρ.
Π¨Π°Π³ 4 β Π²ΡΡΡΠ°Π²Π»Π΅Π½ΠΈΠ΅ ΡΠ°Π²Π½ΠΎΠΌΠ΅ΡΠ½ΡΡ
Π·Π°Π·ΠΎΡΠΎΠ² Π½Π° ΡΠ°ΡΠ°Π΄Π°Ρ
Π¨Π°Π³ 5 β ΠΏΡΠ΅Π΄Π²Π°ΡΠΈΡΠ΅Π»ΡΠ½Π°Ρ ΡΠΈΠΊΡΠ°ΡΠΈΡ ΡΠ°ΡΠ°Π΄ΠΎΠ² Π½Π° Π΄Π²ΡΡ
ΡΡΠΎΡΠΎΠ½Π½ΠΈΠΉ ΡΠΊΠΎΡΡ
Π ΠΏΡΠΈΡΡΠ³ΠΈΠ²Π°ΡΡ ΠΈΠ·Π½ΡΡΡΠΈ Π½Π° ΡΠ°ΠΌΠΎΡΠ΅Π·Ρ.
ΠΠ°ΡΠ΅ΡΡΠ²Π΅Π½Π½Π°Ρ ΡΡΡΠ½ΠΈΡΡΡΠ° — ΡΡΠΎ ΠΎΠ±ΡΠ·Π°ΡΠ΅Π»ΡΠ½ΠΎΠ΅ ΡΡΠ»ΠΎΠ²ΠΈΠ΅ Π΄Π»Ρ ΠΈΠ·Π³ΠΎΡΠΎΠ²Π»Π΅Π½ΠΈΡ Π΄ΠΎΠ±ΡΠΎΡΠ½ΠΎΠΉ ΠΊΠΎΡΠΏΡΡΠ½ΠΎΠΉ ΠΌΠ΅Π±Π΅Π»ΠΈ. ΠΡ ΡΠ΅Ρ Π½ΠΈΡΠ΅ΡΠΊΠΈΡ Ρ Π°ΡΠ°ΠΊΡΠ΅ΡΠΈΡΡΠΈΠΊ ΠΊΠΎΠΌΠΏΠ»Π΅ΠΊΡΡΡΡΠΈΡ Π·Π°Π²ΠΈΡΠΈΡ ΠΏΡΠΎΡΠ½ΠΎΡΡΡ, Π΄ΠΎΠ»Π³ΠΎΠ²Π΅ΡΠ½ΠΎΡΡΡ ΠΈ ΡΡΠΎΠ²Π΅Π½Ρ ΠΊΠΎΠΌΡΠΎΡΡΠ° ΠΊΡΡ ΠΎΠ½Ρ, ΠΊΠΎΠΌΠΎΠ΄ΠΎΠ², Π³ΠΎΡΠΎΠΊ, ΡΡΠΌΠ± ΠΈ ΡΠΊΠ°ΡΠΎΠ²-ΠΊΡΠΏΠ΅.
Π‘ΡΡΠ΅ΡΡΠ²ΡΠ΅Ρ Π½Π΅ΡΠΊΠΎΠ»ΡΠΊΠΎ ΡΠΈΠΏΠΎΠ² Π²ΡΠ΄Π²ΠΈΠΆΠ½ΡΡ ΡΠΈΡΡΠ΅ΠΌ, ΠΎΡΠ»ΠΈΡΠ°ΡΡΠΈΡ ΡΡ ΡΠ»ΠΎΠΆΠ½ΠΎΡΡΡΡ ΠΊΠΎΠ½ΡΡΡΡΠΊΡΠΈΠΈ, ΡΡΠΎΠΈΠΌΠΎΡΡΡΡ ΠΈ ΡΠ΄ΠΎΠ±ΡΡΠ²ΠΎΠΌ ΠΈΡΠΏΠΎΠ»ΡΠ·ΠΎΠ²Π°Π½ΠΈΡ:
- ΡΠΎΠ»ΠΈΠΊΠΎΠ²ΡΠ΅ Π½Π°ΠΏΡΠ°Π²Π»ΡΡΡΠΈΠ΅;
- ΡΠ°ΡΠΈΠΊΠΎΠ²ΡΠ΅ Π½Π°ΠΏΡΠ°Π²Π»ΡΡΡΠΈΠ΅;
- ΠΌΠ΅ΡΠ°Π±ΠΎΠΊΡΡ;
- ΡΠ°Π½Π΄Π΅ΠΌΡ;
- ΡΠ°Π½Π΄Π΅ΠΌΠ±ΠΎΠΊΡΡ;
- Π»Π΅Π³ΡΠ°Π±ΠΎΠΊΡΡ.
ΠΠ±ΡΡΠ½ΠΎ ΡΡΡΠ°Π½ΠΎΠ²ΠΊΠ° Π½Π°ΠΏΡΠ°Π²Π»ΡΡΡΠΈΡ
Π΄Π»Ρ Π²ΡΠ΄Π²ΠΈΠΆΠ½ΡΡ
ΡΡΠΈΠΊΠΎΠ² ΠΏΡΠ΅Π΄ΡΡΠ°Π²Π»ΡΠ΅Ρ ΡΠΎΠ±ΠΎΠΉ Π½Π΅ΡΠ»ΠΎΠΆΠ½ΡΡ ΡΡ
Π΅ΠΌΡ, Ρ ΠΊΠΎΡΠΎΡΠΎΠΉ ΠΌΠΎΠΆΠ΅Ρ ΡΠΏΡΠ°Π²ΠΈΡΡΡΡ Π΄Π°ΠΆΠ΅ Π½Π΅ΠΏΡΠΎΡΠ΅ΡΡΠΈΠΎΠ½Π°Π». Π£ΡΡΠ°Π½ΠΎΠ²ΠΊΠ° Π½Π°ΠΏΡΠ°Π²Π»ΡΡΡΠΈΡ
Π΄Π»Ρ Π²ΡΠ΄Π²ΠΈΠΆΠ½ΡΡ
ΡΡΠΈΠΊΠΎΠ² ΡΠ²ΠΎΠΈΠΌΠΈ ΡΡΠΊΠ°ΠΌΠΈ ΠΏΠΎΡΡΠ΅Π±ΡΠ΅Ρ Π²Π½ΠΈΠΌΠ°ΡΠ΅Π»ΡΠ½ΠΎΠ³ΠΎ ΠΈΠ·ΡΡΠ΅Π½ΠΈΡ ΠΈΠ½ΡΡΡΡΠΊΡΠΈΠΈ, Π½Π΅ΠΌΠ½ΠΎΠ³ΠΎ Π²ΡΠ΅ΠΌΠ΅Π½ΠΈ ΠΈ Π½Π°Π²ΡΠΊΠΎΠ² ΡΠ°Π±ΠΎΡΡ Ρ ΡΡΡΡΠΏΠΎΠ²Π΅ΡΡΠΎΠΌ.
Π ΠΎΠ»ΠΈΠΊΠΎΠ²ΡΠ΅ Π½Π°ΠΏΡΠ°Π²Π»ΡΡΡΠΈΠ΅ Π΄Π»Ρ Π²ΡΠ΄Π²ΠΈΠΆΠ½ΡΡ ΡΡΠΈΠΊΠΎΠ²
ΠΡΠΈ Π½Π°ΠΏΡΠ°Π²Π»ΡΡΡΠΈΠ΅ ΠΎΠ±ΡΡΠ½ΠΎ ΠΈΡΠΏΠΎΠ»ΡΠ·ΡΡΡΡΡ Π΄Π»Ρ ΠΈΠ·Π³ΠΎΡΠΎΠ²Π»Π΅Π½ΠΈΡ ΠΌΠ΅Π±Π΅Π»ΠΈ Π² ΠΌΠ°ΡΡΠΎΠ²ΠΎΠΌ ΠΏΡΠΎΠΈΠ·Π²ΠΎΠ΄ΡΡΠ²Π΅. ΠΠ·Π³ΠΎΡΠ°Π²Π»ΠΈΠ²Π°ΡΡΡΡ ΠΈΠ· ΡΡΠ°Π»ΠΈ, ΡΠ²Π΅ΡΡ Ρ Π½Π°Π½ΠΎΡΠΈΡΡΡ ΡΠΏΠΎΠΊΡΠΈΠ΄Π½Π°Ρ ΠΊΡΠ°ΡΠΊΠ° Π±Π΅Π»ΠΎΠ³ΠΎ, ΡΠ΅ΡΠΎΠ³ΠΎ, ΡΠ΅ΡΠ½ΠΎΠ³ΠΎ ΠΈΠ»ΠΈ ΠΊΠΎΡΠΈΡΠ½Π΅Π²ΠΎΠ³ΠΎ ΡΠ²Π΅ΡΠ°. ΠΠ»ΠΈΠ½Π° Π½Π°ΠΏΡΠ°Π²Π»ΡΡΡΠΈΡ ΠΌΠΎΠΆΠ΅Ρ Π±ΡΡΡ ΡΠ°Π·Π»ΠΈΡΠ½Π°: ΠΎΡ 250 ΠΌΠΌ Π΄ΠΎ 600 ΠΌΠΌ Ρ ΡΠ°Π³ΠΎΠΌ 50 ΠΌΠΌ. ΠΠ½Π° ΡΠΏΠ΅ΡΠΈΠ°Π»ΡΠ½ΠΎ ΠΏΠΎΠ΄Π±ΠΈΡΠ°Π΅ΡΡΡ ΠΏΠΎΠ΄ ΡΠ°Π·ΠΌΠ΅Ρ ΡΡΠΈΠΊΠΎΠ².
ΠΠ΅Ρ, ΠΊΠΎΡΠΎΡΡΠΉ ΡΠ΄Π΅ΡΠΆΠΈΠ²Π°ΡΡ ΡΠΎΠ»ΠΈΠΊΠΎΠ²ΡΠ΅ Π½Π°ΠΏΡΠ°Π²Π»ΡΡΡΠΈΠ΅ Π² Π΄Π²ΠΈΠΆΠ΅Π½ΠΈΠΈ, ΡΠΎΡΡΠ°Π²Π»ΡΠ΅Ρ Π½Π΅ Π±ΠΎΠ»Π΅Π΅ 15 ΠΊΠ³. Π‘ΡΡΠ΅ΡΡΠ²Π΅Π½Π½ΡΠΌΠΈ ΠΌΠΈΠ½ΡΡΠ°ΠΌΠΈ ΡΡΠΎΠ³ΠΎ ΡΠΈΠΏΠ° Π½Π°ΠΏΡΠ°Π²Π»ΡΡΡΠΈΡ ΡΠ²Π»ΡΡΡΡΡ ΠΈΡ ΡΡΠΌΠ½ΠΎΡΡΡ ΠΏΡΠΈ ΠΏΠ΅ΡΠ΅ΠΌΠ΅ΡΠ΅Π½ΠΈΠΈ, Π½Π΅Π΄ΠΎΠ»Π³ΠΎΠ²Π΅ΡΠ½ΠΎΡΡΡ ΠΈ Π½Π΅ΠΏΠΎΠ»Π½ΠΎΠ΅ Π²ΡΠΊΠ°ΡΡΠ²Π°Π½ΠΈΠ΅ ΡΡΠΈΠΊΠΎΠ².
Π£ΡΡΠ°Π½ΠΎΠ²ΠΊΠ° ΡΠΎΠ»ΠΈΠΊΠΎΠ²ΡΡ Π½Π°ΠΏΡΠ°Π²Π»ΡΡΡΠΈΡ Π΄Π»Ρ ΡΡΠ΅Π±ΡΠ΅Ρ ΡΠΎΡΠ½ΠΎΠ³ΠΎ ΡΠ°ΡΡΠ΅ΡΠ°. ΠΡΠΈ Π½Π΅Π²Π΅ΡΠ½ΠΎΠΌ Π²ΡΡΠΈΡΠ»Π΅Π½ΠΈΠΈ ΡΡΠΎΠΊ ΡΠΊΡΠΏΠ»ΡΠ°ΡΠ°ΡΠΈΠΈ ΡΠΎΠ»ΠΈΠΊΠΎΠ² Π·Π½Π°ΡΠΈΡΠ΅Π»ΡΠ½ΠΎ ΡΠΌΠ΅Π½ΡΡΠ°Π΅ΡΡΡ, ΡΠ°ΠΊΠΆΠ΅ Π²Π΅ΡΠΎΡΡΠ½ΠΎ ΡΠ°Π½Π½Π΅Π΅ Π²ΠΎΠ·Π½ΠΈΠΊΠ½ΠΎΠ²Π΅Π½ΠΈΠ΅ ΠΏΡΠΎΠ±Π»Π΅ΠΌ Ρ Π΄Π²ΠΈΠΆΠ΅Π½ΠΈΠ΅ΠΌ ΡΡΠΈΠΊΠΎΠ².
Π΄Π»Ρ Π²ΡΠ΄Π²ΠΈΠΆΠ½ΡΡ ΡΡΠΈΠΊΠΎΠ²
ΠΡΠΎΠΈΠ·Π²ΠΎΠ΄ΡΡΡΡ ΠΈΠ· ΡΡΠ°ΠΌΠΏΠΎΠ²Π°Π½Π½ΠΎΠΉ ΡΡΠ°Π»ΠΈ Ρ Π°Π½ΠΎΠ΄ΠΈΡΠΎΠ²Π°Π½Π½ΡΠΌ ΠΏΠΎΠΊΡΡΡΠΈΠ΅ΠΌ. ΠΡ
ΠΊΠΎΠ½ΡΡΡΡΠΊΡΠΈΡ ΠΏΡΠΈΠ½ΡΠΈΠΏΠΈΠ°Π»ΡΠ½ΠΎ ΠΎΡΠ»ΠΈΡΠ°Π΅ΡΡΡ ΠΎΡ ΡΠΎΠ»ΠΈΠΊΠΎΠ²ΡΡ
Π½Π°ΠΏΡΠ°Π²Π»ΡΡΡΠΈΡ
. ΠΠ»Ρ ΡΠΊΠΎΠ»ΡΠΆΠ΅Π½ΠΈΡ ΡΡΠΈΠΊΠ° ΠΏΠΎ ΠΏΠΎΠ»ΠΎΠ·ΡΡΠΌ ΠΈΡΠΏΠΎΠ»ΡΠ·ΡΠ΅ΡΡΡ ΠΎΠ±ΠΎΠΉΠΌΠ° Ρ ΠΌΠ΅ΡΠ°Π»Π»ΠΈΡΠ΅ΡΠΊΠΈΠΌΠΈ ΡΠ°ΡΠΈΠΊΠ°ΠΌΠΈ, Π·Π°ΠΏΠΎΠ»Π½Π΅Π½Π½Π°Ρ Π²ΡΠ·ΠΊΠΎΠΉ ΡΠΌΠ°Π·ΠΊΠΎΠΉ.
ΠΡΠΎ Π΄Π°Π΅Ρ ΠΎΡΠ½ΠΎΡΠΈΡΠ΅Π»ΡΠ½ΠΎ Π±Π΅ΡΡΡΠΌΠ½ΡΡ ΡΠΊΡΠΏΠ»ΡΠ°ΡΠ°ΡΠΈΡ ΠΈ ΡΠ²Π΅Π»ΠΈΡΠΈΠ²Π°Π΅Ρ ΡΡΠΎΠΊ ΡΠ»ΡΠΆΠ±Ρ. Π‘ΡΡΠ΅ΡΡΠ²ΡΡΡ ΠΌΠΎΠ΄Π΅Π»ΠΈ, ΠΎΡΠ½Π°ΡΠ΅Π½Π½ΡΠ΅ Π²ΡΡΡΠΎΠ΅Π½Π½ΡΠΌΠΈ Π΄ΠΎΠ²ΠΎΠ΄ΡΠΈΠΊΠ°ΠΌΠΈ, ΠΊΠΎΡΠΎΡΡΠ΅ ΠΏΡΠ΅Π΄ΠΎΡΠ²ΡΠ°ΡΠ°ΡΡ ΡΡΠΌΠ½ΡΠΉ ΡΠ΄Π°Ρ ΡΡΠΈΠΊΠ° ΠΎ ΡΡΠΎΠΉΠΊΡ ΠΊΠΎΡΠΏΡΡΠ° ΠΏΡΠΈ ΡΠ΅Π·ΠΊΠΎΠΌ Π·Π°Ρ
Π»ΠΎΠΏΡΠ²Π°Π½ΠΈΠΈ. Π‘ΠΈΡΡΠ΅ΠΌΠ° ΠΈΠΌΠ΅Π΅Ρ Π΄Π²Π° ΠΌΠ΅ΡΠ°Π»Π»ΠΈΡΠ΅ΡΠΊΠΈΡ
ΡΠ»Π΅ΠΌΠ΅Π½ΡΠ°: ΠΎΠ΄ΠΈΠ½ ΠΊΡΠ΅ΠΏΠΈΡΡΡ ΠΊ Π²Π½ΡΡΡΠ΅Π½Π½Π΅ΠΉ ΡΡΠ΅Π½ΠΊΠ΅ ΠΈΠ·Π΄Π΅Π»ΠΈΡ, Π° Π΄ΡΡΠ³ΠΎΠΉ — ΠΊ ΡΡΠΈΠΊΡ. Π§ΡΠΎΠ±Ρ ΡΠ°Π·Π΄Π΅Π»ΠΈΡΡ ΡΡΠΈ Π΄Π²Π΅ ΡΠ°ΡΡΠΈ, Π½ΡΠΆΠ½ΠΎ ΠΈΡΠΏΠΎΠ»ΡΠ·ΠΎΠ²Π°ΡΡ ΡΠΈΠΊΡΠ°ΡΠΎΡ.
Π¨Π°ΡΠΈΠΊΠΎΠ²ΡΠ΅ Π½Π°ΠΏΡΠ°Π²Π»ΡΡΡΠΈΠ΅ Π±ΡΠ²Π°ΡΡ ΠΏΠΎΠ»Π½ΠΎΠ³ΠΎ ΠΈΠ»ΠΈ ΡΠ°ΡΡΠΈΡΠ½ΠΎΠ³ΠΎ Π²ΡΠΊΠ°ΡΡΠ²Π°Π½ΠΈΡ. ΠΠ°ΠΏΡΠ°Π²Π»ΡΡΡΠΈΠ΅ ΠΏΠΎΠ»Π½ΠΎΠ³ΠΎ Π²ΡΠ΄Π²ΠΈΠΆΠ΅Π½ΠΈΡ (ΠΈΠ»ΠΈ ΡΠ΅Π»Π΅ΡΠΊΠΎΠΏΠΈΡΠ΅ΡΠΊΠΈΠ΅) ΠΏΠΎΠ·Π²ΠΎΠ»ΡΡΡ Π²ΡΡΠ°ΡΠΈΡΡ ΡΡΠΈΠΊ Π·Π° Π³ΡΠ°Π½ΠΈΡΡ ΠΊΠΎΡΠΏΡΡΠ° ΠΌΠ΅Π±Π΅Π»ΠΈ, ΡΡΠΎ ΠΌΠ°ΠΊΡΠΈΠΌΠ°Π»ΡΠ½ΠΎ ΡΠ²Π΅Π»ΠΈΡΠΈΠ²Π°Π΅Ρ ΠΎΠ±Π·ΠΎΡ Π²Π½ΡΡΡΠ΅Π½Π½Π΅Π³ΠΎ ΠΏΡΠΎΡΡΡΠ°Π½ΡΡΠ²Π°. ΠΠ°ΠΏΡΠ°Π²Π»ΡΡΡΠΈΠ΅ Π½Π΅ΠΏΠΎΠ»Π½ΠΎΠ³ΠΎ Π²ΡΠ΄Π²ΠΈΠΆΠ΅Π½ΠΈΡ ΠΎΡΡΠ°Π²Π»ΡΡΡ Π½Π΅ΠΎΠ±ΠΎΠ·ΡΠΈΠΌΠΎΠΉ ΠΎΠ±Π»Π°ΡΡΡ ΠΎΠΊΠΎΠ»ΠΎ 50 ΠΌΠΌ ΠΎΡ Π·Π°Π΄Π½Π΅Π³ΠΎ ΡΠΎΡΡΠ° ΡΡΠΈΠΊΠ°. ΠΠ»ΠΈΠ½Π° Π½Π°ΠΏΡΠ°Π²Π»ΡΡΡΠΈΡ ΡΠΎΡΡΠ°Π²Π»ΡΠ΅Ρ ΠΎΡ 200 Π΄ΠΎ 600 ΠΌΠΌ Ρ ΡΠ°Π³ΠΎΠΌ Π² 50 ΠΌΠΌ. ΠΡΠ΅Π΄Π΅Π»ΡΠ½Π°Ρ Π½Π°Π³ΡΡΠ·ΠΊΠ° Π½Π°ΠΏΡΠ°Π²Π»ΡΡΡΠΈΡ Π²ΡΡΠΎΡΠΎΠΉ 35 ΠΌΠΌ — 30 ΠΊΠ³. Π’Π°ΠΊΠΆΠ΅ ΡΡΡΠ΅ΡΡΠ²ΡΡΡ ΡΡΠΈΠ»Π΅Π½Π½ΡΠ΅ Π½Π°ΠΏΡΠ°Π²Π»ΡΡΡΠΈΠ΅, ΠΈΡ Π²ΡΡΠΎΡΠ° ΡΠΎΡΡΠ°Π²Π»ΡΠ΅Ρ 45 ΠΌΠΌ, Π° ΠΏΡΠ΅Π΄Π΅Π»ΡΠ½Π°Ρ Π½Π°Π³ΡΡΠ·ΠΊΠ° — Π΄ΠΎ 45 ΠΊΠ³.
ΠΠ΅ΡΠ°Π±ΠΎΠΊΡΡ
ΠΡΠΎ ΡΠ°Π·Π½ΠΎΠ²ΠΈΠ΄Π½ΠΎΡΡΡ ΡΠΎΠ»ΠΈΠΊΠΎΠ²ΡΡ
Π½Π°ΠΏΡΠ°Π²Π»ΡΡΡΠΈΡ
.
Π‘ΡΠ°Π»ΡΠ½ΡΠ΅ ΠΏΠΎΠ»ΠΎΠ·ΡΡ ΡΡΠΈΡ
Π½Π°ΠΏΡΠ°Π²Π»ΡΡΡΠΈΡ
ΡΠ²Π΅Π»ΠΈΡΠ΅Π½Ρ Π΄ΠΎ Π²ΡΡΠΎΡΡ ΡΡΠΈΠΊΠ° ΠΈ ΠΏΠΎΠ»Π½ΠΎΡΡΡΡ Π·Π°ΠΌΠ΅Π½ΡΡΡ Π΅Π³ΠΎ Π΄Π΅ΡΠ΅Π²ΡΠ½Π½ΡΠ΅ Π±ΠΎΠΊΠΎΠ²ΡΠ΅ ΡΡΠ΅Π½ΠΊΠΈ. ΠΡΡΡΠ΄Π° ΠΈ Π½Π°Π·Π²Π°Π½ΠΈΠ΅ — ΠΌΠ΅ΡΠ°Π±ΠΎΠΊΡΡ ΠΈΠ»ΠΈ ΠΌΠ΅ΡΠ°Π»Π»Π±ΠΎΠΊΡΡ. Π ΠΎΠ»ΠΈΠΊΠΈ ΠΊΡΠ΅ΠΏΡΡΡΡ ΠΊ Π±ΠΎΠΊΠΎΠ²ΠΈΠ½Π°ΠΌ. ΠΡΡΠΎΡΠ° Π±ΠΎΠΊΠΎΠ²ΡΡ
ΡΡΠ΅Π½ΠΎΠΊ — ΠΎΡ 54 ΠΌΠΌ Π΄ΠΎ 150 ΠΌΠΌ. Π£Π²Π΅Π»ΠΈΡΠΈΡΡ Π²ΡΡΠΎΡΡ ΠΌΠΎΠΆΠ½ΠΎ ΡΠΏΠ΅ΡΠΈΠ°Π»ΡΠ½ΡΠΌΠΈ ΡΠ΅ΠΉΠ»ΠΈΠ½Π³Π°ΠΌΠΈ. ΠΠ½ΠΎ ΠΌΠ΅ΡΠ°Π±ΠΎΠΊΡΠ° Π΄Π΅Π»Π°ΡΡ ΠΈΠ· ΠΠ‘Π, ΠΎΠ³ΡΠ°Π½ΠΈΡΠΈΠ²Π°Ρ Π½Π°ΠΏΠΎΠ»Π½Π΅Π½ΠΈΠ΅ Π²Π΅ΡΠΎΠΌ Π΄ΠΎ 20 ΠΊΠ³. Π§Π΅ΠΌ ΠΊΠΎΡΠΎΡΠ΅ ΡΡΠΈΠΊ, ΡΠ΅ΠΌ Π±ΠΎΠ»ΡΡΠ°Ρ Π½Π°Π³ΡΡΠ·ΠΊΠ° Π΄ΠΎΠΏΡΡΡΠΈΠΌΠ°.
Π ΠΊΡΠ΅ΠΏΠ»Π΅Π½ΠΈΠΈ ΡΠ°ΡΠ°Π΄Π° ΠΊ ΠΌΠ΅ΡΠ°Π±ΠΎΠΊΡΡ ΠΏΡΠ΅Π΄ΡΡΠΌΠΎΡΡΠ΅Π½Π° Π²Π΅ΡΡΠΈΠΊΠ°Π»ΡΠ½Π°Ρ ΠΈ Π³ΠΎΡΠΈΠ·ΠΎΠ½ΡΠ°Π»ΡΠ½Π°Ρ ΡΠ΅Π³ΡΠ»ΠΈΡΠΎΠ²ΠΊΠ°, ΠΊΠΎΡΠΎΡΠ°Ρ ΠΏΠΎΠ·Π²ΠΎΠ»ΡΠ΅Ρ ΡΠΎΡΠ½ΠΎ Π²ΡΡΠΎΠ²Π½ΡΡΡ Π΅Π³ΠΎ ΠΏΠΎ ΠΎΡΠ½ΠΎΡΠ΅Π½ΠΈΡ ΠΊ ΠΊΠΎΡΠΏΡΡΡ. Π§Π°ΡΠ΅ Π²ΡΠ΅Π³ΠΎ ΠΌΠ΅ΡΠ°Π±ΠΎΠΊΡΡ Π½Π°Ρ ΠΎΠ΄ΡΡ ΠΏΡΠΈΠΌΠ΅Π½Π΅Π½ΠΈΠ΅ Π² ΠΈΠ·Π³ΠΎΡΠΎΠ²Π»Π΅Π½ΠΈΠΈ ΡΠ΅ΡΠΈΠΉΠ½ΡΡ ΠΊΡΡ ΠΎΠ½Ρ Π±ΡΠ΄ΠΆΠ΅ΡΠ½ΠΎΠΉ ΠΊΠ°ΡΠ΅Π³ΠΎΡΠΈΠΈ.
Π’Π°Π½Π΄Π΅ΠΌΡ
Π’Π°Π½Π΄Π΅ΠΌΡ — Π½Π°ΠΏΡΠ°Π²Π»ΡΡΡΠΈΠ΅ ΡΠΊΡΡΡΠΎΠ³ΠΎ ΠΌΠΎΠ½ΡΠ°ΠΆΠ°. ΠΡΠ²Π°ΡΡ Π΄Π²ΡΡ Π²ΠΈΠ΄ΠΎΠ²: ΠΏΠΎΠ»Π½ΠΎΠ³ΠΎ ΠΈ ΡΠ°ΡΡΠΈΡΠ½ΠΎΠ³ΠΎ Π²ΡΠ΄Π²ΠΈΠΆΠ΅Π½ΠΈΡ. Π―ΡΠΈΠΊ Π½Π° ΡΠ°ΠΊΠΈΠ΅ Π½Π°ΠΏΡΠ°Π²Π»ΡΡΡΠΈΠ΅ ΠΊΡΠ΅ΠΏΠΈΡΡΡ ΡΠ²Π΅ΡΡ Ρ, ΠΏΠΎΠ»Π½ΠΎΡΡΡΡ ΡΠΊΡΡΠ²Π°Ρ ΠΈΡ ΠΏΠΎΠ΄ Π±ΠΎΠΊΠΎΠ²ΠΈΠ½Π°ΠΌΠΈ ΠΈ Π΄Π½ΠΎΠΌ.
ΠΡΠ³ΠΊΠΎΠ΅ ΡΠΊΠΎΠ»ΡΠΆΠ΅Π½ΠΈΠ΅ (Π΄Π°ΠΆΠ΅ ΠΏΡΠΈ Π½Π°Π³ΡΡΠ·ΠΊΠ΅ Π΄ΠΎ 50 ΠΊΠ³) ΠΎΠ±Π΅ΡΠΏΠ΅ΡΠΈΠ²Π°Π΅ΡΡΡ ΠΏΠΎ ΠΏΡΠΈΠ½ΡΠΈΠΏΡ ΠΏΠΎΠ΄ΡΠΈΠΏΠ½ΠΈΠΊΠ°: Π±Π»ΠΎΠΊΠΎΠΌ ΡΡΠ°Π»ΡΠ½ΡΡ
ΡΠ°ΡΠΈΠΊΠΎΠ², ΡΠ°ΡΠΏΠΎΠ»ΠΎΠΆΠ΅Π½Π½ΡΡ
Ρ ΡΠ΅ΡΡΡΠ΅Ρ
ΡΡΠΎΡΠΎΠ½ ΠΏΠΎΠ»ΠΎΠ·ΡΠ΅Π² (ΡΠΈΡΡΠ΅ΠΌΠ° ΠΊΠ²Π°Π΄ΡΠΎ), ΠΈΠ»ΠΈ ΡΠΈΠ»ΠΈΠ½Π΄ΡΠΎΠ² — ΠΈΠ³ΠΎΠ»ΠΎΠΊ.
ΠΡΠ΅ΠΏΠ»Π΅Π½ΠΈΠ΅ ΠΏΠΎΠ·Π²ΠΎΠ»ΡΠ΅Ρ ΠΎΡΡΠ΅Π³ΡΠ»ΠΈΡΠΎΠ²Π°ΡΡ ΠΏΠΎΠ»ΠΎΠΆΠ΅Π½ΠΈΠ΅ ΡΡΠΈΠΊΠ° ΠΎΡΠ½ΠΎΡΠΈΡΠ΅Π»ΡΠ½ΠΎ ΠΊΠΎΡΠΏΡΡΠ° ΠΈ ΡΠ½ΡΡΡ ΡΡΠΈΠΊ Ρ Π½Π°ΠΏΡΠ°Π²Π»ΡΡΡΠΈΡ
Π±Π΅Π· ΠΈΠ½ΡΡΡΡΠΌΠ΅Π½ΡΠΎΠ². Π’Π°Π½Π΄Π΅ΠΌΡ Π²ΡΠΏΡΡΠΊΠ°ΡΡΡΡ Π² Π½Π΅ΡΠΊΠΎΠ»ΡΠΊΠΈΡ
Π²Π°ΡΠΈΠ°Π½ΡΠ°Ρ
:
- Ρ Π΄ΠΎΠ²ΠΎΠ΄ΡΠΈΠΊΠΎΠΌ — ΠΎΠ±ΡΡΠ½ΠΎΠ΅ ΠΎΡΠΊΡΡΠ²Π°Π½ΠΈΠ΅ Π·Π° ΡΡΡΠΊΡ ΠΈ ΠΏΠ»Π°Π²Π½ΠΎΠ΅ Π·Π°ΠΊΡΡΠ²Π°Π½ΠΈΠ΅;
- Ρ ΠΌΠ΅Ρ Π°Π½ΠΈΠ·ΠΌΠΎΠΌ tip on ΠΈΠ»ΠΈ push to open — ΠΎΡΠΊΡΡΠ²Π°Π΅ΡΡΡ ΠΏΡΠΈΠΊΠΎΡΠ½ΠΎΠ²Π΅Π½ΠΈΠ΅ΠΌ ΠΊ ΡΠ°ΡΠ°Π΄Ρ;
- Ρ ΡΠ»Π΅ΠΊΡΡΠΎΠΌΠ΅Ρ Π°Π½ΠΈΡΠ΅ΡΠΊΠΈΠΌ ΠΎΡΠΊΡΡΠ²Π°Π½ΠΈΠ΅ΠΌ.
Π’Π°Π½Π΄Π΅ΠΌΠ±ΠΎΠΊΡΡ
Π’Π°Π½Π΄Π΅ΠΌΠ±ΠΎΠΊΡ — ΡΡΠΈΠΊ, ΡΠΎΡΡΠΎΡΡΠΈΠΉ ΠΈΠ· ΠΌΠ΅ΡΠ°Π»Π»ΠΈΡΠ΅ΡΠΊΠΈΡ Π±ΠΎΠΊΠΎΠ²ΠΈΠ½ Ρ Π΄Π²ΠΎΠΉΠ½ΡΠΌΠΈ ΡΡΠ΅Π½ΠΊΠ°ΠΌΠΈ, Π΄Π½ΠΎ ΠΎΠ±ΡΡΠ½ΠΎ ΠΈΠ· ΠΠΠ‘Π, Π·Π°Π΄Π½Ρ ΡΡΠ΅Π½ΠΊΠ° Π²ΡΠΏΠΎΠ»Π½Π΅Π½Π° ΠΈΠ· ΠΌΠ΅ΡΠ°Π»Π»Π° ΠΈΠ»ΠΈ ΠΠΠ‘Π ΠΈ Π½Π°ΠΏΡΠ°Π²Π»ΡΡΡΠΈΡ ΡΠΊΡΡΡΠΎΠ³ΠΎ ΠΌΠΎΠ½ΡΠ°ΠΆΠ°. ΠΡΠΎ ΡΠ΅ ΠΆΠ΅ ΡΠ°Π½Π΄Π΅ΠΌΡ, ΡΠΊΠΎΠΌΠΏΠ»Π΅ΠΊΡΠΎΠ²Π°Π½Π½ΡΠ΅ Π΄Π²ΠΎΠΉΠ½ΡΠΌΠΈ Π±ΠΎΠΊΠΎΠ²ΡΠΌΠΈ ΡΡΠ΅Π½ΠΊΠ°ΠΌΠΈ. ΠΠΎΠ·ΠΌΠΎΠΆΠ½ΠΎ Π΄ΠΎΠΏΠΎΠ»Π½ΠΈΡΠ΅Π»ΡΠ½ΠΎΠ΅ Π½Π°ΡΠ°ΡΠΈΠ²Π°Π½ΠΈΠ΅ Π²ΡΡΠΎΡΡ ΡΡΠΈΠΊΠ° ΡΠ΅ΠΉΠ»ΠΈΠ½Π³Π°ΠΌΠΈ ΠΈ ΡΠΏΠ΅ΡΠΈΠ°Π»ΡΠ½ΡΠΌ ΠΏΡΠΎΡΠΈΠ»Π΅ΠΌ. ΠΠ΅ΠΊΠΎΡΠΎΡΡΠ΅ ΠΏΡΠΎΠΈΠ·Π²ΠΎΠ΄ΠΈΡΠ΅Π»ΠΈ Π΄Π΅Π»Π°ΡΡ Π½Π°ΡΠ°ΡΠΈΠ²Π°Π½ΠΈΠ΅ ΠΈΠ· ΡΡΠ΅ΠΊΠ»ΡΠ½Π½ΡΡ ΠΏΠ»Π°Π½ΠΎΠΊ.
ΠΠ»Ρ ΠΎΡΠ³Π°Π½ΠΈΠ·Π°ΡΠΈΠΈ Π²Π½ΡΡΡΠ΅Π½Π½Π΅Π³ΠΎ ΠΏΡΠΎΡΡΡΠ°Π½ΡΡΠ²Π° ΡΡΠΈΠΊΠ° ΠΏΡΠ΅Π΄ΡΡΠΌΠΎΡΡΠ΅Π½Ρ Π΄ΠΎΠΏΠΎΠ»Π½ΠΈΡΠ΅Π»ΡΠ½ΡΠ΅ ΠΎΠΏΡΠΈΠΈ: ΠΏΠ΅ΡΠ΅Π΄Π²ΠΈΠΆΠ½ΡΠ΅ ΡΠ°Π·Π΄Π΅Π»ΠΈΡΠ΅Π»ΠΈ, ΠΊΠΎΠ½ΡΠ΅ΠΉΠ½Π΅ΡΡ ΠΈ ΠΏΠΎΠ΄ΡΡΠ°Π²ΠΊΠΈ Π΄Π»Ρ ΡΡΠΎΠ»ΠΎΠ²ΡΡ ΠΏΡΠΈΠ±ΠΎΡΠΎΠ² ΠΈ Π±Π°Π½ΠΎΡΠ΅ΠΊ Π΄Π»Ρ ΡΠΏΠ΅ΡΠΈΠΉ.
Π―ΡΠΈΠΊΠΈ Π»Π΅Π³ΡΠ°Π±ΠΎΠΊΡ
Π‘Π°ΠΌΡΠ΅ ΡΠΎΠ²ΡΠ΅ΠΌΠ΅Π½Π½ΡΠ΅ ΠΈ Π΄ΠΎΡΠΎΠ³ΠΈΠ΅ ΡΠΈΡΡΠ΅ΠΌΡ Π½Π°ΠΏΡΠ°Π²Π»ΡΡΡΠΈΡ
Π΄Π»Ρ Π²ΡΠ΄Π²ΠΈΠΆΠ½ΡΡ
ΡΡΠΈΠΊΠΎΠ², Π·Π°Π½ΠΈΠΌΠ°ΡΡΠΈΠ΅ Π²ΡΡΠΎΠΊΡΡ ΠΏΠΎΠ·ΠΈΡΠΈΡ Π² ΠΏΠ΅ΡΠ΅ΡΠ½Π΅ Π²ΡΠ΅Ρ
ΠΌΠ΅Π±Π΅Π»ΡΠ½ΡΡ
ΠΊΠΎΠΌΠΏΠ»Π΅ΠΊΡΡΡΡΠΈΡ
.
Π£ΡΠΈΠ»Π΅Π½Π½Π°Ρ ΠΊΠΎΠ½ΡΡΡΡΠΊΡΠΈΡ ΡΡΠ°Π±ΠΈΠ»ΡΠ½ΠΎ Π²ΡΠ΄Π΅ΡΠΆΠΈΠ²Π°Π΅Ρ Π½Π°Π³ΡΡΠ·ΠΊΡ ΡΠΆΠ΅ Π΄ΠΎ 60 ΠΊΠ³. ΠΠ°ΡΠΎΠ²Π°Ρ ΠΏΠΎΠ²Π΅ΡΡ
Π½ΠΎΡΡΡ Π½Π΅ΡΠΆΠ°Π²Π΅ΡΡΠ΅ΠΉ ΡΡΠ°Π»ΠΈ ΠΏΠΎΠ΄ΡΠ΅ΡΠΊΠΈΠ²Π°Π΅Ρ ΡΡΡΠΎΠ³ΠΎΡΡΡ ΠΈ ΠΈΠ·ΡΡΠΊΠ°Π½Π½ΠΎΡΡΡ ΡΡΠΈΠ»ΡΠ½ΠΎΠ³ΠΎ Π΄ΠΈΠ·Π°ΠΉΠ½Π° Π»Π΅Π³ΡΠ°Π±ΠΎΠΊΡΠ°.
ΠΠΎΠ½ΡΠ°ΠΆ ΡΡΠΎΠ³ΠΎ ΡΠΈΠΏΠ° ΡΠΈΡΡΠ΅ΠΌ ΠΏΡΠ΅Π΄ΠΏΠΎΠ»Π°Π³Π°Π΅Ρ ΡΠ²Π΅Π»ΠΈΡΠ½ΡΡ ΡΠΎΡΠ½ΠΎΡΡΡ ΡΠ²Π΅ΡΠ»Π΅Π½ΠΈΡ ΡΠ°ΡΠ°Π΄ΠΎΠ² ΠΈ Π±ΠΎΠΊΠΎΠ²ΡΡ ΡΡΠ΅Π½ΠΎΠΊ, Π°Π±ΡΠΎΠ»ΡΡΠ½ΠΎ Π²ΡΠ²Π΅ΡΠ΅Π½Π½ΡΡ ΡΠ°ΡΡΠ΅ΡΠΎΠ² ΠΏΡΠΈ ΠΈΠ·Π³ΠΎΡΠΎΠ²Π»Π΅Π½ΠΈΠΈ Π΄Π΅ΡΠ°Π»Π΅ΠΉ ΠΈΠ· ΠΠ‘Π. Π’Π°ΠΊΠΆΠ΅ ΠΎΠ±ΡΠ·Π°ΡΠ΅Π»ΡΠ½ΠΎ ΠΏΡΠ°Π²ΠΈΠ»ΡΠ½ΠΎ ΠΈ Π°ΠΊΠΊΡΡΠ°ΡΠ½ΠΎ ΠΏΡΠΎΠ²Π΅ΡΡΠΈ ΡΡΠ΅Π·Π΅ΡΠΎΠ²ΠΊΡ Π΄Π½Π°.
ΠΡΠΎΠΈΠ·Π²ΠΎΠ΄ΠΈΡΠ΅Π»ΠΈ ΠΌΠ΅Π±Π΅Π»ΡΠ½ΠΎΠΉ ΡΡΡΠ½ΠΈΡΡΡΡ ΠΏΡΠ΅Π΄Π»Π°Π³Π°ΡΡ ΠΈ Π΄ΡΡΠ³ΠΈΠ΅ ΡΠΏΠΎΡΠΎΠ±Ρ ΠΏΡΠΈΠΌΠ΅Π½Π΅Π½ΠΈΡ Π½Π°ΠΏΡΠ°Π²Π»ΡΡΡΠΈΡ . ΠΠ°ΠΏΡΠΈΠΌΠ΅Ρ, ΠΊΡΠ΅ΠΏΠ»Π΅Π½ΠΈΠ΅ Π²ΡΠ΄Π²ΠΈΠΆΠ½ΡΡ ΠΊΠΎΡΠ·ΠΈΠ½, ΡΠ΅ΡΠΎΠΊ, ΠΊΠΎΠ½ΡΠ΅ΠΉΠ½Π΅ΡΠΎΠ² ΡΠ°Π·Π»ΠΈΡΠ½ΠΎΠ³ΠΎ Π½Π°Π·Π½Π°ΡΠ΅Π½ΠΈΡ.
ΠΠ±ΡΠΈΠ΅ ΡΠ΅ΠΊΠΎΠΌΠ΅Π½Π΄Π°ΡΠΈΠΈ ΠΏΠΎ ΡΡΡΠ°Π½ΠΎΠ²ΠΊΠ΅ Π½Π°ΠΏΡΠ°Π²Π»ΡΡΡΠΈΡ Π΄Π»Ρ Π²ΡΠ΄Π²ΠΈΠΆΠ½ΡΡ ΡΡΠΈΠΊΠΎΠ²
ΠΠ°ΠΊ ΡΡΡΠ°Π½ΠΎΠ²ΠΈΡΡ Π²ΡΠ΅ ΠΏΡΠ°Π²ΠΈΠ»ΡΠ½ΠΎ? Π Π°ΡΡΠ΅Ρ Π΄Π΅ΡΠ°Π»Π΅ΠΉ ΠΏΡΠΈ ΡΡΡΠ°Π½ΠΎΠ²ΠΊΠ΅ Π½Π°ΠΏΡΠ°Π²Π»ΡΡΡΠΈΡ Π΄Π»Ρ Π²ΡΠ΄Π²ΠΈΠΆΠ½ΡΡ ΡΡΠΈΠΊΠΎΠ² ΠΌΠΎΠΆΠ½ΠΎ ΠΏΡΠΎΠΈΠ·Π²Π΅ΡΡΠΈ ΠΏΠΎ ΡΠΎΡΠΌΡΠ»Π°ΠΌ, ΠΊΠΎΡΠΎΡΡΠ΅ ΠΏΡΠΎΠΈΠ·Π²ΠΎΠ΄ΠΈΡΠ΅Π»ΠΈ ΠΏΡΠ΅Π΄ΠΎΡΡΠ°Π²Π»ΡΡΡ Π΄Π»Ρ ΡΠ²ΠΎΠΈΡ ΠΈΠ·Π΄Π΅Π»ΠΈΠΉ. ΠΠ±ΡΡΠ½ΠΎ Π²ΡΡ Π½Π΅ΠΎΠ±Ρ ΠΎΠ΄ΠΈΠΌΠ°Ρ ΠΈΠ½ΡΠΎΡΠΌΠ°ΡΠΈΡ ΡΠ°ΠΊΠΆΠ΅ ΡΠΎΠ΄Π΅ΡΠΆΠΈΡΡΡ Π² ΠΈΠ½ΡΡΡΡΠΊΡΠΈΠΈ.
ΠΠ°Π»ΠΎΠ³ΠΎΠΌ ΡΡΠΏΠ΅ΡΠ½ΠΎΠΉ ΡΡΡΠ°Π½ΠΎΠ²ΠΊΠΈ Π½Π°ΠΏΡΠ°Π²Π»ΡΡΡΠΈΡ
Π΄Π»Ρ Π²ΡΠ΄Π²ΠΈΠΆΠ½ΡΡ
ΡΡΠΈΠΊΠΎΠ² ΡΠ²Π»ΡΠ΅ΡΡΡ ΡΠΎΡΠ½Π°Ρ ΡΠ°Π·ΠΌΠ΅ΡΠΊΠ°. ΠΡΠ΅ Π½Π°ΠΏΡΠ°Π²Π»ΡΡΡΠΈΠ΅ Π΄ΠΎΠ»ΠΆΠ½Ρ Π±ΡΡΡ ΡΡΡΠ°Π½ΠΎΠ²Π»Π΅Π½Ρ Π½Π° ΠΎΠ΄Π½ΠΎΠΌ ΡΡΠΎΠ²Π½Π΅ ΠΈ ΡΡΡΠΎΠ³ΠΎ ΠΏΠ°ΡΠ°Π»Π»Π΅Π»ΡΠ½ΠΎ Π΄ΡΡΠ³ Π΄ΡΡΠ³Ρ.
Π£Π΄ΠΎΠ±Π½Π΅Π΅ Π²ΡΠ΅Π³ΠΎ Π΄Π΅Π»Π°ΡΡ ΡΠ°Π·ΠΌΠ΅ΡΠΊΡ Π΄ΠΎ ΡΠ±ΠΎΡΠΊΠΈ ΠΈΠ·Π΄Π΅Π»ΠΈΡ Π½Π° ΡΠΎΠ²Π½ΠΎΠΉ Π³ΠΎΡΠΈΠ·ΠΎΠ½ΡΠ°Π»ΡΠ½ΠΎΠΉ ΠΏΠΎΠ²Π΅ΡΡ
Π½ΠΎΡΡΠΈ ΠΏΡΠΈ Π΄ΠΎΡΡΠ°ΡΠΎΡΠ½ΠΎΠΌ ΠΎΡΠ²Π΅ΡΠ΅Π½ΠΈΠΈ.
Π‘ΡΡΠ΅ΡΡΠ²ΡΠ΅Ρ Π΄Π²Π° ΡΠΏΠΎΡΠΎΠ±Π° ΡΡΡΠ°Π½ΠΎΠ²ΠΊΠΈ ΡΠ°ΡΠ°Π΄Π° ΡΡΠΈΠΊΠ°: Π½Π°ΡΡΠΆΠ½ΡΠΉ ΠΈ Π²Π½ΡΡΡΠ΅Π½Π½ΠΈΠΉ. ΠΡΠΈ Π½Π°ΡΡΠΆΠ½ΠΎΠΌ ΡΠΏΠΎΡΠΎΠ±Π΅ ΡΡΡΠ°Π½ΠΎΠ²ΠΊΠΈ ΡΠ°ΡΠ°Π΄ Π·Π°ΠΊΡΡΠ²Π°Π΅Ρ ΡΠΎΠ±ΠΎΠΉ ΡΠΎΡΠ΅Ρ ΠΊΠΎΡΠΏΡΡΠ°. Π’ΠΎΠ³Π΄Π° Π½Π°ΠΏΡΠ°Π²Π»ΡΡΡΡΡ Π½ΡΠΆΠ½ΠΎ ΠΊΡΠ΅ΠΏΠΈΡΡ Π²ΠΏΠ»ΠΎΡΠ½ΡΡ ΠΊ Π²Π½Π΅ΡΠ½Π΅ΠΌΡ ΡΠΎΡΡΡ ΡΡΠΎΠΉΠΊΠΈ ΠΈΠ·Π΄Π΅Π»ΠΈΡ. ΠΡΠΈ Π²Π½ΡΡΡΠ΅Π½Π½Π΅ΠΌ ΡΠΏΠΎΡΠΎΠ±Π΅ ΡΠΎΡΠ΅Ρ ΡΡΠΎΠΉΠΊΠΈ ΠΈΠ·Π΄Π΅Π»ΠΈΡ Π½Π°Ρ ΠΎΠ΄ΠΈΡΡΡ Π² ΠΎΠ΄Π½ΠΎΠΉ ΠΏΠ»ΠΎΡΠΊΠΎΡΡΠΈ Ρ ΡΠ°ΡΠ°Π΄ΠΎΠΌ. ΠΠ°ΠΏΡΠ°Π²Π»ΡΡΡΡΡ ΠΏΡΠΈ ΠΊΡΠ΅ΠΏΠ»Π΅Π½ΠΈΠΈ Π½Π΅ΠΎΠ±Ρ ΠΎΠ΄ΠΈΠΌΠΎ ΠΎΡΠΎΠ΄Π²ΠΈΠ½ΡΡΡ Π²Π½ΡΡΡΡ ΠΎΡ Π²ΠΈΠ΄ΠΈΠΌΠΎΠ³ΠΎ ΡΠΎΡΡΠ° Π½Π° ΡΠΎΠ»ΡΠΈΠ½Ρ ΡΠ°ΡΠ°Π΄Π°.
ΠΠ½ΡΡΡΡΠΊΡΠΈΡ ΠΏΠΎ ΡΡΡΠ°Π½ΠΎΠ²ΠΊΠ΅ ΡΠΎΠ»ΠΈΠΊΠΎΠ²ΡΡ Π½Π°ΠΏΡΠ°Π²Π»ΡΡΡΠΈΡ Π΄Π»Ρ Π²ΡΠ΄Π²ΠΈΠΆΠ½ΡΡ ΡΡΠΈΠΊΠΎΠ²
Π’Π΅ΠΏΠ΅ΡΡ ΠΏΠΎΠ³ΠΎΠ²ΠΎΡΠΈΠΌ ΠΎΠ± ΡΡΡΠ°Π½ΠΎΠ²ΠΊΠ΅ ΡΠΎΠ»ΠΈΠΊΠΎΠ²ΡΡ Π½Π°ΠΏΡΠ°Π²Π»ΡΡΡΠΈΡ . ΠΡΠΈ ΡΡΡΠ°Π½ΠΎΠ²ΠΊΠ΅ ΡΠΎΠ»ΠΈΠΊΠΎΠ²ΡΡ Π½Π°ΠΏΡΠ°Π²Π»ΡΡΡΠΈΡ Π΄Π»Ρ Π²ΡΠ΄Π²ΠΈΠΆΠ½ΡΡ ΡΡΠΈΠΊΠΎΠ² ΠΊΠΎΠΌΠΏΠ»Π΅ΠΊΡ Π½ΡΠΆΠ½ΠΎ ΡΠ°Π·Π΄Π΅Π»ΠΈΡΡ Π½Π° ΠΏΡΠ°Π²ΡΡ ΠΈ Π»Π΅Π²ΡΡ ΡΡΠΎΡΠΎΠ½Ρ, Π° ΠΏΠΎΡΠΎΠΌ Π½Π° Π²Π½ΡΡΡΠ΅Π½Π½ΠΈΠ΅ ΠΈ Π½Π°ΡΡΠΆΠ½ΡΠ΅ ΡΠ°ΡΡΠΈ. ΠΠ΅Π²Π°Ρ Π½Π°ΡΡΠΆΠ½Π°Ρ Π΄Π΅ΡΠ°Π»Ρ ΠΈΠΌΠ΅Π΅Ρ Π-ΠΎΠ±ΡΠ°Π·Π½ΡΠΉ ΠΏΡΠΎΡΠΈΠ»Ρ, ΠΏΡΠ°Π²Π°Ρ Π½Π°ΡΡΠΆΠ½Π°Ρ — G-ΠΎΠ±ΡΠ°Π·Π½ΡΠΉ, Π²Π½ΡΡΡΠ΅Π½Π½ΠΈΠ΅ — Π-ΠΎΠ±ΡΠ°Π·Π½ΡΠΉ.
ΠΠ° Π²ΡΠ΅Ρ
ΡΠ°ΡΡΡΡ
Π½Π°ΠΏΡΠ°Π²Π»ΡΡΡΠΈΡ
ΠΈΠΌΠ΅ΡΡΡΡ ΠΎΡΠ²Π΅ΡΡΡΠΈΡ Π΄Π»Ρ ΠΈΡ
ΡΠΈΠΊΡΠ°ΡΠΈΠΈ ΠΈ ΡΠ΅Π³ΡΠ»ΠΈΡΠΎΠ²ΠΊΠΈ Π½Π° Π΄Π΅ΡΠ°Π»ΡΡ
ΠΏΡΠΈ ΠΏΠΎΠΌΠΎΡΠΈ ΡΠ°ΠΌΠΎΡΠ΅Π·ΠΎΠ².
ΠΠΎ Π»ΠΈΠ½ΠΈΡΠΌ ΡΠ°Π·ΠΌΠ΅ΡΠΊΠΈ Π½Π° ΡΡΠΎΠΉΠΊΠΈ ΠΊΠΎΡΠΏΡΡΠ° ΠΈΠ·Π΄Π΅Π»ΠΈΡ ΠΏΡΠΈΠΊΡΡΡΠΈΠ²Π°ΡΡΡΡ ΡΠΎΠΎΡΠ²Π΅ΡΡΡΠ²ΡΡΡΠΈΠ΅ ΡΠ°ΡΡΠΈ Π½Π°ΠΏΡΠ°Π²Π»ΡΡΡΠΈΡ
. ΠΡΠΆΠ½ΠΎ ΡΠ΄Π΅Π»Π°ΡΡ ΡΠ°ΠΊ, ΡΡΠΎΠ±Ρ ΡΠΎΠ»ΠΈΠΊΠΈ Π½Π° Π½ΠΈΡ
Π½Π°Ρ
ΠΎΠ΄ΠΈΠ»ΠΈΡΡ Π±Π»ΠΈΠΆΠ΅ ΠΊ Π»ΠΈΡΠ΅Π²ΠΎΠΌΡ ΡΠΎΡΡΡ Π΄Π΅ΡΠ°Π»ΠΈ. Π ΡΠΆΠ΅ ΡΠΎΠ±ΡΠ°Π½Π½ΠΎΠΌΡ ΡΡΠΈΠΊΡ ΠΊΡΠ΅ΠΏΡΡΡΡ Π-ΠΎΠ±ΡΠ°Π·Π½ΡΠ΅ Π΄Π΅ΡΠ°Π»ΠΈ Π½Π°ΠΏΡΠ°Π²Π»ΡΡΡΠΈΡ
. ΠΡΠΈ ΡΡΠΎΠΌ ΡΠΎΠ»ΠΈΠΊΠΈ Π΄ΠΎΠ»ΠΆΠ½Ρ Π±ΡΡΡ ΡΠ°ΡΠΏΠΎΠ»ΠΎΠΆΠ΅Π½Ρ Ρ Π·Π°Π΄Π½Π΅Π³ΠΎ ΡΠΎΡΡΠ° ΡΡΠΈΠΊΠ°.
Π‘ΠΎΠ±ΠΈΡΠ°Π΅ΡΡΡ ΠΈΠ·Π΄Π΅Π»ΠΈΠ΅, Π²ΡΡΠ°Π²Π»ΡΡΡΡΡ ΡΡΠΈΠΊΠΈ, Π½Π°Π²Π΅ΡΠΈΠ²Π°ΡΡΡΡ ΡΠ°ΡΠ°Π΄Ρ ΠΈ ΡΡΡΠΊΠΈ. Π£ΡΡΠ°Π½ΠΎΠ²ΠΊΠ° Π·Π°Π²Π΅ΡΡΠ°Π΅ΡΡΡ.
ΠΠ½ΡΡΡΡΠΊΡΠΈΡ ΠΏΠΎ ΡΡΡΠ°Π½ΠΎΠ²ΠΊΠ΅ ΡΠ°ΡΠΈΠΊΠΎΠ²ΡΡ Π½Π°ΠΏΡΠ°Π²Π»ΡΡΡΠΈΡ
ΠΡΠΈ ΡΡΡΠ°Π½ΠΎΠ²ΠΊΠ΅ ΡΠ°ΡΠΈΠΊΠΎΠ²ΡΡ Π½Π°ΠΏΡΠ°Π²Π»ΡΡΡΠΈΡ Π΄Π»Ρ Π²ΡΠ΄Π²ΠΈΠΆΠ½ΡΡ ΡΡΠΈΠΊΠΎΠ² Π½ΡΠΆΠ½ΠΎ ΠΎΡΠ΄Π΅Π»ΠΈΡΡ Π²Π½ΡΡΡΠ΅Π½Π½ΡΡ ΡΠ°ΡΡΡ Π½Π°ΠΏΡΠ°Π²Π»ΡΡΡΠ΅ΠΉ ΠΎΡ Π²Π½Π΅ΡΠ½Π΅ΠΉ. ΠΠ»Ρ ΡΡΠΎΠ³ΠΎ Π½ΡΠΆΠ½ΠΎ Π½Π°ΠΉΡΠΈ Ρ Π²Π½ΡΡΡΠ΅Π½Π½Π΅ΠΉ ΡΡΠΎΡΠΎΠ½Ρ Π½Π°ΠΏΡΠ°Π²Π»ΡΡΡΠ΅ΠΉ ΠΏΠ»Π°ΡΡΠΌΠ°ΡΡΠΎΠ²ΡΠΉ ΡΠ·ΡΡΠΎΠΊ ΠΈ Π²ΡΡΡΠ½ΡΡΡ ΡΠ·ΠΊΡΡ ΡΠ°ΡΡΡ.
ΠΠΎ ΠΏΡΠ΅Π΄Π²Π°ΡΠΈΡΠ΅Π»ΡΠ½ΠΎΠΉ ΡΠ°Π·ΠΌΠ΅ΡΠΊΠ΅ Π½Π΅ΠΎΠ±Ρ ΠΎΠ΄ΠΈΠΌΠΎ ΠΏΡΠΈΠΊΡΡΡΠΈΡΡ Π²Π½Π΅ΡΠ½ΡΡ Π΄Π΅ΡΠ°Π»Ρ Π½Π°ΠΏΡΠ°Π²Π»ΡΡΡΠ΅ΠΉ ΠΊ ΡΡΠΎΠΉΠΊΠ΅, Π° Π²Π½ΡΡΡΠ΅Π½Π½ΡΡ — ΠΊ Π±ΠΎΠΊΠΎΠ²ΠΎΠΉ ΡΡΠ΅Π½ΠΊΠ΅ ΡΡΠΈΠΊΠ°. Π‘ΠΎΠ±ΡΠ°ΡΡ ΠΈΠ·Π΄Π΅Π»ΠΈΠ΅, Π²ΡΡΠ°Π²ΠΈΡΡ ΡΡΠΈΠΊΠΈ, Π½Π°Π²Π΅ΡΠΈΡΡ ΡΠ°ΡΠ°Π΄Ρ. Π£ΡΡΠ°Π½ΠΎΠ²ΠΊΠ° Π΄Π»Ρ Π²ΡΠ΄Π²ΠΈΠΆΠ½ΡΡ ΡΡΠΈΠΊΠΎΠ² Π·Π°ΠΊΠΎΠ½ΡΠ΅Π½Π°.
Π§ΡΠΎ Π½Π°ΡΡΠ΅Ρ ΡΡΠΈΠΊΠΎΠ² Ρ Π΄ΠΎΠ²ΠΎΠ΄ΡΠΈΠΊΠΎΠΌ? Π£ΡΡΠ°Π½ΠΎΠ²ΠΊΠ° Π½Π°ΠΏΡΠ°Π²Π»ΡΡΡΠΈΡ
Π΄Π»Ρ Π²ΡΠ΄Π²ΠΈΠΆΠ½ΡΡ
ΡΡΠΈΠΊΠΎΠ² Ρ Π΄ΠΎΠ²ΠΎΠ΄ΡΠΈΠΊΠΎΠΌ Π²ΡΠΏΠΎΠ»Π½ΡΠ΅ΡΡΡ Π°Π½Π°Π»ΠΎΠ³ΠΈΡΠ½ΠΎ.
ΠΠ΄Π΅ΡΡ Π²ΡΠ΅ Π΄ΠΎΡΡΠ°ΡΠΎΡΠ½ΠΎ ΠΏΡΠΎΡΡΠΎ. Π£ΡΡΠ°Π½ΠΎΠ²ΠΊΠ° ΡΠ°ΡΠΈΠΊΠΎΠ²ΡΡ
Π½Π°ΠΏΡΠ°Π²Π»ΡΡΡΠΈΡ
«ΠΠΎΡΡΠ΄» Π΄Π»Ρ Π²ΡΠ΄Π²ΠΈΠΆΠ½ΡΡ
ΡΡΠΈΠΊΠΎΠ² ΠΈΠ»ΠΈ ΡΠΈΡΡΠ΅ΠΌ Π΄ΡΡΠ³ΠΈΡ
ΠΏΡΠΎΠΈΠ·Π²ΠΎΠ΄ΠΈΡΠ΅Π»Π΅ΠΉ ΠΏΡΠΎΠΈΡΡ
ΠΎΠ΄ΠΈΡ ΠΈΠ΄Π΅Π½ΡΠΈΡΠ½ΡΠΌ ΠΎΠ±ΡΠ°Π·ΠΎΠΌ.
ΠΠ»Ρ ΠΈΠ·Π³ΠΎΡΠΎΠ²Π»Π΅Π½ΠΈΡ ΠΌΠ΅Π±Π΅Π»ΠΈ ΠΈΡΠΏΠΎΠ»ΡΠ·ΡΠ΅ΡΡΡ ΡΠ°Π·Π»ΠΈΡΠ½Π°Ρ ΡΡΡΠ½ΠΈΡΡΡΠ°, Π²ΠΊΠ»ΡΡΠ°ΡΡΠ°Ρ Π² ΡΠ΅Π±Ρ ΡΡΡΠΊΠΈ, ΠΏΠ΅ΡΠ»ΠΈ, ΠΌΠ΅Π±Π΅Π»ΡΠ½ΡΠ΅ Π½ΠΎΠΆΠΊΠΈ, ΠΊΡΠ΅ΠΏΠ΅ΠΆΠ½ΡΠ΅ Π±ΠΎΠ»ΡΡ ΠΈ ΡΠ°ΠΊ Π΄Π°Π»Π΅Π΅. Π ΠΏΠΎΡΠ»Π΅Π΄Π½Π΅Π΅ Π²ΡΠ΅ΠΌΡ ΡΠΈΡΠΎΠΊΠΎ ΠΏΡΠΈΠΌΠ΅Π½ΡΠ΅ΡΡΡ Π²ΡΠ΄Π²ΠΈΠΆΠ½Π°Ρ ΡΡΡΠ½ΠΈΡΡΡΠ°, ΡΠΏΠΎΡΠΎΠ±ΡΡΠ²ΡΡΡΠ°Ρ Π±ΠΎΠ»Π΅Π΅ Π»Π΅Π³ΠΊΠΎΠΌΡ ΠΎΡΠΊΡΡΠ²Π°Π½ΠΈΡ ΡΡΠΈΠΊΠΎΠ² ΠΈ ΠΌΠ°ΠΊΡΠΈΠΌΠ°Π»ΡΠ½ΠΎ ΠΎΠΏΡΠΈΠΌΠΈΠ·ΠΈΡΡΡΡΠ°Ρ ΡΠ°Π±ΠΎΡΠ΅Π΅ ΠΏΡΠΎΡΡΡΠ°Π½ΡΡΠ²ΠΎ.
ΠΠ±Π»Π°ΡΡΡ ΠΏΡΠΈΠΌΠ΅Π½Π΅Π½ΠΈΡ Π²ΡΠ΄Π²ΠΈΠΆΠ½ΡΡ
ΠΌΠ΅Ρ
Π°Π½ΠΈΠ·ΠΌΠΎΠ²
ΠΡΠ΄Π²ΠΈΠΆΠ½ΡΠ΅ ΠΊΠΎΠ½ΡΡΡΡΠΊΡΠΈΠΈ ΠΈΡΠΏΠΎΠ»ΡΠ·ΡΡΡΡΡ Π΄Π»Ρ:
- ΠΊΠΎΠΌΠ½Π°ΡΠ½ΠΎΠΉ ΠΌΠ΅Π±Π΅Π»ΠΈ. ΠΠ°ΠΈΠ±ΠΎΠ»Π΅Π΅ ΠΈΠ·Π²Π΅ΡΡΠ½Ρ ΡΠ°Π·Π΄Π²ΠΈΠΆΠ½ΡΠ΅ Π΄Π²Π΅ΡΠΈ Π΄Π»Ρ ΡΠΊΠ°ΡΠΎΠ², Π²ΡΠ΄Π²ΠΈΠΆΠ½ΡΠ΅ Π²Π΅ΡΠ°Π»ΠΊΠΈ ΠΈ ΡΡΠΈΠΊΠΈ, ΠΏΠΎΠ»ΠΊΠΈ Π΄Π»Ρ ΠΊΠΎΠΌΠΏΡΡΡΠ΅ΡΠ½ΡΡ ΡΡΠΎΠ»ΠΎΠ²;
- ΠΊΡΡ ΠΎΠ½Π½ΠΎΠΉ ΠΌΠ΅Π±Π΅Π»ΠΈ. ΠΠ°ΡΠ½ΠΈΡΡΡΡ, ΠΎΡΠ½Π°ΡΠ΅Π½Π½ΡΠ΅ Π²ΡΠ΄Π²ΠΈΠΆΠ½ΡΠΌΠΈ ΠΌΠ΅Ρ Π°Π½ΠΈΠ·ΠΌΠ°ΠΌΠΈ, ΡΠ²Π»ΡΡΡΡΡ ΡΠ°ΠΌΡΠΌΠΈ Π²ΠΎΡΡΡΠ΅Π±ΠΎΠ²Π°Π½Π½ΡΠΌΠΈ;
- Π΄Π²Π΅ΡΠ΅ΠΉ. Π Π°Π·Π΄Π²ΠΈΠΆΠ½Π°Ρ ΡΡΡΠ½ΠΈΡΡΡΠ° β Π½Π°ΠΏΡΠ°Π²Π»ΡΡΡΠΈΠ΅ Π΄Π»Ρ Π΄Π²Π΅ΡΠ΅ΠΉ β ΠΏΠΎΠ·Π²ΠΎΠ»ΡΠ΅Ρ ΠΏΡΠΎΠΈΠ·Π²ΠΎΠ΄ΠΈΡΡ ΠΊΠΎΠ½ΡΡΡΡΠΊΡΠΈΠΈ ΡΠ°Π·Π»ΠΈΡΠ½ΠΎΠΉ ΡΠΎΡΠΌΡ.
ΠΡΠ΄Π²ΠΈΠΆΠ½ΡΠ΅ ΠΈ ΡΠ°Π·Π΄Π²ΠΈΠΆΠ½ΡΠ΅ ΠΌΠ΅Ρ
Π°Π½ΠΈΠ·ΠΌΡ ΠΏΠΎΠ·Π²ΠΎΠ»ΡΡΡ ΡΡΠΊΠΎΠ½ΠΎΠΌΠΈΡΡ ΠΏΡΠΎΡΡΡΠ°Π½ΡΡΠ²ΠΎ Π² ΠΏΠΎΠΌΠ΅ΡΠ΅Π½ΠΈΠΈ ΠΈ ΠΌΠ°ΠΊΡΠΈΠΌΠ°Π»ΡΠ½ΠΎ ΡΡΡΠ΅ΠΊΡΠΈΠ²Π½ΠΎ ΠΎΡΠ³Π°Π½ΠΈΠ·ΠΎΠ²Π°ΡΡ ΡΡΠ»ΠΎΠ²ΠΈΡ ΡΠ°Π±ΠΎΡΡ ΠΈ ΠΎΡΠ΄ΡΡ
Π°.
ΠΡΠ½ΠΎΠ²Π½ΡΠ΅ Π²ΠΈΠ΄Ρ Π²ΡΠ΄Π²ΠΈΠΆΠ½ΠΎΠΉ ΡΡΡΠ½ΠΈΡΡΡΡ
Π€ΡΡΠ½ΠΈΡΡΡΠ° Π΄Π»Ρ Π²ΡΠ΄Π²ΠΈΠΆΠ½ΡΡ ΡΡΠΈΠΊΠΎΠ² Π±ΡΠ²Π°Π΅Ρ Π½Π΅ΡΠΊΠΎΠ»ΡΠΊΠΈΡ ΡΠ°Π·Π½ΠΎΠ²ΠΈΠ΄Π½ΠΎΡΡΠ΅ΠΉ:
- ΠΌΠ΅Ρ Π°Π½ΠΈΠ·ΠΌΡ, ΠΎΡΠ½ΠΎΠ²Π°Π½Π½ΡΠ΅ Π½Π° Π΄Π²ΠΈΠΆΠ΅Π½ΠΈΠΈ ΡΠΎΠ»ΠΈΠΊΠΎΠ² ΠΏΠΎ Π½Π°ΠΏΡΠ°Π²Π»ΡΡΡΠΈΠΌ. Π‘Π°ΠΌΠ°Ρ ΡΠ°ΡΠΏΡΠΎΡΡΡΠ°Π½Π΅Π½Π½Π°Ρ ΡΠ°Π·Π½ΠΎΠ²ΠΈΠ΄Π½ΠΎΡΡΡ Π²ΡΠ΄Π²ΠΈΠΆΠ½ΠΎΠΉ ΡΡΡΠ½ΠΈΡΡΡΡ. ΠΡΠ»ΠΈΡΠ°Π΅ΡΡΡ Π΄Π΅ΡΠ΅Π²ΠΈΠ·Π½ΠΎΠΉ ΠΈ ΠΏΡΠΎΡΡΠΎΡΠΎΠΉ ΠΌΠΎΠ½ΡΠ°ΠΆΠ°. ΠΠ΅Π΄ΠΎΡΡΠ°ΡΠΊΠ°ΠΌΠΈ ΡΠ²Π»ΡΡΡΡΡ Π½Π°Π»ΠΈΡΠΈΠ΅ ΡΠΈΠ»ΡΠ½ΠΎΠ³ΠΎ ΡΡΠΌΠ° ΠΏΡΠΈ ΡΠ°Π±ΠΎΡΠ΅ ΠΌΠ΅Ρ Π°Π½ΠΈΠ·ΠΌΠ°, Π½Π΅Π΄ΠΎΠ»Π³ΠΎΠ²Π΅ΡΠ½ΠΎΡΡΡ ΠΊΠΎΠ½ΡΡΡΡΠΊΡΠΈΠΈ ΠΈ ΡΠΏΠΎΡΠΎΠ±Π½ΠΎΡΡΡ ΠΎΡΠΊΡΡΠ²Π°ΡΡ ΡΡΠΈΠΊ Π½Π° 2/3 Π²ΠΌΠ΅ΡΡΠΈΠΌΠΎΡΡΠΈ;
- ΡΠ°ΡΠΈΠΊΠΎΠ²ΡΠ΅ Π½Π°ΠΏΡΠ°Π²Π»ΡΡΡΠΈΠ΅: ΡΡΡΠ½ΠΈΡΡΡΠ° ΡΠ΅Π»Π΅ΡΠΊΠΎΠΏΠΈΡΠ΅ΡΠΊΠ°Ρ. ΠΡΠ»ΠΈΡΠ°Π΅ΡΡΡ Π±ΠΎΠ»Π΅Π΅ ΠΏΠ»Π°Π²Π½ΡΠΌ Π΄Π²ΠΈΠΆΠ΅Π½ΠΈΠ΅ΠΌ ΠΏΠΎ ΡΡΠ°Π²Π½Π΅Π½ΠΈΡ Ρ ΡΠΎΠ»ΠΈΠΊΠ°ΠΌΠΈ, ΡΠΏΠΎΡΠΎΠ±Π½ΠΎΡΡΡΡ ΠΏΡΠΈΠ½ΠΈΠΌΠ°ΡΡ Π½Π° ΡΠ΅Π±Ρ Π²ΡΡΠΎΠΊΡΡ ΡΡΠ΅ΠΏΠ΅Π½Ρ Π½Π°Π³ΡΡΠ·ΠΊΠΈ, Π΄ΠΎΠ»Π³ΠΎΠ²Π΅ΡΠ½ΠΎΡΡΡΡ;
- ΠΊΠΎΠ½ΡΡΡΡΠΊΡΠΈΠΈ ΠΌΠ΅ΡΠ°Π»Π»-Π±ΠΎΠΊΡ β Π²ΡΠ΄Π²ΠΈΠΆΠ½Π°Ρ ΠΌΠ΅Π±Π΅Π»ΡΠ½Π°Ρ ΡΡΡΠ½ΠΈΡΡΡΠ°: Π½Π°ΠΏΡΠ°Π²Π»ΡΡΡΠΈΠ΅ Π΄Π²ΠΈΠ³Π°ΡΡΡΡ Π·Π° ΡΡΠ΅Ρ ΡΠΎΠ»ΠΈΠΊΠΎΠ². ΠΡΠ½ΠΎΠ²Π½ΡΠΌ ΠΎΡΠ»ΠΈΡΠΈΠ΅ΠΌ ΡΠ²Π»ΡΠ΅ΡΡΡ Π½Π°Π»ΠΈΡΠΈΠ΅ Π΄ΠΎΠΏΠΎΠ»Π½ΠΈΡΠ΅Π»ΡΠ½ΡΡ ΠΌΠ΅ΡΠ°Π»Π»ΠΈΡΠ΅ΡΠΊΠΈΡ Π±ΠΎΠΊΠΎΠ²ΡΡ ΡΡΠ΅Π½ΠΎΠΊ, ΠΊΠΎΡΠΎΡΡΠ΅ ΡΠΏΠΎΡΠΎΠ±ΡΡΠ²ΡΡΡ ΠΏΠΎΠ²ΡΡΠ΅Π½ΠΈΡ Π½Π°Π³ΡΡΠ·ΠΊΠΈ Π½Π° ΠΌΠ΅Ρ Π°Π½ΠΈΠ·ΠΌ. Π―ΡΠΈΠΊΠΈ, ΠΎΡΠ½Π°ΡΠ΅Π½Π½ΡΠ΅ ΡΡΡΠ½ΠΈΡΡΡΠΎΠΉ ΠΌΠ΅ΡΠ°Π»Π»-Π±ΠΎΠΊΡ ΠΌΠΎΠΆΠ½ΠΎ Π½Π°Π³ΡΡΠΆΠ°ΡΡ Π΄ΠΎ 30ΠΊΠ³. ΠΠΎ ΠΆΠ΅Π»Π°Π½ΠΈΡ Π·Π°ΠΊΠ°Π·ΡΠΈΠΊΠ° Π²ΡΠ΄Π²ΠΈΠΆΠ½ΡΠ΅ ΠΌΠ΅Ρ Π°Π½ΠΈΠ·ΠΌΡ ΠΏΠΎΠ΄ΠΎΠ±Π½ΠΎΠΉ ΠΊΠΎΠ½ΡΡΡΡΠΊΡΠΈΠΈ ΠΌΠΎΠΆΠ½ΠΎ ΠΎΡΠ½Π°ΡΠ°ΡΡ Π΄ΠΎΠ²ΠΎΠ΄ΡΠΈΠΊΠ°ΠΌΠΈ;
- ΠΌΠ΅Ρ
Π°Π½ΠΈΠ·ΠΌΡ-ΡΠ°Π½Π΄Π΅ΠΌΡ.
ΠΡΠ΅Π΄ΡΡΠ°Π²Π»ΡΡΡ ΡΠΎΠ±ΠΎΠΉ ΠΏΠΎΠ»Π½ΡΠΉ ΡΡΠΈΠΊ, ΠΈΠ·Π³ΠΎΡΠΎΠ²Π»Π΅Π½Π½ΡΠΉ ΠΏΠΎ ΠΈΠ½Π΄ΠΈΠ²ΠΈΠ΄ΡΠ°Π»ΡΠ½ΡΠΌ ΠΏΠ°ΡΠ°ΠΌΠ΅ΡΡΠ°ΠΌ. ΠΠ°ΠΏΡΠ°Π²Π»ΡΡΡΠΈΠ΅ ΠΈ ΡΡΠΈΠ»ΠΈΠ²Π°ΡΡΠΈΠ΅ ΡΡΡΡΠΎΠΉΡΡΠ²Π° ΡΠ°ΡΠΏΠΎΠ»Π°Π³Π°ΡΡΡΡ ΡΠ±ΠΎΠΊΡ ΠΈ ΡΠ½ΠΈΠ·Ρ ΡΡΠΈΠΊΠ°. ΠΠ° ΡΡΠ΅Ρ Π±ΠΎΠ»ΡΡΠΎΠ³ΠΎ ΠΊΠΎΠ»ΠΈΡΠ΅ΡΡΠ²Π° Π½Π°ΠΏΡΠ°Π²Π»ΡΡΡΠΈΡ
ΠΈ ΠΏΠΎΠ΄Π΄Π΅ΡΠΆΠΈΠ²Π°ΡΡΠΈΡ
ΡΠ»Π΅ΠΌΠ΅Π½ΡΠΎΠ² ΡΠ°ΠΊΠ°Ρ ΠΊΠΎΠ½ΡΡΡΡΠΊΡΠΈΡ Π»Π΅Π³ΠΊΠΎ ΠΈ ΠΏΠ»Π°Π²Π½ΠΎ ΡΠ°Π±ΠΎΡΠ°Π΅Ρ. ΠΠ½Π° Π΄ΠΎΠ»Π³ΠΎΠ²Π΅ΡΠ½Π°. Π―ΡΠΈΠΊ ΠΌΠΎΠΆΠ½ΠΎ Π΄ΠΎΠΏΠΎΠ»Π½ΠΈΡΡ Π΄ΠΎΠ²ΠΎΠ΄ΡΠΈΠΊΠΎΠΌ ΠΈΠ»ΠΈ ΡΠ»Π΅ΠΊΡΡΠΎΠΏΡΠΈΠ²ΠΎΠ΄ΠΎΠΌ. ΠΡΠ½ΠΎΠ²Π½ΡΠΌ Π½Π΅Π΄ΠΎΡΡΠ°ΡΠΊΠΎΠΌ ΡΠ²Π»ΡΠ΅ΡΡΡ Π²ΡΡΠΎΠΊΠ°Ρ ΡΡΠΎΠΈΠΌΠΎΡΡΡ ΠΊΠΎΠ½ΡΡΡΡΠΊΡΠΈΠΈ;
ΠΏΠΎΡΠ»Π΅Π΄Π½Π΅ΠΉ ΡΠ°Π·Π½ΠΎΠ²ΠΈΠ΄Π½ΠΎΡΡΡΡ Π²ΡΠ΄Π²ΠΈΠΆΠ½ΠΎΠΉ ΡΡΡΠ½ΠΈΡΡΡΡ ΡΡΠΈΡΠ°ΡΡΡΡ ΡΠΈΡΡΠ΅ΠΌΡ ΠΊΠ°ΡΠ³ΠΎ. ΠΠ΅Ρ Π°Π½ΠΈΠ·ΠΌ ΠΏΡΠ΅Π΄ΡΡΠ°Π²Π»ΡΠ΅Ρ ΡΠΎΠ±ΠΎΠΉ Π²ΡΠ΄Π²ΠΈΠΆΠ½ΠΎΠΉ ΡΡΠΈΠΊ, ΠΎΠΏΡΠ΅Π΄Π΅Π»Π΅Π½Π½ΠΎΠΉ ΡΠΎΡΠΌΡ, ΠΊΠΎΡΠΎΡΡΠΉ ΠΊΡΠ΅ΠΏΠΈΡΡΡ Π½Π΅ΠΏΠΎΡΡΠ΅Π΄ΡΡΠ²Π΅Π½Π½ΠΎ ΠΊ ΠΈΠΌΠ΅ΡΡΠ΅ΠΉΡΡ ΠΌΠ΅Π±Π΅Π»ΠΈ. ΠΡΠΏΠΎΠ»ΡΠ·ΡΡΡΡΡ ΠΌΠ΅Ρ Π°Π½ΠΈΠ·ΠΌΡ ΠΏΡΠ΅ΠΈΠΌΡΡΠ΅ΡΡΠ²Π΅Π½Π½ΠΎ Π½Π° ΠΊΡΡ Π½Π΅.
ΠΠΎΠ΄Π±ΠΈΡΠ°ΡΡ Π²ΡΠ΄Π²ΠΈΠΆΠ½ΠΎΠΉ ΠΌΠ΅Ρ Π°Π½ΠΈΠ·ΠΌ ΡΡΠ΅Π±ΡΠ΅ΡΡΡ, ΠΎΡΠ½ΠΎΠ²ΡΠ²Π°ΡΡΡ Π½Π° ΠΏΡΠ΅Π΄ΠΏΠΎΠ»Π°Π³Π°Π΅ΠΌΠΎΠΉ Π½Π°Π³ΡΡΠ·ΠΊΠ΅, Π΄ΠΎΠ»Π³ΠΎΠ²Π΅ΡΠ½ΠΎΡΡΠΈ ΠΈ Π½Π΅ΠΎΠ±Ρ ΠΎΠ΄ΠΈΠΌΠΎΡΡΠΈ ΠΌΠ°ΡΡΡΠ°Π±Π° ΠΎΡΠΊΡΡΠ²Π°Π½ΠΈΡ ΡΡΠΈΠΊΠ°.
Π£ΡΡΠ°Π½ΠΎΠ²ΠΊΠ° Π²ΡΠ΄Π²ΠΈΠΆΠ½ΡΡ
ΠΌΠ΅Ρ
Π°Π½ΠΈΠ·ΠΌΠΎΠ²
Π‘Π°ΠΌΠΎΡΡΠΎΡΡΠ΅Π»ΡΠ½ΠΎ ΡΠΎΠ±ΡΠ°ΡΡ ΠΌΠ΅Π±Π΅Π»Ρ ΠΌΠΎΠΆΠ΅Ρ ΠΏΡΠ°ΠΊΡΠΈΡΠ΅ΡΠΊΠΈ Π»ΡΠ±ΠΎΠΉ ΡΠ΅Π»ΠΎΠ²Π΅ΠΊ. ΠΠ»Π°Π²Π½ΠΎΠ΅ β Π½Π° ΡΡΠ°Π΄ΠΈΠΈ ΡΠ°Π·ΡΠ°Π±ΠΎΡΠΊΠΈ ΠΏΡΠ°Π²ΠΈΠ»ΡΠ½ΠΎ ΡΠ°Π·ΡΠ°Π±ΠΎΡΠ°ΡΡ ΡΠ΅ΡΡΠ΅ΠΆ ΠΊΠΎΠ½ΡΡΡΡΠΊΡΠΈΠΈ ΠΈ ΠΏΡΠΈΠΎΠ±ΡΠ΅ΡΡΠΈ Π²ΡΠ΅ ΡΠΎΡΡΠ°Π²Π»ΡΡΡΠΈΠ΅ ΡΠ»Π΅ΠΌΠ΅Π½ΡΡ.
Π‘Π±ΠΎΡΠΊΠ° Π²ΡΠ΄Π²ΠΈΠΆΠ½ΠΎΠ³ΠΎ ΡΡΠΈΠΊΠ° ΡΠ°ΠΊΠΆΠ΅ Π½Π΅ ΡΠ²Π»ΡΠ΅ΡΡΡ Π½Π΅ΡΠ°Π·ΡΠ΅ΡΠΈΠΌΠΎΠΉ ΠΏΡΠΎΠ±Π»Π΅ΠΌΠΎΠΉ, ΠΈ ΠΏΡΠΈΠ±Π΅Π³Π°ΡΡ ΠΊ ΠΏΠΎΠΌΠΎΡΠΈ ΠΏΡΠΎΡΠ΅ΡΡΠΈΠΎΠ½Π°Π»ΠΎΠ² Π½Π΅ ΡΡΠ΅Π±ΡΠ΅ΡΡΡ.
ΠΠ±ΡΠΈΠ΅ ΠΏΡΠ°Π²ΠΈΠ»Π°
ΠΡΠ΄Π²ΠΈΠΆΠ½Π°Ρ ΠΌΠ΅Π±Π΅Π»ΡΠ½Π°Ρ ΡΡΡΠ½ΠΈΡΡΡΠ° β Π½Π°ΠΏΡΠ°Π²Π»ΡΡΡΠΈΠ΅ Π΄Π»Ρ ΡΡΠΈΠΊΠΎΠ² ΠΈ ΠΊΡΠ΅ΠΏΠ»Π΅Π½ΠΈΡ β ΠΎΠ±ΡΡΠ½ΠΎ ΠΏΡΠΎΠ΄Π°ΡΡΡΡ ΠΊΠΎΠΌΠΏΠ»Π΅ΠΊΡΠ°ΠΌΠΈ. ΠΠ»Ρ ΠΏΡΠ°Π²ΠΈΠ»ΡΠ½ΠΎΠΉ ΠΈΡ ΡΡΡΠ°Π½ΠΎΠ²ΠΊΠΈ ΡΡΠ΅Π±ΡΠ΅ΡΡΡ ΡΡΠΊΠΎΠ²ΠΎΠ΄ΡΡΠ²ΠΎΠ²Π°ΡΡΡΡ ΠΏΡΠΎΡΡΡΠΌΠΈ ΠΏΡΠ°Π²ΠΈΠ»Π°ΠΌΠΈ:
- Π²ΡΠ±ΠΈΡΠ°ΡΡ ΡΡΡΠ½ΠΈΡΡΡΡ Π½Π°Π΄ΠΎ Π½Π° ΡΡΠ°Π΄ΠΈΠΈ ΡΠ°Π·ΡΠ°Π±ΠΎΡΠΊΠΈ ΠΌΠ΅Π±Π΅Π»ΡΠ½ΠΎΠ³ΠΎ ΠΏΡΠΎΠ΅ΠΊΡΠ°. Π‘Π»Π΅Π΄ΡΠ΅Ρ ΠΏΠΎΠΌΠ½ΠΈΡΡ, ΡΡΠΎ Π²ΡΠ΅ ΠΌΠ΅Ρ Π°Π½ΠΈΠ·ΠΌΡ ΠΈΠΌΠ΅ΡΡ ΡΠ²ΠΎΠΈ ΡΠ°Π·ΠΌΠ΅ΡΡ, ΠΊΠΎΡΠΎΡΡΠ΅ ΡΡΠ΅Π±ΡΠ΅ΡΡΡ ΡΡΠΈΡΡΠ²Π°ΡΡ;
- ΠΏΡΠΈ ΡΡΡΠ°Π½ΠΎΠ²ΠΊΠ΅ ΠΌΠ΅Ρ Π°Π½ΠΈΠ·ΠΌΠ° ΠΎΠ±ΡΠ·Π°ΡΠ΅Π»ΡΠ½ΠΎ ΠΏΡΠΎΠ²ΠΎΠ΄ΠΈΡΡΡ ΡΠ΅ΡΠΊΠ°Ρ ΡΠ°Π·ΠΌΠ΅ΡΠΊΠ° ΠΏΠΎΠ΄ ΠΊΡΠ΅ΠΏΠ»Π΅Π½ΠΈΡ. ΠΠ΅ΡΠΎΠΎΡΠ²Π΅ΡΡΡΠ²ΠΈΠ΅ ΠΎΡΠ²Π΅ΡΡΡΠΈΠΉ Π΄Π»Ρ ΠΊΡΠ΅ΠΏΠ»Π΅Π½ΠΈΠΉ Ρ ΠΏΠΎΠ΄Π³ΠΎΡΠΎΠ²Π»Π΅Π½Π½ΡΠΌΠΈ ΠΌΠΎΠΆΠ΅Ρ ΠΏΡΠΈΠ²Π΅ΡΡΠΈ ΠΊ Π½Π΅ΠΏΡΠ°Π²ΠΈΠ»ΡΠ½ΠΎΠΉ ΡΠ°Π±ΠΎΡΠ΅ Π²ΡΠ΅ΠΉ ΠΊΠΎΠ½ΡΡΡΡΠΊΡΠΈΠΈ;
- ΠΊΡΠ΅ΠΏΠΈΡΡΡ Π²ΡΠ΄Π²ΠΈΠΆΠ½Π°Ρ ΡΡΡΠ½ΠΈΡΡΡΠ° Π½Π΅ΡΠΊΠΎΠ»ΡΠΊΠΈΠΌΠΈ Π±ΠΎΠ»ΡΠ°ΠΌΠΈ, ΠΊΠΎΡΠΎΡΡΠ΅ Π·Π°ΠΊΡΡΡΠΈΠ²Π°ΡΡΡΡ ΠΏΠΎ ΠΌΠ΅ΡΠ΅ Π²ΠΎΠ·ΠΌΠΎΠΆΠ½ΠΎΡΡΠΈ, ΡΠΎ Π΅ΡΡΡ Π½Π΅ ΡΠ»Π΅Π΄ΡΠ΅Ρ ΡΡΠ°Π·Ρ Π·Π°Π²ΠΎΡΠ°ΡΠΈΠ²Π°ΡΡ ΠΎΠ΄ΠΈΠ½ Π±ΠΎΠ»Ρ, Π° Π·Π°ΡΠ΅ΠΌ Π΄ΡΡΠ³ΠΎΠΉ ΠΈ ΡΡΠ΅ΡΠΈΠΉ. ΠΡΠ°Π²ΠΈΠ»ΡΠ½Π΅ΠΉ Π±ΡΠ΄Π΅Ρ Π½Π΅ΠΌΠ½ΠΎΠ³ΠΎ Π·Π°ΡΡΠ½ΡΡΡ Π²ΡΠ΅ Π±ΠΎΠ»ΡΡ ΠΈ ΡΠΎΠ»ΡΠΊΠΎ ΠΏΠΎΡΠ»Π΅ ΡΡΠΎΠ³ΠΎ ΠΏΠΎΡΡΠ΅ΠΏΠ΅Π½Π½ΠΎ Π·Π°Π²ΠΎΡΠ°ΡΠΈΠ²Π°ΡΡ ΠΊΡΠ΅ΠΏΠ»Π΅Π½ΠΈΡ Π΄ΠΎ ΡΠΏΠΎΡΠ°. ΠΡΠ»ΠΈ ΠΏΡΠ΅Π½Π΅Π±ΡΠ΅ΡΡ ΡΡΠΈΠΌ ΠΏΡΠ°Π²ΠΈΠ»ΠΎΠΌ, ΡΠΎ Π²ΡΠ΄Π²ΠΈΠΆΠ½ΠΎΠΉ ΠΌΠ΅Ρ Π°Π½ΠΈΠ·ΠΌ ΠΌΠΎΠΆΠ΅Ρ Π±ΡΡΡ ΠΏΠ΅ΡΠ΅ΠΊΠΎΡΠ΅Π½, ΡΡΠΎ ΠΏΡΠΈΠ²Π΅Π΄Π΅Ρ ΠΊ Π΅Π³ΠΎ Π½Π΅ΡΠ°Π±ΠΎΡΠΎΡΠΏΠΎΡΠΎΠ±Π½ΠΎΡΡΠΈ;
- ΠΌΠ΅Π±Π΅Π»ΡΠ½Π°Ρ Π²ΡΠ΄Π²ΠΈΠΆΠ½Π°Ρ ΡΡΡΠ½ΠΈΡΡΡΠ° β Π½Π°ΠΏΡΠ°Π²Π»ΡΡΡΠΈΠ΅ Π΄Π»Ρ ΡΡΠΈΠΊΠΎΠ² β ΠΎΡΠ½Π°ΡΠ΅Π½Ρ ΡΠ΅Π³ΡΠ»ΠΈΡΠΎΠ²ΠΎΡΠ½ΡΠΌΠΈ Π±ΠΎΠ»ΡΠ°ΠΌΠΈ, ΠΏΡΠΈ ΠΏΠΎΠΌΠΎΡΠΈ ΠΊΠΎΡΠΎΡΡΡ
ΠΌΠΎΠΆΠ½ΠΎ Π²ΡΠΏΡΠ°Π²ΠΈΡΡ Π½Π΅Π±ΠΎΠ»ΡΡΠΈΠ΅ ΠΏΠ΅ΡΠ΅ΠΊΠΎΡΡ ΠΈ ΡΠ°Π·Π»ΠΈΡΠ½ΡΠ΅ Π·Π°Π·ΠΎΡΡ ΠΌΠ΅ΠΆΠ΄Ρ ΡΡΠΈΠΊΠΎΠΌ ΠΈ ΠΎΡΠ½ΠΎΠ²Π°Π½ΠΈΠ΅ΠΌ.

Π£ΡΡΠ°Π½ΠΎΠ²ΠΊΠ° Π½Π° ΠΏΡΠΈΠΌΠ΅ΡΠ΅ ΡΠ°ΡΠΈΠΊΠΎΠ²ΠΎΠ³ΠΎ ΠΌΠ΅Ρ
Π°Π½ΠΈΠ·ΠΌΠ°
Π Π°ΡΡΠΌΠΎΡΡΠΈΠΌ ΠΏΡΠΎΡΠ΅ΡΡ ΡΡΡΠ°Π½ΠΎΠ²ΠΊΠΈ ΡΠ°ΡΠΈΠΊΠΎΠ²ΠΎΠΉ ΠΈΠ»ΠΈ ΡΠ΅Π»Π΅ΡΠΊΠΎΠΏΠΈΡΠ΅ΡΠΊΠΎΠΉ Π²ΡΠ΄Π²ΠΈΠΆΠ½ΠΎΠΉ ΡΡΡΠ½ΠΈΡΡΡΡ. ΠΠ΅ΡΡ ΠΏΡΠΎΡΠ΅ΡΡ Π΄Π΅Π»ΠΈΡΡΡ Π½Π° Π½Π΅ΡΠΊΠΎΠ»ΡΠΊΠΎ ΡΠΎΡΡΠ°Π²Π»ΡΡΡΠΈΡ Π΅Π³ΠΎ ΡΡΠ°ΠΏΠΎΠ²:
- ΠΏΠΎΡΠ»Π΅ ΠΏΡΠΈΠΎΠ±ΡΠ΅ΡΠ΅Π½ΠΈΡ ΠΌΠ΅Π±Π΅Π»ΡΠ½ΠΎΠΉ ΡΡΡΠ½ΠΈΡΡΡΡ Π½Π°ΠΏΡΠ°Π²Π»ΡΡΡΠΈΠ΅, ΠΊΠΎΡΠΎΡΡΠ΅ ΡΠΎΡΡΠΎΡΡ ΠΈΠ· Π΄Π²ΡΡ ΡΠ°ΡΡΠ΅ΠΉ, ΡΡΠ΅Π±ΡΠ΅ΡΡΡ ΡΠ°Π·Π΄Π΅Π»ΠΈΡΡ. ΠΠ»Ρ ΡΡΠΎΠ³ΠΎ Π½Π°Π΄ΠΎ ΡΠ»Π΅Π³ΠΊΠ° ΠΏΠΎΡΡΠ½ΡΡΡ Π·Π° ΠΈΠΌΠ΅ΡΡΠΈΠ΅ΡΡ Π½Π° ΡΡΡΡΠΎΠΉΡΡΠ²Π΅ ΡΡΠΈΠΊΠΈ. ΠΠ΄Π½Π° ΡΠ°ΡΡΡ ΠΊΠΎΠ½ΡΡΡΡΠΊΡΠΈΠΈ Π±ΡΠ΄Π΅Ρ Π² Π΄Π°Π»ΡΠ½Π΅ΠΉΡΠ΅ΠΌ ΠΊΡΠ΅ΠΏΠΈΡΡΡΡ ΠΊ ΡΡΠΈΠΊΡ, Π° Π΄ΡΡΠ³Π°Ρ β ΠΊ Π²Π½ΡΡΡΠ΅Π½Π½Π΅ΠΉ ΡΠ°ΡΡΠΈ ΠΌΠ΅Π±Π΅Π»ΠΈ;
- ΠΏΡΠΎΠΈΠ·Π²ΠΎΠ΄ΠΈΡΡΡ ΡΠ°Π·ΠΌΠ΅ΡΠΊΠ° Π΄Π»Ρ ΠΊΡΠ΅ΠΏΠ»Π΅Π½ΠΈΡ ΠΌΠ΅Ρ Π°Π½ΠΈΠ·ΠΌΠ° Π½Π° ΡΡΠ΅Π½ΠΊΠ°Ρ ΡΡΠΈΠΊΠ° ΠΈ Π²Π½ΡΡΡΠ΅Π½Π½Π΅ΠΉ ΡΠ°ΡΡΠΈ ΠΌΠ΅Π±Π΅Π»ΠΈ;
- Π² ΡΠΎΡΠΊΠ°Ρ ΠΊΡΠ΅ΠΏΠ»Π΅Π½ΠΈΡ ΠΏΡΠΈ ΠΏΠΎΠΌΠΎΡΠΈ Π΄ΡΠ΅Π»ΠΈ ΠΏΡΠΎΠ΄Π΅Π»ΡΠ²Π°ΡΡΡΡ ΠΎΡΠ²Π΅ΡΡΡΠΈΡ, Π΄ΠΈΠ°ΠΌΠ΅ΡΡ ΠΊΠΎΡΠΎΡΡΡ ΡΠ°Π²Π½ΡΠ΅ΡΡΡ Π΄ΠΈΠ°ΠΌΠ΅ΡΡΡ ΠΊΡΠ΅ΠΏΠΈΡΠ΅Π»ΡΠ½ΡΡ ΡΠ»Π΅ΠΌΠ΅Π½ΡΠΎΠ²;
- ΠΏΠΎ ΠΏΠΈΡΠ°Π½Π½ΠΎΠΌΡ Π²ΡΡΠ΅ ΠΏΡΠ°Π²ΠΈΠ»Ρ Π·Π°Π²ΠΎΡΠ°ΡΠΈΠ²Π°ΡΡΡΡ Π±ΠΎΠ»ΡΡ, ΠΊΠΎΡΠΎΡΡΠ΅ ΠΏΠΎΡΡΠ°Π²Π»ΡΡΡΡΡ Π² ΠΊΠΎΠΌΠΏΠ»Π΅ΠΊΡΠ΅ Ρ ΠΌΠ΅Ρ Π°Π½ΠΈΠ·ΠΌΠΎΠΌ ΠΈ ΠΏΡΠ΅Π΄Π½Π°Π·Π½Π°ΡΠ΅Π½Ρ Π΄Π»Ρ ΠΊΡΠ΅ΠΏΠ»Π΅Π½ΠΈΡ ΡΡΡΡΠΎΠΉΡΡΠ²Π° ΠΊ ΠΌΠ΅Π±Π΅Π»ΠΈ;
- ΡΡΠΈΠΊ Π²ΡΡΠ°Π²Π»ΡΠ΅ΡΡΡ Π² ΠΏΡΠ΅Π΄ΡΡΠΌΠΎΡΡΠ΅Π½Π½ΠΎΠ΅ ΠΌΠ΅ΡΡΠΎ;
- ΠΏΡΠΈ Π½Π΅ΠΎΠ±Ρ
ΠΎΠ΄ΠΈΠΌΠΎΡΡΠΈ, Π½Π°ΠΏΡΠΈΠΌΠ΅Ρ, ΠΏΡΠΈ Π½Π°Π»ΠΈΡΠΈΠΈ Π½Π΅ΠΎΠ΄ΠΈΠ½Π°ΠΊΠΎΠ²ΡΡ
Π·Π°Π·ΠΎΡΠΎΠ² ΠΌΠ΅ΠΆΠ΄Ρ ΡΡΠΈΠΊΠΎΠΌ ΠΈ ΠΊΠΎΡΠΏΡΡΠΎΠΌ ΠΌΠ΅Π±Π΅Π»ΠΈ, ΠΏΡΠΎΠΈΠ·Π²ΠΎΠ΄ΠΈΡΡΡ ΡΠ΅Π³ΡΠ»ΠΈΡΠΎΠ²ΠΊΠ° Π²ΡΠ΄Π²ΠΈΠΆΠ½ΠΎΠ³ΠΎ ΠΌΠ΅Ρ
Π°Π½ΠΈΠ·ΠΌΠ° ΠΏΡΠ΅Π΄ΡΡΠΌΠΎΡΡΠ΅Π½Π½ΡΠΌΠΈ ΠΊΠΎΠ½ΡΡΡΡΠΊΡΠΈΠ΅ΠΉ Π±ΠΎΠ»ΡΠ°ΠΌΠΈ.

ΠΠΎΠ»Π΅Π΅ Π½Π°Π³Π»ΡΠ΄Π½ΠΎ ΠΏΡΠΎΡΠ΅ΡΡ ΠΌΠΎΠΆΠ½ΠΎ ΠΏΠΎΡΠΌΠΎΡΡΠ΅ΡΡ Π² Π²ΠΈΠ΄Π΅ΠΎΡΡΠΎΠΊΠ΅.
ΠΠ΅ΠΈΡΠΏΡΠ°Π²Π½ΠΎΡΡΠΈ Π²ΡΠ΄Π²ΠΈΠΆΠ½ΠΎΠΉ ΡΡΡΠ½ΠΈΡΡΡΡ ΠΈ ΡΠΏΠΎΡΠΎΠ±Ρ ΠΈΡ
ΡΠ΅ΡΠ΅Π½ΠΈΡ
ΠΡΠ΄Π²ΠΈΠΆΠ½Π°Ρ ΡΡΡΠ½ΠΈΡΡΡΠ° Π΄Π»Ρ ΠΊΡΡ Π½ΠΈ ΠΈ Π΄ΡΡΠ³ΠΎΠΉ ΠΌΠ΅Π±Π΅Π»ΠΈ ΡΠ»ΡΠΆΠΈΡ Π΄Π»ΠΈΡΠ΅Π»ΡΠ½ΠΎΠ΅ Π²ΡΠ΅ΠΌΡ, Π½ΠΎ ΠΈ Ρ Π½Π΅ΠΉ ΠΌΠΎΠ³ΡΡ Π²ΠΎΠ·Π½ΠΈΠΊΠ½ΡΡΡ ΡΠ°Π·Π»ΠΈΡΠ½ΡΠ΅ ΠΏΡΠΎΠ±Π»Π΅ΠΌΡ:
- Π² ΠΏΠ΅ΡΠ²ΡΡ ΠΎΡΠ΅ΡΠ΅Π΄Ρ Π½Π΅ΠΈΡΠΏΡΠ°Π²Π½ΠΎΡΡΠΈ ΡΠ°Π±ΠΎΡΡ ΡΠΈΡΡΠ΅ΠΌΡ ΠΌΠΎΠ³ΡΡ Π²ΠΎΠ·Π½ΠΈΠΊΠ½ΡΡΡ ΠΈΠ·-Π·Π° Π½Π΅ΠΏΡΠ°Π²ΠΈΠ»ΡΠ½ΠΎΠΉ ΡΡΡΠ°Π½ΠΎΠ²ΠΊΠΈ ΠΊΠΎΠ½ΡΡΡΡΠΊΡΠΈΠΈ. ΠΡΠΎΠ±Π»Π΅ΠΌΠ° ΠΌΠΎΠΆΠ΅Ρ ΡΠ΅ΡΠ°ΡΡΡΡ ΡΠ΅Π³ΡΠ»ΠΈΡΠΎΠ²ΠΊΠΎΠΉ ΠΌΠ΅Ρ Π°Π½ΠΈΠ·ΠΌΠ° ΠΈΠ»ΠΈ ΠΏΠΎΠ²ΡΠΎΡΠ½ΠΎΠΉ ΡΡΡΠ°Π½ΠΎΠ²ΠΊΠΎΠΉ ΡΡΡΠ½ΠΈΡΡΡΡ. ΠΡΠΈ ΡΠΏΠΎΡΠΎΠ±Ρ ΠΏΠΎΠΌΠΎΠ³ΡΡ Π² ΡΠΎΠΌ ΡΠ»ΡΡΠ°Π΅, Π΅ΡΠ»ΠΈ ΡΡΡΠ½ΠΈΡΡΡΠ° Π½Π΅ Π±ΡΠ»Π° ΠΏΠΎΠ³Π½ΡΡΠ° ΠΈΠ»ΠΈ ΠΏΠΎΠ»ΠΎΠΌΠ°Π½Π°. Π ΠΏΠΎΡΠ»Π΅Π΄Π½Π΅ΠΉ ΡΠΈΡΡΠ°ΡΠΈΠΈ ΠΏΠΎΡΡΠ΅Π±ΡΠ΅ΡΡΡ ΠΏΠΎΠ»Π½Π°Ρ Π·Π°ΠΌΠ΅Π½Π° ΠΌΠ΅Ρ Π°Π½ΠΈΠ·ΠΌΠ°;
Π£ΡΡΠ°Π½ΠΎΠ²ΠΊΠ° Π²ΡΠ΄Π²ΠΈΠΆΠ½ΠΎΠΉ ΠΊΠΎΠ½ΡΡΡΡΠΊΡΠΈΠΈ ΡΡΠΈΡΠ°Π΅ΡΡΡ Π½Π΅ΠΊΠΎΡΡΠ΅ΠΊΡΠ½ΠΎΠΉ, Π΅ΡΠ»ΠΈ ΠΏΡΠΈ Π΄Π²ΠΈΠΆΠ΅Π½ΠΈΠΈ ΡΡΠΈΠΊΠ° Π²ΠΏΡΠ°Π²ΠΎ-Π²Π»Π΅Π²ΠΎ ΠΏΠΎΡΠ²Π»ΡΠ΅ΡΡΡ Π»ΡΡΡ, ΠΏΡΠ΅Π²ΡΡΠ°ΡΡΠΈΠΉ 3-5 ΠΌΠΌ.
- Π²ΡΡ
ΠΎΠ΄ ΡΠΈΡΡΠ΅ΠΌΡ Π²ΡΠ΄Π²ΠΈΠΆΠ΅Π½ΠΈΡ ΠΈΠ· ΡΡΡΠΎΡ ΠΈΠ·-Π·Π° ΠΏΡΠ΅Π²ΡΡΠ΅Π½ΠΈΡ Π½Π°Π³ΡΡΠ·ΠΊΠΈ Π½Π° ΠΌΠ΅Ρ
Π°Π½ΠΈΠ·ΠΌ. ΠΠΏΡΠ΅Π΄Π΅Π»ΠΈΡΡ Π½Π΅ΠΈΡΠΏΡΠ°Π²Π½ΠΎΡΡΡ ΠΌΠΎΠΆΠ½ΠΎ ΠΏΠΎ Π²ΡΡΠΊΠ°Π»ΡΠ·ΡΠ²Π°Π½ΠΈΡ ΠΊΠΎΠ»Π΅ΡΠΈΠΊΠ° ΠΈΠ· Π½Π°ΠΏΡΠ°Π²Π»ΡΡΡΠ΅ΠΉ. ΠΡΠΈ ΠΎΠ±Π½Π°ΡΡΠΆΠ΅Π½ΠΈΠΈ Π½Π΅ΠΈΡΠΏΡΠ°Π²Π½ΠΎΡΡΠΈ ΠΌΠΎΠΆΠ½ΠΎ ΠΏΠΎΠΏΡΠΎΠ±ΠΎΠ²Π°ΡΡ Π²ΠΎΡΡΡΠ°Π½ΠΎΠ²ΠΈΡΡ ΡΠ°Π±ΠΎΡΡ ΡΠΈΡΡΠ΅ΠΌΡ. ΠΠΈ Π² ΠΊΠΎΠ΅ΠΌ ΡΠ»ΡΡΠ°Π΅ Π½Π΅Π»ΡΠ·Ρ Π²ΡΠΏΡΠ°Π²Π»ΡΡΡ ΡΠ»Π΅ΠΌΠ΅Π½ΡΡ ΠΏΡΠΈ ΠΏΠΎΠΌΠΎΡΠΈ ΡΠ΄Π°ΡΠ½ΡΡ
ΠΈΠ½ΡΡΡΡΠΌΠ΅Π½ΡΠΎΠ², Π½Π°ΠΏΡΠΈΠΌΠ΅Ρ, ΠΌΠΎΠ»ΠΎΡΠΊΠ°.
Π‘ΠΈΠ»ΡΠ½ΡΠ΅ ΡΠ΄Π°ΡΡ ΠΌΠΎΠ³ΡΡ ΡΠ°ΡΠΊΠΎΠ»ΠΎΡΡ ΡΠΎΡΡΠ°Π²Π»ΡΡΡΠΈΠ΅ ΠΈ ΠΏΠΎΠ»Π½ΠΎΡΡΡΡ Π²ΡΠ²Π΅ΡΡΠΈ ΠΈΡ
ΠΈΠ· ΡΡΡΠΎΡ. ΠΡΠΏΡΠ°Π²Π»ΡΡΡ ΠΊΠΎΠ½ΡΡΡΡΠΊΡΠΈΡ Π½Π°Π΄ΠΎ Π°ΠΊΠΊΡΡΠ°ΡΠ½ΠΎ, Π·Π°ΠΆΠΈΠΌΠ°Ρ Π½Π΅ΠΈΡΠΏΡΠ°Π²Π½ΡΠ΅ ΡΠ»Π΅ΠΌΠ΅Π½ΡΡ Π² ΡΠΈΡΠΊΠΈ; - ΠΏΡΠΎΠ±Π»Π΅ΠΌΡ Ρ ΡΠ°Π±ΠΎΡΠΎΠΉ Π²ΡΠ΄Π²ΠΈΠΆΠ½ΠΎΠΉ ΡΡΡΠ½ΠΈΡΡΡΡ ΠΌΠΎΠ³ΡΡ Π²ΠΎΠ·Π½ΠΈΠΊΠ°ΡΡ Π²ΠΏΠΎΡΠ»Π΅Π΄ΡΡΠ²ΠΈΠΈ ΠΎΠΊΠΎΠ½ΡΠ°Π½ΠΈΡ ΡΡΠΎΠΊΠ° ΡΠΊΡΠΏΠ»ΡΠ°ΡΠ°ΡΠΈΠΈ. ΠΠ° Π½Π΅Π±ΠΎΠ»ΡΡΠΎΠΉ ΠΏΡΠΎΠΌΠ΅ΠΆΡΡΠΎΠΊ Π²ΡΠ΅ΠΌΠ΅Π½ΠΈ ΠΏΡΠΎΠ΄Π»ΠΈΡΡ ΡΠ°Π±ΠΎΡΡ ΠΌΠ΅Ρ Π°Π½ΠΈΠ·ΠΌΠ° ΠΌΠΎΠΆΠ½ΠΎ ΠΏΡΠΈ ΠΏΠΎΠΌΠΎΡΠΈ ΡΠΌΠ°Π·ΠΊΠΈ, Π½ΠΎ Π² ΠΊΠΎΠ½Π΅ΡΠ½ΠΎΠΌ ΠΈΡΠΎΠ³Π΅ ΠΊΠΎΠ½ΡΡΡΡΠΊΡΠΈΡ ΠΏΡΠΈΠ΄Π΅ΡΡΡ ΠΏΠΎΠ»Π½ΠΎΡΡΡΡ Π·Π°ΠΌΠ΅Π½ΠΈΡΡ;
- ΡΠ΅Π΄ΠΊΠΎ ΠΏΡΠΎΠΈΡΡ ΠΎΠ΄ΠΈΡ Π΄Π΅ΡΠΎΡΠΌΠ°ΡΠΈΡ Π½Π°ΠΏΡΠ°Π²Π»ΡΡΡΠΈΡ . Π’Π°ΠΊΠ°Ρ ΠΏΡΠΎΠ±Π»Π΅ΠΌΠ° ΠΌΠΎΠΆΠ΅Ρ Π²ΠΎΠ·Π½ΠΈΠΊΠ°ΡΡ ΠΈΠ·-Π·Π° ΡΠΈΠ»ΡΠ½ΠΎΠΉ Π·Π°ΡΡΠΆΠΊΠΈ ΠΊΡΠ΅ΠΏΠ΅ΠΆΠ½ΡΡ Π±ΠΎΠ»ΡΠΎΠ² ΠΈΠ»ΠΈ ΠΏΠ΅ΡΠ΅Π³ΡΡΠ·ΠΊΠΈ ΡΡΠΈΠΊΠ°. ΠΡΠΏΡΠ°Π²Π»ΡΠ΅ΡΡΡ ΡΠ°Π±ΠΎΡΠΎΡΠΏΠΎΡΠΎΠ±Π½ΠΎΡΡΡ Π΄Π΅ΡΠΎΡΠΌΠΈΡΠΎΠ²Π°Π½Π½ΠΎΠΉ ΡΡΡΠ½ΠΈΡΡΡΡ ΡΠ΅Π³ΡΠ»ΠΈΡΠΎΠ²ΠΎΡΠ½ΡΠΌΠΈ Π±ΠΎΠ»ΡΠ°ΠΌΠΈ ΠΈ ΠΎΡΠ»Π°Π±Π»Π΅Π½ΠΈΠ΅ΠΌ ΠΊΡΠ΅ΠΏΠ΅ΠΆΠ°.
Π§ΡΠΎΠ±Ρ ΠΈΠ·Π±Π΅ΠΆΠ°ΡΡ ΠΏΡΠΎΠ±Π»Π΅ΠΌ Ρ ΡΠ°Π±ΠΎΡΠΎΠΉ Π²ΡΠ΄Π²ΠΈΠΆΠ½ΠΎΠΉ ΡΡΡΠ½ΠΈΡΡΡΡ ΡΠ»Π΅Π΄ΡΠ΅Ρ ΠΏΡΠ°Π²ΠΈΠ»ΡΠ½ΠΎ ΠΏΠΎΠ΄Π±ΠΈΡΠ°ΡΡ ΠΌΠ΅Ρ Π°Π½ΠΈΠ·ΠΌ ΠΈ ΡΠ²ΠΎΠ΅Π²ΡΠ΅ΠΌΠ΅Π½Π½ΠΎ ΡΡ Π°ΠΆΠΈΠ²Π°ΡΡ Π·Π° Π½ΠΈΠΌ.
ΠΡΠ΄Π²ΠΈΠΆΠ½ΡΠ΅ ΠΌΠ΅Ρ
Π°Π½ΠΈΠ·ΠΌΡ Π½Π° ΠΊΡΡ
Π½Π΅ ΠΈΠ»ΠΈ Π² ΠΊΠΎΠΌΠ½Π°ΡΠ΅ ΠΏΠΎΠ·Π²ΠΎΠ»ΡΡΡ ΡΡΠΊΠΎΠ½ΠΎΠΌΠΈΡΡ ΠΏΡΠΎΡΡΡΠ°Π½ΡΡΠ²ΠΎ ΠΏΠΎΠΌΠ΅ΡΠ΅Π½ΠΈΡ. ΠΡΠ±ΠΈΡΠ°ΡΡ ΡΡΡΠ½ΠΈΡΡΡΡ Π½Π°Π΄ΠΎ Π²Π½ΠΈΠΌΠ°ΡΠ΅Π»ΡΠ½ΠΎ, ΠΎΠΏΠΈΡΠ°ΡΡΡ Π½Π° ΠΏΡΠ΅Π΄ΠΏΠΎΠ»Π°Π³Π°Π΅ΠΌΡΡ Π½Π°Π³ΡΡΠ·ΠΊΡ ΠΈ Π½Π΅ΠΎΠ±Ρ
ΠΎΠ΄ΠΈΠΌΠΎΡΡΡ ΠΈΡΠΏΠΎΠ»ΡΠ·ΠΎΠ²Π°Π½ΠΈΡ ΠΏΡΠΎΡΡΡΠ°Π½ΡΡΠ²Π° ΡΡΠΈΠΊΠ°.
ΠΠ°ΠΈΠ±ΠΎΠ»Π΅Π΅ ΡΠ°ΡΠΏΡΠΎΡΡΡΠ°Π½Π΅Π½Π½ΠΎΠΉ ΡΡΠΈΡΠ°Π΅ΡΡΡ ΡΠΎΠ»ΠΈΠΊΠΎΠ²ΡΠ΅ ΠΈ ΡΠ°ΡΠΈΠΊΠΎΠ²ΡΠ΅ ΠΌΠ΅Ρ
Π°Π½ΠΈΠ·ΠΌΡ. ΠΠΎΡΠ»Π΅Π΄Π½ΠΈΠ΅ ΠΈΡΠΏΠΎΠ»ΡΠ·ΠΎΠ²Π°ΡΡ ΠΏΡΠ΅Π΄ΠΏΠΎΡΡΠΈΡΠ΅Π»ΡΠ½Π΅Π΅, ΡΠ°ΠΊ ΠΊΠ°ΠΊ Ρ Π½ΠΈΡ
Π±ΠΎΠ»Π΅Π΅ Π΄Π»ΠΈΡΠ΅Π»ΡΠ½ΡΠΉ ΡΡΠΎΠΊ ΡΠ»ΡΠΆΠ±Ρ. ΠΠ° Π²ΡΠ΄Π²ΠΈΠΆΠ½ΠΎΠΉ ΡΡΡΠ½ΠΈΡΡΡΠΎΠΉ ΡΡΠ΅Π±ΡΠ΅ΡΡΡ ΠΏΠΎΡΡΠΎΡΠ½Π½ΡΠΉ ΠΊΠΎΠ½ΡΡΠΎΠ»Ρ ΠΈ ΡΡ
ΠΎΠ΄. Π‘Π²ΠΎΠ΅Π²ΡΠ΅ΠΌΠ΅Π½Π½Π°Ρ ΡΠΌΠ°Π·ΠΊΠ° ΠΈ ΠΎΡΡΡΡΡΡΠ²ΠΈΠ΅ ΠΏΠ΅ΡΠ΅Π³ΡΡΠ·ΠΎΠΊ ΠΏΠΎΠΌΠΎΠ³ΡΡ ΠΈΠ·Π±Π΅ΠΆΠ°ΡΡ Π±ΠΎΠ»ΡΡΠΈΠ½ΡΡΠ²Π° Π½Π΅ΠΈΡΠΏΡΠ°Π²Π½ΠΎΡΡΠ΅ΠΉ Π² ΡΠ°Π±ΠΎΡΠ΅ ΠΊΠΎΠ½ΡΡΡΡΠΊΡΠΈΠΈ.
Π‘Π΅Π³ΠΎΠ΄Π½Ρ ΡΠ°Π·Π±Π΅ΡΠ΅ΠΌ ΡΠ°ΠΊΠΎΠΉ ΠΏΠΎΠΏΡΠ»ΡΡΠ½ΡΠΉ Π²ΠΈΠ΄ Π½Π°ΠΏΡΠ°Π²Π»ΡΡΡΠΈΡ Π΄Π»Ρ Π²ΡΠ΄Π²ΠΈΠΆΠ½ΡΡ ΡΡΠΈΠΊΠΎΠ², ΠΊΠ°ΠΊ ΡΠ°ΡΠΈΠΊΠΎΠ²ΡΠ΅ Π½Π°ΠΏΡΠ°Π²Π»ΡΡΡΠΈΠ΅ ΠΏΠΎΠ»Π½ΠΎΠ³ΠΎ Π²ΡΠ΄Π²ΠΈΠΆΠ΅Π½ΠΈΡ. Π§Π΅ΡΡΠ½ΠΎ ΡΠΊΠ°Π·Π°ΡΡ, Π»ΠΈΡΠ½ΠΎ ΠΌΠ½Π΅ ΠΎΠ½ΠΈ ΠΎΡΠ΅Π½Ρ Π½ΡΠ°Π²ΡΡΡΡ Π·Π° ΡΠ²ΠΎΠ΅ ΡΠΎΡΠ΅ΡΠ°Π½ΠΈΠ΅ ΡΠ΅Π½Ρ/ΠΊΠ°ΡΠ΅ΡΡΠ²Π°.
ΠΡΠΈ Π½Π°ΠΏΡΠ°Π²Π»ΡΡΡΠΈΠ΅ ΡΠ΄ΠΎΠ±Π½ΠΎ ΠΈ ΠΏΡΠΎΡΡΠΎ ΠΌΠΎΠ½ΡΠΈΡΠΎΠ²Π°ΡΡ, ΠΎΠ½ΠΈ Π΄ΠΎΡΡΠ°ΡΠΎΡΠ½ΠΎ Π΄ΠΎΠ»Π³ΠΎΠ²Π΅ΡΠ½Ρ, ΠΎΠ±Π»Π°Π΄Π°ΡΡ Ρ ΠΎΡΠΎΡΠΈΠΌΠΈ ΡΠΊΡΠΏΠ»ΡΠ°ΡΠ°ΡΠΈΠΎΠ½Π½ΡΠΌΠΈ Ρ Π°ΡΠ°ΠΊΡΠ΅ΡΠΈΡΡΠΈΠΊΠ°ΠΌΠΈ ΡΠ°ΠΊΠΈΠΌΠΈ, ΠΊΠ°ΠΊ ΠΏΠ»Π°Π²Π½ΠΎΡΡΡ Ρ ΠΎΠ΄Π° ΠΈ Π½Π°Π³ΡΡΠ·ΠΊΠ° (Π΄ΠΎ 46 ΠΊΠ³).
ΠΠΎΠΌΠΏΠ°Π½ΠΈΠΈ ΠΏΡΠΎΠΈΠ·Π²ΠΎΠ΄ΠΈΡΠ΅Π»ΠΈ ΠΏΡΠ΅Π΄Π»Π°Π³Π°ΡΡ Π΄ΠΎΡΡΠ°ΡΠΎΡΠ½ΠΎ ΡΠΈΡΠΎΠΊΠΈΠΉ . ΠΠΎ Π΄Π»ΠΈΠ½Π΅ Π½ΠΈ Π²Π°ΡΡΠΈΡΡΡΡ ΠΎΡ 250 ΠΌΠΌ Π΄ΠΎ 700 ΠΌΠΌ (Ρ ΡΠ°Π³ΠΎΠΌ Π² 50 ΠΌΠΈΠ»Π»ΠΈΠΌΠ΅ΡΡΠΎΠ²). ΠΠ° ΠΏΡΠ΅Π΄ΡΡΠ°Π²Π»Π΅Π½Π½ΠΎΠΉ ΡΡ
Π΅ΠΌΠ΅ ΠΊΠ°ΠΊ ΡΠ°Π· ΠΈ ΠΏΡΠ΅Π΄ΡΡΠ°Π²Π»Π΅Π½Ρ ΠΎΡΠ½ΠΎΠ²Π½ΡΠ΅ ΡΠΈΠΏΠΎΡΠ°Π·ΠΌΠ΅ΡΡ, Π° ΡΠ°ΠΊΠΆΠ΅ ΠΏΡΠΈΡΠ°Π΄ΠΎΡΠ½ΡΠ΅ ΡΠ°Π·ΠΌΠ΅ΡΡ. Π‘ΡΠΎΠΈΡ Π·Π°ΠΌΠ΅ΡΠΈΡΡ, ΡΡΠΎ ΡΠ°ΡΠΏΠΎΠ»ΠΎΠΆΠ΅Π½ΠΈΠ΅ ΠΎΡΠ½ΠΎΠ²Π½ΡΡ
ΠΎΡΠ²Π΅ΡΡΡΠΈΠΉ Ρ ΡΠ°Π·Π½ΡΡ
ΠΏΡΠΎΠΈΠ·Π²ΠΎΠ΄ΠΈΡΠ΅Π»Π΅ΠΉ ΠΌΠΎΠΆΠ΅Ρ ΠΎΡΠ»ΠΈΡΠ°ΡΡΡΡ, Ρ
ΠΎΡΡ Π΅ΡΡΡ ΠΈ ΡΠΈΠΊΡΠΈΡΠΎΠ²Π°Π½Π½ΡΠ΅ (ΠΎ ΠΊΠΎΡΠΎΡΡΡ
ΠΌΡ ΠΏΠΎΠ³ΠΎΠ²ΠΎΡΠΈΠΌ Π½ΠΈΠΆΠ΅).
ΠΠ° ΡΠ»Π΅Π΄ΡΡΡΠ΅ΠΌ ΡΠ»Π°ΠΉΠ΄Π΅ ΠΏΡΠ΅Π΄ΡΡΠ°Π²Π»Π΅Π½Ρ Π²Π½Π΅ΡΠ½ΠΈΠΉ Π²ΠΈΠ΄ Π΄Π°Π½Π½ΡΡ Π½Π°ΠΏΡΠ°Π²Π»ΡΡΡΠΈΡ . ΠΠ½ΠΈ ΡΠ°Π·Π±ΠΈΡΠ°ΡΡΡΡ ΠΈ ΡΠΎΡΡΠΎΡΡ ΠΈΠ· Π΄Π²ΡΡ ΠΏΠΎΠ»ΠΎΠ²ΠΈΠ½. ΠΠΎΠ»Π΅Π΅ ΠΊΡΡΠΏΠ½Π°Ρ ΠΈ ΡΠ»ΠΎΠΆΠ½Π°Ρ (Ρ ΠΏΠΎΠ΄Π²ΠΈΠΆΠ½ΠΎΠΉ ΡΠ°ΡΠΈΠΊΠΎΠ²ΠΎΠΉ ΠΊΠ°ΡΡΠ΅ΡΠΎΠΉ) ΠΊΡΠ΅ΠΏΠΈΡΡΡ ΠΊ ΡΡΠΎΠΉΠΊΠ°ΠΌ ΠΊΠΎΡΠΎΠ±Π°, ΠΌΠ΅Π½ΡΡΠ°Ρ ΠΊ ΡΠ°ΠΌΠΎΠΌΡ Π²ΡΠ΄Π²ΠΈΠΆΠ½ΠΎΠΌΡ ΡΡΠΈΠΊΡ. Π ΠΊΠΎΠΌΠΏΠ»Π΅ΠΊΡΠ΅ ΠΏΠΎΡΡΠ°Π²ΠΊΠΈ Π²ΡΠ΅Π³Π΄Π° ΠΈΠΌΠ΅Π΅ΡΡΡ ΠΏΠ°ΡΠ° Π½Π°ΠΏΡΠ°Π²Π»ΡΡΡΠΈΡ (Π½Π° ΠΎΠ΄ΠΈΠ½ ΡΡΠΈΠΊ).
Π Π°ΡΡΠΌΠΎΡΡΠΈΠΌ ΠΏΡΠΈΡΠ°Π΄ΠΊΡ Π΄Π°Π½Π½ΠΎΠ³ΠΎ Π²ΠΈΠ΄Π° Π½Π°ΠΏΡΠ°Π²Π»ΡΡΡΠΈΡ Π½Π° ΠΏΡΠΈΠΌΠ΅ΡΠ΅ ΡΡΡΠ°Π½ΠΎΠ²ΠΊΠΈ ΠΏΡΠΎΡΡΠΎΠ³ΠΎ Π²ΡΠ΄Π²ΠΈΠΆΠ½ΠΎΠ³ΠΎ ΡΡΠΈΠΊΠ°.
ΠΠ°ΡΠ½Π΅ΠΌ Ρ ΠΏΡΠΈΡΠ°Π΄ΠΊΠΈ ΡΠΎΠΉ ΡΠ°ΡΡΠΈ Π½Π°ΠΏΡΠ°Π²Π»ΡΡΡΠΈΡ , ΠΊΠΎΡΠΎΡΠ°Ρ ΠΊΡΠ΅ΠΏΠΈΡΡΡ ΠΊ ΡΠ°ΠΌΠΎΠΌΡ ΡΡΠΈΠΊΡ. ΠΠ»Ρ ΡΡΠΎΠ³ΠΎ Π½Π° Π±ΠΎΠΊΠΎΠ²ΠΎΠΉ ΡΡΠ΅Π½ΠΊΠ΅ ΠΏΠΎΡΠ»Π΅Π΄Π½Π΅Π³ΠΎ ΠΏΡΠΎΠ²ΠΎΠ΄ΠΈΠΌ Π»ΠΈΠ½ΠΈΡ ΠΏΠ°ΡΠ°Π»Π»Π΅Π»ΡΠ½ΡΡ Π΄Π»ΠΈΠ½Π½ΠΈΠΊΡ. ΠΡΠ° Π»ΠΈΠ½ΠΈΡ, ΠΊΠ°ΠΊ ΠΏΡΠ°Π²ΠΈΠ»ΠΎ, Π΄ΠΎΠ»ΠΆΠ½Π° ΠΏΡΠΎΡ ΠΎΠ΄ΠΈΡΡ ΠΏΠΎ ΡΠ΅Π½ΡΡΡ Ρ Π½Π΅Π±ΠΎΠ»ΡΡΠΈΠΌ ΡΠΌΠ΅ΡΠ΅Π½ΠΈΠ΅ΠΌ (Ρ ΠΎΡΡ, ΡΡΠΎΡ ΠΌΠΎΠΌΠ΅Π½Ρ Π½Π΅ ΠΏΡΠΈΠ½ΡΠΈΠΏΠΈΠ°Π»Π΅Π½, Π²ΠΎΠ·ΠΌΠΎΠΆΠ½ΠΎ ΡΠΌΠ΅ΡΠ΅Π½ΠΈΠ΅ Π²Π²Π΅ΡΡ ΠΈΠ»ΠΈ Π²Π½ΠΈΠ·).
ΠΠ° ΡΠ°Π·ΠΌΠ΅ΡΠΎΡΠ½ΡΡ Π»ΠΈΠ½ΠΈΡ ΡΠΊΠ»Π°Π΄ΡΠ²Π°Π΅ΠΌ Π΄Π΅ΡΠ°Π»Ρ, ΡΡΠΎΠ±Ρ Π²ΠΎ Π²ΡΠ΅Ρ
ΠΎΡΠ²Π΅ΡΡΡΠΈΡΡ
ΡΡΡΠΎΠ³ΠΎ ΠΏΠΎ ΡΠ΅Π½ΡΡΡ ΠΎΠ½Π° Π±ΡΠ»Π° Π²ΠΈΠ΄Π½Π°. ΠΡΡΠ°Π²Π½ΠΈΠ²Π°Π΅ΠΌ Π½Π°ΠΏΡΠ°Π²Π»ΡΡΡΠΈΠ΅ ΠΏΠΎ ΠΏΠ΅ΡΠ΅Π΄Π½Π΅ΠΌΡ ΠΊΡΠ°Ρ Π±ΠΎΠΊΠΎΠ²ΠΈΠ½Ρ ΡΡΠΈΠΊΠ° ΠΈ Π½Π°ΠΊΠ°Π»ΡΠ²Π°Π΅ΠΌ ΡΠ΅Π½ΡΡΡ ΠΎΡΠ²Π΅ΡΡΡΠΈΠΉ ΡΠΈΠ»ΠΎΠΌ (Ρ ΠΎΠ±ΡΡΠ½ΠΎ ΠΊΠΎΠ»Ρ ΠΎΠ΄Π½ΠΎ ΠΊΡΡΠ³Π»ΠΎΠ΅ ΠΎΡΠ²Π΅ΡΡΡΠΈΠ΅ ΠΈ ΠΎΡΡΠ°Π»ΡΠ½ΡΠ΅ Π³ΠΎΡΠΈΠ·ΠΎΠ½ΡΠ°Π»ΡΠ½ΡΠ΅, ΠΊΠΎΡΠΎΡΡΠ΅ ΠΏΠΎΠ·Π²ΠΎΠ»ΡΡΡ ΠΎΡΡΡΠ΅ΡΡΠ²Π»ΡΡΡ ΡΠ΅Π³ΡΠ»ΠΈΡΠΎΠ²ΠΊΡ Π² Π³ΠΎΡΠΈΠ·ΠΎΠ½ΡΠ°Π»ΡΠ½ΠΎΠΉ ΠΏΠ»ΠΎΡΠΊΠΎΡΡΠΈ).
ΠΠΎΠΆΠ½ΠΎ, ΠΊΠΎΠ½Π΅ΡΠ½ΠΎ, Π²ΠΎΡΠΏΠΎΠ»ΡΠ·ΠΎΠ²Π°ΡΡΡΡ Π΄Π»Ρ ΡΠ°Π·ΠΌΠ΅ΡΠΊΠΈ ΡΡ Π΅ΠΌΠΎΠΉ ΠΏΡΠΈΡΠ°Π΄ΠΊΠΈ, Π½Π°ΠΏΡΠΈΠΌΠ΅Ρ, ΡΠΎΠΉ, ΠΊΠΎΡΠΎΡΡΡ Ρ ΠΏΡΠΈΠ²Π΅Π» Π² Π½Π°ΡΠ°Π»Π΅ ΡΡΠ°ΡΡΠΈ. ΠΠΎ Ρ ΡΠ°Π·Π½ΡΡ ΠΏΡΠΎΠΈΠ·Π²ΠΎΠ΄ΠΈΡΠ΅Π»Π΅ΠΉ ΡΠ°ΡΠΏΠΎΠ»ΠΎΠΆΠ΅Π½ΠΈΠ΅ ΠΎΡΠ²Π΅ΡΡΡΠΈΠΉ ΠΌΠΎΠΆΠ΅Ρ ΡΠ°Π·Π½ΠΈΡΡΡΡ, ΠΏΠΎΡΡΠΎΠΌΡ Ρ Π΄Π΅ΠΉΡΡΠ²ΡΡ ΠΈΠΌΠ΅Π½Π½ΠΎ ΡΠ°ΠΊ.
ΠΠ° ΡΠ»Π΅Π΄ΡΡΡΠ΅ΠΌ ΡΠ»Π°ΠΉΠ΄Π΅ Π²ΠΈΠ΄Π½Π° ΡΠ° ΡΠ°ΠΌΠ°Ρ Π»ΠΈΠ½ΠΈΡ Ρ Π½Π°ΠΊΠΎΠ»ΠΎΡΡΠΌΠΈ Π½Π° Π½Π΅ΠΉ ΠΎΡΠ²Π΅ΡΡΡΠΈΡΠΌΠΈ Π΄Π»Ρ ΠΌΠ΅ΡΠΈΠ·ΠΎΠ².
Π ΠΊΠ°ΠΆΠ΄ΠΎΠ΅ ΠΈΠ· ΡΡΠΈΡ ΠΎΡΠ²Π΅ΡΡΡΠΈΠΉ Π²ΠΊΡΡΡΠΈΠ²Π°Π΅ΡΡΡ ΡΠ°ΠΌΠΎΡΠ΅Π·. Π― ΠΈΡΠΏΠΎΠ»ΡΠ·ΡΡ ΡΠ°ΠΌΠΎΡΠ΅Π·Ρ 4Ρ 16 ΠΌΠΈΠ»Π»ΠΈΠΌΠ΅ΡΡΠΎΠ². Π’ΠΎΡΠ½ΠΎ ΡΠ°ΠΊΠΈΠ΅ ΠΆΠ΅ ΠΌΠ°Π½ΠΈΠΏΡΠ»ΡΡΠΈΠΈ ΠΏΠΎΠ²ΡΠΎΡΡΡΡΡΡ Ρ Π΄ΡΡΠ³ΠΎΠΉ ΡΡΠΎΡΠΎΠ½Ρ ΡΡΠΈΠΊΠ° (Π½Π΅ Π·Π°Π±ΡΠ²Π°Π΅ΠΌ ΡΠΌΠΎΡΡΠ΅ΡΡ, Π³Π΄Π΅ ΡΡΠΎΠ½Ρ/Π·Π°Π΄ ΡΡΠΈΠΊΠ°, ΡΡΠΎΠ±Ρ Π½Π΅ ΠΏΡΠΈΠΊΡΡΡΠΈΡΡ Π½Π°ΠΏΡΠ°Π²Π»ΡΠΉΠΊΠΈ Π² ΡΠ°Π·Π½ΡΠ΅ ΡΡΠΎΡΠΎΠ½Ρ).
ΠΠ° ΡΠ»Π΅Π΄ΡΡΡΠ΅ΠΌ ΡΠΎΡΠΎ Ρ ΠΏΠΎΡΡΠ°ΡΠ°Π»ΡΡ ΠΏΠΎΠΊΠ°Π·Π°ΡΡ ΡΠΎΡ ΠΌΠΎΠΌΠ΅Π½Ρ, ΡΡΠΎ ΠΏΠ΅ΡΠ΅Π΄Π½ΠΈΠΉ ΠΊΡΠ°ΠΉ Π½Π°ΠΏΡΠ°Π²Π»ΡΡΡΠ΅ΠΉ ΡΠΎΠΎΡΠ²Π΅ΡΡΡΠ²ΡΠ΅Ρ ΠΏΠ΅ΡΠ΅Π΄Π½Π΅ΠΌΡ ΠΊΡΠ°Ρ ΡΡΠΈΠΊΠ°.
ΠΠ΅ΡΠ΅ΠΉΠ΄Π΅ΠΌ ΠΊΠΎ Π²ΡΠΎΡΠΎΠΌΡ ΠΊΠΎΠΌΠΏΠΎΠ½Π΅Π½ΡΡ, ΠΊΠΎΡΠΎΡΡΠΉ ΠΌΠΎΠ½ΡΠΈΡΡΠ΅ΡΡΡ Π½Π° ΡΡΠΎΠΉΠΊΡ ΠΊΠΎΡΠΎΠ±Π°. ΠΠΏΡΡΡ-ΡΠ°ΠΊΠΈ ΠΎΠΏΡΡΠΊΠ°Π΅ΠΌ ΠΏΠ΅ΡΠΏΠ΅Π½Π΄ΠΈΠΊΡΠ»ΡΡ ΠΊ ΠΏΠ΅ΡΠ΅Π΄Π½Π΅ΠΉ Π³ΡΠ°Π½ΠΈ ΡΡΠΎΠΉΠΊΠΈ. Π‘ΡΠΎΠ»ΡΡΠ½ΡΠΉ ΡΠ³ΠΎΠ»ΡΠ½ΠΈΠΊ β ΠΏΡΠΎΡΡΠΎ Π½Π΅Π·Π°ΠΌΠ΅Π½ΠΈΠΌΡΠΉ ΠΈΠ½ΡΡΡΡΠΌΠ΅Π½Ρ.
ΠΠ° Π΄Π°Π½Π½ΠΎΠΌ ΠΏΠ΅ΡΠΏΠ΅Π½Π΄ΠΈΠΊΡΠ»ΡΡΠ΅ ΠΎΡΡΡΡΠΏΠ°Π΅ΠΌ 37 ΠΌΠΈΠ»Π»ΠΈΠΌΠ΅ΡΡΠΎΠ² ΠΈ Π½Π°ΠΊΠ°Π»ΡΠ²Π°Π΅ΠΌ ΡΡΡ ΡΠΎΡΠΊΡ ΡΠΈΠ»ΠΎΠΌ. (Π΄Π°Π½Π½ΠΎΠ΅ ΠΎΡΠ²Π΅ΡΡΡΠΈΠ΅ ΡΠΈΠΊΡΠΈΡΠΎΠ²Π°Π½ΠΎ Π΄Π»Ρ Π²ΡΠ΅Ρ
Π²ΠΈΠ΄ΠΎΠ² ΠΈ ΠΏΡΠΎΠΈΠ·Π²ΠΎΠ΄ΠΈΡΠ΅Π»Π΅ΠΉ).
ΠΠ±ΡΠ°ΡΠΈΡΠ΅ Π²Π½ΠΈΠΌΠ°Π½ΠΈΠ΅, ΡΡΠΎ Π½Π° ΡΡ Π΅ΠΌΠ΅ ΠΎΡ ΠΏΠ΅ΡΠ΅Π΄Π½Π΅Π³ΠΎ ΠΊΡΠ°Ρ Π½Π°ΠΏΡΠ°Π²Π»ΡΠΉΠΊΠΈ Π΄ΠΎ ΡΠ΅Π½ΡΡΠ° ΡΡΠΎΠ³ΠΎ ΠΎΡΠ²Π΅ΡΡΡΠΈΡ Π²ΡΠ΅Π³ΠΎ 35 ΠΌΠΈΠ»Π»ΠΈΠΌΠ΅ΡΡΠΎΠ², ΡΠΎ Π΅ΡΡΡ ΠΎΠ½Π° Π΄ΠΎΠ»ΠΆΠ½Π° Π±ΡΡΡ Π·Π°Π³Π»ΡΠ±Π»Π΅Π½Π° Π²Π½ΡΡΡΡ ΠΊΠΎΡΠΎΠ±Π° Π½Π° 2 ΠΌΠΌ.
Π£ΠΊΠ»Π°Π΄ΡΠ²Π°Π΅ΠΌ Π½Π°ΠΏΡΠ°Π²Π»ΡΡΡΠΈΠ΅ Π½Π° Π»ΠΈΠ½ΠΈΡ, ΡΠΎΠ²ΠΌΠ΅ΡΠ°Ρ Π΅Π΅ Ρ ΡΠ΅Π½ΡΡΠ°ΠΌΠΈ ΠΎΡΠ²Π΅ΡΡΡΠΈΠΉ.
ΠΠ°ΠΊΡΡΡΠΈΠ²Π°Π΅ΠΌ Π² Π½Π°ΠΊΠΎΠ»ΠΎΡΠΎΠ΅ ΠΎΡΠ²Π΅ΡΡΡΠΈΠ΅ ΡΠ°ΠΌΠΎΡΠ΅Π· (Π²ΡΠ΅ ΡΠΎΡ ΠΆΠ΅ 4Ρ 16). ΠΠ°ΠΊ ΠΏΡΠ°Π²ΠΈΠ»ΠΎ, Ρ Π½Π΅ Π½Π°ΠΊΠ°Π»ΡΠ²Π°Ρ ΠΎΡΡΠ°Π»ΡΠ½ΡΠ΅ ΠΎΡΠ²Π΅ΡΡΡΠΈΡ, ΠΎΡΡΠ°Π»ΡΠ½ΡΠ΅ Π²ΠΊΡΡΡΠΈΠ²Π°Ρ ΠΏΡΠΎΡΡΠΎ Π² ΡΠ΅Π½ΡΡ ΡΠ°Π·ΠΌΠ΅ΡΠΎΡΠ½ΠΎΠΉ Π»ΠΈΠ½ΠΈΠΈ.
ΠΠ° ΡΠ»Π΅Π΄ΡΡΡΠ΅ΠΌ ΡΠΎΡΠΎ ΠΌΡ ΠΈΠΌΠ΅Π΅ΠΌ ΠΏΠΎΠ»Π½ΠΎΡΡΡΡ ΠΏΡΠΈΡΠ°ΠΆΠ΅Π½Π½ΡΠ΅ Π½Π°ΠΏΡΠ°Π²Π»ΡΡΡΠΈΠ΅.
Π’Π΅ΠΏΠ΅ΡΡ ΠΊΡΡΠΏΠ½ΡΠΌ ΠΏΠ»Π°Π½ΠΎΠΌ ΠΏΠ΅ΡΠ΅Π΄Π½ΠΈΠΉ ΠΊΡΠ°ΠΉ. Π’Π°ΠΊ Π±ΠΎΠ»Π΅Π΅ Π½Π°Π³Π»ΡΠ΄Π½ΠΎ Π²ΠΈΠ΄Π½ΠΎ, ΡΡΠΎ ΡΡΡΠ½ΠΈΡΡΡΠ° Π΄Π΅ΠΉΡΡΠ²ΠΈΡΠ΅Π»ΡΠ½ΠΎ ΡΡΠΎΠΏΠ»Π΅Π½Π° Π½Π° 2 ΠΌΠΌ ΠΎΡΠ½ΠΎΡΠΈΡΠ΅Π»ΡΠ½ΠΎ ΠΏΠ΅ΡΠ΅Π΄Π½Π΅ΠΉ Π³ΡΠ°Π½ΠΈ ΠΊΠΎΡΠΎΠ±Π°.
ΠΠΎΠ²ΡΠΎΡΡΠ΅ΠΌ Π°Π½Π°Π»ΠΎΠ³ΠΈΡΠ½ΡΠ΅ ΠΌΠ°Π½ΠΈΠΏΡΠ»ΡΡΠΈΠΈ Π΄Π»Ρ Π²ΡΠ΅Ρ Π½Π°ΠΏΡΠ°Π²Π»ΡΡΡΠΈΡ , ΠΏΠΎΠ΄Π³ΠΎΡΠΎΠ²ΠΈΠ² ΡΡΠ΅Π½ΠΊΠΈ ΠΊ ΡΠ±ΠΎΡΠΊΠ΅. ΠΠ΅Π»Π°ΡΠ΅Π»ΡΠ½ΠΎ ΡΡΠ°Π²ΠΈΡΡ Π½Π°ΠΏΡΠ°Π²Π»ΡΡΡΠΈΠ΅ ΠΈΠΌΠ΅Π½Π½ΠΎ Π½Π° ΡΠ°Π·Π΄Π΅Π»ΡΠ½ΡΡ Π΄Π΅ΡΠ°Π»ΡΡ , ΠΏΠΎΡΠΎΠΌΡ ΡΡΠΎ ΠΏΡΠΈΡΠ°ΠΆΠΈΠ²Π°ΡΡΡΡ ΠΈΡ Π½Π° ΡΠΆΠ΅ ΡΠΎΠ±ΡΠ°Π½Π½ΠΎΠΌ ΠΊΠΎΡΠΎΠ±Π΅ ΡΠ° Π΅ΡΠ΅ ΠΌΠΎΡΠΎΠΊΠ°.
Π‘Ρ ΠΎΠΆΠΈΠΌ ΠΎΠ±ΡΠ°Π·ΠΎΠΌ ΠΏΠΎΠ΄Π³ΠΎΡΠ°Π²Π»ΠΈΠ²Π°Π΅ΠΌ ΠΈ ΠΎΡΡΠ°Π»ΡΠ½ΡΠ΅ ΡΡΠΈΠΊΠΈ.
Π‘ΠΎΠ±ΠΈΡΠ°Π΅ΠΌ ΠΊΠΎΡΠΎΠ±. Π’ΠΎ Π΅ΡΡΡ ΡΡΠ°Π²ΠΈΠΌ Π²Π΅ΡΡ
Π½ΠΈΠ΅ ΠΈ Π½ΠΈΠΆΠ½ΠΈΠ΅ Π³ΠΎΡΠΈΠ·ΠΎΠ½ΡΡ, Π·Π°Π΄Π½ΡΡ ΡΡΠ΅Π½ΠΊΡ, ΡΡΠΎΠΉΠΊΠΈ.
ΠΠΎΠ»ΠΆΠ½ΠΎ ΠΏΠΎΠ»ΡΡΠΈΡΡΡΡ ΠΏΡΠΈΠΌΠ΅ΡΠ½ΠΎ ΡΠ°ΠΊ.
ΠΡΡΠ°Π΅ΡΡΡ Π²ΡΡΠ°Π²ΠΈΡΡ ΡΡΠΈΠΊΠΈ Π½Π° ΠΏΡΠΈΡΠΈΡΠ°ΡΡΠΈΠ΅ΡΡ ΠΈΠΌ ΠΌΠ΅ΡΡΠ°. ΠΠ»Ρ ΡΡΠΎΠ³ΠΎ Π½Π΅ΠΎΠ±Ρ ΠΎΠ΄ΠΈΠΌΠΎ ΠΌΠ°ΠΊΡΠΈΠΌΠ°Π»ΡΠ½ΠΎ Π²ΡΠ΄Π²ΠΈΠ½ΡΡΡ Π²Π½ΡΡΡΠ΅Π½Π½ΠΈΠΉ ΠΊΠΎΠΌΠΏΠΎΠ½Π΅Π½Ρ.
ΠΠ±ΡΠ°ΡΠΈΡΠ΅ Π²Π½ΠΈΠΌΠ°Π½ΠΈΠ΅ Π½Π° ΠΏΠΎΠ΄Π²ΠΈΠΆΠ½ΡΡ ΠΊΠ°ΡΡΠ΅ΡΡ Ρ ΡΠ°ΡΠΈΠΊΠ°ΠΌΠΈ, ΠΎΠ½Π° ΡΠ°ΠΊΠΆΠ΅ Π΄ΠΎΠ»ΠΆΠ½Π° Π±ΡΡΡ Π²ΡΠ΄Π²ΠΈΠ½ΡΡΠ° Π²ΠΏΠ΅ΡΠ΅Π΄ Π΄ΠΎ ΡΠΏΠΎΡΠ°.
Π―ΡΠΈΠΊ Π·Π°Π²ΠΎΠ΄ΠΈΠΌ Π½Π° Π½Π°ΠΏΡΠ°Π²Π»ΡΡΡΠΈΠ΅. Π‘Π½Π°ΡΠ°Π»Π° Ρ ΠΎΠ΄Π½ΠΎΠΉ ΡΡΠΎΡΠΎΠ½Ρ, ΠΏΠΎΡΠΎΠΌ Ρ Π΄ΡΡΠ³ΠΎΠΉ. ΠΡΠΈ ΡΡΠΎΠΌ ΠΊΠΎΠ½ΡΠΈΠΊ ΡΡΠΈΡΠ½ΠΎΠΉ Π΄Π΅ΡΠ°Π»ΠΈ Π΄ΠΎΠ»ΠΆΠ΅Π½ Π·Π°ΠΉΡΠΈ Π² ΠΊΠ°ΡΡΠ΅ΡΡ. Π ΠΏΡΠΎΡΠΈΠ²Π½ΠΎΠΌ ΡΠ»ΡΡΠ°Π΅, ΠΎΠ½ ΠΌΠΎΠΆΠ΅Ρ ΡΠΏΠΈΡΠ°ΡΡΡΡ Π² Π½Π΅Π΅, ΡΡΠΎ ΠΏΡΠ΅ΠΏΡΡΡΡΠ²ΡΠ΅Ρ ΠΏΡΠ°Π²ΠΈΠ»ΡΠ½ΠΎΠΉ Π΅Π³ΠΎ ΡΡΡΠ°Π½ΠΎΠ²ΠΊΠ΅. ΠΠΎΡΠ»Π΅ ΡΠΎΠ³ΠΎ, ΠΊΠ°ΠΊ Π²Ρ ΡΡΠΎ ΡΠ΄Π΅Π»Π°Π»ΠΈ Ρ ΠΎΠ±Π΅ΠΈΡ ΡΡΠΎΡΠΎΠ½, ΡΡΠΈΠΊ Π½Π΅ΠΎΠ±Ρ ΠΎΠ΄ΠΈΠΌΠΎ Π·Π°Π΄Π²ΠΈΠ½ΡΡΡ Π²Π½ΡΡΡΡ Β«Π΄ΠΎ ΡΠ΅Π»ΡΠΊΠ°Β».
Π‘Π»Π΅Π΄ΡΡΡΠ΅Π΅ ΡΠΎΡΠΎ ΠΈΠ»Π»ΡΡΡΡΠΈΡΡΠ΅Ρ ΠΈΠΌΠ΅Π½Π½ΠΎ ΠΏΠΎΠ»Π½ΠΎΠ²ΡΠΊΠ°ΡΠ½ΠΎΠΉ Ρ Π°ΡΠ°ΠΊΡΠ΅Ρ ΡΠΈΡΡΠ΅ΠΌΡ. ΠΠΈΠΆΠ½ΠΈΠΉ Π±Π΅Π»ΡΠΉ ΡΡΠΈΠΊ Π²ΡΠ΄Π²ΠΈΠ½ΡΡ Π½Π° Π²ΡΡ Π΄Π»ΠΈΠ½Ρ, ΡΡΠΎ ΠΎΡΠ΅Π½Ρ ΡΠ΄ΠΎΠ±Π½ΠΎ Π² ΠΈΡΠΏΠΎΠ»ΡΠ·ΠΎΠ²Π°Π½ΠΈΠΈ.
Π’Π΅ΠΏΠ΅ΡΡ ΠΏΠΎΠ³ΠΎΠ²ΠΎΡΠΈΠΌ ΠΎ ΡΠΎΠΌ, ΠΊΠ°ΠΊ ΡΠ½ΡΡΡ ΡΡΠΈΠΊ Ρ Π½Π°ΠΏΡΠ°Π²Π»ΡΡΡΠΈΡ
. ΠΠ° ΡΠ°ΠΌΠΎΠΌ Π΄Π΅Π»Π΅ ΡΡΠΎ Π½Π΅ ΠΈΠ½ΡΡΠΈΡΠΈΠ²Π½ΠΎ-ΠΏΠΎΠ½ΡΡΠ½ΡΠΉ ΠΏΡΠΎΡΠ΅ΡΡ, ΠΏΠΎΡΡΠΎΠΌΡ ΠΌΠ½ΠΎΠ³ΠΈΠ΅ Π»ΡΠ΄ΠΈ, Π΄Π°ΠΆΠ΅ ΡΠ²ΡΠ·Π°Π½Π½ΡΠ΅ Ρ ΠΌΠ΅Π±Π΅Π»ΡΡ, ΡΠ°ΡΡΠ΅Π½ΡΠΊΠΎ Π½Π΅ Π΄ΠΎΠ³Π°Π΄ΡΠ²Π°ΡΡΡΡ ΠΎ ΡΠΎΠΌ, ΡΡΠΎ ΡΡΠΈ Π½Π°ΠΏΡΠ°Π²Π»ΡΡΡΠΈΠ΅ ΡΠ°Π·Π±ΠΈΡΠ°ΡΡΡΡ. Π ΡΠ΅Π½ΡΡΠ΅ Π΄Π°Π½Π½ΠΎΠΉ ΡΠΎΡΠΎΠ³ΡΠ°ΡΠΈΠΈ Π²Ρ Π²ΠΈΠ΄ΠΈΡΠ΅ ΡΠ΅ΡΠ½ΡΠΉ ΡΡΡΠ°ΠΆΠΎΠΊ.
ΠΠ³ΠΎ Π½Π΅ΠΎΠ±Ρ ΠΎΠ΄ΠΈΠΌΠΎ ΡΠΌΠ΅ΡΡΠΈΡΡ ΠΊ Π½ΠΈΠ·Ρ, ΠΏΠΎΡΠ»Π΅ ΡΡΠΎΠ³ΠΎ Π½Π°ΠΏΡΠ°Π²Π»ΡΡΡΠΈΠ΅ Π»Π΅Π³ΠΊΠΎ ΡΠ°Π·Π±ΠΈΡΠ°ΡΡΡΡ.
Π‘Π»Π΅Π΄ΡΡΡΠ΅Π΅ β ΡΡΠΎ ΡΠΆΠ΅ Π²ΡΠ΄Π²ΠΈΠ½ΡΡΠ°Ρ, Π³ΠΎΡΠΎΠ²Π°Ρ ΠΊ Π΄Π΅ΠΌΠΎΠ½ΡΠ°ΠΆΡ Π½Π°ΠΏΡΠ°Π²Π»ΡΠΉΠΊΠ° ΠΈ ΠΏΠΎΠ»Π½ΠΎΡΡΡΡ ΠΎΡΠΊΡΡΡΡΠΉ ΠΏΡΡΠΆΠΈΠ½Π½ΡΠΉ ΡΠΈΠΊΡΠ°ΡΠΎΡ, ΠΊΠΎΡΠΎΡΡΠΉ ΠΌΡ ΡΠΎΠ»ΡΠΊΠΎ ΡΡΠΎ ΡΠ΄Π²ΠΈΠ³Π°Π»ΠΈ. ΠΠ°Π΄ΠΎ ΠΎΡΠΌΠ΅ΡΠΈΡΡ, ΡΡΠΎ Ρ ΠΏΡΠΎΡΠΈΠ²ΠΎΠΏΠΎΠ»ΠΎΠΆΠ½ΠΎΠΉ (Π»Π΅Π²ΠΎΠΉ) ΡΡΠΎΡΠΎΠ½Ρ ΡΡΠΈΠΊΠ° ΡΡΡΠ°ΠΆΠΎΠΊ Π½Π΅ΠΎΠ±Ρ ΠΎΠ΄ΠΈΠΌΠΎ Π΄Π²ΠΈΠ³Π°ΡΡ Π²Π²Π΅ΡΡ .
ΠΠ° ΡΡΠΎΠΌ ΡΠ°Π·Π³ΠΎΠ²ΠΎΡ ΠΎΠ± ΡΡΡΠ°Π½ΠΎΠ²ΠΊΠ΅ Π½Π°ΠΏΡΠ°Π²Π»ΡΡΡΠΈΡ ΠΌΠΎΠΆΠ½ΠΎ Π·Π°ΠΊΠΎΠ½ΡΠΈΡΡ.
Π¨Π°ΡΠΈΠΊΠΎΠ²ΡΠ΅ Π½Π°ΠΏΡΠ°Π²Π»ΡΡΡΠΈΠ΅ Π°ΠΊΡΠΈΠ²Π½ΠΎ ΠΏΡΠΈΠΌΠ΅Π½ΡΡΡΡ ΠΌΠ΅Π±Π΅Π»ΡΡΠΈΠΊΠ°ΠΌΠΈ Π΄Π»Ρ Π²ΡΠ΄Π²ΠΈΠΆΠ΅Π½ΠΈΡ ΡΡΠΈΠΊΠΎΠ². Π ΠΎΡΠ½ΠΎΠ²Π΅ ΡΠ°ΡΠΈΠΊΠΎΠ²ΡΡ Π½Π°ΠΏΡΠ°Π²Π»ΡΡΡΠΈΡ ΠΎΠ±ΡΡΠ½ΠΎ Π΄ΠΎΠ±ΡΠΎΡΠ½ΠΎΠ΅ ΠΆΠ΅Π»Π΅Π·ΠΎ, ΠΌΠΎΠ΄ΠΈΡΠΈΠΊΠ°ΡΠΈΠΉ ΠΌΠ½ΠΎΠ³ΠΎ ΠΈ ΠΏΡΠΎΠΈΠ·Π²ΠΎΠ΄ΠΈΡΠ΅Π»Π΅ΠΉ ΡΠ°ΠΊΠΆΠ΅ ΠΌΠ½ΠΎΠ³ΠΎ.
Π¨Π°ΡΠΈΠΊΠΎΠ²ΡΠ΅ Π½Π°ΠΏΡΠ°Π²Π»ΡΡΡΠΈΠ΅
Π½Π°Π·Π²Π°Π½Ρ ΡΠ°ΠΊ ΠΏΠΎΡΠΎΠΌΡ, ΡΡΠΎ Π΄Π²ΠΈΠΆΠ΅Π½ΠΈΡ ΡΠΎΡΡΠ°Π²Π»ΡΡΡΠΈΡ
Π½Π°ΠΏΡΠ°Π²Π»ΡΡΡΠΈΡ
ΠΏΡΠΎΠΈΡΡ
ΠΎΠ΄ΠΈΡ Π·Π° ΡΡΠ΅Ρ ΠΌΠ΅ΡΠ°Π»Π»ΠΈΡΠ΅ΡΠΊΠΈΡ
ΡΠ°ΡΠΈΠΊΠΎΠ², ΠΊΠ°ΠΊ Π² ΠΏΠΎΠ΄ΡΠΈΠΏΠ½ΠΈΠΊΠ°Ρ
. ΠΡΠΎΡΠ½ΡΠ΅ ΡΡΠ°Π»ΡΠ½ΡΠ΅ ΡΠ°ΡΠΈΠΊΠΈ Π΄Π²ΠΈΠΆΡΡΡΡ Π²Π½ΡΡΡΠΈ ΠΏΡΠΎΡΠΈΠ»Ρ, ΠΎΠ±Π΅ΡΠΏΠ΅ΡΠΈΠ²Π°Ρ ΡΡΠ°Π±ΠΈΠ»ΡΠ½ΠΎΠ΅ Π»Π΅Π³ΠΊΠΎΠ΅ ΡΠΊΠΎΠ»ΡΠΆΠ΅Π½ΠΈΠ΅ ΡΡΠΈΠΊΠΎΠ² ΠΈΠ· Π»ΡΠ±ΠΎΠ³ΠΎ ΠΌΠ°ΡΠ΅ΡΠΈΠ°Π»Π° ΠΈ Π»ΡΠ±ΠΎΠ³ΠΎ ΡΠ°Π·ΠΌΠ΅ΡΠ°, Π΄Π°ΠΆΠ΅ ΠΏΡΠΈ Π²ΡΡΠΎΠΊΠΈΡ
Π½Π°Π³ΡΡΠ·ΠΊΠ°Ρ
.
ΠΠΎΠ½ΡΡΡΡΠΊΡΠΈΡ ΡΠ°ΡΠΈΠΊΠΎΠ²ΡΡ
Π½Π°ΠΏΡΠ°Π²Π»ΡΡΡΠΈΡ
ΠΏΡΠΈΠ΄ΡΠΌΠ°Π» Π½Π°Ρ ΡΡΡΡΠΊΠΈΠΉ ΠΈΠ½ΠΆΠ΅Π½Π΅Ρ ΠΡΠ»ΡΠΊΠΎΠ², ΠΏΠΎΡΡΠΎΠΌΡ ΠΌΠΎΠΆΠ½ΠΎ Π²ΡΡΡΠ΅ΡΠΈΡΡ Π΅ΡΠ΅ ΡΠ°ΠΊΠΎΠ΅ Π½Π°Π·Π²Π°Π½ΠΈΠ΅ ΠΊΠ°ΠΊ Π½Π°ΠΏΡΠ°Π²Π»ΡΡΡΠΈΠ΅ ΠΡΠ»ΡΠΊΠΎΠ²Π°.
ΠΠΎ Π²ΠΎΡ Π½Π° ΠΊΠΎΠΌΠΌΠ΅ΡΡΠ΅ΡΠΊΡΡ ΠΎΡΠ½ΠΎΠ²Ρ ΠΏΡΠΎΠ΄Π°ΠΆΡ ΡΠ°ΠΊΠΈΡ
Π½Π°ΠΏΡΠ°Π²Π»ΡΡΡΠΈΡ
ΠΏΠΎΡΡΠ°Π²ΠΈΠ»ΠΈ Π·Π° ΡΡΠ±Π΅ΠΆΠΎΠΌ.
ΠΠ° ΡΠ°ΡΠΈΠΊΠΎΠ²ΡΠ΅ Π½Π°ΠΏΡΠ°Π²Π»ΡΡΡΠΈΠ΅ ΡΡΡΠ°Π½Π°Π²Π»ΠΈΠ²Π°ΡΡ Π²ΡΠ΄Π²ΠΈΠΆΠ½ΡΠ΅ ΠΊΠΎΡΠ·ΠΈΠ½Ρ Π² ΡΠΊΠ°ΡΡ ΠΊΡΠΏΠ΅, ΠΊΠΎΡΠ·ΠΈΠ½Ρ Π΄Π»Ρ ΠΌΠΎΡΡΠΈΡ
ΡΡΠ΅Π΄ΡΡΠ². ΠΠ° ΡΡΡΠ°Π½ΠΈΡΠ°Ρ
ΡΠ°ΠΉΡΠ° ΠΎΠΏΠΈΡΠ°Π½ΠΎ ΠΈΠ½ΡΠ΅ΡΠ΅ΡΠ½ΠΎΠ΅ ΠΏΡΠΈΠΌΠ΅Π½Π΅Π½ΠΈΠ΅ Π½Π°ΠΏΡΠ°Π²Π»ΡΡΡΠΈΡ
Π΄Π»Ρ Π²ΡΠ΄Π²ΠΈΠΆΠ΅Π½ΠΈΡ
ΠΎΡΠΈΠ³ΠΈΠ½Π°Π»ΡΠ½ΡΡ
ΠΎΠ±ΡΠ²Π½ΠΈΡ Π² ΡΠΊΠ°ΡΡ ΠΊΡΠΏΠ΅ .
Π ΠΏΡΠΈΠ½ΡΠΈΠΏΠ΅, ΠΊ ΡΠ°ΡΠΈΠΊΠΎΠ²ΡΠΌ Π½Π°ΠΏΡΠ°Π²Π»ΡΡΡΠΈΠΌ ΠΌΠΎΠΆΠ½ΠΎ ΠΎΡΠ½Π΅ΡΡΠΈ ΠΈ Π½Π°ΠΏΡΠ°Π²Π»ΡΡΡΠΈΠ΅
Tandem ΠΎΡ BLUM , ΠΊΠΎΡΠΎΡΡΠ΅ ΡΡΡΡ Π»ΠΈ Π½Π΅ ΠΎΠ΄ΠΈΠ½ Π² ΠΎΠ΄ΠΈΠ½ ΡΠΊΠΎΠΏΠΈΡΠΎΠ²Π°Π»ΠΈ ΠΌΠ½ΠΎΠΆΠ΅ΡΡΠ²ΠΎ Π΄ΡΡΠ³ΠΈΡ
ΠΏΡΠΎΠΈΠ·Π²ΠΎΠ΄ΠΈΡΠ΅Π»Π΅ΠΉ ΡΡΡΠ½ΠΈΡΡΡΡ.
Π ΡΡΠ°ΡΡΠ΅ ΡΠ°ΡΡΠΌΠΎΡΡΠΈΠΌ ΡΠ°ΡΠΈΠΊΠΎΠ²ΡΠ΅ Π½Π°ΠΏΡΠ°Π²Π»ΡΡΡΠΈΠ΅ ΠΎΡ GTV, ΠΌΠ°ΡΠΊΠ° ΠΏΠΎΠ»ΡΡΠΊΠ°Ρ, Π½ΠΎ Π² ΠΏΠΎΡΠ»Π΅Π΄Π½Π΅Π΅ Π²ΡΠ΅ΠΌΡ Π²ΡΠΏΡΡΠΊΠ°ΡΡ ΠΈ Π² ΠΠΈΡΠ°Π΅, Π²ΡΠΎΠ΄Π΅ Π±Ρ ΠΊΠ°ΡΠ΅ΡΡΠ²ΠΎ ΠΎΡ ΡΡΠΎΠ³ΠΎ ΠΏΠΎΡΡΡΠ°Π΄Π°Π»ΠΎ Π½Π΅ ΡΠΈΠ»ΡΠ½ΠΎ.
ΠΠ°ΠΏΡΠ°Π²Π»ΡΡΡΠΈΠ΅ GTV
ΠΏΡΠΎΠ΄Π°ΡΡΡΡ ΠΏΠΎΠ²ΡΠ΅ΠΌΠ΅ΡΡΠ½ΠΎ Π² Π΅Π²ΡΠΎΠΏΠ΅ΠΉΡΠΊΠΎΠΉ ΡΠ°ΡΡΠΈ Π ΠΎΡΡΠΈΠΈ, ΡΠ΅Π½Π° Ρ Π½ΠΈΡ
ΠΏΡΠΈΠ΅ΠΌΠ»Π΅ΠΌΠ°Ρ, Π±Π»ΠΈΠΆΠ΅ ΠΊ ΠΠΎΡΡΠΎΠΊΡ ΡΠΊΠΎΡΠ΅ΠΉ Π²ΡΠ΅Π³ΠΎ ΠΏΡΠΎΠ΄Π°ΡΡ ΠΊΠΈΡΠ°ΠΉΡΠΊΠΈΠ΅ Π°Π½Π°Π»ΠΎΠ³ΠΈ.
ΠΡΡ ΠΎΠ΄Π½ΠΎ Π½Π°Π·Π²Π°Π½ΠΈΠ΅ ΡΠ°ΡΠΈΠΊΠΎΠ²ΡΡ
Π½Π°ΠΏΡΠ°Π²Π»ΡΡΡΠΈΡ
, ΠΊΠΎΡΠΎΡΠΎΠ΅ Π²Ρ ΠΌΠΎΠΆΠ΅ΡΠ΅ Π²ΡΡΡΠ΅ΡΠΈΡΡ ΡΡΠΎ
ΡΠ΅Π»Π΅ΡΠΊΠΎΠΏΠΈΡΠ΅ΡΠΊΠΈΠ΅ Π½Π°ΠΏΡΠ°Π²Π»ΡΡΡΠΈΠ΅
.
Π¨Π°ΡΠΈΠΊΠΎΠ²ΡΠ΅ Π½Π°ΠΏΡΠ°Π²Π»ΡΡΡΠΈΠ΅ GTV
Π¨Π°ΡΠΈΠΊΠΎΠ²ΡΠ΅ Π½Π°ΠΏΡΠ°Π²Π»ΡΡΡΠΈΠ΅ Π²ΡΡΠΎΡΠΎΠΉ 17 ΠΌΠΌ Π΄Π»Ρ ΡΡΠΈΠΊΠΎΠ²
ΠΠ°ΠΏΡΠ°Π²Π»ΡΡΡΠΈΠ΅ Π²ΡΡΠΎΡΠΎΠΉ 17 ΠΌΠΌ Π΄Π»ΠΈΠ½Π° ΠΎΡ 182 ΠΌΠΌ Π΄ΠΎ 438 ΠΌΠΌ, Π΄Π΅ΡΠΆΠ°Ρ Π½Π°Π³ΡΡΠ·ΠΊΡ Π΄ΠΎ 8-10 ΠΊΠ³.
ΠΠ°ΠΏΡΠ°Π²Π»ΡΡΡΠΈΠ΅ ΡΠ°ΡΡΠΈΡΠ½ΠΎΠ³ΠΎ Π²ΡΠ΄Π²ΠΈΠΆΠ΅Π½ΠΈΡ. ΠΡΠΎΠΈΠ·Π²ΠΎΠ΄ΠΈΡΠ΅Π»Ρ ΡΠ΅ΠΊΠΎΠΌΠ΅Π½Π΄ΡΠ΅Ρ ΡΡΠ΅Π·Π΅ΡΠΎΠ²Π°ΡΡ Π½Π° Π±ΠΎΠΊΠΎΠ²ΠΈΠ½Π΅ ΡΡΠΈΠΊΠ° ΠΏΠ°Π· Π³Π»ΡΠ±ΠΈΠ½ΠΎΠΉ 10 ΠΌΠΌ ΠΈ Π²ΡΡΠΎΡΠΎΠΉ 17 ΠΌΠΌ. ΠΡΠ»ΠΈΡΠ½ΠΎΠ΅ ΡΠ΅ΡΠ΅Π½ΠΈΠ΅ Π΄Π»Ρ ΠΈΡΠΏΠΎΠ»ΡΠ·ΠΎΠ²Π°Π½ΠΈΡ Π² ΠΊΠΎΠΌΠΎΠ΄Π°Ρ
. ΠΡΠΈ ΠΌΠΎΠ½ΡΠ°ΠΆΠ΅ Π½Π°ΠΏΡΠ°Π²Π»ΡΡΡΠ°Ρ Π² ΡΠ±ΠΎΡΠ΅ ΠΊΡΠ΅ΠΏΠΈΡΡΡ ΠΊ Π±ΠΎΠΊΠΎΠ²ΠΎΠΉ ΡΡΠ΅Π½ΠΊΠ΅ ΠΈΠ·Π΄Π΅Π»ΠΈΡ, Π° Π·Π°ΡΠ΅ΠΌ Ρ ΠΏΠΎΠΌΠΎΡΡΡ Π²ΠΈΠ½ΡΠΎΠ² ΠΊ Π±ΠΎΠΊΠΎΠ²ΠΈΠ½Π΅ ΡΡΠΈΠΊΠ°.
Π¨Π°ΡΠΈΠΊΠΎΠ²ΡΠ΅ Π½Π°ΠΏΡΠ°Π²Π»ΡΡΡΠΈΠ΅ Π²ΡΡΠΎΡΠΎΠΉ 27 ΠΌΠΌ Π΄Π»Ρ ΡΡΠΈΠΊΠΎΠ²
ΠΠ°ΠΏΡΠ°Π²Π»ΡΡΡΠΈΠ΅
Π²ΡΡΠΎΡΠΎΠΉ 27 ΠΌΠΌ, Π΄Π»ΠΈΠ½ΠΎΠΉ ΠΎΡ 250 ΠΌΠΌ Π΄ΠΎ 500 ΠΌΠΌ Ρ ΡΠ°Π³ΠΎΠΌ 50 ΠΌΠΌ, Π²ΡΠ΄Π΅ΡΠΆΠΈΠ²Π°ΡΡ Π½Π°Π³ΡΡΠ·ΠΊΡ 15 ΠΊΠ³. Π ΠΎΡΠ»ΠΈΡΠΈΠ΅ ΠΎΡ ΠΏΠ΅ΡΠ²ΠΎΠ³ΠΎ Π²Π°ΡΠΈΠ°Π½ΡΠ° ΡΠ°Π·Π±ΠΈΡΠ°ΡΡΡΡ, ΡΡΠ΅Π·Π΅ΡΠΎΠ²ΠΊΠ° ΠΏΠ°Π·Π° Π½Π° Π±ΠΎΠΊΠΎΠ²ΠΎΠΉ ΡΡΠ΅Π½ΠΊΠ΅ ΡΡΠΈΠΊΠ° Π½Π΅ ΡΡΠ΅Π±ΡΠ΅ΡΡΡ. ΠΠ»Ρ ΡΠ°ΡΡΠ΅ΡΠ° Π³Π°Π±Π°ΡΠΈΡΠΎΠ² ΡΡΠΈΠΊΠ° ΠΏΠΎ ΡΠΈΡΠΈΠ½Π΅ Π½Π΅ΠΎΠ±Ρ
ΠΎΠ΄ΠΈΠΌΠΎ ΠΎΡΠΊΠΈΠ½ΡΡΡ 22 ΠΌΠΌ ΠΎΡ ΡΠΈΡΠΈΠ½Ρ Π²Π½ΡΡΡΠ΅Π½Π½Π΅Π³ΠΎ ΠΏΡΠΎΠ΅ΠΌΠ° ΠΈΠ·Π΄Π΅Π»ΠΈΡ.
Π¨Π°ΡΠΈΠΊΠΎΠ²ΡΠ΅ Π½Π°ΠΏΡΠ°Π²Π»ΡΡΡΠΈΠ΅ Π²ΡΡΠΎΡΠΎΠΉ 35 ΠΌΠΌ Π΄Π»Ρ ΡΡΠΈΠΊΠΎΠ²
ΠΠ°ΠΏΡΠ°Π²Π»ΡΡΡΠΈΠ΅ Π²ΡΡΠΎΡΠΎΠΉ 35, Π΄Π»ΠΈΠ½ΠΎΠΉ ΠΎΡ 250 ΠΌΠΌ Π΄ΠΎ 500 ΠΌΠΌ, Π²ΡΠ΄Π΅ΡΠΆΠΈΠ²Π°ΡΡ Π½Π°Π³ΡΡΠ·ΠΊΡ Π±ΠΎΠ»Π΅Π΅ 20 ΠΊΠ³, Π΅ΡΡΡ Π²Π°ΡΠΈΠ°Π½ΡΡ ΠΏΠΎΠ»Π½ΠΎΠ³ΠΎ Π²ΡΠ΄Π²ΠΈΠΆΠ΅Π½ΠΈΡ. Π ΡΠ΅Π»ΠΎΠΌ Π½Π°ΠΏΠΎΠΌΠΈΠ½Π°Π΅Ρ Π½Π°ΠΏΡΠ°Π²Π»ΡΡΡΡΡ Π²ΡΡΠΎΡΠΎΠΉ 27 ΠΌΠΌ.
Π¨Π°ΡΠΈΠΊΠΎΠ²ΡΠ΅ Π½Π°ΠΏΡΠ°Π²Π»ΡΡΡΠΈΠ΅ Π²ΡΡΠΎΡΠΎΠΉ 45 ΠΌΠΌ Π΄Π»Ρ ΡΡΠΈΠΊΠΎΠ²
Π¨Π°ΡΠΈΠΊΠΎΠ²ΡΠ΅ Π½Π°ΠΏΡΠ°Π²Π»ΡΡΡΠΈΠ΅
Π²ΡΡΠΎΡΠΎΠΉ 45 ΠΌΠΌ ΡΠ°ΠΌΡΠΉ ΡΠ°ΡΠΏΡΠΎΡΡΡΠ°Π½Π΅Π½Π½ΡΠΉ ΠΈ Π°ΠΊΡΠΈΠ²Π½ΠΎ ΠΏΡΠΈΠΌΠ΅Π½ΡΠ΅ΠΌΡΠΉ Π²ΠΈΠ΄ ΡΠ°ΡΠΈΠΊΠΎΠ²ΡΡ
Π½Π°ΠΏΡΠ°Π²Π»ΡΡΡΠΈΡ
.
ΠΡΡΡ ΡΠ°Π·Π½ΡΠ΅ ΠΌΠΎΠ΄ΠΈΡΠΈΠΊΠ°ΡΠΈΠΈ Π΄Π»ΠΈΠ½ΠΎΠΉ ΠΎΡ 250 Π΄ΠΎ 700 ΠΌΠΌ. ΠΡΠ΄Π΅ΡΠΆΠΈΠ²Π°ΡΡ Π½Π°Π³ΡΡΠ·ΠΊΠΈ ΡΠΆΠ΅ ΡΠ΅ΡΡΠ΅Π·Π½ΡΠ΅ Π΄ΠΎ 36-38 ΠΊΠ³.
ΠΠ°ΠΏΡΠ°Π²Π»ΡΡΡΠΈΠ΅ ΠΏΠ΅ΡΠ΅Π΄ ΠΌΠΎΠ½ΡΠ°ΠΆΠΎΠΌ Π½Π΅ΠΎΠ±Ρ ΠΎΠ΄ΠΈΠΌΠΎ ΡΠ°Π·ΡΠ΅Π΄ΠΈΠ½ΠΈΡΡ, Π΄Π»Ρ ΡΡΠΎΠ³ΠΎ Π½Π΅ΠΎΠ±Ρ ΠΎΠ΄ΠΈΠΌΠΎ ΠΏΠΎΠ΄Π½ΡΡΡ ΠΈΠ»ΠΈ ΠΎΠΏΡΡΡΠΈΡΡ ΡΠ΅ΡΠ½ΡΠΉ ΡΡΡΠ°ΠΆΠΎΠΊ.
Π’Π°ΠΊΠ°Ρ ΡΠΈΡΡΠ΅ΠΌΠ° ΡΠ°Π·ΡΠ΅Π΄ΠΈΠ½Π΅Π½ΠΈΡ Π½Π° Π±ΠΎΠ»ΡΡΠΈΠ½ΡΡΠ²Π΅ ΡΠ°ΡΠΈΠΊΠΎΠ²ΡΡ
Π½Π°ΠΏΡΠ°Π²Π»ΡΡΡΠΈΡ
, Π² ΡΠΎΠΌ ΡΠΈΡΠ»Π΅ ΠΈ Π΄Π»Ρ ΠΊΠΎΡΠ·ΠΈΠ½ ΡΡΡΠ°Π½Π°Π²Π»ΠΈΠ²Π°Π΅ΠΌΡΡ
Π² ΡΡΠΌΠ±Ρ Π½Π° ΠΊΡΡ
Π½Π΅.
ΠΠ° ΡΠΎΡΠΎ Π½ΠΈΠΆΠ΅ ΠΏΡΠΈΠ²Π΅Π΄Π΅Π½Π° Π²ΡΠ΄Π²ΠΈΠΆΠ½Π°Ρ ΠΊΠΎΡΠ·ΠΈΠ½Π° Π΄Π»Ρ ΠΏΠΎΡΡΠ΄Ρ Ρ ΠΊΡΠ΅ΠΏΠ»Π΅Π½ΠΈΠ΅ΠΌ ΠΊ Π΄Π½Ρ ΠΏΠ΅ΡΠ΅Π²Π΅ΡΠ½ΡΡΠ°Ρ «Π½Π° ΠΏΠΎΠΏΠ°». ΠΠ°ΠΆΠΈΠΌΠ°Π΅ΠΌ ΡΠ΅ΡΠ½ΡΠΉ ΡΡΡΠ°ΠΆΠΎΠΊ ΠΈ ΠΎΡΠ΄Π΅Π»ΡΠ΅ΠΌ ΠΊΠΎΡΠ·ΠΈΠ½Ρ ΠΎΡ Π½Π°ΠΏΡΠ°Π²Π»ΡΡΡΠΈΡ , Π΄Π°Π»Π΅Π΅ ΠΏΡΠΎΠ±Π»Π΅ΠΌ Ρ ΡΡΡΠ°Π½ΠΎΠ²ΠΊΠΎΠΉ ΠΊΠΎΡΠ·ΠΈΠ½Ρ Π½Π΅ Π±ΡΠ΄Π΅Ρ.
ΠΠ»Ρ ΡΠ°ΡΡΠ΅ΡΠ° Π³Π°Π±Π°ΡΠΈΡΠΎΠ² ΡΡΠΈΠΊΠ° ΠΏΠΎ ΡΠΈΡΠΈΠ½Π΅ Π½Π΅ΠΎΠ±Ρ ΠΎΠ΄ΠΈΠΌΠΎ ΠΎΡ Π²Π½ΡΡΡΠ΅Π½Π½Π΅ΠΉ ΡΠΈΡΠΈΠ½Ρ ΠΊΠΎΡΠΏΡΡΠ° Π²ΡΡΠ΅ΡΡΡ 26 ΠΌΠΌ, ΠΊΠ°ΠΊ ΠΈ Π΄Π»Ρ ΡΠΎΠ»ΠΈΠΊΠΎΠ²ΡΡ Π½Π°ΠΏΡΠ°Π²Π»ΡΡΡΠΈΡ .
ΠΡΠΏΡΡΠΊΠ°ΡΡ ΡΠ°ΡΠΈΠΊΠΎΠ²ΡΠ΅ Π½Π°ΠΏΡΠ°Π²Π»ΡΡΡΠΈΠ΅ Π²ΡΡΠΎΡΠΎΠΉ 45 ΠΌΠΌ ΠΏΠΎΠ»Π½ΠΎΠ³ΠΎ ΠΈ ΡΠ°ΡΡΠΈΡΠ½ΠΎΠ³ΠΎ Π²ΡΠ΄Π²ΠΈΠΆΠ΅Π½ΠΈΡ, Ρ Π΄ΠΎΠ²ΠΎΠ΄ΡΠΈΠΊΠΎΠΌ ΠΈΠ»ΠΈ Π±Π΅Π·. ΠΡΠΎΠΌΠ΅ ΡΠΎΠ³ΠΎ, Π΅ΡΡΡ ΡΠ°ΡΠΈΠΊΠΎΠ²Π°Ρ Π½Π°ΠΏΡΠ°Π²Π»ΡΡΡΠΈΠ΅ ΡΠΈΡΡΠ΅ΠΌΡ Push to open, ΡΠΎ Π΅ΡΡΡ Π½Π°ΠΆΠΌΠΈ, ΡΡΠΎΠ±Ρ ΠΎΡΠΊΡΡΡΡ, ΡΡΡΠΊΠ° Π΄Π»Ρ ΠΎΡΠΊΡΡΡΠΈΡ ΡΡΠΈΠΊΠ° Π½Π΅ ΡΡΠ΅Π±ΡΠ΅ΡΡΡ. ΠΠ°ΠΏΠΎΠΌΠΈΠ½Π°ΡΡ ΡΠΈΡΡΠ΅ΠΌΡ ΠΏΠΎΠ΄ Π½Π°Π·Π²Π°Π½ΠΈΠ΅ΠΌ TIP ON Π΄Π»Ρ
Π½Π°ΠΏΡΠ°Π²Π»ΡΡΡΠΈΡ
Tandem Blum .
Π Ρ ΠΏΡΠΎΠΈΠ·Π²ΠΎΠ΄ΠΈΡΠ΅Π»Ρ Hettich Π΅ΡΡΡ ΡΠ°ΡΠΈΠΊΠΎΠ²ΡΠ΅ Π½Π°ΠΏΡΠ°Π²Π»ΡΡΡΠΈΠ΅ ΡΠ²Π΅ΡΡ ΠΏΠΎΠ»Π½ΠΎΠ³ΠΎ Π²ΡΠ΄Π²ΠΈΠΆΠ΅Π½ΠΈΡ.
ΠΠΎΠ½ΡΠ°ΠΆ ΡΠ°ΡΠΈΠΊΠΎΠ²ΡΡ Π½Π°ΠΏΡΠ°Π²Π»ΡΡΡΠΈΡ
Π Π°ΡΡΠΌΠΎΡΡΠΈΠΌ ΡΠ°ΠΌΡΠΉ ΡΠ°ΡΠΏΡΠΎΡΡΡΠ°Π½Π΅Π½Π½ΡΠΉ ΡΠΏΠΎΡΠΎΠ± ΡΠ°ΡΡΠ΅ΡΠ° ΡΠ°ΡΠΈΠΊΠΎΠ²ΡΡ
Π½Π°ΠΏΡΠ°Π²Π»ΡΡΡΠΈΡ
, ΠΏΡΠΎΠ³ΡΠ°ΠΌΠΌΠ° Π½Π΅ ΡΡΠ΅Π±ΡΠ΅ΡΡΡ.
ΠΠ΅ΡΠ΅ΠΌ Π½Π°ΡΡ Π±Π°Π·ΠΎΠ²ΡΡ ΡΡΠΌΠ±Ρ Π²ΡΡΠΎΡΠΎΠΉ 720 ΠΌΠΌ Π±Π΅Π· ΡΡΠ΅ΡΠ° Π½ΠΎΠΆΠ΅ΠΊ ΠΈ ΡΠΈΡΠΈΠ½ΠΎΠΉ 600 ΠΌΠΌ Ρ Π΄Π²ΡΠΌΡ ΡΠ°ΡΠ°Π΄Π°ΠΌΠΈ Π²ΡΡΠΎΡΠΎΠΉ 356 ΠΌ, ΡΡΠΈΠΊΠ°ΠΌΠΈ Π²ΡΡΠΎΡΠΎΠΉ 150 ΠΌΠΌ. Π―ΡΠΈΠΊΠΈ ΠΏΡΠΈ Π²ΡΡΠΎΡΠ΅ ΡΠ°ΡΠ°Π΄Π° Π² 356 ΠΌΠΌ ΠΌΠΎΠΆΠ½ΠΎ ΡΠ΄Π΅Π»Π°ΡΡ Π²ΡΡΠΎΡΠΎΠΉ ΠΈ 200, ΠΈ 250 ΠΌΠΌ, Π²ΡΡ Π·Π°Π²ΠΈΡΠΈΡ ΠΎΡ Π²Π°ΡΠ΅Π³ΠΎ ΠΈΠ»ΠΈ ΠΆΠ΅Π»Π°Π½ΠΈΡ Π·Π°ΠΊΠ°Π·ΡΠΈΠΊΠ°.
Π¨Π°ΡΠΈΠΊΠΎΠ²ΡΠ΅ Π½Π°ΠΏΡΠ°Π²Π»ΡΡΡΠΈΠ΅
ΠΎΠ±ΡΡΠ½ΠΎ ΠΊΡΠ΅ΠΏΡΡ ΠΏΠΎ ΡΠ΅Π½ΡΡΠ°Π»ΡΠ½ΠΎΠΉ ΠΎΡΠΈ Π±ΠΎΠΊΠΎΠ²ΠΎΠΉ ΡΡΠ΅Π½ΠΊΠΈ ΡΡΠΈΠΊΠ°, Ρ
ΠΎΡΡ Π½Π΅ΠΊΠΎΡΠΎΡΡΠ΅ ΠΏΡΠ΅Π΄ΠΏΠΎΡΠΈΡΠ°ΡΡ ΠΊΡΠ΅ΠΏΠΈΡΡ Π±Π»ΠΈΠΆΠ΅ ΠΊ Π½ΠΈΠΆΠ½Π΅ΠΉ ΠΊΡΠΎΠΌΠΊΠ΅ Π±ΠΎΠΊΠΎΠ²ΠΈΠ½Ρ ΡΡΠΈΠΊΠ°.
Π Π°ΡΡΠ΅Ρ Π±ΡΠ΄Π΅ΠΌ Π²Π΅ΡΡΠΈ Π΄Π»Ρ Π²Π°ΡΠΈΠ°Π½ΡΠ° ΠΌΠΎΠ½ΡΠ°ΠΆΠ° Π½Π°ΠΏΡΠ°Π²Π»ΡΡΡΠ΅ΠΉ ΠΏΠΎ ΠΎΡΠΈ Π±ΠΎΠΊΠΎΠ²ΠΎΠΉ ΡΡΠ΅Π½ΠΊΠΈ ΡΡΠΈΠΊΠ°. Π§Π΅ΡΡΠΈΠΌ ΠΏΡΠΎΡΡΠ΅Π½ΡΠΊΠΈΠΉ ΡΠ΅ΡΡΠ΅ΠΆΠΈΠΊ, ΠΌΠΎΠΆΠ½ΠΎ ΠΎΡ ΡΡΠΊΠΈ, ΠΊΠ°ΠΊ Π½Π° ΡΠΈΡΡΠ½ΠΊΠ΅. ΠΠ΅ΡΠ΅Π΄ ΡΠ°Π·ΠΌΠ΅ΡΠΊΠΎΠΉ ΠΎΠΏΡΠ΅Π΄Π΅Π»ΠΈΡΠ΅ΡΡ, ΠΊΠ°ΠΊΠΈΠ΅ Π±ΡΠ΄ΡΡ Π·Π°Π·ΠΎΡΡ ΠΌΠ΅ΠΆΠ΄Ρ ΡΠ°ΡΠ°Π΄Π°ΠΌΠΈ, Π² Π½Π°ΡΠ΅ΠΌ Π²Π°ΡΠΈΠ°Π½ΡΠ΅ Π·Π°Π·ΠΎΡ ΠΌΠ΅ΠΆΠ΄Ρ ΡΠ°ΡΠ°Π΄Π°ΠΌΠΈ ΠΏΡΠΈΠΌΠ΅ΠΌ 4 ΠΌΠΌ, Π° ΡΠ²Π΅ΡΡ Ρ ΠΈ ΡΠ½ΠΈΠ·Ρ ΠΏΠΎ 2 ΠΌΠΌ.
ΠΡΡ ΡΠ²Π΅ΡΠ»Π΅Π½ΠΈΡ ΠΏΠ΅ΡΠ²ΠΎΠΉ ΡΠ°ΡΠΈΠΊΠΎΠ²ΠΎΠΉ Π½Π°ΠΏΡΠ°Π²Π»ΡΡΡΠ΅ΠΉ
= 2+34+75 = 111 ΠΌΠΌ,
Π³Π΄Π΅:
- 2 β ΡΡΠΎ Π·Π°Π·ΠΎΡ 2 ΠΌΠΌ ΡΠ½ΠΈΠ·Ρ (ΡΠ°ΡΠ°Π΄ Π½Π°ΠΊΠ»Π°Π΄ΡΠ²Π°Π΅ΡΡΡ Π½Π° Π³ΠΎΡΠΈΠ·ΠΎΠ½ΡΠ°Π»Ρ ΡΠΎΠ»ΡΠΈΠ½ΠΎΠΉ 16 ΠΌΠΌ Π½Π° 14 ΠΌΠΌ, ΠΎΡΡΠ°Π΅ΡΡΡ 2 ΠΌΠΌ)
- 75 β ΡΡΠΎ ΡΠ΅ΡΠ΅Π΄ΠΈΠ½Π° Π±ΠΎΠΊΠΎΠ²ΠΎΠΉ ΡΡΠ΅Π½ΠΊΠΈ ΡΡΠΈΠΊΠ°, ΠΎΠ±ΡΠ°Ρ Π²ΡΡΠΎΡΠ° ΡΡΠΈΠΊΠ° 150 ΠΌΠΌ.
ΠΡΠ»ΠΈ Π΄Π½ΠΎ ΡΡΠΈΠΊΠ° ΠΈΠ· ΠΠΠ Π½Π°ΠΊΠ»Π°Π΄Π½ΠΎΠ΅, ΡΠΎ Π²ΡΡΠΎΡΠ° Ρ ΡΡΠ΅ΡΠΎΠΌ ΠΠΠ Π±ΡΠ΄Π΅Ρ 153 ΠΌΠΌ. ΠΠΎ, Π΄Π»Ρ ΡΠ°ΡΡΠ΅ΡΠΎΠ² Π²ΡΠ΅ ΡΠ°Π²Π½ΠΎ Π±Π΅ΡΠ΅ΠΌ 150 ΠΌΠΌ.
ΠΡΡ ΡΠ²Π΅ΡΠ»Π΅Π½ΠΈΡ Π²ΡΠΎΡΠΎΠΉ ΡΠ°ΡΠΈΠΊΠΎΠ²ΠΎΠΉ Π½Π°ΠΏΡΠ°Π²Π»ΡΡΡΠ΅ΠΉ
= 2+356+4+34+75 = 471 ΠΌΠΌ,
Π³Π΄Π΅:
- 2 β ΡΡΠΎ Π·Π°Π·ΠΎΡ 2 ΠΌΠΌ ΡΠ½ΠΈΠ·Ρ
356 β Π²ΡΡΠΎΡΠ° Π½ΠΈΠΆΠ½Π΅Π³ΠΎ ΡΠ°ΡΠ°Π΄Π° - 4 β Π·Π°Π·ΠΎΡ ΠΌΠ΅ΠΆΠ΄Ρ ΡΠ°ΡΠ°Π΄Π°ΠΌΠΈ
- 34 β ΡΠ°ΡΡΡΠΎΡΠ½ΠΈΠ΅ ΠΎΡ Π½ΠΈΠΆΠ½Π΅Π³ΠΎ ΠΊΡΠ°Ρ ΡΠ°ΡΠ°Π΄Π° Π΄ΠΎ Π½ΠΈΠΆΠ½Π΅Π³ΠΎ ΠΊΡΠ°Ρ ΡΡΠΈΠΊΠ°
ΠΠΎΡΠΈΠ·ΠΎΠ½ΡΠ°Π»ΡΠ½Π°Ρ ΠΎΡΡ ΡΠ²Π΅ΡΠ»Π΅Π½ΠΈΡ ΠΏΠ΅ΡΠ΅Π΄Π½Π΅ΠΉ ΡΡΠ΅Π½ΠΊΠΈ ΡΡΠΈΠΊΠ°
= 75 ΠΌΠΌ, ΠΎΡ ΠΏΡΠ°Π²ΠΎΠ³ΠΎ ΠΈ Π»Π΅Π²ΠΎΠ³ΠΎ ΠΊΡΠ°Π΅Π² ΠΏΠ΅ΡΠ΅Π΄Π½Π΅ΠΉ ΡΡΠ΅Π½ΠΊΠΈ ΠΎΡΡΡΡΠΏΠ°Π΅ΠΌ ΠΏΠΎ 50 ΠΌΠΌ ΠΈ ΠΏΠΎΠ»ΡΡΠ°Π΅ΠΌ ΠΊΠΎΠΎΡΠ΄ΠΈΠ½Π°ΡΡ ΡΠ²Π΅ΡΠ»Π΅Π½ΠΈΡ ΠΏΠ΅ΡΠ΅Π΄Π½Π΅ΠΉ ΡΡΠ΅Π½ΠΊΠΈ.
Π’ΠΎΡΠΊΠ° ΠΏΠΎ ΠΎΡΠΈ X ΠΏΠΎΠ΄ ΡΠ°ΠΌΠΎΡΠ΅Π·Ρ Π½Π° ΡΠ°ΡΠ°Π΄Π΅
= 34+75=109 ΠΌΠΌ,
Π³Π΄Π΅:
- 34 β ΡΠ°ΡΡΡΠΎΡΠ½ΠΈΠ΅ ΠΎΡ Π½ΠΈΠΆΠ½Π΅Π³ΠΎ ΠΊΡΠ°Ρ ΡΠ°ΡΠ°Π΄Π° Π΄ΠΎ Π½ΠΈΠΆΠ½Π΅Π³ΠΎ ΠΊΡΠ°Ρ ΡΡΠΈΠΊΠ°
- 75 β ΡΡΠΎ ΡΠ΅ΡΠ΅Π΄ΠΈΠ½Π° Π±ΠΎΠΊΠΎΠ²ΠΎΠΉ ΡΡΠ΅Π½ΠΊΠΈ ΡΡΠΈΠΊΠ°.
Π’ΠΎΡΠΊΠ° ΠΏΠΎ ΠΎΡΠΈ Y, Π΄Π»Ρ Π½Π°ΡΠ΅ΡΠ΅ΠΊ ΠΏΠΎΠ΄ ΡΠ°ΠΌΠΎΡΠ΅Π·Ρ Π΄Π»Ρ ΠΏΡΠ°Π²ΠΎΠ³ΠΎ ΠΈ Π»Π΅Π²ΠΎΠ³ΠΎ ΠΊΡΠ°Π΅Π² ΡΠ°ΡΠ°Π΄Π°
= 50+16+13+14 = 93 ΠΌΠΌ,
Π³Π΄Π΅:
- 50 β ΠΎΡΡΡΡΠΏΡ ΠΏΠΎ ΠΎΡΠΈ X ΠΎΡ ΠΊΡΠ°Π΅Π² ΠΏΡΠΈ ΡΠ²Π΅ΡΠ»Π΅Π½ΠΈΠΈ ΠΏΠ΅ΡΠ΅Π΄Π½Π΅ΠΉ ΡΡΠ΅Π½ΠΊΠΈ ΡΡΠΈΠΊΠ°
- 16 β ΡΠΎΠ»ΡΠΈΠ½Π° Π±ΠΎΠΊΠΎΠ²ΠΎΠΉ ΡΡΠ΅Π½ΠΊΠΈ ΡΡΠΈΠΊΠ°
- 13 β Π·Π°Π·ΠΎΡ Π΄Π»Ρ ΡΡΡΠ°Π½ΠΎΠ²ΠΊΠΈ ΡΠ°ΡΠΈΠΊΠΎΠ²ΠΎΠΉ Π½Π°ΠΏΡΠ°Π²Π»ΡΡΡΠ΅ΠΉ
- 14 β Π½Π°Π»ΠΎΠΆΠ΅Π½ΠΈΠ΅ ΡΠ°ΡΠ°Π΄Π° Π½Π° Π±ΠΎΠΊΠΎΠ²ΡΡ ΡΡΠ΅Π½ΠΊΡ ΠΊΠΎΡΠΏΡΡΠ° (ΡΠΎ Π΅ΡΡΡ 2 ΠΌΠΌ ΠΎΡΡΠ°Π΅ΡΡΡ Π·Π°Π·ΠΎΡ ΠΌΠ΅ΠΆΠ΄Ρ ΠΊΡΠ°Π΅ΠΌ Π±ΠΎΠΊΠΎΠ²ΠΎΠΉ ΡΡΠ΅Π½ΠΊΠΈ ΠΈ ΠΊΡΠ°Π΅ΠΌ ΡΠ°ΡΠ°Π΄Π° ΠΏΡΠΈ ΡΠΎΠ»ΡΠΈΠ½Π΅ Π±ΠΎΠΊΠΎΠ²ΠΎΠΉ ΡΡΠ΅Π½ΠΊΠΈ ΠΊΠΎΡΠΏΡΡΠ° 16 ΠΌΠΌ).

ΠΠ±ΡΡΠ½ΠΎ ΡΠ°ΡΡΠ΅ΡΠΎΠ² Π½ΠΈΠΊΠ°ΠΊΠΈΡ Π½Π΅ Π²Π΅Π΄ΡΡ, Π° ΠΏΡΠΎΡΡΠΎ ΡΠ²Π΅ΡΠ»ΡΡ ΠΏΠΎ ΡΠ΅ΡΡΡΠ΅ ΠΎΡΠ²Π΅ΡΡΡΠΈΡ Π² ΠΏΠ΅ΡΠ΅Π΄Π½Π΅ΠΉ ΡΡΠ΅Π½ΠΊΠ΅ ΡΡΠΈΠΊΠ°, Π·Π°ΠΌΠ΅ΡΡΡΡ Π½Π΅ΠΎΠ±Ρ ΠΎΠ΄ΠΈΠΌΡΠ΅ ΠΎΡΡΡΡΠΏΡ, ΡΡΠ°Π²ΡΡ ΡΡΠΈΠΊ Π½Π° ΡΠ°ΡΠ°Π΄ ΠΈ ΠΏΡΠΈΠΊΡΡΡΠΈΠ²Π°Ρ ΠΏΠ΅ΡΠ²ΡΠ΅ Π΄Π²Π° ΡΠ°ΠΌΠΎΡΠ΅Π·Π°. ΠΠ΅Π»Π°ΡΡ ΠΏΡΠΈΠΌΠ΅ΡΠΊΡ, Π΅ΡΠ»ΠΈ Π½ΠΎΡΠΌΠ°Π»ΡΠ½ΠΎ, ΡΠΎ Π·Π°ΠΊΡΡΡΠΈΠ²Π°ΡΡ ΠΎΡΡΠ°Π²ΡΠΈΠ΅ΡΡ Π΄Π²Π° ΡΠ°ΠΌΠΎΡΠ΅Π·Π°. ΠΠ΅Ρ, ΠΎΡΠΊΡΡΡΠΈΠ²Π°ΡΡ, ΡΠΌΠ΅ΡΠ°ΡΡ Π½Π° Π½Π΅ΠΎΠ±Ρ ΠΎΠ΄ΠΈΠΌΠΎ ΡΠ°ΡΡΡΠΎΡΠ½ΠΈΠ΅ ΠΈ ΡΠ½ΠΎΠ²Π° ΠΏΡΠΎΠ²Π΅ΡΡΡΡ.
ΠΠΎΡΠ»Π΅ ΡΠ°ΡΡΠ΅ΡΠ° ΠΏΠ΅ΡΠ΅Ρ ΠΎΠ΄ΠΈΠΌ ΠΊ ΡΠ°Π·ΠΌΠ΅ΡΠΊΠ΅. Π Π°Π·ΠΌΠ΅ΡΠΊΡ Π²Π΅Π΄Π΅ΠΌ Ρ ΠΏΠΎΠΌΠΎΡΡΡ ΡΡΠ»Π΅ΡΠΊΠΈ, ΠΆΠ΅Π»Π΅Π·Π½ΠΎΠΉ Π»ΠΈΠ½Π΅ΠΉΠΊΠΈ ΡΠ²Π΅ΡΠ΄ΠΎΠ³ΠΎ ΠΊΠ°ΡΠ°Π½Π΄Π°ΡΠ°. ΠΠ΅ΡΡΠ° ΠΊΡΠ΅ΠΏΠ»Π΅Π½ΠΈΡ Π½Π°ΠΏΡΠ°Π²Π»ΡΡΡΠΈΡ Ρ ΠΏΠΎΠΌΠΎΡΡΡ ΡΠ°ΠΌΠΎΡΠ΅Π·ΠΎΠ² ΠΊΠ΅ΡΠ½ΠΈΠΌ Ρ ΠΏΠΎΠΌΠΎΡΡΡ ΠΊΠ΅ΡΠ½Π° ΠΈΠ»ΠΈ Π΄Π΅Π»Π°Π΅ΠΌ Π½Π°ΡΠ΅ΡΠΊΠΈ Ρ ΠΏΠΎΠΌΠΎΡΡΡ ΡΠΈΠ»Π°.
Π¨Π°ΡΠΈΠΊΠΎΠ²ΡΠ΅
Π½Π°ΠΏΡΠ°Π²Π»ΡΡΡΠΈΠ΅
Π‘ΠΌΠ΅Π½Π½ΡΠ΅ Π²ΡΠ΄Π²ΠΈΠΆΠ½ΡΠ΅ ΡΡΠΈΠΊΠΈ Π΄Π»Ρ ΠΊΡΡ Π½ΠΈ Shallow Metabox
ΠΡΠ·ΡΠ²Ρ ΠΊΠ»ΠΈΠ΅Π½ΡΠΎΠ²
5/5
Π’ΡΠ΅Π±ΡΠ΅ΠΌΠ°Ρ Π΄Π»ΠΈΠ½Π° Π±ΠΎΠΊΠΎΠ²ΡΡ ΡΡΠ΅Π½ΠΎΠΊ ΡΡΠΈΠΊΠ° ΠΈ Π½Π°ΠΏΡΠ°Π²Π»ΡΡΡΠΈΡ : 500 ΠΌΠΌ
Π₯ΠΎΡΠΎΡΠ΅Π΅ ΠΊΠ°ΡΠ΅ΡΡΠ²ΠΎ. ΠΠΎΡΠ΅ΠΊΠΎΠΌΠ΅Π½Π΄ΡΠΉΡΠ΅ ΠΏΡΠΈΠ»ΠΎΠΆΠΈΡΡ ΠΈΠ½ΡΡΡΡΠΊΡΠΈΠΈ ΠΏΠΎ ΡΡΡΠ°Π½ΠΎΠ²ΠΊΠ΅ ΠΊ ΠΏΠΎΠΊΡΠΏΠΊΠ΅, ΠΏΠΎΡΠΊΠΎΠ»ΡΠΊΡ ΡΡΠΎ ΡΠΏΡΠΎΡΡΠΈΡ ΡΡΡΠ°Π½ΠΎΠ²ΠΊΡ, Π° ΡΠ°ΠΊΠΆΠ΅ ΠΏΠΎΡΠΌΠΎΡΡΠΈΡΠ΅ ΠΏΠΎΠ»Π΅Π·Π½ΠΎΠ΅ Π²ΠΈΠ΄Π΅ΠΎ Ρ ΠΈΠ½ΡΡΡΡΠΊΡΠΈΡΠΌΠΈ ΠΏΠΎ ΡΡΡΠ°Π½ΠΎΠ²ΠΊΠ΅. ΠΠΎΡΠΎΠ²Π°Ρ ΡΠ°Π±ΠΎΡΠ° Π² ΠΌΠΎΠ΅ΠΌ ΡΠ»ΡΡΠ°Π΅ Π±ΡΠ»Π° Π»ΡΡΡΠ΅Π³ΠΎ ΠΊΠ°ΡΠ΅ΡΡΠ²Π°, ΡΠ΅ΠΌ OEM, Π½ΠΎ Π½Π΅ ΡΠ°ΠΊ Π³Π»Π°Π΄ΠΊΠΎ Π² ΡΠ°Π±ΠΎΡΠ΅.
ΠΠΆΠΎΠ½ Π.
5/5
Π’ΡΠ΅Π±ΡΠ΅ΠΌΠ°Ρ Π΄Π»ΠΈΠ½Π° Π±ΠΎΠΊΠΎΠ²ΡΡ ΡΡΠ΅Π½ΠΎΠΊ ΡΡΠΈΠΊΠ° ΠΈ Π½Π°ΠΏΡΠ°Π²Π»ΡΡΡΠΈΡ : 500 ΠΌΠΌ
Π Π°Π±ΠΎΡΠ°Π΅Ρ Ρ ΠΎΡΠΎΡΠΎ, ΠΈΠ½ΡΡΡΡΠΊΡΠΈΠΈ ΠΏΠΎΠ»Π΅Π·Π½Ρ.
Π‘ΡΡ Π‘.
4/5
Π’ΡΠ΅Π±ΡΠ΅ΠΌΠ°Ρ Π΄Π»ΠΈΠ½Π° Π±ΠΎΠΊΠΎΠ²ΡΡ ΡΡΠ΅Π½ΠΎΠΊ ΡΡΠΈΠΊΠ° ΠΈ Π½Π°ΠΏΡΠ°Π²Π»ΡΡΡΠΈΡ : 450 ΠΌΠΌ
ΠΠ΅ ΡΠ²Π΅ΡΠ΅Π½, Π±ΡΠ»ΠΎ Π»ΠΈ ΡΡΠΎ ΠΌΠΎΠ΅ ΠΈΠ·ΠΌΠ΅ΡΠ΅Π½ΠΈΠ΅ ΠΈΠ»ΠΈ Π²Π°Ρ Π·Π°ΠΊΠ°Π· Π·Π°ΠΏΡΡΠ°Π»ΡΡ, Π½ΠΎ ΠΎΠ½ Π±ΡΠ» ΠΎΡΡΠΎΡΡΠΈΡΠΎΠ²Π°Π½, ΡΠΏΠ°ΡΠΈΠ±ΠΎ.
Π‘ΡΡ Π‘.
5/5
Π’ΡΠ΅Π±ΡΠ΅ΠΌΠ°Ρ Π΄Π»ΠΈΠ½Π° Π±ΠΎΠΊΠΎΠ²ΡΡ ΡΡΠ΅Π½ΠΎΠΊ ΡΡΠΈΠΊΠ° ΠΈ Π½Π°ΠΏΡΠ°Π²Π»ΡΡΡΠΈΡ : 450 ΠΌΠΌ
ΠΠ΅ΠΉΡΡΠ²ΠΈΡΠ΅Π»ΡΠ½ΠΎ ΠΊΠ°ΡΠ΅ΡΡΠ²Π΅Π½Π½Π°Ρ ΠΏΠΎΠ»ΠΊΠ°.
ΠΠΆΠΎΠ½ Π€.
5/5
Π’ΡΠ΅Π±ΡΠ΅ΠΌΠ°Ρ Π΄Π»ΠΈΠ½Π° Π±ΠΎΠΊΠΎΠ²ΡΡ ΡΡΠ΅Π½ΠΎΠΊ ΡΡΠΈΠΊΠ° ΠΈ Π½Π°ΠΏΡΠ°Π²Π»ΡΡΡΠΈΡ : 400 ΠΌΠΌ
ΠΡΠ»ΠΈΡΠ½ΠΎ.
ΠΡΡΠΈ Π€.
5/5
Π’ΡΠ΅Π±ΡΠ΅ΠΌΠ°Ρ Π΄Π»ΠΈΠ½Π° Π±ΠΎΠΊΠΎΠ²ΡΡ ΡΡΠ΅Π½ΠΎΠΊ ΡΡΠΈΠΊΠ° ΠΈ Π½Π°ΠΏΡΠ°Π²Π»ΡΡΡΠΈΡ : 400 ΠΌΠΌ
ΠΠ΅ΠΉΡΡΠ²ΠΈΡΠ΅Π»ΡΠ½ΠΎ ΠΊΡΠ°ΡΠΈΠ²ΡΠΉ ΡΠ²Π΅ΡΡ ΠΌΠΎΡΠ½ΡΠΉ ΡΡΠΈΠΊ. ΠΠ΅Π³ΠΊΠΎ ΡΠΎΠ±ΡΠ°ΡΡ ΠΈ ΡΡΡΠ°Π½ΠΎΠ²ΠΈΡΡ. Π― ΠΊΡΠΏΠΈΠ» Π΅Π³ΠΎ Π² ΠΊΠ°ΡΠ΅ΡΡΠ²Π΅ Π·Π°ΠΏΠ°ΡΠ½ΠΎΠ³ΠΎ ΡΡΠΈΠΊΠ° Π΄Π»Ρ ΡΠ²ΠΎΠ΅Π³ΠΎ Π΄ΠΎΠΌΠ° Π½Π° ΠΊΠΎΠ»Π΅ΡΠ°Ρ . ΠΡΠΎ Π²Π΅Π»ΠΈΠΊΠΎΠ»Π΅ΠΏΠ½ΠΎ. ΠΠΎΠ»ΡΡΠΎΠ΅ ΡΠΏΠ°ΡΠΈΠ±ΠΎ.
ΠΠ»Π΅ΠΎΠ½ΠΎΡΠ° Π.
5/5
Π’ΡΠ΅Π±ΡΠ΅ΠΌΠ°Ρ Π΄Π»ΠΈΠ½Π° Π±ΠΎΠΊΠΎΠ²ΡΡ ΡΡΠ΅Π½ΠΎΠΊ ΡΡΠΈΠΊΠ° ΠΈ Π½Π°ΠΏΡΠ°Π²Π»ΡΡΡΠΈΡ : 450 ΠΌΠΌ
ΠΡΠ»ΠΈΡΠ½ΠΎ.
ΠΠΈΠΊΠΊΠΈ Π.
5/5
Π’ΡΠ΅Π±ΡΠ΅ΠΌΠ°Ρ Π΄Π»ΠΈΠ½Π° Π±ΠΎΠΊΠΎΠ²ΡΡ ΡΡΠ΅Π½ΠΎΠΊ ΡΡΠΈΠΊΠ° ΠΈ Π½Π°ΠΏΡΠ°Π²Π»ΡΡΡΠΈΡ : 450 ΠΌΠΌ
Drawbox Π²ΡΠ΅ Π² ΠΏΠΎΡΡΠ΄ΠΊΠ΅, Π½ΠΎ Π΄ΠΎΡΡΠ°Π²ΠΊΠ° ΡΠΆΠ°ΡΠ½Π°Ρ, ΠΏΡΠΎΡΡΠΎ ΠΎΡΡΠ°Π²Π»Π΅Π½Π° ββΠ½Π° ΠΏΠΎΡΠΎΠ³Π΅, Π½ΠΎ, ΠΊ ΡΡΠ°ΡΡΡΡ, Π΅Π΅ Π½Π΅ ΡΠΊΡΠ°Π»ΠΈ.
ΠΠΆΠΎ Π.
Π‘ΠΏΠ°ΡΠΈΠ±ΠΎ Π·Π° ΠΎΡΠ»ΠΈΡΠ½ΡΠΉ ΠΎΠ±Π·ΠΎΡ. ΠΡΠΈΠ½ΠΎΡΠΈΠΌ ΡΠ²ΠΎΠΈ ΠΈΠ·Π²ΠΈΠ½Π΅Π½ΠΈΡ Π·Π° ΠΏΡΠΎΠ±Π»Π΅ΠΌΡ Ρ Π΄ΠΎΡΡΠ°Π²ΠΊΠΎΠΉ, ΠΌΡ ΠΏΠΎΠ΄Π½ΡΠ»ΠΈ ΡΡΠΎΡ Π²ΠΎΠΏΡΠΎΡ Ρ ΠΊΡΡΡΠ΅ΡΠΎΠΌ.
Drawerboxes.co.uk
5/5
Π’ΡΠ΅Π±ΡΠ΅ΠΌΠ°Ρ Π΄Π»ΠΈΠ½Π° Π±ΠΎΠΊΠΎΠ²ΡΡ ΡΡΠ΅Π½ΠΎΠΊ ΡΡΠΈΠΊΠ° ΠΈ Π½Π°ΠΏΡΠ°Π²Π»ΡΡΡΠΈΡ : 400 ΠΌΠΌ
ΠΠ΅ΡΠ²ΠΎΠΊΠ»Π°ΡΡΠ½ΡΠΉ ΠΏΡΠΎΠ΄ΡΠΊΡ. ΠΠ΅Π³ΠΊΠΎ ΡΠΎΠ±ΡΠ°ΡΡ ΠΈ ΡΡΡΠ°Π½ΠΎΠ²ΠΈΡΡ Ρ ΠΏΠΎΠΌΠΎΡΡΡ ΠΎΠ±ΡΡΠ°ΡΡΠΈΡ Π²ΠΈΠ΄Π΅ΠΎ. ΠΠ°ΡΠ°Π½ΡΠΈΡ Π½Π° Π²Π΅ΡΠ½ΠΎΡΡΡ, ΠΈ Ρ Π½Π΅ ΡΠ΄ΠΈΠ²Π»Π΅Π½, ΡΡΠΈΡΡΠ²Π°Ρ Π½Π°Π΄Π΅ΠΆΠ½ΠΎΡΡΡ ΠΊΠΎΠΌΠΏΠΎΠ½Π΅Π½ΡΠΎΠ².
ΠΠ°ΠΉΠΊΠ» Π’.
5/5
Π’ΡΠ΅Π±ΡΠ΅ΠΌΠ°Ρ Π΄Π»ΠΈΠ½Π° Π±ΠΎΠΊΠΎΠ²ΡΡ ΡΡΠ΅Π½ΠΎΠΊ ΡΡΠΈΠΊΠ° ΠΈ Π½Π°ΠΏΡΠ°Π²Π»ΡΡΡΠΈΡ : 450 ΠΌΠΌ
Π Π²ΠΎΡΡΠΎΡΠ³Π΅ ΠΎΡ ΠΊΡΡ ΠΎΠ½Π½ΡΡ ΠΊΠΎΡΠΎΠ±ΠΎΠΊ ΠΈ ΠΏΠΎΠ»ΡΡΠ΅Π½Π½ΠΎΠ³ΠΎ ΠΌΠ½ΠΎΠΉ ΡΠ»Π΅ΠΊΡΡΠΎΠ½Π½ΠΎΠ³ΠΎ ΠΏΠΈΡΡΠΌΠ° Ρ ΠΏΡΠΎΠ²Π΅ΡΠΊΠΎΠΉ, ΡΡΠΎ Ρ Π·Π°ΠΊΠ°Π·Π°Π» ΠΏΡΠ°Π²ΠΈΠ»ΡΠ½ΡΠΉ ΡΠ°Π·ΠΌΠ΅Ρ, ΠΊΠΎΡΠΎΡΡΠΉ Ρ ΡΠΎΠ±ΡΠ°Π» Π²ΠΌΠ΅ΡΡΠ΅, ΠΈ ΠΈΠ΄Π΅Π°Π»ΡΠ½ΠΎ ΠΏΠΎΠ΄Ρ ΠΎΠ΄ΠΈΡ, Π±ΠΎΠ»ΡΡΠΎΠ΅ ΡΠΏΠ°ΡΠΈΠ±ΠΎ, ΠΠ»Π°Π½.
ΠΠ»Π°Π½ Π€.
ΠΡΡΠΎΡΠ° ΡΡΠΎΡΠΎΠ½Ρ ΡΡΠΈΠΊΠ° 54 ΠΌΠΌ | ||||
ΠΠ΅ΡΠ΅Π΄Π½ΡΡ ΠΏΠ°Π½Π΅Π»Ρ | ΠΠΈΠΆΠ½ΡΡ ΠΏΠ°Π½Π΅Π»Ρ | ΠΠ°Π΄Π½ΡΡ ΠΏΠ°Π½Π΅Π»Ρ | ||
Π―ΡΠΈΠΊ | ΠΠ½Π΄ΠΈΠ²ΠΈΠ΄ΡΠ°Π»ΡΠ½ΡΠΉ Π²ΡΠ±ΠΎΡ | L = SL — 2 ΠΌΠΌ B = KB — 31 ΠΌΠΌ | H = 39 ΠΌΠΌ B = KB — 31 ΠΌΠΌ | |
ΠΡΡΠΎΡΠ° ΡΡΠΎΡΠΎΠ½Ρ ΡΡΠΈΠΊΠ° 86 ΠΌΠΌ | ΠΠ΅ΡΠ΅Π΄Π½ΡΡ ΠΏΠ°Π½Π΅Π»Ρ | ΠΠΈΠΆΠ½ΡΡ ΠΏΠ°Π½Π΅Π»Ρ | ΠΠ°Π΄Π½ΡΡ ΠΏΠ°Π½Π΅Π»Ρ | |
Π―ΡΠΈΠΊ | ΠΠ½Π΄ΠΈΠ²ΠΈΠ΄ΡΠ°Π»ΡΠ½ΡΠΉ Π²ΡΠ±ΠΎΡ Π»Π΅Π΄ | L = SL — 2 ΠΌΠΌ B = KB — 31 ΠΌΠΌ | H = 71 ΠΌΠΌ B = KB — 31 ΠΌΠΌ | |
ΠΠ½ΡΡΡΠ΅Π½Π½ΠΈΠΉ ΡΡΠΈΠΊ | H = 61 ΠΌΠΌ B = KB — 64 ΠΌΠΌ | L = SL — 18 ΠΌΠΌ B = KB — 31 ΠΌΠΌ | H = 71 ΠΌΠΌ B = KB — 31 ΠΌΠΌ | |
Pull -Π²ΡΡ ΠΎΠ΄ | ΠΠ½Π΄ΠΈΠ²ΠΈΠ΄ΡΠ°Π»ΡΠ½ΡΠΉ Π²ΡΠ±ΠΎΡ | L = SL — 2 ΠΌΠΌ B = KB — 31 ΠΌΠΌ | H = 127 ΠΌΠΌ B = KB — 31 ΠΌΠΌ | |
ΠΡΡΠΎΡΠ° ΡΡΠΎΡΠΎΠ½Ρ ΡΡΠΈΠΊΠ° 118 ΠΌΠΌ | ΠΠ΅ΡΠ΅Π΄Π½ΡΡ ΠΏΠ°Π½Π΅Π»Ρ | ΠΠΈΠΆΠ½ΡΡ ΠΏΠ°Π½Π΅Π»Ρ | ΠΠ°Π΄Π½ΡΡ ΠΏΠ°Π½Π΅Π»Ρ | |
Π―ΡΠΈΠΊ | ΠΠ½Π΄ΠΈΠ²ΠΈΠ΄ΡΠ°Π»ΡΠ½ΡΠΉ Π²ΡΠ±ΠΎΡ | — L = 2 ΠΌΠΌ 90 003 B = KB — 31 ΠΌΠΌ | H = 103 ΠΌΠΌ B = KB — 31 ΠΌΠΌ | |
ΠΡΠ΄Π²ΠΈΠΆΠ½ΠΎΠΉ | ΠΠ½Π΄ΠΈΠ²ΠΈΠ΄ΡΠ°Π»ΡΠ½ΡΠΉ Π²ΡΠ±ΠΎΡ | L = SL — 2 ΠΌΠΌ B = KB — 31 ΠΌΠΌ | H = 159 ΠΌΠΌ B = KB — 31 ΠΌΠΌ | |
ΠΡΡΠΎΡΠ° ΡΡΠΎΡΠΎΠ½Ρ ΡΡΠΈΠΊΠ° 150 ΠΌΠΌ | ΠΠ΅ΡΠ΅Π΄Π½ΡΡ ΠΏΠ°Π½Π΅Π»Ρ | ΠΠ°Π·ΠΎΠ²Π°Ρ ΠΏΠ°Π½Π΅Π»Ρ | ΠΠ°Π΄Π½ΡΡ ΠΏΠ°Π½Π΅Π»Ρ | |
Π―ΡΠΈΠΊ | ΠΠ½Π΄ΠΈΠ²ΠΈΠ΄ΡΠ°Π»ΡΠ½ΡΠΉ Π²ΡΠ±ΠΎΡ | L = SL — 2 ΠΌΠΌ B = KB — 31 ΠΌΠΌ | H = 135 ΠΌΠΌ B = KB — 31 ΠΌΠΌ | |
ΠΠ½ΡΡΡΠ΅Π½Π½ΠΈΠΉ ΡΡΠΈΠΊ | H = 125 ΠΌΠΌ B = KB — 64 ΠΌΠΌ | L = SL — 18 ΠΌΠΌ B = KB — 31 ΠΌΠΌ | H = 135 ΠΌΠΌ 9 0002 B = KB — 31 ΠΌΠΌ | |
Blum METABOX
ΠΡΠ΄Π²ΠΈΠΆΠ½ΡΠ΅ ΡΡΠΈΠΊΠΈ Blum Metabox ΠΏΡΠ΅Π΄ΡΡΠ°Π²Π»ΡΡΡ ΡΠΎΠ±ΠΎΠΉ ΠΏΡΠΎΡΡΡΡ ΠΊΠΎΠΌΠ±ΠΈΠ½Π°ΡΠΈΡ Π²ΡΠ΅Π³ΠΎ Π½Π΅ΡΠΊΠΎΠ»ΡΠΊΠΈΡ
ΠΊΠΎΠΌΠΏΠΎΠ½Π΅Π½ΡΠΎΠ², ΡΡΠΎ ΠΎΠ·Π½Π°ΡΠ°Π΅Ρ, ΡΡΠΎ Π²Ρ ΡΠΊΠΎΠ½ΠΎΠΌΠΈΡΠ΅ Π²ΡΠ΅ΠΌΡ ΠΈ Π΄Π΅Π½ΡΠ³ΠΈ, ΠΊΠΎΠ³Π΄Π° Π΄Π΅Π»ΠΎ Π΄ΠΎΡ
ΠΎΠ΄ΠΈΡ Π΄ΠΎ ΠΏΡΠΎΡΠ΅ΡΡΠ° ΡΡΡΠ°Π½ΠΎΠ²ΠΊΠΈ.
ΠΡΠΈ ΡΡΠΈΠΊΠΈ ΠΎΠ»ΠΈΡΠ΅ΡΠ²ΠΎΡΡΡΡ ΠΊΠ°ΡΠ΅ΡΡΠ²ΠΎ, ΠΈΡ
ΠΏΡΠΎΡΠ½ΡΠ΅ ΠΌΠ°ΡΠ΅ΡΠΈΠ°Π»Ρ ΠΈ ΡΡΠ°ΡΠ΅Π»ΡΠ½Π°Ρ ΡΠ±ΠΎΡΠΊΠ° Π³Π°ΡΠ°Π½ΡΠΈΡΡΡΡ, ΡΡΠΎ Π²ΡΠ΅, ΡΡΠΎ Π²Ρ Ρ
ΡΠ°Π½ΠΈΡΠ΅ Π² Π½ΠΈΡ
, Π±ΡΠ΄Π΅Ρ Π² Π±Π΅Π·ΠΎΠΏΠ°ΡΠ½ΠΎΡΡΠΈ. ΠΡ ΠΌΠΎΠΆΠ΅ΡΠ΅ ΠΈΡΠΏΠΎΠ»ΡΠ·ΠΎΠ²Π°ΡΡ ΡΡΠΈ ΠΏΡΠΎΠ²Π΅ΡΠ΅Π½Π½ΡΠ΅ Π²ΡΠ΅ΠΌΠ΅Π½Π΅ΠΌ Π²ΡΠ΄Π²ΠΈΠΆΠ½ΡΠ΅ ΡΡΠΈΠΊΠΈ ΠΏΡΠ°ΠΊΡΠΈΡΠ΅ΡΠΊΠΈ Π΄Π»Ρ Π»ΡΠ±ΠΎΠ³ΠΎ ΠΏΡΠΈΠΌΠ΅Π½Π΅Π½ΠΈΡ — ΠΎΡ ΠΊΡΡ
ΠΎΠ½Ρ ΠΈ Ρ
ΠΎΠ»Π»ΠΎΠ² Π΄ΠΎ ΠΎΡΠΈΡΠΎΠ² ΠΈ Π²Π°Π½Π½ΡΡ
ΠΊΠΎΠΌΠ½Π°Ρ — Π΄Π΅ΠΉΡΡΠ²ΠΈΡΠ΅Π»ΡΠ½ΠΎ Π½Π΅Ρ ΠΌΠ΅ΡΡΠ°, Π³Π΄Π΅ Π±Ρ ΡΡΠΈ ΡΡΠΈΠΊΠΈ Π½Π΅ ΠΏΠΎΠ΄Ρ
ΠΎΠ΄ΠΈΠ»ΠΈ.
ΠΡΡΠΎΠΊΠΎΠ΅ ΠΊΠ°ΡΠ΅ΡΡΠ²ΠΎ, ΠΌΠ°Π»ΠΎ ΠΊΠΎΠΌΠΏΠΎΠ½Π΅Π½ΡΠΎΠ²
ΠΡΠ΄Π²ΠΈΠΆΠ½ΠΎΠΉ ΡΡΠΈΠΊ Blum Metabox, ΡΠ΄Π΅Π»Π°Π½Π½ΡΠΉ ΠΈΠ· ΠΏΡΠΎΡΠ½ΡΡ ΠΌΠ°ΡΠ΅ΡΠΈΠ°Π»ΠΎΠ², ΠΏΠΎΠ΄Ρ ΠΎΠ΄ΠΈΡ ΠΏΡΠ°ΠΊΡΠΈΡΠ΅ΡΠΊΠΈ Π²Π΅Π·Π΄Π΅, Π³Π΄Π΅ Π²Π°ΠΌ ΠΌΠΎΠΆΠ΅Ρ ΠΏΠΎΡΡΠ΅Π±ΠΎΠ²Π°ΡΡΡΡ Π²ΡΡΠΎΠΊΠΎΠΊΠ°ΡΠ΅ΡΡΠ²Π΅Π½Π½ΠΎΠ΅ ΡΠ΅ΡΠ΅Π½ΠΈΠ΅ Π΄Π»Ρ Π²ΡΠ΄Π²ΠΈΠΆΠ½ΠΎΠ³ΠΎ ΡΡΠΈΠΊΠ° — ΠΎΠ½ ΠΏΠΎΠ΄Ρ ΠΎΠ΄ΠΈΡ Π΄Π°ΠΆΠ΅ Π΄Π»Ρ ΠΌΠ°ΡΡΠ΅ΡΡΠΊΠΈΡ .ΠΠΎΠ³Π΄Π° ΠΌΠ°ΡΠ΅ΡΠΈΠ°Π»Ρ ΡΠΎΡΠ΅ΡΠ°ΡΡΡΡ Ρ ΡΡΠ°ΡΠ΅Π»ΡΠ½ΡΠΌ ΠΌΠ°ΡΡΠ΅ΡΡΡΠ²ΠΎΠΌ, Π²Ρ Π·Π½Π°Π΅ΡΠ΅, ΡΡΠΎ ΡΠ΅Π·ΡΠ»ΡΡΠ°ΡΡ Π±ΡΠ΄ΡΡ ΠΏΡΠΎΡΡΠΎ Π²Π΅Π»ΠΈΠΊΠΎΠ»Π΅ΠΏΠ½ΡΠΌΠΈ. Π‘Π°ΠΌΠΈ ΡΡΠΈΠΊΠΈ ΠΏΠΎΠ΄ΡΠ΅ΡΠΊΠΈΠ²Π°ΡΡ ΡΡΡΠΎΠΉΡΠΈΠ²ΠΎΡΡΡ ΠΈ ΠΈΠΌΠ΅ΡΡ Π³ΡΡΠ·ΠΎΠΏΠΎΠ΄ΡΠ΅ΠΌΠ½ΠΎΡΡΡ Π΄ΠΎ 30 ΠΊΠ³.
Π‘ Π½Π°ΡΠΈΠΌΠΈ Π²ΡΠ΄Π²ΠΈΠΆΠ½ΡΠΌΠΈ ΡΡΠΈΠΊΠ°ΠΌΠΈ Metabox Ρ Π½Π°Ρ ΡΠ°ΠΊΠΆΠ΅ Π΅ΡΡΡ ΠΏΡΠΎΠ²Π΅ΡΠ΅Π½Π½Π°Ρ ΠΈ ΠΈΡΠΏΡΡΠ°Π½Π½Π°Ρ ΡΡΠ½ΠΊΡΠΈΡ Blumotion, Π΄ΠΎΡΡΡΠΏΠ½Π°Ρ Π² ΠΊΠ°ΡΠ΅ΡΡΠ²Π΅ ΠΎΠΏΡΠΈΠΈ Π΄Π»Ρ ΠΎΠ΄ΠΈΠ½ΠΎΡΠ½ΠΎΠ³ΠΎ ΡΠ΄Π»ΠΈΠ½ΠΈΡΠ΅Π»Ρ Metabox. ΠΡΠΎ ΠΎΠ±Π΅ΡΠΏΠ΅ΡΠΈΠ²Π°Π΅Ρ ΠΏΠΎΠ»ΡΠ·ΠΎΠ²Π°ΡΠ΅Π»ΡΠΌ ΠΏΠ»Π°Π²Π½ΡΠΉ ΠΈ Π±Π΅Π·ΠΎΠΏΠ°ΡΠ½ΡΠΉ ΡΠΏΠΎΡΠΎΠ± ΠΎΡΠΊΡΡΠ²Π°ΡΡ ΠΈ Π·Π°ΠΊΡΡΠ²Π°ΡΡ ΡΡΠΈΠΊΠΈ, ΠΏΠΎΡΠΊΠΎΠ»ΡΠΊΡ ΠΎΠ½ Π½Π΅ Π·Π°Π²ΠΈΡΠΈΡ ΠΎΡ ΠΏΡΠΈΠ»Π°Π³Π°Π΅ΠΌΠΎΠΉ ΡΠΈΠ»Ρ ΠΈ Π²Π΅ΡΠ° Ρ
ΡΠ°Π½ΠΈΠΌΡΡ
ΠΏΡΠ΅Π΄ΠΌΠ΅ΡΠΎΠ².
ΠΡΠ΄Π²ΠΈΠΆΠ½ΠΎΠΉ ΡΡΠΈΠΊ Blum Metabox — Π½Π΅Π²Π΅ΡΠΎΡΡΠ½ΠΎ ΡΡΡΠ΅ΠΊΡΠΈΠ²Π½ΠΎΠ΅, ΠΏΡΠ°ΠΊΡΠΈΡΠ½ΠΎΠ΅ ΠΈ ΡΠΊΠΎΠ½ΠΎΠΌΠΈΡΠ½ΠΎΠ΅ ΡΠ΅ΡΠ΅Π½ΠΈΠ΅ Π΄Π»Ρ Π²Π°ΡΠΈΡ
Π½ΡΠΆΠ΄ Ρ
ΡΠ°Π½Π΅Π½ΠΈΡ — Π²ΠΎ Π²ΡΠ΅Ρ
ΡΡΠ°Π½Π΄Π°ΡΡΠ½ΡΡ
ΠΏΡΠΈΠ»ΠΎΠΆΠ΅Π½ΠΈΡΡ
; ΠΎΠ΄Π½Π° Π΅Π΄ΠΈΠ½ΠΈΡΠ° — ΡΡΠΎ Π²ΡΠ΅, ΡΡΠΎ Π²Π°ΠΌ Π½ΡΠΆΠ½ΠΎ.
ΠΠ»Ρ ΠΏΠΎΠ»ΡΡΠ΅Π½ΠΈΡ ΠΈΠ½ΡΠΎΡΠΌΠ°ΡΠΈΠΈ ΠΎ Π²ΡΡΠΎΡΠ°ΠΉΡΠ΅ΠΌ ΠΊΠ°ΡΠ΅ΡΡΠ²Π΅ ΡΡΠΈΠΊΠΎΠ² Blum Metabox, ΡΠ²ΡΠΆΠΈΡΠ΅ΡΡ Ρ Π½Π°ΠΌΠΈ
ΠΠ°ΡΠΈ Π²ΡΠ΄Π²ΠΈΠΆΠ½ΡΠ΅ ΡΡΠΈΠΊΠΈ Metabox — ΠΎΠ΄Π½ΠΈ ΠΈΠ· Π»ΡΡΡΠΈΡ Π½Π° ΡΡΠ½ΠΊΠ΅, Π° ΡΡΠΎ Π·Π½Π°ΡΠΈΡ, ΡΡΠΎ Π²Ρ ΠΌΠΎΠΆΠ΅ΡΠ΅ Π±ΡΡΡ ΡΠ²Π΅ΡΠ΅Π½Ρ Π² ΠΈΡ ΠΊΠ°ΡΠ΅ΡΡΠ²Π΅ ΠΈ Π½Π°Π΄Π΅ΠΆΠ½ΠΎΡΡΠΈ — ΠΎΠ½ΠΈ ΠΎΠ±Π΅ΡΠΏΠ΅ΡΠΈΠ²Π°ΡΡ Ρ ΡΠ°Π½Π΅Π½ΠΈΠ΅ Π±ΠΎΠ»Π΅Π΅ ΡΡΠΆΠ΅Π»ΡΡ ΠΏΡΠ΅Π΄ΠΌΠ΅ΡΠΎΠ² ΠΈ Π½Π΅ ΡΡΠ΅Π±ΡΡΡ Π±ΠΎΠ»ΡΡΠΈΡ ΡΡΠΈΠ»ΠΈΠΉ Ρ Π²Π°ΡΠ΅ΠΉ ΡΡΠΎΡΠΎΠ½Ρ, ΠΊΠΎΠ³Π΄Π° Π΄Π΅Π»ΠΎ Π΄ΠΎΡ ΠΎΠ΄ΠΈΡ Π΄ΠΎ ΠΏΡΠΎΡΠ΅ΡΡΠ° ΡΡΡΠ°Π½ΠΎΠ²ΠΊΠΈ.
ΠΠΎΠ½Π΅ΡΠ½ΠΎ, ΠΌΡ Π±ΡΠ΄Π΅ΠΌ Ρ Π²Π°ΠΌΠΈ Π½Π° ΠΊΠ°ΠΆΠ΄ΠΎΠΌ ΡΡΠ°ΠΏΠ΅ ΠΏΡΡΠΈ, ΠΏΠΎΡΡΠΎΠΌΡ, ΠΏΡΠ΅ΠΆΠ΄Π΅ ΡΠ΅ΠΌ Π²Ρ ΡΠ΄Π΅Π»Π°Π΅ΡΠ΅ ΠΊΠ°ΠΊΡΡ-Π»ΠΈΠ±ΠΎ ΠΏΠΎΠΊΡΠΏΠΊΡ Ρ Π½Π°Ρ, ΠΈ ΠΏΠΎΡΠ»Π΅ ΡΠΎΠ³ΠΎ, ΠΊΠ°ΠΊ Π²Π°Ρ Π·Π°ΠΊΠ°Π· Π±ΡΠ΄Π΅Ρ Π² Π±Π΅Π·ΠΎΠΏΠ°ΡΠ½ΠΎΡΡΠΈ, ΠΌΡ Π±ΡΠ΄Π΅ΠΌ Π³ΠΎΡΠΎΠ²Ρ ΠΏΠΎΠΌΠΎΡΡ Π²Π°ΠΌ Ρ Π»ΡΠ±ΡΠΌΠΈ ΠΈ Π²ΡΠ΅ΠΌΠΈ Π²Π°ΡΠΈΠΌΠΈ Π²ΠΎΠΏΡΠΎΡΠ°ΠΌΠΈ. ΠΠ»Ρ ΠΏΠΎΠ»ΡΡΠ΅Π½ΠΈΡ Π΄ΠΎΠΏΠΎΠ»Π½ΠΈΡΠ΅Π»ΡΠ½ΠΎΠΉ ΠΈΠ½ΡΠΎΡΠΌΠ°ΡΠΈΠΈ ΠΎ Π½Π°ΡΠΈΡ Π²ΡΠ΄Π²ΠΈΠΆΠ½ΡΡ ΡΡΠΈΠΊΠ°Ρ Blum Metabox ΡΠ²ΡΠΆΠΈΡΠ΅ΡΡ Ρ Π½Π°ΠΌΠΈ Π·Π΄Π΅ΡΡ.
ΠΠ»Π΅ΠΊΡΡΠΎΠ½Π½ΡΠΉ ΠΊΠ°ΡΠ°Π»ΠΎΠ³ ΠΎΠ±ΠΎΡΡΠ΄ΠΎΠ²Π°Π½ΠΈΡ Π΄Π»Ρ ΡΠΊΠ°ΡΠΎΠ² — Lincoln Sentry
ΠΠΠΠΠΠ‘
Π‘ΠΈΡΡΠ΅ΠΌΡ ΡΡΠΈΠΊΠΎΠ²
Π‘ΠΈΡΡΠ΅ΠΌΡ ΡΡΠΈΠΊΠΎΠ² METABOX — ΠΠΊΡΠ΅ΡΡΡΠ°ΡΡ
ΠΠΠ’ΠΠ€ΠΠΠ¬
ΠΠΠ’ΠΠ€ΠΠΠ — Π―Π©ΠΠ Π€ΠΠΠΠΠ
ΠΠΠΠΠΠΠ― Π‘Π’ΠΠΠΠΠΠΠΠ¦ΠΠ― — Π£Π‘Π’ΠΠΠΠΠΠΠΠ ΠΠΠΠΠ
Π¦Π²Π΅Ρ
ΠΠΏΠΈΡΠ°Π½ΠΈΠ΅ Blum β ΠΠΎΠ΄
ΠΠΎΠ»-Π²ΠΎ 10
ΠΡΠ΅ΠΌ ΠΠΠ’ΠΠ€ΠΠΠ¬ ΠΠ°Π±ΠΎΡ ΠΠ Π.
5500 Π‘Π΅ΡΡΠΉ ΠΏΡΠ»ΡΠ½ΠΎ-ΡΠ΅ΡΡΠΉ ΠΠΠ’ΠΠ€ΠΠΠ¬ΠΠ«Π Π½Π°Π±ΠΎΡ ZRM.5500
1-281-661 1-281-662
β’ β’ β’ β’
ΠΠΎΠΌΠΈΠ½Π°Π»ΡΠ½Π°Ρ Π΄Π»ΠΈΠ½Π° ΠΎΡ 450 Π΄ΠΎ 550 ΠΌΠΌ Π¨ΠΈΡΠΈΠ½Π° ΠΊΠΎΡΠΏΡΡΠ° ΠΎΡ 275 Π΄ΠΎ 600 ΠΌΠΌ
β’
ΠΠ»Ρ 330 ΡΡΠΈΠΊΠΎΠ² ΠΏΠΎΠ»Π½ΠΎΠ³ΠΎ Π²ΡΠ΄Π²ΠΈΠΆΠ΅Π½ΠΈΡ Ρ Π΄Π΅ΡΠ΅Π²ΡΠ½Π½ΠΎΠΉ ΡΠΏΠΈΠ½ΠΊΠΎΠΉ
β’ ΠΠΎΠΏΠΎΠ»Π½ΠΈΡΠ΅Π»ΡΠ½Π°Ρ ΡΡΠ°Π±ΠΈΠ»ΠΈΠ·Π°ΡΠΈΡ Π΄Π»Ρ ΠΎΡΠ΅Π½Ρ ΡΠΈΡΠΎΠΊΠΈΡ ΡΡΠΈΠΊΠΎΠ² ΠΈ ΡΡΠΈΠΊΠΎΠ² Ρ Π²ΡΡΠΎΠΊΠΈΠΌ ΡΠ°ΡΠ°Π΄ΠΎΠΌ β’ Π Π΅ΠΊΠΎΠΌΠ΅Π½Π΄Π°ΡΠΈΡ: ΡΠΈΡΠΈΠ½Π° ΠΊΠΎΡΠΏΡΡΠ° ΠΎΡ 900 Π΄ΠΎ 1200 ΠΌΠΌ
ΠΠ°ΡΠ΅ΡΠΈΠ°Π»: Π½Π΅ΠΉΠ»ΠΎΠ½ / ΡΡΠ°Π»Ρ
ΠΠ΅ΡΠ°Π»ΠΈ METAFILE (ΠΏΡΠΎΠ΄Π°ΡΡΡΡ ΠΎΡΠ΄Π΅Π»ΡΠ½ΠΎ) ΠΠΏΠΈΡΠ°Π½ΠΈΠ΅
Π¦Π²Π΅Ρ: ΠΊΡΠ΅ΠΌΠΎΠ²ΡΠΉ RAL 9001
Blum β ZRM.0005 ZRM.0003
ΠΠΎΠ΄
1 2
ΠΡΠ΅ΠΏΠ»Π΅Π½ΠΈΠ΅ Π΄Π»Ρ METAFILE ΠΡΡΡΠΊΠ° Π΄Π»Ρ METAFILE
1-281-610 1-281-611
ΠΠΎΠ»-Π²ΠΎ 10
ΠΠΎΠΌΠΈΠ½Π°Π»ΡΠ½Π°Ρ Π΄Π»ΠΈΠ½Π° ΠΠ»ΡΠΌ No
ΠΠΎΠ΄
500
ZST.500MH
1-283-611
ΠΠ»Π°Π½ΠΈΡΠΎΠ²ΠΊΠ° — 320Π
ΠΠ»Π°Π½ΠΈΡΠΎΠ²Π°Π½ΠΈΠ΅
ΠΠ΅ΠΎΠ±Ρ ΠΎΠ΄ΠΈΠΌΠΎΠ΅ ΠΌΠ΅ΡΡΠΎ Π² ΡΠΊΠ°ΡΡ
Π£ΡΡΠ°Π½ΠΎΠ²ΠΎΡΠ½ΡΠ΅ ΡΠ°Π·ΠΌΠ΅ΡΡ Π΄Π»Ρ ΠΏΡΠΈΠ²ΠΈΠ½ΡΠΈΠ²Π°Π΅ΠΌΠΎΠΉ ΠΏΠ΅ΡΠ΅Π΄Π½Π΅ΠΉ ΠΏΠ°Π½Π΅Π»ΠΈ FA ΠΠ°ΠΊΠ»Π°Π΄ΠΊΠ° Π½Π° ΡΠ°ΡΠ°Π΄
Π Π°Π·ΠΌΠ΅ΡΡ ΠΏΠ΅ΡΠ΅Π΄Π½Π΅Π³ΠΎ ΡΠ²Π΅ΡΠ»Π΅Π½ΠΈΡ Π΄Π»Ρ EXPANDO / Π²ΡΡΠ°Π²Π½ΠΎΠΉ
Π£ΡΡΠ°Π½ΠΎΠ²ΠΎΡΠ½ΡΠ΅ ΡΠ°Π·ΠΌΠ΅ΡΡ ΡΠ·Π°Π΄ΠΈ
ΠΠ΅ΠΎΠ±Ρ ΠΎΠ΄ΠΈΠΌΠΎΠ΅ ΠΌΠ΅ΡΡΠΎ Π² ΡΠΊΠ°ΡΡ
ΠΠ΅ΠΎΠ±Ρ ΠΎΠ΄ΠΈΠΌΠΎΠ΅ ΠΌΠ΅ΡΡΠΎ Π² ΡΠΊΠ°ΡΡ
ΠΠ΅ΠΎΠ±Ρ ΠΎΠ΄ΠΈΠΌΠΎΠ΅ ΠΌΠ΅ΡΡΠΎ Π² ΡΠΊΠ°ΡΡ
Π£ΡΡΠ°Π½ΠΎΠ²ΠΎΡΠ½ΡΠ΅ ΡΠ°Π·ΠΌΠ΅ΡΡ Π²ΡΡΠΎΡΠ° M, K ΠΈ H
29
15.
5
15,5
15,5
15,5
ΠΠ»Π°Π½ΠΈΡΠΎΠ²ΠΊΠ° — 330Π
Π‘Π±ΠΎΡΠΊΠ°
Π£ΡΡΠ°Π½ΠΎΠ²ΠΎΡΠ½ΡΠ΅ ΡΠ°Π·ΠΌΠ΅ΡΡ Π΄Π»Ρ ΠΏΡΠΈΠ²ΠΈΠ½ΡΠΈΠ²Π°Π΅ΠΌΠΎΠΉ ΠΏΠ΅ΡΠ΅Π΄Π½Π΅ΠΉ ΠΏΠ°Π½Π΅Π»ΠΈ FA ΠΠ°ΠΊΠ»Π°Π΄ΠΊΠ° Π½Π° ΡΠ°ΡΠ°Π΄
Π Π°Π·ΠΌΠ΅ΡΡ ΠΏΠ΅ΡΠ΅Π΄Π½Π΅Π³ΠΎ ΡΠ²Π΅ΡΠ»Π΅Π½ΠΈΡ Π΄Π»Ρ EXPANDO / Π²ΡΡΠ°Π²Π½ΠΎΠΉ
ΠΠ΅ΠΎΠ±Ρ ΠΎΠ΄ΠΈΠΌΠΎΠ΅ ΠΌΠ΅ΡΡΠΎ Π² ΡΠΊΠ°ΡΡ
Π£ΡΡΠ°Π½ΠΎΠ²ΠΎΡΠ½ΡΠ΅ ΡΠ°Π·ΠΌΠ΅ΡΡ ΡΠ·Π°Π΄ΠΈ
3
2
1
ΠΠΠΠ ΠΠ«Π ΠΠ ΠΠΠ¨Π’ΠΠΠ Π―Π©ΠΠΠ β’ ΠΠΎΠ΄Π΄Π΅ΡΠΆΠΈΠ²Π°Π΅Ρ ΡΠΈΡΠΎΠΊΠΈΠ΅ ΠΏΠ΅ΡΠ΅Π΄Π½ΠΈΠ΅ Π²ΡΠ΄Π²ΠΈΠΆΠ½ΡΠ΅ ΡΡΠΈΠΊΠΈ β’ ΠΡΠ΅ΠΏΠ»Π΅Π½ΠΈΠ΅ Π²ΠΈΠ½ΡΠ°ΠΌΠΈ (Π½Π΅ Π²Ρ ΠΎΠ΄ΠΈΡ Π² ΠΊΠΎΠΌΠΏΠ»Π΅ΠΊΡ) β’ ΠΠ°ΡΠ΅ΡΠΈΠ°Π»: ΠΎΡΠΈΠ½ΠΊΠΎΠ²Π°Π½Π½Π°Ρ ΡΡΠ°Π»Ρ
15.5
Π‘Π±ΠΎΡΠΊΠ°
ΠΠΎΠ»-Π²ΠΎ 250
ΠΠ°ΡΠ΅ΡΠΈΠ°Π»
ΠΠ»ΡΠΌ β 297.0500
ΠΠΎΠ΄
Π‘ΡΠ°Π»Ρ Ρ ΡΠΈΠ½ΠΊΠΎΠ²ΡΠΌ ΠΏΠΎΠΊΡΡΡΠΈΠ΅ΠΌ
1-283-612
3
4
2
1
DIN-A4 ΡΠ°Π·ΠΌΠ΅ΡΡ ΡΠ΅Π·ΠΊΠΈ ΠΏΠΎ
ΠΠΈΠ½. Π²Π½ΡΡΡΠ΅Π½Π½ΡΡ ΡΠΈΡΠΈΠ½Π° = 376 ΠΌΠΌ
Π Π°Π·ΠΌΠ΅ΡΡ ΡΠ΅Π·ΠΊΠΈ ΠΏΠΎ DIN-A4 Π² ΠΏΡΠΎΠ΄ΠΎΠ»ΡΠ½ΠΎΠΌ Π½Π°ΠΏΡΠ°Π²Π»Π΅Π½ΠΈΠΈ
ΠΠΈΠ½. Π½ΠΎΠΌΠΈΠ½Π°Π»ΡΠ½Π°Ρ Π΄Π»ΠΈΠ½Π° = 500 ΠΌΠΌ
[1] ΠΠΎΠΌΠΈΠ½Π°Π»ΡΠ½Π°Ρ Π΄Π»ΠΈΠ½Π° — 28 ΠΌΠΌ [2] ΠΠΎΠΌΠΈΠ½Π°Π»ΡΠ½Π°Ρ Π΄Π»ΠΈΠ½Π° — 53 ΠΌΠΌ
[1] ΠΠΎΠΌΠΈΠ½Π°Π»ΡΠ½Π°Ρ Π΄Π»ΠΈΠ½Π° — 28 ΠΌΠΌ [2] 305 ΠΌΠΌ [3] ΠΠΎΠΌΠΈΠ½Π°Π»ΡΠ½Π°Ρ Π΄Π»ΠΈΠ½Π° — 406 ΠΌΠΌ [4] ΠΠ½ΡΡΡΠ΅Π½Π½ΡΡ ΡΠΈΡΠΈΠ½Π° ΠΊΠΎΡΠΏΡΡΠ° — 82 ΠΌΠΌ [5] ΠΠ½ΡΡΡΠ΅Π½Π½ΡΡ ΡΠΈΡΠΈΠ½Π° ΠΊΠΎΡΠΏΡΡΠ° — 59 ΠΌΠΌ
3
2
1
1
A4
2
4
5
Π‘ΠΠΠΠ ΠΠΠΠΠ
Π.
252
Π.253
Π‘ΠΠ‘Π’ΠΠΠ« Π―Π©ΠΠΠΠ
Π‘ΠΠ‘Π’ΠΠΠ« Π―Π©ΠΠΠΠ
Π Π°Π·ΠΌΠ΅ΡΡ ΠΈ Ρ Π°ΡΠ°ΠΊΡΠ΅ΡΠΈΡΡΠΈΠΊΠΈ ΠΌΠΎΠ³ΡΡ Π±ΡΡΡ ΠΈΠ·ΠΌΠ΅Π½Π΅Π½Ρ Π±Π΅Π· ΡΠ²Π΅Π΄ΠΎΠΌΠ»Π΅Π½ΠΈΡ.
LINCOLN SENTRY
Π‘Π΄Π΅Π»Π°Π½ΠΎ Ρ FlippingBook ΠΠΎΠ΄ΡΠΎΠ±Π½Π΅Π΅ Π² Π½Π°ΡΠ΅ΠΌ Π±Π»ΠΎΠ³Π΅
ΠΠ΅ΡΠ°Π»Π»ΠΈΡΠ΅ΡΠΊΠΈΠΉ ΡΡΠΈΠΊ Metabox ΠΠΎΠΊΠΎΠ²ΠΈΠ½Ρ / Π½Π°ΠΏΡΠ°Π²Π»ΡΡΡΠΈΠ΅ Π ΠΎΠ»ΠΈΠΊΠΈ ΡΠΊΠΎΠ»ΡΠΆΠ΅Π½ΠΈΡ — Π±Π΅Π»ΡΠΉ H-150 ΠΌΠΌ
ΠΠΎΠΌΠ΅Ρ ΠΏΠΎΠ·ΠΈΡΠΈΠΈ eBay:
201652447173
ΠΡΠΎΠ΄Π°Π²Π΅Ρ ΠΏΡΠΈΠ½ΠΈΠΌΠ°Π΅Ρ Π½Π° ΡΠ΅Π±Ρ Π²ΡΡ ΠΎΡΠ²Π΅ΡΡΡΠ²Π΅Π½Π½ΠΎΡΡΡ Π·Π° ΡΡΠΎ ΠΎΠ±ΡΡΠ²Π»Π΅Π½ΠΈΠ΅.
nawdaR .R .W
Π΄Π°ΠΎΡ ΡΠ΅ΡΠΈΠ½ΠΎΠ₯ 4
Π½Π°Π³ΠΈΠ
Π ΠΠ¦ΠΠ₯ΠΠΠ Π ΠΠ’ΠΠ Π
EU9 5NW
ΠΠΠΠΠΠ ΠΠΠ’ΠΠΠ£
: enohP03172259610
: liamEku.oc.xiredom@yabe
ΠΠΏΠΈΡΠ°Π½ΠΈΠ΅ ΡΠΎΠ²Π°ΡΠ°
| Π‘ΠΎΡΡΠΎΡΠ½ΠΈΠ΅: | Π’ΠΎΡΠ³ΠΎΠ²Π°Ρ ΠΌΠ°ΡΠΊΠ°: | GTV | |
| ΠΠ°ΡΠ°Π½ΡΠΈΡ ΠΏΡΠΎΠΈΠ·Π²ΠΎΠ΄ΠΈΡΠ΅Π»Ρ: | 2 Π³ΠΎΠ΄Π° | ΠΠΌΠ΅ΡΡΠΈΠΌΠΎΡΡΡ: | N / A |
| ΠΠ°ΡΠ΅ΡΠΈΠ°Π»: | ΠΠ΅ΡΠ°Π»Π» | Π¦Π²Π΅Ρ: | ΠΠ΅Π»ΡΠΉ |
| ΠΠΎΠ΄Π΅Π»Ρ: | N / A | ΠΠ»ΡΠ±ΠΈΠ½Π° ΠΏΡΠ΅Π΄ΠΌΠ΅ΡΠ°: | N / A |
| ΠΠΎΠ»ΠΈΡΠ΅ΡΡΠ²ΠΎ ΠΏΡΠ΅Π΄ΠΌΠ΅ΡΠΎΠ² Π² Π½Π°Π±ΠΎΡΠ΅: | N / A | ΠΡΡΠΎΡΠ° Π’ΠΎΠ²Π°ΡΠ°: | N / A |
| ΠΠΎΠ»-Π²ΠΎ ΠΏΠΎΠ»ΠΎΠΊ: | N / A | ΠΠ»ΠΈΠ½Π° ΡΠΎΠ²Π°ΡΠ°: | N / A |
| ΠΠΌΠ΅ΡΡΠΈΠΌΠΎΡΡΡ: | N / A | ΠΠ΅Ρ ΡΠΎΠ²Π°ΡΠ°: | N / A |
| Π ΠΊΠΎΠΌΠΏΠ»Π΅ΠΊΡΠ΅: | N / A | Π¨ΠΈΡΠΈΠ½Π° ΠΠ·Π΄Π΅Π»ΠΈΡ: | N / A |
| Π Π°Π·ΠΌΠ΅Ρ: | 150 ΠΌΠΌ | Π‘Π²Π΅ΡΠΎΡΠ΅Ρ Π½ΠΈΠΊΠ°: | N / A |
| Π’ΠΈΠΏ: | ΠΠ΅ΡΠ°Π»Π»ΠΈΡΠ΅ΡΠΊΠΈΠΉ ΡΡΠΈΠΊ |
ΠΠ½ΡΠΎΡΠΌΠ°ΡΠΈΡ ΠΎ ΠΏΡΠΎΠ΄Π°Π²ΡΠ΅ ΠΊΠΎΠΌΠΏΠ°Π½ΠΈΠΈ
Moderix Ltd
ΠΡ.Π . Π Π°Π΄Π²Π°Π½
4 Honister Road
Π£ΠΈΠ³Π°Π½
ΠΠΎΠ»ΡΡΠΎΠΉ ΠΠ°Π½ΡΠ΅ΡΡΠ΅Ρ
ΠΠ5 9Π£Π
Π‘ΠΎΠ΅Π΄ΠΈΠ½Π΅Π½Π½ΠΎΠ΅ ΠΠΎΡΠΎΠ»Π΅Π²ΡΡΠ²ΠΎ
ΠΡΡΠ³ΠΈΠ΅ Π½ΠΎΠΌΠ΅ΡΠ° ΠΠΠ‘:
Π€ΡΠ°Π½ΡΠΈΡ — FR57818636268
ΠΠ΅ΡΠΌΠ°Π½ΠΈΡ — DE323943673
ΠΡΠ°Π»ΠΈΡ — IT00236069993
ΠΡΠΏΠ°Π½ΠΈΡ — ESN6061689C
Π§Π΅ΡΡΠΊΠ°Ρ Π Π΅ΡΠΏΡΠ±Π»ΠΈΠΊΠ° — CZ684918716
ΠΠΎΠ»ΡΡΠ° — PL5263210364
Π Π΅Π³ΠΈΡΡΡΠ°ΡΠΈΠΎΠ½Π½ΡΠΉ Π½ΠΎΠΌΠ΅Ρ ΠΊΠΎΠΌΠΏΠ°Π½ΠΈΠΈ:
08581432
ΠΠΎΠΌΠ΅Ρ ΠΏΠ»Π°ΡΠ΅Π»ΡΡΠΈΠΊΠ° ΠΠΠ‘:
CZ 684918716
DE 323943673
ES N6061689C
FR 57818636268
ΠΠ 165964565
IT 00236069993
PL 5263210364
Π― Π²ΡΡΡΠ°Π²Π»ΡΡ ΡΡΠ΅ΡΠ° Ρ ΠΎΡΠ΄Π΅Π»ΡΠ½ΠΎ ΡΠΊΠ°Π·Π°Π½Π½ΡΠΌ ΠΠΠ‘.
ΠΠΎΠ»ΠΈΡΠΈΠΊΠ° Π²ΠΎΠ·Π²ΡΠ°ΡΠ°
ΠΠΎΡΠ»Π΅ ΠΏΠΎΠ»ΡΡΠ΅Π½ΠΈΡ ΡΠΎΠ²Π°ΡΠ° ΠΎΡΠΌΠ΅Π½ΠΈΡΠ΅ ΠΏΠΎΠΊΡΠΏΠΊΡ Π² ΡΠ΅ΡΠ΅Π½ΠΈΠ΅ | Π‘ΡΠΎΠΈΠΌΠΎΡΡΡ ΠΎΠ±ΡΠ°ΡΠ½ΠΎΠΉ Π΄ΠΎΡΡΠ°Π²ΠΊΠΈ |
|---|---|
30 Π΄Π½Π΅ΠΉ | ΠΠΎΠΊΡΠΏΠ°ΡΠ΅Π»Ρ ΠΎΠΏΠ»Π°ΡΠΈΠ²Π°Π΅Ρ ΠΎΠ±ΡΠ°ΡΠ½ΡΡ Π΄ΠΎΡΡΠ°Π²ΠΊΡ |
ΠΠΎΠΊΡΠΏΠ°ΡΠ΅Π»Ρ Π½Π΅ΡΠ΅Ρ ΠΎΡΠ²Π΅ΡΡΡΠ²Π΅Π½Π½ΠΎΡΡΡ Π·Π° Π²ΠΎΠ·Π²ΡΠ°Ρ ΠΏΠΎΡΡΠΎΠ²ΡΡ ΡΠ°ΡΡ ΠΎΠ΄ΠΎΠ².
ΠΡΠΎΠ΄Π°Π²Π΅Ρ ΠΏΡΠΈΠ½ΠΈΠΌΠ°Π΅Ρ Π½Π° ΡΠ΅Π±Ρ Π²ΡΡ ΠΎΡΠ²Π΅ΡΡΡΠ²Π΅Π½Π½ΠΎΡΡΡ Π·Π° ΡΡΠΎ ΠΎΠ±ΡΡΠ²Π»Π΅Π½ΠΈΠ΅.
ΠΠΎΡΡΠΎΠ²Π°Ρ ΠΎΠΏΠ»Π°ΡΠ° ΠΈ ΡΠΏΠ°ΠΊΠΎΠ²ΠΊΠ°
Π‘ΡΠΎΠΈΠΌΠΎΡΡΡ ΠΏΠ΅ΡΠ΅ΡΡΠ»ΠΊΠΈ Π½Π΅ ΠΌΠΎΠΆΠ΅Ρ Π±ΡΡΡ ΡΠ°ΡΡΡΠΈΡΠ°Π½Π°. ΠΠΎΠΆΠ°Π»ΡΠΉΡΡΠ°, Π²Π²Π΅Π΄ΠΈΡΠ΅ Π΄Π΅ΠΉΡΡΠ²ΠΈΡΠ΅Π»ΡΠ½ΡΠΉ ΠΏΠΎΡΡΠΎΠ²ΡΠΉ ΠΈΠ½Π΄Π΅ΠΊΡ.
ΠΠ΅ΡΡΠΎΠ½Π°Ρ ΠΎΠΆΠ΄Π΅Π½ΠΈΠ΅ ΡΠΎΠ²Π°ΡΠ°: Π‘ΠΊΠ΅Π»ΠΌΠ΅ΡΡΠ΄Π΅ΠΉΠ», ΠΠ΅Π»ΠΈΠΊΠΎΠ±ΡΠΈΡΠ°Π½ΠΈΡ
ΠΠΎΡΡΠΎΠ²Π°Ρ ΠΎΠΏΠ»Π°ΡΠ° Π²: ΠΠ΅Π»ΠΈΠΊΠΎΠ±ΡΠΈΡΠ°Π½ΠΈΡ
ΠΡΠΊΠ»ΡΡΠ΅Π½ΠΎ: ΠΠΎΠ»ΠΈΠ²ΠΈΡ, ΠΠ°ΠΈΡΠΈ, ΠΠΈΠ±Π΅ΡΠΈΡ, ΠΠΈΠΊΠ°ΡΠ°Π³ΡΠ°, Π’ΡΡΠΊΠΌΠ΅Π½ΠΈΡΡΠ°Π½, ΠΠ°ΡΠ°Π³Π²Π°ΠΉ, ΠΠ°Π²ΡΠΈΠΊΠΈΠΉ, Π‘ΡΠ΅ΡΡΠ°-ΠΠ΅ΠΎΠ½Π΅, ΠΠ΅Π½Π΅ΡΡΡΠ»Π°
ΠΡΠ±ΡΠ°ΡΡ ΡΡΡΠ°Π½Ρ: ΠΠΎΡΡΡΠΏΠ½ΠΎ 102 Π΅Π΄. ΠΡΠ±Π΅ΡΠΈΡΠ΅ Π΄ΠΎΠΏΡΡΡΠΈΠΌΡΡ ΡΡΡΠ°Π½Ρ. | ΠΠΎΡΡΠΎΠ²ΡΠΉ ΠΈΠ½Π΄Π΅ΠΊΡ: ΠΠΎΠΆΠ°Π»ΡΠΉΡΡΠ°, Π²Π²Π΅Π΄ΠΈΡΠ΅ Π΄Π΅ΠΉΡΡΠ²ΠΈΡΠ΅Π»ΡΠ½ΡΠΉ ΠΏΠΎΡΡΠΎΠ²ΡΠΉ ΠΈΠ½Π΄Π΅ΠΊΡ. ΠΠΎΠΆΠ°Π»ΡΠΉΡΡΠ°, Π²Π²Π΅Π΄ΠΈΡΠ΅ Π΄ΠΎ 7 ΡΠΈΠΌΠ²ΠΎΠ»ΠΎΠ² Π² ΠΏΠΎΡΡΠΎΠ²ΡΠΉ ΠΈΠ½Π΄Π΅ΠΊΡ |
ΠΠ°Π»ΠΎΠ³ΠΈ |
|---|
Π¦Π΅Π½Π° ΡΠΊΠ°Π·Π°Π½Π° Ρ ΡΡΠ΅ΡΠΎΠΌ ΠΠΠ‘.ΠΠΊΠΎΠ½ΡΠ°ΡΠ΅Π»ΡΠ½Π°Ρ ΡΡΠΎΠΈΠΌΠΎΡΡΡ ΠΌΠΎΠΆΠ΅Ρ ΠΎΡΠ»ΠΈΡΠ°ΡΡΡΡ Π² Π·Π°Π²ΠΈΡΠΈΠΌΠΎΡΡΠΈ ΠΎΡ Π°Π΄ΡΠ΅ΡΠ° Π΄ΠΎΡΡΠ°Π²ΠΊΠΈ. Π£ΡΠΈΡΡ Π±ΠΎΠ»ΡΡΠ΅ |
ΠΠ»Π°ΡΠ΅ΠΆΠ½ΡΠ΅ ΡΠ΅ΠΊΠ²ΠΈΠ·ΠΈΡΡ
| Π‘ΠΏΠΎΡΠΎΠ±Ρ ΠΎΠΏΠ»Π°ΡΡ | ||||||
|---|---|---|---|---|---|---|
ΠΡΠΈΠ½ΡΡΠΎ, ΠΏΡΠ°Π²ΠΎ Π½Π° ΠΏΠΎΠ»ΡΡΠ΅Π½ΠΈΠ΅ ΠΊΡΠ΅Π΄ΠΈΡΠ° PayPal ΠΎΠΏΡΠ΅Π΄Π΅Π»ΡΠ΅ΡΡΡ ΠΏΡΠΈ ΠΎΡΠΎΡΠΌΠ»Π΅Π½ΠΈΠΈ Π·Π°ΠΊΠ°Π·Π°.
ΠΠ³Π΅Π½ΡΡΡΠ²ΠΎ FCA ΡΠΏΠΎΠ»Π½ΠΎΠΌΠΎΡΠΈΠ»ΠΎ eBay Marketplaces GmbH (HelvetiastraΓe15-17, 3005, Bern, Switzerland) ΠΎΡΡΡΠ΅ΡΡΠ²Π»ΡΡΡ ΠΊΡΠ΅Π΄ΠΈΡΠ½ΠΎΠ΅ Π±ΡΠΎΠΊΠ΅ΡΡΡΠ²ΠΎ Π΄Π»Ρ ΠΎΠ³ΡΠ°Π½ΠΈΡΠ΅Π½Π½ΠΎΠ³ΠΎ ΠΊΡΡΠ³Π° ΠΏΠΎΡΡΠ°Π²ΡΠΈΠΊΠΎΠ² ΡΠΈΠ½Π°Π½ΡΠΎΠ²ΡΡ ΡΡΠ»ΡΠ³.ΠΡ ΠΌΠΎΠΆΠ΅ΠΌ ΠΏΠΎΠ»ΡΡΠΈΡΡ ΠΊΠΎΠΌΠΈΡΡΠΈΡ, Π΅ΡΠ»ΠΈ Π²Π°ΡΠ° Π·Π°ΡΠ²ΠΊΠ° Π½Π° ΠΊΡΠ΅Π΄ΠΈΡ Π±ΡΠ΄Π΅Ρ ΡΠ΄ΠΎΠ²Π»Π΅ΡΠ²ΠΎΡΠ΅Π½Π°. Π€ΠΈΠ½Π°Π½ΡΠΈΡΠΎΠ²Π°Π½ΠΈΠ΅ ΠΏΡΠ΅Π΄ΠΎΡΡΠ°Π²Π»ΡΠ΅ΡΡΡ PayPal Credit (ΡΠΎΡΠ³ΠΎΠ²ΠΎΠ΅ Π½Π°Π·Π²Π°Π½ΠΈΠ΅ PayPal (Europe) S.Γ .r.l. et Cie, S.C.A., 22-24 Boulevard Royal L-2449, ΠΡΠΊΡΠ΅ΠΌΠ±ΡΡΠ³). ΠΡΠΈΠ½ΡΡΡ ΡΡΠ»ΠΎΠ²ΠΈΡ. ΠΡΠΈ ΡΡΠ»ΠΎΠ²ΠΈΠΈ ΡΡΠ²Π΅ΡΠΆΠ΄Π΅Π½ΠΈΡ ΠΊΡΠ΅Π΄ΠΈΡΠ°. | ||||||
Meta Box — WordPress Custom Fields Framework — ΠΏΠ»Π°Π³ΠΈΠ½ Π΄Π»Ρ WordPress
Meta Box — ΠΌΠΎΡΠ½ΡΠΉ, ΠΏΡΠΎΡΠ΅ΡΡΠΈΠΎΠ½Π°Π»ΡΠ½ΡΠΉ ΠΈ Π»Π΅Π³ΠΊΠΈΠΉ Π½Π°Π±ΠΎΡ ΠΈΠ½ΡΡΡΡΠΌΠ΅Π½ΡΠΎΠ² Π΄Π»Ρ ΡΠ°Π·ΡΠ°Π±ΠΎΡΡΠΈΠΊΠΎΠ², ΠΏΠΎΠ·Π²ΠΎΠ»ΡΡΡΠΈΠΉ ΡΠΎΠ·Π΄Π°Π²Π°ΡΡ Π½Π°ΡΡΡΠ°ΠΈΠ²Π°Π΅ΠΌΡΠ΅ ΠΌΠ΅ΡΠ°-Π±Π»ΠΎΠΊΠΈ ΠΈ Π½Π°ΡΡΡΠ°ΠΈΠ²Π°Π΅ΠΌΡΠ΅ ΠΏΠΎΠ»Ρ Π΄Π»Ρ Π»ΡΠ±ΠΎΠ³ΠΎ Π½Π°ΡΡΡΠ°ΠΈΠ²Π°Π΅ΠΌΠΎΠ³ΠΎ ΡΠΈΠΏΠ° ΡΠΎΠΎΠ±ΡΠ΅Π½ΠΈΠΉ Π² WordPress.
Meta Box ΠΏΠΎΠΌΠΎΠ³Π°Π΅Ρ Π²Π°ΠΌ Π΄ΠΎΠ±Π°Π²Π»ΡΡΡ Π½Π°ΡΡΡΠ°ΠΈΠ²Π°Π΅ΠΌΡΠ΅ ΠΏΠΎΠ»Ρ ΠΈ Π΄Π΅ΡΠ°Π»ΠΈ Π½Π° Π²Π°Ρ Π²Π΅Π±-ΡΠ°ΠΉΡ, ΡΠ°ΠΊΠΈΠ΅ ΠΊΠ°ΠΊ ΡΡΡΠ°Π½ΠΈΡΡ, ΡΠΎΠΎΠ±ΡΠ΅Π½ΠΈΡ, Π½Π°ΡΡΡΠ°ΠΈΠ²Π°Π΅ΠΌΡΠ΅ ΡΠΈΠΏΡ ΡΠΎΠΎΠ±ΡΠ΅Π½ΠΈΠΉ, ΡΠΎΡΠΌΡ ΠΈ Π² Π»ΡΠ±ΠΎΠΌ ΠΌΠ΅ΡΡΠ΅, Π³Π΄Π΅ Π²Ρ Ρ ΠΎΡΠΈΡΠ΅, ΠΈΡΠΏΠΎΠ»ΡΠ·ΡΡ Π±ΠΎΠ»Π΅Π΅ 40 ΡΠ°Π·Π»ΠΈΡΠ½ΡΡ ΡΠΈΠΏΠΎΠ² ΠΏΠΎΠ»Π΅ΠΉ, ΡΠ°ΠΊΠΈΡ ΠΊΠ°ΠΊ ΡΠ΅ΠΊΡΡ, ΠΈΠ·ΠΎΠ±ΡΠ°ΠΆΠ΅Π½ΠΈΡ, Π·Π°Π³ΡΡΠ·ΠΊΠ° ΡΠ°ΠΉΠ»ΠΎΠ², ΡΠ»Π°ΠΆΠΊΠΈ ΠΈ ΠΌΠ½ΠΎΠ³ΠΎΠ΅ Π΄ΡΡΠ³ΠΎΠ΅.
ΠΡΠΎΠΌΠ΅ ΡΠΎΠ³ΠΎ, ΠΊΠ°ΠΆΠ΄ΡΠΉ ΡΠΈΠΏ Π½Π°ΡΡΡΠ°ΠΈΠ²Π°Π΅ΠΌΠΎΠ³ΠΎ ΠΏΠΎΠ»Ρ WordPress ΠΈΠΌΠ΅Π΅Ρ ΠΎΠ±ΡΠΈΡΠ½ΡΠ΅ Π²Π½ΡΡΡΠ΅Π½Π½ΠΈΠ΅ ΠΏΠ°ΡΠ°ΠΌΠ΅ΡΡΡ Π΄Π»Ρ Π½Π΅ΠΎΠ³ΡΠ°Π½ΠΈΡΠ΅Π½Π½ΡΡ Π²ΠΎΠ·ΠΌΠΎΠΆΠ½ΠΎΡΡΠ΅ΠΉ ΡΠΎΠ΄Π΅ΡΠΆΠΈΠΌΠΎΠ³ΠΎ. ΠΠΎΠ»Π½Π°Ρ Π½Π°ΡΡΡΠΎΠΉΠΊΠ° ΠΈ ΡΠΏΡΠ°Π²Π»Π΅Π½ΠΈΠ΅ Π½Π°Ρ ΠΎΠ΄ΡΡΡΡ Π²ΡΠ΅Π³ΠΎ Π² Π½Π΅ΡΠΊΠΎΠ»ΡΠΊΠΈΡ ΡΠ΅Π»ΡΠΊΠ°Ρ ΠΌΡΡΠΈ.
ΠΠΎΠ±Π°Π²Π»Π΅Π½ΠΈΠ΅ Π½Π°ΡΡΡΠ°ΠΈΠ²Π°Π΅ΠΌΡΡ
ΠΏΠΎΠ»Π΅ΠΉ ΠΈ Π½Π°ΡΡΡΠ°ΠΈΠ²Π°Π΅ΠΌΡΡ
ΠΌΠ΅ΡΠ°-ΠΏΠΎΠ»Π΅ΠΉ WordPress Π΄Π»Ρ Π½Π°ΡΡΡΠ°ΠΈΠ²Π°Π΅ΠΌΡΡ
ΡΠΈΠΏΠΎΠ² ΡΠΎΠΎΠ±ΡΠ΅Π½ΠΈΠΉ Π²ΡΠΏΠΎΠ»Π½ΡΠ΅ΡΡΡ Π±ΡΡΡΡΠΎ ΠΈ Π±Π΅Π·Π±ΠΎΠ»Π΅Π·Π½Π΅Π½Π½ΠΎ: Π²ΡΠ±Π΅ΡΠΈΡΠ΅ Π½ΡΠΆΠ½ΡΠ΅ ΡΠΈΠΏΡ ΠΏΠΎΠ»Π΅ΠΉ Π² ΡΠ΄ΠΎΠ±Π½ΠΎΠΌ Π΄Π»Ρ ΠΏΠΎΠ»ΡΠ·ΠΎΠ²Π°ΡΠ΅Π»Ρ ΠΎΠ½Π»Π°ΠΉΠ½-Π³Π΅Π½Π΅ΡΠ°ΡΠΎΡΠ΅, Π·Π°ΡΠ΅ΠΌ ΡΠΊΠΎΠΏΠΈΡΡΠΉΡΠ΅ ΠΈ Π²ΡΡΠ°Π²ΡΡΠ΅ ΠΊΠΎΠ΄ Π² ΡΡΠ½ΠΊΡΠΈΠΈ Π²Π°ΡΠ΅ΠΉ Π΄ΠΎΡΠ΅ΡΠ½Π΅ΠΉ ΡΠ΅ΠΌΡ.php ΡΠ°ΠΉΠ».
ΠΡΠΌ! ΠΡΡ ΡΠΈΠ»Π° Π±Π΅Π· Π½Π°Π²ΠΎΡΠΎΡΠΎΠ².
Π‘ΡΡΠ΅ΡΡΠ²ΡΡΡ ΡΠ°ΠΊΠΆΠ΅ Π±Π΅ΡΠΏΠ»Π°ΡΠ½ΡΠ΅ ΠΈ ΠΏΠ»Π°ΡΠ½ΡΠ΅ ΡΠ°ΡΡΠΈΡΠ΅Π½ΠΈΡ Π΄Π»Ρ Π΄ΠΎΠ±Π°Π²Π»Π΅Π½ΠΈΡ ΡΠ°ΡΡΠΈΡΠ΅Π½Π½ΡΡ Π²ΠΎΠ·ΠΌΠΎΠΆΠ½ΠΎΡΡΠ΅ΠΉ. ΠΡ ΠΌΠΎΠΆΠ΅ΡΠ΅ ΡΠΏΡΠ°Π²Π»ΡΡΡ ΠΎΡΠΎΠ±ΡΠ°ΠΆΠ΅Π½ΠΈΠ΅ΠΌ ΠΈ ΠΎΡΠ³Π°Π½ΠΈΠ·Π°ΡΠΈΠ΅ΠΉ ΡΠ²ΠΎΠΈΡ Π½Π°ΡΡΡΠ°ΠΈΠ²Π°Π΅ΠΌΡΡ ΠΏΠΎΠ»Π΅ΠΉ WordPress, ΡΡΠ»ΠΎΠ²ΠΈΡΠΌΠΈ, ΠΏΡΠΈ ΠΊΠΎΡΠΎΡΡΡ ΠΎΠ½ΠΈ ΠΏΠΎΡΠ²Π»ΡΡΡΡΡ, ΠΈ ΡΡΠ°ΡΡ Π»ΡΡΡΠΈΠΌ ΠΌΠ°ΡΡΠ΅ΡΠΎΠΌ Π΄Π°Π½Π½ΡΡ WordPress.
ΠΡ ΡΠ°ΠΊΠΆΠ΅ ΠΌΠΎΠΆΠ΅ΡΠ΅ ΠΎΠ·Π½Π°ΠΊΠΎΠΌΠΈΡΡΡΡ Ρ ΠΏΠΎΠ»Π½ΡΠΌ ΡΠΏΠΈΡΠΊΠΎΠΌ ΡΠ°ΡΡΠΈΡΠ΅Π½ΠΈΠΉ ΠΈ ΠΏΠΎΠ΄ΡΠΎΠ±Π½ΠΎΡΡΡΠΌΠΈ Π² MetaBox.io.
Π₯Π°ΡΠ°ΠΊΡΠ΅ΡΠΈΡΡΠΈΠΊΠΈ
Π‘ΠΎΠ·Π΄Π°Π½ΠΈΠ΅ Π»ΡΠ±ΠΎΠ³ΠΎ ΡΠΈΠΏΠ° ΠΌΠ΅ΡΠ°Π΄Π°Π½Π½ΡΡ ΠΈΠ»ΠΈ Π½Π°ΡΡΡΠ°ΠΈΠ²Π°Π΅ΠΌΡΡ ΠΏΠΎΠ»Π΅ΠΉ Π² WordPress
ΠΡΠ°Π²ΠΈΠ»ΡΠ½ΠΎ — Π»ΡΠ±ΠΎΠ³ΠΎ ΡΠΈΠΏΠ°.ΠΠ΅Π·Π°Π²ΠΈΡΠΈΠΌΠΎ ΠΎΡ ΡΠΎΠ³ΠΎ, ΠΊΡΠ΄Π° Π²Π°ΠΌ Π½ΡΠΆΠ½ΠΎ Π²ΡΡΠ°Π²ΠΈΡΡ ΠΏΠΎΠ»ΡΠ·ΠΎΠ²Π°ΡΠ΅Π»ΡΡΠΊΠΈΠ΅ Π΄Π°Π½Π½ΡΠ΅ ΠΈ ΡΡΠ½ΠΊΡΠΈΠΈ, Π½Π°ΡΡΡΠ°ΠΈΠ²Π°Π΅ΠΌΡΠ΅ ΠΏΠΎΠ»Ρ WordPress Meta Box Π²ΡΠ΅Π³Π΄Π° ΠΏΠΎΠ΄ ΡΡΠΊΠΎΠΉ ΠΈ Ρ Π±Π΅ΡΠΊΠΎΠ½Π΅ΡΠ½ΡΠΌΠΈ Π²Π°ΡΠΈΠ°Π½ΡΠ°ΠΌΠΈ Π·Π°Π³ΡΡΠ·ΠΊΠΈ.
ΠΠΎΡ Π»ΠΈΡΡ Π½Π΅ΠΊΠΎΡΠΎΡΡΠ΅ ΠΈΠ· ΡΠΈΠΏΠΎΠ² Π΄Π°Π½Π½ΡΡ , ΠΊΠΎΡΠΎΡΡΠ΅ Π²Ρ ΠΌΠΎΠΆΠ΅ΡΠ΅ Π½Π°ΡΡΡΠΎΠΈΡΡ:
Π¨ΠΈΡΠΎΠΊΠΈΠΉ Π²ΡΠ±ΠΎΡ ΡΠΈΠΏΠΎΠ² ΠΏΠΎΠ»Π΅ΠΉ ΠΈ ΠΎΠΏΡΠΈΠΉ
ΠΠΎΠ·ΡΠΌΠΈΡΠ΅ ΡΡΠ°Π½Π΄Π°ΡΡΠ½ΠΎΠ΅ Π½Π°ΡΡΡΠ°ΠΈΠ²Π°Π΅ΠΌΠΎΠ΅ ΠΏΠΎΠ»Π΅ WordPress ΠΈ ΠΏΡΠ΅Π΄ΡΡΠ°Π²ΡΡΠ΅, ΡΡΠΎ ΠΎΠ½ΠΎ Π±Π΅ΡΠΊΠΎΠ½Π΅ΡΠ½ΠΎ ΡΠ°ΡΡΠΈΡΡΠ΅ΡΡΡ. ΠΠΎΡ ΡΠΊΠΎΠ»ΡΠΊΠΎ Π²Π°ΡΠΈΠ°Π½ΡΠΎΠ² Π΄Π°Π΅Ρ Π²Π°ΠΌ Meta Box:
- Meta Box ΠΏΠΎΠ΄Π΄Π΅ΡΠΆΠΈΠ²Π°Π΅Ρ 40+ Π²ΡΡΡΠΎΠ΅Π½Π½ΡΡ Π½Π°ΡΡΡΠ°ΠΈΠ²Π°Π΅ΠΌΡΡ ΡΠΈΠΏΠΎΠ² ΠΏΠΎΠ»Π΅ΠΉ WordPress Π΄Π»Ρ Π²ΡΠ΅Ρ Π²Π°ΡΠΈΡ Π½ΡΠΆΠ΄, Π²ΠΊΠ»ΡΡΠ°Ρ ΡΠ΅ΠΊΡΡ, ΡΠ΅ΠΊΡΡΠΎΠ²ΠΎΠ΅ ΠΏΠΎΠ»Π΅, ΡΠ΅Π΄Π°ΠΊΡΠΎΡ WYSIWYG, ΠΈΠ·ΠΎΠ±ΡΠ°ΠΆΠ΅Π½ΠΈΠ΅, ΡΠ°ΠΉΠ», ΠΏΡΠ±Π»ΠΈΠΊΠ°ΡΠΈΡ, Π²ΡΠ±ΠΎΡ, ΡΠ»Π°ΠΆΠΎΠΊ, ΠΏΠ΅ΡΠ΅ΠΊΠ»ΡΡΠ°ΡΠ΅Π»ΠΈ, Π²ΡΠ±ΠΎΡ Π΄Π°ΡΡ / Π²ΡΠ΅ΠΌΠ΅Π½ΠΈ, ΡΠ°ΠΊΡΠΎΠ½ΠΎΠΌΠΈΡ, ΠΏΠΎΠ»ΡΠ·ΠΎΠ²Π°ΡΠ΅Π»Ρ, oembed ΠΈ Π΅ΡΠ΅ Π½Π΅ Π²ΡΠ΅.
- ΠΠ΅Π΄ΠΎΡΡΠ°ΡΠΎΡΠ½ΠΎ? ΠΡ ΡΠ°ΠΊΠΆΠ΅ ΠΌΠΎΠΆΠ΅ΡΠ΅ Π»Π΅Π³ΠΊΠΎ ΡΠΎΠ·Π΄Π°ΡΡ ΡΠ²ΠΎΠΉ ΡΠΎΠ±ΡΡΠ²Π΅Π½Π½ΡΠΉ ΡΠΈΠΏ ΠΏΠΎΠ»Ρ.
- Meta Box ΠΏΠΎΠ΄Π΄Π΅ΡΠΆΠΈΠ²Π°Π΅Ρ ΠΊΠ»ΠΎΠ½ΠΈΡΠΎΠ²Π°Π½ΠΈΠ΅ ΠΏΠΎΠ»Π΅ΠΉ Π΄Π»Ρ Π±ΠΎΠ»ΡΡΠΈΠ½ΡΡΠ²Π° ΡΠΈΠΏΠΎΠ² ΠΏΠΎΠ»Π΅ΠΉ, Π²ΠΊΠ»ΡΡΠ°Ρ ΠΏΠΎΠ»Π΅ ΡΠ΅Π΄Π°ΠΊΡΠΎΡΠ° WYSIWYG. ΠΠ½ ΡΠ°ΠΊΠΆΠ΅ ΠΏΠΎΠ΄Π΄Π΅ΡΠΆΠΈΠ²Π°Π΅Ρ ΠΏΠΎΠ²ΡΠΎΡΡΡΡΠΈΠ΅ΡΡ Π³ΡΡΠΏΠΏΡ ΠΏΠΎΠ»Π΅ΠΉ.
- ΠΡΠΏΠΎΠ»ΡΠ·ΡΠΉΡΠ΅ ΠΌΠΎΡΠ½ΡΡ ΡΠΈΡΡΠ΅ΠΌΡ Π΄Π΅ΠΉΡΡΠ²ΠΈΠΉ ΠΈ ΡΠΈΠ»ΡΡΡΠΎΠ² WordPress, ΡΡΠΎΠ±Ρ Π²Ρ ΠΌΠΎΠ³Π»ΠΈ ΡΠΎΠ·Π΄Π°Π²Π°ΡΡ ΠΈΠ»ΠΈ ΠΈΠ·ΠΌΠ΅Π½ΡΡΡ Π²Π½Π΅ΡΠ½ΠΈΠΉ Π²ΠΈΠ΄ ΠΈ ΠΏΠΎΠ²Π΅Π΄Π΅Π½ΠΈΠ΅ ΡΠ°ΠΉΡΠ° Π² ΠΏΠ»Π°Π³ΠΈΠ½Π΅.
Π£Π΄ΠΎΠ±Π½ΠΎ Π΄Π»Ρ ΡΠ°Π·ΡΠ°Π±ΠΎΡΡΠΈΠΊΠΎΠ²
ΠΠ°ΠΊ ΡΠ°Π·ΡΠ°Π±ΠΎΡΡΠΈΠΊ, Ρ Π²Π°Ρ Π΄ΠΎΡΡΠ°ΡΠΎΡΠ½ΠΎ Π²ΠΎΠ·ΠΌΠΎΠΆΠ½ΠΎΡΡΠ΅ΠΉ. ΠΠ°ΠΌ Π½Π΅ Π½ΡΠΆΠ½ΠΎ ΡΠΎΠ·Π΄Π°Π²Π°ΡΡ ΡΠΎΠ²Π΅ΡΡΠ΅Π½Π½ΠΎ Π½ΠΎΠ²ΡΡ ΡΠΈΡΡΠ΅ΠΌΡ Π΄Π»Ρ ΠΊΠ°ΠΆΠ΄ΠΎΠ³ΠΎ ΠΏΡΠΎΠ΅ΠΊΡΠ°.ΠΡΠΏΠΎΠ»ΡΠ·ΡΠΉΡΠ΅ Meta Box Π² ΠΏΠΎΠ»Π½ΠΎΠΉ ΠΌΠ΅ΡΠ΅.
ΠΡ ΠΌΠΎΠΆΠ΅ΡΠ΅ ΠΈΡΠΏΠΎΠ»ΡΠ·ΠΎΠ²Π°ΡΡ Meta Box ΠΈ Π΅Π³ΠΎ Π½Π°ΡΡΡΠ°ΠΈΠ²Π°Π΅ΠΌΡΠ΅ ΠΏΠΎΠ»Ρ Π΄Π»Ρ Π»ΡΠ±ΠΎΠ³ΠΎ Π½Π°ΡΡΡΠ°ΠΈΠ²Π°Π΅ΠΌΠΎΠ³ΠΎ ΡΠΈΠΏΠ° ΡΠΎΠΎΠ±ΡΠ΅Π½ΠΈΠΉ Π² WordPress Π½Π° Π»ΡΠ±ΠΎΠΌ ΠΊΠΎΠ»ΠΈΡΠ΅ΡΡΠ²Π΅ Π²Π΅Π±-ΡΠ°ΠΉΡΠΎΠ², ΠΏΠΎΡΡΠΎΠΌΡ Π²Ρ ΡΠ°ΠΊΠΆΠ΅ ΠΌΠΎΠΆΠ΅ΡΠ΅ ΠΈΡΠΏΠΎΠ»ΡΠ·ΠΎΠ²Π°ΡΡ Π΅Π³ΠΎ Π² ΠΊΠ»ΠΈΠ΅Π½ΡΡΠΊΠΈΡ ΠΏΡΠΎΠ΅ΠΊΡΠ°Ρ .
ΠΠ΅ Π»ΡΠ±ΠΈΡΠ΅ ΠΊΠΎΠ΄ΠΈΡΠΎΠ²Π°ΡΡ? Π’Π΅Π±Π΅ ΠΏΠΎΠ²Π΅Π·Π»ΠΎ!
Meta Box ΡΠΎΠ·Π΄Π°Π½ Π² ΠΎΡΠ½ΠΎΠ²Π½ΠΎΠΌ Π΄Π»Ρ ΡΠ°Π·ΡΠ°Π±ΠΎΡΡΠΈΠΊΠΎΠ², ΡΠ°ΠΊ ΠΊΠ°ΠΊ Π²Π°ΠΌ Π½ΡΠΆΠ½ΠΎ ΡΠΊΠΎΠΏΠΈΡΠΎΠ²Π°ΡΡ ΠΈ Π²ΡΡΠ°Π²ΠΈΡΡ Π½Π΅ΠΊΠΎΡΠΎΡΡΠΉ ΠΊΠΎΠ΄, Π½ΠΎ Π΅ΡΠ»ΠΈ Π²Ρ ΠΏΡΠ΅Π΄ΠΏΠΎΡΠΈΡΠ°Π΅ΡΠ΅ Π±ΠΎΠ»Π΅Π΅ Π²ΠΈΠ·ΡΠ°Π»ΡΠ½ΡΡ ΡΠΈΡΡΠ΅ΠΌΡ Π΄Π»Ρ ΡΠΎΠ·Π΄Π°Π½ΠΈΡ Π½Π°ΡΡΡΠ°ΠΈΠ²Π°Π΅ΠΌΡΡ ΠΏΠΎΠ»Π΅ΠΉ Π² WordPress, Π²Ρ ΠΌΠΎΠΆΠ΅ΡΠ΅ Π²ΡΠ±ΡΠ°ΡΡ ΠΎΠ΄Π½ΠΎ ΠΈΠ»ΠΈ Π²ΡΠ΅ ΡΠ°ΡΡΠΈΡΠ΅Π½ΠΈΡ Π½ΠΈΠΆΠ΅:
Π Π°ΡΡΠΈΡΠ΅Π½ΠΈΠ΅ Meta Box Builder ΠΈΠΌΠ΅Π΅Ρ ΠΌΠ°ΡΡΡ ΡΡΠ½ΠΊΡΠΈΠΉ, ΠΏΠΎΠ·Π²ΠΎΠ»ΡΡΡΠΈΡ Π±ΡΡΡΡΠΎ Π²ΡΠΏΠΎΠ»Π½ΠΈΡΡ Π»ΡΠ±ΠΎΠΉ ΠΏΡΠΎΠ΅ΠΊΡ:
- ΠΡΡ ΠΌΠΎΡΡ Meta Box Π±Π΅Π· Π΅Π΄ΠΈΠ½ΠΎΠΉ ΡΡΡΠΎΡΠΊΠΈ ΠΊΠΎΠ΄Π°.
- ΠΡΠΎ ΡΠ΄ΠΎΠ±Π½ΡΠΉ Π΄Π»Ρ Π΄ΠΈΠ·Π°ΠΉΠ½Π°, Π»Π΅Π³ΠΊΠΈΠΉ ΠΈ ΡΠ°Π±ΠΎΡΠ°Π΅Ρ Ρ Π²ΡΡΠΎΡΠ°ΠΉΡΠ΅ΠΉ ΡΠΊΠΎΡΠΎΡΡΡΡ.
- Π‘ΠΎΠ·Π΄Π°Π²Π°ΠΉΡΠ΅ Π½Π΅ΠΎΠ³ΡΠ°Π½ΠΈΡΠ΅Π½Π½ΠΎΠ΅ ΠΊΠΎΠ»ΠΈΡΠ΅ΡΡΠ²ΠΎ Π½Π°ΡΡΡΠ°ΠΈΠ²Π°Π΅ΠΌΡΡ ΠΏΠΎΠ»Π΅ΠΉ WordPress Ρ ΠΌΠΎΠ»Π½ΠΈΠ΅Π½ΠΎΡΠ½ΠΎΠΉ ΡΠΊΠΎΡΠΎΡΡΡΡ ΠΈ Ρ ΠΏΠΎΠΌΠΎΡΡΡ ΡΠ΄ΠΎΠ±Π½ΠΎΠ³ΠΎ ΠΈΠ½ΡΠ΅ΡΡΠ΅ΠΉΡΠ° ΠΏΠ΅ΡΠ΅ΡΠ°ΡΠΊΠΈΠ²Π°Π½ΠΈΡ.
- ΠΠΎΡΡΡΠΏΠ½ΠΎ Π±ΠΎΠ»Π΅Π΅ 40 ΡΠΈΠΏΠΎΠ² Π½Π°ΡΡΡΠ°ΠΈΠ²Π°Π΅ΠΌΡΡ ΠΏΠΎΠ»Π΅ΠΉ, ΠΊΠΎΡΠΎΡΡΠ΅ ΠΌΠΎΠΆΠ½ΠΎ ΠΏΠ΅ΡΠ΅ΡΠ°ΡΠΈΡΡ ΡΡΠ΄Π°, Π³Π΄Π΅ ΠΎΠ½ΠΈ Π²Π°ΠΌ Π½ΡΠΆΠ½Ρ.
- ΠΠΊΡΠΏΠΎΡΡΠΈΡΡΠΉΡΠ΅ ΠΏΠΎΠ»ΡΠ·ΠΎΠ²Π°ΡΠ΅Π»ΡΡΠΊΠΈΠ΅ ΠΏΠΎΠ»Ρ ΠΈ Π½Π°ΡΡΡΠΎΠΉΠΊΠΈ Π² PHP. ΠΠ°ΡΠ΅ΠΌ Π΄ΠΎΠ±Π°Π²ΡΡΠ΅ Π΅Π³ΠΎ Π½Π° Π½ΠΎΠ²ΡΠΉ ΡΠ°ΠΉΡ Π±Π΅Π· Π½Π΅ΠΎΠ±Ρ ΠΎΠ΄ΠΈΠΌΠΎΡΡΠΈ ΡΡΡΠ°Π½Π°Π²Π»ΠΈΠ²Π°ΡΡ ΡΡΠΎ ΡΠ°ΡΡΠΈΡΠ΅Π½ΠΈΠ΅, ΡΡΠΎΠ±Ρ ΠΏΠΎΠ»ΡΡΠΈΡΡ Π½Π΅Π²Π΅ΡΠΎΡΡΠ½ΠΎ Π»Π΅Π³ΠΊΠΈΠΉ Π²Π°ΡΠΈΠ°Π½Ρ.
- Π£ Π½Π΅Π³ΠΎ Π΅ΡΡΡ Π³ΠΎΡΠΎΠ²ΡΠ΅ ΠΈ ΠΎΠΆΠΈΠ΄Π°ΡΡΠΈΠ΅ ΡΠΎΠ²Π°ΡΡ Ρ ΡΡΠ»ΠΎΠ²Π½ΠΎΠΉ Π»ΠΎΠ³ΠΈΠΊΠΎΠΉ, ΠΏΠ°ΡΠ°ΠΌΠ΅ΡΡΠ°ΠΌΠΈ ΠΏΡΠΈΠΎΡΠΈΡΠ΅ΡΠ° ΠΈ ΠΊΠΎΠ½ΡΠ΅ΠΊΡΡΠ°.
Π Π°ΡΡΠΈΡΠ΅Π½ΠΈΡ
ΠΠΎΠ²ΠΎΡΡ ΠΎ ΡΠ°ΡΡΠΈΡΠ΅Π½ΠΈΡΡ , ΡΡΡΠ΅ΡΡΠ²ΡΠ΅Ρ ΠΌΠ½ΠΎΠΆΠ΅ΡΡΠ²ΠΎ Π±Π΅ΡΠΏΠ»Π°ΡΠ½ΡΡ ΠΈ ΠΏΠ»Π°ΡΠ½ΡΡ ΡΠ°ΡΡΠΈΡΠ΅Π½ΠΈΠΉ Π΄Π»Ρ Π΄Π°Π»ΡΠ½Π΅ΠΉΡΠ΅Π³ΠΎ ΡΠ°ΡΡΠΈΡΠ΅Π½ΠΈΡ ΠΈ Π±Π΅Π· ΡΠΎΠ³ΠΎ ΠΌΠΎΡΠ½ΠΎΠ³ΠΎ ΠΎΡΠ½ΠΎΠ²Π½ΠΎΠ³ΠΎ ΠΏΠ»Π°Π³ΠΈΠ½Π° Meta Box, ΡΡΠΎΠ±Ρ Π²Ρ ΠΌΠΎΠ³Π»ΠΈ ΠΏΠ΅ΡΠ΅Π³ΡΡΠΆΠ°ΡΡ ΡΠ²ΠΎΠΈ Π½Π°ΡΡΡΠ°ΠΈΠ²Π°Π΅ΠΌΡΠ΅ ΠΏΠΎΠ»Ρ Π² WordPress.
Π£ Π²Π°Ρ Π±ΡΠ΄Π΅Ρ ΠΏΠΎΠ»Π½ΡΠΉ ΠΊΠΎΠ½ΡΡΠΎΠ»Ρ Π½Π°Π΄ Π΄ΠΎΠ±Π°Π²Π»Π΅Π½ΠΈΠ΅ΠΌ Π»ΡΠ±ΡΡ ΠΌΠ΅ΡΠ°-Π±Π»ΠΎΠΊΠΎΠ² ΠΈ Π½Π°ΡΡΡΠ°ΠΈΠ²Π°Π΅ΠΌΡΡ ΠΏΠΎΠ»Π΅ΠΉ Π² WordPress, ΠΊΠΎΡΠΎΡΡΠ΅ Π²Ρ ΠΊΠΎΠ³Π΄Π°-Π»ΠΈΠ±ΠΎ Π·Π°Ρ ΠΎΡΠΈΡΠ΅. ΠΠ°ΡΠ΅ΠΌ Π²Ρ ΠΌΠΎΠΆΠ΅ΡΠ΅ Π°Π΄Π°ΠΏΡΠΈΡΠΎΠ²Π°ΡΡ Π²ΡΠ΅ ΡΡΠΎ Π² ΡΠΎΠΎΡΠ²Π΅ΡΡΡΠ²ΠΈΠΈ Ρ Π²Π°ΡΠΈΠΌΠΈ ΠΊΠΎΠ½ΠΊΡΠ΅ΡΠ½ΡΠΌΠΈ ΡΡΠ΅Π±ΠΎΠ²Π°Π½ΠΈΡΠΌΠΈ.
ΠΠ΅ΡΠΏΠ»Π°ΡΠ½ΡΠ΅ ΡΠ°ΡΡΠΈΡΠ΅Π½ΠΈΡ
Π Π°ΡΡΠΈΡΠ΅Π½ΠΈΡ ΠΡΠ΅ΠΌΠΈΡΠΌ
- ΠΠ ΠΡΠΎΡΠΌΠΎΡΡΡ: ΠΡΠ²ΠΎΠ΄ Π½Π°ΡΡΡΠ°ΠΈΠ²Π°Π΅ΠΌΡΡ ΠΏΠΎΠ»Π΅ΠΉ ΠΈ ΡΠΎΠ·Π΄Π°Π½ΠΈΠ΅ ΡΠ°Π±Π»ΠΎΠ½ΠΎΠ² Π²Π½Π΅ΡΠ½Π΅Π³ΠΎ ΠΈΠ½ΡΠ΅ΡΡΠ΅ΠΉΡΠ° Π΄Π»Ρ WordPress, Π½Π΅ Π·Π°ΡΡΠ°Π³ΠΈΠ²Π°Ρ ΡΠ°ΠΉΠ»Ρ ΡΠ΅ΠΌ.
- ΠΠ: ΡΠΎΠ·Π΄Π°Π²Π°ΠΉΡΠ΅ ΡΠΎΠ±ΡΡΠ²Π΅Π½Π½ΡΠ΅ Π±Π»ΠΎΠΊΠΈ ΠΡΡΠ΅Π½Π±Π΅ΡΠ³Π° Ρ ΠΏΠΎΠΌΠΎΡΡΡ PHP, ΠΈΡΠΏΠΎΠ»ΡΠ·ΡΡ ΡΠΎΡ ΠΆΠ΅ ΡΠΈΠ½ΡΠ°ΠΊΡΠΈΡ, ΡΡΠΎ ΠΈ Π² Meta Box.
- Meta Box Builder: ΡΠΎΠ·Π΄Π°Π²Π°ΠΉΡΠ΅ Π½Π°ΡΡΡΠ°ΠΈΠ²Π°Π΅ΠΌΡΠ΅ ΠΌΠ΅ΡΠ°-Π±Π»ΠΎΠΊΠΈ ΠΈ Π½Π°ΡΡΡΠ°ΠΈΠ²Π°Π΅ΠΌΡΠ΅ ΠΏΠΎΠ»Ρ Π² WordPress Ρ ΠΏΠΎΠΌΠΎΡΡΡ ΡΠ΄ΠΎΠ±Π½ΠΎΠ³ΠΎ ΠΈΠ½ΡΠ΅ΡΡΠ΅ΠΉΡΠ° ΠΏΠ΅ΡΠ΅ΡΠ°ΡΠΊΠΈΠ²Π°Π½ΠΈΡ.
- Meta Box Group: ΡΠΎΠ·Π΄Π°Π²Π°ΠΉΡΠ΅ ΠΏΠΎΠ²ΡΠΎΡΡΡΡΠΈΠ΅ΡΡ Π³ΡΡΠΏΠΏΡ Π½Π°ΡΡΡΠ°ΠΈΠ²Π°Π΅ΠΌΡΡ ΠΏΠΎΠ»Π΅ΠΉ WordPress Π΄Π»Ρ Π»ΡΡΡΠ΅Π³ΠΎ Π²Π½Π΅ΡΠ½Π΅Π³ΠΎ Π²ΠΈΠ΄Π° ΠΈ ΡΡΡΡΠΊΡΡΡΡ.
- ΠΠ Π‘ΡΡΠ°Π½ΠΈΡΠ° Π½Π°ΡΡΡΠΎΠ΅ΠΊ: ΡΠΎΠ·Π΄Π°Π²Π°ΠΉΡΠ΅ ΡΡΡΠ°Π½ΠΈΡΡ Π½Π°ΡΡΡΠΎΠ΅ΠΊ Π΄Π»Ρ ΡΠ΅ΠΌ, ΠΏΠ»Π°Π³ΠΈΠ½ΠΎΠ² ΠΈΠ»ΠΈ Π²Π΅Π±-ΡΠ°ΠΉΡΠΎΠ² Ρ ΠΊΡΠ°ΡΠΈΠ²ΡΠΌ ΡΠΈΠ½ΡΠ°ΠΊΡΠΈΡΠΎΠΌ.
- ΠΠ Term Meta: ΠΠΎΠ±Π°Π²ΡΡΠ΅ ΠΌΠ΅ΡΠ°Π΄Π°Π½Π½ΡΠ΅ Π² ΠΊΠ°ΡΠ΅Π³ΠΎΡΠΈΠΈ, ΡΠ΅Π³ΠΈ ΠΈΠ»ΠΈ Π»ΡΠ±ΡΡ Π½Π°ΡΡΡΠ°ΠΈΠ²Π°Π΅ΠΌΡΡ ΡΠ°ΠΊΡΠΎΠ½ΠΎΠΌΠΈΡ Ρ ΠΏΠΎΠΌΠΎΡΡΡ ΠΏΡΠΎΡΡΠΎΠ³ΠΎ ΡΠΈΠ½ΡΠ°ΠΊΡΠΈΡΠ°.
- Meta Box Conditional Logic: Π΄ΠΎΠ±Π°Π²Π»Π΅Π½ΠΈΠ΅ Π·Π°Π²ΠΈΡΠΈΠΌΠΎΡΡΠΈ Π²ΠΈΠ΄ΠΈΠΌΠΎΡΡΠΈ Π΄Π»Ρ Π½Π°ΡΡΡΠ°ΠΈΠ²Π°Π΅ΠΌΡΡ ΠΌΠ΅ΡΠ°-Π±Π»ΠΎΠΊΠΎΠ² ΠΈ Π½Π°ΡΡΡΠ°ΠΈΠ²Π°Π΅ΠΌΡΡ ΠΏΠΎΠ»Π΅ΠΉ Π² WordPress.
- Meta Box ΠΠΊΠ»ΡΡΠΈΡΡ ΠΡΠΊΠ»ΡΡΠΈΡΡ: ΠΏΠΎΠΊΠ°Π·Π°ΡΡ ΠΈΠ»ΠΈ ΡΠΊΡΡΡΡ ΠΌΠ΅ΡΠ°-Π±Π»ΠΎΠΊΠΈ ΠΏΠΎ ΠΈΠ΄Π΅Π½ΡΠΈΡΠΈΠΊΠ°ΡΠΎΡΡ, ΡΠ°Π±Π»ΠΎΠ½Ρ ΡΡΡΠ°Π½ΠΈΡΡ, ΡΠ°ΠΊΡΠΎΠ½ΠΎΠΌΠΈΠΈ ΠΈΠ»ΠΈ ΠΏΠΎΠ»ΡΠ·ΠΎΠ²Π°ΡΠ΅Π»ΡΡΠΊΠΎΠΉ ΡΡΠ½ΠΊΡΠΈΠΈ.
- ΠΠ ΠΡΠΏΡΠ°Π²ΠΊΠ° ΠΈΠ· Π²Π½Π΅ΡΠ½Π΅Π³ΠΎ ΠΈΠ½ΡΠ΅ΡΡΠ΅ΠΉΡΠ°: ΡΠΎΠ·Π΄Π°Π²Π°ΠΉΡΠ΅ ΡΠΎΡΠΌΡ Π²Π½Π΅ΡΠ½Π΅Π³ΠΎ ΠΈΠ½ΡΠ΅ΡΡΠ΅ΠΉΡΠ° Π΄Π»Ρ ΠΏΠΎΠ»ΡΠ·ΠΎΠ²Π°ΡΠ΅Π»Π΅ΠΉ, ΡΡΠΎΠ±Ρ ΠΎΡΠΏΡΠ°Π²Π»ΡΡΡ ΠΏΠΎΠ»ΡΠ·ΠΎΠ²Π°ΡΠ΅Π»ΡΡΠΊΠΈΠΉ ΠΊΠΎΠ½ΡΠ΅Π½Ρ ΠΈ Π²ΡΡΡΠ°ΠΈΠ²Π°ΡΡ ΠΈΡ Π² Π»ΡΠ±ΠΎΠ΅ ΠΌΠ΅ΡΡΠΎ Ρ ΠΏΠΎΠΌΠΎΡΡΡ ΡΠΎΡΡΠΊΠΎΠ΄Π°.
- : ΠΎΡΠΎΠ±ΡΠ°ΠΆΠ°ΠΉΡΠ΅ ΠΏΡΠΈΠ²Π»Π΅ΠΊΠ°ΡΠ΅Π»ΡΠ½ΡΠ΅ Π½Π°ΡΡΡΠ°ΠΈΠ²Π°Π΅ΠΌΡΠ΅ ΠΏΠΎΠ»Ρ Π² WordPress, ΠΏΠΎΠΌΠ΅ΡΠ°Ρ ΠΈΡ Π² ΡΠ΅ΡΠΊΠΈ ΠΈΠ· 12 ΡΡΠΎΠ»Π±ΡΠΎΠ².
- ΠΠΊΠ»Π°Π΄ΠΊΠΈ ΠΌΠ΅ΡΠ°-Π±ΠΎΠΊΡΠΎΠ²: Π±Π΅Π· ΡΡΡΠ΄Π° ΡΠΎΠ·Π΄Π°Π²Π°ΠΉΡΠ΅ Π²ΠΊΠ»Π°Π΄ΠΊΠΈ Π΄Π»Ρ ΠΌΠ΅ΡΠ°-Π±ΠΎΠΊΡΠΎΠ².ΠΠΎΠ΄Π΄Π΅ΡΠΆΠΈΠ²Π°ΡΡΡΡ 3 Π²ΡΡΡΠΎΠ΅Π½Π½ΡΡ ΡΡΠΈΠ»Ρ Π²ΠΊΠ»Π°Π΄ΠΎΠΊ ΠΈ Π·Π½Π°ΡΠΊΠΎΠ² WordPress.
- ΠΠ Π‘ΡΠΎΠ»Π±ΡΡ Π°Π΄ΠΌΠΈΠ½ΠΈΡΡΡΠ°ΡΠΎΡΠ°: ΠΎΡΠΎΠ±ΡΠ°ΠΆΠ΅Π½ΠΈΠ΅ Π½Π°ΡΡΡΠ°ΠΈΠ²Π°Π΅ΠΌΡΡ ΠΏΠΎΠ»Π΅ΠΉ WordPress Π² ΡΡΠΎΠ»Π±ΡΠ°Ρ ΡΠ°Π±Π»ΠΈΡΡ Π½Π° ΡΠΊΡΠ°Π½Π°Ρ Π°Π΄ΠΌΠΈΠ½ΠΈΡΡΡΠ°ΡΠΎΡΠ° Π΄Π»Ρ Π²ΡΠ΅Ρ ΡΠΈΠΏΠΎΠ² ΡΠΎΠΎΠ±ΡΠ΅Π½ΠΈΠΉ.
- ΠΠ ΠΠ°ΡΡΡΠ°ΠΈΠ²Π°Π΅ΠΌΠ°Ρ ΡΠ°Π±Π»ΠΈΡΠ°: Π‘ΠΎΡ ΡΠ°Π½ΡΠΉΡΠ΅ Π΄Π°Π½Π½ΡΠ΅ Π½Π°ΡΡΡΠ°ΠΈΠ²Π°Π΅ΠΌΡΡ ΠΏΠΎΠ»Π΅ΠΉ Π² Π½Π°ΡΡΡΠ°ΠΈΠ²Π°Π΅ΠΌΡΠ΅ ΡΠ°Π±Π»ΠΈΡΡ Π²ΠΌΠ΅ΡΡΠΎ ΠΌΠ΅ΡΠ°ΡΠ°Π±Π»ΠΈΡ ΠΏΠΎ ΡΠΌΠΎΠ»ΡΠ°Π½ΠΈΡ, ΡΡΠΎΠ±Ρ ΡΠΌΠ΅Π½ΡΡΠΈΡΡ ΡΠ°Π·ΠΌΠ΅Ρ Π±Π°Π·Ρ Π΄Π°Π½Π½ΡΡ ΠΈ ΠΏΠΎΠ²ΡΡΠΈΡΡ Π΅Π΅ ΠΏΡΠΎΠΈΠ·Π²ΠΎΠ΄ΠΈΡΠ΅Π»ΡΠ½ΠΎΡΡΡ.
- ΠΠ: ΠΎΡΡΠ»Π΅ΠΆΠΈΠ²Π°Π½ΠΈΠ΅ ΠΈΠ·ΠΌΠ΅Π½Π΅Π½ΠΈΠΉ Π² Π½Π°ΡΡΡΠ°ΠΈΠ²Π°Π΅ΠΌΡΡ ΠΏΠΎΠ»ΡΡ Π² WordPress Ρ ΠΈΡΠΏΡΠ°Π²Π»Π΅Π½ΠΈΡΠΌΠΈ. ΠΡ ΠΌΠΎΠΆΠ΅ΡΠ΅ Π±Π΅Π· ΠΏΡΠΎΠ±Π»Π΅ΠΌ ΡΠΎΡ ΡΠ°Π½ΡΡΡ, ΡΡΠ°Π²Π½ΠΈΠ²Π°ΡΡ ΠΈ Π²ΠΎΡΡΡΠ°Π½Π°Π²Π»ΠΈΠ²Π°ΡΡ ΠΈΠ·ΠΌΠ΅Π½Π΅Π½ΠΈΡ.
- ΠΠ User Meta: Π±ΡΡΡΡΠΎ Π΄ΠΎΠ±Π°Π²Π»ΡΠΉΡΠ΅ Π½Π°ΡΡΡΠ°ΠΈΠ²Π°Π΅ΠΌΡΠ΅ ΠΏΠΎΠ»Ρ WordPress Π² ΠΏΡΠΎΡΠΈΠ»ΠΈ ΠΏΠΎΠ»ΡΠ·ΠΎΠ²Π°ΡΠ΅Π»Π΅ΠΉ Π² ΡΠ°Π±Π»ΠΈΡΠ΅ wp_usermeta Ρ ΠΏΠΎΠΌΠΎΡΡΡ ΠΏΡΠΎΡΡΠΎΠ³ΠΎ ΡΠΈΠ½ΡΠ°ΠΊΡΠΈΡΠ°.
- Meta Box Geolocation: Π°Π²ΡΠΎΠΌΠ°ΡΠΈΡΠ΅ΡΠΊΠΎΠ΅ ΠΈ ΠΌΠ³Π½ΠΎΠ²Π΅Π½Π½ΠΎΠ΅ Π·Π°ΠΏΠΎΠ»Π½Π΅Π½ΠΈΠ΅ Π΄Π°Π½Π½ΡΡ ΠΎ ΠΌΠ΅ΡΡΠΎΠΏΠΎΠ»ΠΎΠΆΠ΅Π½ΠΈΠΈ Ρ ΠΏΠΎΠΌΠΎΡΡΡ API Π³Π΅ΠΎΠ»ΠΎΠΊΠ°ΡΠΈΠΈ Google Maps.
- : ΡΠΏΡΠΎΡΡΠΈΡΠ΅ ΠΎΠΏΡΠ΅Π΄Π΅Π»Π΅Π½ΠΈΠ΅ ΠΏΠΎΠ»ΡΠ·ΠΎΠ²Π°ΡΠ΅Π»ΡΡΠΊΠΈΡ ΠΌΠ΅ΡΠ°-Π±Π»ΠΎΠΊΠΎΠ² ΠΈ ΠΏΠΎΠ»ΡΠ·ΠΎΠ²Π°ΡΠ΅Π»ΡΡΠΊΠΈΡ ΠΏΠΎΠ»Π΅ΠΉ WordPress Ρ ΠΏΠΎΠΌΠΎΡΡΡ ΡΠ°Π±Π»ΠΎΠ½ΠΎΠ².
- Meta Box Tooltip: ΠΎΡΠΎΠ±ΡΠ°ΠΆΠ΅Π½ΠΈΠ΅ ΡΠΏΡΠ°Π²ΠΎΡΠ½ΠΎΠΉ ΠΈΠ½ΡΠΎΡΠΌΠ°ΡΠΈΠΈ Π΄Π»Ρ Π½Π°ΡΡΡΠ°ΠΈΠ²Π°Π΅ΠΌΡΡ ΠΏΠΎΠ»Π΅ΠΉ Π² WordPress Ρ ΠΏΠΎΠΌΠΎΡΡΡ ΠΊΡΠ°ΡΠΈΠ²ΡΡ Π²ΡΠΏΠ»ΡΠ²Π°ΡΡΠΈΡ ΠΏΠΎΠ΄ΡΠΊΠ°Π·ΠΎΠΊ.
- Meta Box Show Hide: ΠΏΠ΅ΡΠ΅ΠΊΠ»ΡΡΠ΅Π½ΠΈΠ΅ ΠΌΠ΅ΡΠ°-Π±ΠΎΠΊΡΠΎΠ² ΠΏΠΎ ΡΠ°Π±Π»ΠΎΠ½Ρ ΡΡΡΠ°Π½ΠΈΡΡ, ΡΠΎΡΠΌΠ°ΡΡ ΡΠΎΠΎΠ±ΡΠ΅Π½ΠΈΡ, ΡΠ°ΠΊΡΠΎΠ½ΠΎΠΌΠΈΠΈ ΠΈ ΠΊΠ°ΡΠ΅Π³ΠΎΡΠΈΠΈ Ρ ΠΏΠΎΠΌΠΎΡΡΡ JavaScript.
ΠΠ»ΠΎΠΊΠΈ
Π‘ΡΠΎΠ»Π±ΡΡ ΠΌΠ΅ΡΠ°-Π±Π»ΠΎΠΊΠ°
ΠΠ΅ΡΡΠΈΡ
Π¨Π°Π±Π»ΠΎΠ½ ΠΌΠ΅ΡΠ°-Π±Π»ΠΎΠΊΠ°
Π‘ΠΌ. ΠΡΠ΅ Π΄ΠΎΡΡΡΠΏΠ½ΡΠ΅ ΡΠ°ΡΡΠΈΡΠ΅Π½ΠΈΡ Π½Π° Π²Π΅Π±-ΡΠ°ΠΉΡΠ΅ Meta Box.
ΠΠΎΠ΄ΡΠΎΠ±Π½Π°Ρ Π΄ΠΎΠΊΡΠΌΠ΅Π½ΡΠ°ΡΠΈΡ
ΠΡ Π½Π΅ ΠΎΡΡΠ°Π²ΠΈΠΌ Π²Π°Ρ Π² ΠΏΠΎΠΊΠΎΠ΅.
ΠΡ ΠΏΡΠ΅Π΄ΠΎΡΡΠ°Π²Π»ΡΠ΅ΠΌ ΡΠ΅Π³ΡΠ»ΡΡΠ½ΠΎ ΠΎΠ±Π½ΠΎΠ²Π»ΡΠ΅ΠΌΡΡ ΠΈ ΠΎΠ±ΡΠΈΡΠ½ΡΡ Π΄ΠΎΠΊΡΠΌΠ΅Π½ΡΠ°ΡΠΈΡ, Π° ΡΠ°ΠΊΠΆΠ΅ ΡΡΠΊΠΎΠ²ΠΎΠ΄ΡΡΠ²Π° ΠΏΠΎ ΠΈΡΠΏΠΎΠ»ΡΠ·ΠΎΠ²Π°Π½ΠΈΡ MetaBox ΠΈ Π½Π°ΡΡΡΠ°ΠΈΠ²Π°Π΅ΠΌΡΡ ΠΏΠΎΠ»Π΅ΠΉ Π² WordPress Π² Π²Π°ΡΠΈΡ ΠΈΠ½ΡΠ΅ΡΠ΅ΡΠ°Ρ , Π° ΡΠ°ΠΊΠΆΠ΅ Π½Π°ΠΈΠ±ΠΎΠ»Π΅Π΅ ΡΡΡΠ΅ΠΊΡΠΈΠ²Π½ΡΠΌ ΡΠΏΠΎΡΠΎΠ±ΠΎΠΌ.
ΠΠΎΡ Π½Π΅ΡΠΊΠΎΠ»ΡΠΊΠΎ ΡΡΠΊΠΎΠ²ΠΎΠ΄ΡΡΠ², ΠΊΠΎΡΠΎΡΡΠ΅ ΠΏΠΎΠΌΠΎΠ³ΡΡ Π²Π°ΠΌ Π±ΡΡΡΡΠΎ Π½Π°ΡΠ°ΡΡ ΡΠ°Π±ΠΎΡΡ Ρ Meta Box ΠΈ ΡΠΎΠ·Π΄Π°ΡΡ ΡΠ²ΠΎΠΈ ΡΠΎΠ±ΡΡΠ²Π΅Π½Π½ΡΠ΅ Π½Π°ΡΡΡΠ°ΠΈΠ²Π°Π΅ΠΌΡΠ΅ ΠΏΠΎΠ»Ρ WordPress:
Π£Π·Π½Π°ΠΉΡΠ΅ Π±ΠΎΠ»ΡΡΠ΅ Π½Π° ΡΡΡΠ°Π½ΠΈΡΠ΅ Π΄ΠΎΠΊΡΠΌΠ΅Π½ΡΠ°ΡΠΈΠΈ ΠΏΠΎ Meta Box.
Blum 320M5000C15 METABOX 20 Π΄ΡΠΉΠΌΠΎΠ², Π΄Π»ΠΈΠ½Π° x Π²ΡΡΠΎΡΠ° 3β3, ΠΊΠΎΠΌΠΏΠ»Π΅ΠΊΡ 8 Π΄ΡΠΉΠΌΠΎΠ², Π²ΡΠ΄Π²ΠΈΠΆΠ½ΠΎΠΉ ΡΡΠΈΠΊ Π¦Π΅Π½Π°
ΠΠ°ΠΊ Π²Ρ ΡΠ΅ΡΠ°Π΅ΡΠ΅ ΠΊΡΠΎΡΡΠ²ΠΎΡΠ΄Ρ?
ΠΠ°Π²Π°ΠΉΡΠ΅ ΡΠ°Π·Π±Π΅ΡΠ΅ΠΌΡΡ, ΠΊΠ°ΠΊ ΡΠ°Π·Π³Π°Π΄ΡΠ²Π°ΡΡ ΠΊΡΠΎΡΡΠ²ΠΎΡΠ΄, Π½Π° ΠΎΡΠ½ΠΎΠ²Π½ΡΠ΅ ΡΡΠ°ΠΏΡ ΠΈ Π½Π΅ΡΠΊΠΎΠ»ΡΠΊΠΎ ΡΠΎΠ²Π΅ΡΠΎΠ² Π΄Π»Ρ ΠΏΡΠΎΡΠ΅ΡΡΠΈΠΎΠ½Π°Π»ΠΎΠ².
- Π‘Π΄Π΅Π»Π°ΠΉΡΠ΅ ΠΏΠ΅ΡΠ²ΡΠΉ ΠΏΡΠΎΡ ΠΎΠ΄ Π² ΠΎΠ΄Π½ΠΎΠΌ Π½Π°ΠΏΡΠ°Π²Π»Π΅Π½ΠΈΠΈ, ΠΎΠ±ΡΡΠ½ΠΎ Π½Π°ΡΠΈΠ½Π°Ρ Ρ 1 Across, ΠΈ ΡΠ½Π°ΡΠ°Π»Π° ΡΠ΅ΡΠΈΡΠ΅ Π½Π°ΠΈΠ±ΠΎΠ»Π΅Π΅ ΠΎΡΠ΅Π²ΠΈΠ΄Π½ΡΠ΅ ΠΏΠΎΠ΄ΡΠΊΠ°Π·ΠΊΠΈ. ΠΠ°ΠΏΡΠΈΠΌΠ΅Ρ, ΡΠ½Π°ΡΠ°Π»Π° ΡΠ΅ΡΠΈΡΠ΅ Π²ΠΎΠΏΡΠΎΡΡ, Π·Π°ΠΏΠΎΠ»Π½Π΅Π½Π½ΡΠ΅ Π½Π΅Π·Π°ΠΏΠΎΠ»Π½Π΅Π½Π½ΡΠΌΠΈ, ΠΏΠΎΡΠΊΠΎΠ»ΡΠΊΡ ΠΎΠ½ΠΈ ΠΎΠ±ΡΡΠ½ΠΎ Π±ΠΎΠ»Π΅Π΅ ΠΎΡΠ΅Π²ΠΈΠ΄Π½Ρ, ΡΠ΅ΠΌ Π΄ΡΡΠ³ΠΈΠ΅.
- Π‘Π΄Π΅Π»Π°ΠΉΡΠ΅ ΠΏΠ΅ΡΠ²ΡΠΉ ΠΏΡΠΎΡ ΠΎΠ΄ Π² Π΄ΡΡΠ³ΠΎΠΌ Π½Π°ΠΏΡΠ°Π²Π»Π΅Π½ΠΈΠΈ, ΠΎΠ±ΡΡΠ½ΠΎ Π½Π°ΡΠΈΠ½Π°Ρ Ρ 1 Π²Π½ΠΈΠ·, ΡΠ½Π°ΡΠ°Π»Π° ΡΠ΅ΡΠ°Ρ Π½Π°ΠΈΠ±ΠΎΠ»Π΅Π΅ ΠΎΡΠ΅Π²ΠΈΠ΄Π½ΡΠ΅ ΠΏΠΎΠ΄ΡΠΊΠ°Π·ΠΊΠΈ ΠΈ ΠΏΡΠΎΠ²Π΅ΡΡΡ, Π½Π΅Ρ Π»ΠΈ ΡΠ°ΡΡ ΠΎΠΆΠ΄Π΅Π½ΠΈΠΉ. ΠΠ°ΠΉΠ΄ΠΈΡΠ΅ ΠΎΡΠ΅Π²ΠΈΠ΄Π½ΡΠ΅ ΠΏΠΎΠ΄ΡΠΊΠ°Π·ΠΊΠΈ ΠΈ ΡΠ±Π΅Π΄ΠΈΡΠ΅ΡΡ, ΡΡΠΎ ΠΎΠ½ΠΈ ΡΠΎΠ²ΠΏΠ°Π΄Π°ΡΡ ΠΏΡΠΈ Π½Π°ΠΏΠΈΡΠ°Π½ΠΈΠΈ.
- Π‘Π΄Π΅Π»Π°ΠΉΡΠ΅ Π²ΡΠΎΡΠΎΠΉ ΠΏΡΠΎΡ ΠΎΠ΄, ΡΠ΅ΠΏΠ΅ΡΡ Ρ Π±ΠΎΠ»ΡΡΠΈΠΌ ΠΊΠΎΠ»ΠΈΡΠ΅ΡΡΠ²ΠΎΠΌ Π±ΡΠΊΠ², ΠΊΠΎΡΠΎΡΡΠ΅ ΠΏΠΎΠΌΠΎΠ³ΡΡ Π²Π°ΠΌ ΡΠ°Π·Π³Π°Π΄ΡΠ²Π°ΡΡ Π½ΠΎΠ²ΡΠ΅ ΠΎΡΠ²Π΅ΡΡ Π½Π° ΠΊΡΠΎΡΡΠ²ΠΎΡΠ΄Ρ. Π Π΅ΠΊΠΎΠΌΠ΅Π½Π΄ΡΠ΅ΡΡΡ Π½Π°ΡΠ°ΡΡ Ρ Π»Π΅Π²ΠΎΠ³ΠΎ Π²Π΅ΡΡ Π½Π΅Π³ΠΎ ΡΠ³Π»Π° ΠΈ Π·Π°ΠΏΠΎΠ»Π½ΠΈΡΡ ΡΠ»ΠΎΠ²Π° Π½Π΅ΡΠΊΠΎΠ»ΡΠΊΠΈΠΌΠΈ ΡΠΆΠ΅ Π·Π°ΠΏΠΎΠ»Π½Π΅Π½Π½ΡΠΌΠΈ Π±ΡΠΊΠ²Π°ΠΌΠΈ. ΠΡΠ° ΡΠΏΡΠ°Π²ΠΊΠ° ΠΏΠΎ ΠΊΡΠΎΡΡΠ²ΠΎΡΠ΄Ρ Π΄Π°ΡΡ Π²Π°ΠΌ Π±ΠΎΠ»ΡΡΠ΅ ΠΏΠΎΠ΄ΡΠΊΠ°Π·ΠΎΠΊ. ΠΡΠ»ΠΈ Π²Ρ Π²ΡΠ΅ Π΅ΡΠ΅ ΠΈΡΠΏΡΡΡΠ²Π°Π΅ΡΠ΅ ΡΡΡΠ΄Π½ΠΎΡΡΠΈ, ΠΏΠΎΠΏΡΠΎΠ±ΡΠΉΡΠ΅ Π½Π°Ρ ΡΠ΅ΡΠ°ΡΠ΅Π»Ρ Π°Π½Π°Π³ΡΠ°ΠΌΠΌ, ΠΊΠΎΡΠΎΡΡΠΉ ΠΏΠΎΠΌΠΎΠΆΠ΅Ρ Π²Π°ΠΌ Π½Π°Ρ ΠΎΠ΄ΠΈΡΡ ΡΠ»ΠΎΠ²Π° Ρ ΠΏΠΎΠΌΠΎΡΡΡ ΠΈΠΌΠ΅ΡΡΠΈΡ ΡΡ Ρ Π²Π°Ρ Π±ΡΠΊΠ².
- ΠΠΎΠ²ΡΠΎΡΠΈΡΠ΅ ΡΡΠΈ ΡΠ°Π³ΠΈ, Π²ΡΠ΅ΠΌΡ ΠΎΡ Π²ΡΠ΅ΠΌΠ΅Π½ΠΈ Π΄Π΅Π»Π°Ρ ΠΏΠ΅ΡΠ΅ΡΡΠ²Ρ, ΡΡΠΎΠ±Ρ ΠΏΠΎ-Π½ΠΎΠ²ΠΎΠΌΡ Π²Π·Π³Π»ΡΠ½ΡΡΡ Π½Π° ΠΎΡΠ²Π΅ΡΡ Π½Π° ΠΊΡΠΎΡΡΠ²ΠΎΡΠ΄Ρ. ΠΠ΅Π»Π°ΠΉΡΠ΅ ΡΡΠΎ, ΠΏΠΎΠΊΠ° Π½Π΅ Π·Π°ΠΊΠΎΠ½ΡΠΈΡΠ΅. ΠΡΠΎΠ΄ΠΎΠ»ΠΆΠ°ΠΉΡΠ΅ ΠΎΠ±Π΄ΡΠΌΡΠ²Π°ΡΡ ΡΠ΅ΠΌΡ, ΠΈΡΠΈΡΠ΅ Π°Π½Π°Π³ΡΠ°ΠΌΠΌΡ ΠΈ ΠΏΠΎΠ΄ΡΠΌΠ°ΠΉΡΠ΅ ΠΎ ΡΠΎΠΌ, ΡΡΠΎΠ±Ρ ΠΎΠ±ΡΠ°ΡΠΈΡΡΡΡ ΠΊ ΠΏΠΎΠΈΡΠΊΠΎΠ²ΠΈΠΊΡ ΡΠΈΠ½ΠΎΠ½ΠΈΠΌΠΎΠ² ΠΈ Π°Π½ΡΠΎΠ½ΠΈΠΌΠΎΠ², ΡΡΠΎΠ±Ρ Π½Π°ΠΉΡΠΈ Π½ΠΎΠ²ΡΠ΅ ΡΠ»ΠΎΠ²Π°, ΠΏΠΎΡ ΠΎΠΆΠΈΠ΅ Π½Π° ΠΏΠΎΠ΄ΡΠΊΠ°Π·ΠΊΠΈ. ΠΠ΅ Π·Π°Π±ΡΠ²Π°ΠΉΡΠ΅ ΠΌΡΡΠ»ΠΈΡΡ Π½Π΅ΡΡΠ°Π½Π΄Π°ΡΡΠ½ΠΎ, ΠΏΡΡΠ°ΡΡΡ Π·Π°ΠΏΠΎΠ»Π½ΠΈΡΡ ΡΡΠΈ ΠΏΠΎΠ»Ρ!
- ΠΠΎΡΠ»Π΅ ΡΠΎΠ³ΠΎ, ΠΊΠ°ΠΊ Π²Ρ Π·Π°ΠΊΠΎΠ½ΡΠΈΡΠ΅ Π²Π΅ΡΡ ΠΊΡΠΎΡΡΠ²ΠΎΡΠ΄ , ΠΏΡΠΎΠ²Π΅ΡΡΡΠ΅ ΡΠ²ΠΎΠΈ ΠΎΡΠ²Π΅ΡΡ . ΠΠΎΠ·ΠΌΠΎΠΆΠ½ΠΎ, Ρ ΠΎΡΡ ΠΈ ΡΠ΅Π΄ΠΊΠΎ, ΡΡΠΎ Π²Π°ΡΠΈ ΡΠ°Π·Π³Π°Π΄ΠΊΠΈ ΠΈ ΠΎΡΠ²Π΅ΡΡ ΠΊΡΠΎΡΡΠ²ΠΎΡΠ΄Π° ΠΏΠΎΠ΄Ρ ΠΎΠ΄ΡΡ, Π½ΠΎ Π½Π΅ ΡΠΎΠ²ΠΏΠ°Π΄Π°ΡΡ Ρ ΠΎΡΠ²Π΅ΡΠ°ΠΌΠΈ Π³Π°Π·Π΅ΡΡ.
Π‘ΠΎΠ²Π΅ΡΡ ΠΏΠΎ ΡΠ°Π·Π³Π°Π΄ΡΠ²Π°Π½ΠΈΡ ΠΊΡΠΎΡΡΠ²ΠΎΡΠ΄ΠΎΠ²
ΠΠΎΠΆΠ΅Ρ Π±ΡΡΡ ΡΡΡΠ΄Π½ΠΎ ΠΏΠΎΠ½ΡΡΡ ΡΠ°Π·Π³Π°Π΄ΠΊΡ ΠΊΡΠΎΡΡΠ²ΠΎΡΠ΄Π°, ΠΏΠΎΡΠΎΠΌΡ ΡΡΠΎ ΡΠΎΡΡΠ°Π²ΠΈΡΠ΅Π»ΠΈ ΠΊΡΠΎΡΡΠ²ΠΎΡΠ΄ΠΎΠ² ΠΈΠ·Π²Π΅ΡΡΠ½Ρ ΡΠ²ΠΎΠ΅ΠΉ Π·Π°Π³Π°Π΄ΠΎΡΠ½ΠΎΡΡΡΡ.Π₯ΠΎΡΠΎΡΠΈΠΉ ΠΊΡΠΎΡΡΠ²ΠΎΡΠ΄, ΠΊΠ°ΠΊ ΠΏΡΠ°Π²ΠΈΠ»ΠΎ, ΠΌΠ°ΡΡΠ΅ΡΡΠΊΠΈ ΡΠ°Π·Π³Π°Π΄ΡΠ²Π°Π΅Ρ Π·Π°Π³Π°Π΄ΠΊΠΈ, ΡΠ°ΠΊ ΠΊΠ°ΠΊ Π½ΡΠΆΠ½ΠΎ Π΄Π΅ΠΉΡΡΠ²ΠΈΡΠ΅Π»ΡΠ½ΠΎ ΠΌΡΡΠ»ΠΈΡΡ Π½Π΅ΡΡΠ°Π½Π΄Π°ΡΡΠ½ΠΎ, ΡΡΠΎΠ±Ρ ΠΏΠΎΠ½ΡΡΡ Π½Π΅ΠΊΠΎΡΠΎΡΡΠ΅ ΠΈΠ· ΡΡΠΈΡ Π±ΠΎΠ»Π΅Π΅ ΡΠ»ΠΎΠΆΠ½ΡΡ ΠΏΠΎΠ΄ΡΠΊΠ°Π·ΠΎΠΊ. ΠΠΎΡ Π½Π΅ΡΠΊΠΎΠ»ΡΠΊΠΎ ΡΠΎΠ²Π΅ΡΠΎΠ² ΠΏΠΎ ΡΠ°Π·Π³Π°Π΄ΡΠ²Π°Π½ΠΈΡ ΠΊΡΠΎΡΡΠ²ΠΎΡΠ΄ΠΎΠ²:
- ΠΠΎΠΏΡΠΎΡΠΈΡΠ΅Π»ΡΠ½ΡΠ΅ Π·Π½Π°ΠΊΠΈ ΡΠ°ΡΡΠΎ ΠΏΠΎΠ΄ΡΠ°Π·ΡΠΌΠ΅Π²Π°ΡΡ ΠΈΠ³ΡΡ ΡΠ»ΠΎΠ² ΠΈΠ»ΠΈ ΠΊΠ°Π»Π°ΠΌΠ±ΡΡ. ΠΠ±ΡΡΠ½ΠΎ ΠΊΡΠΎΡΡΠ²ΠΎΡΠ΄Ρ ΠΏΠΈΡΡΡΡΡ Π±Π΅Π· Π·Π½Π°ΠΊΠΎΠ² ΠΏΡΠ΅ΠΏΠΈΠ½Π°Π½ΠΈΡ, ΠΏΠΎΡΡΠΎΠΌΡ Π΅ΡΠ»ΠΈ Π²Ρ Π²ΠΈΠ΄ΠΈΡΠ΅ Π²ΠΎΠΏΡΠΎΡΠΈΡΠ΅Π»ΡΠ½ΡΠΉ Π·Π½Π°ΠΊ, ΡΡΠΎ ΠΎΠ·Π½Π°ΡΠ°Π΅Ρ, ΡΡΠΎ ΠΎΡΠ²Π΅Ρ Π½Π΅ Π±ΡΠ΄Π΅Ρ ΡΠ°ΠΊΠΈΠΌ ΠΎΠ΄Π½ΠΎΠ·Π½Π°ΡΠ½ΡΠΌ, ΠΊΠ°ΠΊ Π²Ρ Π΄ΡΠΌΠ°Π΅ΡΠ΅. ΠΠΎΠ΄ΡΠΌΠ°ΠΉΡΠ΅ ΠΎ ΠΊΠ°Π»Π°ΠΌΠ±ΡΡΠ°Ρ , ΠΈΠ³ΡΠ΅ ΡΠ»ΠΎΠ², ΠΎΠΌΠΎΠ½ΠΈΠΌΠ°Ρ ΠΈ ΠΌΠ΅Π½Π΅Π΅ ΠΎΡΠ΅Π²ΠΈΠ΄Π½ΡΡ ΠΎΡΠ²Π΅ΡΠ°Ρ .
- ΠΡΠ΅ΠΌΠ΅Π½Π° Π² ΠΏΠΎΠ΄ΡΠΊΠ°Π·ΠΊΠ°Ρ Π½Π°ΠΏΠΈΡΠ°Π½Ρ ΡΠ°ΠΊ, ΡΡΠΎΠ±Ρ ΡΠΎΠΎΡΠ²Π΅ΡΡΡΠ²ΠΎΠ²Π°ΡΡ ΠΎΡΠ²Π΅ΡΠ°ΠΌ. ΠΡΠ»ΠΈ Π²Ρ ΠΈΡΠ΅ΡΠ΅ ΡΠΈΠ½ΠΎΠ½ΠΈΠΌΡ ΠΊΡΠΎΡΡΠ²ΠΎΡΠ΄Π°, ΠΏΡΠΈΠ΄Π΅ΡΠΆΠΈΠ²Π°ΠΉΡΠ΅ΡΡ ΡΠΎΠ³ΠΎ ΠΆΠ΅ ΠΏΡΠΎΡΠ΅Π΄ΡΠ΅Π³ΠΎ, Π±ΡΠ΄ΡΡΠ΅Π³ΠΎ ΠΈΠ»ΠΈ Π½Π°ΡΡΠΎΡΡΠ΅Π³ΠΎ Π²ΡΠ΅ΠΌΠ΅Π½ΠΈ, Π² ΠΊΠΎΡΠΎΡΠΎΠΌ Π½Π°Ρ ΠΎΠ΄ΠΈΡΡΡ ΠΏΠΎΠ΄ΡΠΊΠ°Π·ΠΊΠ°. ΠΠ°ΠΏΡΠΈΠΌΠ΅Ρ, ΠΏΠΎΠ΄ΡΠΊΠ°Π·ΠΊΠ° Β«ΠΏΡΡΠ³Π½ΡΠ»Β» Π½Π΅ ΠΏΡΠΈΠ²Π΅Π΄Π΅Ρ ΠΊ Β«ΠΏΡΡΠΆΠΊΠ°ΠΌΒ» ΠΈΠ»ΠΈ Β«ΠΏΡΡΠΆΠΊΠ°ΠΌΒ», Π° Β«ΠΏΡΡΠΆΠΊΠ°ΠΌΒ». β
- Π’ΡΠ°ΡΠ΅Π»ΡΠ½ΠΎ ΠΎΠ±ΡΠ°ΡΠ°ΠΉΡΠ΅ Π²Π½ΠΈΠΌΠ°Π½ΠΈΠ΅ Π½Π° ΡΠΎΠΊΡΠ°ΡΠ΅Π½ΠΈΡ. ΠΡΠ»ΠΈ ΠΏΠΎΠ΄ΡΠΊΠ°Π·ΠΊΠ° ΡΠΎΠΊΡΠ°ΡΠ΅Π½Π°, ΠΎΡΠ²Π΅Ρ, ΡΠΊΠΎΡΠ΅Π΅ Π²ΡΠ΅Π³ΠΎ, ΡΠΎΠΆΠ΅ Π±ΡΠ΄Π΅Ρ. ΠΠ°ΠΏΠΎΠΌΠ½ΠΈΡΠ΅ ΠΏΠΎΠΏΡΠ»ΡΡΠ½ΡΠ΅ ΡΠΎΠΊΡΠ°ΡΠ΅Π½ΠΈΡ, Π²ΠΊΠ»ΡΡΠ°Ρ Π½Π°Π·Π²Π°Π½ΠΈΡ ΡΠΎΠ±ΡΡΠΈΠΉ, ΡΠ°ΠΊΠΈΡ ΠΊΠ°ΠΊ ΠΠ΅ΡΠ²Π°Ρ ΠΌΠΈΡΠΎΠ²Π°Ρ Π²ΠΎΠΉΠ½Π°, Π²ΠΎΠ΅Π½Π½ΡΠ΅ ΡΠΎΠΊΡΠ°ΡΠ΅Π½ΠΈΡ, ΡΠ°ΠΊΠΈΠ΅ ΠΊΠ°ΠΊ NCO, ΠΈ ΡΠΈΡΡΠ»Ρ, ΡΠ°ΠΊΠΈΠ΅ ΠΊΠ°ΠΊ Mr.ΠΈ ΠΌΠΈΡΡ. Π’Π°ΠΊΠΆΠ΅ Π·Π°ΠΏΠΎΠΌΠ½ΠΈΡΠ΅ ΠΎΠ±ΡΠΈΠ΅ ΡΡΡΡΠΈΠΊΡΡ, ΡΠ°ΠΊ ΠΊΠ°ΠΊ ΠΎΠ½ΠΈ Π΄ΠΎΠ²ΠΎΠ»ΡΠ½ΠΎ ΠΏΠΎΠΏΡΠ»ΡΡΠ½Ρ ΡΡΠ΅Π΄ΠΈ ΡΠΎΡΡΠ°Π²ΠΈΡΠ΅Π»Π΅ΠΉ ΠΊΡΠΎΡΡΠ²ΠΎΡΠ΄ΠΎΠ².
- ΠΠ°ΡΡΠ΅Ρ Β«ΠΊΡΠΎΡΡΠ²ΠΎΡΠ΄Β». ΠΡΡΡΠΈΡΠ΅ Π½Π°ΠΈΠ±ΠΎΠ»Π΅Π΅ ΡΠ°ΡΡΠΎ ΠΈΡΠΏΠΎΠ»ΡΠ·ΡΠ΅ΠΌΡΠ΅ ΠΎΡΠ²Π΅ΡΡ Π½Π° ΠΊΡΠΎΡΡΠ²ΠΎΡΠ΄Ρ. ΠΠΎΡΠΌΠΎΡΡΠΈΡΠ΅, ΡΠΌΠΎΠΆΠ΅ΡΠ΅ Π»ΠΈ Π²Ρ Π²ΠΏΠΈΡΠ°ΡΡ Π² Π²Π°ΡΡ Π³ΠΎΠ»ΠΎΠ²ΠΎΠ»ΠΎΠΌΠΊΡ Π»ΡΠ±ΠΎΠΉ ΠΈΠ· HiLetgo ESP8266 Ρ ΠΏΠΎΡΠ»Π΅Π΄ΠΎΠ²Π°ΡΠ΅Π»ΡΠ½ΡΠΌ Π±Π΅ΡΠΏΡΠΎΠ²ΠΎΠ΄Π½ΡΠΌ ΠΌΠΎΠ΄ΡΠ»Π΅ΠΌ WIFI ESP-07 Wireless Modu ΠΈΠ»ΠΈ ΡΠ»ΠΎΠ²Π°, ΠΊΠΎΡΠΎΡΡΠ΅ Π½Π΅ Π²ΡΡΡΠ΅ΡΠ°ΡΡΡΡ Π² ΠΏΠΎΠ²ΡΠ΅Π΄Π½Π΅Π²Π½ΠΎΠΉ ΡΠ΅ΡΠΈ, Π½ΠΎ ΡΠ°ΡΡΠΎ ΠΈΡΠΏΠΎΠ»ΡΠ·ΡΡΡΡΡ Π² ΠΊΡΠΎΡΡΠ²ΠΎΡΠ΄Π°Ρ .
- ΠΠΎΠΏΡΠΎΡΡ Ρ Π·Π°ΠΏΠΎΠ»Π½Π΅Π½ΠΈΠ΅ΠΌ ΠΏΡΠΎΠΏΡΡΠΊΠΎΠ² ΠΎΠ±ΡΡΠ½ΠΎ ΡΠ°ΠΌΡΠ΅ ΠΏΡΠΎΡΡΡΠ΅. ΠΠ±ΡΡΠ½ΠΎ Π²Ρ Π²ΠΈΠ΄ΠΈΡΠ΅ ΡΠ°ΡΠΏΡΠΎΡΡΡΠ°Π½Π΅Π½Π½ΡΡ ΠΈΠ΄ΠΈΠΎΠΌΡ, ΡΡΠ°Π·Ρ ΠΈΠ»ΠΈ ΠΎΡΡΡΠ»ΠΊΡ ΠΊ ΠΏΠΎΠΏ-ΠΊΡΠ»ΡΡΡΡΠ΅, Π² ΠΊΠΎΡΠΎΡΠΎΠΉ ΠΎΡΡΡΡΡΡΠ²ΡΠ΅Ρ ΡΠΎΠ»ΡΠΊΠΎ ΠΎΠ΄ΠΈΠ½ ΡΠ°Π·Π΄Π΅Π».ΠΠ΄Π½Π°ΠΊΠΎ ΠΈΠΌΠ΅ΠΉΡΠ΅ Π² Π²ΠΈΠ΄Ρ, ΡΡΠΎ Π»ΡΠ΄ΠΈ, Π΄Π»Ρ ΠΊΠΎΡΠΎΡΡΡ Π°Π½Π³Π»ΠΈΠΉΡΠΊΠΈΠΉ ΡΠ·ΡΠΊ Π½Π΅ ΡΠ²Π»ΡΠ΅ΡΡΡ ΡΠΎΠ΄Π½ΡΠΌ, ΠΌΠΎΠ³ΡΡ ΡΡΠΎΠ»ΠΊΠ½ΡΡΡΡΡ Ρ ΡΡΠΈΠΌ, ΠΏΠΎΡΠΎΠΌΡ ΡΡΠΎ ΡΡΠ°Π·Ρ ΠΌΠΎΠ³ΡΡ Π±ΡΡΡ ΡΠ΅Π³ΠΈΠΎΠ½Π°Π»ΡΠ½ΡΠΌΠΈ ΠΈ ΡΠ°Π·Π³ΠΎΠ²ΠΎΡΠ½ΡΠΌΠΈ; ΡΠΌ. ΡΡΠΎΡ ΡΠΏΠΈΡΠΎΠΊ ΡΠ°ΡΠΏΡΠΎΡΡΡΠ°Π½Π΅Π½Π½ΡΡ ΠΈΠ΄ΠΈΠΎΠΌ , Π΅ΡΠ»ΠΈ Ρ Π²Π°Ρ ΠΏΡΠΎΠ±Π»Π΅ΠΌΡ.
- ΠΡΡΠ°Π²ΡΡΠ΅ Π² Π³ΠΎΠ»ΠΎΠ²Ρ ΠΎΡΡΡΠ»ΠΊΠΈ ΠΊ ΠΏΠΎΠΏ-ΠΊΡΠ»ΡΡΡΡΠ΅. ΠΡΠΎΡΠ»ΡΠ΅ ΠΈ Π½Π°ΡΡΠΎΡΡΠΈΠ΅ Π³ΠΎΡΡΡΠΈΠ΅ ΡΠ΅ΠΌΡ — ΡΡΠΎ ΡΠ΅ΡΡΠ½Π°Ρ ΠΈΠ³ΡΠ° Π² ΠΊΡΠΎΡΡΠ²ΠΎΡΠ΄Ρ, ΠΏΠΎΡΡΠΎΠΌΡ ΠΈΠΌΠ΅ΠΉΡΠ΅ Π² Π²ΠΈΠ΄Ρ Π²ΡΠ΅ ΡΡΠΈ ΠΏΠΎΠΏΡΠ»ΡΡΠ½ΡΡ ΡΠΈΠ»ΡΠΌΠΎΠ² , ΡΠ΅Π»Π΅ΡΠΎΡ ΠΈ ΠΊΠ½ΠΈΠ³ , Π²ΠΊΠ»ΡΡΠ°Ρ Π°ΠΊΡΠ΅ΡΠΎΠ², ΡΠ΅ΠΆΠΈΡΡΠ΅ΡΠΎΠ², ΠΏΠ΅ΡΡΠΎΠ½Π°ΠΆΠ΅ΠΉ ΠΈ ΠΏΠΈΡΠ°ΡΠ΅Π»Π΅ΠΉ. ΠΡΠ»ΠΈ Π΅ΡΡΡ Π±ΠΎΠ»ΡΡΠ°Ρ Π½Π°Π³ΡΠ°Π΄Π°, ΡΠ°ΠΊΠ°Ρ ΠΊΠ°ΠΊ Hubcap Replacement Π΄Π»Ρ Toyota Tundra 2000-2006 — Professional Re , Tonys ΠΈΠ»ΠΈ Oscars , Π½Π° ΡΡΠΎ, ΡΠΊΠΎΡΠ΅Π΅ Π²ΡΠ΅Π³ΠΎ, Π±ΡΠ΄Π΅Ρ ΡΡΡΠ»Π°ΡΡΡΡ Π³Π°Π·Π΅ΡΠ½ΡΠΉ ΠΊΡΠΎΡΡΠ²ΠΎΡΠ΄.ΠΡΠ»ΠΈ ΡΠΎΠ·Π΄Π°ΡΠ΅Π»Ρ ΠΈΠ»ΠΈ ΠΏΠΎΠ»ΠΈΡΠΈΡΠ΅ΡΠΊΠΈΠΉ Π΄Π΅ΡΡΠ΅Π»Ρ Π²Π΅Π΄Π΅Ρ ΡΠ²ΠΎΠΉ Π±ΠΎΠ»ΡΡΠΎΠΉ ΠΊΡΡΠ³ ΠΎΠ±ΡΠ΅Π½ΠΈΡ Π² Π‘ΠΠ, Π²Ρ ΠΈΠ½ΠΎΠ³Π΄Π° ΠΌΠΎΠΆΠ΅ΡΠ΅ ΡΠ²ΠΈΠ΄Π΅ΡΡ ΠΈΡ Π² ΠΊΡΠΎΡΡΠ²ΠΎΡΠ΄Π°Ρ . ΠΠΎ Π½Π΅ Π²ΡΠ΅ ΡΠ²Π΅ΠΆΠ΅Π΅! ΠΡΠ΅Π΄ΡΡΠ°Π²ΡΡΠ΅, ΡΡΠΎ ΠΈΠ·ΡΡΠ°Π΅Ρ ΠΌΠ΅Π»ΠΎΡΠΈ , ΡΡΠΎΠ±Ρ ΠΏΠΎΠ»ΡΡΠΈΡΡ Π±ΠΎΠ»ΡΡΠ΅ ΠΎΡΠ²Π΅ΡΠΎΠ² Π² Π³Π»ΡΠ±ΠΈΠ½Π΅ ΡΠ²ΠΎΠ΅Π³ΠΎ ΠΌΠΎΠ·Π³Π°.
- Π Π°ΡΡΠΌΠΎΡΡΠΈΠΌ ΡΠ°ΠΌΡΡ Π²Π°ΠΆΠ½ΡΡ ΡΠ΅ΠΌΡ. ΠΠ²ΡΠΎΡΡ ΠΊΡΠΎΡΡΠ²ΠΎΡΠ΄ΠΎΠ² ΡΠ°ΡΡΠΎ ΠΈΡΠΏΠΎΠ»ΡΠ·ΡΡΡ ΡΠ΅ΠΌΡ ΠΈΠ»ΠΈ Π΄Π°ΠΆΠ΅ ΡΠ°ΡΡΠΊΠ°Π·ΡΠ²Π°ΡΡ ΠΈΡΡΠΎΡΠΈΠΈ Ρ ΠΏΠΎΠΌΠΎΡΡΡ ΡΠ²ΠΎΠΈΡ ΡΠΌΠ½ΡΡ Π³ΠΎΠ»ΠΎΠ²ΠΎΠ»ΠΎΠΌΠΎΠΊ. ΠΠ°ΠΏΡΠΈΠΌΠ΅Ρ, Π΅ΡΠ»ΠΈ ΡΠ΅ΠΌΠ° — Π±Π°Π»Π΅Ρ, ΠΏΡΠΎΡΡΡΠΌ ΠΎΡΠ²Π΅ΡΠΎΠΌ Π½Π° Β«ΡΠΎΡΠΊΡ Π±ΠΎΠ»ΠΈ Π΄Π»Ρ ΡΠ°Π½ΡΠΎΡΠΎΠ²Β» ΠΌΠΎΠΆΠ΅Ρ Π±ΡΡΡ Β«ΠΏΠ°Π»Π΅Ρ Π½ΠΎΠ³ΠΈΒ».
- Π‘ΠΌ. Π‘Π»ΠΎΠ²Π°ΡΡ ΠΊΡΠΎΡΡΠ²ΠΎΡΠ΄ΠΎΠ² .ΠΠ΅ΠΊΠΎΡΠΎΡΡΠ΅ Π»ΡΠ΄ΠΈ Π΄Π΅ΡΠΆΠ°Ρ ΡΠ»ΠΎΠ²Π°ΡΠΈ ΠΊΡΠΎΡΡΠ²ΠΎΡΠ΄ΠΎΠ² Π² ΠΊΠ°ΡΠΌΠ°Π½Π°Ρ ΠΏΡΠΈ Π·Π°ΠΏΠΎΠ»Π½Π΅Π½ΠΈΠΈ Π±ΡΠΌΠ°ΠΆΠ½ΡΡ ΠΊΠΎΠΏΠΈΠΉ. ΠΡ ΠΌΠΎΠΆΠ΅ΡΠ΅ ΠΈΡΠΏΠΎΠ»ΡΠ·ΠΎΠ²Π°ΡΡ Π½Π°Ρ ΠΎΠ½Π»Π°ΠΉΠ½-ΡΠ»ΠΎΠ²Π°ΡΡ ΡΠΈΠ½ΠΎΠ½ΠΈΠΌΠΎΠ² ΠΊΡΠΎΡΡΠ²ΠΎΡΠ΄ΠΎΠ², ΡΡΠΎΠ±Ρ Π½Π°ΠΉΡΠΈ ΠΎΡΠ»ΠΈΡΠ½ΡΠ΅ ΠΈΠ΄Π΅ΠΈ. (ΠΡΠΎ Π½Π΅ ΡΠ°Π·Π³Π°Π΄ΡΠ²Π°Π½ΠΈΠ΅ ΠΊΡΠΎΡΡΠ²ΠΎΡΠ΄Π°, ΠΊΠΎΠ³Π΄Π° Π²Ρ ΠΎΡΡΠ°ΡΠ½Π½ΠΎ Π½ΡΠΆΠ΄Π°Π΅ΡΠ΅ΡΡ Π² ΠΎΠ΄Π½ΠΎΠΉ ΠΏΠΎΠ΄ΡΠΊΠ°Π·ΠΊΠ΅!)
- Π Π°Π΄ΠΈ Π²Π°ΡΠ΅Π³ΠΎ Π·Π΄ΡΠ°Π²ΠΎΠ³ΠΎ ΡΠΌΡΡΠ»Π° ΠΈΡΠΏΠΎΠ»ΡΠ·ΡΠΉΡΠ΅ ΠΊΠ°ΡΠ°Π½Π΄Π°Ρ. ΠΡΠ»ΠΈ Π²Ρ ΠΈΡΠΏΠΎΠ»ΡΠ·ΡΠ΅ΡΠ΅ ΠΎΠ±ΡΡΠ½ΡΡ Π±ΡΠΌΠ°Π³Ρ, Π° Π½Π΅ ΠΎΠ½Π»Π°ΠΉΠ½-ΠΏΡΠΈΠ»ΠΎΠΆΠ΅Π½ΠΈΠ΅ Π΄Π»Ρ ΠΊΡΠΎΡΡΠ²ΠΎΡΠ΄ΠΎΠ², ΠΈΡΠΏΠΎΠ»ΡΠ·ΡΠΉΡΠ΅ ΠΊΠ°ΡΠ°Π½Π΄Π°Ρ ΠΈ Π»Π°ΡΡΠΈΠΊ. ΠΡΠΈΠ±ΠΊΠΈ, Π½Π΅Π²Π΅ΡΠ½ΡΠ΅ ΡΠΎΠ»ΠΊΠΎΠ²Π°Π½ΠΈΡ ΠΈ ΠΏΡΡΠ°Π½ΠΈΡΠ° ΠΌΠΎΠ³ΡΡ Π²ΠΎΠ·Π½ΠΈΠΊΠ½ΡΡΡ, Π΄Π°ΠΆΠ΅ Π΅ΡΠ»ΠΈ Π²Ρ ΠΎΠΏΡΡΠ½ΡΠΉ ΠΏΡΠΎΡΠ΅ΡΡΠΈΠΎΠ½Π°Π».
- ΠΠ°ΡΠ½ΠΈΡΠ΅ Ρ Π±ΠΎΠ»Π΅Π΅ ΠΏΡΠΎΡΡΠΎΠΉ Π³ΠΎΠ»ΠΎΠ²ΠΎΠ»ΠΎΠΌΠΊΠΈ, Π° Π·Π°ΡΠ΅ΠΌ Π΄Π²ΠΈΠ³Π°ΠΉΡΠ΅ΡΡ Π²Π²Π΅ΡΡ . ΠΡΠ»ΠΈ Π²Ρ ΠΈΡΠ΅ΡΠ΅ ΡΠΈΡΡ Π΄Π»Ρ ΠΊΡΠΎΡΡΠ²ΠΎΡΠ΄ΠΎΠ² NYT ΠΏΠΎ ΠΏΠΎΠ½Π΅Π΄Π΅Π»ΡΠ½ΠΈΠΊΠ°ΠΌ ΠΈ Π²ΡΠΎΡΠ½ΠΈΠΊΠ°ΠΌ, Π½Π΅ ΠΎΡΡΠ°ΠΈΠ²Π°ΠΉΡΠ΅ΡΡ, ΠΏΡΠΎΠ±ΡΡ ΡΠ΅ΡΠΊΡ ΠΏΠΎ ΡΠ΅ΡΠ²Π΅ΡΠ³Π°ΠΌ. ΠΠ΅Π³ΠΊΠΈΠ΅ Π³ΠΎΠ»ΠΎΠ²ΠΎΠ»ΠΎΠΌΠΊΠΈ — ΠΎΡΠ»ΠΈΡΠ½ΠΎΠ΅ ΠΌΠ΅ΡΡΠΎ Π΄Π»Ρ Π½Π°ΡΠ°Π»Π°, Π° ΠΊΡΠΎΡΡΠ²ΠΎΡΠ΄Ρ Π² ΠΊΠΎΠ½ΡΠ΅ Π½Π΅Π΄Π΅Π»ΠΈ ΡΡΠ°Π½ΠΎΠ²ΡΡΡΡ Π²ΡΠ΅ ΡΠ»ΠΎΠΆΠ½Π΅Π΅. ΠΠ΅ ΠΆΠ΄ΠΈΡΠ΅, ΡΡΠΎ ΡΡΠ°Π·Ρ ΠΆΠ΅ ΡΡΠ°Π½Π΅ΡΠ΅ ΠΌΠ°ΡΡΠ΅ΡΠΎΠΌ ΡΠ°Π·Π³Π°Π΄ΡΠ²Π°ΡΡ ΡΠ»ΠΎΠΆΠ½ΡΠΉ ΠΊΡΠΎΡΡΠ²ΠΎΡΠ΄!
Π‘ΠΎΠ²Π΅ΡΡ ΠΏΠΎ ΡΠ°Π·Π³Π°Π΄ΡΠ²Π°Π½ΠΈΡ ΡΠ»ΠΎΠΆΠ½ΡΡ Π³ΠΎΠ»ΠΎΠ²ΠΎΠ»ΠΎΠΌΠΎΠΊ ΠΈ Π·Π°Π³Π°Π΄ΠΎΡΠ½ΡΡ ΠΊΡΠΎΡΡΠ²ΠΎΡΠ΄ΠΎΠ²
Π‘Π°ΠΌΡΠΉ Π²Π°ΠΆΠ½ΡΠΉ ΡΠΎΠ²Π΅Ρ — ΠΏΡΠ°ΠΊΡΠΈΠΊΠ°.ΠΠ°ΠΊΡΡ ΠΠΎΠΉΡΡ ΠΏΠΎΠ½Π°Π΄ΠΎΠ±ΠΈΠ»ΡΡ ΠΌΠ΅ΡΡΡ, ΡΡΠΎΠ±Ρ ΡΠ°Π·ΠΎΠ±ΡΠ°ΡΡΡΡ Π² ΡΡΠ±Π±ΠΎΡΠ½Π΅ΠΌ ΠΊΡΠΎΡΡΠ²ΠΎΡΠ΄Π΅ New York Times, ΠΈ ΡΡΠΎ ΠΏΠΎΡΡΠ΅Π±ΠΎΠ²Π°Π»ΠΎ ΠΏΠΎΡΡΠΎΡΠ½Π½ΠΎΠΉ ΠΏΡΠ°ΠΊΡΠΈΠΊΠΈ, Π² ΠΎΠ±ΡΠ΅ΠΉ ΡΠ»ΠΎΠΆΠ½ΠΎΡΡΠΈ ΠΎΠΊΠΎΠ»ΠΎ 46 ΡΠ°ΡΠΎΠ². ΠΠ½ ΠΌΠ½ΠΎΠ³ΠΎ Π·Π°Π½ΠΈΠΌΠ°Π»ΡΡ Π·Π°ΠΏΠΎΠΌΠΈΠ½Π°Π½ΠΈΠ΅ΠΌ Ρ ΠΎΠ±ΡΡΠ΅Π½ΠΈΠ΅ΠΌ ΠΏΠΈΡΡΠΌΡ, Π·Π°ΠΏΠΎΠΌΠΈΠ½Π°Π» ΠΎΡΠ²Π΅ΡΡ Π½Π° ΠΊΡΠΎΡΡΠ²ΠΎΡΠ΄Ρ ΠΈ ΡΠΎΡΠ΅ΡΠ°Π½ΠΈΡ ΠΏΠΎΠ΄ΡΠΊΠ°Π·ΠΎΠΊ, Π° ΡΠ°ΠΊΠΆΠ΅ ΡΠ΅ΡΠ°Π» Π·Π½Π°ΡΠΈΡΠ΅Π»ΡΠ½ΠΎΠ΅ ΠΊΠΎΠ»ΠΈΡΠ΅ΡΡΠ²ΠΎ Π³ΠΎΠ»ΠΎΠ²ΠΎΠ»ΠΎΠΌΠΎΠΊ. ΠΡΠ°ΠΊΡΠΈΠΊΠ° — ΡΡΠΎ ΠΎΠ³ΡΠΎΠΌΠ½Π°Ρ ΡΠ°ΡΡΡ Π³ΠΎΠ»ΠΎΠ²ΠΎΠ»ΠΎΠΌΠΊΠΈ, Π½ΠΎ Π½Π΅ Π΅Π΄ΠΈΠ½ΡΡΠ²Π΅Π½Π½Π°Ρ, ΠΏΠΎΡΠΊΠΎΠ»ΡΠΊΡ Π±ΠΎΠ»Π΅Π΅ ΡΠ»ΠΎΠΆΠ½ΡΠ΅ Π³ΠΎΠ»ΠΎΠ²ΠΎΠ»ΠΎΠΌΠΊΠΈ, ΡΠ°ΠΊΠΈΠ΅ ΠΊΠ°ΠΊ Π·Π°Π³Π°Π΄ΠΎΡΠ½ΡΠ΅ ΠΊΡΠΎΡΡΠ²ΠΎΡΠ΄Ρ, ΡΡΠ΅Π±ΡΡΡ Π΄ΠΈΠ²Π΅ΡΠ³Π΅Π½ΡΠ½ΠΎΠ³ΠΎ ΠΈ Π³ΠΈΠ±ΠΊΠΎΠ³ΠΎ ΠΌΡΡΠ»Π΅Π½ΠΈΡ.
Π§ΡΠΎ ΡΠ°ΠΊΠΎΠ΅ Π·Π°Π³Π°Π΄ΠΎΡΠ½ΡΠ΅ ΠΊΡΠΎΡΡΠ²ΠΎΡΠ΄Ρ?
ΠΡΠΈΠΏΡΠΈΠΊΠ° — ΡΡΠΎ ΡΠ°Π·Π½ΡΠ΅ ΡΠΈΠΏΡ ΠΊΡΠΎΡΡΠ²ΠΎΡΠ΄ΠΎΠ² Ρ Π΅ΡΠ΅ Π±ΠΎΠ»Π΅Π΅ ΡΠ»ΠΎΠΆΠ½ΠΎΠΉ ΠΈΠ³ΡΠΎΠΉ ΡΠ»ΠΎΠ², ΠΈ ΠΏΠΎΠ΄ΡΠΊΠ°Π·ΠΊΠΈ ΡΠ°ΡΡΠΎ Π½Π°ΠΌΠ΅ΡΠ΅Π½Π½ΠΎ Π²Π²ΠΎΠ΄ΡΡ Π² Π·Π°Π±Π»ΡΠΆΠ΄Π΅Π½ΠΈΠ΅.ΠΠ½ΠΈ, ΠΊΠ°ΠΊ ΠΏΡΠ°Π²ΠΈΠ»ΠΎ, Π±ΠΎΠ»Π΅Π΅ ΠΏΠΎΠΏΡΠ»ΡΡΠ½Ρ Π² ΠΠ΅Π»ΠΈΠΊΠΎΠ±ΡΠΈΡΠ°Π½ΠΈΠΈ ΠΈ ΠΠ²ΡΡΡΠ°Π»ΠΈΠΈ, ΠΠΎΠ²ΠΎΠΉ ΠΠ΅Π»Π°Π½Π΄ΠΈΠΈ ΠΈ ΠΠ°Π½Π°Π΄Π΅. ΠΡ ΡΠ°ΠΊΠΆΠ΅ ΠΌΠΎΠΆΠ½ΠΎ Π½Π°ΠΉΡΠΈ Π² Π½Π΅ΡΠΊΠΎΠ»ΡΠΊΠΈΡ ΠΏΡΠ±Π»ΠΈΠΊΠ°ΡΠΈΡΡ Π² ΠΠΌΠ΅ΡΠΈΠΊΠ΅, Π½Π°ΠΏΡΠΈΠΌΠ΅Ρ, The New Yorker .
ΠΡΠΈΠΌΠ΅ΡΠ°Π½ΠΈΠ΅ : ΠΠ΅ Π²ΡΠ΅ Π±ΡΠΈΡΠ°Π½ΡΠΊΠΈΠ΅ ΠΊΡΠΎΡΡΠ²ΠΎΡΠ΄Ρ Π·Π°Π³Π°Π΄ΠΎΡΠ½Ρ. ΠΡΠΎΡΡΠ²ΠΎΡΠ΄Ρ Π² Π±ΡΠΈΡΠ°Π½ΡΠΊΠΎΠΌ ΡΡΠΈΠ»Π΅ , ΠΊΠ°ΠΊ ΠΏΡΠ°Π²ΠΈΠ»ΠΎ, ΡΠΎΠ΄Π΅ΡΠΆΠ°Ρ Π±ΠΎΠ»ΡΡΠ΅ ΡΠ΅ΡΠ½ΡΡ ΠΊΠ²Π°Π΄ΡΠ°ΡΠΎΠ² Π² ΠΎΠΏΡΠ΅Π΄Π΅Π»Π΅Π½Π½ΠΎΠΌ ΡΠ·ΠΎΡΠ΅, ΡΠ΅ΠΌ ΠΊΡΠΎΡΡΠ²ΠΎΡΠ΄Ρ Π² Π°ΠΌΠ΅ΡΠΈΠΊΠ°Π½ΡΠΊΠΎΠΌ ΡΡΠΈΠ»Π΅; Π·Π°Π³Π°Π΄ΠΎΡΠ½ΡΠ΅ ΠΊΡΠΎΡΡΠ²ΠΎΡΠ΄Ρ — ΠΎΡΠ΄Π΅Π»ΡΠ½ΠΎΠ΅ Π΄Π΅Π»ΠΎ!
ΠΠ°ΠΊ ΡΠ°Π·Π³Π°Π΄ΡΠ²Π°ΡΡ Π·Π°Π³Π°Π΄ΠΎΡΠ½ΡΠ΅ ΠΊΡΠΎΡΡΠ²ΠΎΡΠ΄Ρ?
ΠΠ°Π³Π°Π΄ΠΎΡΠ½ΡΠ΅ ΠΊΡΠΎΡΡΠ²ΠΎΡΠ΄Ρ ΠΏΠΎΡ ΠΎΠΆΠΈ Π½Π° ΠΎΠ±ΡΡΠ½ΡΠ΅ ΠΊΡΠΎΡΡΠ²ΠΎΡΠ΄Ρ, Π½ΠΎ ΠΏΠΎΠ΄ΡΠΊΠ°Π·ΠΊΠΈ, ΠΊΠ°ΠΊ ΠΏΡΠ°Π²ΠΈΠ»ΠΎ, Π²ΠΊΠ»ΡΡΠ°ΡΡ ΠΈΠ³ΡΡ ΡΠ»ΠΎΠ², Π° ΡΠ°ΠΊΠΆΠ΅ ΠΈΠΌΠ΅ΡΡ ΠΎΡΠ΅Π½Ρ Π·Π°ΠΏΡΡΠ°Π½Π½ΡΠ΅, Π½Π°ΠΌΠ΅ΡΠ΅Π½Π½ΠΎ ΡΠ±ΠΈΠ²Π°ΡΡΠΈΠ΅ Ρ ΡΠΎΠ»ΠΊΡ ΠΏΠΎΠ΄ΡΠΊΠ°Π·ΠΊΠΈ.ΠΡΠ»ΠΈ Π²Ρ ΡΠ°Π·Π³Π°Π΄ΡΠ²Π°Π΅ΡΠ΅ Π·Π°Π³Π°Π΄ΠΎΡΠ½ΡΠΉ ΠΊΡΠΎΡΡΠ²ΠΎΡΠ΄, Π·Π½Π°ΠΉΡΠ΅, ΡΡΠΎ ΠΎΠΏΡΠ΅Π΄Π΅Π»Π΅Π½ΠΈΠ΅ ΠΎΠ±ΡΡΠ½ΠΎ ΡΠΊΡΡΡΠΎ Ρ Π²ΡΠ΅Ρ Π½Π° Π²ΠΈΠ΄Ρ, ΠΈ Π½Π΅ ΡΠ½ΡΠ²Π°ΠΉΡΠ΅!
Π Π·Π°Π²ΠΈΡΠΈΠΌΠΎΡΡΠΈ ΠΎΡ ΡΠ»ΠΎΠΆΠ½ΠΎΡΡΠΈ ΠΈ ΠΊΠΎΠ½ΠΊΡΠ΅ΡΠ½ΠΎΠ³ΠΎ ΡΠ΅Π΄Π°ΠΊΡΠΎΡΠ° Π³Π°Π·Π΅ΡΡ, Π²Ρ ΠΌΠΎΠΆΠ΅ΡΠ΅ Π½Π°ΠΉΡΠΈ Π·Π°Π³Π°Π΄ΠΎΡΠ½ΡΠ΅ ΡΠ°Π·Π³Π°Π΄ΠΊΠΈ ΠΊΡΠΎΡΡΠ²ΠΎΡΠ΄ΠΎΠ² ΡΠΎ ΡΡΡΠ°Π½Π½ΡΠΌΠΈ ΡΠ΅ΡΡΠ°ΠΌΠΈ Π²ΡΠΎΠ΄Π΅ ΡΡΠΈΡ :
- ΠΠ°ΠΉΠ΄ΠΈΡΠ΅ Π°Π½Π°Π³ΡΠ°ΠΌΠΌ , Π³Π΄Π΅ Π²Π°ΠΌ ΠΏΡΠΎΡΡΠΎ Π½ΡΠΆΠ½ΠΎ ΠΏΠ΅ΡΠ΅ΡΡΠ°Π²ΠΈΡΡ Π±ΡΠΊΠ²Ρ, ΡΡΠΎΠ±Ρ Π½Π°ΠΉΡΠΈ ΠΎΡΠ²Π΅Ρ. ΠΠ°ΠΏΡΠΈΠΌΠ΅Ρ, Β«Π΄Π΅Π½Π΅ΠΆΠ½ΡΠ΅ ΡΠΊΠΈΠ΄ΠΊΠΈΒ» Π±ΡΠ΄ΡΡ Π½Π°Π·ΡΠ²Π°ΡΡΡΡ Β«Π ΠΎΠΆΠ΄Π΅ΡΡΠ²ΠΎΒ».
- ΠΠ½ΠΎΠ³ΠΈΠΌ ΡΠ΅Π΄Π°ΠΊΡΠΎΡΠ°ΠΌ Π½ΡΠ°Π²ΠΈΡΡΡ ΠΎΠΌΠΎΡΠΎΠ½ΠΎΠ² , ΠΊΠΎΡΠΎΡΡΠ΅ ΠΏΡΠ΅Π΄ΡΡΠ°Π²Π»ΡΡΡ ΡΠΎΠ±ΠΎΠΉ ΡΠ»ΠΎΠ²Π°, ΠΊΠΎΡΠΎΡΡΠ΅ Π·Π²ΡΡΠ°Ρ ΠΊΠ°ΠΊ Π΄ΡΡΠ³ΠΈΠ΅ ΡΠ»ΠΎΠ²Π°, Π½ΠΎ ΠΏΠΈΡΡΡΡΡ ΠΏΠΎ-Π΄ΡΡΠ³ΠΎΠΌΡ.Β«ΠΡ Β», Β«ΠΎΠ½ΠΈΒ» ΠΈ Β«ΡΠ°ΠΌΒ» — ΠΎΠΌΠΎΡΠΎΠ½Ρ.
- Π Π°Π·Π²ΠΎΡΠΎΡ Π²ΠΊΠ»ΡΡΠ°Π΅Ρ Π² ΡΠ΅Π±Ρ ΠΏΠ΅ΡΠ΅ΡΡΠ°Π½ΠΎΠ²ΠΊΡ Π±ΡΠΊΠ² ΠΏΠΎΠ΄ΡΠΊΠ°Π·ΠΊΠΈ, ΡΡΠΎΠ±Ρ ΠΏΠΎΠ»ΡΡΠΈΡΡ ΠΎΡΠ²Π΅Ρ. ΠΠ°ΠΏΡΠΈΠΌΠ΅Ρ, ΠΎΠ±ΡΠ°ΡΠ½Π°Ρ ΡΡΠΎΡΠΎΠ½Π° Β«ΡΡΡΒ» — ΡΡΠΎ Β«Π΅ΡΡΡΒ».
- ΠΡΠΈ ΡΠ΄Π°Π»Π΅Π½ΠΈΠΈ Π½ΡΠΆΠ½ΠΎ ΡΠ΄Π°Π»ΠΈΡΡ ΠΎΠ΄Π½Ρ ΠΈΠ»ΠΈ Π΄Π²Π΅ Π±ΡΠΊΠ²Ρ, ΡΡΠΎΠ±Ρ ΠΏΠΎΠ»ΡΡΠΈΡΡ Π΄ΡΡΠ³ΠΎΠΉ ΠΎΡΠ²Π΅Ρ. ΠΠ°ΠΏΡΠΈΠΌΠ΅Ρ, Β«ΠΏΠΎΡΠΈΠ½ΠΈΡΡΒ» Π±Π΅Π· Π±ΡΠΊΠ²Ρ ΠΌΠΎΠΆΠ΅Ρ Π±ΡΡΡ Β«ΠΊΠΎΠ½Π΅ΡΒ» ΠΈΠ»ΠΈ Β«ΠΌΡΠΆΡΠΈΠ½ΡΒ».
- ΠΠΎΠ½ΡΠ΅ΠΉΠ½Π΅ΡΡ ΠΏΠΎΠ΄ΡΠ°Π·ΡΠΌΠ΅Π²Π°ΡΡ, ΡΡΠΎ Π²Π°ΠΌ Π½ΡΠΆΠ½ΠΎ Π±ΡΠ΄Π΅Ρ Π²ΡΡΠ°Π²ΠΈΡΡ ΡΠ»ΠΎΠ²ΠΎ Π²Π½ΡΡΡΠΈ Π΄ΡΡΠ³ΠΎΠ³ΠΎ ΡΠ»ΠΎΠ²Π°, ΠΎΠ±ΡΡΠ½ΠΎ ΠΎΠ±ΠΎΠ·Π½Π°ΡΠ°Π΅ΠΌΠΎΠ³ΠΎ Π² ΠΏΠΎΠ΄ΡΠΊΠ°Π·ΠΊΠ΅ ΡΠ°ΠΊΠΈΠΌΠΈ ΡΠ»ΠΎΠ²Π°ΠΌΠΈ, ΠΊΠ°ΠΊ Β«Π²Π½ΡΡΡΠΈΒ» ΠΈΠ»ΠΈ Β«ΠΎΠΊΡΡΠΆΠ°ΡΡΠΈΠΉΒ».Β»
ΠΠΎΠ½Π΅ΡΠ½ΠΎ, ΡΡΠΎ ΠΌΠΎΠΆΠ΅Ρ Π±ΡΡΡ Π΄Π°ΠΆΠ΅ ΡΠ»ΠΎΠΆΠ½Π΅Π΅, Π½Π°ΠΏΡΠΈΠΌΠ΅Ρ, ΠΌΠ΅ΡΠ°ΠΏΠ°Π·Π»ΠΎΠ² , ΠΊΡΠΎΡΡΠ²ΠΎΡΠ΄ΠΎΠ², ΠΊΠΎΡΠΎΡΡΠ΅ ΠΎΡΠΊΡΡΠ²Π°ΡΡ Π΅ΡΠ΅ Π±ΠΎΠ»ΡΡΠ΅ Π³ΠΎΠ»ΠΎΠ²ΠΎΠ»ΠΎΠΌΠΎΠΊ, ΠΈΠ»ΠΈ 2Pcs AC 20A / 125V 15A / 250V DPST 4 ΠΊΠΎΠ½ΡΠ°ΠΊΡΠ° 2 ΠΏΠΎΠ·ΠΈΡΠΈΠΈ ON / Off Boat Roc , Π² ΠΊΠΎΡΠΎΡΠΎΠΌ ΠΏΠΎΠ΄ΡΠΊΠ°Π·ΠΊΠΈ ΠΈΠΌΠ΅ΡΡ Π±ΠΎΠ»Π΅Π΅ ΠΎΠ΄Π½ΠΎΠ³ΠΎ ΠΏΡΠ°Π²ΠΈΠ»ΡΠ½ΠΎΠ³ΠΎ ΠΎΡΠ²Π΅ΡΠ°.


ΠΠ°ΠΊ ΡΠΎΠ±ΡΡΠ²Π΅Π½Π½ΠΎ ΠΈ ΡΠ°ΠΌΡΠ΅ Π΄ΠΎΡΠΎΠ³ΠΎΡΡΠΎΡΡΠΈΠ΅ Π²Π°ΡΠΈΠ°Π½ΡΡ ΠΎΡΠ½Π°ΡΠ΅Π½ΠΈΡ Π²ΡΠ΄Π²ΠΈΠΆΠ½ΡΡ
ΡΡΠΈΠΊΠΎΠ² β ΡΠ°Π½Π΄Π΅ΠΌΠ±ΠΎΠΊΡΡ. ΠΠ½ΠΈ ΡΠ°ΠΊΠΆΠ΅ ΡΡΡΠ°Π½Π°Π²Π»ΠΈΠ²Π°ΡΡΡΡ ΠΏΠΎ Π½ΠΈΠΆΠ½Π΅ΠΌΡ ΡΡΠΎΠ²Π½Ρ ΠΊΠΎΡΠΎΠ±Π° ΡΡΠΈΠΊΠ°.


Π‘ΠΈΠ»ΡΠ½ΡΠ΅ ΡΠ΄Π°ΡΡ ΠΌΠΎΠ³ΡΡ ΡΠ°ΡΠΊΠΎΠ»ΠΎΡΡ ΡΠΎΡΡΠ°Π²Π»ΡΡΡΠΈΠ΅ ΠΈ ΠΏΠΎΠ»Π½ΠΎΡΡΡΡ Π²ΡΠ²Π΅ΡΡΠΈ ΠΈΡ
ΠΈΠ· ΡΡΡΠΎΡ. ΠΡΠΏΡΠ°Π²Π»ΡΡΡ ΠΊΠΎΠ½ΡΡΡΡΠΊΡΠΈΡ Π½Π°Π΄ΠΎ Π°ΠΊΠΊΡΡΠ°ΡΠ½ΠΎ, Π·Π°ΠΆΠΈΠΌΠ°Ρ Π½Π΅ΠΈΡΠΏΡΠ°Π²Π½ΡΠ΅ ΡΠ»Π΅ΠΌΠ΅Π½ΡΡ Π² ΡΠΈΡΠΊΠΈ;
ΠΡΠ»ΠΈ Π΄Π½ΠΎ ΡΡΠΈΠΊΠ° ΠΈΠ· ΠΠΠ Π½Π°ΠΊΠ»Π°Π΄Π½ΠΎΠ΅, ΡΠΎ Π²ΡΡΠΎΡΠ° Ρ ΡΡΠ΅ΡΠΎΠΌ ΠΠΠ Π±ΡΠ΄Π΅Ρ 153 ΠΌΠΌ. ΠΠΎ, Π΄Π»Ρ ΡΠ°ΡΡΠ΅ΡΠΎΠ² Π²ΡΠ΅ ΡΠ°Π²Π½ΠΎ Π±Π΅ΡΠ΅ΠΌ 150 ΠΌΠΌ.

ΠΠ²Π΅Π΄ΠΈΡΠ΅ ΡΠΈΡΠ»ΠΎ, ΠΌΠ΅Π½ΡΡΠ΅Π΅ ΠΈΠ»ΠΈ ΡΠ°Π²Π½ΠΎΠ΅ 102.