Как устанавливается вытяжка: Как установить вытяжку на кухне над плитой своими руками
Как установить вытяжку Kuppersberg
Германский производитель Kuppersberg предлагает самый широкий ассортимент вытяжек. Продукция этого популярного бренда отличается разнообразием стилей, высоким качеством, доступными ценами. О том, как установить вытяжку Kuppersberg, подробно рассказывается в инструкциях и приложенных схемах. Покупатели могут подобрать для себя любую модель — от компактных встроенных для малогабаритной кухни до объемных купольных в стиле ретро или наклонных и островных для современных интерьеров.
Высота установки всех вытяжек над электрическими плитами должна составлять не менее 650 мм, а над газовыми — не менее 750 мм. В целях безопасности рекомендуется подключать их через дополнительный автоматический выключатель 6А.
Встраиваемые модели — например, из коллекций SLIMLUX и INLINEA — устанавливаются в подвесной шкаф и занимают минимум места на кухне. Перед установкой следует проверить работу прибора и убедиться, что все функции доступны.
Предварительно должно быть установлено и оборудовано отверстие для выхода воздуха и соединения выхлопной трубы. Вытяжка размещается в шкафу и закрепляется четырьмя винтами М5×3 в заранее подготовленных отверстиях диаметром 6-7 мм в нижней полке шкафа. Для оптимального использования в режиме отвода воздуха выходной воздуховод не должен иметь длину более 4 метров и включать в себя более двух колен. Для работы в режиме рециркуляции необходимо установить угольный фильтр.
Модели Куперсберг для настенного монтажа отличаются простотой крепления, их можно разместить в любой кухне. В комплект каждой модели входит набор крепежа. Для установки подобной модели необходимо проделать отверстия для дюбелей, ввинтить шурупы, а потом закрепить на стене само устройство. После этого следует присоединить прибор к вентиляции и установить угольный фильтр для работы в режиме рециркуляции.
Стильные и современные островные модели предназначаются для размещения в просторной кухне и крепятся к потолку.
Среди них можно выделить приборы из коллекции TUBA цилиндрической формы. Для установки в потолке проделываются 4 отверстия диаметром 8 мм, в них закрепляются винты, на которые и крепится корпус. Рекомендуется размещать вытяжку точно над центром варочной панели. Затем необходимо присоединить прибор к вентиляции, после этого на него надевается декоративный кожух и устанавливаются лампы освещения.
Элегантные наклонные вытяжки устанавливаются на стену: благодаря продуманной конструкции они подойдут для любой кухни. Для монтажа понадобятся 4 отверстия, в которые вставляются дюбеля и закрепляются шурупы. Корпус устройства устанавливается на стену при помощи крюков и присоединительного кронштейна, а затем сверху закрепляется декоративный кожух.
Купольные вытяжки украсят кухню в классическом стиле. Они также монтируются на стену над варочной панелью: для этого просверливаются отверстия для установки дюбелей, вкручиваются шурупы, после чего на них навешивается корпус.
После этого размечаются отверстия для дополнительного крепления, прибор фиксируется на стене окончательно, а затем происходит установка фильтров на место. Крепление к воздуховоду не производится, если устройство будет работать только в режиме рециркуляции.
Монтаж Т-образных моделей — например, из коллекции Kaminox — также производится настенным способом. Для их установки высверливаются отверстия диаметром 7-8 мм на требуемой высоте, в них вставляются дюбели и вкручиваются шурупы. На шурупы навешивается корпус устройства, после чего, если планируется работа в режиме отвода, на патрубке вытяжки закрепляется переходник воздуховода. После этого на корпусе устанавливается телескопический кожух дымохода. Верхняя панель кожуха поднимается под потолок, чтобы закрыть воздуховод, и закрепляется специальной планкой.
Особой точности требует установка угловых вытяжек модели ANABEL. Они также закрепляются на стене: перед размещением необходимо снять фильтры.
Модель навешивается при помощи креплений типа «замочная скважина», после чего размечаются отверстия для дополнительного крепежа. После подключения к вентиляции фильтр возвращается на прежнее место.
Если вы затрудняетесь с самостоятельной установкой вытяжки, на помощь придут специалисты из сервисных центров.
Как сделать вытяжку в частном доме: кухня, ванная, туалет, газовая
Представьте, Вы заходите в новый, любовно созданный Вами дом, с наслаждением вдыхаете воздух своего жилища, а ощущаете запахи подвала, служебных помещений или недавнего ремонта. Чтобы ощущать только ароматы домашнего уюта, нужно знать, как сделать вытяжку в частном доме.
Вытяжка в частном доме: законы и закономерности
Качество воздуха в доме довольно быстро сказывается на качестве жизни в нем – сон, здоровье и даже настроение жителей напрямую зависят от воздухообмена. Установка вытяжки в частном доме собственными усилиями зачастую делается с нарушениями от недостатка знаний или навыков, поэтому прежде чем заняться ее обустройством, следует разобраться с теорией.
Как правильно установить вытяжку в частном доме?
Прежде всего нужно помнить, что в данном случае речь идет не об одном вытяжном отверстии, а о системе вытяжки. В частном доме необходимо обеспечить вытяжкой три вида комнат:
- нежилые служебные помещения,
- нежилые вспомогательные помещения,
- жилые комнаты.
Вентиляция в деревянном доме в служебных помещениях напрямую связана с пожарной безопасностью. Такая вытяжная вентиляция в частном доме устанавливается в котельной или газовой комнате, над газовой плитой на кухне, а также во все помещения, где есть открытый огонь – например, в каминной комнате. Вытяжка во вспомогательных помещениях, к которым можно отнести подвалы, погреба и санузлы, прежде всего отвечает за нормализацию влажности в этих комнатах и необходима для защиты от образования плесени
. Последняя, в свою очередь, может нанести существенный вред имуществу, а также небезопасна для самого человека. Вытяжная вентиляция в жилых комнатах устраивается, прежде всего, для комфорта жильцов.
Ее задача – обеспечить полноценный воздухообмен в доме. При ошибках устройства вытяжки в частном доме своими руками жилые помещения наименее критичны – здесь недостатки можно компенсировать проветриванием.
Вытяжки в частном доме: виды
Вытяжная вентиляция в частном доме может быть двух видов:
- Естественная. Такая вытяжка функционирует за счет правильного расположения вытяжного и приточного клапанов и разницы давлений между ними. При этом вытяжные отверстия расположены выше приточных, и воздухоотводящий канал ведет на чердак или крышу. Разница в высоте и температуре свежего и отработанного воздуха создает тягу и механически запускает вытяжку. Естественные вытяжки можно использовать в жилых помещениях и, например, на кухне, если по техническим причинам нет возможности сделать принудительную вытяжку.
- Принудительная. Такая вытяжная вентиляция в доме запускается за счет электрических осевых вентиляторов, которые “насильно выгоняют” отработанные воздушные массы.
Принудительные вытяжки подходят для служебных и вспомогательных помещений, так как работают без сбоев и защищают комнаты от опасности пожара или превышения уровня влажности.
Кроме того, вытяжную вентиляцию в частном доме можно разделить и по другому принципу. В зависимости от того, как устроена система вытяжки, выделяют два вида:
- централизованная,
- децентрализованная.
Первая отличается наличием общих вентиляционных шахт и системой каналов в стенах, которые управляются из единого центра. Централизованная вентиляция закладывается на этапе строительства или капитального ремонта и обязательно оснащается вентиляторами для принудительной циркуляции воздуха, каналы могут располагаться как горизонтально, так и вертикально. Децентрализованную вытяжку можно устроить на любом этапе строительства, при таком варианте каждое из помещений оснащается отдельным вентканалом для вытяжки, которую можно сделать естественной или принудительной – в зависимости от потребностей помещения.
Схема расположения каналов в данном случае создается индивидуально под каждую комнату, в зависимости от ее назначения.
Вытяжка на кухне: задачи и варианты решения
Вытяжка на кухне предназначена для удаления запахов, паров, копоти и углекислого газа, который образуется в процессе готовки. В данном случае многое зависит и от плиты, и от возможностей помещения. Вытяжная вентиляция на кухне в частном доме хорошо работает при наличии вытяжного зонта, который располагается непосредственно над плитой. Кроме того, если на кухне установлен гриль или эта функция предусмотрена у плиты или духового шкафа, вытяжной зонт избавит Вас от лишних проветриваний и угроз возгорания.
Размер зонта стоит подбирать исходя из параметров плиты – зонт должен быть шире минимум на 10 см. Зонт должен располагаться на высоте 0,7–1 м от плиты.
Вентиляция на кухне должна обеспечивать полный воздухообмен минимум раз в сутки, минимум 50 кубометров воздуха. Если Вы хотите сделать кухонную вытяжку в частном доме своими руками, убедитесь, что для работы вытяжного зонта есть отдельная розетка, затем устройте отверстия под крепления, установите дюбели или саморезы и проведите монтаж зонта.
Вентиляционная труба от зонта проходит через стену или потолок до общей шахты, рекомендуется использовать гофрированные трубы. Вытяжка для газовой плиты в частном доме может быть соединена с воздуховыводящим каналом котельной или дымоходом камина или оснащена отдельной трубой – не уже 12 см.
Санузел: вытяжка в ванной и туалете
Вентиляция в подобных помещениях главным образом служит для нормализации уровня влажности и защиты от появления плесени и, во вторую очередь, для комфорта жильцов. Обычно воздухоотвод в ванной комнате в частном доме создается за счет устройства отдельных отверстий для вывода воздуха, которые подключаются к общей системе вытяжной вентиляции. Отвод воздуха в санузле должен быть обязательно, ведь при его отсутствии появится грибок, который портит сантехнику и другие находящиеся в помещении вещи, включая отделочные материалы стен и напольные покрытия. В конечном счете их замена обойдется дороже хорошего вытяжного вентилятора. Учитывая назначение помещений, в данном случае вполне можно сделать качественную естественную вентиляцию:
- Расположить вытяжные отверстия под потолком,
- Провести канал воздуховода до основной вентиляционной шахты.

Однако если в помещениях на стенах все равно образуется влага, стоит усилить естественную вытяжку мощным вытяжным вентилятором.
Вытяжка в подвале
Подвальные помещения относятся к вспомогательным и, ввиду своего расположения, также склонны к повышенной влажности, а значит и появлению грибков. В подвале такие “соседи” крайне нежелательны, так как могут сказаться не только на всем, что находится в помещении, но и на самочувствии жильцов дома. Также плохая вытяжка способствует появлению затхлых и сырых запахов
в подвале, которые постепенно поднимаются в дом. Как сделать вытяжку в подвале частного дома? Прежде всего стоит ориентироваться на глубину и размеры подвала. При небольшой глубине подвала и скромных размерах можно ограничиться продухами в фундаменте, которые стоит прикрыть защитными решетками. Если подвал глубже 2 метров и широкий, лучше всего позаботиться о полноценной вытяжке. Вытяжная система в подвале частного дома своими руками устраивается следующим образом:
- Необходимо проложить два воздуховода – один для притока воздуха, другой для вывода, при этом отверстие приточного канала должно быть расположено ниже вытяжного.

- Для оптимальной циркуляции воздуха расположить вытяжку нужно в противоположном от притока углу подвала.
- Оба воздуховода должны иметь выход на крышу. Вытяжной канал можно расположить рядом с дымоходом.
- Не забудьте провести теплоизоляцию каналов для предотвращения появления конденсата.
Для более качественной вытяжной вентиляции в подвале частного дома можно оснастить каналы вентилятором для принудительной вытяжки и усилить поток воздуха. Также вытяжные вентиляторы исправят ситуацию, если нет возможности сделать высокие каналы для вывода воздуха и создать естественную тягу. Если Вы создаете общую вытяжную вентиляцию в частном доме своими руками, воздуховоды вытяжки подвала можно вывести в общую вентиляционную шахту.
Вытяжка в канализации: обонятельный комфорт
Если в доме предусмотрена автономная канализация, стоит подумать и об отдельной вентиляции для нее. В данном случае основная задача вытяжной вентиляции – своевременно выводить неприятные запахи
и не допускать их попадания в дом.
Самый простой вариант отвода отработанного воздуха в этом случае – разместить дополнительную трубу, аналогичную канализационным, на выводе канализации и вывести под крышу. Таким образом загрязненный воздух будет своевременно удаляться, минуя жилые помещения.
Для эффективной работы вытяжки в канализации нужно обеспечить полную герметичность всех частей канализации, чтобы исключить незапланированные движения воздушного потока.
Вытяжка в газовой: безопасное решение
Еще из школьного курса физики мы все помним – для горения необходим кислород. Именно поэтому вентсистема газовой комнаты наиболее важна: от нее зависит и тепло дома, и безопасность работы котельной. Кроме того, в газовой собираются все продукты горения – угарный газ, дым и другие, и экономия на вытяжке в котельной может обернуться огромным ущербом или даже стоить жизни. Качественная вытяжная вентиляция в частном доме своевременно отводит продукты горения и лишнее тепло, поэтому требований к ее устройству больше, чем к любой другой.
- Нужен отдельный канал подачи воздуха в печь для равномерного горения. Для закрытой камеры котла подойдет коаксиальный канал, для открытой – обычная венттруба.
- Вытяжная система котельной должна быть герметичной, чтобы избежать утечек угарного газа.
- Сам канал отвода воздуха должен быть оснащен вентилятором с обратным клапаном – так обеспечивается принудительный отток воздуха и предотвращается возврат угарного газа в комнату.
- Один дымоход не должен обслуживать больше двух установок, например котлов. Поэтому если есть несколько колонок, стоит продумать отдельную вытяжку под газовый котел.
- Швы дымоходов также должны быть герметичными, особенно в той части, которая прилегает к жилым помещениям, что особенно важно в многоэтажных домах. При этом герметик должен быть огнеупорным, а в местах выхода труб наружу стоит установить огнестойкие прокладки.
- Трубы также должны быть огнеупорными, поэтому для дымоходов чаще всего используют металлические, из нержавейки, или асбестовые трубы.
Верхнюю часть над чердачным пространством можно устроить керамическими материалами или кирпичной кладкой. - Диаметр вытяжки в котельной должен быть не менее 15 см.
Кроме того, в помещении котельной должны быть предусмотрены окна или другие приточные каналы для постоянного проветривания – это способствует нормальной циркуляции воздуха и обеспечивает комфортное нахождение в газовой. Для большей безопасности можно установить датчики температуры и угарного газа в котельной и отслеживать их показатели.
Вытяжка в газовой в частном доме: пошаговая инструкция
Если Вы делаете вытяжную вентиляцию в доме самостоятельно, то при работе в котельной можно придерживаться следующего порядка действий:
- Выбрать место возле котла или колонки для вытяжки;
- Просверлить перфоратором отверстие в стене;
- Обернуть трубу воздуховода огнестойким материалом и вставить в отверстие;
- Установить в вытяжной канал вентилятор для принудительного хода воздуха;
- Соединить воздуховод с отверстием на крыше.

Вытяжка через стену: простое решение для жилых комнат
В жилой комнате вполне можно обойтись таким простым решением, как вентиляция сквозь стену. Подробно ее устройство мы уже описывали в другой статье
, поэтому сейчас коротко осветим плюсы этого метода. Грубо говоря, вентиляция сквозь стену
– наиболее короткий путь для поступления воздуха и его же отвода, такая вентиляция фактически дублирует оконные проемы, но при этом не допускает утечек тепла, попадания уличного холода и шума. При устройстве вытяжки на улицу обязательно нужно предусмотреть утепление вентканала. Чем лучше утеплить? Идеально подходят тепло- и шумопоглощающие материалы, такие как поролон и вспененные синтетические трубы. Вентиляция через стену в коттедже естественным образом хорошо работает только при наличии нормального притока. Идеальным решением в такой ситуации может стать функциональная модель приточной вентиляции, такой как бризер
– он обеспечит постоянный приток свежего воздуха в помещение без шума, пыли и холода с улицы и будет стимулировать работу естественной вытяжки.
Вне зависимости от типа помещения и вида вытяжной вентиляции в своем доме, который Вы выберете, стоит уделить ей очень пристальное внимание, так как во многом от микроклимата зависит, станет ли дом уютным семейным гнездом или превратится в постоянный источник проблем.
Безопасного Вам воздуха и успеха в достижении целей!
как ее правильно выбрать и установить
Если вы хотите устранить запах приготовления пищи, то в этом вам эффективно поможет кухонная вытяжка, установленная над плитой. Чтобы заиметь это устройство, достаточно лишь правильно подобрать его и установить, снабдив воздуховодом.
Что вы узнаете
Кухонная вытяжка: что действительно важно при выборе
Решив, что вытяжка на кухню вам действительно необходима, следует определиться, как же ее правильно выбрать. А делается это, исходя из оценки возможностей конкретного прибора и, конечно, исходя из размеров семейного кошелька и степени его наполненности.
Итак, рассмотрим те параметры, которые сказываются на выборе этого устройства.
Система фильтров
Если понравившаяся вам вытяжка относится к рециркуляционному типу, то она обязательно должна быть оснащена двумя ступенями фильтрации. Первая из них отвечает за устранение запахов, а вторая – за отделение масляных частиц и копоти.
Очистка воздуха от масла может выполняться заменяемой пластиковой кассетой или металлическими фильтрами. Помните, что последние следует периодически чистить.
Мощность вентилятора
Решая, какую вытяжку следует выбрать, надо проверить мощность ее вентилятора, понимая, что слабый вентилятор может оказаться недостаточно эффективным, а чересчур мощный – чрезмерно шумным. Если у вас хватит творческих сил и математических способностей, для определения необходимой мощности вентилятора вы можете произвести расчеты, воспользовавшись научно обоснованной точкой отсчета: по правилам, заложенным в санитарные нормы, кухонный воздух должен ежечасно заменяться раз 10-12.
Панель управления
Выбор вам предстоит сделать среди трех предлагаемых торговлей опций:
- панели с удобным в использовании сенсорным управлением;
- слайдерные панели, где управление производится механическим ползунком;
- панели с привычными и дорогими сердцу многих кнопками.
Если вам захочется иметь вытяжку с сенсорным управлением, не забывайте, что для вас она обойдется дороже, чем с кнопочным.
Вытяжка и ее габариты
С этим параметром здорово мудрствовать не придется. Просто помните, что размеры вытяжки должны соответствовать размерам варочной поверхности.
Полезные дополнительные прибамбасы
Если средства позволяют вам думать о приобретении дорогой вытяжки, то вы вполне можете ожидать, что в приобретаемом устройстве могут иметься дополнительные и очень полезные функции, самыми распространенными из которых являются остаточный ход вентиляторов и периодическое включение.
Смысл остаточного хода состоит в том, что вентилятор продолжает тихонько работать в течение заданного времени даже после выключения вытяжки.
Эта функция обеспечивает практически полное очищение кухонных воздушных масс, набравших варочно-жарочных ароматов при готовке.
Периодическое включение – это полная гарантия постоянного поступления свежего воздуха. При таких включениях вентилятор работает на минимальной мощности, обеспечивающей практически полную бесшумность прибора.
Какое встроенное освещение лучше
Ответ на этот вопрос однозначен. Лучше всего, чтобы в вытяжке были установлены галогенки. Именно при такой подсветке можно видеть все готовящиеся блюда в совершенно натуральном цвете. Если же говорить о лампах накаливания или о люминесцентном освещении, то они здорово искажают практически все цвета.
Как подготовиться к установке вытяжки
Этот проект является относительно легким, почти каждый может выполнить работу, не встречая никаких проблем. Тем не менее, вы должны внимательно прочитать инструкции производителя перед началом фактической установки. Наиболее важным шагом является правильная установка вытяжки на нужной высоте.
Если нет электрической розетки рядом с вытяжкой, вы должны вызвать электрика, чтобы сделать проводку. Хотя этот шаг не очень сложный, и мы могли бы кратко объяснить, как сделать подключение, мы рекомендуем вам не рисковать, когда речь идет о собственной безопасности.
Для того, чтобы установить кухонную вытяжку, вам необходимо следующее:
Материалы
- Кухонная вытяжка,
- дымоход
Инструменты
- Защитные перчатки,
- защитные очки,
- перфоратор,
- рулетка,
- уровень
Советы
Носите защитные очки, при резке материалов, читайте инструкции производителя, прежде чем устанавливать вытяжку
Время
2 часа
Установка кухонной вытяжки
Во-первых, определитесь, где вы будете устанавливать кухонную вытяжку. Как правило, прибор должен быть по центру, на высоте примерно 60 см над кухонной плитой. Отметьте место, где вы будете устанавливать вытяжку.
После этого вы должны решить, где вы будете вырезать отверстие, чтобы установить вытяжную трубу.
Просверлите отверстие для воздуховода.
После вырезания отверстия в стене, вы должны проверить, войдет ли в него воздуховод.
Умный совет: Измерьте диаметр воздуховода перед тем, как сверлить под него отверстие.
Вам нужно использовать монтажный шаблон, входящий в комплект, чтобы отметить отверстия для кронштейна который будет поддерживать вытяжку.
Умный совет: Перед сверлением отверстий, убедитесь, что нет никаких труб или кабелей в стене.
Отметьте отверстия на стене и проверьте их с помощью лазерного или спиртового уровня.
Умный совет: используйте низкую скорость на дрели, в противном случае сверло может соскользнуть с отметки. Убедитесь, что сверло перпендикулярно к стене.
Убедитесь, что винты зафиксированы на месте должным образом, иначе они не смогут выдержать вес кухонной вытяжки.
Следующим этапом проекта является настройка длины дымохода. Читайте инструкции производителя перед нарезкой гофры нужного размера.
Умный совет: используйте ножницы по металлу, чтобы отрезать трубу нужного размера.
Попросите другого человека, помочь вам установить кухонную вытяжку на кронштейны или опоры.
На этом фото вы видите крепежные кронштейны для вытяжки. Система креплений может отличаться в зависимости от модели или производителя вытяжки, так что вы должны следовать инструкциям в паспорте устройства.
Прикрепите дымоход к вытяжке, как это сделать так же обычно указано в инструкции.
Последнее, но не менее важное, вы должны проверить как работает ваша вытяжка. Если вы читали инструкции производителя и последовали нашим советам, все что вам нужно сделать, это подключить плиту, вытяжку и проверить их в работе.
Спасибо за чтение нашей статьи. Если у вас есть проекты, которыми вы хотите поделиться, приглашаем вас на наш форум.
Не забудьте поделиться нашими проектами с друзьями, используя кнопки социальных сетей.
Как установить вытяжку на кухне над плитой своими руками
Вытяжки на кухне необходимы для устранения неприятных запахов, которые образуются во время приготовления пищи. К потолку поднимаются испарения от готовящихся блюд. Если отверстие для вытяжки загрязненного воздуха не справляется с его объемом, то через какое-то время в кухне станет тяжело дышать. Чтобы такого не происходило, необходимо установить кухонную вытяжку. Она обеспечит циркуляцию воздуха и будет забирать из помещения уже загрязнённые массы.
Кухонные вытяжки бывают разных видов. Они отличаются режимами работы и способами установки. Поэтому, прежде чем монтировать вытяжку в свою кухню, необходимо сначала уточнить, какой режим работы необходим именно в вашем случае, а после- как правильно установить вытяжку на кухне?
Режимы работы вытяжек
Все кухонные вытяжки отличаются процессом работы. Для каждого помещения подходит свой режим забора загрязненного воздуха.
Существует всего два типа работы кухонных вытяжек.
По режимам работы устройства для принудительной вентиляции на кухне бывают следующих видов.
Проточные
В таких устройствах воздух из помещения всегда выводится на улицу. Обычно монтаж такой вытяжки требует специальных навыков, так как необходимо соединить воздуховод вытяжки и трубу дымохода. Воздухообмен обеспечивается встроенным вентилятором, из-за этого увеличивается сила тяги. Поэтому вытяжки с проточным режимом работы считаются мощнее и лучше для больших помещений. Вентилятор забирает отработанный воздух из кухни в дымоход и создаёт перепад давление. Благодаря этому в кухню поступает чистый воздух, обогащенный ионами.
Проточные вытяжки считаются лучше циркуляционных, так как они могут работать как в режиме отвода, так и рециркуляции. Также в вытяжках с режимом отвода на вентиляторе устанавливают фильтры, которые задерживают жир. Если таких фильтров не будет, то жир начнет скапливаться на лопастях вентилятора и на стенках всей конструкции.
Этот фильтр нужно периодически менять. Точный срок его службы устанавливает производитель.
Если вы выбрали более бюджетную модель, то в ней может не быть фильтров совсем. Тогда придется ухаживать за вытяжкой тщательнее. Необходимо будет постоянно удалять скопившийся слой жира.
Плюсы проточных вытяжек:
- Высокая мощность работы;
- Не нужны расходники, установленные жировые фильтры служат по несколько лет;
- Можно встроить в кухонную мебель;
- Не шумит так, как циркуляционные.
Минусы:
- Постоянно должно быть открыто окно, так как вытяжка забирает воздух из кухни и не возвращает;
- В зимнее время забирает нагретый воздух, который заменяется холодным;
- Плита должна быть рядом с вентиляционным отверстием, чтобы не проводить сложный монтаж.
Циркуляционные
Такие вытяжки не выводят грязный воздух из помещения на улицу. Внутри устройства установлены фильтры, проходя через которые воздух очищается.
После этого он возвращается обратно в кухню. Кроме фильтра для соглашения жира, установлен ещё и угольный , который устраняет неприятные запахи. Чтобы в кухне всегда было чисто и приятно пахло, нужно вовремя заменять оба фильтра.
Обычные фильтры для очищения воздуха от жира сделаны из синтепона или флизелина. Они требуют частой замены. Чтобы менять фильтры реже, можно поставить многоразовый металлический. Такие фильтры делают из стали или алюминия. Ухаживать за ними просто- достаточно периодически мыть их проточной водой с добавлением моющего средства для посуды.
В некоторых моделях используют не один большой металлический фильтр, а два-три маленьких, которых удобнее очищать.
Угольный фильтр может прослужить от нескольких месяцев до нескольких лет в зависимости от степени загрязнённости воздуха в кухне.
Преимуществом циркуляционных вытяжек является простота монтажа. Их не нужно подключать к дымоходу. Но популярностью такие устройства не пользуются, так как не намного дешевле проточным, но значительно слабее..png)
Чаще всего циркуляционные вытяжки ставят там, где вентиляционная система не ставится с сильным потоком воздуха от мощных моделей. Например, в старых многоквартирных или частных домах.
Достоинства циркуляционных моделей:
- Можно устанавливать в домах с плохой системой вентиляции, которая не справляется с большими потоками воздуха;
- Крепится в любом месте, не нужно соединять с общей шахтой;
- Легко спрятать в шкаф или закрыть декоративными панелями;
- Можно выбрать компактную модель, так как не требуется высокая мощность и сильная тяга;
- Потребление электроэнергии меньше, чем у проточных;
- Дольше срок службы из-за меньшей нагрузки на мотор;
- Не обязательно устанавливать рядом с шахтой, а значит и варочную поверхность можно установить в любом месте.
Недостатки:
- Нужно часто менять фильтры;
- Необходимо периодически доставать и очищать жировой фильтр;
- Такую вытяжку не стоит ставить непосредственно над плитой, так как во время сгорания газа выделяется угарный газ, который будет распределяться по кухне.

Какая мощность должна быть у вытяжки?
Мощность вытяжки напрямую связана с количеством воздуха, который устройство сможет забрать из помещения за определенное время. Рассчитать необходимую мощность не сложно. Санитарные нормы гласят, что кухонная вытяжка должна втягивать от 12 кубометров за один час. Сначала необходимо вычислить объем помещения. Для этого его площадь нужно умножить на высоту потолка. Получившийся результат следует умножить на 12 и добавить ещё 20% запаса. Если на кухне установлено газовое оборудование, то запас стоит увеличить до 30%.
Важно! Для большей точности вычислений можно посчитать объем всей мебели в кухне и вычесть его из общего объема помещения. Так получится сэкономить на мощности оборудования, а соответственно и на его стоимости.
Во многих современных моделях вытяжек возможно регулировать объем забираемого из комнаты воздуха, меняя скорость мотора. Таким образом меняется и уровень шума.
Виды монтажа
Оборудование для циркуляции воздуха отличается не только режимами работы, но и способами установки.
В зависимости от типа монтажа вытяжки бывают следующих видов.
Встраиваемые
Их можно полностью скрыть в кухонной мебели. Для этого вытяжка устанавливается внутрь корпуса подвесного кухонного шкафа. Обычно такое оборудование используют в маленьких кухнях, где нужно сэкономить пространство и убрать “визуальный шум”.
Подвесные
Такие вытяжки имеют плоскую прямоугольную форму и устанавливается с внешней стороны нижней части подвесного кухонного шкафа. Монтаж таких конструкций простой, его можно выполнить самостоятельно. Но из-за небольших габаритов фильтр в этих моделях нужно будет менять чаще.
Настенные вытяжки
Они устанавливаются на стену над рабочей поверхностью.
Островные
Такие вытяжки часто устанавливают над кухонными островками. Они крепятся на потолок над плитой, если она расположена в центральной части помещения.
Купольные
Второе название у таких устройств-каминные.
Это самые распространенные модели вытяжек. Они устанавливаются вместо навесного шкафчика и закрываются декоративным куполом.
Угловые
Одни из самых редко встречающихся вытяжку на кухнях. Их устанавливают в угол кухонного гарнитура, если под ней находится варочная поверхность.
Телескопические
Монтируются в подвесные шкафы. Оснащены элементом забора воздуха, выдвигающимся автоматически. Не пользуются популярностью из-за небольшой мощности.
Выдвижные
Нестандартная вытяжка, которая устанавливается в столешницу, а не над ней. Во время приготовления пищи выдвигается из стола. Такие устройства намного дороже стандартных, но позволяют сэкономить место и почти незаметны.
Монтаж вытяжек по видам
Способ монтажа зависит от вида кухонной вытяжки. Всего существует три основных типа вытяжек:
- Встроенные;
- Навесные;
- Устанавливаемые на шкаф.
Встроенные вытяжки почти не заметны.
Они устанавливаются в шкаф, который должен быть спроектирован специально под оборудование для циркуляции воздуха. Монтаж такой вытяжки не сложен. Главная задача- рассчитать размеры для установки вытяжки правильно. Для подвесного шкафа должна быть на 30-40 см меньше, чем у обычных.
Навесные вытяжки необходимо крепить прямо к стене. Все части таких вытяжек видны, поэтому нужно устанавливать их аккуратно, не допуская больших зазоров.
Все вытяжки должны устанавливаться на высоте в 75 см от газовых плит и 65 см- от электрических. Такого расстояния достаточно, чтобы оборудование не нагревалось от исходящего от плиты тепла. При этом нужно учесть рост людей, которые будут чаще всего готовить на кухне. Вытяжку должно быть удобно включать и выключать.
Организация вентиляции на кухне
После монтажа вытяжки на кухне нагрузка на систему вентиляции увеличится. Чтобы облегчить ее работы некоторые делают больше выходное отверстие воздухоотвода, чтобы увеличить объем перегоняемого воздуха.
Однако от одного увеличения выходного отверстия ничего не изменится, сечение основного участка шахты останется прежним. А именно этот участок отвечает за объем выходящего воздуха.
Чтобы увеличить мощность вытяжки, можно установить антивозвратный короб. Он включает в себя динамический клапан. Он считается закрытым, когда находится в горизонтальном положении. В это время работает естественная вентиляция. Воздух уходит через окна или двери. Если же вентилятор включен, то давление начинает нагнетаться и клапан поднимается, воздух начинает выводиться наружу через вытяжку. Клапан может быть сделан из легких материалов, типа пластика или тонкого алюминия. Крышка закрывается с помощью пружины.
Достоинством такой конструкции является отсутствие тяги обратно в помещение. Это значит, что запахи, которые вытягиваются с других квартир в общий стояк, не будут попадать в кухню через отверстие.
Определяемся с воздуховодом
Для создания системы вентиляции можно использовать разные виды воздуховодов.
Обычно используют детали из алюминия или пластика. У каждого вида есть свои плюсы и минусы.
Компоненты из пластика
Такие воздуховоды надежные, прочные и одновременно легкие. Во время работы вытяжки их почти не слышно. Из-за гладкой поверхности воздуховода сопротивление воздуха почти отсутствует. Трубы из пластика бывают жесткими и статичными, а также мягкими, способными сгибаться.
Воздуховоды из алюминиевой гофры
Трубы из гофры легко устанавливаются. Они могут деформироваться и сгибаться. Установиться такой воздуховод можно в любом месте. Главным достоинством алюминиевой гофры является отсутствие вибраций. В отличие от труб из ПВХ, ее не трясет из-за мощных потоков воздуха.
Недостаток такого воздуховода- неэстетичный внешний вид. В продуманный интерьер может не вписаться большая труба серебристого цвета. Поэтому ее необходимо прятать за коробом из гипсокартона или другого материала. Но обсуживать воздуховод становится сложнее.
Как установить вытяжку?
Процесс установки купольных и наклонных вытяжек похож. Выполнить монтаж можно и своими руками. Давайте подробно разберем процесс крепления кухонной вытяжки.
Рециркуляционная система
Такую вытяжку не нужно соединять с общей шахтой. Ее достаточно закрепить на стене над плитой. Если варочная панель установлена на большом расстоянии от вентиляционного отверстия, подойдут вытяжки с рециркуляцией.
Устанавливаем обратный клапан
Монтаж устройства начинают с установки обратного клапана. Эта деталь мешает воздуху из общего стояка проникнуть внутрь помещения. Сделать такой клапан можно и своими руками. Для этого достаточно купить небольшой кусок жестяного материала и собрать из него короб. Его размер высчитывается с учетом размера воздуховода. Диаметр короба должен составлять ¾ диаметра воздуховода.
После этого из алюминиевого листа в 5 мм вырезают пластину, которая будет выполнять роль заслонки. Ее необходимо установить на пружине к коробу, чтобы воздух выталкивал ее при выходе из кухни.
Если при обратном потоке воздуха заслонка не открывается, значит, конструкция собрана правильно. Пружина делается из обычной проволоки. Достаточно длины 12 см, ширины 5 мм и толщины 0,3 мм.
Важно! Необходимо чтобы натяга пружины хватало для закрытия принудительно открытой крышки.
Монтаж
Когда клапан установлен, можно переходить к креплению самой вытяжки. Необходимый крепеж будет прилагаться в комплекте с оборудованием. Перед монтажом необходимо правильно разметить расстояние. В инструкции по эксплуатации вытяжки будут приведены нормы расположения вытяжки. После того, как основные точки будут отмечены, нужно проверить горизонтальность уровнем и просверлить в стене отверстия. Для надежного крепления достаточно вставить дюбель и закрутить саморезы.
Как установить воздуховод?
Установить гофру легче, чем ПВХ-трубы. Ее нужно растянуть до подходящей длины, а лишнее обрезать. В шахту необходимо установить клапан. Его корпус крепят к стене.
Воздуховод соединяют с патрубком одной стороной, а вторую вставляют в шахту. Чтобы места соединений были крепче, используют строительные хомуты. Для того, чтобы спрятать конструкцию, используют гипсокартон или пластиковые панели.
Гофра используется на кухнях, где плита находится далеко от выхода вентиляции. В таком случае воздуховод можно протянуть дальше. Стоит учесть, что при каждом повороте и сгибании гофры теряется около 10% от ее пропускной способности.
Внимание! Из-за того, что при работе вытяжки все элементы конструкции вибрируют, необходимо оставить зазор между потолком и гофрой. В противном случае потолок можно повредить.
Подключение к электросети
Перед началом монтажа устройства нужно уточнить, какое расстояние от ближайшей розетки до нее, и какой длины нужен шнур. Если расстояния не хватает, то лучше установить новую розетку или перенести уже существующую. Не стоит использовать удлинители. Помните, что размещать розетку рядом с раковиной или нагревательными элементами опасно.
Самый безопасный вариант- прокладка скрытой проводки сверху навесных шкафов.
Перенести розетку в нужное место можно своими руками. Но если опыта работы с электричеством нет, то лучше доверить это дело профессионалу.
Как установить встраиваемую вытяжку?
Встраиваемая вытяжка отличается от купольной только дизайном. Технические характеристики у этих моделей похожи. В купольной конструкции верхняя часть носит только декоративный характер. Встраиваемая же конструкция почти незаметна в шкафчике. Чтобы повесить такую вытяжку, нужно подготовить шкаф, подходящий по размерам. Сначала его крепят к стене на нужном расстоянии от варочной поверхности. После этого монтируют и само оборудование для циркуляции воздуха.
Далее описан подробный процесс установки:
- Сначала нужно демонтировать дно шкафчика и полки, если они есть. Когда дно будет извлечено, конструкция станет менее жесткой. Чтобы сделать ее крепче, можно использовать металлические уголки.
- В потолке шкафа вырезать отверстие, подходящее под размер воздуховода.
Обычной пилой делать это будет сложно и долго, лучше использовать лобзик. - Закрепить устройство в шкафу саморезами.
- Закрепить шкаф на стене с помощью дюбелей и саморезов.
- Соединить воздуховод с вытяжкой и отверстием вентиляции.
- Подключить оборудование к электросети, проверить его исправность.
При необходимости можно закрыть гофру декоративной панелью или спрятать ее в шкафчике.
Монтаж без шкафа
Если на кухне над плитой не планируется установка шкафа, то можно использовать отдельно стоящую вытяжку. Обычно на корпусе таких моделей сзади предусмотрены отверстия для крепления к стене. Вес конструкции становится больше из-за установки антивозвратного клапана и труб воздуховода. Из-за этого обычного крепежа, предусмотренного в комплекте, может быть недостаточно.
Для дополнительного укрепления можно соорудить П-образную рамку. Лучше использовать для нее металлический материал. Например, уголок или металлический швеллер.
Раму нужно установить на стену с помощью дюбелей или специальных болтов в форме самореза на одном конце и резьбой гайкой – на другой. На эту конструкцию установить вытяжку. Сверху закрепить клапан и зафиксировать воздуховод.
Закрыть панелями воздуховод с такой вытяжкой будет сложно, а алюминиевая гофра будет выглядеть не очень красиво. Поэтому рекомендуем использовать белые трубы из ПВХ. Чтобы в местах соединений воздух не пропускало, их нужно обработать герметиком и закрепить хомутами.
Какую модель выбрать?
Выбирать вытяжку нужно, исходя из размеров помещения и требуемой мощности. Учитывать необходимо и дизайн комнаты. Вытяжка должна подходить в общему стилю интерьера и не выделяться.
Лучшие подвесные модели
В этот список включены вытяжки для кухни, которые отличились хорошими техническими характеристиками. Эти модели справляют со своими задачами на высоком уровне.
Darina FLAP 501X
Модель компании «Darina» сделана из нержавеющей стали.
Присутсвуют и стеклянные детали. Работает в режиме отвода. Воздух в ней очищается с помощью жирового фильтра. Дисплей и таймер отсутствуют, но есть три режима скорости. Мощность мотора- 110 Вт. Производительность – 250 кубометров в час. Вытяжка отличается низким уровнем шума- всего 35 дБ.
Gorenje DU 5345
Устройство оснащено мотором, который может работать в трех скоростях. Производительность вытяжки- 300 кубометров в час. Этого хватит для очистки воздуха в кухне площадью около 10 квадратных метров. Для включения подсветки и переключения режимов предусмотрены кнопки на передней части корпуса.
LEX Simple 600 Inox
Мощность двигателя этой модели- 180 Вт. Он работает в трех режимах. Производительности модели в 340 кубометров в час хватит на обработку помещения площадью 12 квадратных метров. Установить вытяжку на стену просто, ее вес составляет 4,5 кг. Также устройство отличается низким уровнем шума и долгим сроком службы.
Лучшие встраиваемые модели
При выборе встраиваемой вытяжки нужно учесть размеры мебели, в которую планируется ее установить.
Для упрощения выбора мы собрали несколько моделей, которые отличились хорошими характеристиками.
DACH Stefania 60 inox
Модель встраиваемой вытяжки для кухни от компании «DACH» сделана из металла высокого качества. Она является выдвижной. Может работать в режиме отвода и циркуляции. Производительность составляет 760 кубометров в час. Этого хватит для очистки воздуха в помещении площадью больше 20 квадратных метров. Мотор вытяжки работает в двух скоростях. В конструкции присутствует жировой фильтр и антивозвратный клапан.
Elica FILO IX/A/60
Эта вытяжка отличается очень высокой мощностью- 800 кубометров в час. Она оснащена электронно-тактовым управлением. Работает как в циркуляционном, так и в отводном режимах. Для подсветки используется две лампы в 3 Ватта. Также модель отличается низким уровнем шума. Ее становится слышно только на максимальной скорости работы мотора.
Kronasteel Kamilla Sensor
Модель работает в двух режимах: циркуляция и отвод.
Во время готовки вытяжка выдвигается из корпуса. Максимальная производительность устройства- 550 кубометров в час. Мощность мотора- 200 Вт. Присутствует индикатор загрязненности жирового фильтра. Управление сенсорными кнопками.
Заключение
Чтобы установить простую циркуляционную вытяжку над варочной поверхностью, понадобится несколько часов. Монтаж таких моделей не сложный. Если вы хотите приобрести встраиваемую модель с отводом воздуха в общую шахту, то для монтажа лучше обратиться к профессионалу. В таких случаях необходимо правильно присоединить воздуховод к общему стояку. При установке нужно учитывать особенности каждой модели и соблюдать технику безопасности.
Быстрая и простая установка вытяжки на кухне, рекомендации
Вытяжка над плитой давно вошла в интерьер практически каждой квартиры.
Это приспособление позволяет избавляться от вредных для здоровья продуктов горения в воздухе. Кроме того, вытяжки защищают окружающую мебель от следов копоти и жира. Дизайн и размеры, стоимость подобных изделий бывает разной. Установка вытяжки на кухне зависит только от личных предпочтений покупателя.
Дизайнерская металлическая вытяжка в интерьере кухни.
Чем кухонные вытяжки отличаются от систем кондиционирования
Системы вентилирования нужны там, где велика вероятность загрязнения воздуха. Есть несколько факторов, выступающих гарантией бесперебойной работы:
- Поток воздуха с постоянным перегоном.
- Очистка фильтров от жидкости.
- Воздуховод, в котором нет загрязнений.
Несложное устройство, предназначенное для очищение воздуха в помещении.
Вытяжки- это не отверстия в стене для обеспечения всех этих факторов. Они относятся к группе несложных устройств, облегчающих нам жизнь. Основными элементами вытяжки считаются не гофра и вытяжки. Эти лишь декоративные украшения, видимая часть.
Она есть и в вентиляционной шахте.
Детали внутри важнее. К их числу относят:
- Вентилятор.
- Фильтры.
- Второстепенные конструктивные элементы. Без них воздуховод не создаётся.
Встроенная в шкаф вытяжка для кухни.
Эти приспособления как раз и становятся той частью, которая делает работу вытяжек допустимой. Если вентиляционный канал смонтирован без соблюдения необходимых правил, то внутрь будут попадать лишние элементы. И вся установка вытяжки на кухне проходит неправильно.
Современный дизайн вытяжки в интерьере кухни.
Если кухню часто используют для приготовления пищи своими руками, то должны присутствовать и обычная вентиляция, и вытяжка. К окну канала добавляются другие приборы, осуществляющие вентиляцию принудительного типа. Например, это может быть вытяжной вентилятор. В домах часто приступают и к сооружению каминных вытяжек. В вентиляционной шахте обходятся без них.
Дизайн вытяжки можно подобрать для любой кухни.
Главное – не допускать ситуации, когда воздуховод выводится в единственное вентиляционное отверстие.
А остальная часть системы просто перекрывается. Помещение должно проветриваться каждый день. Желательно – минимум два раза. Даже если воздуховод у окна качественный.
Вытяжка не служит для проветривания комнаты.
Если вытяжка установлена своими руками, это не значит, что вопрос решён окончательно и бесповоротно. Фильтр из металла или другого материала станет главным препятствием на пути к проникновению вредных веществ в воздух, на окружающую мебель. Один-два раза за год фильтры нужно очищать, либо менять, по текущему состоянию. Нужно промывать и металлическую сетку, используя горячий мыльный раствор. Иначе невозможно будет разобраться в том, как установить вытяжку на кухне.
Какой бывает вытяжка по конструкции
- Циркуляционные и эвакуационные.
Их различают по принципу действия. Одна разновидность создана для того, чтобы прогонять воздух через поглотители запаха на кухне, а затем возвращать его. Другая нужна только для того, чтобы удалять гарь, через окно её уходит недостаточно.
Иногда эвакуационные конструкции преобразуют в циркуляционные. Для этого просто требуется поставить дополнительный угольный фильтр. Установить вытяжку на кухне не составит труда.
Вытяжка с дополнительным угольным фильтром.
- Тип размещения кухонной вытяжки зависит от места и способов проведения монтажа. Конструкции бывают встроенными и настольными, настенными и потолочными.
- Островные или потолочные разновидности очень удобны для небольших кухонь-студий. Так поступают, когда сама плита по центру. Она и называется «островом» в данной ситуации. Она функционирует, чтобы обеспечить вам общий вывод воздуха, без применение принудительной циркуляции. Но процесс установки лучше доверить профессионалам.
- К стене монтируются так называемые зонты, или настенные разновидности. Здесь важным становится оформление, поскольку практически все детали видны невооружённому взгляду.
- Настольные вытяжки часто используются в местах общественного питания. Не важно, есть ли окно.

- Есть так же интегрированные модели, которые устанавливаются своими руками прямо внутрь мебели.
Потолочная система размещения вытяжки.
У интегрированной есть свои подгруппы. Например, угловые. На кухне по удобству они уступают аналогам. Некоторые изделия монтируются между навесными столами. Воздуховод обустроить вам не составит труда.
Каминные вытяжки имеют много общего с обычными кухонными. Каминные варианты крупные сами по себе. И изготавливают их из материалов, способных сопротивляться открытому возгоранию. По своей сути, это открытые дымоходы, которые монтируются внутри помещений. Они способны отлично вписаться в любые интерьеры, и нет необходимости в применении гофрированной трубы.
- При выборе не меньше внимания вам стоит уделить и размерам.
Дизайнерское расположение вытяжки в кухне.
Широкие конструкции не нужны вам, когда на кухне используются двухкомфорные печи, либо компактные электроплиты. Иначе конструкция будет мешать, сильно выдаваться вперёд.
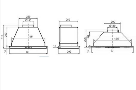
Внимания требует установочная высота. Стандартной шириной для приборов считается ширина в пределах от 50 до 120 сантиметров. Плита и раструбы должны иметь одинаковые габариты. Иначе воздуховод тоже не будет работать.
Над плитами высота размещения составляет 70-80 сантиметров. Низкое расположение не сделает эксплуатацию удобной. И установка вытяжки не будет такой удобной.
- Производительность обозначает вам объём воздуха, который поглощается устройством за единицу времени. Единицы измерения – куб/час. Для небольших помещений достаточно мощности до 300 куб/час. Мощность в пределах 600-800 куб/час нужна уже для более просторных помещений. В инструкции указан максимум производительности, когда воздух отходит. Это важно. Дополнительная нагрузка на вентилятор предполагается при включении режима рециркуляции. Производительность прибора снижается до 60 процентов. Это не зависит от гофрированной трубы.
Кухня с вытяжкой в стиле хай-тек.
После знакомства со всеми этими особенностями вам будет проще сделать правильный выбор.
Тогда не придётся переплачивать за красивый внешний вид и функции, которые с большой вероятностью останутся невостребованными на кухне, над плитой. Ведь от них не зависит эффективность воздуховода.
Дополнительные советы при покупке
- Если устройство дешёвое, то для его производства используют дешёвый металл, который просто закрывается другими материалами. Дорогая и качественная техника на кухне создаётся с использованием огнеупорного стекла, либо алюминиевых сплавов и нержавеющей стали.
- Производителям важен не только престиж, но и прибыль. Хотя и установка вытяжки имеет значение.
Новая вытяжка должна не просто вписываться в имеющийся дизайн. Важно, чтобы она соответствовала всем стандартам.
Конструктивные недочёты и слабые гарантии иногда скрываются за внешним блеском шкафа. Новая вытяжка должна не просто вписываться в имеющийся дизайн. Важно, чтобы она соответствовала всем стандартам. На рынке предлагают продукцию множества известных и не очень марок.
На сайтах представлены все технические описания. Лучше не прислушиваться к консультантам, а выбирать самостоятельно. Данному правилу подчиняется и воздуховод, конструкция шкафа.
- Вам рекомендуется так же внимательно изучать инструкции, предлагающиеся к технике. Именно в этом документе указаны не только рекомендации для потребителей, но и характеристики товара. Они влияют и на то, как пройдёт установка вытяжки. Потому такая информация важна.
Деревянное оформление для вытяжки в кухне.
Решаем вопросы с электробезопасностью
На длину сетевого шнура нужно обращать внимание. Для кухонной вытяжки чаще предусматривается отдельная розетка, потому такие шнуры выполняются короткими. И располагается всё рядом с куполом. Для самостоятельного наращивания шнура обрезание вилки запрещается. Особенно, если количество и сечение проводов не совпадают друг с другом по характеристикам. Из-за этого установка вытяжки усложняется.
Многофункциональная вытяжка в современной кухне.
Использование изоленты и самодельных скруток так же под запретом. Иначе возникает угроза для общей безопасности. И велика вероятность потерять гарантию на ту или иную вытяжку. Хотя воздуховод не пострадает.
Рекомендуется заранее позаботиться о создании дополнительных розеток и удлинителей для проводом на кухне, если это необходимо. Поскольку при строительстве домов изначально о таких мелочах практически не задумываются. Проблему лучше решить ещё до начала монтажа. И рекомендуется обращаться только к профессионалам в этой сфере. С ними установка вытяжки пройдёт легче.
Островное размещение вытяжки в кухне.
Вопрос заземления тоже решается. С проводами это обязательно.
О вытяжках и конструктивных особенностях
Для покупателя вытяжки следующие особенности станут важными.
- Двигатель внутри становится основой для любых таких приборов. Если его обмотка будет герметичной, то и рабочий ресурс повышается. Шума и вибрации при работе, наоборот, становится меньше.

- Крыльчатка обеспечивает захват воздуха с гарью. Она отвечает за вывод вредных веществ.
- Многослойный алюминиевый фильтр необходим для комплекта. Он становится первичным барьером для взвеси жиров. Но нуждается в периодической очистке. С этой задачей справляются посудомоечные машины.
- Все детали монтируются в корпус, который выполнен из металла, либо других материалов. Сталь считается наиболее качественной основой для кухни и шкафа.
Рабочая зона в центре кухни с вытяжкой.
О нейтрализации запаха во время рециркуляции
Кухонные вытяжки над плитой часто снабжаются так называемыми нейтрализаторами запаха. Они бывают ионизационными, угольными, ультрафиолетовыми, либо химическими.
- Угольный фильтр станет отличным средством для избавления от вредных веществ на шкафу.
- Ультрафиолетовые нейтрализаторы имеют своё излучение, но оно небольшое, не причиняет вреда нашему здоровью. Периодически лампы внутри нужно очищать от налёта.
- Ионизационные нейтрализаторы – по сути, обычные ионизаторы воздуха.
Но они обладают небольшим рабочим ресурсом. Хотя и провода им почти не нужны. - Химические уловители тоже эффективны, хоть и нуждаются в замене периодически.
Современный дизайн для кухни и вытяжки.
Подготовительные работы перед установкой
Место над плитой, в свободном пространстве между навесной мебелью – наиболее эффективный вариант для решения данного вопроса. Возможность спрятать выходную трубу и доступ к розетке – самые главные вопросы, которые стоит учесть. Чем раньше о них подумают владельцы – тем лучше. О проводах тоже нужно позаботиться заранее.
Встраиваемая модель вытяжки в кухне.
- Заранее вам стоит продумать вопрос о качественном обеспечении вентиляции. Монтаж кухонной вытяжки немного изменит параметры, которые раньше были характерны для дома. Пробить новое отверстие наружу станет оптимальным решением. Эффект обратной тяги из общей вентиляции часто создаётся при сильном ветре, либо повышенной тяге с нижних этажей. Иногда происходит наоборот.
Гарь переходит к соседям из-за работы кухонной вытяжки. Но грамотный монтаж способен будет решить возникающие в данной сфере проблемы. Стоит подумать о том, чтобы снабдить конструкцию обратным клапаном. - Вам стоит рассмотреть все способы монтажа на стенах, доступные для покупателей. Иногда доступны встраиваемые модели, которые помещаются внутри мебели, экономят пространство. Можно использовать дополнительные панели для того, чтобы спрятать корпус. Или специальный короб, имитирующий дверцы. Он необходим при таком процессе, как монтаж вытяжки.
- Разница в диаметре воздуховодов и гофров приводит к проблемам. Появление дефектов и повреждений на поверхности недопустимо. Тогда шумы, вибрации не появляются. Обратный клапан тоже будет защищён.
- Свои особенности имеются у установки кухонной вытяжки, располагающейся с наклоном. Для приготовления пищи такой вариант во многом более удобный. Главное – следовать предложенной инструкции.
Монтаж. Об инструментах и материалах
Вам следует изучить идущие в готовом комплекте приспособления.
Инструменты требуются такие:
- Монтажная пена вместе с силиконом. Без с них с гофром редко работают.
- Электролобзик, помогающий сверлить отверстия в стенах.
- Стремянка, либо табурет.
- Сетка, чтобы защитить помещение от насекомых и летучих мышей.
- Решётка, чтобы создать вытяжное отверстие у шкафа, в стенах.
- Скотч, с дополнением в виде монтажной пены из полипропилена. Без него монтаж вытяжки невозможен.
- Кожух и зажим для крепления, а так же хомуты, обладающие одинаковым сечением.
- Вентиляционный гофр, со 150-миллиметровым сечением.
- Удлинитель для перфоратора, с внешней розеткой в комплекте.
- Уровни и отвесы для шкафа.
- Карандаши, треугольники.
- Отвёртки с молотками и ножницами.
- Шурупы, саморезы и дюбеля. Подбираются в зависимости от используемых материалов.
- Перфораторы и дрели, к которым идёт комплект буров. С ними монтаж вытяжки пройдёт успешнее.
Разметка креплений для установки вытяжки.
Инструкция по установке вытяжек
Перед началом монтажа следует тщательно изучить прикладываемую инструкцию. В этом документе даны рекомендации, описаны характеристики самого устройства. Там написано и про клапан.
Размеры для стандартной вытяжки.
Нужно изучить товар отдельно на предмет наличия дефектов. Товар утратит право на гарантийное обслуживание, если при монтаже потом возникнут серьёзные проблемы. Отдельно проверяется работа вентиляторов и подсветки. После этого можно приступать к замерам уровня, по горизонтали и вертикали. Электропитание в кухне следует отключить перед тем, как начинается установка кухонной вытяжки.
Электроинструменты питаются от внешних розеток с удлинителями.
Потом нужно подготовить воздуховод с основой из алюминиевого гофра. В нём появляется меньше всего резонанса. Материал легко разрезается ножницами в случае необходимости. Удобно будет сформировать вход. Иногда при изготовлении используют жесть, либо тонкие стальные листы с оцинковкой.
Но такие трубы способны издавать сильный шум.
Классическая вытяжка в белом цвете для кухни.
- Первым этапом в монтаже станет изготовление короба для клапана, который ещё называется хлопушкой или заслонкой. Можно использовать любой тонкий металлический материал, покрытый дополнительным слоем для защиты.
- Готовый короб крепим в отверстие для вентиляции, используя монтажную пену. Но сначала нужно сделать примерку, при этом установка кухонной вытяжки не проводится.
- Переходят к монтажу самого купола. Его располагают в навесных шкафах, либо крепят к стенам, при помощи кронштейна. Электролобзиком нужно вырезать отверстие в верхней плоскости шкафа.
- Но проще обычно совсем демонтировать верхние крышки, без трубы.
- На стене во время монтажа требуется сделать специальные отверстия, по созданной ранее отметке.
- Дополнительно крепятся дюбеля для кронштейнов или же опор. Не стоит забывать о необходимости сделать кармашки для пыли у шкафа.
- Для крепления к коробу сверху можно сформировать треугольник.
Ножницами отрезаем части материала, оказавшиеся лишними. - Монтажный пеной закрывается гофр, закреплённый на стыках. Если необходимо, то используется и силикон. Он лучше для естественной вентиляции.
Хлопушки следует монтировать с верхними креплениями. Сетки от насекомых тоже присутствуют. В окошко естественной вентиляции вставляется короб. Фиксация производится монтажной пеной. Внизу материал не наносят. И трубы не обрабатываются.
Дизайн для вытяжки своими руками.
Нужно помнить о том, что гофра устанавливается на вытяжку у шкафа в последнюю очередь. Перед этим на отверстие вентиляции рекомендуется установить декоративную решётку. Её крепление должно быть надёжным. Как и у гофра.
В конце останется только включение кухонной вытяжки в розетку, хотя есть и дополнительные нюансы. Без хотя бы одной розетки у плиты квартиры сейчас не обходятся. Розетки ставятся и в больших количествах. Длина провода не позволяет рассчитывать на другое питание. Но до такой розетки дотянуться сил вполне хватит.
А вот когда ближайшая розетка минимум на противоположной стороне – дела обстоят хуже. Придётся использовать удлинители, подбирая маршрут для трубы.
Видео: Варианты установок вытяжек на кухне
Как установить вытяжку на кухне своими руками, монтаж вытяжки
Монтаж вытяжки на кухни – простое и довольно быстрое дело, если вы профессионал в этом, конечно. Но что делать, если вы не знаете, как крепятся кухонные вытяжки, но при этом также не хотите тратить деньги на услуги мастера. Попробуйте это сделать сами, руководствуясь советами из нашей статьи. Мы уверены, что у вас все получится!
Виды кухонных вытяжек, исходя из способа работы и крепления
Перед тем, как приступить непосредственно к советам по монтажу, давайте разберемся, какие вытяжки бывают по типу работы.
Ведь этот параметр также напрямую влияет на процесс монтажа вытяжки своими руками.
Исходя из способа очистки воздуха в помещении, разделяют такие типы вытяжек:
-
Отводные. В эту категорию входят все модели вытяжек, которые выбрасывают воздух из помещения на улицу. Для этого вам необходимо организовать отводной канал с помощью гофры, которая будет посредником между вытяжкой и выводным отверстием за пределы комнаты. -
Рециркуляционные. Все вытяжки, которые очищают воздух с помощью угольных фильтров. Фильтра устанавливаются на мотор вытяжки. Через них пропускается воздух и после очистки возвращается в помещение. Учитывая, что фильтра требуют регулярной замены, такой способ более дорогой.
Второй и самый важный критерий – это где будет размещена вытяжка. Именно место установки вытяжки глобально определяет, какой способ монтажа вам придется использовать.
Итак, основные способы установки вытяжки своими руками:
-
Пристенные.
В эту категорию можно отнести все вытяжки, которые крепятся непосредственно к стене (наклонные, каминные, т-образные). Они могут крепиться как сразу к стене (менее габаритные модели) так и на специальную планку, которая идет в комплекте с массивными и тяжелыми моделями. -
Врезные. Уже из названия следует, что такие модели врезаются. И врезаются они в кухонную мебель. Но тут также могут быть варианты – встраиваемые врезаются в днище кухонной тумбы, а телескопические устанавливаются вместо дна. -
Потолочные. Устанавливаются непосредственно к потолку и только в кухнях-островах. Такой тип установки довольно трудный, ведь его сложно выполнить самостоятельно. Поэтому именно для потолочных вытяжек мы рекомендуем обязательно залучать мастера.
Стоит отметить, что монтаж кухонной вытяжки своими руками вполне реален в первых двух категориях и очень сложный в третьей. Если говорить о наиболее простом варианте, то это пристенные модели.
Для установки вытяжки своими руками вам понадобится следующий набор инструментов и приспособлений:
-
Гофра и несколько хомутов. -
Уровень. -
Шуруповерт с функцией перфоратора. -
Карандаш, отвертка и рулетка. -
Электролобзик.
Крепления, саморезы и другие приспособления для установки вытяжки должны присутствовать в комплекте. Также в каждой модели есть инструкция и схема, с которыми необходимо ознакомиться перед началом установки.
Крепление вытяжки к стене
Самый простой и самый надежный способ установки вытяжки, который под силу каждому потребителю, если следовать инструкции:
-
Измерьте расстояние от варочной поверхности до места, куда будет установлена вытяжка – расставьте метки. Мерить нужно до днища вытяжки. При этом высота зависит от типа варочной панели 70-80 см. -
Приставьте технику к меткам и разметьте позиции отверстий под дюбеля.
-
Просверлите с помощью перфоратора отверстия под дюбеля. -
Вставьте дюбеля в отверстия, затем вкрутите саморезы. Оденьте «ушки» вытяжки на саморезы. -
Проверьте, надежно ли установлена вытяжка. -
Соедините вытяжку с выводным отверстием с помощью гофры. -
Установите декоративный короб, закрепив его винтами.
Надежней всего вешать вытяжку на железную планку. Особенно это касается случаев, когда установка производится на гипсокартон или другие «слабые» поверхности.
Монтаж телескопической вытяжки под шкафчик
Этот способ установки также довольно простой, ведь из нестандартных работ будет только вырезание отверстия под воздухоотвод, если вы планируете делать выброс воздуха за пределы помещения:
-
Вам понадобиться шкафчик без дна. -
В верхней части и в полке шкафчика необходимо вырезать отверстие под гофру.
Даже если у вас будут огрехи при вырезании отверстия электролобзиком, то они не будут в дальнейшем видны. -
С помощью крепежей (раздвижных ушек или саморезов) установите вытяжку в нижнюю часть шкафчика, предварительно точно замерив места под крепежи. -
Закрепите вытяжку до конца, а также соедините ее с гофрой. -
Проверьте, надежно ли закреплена вытяжка.
Прелесть телескопических вытяжек, а также других встраиваемых в том, что они имеют минимально влияние на интерьер кухни, а также позволяю сохранить еще один шкафчик. С пристенными вытяжками от шкафчика прийдется отказаться.
Монтаж встраиваемой вытяжки в шкафчик
По-факту, этот типа установки максимально похожий на телескопические, поэтому нет смысла описывать его по новой. Разница лишь в том, что вы устанавливаете вытяжку не вместо дна, а врезаете ее непосредственно в днище шкафчика. Естественно, предварительно вырезав в нем отверстие.
Вставить вытяжку в отверстие, надежно закрепив с помощью крепежей, которые идут в комплекте.
Все последующие шаги и набор инструментов полностью соответствуют с предыдущим пунктом.
Как установить островную вытяжку на кухне своими руками?
Стоит отметить, что для установки островной вытяжки недостаточно только «своих рук». Если учесть габариты и вес вытяжки, а также место, где будет проводиться монтаж, то становится понятным, что самостоятельно это сделать нереально.
Менеджеры ТМ Вентолюкс считают, что установкой островной вытяжки должны заниматься профессионалы, учитывая сложность и даже, можно сказать, определенную опасность этой работы.
В целом, монтаж кухонной вытяжки своими руками – это вполне реальная и осуществимая затея, если Вы остановили свое внимание на более простых типах вытяжек. Если же Вы стали счастливым обладателем островной вытяжки, будьте готовы, что для ее установки понадобится помощь профессионального мастера.
Как привольно установить вытяжку
При стандартной установке кухонной вытяжки перекрывается естественный канал вентиляции, поэтому отвод воздуха работает только на протяжении периода включения вентилятора. Я предлагаю способ монтажа, при котором можно провести полное совмещение двух систем без потери их эффективности.
Используемые материалы
Из материалов мне потребовалось:
- труба вентиляционная, диаметром 125 мм;
- колено 90 градусов;
- тройник;
- обратный лепестковый клапан;
- фланец вентиляционной решетки;
- переходник с диаметра 160 мм на 125 мм;
- силиконовый герметик;
- листовой теплозвукоизолятор самоклеющийся 5 мм;
- гипсовая штукатурка.
Совмещение принудительной кухонной и естественной вытяжки
Перед началом сборки воздуховода нужно сначала подготовить вытяжной канал в стене. Для этого его нужно очистить и сделать максимально гладким.
Это довольно кропотливая и пыльная работа. Если вентиляция чистилась плохо, то из шахты можно насобирать несколько ведер пыли, как было у меня. Очищенный канал оказался шероховатым, что не способствует нормальному движению воздуха. В приделах досягаемости мне пришлось его оштукатурить гипсом. Кроме этого я заделал штукатуркой прямой угол внизу вентиляционного окна, сделав скругленный плавный подъем, чтобы воздух уходил с меньшим сопротивлением, не упираясь в стену, что снижает его скорость.
После частичного высыхания штукатурки вмуровал в стенку отрезок трубы длиной 10 см, получив выступающую на 5 см горловину. Она ставится не горизонтально, а с небольшим уклоном к полу. К ней будет потом присоединяться вентиляционный канал.
Моя вытяжка имеет выходной диаметр 160 мм, поэтому я насаживаю на нее переходник на 125 мм. На него уже креплю отрезок трубы. Его длину подбираю таким образом, чтобы после установки вверху колена на 90 градусов высота всей конструкции доходила до уровня патрубка на входе в вентиляционный канал в стене.
Далее беру тройник и устанавливаю на патрубок, идущий со стены. Нужно ставить так, чтобы его центральный вход был направлен на колено вытяжки.
Вырезаю отрезок трубы под установку от колена до тройника. После его монтажа вытяжка уже полностью соединена с шахтой. Остается разобраться с обратным клапаном. Для данной конструкции нужен клапан с одной заслонкой и со смещенной осью. Поскольку клапанный диффузор очень длинный, то я спиливаю его половину, чтобы участок канала естественной вентиляции был короче, и смотрелась аккуратно.
После подготовки всех деталей нужно провести окончательную сборку. Разбираю всю конструкцию и начинаю ее собирать с промазыванием соединений силиконом. После застывания он будет мягким, поэтому погасит часть вибрации. Перед вклеиванием тройника ставлю фланец вентиляционной решетки на выход трубы со стены. Он выполняет роль декоративной панели, закрывающей штукатурку. Его также клею, чтобы не использовать шурупы. Собираю на герметик все, кроме обратного клапана.
У меня мощная вытяжка, поэтому в месте перехода ее канала в более узкую трубу на 125 мм получается гул. Чтобы убрать шум я обклеил звукоизоляционным материалом переходник и вертикальную трубу, покуда она скрыта декоративным коробом.
Теперь остается самое ответственное и кропотливое – выставить обратный клапан. Он устанавливается в свободный выход тройника. Для уплотнения я использую изоленту. Делаю моток на диффузоре, после чего устанавливаю клапан. Ставлю таким образом, чтобы ось лепестка была не горизонтальной, а почти вертикальной, но с небольшим смещением верхней точки в сторону принудительной вытяжки.
Диффузор клапана стоит с наклоном относительно пола, поскольку сам патрубок канала выходит со стены заведомо со смещением. Кроме этого имеется небольшой перекос по оси его дверцы. Благодаря этому клапан всегда открыт. Даже если его прикрывать, то под действием силы тяжести лепесток откроется.
Добившись открывания клапана под силой тяжести можно считать, что система закончена.
Теперь, если включить принудительную вытяжку, то нагнетаемый в ней поток надавит на лепесток клапана и тот плотно прикроется.
Воздух, подаваемый вентилятором, будет уходить только в шахту, и не проникнет черед сам клапан. Как только вытяжка отключится, то лепесток сам вернется на место, и далее будет работать естественная вентиляция.
Такой вариант подключения принудительной вытяжки позволит сохранить эффективность естественного воздухообмена. Если же ставить гофру и наглухо закрывать окно шахты, то в этом случае при выключенном двигателе движение воздуха будет почти полностью остановлено. Мой вариант монтажа не требует использования никаких креплений. Конструкция благодаря склейке элементов силиконов имеет достаточную жесткость, чтобы надежно удерживаться между зафиксированной вытяжкой и вмурованной горловиной на окне шахты.
Смотрите видео
Как установить вытяжку через стену (5 шагов)
Хотите узнать, как установить вытяжку через стену?
Большинство вентиляционных отверстий вытяжек устанавливаются с помощью кольцевых пил или сабельных пил, но если у вас есть кирпич, вам также может понадобиться молоток.
Я приглашаю вас также прочитать мое руководство , как установить настенные вытяжки , в котором подробно описано, как установить саму вытяжку. А если вашу вытяжку необходимо установить на внутреннюю стену, вы можете прочитать мое руководство по установке вытяжки на внутренние стены прямо здесь.
В этом руководстве я расскажу…
- Как вырезать вентиляционное отверстие в вытяжке
- Соединение вентиляционного трубопровода с помощью ленты
- Вставка герметика за крышку вытяжки
- И как справиться с неровной поверхностью
Приступим…
Установка вытяжки через стену
№
Чтобы установить вентиляционное отверстие вытяжки через стену, вам понадобится кольцевая пила, сабельная пила или мини-циркулярная пила, чтобы прорезать стену.Если у вас кирпичная или каменная стена, вам может даже понадобиться использовать молоток, чтобы пробить ее.
Перед установкой внешней крышки капота вам необходимо соединить части вентиляционного отверстия алюминиевой лентой и закрепить ее на воротнике капота.
После крепления вентиляционной трубы к вытяжке вам просто нужно прикрутить внешнюю крышку вытяжки к стене и нанести силиконовый герметик, чтобы предотвратить утечку воздуха и воды.
Если у вас есть какие-либо вопросы о строительных нормах и правилах установки вытяжных шкафов, вам может быть интересно ознакомиться с моим руководством по требованиям кода для вентиляции вытяжных шкафов .
Для получения дополнительной информации об этих шагах, продолжайте читать…
Шаг 1. Отметьте вентиляционное отверстие вытяжки
Последнее, что вы хотите сделать, это врезаться во внешнюю стену только для того, чтобы обнаружить, что ваше расположение вентиляционного отверстия было неправильным.
Вы должны определить наилучшее место для вытяжки и вентиляционного отверстия по центру вашей варочной панели.
И не забывайте, что вытяжки должны располагаться на высоте от 24 до 36 дюймов над варочной панелью или плитой.
Сделайте некоторые замеры, выполните сухую примерку вытяжки и отметьте карандашом на стене место, где должна проходить вентиляция вытяжки.
Шаг 2. Вырежьте небольшое отверстие для доступа
Прежде чем полностью вырезать вентиляционное отверстие, рекомендуется вырезать небольшое отверстие для доступа размером всего в один-два дюйма где-нибудь в месте расположения вентиляционного отверстия. С небольшим отверстием для доступа вы можете убедиться, что не будете прорезать какие-либо газовые, водопроводные или электрические трубы, прежде чем продолжить с помощью кольцевой пилы (или пробивать кирпич молотком).
Вы также можете обнаружить, что на пути стоит деревянная стойка или какой-либо элемент конструкции.
Если вы видите какую-либо электрическую проводку, надеюсь, вы сможете легко убрать ее или перенаправить.
Но если есть какие-либо газовые или водопроводные трубы, вам может потребоваться найти квалифицированного подрядчика для правильного перемещения трубы.
В случае проблем со структурой вам, вероятно, придется либо обратиться к квалифицированному подрядчику, либо вам потребуется перенаправить вентиляционное отверстие.
Будьте очень осторожны перед модификацией несущей наружной стены.И если вам нужно перенаправить вентиляционную трубу с помощью колена, постарайтесь, чтобы воздуховод был как можно короче, чтобы максимизировать поток воздуха.
Читайте также: Как установить вытяжки под шкаф?
Шаг 3. Просверлите пилотное отверстие в стене
Самый простой способ выровнять отверстие изнутри и снаружи — прорезать направляющее отверстие прямо через середину вентиляционного отверстия вытяжки. Это можно сделать длинным сверлом по дереву или металлу.
Во многих случаях невозможно полностью вырезать вентиляционное отверстие вытяжки изнутри, поэтому вам нужно будет сделать половину внутри, а половину снаружи.
Но практически невозможно разметить периметр вентиляционного отверстия на внешней стене, не просверлив направляющее отверстие изнутри.
Пилотное отверстие позволит вам отметить периметр и оставаться на одной линии с разрезом.
Кроме того, если вы используете кольцевую пилу для резки, многие из этих коронок поставляются с центральным сверлом посередине. Но эти пилотные сверла не предназначены для полного прорезания стены (они слишком короткие), а просто помогают коронке начать работу и выровняться.
Читайте также: Какие вытяжки под шкаф лучше?
Шаг 4. Прорежьте стену
После разметки вентиляционного отверстия и полного сверления направляющего отверстия в стене можно приступить к резке внешней стены.
То, как вы выполните этот шаг, зависит от того, круглый или квадратный у вас воздуховод, а также от твердости наружной поверхности стены, такой как кирпич или камень.
Если у вас виниловый сайдинг, вы можете полностью вырезать отверстие изнутри.
Но если у вас есть кирпич, вам придется сделать часть разреза внутри, а затем часть разреза снаружи. Вам, вероятно, также придется использовать молоток, чтобы пробить кирпич после вырезания нескольких отверстий по периметру.
Вот два основных метода вырезания стенки для вентиляционной вытяжки…
Метод №1: просверлите несколько маленьких отверстий по периметру
Существует два основных способа вырезания вентиляционного отверстия в вытяжке. Первый метод заключается в просверливании нескольких небольших отверстий по периметру вентиляционного отверстия.
В зависимости от того, является ли вентиляционное отверстие квадратным или круглым, вы просверлите 7+ направляющих отверстий по периметру отверстия, что даст вам контур вентиляционного отверстия. Затем вы будете использовать либо сабельную пилу, либо мини-циркулярную пилу, чтобы вырезать вентиляционное отверстие, просто соединив «точки» сверла.
Если наружная стена облицована кирпичом или камнем, вам, вероятно, потребуется использовать молоток, чтобы продавить камень.
При резке изнутри вы можете пропустить этот шаг, так как это просто гипсокартон, и вы можете использовать мини-циркулярную пилу или сабельную пилу, чтобы резать прямо по контуру вентиляционного отверстия.
Способ № 2: используйте кольцевую пилу
Если у вас круглая вытяжка, вы можете использовать кольцевую пилу, чтобы просверлить наружную стену. Кольцевые пилы в основном представляют собой круглые или круглые сверла с полым центром. Эти кольцевые пилы позволяют быстро просверлить отверстие для круглой вытяжки.
Некоторые кольцевые пилы также имеют направляющие сверла в центре кольцевой пилы. Пилотное сверло позволяет центрировать кольцевую пилу и помогает начать резку.
Вам, вероятно, придется вырезать половину отверстия изнутри, а другую половину, начиная с внешней стороны.
Читайте также: Какие настенные вытяжки имеют самые высокие рейтинги?
Шаг 4. Установите вентиляционную крышку вытяжки
После того, как вы проделали отверстие в стене и вставили вентиляционную трубу, вам нужно будет установить внешнюю крышку колпака.
Вентиляционная крышка — это то, что предотвращает попадание дождя, вредителей и проникновения воздуха внутрь дома.
Наружные вытяжки имеют круглые или квадратные клапаны, которые открываются, когда вытяжка включена, но закрываются, когда она выключена.
Сначала нужно присоединить конец вентиляционной трубы к хомуту внешней крышки капота — для фиксации можно использовать алюминиевую ленту. Вы можете использовать винты для соединения вентиляционной трубы, но они не должны выступать более чем на 1/8 дюйма в воздуховод.
После крепления трубы к вытяжке вам нужно будет использовать винты, чтобы закрепить вытяжку на внешней стене.Перед тем, как полностью завинтить колпак, убедитесь, что крышка колпака тщательно загерметизирована, чтобы предотвратить утечку воздуха и воды.
Как справиться с неровным сайдингом
Если вы устанавливаете вентиляционное отверстие вытяжки через сайдинг, будет трудно или невозможно получить герметичное уплотнение на внешнем вентиляционном зонте.
По сути, поскольку сайдинг не идеально ровный, будет сложно правильно установить герметик между капотом и сайдингом.
Чтобы решить эту проблему, вам нужно будет вырезать квадратную часть сайдинга и вставить квадратный кусок дерева или ПВХ.В середине вам нужно будет вырезать отверстие для вентиляции.
После того, как вы привинтите эту деревянную подложку, у вас будет плоская поверхность для установки вентиляционного отверстия вытяжки и правильного уплотнения за ним.
Шаг 5. Добавление изоляции
Перед тем, как полностью закрыть стену, вы можете заложить изоляцию между вентиляционным отверстием и полостью в стене.
Вы можете либо набить свободной изоляцией из стекловолокна, либо вставить в банку немного расширяющейся пены, например, GreatStuff .
Читайте также: Как выбрать CFM для вашей вытяжки?
Последние мысли
Установка вентиляционной вытяжки через стену не обязательно для слабонервных, и вы можете столкнуться с множеством проблем во время ее установки.
Если у вас облицовка камнем или кирпичом, то сделать это будет еще сложнее. Вам, вероятно, потребуется вырезать несколько отверстий по периметру с помощью сверла, а затем пробить кирпич молотком.
Кроме того, вы можете открыть кухонную стену только для того, чтобы обнаружить, что вам нужно переместить некоторые трубы, внести структурные изменения или использовать гибкую трубу, чтобы обойти ее.Вот почему я всегда рекомендую вырезать очень маленькое отверстие для доступа (всего несколько дюймов), чтобы вы могли заглянуть в стену, прежде чем вырезать большой кусок.
Как установить вытяжку под шкаф
Как установить вытяжку под шкаф?
Вытяжка может отводить тепло и дым из кухни с помощью внутреннего фильтра и вентилятора. Их обычно приобретают вместе с печкой, но можно купить и отдельно в магазине.
Несмотря на то, что крупную бытовую технику в вашем доме необходимо устанавливать профессионалам, установить вытяжку без профессиональной помощи довольно просто, если вы используете правильную технику и инструменты.
Мы даем советы по , как правильно установить вытяжку под шкаф .
Подготовка к установке вытяжки под шкафом – вещи, которые вам понадобятся
- Вытяжка
- Бесконтактный тестер цепи
- Сверла
- Электродрель с винтовым наконечником
- Проволочные гайки
- Инструмент для зачистки проводов
- Отвертка
Установка вытяжки под шкафом – часть 1
Снять существующую вытяжку, если она есть
Это очень просто.Просто отсоедините провода вашего старого капота, аккуратно отвинтив все гайки проводов, а затем разъединив соединения. Теперь попросите вашего партнера удерживать существующую вытяжку на месте, пока вы ослабляете все винты, удерживающие ее на месте. Снимите его с винтов и положите. Также удалите все ослабленные винты.
Выбор новой вытяжки
- проверитьВыберите наилучшую вытяжку под шкафом, которая легко закрывает плиту и имеет зазор не менее 22-24 дюймов .
Выбранная вами вытяжка должна выступать на несколько дюймов со всех сторон зоны приготовления пищи. - checkУбедитесь, что выбранная вами вытяжка имеет лучший рейтинг CFM . Этот рейтинг представляет собой количество воздуха, которое вентиляционное отверстие может легко прокачать каждую минуту (в кубических футах в минуту). Вы можете быстро найти это число, умножив площадь вашей кухни на 2250 кубических футов в минуту.
- checkИнвестируйте в вытяжку подходящего размера , которая легко помещается. Вы можете приобрести размеры 36″, 48″ и 60″ на рынке. Важно, чтобы вентиляция вашей вытяжки проходила через правильное место в стене.Доступные в наши дни вытяжки могут вентилироваться либо через крышу, стену, либо через шкафы, установленные наверху.
- checkЕсли вы хотите подсоединить новую вытяжку к существующей вентиляционной трубе, важно, чтобы она находилась в правильном положении и могла легко подсоединяться. Если, например, вытяжка поддерживает верхнюю (шкафную) вентиляцию, но ваша текущая вентиляционная труба проходит прямо через стену прямо за вентиляционным отверстием, вы не сможете соединить их.

Снимите крышку вытяжки, а также фильтр и вентилятор под ней
Сначала необходимо снять его фильтры, а затем с помощью отвертки снять нижние панели.Теперь проверьте нижнюю часть нижней панели и убедитесь, что разъем воздуховода, находящийся там, отвинчен. Он размещен здесь, чтобы предотвратить повреждение бленды во время транспортировки.
Наконец, убедитесь, что вы удалили перфорированную заглушку воздуховода, расположенную в задней части вашего капота. Для этого можно использовать молоток и шлицевую отвертку, но работайте осторожно, чтобы не повредить металл.
- В целях безопасности необходимо отключить электропитание контура.
- Также проверьте, не выключены ли выключатели питания и освещения вашей старой вытяжки.
- Если ваша новая вытяжка подключаемого типа, вам просто нужно отключить ее и пропустить этот конкретный шаг.
Установка вытяжки под шкафом – часть 2
Подготовка вентиляционного отверстия на вентиляционных колпаках
Если вы планируете заменить старую вытяжку, нет необходимости сверлить новый прямоугольник для вентиляционного отверстия или устанавливать какие-либо воздуховоды.
Однако, если вы устанавливаете совершенно новую вытяжку, вам придется проделать для этого дополнительную работу.
Проверить шаблон инструкции
Ознакомьтесь с шаблоном инструкции, чтобы сделать место на шкафу или стене для идеального выреза вентиляционного отверстия, чтобы обеспечить правильную установку вытяжки под шкафом.
В настоящее время к вытяжкам прилагается шаблон инструкции. Используйте водный или лазерный уровень, чтобы отметить точное среднее положение на стене на кухне.
Теперь выровняйте шаблон прямо по центру стены и плотно приклейте его скотчем. В этот момент начните сверлить вырез. Убедитесь, что вырез идеально соответствует вырезу вашей вытяжки. Этот шаг важен для обеспечения беспрепятственной установки вытяжки под шкафом.
При необходимости можно просверлить и проводку вытяжки.Если вы мало что знаете об этой части, наймите электрика для этой части проекта.
Вырезать или просверлить вентиляционное отверстие
Используйте стеновую доску или дрель, чтобы правильно прорезать гипсокартон, чтобы получить идеальную форму шаблона выреза.
Если пространство за вашей стеной свободно от труб или стоек, то вам повезло! Однако, если там есть шпильки или волынки, есть так много обходных путей.
Обход препятствий, которые вы найдете в вырезе
При вырезании отверстия для вытяжного вентилятора для установки вытяжки под шкафом, если вы сталкиваетесь с трубами, откройте более широкий прямоугольник стены, чтобы обеспечить беспроблемную работу.Затем сделайте эти три вещи:
- проверитьПереложите трубу и припаяйте ее так, чтобы отверстие оставалось полностью свободным. Если вы не можете справиться с этим, вызовите генерального подрядчика или профессионального сантехника.
- checkПросверлите 1 X 4 планки прямо в нижней и верхней части стены, чтобы закрепить ее с помощью более новой заплаты для стены. Это дает совершенно новую настенную панель, закрывающую отверстие.
- checkПросверлите, наклейте ленту, а затем замажьте эту заплатку на стене, чтобы закрыть это отверстие. Как только он высохнет, вы можете удалить этот оригинальный вырез для выхлопной трубы, используя свой шаблон.

Следуйте описанной выше процедуре. Установите важные воздуховоды таким образом, чтобы они безопасно выходили за пределы вашего дома. Имейте в виду, что вентиляция не может заканчиваться внутри чердака или стены — выхлоп должен проходить через воздуховод снаружи дома.
Установка вытяжки под шкафом – часть 3
Установка капота
- checkОтметьте все отверстия для кабеля и винтов. На этом этапе используйте шаблон, прилагаемый к вашей вытяжке.Если его нет в наличии, крепко держите бленду на месте и попросите вашего партнера отметить внутри этих отверстий винты для установки бленды.
- checkПросверлите все винты или монтажные кронштейны в шкафу или в стене над
- checkТочное место, где вы будете сверлить винты, зависит от того, монтируете ли вы вытяжку в существующий шкаф или в кухонную стену.
- checkЕсли вы монтируете в свой существующий шкаф, вы можете просверлить винты только наполовину в вашем шкафу; если вы монтируете на стену с помощью кронштейнов, просверлите винты прямо в стене — ваша вытяжка должна легко скользить по всем этим винтам, а затем опираться на верхнюю часть этих винтов.

- checkЕсли вы планируете монтировать в стену, а ваша стена выложена плиткой, попробуйте использовать молоток и набор гвоздей, чтобы просверлить меньшие отверстия прямо в плитке. Таким образом, плитка не повредится при сверлении монтажных кронштейнов в стене кухни.
- checkДля тонких шкафов лучше всего установить несколько деревянных брусков для размещения и укрепления крепежных винтов. В этот момент проверьте выравнивание. Вентиляционное отверстие должно точно совпадать с отверстием, сделанным для воздуховода вытяжки для вентилируемой вытяжки.
- checkВыполните повторную настройку (при необходимости) перед тем, как затягивать винты.
Подключение проводов капота
Кабель должен проходить с внутренней стороны стены прямо через существующий кабельный отсек вытяжки. К светильнику и вентилятору должны быть подключены белые и черные провода. Если вы не уверены в электрических соединениях, обязательно позвоните своему электрику.
- проверить Два черных провода в вытяжке соединить с проводом черного цвета, идущим от стены.

- checkЭтот процесс следует повторить с проводами белого цвета.
- checkЗеленый провод заземления от стены следует прикрепить к винту заземления вытяжки.
- checkЕсли вы хотите использовать вилку вытяжки, просто вставьте ее в розетку.
Теперь закрепите маслоотражатели на капоте и снова установите фильтры. Установите крышку капота с помощью винтов. Включите вытяжку и проверьте работу ее освещения и вентилятора.
Если вытяжка вентилируется, проверьте выступающий воздуховод, чтобы обеспечить правильную вентиляцию.
Как установить вытяжку под шкафом
Дополнительные советы по правильной установке вытяжки на крыше
Вы также можете установить вытяжку на крыше.
Необходимые инструменты:
- checkСетевая дрель
- checkПистолет для герметика
- чекМолоток
- checkМом
- проверитьЛобзик
Материалы, необходимые для этого конкретного проекта:
- checkАсфальтовый кровельный цемент
- гибкий и жесткий воздуховод с соответствующей изоляцией
- checkКровельные гвозди
- checkВентиляционное отверстие на крыше
Выберите вентиляционное отверстие на крыше и просверлите в нем отверстие.
Он должен быть рядом с вентилятором. Сверло должно оставаться торчащим через крышу, потому что так вам будет легче найти отверстие. Поднимитесь на крышу и используйте сабельную пилу, чтобы вырезать маленькое круглое отверстие диаметром 4 дюйма. Теперь измерьте квадрат немного больше, чем выступающая часть вентиляционного отверстия.
Теперь вы можете снимать битумную черепицу с помощью крюка на универсальном ноже. После этого нанесите битумный кровельный цемент на нижнюю сторону вентиляционного отверстия. На этом этапе вентиляционное отверстие следует осторожно скользить под черепицей таким образом, чтобы оно надлежащим образом закрывало верхнюю половину фланца вентиляционного отверстия. Нижняя часть фланца располагается прямо на верхней части черепицы. Теперь прибейте нижние углы с помощью нескольких кровельных гвоздей и смажьте эти головки.
Стоимость установки вытяжки
Для базового проекта стоимость установки вытяжного колпака колеблется от 350 до 780 долларов за вытяжку.
Фактические затраты могут варьироваться и зависеть от вариантов размера задания и текущих условий.
Модель | Руководство по установке | Технические характеристики | Аксессуары для вентиляции | ||||||
Ач22
| Установка | Технический | Вентиляция | ||||||
БХПСЛБ
| Установка | Технический | Вентиляция | ||||||
БХПСЛД
| Установка | Технический | Вентиляция | ||||||
БХСЛД
| Установка | Технический | Вентиляция | ||||||
КИЭАХ6-К
| Установка | Технический | Вентиляция | ||||||
КИЭХ6-К
| Установка | Технический | Вентиляция | ||||||
КИЭХ9
| Установка | Технический | Вентиляция | ||||||
CILH9
| Установка | Технический | Вентиляция | ||||||
CLH9
| Установка | Технический | Вентиляция | ||||||
СО
| Установка | Технический | Вентиляция | ||||||
КВЕАХ6-К
| Установка | Технический | Вентиляция | ||||||
КВЕХ6-К
| Установка | Технический | Вентиляция | ||||||
КВЕХ9
| Установка | Технический | Вентиляция | ||||||
КВЧ
| Установка | Технический | Вентиляция | ||||||
CWLH9
| Установка | Технический | Вентиляция | ||||||
ЦВШ4
| Установка | Технический | Вентиляция | ||||||
CWUH9
| Установка | Технический | Вентиляция | ||||||
СХх28-М
| Установка | Технический | Вентиляция | ||||||
СХh40
| Установка | Технический | Вентиляция | ||||||
ДАх28
| Установка | Технический | Вентиляция | ||||||
ДАх40
| Установка | Технический | Вентиляция | ||||||
ЭФ28
| Установка | Технический | Вентиляция | ||||||
ЭФ28-М
| Установка | Технический | Вентиляция | ||||||
ЭФ28-М-Х32
| Установка | Технический | Вентиляция | ||||||
ЭПИх28
| Установка | Технический | Вентиляция | ||||||
ЭПИТ28
| Установка | Технический | Вентиляция | ||||||
EPTh28
| Установка | Технический | Вентиляция | ||||||
ГТХ-К
| Установка | Технический | Вентиляция | ||||||
ICXh40
| Установка | Технический | Вентиляция | ||||||
ИСДАх28-К
| Установка | Технический | Вентиляция | ||||||
ИСДх28
| Установка | Технический | Вентиляция | ||||||
ИСФх28
| Установка | Технический | Вентиляция | ||||||
ИСФх40
| Установка | Технический | Вентиляция | ||||||
ИСЛh28
| Установка | Технический | Вентиляция | ||||||
ИСЛх40
| Установка | Технический | Вентиляция | ||||||
IXRh28
| Установка | Технический | Вентиляция | ||||||
ИЗТХ
| Установка | Технический | Вентиляция | ||||||
ДЖЧ/А1
| Установка | Технический | Вентиляция | ||||||
ДжЧ/Б1
| Установка | Технический | Вентиляция | ||||||
ДжЧ/К1
| Установка | Технический | Вентиляция | ||||||
ДжЧ/К2
| Установка | Технический | Вентиляция | ||||||
ДжКИХ/А1
| Установка | Технический | Вентиляция | ||||||
ДжКИХ/Б1
| Установка | Технический | Вентиляция | ||||||
JCIH/C1
| Установка | Технический | Вентиляция | ||||||
ДЖКВР18
| Установка | Технический | Вентиляция | ||||||
ДЖКВР9
| Установка | Технический | Вентиляция | ||||||
JDH/C1
| Установка | Технический | Вентиляция | ||||||
JDH/C2
| Установка | Технический | Вентиляция | ||||||
JDH/C3
| Установка | Технический | Вентиляция | ||||||
JDIH/C1
| Установка | Технический | Вентиляция | ||||||
JDIH/C2
| Установка | Технический | Вентиляция | ||||||
JDIH/C3
| Установка | Технический | Вентиляция | ||||||
JPH/C1
| Установка | Технический | Вентиляция | ||||||
JPH/C2
| Установка | Технический | Вентиляция | ||||||
JPIH/C1
| Установка | Технический | Вентиляция | ||||||
КАХСЛД
| Установка | Технический | Вентиляция | ||||||
ХСЛД
| Установка | Технический | Вентиляция | ||||||
МПСЛД
| Установка | Технический | Вентиляция | ||||||
MSLD
| Установка | Технический | Вентиляция | ||||||
НЭФ28
| Установка | Технический | Вентиляция | ||||||
NEPTh28
| Установка | Технический | Вентиляция | ||||||
НПх28
| Установка | Технический | Вентиляция | ||||||
НПХ9
| Установка | Технический | Вентиляция | ||||||
ПДах24-К
| Установка | Технический | Вентиляция | ||||||
ПДАН7-К
| Установка | Технический | Вентиляция | ||||||
ПДх24
| Установка | Технический | Вентиляция | ||||||
ПДх24-К
| Установка | Технический | Вентиляция | ||||||
ПДХ7-К
| Установка | Технический | Вентиляция | ||||||
ПДЛ14
| Установка | Технический | Вентиляция | ||||||
ПРАН6-К
| Установка | Технический | Вентиляция | ||||||
ПРх28
| Установка | Технический | Вентиляция | ||||||
ПРх28-М
| Установка | Технический | Вентиляция | ||||||
PRH6-K
| Установка | Технический | Вентиляция | ||||||
PRH9
| Установка | Технический | Вентиляция | ||||||
PWVh28
| Установка | Технический | Вентиляция | ||||||
PWVh40
| Установка | Технический | Вентиляция | ||||||
ПЫДАх28-К
| Установка | Технический | Вентиляция | ||||||
ПДх28
| Установка | Технический | Вентиляция | ||||||
ПЙх28
| Установка | Технический | Вентиляция | ||||||
ПЙх40
| Установка | Технический | Вентиляция | ||||||
1000 ринггитов
| Установка | Технический | Вентиляция | ||||||
1500 ринггитов
| Установка | Технический | Вентиляция | ||||||
СЭФ28
| Установка | Технический | Вентиляция | ||||||
СЕПИх28
| Установка | Технический | Вентиляция | ||||||
SEPITh28
| Установка | Технический | Вентиляция | ||||||
SEPTh28
| Установка | Технический | Вентиляция | ||||||
СЛАХ6-К
| Установка | Технический | Вентиляция | ||||||
СЛДх24
| Установка | Технический | Вентиляция | ||||||
SLh28
| Установка | Технический | Вентиляция | ||||||
SLh40
| Установка | Технический | Вентиляция | ||||||
СЛХ6-К
| Установка | Технический | Вентиляция | ||||||
SLH9
| Установка | Технический | Вентиляция | ||||||
THPSLE
| Установка | Технический | Вентиляция | ||||||
ТХСЛЭ
| Установка | Технический | Вентиляция | ||||||
TLH
| Установка | Технический | Вентиляция | ||||||
XLh22
| Установка | Технический | Вентиляция | ||||||
XRh28
| Установка | Технический | Вентиляция | ||||||
СРХ9
| Установка | Технический | Вентиляция | ||||||
ЗТХ
| Установка | Технический | Вентиляция | ||||||
Как установить внешний вентилятор для кухонной вытяжки
Кухонные вытяжки обычно оснащены вентилятором, который может высасывать любой дым или запахи, образующиеся под ним.
Однако можно установить более мощный вентилятор снаружи дома, который может достичь тех же результатов, но с более низким уровнем шума. Кроме того, в отличие от некоторых вытяжных вентиляторов, которые просто фильтруют воздух и выбрасывают его обратно на кухню, внешний вентилятор будет стрелять во все, что втягивает прямо наружу. Шаги ниже поясняют, как можно установить внешний вентилятор.
Шаг 1. Вырежьте отверстие для вентилятора
С помощью циркулярной пилы вырежьте отверстие в стене или крыше, где будет установлен вентилятор.Отверстие должно быть около 14 дюймов в ширину и 18 дюймов в длину. При проходе через крышу черепицу, возможно, придется сначала срезать канцелярским ножом.
Шаг 2. Установка внешнего вентилятора
Поместите вентилятор напротив отверстия, прорезанного в крыше или стене. Выходное отверстие или часть воздуходувки с экраном должны быть обращены к земле и, в идеале, в направлении, противоположном преобладающим ветрам. Фланец, который окружает блок воздуходувки, должен быть установлен так, чтобы вода не попала внутрь блока.
Если воздуходувка устанавливается на крыше, самая верхняя часть фланца должна быть заправлена под ряд гонтов над ним, а нижняя часть фланца должна перекрывать ряд гонтов ниже. Если вы делаете настенную установку, сделайте то же самое с сайдингом. Закрепите устройство на месте с помощью дрели и атмосферостойких оцинкованных монтажных винтов, которые входят в комплект поставки устройства. После закрепления обильно нанесите кровельный герметик по краям агрегата, где фланец соприкасается со стеной или крышей.
Шаг 3. Подсоединение выхлопной системы
Воздуховод, который выходит из воздуходувки, обычно имеет круглую форму и диаметр 10 дюймов. Круглый 10-дюймовый регулируемый колено может быть подсоединен к задней части воздуходувки, чтобы изменить направление воздуховода так, чтобы он двигался в правильном направлении к вытяжке. Любой воздуховод, добавленный к внешнему вентилятору, должен оставаться круглым и иметь диаметр 10 дюймов, пока он не пройдет через стену или потолок дома.
Однако после того, как воздуховод пройдет через крышу или потолочный кронштейн, необходимо будет установить переходник с 10 дюймов на 8 дюймов, чтобы сделать воздуховод совместимым с вытяжным отверстием, предусмотренным на вытяжке (выпуск может быть другим, но выпускные отверстия вытяжек обычно имеют диаметр 8 дюймов).От этого перехода можно подсоединить дополнительные отрезки 8-дюймового воздуховода, чтобы добраться до вытяжки, но планируйте это тщательно: чтобы воздуходувка работала должным образом, 8-дюймовый воздуховод не может проходить более чем на 5 футов, прежде чем достигнет вытяжки. После того, как все воздуховоды подсоединены, проденьте небольшой винт через каждое соединение, чтобы убедиться, что они не могут отделиться. Затем заклейте их большим количеством термостойкой ленты.
Шаг 4. Подсоедините вентилятор к вытяжной вытяжке
Снимите крышку внешнего вентилятора, чтобы получить доступ к проводке.Трубопровод должен быть проложен от воздуходувки до вытяжки.
После того, как провода протянуты через кабелепровод к вытяжке, подключите вентилятор к вытяжке в соответствии с местными электротехническими нормами. Не забывайте всегда выключать питание перед выполнением любых работ с электричеством. Установите на место крышку внешнего вентилятора, и он готов к использованию.
Как установить вентиляционную вытяжку через потолок – Модернизированный дом
Реконструкция кухни – один из самых популярных проектов среди домовладельцев.Многие домовладельцы в процессе решают обновить вытяжку. Многие вытяжные шкафы, установленные в качестве оригинального оборудования в домах, рециркулируют отфильтрованный воздух обратно в дом. Лучшим вариантом является установка вытяжки через потолок и крышу.
Гораздо лучшим вариантом является установка вытяжного зонта, выходящего за пределы дома через потолок и крышу. Наружная вентиляция удаляет из кухни нагретый воздух, запахи и содержащиеся в воздухе частицы пищи. Установка вытяжки через потолок и крышу может быть сложной задачей.
Вот шаги, которые вы должны выполнить, чтобы завершить этот проект.
Систематическая работа и соблюдение инструкций производителя вытяжных шкафов крайне важны для управления этим проектом. Каждый производитель вытяжек имеет свои спецификации и требования. Наши шаги по установке вашей вытяжной вытяжки через потолок не являются специфическими, чтобы учитывать различия в требованиях производителя.
Вам нужна установка или замена бытовой техники?
Получите бесплатные расценки без обязательств от профессиональных подрядчиков рядом с вами.
НАЙТИ МЕСТНЫХ ПОДРЯДЧИКОВ
Соберите материалы и инструменты
Перед началом любого проекта мы всегда рекомендуем собрать все материалы, детали и инструменты. Наличие всего необходимого и под рукой сделает проект более плавным и быстрым. Готовность уменьшает разочарование и сокращает время проекта.
Ваш новый вытяжной колпак
Не начинайте установку, пока у вас не будет новой вытяжки.
Важно иметь инструкции, прилагаемые к вытяжке. Инструкции дадут вам правильные размеры вентиляционной трубы и вентиляционного защитного колпачка для размера вентилятора. В инструкции вы также найдете рекомендации по инструментам, фурнитуре и другим крепежным элементам, которые могут вам понадобиться.
Также важно провести инвентаризацию содержимого упаковки вытяжного шкафа. Вы должны убедиться, что все необходимые детали включены, включая винты, гайки и болты, которые должны быть в комплекте.
Иметь подходящие инструменты для работы
В общем, для правильного выполнения этой работы вам потребуются электроинструменты. Инструменты, которые вам понадобятся для выполнения этой установки, включают следующее.
Дрель и биты: Обязательно наличие полностью заряженного электрического аккумулятора. Вам понадобится длинное сверло, чтобы сделать пилотные отверстия, и кольцевая пила, чтобы сделать отверстия в потолке, через которые будет проходить вентиляционная труба.
Пистолет для герметика и кровельный асфальт: Чтобы запечатать вентиляционную заглушку на черепице, вам понадобится пистолет для герметика и по крайней мере один тюбик кровельного битумного клея.Обеспечение герметичности от проникновения воды в тех местах, где крышка вентиляционного отверстия на крыше закрывает вентиляционную трубу, имеет решающее значение.
Кровельные гвозди и молоток: Проделывание отверстия в крыше и установка крышки вентиляционного отверстия на крыше, снятие части черепицы. Вам нужно будет снова прикрепить эту черепицу после того, как крышка вентиляционного отверстия на крыше будет на месте. Кровельные гвозди — лучший выбор для этой работы.
A Лестница: Вы будете работать на высоте потолка, чтобы сделать отверстия для вентиляционных работ и электрических установок.Самый безопасный способ работать на высоте — использовать хорошую лестницу. Табуреты-стремянки не подходят для такой работы.
Стулья и другие импровизированные устройства являются случайностями при изготовлении, и их следует избегать.
Материалы – выберите правильный материал
Самая важная вещь, которая вам понадобится, — это вентиляционная труба, идущая от вытяжного колпака к крышной вентиляционной крышке. Вентиляционная труба бывает разных размеров, стилей и материалов. Следуйте инструкциям по установке, прилагаемым к комплекту вытяжки.Эти инструкции расскажут вам, какой размер, стиль и материал вентиляционной трубы необходимы для установки вытяжного колпака.
Дополнительные материалы, которые вам, вероятно, понадобятся: Есть несколько вещей, которые вам, вероятно, понадобятся, прежде чем работа будет выполнена. Имея их под рукой, даже если они в конце концов не нужны, вы можете сэкономить время и нервы. Мы предлагаем вам иметь рулон алюминизированной клейкой ленты, саморезы для листового металла и биту подходящего размера для винтов.
Поиск вентиляционного отверстия — мы идем на чердак
Шаг 1 – Место, Место, Место
Вы должны точно знать, где будет установлена вытяжка.
Это определяет, где вы будете делать отверстия для вентиляционной трубы и любые электрические соединения, которые могут понадобиться.
Часто производитель прилагает шаблон, который можно приклеить клейкой лентой в том месте, где вы собираетесь установить вытяжку. Этот шаблон покажет правильное расположение отверстий для монтажного оборудования, электрических соединений и расположение отверстия для вентиляционной трубы.
Шаг 2 – Через потолок
Мы предлагаем вам просверлить все необходимые отверстия.Убедитесь, что вы используете сверло подходящего размера для отверстия, как указано в инструкциях по установке. Однако не сверлите большое отверстие для вентиляционной трубы. Используйте сверло меньшего размера, чтобы создать направляющее отверстие в центре отверстия вентиляционной трубы.
Просверливание пилотного отверстия в потолочном отверстии для вентиляционной трубы позволяет осмотреть область вентиляционного отверстия на чердаке. Вы должны убедиться, что в этом районе нет воздуховодов систем отопления, вентиляции и кондиционирования воздуха, электропроводки, сантехники или структурных элементов вашего дома.
Шаг 3. Все очищено и готово к резке
Как только вы убедитесь, что область, где вы будете прорезать отверстие для вентиляционной трубы, свободна, вы можете продолжить. Используйте дрель и кольцевую пилу соответствующего размера, чтобы прорезать гипсокартон.
Открытие – выход наружу
Попробуйте найти отверстие в крыше для вытяжного зонта прямо над отверстием в потолке, если это возможно. Вертикальный участок воздуховода – идеальная ситуация
Шаг 1. Вертикальное движение. Лучше всего прямо вверх
Лучше всего расположить отверстие в крыше для вентиляционной трубы прямо над отверстием в потолке.Это исключает любые повороты в вентиляционной трубе. Прямые вентиляционные отверстия более эффективны и просты в установке.
Отметьте центр отверстия в крыше. Используя сверло меньшего размера (мы рекомендуем ¼ дюйма), просверлите отверстие в центре отверстия вентиляционной трубы. Протолкните что-нибудь через отверстие. Это облегчает поиск отверстия снаружи.
Шаг 2 – На крыше
Пришло время выйти на улицу и подняться на крышу. Найдите отверстие, которое вы просверлили изнутри, и осмотрите черепицу вокруг отверстия.Вы должны удалить достаточное количество черепицы, чтобы установить крышку вентиляционного отверстия на крыше, а затем снова запечатать крышу вокруг крышки.
Для каждого типа крышных вентиляционных крышек существуют свои методы и рекомендации по установке. Внимательно следуйте указаниям производителя. Мы предлагаем обильно нанести кровельный битум на верх и низ фланца крышки вентиляционного отверстия. Это обеспечит герметичность кровли.
Шаг 3 – Снова на чердаке
Теперь, когда крышка вентиляционного отверстия установлена и ваша крыша снова защищена от непогоды, пришло время установить вентиляционную трубу от вентиляционного колпака к крышке.Метод этой установки зависит от типа и стиля вентиляционной трубы, которая требуется для вашей вытяжки. Установите в соответствии со спецификациями производителя для трубы и вентиляционного колпака.
При всех установках мы рекомендуем герметизировать любые швы или стыки в вентиляционной трубе алюминиевой клейкой лентой. Это предотвратит попадание отработанного воздуха на чердак, где позже могут возникнуть проблемы.
Несколько советов, которые вы должны принять во внимание
- Используйте только вентиляционную трубу из оцинкованного металла, предназначенную для использования в системах ОВКВ.
- Не используйте вентиляционную трубу сушилки для белья или вентиляционные колпачки.
- Не используйте пластиковую вентиляционную трубу.
- Заклейте все стыки алюминиевой клейкой лентой.
- Закройте все заглушки наружных вентиляционных труб кровельным клеем
- Используйте только крышку крышного вентиляционного отверстия подходящего размера с защитой от насекомых
- Длина воздуховодов не должна превышать 35 футов.
- Не уменьшайте размер вентиляционной трубы.
.
Вам нужна установка или замена бытовой техники?
Получите бесплатные расценки без обязательств от профессиональных подрядчиков рядом с вами.![]()
НАЙТИ МЕСТНЫХ ПОДРЯДЧИКОВ
Больше приятных впечатлений от кухни
№
Результат вашей ручной работы доставит вам и вашей семье гораздо больше удовольствия на кухне. Вытяжка, которая отводит тепло, запах и твердые частицы от вашей готовки наружу, будет иметь огромное значение. Мы надеемся, что эта статья вселила в вас уверенность в том, что вы сможете модернизировать свой вытяжной колпак или установить новый вытяжной колпак в своем диапазоне. Удачи.
Деннис Ховард
Деннис — пожарный на пенсии с большим опытом работы в сфере строительства, благоустройства и ремонта. Он работал в торговле неполный рабочий день, служа действующим пожарным. Выйдя на пенсию, он начал бизнес по реконструкции и ремонту дома, которым руководил несколько лет.
Недавно опубликовано
ссылка на размеры удлиненного туалета (с чертежами)
Размеры удлиненного унитаза (с чертежами)
В жизни мало что может быть приятнее, чем вернуться домой после долгого дня и воспользоваться собственным туалетом.
Ремонт ванных комнат, как известно, сложен из-за ограниченного пространства, и выбор стиля может…
ссылка на стандартные размеры прикроватной тумбочки (с чертежами)
Размеры стандартной тумбочки (с чертежами)
Люди держат у кровати лампу, часы, книги, лекарства, очки и другие мелочи. Вы не представляете, сколько вещей вам нужно ночью, пока на вашей тумбочке не появится гора вещей…
Установка вытяжной вытяжки — хорошее домостроение
| Предупреждение о безопасности: Большинство вытяжек не тяжелые, но громоздкие, поэтому обратитесь за помощью в их установке. |
Вытяжки обычно привинчиваются к нижней части шкафа или крепятся непосредственно к стене. Типичная вытяжка устанавливается на 24-30 дюймов выше диапазона, хотя лучше проверить руководство по установке и местные строительные нормы и правила для конкретных требований.Воздуховод, выходящий из вытяжки, должен выходить из дома как можно ближе.
При планировании маршрута воздуховода используйте искатель шпилек, чтобы найти шпильки в стене за печью или через потолочные балки выше. Воздуховод должен выходить через сайдинг или кровлю. Чтобы найти отверстие для воздуховода, выровняйте вытяжку и отцентрируйте ее по диапазону.
Монтаж и прокладка вытяжки
Вырежьте отверстие в стене или потолке и вставьте наперсток — специальный фитинг, который создает отверстие в стене или потолке, в которое вставляется воздуховод.Если накладка уже установлена, вставьте воздуховод от вытяжки вверх в насадку на 3–4 дюйма выше ее окончательного положения 1 . Трение должно удерживать воздуховод на месте.
| СОВЕТ ПРОФЕССИОНАЛА: Вытяжка подходящего размера должна выступать примерно на 3 дюйма за пределы диапазона с обоих концов. |
Выровняйте вытяжку, отцентрируйте ее по диапазону и прикрепите болтами к стене 2 .
Установите капот по крайней мере в двух точках: Если шпильки позади капота имеют длину 16 дюймов.o.c., вам, возможно, придется прикрутить одну сторону капота к шпильке 3 , а другую сторону капота закрепить болтом с защелкой. После того, как капот установлен, сдвиньте воздуховод вниз по отводу на капоте 4 . Проклейте все стыки самоклеящейся металлической лентой.
1) Вставьте воздуховод в наперсток. | 2) Выровняйте, отцентрируйте и установите капот. |
3) Прикрутите как минимум одну сторону капота к шпильке. | 4) Опустите воздуховод на отвод капота и заклейте стык металлической лентой. |
Подключение вытяжки
Многие вытяжки имеют отдельные электрические распределительные коробки с выбивными отверстиями, в которые вставляются кабельные зажимы и кабели.
В показанном здесь примере кожух, закрывающий воздуховод, служит соединительной коробкой. Провода от вентилятора и освещения выходят через втулку в верхней части кожуха и присоединяются к проводам питающего кабеля Romex, который выходит из полости стены.
Зачистите и соедините пары проводов с помощью соединителей. Сначала соедините заземляющие провода (убедитесь, что на самом колпаке имеется заземляющий провод), затем нейтральные провода, а затем горячие провода 1 .
Чтобы минимизировать вес и избежать повреждения блестящих деталей отделки, многие профессионалы устанавливают фильтры вентилятора, отделку и другие атрибуты после установки кожуха капота. Большинство деталей просто встают на место — просто следуйте инструкциям 2 . Затем, если у вашей вытяжки есть нижний кожух, привинтите его на место 3 .Наконец, наденьте кожух на воздуховод и проводное соединение — они обычно удерживаются на месте одной парой винтов вверху и другой парой внизу 4 .
1) Соединить заземление, затем нейтраль, а затем горячие провода. | 2) Защелкните вентиляторы, фильтры и накладки. |
3) Прикрепите нижний кожух к вытяжке. | 4) Используйте винты, чтобы закрепить кожух на месте. |
Выдержка из Wiring Complete, 3-е издание (The Taunton Press, 2017 г.) Майкла Литчфилда и Майкла Макалистера
Доступен в магазине Taunton Store и на Amazon.com.
Практическое руководство. Установка бетонной вытяжки, часть 3
После того, как вы успешно отлили детали и полностью их закончили, вы готовы установить вытяжку.Вы уже предоставили подрядчику надлежащие чертежи, указывающие, где разместить блокировку (например, чертежи в верхней части этой страницы), расположение вентиляционных отверстий установлено, и все кронштейны были установлены до закрытия стены, если это указано.
Используйте список инструментов и материалов (на первой странице), чтобы собрать то, что вам нужно.
Первым шагом является отметка высоты устройства на стене с помощью счетчиков из утвержденных рабочих чертежей. Отметьте центр вытяжки и прикрутите планку (1) к стене, чтобы временно удерживать жатку на месте.Кроме того, отметьте внешние края (2), так как вы не сможете найти центр после размещения жатки. Затем к стене будет прикручен L (3) кронштейн, который выдержит вес блока и удержит его на месте, пока будут выполняться следующие задачи. Вся область за жаткой должна быть перекрыта согласно вашему чертежу, чтобы можно было свободно закрепить жатку там, где это может быть необходимо. Г-образный кронштейн будет установлен в центре места, где будут размещены опорные кронштейны. Кронштейны будут поддерживаться жаткой, поэтому важно убедиться, что жатка надежно закреплена.
Г-образный кронштейн можно утопить в стене за коллектором или заглубить в коллектор, чтобы коллектор плотно прилегал к стене.
Точно так же кронштейн ниже можно отшлифовать, чтобы приспособить его к толщине L-образного кронштейна и/или головок винтов Tapcon. Для вкручивания L-образного кронштейна в блокировку можно использовать два тяжелых шурупа № 10 или лучше для дерева или листового металла с полукруглой или плоской головкой. Требуемый размер должен только преодолевать возможную силу веса жатки.
Вам потребуется прикрепить доску или стойку (4) к передней части жатки, чтобы выровнять ее и нести нагрузку до тех пор, пока устройство не будет закреплено на месте болтами.Предварительно вырежьте плату и приготовьте зажим, чтобы удерживать жатку стабильно, пока вы ввинчиваете L-образный кронштейн в жатку.
После того, как вы выровняете жатку спереди назад и выровняете ее слева направо на шипе (1), вы можете привинтить (6) жатку к блокировке изнутри левой и правой полостей жатки, где болтов не видно и коллектор самый крепкий. Вы также можете использовать мастику, чтобы надежно прикрепить заднюю часть цоколя к стене.
Когда вы просверлите отверстие в головке диаметром 1/2 дюйма, а затем предварительно просверлите блокировку для стягивающего болта (6), вы готовы установить и затянуть стягивающий болт.Обязательно установите прокладку (5) в пространство между коллектором и стеной, если есть зазор, чтобы вы не изменили положение коллектора при его затягивании, и держите прокладки близко к болту, чтобы, когда он затянут вы не треснете и не повредите заголовок. НЕ затягивайте слишком сильно.
Это база, с которой вы будете работать. Каждый элемент отсюда будет ровно настолько, насколько вы сделали эту часть.
Следующим шагом будет размещение верхней секции молдинга (7), которая будет цельной.Сначала насухо установите молдинг на капоте и выровняйте свес, чтобы он был ровным со всех сторон. Отметьте это место и удалите. Вы можете использовать строительный клей PL Premium Construction Adhesive или силикон, чтобы склеить эти две секции вместе. Несколько мазков или бусинка подойдут, если их достаточно, чтобы заполнить небольшие пустоты между кусочками.
После установки необходимо механически закрепить не менее чем двумя Tapcons (8), по одному с каждой стороны. Обязательно просверлите коллектор снизу со сквозным отверстием для Tapcon и используйте 3/16-дюймовое сверло по каменной кладке, чтобы просверлить отверстие как в коллекторе, так и в молдинге для 1/4-дюймового Tapcon.Просверлите первое отверстие в жатке до 1/4 дюйма, чтобы плотно соединить две части.
Далее необходимо установить стальные уголки (12) над жаткой в пределах грудной клетки. Есть два меньших 3/8-дюймовых отверстия, которые вы будете использовать, чтобы прикрутить угол к стене и к блокировке. Ссылайтесь на требования к блокировке, которые были предоставлены вам на чертежах для положений угловых соединений и размеров блокировки.
Трос диаметром 3/16 дюйма (10) будет использоваться для прокручивания талрепа (9), прикрепленного к уголку стяжки (12), и каждый конец троса будет прикреплен к жатке .
Отверстия в колодке позволяют обмотать кабель вокруг фланца и использовать кабельные зажимы (11) для закрепления петель на кабелях.
Обязательно используйте два кабельных зажима на каждое соединение.
Талреп (9) используется для вытягивания провисания троса и его затягивания. Убедитесь, что талреп полностью выдвинут, и убедитесь, что имеется достаточно места для регулировки.
ПРИМЕЧАНИЕ. На этом этапе, поскольку для многих кодов требуется жесткий трубопровод для вентилятора, вам необходимо установить вентилятор, прежде чем продолжить.Вытяжной вентилятор опирается в центре коллектора на изготовленный кусок нержавеющей стали, который переходит от отверстия коллектора к размеру вытяжного вентилятора. Эта часть также может быть бетонной или даже деревянной с металлическим ламинатом.
Следующим шагом перед установкой груди является прикрепление кронштейнов (13). Эти две части центрируются на левой и правой базовых платформах жатки. Снизу вы будете использовать биту для каменной кладки или плитки, чтобы раззенковать головки двух винтов для гипсокартона (14).Просверлите кронштейны под углом, чтобы можно было вставить винты для гипсокартона (14) через кронштейн в блокировку за кронштейнами.
Эти винты, возможно, должны быть длиной до 4 дюймов, но 3 дюйма должно быть достаточно.
После того, как шурупы будут закручены, их нужно будет покрыть затиркой или полиэфирной смолой, аналогичной тем, которые используются для ремонта столешниц из натурального камня. Вы также будете использовать Tapcons для крепления верхней части кронштейнов к заголовку.
Сухая установка груди на место.Будьте осторожны, чтобы ограничить давление на переднюю часть жатки, когда вы размещаете грудку. Отметьте верхнюю часть груди (16), где она заканчивается на стене. Вентиляционная трубка, если она проходит через верхнюю часть грудной клетки, должна быть врезана в верхний фланец грудной клетки. Следите за тем, чтобы вырезанное отверстие было настолько маленьким, насколько это необходимо для размещения вентиляционной трубы (15).
После того, как вы отметили верхнюю часть груди (16), снимите грудь и измерьте толщину материала фланца груди. Эта толщина может иметь небольшую неравномерность, но используйте самое толстое измерение.
Если край имеет выступ, вы можете использовать 4-дюймовую шлифовальную машину с лезвием для каменной кладки, чтобы отшлифовать фланец, даже для размещения опорных блоков 2 на 4, чтобы они ровно прилегали к бетонному материалу.
Сделайте отметку ниже линии, которую вы сделали для верхней части грудки. Сделайте это при измеренной толщине материала фланца груди минус 1/8 дюйма. Вы поместите прокладку в этот зазор между грудью и коллектором, у стены. Это удерживает вес грудной клетки только за счет планки 2 на 4 ниже фланца грудной клетки и у стены между головкой и грудной клеткой.Это гарантирует, что ненужный вес не переносится на передний край жатки.
Просверлите сквозные отверстия в верхней части фланца груди, чтобы вы могли вставить четыре 2-дюймовых винта № 10 в 2 на 4, которые теперь находятся внутри груди, чтобы надежно удерживать ее на месте.
Готовая вытяжка из сборного железобетона
Если ваш проект включает в себя верхнюю молдинговую деталь, вы будете использовать силикон между грудью и молдингом или использовать клей PL Premium, чтобы закрепить эту часть на месте.
Как только все компоненты будут закреплены, вы будете использовать силикон, силиконизированную затирку или акриловую затирку для заполнения швов.Вы можете прикрепить дополнительные планки 2 на 4 к дополнительной блокировке по бокам груди, а также можете вставить дополнительные винты для поддержки, которые можно залатать или заполнить, чтобы скрыть их.
В первых двух частях этой серии инструкций Джефф Кудрик показал, как спроектировать и отлить этот бетонный колпак печи. Они были опубликованы в февральско-мартовском и апрельском номерах Concrete Decor за 2012 год.
Есть еще вопросы по вашему проекту?
.
Принудительные вытяжки подходят для служебных и вспомогательных помещений, так как работают без сбоев и защищают комнаты от опасности пожара или превышения уровня влажности.



Обычной пилой делать это будет сложно и долго, лучше использовать лобзик.

Но они обладают небольшим рабочим ресурсом. Хотя и провода им почти не нужны.
Гарь переходит к соседям из-за работы кухонной вытяжки. Но грамотный монтаж способен будет решить возникающие в данной сфере проблемы. Стоит подумать о том, чтобы снабдить конструкцию обратным клапаном.
Ножницами отрезаем части материала, оказавшиеся лишними.
В эту категорию можно отнести все вытяжки, которые крепятся непосредственно к стене (наклонные, каминные, т-образные). Они могут крепиться как сразу к стене (менее габаритные модели) так и на специальную планку, которая идет в комплекте с массивными и тяжелыми моделями.
Даже если у вас будут огрехи при вырезании отверстия электролобзиком, то они не будут в дальнейшем видны.
Выбранная вами вытяжка должна выступать на несколько дюймов со всех сторон зоны приготовления пищи.


