Икеа инструкция по сборке шкафа: Инструкция по сборке корпуса шкафа ПАКС ИКЕА
Инструкция по сборке корпуса шкафа ПАКС ИКЕА
Подробная иллюстрированная инструкция с пояснениями, сборки односекционного корпуса шкафа системы хранения серии ПАКС компании ИКЕА.
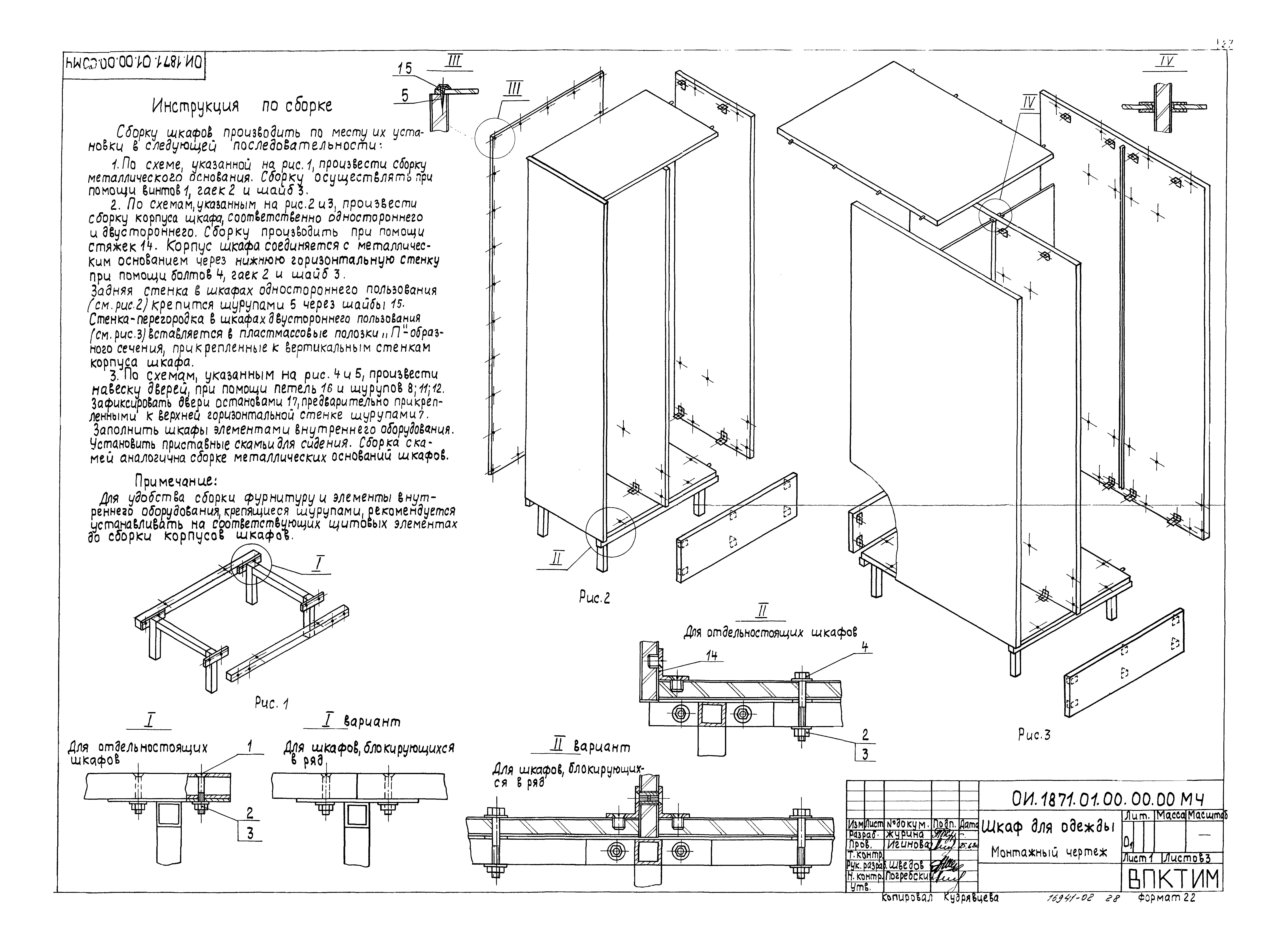
С помощью винтов зафиксируйте уголки на верхней части боковых стенок шкафа
В соответствующие отверстия вкрутите шток эксцентриковых стяжек
Вставьте деревянные шканты в отверстия низа и верха корпуса шкафа
с помощью молотка установите гайку в нижнюю панель
соедините резьбовую и пластиковую части опор до щелчка
и вкрутите в установленную ранее гайку
Вставьте шканты в цокольные планки
Измерьте с помощью рулетки высоту потолка в месте установки шкафа
Если высота составляет 244 и более сантиметров, шкаф можно собирать в горизонтальном положении.
Если высота потолка меньше 244 сантиметров, то шкаф придется собирать в вертикальном положении.
На одну из боковин установите нижнюю
и верхнюю панели шкафа
и зафиксируйте их эксцентриковыми стяжками.
Установите цокольные элементы шкафа
Установите вторую боковину шкафа
и зафиксируйте ее эксцентриками
переверните каркас лицевой стороной вниз
и установив в специальные углубления заднюю стенку шкафа
зафиксируйте ее гвоздями
Сборка шкафа в вертикальном положении
С помощью напарника придерживая в вертикальном положении боковину шкафа установите цокольные элементы
затем установив на них нижнюю панель
зафиксируйте эксцентриками
установите верхнюю панель
Соединив конструкцию с боковой стенкой
зафиксируйте их эксцентриками сверху
и снизу
Вставите в углубления заднюю стенку
Придерживая заднюю стенку шкафа, зафиксируйте ее гвоздями
Прикрепите корпус шкафа к стене, не заворачивая крепеж до конца.
и отрегулируйте опоры до строго вертикального положения.
Заверните до конца крепления к стене и закройте их пластиковыми уголками
отверстия в нижней и верхней панелях закройте заглушками.
Если шкаф состоит из двух или более секций, соедините их стяжками
Сборка шкафа Пакс Икеа — Сборка мебели компания Икеамастер
Голландские шкафы для одежды отличаются практичностью, изысканным стилем, доступными ценами. Предлагаются они самых разных размеров и вариантов отделки фасада. Какой бы вы не выбрали гардероб пакс икеа, сборка шкафа все равно возлагается на покупателя. Обычно, когда речь идет о шкафах пакс, инструкция по сборке обязательно прилагается изготовителем.
Это подробная технологическая карта сборочного процесса, где указано необходимое количество людей и способы крепежа, включая необходимое для сборки пространство.
Гардероб, сборка которого обычно производится на полу, собирается в горизонтальном положении, а потом поднимается прямо на место установки.
В квартирах с низкими потолками, стандартный икеа пакс приходится собирать в вертикальном положении, так как габариты не позволяют производить подъем с поворотом. Вот в какой последовательности происходит сборка гардероба икеа на практике:
- В вертикальные панели вставляются винтовые цилиндры. Войлочные набойки для защиты паркета наклеиваются снизу. Удаляем половой плинтус на участке стены, где будет производится установка и сборка шкафа пакс;
- Предварительная сборка гардероба пакс заключается в монтаже шкантов и эксцентриков в полки;
- В передний цоколь устанавливаются шканты, на нижнюю полку опорные ножки;
- Регламентная сборка пакс икеа задней стенки шкафа предусматривает предварительное сверление отверстий сверлом 1-1,5 мм на расстоянии 5 мм с края;
- Начинается сборка пакса с того, что в вертикальную панель вставляется цоколь;
- Вставляется нижняя полка, фиксируются замки;
- Продолжается сборка шкафа купе пакс установкой верхней полки;
- Присоединяется на шканты и штоки вторая вертикальная панель;
- Важный этап сборки шкафа пакс — закрепление задней стенки.
Оргалит прибивается к вертикальным панелям гвоздями; - Сборка двери пакс зависит от конструкции. По своей технологии собираются распашные и раздвижные двери;
- Достаточно тяжелый шкаф икеа необходимо прикреплять к стене специальными анкерными болтами. В момент закрепления проверяется вертикальность и горизонтальность установки.
Без навыков, опыта и инструмента собирать шкаф пакс не рекомендуется. Обратившись в IKEAМАСТЕР вы можете рассчитывать на добросовестное отношение сборщика Александра, уже много лет собирающего голландскую мебель в Санкт Петербурге. Каждый очередной шкаф пакс икеа становится для мастера поводом продемонстрировать профессионализм и подлинное умение.
Закажите у нас сборку шкафа пакс — ЗАКАЗАТЬ.
Для расчета стоимости сборки свяжитесь с нами любым удобным способом:
Сборка шкафа ИКЕА своими руками: описание мебели, подготовка и правила монтажа
13.
07.2018 10:18 | Категория: Общие советы
Приобретая мебель в дом, прежде всего хочется, чтобы она была функциональная, простая в эксплуатации и вместе с тем отличалась оригинальными мелочами и вместимостью.
Этим требованиям полностью соответствует мебель фирмы ИКЕА. Она современна, красива, полностью безопасна и долговечна.
Преимущества мебели
Мебельный рынок предоставляет широкий выбор изделий в разных стилевых решениях, от известных и новых производителей, различной ценовой линейки. Чем же привлекает покупателей продукция фирмы ИКЕА, помимо многих лет присутствия на рынке? Несомненные плюсы мебели ИКЕА:
- максимум функциональности в сочетании с эргономичностью и компактностью;
- огромный ассортимент разных цветов, моделей;
- доступность цен;
- экологическая безопасность и надежность конструкций;
- единая концепция, что легко решает задачу подбора предметов в одном решении, органично сочетая мягкую и корпусную мебель.

Описывая мебель этого производителя, нельзя не упомянуть о следующем:
- среди простых форм изделий ИКЕА не найдете предметов с вычурными линиями или резными элементами;
- массовость производства предполагает схожесть мебели и отсутствие эксклюзивности.
Классические или открытые конструкции, платяные шкафы для спальни или гостиной — можно легко купить гардероб ИКЕА на ikeastore.com.ua/Garderoby-287 компаний-представителей бренда ИКЕА. Они идеально подойдут в комнаты разных размеров и конфигураций, полностью подтвердят свою вместительность и удобство.
Высокое качество, оригинальность и стильность обеспечивают бренду ИКЕА широкую популярность и спрос на мировом рынке мебели, тем более что ее сборку достаточно просто осуществить своими руками. Для этого нужно быть просто внимательным, совершать все операции по монтажу с точностью и в соответствии с инструкцией.
Подготовка
Любая сборка начинается с подготовки инструмента и рабочего места.
Для быстрого и правильного монтажа шкафа ИКЕА нужно иметь под рукой набор разных отверток, шуруповерт, гаечный ключ, приборы для проверки уровня и ровности, молоток, маркер и необходимые крепежи при их отсутствии в комплектации.
Габариты шкафа выбирают в зависимости от места его установки. Они должны быть на несколько сантиметров меньше по высоте и ширине, чем предполагаемое место расположения, для удобства монтажа и возможности идеально ровной установки шкафа.
Собирать шкаф можно как на полу, так и на месте установки. Перед началом процесса сборки освобождается рабочее пространство от лишних предметов, пыли и мусора. Для удобства и сохранности крепежных элементов, чтобы они не растерялись во время работы нужно подготовить любую емкость для различных метизов. Нужно уделить внимание и стенам, предварительно выровняв их, очистив от пыли, при необходимости укрепив.
Правила сборки
Чтобы собрать мебель правильно и получить надежную конструкцию, нужно обязательно ознакомиться с инструкцией и строго придерживаться указаний производителя.
А следуя определенным правилам, можно ускорить процесс сборки и не сделать распространенных ошибок:
- строго соблюдается очередность работы, не нужно спешить и сразу доставать все элементы из упаковки и тем более смешивать детали из разных пачек;
- изначально проверяется полнота комплектации и соответствие по цветовой гамме фурнитуры, наличие крепежных элементов;
- постоянно уточняйте последовательность и правильность работ по инструкции, которая должна быть все время рядом;
- монтаж начинается снизу к стенкам;
- чтобы избежать повреждений, стекло и зеркало устанавливают в конце сборки.
При отсутствии вкладыша с инструкцией по сборке шкафа, можно зайти на сайт «ИКЕА» и ввести артикул товара из восьми знаков, который указан на упаковке. Подробный инструктаж по монтажу мебели будет под рукой.
Этапы сборки
Каждый тип шкафа имеет особенности сборки, но основное правило едино для всех — как можно чаще сверяйте шаги с руководством и уделяйте больше внимания маркировочным номерам, определению изнаночной и лицевой стороны элементов мебели.
Также, не нужно сразу все крепления полностью затягивать до упора, лучше подтянуть их после окончания работ и полной уверенности в правильности монтажа.
Есть два способа сборки шкафа ИКЕА: горизонтальный и вертикальный. Первый удобен тем, что можно избежать перекосов и сдвига деталей и крепежей. А второй подойдет в случае недостаточной высоты потолков и невозможности аккуратно поднять и установить готовый шкаф.
Этапы сборки проходят в следующей последовательности:
- после аккуратного вскрытия упаковки все элементы распределяют вдоль стены по виду элементов, определяют дно (имеет несколько рядов отверстий) и верх (в наличии крупные дыры для штифтов), разделяют по отдельным емкостям гайки, болты, винты.
- прикрепляют ко дну деталь цоколя и ножки для выравнивания шкафа на неровном полу. Затем соединяются боковины с дном. Для закрепления полученной конструкции и чтобы избежать ее крена устанавливают промежуточную стойку и полку.
- после фиксации стенок снизу в их верхнюю часть вставляют штифты из металла для закрепления потолка.
Когда он будет установлен, проверяют плотность прилегания деталей друг к другу. Вставленные в отверстия шляпки крестовиной внутрь затягивают с помощью отвертки. - устанавливают заднюю стенку на «саморезы». После этого шкаф поднимают при горизонтальном способе сборки и устанавливают в предназначенное место.
- закрепляются направляющие для ящиков, крепления для полок, штанги для одежды. Проверяют плавность движения ящиков:
- если шкаф состоит из нескольких секций, то их нужно скрепить между собой ребрами жесткости. Они вставляются под дно и фиксируются штифтами.
- для установки дверей монтируют полозья на дно и потолок шкафа саморезами, которые на концах закрываются заглушками.
- на них крепят еще одну направляющую, на верхнюю часть – надевают крепления для двери из пластика.
- устанавливают двери, проверяют плавность их открывания и закрывания. Если нужно, корректируют правильность их монтажа. Завершает работу наклейка уплотнительных щеток и установка заглушек.

Провести сборку шкафа — купе ИКЕА достаточно просто. При наличии желания, определенных навыков и приложив некоторые усилия, это можно сделать без особого труда.
Как самостоятельно собрать кухню из «Икеи» и сколько на этом можно сэкономить
Когда я узнал, сколько стоит сборка икеевской кухни, решил собрать ее сам.
Андрей Кабушев
сам собрал кухню
Профиль автора
В 2020 году мы с женой купили в «Икее» кухню: 113 000 Р стоили шкафчики и фурнитура — ручки, петли и направляющие для выдвижных шкафов. Еще 73 000 Р мы отдали за мойку, смеситель и технику: духовой шкаф, вытяжку и варочную панель. Холодильник и стиральная машина у нас уже были. Оставалось только собрать шкафы и установить технику.
Моя работа не связана со сборкой мебели — я менеджер в ИТ-компании. Но я уже собирал кровать из «Икеи», шкаф, тумбу, стол и вешал на стену полки. Умел пользоваться шуруповертом и один раз пилил лобзиком. В общем, решил, что и кухня мне по плечу.
Нашел в интернете инструкции, запасся инструментами и принялся за работу. Расскажу, что и в каком порядке делал и что в итоге получилось.
Эту кухню я собрал сам. Ее размеры — 178 × 279 см
Сколько бы мы заплатили мастерам
Профессионалы собирают кухни за 1—3 дня. Каждая работа оплачивается отдельно: сборка шкафов, установка техники, вырезание отверстий под мойку и варочную панель.
В «Икее» собрать один шкафчик стоило 999 Р — и это без дверок, ручек и внутренних полок. С ними каждый обошелся бы в 1399 Р. Встроить технику из «Икеи» стоило 999 Р за штуку. А из другого магазина — 2499 Р. У нас было 10 шкафов, а из встраиваемой техники — вытяжка, духовка и варочная панель. Первые две — из «Икеи», а варочная панель — из «Техпорта». Так что в «Икее» сказали, что сборка обойдется от 20 000 Р, а точную цену сообщит мастер на месте.
«Икея»: прайс на сборку кухоньPDF, 45,7 КБ
Я связался со специалистом, который собирал кухню соседу. Он попросил по 1000 Р за шкаф и по 2000 Р за единицу встраиваемой техники и мойку.
Получилось 20 000 Р. Столько же вышло и на сервисе «Руки», а мастер с «Юду» вообще насчитал 24 300 Р. Для нас все это было дорого — вот мы и решили собрать кухню сами.
Мастер с «Юду» потребовал за сборку больше всех. И это еще со скидкой — без нее выходило 27 000 Р
Где я взял инструкции по сборке
Я нашел в интернете много видео о сборке кухонь. Но в большинстве человек с отверткой просто говорил: «Сейчас расскажу, как собирать», — а через пару секунд с довольным лицом показывал полностью готовую кухню.
В итоге я обнаружил на сайте «Икеи» пошаговую видеоинструкцию. В 10 роликах рассказывалось, на что обращать внимание при сборке и как все исправить, если что-то сделаю не так.
Видео на ikea.com: «Самостоятельная установка кухни»
Руководство по установке кухни «Икея»PDF, 2,8 МБ
Параллельно я читал текстовое руководство — там был даже список нужных инструментов и советы, как подготовить помещение к сборке. Инструкции помогли разложить в голове порядок действий и понять основные рекомендации.
Инструменты я разделил на 2 списка: обязательные и желательные. Еще понадобилось много расходных материалов.
Я убедился, что главный помощник в сборке — это не инструменты, а второй человек. Вдвоем удобнее навешивать шкафы и устанавливать вытяжку: пока один их держит, второй прикручивает. И вместе работать быстрее. Мне помогали жена, соседи и друзья. А вечерами мы ели пиццу и жаловались друг другу, как болят спина и ноги.
Как грамотно потратить и сэкономить
Рассказываем в нашей рассылке дважды в неделю. Подпишитесь, чтобы совладать с бюджетом
Обязательные инструменты
Шуруповерт стал продолжением моей руки. У меня Dexter Power 5227.2A. Его мне подарила жена пару лет назад. Я вкручивал им саморезы и делал мелкие отверстия в стенках и в столешнице. Например, для смесителя и для установки петель в дверцу.
Шуруповерт Dexter Power 5227.2A — 2975 Р
Вообще, отверстия делают дрелью, но если нужно сверлить не бетон, то хватает и мощности шуруповерта
Стремянка понадобилась, чтобы повесить верхние шкафы.
Я прикинул, что в ней должно быть минимум 4 ступени. Мы купили ее в «Леруа Мерлен» за 700 Р.
Электрический лобзик тоже был незаменим. У меня Stanley Fatmax FMES550 мощностью 550 Вт — я покупал его раньше, но не специально для кухни. Без него невозможно подрезать шкафы под нужный размер, вырезать отверстия для вытяжки, варочной панели и мойки. Им же я разрезал столешницу — ее привезли кусками больше чем нужно.
Лобзик Stanley Fatmax FMES550 — 3098 Р
До сборки кухни я пользовался лобзиком всего раз — разрезал тонкую деревянную панель. Теперь предстояло распилить толстую столешницу
Струбцины — это приспособления, которыми можно плотно стянуть две плоских поверхности. Например, стенки двух соседних шкафов, чтобы их выровнять и зафиксировать. Еще я закреплял струбцинами доски от шкафов, когда резал их на столе лобзиком — так не боялся, что они начнут съезжать.
Струбцины бывают ручные и полуавтоматические. Первые стоят в среднем по 200—300 Р, но в них нужно долго закручивать гайку.
Вторые дороже, но достаточно нажать на рычаг, и струбцина сожмется. Я купил на «Озоне» 2 быстрозажимных струбцины за 888 Р.
Универсальные струбцины Kubis, 2 шт. — 777 Р
Крайняя справа — ручная струбцина с гайкой. Она шла в комплекте с лампой. А когда я собирал кухню, пользовался струбцинами слева. Чтобы что-то стянуть, нажимал на синие рычаги
Измерительная лента, рулетка и карандаш понадобились, чтобы отмерить нужную длину шкафа, который пришлось обрезать. У меня была лента на 3 м.
Отвертки — нужны были крестовая и прямая, с плоским концом. Они выручали, когда шуруповерт куда-то не пролезал или неожиданно садился, хоть я и старался вовремя его заряжать. Отвертки у меня уже были — специально я их не покупал.
Строительный уровень — прибор, который помог мне повесить и поставить шкафы идеально ровно, параллельно поверхности земли. Сначала я пользовался уровнем на Айфоне, но он не внушал доверия, да и держать его было неудобно.
В итоге купил на «Озоне» обычный строительный уровень за 427 Р.
Магнитный уровень Matrix — 438 Р
Сверху — уровень на Айфоне. Я приставил его к столешнице и вижу, что она не наклонена по отношению к земле — угол 0°. Снизу — строительный уровень. Когда овальный пузырек четко между двумя линиями — наклона нет
УЧЕБНИК
Как жить в России
Расскажем о налогах и правах, поможем не теряться при поиске квартиры и оплате коммунальных услуг
Начать учиться
Необязательные инструменты
Стол, на котором можно распилить доску. Мы использовали два стола: обеденный и рабочий для ноутбука. Они одинаковой высоты, и мы ставили их рядом. Чтобы не испортить поверхности, клали сверху картон, в котором привезли шкафчики.
Болгарка — машинка для резки металла. Мне ее одолжил сосед, чтобы я распилил шины для навеса шкафов. Что такое шины, я расскажу дальше. Они продаются по 2 м, и пришлось делить их на куски нужной длины.
На «Яндекс-маркете» я видел болгарки от 1193 Р, но покупать не стал.
Если бы у соседа такой не оказалось, купил бы обычную пилку по металлу: для новичка она безопаснее
Ударная дрель — как шуруповерт, но мощнее и как бы бьет в место, которое сверлит. Дрель я взял у соседа и делал ею отверстия в несущей стене, когда вешал на нее шкафы. Эта стена была из плотного бетона с арматурой внутри. Мощности шуруповерта на нее не хватило.
Угольник — что-то вроде угловой линейки. Он помогал мне отмерять углы ровно под 90°, когда я подрезал один шкаф. Я купил угольник на строительном рынке у дома за 150 Р.
Пока я не купил угольник, отмерял углы обычной линейкой. Это было неудобно и ненадежно
Канцелярский нож у меня был и понадобился, чтобы укоротить сливной шланг от сифона. Про сифон я подробнее расскажу дальше.
Защитные очки оберегали глаза от опилок и трухи, которая летела во время распила. В первый день я пилил без очков, а потом купил их в «Фикс-прайсе» за 50 Р — стало комфортнее и безопаснее.
Без очков я постоянно щурился и промывал глаза от пыли
Расходники
Саморезы и дюбеля. Саморезы — это длинные прочные металлические стержни с резьбой. А дюбеля — вроде пластиковых гнезд для саморезов. Чтобы повесить шкаф на стену, я сначала делал в ней отверстие, потом вбивал туда дюбель и уже в него вкручивал саморез. Если просто вкрутить саморез в стену, однажды он расшатается, отверстие станет слишком широким, саморез вывалится, шкаф упадет.
Дюбеля и саморезы иногда продаются наборами. Сначала я купил 2 набора в «Икее». В одном саморезы и дюбеля были покороче — 1,6—4,5 см, а в другом подлиннее — 3—6 см. Маленькие стоили 349 Р за 200 штук, а большие — 699 Р за 260 штук. Но почему-то я усомнился в их надежности и заказал на «Озоне» дюбеля покрепче — выбрал по отзывам 20 штук за 308 Р. На вид они толще, и у них есть направляющие, которые не дадут дюбелю выпасть.
Дюбель для газобетона, 20 шт. — 300 Р
Саморезы и белый дюбель из набора «Икеи».
Серый дюбель — с «Озона». На вид он крепче икеевского
Металлические уголки нужны, чтобы перпендикулярно скрепить две доски. У меня такие были дома. Я использовал 3 уголка для шкафа, который уменьшал, и еще 2 — для панели слева от стиральной машины. Уголками я прикручивал к шкафам столешницу. У остальных каркасов для этого были металлические перекладины в верхней части.
Бита для шуруповерта — это насадка, которую вставляют одним концом в шуруповерт, а другим — в болт, чтобы его вкрутить. Для сборки кухни понадобились биты с прямым и крестовым сечением, как и отвертки. Моя бита шла в комплекте с шуруповертом.
Такие уголки очень прочные и удержат даже тяжелую кухонную столешницу. Источник: «Леруа Мерлен» Моя бита. С одного конца она была крестовая, с другого — прямая
Сверла вставляются в шуруповерт, чтобы им можно было сверлить. Мне понадобились по дереву, бетону и круговое сверло. По дереву у меня были: когда-то я покупал упаковку сверл Dexter диаметром 3, 4, 5, 6 и 8 мм.
Сверла по бетону заказал на «Озоне», когда понял, что первые не справляются с несущей стеной. Упаковка из 8 штук марки Metabo стоила 532 Р.
Набор сверл по бетону Metabo, 8 шт. — 881 Р
Круговым сверлом Форстнера я делал в столешнице отверстие для смесителя. Оно было диаметром 35 мм. Покупать не пришлось — сверло шло в комплекте с мойкой.
Малярный скотч пригодился, когда я резал столешницу. Я боялся сколов, поэтому клеил скотч на место реза, а линию распила чертил прямо на нем. Скотч придерживал края, пока я резал, — выходило аккуратно. Два скотча со строительного рынка обошлись в 358 Р.
Прозрачный герметик и пистолет к нему. Клей-герметик похож на жидкую резину. Им я обрабатывал участки, куда может попасть вода. Например, места спилов на столешнице: от воды они могли разбухнуть, и там бы завелась плесень. Я купил на «Озоне» 2 тюбика за 814 Р: сначала по ошибке купил белый вместо прозрачного. Клей выдавливал специальным пистолетом, он обошелся в 230 Р.
Я видел пистолеты и от 1000 Р, но купил самый дешевый и остался доволен. Источник: «Леруа Мерлен»
Пилки для лобзика — это то, чем он пилит поверхность. На упаковке всегда нарисовано, какие пилки подходят для металла, а какие — для дерева. Указаны допустимая толщина доски и какой будет край: рваный или ровный.
Пилки, которые делают ровный спил, режут медленно и годятся для тонких досок. Такими я пилил стенки каркасов. Пилки для рваных краев режут быстрее и подходят для толстых досок — ими я резал столешницу шириной 3,8 см. У меня была еще пилка для фигурного реза — ею я делал отверстия в задних стенках каркасов: они из тонкой фанеры.
Мой набор слева — из пилок под разные материалы и спилы. А справа — 5 одинаковых пилок для ровного реза по дереву. На упаковках нарисовано, какие выйдут срезы
Этап 1
Как я обрезал и собирал угловой каркас
Короткая сторона кухни у нас была 178 см. Мы собирались поставить с краю холодильник шириной 60 см и оставить между ним и шкафом 5 см запаса.
Чтобы кухня вплотную встала в угол, нужен был шкаф для мойки шириной 113 см. Таких в «Икее» не было — пришлось брать 128 см и укорачивать на 15 см.
В нашей однушке мало места, и если бы мы сначала собрали остальные шкафы, было бы негде обрезать этот. Так что мы начали с него.
Я спланировал, какие детали укорочу. Щит, который стыкуется с длинной стороной кухни, потом сдвинул, и отверстие для двери получилось не 60, а 45 см
Шкаф состоит из каркаса и дверцы, то есть фасада. Я боялся перепутать и урезать не те доски каркаса. Поэтому сначала расставил детали так, как они будут в собранном виде. Отмерил рулеткой, сколько и где отрезать, и начертил линию среза карандашом. Затем положил доску на стол и попросил жену крепко держать доску. А сам включил лобзик и начал резать.
Я держал в руках лобзик второй раз в жизни и не знал про некоторые нюансы. Например, что если вынуть лобзик из детали до остановки пилки, лобзик начнет трясти, и пилка повредит доску. А когда я съехал с разметки, стал сдвигать основание лобзика, чтобы выровнять направление реза.
В итоге немного погнул пилку и спилил больше. Оказалось, нужно было вращать весь лобзик, а не смещать его основание. А неровности просто подравнять лобзиком.
Теперь в каркасе дырка. Хорошо, что она в углу внутри и ее не видно
На каркасах из «Икеи» уже есть отверстия для болтов и саморезов, которыми соединяют доски. Например, в доске, которая будет дном шкафа, они сбоку — по стороне, которой измеряется толщина доски. Чтобы соединить дно с боковой стенкой, в нее нужно вставить длинный саморез. А потом приставить доски так, чтобы он попал в отверстие.
В угловом каркасе некоторые отверстия я отрезал, когда его укорачивал. Пришлось делать новые самому. Места для них я наметил карандашом, а потом проделал шуруповертом со сверлами по дереву на 3 мм.
Еще пришлось делать 2 квадратных отверстия: одно — для провода и шланга от стиральной машины, другое — для розетки. Сначала я просверлил по 4 круглых отверстия по углам будущих квадратов. Использовал сверло на 8 мм. А потом прошелся лобзиком от одного отверстия к другому.
Если бы мы не укоротили шкаф, он бы не поместился По вырезу для розетки видно, что сначала я сверлил маленькие круглые отверстия по углам. В них потом удобно было вставлять пилку от лобзика
Этап 2
Как я собирал остальные каркасы
Собирать каркасы просто, главное — следовать инструкции. Чтобы подолгу не искать нужные болты, саморезы и другие детали, я высыпал пакетик с деталями на стол и разобрал все по группам: саморезы к саморезам, винтики к винтикам.
У нас 11 каркасов, половина — навесные, а половина — напольные. Мы с соседом собрали все примерно за 3 дня — это не сложная, но однообразная работа. Сосед шуруповертом прикручивал к боковым стенкам направляющие для выдвижных ящиков и крепления для навеса. Потом мы насаживали на одну стенку верх и низ шкафа. Затем ставили заднюю панель и крепили вторую боковую стенку. А в конце прибивали заднюю панель гвоздями, чтобы каркас был ровным и с прямыми углами. Затем за час я собрал еще 4 маленьких выдвижных ящика.
У нас были сложности только со шкафами для сушки посуды и встраиваемой вытяжки. А еще с пространством под стиральную машинку. Когда я собрал шкаф для посуды, то понял, что у нас встраиваемая сушка, а не отдельная. Такую сушку нужно было крепить к шкафу вместо дна. Пришлось переделывать.
Теперь я знаю, что встраиваемые сушки крепятся к шкафу вместо дна
Перед тем как собирать каркас для вытяжки, я прочитал к ней инструкцию. Понял, что нужно сделать отверстия для воздуховода и урезать заднюю панель каркаса по высоте, потому что снизу она мешала бы вытяжке.
Инструкция по сборке каркаса для вытяжки «Икея»PDF, 8,88 МБ
Мы хотели установить вытяжку так, чтобы запахи уходили по воздуховоду в вентиляционный лючок под потолком. Купили в «Икее» воздуховод диаметром 15 см за 1700 Р. И вырезали под него отверстия в верхней и нижней стенках шкафа. Потом поняли, что этот воздуховод будет слишком заметен над кухней, и жена будет страдать. Купили еще один воздуховод. Он стоил 1750 Р, был поуже и не такой заметный.
Но отверстие диаметром 15 см оказалось для него слишком велико. Пришлось с этим смириться.
Собранные каркасы мы расставляли на полу Для нового воздуховода нужны были отверстия диаметром 10 см, но предыдущие было уже не уменьшить
У нас не встраиваемая, а обычная стиральная машина. Каркасов под нее в «Икее» не было, а просто задвинуть ее под столешницу было нельзя: тогда бы край столешницы висел в воздухе.
Мне прислали из «Икеи» инструкцию, как сделать слева от машины опору для столешницы. Вместе с кухней мы сразу купили каркас шириной 40 см и сделали из него так называемую сэндвич-панель — по толщине она как три обычных стенки шкафа. Просверлили в ней лобзиком отверстие для провода и шланга. А снизу прикрутили ножки. На эту сэндвич-панель удалось даже повесить дверцу, чтобы закрывала машинку.
Как сделать сэндвич-панель из каркаса шириной 40 смDOCX, 124 КБ
Слева от машины находится сэндвич-панель. А справа мы прикрутили на уголки полоску декоративной панели.
Она закрывает щель между духовкой и стиральной машиной Это сэндвич-панель. Я делал ее сам из каркаса шириной 40 см
Этап 3
Как я вешал настенные шины
Нижние шкафы мы решили просто прикрутить к стене. А верхние нужно было навешивать. Есть два способа это сделать: навесить каждый отдельно или все вместе — на металлическую шину, то есть рейку с отверстиями. Если вешать отдельно, трудно подогнать шкафы по высоте: один будет выше, другой ниже.
Нам понадобились две шины по 2 м. Но на короткую стену нужно было всего 1,3 м, а на длинную — 2,7 м. Так что одну шину я распилил болгаркой на два куска: по 1,3 м и 0,7 м.
Болгарку мне одолжил сосед. Я раньше ею не пользовался и сначала прочитал инструкции по безопасности в интернете. Надел плотные штаны, кофту с капюшоном и защитные очки. Управился за 20 секунд, но очень нервничал: любое неверное движение — и я мог лишиться пальца. В следующий раз лучше куплю обычную пилку по металлу или закажу распил где-нибудь еще.
По ошибке мы купили в «Икее» 4 таких шины по 700 Р. Но пригодились только 2, а остальные мы потом сдали обратно. Источник: ikea.com
Чтобы понять, на какой высоте крепить шину, мы с соседом приложили один шкаф к стене. Карандашом разметили расположение шины и предполагаемых отверстий для дюбелей. Затем просверлили отверстия глубиной по 6 см и диаметром по 8 мм. С короткой стеной справился даже шуруповерт со сверлом по бетону. А длинная стена была несущая — ее пришлось сверлить ударной дрелью соседа.
Сверлить оказалось легко. Сложнее было только удержаться на стремянке в процессе. Чтобы не упасть, я стоял одной ногой на стремянке, другой — на стиральной машине.
В готовые отверстия мы вбили молотком дюбеля, шуруповертом с крестовой битой закрутили в них саморезы и навесили шину. Довольно трудно было выровнять ее по уровню: шина длинная, и от малейшего движения шел перекос. Вся работа с шинами заняла у нас полдня.
Чтобы наметить место для шины, мы приложили один верхний каркас к стене.
Держать его не хотелось — поставили на стиральную машину и еще один каркас
Этап 4
Как я устанавливал каркасы и вытяжку
На установку каркасов у нас ушел целый день. Сначала мы навесили верхние шкафы, одновременно встроили вытяжку, а потом установили нижние. Иначе они бы мешали поставить стремянку.
Верхние каркасы оказалось труднее всего поднимать: они были тяжелые, высотой по 100 см и норовили перевернуться и упасть на нас сверху. А само навешивание было простым: мы прикладывали крепления к шине и опускали каркас.
На этом же этапе мы установили вытяжку — прикрутили ее к нижней полке по инструкции. Потом поняли, что торопиться не стоило: вытяжка потом мешала установить дверцу — расскажу об этом дальше.
Навешенные каркасы легко было двигать по шине
С нижними каркасами были свои сложности. Их пришлось поднимать, чтобы поставить на нужные места. А если бы мы их двигали, могли сломать ножки. Плюс в инструкции советовали крепить эти каркасы к стене.
Не думаю, что без этого они бы упали: потом я стянул их между собой, а сверху придавил тяжелой столешницей. Но на всякий случай решил следовать инструкции.
В задних стенках каркасов уже были заводские прямоугольные отверстия. Еще в комплекте шли уголки. Одну сторону уголка нужно было прикрутить к стенке каркаса, а другую — через отверстие к стене.
Я расставлял каркасы вдоль стены в нужном порядке и размечал на боковых стенках каркасов и на стене, где будут отверстия для саморезов. Потом убирал шкафы и сверлил стены шуруповертом и ударной дрелью. Очень боялся попасть в провода, замурованные в стены. Но вспомнил, что во время ремонта нам проложили их под розетками строго вниз, а над выключателями — вверх. В итоге один нижний шкаф я не прикрутил: над предполагаемыми отверстиями были розетки, и я бы точно пробил провод.
В отверстия в стенах я вбил молотком дюбеля и снова расставил каркасы по порядку. А в конце соединил каркасы и стены уголками с помощью саморезов.
Самому пришлось только сверлить отверстия для саморезов. А прямоугольное окошко сделали на заводе
Этап 5
Как я разрезал столешницу
У нас было 2 куска столешницы из ДСП толщиной 3,8 см, а длиной по 186 и 246 см. Надо было отрезать от них нужные куски и сделать отверстия под мойку, смеситель и варочную панель. На все ушло полтора дня — дольше всего я вымерял отверстия для мойки и варочной панели.
Сначала я замерил, какой длины нужны куски. Получилось 113 см и 213 см. И обнаружил, что строители сделали угол кухни не 90°, а 95°. Пришлось измерить расстояние от задней стенки холодильника до угла и от дверцы холодильника до этого же угла.
Потом мы с соседом положили столешницу одной стороной на обеденный стол, а другой — на компьютерный столик. В одиночку было бы тяжело это сделать. Потом отмерили на столешнице нужные расстояния, и я резал ее не под прямым углом, а наискосок. В целом это было не сложнее, чем распиливать доски от шкафов. Но дольше: столешница толстая, и пилка быстрее затуплялась и медленнее шла.
Угол не прямой — столешницу резали так, чтобы выглядело ровно
Делать отверстия для варочной панели и мойки нужно после того, как их купили: размеры отверстий всегда индивидуальны. Какие нужны нам, я нашел в инструкциях к мойке и панели.
Мы с соседом положили столешницу на каркасы, и я оклеил будущие места среза скотчем, чтобы спил был ровнее. Потом начертил линии среза. Был особенно внимателен с отверстием для варочной панели: оно должно было быть ровно над соответствующим каркасом.
Потом мы с соседом сняли столешницу и перенесли на стол. Отверстия для мойки и варочной панели предполагались прямоугольные, но сначала я просверлил по углам круглые диаметром 8—10 мм. Потом вставлял в каждое пилку для лобзика и резал по направлению к другому отверстию. В конце попросил соседа поддерживать выпиленные куски снизу: они могли выпасть, сломать пилку и обломить столешницу там, где я еще не допилил. А когда мы переносили столешницу, придерживали ее в тонких местах возле спилов: боялись, что там она сломается.
Если бы отверстие под варочную панель я выпилил левее или правее, стенки нижних каркасов не дали бы ее встроить Я не ошибся: варочная панель встала идеально
Смеситель можно было вмонтировать не в столешницу, а в саму мойку. Но нам захотелось в столешницу: так он бы встал ровно за мойкой. А иначе пришлось бы вмонтировать его в ту часть мойки, где сохнет посуда, и пришлось бы его поворачивать.
Для смесителя я просверлил шуруповертом круглое отверстие диаметром 35 мм — пригодилось сверло Форстнера. Сверло легко утапливалось в столешницу, пока не прошло ее насквозь.
Потом я на всякий случай обработал все спилы герметиком, особенно отверстие для смесителя. Это нужно, чтобы эти места не вздулись, если в них попадет вода.
Этап 6
Как я фиксировал каркасы и столешницу
Каркасы мало было поставить рядом — их нужно было стянуть друг с другом саморезами. Так было сказано в инструкции.
Стенки соседних каркасов я сначала стягивал струбцинами, чтобы они не «ходили».
Потом делал в них по 4 отверстия ближе к углам — использовал сверло по дереву диаметром 3 мм. А затем шуруповертом закручивал туда саморезы.
Потом я положил столешницу на каркасы и прикрутил ее к ним саморезами насквозь. На урезанном каркасе не было передней перекладины, к которой крепится столешница. Пришлось присверливать к нему металлические уголки и прикручивать к ним.
Вся работа заняла полдня. Она была простая, но однообразная, и иногда хотелось бросить ее на полпути.
Для крепления столешницы пригодились уголки
Этап 7
Как я подключал мойку и смеситель
Установка мойки и смесителя заняла целый день. Мойку я вставил в отверстие, а потом подключил к ней сифон. Это устройство, которое не дает запахам из канализации проходить на кухню, но позволяет воде стекать в канализацию.
Сифон у нас был из «Икеи», и к нему шла подробная инструкция. Сначала я прикрутил чашу слива к отверстию в раковине и соединил все элементы сифона по инструкции. Потом вставил сливной шланг в сливное отверстие.
Чтобы установить смеситель, я протянул шланги от него в отверстие, а сам смеситель прижал гайкой снизу. Шланги нужно было подсоединить к выводам в стене, из которых шла вода. Для этого понадобились переходники. Я перекрыл воду и вкрутил их к выводам. Сверху закрутил гайку для шланга.
Этап 8
Как я подключал технику и подсветку
Для подключения техники я хотел вызвать мастеров. Специалисты с «Юду» просили около 1000 Р за каждый электроприбор. За вытяжку, варочную панель, духовку и стиральную машину я бы отдал 4000 Р. Но оказалось, в этом разбирался сосед и предложил бесплатно мне помочь.
Сосед отключил электричество во всей квартире и проверил индикаторной отверткой, нет ли в проводах напряжения. Потом надел резиновые перчатки и полдня подключал технику. На себя я взял только стиральную машину.
У варочной панели вообще не было провода. А было что-то вроде гнезда — к нему мы подсоединили провод, выведенный из стены во время ремонта.
Сосед объяснил, что внутри него есть 3 мини-провода: желто-зеленый — заземление, синий — ноль, коричневый или черный — фаза. Сосед прочитал инструкцию, вставил нужные провода в нужные места в гнезде и зафиксировал их болтами из комплекта с плитой.
В инструкции было подробно расписано, куда какой проводок вставлять
У духовки уже был свой провод, но без вилки на конце. Мы присоединили к нему вилку и вставили в розетку, которую делали еще на этапе ремонта.
У вытяжки тоже был только провод без вилки, но розетки под нее не было — строители оставили в стене провод, как для духовки. Мы решили соединить два провода напрямую. Для этого желательно купить клемму — щеколду, в которую вставляются два провода и зажимаются внутри. Но клемм у нас не было, а ехать за ними не хотелось, так что мы просто соединили провода изолентой.
Стиральную машину подключать легко. Нужно вставить вилку в розетку, сливной шланг в сливное отверстие, а шланг для подачи воды накрутить на вывод для воды, который находится в стене.
Шланг из комплекта оказался коротковат — он был около 1 м, а требовалось 1,5 м. Так что пришлось купить в «Техпорте» удлинитель для шланга за 152 Р. Мы вставили в него шланг от стиральной машины, а сам удлинитель — в слив. Соединение стянули металлическим хомутом — купили его на рынке за 20 Р.
Возможно, это не лучший способ, но позади 2 месяца, а из этой конструкции не вытекло ни капли.
Шланг от стиральной машины мы соединили с внешним шлангом и стянули металлическим хомутом на стыке Такой шланг можно установить вместо родного, но мы его просто нарастили. Источник: «Техпорт»
Подсветка. Светильники из «Икеи» устанавливаются просто: нужно прикрутить саморезами крепления, а потом защелкнуть в них светильники.
Провода от светильников я аккуратно протянул за шкафами — между задними стенками и стеной было достаточно места. Все провода собрал в икеевский блок подсветки и закрепил на шкафах.
Наши светильники можно было соединить напрямую с проводом, который мы заранее выводили из стены.
Но у нас давно лежала «Яндекс-розетка» — она вроде обычной, но подключается по вайфаю к «Яндекс-станции». С ней включать подсветку можно голосовой командой.
У меня была еще обычная розетка. Я установил ее за шкафами, вставил туда «Яндекс-розетку», а в нее — вилку подсветки. Теперь я говорю: «Алиса, включи подсветку», — и свет включается.
Подсветка включается голосом, хотя можно и традиционно — выключателем Конструкция, которая делает подсветку «умной»: обычная розетка, «Яндекс-розетка», вилка от подсветки. Висит в углу за шкафами и никому не мешает
Этап 9
Как я устанавливал фасады
Фасады, то есть дверцы, я устанавливал по инструкции. Потратил 1 день. Все фасады были в защитной пленке. Мы не снимали ее до конца: боялись повредить поверхность.
Дверные петли я покупал в «Икее» вместе с кухней, а теперь вставил их в круглые отверстия на дверях — они там уже были. Потом прикрутил крепления к боковым стенам каркасов. Одно крепление установил неправильно, и пришлось переделывать.
Затем был внимательнее: стрелочка на креплении должна была всегда смотреть наружу из шкафа. А в конце я приставил каждую петлю к креплению и нажал до щелчка.
Работа была простая. Правда, в шкаф для вытяжки было неудобно устанавливать крепление для дверцы. Оно оказалось в том месте, где уже была вытяжка. Я промучился с ним полчаса: с трудом туда подлез и вкручивал болт с короткой битой и гаечным ключом. А до установки вытяжки управился бы за 30 секунд. Теперь думаю, что быстрее было бы вообще открутить вытяжку.
Треугольная стрелочка должна была указывать наружу, а не внутрь шкафа
Этап 10
Как я устанавливал полки
Внутренние полки для шкафов я быстро установил по инструкции. На боковых стенках уже были отверстия — я вставил в них опоры вроде болтиков из комплекта и положил на них полки.
Но было два места, которые мы сначала хотели просто закрыть панелями, — на торце кухни и между двумя верхними шкафами над мойкой. Но в процессе сборки жена попросила сделать там полки.
Пришлось делать два самодельных каркаса — в «Икее» не было вариантов под наши размеры. Например, над мойкой нужен был шкаф глубиной 39 см и шириной 17 см. А на торце — шириной 39 см и глубиной 11 см.
У нас оставалась одна декоративная панель под цвет кухни, а нужно было три. Недостающие мы докупили в «Икее»: каждая панель 39 × 104 см стоила 2000 Р. Всего я потратил 4000 Р. Из них я сделал отрезки нужных размеров и скрутил саморезами. Потратил один день, зато получились два функциональных каркаса.
У меня закончились уголки, поэтому прикручивать эту полку пришлось изнутри — просто притянул ее саморезами с внутренней части шкафа На стене оставался небольшой кусок шины, так что этот каркас я так же, как и остальные шкафы, просто повесил на нее Торцевой каркас я делал сам — из декоративных панелей
Сколько я потратил на сборку
Я собирал кухню по субботам и воскресеньям — потратил пять выходных. Если бы взял отпуск, ушло бы 10 дней подряд. Конечно, я мог заплатить мастерам и отдыхать в это время.
Но зато я сэкономил больше 20 000 Р.
Кое-что из инструментов у меня уже было, а дрель и болгарку одолжил сосед. Многое пришлось купить, но я об этом не жалею: все это пригодится мне потом. А каркас для сэндвич-панели, металлические шины, переходники и лишний воздуховод я бы докупал и так — даже если бы кухню собирали мастера. Поэтому не буду включать их в расходы на сборку.
На инструменты и расходники для сборки я потратил 4798 Р
| Дюбеля и саморезы | 1356 Р |
| Струбцины | 888 Р |
| Герметик с пистолетом | 814 Р |
| Стремянка | 700 Р |
| Сверла по бетону | 532 Р |
| Малярный скотч | 358 Р |
| Угольник | 150 Р |
Дюбеля и саморезы
1356 Р
Струбцины
888 Р
Герметик с пистолетом
814 Р
Стремянка
700 Р
Сверла по бетону
532 Р
Малярный скотч
358 Р
Сборка шкафа-купе Икеа
Ассортимент продукции компании IKEA включает в себя достаточно разнообразные варианты систем хранения, как в приставных, так и во встраиваемых версиях исполнения.
Для спальни и детской, гардеробной и прихожей здесь можно подобрать удобные, практичные и красивые решения, позволяющие в полной мере насладиться комфортом в хранении предметов быта, одежды или обуви. Зеркальные и классические фасады, матовая или лаковая структура — все это также дает простор для воображения.
А для того чтобы сборка шкафа Пакс Икеа — самой продаваемой в мире модели, не доставляла хлопот, производитель прилагает к нему подробную инструкцию. Правда, даже самое прекрасное руководство не спасает от проблем практического свойства. А они, при непрофессиональном подходе к делу, возникают достаточно часто.
Шкафы-купе Пакс с раздвижными дверьми(купе): особенности сборки
В целях экономии или по иным соображениям сборка шкафа-купе Икеа нередко заказывается уже после того, как домашний мастер потерпит на этом поприще сокрушительное фиаско. Причиной проблемы может стать не только самонадеянность. Дело в том, что популярный гардероб сложно собирать в вертикальном положении.
А поднять его при сборке в горизонтальной плоскости в одиночку и вовсе не представляется возможным. Еще один немаловажный момент — соответствие высоты потолков и системы хранения. Минимально рекомендованный производителем показатель указан в диапазоне 246 см. Но стоит помнить о том, что для гардероба Пакс сборка дверей и самого каркаса требует предельной осторожности. Смонтированные между собой детали каркаса нужно будет тщательно закрепить на поверхности стены.
Если предстоит сборка углового шкафа Икеа, также требуется концентрация внимания на деталях. В этом случае велика вероятность того, что конструкцию придется «подгонять» под имеющиеся габариты пространства. Прежде чем будет начата установка шкафов Икеа, стоит провести предварительную подготовку. В частности, рекомендуется:
- проверить комплектность поставки;
- убедиться, что в коробке есть весь необходимый крепеж: от гвоздей до шурупов;
- убедиться в наличии ножек и других необходимых элементов;
- освободить пространство для сборки;
- застелить пол мягким покрытием, позволяющим беспрепятственно расположить на нем детали изделия.

Как быстро и качественно собрать шкаф Икеа?
Профессиональная сборка шкафов Ikea подразумевает оперативное и качественное выполнение работ. Разумеется, возможно это только в том случае, если речь идет о сотрудничестве со специалистами, по праву заслужившими статус мастеров. В компании SBMEBEL работают именно такие профессионалы, всегда готовые справиться с поставленными перед ними задачами. Для того чтобы гардероб Пакс Икеа, сборка которого выполняется специалистами, был установлен на предназначенном для него месте, необходимо обеспечить индивидуальный подход к работе с ним. Мастера компании учитывают все особенности объекта: от высоты потолков до объемов свободной площади пространства для монтажа. А процесс сборки, благодаря тому, что работы выполняются мастерами с высокой квалификацией, занимает минимум времени.
Хотите, чтобы сборка шкафа-купе Пакс прошла успешно? Просто доверьте ее квалифицированным специалистам, и вы сможете не беспокоиться о том, насколько правильно будут соблюдены рекомендации производителя.
Необходимые этапы сборки
Вне зависимости от того, производится монтаж шкафа Ikea самостоятельно или выполняется на профессиональной основе, в любом случае, порядок действий будет следующим:
- Распределение деталей — те, что предполагают крепление к стене, имеют два ряда крепежных отверстий.
- Соединение каркасных элементов — верхних, нижних и боковых таким образом, чтобы получился цельный корпус. Перед соединением дна необходимо закрепить на нем ножки.
- Собрать все отдельные короба, затем соединить их между собой уже в вертикальном положении.
- Зафиксировать все ребра жесткости, позволяющие предотвратить шаткость и неустойчивость конструкции.
- Закрепить собранную конструкцию на поверхности стены.
- Зафиксировать входящие в комплект полозья, зафиксировать заглушки на их концах.
- Закрепить пластиковые фиксаторы вверху и двойной полоз внизу.
- Смонтировать металлический каркас двери из металла, собрать фасадную часть, зафиксировать все при помощи предлагаемых штатных креплений.
- Навесить двери на предназначенные для них крепления.
- Отрегулировать ход дверных конструкций.
Почему стоит довериться SBMEBEL?
Чтобы установка шкафа Ikea прошла с максимальным комфортом, стоит с самого начала отдать предпочтение вариантам, способным обеспечить наилучшее соотношение безопасности и качества при выполнении работ. Достичь этого с минимальными затратами времени и сил можно, воспользовавшись предложениями компании SBMEBEL. В штате компании исключительно профессиональные мастера, готовые вести индивидуальную работ с каждым из своих клиентов. Прибытие специалистов производится точно в назначенные сроки. В распоряжении мастера есть все необходимые инструменты и комплектующие, а для работы с крупногабаритными изделиями по вызову гарантированно прибудут сразу несколько профессиональных сборщиков, готовых выполнить в команде самые сложные этапы монтажа.
Сборка кухни Икеа: инструкция своими руками
Наиболее популярная во всем мире мебель Икеа завоевала широкую известность благодаря своей стоимости, универсальности и простоте сборки. Каждый супермаркет данной торговой марки имеет в своем штате квалифицированных продавцов консультантов способных помочь с расчетами и расстановкой мебели.
Для того, чтобы купить кухонный гарнитур достаточно иметь размеры помещения, отметить на нем место расположения плиты, раковины и обратиться к консультанту за помощью. Он без проблем сделает необходимые расчеты и предложит дизайн размещения. Остаетсязабрать составляющие модуля и навесные шкафы со склада или заказать доставку.
В большинстве случаев, при покупке корпусной мебели в магазинах Икеа, заказывают услуги сборщиков. Но не редки случаи, когда покупатели берутся самостоятельно собрать модуль и этому способствуют инструкции, вложенные в каждую упаковку. Но недостаточно собрать шкафы, их надо еще соединить в общий гарнитур, этому послужит чертеж сделанный продавцом-консультантом.
Сборка мебели своими руками
Универсальные корпуса поставляются в полностью разобранном виде и не занимают много места в автомобиле, это является преимуществом при транспортировке, но предполагают трудоемкую сборку. Однако этого не стоит бояться, следуяинструкции по сборке кухни Икеа можно легко справиться с поставленной задачей.
Для того чтобы собрать кухонный гарнитур самостоятельно потребуется:
- крестовая отвертка, дрель или шуруповерт с насадкой;
- небольшой молоток;
- уровень;
- перфоратор;
- лобзик или ножовка по металлу;
- несколько небольших емкостей для саморезов и фурнитуры.
Начиная сборку надо хорошо ознакомиться с чертежом и пронумеровать коробки в порядке установки. Это делается для соблюдения последовательности и не загромождения свободного пространства. Если на кухне мало места, то собирать можно в любом месте и заносить уже готовые элементы конструкции.
Сборка мебели заключается в следующих этапах:
- Перед началом проведения работ надо подробно изучить инструкцию, находящуюся в коробке. При помощи отвертки завинчиваются все необходимые винты, А молоточком подбиваются шканты и крепится задняя стенка шкафов. Места креплений четко указаны в руководстве. Только следуя рисунку, прилагаемому к изделию, можно правильно собрать каждый элемент. Дверцы и ящички временно откладываются в стопку для последующей установки. Собранный модуль сразу ставится на место.
- Поэтапно собираем нижние шкафы и ставим согласно чертежу, начиная с угла. Если в промежутке устанавливается плита или другой бытовой прибор, то его сразу монтируем по месту. Это необходимо для того, чтобы впоследствии не пришлось двигать всю линейку.
- После установки нижней части корпусов начинаем выравнивать их по горизонту. Все элементы гарнитура должны находиться в одном уровне, иначе не встанет столешница и фасады. Регулировка осуществляется при помощи ножек и горизонтального уровня. Прилагаемые в комплекте ножки имеют возможность менять высоту до 5 см.
- По окончании регулировки желательно столы закрепить между собой, для получения монолитной конструкции, поверх которой крепится столешница.
- Следующий этап, это установка стеновой панели, при ее наличии. Для того чтобы поставить фартук, надо снять все розетки, находящиеся в области кухни, наметить их место на панели и вырезать соответствующие отверстия. К стене облицовка крепится при помощи саморезов или дюбелей, которые впоследствии закрываются специальными заглушками.По окончании монтажа ставятся розетки.
- После установки нижнего модуля начинается сборка и навешивание верхних шкафов. Процесс аналогичен, только не надо забывать про вытяжку и уровень при установке полок.
- Когда все шкафа и столы кухонного гарнитура встали на место, начинают навешивать фасады и ставить ящики. Основное внимание при креплении дверок надо уделять ровности соприкасаемых створок и совпадению прилежащих углов. Только правильно выставленный фасад будет красиво выглядеть и не захлопываться в самый неподходящий момент.
- Установка мойки является немаловажным фактором. Для этого лучше вызвать специалиста, либо прочитать инструкцию, как это правильно сделать. Для этого нужны элементарные знания сантехники и герметик. Отверстие под нее можно выпилить самостоятельно при помощи лобзика или ножовки по металлу.
- Конечный этап сборки заключается в установке плинтусов, ручек и заглушек.
Сборка кухни Икеа своими руками не покажется сложной, если есть хороший инструмент и большое желание сэкономить деньги, но не время. Наилучшим методом установки является заказ мебели со сборкой. Небольшая переплата освободит от нервотрепки и лишних проблем. Мастера за считанные часы сдадут кухню в эксплуатацию.
Тонкости сборки мебели ИКЕА — Сбормастер
Мебель от производителя ИКЕА ценится во всем мире за свою долговечность, идеальное качество, функциональность. Концерн следит за последними тенденциями мебельной моды, поэтому в продажу постоянно поступают оригинальные новинки.
Практически любую мебель ИКЕА можно собрать самостоятельно, ведь к ней всегда прилагаются инструкции с рисунками. В монтаже она проста тем, что все отверстия действительно соответствуют размеру креплений, их не нужно будет рассверливать. Абсолютно все детали друг с другом совместимы идеально. Это избавит от необходимости подрезки, приклеивания деревянной кромки и других дополнительных работ.
Несмотря на это, «в народе» уже давно шутят, что при сборке мебели от ИКЕА «черт ногу сломит». Ведь на практике часто случается, что простая с первого взгляда инструкция оказывается не такой уж и понятной. Для мебели от этого производителя характерно большое количество разнообразных крепежей, также неопытному в этом деле человеку довольно сложно разобраться, где какая деталь.
Сборка икеевской мебели не покажется такой уж сложной, если вы будете придерживаться определенного порядка действий.
К покупателю ее привозят разобранной и упакованной в коробки. Уже на этапе распаковывания многие умудряются повредить мебель, поцарапав ее ножом при разрезании картона. Помните, что нужно использовать для этого ножницы и не спешить.
Потратьте время и рассортируйте по коробочкам абсолютно все мелкие детали. Часто в комплект входят крепежи одного типа, но разного размера. Чтобы не запутаться, отберите сразу все одинаковые и разложите по коробочкам. Подпишите каждую, согласно прилагаемой к мебели инструкции.
Некоторые покупатели мебели ИКЕА жалуются, что в коробке не оказалось схемы сборки. Чаще всего люди просто не замечают небольшую бумажную инструкцию где-то на дне или же случайно ее выбрасывают вместе с упаковкой. Поэтому будьте внимательны при распаковывании.
Сборка комодов ИКЕА, как и любой другой мебели от этого производителя, должна осуществляться на ровном полу и в хорошо освещенной комнате.
Мебельные детали очень удобно монтировать при помощи реверсивной отвертки и гаечного ключа. С их помощью удастся прочно затянуть крепежные элементы даже в труднодоступных местах.
Сборка кровати ИКЕА может стать настоящей проблемой, если пытаться самостоятельно разобраться, когда и какую деталь необходимо прикрепить. Не нужно ничего изобретать, строго следуйте схеме, которая прилагается к мебели. Обратите внимание, что на каждой детали есть маркировочный номер, по которому ее можно найти в инструкции и посмотреть, куда она прикрепляется. Также можно сориентироваться по неокрашенным сторонам, которые не будут видны, когда мебель будет полностью собрана.
Помните, что при сборке качественной и дорогой мебели ИКЕА нельзя спешить, лучше делать все аккуратно и тщательно. Неправильный монтаж деталей может привести к их поломке или же к тому, что срок эксплуатации мебели значительно сократится.
IKEA Installing New Kitchen Руководство по установке
Инструкция по установке новой кухни ИКЕА
Пошаговое руководство
правильно установить новую кухню ИКЕА
Эта брошюра является вашим руководством по самостоятельной подготовке и установке новой кухни. Внутри вы найдете четкие инструкции, которым нужно следовать, а также полезные советы и идеи. Используйте это руководство вместе с инструкциями по сборке из IKEA, чтобы убедиться, что ваша кухня установлена правильно.
Перед тем, как начать
Просмотрите эту брошюру, прежде чем вы начнете видеть, какие этапы должны быть включены в установку вашей новой кухни, и организовать, какие инструменты вам понадобятся. Чтобы убедиться, что у вас есть все для вашей новой кухни, сравните пакеты и детали, которые есть у вас дома, со списком заказов и списком фрахта. Вам следует разбирать старую кухню только тогда, когда у вас есть все новые детали и техника. Детали вашей кухни и столешницу следует хранить в помещении с нормальной комнатной температурой и влажностью.Будет полезно расположить шкафы в том порядке, в котором вы будете их устанавливать. Используйте свой упаковочный лист и рисунок планировщика дома из ИКЕА, чтобы помочь вам. Перед тем, как убрать старую кухню, убедитесь, что у вас отключено электричество, газ и вода. Обратитесь к квалифицированному специалисту для отключения и подключения газа, воды и электричества.
Вы можете сделать это самостоятельно, но не обязательно.
Наши кухни спроектированы таким образом, чтобы вы могли максимально упростить сборку и установку самостоятельно.Но мы здесь, чтобы помочь вам настолько, насколько вы этого хотите. Мы можем предложить вам услуги, начиная от планирования и доставки до полной установки кухни. Для получения дополнительных сведений см. Последнюю страницу этого руководства, раздел кухни на сайте IKEA.my/ kitchen или обратитесь в местный магазин IKEA.
Инструменты, которые вам понадобятся
Ниже приведены основные инструменты, которые вам понадобятся. Кроме того, вы найдете, какие инструменты использовать для каждого продукта, в соответствующих инструкциях по сборке.При использовании электроинструментов рекомендуется надевать защитные очки.
| Полезно знать Стены из гипса, дерева или бетона? Поскольку существует много разных типов стен, крепежные детали не входят в комплект поставки ваших шкафов. В большинстве магазинов бытовой техники или товаров для дома есть соответствующее крепежное оборудование, которое может помочь вам выбрать правильный вид для ваших стен. |
Подготовьте комнату
После того, как вы удалили старую кухню, подготовьте комнату, убедившись, что ваши стены и пол ровные, а стены подходят для поддержки вашей новой кухни.А теперь самое время загрунтовать и покрасить стены, выложить плитку или сменить пол.
Разметка шкафов
Нарисуйте план вашей новой кухни прямо на стене. Убедитесь, что все соответствует размерам, указанным в вашем плане, и что все подключения к электричеству, воде, газу и вентиляции находятся там, где вы хотите. Также отметьте, где можно закрепить подвесные направляющие вашей новой кухни.
| Подготовьте свое пространство, убедившись, что ваши углы ровные, а стены и пол прямые.Используйте пробный угольник для углов и спиртовой уровень для стен и пола. | |
| Убедитесь, что вы отметили самую высокую точку пола и углы, отличные от 90 градусов. | |
| Убедитесь, что ваша стена достаточно прочна, чтобы повесить подвесную направляющую и шкафы. В зависимости от материала стен лучше всего установить перила на стойку или опорную балку. Электронный поиск кобелей может оказаться полезным. | |
Установить рейку подвески
Ваши новые шкафы ИКЕА можно повесить прямо на подвесную рейку, что упрощает их установку и регулировку.Важно убедиться, что ваша подвесная рейка стоит прямо и ровно, и закрепить ее винтами правильного типа для вашей стены.
| Закрепите рельсы, сначала опорный рельс. Перед сверлением убедитесь, что вы нашли подходящие точки в стене, где можно закрепить направляющие, и что направляющие выровнены. | |
| Если у вас неровная стена, используйте расстояние между перилами и стеной, чтобы они были прямыми. | |
| Используйте спиртовой уровень, чтобы проверить, что каждая рейка выровнена. | |
Установите направляющие на нужной высоте | |
Установите шкафы
На большинстве кухонь лучше всего сначала установить навесные шкафы.Таким образом, у вас будет место для передвижения без мешающих базовых шкафов. Одно исключение — если вы устанавливаете однолинейную кухню с высоким шкафом на одном конце. В этом случае сначала установите высокий шкаф. В некоторых шкафах есть готовые проемы для сантехники и инженерных коммуникаций, но вы можете при необходимости сделать проемы своими руками с помощью лобзика. Сделайте это перед установкой шкафа
на место. Помните, что расположение отверстий может повлиять на расположение ящиков в шкафу.
| Соберите все каркасы навесного шкафа согласно инструкции по сборке.Подождите, пока не будет примерочных ящиков, дверей и внутренней фурнитуры . | Сначала повесьте угловой шкаф и закрепите, затянув винты. Повесьте остальные шкафы и соедините их прилагаемыми винтами. Подождите, пока винты затянуты, пока базовые шкафы не встанут на свои места и вы не сможете обеспечить выравнивание. | ||
| Соберите все базовые шкафы в соответствии с инструкциями по сборке . Убедитесь, что прикреплены ножки в том порядке, в котором будут установлены шкафы . | Повесьте базовые шкафы, начиная с угла. Повесьте каждый следующий шкаф таким же образом. Если вы устанавливаете угловую карусель, самое время это сделать. | ||
| Ножки шкафа, соединяющие два шкафа, можно использовать для поддержки обоих шкафов во время установки. Не забудьте использовать дистанционное кольцо, входящее в комплект ножек. | |||
| Убедитесь, что правый нижний шкаф совмещен с вашей сантехникой. | Убедитесь, что каждый шкаф выровнен с предыдущим шкафом, отрегулировав ножки. | ||
| Если вы используете высокий шкаф, сначала установите крышку. | Заглушки Заглушки используются между шкафами и стенами для обтекаемого внешнего вида, а — для обеспечения достаточного пространства для полного открытия дверей и ящиков. Они особенно полезны, если ваши стены не идеально прямые. | ||
| Проверьте стену с помощью спиртового уровня, чтобы убедиться, что она прямая. Если стена ровная, измерьте расстояние между стеной и шкафом и отметьте это расстояние сверху и снизу вставки. | Чтобы вставка оставалась на месте, сначала прикрепите опорную планку к стене. Просверлите в корпусе отверстия для винтов, которыми вы будете скреплять корпус и вставку вместе. Вставьте наполнитель на место. Вставьте винты в отверстия, которые вы просверлили .Когда все ваши наполнители будут внутри, заделайте каждую из них силиконом для герметичного уплотнения. | ||
| Если стена неровная и плоская, необходимо обрезать заполнитель, чтобы он соответствовал форме стены. Для этого вам понадобится шпатлевка, измерительная лента, небольшой деревянный брусок толщиной около 1–1 1/3 дюйма и карандаш. Отрежьте вставку так, чтобы она была такой же высоты, как и шкаф. Приложите край вставки к стене. Прижмите деревянный брусок к стене, прижав карандаш к нему.Держите их прижатыми к стене, пока вы продвигаете их на вниз по длине вставки. Теперь вы обрисовали форму стены на вставке. Обрежьте линию следа. | Приложите только что обрезанный край вставки к стене (он должен точно прилегать). Отметьте край шкафа сверху и снизу вставки. Из этих точек проведите прямую линию и отрежьте. | ||
Если вы собираетесь установить высокий шкаф, не делайте окончательной регулировки или полностью затягивайте винты, пока вы не установите все остальные шкафы. | |||
Установите столешницу, раковину, освещение и бытовую технику.
Когда каркасы шкафа вставлены, пора установить столешницу, раковину, освещение и бытовую технику. Перед установкой столешницы убедитесь, что она правильного размера. Сейчас самое время, если вам нужно настроить столешницу под раковину или варочную панель. Примечание! Всегда пользуйтесь инструкцией по сборке
для получения помощи. Как только ваша столешница будет внутри, вы готовы к подключению воды, газа, освещения и бытовой техники.Все подключения к воде, газу и электричеству должны выполняться квалифицированными специалистами в соответствии с действующими местными правилами техники безопасности.
Кухонный остров
Если вы планируете кухонный островок, у нас есть поддерживающие кронштейны, чтобы надежно прикрепить его к полу. Затем необходимо установить ножки / цоколи по периметру острова.
Для кухонного острова можно использовать либо ножки UTBY, либо монтажный комплект METOD. Последний используется для соединения шкафов вплотную друг к другу или для прикрепления панели крышки к задней части шкафов.
Обратитесь в местный магазин ИКЕА, если вам нужна помощь в сборке.
Полезная информация
Если вы устанавливаете кухонный остров, его необходимо прикрепить к полу с помощью ножек UTBY или с помощью цоколя. Прикрепите каркас плинтуса как к полу, так и к шкафам. Прикрепляя каркас к полу, помните об уже установленных удобствах, таких как пол с подогревом или водопровод.
Установите полки, ящики, дверцы, ручки и ручки.
Теперь каркасы шкафов, столешницы и бытовая техника уложены, вставьте выдвижные ящики в свои шкафы.Помните, что направляющие для внутренних ящиков и стандартных ящиков устанавливаются по-разному (см. Инструкции по сборке). После того, как направляющие вставлены, поместите их в ящики перед дверцами и полками. В завершение добавьте ручки и ручки, а также любые другие внутренние решения (например, проволочные корзины).
Готово! Поздравляю с новой кухней!
Уход за шкафами
Очищайте дверцы, внутренние поверхности шкафа и деревянные поверхности мягкой влажной тканью.Используйте только чистящие средства, предназначенные для этих материалов. Не используйте продукты, содержащие аммиак, спирт, отбеливатель или абразивные вещества. Смойте чистой водой, затем вытрите насухо чистой сухой тканью. Обязательно убирайте разливы быстро.
Поддерживайте сияние раковины
После каждого использования протирайте раковину тканью или губкой, смоченной водой или, при необходимости, неабразивным моющим средством. Ополосните чашу водой, а затем протрите раковину сухой тканью. Избегайте использования чистящего порошка, стальной мочалки или твердых предметов, которые могут поцарапать поверхность из нержавеющей стали.Влажная поверхность может обесцветиться, если на ней остаются вещества, содержащие железо, такие как стальная вата, гвозди или гравий. Изменение цвета вызвано инородным материалом.
Долговечные столешницы
Поддерживайте свою столешницу в идеальном состоянии, быстро смывая разливы водой с мягким моющим средством. Обязательно держите их как можно более сухими после использования.
ВЫ СДЕЛАНО!
Пора сделать шаг назад и полюбоваться вашей новой кухней — и восхититься тем, что вы сэкономили столько денег, собрав и установив ее самостоятельно!
При небольшом уходе и уходе ваша новая кухня из ИКЕА будет выглядеть в лучшем виде на долгие годы.
Услуги
Наше широкое предложение услуг дает вам свободу решать, сколько вы хотите сделать сами и сколько вы хотите, чтобы мы сделали для вас.
Ниже вы найдете все услуги, которые мы можем предложить, и стоимость каждой из них.
ИЗМЕРИТЕЛЬНЫЕ
Точные измерения и точный обзор состояния вашей существующей кухни позволяют получить точный план кухни и облегчить установку. Мы рады предложить услуги по измерению, которые отправят опытного специалиста к вам домой для оценки условий, а
предоставит точные измерения
ФИНАНСОВЫЙ КРЕДИТ
Мы можем помочь вам распределить стоимость с помощью нашего плана платежей в рассрочку 0% (IPP).Узнайте больше в ИКЕА. мой / IPP
КОМПЛЕКТАЦИЯ С ПОСТАВКОЙ
Большинство наших продуктов имеют плоскую упаковку и разработаны таким образом, что могут легко поместиться в вашем автомобиле. Однако, если вы предпочитаете, чтобы ваша покупка была собрана и доставлена, вы можете заказать службу доставки, которая может быть совмещена с услугой сбора. Мы подберем нужную вам мебель
и организуем доставку к вам домой или на работу. Все, что вам нужно сделать, это разместить заказ и ждать прибытия вашего товара.
ПЛАНИРОВАНИЕ
Мы не хотим, чтобы вы теряли сон из-за того, что планировали кухню своей мечты. Наши специалисты по планировке кухни помогут вам.
Мы специализируемся на том, чтобы максимально использовать пространство, чтобы вы получили кухню, которая соответствует вашему образу жизни и соответствует вашему стилю. Закажите встречу по дизайну кухни в местном магазине ИКЕА или в IKEA.my/kitchen planner
УСТАНОВКА КУХНИ
Мы установим для вас новую кухню и скоординируем работу от начала до конца.Перед началом установки мы окончательно проверяем правильность заказа и правильность размеров. Профессиональные установщики кухонь возьмут на себя все эти трудоемкие работы, такие как установка раковин, смесителей и рабочих поверхностей. Ваша кухня будет оборудована по самым высоким отраслевым стандартам.
ДОСТАВКА
Большинство наших продуктов имеют плоскую упаковку и разработаны таким образом, что могут легко поместиться в вашем автомобиле. Однако, если вы предпочитаете, чтобы ваша покупка была доставлена, у нас есть ряд вариантов доставки, которые вы можете выбрать при совершении покупок в IKEA.мой или делать покупки в ближайшем магазине ИКЕА
.
СБОРКА
Наши продукты специально разработаны таким образом, чтобы их было легко собрать, чтобы наши клиенты могли сделать это самостоятельно. Таким образом вы сэкономите больше всего денег. Однако, если вам нужна рука, у нас есть ряд вариантов сборки, которые вы можете выбрать при совершении покупок на сайте IKEA.my или в ближайшем магазине IKEA.
Ikea Cabinet Инструкции Рецепты
Люди также искали
Подробнее о «Рецептах кабинета ikea»
КАК СОБИРАТЬ КУХОННЫЕ ШКАФЫ ИЗ ИКЕА — ВИЛКА
2016-08-11 · Узнайте, как собирать кухонные шкафы Ikea Посмотрите видеоролик о кухонном острове и все наши видеоролики о Ikea How To: https: // goo.gl / Vq45Ys Sub здесь: http: //goo.gl/3zM7 …
От youtube.com
Автор GardenFork Просмотры 19K Подробнее »
ИНСТРУКЦИИ ПО СБОРКЕ — IKEA CA
Просто используйте поле поиска в верхней части экрана, чтобы найти продукт, и ссылку на инструкции по сборке можно найти, следуя инструкциям ниже. Шаг 1. Прокрутите страницу информации о продукте и щелкните сведения о продукте. Откроется всплывающее окно с…
из ikea.com
Подробнее »
IKEA IVAR CABINET HACK (ПРЕВРАЩЕННЫЙ В БАРНЫЙ ШКАФ!) -…
2018-04-18 · Разрежьте доску размером 1 1/2 дюйма на 4 части, чтобы она поместилась в верхней части шкафа. Если у вас есть торцовочная пила, вырежьте 2 доски длиной 31 1/2 дюйма и 2 доски длиной 11 дюймов и разрежьте их под углом 45 °, чтобы все они…
Из abeautifulmess.com
Расчетное время чтения 8 мин. Подробнее »
ИДЕСЕН ШКАФ С ДВЕРЦАМИ И ЯЩИКАМИ — ИКЕА
ИДОСЕН Шкаф с дверцами и ящиками Встроенный интеллектуальный замок помогает хранить вещи в надежном месте в хранилище.Эта комбинация включает в себя 1 умный замок, но вы всегда можете добавить дополнительные умные замки для других ящиков для хранения. Гарантия 10 лет. Ознакомьтесь с условиями в гарантийном буклете.
От ikea.com
Цена $ 299 Подробнее »
КАК УСТАНОВИТЬ КУХОННЫЕ ШКАФЫ IKEA (С ФОТОГРАФИЯМИ) -…
2017-11-14 · Нарисуйте на стене очертания ваших шкафов. Найдите размеры ваших шкафов на коробке или в инструкции, или измерьте ваши шкафы в сборе с помощью рулетки.Обязательно запомните, в каких шкафах должны быть отверстия для подключения инженерных сетей. Вам нужно будет разместить эти шкафы над соединениями, которые вы отметили ранее.
из wikihow.com
77% (36) Просмотры 26K Расчетное время чтения 8 mins Подробнее »
SEKTION НАСТЕННЫЙ ШКАФ СО СТЕКЛЯННОЙ ДВЕРЬЮ — КОРИЧНЕВЫЙ … — IKEA
IKEA — SEKTION, Навесной шкаф со стеклянной дверцей, коричневый / Эдсерум коричневый, Дверь может открываться влево или вправо.Вы можете настроить расстояние по мере необходимости, потому что полки регулируются. Прочная конструкция рамы толщиной ¾ «. Петли регулируются по высоте, глубине и ширине.
От ikea.com
Цена $ 124 Подробнее»
СЕКЦИЯ ОСНОВНОЙ ШКАФ С 3 ЯЩИКАМИ — IKEA
Официальный веб-сайт — IKEA — SEKTION, Напольный шкаф с 3 ящиками, белый Maximera, матовый белый Axstad, ящик MAXIMERA — это плавный выдвижной ящик полного выдвижения со встроенными амортизаторами, поэтому он закрывается медленно, мягко и бесшумно.Прочная конструкция рамы толщиной ¾ \ «. Требуется ручка или ручка
От ikea.com
Цена $ 323 Подробнее»
ШКАФЫ С ДВЕРЬЮ, НАСТЕННЫЕ ШКАФЫ, КНИЖНЫЕ ШКАФЫ — IKEA
Посетите IKEA.ca, чтобы найти широкий выбор шкафов по низким ценам. Храните свои вещи в безопасном месте с помощью хорошо продуманных шкафов для хранения, барных шкафов, гаражных шкафов и многого другого. Делайте покупки в ИКЕА сегодня!
От ikea.com
Подробнее »
ИКЕА КУХНЯ ШКАФ ЧАСТЬ 1 ИЗ 5: ИКЕА КУХНЯ…
Добро пожаловать на наш курс по кухонным шкафам ИКЕА. В этой серии мы делаем полную сборку кухни ikea от начала до конца. В этом видео я рассказываю о IKEA k …
Из youtube.com
Подробнее »
ИКЕА КУХНЯ ЧАСТЬ 1 МЕТОД ОСНОВАНИЯ И НАСТЕННЫХ ШКАФОВ…
Как собрать кухню ИКЕА. Кухня IKEA, часть 1 МЕТОД Сборка основания и навесных шкафов в первой части Я покажу вам, как собрать основу и стену ИКЕА МЕТОД …
Из youtube.com
Подробнее »
КАК СОБРАТЬ КУЛЬТУРУ IKEA SEKTION -…
2016-03-11 · Стоимость данной услуги колеблется от 199 до 249 долларов США, но стоимость будет возвращена по подарочной карте, если вы купите кухню в IKEA до 31 августа 2016 года. Вы должны быть участником семейной карты IKEA, но при этом простая регистрация. Планировщик дома предоставит вам план кухонного шкафа и смету расходов на шкаф IKEA.
От infarrantlycreative.net
Подробнее »
РУКОВОДСТВО ПО УСТАНОВКЕ — IKEA
Базовые шкафы 32 1/16 дюйма до нижней части направляющей подвески или 34 дюйма до вершины.30-дюймовые настенные шкафы 82 1/16 дюйма до нижней части подвесной шины или 84 дюйма до верхней части. 40-дюймовые настенные шкафы 92 1/16 дюйма до нижней части подвесной направляющей или 94 дюйма до верхней части. Должен иметься зазор ½ дюйма над подвесной направляющей настенного шкафа для установки, шкафы…
От ikea.com
Подробнее »
ИКЕА КУХОННЫЕ ШКАФЫ УСТАНОВИТЬ 101 — YOUTUBE
Строительный тренер Тим научит вас устанавливать кухонные шкафы IKEA. Да, вы можете сделать это своими руками! Начать и закончить оформление кухни, сборку кабины…
Из youtube.com
Подробнее »
КАК УСТАНОВИТЬ ШКАФ IKEA, КРЕПЛЕНИЕ НА СТЕНУ…
Как установить туалетный столик из IKEA и чего ожидать от этого процесса. # Justdoityourself #lovingit #perfecteverytimeShop любимые инструменты Джеффа и отличные …
From youtube.com
Подробнее »
КАК УСТАНОВИТЬ КУХОННЫЕ ШКАФЫ IKEA | МОЛОДОЙ ДОМ…
2019-03-13 · Многие из вас спрашивали советы и рекомендации, которые помогут сделать установку кухонных шкафов Ikea более гладкой и выглядеть (и функционировать) как можно лучше.И хорошая новость заключается в том, что после установки трех из них чуть более чем за полтора года (!!!) мы узнали ТОННУ о том, как сделать вещи немного проще и помочь вам в конечном итоге сделать лучше …
От younghouselove.com
Подробнее »
ВЫСОКАЯ КУХНЯ & AMP; ВЫСОКИЕ ШКАФЫ — IKEA
Высокие шкафы. Благодаря диапазону высоты, ширины, глубины и цвета наши высокие кухонные шкафы очень универсальны и подходят для любой кухни. Вы можете решить, какие аксессуары вы хотите использовать, например, регулируемые полки и ящики.Таким образом, вы получаете много места для хранения всего: от кастрюль и коробок для хлопьев до миски.
От ikea.com
Подробнее »
УСТАНОВКА НАСТЕННЫХ ШКАФОВ IKEA | БЕЗУМИЕ & AMP; МЕТОД
2015-03-19 · Первый шаг при установке шкафов Ikea — это измерить, куда будет идти направляющая, и отрезать ее (ножовкой) до нужной длины. Не обращайте внимания на странную окраску потолка на фото выше, мы пытались залатать место, где раньше была кладовая (шкафы…
From madnessandmethod.com
Подробнее »
КАК ЧИТАТЬ И ПОНИМАТЬ РУКОВОДСТВО ПО КУХНЕ IKEA -…
2019-02-15 · Самое сложное для понимания на кухне IKEA — это расположение выдвижных ящиков по отношению к стилю шкафа. В зависимости от …
Из youtube.com
Подробнее »
12 СОВЕТОВ ПО УСТАНОВКЕ КУХНИ IKEA — AZ DIY GUY
2017-11-06 · Я купил наши кухонные шкафы двумя большими партиями, 111 штук для южной стены, а через несколько месяцев — 71 штуку для северной стены.«Частью» в данном случае была большая коробка шкафа, плоская дверца, длинная полоса напольного бруса, маленькая сумка с двумя петлями или какой-нибудь прибор. Оба раза я считал общее количество штук, загружая их в магазине.
От azdiyguy.com
Подробнее »
СОВЕТЫ ПО УСТАНОВКЕ КУХОННЫХ ШКАФОВ IKEA — YOUTUBE
Узнайте, как профессионально установить кухонные шкафы IKEA. В этом видео мы даем несколько советов по установке шкафов IKEA sektion в стиле Up To Kode! 0:00 Введение …
Из youtube.com
Подробнее »
14 СОВЕТОВ ПО СБОРКЕ И УСТАНОВКЕ КУХНИ IKEA…
2016-06-29 · Совет № 11: Повесьте верхние шкафы как можно выше, чтобы не образовался потолок. IKEA предлагает две высоты для верхней мебели: 30 и 40 дюймов, и я предлагаю выбрать 40-дюймовую. Имейте в виду, что расстояние между нижним и верхним шкафами должно быть примерно 18-20 дюймов. Высота столешницы обычно составляет 36 дюймов, поэтому добавьте …
из foxyoxie.com
Подробнее »
УСЛУГА ПО УСТАНОВКЕ КУХНИ — IKEA CA
Базовая кухня Установка для нижнего шкафа, навесного шкафа или высокого шкафа с дверью от 99 долларов за шкаф • Сборка и установка базовых шкафов IKEA SEKTION, навесных шкафов, высоких шкафов, дверей, накладок, ножек, плинтусов, полок, ручек и ручек в соответствии с инструкции по сборке производителя.
От ikea.com
Подробнее »
СТЕНА И AMP; ВЕРХНИЕ ШКАФЫ — IKEA
В ИКЕА.ca у нас есть выбор навесных и верхних шкафов, предназначенных для создания идеальной кухни для вас. Наши навесные шкафы для кухни бывают разных форм и комбинаций. Магазин IKEA…
От ikea.com
Подробнее »
КУХОННЫЕ ИДЕИ И ВДОХНОВЕНИЕ — IKEA CA
Гарантия на кухню. Кухни ИКЕА созданы, чтобы противостоять суровым условиям повседневной жизни в вашем доме. День за днем, год за годом мы настолько уверены в качестве наших продуктов, что предлагаем щедрые ограниченные гарантии на наши кухни, бытовую технику и смесители — и все это бесплатно.
От ikea.com
Подробнее »
УСТАНОВКА КУХОННЫХ ШКАФОВ IKEA — NOELLE O DESIGNS
2021-03-22 · Установка кухонных шкафов ИКЕА как островка. Мы поняли, что не сможем построить кухонный остров на пластиковых ножках. Остров никогда не был бы достаточно крепким. В этом случае мы использовали 2 × 6, которые были в гараже, чтобы построить каркас, прикрепив их к основанию пола, чтобы удерживать их на месте. Шкафы были …
Из noelleodesigns.com
Подробнее »
СЕКЦИЯ ВЫСОКАЯ РАМА ШКАФА, БЕЛАЯ, 24X24X80 … -…
SEKTION Каркас высокого шкафа, белый, 24x24x80 дюймов (61x61x203 см) Кухонная система SEKTION дает вам свободу создавать кухню своей мечты внутри и снаружи. В сочетании с кухонными органайзерами этот шкаф становится сундуком для хранения сухих продуктов, бытовой техники и уборочного инвентаря.
из ikea.com
Подробнее »
ДИЗАЙН И AMP; УСТАНОВИТЕ КУХНЮ СВОЕЙ МЕЧТЫ IKEA: AN…
2021-05-12 · Рецепт масляного кондиционера для столешницы и разделочной доски из 2 ингредиентов.Как красить кухонные шкафы, и ошибки №1, которых следует избегать. Кухонный остров своими руками в фермерском доме в стиле бохо: взлом IKEA! Почему мы выбрали кухню ИКЕА. Кухонные шкафы IKEA…
От apieceofrainbow.com
Подробнее »
IKEA ОСНОВНЫЕ ШКАФЫ И ЯЩИКА ДЛЯ КУХНИ В СБОРЕ -…
Советы по монтажу кухонного шкафа Ikea и основания раковины. Советы и уловки, которые помогут людям избежать некоторых из многих причин, по которым эти вещи могут пойти не так. Есть некоторые …
Из youtube.com
Подробнее »
Вы в настоящее время на диете или просто хотите контролировать питание и ингредиенты своей еды? Мы поможем подобрать рецепты по способу приготовления, питанию, ингредиентам…
Проверить это »
Хотите купить ингредиенты? Позвольте нашим партнерам помочь вам!
Связанный поиск
Ikea Sektion Инструкции по сборке шкафа
Оставьте свои комментарии?
ИНСТРУКЦИЯ ПО СБОРКЕ IKEA SEKTION Pdf Скачать
9 часов назад Раздел IKEA Инструкции по сборке Руководство. Скрыть большие пальцы. См. Также раздел . Инструкция по сборке — 28 страниц. Инструкция по монтажу инструкция — 20 страниц. Пособие — 28 страниц. 1. 2. 3.
Веб-сайт: Manualslib.com
Категория : Используйте слова в предложении
Ikea, Инструкции
Как собрать базовый шкаф IKEA SEKTION YouTube
3 часа назад Пошаговое видео-руководство, показывающее, как собрать IKEA base шкаф , потому что иногда легче смотреть видео, чем понимать черно-белое dra
Веб-сайт: Youtube.com
Категория : Используйте в предложении
Ikea, It
IKEA SEKTION MANUAL Pdf Скачать ManualsLib
9 часов назад IKEA sektion Assembly Manual. Скрыть большие пальцы. См. Также раздел . Инструкция по монтажу инструкция — 20 страниц. Инструкция по монтажу инструкция — 16 стр. Пособие — 28 страниц. 1. 2. 3.
Веб-сайт: Manualslib.com
Категория : Используйте слова в предложении
Ikea, Инструкции
Как собрать кухонные шкафы IKEA Sektion как…
3 ч. назад. Что вы должны сделать в первую очередь перед тем, как построить IKEA , кухню шкафы ? Прочтите запутанное руководство в течение 28 часов, чтобы узнать, как собрать кухню IKEA ок.
Автор: Robuilt
Просмотры: 33K
Сайт: Youtube.com
Категория : Используйте в предложении
Ikea
РУКОВОДСТВО ПО УСТАНОВКЕ КУХНИ IKEA
Только сейчас Убедитесь, что каждый шкаф выровнен с предыдущим шкафом , отрегулировав ножки. Соберите все базовые шкафы в соответствии с инструкциями по сборке . Убедитесь, что ножки прикреплены в том порядке, в котором будут установлены шкафы . Шкаф на ножках, соединяющих два шкафа можно использовать для поддержки обоих шкафов во время установки.
Веб-сайт: Ikea.com
Категория : Используйте слова в предложении
Is, Instructions, In, Installed, Install
Как собрать IKEA Sektion Pantry
Infarrantly Creative
часов назад Большой 24-дюймовый ящик с ящиком стоит 15,99 доллара ( IKEA # 102.784.03), а средний ящик — 13,99 доллара ( IKEA # 202.784.07). В этом нет необходимости, если вы пытаетесь сэкономить на расходах, но это хорошее обновление, поэтому вещи не валяются в ваших ящиках.8. Если одна сторона вашего шкафа обращена наружу, вам также придется взять панель, чтобы закрыть боковую сторону.
Обзоры: 30
Расчетное время чтения: 6 минут
Веб-сайт: Infarrantlycreative.net
Категория : Использование в предложении
Is, Iskea , If, In
Как собрать ящик IKEA SEKTION Простой Практичный
6 часов назад Надеюсь, вы видели мой последний пост о создании IKEA SEKTION base Cabinet .Вот второе видео из серии о сборке и установке ящиков в базовый шкаф . Мои видео о сборке верхнего шкафа и двери выйдут через несколько недель. Если вы устанавливаете на кухне базовые шкафы , вам понадобятся выдвижные ящики в них.
Обзоры: 1
Расчетное время чтения: 2 минуты
Веб-сайт: Simplepracticalbeautiful.com
Категория : Использовать в предложении
Ikeinga , Если
Как прикрепить дверь шкафа IKEA SEKTION Простая
Только сейчас Как прикрепить дверь шкафа IKEA SEKTION .См. Инструкции IKEA SEKTION шкаф дверь в реальных изображениях, пошаговое руководство, чтобы вы могли увидеть, где каждая деталь и часть двери и петли подходят друг к другу. Вот последняя из серии моих видео-сообщений о том, как собирать и устанавливать детали системы IKEA SEKTION .
Расчетное время чтения: 2 минуты
Веб-сайт: Simplepracticalbeautiful.com
Категория : Использовать в предложении
Ikea, Инструкции, In, Изображения, Инструкции по установке
IK2 9000
Just Now Кресла Мебель для ванных комнат Ванная комната Освещение Каркасы кроватей Книжные шкафы Ящики и корзины Свечи Потолочные светильники и прожекторы Стулья и скамейки Комод Детский ящик мебель Шторы Кушетки Обеденные столы Столы столовые и сервировочные Стаканы Домашние столы Органайзеры Интерьер кухни органайзеры Кухонные мойки и аксессуары для них Лампочки…
Website: Ikea.lv
Категория : Используйте слова в предложении
Интерьер
Практически необходимы инструкции по сборке для Sektion
5 часов назад Инструкции по сборке для угловой кабины Sektion крайне необходимы. Сборка . Привет всем — многие инструкции SEKTION были изменены в этом году, так как кажется, что часть оборудования сборки изменилась или изменилась.Нет видео, показывающих угловое основание шкафа и Телефон службы поддержки IKEA меня просто сбивает с ног
Веб-сайт: Reddit.com
Категория : использовать для в предложении
Инструкции, It, Is, Ikea
Сборка и установка кухонных шкафов IKEA Sektion
Just Now Сборка и установка Кухня IKEA Sektion шкафов . В среду я рассказал о процессе планирования кухни IKEA и размещения вашего заказа в IKEA .Он полон информации и советов, так что обязательно посмотрите его. Я вернулся сегодня, чтобы рассказать все о том, как собрать коробки Sektion cabin и повесить их на стену.
Отзывы: 8
Расчетное время чтения: 5 минут
Веб-сайт: Houseofhepworths.com
Категория : Использование и в предложении
Ikea, Iting , Информация
Сборка и установка наших шкафов Ikea Sektion
Только сейчас Полуручка.Наш шкаф Shaker с деревянной текстурой фасадов был разработан для таких загруженных домов с интенсивным движением, как наш. Эта линия, покрытая прочной текстурированной термопленкой, совместима со шкафами Sektion , Akurum, Godmorgon и Besta от IKEA . Это идеальный и практичный способ добавить тепла дерева во все комнаты вашего дома.
Веб-сайт: Chrislovesjulia.com
Категория : Использование и в предложении
Is, Ikea, It
Как установить кухонные шкафы IKEA (с изображениями) 3 часа назад wikiHow
3 часа назад Если вы устанавливаете свою IKEA , кухню шкафы , вам нужно будет собрать их, следуя инструкциям , которые идут в комплекте.Собрав их вместе, вам нужно будет надежно прикрепить их к стене кухни. Обратитесь к руководству по сборке шкафа , если вы не можете их найти или вам нужна дополнительная информация. 5. Закрепите верхние шкафы
Просмотры: 26K
Веб-сайт: Wikihow.com
Категория : Используйте в предложении
Install, Ikea, Instructions, If, If, Information
Установка шкафа Ikea SEKTION: День 1 Kellbot! Келлбот!
8 часов назад Ikea SEKTION Шкаф Установка: День 1.За долгие выходные мы закрыли протекающие трубы на кухне, прибили полы OSB и закончили красить одну из спален наверху. Теперь все, что нам нужно, чтобы спать — это кровать! В воскресенье Крис и Джен приступили к сборке шкафов для кухни, а я попытался разобраться в
Расчетное время чтения: 4 минуты
Веб-сайт: Kellbot.com
Категория : Используйте слова в предложении
Ikea, Install, In, Is
Как установить кухонные шкафы Ikea Young House Love
7 часов назад Следующие несколько инструментов понадобятся для крепления ваших шкафов к стене.Независимо от того, делаете ли вы верхние или нижние шкафы , , система Ikea использует металлическую направляющую (называемую подвесной рейкой Sektion ), которую вы прикрепляете к стене, а затем на них свешиваются коробки шкафа . Система рельсов чрезвычайно удобна, потому что если вы убедитесь, что рельс находится на уровне
Веб-сайт: Younghouselove.com
Категория : Используйте слова в предложении
Ikea, Is, If
Как: Установите выдвижные ящики в кухонных шкафах IKEA
Только сейчас (a) В шкафах с регулируемой полкой: соберите в соответствии с указаниями IKEA Maximera.(b) В шкафах с фиксированной полкой: выполните сборку в соответствии с инструкциями IKEA Maximera, указанными на шаге 5. Остальная часть ящика будет сборкой позже. C) УСТАНОВКА ЯЩИКА. Инструкция по установке ящика написана для шкафа с фиксированной полкой.
Веб-сайт: Ikeahackers.net
Категория : Используйте в предложении
In, Ikea, Установка, инструкции
Легко ли собрать шкафы IKEA?
8 часов назад Плата Ikea за доставку, сборку , и установку добавляет 200 процентов к стоимости шкафа , говорит Гроте.По мнению опытных и неопытных мастеров-мастеров, в среднем двум взрослым требуется около восьми часов, чтобы собрать 10 шкафов .
Веб-сайт: Usersquestions.com
Категория : Простое использование в предложении
Ikea, Установка, Это, Без опыта
SEKTION / MAXIMERA Навесной шкаф с дверью / 2 IKEA.com Just
Now Инструкция по монтажу SEKTION Настенный шкаф рама 502.654.70 MAXIMERA Ящик, низкий 402.656.54 MAXIMERA Ящик, низкий 402.656.54 UTRUSTA Петля со встроенной заслонкой для кухни 404.017.84 Размер продукта Ширина:
Цена: $ 192
Наличие: На складе
Интернет-сайт : Ikea.com
Категория : Использование в предложении
Инструкции, в
Создание домашнего офиса с использованием кухонных шкафов Ikea Sektion
1 часов назад Это домашнее рабочее пространство в Нью-Йорке является прекрасным примером творчества с Ikea Sektion и дверями Semihandmade.Alive + Kicking Design представляет собой комбинацию из шкафов и ящиков для хранения и организации рабочего пространства, в то время как отдельно стоящий стол сохраняет внешний вид уникальным и свободным от беспорядка. Используя наши передние панели DIY Shaker, они прошли
Веб-сайт: Semihandmade.com
Категория : Используйте слова в предложении
Is, Ikea
Sektion Cabinet Double Oven: IKEA
4 часа назад Sektion Cabinet Double Oven Looking For Мы пытаемся расположить кухню в нашем новом доме, и двойная духовка является одним из наших требований, но, используя планировщик ikea , единственный вариант, который мы видим, — это комбинированное настенное крепление для микроволновой печи и духовки. .
Сайт: Reddit.com
Категория : Используйте слова в предложении
In, Is, Ikea
SEKTION / MAXIMERA Bc w выдвижная рабочая поверхность ikea.com
6 часов назад Инструкция по монтажу SEKTION Основание шкаф рама 902.653.88 MAXIMERA Ящик, низкий 702.656.62 MAXIMERA Ящик, низкий 702.656.62 MAXIMERA Ящик, высокий 102.656.79 MAXIMERA Ящик, высокий 102.656.79 UTRUSTA Выдвижная рабочая поверхность 605.105,79
Веб-сайт: Ikea.com
Категория : Используйте работу в предложении
Инструкции
Пожалуйста, помогите с IKEA Sektion Cover Panels
4 часа назад Добро пожаловать в самую большую головную боль с установкой Шкафы икеа ! (IMO). Я обсуждал некоторые проблемы, которые у меня были с панелями в этой ветке. Мы решили сделать так, чтобы панели крышки совпадали с передней частью дверей, и я думаю, что это выглядит более изысканно.К сожалению, наши накладки были недостаточно большими для этого.
Веб-сайт: Houzz.com
Категория : Использование в предложении
Установка, Ikea, Imo, Проблемы, В
12 советов по установке кухни IKEA — AZ DIY Guy
6 часов назад Количество сборки до начала установки может быть прямо-таки устрашающим. Не отчаивайтесь, просто включите музыку и приступайте к делу; это на самом деле весело! Теперь, когда я запаковал 50% новой кухни, я составил подробный список советов и приемов, которые помогут упростить сборку шкафа IKEA и установку.Примиритесь с длиной монстра
Веб-сайт: Azdiyguy.com
Категория : используйте слова в предложении
Установка, устрашающий, In, It, Ikea
Первый взгляд на сборку нового IKEA Кухонные шкафы
Только сейчас « IKEA SEKTION в плоской упаковке в сборе будет знаком любому, кто разбирается в искусстве IKEA », — отмечает Дэн. «Несмотря на то, что было внесено много небольших изменений, в частности, в конструкцию пластиковых ножек и систему направляющих подвески, базовая сборка сопоставима с AKURUM.”
Расчетное время чтения: 5 минут
Веб-сайт: Thekitchn.com
Категория : использовать в предложении
Ikea, In, Is
Corner Cabinet Размеры & Чертежи
7 часов назад Шкаф IKEA Sektion Base (Corner ) идеально вписывается в угол любого помещения. Этот базовый угловой шкаф идеально подходит для хранения кухонных предметов, таких как кастрюли, тарелки для выпечки и галантерея.Дверь базового шкафа может быть установлена слева или справа, при открытии открывается 1 полка. IKEA Sektion Base Cabinet Corner имеет высоту рамы 30 дюймов (76,2 см), общая установка…
Веб-сайт: Dimensions.com
Категория : Используйте слова в предложении
Ikea, In, Is, Ideal, Items, Installed
Честные плюсы и минусы шкафов IKEA Sektion Дубовая обитель
3 часа назад Шкафы IKEA Sektion — The Bad White Cabinet Interiors.К сожалению, у всех шкафов Ikea Sektion есть свои плюсы, есть и несколько минусов. Во-первых, от базового шкафа до системы Ikea Sektion всегда белого цвета. Таким образом, независимо от того, выберете ли вы двери белого, зеленого, серого или под дерево, внутреннее основание шкафа всегда будет белым. Нарушитель сделки? Неа.
Веб-сайт: Oakabode.com
Категория : Использование и в предложении
Ikea, Interiors, Is, Interior
Установка IKEA Верхние кухонные шкафы: 5 шагов
9 часов назад IKEA Верхняя кухня Шкафы : Некоторое время назад у нас была неожиданная принудительная переделка кухни, в один прекрасный день ряд верхних шкафов полностью упал со стены, чуть не унеся с собой мою жену.Как и большинство проектов по замене этих шкафов , оставалось на заднем плане до IKEA …
Веб-сайт: Instructables.com
Категория : Используйте слова в предложении
Установка, Ikea , It
MAXIMERA / SEKTION ikea.pr
1 часов назад MAXIMERA выдвижной ящик — это выдвижной ящик полного выдвижения с плавным ходом и встроенными амортизаторами, поэтому он закрывается медленно, мягко и бесшумно. Дверной амортизатор предотвращает захлопывание двери шкафа , зацепляя движущуюся дверь, так что она закрывается медленно, мягко и бесшумно.Дверь может открываться вправо или влево. Петли с защелкой могут быть установлены на дверь без винтов, и…
Веб-сайт: Ikea.pr
Категория : Используйте слова в предложении
Is, In, It
SEKTION Corner пристенная кабина с полками / из стекла dr IKEA
2 часа назад SEKTION Угловая настенная кабина с полками / стеклянной дверцей Дверь может открываться влево или вправо. Вы можете настроить расстояние по своему усмотрению, потому что полки регулируются.Петли с защелкой могут быть установлены на дверь без шурупов, и вы можете легко снять дверь для очистки.
Веб-сайт: Ikea.com
Категория : Используйте стену в предложении
MAXIMERA / SEKTION ikea.pr
6 часов назад Прочная конструкция каркаса, толщина ¾ «. Выдвижной ящик MAXIMERA гладкий. выдвижной выдвижной ящик полного выдвижения со встроенными амортизаторами, поэтому он закрывается медленно, мягко и бесшумно. Дверной амортизатор предотвращает захлопывание двери шкафа за счет захвата движущейся двери, так что она закрывается медленно, мягко и бесшумно.Дверь может открываться вправо или влево. Вы можете настроить интервал следующим образом:
Веб-сайт: Ikea.pr
Категория : Используйте слова в предложении
Is, In, It
IKEA Запасные части Заказ запасных частей
1 час назад IKEA MALM LOW Каркас кровати — IKEA Запасные части для сборки кроватей IKEA . 4.9 звездочный рейтинг. 74 Обзоры. 29,99 долларов США. Распроданный.
Веб-сайт: Мебельные детали.com
Категория : Используйте слова в предложении
Ikea
Думаете установить кухню IKEA? Вот что вы
2 часа назад Вот то, что вам нужно знать в первую очередь. Шкафы IKEA могут сэкономить вам кучу денег, но есть некоторые моменты, о которых следует знать перед их установкой. Кухня IKEA может выглядеть на удивление элитной
Веб-сайт: Nbcnews.com
Категория : Использование в предложении
Ikea, Установка
Ремонт кухни Faith: Установлено
3 часа назад IKEA официально объявила о замене линейки AKURUM, состоящей из шкафов , представленных здесь, на новую улучшенную систему из шкафов — SEKTION .Подробнее об этом изменении здесь: → Подробнее о различиях между AKURUM и SEKTION : IKEA полностью меняет свою кухню Cabinet System.
Веб-сайт: Thekitchn.com
Категория : Используйте слова в предложении
Ikea, Improved, Is
IKEA, Услуги по сборке и установке кухонных шкафов
Just Now Any Assembly профессиональная команда по установке шкафа IKEA , имеющая более чем 16-летний опыт работы в отрасли.Expert Design предлагает лучшие советы и услуги по планированию, проектированию и установке как традиционных, так и современных IKEA kitchen cabinets . Мы предлагаем полный спектр услуг по измерению, проектированию, сборке и установке
Веб-сайт: Anyassembly.com
Категория : Используйте слова в предложении
Is, Ikea, Installation, Industry , Установка
IKEA Sektion Kitchen Обзор Стоят ли шкафы IKEA
9 часов назад Гарантия IKEA на свою кухню Sektion шкафы вышибает из воды все остальные, потому что это действительно безумно прочный продукт.У нас есть бетонные столешницы и время от времени взрослые люди, которые взбираются на верхнюю полку.
Веб-сайт: Oakabode.com
Категория : Используйте слова в предложении
Ikea, It, Is, Insanely
Шкафы IKEA SEKTION становятся консолью хранения
1 час назад IKEA используемые элементы: Sektion горизонтальная стенка шкаф с 2 дверцами, 36 ″ Ш x 30 ″ В. Ножки пеньки, белые.Мне нужен был узкий шкаф для хранения , чтобы положить в него все наши сумки (сумки для ноутбука, сумку для пеленок, портфель и т. Д.), Чтобы они не попадали в поле зрения и были недоступны для нашего очень мобильного и любопытного годовалого ребенка. Я планировал положить его под завтрак
Веб-сайт: Ikeahackers.net
Категория : Использовать в предложении
Ikea, Items, Into, It
IKEA Sektion Wall Cabinet Corner Размеры и чертежи
7 часов назад Настенный шкаф IKEA Sektion Wall (угловой ) идеально вписывается в любой угол помещения, в котором он находится.В его конструкции предусмотрены 2 полки, расстояние между которыми можно регулировать или снимать, а также дверцу, которую можно установить слева или справа. IKEA Sektion Wall Cabinet Corner имеет высоту 20, 30, 40 дюймов (50,8, 76,2, 101,6 см), ширину 26 дюймов (66 см) и глубину 15,5 дюймов (39,4 см).
Веб-сайт: Dimensions.com
Категория : Используйте слова в предложении
Ikea, Into, It, Is, In, It
IKEA Santo Domingo SEKTION
6 часов назад Спасибо Благодаря модульной конструкции кухня SEKTION идеально впишется в любое пространство и может быть адаптирована к вашим потребностям.Кухня, разработанная, чтобы всегда адаптироваться к тому, что вам нужно. Настенные шкафы разной высоты, с глубокими ящиками и идеально встроенной бытовой техникой за дверцами из прочных, красивых и экологичных материалов.
Веб-сайт: Ikea.com.do
Категория : Используйте слова в предложении
Его, есть ли встроенные
Настенные печи высокого класса с весом шкафа IKEA?
4 часа назад Мы тяжело склоняемся к кухне IKEA , но у нас есть оговорки по поводу того, что вес нашей бытовой техники раздавит их.После некоторых исследований, наши 30-дюймовые двойные печи Dacor Renisance весят 455 фунтов по сравнению с двойными духовками Nutid IKEA — 266 фунтов. Это существенная разница! Я предполагаю, что IKEA только инженеры
Веб-сайт: Houzz.com
Категория : используйте конец в предложении
Ikea
Обзор кухни IKEA: плюсы, минусы и общее качество THE
7 часов назад Шкаф IKEA дверцы и фасады ящиков.Шкаф IKEA дверцы и фасады ящиков приобретаются отдельно от ящиков шкафа (еще одно преимущество гибкости системы). Они делятся на четыре класса: Настоящее дерево + МДФ. На данный момент только 4 линии дверей шкафа IKEA содержат натуральное дерево: EKESTAT, FILIPSTAD, LAXARBY и BJORKET.
Веб-сайт: Thehomestud.com
Категория : Использование и в предложении
Ikea, Into
18+ Идеи сборки шкафов Ikea
Главная »Обои» 18+ идей сборки шкафов Ikea
Изображения сборки вашего шкафа Ikea доступны на этом сайте.Сборка шкафов Ikea — это тема, которую сегодня ищут и любят пользователи сети. Вы можете получить файлы сборки шкафа Ikea здесь. Скачать все бесплатные фотографии и векторы.
Если вы ищете ikea шкаф в сборе изображений, информация, связанная с ключевым словом ikea шкаф в сборе , вы попали в идеальный блог. Наш сайт часто дает вам подсказки по ссылкам на видео и изображения самого высокого качества, пожалуйста, просмотрите и найдите более информативные видео статьи и графику, которые соответствуют вашим интересам.
Корпус Ikea в сборе .
Инструкции по сборке шкафа Ikea 2021 Ikea Шкафы шкафа Ikea Design From pinterest.com
Облицовка камина из камня River
Наборы круглых журнальных столиков
Римские шторы для кухни
Облицовка камина
Источник: pinterest.com
Источник: pinterest.com
Источник: pinterest.com
Источник: pinterest.com
Источник: pinterest.com
Источник: pinterest.com
Источник: в.pinterest.com
Источник: pinterest.com
Источник: pinterest.com
Источник: pinterest.com
Источник: pinterest.com
Источник: pinterest.com
Источник: pinterest.com
Источник: br.pinterest.com
Источник: pinterest.com
Источник: pinterest.com
Источник: pinterest.com
Источник: pinterest.com
Этот сайт представляет собой открытое сообщество, в котором пользователи могут делиться своими любимыми обоями в Интернете. Все изображения на этом веб-сайте предназначены только для личных обоев, использование этих обоев в коммерческих целях строго запрещено, если вы являетесь автором. и обнаружите, что это изображение опубликовано без вашего разрешения, пожалуйста, сообщите Нам о нарушении Закона США «Об авторском праве в цифровую эпоху».
Если вы находите этот сайт хорошим, пожалуйста, поддержите нас, поделившись этими сообщениями с вашими учетными записями в социальных сетях, таких как Facebook, Instagram и т. Д., Или вы также можете добавить в закладки эту страницу блога с заголовком «Сборка шкафа ikea», используя Ctrl + D для устройств a ноутбук с операционной системой Windows или Command + D для ноутбуков с операционной системой Apple. Если вы используете смартфон, вы также можете использовать меню ящика браузера, который вы используете. Будь то операционная система Windows, Mac, iOS или Android, вы все равно сможете добавить этот веб-сайт в закладки.
Как установить шкафы IKEA Besta
У меня есть небольшой этаж внизу, в котором буквально нет места для хранения вещей. Итак, после преобразования паркетного пола и покраски нижнего этажа в Valspar Bistro White мне не терпелось, наконец, обновить старый винный и кофейный бар с плавающей вешалкой. Вдохновленный созданием DIY IKEA от Sugar & Cloth плавающих учетных записей.
Я объединился с TaskRabbit для этого DIY-проекта. Если вам нужна помощь по дому, например, сборка мебели, уборка или даже перемещение — TaskRabbit всегда рядом! Кроме того, их мобильное приложение очень простое в использовании.Я искал в разделе «Сборка мебели ИКЕА» разных исполнителей задач, просматривал разные профили и выбрал Карли. У нее были положительные отзывы, и после обмена сообщениями я узнал, что у нее есть опыт установки шкафов ИКЕА.
За 290 долларов затрат на материалы IKEA, 6 часов работы и некоторые решения проблем мы установили шкаф IKEA Besta на 5 единиц, который можно использовать как винный и кофейный бар!
Материалы
(2) БЕСТО Рама с двумя соединенными блоками, белая — 120 $
(1) БЕСТО Рама цельная, белая — 45 $
(5) БЕСТО Петля с плавным закрытием / открытием — 50 $
(5) БЕСТО Подвесная шина — 25 $
(5) LAPPVIKEN Дверь, глянцевый белый — 50 $
Инструменты
Карандаш
Линейка
Power Drill
Сверло
Stud Finder
Level
Рулетка
Различные отвертки
Винты
Анкерные винты для тяжелых условий эксплуатации
Инструкции
БЕСТО Инструкция по монтажу рамы
БЕСТО Инструкция по установке петли с плавным закрыванием / открыванием нажатием
ДО
У меня был небольшой барный столик, в который больше не помещались бутылки, и он был переполнен.Кроме того, пространство слева от барной стойки было потрачено впустую.
ПОСЛЕ
1. Собрать агрегаты БЕСТА
Сначала мы собрали блоки BESTA с дверцами и петлями для плавного закрывания / открывания нажатием. Это была легкая часть. Заняло от 30 минут до часа, следуя инструкциям здесь и здесь.
2. Измерьте и разметьте стену
Используя прибор для поиска стоек, отметьте «x» там, где находятся стойки.Шпильки обычно размещаются за гипсокартоном на расстоянии 16 дюймов друг от друга. Также используйте искатель для поиска любых проводов под напряжением. Мы использовали подвесные рельсы, чтобы проследить линию, где он будет установлен. Используя инструмент уровня, мы проверили, чтобы линии были параллельны земле на 180 °. Меньше всего мне нужны наклонные шкафы!
3. Просверлить отверстия под анкерные болты
Просверлить отверстия под анкерные винты с помощью сверла и дрели. Вы должны почувствовать сопротивление на полпути, если правильно попали по шипу.
4. Прикрепите направляющие к стене
Просверлите направляющую в стене с помощью анкерных и обычных винтов.
5. Убедитесь, что направляющие подвески находятся на уровне
.
Мы трижды проверили, выровнены ли рельсы подвески.
6. Крепление шкафов ИКЕА Беста
Закрепите шкафы IKEA Besta с помощью болтов, входящих в комплект для установки.Шкафы должны плотно прилегать к стене. При необходимости отрегулируйте и затяните винты.
7. Готово!
Спустя 6 часов мы закончили установку шкафов IKEA Besta!
8. Организуйте и храните бутылки
Пора переместить и собрать все бутылки в стойку. Позже планирую вставить стеклянные полки БЕСТА. В моей ИКЕА их нет до сентября.
9. Отверстие для шнура кофеварки
Чтобы скрыть шнуры кофеварки, мы просверлили 2-дюймовое отверстие в верхней части шкафов Besta с помощью лопаты.Верхний кусок дерева полый и сделан из легкого картона, поэтому разрез не был чистым. Мне нужно вернуться с пилкой для ногтей. Мы использовали универсальный нож, чтобы вырезать прямоугольник из куска картона сзади.
10. Подставки для бокалов
У меня были эти держатели для бокалов с моего старого барного стола, поэтому я снял их и прикрепил к дну шкафа Besta.
11. IKEA Besta Wine Coffee Bar
Представляем мой новый винный и кофейный бар! Меня очень обрадовал новый внешний вид — много места для хранения вещей и обтекаемая форма — хороший комплимент моему маленькому этажу внизу.Синий — это на самом деле защитная наклейка, которая идет с дверьми IKEA, но мне нравится популярность цвета. Комментарии о том, следует ли мне их удалить?
Этот пост был разработан совместно с TaskRabbit. Все материалы и мнения принадлежат мне! Спасибо за поддержку спонсоров, поддерживающих A Taste of Koko!
Посетите профиль A Taste of Koko на Pinterest.
Руководства по установке и сборке
В зависимости от того, какую кухонную систему вы выбрали для построения вашей кухни Reform, существуют руководства по установке, которые помогут вам в этом процессе.
Общее руководство по установке
The Reform Общее руководство по установке_EU
The Reform Общее руководство по установке_US
Установка кухонного острова
Руководство по установке Kitchen Island_EU
Руководство по установке
Kitchen Island_US
Реформировать шкафы
Базовые шкафы
Направляющая для сборки Нижний шкаф
Направляющая для сборки Угловой шкаф L
Направляющая сборки Угловой шкаф R
Настенные шкафы
Направляющая по сборке Настенный шкаф
Направляющая по сборке Угловой шкаф-шкатулка
Высокие шкафы
Направляющая по сборке Высокий шкаф
Направляющая по сборке Верхний шкаф
Направляющая по сборке Встроенный высокий шкаф
Ящики
Деревянные ящики
Деревянные ящики + Reform (ЕС)
Деревянные ящики + Reform (США)
Деревянные ящики + IKEA (ЕС)
Деревянные ящики + ИКЕА (США)
Стальные ящики
Стальные ящики (ЕС)
Стальной ящик (США)
Стандартные ящики
Стандартный ящик в сборе
Руководство по стандартному ящику EU
Руководство по стандартному ящику US
Руководства по дизайну
Настенные полки
UNIT — Однослойные полки (EU)
БЛОК — Двухъярусные и более полки (ЕС)
UNIT — Однослойные полки (US)
БЛОК — Двухъярусные и более полки (США)
ПРОФИЛЬ — Руководство по сборке (ЕС)
ПРОФИЛЬ — Руководство по сборке (США)
Мини-направляющие
Инструкция по установке вентиляционной решетки
Инструкция по установке Петли 95 градусов для встроенного холодильного шкафа
Выдвижной нижний шкаф, 2 фасада
ГРАДУС — Столешница
ИКЕА / Реформа Солюшн
Руководство по установке ИКЕА
Мы обращаемся к IKEA за отдельными руководствами по сборке шкафов, чтобы помочь вам построить их шкафы, наши фасады просто заменяют фасады IKEA, так что вы можете следовать их руководствам в течение всего процесса.
Установка шкафа Ikea SEKTION: День 1 — Kellbot!
За долгие выходные мы закрыли протекающие трубы на кухне, прибили полы OSB и закончили покраску одной из спален наверху. Теперь все, что нам нужно, чтобы спать — это кровать!
Я буду гладить / подшить шторы в следующий раз, когда мы будем там
В воскресенье Крис и Джен приступили к сборке шкафов для кухни, а я пытался разобраться в инструкциях по установке.Это не легко. Есть несколько наборов инструкций, на которые вы должны ссылаться, и некоторые из них очень расплывчаты. В то время как Ikea говорит, что «вы можете установить это самостоятельно», ясно, что они не думают, что кто-то на самом деле собирается это делать.
Существует 3 основных компонента для подвешивания шкафов: направляющая, которая крепится к стене, сам корпус шкафа, а затем ножки шкафа на нижних шкафах. Каждый из них продается / упаковывается отдельно.
Существует общее руководство по установке, в котором указаны размеры, но довольно неясно, как повесить направляющие на стене.Затем инструкции по направляющим, которые имеют смысл до тех пор, пока вы не перейдете к их установке, после чего вы поймете, что некоторые шаги замалчиваются (подробнее об этом через секунду). Это плюс тот факт, что у меня не было ножовки, чтобы разрезать рельсы, заставили меня с разочарованием объявить о завершении работы в начале воскресного дня.
Обычно в Интернете можно найти бесконечное количество советов по сборке / установке Ikea. Но поскольку кухонная система SEKTION по состоянию на февраль была новой, в наличии не так много. Система почти идентична европейской системе METOD, поэтому я смог посмотреть эти видео, чтобы понять общий процесс.После ленивого понедельника утром я вернулся, чтобы сделать еще одну попытку.
Первый шаг — подвесить нижние направляющие, используемые для выравнивания шкафов. Общий процесс начинается так:
- Отметьте 32 3/16 ″ от пола по всей стене, где расположены ваши шкафы
- Поймите, что ваш пол даже немного не уровень
- Найди наивысшую оценку
- Используйте 4-футовый уровень, чтобы создать новую, более ровную линию, исходя из точки, где пол является наивысшим
Вам нужно начинать с самой высокой точки, потому что это самые короткие ножки шкафа.Если у вас пол ниже, ничего страшного, ножки можно раздвинуть по размеру.
Затем вам нужно повесить саму рейку, используя комбинацию дюбелей и шурупов для гипсокартона. Я попытался выровнять как можно больше шпилек, но из-за расстояния между отверстиями на направляющей (который, я думаю, все еще основан на метрической системе), мне повезло, если мне удалось получить две. Вам нужно закрепить перила каждой ногой.
Одна нижняя направляющая с регулировочными шайбами, потому что стена не плоская
Общий процесс, который я использовал для установки рельса:
- Удерживайте направляющую так, чтобы нижняя часть направляющей находилась на вашей линии, совместив отверстия с как можно большим количеством шпилек
- Установите 4-футовый уровень на верхнюю часть направляющей и отрегулируйте его до уровня
- Попросите друга пометить карандашом отверстия, которые вы хотите использовать
- Опустить рейку
- Вставьте дюбели для гипсокартона в стену в любом месте, где они вам нужны (но пока не затягивайте их).Выкрутите винты так, чтобы они выступали из стены примерно на 1/2 дюйма (но оставьте анкеры заподлицо)
- Вставьте винты в места, где находятся стойки, но оставьте их на 1/2 дюйма или около того вне стены
- Повесьте шурупы на шурупы, посмотрите, как до смешного покоробились ваши стены
В инструкциях говорится, что необходимо установить прокладки во все места, которые значительно утоплены. Это было немного более сложной логистической задачей, чем я ожидал, из-за анкеров для гипсокартона. Для прокладок по анкерам для гипсокартона мы сделали следующее:
- Выкрутите винт в том месте, где необходимо установить регулировочную шайбу
- Попросите одного человека удерживать направляющую на месте, а другой поместит прокладку позади места, где будет идти винт
- Отметьте центр отверстия на регулировочной шайбе
- Отметка в месте соприкосновения верхней части рельса с регулировочной шайбой
- Снимите регулировочную шайбу, просверлите отверстие в месте, где будет идти винт, и срежьте лишнее с верхней части
- Просверлите винт примерно на 1/2 дюйма в регулировочной шайбе так, чтобы он просто выходил за заднюю часть
- Снимите направляющую со стены и вставьте комбинированный винт / регулировочную шайбу в анкеры для гипсокартона
- Установить рейку на стену винтами
- Добавьте необычные прямоугольные шайбы, идущие в комплекте с направляющей
- Прикрепите все к стене, используя уровень 4 ‘, чтобы убедиться, что все заканчивается ровно и красиво, и уровень
Мы разработали эту стратегию методом проб и ошибок.Одна вещь, которая сильно отличается от старой линейки шкафов AKURUM, — это то, как они крепятся к направляющей. У старых была штука, похожая на гайку, которая вставлялась в направляющую, а затем шкафы совпадали с ней и прикручивались на место. У новых есть скоба сзади, и они просто висят там, с некоторыми застежками, чтобы удерживать их на месте. Я надел один, чтобы посмотреть, как все работает. Этот шкаф вообще-то для острова, мы еще не собрали нижние навесные шкафы.
У реальных нижних шкафов будут ножки
Инструкции Ikea советуют сначала измерить / разметить всю комнату, но для меня это не имеет смысла.НАМНОГО проще измерить верхние шкафы, если вы установили и выровняли нижние направляющие. Я добавил 1/2 дюйма к своим размерам для верхних шкафов, потому что мне нужен немного более высокий фартук. Плитка для фартука, которая у нас есть, имеет высоту 3 дюйма, а расстояние между шкафами Ikea рассчитано на 18,5 дюймов по вертикали. Чтобы не разрезать плитку по длине, я добавляю немного дополнительного места, чтобы освободить место для раствора (расстояние между каждой плиткой и стойкой / шкафами составит 1/8 дюйма).
Оргалит прибивается к вертикальным панелям гвоздями;
Когда он будет установлен, проверяют плотность прилегания деталей друг к другу. Вставленные в отверстия шляпки крестовиной внутрь затягивают с помощью отвертки.
