Чертеж кухонного углового шкафа: Угловой кухонный шкаф, виды с размерами и чертежи разных моделей
Угловой кухонный шкаф, виды с размерами и чертежи разных моделей
На чтение 8 мин. Просмотров 9.5k.
Угловые шкафы являются популярными предметами обстановки, позволяющими занимать пространство, которое обычно не применяется для каких-либо целей. Они могут создаваться из разных материалов, и в разнообразных стилях, что позволяет подобрать отличный вариант для любой кухни. Устанавливающийся угловой кухонный шкаф имеет разные виды, размеры, чертежи, которые можно подобрать по своему усмотрению.
Особенности конструкции
К положительным параметрам использования углового шкафа относится:
- за счет его применения значительно увеличивается полезная площадь комнаты, так как установка осуществляется в месте, которое не применяется для каких-либо других целей или монтажа иных предметов обстановки;
- хотя зрительно кухонный напольный шкафчик, предназначенный для угла, обладает небольшими размерами, на самом деле он отличается прекрасной вместительностью и многофункциональностью, так как оснащается разными полочками, ящичками или отсеками для хранения разнообразных продуктов или посуды;
- размеры кухонных шкафов могут быть разными, что дает возможность выбрать оптимальный вариант для помещения;
- для оформления фасада могут использоваться различные методы, поэтому они могут оснащаться разным декором или вовсе создаваться из стекла, что положительно влияет на внешний вид кухни;
- если выбирается угловая кухня, то в состав кухонного гарнитура уже входят угловые шкафчики для установки на полу или для навешивания на стену, поэтому они идеально сочетаются с другими элементами;
- на кухне такая конструкция всегда смотрится интересно, гармонично и стильно.

Для создания интересного внешнего вида помещения обычно сочетается напольный угловой предмет интерьера с навесным шкафчиком.
К другим особенностям такой мебели относится:
- угловая конструкция оснащается дверками или создается без них, причем в открытых моделях надо хранить только привлекательную и красивую посуду;
- форма такого шкафчика может быть треугольной, трапециевидной или Г образной, причем выбор зависит от предпочтений владельцев недвижимости;
- определенные модели оснащаются выдвижными ящичками, в которых могут храниться мелкие предметы, поэтому сочетается компактность конструкции с хорошей вместительностью;
- обычно нижний элемент используется под мойку;
- нередко в такой шкаф может вмонтироваться различная крупная бытовая техника, что позволяет эффективно пользоваться ею на кухне;
- для украшения фасада могут применяться разные способы, например, используется нанесение рисунка пескоструйным аппаратом или обивка кожей или тканью;
- нижние элементы могут оснащаться ножками или выпускаться без них, причем в первом случае обеспечивается легкость уборки комнаты.

Интересными считаются шкафчики, оснащенные карусельными полками, так как они являются идеальным решением для хранения посуды.
Размеры в зависимости от вида
Габариты данных конструкций могут быть разными. Если они являются частью гарнитура, то обладают идеальными размерами для соединения с другими элементами. Если выбираются отдельно, то должны подходить к остальным прямым шкафам. Размеры углового предмета интерьера могут отличаться в зависимости от того, является ли он напольным или навесным.
Навесной
Если выбирается верхний шкаф углового типа, то его размеры равны:
- обычно эти элементы не используются для установки крупногабаритной бытовой техники, допускается делать их не слишком прочными и вместительными;
- ширина может варьироваться от 15 до 80 см, причем этот параметр зависит от формы шкафа, так как он может быть треугольным, трапециевидным, Г образным или каким-либо другим;
- глубина стандартно равна 35 см, но при ее выборе учитывается глубина нижних ящичков, так как данные элементы должны прекрасно сочетаться друг с другом, а иначе кухня не будет выглядеть гармонично;
- угловой навесной шкаф для кухни рекомендуется прикреплять на расстоянии от нижних тумб примерно в 50 см, но допускается отклонение в разные стороны на 5 см.

Вышеуказанные размеры считаются стандартными и часто встречаемыми, но допускается выбирать конструкции, обладающие совершенно другими габаритами, так как основным фактором является то, что они должны быть вместительными, удобными для использования и привлекательными. Угловая конструкция может обладать настолько маленькими размерами, что ее можно расположить в небольшой нише, если она имеется в комнате. Нередко прикрепляется над варочной панелью, поэтому будет использоваться для хранения разных ложек или лопаток, используемых при приготовлении различных блюд. При выборе фасада учитывается, что может быть одна дверца или несколько этих элементов. Допускается выбрать модели, не оснащенные дверками.
Напольный
Если выбирается нижний шкаф, то стандартными будут размеры:
- выбираются размеры в зависимости от параметров выбранного кухонного гарнитура, и рекомендуется учитывать размеры, высоту и иные параметры плиты, которая может быть газовой или электрической;
- если кухня обладает небольшими размерами, то желательно выбирать глубину, не превышающую 50 см;
- высота стандартно равна 85 см, но допускается отрегулировать в определенных шкафах данный параметр, так как для многих людей такая высота считается слишком значительной;
- ширина варьируется от 15 до 80 см, причем оптимальным считается показатель в 60 см.

Интересным решением будет покупка угловой конструкции, равной по размерам 600х600 мм, которая будет обладать оптимальными габаритами, поэтому ею будет действительно удобно пользоваться.
Обычно устанавливается нижний элемент после прикрепления верхнего. Нижняя конструкция должна быть симметрична верхней. Допускается выбрать элемент с ножками или без них.
Под мойку
Довольно часто угловые изделия напольные выбираются под мойку. Их размеры могут значительно отличаться, так как они зависят от того, какими габаритами будет обладать сама мойка. Учитывается, каким способом будет фиксироваться конструкция, так как можно купить врезную или накладную мойку. За счет большого количества различных моек имеются определенные трудности с грамотным выбором оптимального шкафа, поэтому желательно первоначально выбрать мойку, а потом предмет интерьера.
Для таких шкафов стандарт размеры считаются оптимальными, но если требуется получить какую-либо необычную конструкцию, то все параметры вычисляются индивидуально.
Ширина может превышать 60 см, а глубина достигает даже 80 см, хотя пользоваться таким шкафом будет затруднительно. Обычно для больших изделий под мойку выбирается два фасада, но можно выбрать модель с одной дверцей. Прекрасным выбором для любой комнаты будет кухня Мадлен, обладающая интересным видом, доступной стоимостью и высоким качеством.
Угловой
Стандартный угловой предмет интерьера обладает разными параметрами. Он может быть навесным или напольным, а также создается из разнообразных материалов. Наиболее востребованной считается угловая конструкция, сделанная из натуральной древесины, но ее стоимость будет чрезвычайно высокой. Требуется постоянно защищать деревянное изделие от влаги, что не всегда оптимально для кухни.
Прекрасным выбором будут изделия из ламинированного МДФ или пластика. При определении оптимальных габаритов учитываются рекомендации профессионалов:
- ширина цоколя, которая варьируется от 10 до 12 см, причем на этот показатель не оказывает влияние выбранный тип подставки, поэтому может выбираться как конструкция с ножками, так и сплошной шкафчик;
- высота обычно выбирается в пределах 70 см, но если изделие будет оснащаться мойкой, то желательно выбирать конструкцию пониже, чтобы за счет раковины был достигнут единый уровень со всеми остальными шкафчиками, являющимися частью кухонного гарнитура, а также с более низким элементом обеспечивается легкость мытья посуды;
- высота столешницы может составлять от 2 до 4 см, причем этот параметр зависит от того, какой материал использовался для ее производства, а также какой структурой он обладает;
- ширина так же варьируется от 40 до 80 см, причем на этот параметр влияет форма углового шкафчика, наполнение элемента, так как в нем могут иметься не только полки, но и выдвижные ящики, а также иные системы хранения;
- глубина варьируется от 30 до 50 см, причем она выбирается в зависимости от этого же параметра других прямых шкафчиков, устанавливающихся рядом.

Таким образом, размеры угловых шкафов могут значительно отличаться. Они зависят от многочисленных факторов, причем первоначально должно учитываться удобство использования конструкции по назначению, а особенно это относится к шкафчику, который будет оснащаться мойкой, так как от правильного выбора габаритов зависит комфортность мытья посуды.
Расстояние между нижним и верхним угловым шкафчиком стандартно равно 60 см, но этот параметр легко изменяется, так как учитывается, каким ростом обладает постоянный пользователь кухни.
Замеры и чертеж
Угловые кухонные шкафы могут иметь разные размеры, представлены в многочисленных видах, а также имеются различные чертежи, по которым они могут быть сделаны. При выборе габаритов нужно производить правильные замеры, а также желательно сделать схему кухни, чтобы не ошибиться с выбором. При этом учитываются рекомендации, учитываемые при составлении чертежа и проведении замеров:
- Толщина полок выбирается в зависимости от того, какие предметы будут храниться на них.
Желательно на схеме изобразить, будет ли угловая конструкция вмещать бытовую технику или легкие специи. Стандартные полки равны по толщине 18 см, а если будут храниться тяжелые предметы, то желательно выбирать толщину от 21 см. - Глубина подвесных ящиков не должна превышать 40 см. Учитывается, что в углу обычно имеются элементы для подключения к системам коммуникации, поэтому нередко невозможно расположить в угловых шкафах какие-либо крупные предметы, так как укладываются здесь разные трубы или провода.
- Не допускается вешать навесной шкаф низко, если под ним располагается кухонная плита. Особенно это важно, если конструкция создана из пластика, так как под действием высокой температуры материал начинает плавиться.
- Стандартно размер углового шкафа равен 60х60 см, а ширина фасада равна 42 см, причем глубина при таких габаритах приравнивается к 30 см.
Угловые шкафы считаются прекрасным выбором для любой кухни. Представлены во многих моделях, поэтому угловой кухонный шкаф и виды размеры чертежи имеет разные.
Во время выбора особенно много внимания уделяется габаритам, чтобы изделиями было удобно пользоваться, и они были вместительными. Предварительно рекомендуется создать специальный чертеж кухни, по которому выбираются все элементы для установки в этом помещении, а также шкаф на кухню.
Видео
https://youtu.be/w-ZHJ16TB1A
Чертежи кухонных шкафов с размерами для изготовления
Современные кухонные гарнитуры состоят из отдельных модулей, навесных шкафов, напольных тумб и пеналов. Целостный вид мебели придают объединяющие элементы: единая кухонная столешница, фартук, карниз и цоколь. Если хотите сэкономить – «набирайте» кухню россыпью из модулей серий известных производителей. Но будьте готовы к компромиссным решениям: подобрать идеально в размер и нужного наполнения кухню из стандартных модулей вряд ли получится. Другой бюджетный вариант – сделать кухню своими руками. Чертежи кухонных шкафов с размерами для изготовления помогут вам в составлении дизайн-проекта и последующем расчете расходов на приобретение материалов и комплектующих.
Виды кухонных шкафов
Принципиально разную конструкцию имеют навесные и напольные шкафы.
Среди навесных модулей можно выделить следующие разновидности:
- Прямой кухонный шкаф. Типовая конструкция дополняется полками, иногда ящичками или посудосушителями, встроенной подсветкой. Может закрываться одной дверцей или двумя, горизонтально или вертикально.
- Угловой кухонный шкаф. Чаще всего используют трапециевидную симметричную конструкцию. Иногда заменяют ее на Г-образную, в которой не одна скошенная дверца, а две, расположенные перпендикулярно относительно друг друга.
- Шкаф под вытяжку. Конструкция различается для разных встраиваемых вытяжек. Перед проектированием лучше посмотреть нюансы встройки конкретной модели в техпаспорте.
- Шкаф над холодильником. Если холодильник невысокий, то над ним можно разместить дополнительное место для хранения. Его преимущество – увеличенная глубина, по сравнению с остальными навесными модулями.

- Навесные модули со встроенной бытовой техникой – микроволновкой, газовой колонкой, аэрогрилем и т.д. Проектируются индивидуально, под размещение на кухне и габариты самих предметов.
Напольные кухонные тумбы также можно разделить по видам:
- Прямые. Стандартная конструкция короба дополняется вложенной полкой или выдвижными ящиками, различными системами хранения.
- Угловые. В отличие от навесных шкафов, трапециевидные угловые тумбы используются редко – слишком много пространства они «съедают». А вот прямые с фальш-панелью и Г-образные с дверцей-трансформером пользуются популярностью.
- Торцевые. Заканчивают обычно ряд кухни скругленным или скошенным модулем. Он имеет характерную треугольную конструкцию, оснащается прямой или радиусной дверцей. Или остается открытым, со скругленными или спиленными полками.
- Под мойку. Принципиальных отличий в конструкции стола-мойки от угловых и прямых кухонных тумб два – отсутствие задней стенки и планки, к которым крепится столешница, располагаются вертикально, чтобы не мешать врезу чаши мойки.
Длина и глубина тумбы должна соответствовать размерам мойки. - Под встраиваемую духовку. Шкаф имеет нишу 600х600 для расположения духового шкафа. В некоторых моделях требуется предусмотреть дополнительную вентиляцию (врезается специальная решетка в столешнице).
- Пеналы. Чаще всего разрабатываются под встройку бытовой техники – холодильника, духового шкафа, микроволновки, стиральную или посудомоечную машину. Но нередки варианты и пеналов с полками и ящиками, оформленными под буфет.
Чертежи и размеры навесных кухонных шкафов
Есть определенные стандарты для навесных кухонных модулей:
- Глубина в разных сериях кухонной мебели составляет 280, 300, 320 мм. Чаще всего – 300 мм. Угловой модуль задается размером 560х560 или 600х600 с фасадом 350-400 мм, в зависимости от глубины боковин.
- Высота стандартных модулей – 720 мм, для высоких шкафов – 900 мм. В современных кухнях с «облегченным» верхом горизонтально расположенные модули имеют высоту 360-540 мм.

- Ширина задается 300-450 мм для однодверных шкафов и 500-900 мм для двухдверных. Дизайн кухни может предполагать более широкие створки, но пользоваться ими будет неудобно. Если, конечно, они не открываются вверх с помощью подъемного механизма.
Чертежи с размерами для обычного навесного шкафа с распашными створками и формулами для самостоятельного расчета деталировки корпуса, фасадов:
Основные чертежи с размерами для навесного шкафа с горизонтальными фасадами и формулами для расчета деталей корпуса, фасадов для изготовления своими руками:
Чертежи с размерами для углового навесного модуля «трапецией», с фальш-панелью и Г-образной формы и примером расчета деталей корпуса и фасадов:
Шкафы под вытяжку, витрины с накладными пилястрами и ящиками, торцевые и другие нестандартные модули проектируются индивидуально, с незначительными изменениями приведенных выше стандартных модулей.
Чертежи с размерами напольных кухонных шкафов и пеналов
Стандартные размеры напольных столов-тумб для кухни во многом определяются размерами встраиваемой бытовой техники.
Столешницу нельзя заузить, изменив глубину нижнего ряда, если будет устанавливаться стандартная мойка и варочная поверхность на 4 конфорки, духовой шкаф, посудомоечная машина. Во всех остальных случаях можно. Есть мойки с зауженной площадкой, меньшие по глубине стиральные машины и отдельностоящие плиты, варочную поверхность на 2 конфорки можно расположить вдоль.
Стандартная высота нижнего ряда кухни – 850 мм. Она рассчитана под «стандартный» рост человека. Если вы выше или ниже, то лучше ее изменить под свой рост. Работать на такой кухне станет гораздо удобнее.
По ширине нижние модули кухни довольно гибкие. Самый узкий стол-тумба рассчитан под бутылочницу и имеет ширину 150-200 мм. А самый широкий можно спроектировать до 900 мм и оснастить его выдвижными ящиками или вложенными полками.
Относительно угловых модулей нижнего ряда кухни существуют определенные стандарты. Основываются они на обеспечении доступа к внутреннему пространству стола-тумбы.
Делать фасад углового шкафа меньше 350-400мм нежелательно. Поэтому стандартные размеры варьируются в пределах 900х900 мм от угла для Г-образных и трапециевидных, 1000х600 мм для имеющих фальш-панель столов-тумб.
Торцевые модули проектируются по остаточному принципу. Для длины 200-300 мм возможно разработать вариант с закрытой дверцей. Если места остается меньше для скругления столешницы, то лучше оставить открытые полки.
Размеры кухонных пеналов и высоких тумб со столешницей во многом зависят высоте всего кухонного гарнитура и особенностям общего дизайна. Исходя из их габаритов, разрабатывается внутреннее наполнение и составляются рабочие чертежи.
Если планируете оснастить кухню встраиваемой техникой, рекомендуем ознакомиться с нюансами встройки духового шкафа.
Как сделать кухонный шкаф своими руками для нижнего ряда кухни
Благодаря модульности, которая используется при составлении любого кухонного гарнитура, самостоятельно разработать проект или хотя бы прикинуть, каким он может быть, довольно просто.
Вопрос только в понимании конструктивных особенностей мебели и соблюдении баланса эргономики, функционала и дизайна. Как сделать кухонный шкаф своими руками навесного вида описывалось здесь. Рассмотрим, какими могут быть нижние модули.
Как сделать кухонный шкаф своими руками, принципы проектирования
Нижние столы-тумбы кухонного гарнитура собираются одинаково, представляют собой короб на ножках с накладным дном и планками сверху.
Далее в короб встраивается либо полки, либо ящики (по принципу комода), либо самостоятельные системы хранения в виде бутылочниц, каруселей, волшебных уголков и т.д.
- Самые узкие кухонные тумбы – бутылочницы, шириной 150 и 200мм.
- Самые широкие шкафы делают размером до 900 мм, в угловых конфигурациях – до 1050мм.
В мойках планки устанавливаются вертикально – чтобы не мешать врезу мойки. Специфичный шкаф-тумба под встройку духового шкафа установки планок не требует.
Дно делается накладным принципиально: поскольку тумба будет стоять на ножках, в этом случае крепеж не «работает» на разрыв.
Исключение составляют только угловые трапециевидные и торцевые столы.
Для трапециевидных шкафов этот конструктивный момент обусловлен формой днища. Если бы оно было б накладное – пришлось бы выпиливать более сложную форму, с выступом под боковины, чтобы фасад мог закрываться.
Для торцевых столов, заканчивающих кухонный ряд с видимой стороны в угловых кухнях, эта особенность носит чисто декоративный характер. «Сквозная» боковина без видимых торцов и крепежей смотрится аккуратней и эстетичней.
Чертежи нижних угловых кухонных шкафов
В кухнях при проектировании гарнитура используются три вида угловых кухонных шкафов-тумб. Приведу типовые схемы и чертежи конструкции. Она может изменяться в большую и меньшую сторону. При уменьшении в обязательном порядке учитывается ширина получаемого на выходе фасада – от этого зависит доступ к внутреннему пространству шкафа.
Чертеж прямого углового кухонного шкафа
Самый компактный размер углового кухонного шкафа именно у этого вида.
Он представляет собой типовую тумбу с одним «заглушенным» фасадом-фальшпанелью и нащельником, для возможности «приставить» к нему под углом еще один модуль. По аналогии с обычными неугловыми модулями, планки для крепежа столешницы ставятся плашмя или вертикально, в зависимости от назначения модуля.
Если в угловой кухонный шкаф своими руками планируется врезать мойку, то схема сборки, сам чертеж адаптируется под подвод коммуникаций водоснабжения. Чтобы не делать по месту выпилы во внутренней боковине по месту, можно сразу заложить сборку из узких вертикальных планок. Допустим, следующим образом.
Стандартные размеры углового шкафа – 1000-1050мм в длину при ширине фасада 400-450мм. Заужая столешницу у приставного модуля, например, до 500мм в ширину, можно уменьшить длину до 900-950мм соответственно с сохранением ширины фасада.
Чертеж нижнего углового кухонного шкафа-трансформера
Данный вид углового кухонного шкафа нижнего ряда гарнитура фактически представляет собой объединенную конструкцию выше рассмотренного модуля с приставным.
За счет открывающегося «гармошкой» дверцы-трансформера, доступ к внутреннему пространству довольно большой. Поэтому ширину фасадов вполне можно уменьшить до 300-400мм. При этом по габаритам модуль будет занимать место 850х850мм или 950х950мм соответственно. Внутренняя конструкция может быть с одной глухой стенкой или с двумя полыми, со стоевой в виде уголка.
Длинные внутренние планки «выстраиваются» вдоль основной столешницы, чтобы примыкание со стыковочной планкой имело жесткий упор.
Симметричная конструкция – не единственная. В кухне угловой шкаф-трансформер может быть и других размеров, например, 950х750мм. При этом несимметричность достигается не только за счет уменьшения глубины столешницы с одной из сторон.
Нюансы в проектировании:
- При разной ширине фасадов действует правило – узкий крепится к широкому, а не наоборот. Это обусловлено весом – к «тяжелой» дверце присоединяется «легкая». Иначе со временем дверца-трансформер провиснет.
- Будьте внимательны, если планируется использовать фасады с фрезеровкой.
Фреза, ее глубина и отступ от края должна позволять врезать петлю-трансформер. Именно по этой причине в узких фасадах обычно не делают фрезу, а оставляют гладкими, без рисунка.
Чертеж нижнего углового кухонного шкафа-трапеции
Визуально модуль нижней тумбы трапецией напоминает корпус навесного углового шкафа и собирается по тому же принципу.
Из-за довольно объемных размеров угловой кухонный шкаф данного вида редко используется в малогабаритных кухнях, поскольку «съедает» много места. Да и внутреннее пространство используется крайне нерационально: без дополнительных приспособлений в виде выдвижных корзин, ведер редко удается задействовать более 20% свободного места внутри. Это некритично, когда кухня довольно большая и нет нужды задействовать каждый сантиметр для хранения.
Угловой шкаф-мойка трапеция хорошо смотрится со столешницей из искусственного камня с гнутым фасадом.
Если планируется использовать бюджетный вариант – пластиковую столешницу, придется смириться с двумя-тремя стыками.
А между тем, в предыдущих рассмотренных вариантах угловых модулей, стык будет всего один.
Количество стыков столешницы зависит от изначальных возможностей производства. Если используются готовый постформинг шириной 600 мм, то их будет три. Если производитель имеет возможность предложить изготовление столешницы пятиугольной формы, соответствующей габаритам тумбы-трапеции, то два.
Нередко при постформинге реализуют конструкцию с подиумом, уходя тем самым от шва-стыка за мойкой.
Нужно ли «подгонять» в проекте низ относительно верхних шкафов?
Если в проекте кухни используются стандартные кухонные угловые шкафы, то по чертежу несложно будет «подогнать» размеры. Типовой верхний угловой шкаф 600х600, а нижний – 900х900мм, 950х950мм или 1000х1000мм. Но, поскольку верх и низ отделяется визуально общей столешницей, каким-то мотивом и дополнительным декором на фартуке, некоторый сдвиг не будет заметен. В любом случае, относительно плиты (варочной поверхности), окончанию ряда он выравнивается автоматически.
При разработке проекта стоит помнить, что симметричность, некоторое повторение всегда приятно глазу, ассоциируется с гармонией. Визуально дверцы должны быть одинаковы по ширине, «частокол» из узких и широких фасадов редко смотрится хорошо. Также площадь остекления у застекленных фасадов должна быть примерно одинакова.
Максимально задействовать внутреннее пространство нижних шкафов-тумб кухни можно за счет «оптимизации» — использования готового наполнения в виде выдвижных систем хранения.
Кухонный шкаф своими руками. 700 фото, чертежи, пошаговые инструкции
шкаф на кухню своими руками
Ищете в интернете, как сделать шкаф на кухню своими руками? Вы наверно были поражены количеством статей и фотографий с изображениями шкафов всех типов и размеров. Но как ни странно, хороших подробных мастер классов очень мало. Чтобы облегчить вам поиск, в этой статье вы найдете конкретные примеры, выбранные в интернете, как сделать шкаф на кухню с чертежами, пошаговыми фото, обзорными инструкциями и ссылками на первоисточник.
Еще узнаете, как сделать выдвижные ящики для кухонного шкафа, собрать конструкцию из готовых материалов, секреты и самодельные приспособления для организации хранения в кухонном шкафу. Информация для тех, кто предпочитает делать вещи своими руками.
Содержание
- Угловые кухонные шкафы
- Нижний кухонный шкаф
- Шкаф на кухню под раковину
- Кухонный шкаф для холодильника
- Установка кухонного шкафа
- Встроенный кухонный шкаф
- Шкаф для кухни на колесиках
- Выдвижной ящик для кухонного шкафа
- Хранение в кухонном шкафу
- Шкаф с компьютером для кухни
Угловой кухонный шкаф чертеж
Посмотрите чертежи, как сделать нижний угловой шкаф на кухню своими руками.
Это простой и экономичный вариант конструкции, которая имеет много преимуществ. В частности.
Максимальное использование материалов. Нет никаких странно выпирающих обрезков с квадратными краями. Вместо этого доски стандартной ширины, из которых вы сможете сделать больше мебели. Бонус: стандартная практика заключается в том, чтобы разрезать фанеру на ширину 30, 40 или 60 см для наименьшего количества отходов.
Упрощенная резка. Каждый, кто вырезает прямоугольники из фанеры, знает, что это легче сказать, чем сделать. Если вы не можете прорезать фанеру пилой, то должны сделать надрез и заканчивать выпиливать деталь лобзиком. При распиле в ширину, все, что вам нужно сделать, это прямые поперечные разрезы.
Выполняя полные и поперечные разрезы, вы всегда делаете длинные прямые разрезы, которые более точные. Ровный разрез очень важен для изготовления квадратных шкафов — особенно когда все они выстраиваются в ряд!
Конечно, вырезать фанеру метр на метр не сложно, получится очень прочный корпус.
Но вам придется использовать тонну фанеры и создать немало проблем. А здесь представлен более экономичный вариант, который можно сделать из одного листа фанеры или MDF.
Главное, что вы должны помнить — сначала просверлите все карманные отверстия. И если крепите лицевые рамы с отверстиями для кармана, сверлите их перед сборкой. Как вариант, можно сверлить отверстия для карманов лицевой части на внешней стороне, потому что они все равно будут закрыты.
Смотрите схемы, как собрать кухонный шкаф, на пошаговых фото и у вас все получится.
Источник фото: www.ana-white.com/2012/01/plans/36quot-corner-base-easy-reach-kitchen-cabinet-basic-model
Угловой кухонный шкаф с полкой
Посмотрите пример, как сделать угловой кухонный шкаф с вращающейся полкой. Интересная конструкция, по сути это большой ящик с торцевым вырезом, как будто отрезали кусочек торта.
Стороны прикреплены к задней и нижней части. Убедитесь, что оставили зазор 12 см под нижней полкой по бокам.
Вместо того, чтобы покупать еще один лист фанеры для верха, можно использовать отходы от задней части, чтобы поднять верх. Лист фанеры должен быть не менее 86 x 50 см.
Примечание. Просверлите отверстия в карманах на передних кромках, нарезанных сверху, для крепления лицевой рамки на последующих этапах.
Сделайте лицевые рамы отдельно, а затем прикрепите с шурупами через предварительно просверленные отверстия.
Двери должны соответствовать высоте других ваших шкафов на кухне и шириной на сантиметр шире, чем внутреннее отверстие лицевой рамки.
Пошаговые фото с чертежами смотрите на пошаговых фото. Размеры на схемах указаны в дюймах, не забудьте перевести значения в сантиметры, умножив показатели на 2,54. Инструкцию по сборке углового кухонного шкафа с перечнем необходимых материалов и инструментов, а также размерами необходимых деталей можете прочитать на сайте.
Источник фото: www.ana-white.com/2013/11/plans/36-corner-base-pie-cut-kitchen-cabinet-momplex-white-kitchen
Чертеж углового шкафа для кухни
Некоторые считают, что, достаточно минимального опыта, чтобы собрать обычный кухонный шкаф своими руками.
С одной стороны правильно, шкаф представляет собой не сложную конструкцию, если речь идет о простых моделях. Но все равно, важно знать, что вы делаете, потому что, когда дело доходит до работы с углами и стыками, лучше быть уверенным и понимать, что делать и как это делать. Поэтому первый шаг в изготовлении кухонных шкафов своими руками — это чертеж. Здесь представлен план стандартного базового шкафа, от которого вы можете отталкиваться, чтобы создать собственный чертеж.
На пошаговых фото показан порядок сборки этой конструкции.
Автор: Тим Killen
Источник фото: www.finewoodworking.com/2011/08/28/kitchen-cabinets-the-engineers-way
Как сделать кухонные шкафы своими руками
Сегодня многие предпочитают самостоятельно заниматься изготовлением мебели для дома. В этом, несомненно, есть свои преимущества, можно сделать индивидуальный дизайн и при этом значительно сэкономить. Если у вас есть базовые знания в деревообработке, то сделать это не так уж и сложно.
Вот пример от известного сайта wikihow, как сделать простые шкафы для кухни своими руками. Как видите на пошаговых фото, изготовить саму коробку довольно просто. Трудности могут возникнуть только с дверцами, поэтому дешевле купить, чем доставать или покупать все необходимое оборудование, чтобы сделать что-то большее, чем самые простые двери. Установите их в соответствии с инструкциями производителя.
Источник фото: www.wikihow.com/Build-Kitchen-Cabinets
Кухонный шкаф для маленькой кухни
Здесь показано, как сделать компактный кухонный шкаф для маленькой кухни.
Конечно, вы можете и должны изменить эти схемы, чтобы соответствовали вашим конкретным потребностям. Вот несколько общих рекомендаций по дизайну кухонного шкафа. Чертежи с размерами в дюймах, здесь в скобках будут указаны размеры в сантиметрах, на чертежах вы также можете это сделать, умножив показатели на 2,54.
- Высота нижнего кухонного шкафа должна быть 34-1 / 2 «(88 см)
- Столешницы обычно имеют толщину 1-1 / 2 дюйма (3 – 4 см), поэтому общая высота шкафа составляет 36 дюймов (91 см) что является стандартной высотой столешницы.

- Глубина нижнего шкафа обычно составляет 24 дюйма(61 см), включая задние, дверные и лицевые рамы, но иногда могут быть более глубокими, поэтому вы можете поднять до 24-3 / 4 «63 см), но можно сделать и больше, поскольку стандартная глубина столешницы составляет 25 дюймов (63,5 см) , и вам нужно немного навеса на столешнице.
- Стороны базовых шкафов всегда должны совпадать. Отрегулируете длину горизонтальной доски, чтобы настроить ширину.
И еще несколько советов для изготовления безрамных шкафов
- Особенно важно работать с хорошей фанерой, используя квадратные листы. Любые проблемы могут привести к тому, что шкафы не будут соответствовать друг другу.
- То же самое можно сказать о ящиках, поскольку они установлены непосредственно на фанере, если у вас не качественный материал, ящики будут иметь множество проблем.
- Избегайте слишком большой нагрузки в шкафу без поддержки центральной части.
Итак, вы готовы сделать кухонный шкаф своими руками? Основа ящика, стандартная ширина 45 см, но вы можете изменить эти размеры.
Ниже смотрите пошаговые фото, где на схемах показан процесс сборки.
Источник фото: www.ana-white.com/2016/05/free_plans/tiny-house-kitchen-cabinet-base-plan
Как сделать напольный кухонный шкаф
Хотите сделать кухонный шкаф своими руками? Почему бы и нет? Шкафы с лицевой рамой — это просто фанерные ящики из твердых пород дерева, ну а дверцы можно купить. Хотя дверцы тоже можно сделать своими руками, но это сложный процесс, который требует опыта и дорогостоящего оборудования. И еще понадобится много зажимов и еще больше места. Лучше подумайте о том, чтобы купить готовые дверцы, так будет быстрее и дешевле. Можете поискать в интернете, где цены всегда ниже.
Чтобы получить дополнительную информации о том, как сделать кухонный шкаф своими руками, воспользуйтесь ссылкой под галереей, на сайте есть подробная инструкция, а ниже посмотрите пошаговые фото.
Автор: Стив Максвелл
Источник фото: www.
familyhandyman.com/kitchen/diy-kitchen-cabinets/face-frame-cabinet-building-tips/view-all/
Нижний кухонный шкаф своими руками
Здесь показан самый простой и быстрый способ сделать кухонный шкаф своими руками!
Чтобы получилось дешевле и проще, автор придумал свой стиль. Это один шкаф, а не три. Почти 2,5 м в длину, а центр — основание раковины. Это намного быстрее, чем строить три шкафа (и использовать в два раза больше материала для боковых и лицевых рамок).
Еще один способ сэкономить фанеру, использование старых досок 2х4 для создания основания. Позже их можно покрасить или покрыть отделкой, поэтому не имеет значения, как они выглядят. Доски просто поднимают шкаф и не нужно вырезать выступы на боковых панелях.
Нижняя часть шкафа непрерывная, во всех трех корпусах, что помогает сделать корпус более прочным и простым в изготовлении.
Также оригинальное решение с ящиками. Это не много маленьких ящиков, а просто декорация, как в аптеке, но дизайн получился интересным.
Как сделать шкаф своими руками, смотрите ниже на пошаговых фото.
Источник фото: www.ana-white.com/2015/12/free_plans/diy-apothecary-style-kitchen-cabinets
Кухонный шкаф с ящиком своими руками
Пример, как сделать кухонный шкаф с ящиком. Прежде, чем приступите к работе посмотрите видео на сайте автора этого проекта, ссылка под галереей.
- Начните с подготовки фанеры — боковые панели распилите на ширину шкафа, от двери до двери 61 см. Эта ширина может меняться — просто убедитесь, что все шкафы сделаны с одинаковой глубиной.
- Просверлите отверстия в карманах вдоль боковых панелей — помните, что две панели расположены зеркально — для крепления лицевой рамы на последующих этапах.
- Прикрепите две опоры к одной боковой панели.
- Затем установите нижнюю полку на нижние опоры и первую боковую панель.
- После этого присоедините оставшуюся боковую панель к нижним опорам и полке.

- Прикрепите верхние опоры.
- Нанесите на заднюю часть клей и забейте гвоздями.
- Сделайте переднюю раму отдельно, а затем прикрепите к передней части шкафа.
- Одно отверстие для выдвижного ящика немного больше другого — это сделано специально, так что лицевая сторона одинакового размера, а нижняя направляющая 1×2 между ящиками.
- Сделайте ящики, чтобы они соответствовали отверстиям и слайдам, и установите. Затем прикрепите лицевые стороны ящиков.
Последовательность, как сделать кухонный шкаф своими руками, смотрите на пошаговых фото.
Источник фото www.ana-white.com/2014/02/plans/18-kitchen-cabinet-drawer-base
Напольный кухонный шкаф чертеж
Напольный кухонный шкаф имеет очень простую конструкцию. В данном случае нижний цоколь можно заменить на ножки. Каркас или коробка — это фанерная конструкция. Опоры сделаны из обрезков фанеры и используются для поддержки и крепления верхней части и задней стенки.
Лицевые рамы добавляют опору и закрывают передние кромки фанеры. Задняя часть обшита шести миллиметровой фанерой. Вы также можете использовать вставку 1,5 см, но 6 мм вполне достаточно.
Ниже смотрите схемы последовательности сборки шкафа на пошаговых фото
Источник фото: www.ana-white.com/2012/01/momplex/kitchen-base-cabinets-101
У вас никогда не будет достаточно ящиков на кухне. Посмотрите еще пример, как сделать шкаф тумбочку с ящиками.
Сделайте лицевую раму отдельно, а затем прикрепите к передней части шкафа. Одно отверстие для выдвижного ящика немного больше другого — это сделано специально, так что лицевая сторона одинакового размера, а нижняя направляющая 1×2 между ящиками.
В данном случае для выдвижных ящиков использовались направляющие Metabox, но это не обязательно, подойдут любые. Просто убедитесь, чтобы они соответствовали вашим отверстиям. В завершении прикрепите лицевые стороны ящиков.
Источник фото: www.
ana-white.com/2014/02/plans/18-kitchen-cabinet-drawer-base
Кухонный шкаф для раковины
Здесь показано, как своими руками с нуля сделать 90 см кухонный шкаф под раковину. Габаритные размеры: 91 см раковина — общая 61 см с дверцами — внутренний размер 56 см в глубину x 86 см в ширину. Последовательность сборки показана на пошаговых фото в схемах, где указаны все размеры в дюймах. Умножьте показатель 1″ на 2,54, чтобы получить значение в сантиметрах. Список материалов и размеры деталей можете прочитать на сайте, ссылку найдете под галереей. Там же есть подробная поэтапная инструкция и видио.
Источник фото www.ana-white.com/2014/01/plans/36-sink-base-kitchen-cabinet-momplex-vanilla-kitchen
Тумба шкаф под раковину
Инструкции, как сделать кухонный шкаф под раковину своими руками, довольно простая. Если у вас есть хотя бы начальные навыки в области деревообработки, то легко справитесь с этой задачей.
Для этого проекта понадобится дубовая фанера из твердой древесины толщиной 18 мм для рамок и основания, шурупы, торцовочная пила, шлифовальная машина и сверло.
Как сделать кухонный шкаф под раковину, изображено в схемах с размерами на пошаговых фото, не забудьте перевести дюймы в сантиметры, умножив показатели на 2,54. Инструкцию можно прочитать на сайте, воспользуйтесь ссылкой под галереей.
Источник фото: www.ana-white.com/2012/01/plans/kitchen-cabinet-sink-base-36-full-overlay-face-frame
Как сделать шкаф для кухни под раковину своими руками
Любой проект реконструирования кухни начинается с нижнего шкафа. Но мысли о фактическом изготовлении двух десятков ящиков может показаться сложной. Вам нужен стартовый проект: нижний шкаф с ящиком, полка и пара дверей. Вы получите практический опыт, и, надеюсь, стремление сделать больше.
Существует два основных стиля кухонного шкафа. В традиционном подходе к краям коробки крепится рама из твердых пород дерева.
Второй подход – это, который использовался для этого проекта — известен как «Евро-стиль». Такой вариант более эффективен, так как базовая конструкция обеспечивает максимальную универсальность для стеллажей или ящиков.
Инструкцию, как сделать нижний шкаф для кухни, можете прочитать на сайте, она большая и очень подробная, зато все расписано до каждого винтика. Ниже смотрите мастер класс на пошаговых фото.
Источник фото: www.rockler.com/how-to/building-base-cabinet-kitchen/
Как сделать выдвижной ящик под мойку на кухне
Шкаф под раковину 100 фото
Кухонный шкаф для холодильника
Интересное решение, сделать шкаф для холодильника. Во-первых, дизайн кухни выглядит более привлекательно и, во-вторых, выиграете немного рабочего пространства за счет верхнего ящика. Для проекта использовали фанеру 3/4 «, чтобы собрать корпус, который включает в себя полку над холодильником для кулинарных книг и других полезных вещей.
В общем, этот шкаф стоит вложенных денег и усилий. Причем стоимость минимальная, а выигрыш огромный! Вам понадобится всего 2 листа фанеры, отделка, молдинги, древесный наполнитель и карманные винты.
Источник фото: www.hometalk.com/4114342/refrigerator-enclosure-home-built
А это еще один пример, как сделать кухонный шкаф для холодильника с верхним шкафчиком.
Пилу, сверла и шлифовальную машинку можно взять напрокат в любой мастерской. Преимущество этого шкафа для холодильника заключается в том, что остается очень мало обрезков дерева, а остатки могут быть встроены в заднюю часть шкафа.
Источник фото: www.younghouselove.com/build-it-in-build-it-in/
Шкаф для холодильника чертеж
Размер верхнего шкафа: ширина 91 см, глубина 38 см и высота 61 см. Если вы хотите сделать такой же шкаф для холодильника и сохранить промежуток между холодильником и шкафом и еще поднять к потолку, то это потребует некоторых изменений.
Каждый холодильник отличается, и высота потолка может меняться (в данном случае она составляет 240 см).
Для сборки корпуса здесь использовали декоративную фанеру PureBond Formaldehyde Free, поэтому не пришлось делать отделочные работы внутри шкафа. Лицевые рамы из тополя, их покрасили перед тем, как крепить к шкафу.
Просверлите отверстия вдоль верхнего края и на концах задней опоры. Прикрепите сзади вставку, этот кусок будет использоваться, чтобы повесить шкаф. Вы также можете добавить вторую часть на основание для дополнительной поддержки. Можно использовать оставшуюся фанеру или доски 1×3 или 1×4. Спинка не является частью структуры — она только завершает внутреннюю часть шкафа. Прикрепите ее финишными гвоздями и клеем.
Отдельно сделайте лицевую раму, а затем прикрепите к передней части шкафа. Сделать двери своими руками сложно, лучше купить или заказать.
Источник фото: www.ana-white.com/2014/01/plans/36-x-15-x-24-above-fridge-wall-kitchen-cabinet-momplex-vanilla-kitchen
Чертеж шкафа для холодильника
Шкаф для холодильника на кухне фото
Как установить кухонный шкафы
С помощью этих простых методов вы можете узнать, как устанавливать кухонные шкафы ровно, прочно и надолго.
Изучение того, как устанавливать кухонные шкафы, может показаться пугающим, но методы действительно очень простые. Просто подумайте, что вам нужно прикрутить несколько деревянных ящиков к стене в правильной последовательности. Основная задача — найти лучшую отправную точку и сохранить все уровни. На представленных пошаговых фото показаны ключевые моменты, как установить кухонные шкафы простым и доступным способом. Более подробную инструкцию вы можете прочитать на сайте, где рассказано, как заблаговременно выставлять позиции в шкафу, чтобы избежать ошибок. Еще узнаете, как устанавливать базовые шкафы, чтобы они были идеально выровнены, и простой способ установки навесных шкафов. Весь процесс обычно занимает меньше суток, в зависимости от размеров кухни.
Для выполнения работы понадобится всего лишь несколько базовых инструментов. Это полтора метровый уровень, шуруповерт, пару хороших зажимов, которые открываются как минимум на 20 см. Ленточная шлифовальная машина и пол кило шурупов.
Источник фото: www.familyhandyman.com/kitchen/diy-kitchen-cabinets/installing-kitchen-cabinets/view-all/
Как закрепить мебельные петли на дверце шкафа
Мебельные петли бывают разные, в данном случае показано, как правильно закрепить петли шкафа диаметром 35 мм.
Инструкцию с перечнем необходимых инструментов можете прочитать на сайте. Ниже посмотрите небольшую фото галерею, где есть схемы крепления и отдельные моменты установки петель на кухонный шкаф.
Источник фото: www.dd-space.com/2016/03/set-furniture-hinges-dd.html#more
Как сделать простой кухонный шкаф
Если у вас есть знания в области деревообработки и несколько инструментов, почему бы не попробовать свои силы по изготовлению кухонных шкафов с нуля. Вы можете выбрать доски, пропитку, отделку и рассчитать точный размер, который подходит для ваших потребностей. С минимальными навыками, настольной пилой и обычными инструментами можно сделать кухонный шкаф простым способом.
Основная задача, с которой справится даже начинающий мастер, это изготовление деревянных коробок и установка их на стены при помощи скоб.
Представленные здесь кухонные шкафы изготовлены из березовой шпона, средней плотности древесноволокнистых плит (МДФ) — фанеры для экономии. Вместо этого вы можете использовать фанеру из твердой древесины, МДФ, глазурованную или меламиновую древесностружечную плиту и доски.
Дважды проверьте толщину материала перед расчетом размеров шкафа.
На протяжении многих лет мастера стандартизировали размеры шкафа, основываясь на практических соображениях, таких как средний рост человека. Вы не должны строго придерживаться этих правил, меняйте их по своим личным потребностям. При глубине 60 см, стандартные нижние шкафы позволяют вам комфортно наклоняться и достать что-то с задней полки.
Делайте шкафы широкими, как вам нравится, но помните, что чем шире двери, тем больше тенденция к деформации. Кроме того, чем шире дверь, тем больше нужно свободного пространства перед шкафом.
Стандартные навесные шкафы имеют глубину 30 см. Если сделать глубже, будет ограничен доступ к столешнице нижнего шкафа.
Настенные шкафы обычно устанавливаются на высоте 45 см над столешницей нижнего шкафа.
Больше информации можно получить на сайте автора, где есть подробная инструкция, а также указаны все основные нюансы, на которые стоит обратить внимание. Ниже смотрите пошаговые фото, как сделать кухонный шкаф своими руками.
Источник фото: www.woodmagazine.com/make-cabinets-the-easy-way
Кухонный шкаф на колесиках
Если вам понравилась и фото и вы планируете сделать такой же шкаф для кухни на колесиках, обязательно посмотрите сопроводительное видео на сайте автора, ссылка находится под галереей. И заодно прочитаете инструкцию. Эта конструкция не то чтобы сложная, но есть некоторые нюансы, которые не показаны на пошаговых фото. Также на сайте найдете несколько полезных советов, так что в любом случае информация будет полезной.
Ниже смотрите пошаговые фото, как сделать мобильный шкаф для кухни своими руками.
Источник фото: www.instructables.com/id/Kitchen-Cabinet-Island-Shelving-Storage-on-Wheels/
Отдельный шкаф для кухни напольный
Это небольшой стол шкаф для кухни с ящиками, который вы можете сделать своими руками. Бока сделаны из фанеры, ноги снизу под конус. Стороны соединены подрамником из фанеры, есть два выдвижных ящика, изготовленых из фанеры 3/4 «. Ящики установлены на ползунах 35 см. Двери из планок и 5 мм фанерной панели, которые удерживаются в канавке внутри рамы, установлены на шарнирных соединениях. Двери легко монтируются, потому что не нужно вырезать пазы, вы просто привинчиваете их на место. Установите магнитные защелки на дверцы и верхнюю раму. Затем прикрепите дверные ручки и выдвижные ящики. Верхняя часть крепится L-образными кронштейнами снизу. После этого можете закрепить спинку гвоздями.
Вот и все готово. Если вы хотите получить больше информации, можете перейти на сайт fixthisbuildthat.
com/diy-sideboard-cabinet-woodworking-plans/
А еще просмотреть видео на YouTube www.youtube.com/watch?v=VsUXSyviLS8
Источник фото: www.instructables.com/id/DIY-Sideboard-Cabinet/
Шкаф на кухню напольный своими руками
Если любите заниматься консервацией на зиму, то такой напольный шкаф на кухню будет прекрасной выставкой для ваших достижений.
Полную инструкцию по изготовлению можете прочитать на сайте, ссылка находится под галереей. Или просто внимательно ознакомьтесь с пошаговыми фото, процесс показан очень детально, плюс чертежи и схемы. Несколько нюансов. После сборки двери, вам нужно будет закончить шкаф и дверные коробки. Можете добавить обрезку к верхнему краю, этот просто для красоты.
Здесь вы видите чертеж кухонного шкафа и справа на фото размеры деталей, необходимые для сборки.
Размеры указаны в дюймах, вам просто надо будет умножить эти показатели на 2,54 и получите размеры в сантиметрах.
Источник фото rogueengineer.com/diy-jelly-cabinet-plans/#more-6532
Встроенный шкаф на кухню своими руками
Это конечно нестандартный дизайн для кухни, но может пригодиться.
Автор проекта, к сожалению, инструкцию писать не стал, но зато сделал очень подробные пошаговые фото.
Автор Patrick LASCHETTE
Источник фото www.instructables.com/id/Build-in-Cupboard/
Как сделать выдвижные ящики для кухонного шкафа
Если вы достаточно долго занимаетесь столяркой, то в конечном итоге обязательно столкнетесь с задачей сделать выдвижной ящик для шкафа, стола, тумбочки или другой мебели. Это не слишком сложная задача, но иногда возникают проблемы с установкой или измерениями, а в некоторых случаях неприятные нюансы со склеиванием деталей. Конечно, есть десятки разных способов сделать выдвижные ящики для шкафа, здесь используется метод дадо, то есть паз, распиленный на одну часть доски, в который другая часть плотно прилегает.
Наличие этого метода дает гораздо более глубокое представление о том, как выдвигается ящик. Это относительно простой и универсальный способ работает великолепно, если, конечно, все правильно сделать.
Подробную инструкцию об этом методе можно прочитать на сайте. Хотя если вы не новичок в столярке, будет достаточно и представленных ниже пошаговых фото.
Источник фото: nickferry.com/2015/11/how-to-make-drawers-for-cabinets-furniture-ep61/
А это еще пример, как сделать выдвижные ящики для специй шкафа на кухне.
Подробную инструкцию можете прочитать на сайте автора этого проекта, а ниже в галерее посмотрите очень детальные пошаговые фото с чертежами и размерами каждой детали. Только переведите дюймы в сантиметре (умножьте показатели, один дюйм это 2,54 см).
Источник фото: www.instructables.com/id/Pull-Out-Drawers-for-Cabinets/
Такой вариант, как сделать выдвижной ящик для кухонного шкафа своими руками.
Выдвижные ящики добавят новые функциональные возможности шкафов. Пошаговые фото, представленные ниже, являются подробным руководством, которое поможет вам в сборке. На них показано, как легко превратить полку кухонного шкафа в гораздо более функциональный выдвижной ящик. Все, что вам понадобится, это направляющие для выдвижных ящиков, немного досок для коробки и обычные электроинструменты.
Источник фото: www.ryobitools.com/nation/projects/pull-out-drawer-tutorial
Крепление направляющих для выдвижного ящика
Здесь показано, как правильно закрепить телескопическую направляющую на выдвижной ящик. Работа не сложная, но требует точности.
Хотя существует много типов направляющих, которые можно купить или сделать, но у этого типа есть много преимуществ.
- Полный диапазон выдвижения позволяет полностью открыть ящик, не переживая, что он выскочит из пазов.
- Приемлемая цена.
- Установка одинакова для каждого стиля.

- Плавный ход.
- Очень легко установить и отрегулировать.
Как установить шариковые направляющие, можете прочитать в инструкции на сайте, ниже посмотрите схемы и пошаговые фото в небольшой галерее.
Источник фото: www.dd-space.com/2016/03/how-to-install-drawer-slides-dd.html#more
Кухонный выдвижной ящик модернизированный
Основная проблема заключалась в том, что при изготовлении высоких выдвижных ящиков используют ту же основу, что и для обычных, а также одну соседнюю линию стержня на половине высоты ящиков. Когда вы складываете много вещей, некоторые могут упасть через недостаточно высокий задний бортик, и нижний ящик будет блокироваться сброшенными предметами. Иногда приходится демонтировать ящик, чтобы достать упавшие вещи. Так не со всеми шкафами, это пример от мебели Икея. В общем, идея в том, чтобы каким-то образом поднять задний бортик ящика. Как это сделать, смотрите ниже на пошаговых фото.
Источник фото: www.instructables.com/id/Ikea-Kitchen-Drawer-Extension-with-printed-parts/
Хранение в кухонном шкафу
Организация хранение в кухонном шкафу
Надоело постоянно переставлять кучу кастрюль, чтобы достать ту, которая вам необходима? Тогда этот проект может вас заинтересовать. Посмотрите, как организовать хранение в кухонном шкафу, чтобы решить свою проблему с кастрюльками и прочими принадлежностями. Стеллаж предназначен для обеспечения нескольких конфигураций. Это простой, но прочный дизайн. Конструкция может быть изменена в зависимости от требований и размеров каждого шкафа.
- Сделайте ножки (400 x 200) на столешнице, нарежьте планки по 12 мм на настольной пиле (200 x 35) и полоски (400 x 35)
- Приклейте планки к основанию, как показано на фото.
- Предварительно просверлите два отверстия на каждом конце планки. Чтобы обеспечить максимальную прочность, немного сместите отверстия.
- Нанесите каждую деталь клей и закрутите шурупами.
- В данном случае планки закреплены на глаз. Если хотите однородную решетку, можно использовать прокладку.
Подставку можно отшлифовать, лакировать, это по желанию. Это простое приспособление обеспечит удобное хранение и освободит место в других шкафах.
Источник фото: www.instructables.com/id/KCS-Kitchen-Cupboard-Storage/
Органайзер для кухонного шкафа
Надоел беспорядок в кухонном шкафу? Вот пример интересного решения проблемы, как сделать органайзер для кухонного шкафа своими руками. Чтобы упростить и ускорить работу, для изготовления конструкции был выбран картон.
Первым делом удалите все вещи из шкафа. Это позволит получить представление о том, сколько отделений понадобиться в готовом органайзере.Затем надо все тщательно измерить. Это включает пространство, в которое должен был поместиться организатор для кухонного шкафа, а также размеры необходимого материала.
Дизайн разработан в Sketchup , благодаря которому легко обеспечить, чтобы все работало в 3D.
Органайзер спроектирован из гофрированного картона толщиной 1/8 дюйма. Если хотите получить полный план, на сайте автора можно скачать файл Sketchup, ссылка на сайт под галереей.
Но, вместо того, чтобы глубже вникать в дизайн, более полезно изучить несколько элементов, которые использовались для соединения картона. Во-первых, необходимо удвоить картон для всей структуры. Поскольку слабые точки этой конструкции, угловые соединения, вам нужно просто их обрезать. На пошаговых фото вы можете получить представление о трех типах соединения, которые здесь применялись. Шахматное соединение использовалось только в одном месте, где необходимо было соединить стыки с обеих сторон одной вертикальной опоры. В остальном это было двухслойное соединение.
Согните длинные куски картона, чтобы сформировать внешнюю сторону органайзера, это уменьшит нагрузку на углы. Подробную инструкцию, как склеить кухонный органайзер, вы можете прочитать на сайте.
Достоинства: можно сделать дешево и быстро.
Недостатки:
- резка, изгиб и склеивание картона не такое простое дело, как может показаться;
- идеально покрасить картон у вас не получится, лучше использовать цветной;
- картон не любит влагу, так что долгие годы использовать органайзер не получится.
Источник фото www.instructables.com/id/Cardboard-Kitchen-Cupboard-Organizer/
Хранение на дверце кухонного шкафа
Вот простой способ сэкономить место в кухонных шкафах. Это отличный способ организовать хранение на дверце кухонного шкафа различных коробок, банок и прочих вещей, чтобы не загружать ими основное пространство. Просто возьмите сосновую доску 1×6 длиной 2 м. Отмерьте и распилите на две части по 50 см. Отметьте отверстия для дюбелей. Используйте бит 3/8, чтобы просверлить 12 отверстий в досках. Установите дюбели в отверстия одной доски. Убедитесь, что он заподлицо с внешним краем. Предварительно просверлите отверстие на внешней кромке каждого отверстия с помощью сверла 1/8 дюйма. Установите на дверце с помощью четырех скобок 2 х 2 см. Кронштейны крепите заподлицо с внешним краем. Если коротко, то все.
Источник фото: www.instructables.com/id/Homemade-Kitchen-cabinet-door-organizers/
Хранения крышек в кухонном шкафу
Это хорошая идея для ее кухни, сделать такую вешалку для хранения крышек в кухонном шкафу. Главное, что времени на изготовление такого приспособления уйдет меньше, чем на просмотр представленных здесь пошаговых фотографий. Вам просто нужно найти кусок прочного провода, а дальше все просто. Измерьте расстояние и сделайте плоскогубцами петли для шурупов. Если немного ошибетесь с длиной, ничего страшного, в худшем случае возьмете другой кусок провода или выпрямите и снова согните стержень. Прикрепите штифт стержня из проволоки к шурупу ручки шкафа. Как действовать дальше, лучше посмотреть на пошаговых фото, а если непонятны некоторые нюансы, инструкцию можно прочитать на сайте.
Источник фото: www.instructables.com/id/HIDDEN-KITCHEN-LID-AID/
Как сделать нижние выдвижные шкафчики для увеличения объема кухни
Вертикальные выдвижные ящики могут сэкономить много времени на кухне, потому что их удобный дизайн позволяет легко и быстро найти все, что вам нужно. Большое преимущество, что эти бункеры можно приспособить под любой кухонный шкаф. Такие вертикальные выдвижные ящики — это, по существу, коробки из фанеры, которые оснащены регулируемыми полками. Материалы для изготовления ящиков включают фанеру из твердой древесины, наждачную бумагу, настольную пилу, рулетку, торцовочную пилу, гвозди и шурупы. Все это можно сделать в течение дня и требуют только начальных навыков столярных работ.
Вертикальные выдвижные ящики — отличный способ превратить полупустой базовый шкаф в шкаф для хранения продуктов большой емкости, который может быть изготовлен по индивидуальному заказу, чтобы соответствовать вашим требованиям к хранению в кухонном шкафу.
Источник фото: www.familyhandyman.com/kitchen/kitchen-storage/build-organized-lower-cabinet-rollouts-for-increased-kitchen-storage/view-all/
Организация хранения банок в кухонном шкафу
Посмотрите, как сделать удобную стойку в кухонном шкафу, чтобы поместить банки с травами и специями. Поскольку стойка разработана для определенного типа банок, вы можете переделать конструкцию, используя любой размер, который наилучшим образом соответствует вашим потребностям. Основная идея, чтобы вы могли сразу увидеть все свои запасы, по крайней мере, легко их достать. Чтобы сделать стойку, для дизайна полки автор использовал Fusion 360. Обратите внимание, что для каждой полки имеются две формы: одна должна быть вырезана из фанеры (6 мм) для основания полки, а другая из фанеры (3 мм) для колец. Если у вас есть фрезер и вы хотите сэкономить деньги на лазерной резке, просто вырежьте одну из частей подковообразной формы и используйте ее в качестве шаблона, а затем вытащить каждую полку и вырезать отверстия на фиксированную глубину. Без склеивания! Более подробную инструкцию можете прочитать на сайте автора этого интересного проекта. Ниже представлено несколько пошаговых фото.
Источник фото: www.instructables.com/id/Cabinet-Spice-Rack-1/
Хранение в кухонном шкафу 100 фото
Компьютер для кухни из ноутбука
Сегодня, в век технологий, кухонный компьютер, вещь необходимая. Первый, Honeywell Kitchen Computer, был выпущен еще в 1969 году. Но это другая история. В общем, здесь показано, как сделать кухонный компьютер из ноутбука. Можно создать закладки с рецептами, сериалами и т.д., возможностей не перечислить. Ноутбук крепится на скобках «вверх ногами», чтобы смотреть, есть функция программного обеспечения для графического адаптера, которая позволяет переключить изображение на 90°, 180° и т. д. Это просто -Ctrl+Alt+↓(стрелка вниз) и экран повернется на 180°. Плюсы нажимать не надо! Если ваш ноутбук так не умеет, есть программа PivotPro, которая сделает то же самое.
Простой способ, как закрепить ноутбук к днищу навесного кухонного шкафа, читайте на сайте и смотрите на пошаговых фото.
Источник фото: www.instructables.com/id/Kitchen-PC-with-laptop-twist/
Но если подойти к делу серьезно, можно сделать настенный кухонный персональный компьютер с доступом в Интернет для рецептов, электронной почты, музыки и обмена фотографиями. Это задача посложнее, но вполне решаемая. Конечно, возникнет несколько проблем. Клавиатура на кухне, как с ней аккуратно не обращайся, очень быстро станет грязной. Таким образом, единственный жизнеспособный вариант, это сенсорный экран. Сможете ли вы реализовать эту идею, во многом зависит от дизайна кухни.
Прочитайте полную инструкцию на сайте автора, там описано много нюансов, которые пришлось учитывать при разработки этого проекта, включая не только технические вопросы, но программное обеспечение компьютера, материалы и еще много интересного. На реализацию ушло больше года, но оно того стоит.
Чтобы иметь представление, как происходил процесс, посмотрите пошаговые фото.
Источник фото: www.instructables.com/id/Every-wife-should-have-a-Kitchen-PC/
Чертежи кухонных шкафов 100 фото
Шкафы на кухню своими руками 150 фото
с
Обзор угловых кухонных шкафов, виды и чертежи с размерами
Стильный дизайн кухни предполагает не только наличие привлекательного внешнего вида комнаты, но и удобное расположение всей утвари. Данную задачу решат навесные шкафы для кухни.
Блок: 1/6 | Кол-во символов: 202
Источник: https://VseMe.ru/kuhnya/s-navesnymi-shkafami
Виды конструкций навесных угловых кухонных шкафов
Существует несколько разновидностей угловых навесных модулей:
- стыковые;
- Г-образные;
- трапециевидные.
Стыковочный навесной угловой кухонный шкаф
Стыковый или прямой верхний угловой шкаф имеет классическую форму прямоугольника и может присоединяться к передней стороне других элементов гарнитура. Главным плюсом такого варианта является то, что он идеально сочетается с угловой мойкой – нижней тумбой с раковиной. Существенным минусом прямого шкафа выступает недоступность его глухой стенки.
Чтобы решить эту проблему можно использовать дополнительные механизмы и доводчики, но это приведет к удорожанию мебели.
Навесной кухонный шкаф Г-образной конструкции
Г-образные конструкции представляют собой шкафчики, точно повторяющие прямой угол стены. К их достоинствам относят:
- легкий доступ ко внутреннему пространству, обеспечиваемый даже при неполном открытии двери;
- богатый выбор фурнитуры, позволяющий реализовывать любые дизайнерские решения и сделать шкаф украшением интерьера.
Это самый популярный вариант угловых навесных тумб. Единственный минус — ограниченный объем внутреннего пространства.
Трапециевидный угловой шкаф верхнего ряда кухонного гарнитура
Трапециевидный шкаф имеет скошенный угол. Он отличается высокой функциональностью:
- к нему можно присоединять другие модули;
- если расположить его над мойкой, то фронтальная часть трапеции может использоваться для хранения посуды, а боковые отделы – для полезных мелочей: например, бытовой химии, губок для мытья посуды, тряпочек и щеток.
Главный минус трапециевидной тумбы – большие размеры, не позволяющие использовать ее в условиях ограниченной площади.
Блок: 2/8 | Кол-во символов: 1670
Источник: https://links-stroy.ru/uglovoj-navesnoj-shkaf-na-kuhnyu/
Размеры в зависимости от вида
Габариты данных конструкций могут быть разными. Если они являются частью гарнитура, то обладают идеальными размерами для соединения с другими элементами. Если выбираются отдельно, то должны подходить к остальным прямым шкафам. Размеры углового предмета интерьера могут отличаться в зависимости от того, является ли он напольным или навесным.
Навесной
Если выбирается верхний шкаф углового типа, то его размеры равны:
- обычно эти элементы не используются для установки крупногабаритной бытовой техники, допускается делать их не слишком прочными и вместительными;
- ширина может варьироваться от 15 до 80 см, причем этот параметр зависит от формы шкафа, так как он может быть треугольным, трапециевидным, Г образным или каким-либо другим;
- глубина стандартно равна 35 см, но при ее выборе учитывается глубина нижних ящичков, так как данные элементы должны прекрасно сочетаться друг с другом, а иначе кухня не будет выглядеть гармонично;
- угловой навесной шкаф для кухни рекомендуется прикреплять на расстоянии от нижних тумб примерно в 50 см, но допускается отклонение в разные стороны на 5 см.
Вышеуказанные размеры считаются стандартными и часто встречаемыми, но допускается выбирать конструкции, обладающие совершенно другими габаритами, так как основным фактором является то, что они должны быть вместительными, удобными для использования и привлекательными. Угловая конструкция может обладать настолько маленькими размерами, что ее можно расположить в небольшой нише, если она имеется в комнате. Нередко прикрепляется над варочной панелью, поэтому будет использоваться для хранения разных ложек или лопаток, используемых при приготовлении различных блюд. При выборе фасада учитывается, что может быть одна дверца или несколько этих элементов. Допускается выбрать модели, не оснащенные дверками.
Напольный
Если выбирается нижний шкаф, то стандартными будут размеры:
- выбираются размеры в зависимости от параметров выбранного кухонного гарнитура, и рекомендуется учитывать размеры, высоту и иные параметры плиты, которая может быть газовой или электрической;
- если кухня обладает небольшими размерами, то желательно выбирать глубину, не превышающую 50 см;
- высота стандартно равна 85 см, но допускается отрегулировать в определенных шкафах данный параметр, так как для многих людей такая высота считается слишком значительной;
- ширина варьируется от 15 до 80 см, причем оптимальным считается показатель в 60 см.
Интересным решением будет покупка угловой конструкции, равной по размерам 600х600 мм, которая будет обладать оптимальными габаритами, поэтому ею будет действительно удобно пользоваться.
Обычно устанавливается нижний элемент после прикрепления верхнего. Нижняя конструкция должна быть симметрична верхней. Допускается выбрать элемент с ножками или без них.
Под мойку
Довольно часто угловые изделия напольные выбираются под мойку. Их размеры могут значительно отличаться, так как они зависят от того, какими габаритами будет обладать сама мойка. Учитывается, каким способом будет фиксироваться конструкция, так как можно купить врезную или накладную мойку. За счет большого количества различных моек имеются определенные трудности с грамотным выбором оптимального шкафа, поэтому желательно первоначально выбрать мойку, а потом предмет интерьера.
Для таких шкафов стандарт размеры считаются оптимальными, но если требуется получить какую-либо необычную конструкцию, то все параметры вычисляются индивидуально. Ширина может превышать 60 см, а глубина достигает даже 80 см, хотя пользоваться таким шкафом будет затруднительно. Обычно для больших изделий под мойку выбирается два фасада, но можно выбрать модель с одной дверцей. Прекрасным выбором для любой комнаты будет кухня Мадлен, обладающая интересным видом, доступной стоимостью и высоким качеством.
Угловой
Стандартный угловой предмет интерьера обладает разными параметрами. Он может быть навесным или напольным, а также создается из разнообразных материалов. Наиболее востребованной считается угловая конструкция, сделанная из натуральной древесины, но ее стоимость будет чрезвычайно высокой. Требуется постоянно защищать деревянное изделие от влаги, что не всегда оптимально для кухни.
Прекрасным выбором будут изделия из ламинированного МДФ или пластика. При определении оптимальных габаритов учитываются рекомендации профессионалов:
- ширина цоколя, которая варьируется от 10 до 12 см, причем на этот показатель не оказывает влияние выбранный тип подставки, поэтому может выбираться как конструкция с ножками, так и сплошной шкафчик;
- высота обычно выбирается в пределах 70 см, но если изделие будет оснащаться мойкой, то желательно выбирать конструкцию пониже, чтобы за счет раковины был достигнут единый уровень со всеми остальными шкафчиками, являющимися частью кухонного гарнитура, а также с более низким элементом обеспечивается легкость мытья посуды;
- высота столешницы может составлять от 2 до 4 см, причем этот параметр зависит от того, какой материал использовался для ее производства, а также какой структурой он обладает;
- ширина так же варьируется от 40 до 80 см, причем на этот параметр влияет форма углового шкафчика, наполнение элемента, так как в нем могут иметься не только полки, но и выдвижные ящики, а также иные системы хранения;
- глубина варьируется от 30 до 50 см, причем она выбирается в зависимости от этого же параметра других прямых шкафчиков, устанавливающихся рядом.
Таким образом, размеры угловых шкафов могут значительно отличаться. Они зависят от многочисленных факторов, причем первоначально должно учитываться удобство использования конструкции по назначению, а особенно это относится к шкафчику, который будет оснащаться мойкой, так как от правильного выбора габаритов зависит комфортность мытья посуды.
Расстояние между нижним и верхним угловым шкафчиком стандартно равно 60 см, но этот параметр легко изменяется, так как учитывается, каким ростом обладает постоянный пользователь кухни.
Блок: 3/5 | Кол-во символов: 5932
Источник: https://mblx.ru/obedennaya/330-uglovoj-kuxonnyj-shkaf.html
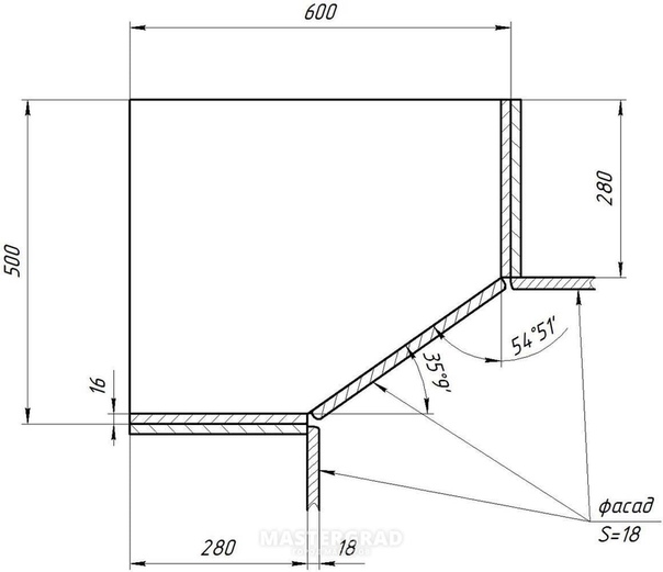
Замеры и чертеж
Угловые кухонные шкафы могут иметь разные размеры, представлены в многочисленных видах, а также имеются различные чертежи, по которым они могут быть сделаны. При выборе габаритов нужно производить правильные замеры, а также желательно сделать схему кухни, чтобы не ошибиться с выбором. При этом учитываются рекомендации, учитываемые при составлении чертежа и проведении замеров:
- Толщина полок выбирается в зависимости от того, какие предметы будут храниться на них. Желательно на схеме изобразить, будет ли угловая конструкция вмещать бытовую технику или легкие специи. Стандартные полки равны по толщине 18 см, а если будут храниться тяжелые предметы, то желательно выбирать толщину от 21 см.
- Глубина подвесных ящиков не должна превышать 40 см. Учитывается, что в углу обычно имеются элементы для подключения к системам коммуникации, поэтому нередко невозможно расположить в угловых шкафах какие-либо крупные предметы, так как укладываются здесь разные трубы или провода.
- Не допускается вешать навесной шкаф низко, если под ним располагается кухонная плита. Особенно это важно, если конструкция создана из пластика, так как под действием высокой температуры материал начинает плавиться.
- Стандартно размер углового шкафа равен 60х60 см, а ширина фасада равна 42 см, причем глубина при таких габаритах приравнивается к 30 см.
Угловые шкафы считаются прекрасным выбором для любой кухни. Представлены во многих моделях, поэтому угловой кухонный шкаф и виды размеры чертежи имеет разные. Во время выбора особенно много внимания уделяется габаритам, чтобы изделиями было удобно пользоваться, и они были вместительными. Предварительно рекомендуется создать специальный чертеж кухни, по которому выбираются все элементы для установки в этом помещении, а также шкаф на кухню.
Блок: 4/5 | Кол-во символов: 1788
Источник: https://mblx.ru/obedennaya/330-uglovoj-kuxonnyj-shkaf.html
Механизмы
В мебельных конструкциях используются различные типы открывания шкафчиков.
- Распашной. В этом изделии дверцы крепятся на стандартных петлях. Такая модель применяется для навесных секций в виде трапеции.
- Раздвижной. Механизм состоит из двух полотен соединенных петлями. Конструкция удобна при ограниченном пространстве.
- Купейный. Здесь крепеж фиксируется на нижнюю и верхнюю направляющую.
Блок: 4/8 | Кол-во символов: 392
Источник: https://dekor.expert/kuhnya/uglovoj-kuhonnyj-shkaf/
Видео
Блок: 5/5 | Кол-во символов: 6
Источник: https://mblx.ru/obedennaya/330-uglovoj-kuxonnyj-shkaf.html
Дизайн
Такой шкафчик можно подобрать в зависимости от интерьера кухни в целом. Причем можно выбрать модель, которая будет выполнена из того же материала, из которого выполнены другие элементы обстановки кухни, такие как столешница, стулья или другие шкафчики. Такой шкафчик даже можно изготовить своими руками исходя из дизайна вашей кухни, как правило, их конструкция очень проста, а изготавливают их обычно из древесины, ДСП, фанеры, стекла и других строительных материалов. А если вы решили приобрести такой навесной шкаф, то вам остается только подобрать шкафчик наиболее подходящего для вашей кухни цвета, оттенка, дизайна и модели. Что касается цвета, то дизайнеры представляют шкафчики как нейтральных белых и бежевых оттенков или теплых тонов розового, зеленого и желтого, так и ярких цветов: красные, сиреневые, оранжевые модели, встречаются даже навесные угловые шкафы черного цвета.
Блок: 5/7 | Кол-во символов: 1105
Источник: https://dekoriko.ru/kuhnya/shkafy/uglovoj-navesnoj/
Виды систем открытия устанавливаемых в угловые шкафы верхнего ряда кухонного гарнитура
В навесных угловых шкафах применяются следующие виды систем открывания дверей:
| + | — |
| распашные/откидные – крепятся на петли и открываются на себя/ вверх или вниз | |
|
|
| раздвижные – двери-купе | |
|
|
| складные – собираются как «книжка» или «гармошка» | |
|
|
Лучше использовать более дорогие, но надежные системы открывания. Например, подъемные двери на пружинных или газовых лифтах. Они передвигаются плавно, бесшумно и обеспечивают максимально удобный доступ к содержимому шкафа.
Блок: 6/8 | Кол-во символов: 888
Источник: https://links-stroy.ru/uglovoj-navesnoj-shkaf-na-kuhnyu/
Виды креплений с инструкцией по монтажу
Использование крепежей упрощает осуществление монтажных работ. Благодаря их применению устраняются небольшие погрешности при разметке поверхности и улучшаются прочностные свойства конструкции.
До навешивания мебели необходимо провести все электромонтажные работы и подготовить стены. Для самостоятельной установки понадобятся такие инструменты:
- электрическая дрель;
- шуруповерт;
- набор отверток;
- рожковые ключи;
- ножовка;
- молоток;
- рулетка;
- маркер;
- уровень.
В качестве крепежей используются регулируемые навесы для кухонных шкафов. Навес представляет собой кронштейн, состоящий из двух элементов: стальной шины и регулировочного механизма с крючком. Шина крепится к стене, а с ее верхним краем соединяется крючок регулировочного механизма. Пластиковый корпус кронштейна монтируется внутри шкафа. Вместо регулируемых навесов можно воспользоваться мебельными петлями.
Монтаж шкафов может осуществляться:
- на рейку;
- на планку;
- на петли.
На планку
Планка для навески кухонных конструкций изготавливается из металла или пластика. Перед навешиванием мебели нужно упомянуть о том, что данная технология не обеспечит ее плотного прилегания к основанию. Для обеспечения равномерного зазора придется либо закрепить вторую рейку снизу шкафа, либо сделать так, чтобы нижний край мебели находился поверх кухонного фартука.
При монтаже мебели в качестве крепежа на планку применяется регулируемый навес. Крючок навеса выступает настолько, чтобы зацепиться за металлическую (пластиковую) рейку. Измеряется расстояние от крючка до верхнего края шкафа. С учетом высоты конструкции размечаются места для отверстий под дюбель-гвозди, с помощью которых планка фиксируется к основанию. При наличии стены с отличной несущей способностью планку можно разрезать под каждый шкаф.
При использовании данного способа навешивания мебели проще выполнить разметку и подгонку. При этом точность установки конструкции выше.
На рейку
Для правильного крепления деревянную рейку прикладывают к задней стороне шкафа и делают соответствующие отметки. Рейку располагают на 2-3 см ниже верхней части шкафа.
На поверхности основания наносится две линии. Одна указывает на местонахождение верхней части мебели, вторая – рейки. В рейке делаются отверстия, после чего она прикладывается к стене. По просверленным отверстиям делаются отметки, куда будут ввинчиваться дюбель-гвозди.
В бетонной или кирпичной поверхности отверстия сверлят заранее. После чего рейку фиксируют с помощью дюбель-гвоздей. Шкаф соединяется с рейкой. Сверление отверстий происходит в местах, где не уложена электропроводка.
На петли
Данный способ является более доступным. Но необходимо больше затратить времени, потребуется помощник.
После определения верхней границы происходит нанесение горизонтальной линии по всей длине. Правильность ее нанесения проверяется уровнем. На линии отмечают первую точку под петлю. После сверления дрелью отверстия мебель временно подвешивается для определения точки под следующий крепеж.
Аналогично используются все элементы крепления для навесных шкафов кухни. После того как предметы гарнитура закреплены и проверены уровнем, соседние конструкции соединяются мебельными шурупами.
Заключительный этап
На завершающей стадии осуществляется монтаж дверей. В фурнитуре имеются круглые углубления, в которых с помощью саморезов фиксируются петли.
Дверь навешивается на крестообразные пластины. Болты несильно затягиваются. После чего дверь закрывается и проверяется ее положение. Если она немного скошена, то проводится регулировка. Для этого по очереди или затягивают, или отпускают каждый из двух болтов.
Блок: 5/6 | Кол-во символов: 3607
Источник: https://VseMe.ru/kuhnya/s-navesnymi-shkafami
Кухни без навесных шкафов: фото примеров оформления интерьеров
Сравнительно недавно в интерьерах современных кухонь стали использовать гарнитуры без навесных шкафов. Такое необычное оформление позволяет создать интересный дизайн, но подходит оно не для всех помещений.
Кухонный гарнитур без навесных шкафов имеет ряд неоспоримых преимуществ:
Интерьер кухни без навесных шкафов выглядит необычно и просторно
- Такой вариант оформления помогает визуально создать дополнительное пространство в помещении. Особенно это уместно для небольшой кухни.
- Возможность создания разных вариантов обстановки. Гарнитур без верхних модулей можно устанавливать даже в зоне окна.
- Максимальная освещенность помещения. Отсутствие навесных шкафов способствует равномерному распределению света, исходящего от центральной люстры, поэтому отпадает необходимость установки дополнительной подсветки.
- Отсутствие места для сбора пыли. Классические двухъярусные гарнитуры менее удобны в плане уборки, ведь на верхнем ярусе собирается пыль, которую убирать не очень удобно.
- Досягаемость. Гарнитур стандартной высоты без верхнего ряда особенно удобен будет для жильцов маленького роста, которым не придется дотягиваться до верхних шкафов.
- Бюджетность. Гарнитур с одним нижним рядом стоит намного дешевле.
- Безопасность. Некачественный крепеж верхних шкафов или большой вес содержимого может привести к тому, что мебель просто упадет.
- Дополнительная возможность декоративного оформления. Свободные от шкафов стены станут отличным местом для размещения картин, фотографий, панно или полочек.
Если помещение маленькое, то кухня без верхних шкафов станет отличным решением
Блок: 5/8 | Кол-во символов: 1634
Источник: http://remoo.ru/mebel/kuhonnye-shkafy
Цвет кухонного гарнитура
Выбор колера для мебели дело вкуса. Но в первую очередь необходимо определиться со стилем помещения. Если комната маленькая, то целесообразно заказать гарнитур светлых оттенков: бежевый, голубой или белый.
При этом можно комбинировать цвет верхних и нижних секций. Кухня в холодных тонах должна быть разбавлена теплыми оттенками.
В больших помещениях следует поэкспериментировать с яркими цветами, такими как красный, желтый, салатовый, голубой. При этом колер стен оформляется в пастельных тонах, чтобы разбавить яркие акценты.
Например, комната, окрашенная в теплый оливковый цвет, хорошо будет смотреться с темно-синим фасадом мебели.
Мнение эксперта
Ольга Коваленко
С 2010 года занимаюсь дизайн-проектированием интерьеров и архитектурным проектированием
Кухня, в которой скомбинирован серый цвет с оранжевым колером, повышает аппетит.
Блок: 6/8 | Кол-во символов: 855
Источник: https://dekor.expert/kuhnya/uglovoj-kuhonnyj-shkaf/
Кухонные шкафы: особенности изготовления под заказ
Довольно часто шкафы для кухонь выполняют под заказ. На таком производстве специализируются многие фирмы. В этом случае составляется индивидуальный чертеж кухонной мебели с подробной деталировкой, указанием размеров и необходимых отверстий. Все нестандартные детали изготавливают отдельно, что предполагает перенастройку станков под определенные размеры. В итоге это приводит к повышению себестоимости продукции.
Нестандартные шкафы могут отличаться не только глубиной, высотой или шириной, но и наличием гнутых радиусных фасадов. Если мебель серийного производства можно собрать самостоятельно, воспользовавшись инструкцией, которая прилагается к гарнитуру, то кухню по специальному проекту должен собирать специалист в соответствии с чертежами кухонных шкафов. Вполне возможно, что придется выпиливать каркас или вырезать столешницу, для чего потребуются определенные навыки и соответствующие инструменты.
Опытные специалисты помогут создать кухню мечты под определенное помещение
Заказывать изготовление мебели следует только у проверенных мастеров, а лучше – на специализирующихся производствах. Только опытные мастера при условии наличия нужного оборудования и инструментов могут решиться на производство самодельной кухни. Чтобы кухня была максимально функциональной и удобной, следует заранее продумать ее наполнение специальными приспособлениями и удобной фурнитурой.
Блок: 7/8 | Кол-во символов: 1427
Источник: http://remoo.ru/mebel/kuhonnye-shkafy
Крепление
В зависимости от стены и материала, из которого она сделана, можно подобрать наиболее подходящий тип крепления навесного шкафчика. Но может случиться и так, что для двух полностью аналогичных угловых шкафов подойдут разные виды крепления. Тип крепления углового навесного шкафчика будет зависеь от плотности стены, от конкретного расположения такого шкафа на стене. Угловые шкафчики можно установить, закрепив их либо саморезами, либо турбовинтами.
Блок: 7/7 | Кол-во символов: 601
Источник: https://dekoriko.ru/kuhnya/shkafy/uglovoj-navesnoj/
Фурнитура
От правильного и качественного крепления зависит функциональность мебели. Комплектующие для шкафчиков должны иметь такие характеристики, как доступная цена, прочность и функциональность.
Навесы
Первое что выходит из строя это петли. Качественный крепеж для мебели должен выдерживать до 100 тысяч открывания.
Надежный вариант — это фурнитура на пружинах, которые оснащены фиксирующей системой:
- Петли с демпфером обеспечивают мягкое и тихое закрывание шкафов, защищая мебель от ударов. Преимущество петель с доводчиком это простая установка и быстрая регулировка.
- В недорогих моделях кухни встречается навес «лягушка», который отличается простотой и функциональностью.
- Инверсная петля устанавливается на двери шкафчика, где нужен широкий угол открывания.
- Популярный и востребованный карусельный навес крепится на напольных кухонных шкафах.
- Монтажная шина выдерживает высокие нагрузки и применяется для фиксации полок.
Ручки
Ручки для дверей и ящиков должны не только гармонично вписываться в дизайн мебели, но и обладать функциональными качествами.
Практичный вариант — это металлические ручки, которые отличаются формой и назначением. Поверхность фурнитуры, задекорированная под латунь, золото или хром стильно смотрится на глянцевых фасадах.
Выдвижные системы
Современная фурнитура для шкафов оснащена поворотным механизмом, который устанавливается на дверцу. При открывании нижней секции выдвигаются полки или корзины. Такой крепеж помогает легко достать вещь с дальних углов мебели.
Направляющая планка предназначена для легкого хода ящиков и делится на 2 типа.
- Роликовая. Обычно ее устанавливают в недорогих кухонных гарнитурах.
- Шариковая. Она выдерживает нагрузки до 80 кг и способна фиксировать открытый ящик в нужном положении.
Советы по уходу за фурнитурой:
- загрязнение деталей следует обрабатывать мыльной теплой водой;
- нельзя чистить навесы содой, чистящими средствами и щетками;
- при тугом ходе или скрипе дверцы ее рекомендуется смазать и отрегулировать петли;
- если выдвижной механизм перестал работать, то следует вызвать мастера, который устранит поломку.
Фурнитура экономкласса не ремонтируется, а заменяется на новую.
Блок: 7/8 | Кол-во символов: 2118
Источник: https://dekor.expert/kuhnya/uglovoj-kuhonnyj-shkaf/
Кол-во блоков: 17 | Общее кол-во символов: 25367
Количество использованных доноров: 6
Информация по каждому донору:
- https://links-stroy.ru/uglovoj-navesnoj-shkaf-na-kuhnyu/: использовано 4 блоков из 8, кол-во символов 4609 (18%)
- https://mblx.ru/obedennaya/330-uglovoj-kuxonnyj-shkaf.html: использовано 3 блоков из 5, кол-во символов 7726 (30%)
- https://dekor.expert/kuhnya/uglovoj-kuhonnyj-shkaf/: использовано 4 блоков из 8, кол-во символов 4456 (18%)
- http://remoo.ru/mebel/kuhonnye-shkafy: использовано 2 блоков из 8, кол-во символов 3061 (12%)
- https://VseMe.ru/kuhnya/s-navesnymi-shkafami: использовано 2 блоков из 6, кол-во символов 3809 (15%)
- https://dekoriko.ru/kuhnya/shkafy/uglovoj-navesnoj/: использовано 2 блоков из 7, кол-во символов 1706 (7%)
Угловой кухонный шкаф своими руками: виды, размеры, чертежи
Автор Андрей Ефремов На чтение 7 мин. Просмотров 271
Угловой кухонный шкаф позволяет оптимизировать пространство и экономить площадь малогабаритных квартир, предоставляя дополнительное место для хранения домашней утвари. Конструкции создаются под стиль гостиной и бывают разных форм, размеров, изготавливаются из дерева, плит ДСП, панелей МДФ, мультиплекса.
Особенности и преимущества
Угловые шкафы отличает вместимость при небольших размерах, поэтому они могут использоваться для хранения либо быть местом для встроенной бытовой техники. Конструкции многофункциональны, т. к. оснащаются ящиками, полками, отсеками под посуду и продукты, освобождая пространство, которое можно использовать для других целей. Особенность углового шкафа в использовании механизмов – выдвижных и карусельных полок.
Эргономичность угловой мебели помогает в организации треугольника из плиты, мойки, холодильника. Шкаф пригодится и при зонировании помещения. Барная стойка либо стол вместе с угловой конструкцией разделяют рабочее пространство и обеденную зону.
Угловой шкаф на кухню может быть прямым (стыковочным), трапециевидным либо Г-образным. Стыковочный можно присоединить к стене либо к элементам гарнитура.
Достоинство такой модели в сочетаемости с угловой мойкой. Конструкции Г-образной формы повторяют прямой угол стены и обеспечивают простой доступ к внутренней зоне. Трапециевидная конструкция шкафа предполагает скошенный угол. Модель увеличивает вместительность за счет присоединения дополнительных модулей.
Функциональное назначение угловых шкафчиков может отличаться. Универсальные используются для хранения продуктов, предметов бытовой химии. Посудные конструкции оборудуют под сушку и хранение кухонной утвари, монтируя их над мойкой. В просторных кухнях угловые модули могут быть декоративными – для ваз, композиций из цветов.
Размеры в зависимости от вида
Варианты угловых кухонных шкафов имеют свои размеры. Конструкции могут быть навесными, напольными, располагающимися под мойкой. Шкафы, которые являются частью мебельного гарнитура, уже имеют необходимые размеры для сочетания с другими элементами. Габариты угловых шкафов могут быть нестандартными.
Перед покупкой угловой мебели необходимо определить количество полок и расстояние между ними. Для размещения тяжелых кастрюль и чугунных сковородок потребуется высота полочек от 21 см, для мелких предметов – до 18 см.
Для создания авторского эскиза учитываются размеры помещения, расположение комплекта модулей, дизайн кухни, индивидуальные пожелания заказчика. Размеры углового кухонного шкафа для авторского дизайнерского проекта рассчитываются индивидуально.
Напольный
Если выбирается нижний кухонный напольный угловой шкаф, его размеры требуется подобрать под имеющийся гарнитур с учетом его основных параметров (ширины, высоты, глубины). Для небольшой кухни глубина конструкции не должна превышать 50 см.
Высота шкафа стандартная – 85 см, но при необходимости можно ее изменить. Ширина конструкции – от 15 до 80 см, оптимальный размер – 60 см. Напольный шкаф должен быть симметричен верхнему. В зависимости от качества пола угловые кухонные шкафы напольные устанавливаются с ножками либо без них.
Навесной
Навесные угловые конструкции подходят для посуды, бытовой техники. Шкафы, крепящиеся к стене, не должны быть тяжеловесными. Ширина полочек – от 15 до 80 см, данный параметр обусловлен формой шкафа, которая может быть прямоугольной, трапециевидной, Г-образной. Глубина угловых шкафов в гарнитуре равна 35 см, но может варьироваться с учетом размеров нижних ящиков. Верхняя конструкция должна крепиться в 50 см от нижней. Допустимое отклонение в разные стороны – 5 см.
Нередко шкаф крепят над панелью для варки. Фасад может быть с одной дверцей либо несколькими. Допустимы модели с открытыми полками. Навесной блок может быть нестандартным – компактным, сделанным по индивидуальному эскизу для небольшой ниши.
Под мойку
Угловые напольные шкафы можно расположить под мойкой. При разработке конструкции потребуется учитывать параметры моечной системы, способ крепления, т. к. раковина может быть накладной либо врезной. Специалисты советуют сначала выбрать мойку, а затем сделать или приобрести готовую конструкцию. Параметры углового шкафа под мойку: глубина – до 80 см, ширина стандартно равна 60 см. В просторных кухнях модель может быть с двумя фасадами, компактных – с одной дверцей.
Как правильно сделать своими руками
Подготовить авторский проект мебели можно при нестандартных размерах помещения либо нетиповой планировке. В таком случае шкафы для кухни можно сделать самому. Изготовление угловой модели требуется начинать с составления схемы, в которой учитываются все размеры. Готовятся также инструменты и материал.
Распил элементов шкафа – трудоемкое дело, поэтому раскроить их можно под заказ в магазине либо в мастерской. До того как собрать детали, необходимо провести подгонку элементов друг к другу. Затем следует монтаж, установка каркаса, его обшивка. Корпус можно покрасить, облицевать зеркалами, плиткой.
Замеры и чертеж
При изготовлении мебели своими руками сначала определяют форму углового кухонного шкафа, разрабатывают чертежи. Потребуется план зоны для кухонного углового шкафа с расположением мойки, труб, плиты, розеток. Это поможет точно сконструировать модель. Параметры определяются назначением конструкции, которая может быть рабочей зоной, основанием раковины либо местом под посуду.
Необходимо произвести расчеты общих размеров углового шкафа, затем каждого элемента. При навесной конструкции требуется учесть, какой по ширине нижний модуль, чтобы вписать конструкцию в угол кухонного углового гарнитура. Затем определяется внутреннее наполнение шкафа, которое собирают, как правило, из выдвижных ящиков, карусели либо простых полок. Измеряется расстояние между ящиками и составляется чертеж проекта.
Материалы и инструменты
После определения расположения углового шкафа и его размеров приступают к выбору материалов. Есть требования к основе верхних и нижних угловых модулей на кухне. Поверхность должна быть устойчива к постоянной влажности, воздействию горячего пара, материал должен легко очищаться от загрязнений. Таким требованиям соответствует ламинированная влагостойкая ДСП, облицованная искусственным шпоном с толщиной листов до 18 мм.
При изготовлении шкафов под посуду используются плиты ДСП, покрытые слоем шпона. МДФ-панели имеют более устойчивый к механическим повреждениям и воздействию влаги состав. Листы могут быть матовыми, глянцевыми, ламинированными либо окрашенными.
Для угловых конструкций подойдет мультиплекс. Этот материал гнется, обладает влагостойкостью, изготовлен на основе шпона, покрывается полиуретановым лаком, устойчив к повреждениям. Из мультиплекса можно выполнить радиусные угловые фасады.
Кухонные шкафы изготавливаются также из массива дерева. Материал требует пропитки, нанесения защитных покрытий. Дерево не нуждается в дополнительной отделке за счет естественного рисунка поверхности. Натуральный материал отличает высокая цена.
Для монтажных работ потребуются инструменты: перфоратор, дрель, рулетка, молоток, строительный уровень, а также ножовка и электролобзик. При конструировании шкафчика необходимы кромка для торцов из ПВХ, мебельные стяжки, подвесы, саморезы, герметик, наждачная бумага, дрель с насадками для работы с древесиной. Понадобится и шестигранный ключ, которым монтируются закрывающие механизмы и петли для угловых дверей.
Сборка
Работы по сборке деталей начинаются с главной тумбы. Специалисты рекомендуют выполнить черновую сборку с помощью шкантов, которая позволит определить точность подгонки. Затем детали крепятся еврошурупами. На периферии конструкции необходимо установить с помощью саморезов крестовидные крепления для дверей. Рельсы выдвижных ящиков крепятся на боковых стенках.
После сборки каркаса на заднюю сторону прибивается ДСП. Для навесной модели необходимо зафиксировать на стенке крепежные элементы. Следующий этап – сборка ящиков. Стенки конструкций стягиваются с помощью шурупов. В дно конструкций под ящики монтируются фрагменты ДСП. Фасады фиксируются стяжками, монтируются направляющие элементы для выдвижных ящиков.
На данном этапе конструкция устанавливается в угол кухни. Если в шкафчике будет располагаться раковина, важно сделать отверстие для нее. Затем конструкция обрабатывается герметиком, скрепляется саморезами, на шкаф навешиваются двери.
Фурнитура
При сборке внутреннего устройства нужно прикрепить фурнитуру к мебельной конструкции. Для откидывающихся дверей необходим подъемный механизм с фиксатором, для навесных дверок – петли. Подвесные шкафы крепятся специальными уголками на стену. Шкафу с выдвижными ящиками требуются роликовые направляющие. При монтаже нужны шканты, штифты, полкодержатели, ручки.
Фурнитура для угловой конструкции включает пневматические механизмы для удобства использования. Широкие ящики снабжают амортизаторами, которые обеспечивают мягкое скольжение элементов. В функциональном наполнении шкафов помогут разделители. Их можно устанавливать поперек и вдоль пространства, менять конфигурацию.
Рационально использовать мебель помогают выдвижные и навесные полки, выкатные корзины. Для увеличения вместимости напольных тумб требуются полки-карусели. Многие кухонные наборы включают специальные системы для хранения (стеллажи, подставки, держатели), которыми удобно пользоваться.
Угловая кухня своими руками, чертежи и схемы для расчета
Угловая композиция кухонного гарнитура по праву считается самой эргономичной и функциональной. Даже на малогабаритном пространстве при грамотном подходе удается задействовать каждый свободный уголок с пользой. Угловая кухня своими руками может быть сделана довольно легко. Предлагаем начать с проектирования и расчета модулей по приведенным стандартным чертежам и схемам.
Как сделать угловую кухню своими руками, с чего начать?
Фактически угловая кухня отличается от прямой наличием «крыла», пристыкованного под прямым углом. Поэтому рекомендуем ознакомиться со статьей про прямую кухню, со всеми приведенными схемами, чертежами и расчетами.
Любое изготовление мебели своими руками начинается с замеров, эскиза и дизайн-проекта. В проектировании угловой кухни есть масса нюансов. Большая часть которых основана на особенностях конструкции угловых модулей. Сделать их меньше или больше, изменить типовую конструкцию не всегда возможно.
Рассмотрим процесс проектирования и расчета угловой кухни на конкретном примере, с чертежами и схемами.
Пусть дана стандартная кухня-хрущевка, с размерами 1600мм по одной стене и 2290мм по другой стене. Холодильник в общий ряд ставить не будем, только газовую плиту шириной 500мм.
- Немного уменьшим короткое «крыло» гарнитура до 1460мм, а также сузим столешницу до 420мм, чтобы сохранить свободное пространство для комфорта хозяйки и поставить полноценный обеденный стол.
- Заметим, что длина кухни 2290 именно по стене. Но есть выступающий подоконник с радиатором отопления, которые не позволят открыться нижнему шкафу. Поэтому столешницу можно продлить до 2290, а вот ряд нижних кухонных столов-тумб будет меньше на 70мм (2220мм от угла).
Угловая кухня своими руками с габаритами 1600х2290 на чертеже будет выглядеть следующим образом.
Фактически все отличия проектирования и расчета угловой кухни своими руками от прямого гарнитура в наличии торцевых и угловых модулей. На них и остановимся подробней.
Как лучше сделать кухонный стол-тумбу под подоконник
Как правило, в типовых планировках квартир, уровень подоконника проходит ниже, чем уровень рабочей поверхности кухонного гарнитура. «Перепад» составляет порядка 100мм, то есть 850мм против 730-750мм. Учтите этот нюанс, если задумывали делать кухонный гарнитур с переходом на подоконник с цельной столешницей. Для воплощения этой идеи придется на стадии ремонта менять окно – устанавливать его выше и приподнимать уровень подоконника.
Угол подоконника на кухнях-хрущевках выступает примерно на 70-120мм. Если в угол задвигается холодильник, то для открывания дверцы достаточно срезать угол подоконника. Также можно поступить и при проектировании кухонного стола-тумбы на этом месте. Однако чаще всего делают его уже, поскольку помимо подоконника «мешают» и трубы отопления. А щель между шкафчиком и стеной закрывают планкой.
В остальном конструкция кухонного стола-тумбы под подоконником абсолютно аналогична другим модулям.
Как сделать угловой стол-мойку на кухне-хрущевке
Есть три вида угловых столов-тумб, в которые обычно встраивают мойку: прямой модуль, Г-образный и трапециевидный. При существующем дефиците свободного места на кухне-хрущевке оптимален вариант «прямого» углового стола-мойки. Он занимает меньше места и при этом вполне функционален.
Отличительная особенность – глухая стенка (фальш-панель) со стороны примыкания левого «крыла» нижнего ряда гарнитура. К фальш-панели крепится фасад на специальные петли 180гр (они так и называются – петли для фальш-панелей).
Ширина фальш-панели прямого углового стола-мойки определяется глубиной примыкающих к нему модулей. Важно сделать так, чтобы перпендикулярно расположенные дверцы не мешали открыванию друг друга.
Достаточно сделать ширину фальш-панели больше глубины примыкающих модулей на 20-30мм, а также сделать «проставыш» между фальш-панелью и боковиной приставного модуля такой же ширины.
Тогда проблем с блокированием перпендикулярных дверей не будет. Учтите, если планируется устанавливать на фасады объемные ручки, шире чем спроектированный отступ, то выдвижной ящик на приставном модуле может блокироваться, не выдвигаться полностью из-за этого.
В остальном нюансы в конструкции углового стола-мойки прямого вида определяются формой подвода системы водоснабжения. Во внутренней боковине и иногда донышке стола-мойки придется сделать выпилы под трубы нужных размеров. Заднюю стенку ДВП в стол-мойку не ставят.
Как сделать угловой стол-тумбу на кухне своими руками
В качестве «проставыша» между угловой мойкой и приставным модулем используют две узкие планки, поставленные торцом. Как правило, его ширина (32мм) совпадает со свесом по переднему краю столешницы. И фактически общая длина приставных модулей в нашем варианте будет равна (1460-600)=860мм.
Но это размер по столешнице! Для симметрии свес по переднему краю должен продолжаться и вдоль всего скругления. То есть длина самих коробов будет меньше примерно на 30мм.
Пусть узкие полки будут шириной 200мм. Тогда приставной модуль по ширине равен 630мм. При ширине столешнице в 420мм, глубина модулей обычно берется (-50мм), то есть 370мм.
Угловая кухня своими руками: другие нюансы
При проектировании нижнего ряда угловой кухни обычно вызывает затруднение определение чистовых габаритов столов-тумб со стороны угловой мойки. Это связано с тем, что кухонные столы-тумбы без столешницы не устанавливаются вплотную от стены к стене, необходимо запланировать свесы. Достаточно 10-20мм с каждой стороны.
Зная глубину примыкающей столешницы (420мм), делаем корпуса примыкающих модулей уже с учетом переднего и заднего свеса (420-30-20=370мм). Теперь, учитывая другие нюансы и отступы, можно посчитать и габариты самих модулей, и размер фасадов.
Навесные шкафы на угловой кухне своими руками
Интерес вызывает только конструкция углового кухонного шкафа. Все остальные проектируются и рассчитываются абсолютно так же, как на прямой кухне.
Рассмотрим чертеж углового навесного шкафа.
Принятые стандартные размеры для углового навесного шкафа – 550х550, 580х580, 600х600. При этом ширина боковин варьируется 300-330мм. Ширина фасада высчитывается по известному правилу: квадрат гипотенузы равен сумме квадратов катетов. Где гипотенуза – это ширина фасада, а катеты – разность габаритов навесного шкафа и ширины боковин. В нашем случае катет – это (550-330)=230.
Размер крыши и донышка углового навесного шкафа равен (550-16)=534мм.
В глубине угла навесного шкафа требуется дополнительный упор. Иногда его собирают «уголком» из двух планок, иногда располагают одну планку по диагонали. Можно поставить одну, шириной 100-150мм вдоль одной из сторон. Тогда размер внутренней полки уменьшится с одной стороны на толщину планки и будет равен 534х518мм.
Остальные навесные шкафы угловой кухни вплотную «пристраиваются» к угловому модулю. Глубина по боковинам, высота должна совпадать.
Исключение – навесной кухонный шкаф над плитой. Согласно нормам пожарной безопасности (особенно это актуально для газовых плит), он должен навешиваться на расстоянии 750-800мм над уровнем рабочей поверхности. А остальные навесные шкафы устанавливаются с учетом ширины фартука порядка 550-600мм.
30 угловых ящиков и решения для хранения в современной кухне
Неудивительно, что кухня часто является одной из первых комнат, о которых думает большинство домовладельцев перед покупкой или ремонтом. Это одна из комнат дома, где форма и функциональность должны быть идеально сбалансированы для достижения наилучшего результата. Слишком много внимания уделяется одному аспекту, а другой страдает. А поскольку большинство из нас не наделено гигантскими кухнями и множеством пространств, полки и варианты хранения становятся неотъемлемой и важной частью функционального кухонного дизайна.В этой обстановке, где каждый дюйм имеет значение, угловых ящика отлично справляются со своей задачей!
Современная кухня середины века с великолепными серыми шкафами [Дизайн: Flavin Architects]
Есть много способов использовать это кухонное угловое пространство. Но лишь немногие дополнения предлагают угловые ящики как с точки зрения стиля, так и с точки зрения эргономики. Они кажутся намного более удобными, чем традиционные полки, и, поскольку каждый день выдвигается множество современных чудес, недостатка в вариантах нет.Поэтому, прежде чем намечать планы новой кухни (или быстрого ремонта старой), ознакомьтесь с этими 30 эффективных и компактных решений .
Все о максимальном использовании пространства
Очевидно, что существует несколько различных способов максимизировать этот маленький угол, созданный вашей L-образной кухонной рабочей станцией, но немногие из них кажутся лучше, чем ящики, которые удобно выдвигаются. Они определенно превосходят эти глубокие традиционные шкафы, которые иногда заставляют вас вставать на четвереньки, чтобы найти лишнюю кастрюлю или сковороду.С глянцевыми и универсальными современными угловыми ящиками, которые легко выдвигаются, вам больше никогда не придется мучиться. Популярные модели, подобные Blum, быстро становятся фаворитами как дизайнеров, так и домовладельцев.
Угловые ящики-бабочки на кухне помогают убрать лишние кастрюли и сковородки [Дизайн: SVEA KITCHENS]
Кухня в стиле шейкер с L-образной компоновкой увеличивает пространство для хранения с помощью угловых выдвижных ящиков [Дизайн: Nouvelle Cuisine] Угловые ящики увеличивают пространство для хранения вашего кухонного рабочего места [Дизайн: Eminent Interior Design]
Не каждый может доставить эти стильные, элегантные и изысканные угловые ящики, которые сделают вашу жизнь на кухне намного проще.Убедитесь, что ваш подрядчик по кухне может предоставить эти индивидуальные решения в выбранном вами стиле, чтобы вы не остались разочарованными. Внутреннее пространство ящиков можно настроить с помощью различных отделений, перегородок и других функций, чтобы на вашей новой кухне все было организовано более организованно и не было беспорядка.
Угловые выдвижные ящики из дерева для традиционной кухни и не только [Дизайн: Simpson Cabinetry]
Расширьте свою кухню с помощью стильных угловых ящиков [Дизайн: Woodshop of Avon] Умные угловые ящики — необходимость в L-образной кухне [Дизайн: Иерархия, Архитекторы + Дизайнеры] Замените эти устаревшие кухонные ящики стильными современными версиями! [Дизайн: Glenvale Kitchens]
Стильная кухня привносит очарование старого мира в современную обстановку [Дизайн: «Живые кухни»]
Цвет, стиль и креативность
Как мы упоминали ранее, создание идеальной кухни — это умное сочетание эффективности и эстетики.Угловые ящики не должны быть однообразными и скучными только потому, что они невероятно полезны. Фактически, большинство этих ящиков могут легко гармонировать со шкафами и полками рядом с ними, создавая идеальный вид. Фасады ящиков можно персонализировать, выбрав материал и цвет по вашему выбору. От кухонь с глянцевыми минималистичными шкафами до деревенских пространств с деревянными шкафами — эти угловые ящики впишутся практически в любую тему и стиль.
Система кухонных угловых ящиков от Blum, дизайн которой сочетается с соседними шкафами [Дизайн: Brilliant SA] Фигурные угловые ящики привлекают внимание на этой кухне [Дизайн: Grace Blu Designs]
Настройте эти угловые ящики в соответствии с вашими потребностями [Дизайн: Glenvale Kitchens]
Что касается угловых ящиков, то ящики с изогнутой лицевой панелью, кажется, привлекают внимание, добавляя геометрической красоты кухне.В современных кухнях, где преобладают чистые прямые линии, эти уникальные ящики не только создают контраст, но и служат универсальным средством экономии места, которое будет служить вам долгие годы…
Кухня в деревенском стиле с угловыми ящиками, которые дополняют ее стиль [Дизайн: Elements Concrete] Классные угловые выдвижные ящики для современной кухни в оливково-зеленом цвете [Дизайн: Kristina Crestin Design] Изогнутые ящики также хорошо подходят для углов [Дизайн: Natalie Du Bois] Элегантный современный возьмите на вооружение стильные угловые ящики [Дизайн: Glenvale Kitchens]
Совершенное проектирование
Если вы предпочитаете более традиционный подход к угловым ящикам, то кухни, представленные ниже, для вас.Вместо того, чтобы выбирать более современные ящики с их индивидуальным выдвижным дизайном, вы можете выбрать традиционный путь старых добрых ящиков в углу с дополнительными полками и местами для хранения над ними. В то время как некоторые предпочитают сочетание шкафов и ящиков для угловой установки, другие также оставляют место для всего, от микроволновой печи до небольшого телевизора над простыми ящиками!
Угловой шкаф для микроволновой печи с полками вверху и ящиками внизу [Дизайн: Donna DuFresne Interior Design] Современная кухня с оттенком дерева, деревенского шарма [Дизайн: Leo Claudio Cabinets] Эклектичная кухня умело использует угловое пространство [Дизайн: Nest Pretty Things] Кухня в деревенском стиле с умными угловыми шкафами [Дизайн: Katahdin Cedar Log Homes] Красивая кухня, полностью посвященная дереву! [Фотография: Карл Вернлунд] Более традиционный подход к угловой мебели на кухне [Дизайн: Custom Corners LLC]
Альтернативы умного модерна
Хотите максимизировать пространство кухонного угла, но чувствуете, что эти выдвижные ящики просто не для вас? Не волнуйтесь, у нас есть множество оригинальных решений, которые, кажется, сочетают в себе внешний вид кухонного шкафа с удобством выдвижного ящика.Шкаф с Lazy Susan в углу под рабочей станцией — одна из тех прекрасных альтернатив, которые предлагают лучшее из обоих миров! Есть много других современных версий, вдохновленных Lazy Susan, которые вы можете найти у местного кухонного подрядчика, которые предоставят легкость угловых ящиков в более современной, индивидуальной манере.
Шкаф с выдвижными ящиками может значительно облегчить вам жизнь на кухне! [Дизайн: Bill Fry Construction] Угловой шкаф открывается, открывая дополнительное пространство для хранения [Дизайн: Bill Fry Construction] Элегантные угловые шкафы с выдвижными стеллажами и умными ящиками — популярная комбинация [Фотография: Марко Джо Фацио] Стильные открытые угловые полки заменяют традиционные выдвижные ящики на этой кухне [Дизайн: Кухни Питера Гилла] Маленькая современная кухня с угловым шкафом с ленивой Сьюзан [Дизайн: KB Cabinets] Идеальная угловая полка для традиционной кухни [Дизайн: Wood-Mode Fine Custom Cabinetry] Победите эти жесткие углы с умные выдвижные ящики на кухне [Дизайн: The Kitchen Studio of Glen Ellyn] Обратитесь к ленивой Сьюзан за умными угловыми решениями [Дизайн: Andre Rothblatt Architecture]
Наилучшее использование угла в планировке кухни
Существует множество способов спроектировать основание и стену в углу кухни, обычно лучше всего, чтобы опытный дизайнер кухни спроектировал кухню для вас, вы можете получить бесплатный дизайн или, по крайней мере, просмотреть свой дизайн, так как велика вероятность, что они найдет что-то, что может улучшить внешний вид и использование кухни, вот некоторые из наиболее распространенных способов, которые используются.
Угол основания:
Lazy Susan — Базовые шкафы Lazy Susan — самый популярный вариант, они обычно бывают 36 дюймов, длина каждой стены составляет 36 дюймов, начиная с угла, и 33 дюйма, длина каждой стены составляет 33 дюйма, начиная с угла. В углу, если у вас есть место, я настоятельно рекомендую выбрать 36-дюймовую модель, так как на 33-дюймовой панели отверстие будет очень маленьким. Если смотреть на шкаф спереди, он имеет L-образную форму с двумя дверцами, прикрепленными к шарниру посередине.Обычно они поставляются с двумя вращающимися круглыми полками.
Угловая мойка — Шкаф для угловой мойки обычно поставляется только лицевой стороной и крепится к шкафам с обеих сторон под углом 45 °, шкафы с каждой стороны устанавливаются на расстоянии 36 дюймов от угла. Есть компании, которые делают лицо крупнее, и им требуется пространство в 42 дюйма вдоль каждой стены. Вы также можете получить полноценный шкаф, который будет занимать весь угол 36 дюймов вдоль каждой стены, а лицевая сторона будет располагаться под углом 45 градусов.После установки он будет выглядеть так же, как угловая раковина без коробки.
Глухой угловой шкаф — Глухой угловой шкаф скроет часть шкафа в углу и предоставит вам доступ с одной стороны шкафа с возможностью доступа к остальной части шкафа. Его удобно использовать в качестве хранилища для вещей, которыми вы не часто пользуетесь. Когда вы поворачиваете за угол, вам нужно будет начать с 3-дюймового наполнителя, чтобы убедиться, что дверцы и ящики свободны.
Мертвый угол — Другой вариант — оставить угол в качестве мертвого пространства, обычно это не рекомендуется, потому что вы тратите пространство впустую, но на очень большой кухне с большим количеством места для хранения это вариант, который можно использовать.Вам понадобится 3-дюймовый наполнитель, обращенный к каждой стороне на расстоянии 24 дюйма от стены, поэтому базовые шкафы с каждой стороны будут начинаться на расстоянии 27 дюймов от стены.
Шкаф под углом — Вы можете развернуть напольный шкаф или даже кладовку или шкаф с духовкой под углом 45 °, это займет много места в углу, но на большой кухне это добавит много места. дизайн кухни и, если все сделано правильно, придаст кухне очень нестандартный вид. вам нужно будет положить наполнители по очереди с каждой стороны, чтобы убедиться, что все дверцы и ящики свободны.
Настенный уголок
Настенный диагональный угловой шкаф — Настенный диагональный угловой шкаф, также называемый WDC или CW, является наиболее популярным вариантом, стандартный размер занимает 24 дюйма вдоль каждой стены, начиная с угла, и будет иметь глубину 12 дюймов на глубине. стороны с 17-дюймовой гранью под углом 45 ° для выравнивания с навесными шкафами, они также делают один, который имеет длину 27 дюймов вдоль каждой стены и глубину 15 дюймов, который может использоваться на той же высоте, что и другие навесные шкафы, и будет Придайте своей короне и молдингу больше размеров, или вы можете сделать ее на 6 дюймов выше, чем ваши другие навесные шкафы, например, навесные шкафы H 36 дюймов и угловой шкаф 42 дюйма H, таким образом корона на меньшем шкафу может вернуться внутрь на более глубокую 15-дюймовую сторону углового шкафа.Вы не можете оставить шкаф на 24 дюйма сбоку и сделать его повыше, так как это не позволит вам установить корону снизу, потому что она войдет в лицевую часть угла.
Квадратный угловой шкаф — Квадратный угловой шкаф имеет длину 24 дюйма вдоль каждой стены, а передняя часть похожа на L-образную форму с двумя дверцами, прикрепленными друг к другу с помощью петли, он открывается так же, как шкаф Lazy susan, и будет иметь L-образные полки .
Угловой шкаф для глухих — Навесной шкаф для штор будет работать так же, как и основание для штор, обычно оно будет 27 дюймов в ширину, и вы можете установить его, потянув от стены до 3 дюймов при повороте за угол. вам нужно будет начать с 3-дюймового наполнителя, чтобы дверцы с каждой стороны не перекрывали друг друга.
Мертвый угол — Другой вариант — оставить угол в качестве мертвого пространства, обычно это не рекомендуется, потому что вы тратите пространство впустую, но на очень большой кухне с большим количеством места для хранения это вариант, который можно использовать. Вам понадобится 3-дюймовый наполнитель, смотрящий на каждую сторону на расстоянии 12 дюймов от стены, так что навесные шкафы с каждой стороны будут начинаться на расстоянии 15 дюймов от стены.
Чтобы получить бесплатный дизайн кухни, позвоните нам по телефону 800-788-7575 или напишите нам по адресу sales @ rtawoodcabinets.com
Выбор углового нижнего шкафа
Угловой шкаф — основа компоновки вашего шкафа
На большинстве небольших кухонь или кухонь с уникальной планировкой попытка выбрать правильный угловой шкаф может быть большой проблемой. В то время как индивидуальные шкафы предлагают более широкий выбор шкафов на выбор, если вы смотрите на стандартные шкафы или шкафы RTA, такие как наш, есть три варианта.
- Глухой напольный шкаф
- Диагональный угловой шкаф или тумба под умывальник
- Угловой передний или угловой напольный шкаф под раковину
Итак, как узнать, какой из них выбрать?
Диагональный угол или Ленивый шкаф Susan
Когда я выкладываю кухню, я всегда стараюсь работать в ленивом кабинете Сьюзан.Большинство линеек кабинетов предлагают ленивые сьюзан размером 33 или 36 дюймов. Это означает, что на каждой стене потребуется 36 дюймов. Ленивая Сьюзан предлагает максимальную функциональность из угла с наименьшим количеством мертвого пространства. Его легко установить и спланировать, поскольку он занимает одинаковое количество места на каждой стене. Единственным недостатком является то, что он занимает много места, поэтому это не лучший выбор для небольших кухонь. Вы можете отказаться от вращающегося подноса и получить обширный диагональный передний угловой шкаф.
Размеры шкафа с угловым основанием
Нижний шкаф с глухим уголком
Нижний шкаф в глухом углу предлагает вам максимальную гибкость с точки зрения дизайна вашего пространства, но оставляет мертвое пространство, которое вы не можете использовать.Вам нужно оставить только 27 дюймов на одной стене, а не 33 или 36 дюймов, которые вам пришлось бы оставить с ленивым сьюзаном или угловым шкафом для раковины. . . но он занимает минимум 42 дюйма на противоположной стене. Для большинства глухих шкафов необходимо учитывать несколько размеров:
- Для правильной работы дверцы и ящика необходимо оставить не менее 6 дюймов мертвого пространства в углу.
- На противоположной стене вам понадобится 3-дюймовый наполнитель, чтобы оставить достаточно места для работы двери и ящика шкафа
Единственное, что мне не нравится в шкафах с глухими цоколями, — это неиспользуемое пространство.Традиционно задний угол глухого напольного шкафа превращается в черную дыру для кастрюль и сковородок, так как вам нужно потянуться, чтобы достать их (они определенно нелегко доступны).
Размеры шкафа с глухим угловым основанием
Угловая тумба под раковину
В некоторых конструкциях кухонь раковина находится в углу, и чтобы использовать пространство под раковиной, вы можете использовать угловой передний или угловой нижний шкаф для раковины. Угловая поверхность раковины по-прежнему будет занимать 36 или 33 дюйма на каждой стене (в зависимости от размеров, указанных производителем).Прикрепите основание раковины к двум соседним шкафам, а затем добавьте ригели 2 × 4 поперек стены, чтобы на столешнице было, на чем опираться.
Размеры основания угловой мойки.
Мертвый космос
Когда ни один другой шкаф не будет работать, и вы действительно не можете подогнать его под себя, последним средством будет оставить мертвое пространство. Это будет совершенно недоступно, но для завершения угла потребуется минимум места. Просто скрепив вместе две полоски наполнителя в форме буквы L и прикрепив их к соседним шкафам, вы в конечном итоге займете 27 дюймов места на каждой стене.Я бы использовал этот вариант, только если у вас действительно нет других решений.
Мертвое пространство занимает минимум места на кухне.
Если вы хотите поэкспериментировать с планировкой своей кухни, перейдите в наш инструмент для дизайна, и вы можете установить шкафы разных размеров, чтобы увидеть, что лучше всего подходит для вас.
Если вам нужна помощь в дизайне, не стесняйтесь обращаться к нам по адресу [email protected], чтобы один из наших дизайнеров спроектировал вашу кухню для вас.
Как выбрать напольный угловой шкаф?
20 различных идей угловых шкафов для кухни
Планируете ли вы новую кухню или модернизируете ее, вы обязательно столкнетесь с дилеммой углового шкафа.Большинство кухонь имеют L-образную планировку, что означает наличие хотя бы одного угла. Что вы можете сделать, чтобы максимально использовать это пространство? Во многих старых домах есть слепое пространство, где встречаются два шкафа. Это часто означает потраченное впустую пространство в одной комнате дома, где требуется больше всего места для хранения. Как можно решить эту проблему на старой кухне и как найти творческие способы использования этого пространства на новой кухне? Создание красивой угловой мебели, которая максимально использует пространство, жизненно важно на кухне.
Вот 20 красивых идей угловых шкафов.
Ленивая Сьюзан
Самый распространенный способ использования кухонного уголка — это Ленивая Сьюзен. Эти шкафы в форме пирога можно разместить над или под кухонной стойкой. Lazy Susan имеет центральный вход, от которого вращаются полки. Над столешницей Lazy Susan можно хранить упакованные или консервированные продукты и специи. Под столешницей Lazy Susan может находиться громоздкое кухонное оборудование и складское оборудование. Все содержимое легко доступно, вращая полки.Ничто не рискует застрять в задней части шкафа, где это будет незамечено.
Вытяжные ролики
Как и Lazy Susan, откидные выдвижные ящики — отличный способ оптимизировать пространство углового шкафа Oie, где вы не потеряете вещи в задней части шкафа. Распашные выдвижные полки — это полки, которые можно вытащить из шкафа. Все, что хранится на полках, легко доступно. В этих модулях можно легко хранить посуду и кухонные принадлежности, и к ним легко получить доступ.
Выдвижные ящики
Несмотря на то, что они не решат полностью проблему углового шкафа в глухом пространстве, выдвижные ящики — это простое решение, позволяющее наилучшим образом использовать угловой шкаф под стойкой. Внутри шкафа можно добавить пару систем ящиков с лотками. В этих ящиках можно разместить тяжелую посуду или кухонные принадлежности. Выдвигая ящики, вам не нужно наклоняться и тянуться, чтобы найти горшок, который вы ищете.
Угловые ящики
Угловые ящики — один из способов решить дилемму углового шкафа.Угловые ящики встроены в угловой шкаф и выдвигаются из него, обеспечивая доступ к таким предметам, как кухонная утварь. Угловые ящики будут разделены на небольшие отсеки, в которых есть встроенный организационный инструмент.
Диагональные шкафы
Шкафы диагональной формы — распространенное решение проблемы кухонного уголка. Эти шкафы можно отделать панелями, чтобы они гармонировали с другими кухонными шкафами. Они предлагают визуальный перерыв в мебели и могут использоваться для создания объема и в качестве акцента на кухне.Проблема в том, что диагональный шкаф сложно вписать в сборную кухню. Они также меньше, чем шкафы обычного размера. Однако диагональные шкафы можно использовать для хранения небольшой посуды или даже кулинарных книг. Если он большего размера, можно установить выдвижные ящики или выдвижные ящики.
Основание мойки
На кухне, спроектированной по индивидуальному заказу, можно использовать угол с угловой мойкой. В шкафчике под основанием раковины можно хранить средство для мытья посуды, моющее средство для посудомоечной машины, мешки для мусора и чистящие средства.Эти предметы можно хорошо хранить под угловым шкафом.
Встроенное сиденье
Если позволяет место, встроенная зона отдыха может решить дилемму кухонного уголка. Это особенно хорошо, если есть окно. Мебель используется для хранения вещей, а подушка с загнутыми углами, а некоторые подушки могут стать приятным фокусом или удобным местом для отдыха гостя, пока вы готовите ужин.
Шкаф-гармошка с двойной дверью
Двойная дверь, которая открывается как гармошка, — это угловой шкаф для хранения вещей.Стеллажи имеют форму круга, обеспечивающего доступ с любой стороны. Это решение обеспечивает легкий доступ и глубокое хранение в угловом шкафу.
Мертвое пространство
Иногда проще оставить мертвое место в угловом шкафу. Глубокое пространство, где встречаются шкафы, может быть труднодоступным, но это может быть единственным вариантом. Один из способов использовать пространство — хранить редко используемые предметы в ящиках в недоступном разделе. Например, храните там рождественскую выпечку.Вам нужно связаться с ними только раз в год.
Кладовая
Шкафчик для буфета отлично впишется в угловой угол кухни в форме пирога. Единственная проблема — потеря места на прилавке. Тем не менее, угловой шкаф от пола до потолка можно украсить обшивкой или другими декоративными акцентами, чтобы разбить кухонный угол. Пространство внутри можно использовать для хранения кладовых для легкого доступа.
Стандартный шкаф
Стандартный шкаф можно прислонить к углу и при этом использовать для хранения вещей.Добавьте на дисплей стаканы и посуду. Шкаф работает как акцент на кухне и может стать красивым центральным элементом в углу кухни над столешницей.
Стеклянный угловой шкаф-витрина
Если вы не можете найти решения для экономии места для кухонного угла, вы всегда можете добавить декоративный уголок над столешницей. Как и в стандартном шкафу, его можно использовать для демонстрации посуды или стаканов. Хотя этот шкаф в форме пирога не будет большим, стеклянная дверь может стать центром внимания на кухне и показать что-то особенное, например, ваши любимые бокалы для вина.
Слоты
В кухонном углу можно создать прорези для хранения тарелок. Это хорошее решение для углового шкафа, потому что он немного открывает пространство и создает особый стиль. Слоты используют пространство, не загромождая кухню.
Стеллаж открытый
Над столешницей можно расположить открытые стеллажи, чтобы создать современный минималистский акцент на вашей кухне. Покажите посуду, кофейные кружки, чайник и чайную чашку.Вы можете выставить свои банки с цветами и сахаром. Вы можете разбить его и добавить некоторые декоративные штрихи.
Гараж для бытовой техники
Гараж для бытовой техники — отличный способ использовать угол кухни и уменьшить беспорядок. Гараж для бытовой техники имеет подъемную дверь. Поместите блендер, миксер и тостер в «гараж» и закройте дверь. Это обеспечивает легкий доступ к приборам, сохраняя их скрытыми, и ваша столешница не будет загромождена.
Розетка
Если вы не можете придумать решение для вашего нижнего углового шкафа, это место можно использовать для вашей корзины для мусора. Пространство глубокое, поэтому в нем можно разместить мусорную корзину и емкость для вторичной переработки. Это убережет ваш мусор от сайта.
Добавить портативную Ленивую Сьюзан
Если ничего не помогает и вы не можете найти способ использовать пространство углового шкафа, вы можете добавить переносные стеллажи, такие как Lazy Susan.Использование вращающейся платформы в шкафах позволяет получить доступ к предметам. Вы не потеряете то, что находится в задней части шкафа, потому что вы можете вращать платформу и добираться до всего.
Дополнительные полки
Недорогое решение оптимального хранения в угловом кухонном шкафу — чередование полок. Размещение полок над и под друг другом по обе стороны от шкафа не создаст больше места для хранения, но, безусловно, будет легче найти то, что вы ищете.
Стеллажи подвесные
Если вы решили хранить кастрюли, сковороды и крышки в нижнем угловом шкафу, вы можете добавить крючки, на которые будут подвешиваться кастрюли и сковороды. Это отличное устройство для экономии места. Вам также не придется все вынимать, чтобы найти ту кастрюлю, которую вы ищете. На дно шкафа можно накладывать крышки.
Узкие шкафы
Одним из способов использования небольших угловых шкафов является создание длинных узких шкафов под прилавком.Их можно использовать для хранения листов с печеньем. Также можно добавить выдвижной ящик, чтобы повесить кухонные полотенца изнутри этих узких шкафов.
Мертвый, асимметричный шкаф или слепой?
Я разместил это вчера, но он никогда не появлялся ни в одном из обсуждений, поэтому я отправляю его снова.
Я дорабатываю планировку кухни. Это небольшая, простая L-образная кухня. У меня нет острова. У меня есть небольшая узкая кладовая. Пытаюсь решить, что делать с нижним уголком шкафов.Я выберу шкаф-вставку с лицевой рамкой в линейке Mouser Centra. Мои варианты в порядке предпочтения:
План А — Мертвый угол. Это кажется наиболее логичным. У меня было бы легкое, ПОЛЕЗНОЕ и легкодоступное хранилище. Это также дало мне идеальную симметрию на стене моей печи. Но часть меня говорит: «НЕТ! Ваша кухня маленькая, используйте каждый дюйм!»
План B — Асимметричный шкаф 42/39 дюймов. По сути, это базовый шкаф EZ Reach. Они не такие глубокие, как шкаф Super Susan (см. Аннотированный рисунок ниже).Учитывая ширину стоек лицевой рамы, у меня были бы хорошие широкие отверстия по обе стороны от 16,5 дюймов и 13,5 дюймов. (ПРИМЕЧАНИЕ: асимметричные супер-сьюзаны не имеют этих пропорций — они достигают максимума 39 дюймов / 36 дюймов). Кто-нибудь использовал такой большой асимметричный угловой шкаф? Тебе понравилось это?
Планы C и C2 — глухой угол. Я знаю об ограничениях. Я видел всевозможные вставки и «решения» — LeMans, Half Moon Susans, Magic Corners I и II, выдвижные ящики и т. Д.Несмотря на то, что они гладкие, все они имеют свои ограничения и, на мой взгляд, очень дороги за небольшую стоимость взамен. Я читал обсуждения Houzz и сам посчитал, чтобы увидеть, что в целом они предлагают меньше ПОЛЬЗОВАТЕЛЬСКОГО и ГОТОВОГО ДОСТУПНОГО хранилища, чем просто убрать угол и установить основание ящика. Я думаю, что это связано с асимметричной суперсьюзан размером 36/33 дюйма за последнее место.
План D — Ассиметричная 36 «/ 33» Super Susan. Я видел это, но нахожу доступ слишком узким, чтобы быть полезным.По диагонали будет отверстие примерно 12,9 дюйма. Очень плотно и неудобно доставать и вынимать вещи.
Я хотел бы получить отзывы / комментарии. Особенно, если у кого-то есть шкаф 42/39 дюймов.
Спасибо!
Создание углового шкафа
Информация в этой статье относится к:
ВОПРОС
Как создать угловой шкаф в форме буквы «L» или глухой в углу комнаты?
ОТВЕЧАТЬ
Базовые, навесные и полноразмерные шкафы могут быть выполнены в виде L-образных или глухих угловых шкафов.Софиты также могут быть выполнены как угловые, чтобы соответствовать форме угловых навесных шкафов.
Для создания углового шкафа
- Выберите в меню Build> Cabinet и выберите нужный тип шкафа.
- Доступны базовые, настенные и полноразмерные шкафы.
- После того, как вы выберете инструмент шкафа и переместите курсор в область рисования, рядом с ним появится значок шкафа, указывающий, что шкаф готов к установке.
- Расположите перекрестие в углу комнаты. Убедитесь, что курсор-перекрестие находится очень близко к внутреннему углу комнаты — в пределах нескольких дюймов от обеих стен.
- Щелкните мышью один раз, чтобы разместить угловой шкаф там, где встречаются две стены.
Примечание: Обычный шкаф может отображаться, если перекрестие не находится достаточно близко к угловым стенам при создании шкафа.Если создается обычный кабинет, выберите в меню «Правка»> «Отменить» и повторите попытку, начиная с шага 2.
- Если вам не нужен угловой шкаф в стиле ленивый сьюзан, вы можете изменить его, чтобы создать угловой шкаф L-образной формы. Используйте инструмент Select Objects , чтобы выбрать только что размещенный шкаф, и нажмите кнопку редактирования Open Object .
- На панели «Общие» в появившемся диалоговом окне «Спецификация шкафа » снимите флажок «Диагональная дверь », затем нажмите ОК .
Для создания глухого углового шкафа
- Выберите Build> Cabinet из меню и выберите нужный тип шкафа, затем щелкните на плане, чтобы разместить его. Щелкните еще раз, чтобы поставить второй шкаф, составляющий глухой угол.
- Сдвиньте шкафы вместе в нужную конфигурацию для глухого угла.
- Home Designer автоматически изменит размер и смещение лицевых элементов частично скрытого шкафа, чтобы они не находились в скрытой части лицевой стороны шкафа.
Примечание: Если дверцы шкафа не видны в глухом углу, возможно, шкафы не соединились должным образом. Просто разведите их в стороны и снова сдвиньте, чтобы снова включить функцию автоматического слепого угла.
Корпус Угловой шкаф для кухни
Для меня мотивация может пойти по странному пути, и этот проект — довольно хороший тому пример. На самом деле все начинается с того, что ремонтирует мой сарай для металлических работ и как у меня было несколько листов МДФ, которые должны быть в моей мастерской, и у меня не было места для их размещения.Это также связано с тем, что я недавно купил больше листов фанеры из балтийской березы, которые блокировали дверь в мой магазин, и мне приходилось перемещать их всякий раз, когда я хотел что-то из своего деревянного шкафа .
Несмотря на то, что в моей мастерской есть небольшой склад для листов, последние 2 года он был заполнен в основном четырьмя листами фанеры 3/4 дюйма. Я купил эти простыни (на распродаже по слишком хорошей цене, чтобы отказаться от них), чтобы построить свои кухонные шкафы, но у меня не было мотивации строить их.Несмотря на то, что моя кухня далека от завершения, в ней есть несколько временных шкафов, которые работают достаточно хорошо, чтобы я мог оправдать отказ от строительства новых. До сих пор мне нужно освободить это место в моем магазине, поэтому эти листы должны уйти.
Я начал с довольно подробного чертежа в SketchUp, чтобы получить основные размеры деталей, затем вытащил один из листов и положил его на мою временную настольную пилу:
Я использовал циркулярную пилу с зажатой направляющей, чтобы разбить лист на более мелкие части:
Затем переключился на настольную пилу, когда детали стали более удобными.Хотя этот тип шкафа, вероятно, самый сложный, который вы когда-либо создавали для кухни, стоит упомянуть, что все это можно сделать с помощью довольно простых инструментов магазина.
Даже такие сложные пропилы под углом 45 градусов, подобные этому, можно выполнить, используя полную противоположность дорогой столярной пилы:
Вырезав основные детали из фанеры, я смог приступить к сборке, соединив боковые панели с плоскими задними панелями. Вот изящный трюк, чтобы удерживать панель в вертикальном положении с помощью двух зажимов:
После того, как детали были склеены и прибиты гвоздями, я зажал их и оставил сушиться на несколько часов:
Примечание: мне очень нравится, как работают эти зажимы для деревянных брусков и насколько они удобны в использовании.Самым большим преимуществом является вес или отсутствие веса, то есть они настолько легкие по сравнению с металлическими.
Тем временем я фрезеровал детали лицевой рамы из грубого кленового материала, который я снова купил два года назад для этого проекта:
Но если оставить твердую древесину на такой долгий срок, это было преимуществом, так как это позволило ослабить нагрузки от быстрой сушки в печи.
Еще у меня были вырезаны полки необычной формы для шкафа. Я потратил время, чтобы убедиться, что первый был точно подходящего размера, а затем использовал его как образец для двух других:
На вырезание двух из них израсходовался последний лист первого полного листа, поэтому мне пришлось использовать кусок, унаследованный от старого проекта (подставка под телевизор), для третьей полки:
Да, больше, чем полный лист фанеры 3/4 дюйма для этого шкафа — он будет тяжелым!
Следующим шагом было прикрепление полок к L-образной боковой / задней части с помощью клея и шплинтов.Все эти полки неподвижны, даже средняя, поэтому штырей здесь нет:
Затем крепится задняя стенка, скошенная с двух сторон. Опять же, с клеем и штифтами:
Затем прикрепляется другая боковая / задняя панель в сборе, завершая основной каркас шкафа:
Я предпочитаю собирать корпус перед тем, как вырезать части для лицевой рамки, и покажу, как я это делаю в в этом видео . Это особенно актуально для такого типа шкафов — его странная форма затрудняет сборку в точном соответствии с планом, поэтому измерение деталей после него всегда является самым безопасным способом:
Я использовал дюбели 3/8 ″ и полиуретановый строительный клей для сборки лицевой рамы, затем зажал ее и отложил для просушки:
После 2 часов жаркого лета клей стал достаточно твердым, чтобы прикрепить лицевую раму к шкафу.Опять же, я использовал полиэтиленовый клей и штифты, чтобы зафиксировать его на месте, прежде чем зажимать:
Я экономно использовал штифты и старался размещать их в местах, где их было бы трудно заметить, или где они были бы закрыты дверцей этого шкафа. К счастью, наполнитель, который я использовал для этих отверстий, действительно хорошо сочетается с естественным цветом клена:
После схватывания клея и высыхания наполнителя я тщательно отшлифовал корпус перед тем, как вынести его на улицу для покраски.Вот более подробный вид на один из стыков лицевой рамки после шлифовки:
Я использую полиуретан на водной основе и распыляю три слоя. После того, как первый слой высохнет в течение нескольких часов, я отшлифовал его наждачной бумагой 400 и распылил на два последних слоя:
В результате получилась потрясающе гладкая поверхность, которую можно было сделать невероятно быстро. Я считаю, что это как минимум в четыре раза быстрее, чем чистка щеткой, и дает гораздо лучшее покрытие.
Последний этап — установка шкафа на кухню.А учитывая его размер и вес, это было непросто. Первая попытка вставить его между столешницей и переборкой из гипсокартона выше не удалась — он не подошел. Это было слишком туго, поэтому я спланировал немного сверху, прежде чем попытаться снова. На этот раз она вошла внутрь, и я мог отметить дно, чтобы отметить и столешницу из плитки. Затем, конечно, снова снимите его, чтобы выровнять дно по этой линии. После еще одной проверки на подгонку и еще одной части строгания я, наконец, был удовлетворен и снова снял его (!), Чтобы заклеить нижнюю часть боковых панелей двумя толстыми слоями поли:
Полиэтилен заклеит фанеру и массив дерева там, где он встречается со столешницей, и я сделал это, хотя заделаю этот шов после того, как шкаф будет установлен.Лучше уделить дополнительное время сейчас, чем потом сожалеть, если туда попадет вода.
В любом случае, вот как он ложится на столешницу после разметки:
А вот как это выглядит в установке:
Вам может быть интересно узнать об отверстии внизу, а это так называемый гараж для бытовой техники. В нем будет размещаться небольшая бытовая техника (например, кухонный комбайн), которая используется время от времени и которую трудно хранить. Он будет закрыт рулонной (тамбурной) дверью, и это предстоящий проект.
Я сделал видео про сборку от начала до конца:
.




Желательно на схеме изобразить, будет ли угловая конструкция вмещать бытовую технику или легкие специи. Стандартные полки равны по толщине 18 см, а если будут храниться тяжелые предметы, то желательно выбирать толщину от 21 см.
Длина и глубина тумбы должна соответствовать размерам мойки.
Фреза, ее глубина и отступ от края должна позволять врезать петлю-трансформер. Именно по этой причине в узких фасадах обычно не делают фрезу, а оставляют гладкими, без рисунка.
