Барная стойка на кухне размеры: Размеры барной стойки для кухни: эргономика и высота, стандарт
Размеры барной стойки для кухни: эргономика и высота, стандарт
Барная стойка – удобная и практичная мебель, которую используют как в ресторанах и кафе, так и на обычных кухнях. Конструкция поможет сэкономить квадраты в маленькой комнате или зонировать габаритное пространство. Чтобы предмет гармонично вписался в интерьер помещения, надо правильно подобрать параметры.
Традиционная модель для бараИсточник remont-kr.zakupka.com
Как правильно барную стойку в кафе или ресторане
Барная стойка на предприятиях общественного питания – оборудование, которое создает имидж компании. Красивая, оригинальная и функциональная конструкция станет ярким элементом интерьера. Разумная эргономика мебели экономит место в зале и обеспечивает удобство для посетителя и бармена.
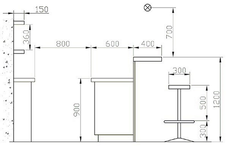
Классическая стойка состоит из станции и столешницы, нависающей над рабочим местом сотрудника. Высота предмета интерьера – от 1,14 до 1,5 м, ширина – 80 см.
Параметры позволяют разгрузить плечи бармена при большой загруженности.
Модели стоек Сhef’s Table по высоте доходят до пояса (0,9-1 м). Гостевая зона расположена на одном уровне с рабочим местом. Отдыхающие наблюдают за процессами приготовления напитков. Конструкция максимально комфортна для бармена, но не предназначена для большого количества посадочных мест.
Открытая барная стойкаИсточник pinterest.ru
Долговечность стойки для кафе или ресторана зависит от материала, из которого сделали столешницу. Толщина оборудования – от 5 см. Прессованная древесина имеет красивую фактуру и низкую стоимость, но при постоянном контакте с влагой вздуваются швы. При создании конструкций используют натуральное дерево (бук, дуб), покрытое эпоксидной смолой. Практичными считаются камень и стекло, можно подобрать варианты из пластика или композитов.
Стойка из камняИсточник wellstone-russia.
com
Натуральный материал в конструкцииИсточник yandex.com.tr
Столешница из искусственного камняИсточник ultra-stone.ru
Факторы, влияющие на выбор барной стойки для кухни
Элегантный предмет интерьера сохранит полезные квадраты и увеличит функциональность пространства. Вариант подходит как для квартиры-студии, так и для комнаты с отдельной планировкой. В семье из 2-3 человек мебель заменит обеденный стол.
Стойка в маленькой комнатеИсточник peopleandcountries.com
Перед покупкой стойки барной учитывают физиологические особенности проживающих. Конструкция не должна вызывать дискомфорт и сковывать расположившихся людей. Норма длины на одного человека – 60-65 см. Крупным домочадцам дизайнеры рекомендуют предоставить по 70-80 см.
Ширина столешницы зависит от назначения барной стойки.
Минимальные параметры – 30 см, иначе конструкция будет неудобной и непрактичной. Традиционно верхние части изготавливают в пределах 55-60 см. Варианты от 80 см используют в качестве рабочей поверхности.
Ширина конструкции до 30 смИсточник nazya.com
Широкая столешница на кухнеИсточник aida38.ru
Правила оформления кухни в классическом стиле, подбор цвета и аксессуаров
Пространство под мебелью оборудуют дополнительной системой хранения. В удобной модели полки, ящики не мешают людям и позволяют без помех сидеть за барной стойкой. Выдвижные конструкции и корзины-карго увеличат вместительность и функциональность мебели.
Конструкция с ящиками и полкамиИсточник special-style.ru
Типы, модели и варианты оформления
Удобная мебель для кухни должна соответствовать концепции комнаты.
Выбирая барную стойку для квартиры или загородного дома, акцентируют внимание на параметрах помещения и форму предмета интерьера. Существуют 6 типов, у которых разные характеристики и назначение.
Классическая
Традиционная длинная стойка на ножках по высоте достигает 1,15 м. Модель одним концом фиксируют к стене, под столешницей – консоли. Для крохотной комнаты подойдет решение с узкими шкафчиками вместо опоры. Дополнительную систему хранения используют для посуды.
Высокие устойчивые стулья с перегородкой для ног – обязательный атрибут классической барной стойки. Параметры сиденья на 30 см ниже уровня столешницы. Удобные модели с изменяемой стойкой позволят откорректировать параметры под человека. Удачно смотрятся полукресла с мягкими подлокотниками и низкими спинками.
Популярный вид мебели для кухниИсточник dizainexpert.ru
Классические барные стойки гармонично вписываются в любое стилевое оформление.
В небольшой кухне дизайнеры рекомендуют использовать стол-подоконник. Компактная разновидность поможет задействовать простаивающую зону возле оконного блока (балкона).
Конструкция традиционного видаИсточник yandex.by
«Остров»
Отдельно стоящая модель подходит для просторных кухонь. Тип часто применяют в объединенной гостиной студии или в загородном доме. Конструкцию устанавливают в центре комнаты. «Островная» стойка не примыкает к другим предметам интерьера, при этом становится акцентным элементом дизайна.
Обособленный тип мебелиИсточник roomester.ru
Чтобы свободно передвигаться по кухне, между барным «островом» и мебелью оставляют проходы, шириной в 1 м. Высота сооружения – от 100 см, длина – до 2 м. Габаритный предмет интерьера дизайнеры рекомендуют разделить на зоны (рабочую и обеденную).
Функциональная конструкция для кухниИсточник pinterest.
pt
Модель подойдет для большой семьи и людей, которые часто принимают гостей дома. Под барную стойку можно встроить духовку, микроволновку или дополнить тумбочкой с выдвижными полками. Рядом с широкой столешницей располагают варочную поверхность.
Барная мебель с системой храненияИсточник housemagazine.com
Декор кухни в деталях: как не удешевить дизайн
Комбинированная
Барная стойка входит в состав гарнитура, становится продолжением рабочей зоны или кухонного стола. Вместительный вариант для малогабаритных комнат позволит грамотно использовать свободные квадраты. По высоте конструкция совпадает с параметрами мебели (85-90 см). По форме расположения бывает в виде буквы «Г».
Комбинированный тип мебелиИсточник dizajnintererov.com
Удобная модель выполняет функции столовой и рабочей зоны. Предмет интерьера визуально воспринимается единой композицией с гарнитуром.
Столешница по материалу совпадает с отделкой верхних поверхностей мебели. С комбинированным видом используют барные стулья, высотой до 0,65 м.
Конструкция гармонично смотрится в любом дизайне. Функциональное назначение зависит от требований владельцев. Над стойкой размещают трубу-держатель с кронштейнами для бокалов. Зону в области упора дополняют ящиками для кухонной утвари, бытовой техникой или каруселью для специй.
Комбинированная модель для кухниИсточник кухнилюкс.рф
Перегородка
Модель применяют для физического разделения пространства между кухней и гостиной в габаритном жилье. В компактной квартире решение обустраивают под рабочую или обеденную зоны. Высота конструкции бывает в пределах 110-130 см. Внешний вид зависит от дизайна, что позволяет размещать мебель как в роскошных, так и в простых интерьерах.
Полустена с функцией мебелиИсточник dizainexpert.
ru
У барной стойки-перегородки закрытое основание. Для хранения кухонной утвари удобны конструкции с выдвижными ящиками, корзинами-карго или шкафчиками. Под столешницей часто оставляют открытые ниши, в которые можно встроить аквариум, бытовую или аудиотехнику.
У традиционных стоек-перегородок прямые фасады. Модели с закругленными краями выглядят легкими и пластичными. Конструкции можно вписать в интерьер в стиле модерн. Для барной мебели подойдет стулья, высотой до 85 см. Проем над предметами дизайнеры рекомендуют дополнить встроенной подсветкой.
Конструкция-перегородка Источник womanadvice.ru
Двухуровневая
Модель применяют для зонирования габаритной комнаты или квартиры-студии. Конструкция по строению напоминает профессиональную стойку, состоит 2 ярусов:
- Верхний. Барную столешницу используют по прямому назначению (отдых, столовая зона).
- Нижний. Уровень оборудуют под участок для приготовления пищи.
Предусмотрены ящики и шкафы для хранения утвари.
Зонирование при помощи мебелиИсточник domoholic.ru
Какой должна быть барная стойка и где её лучше разместить на кухне
Многофункциональная модель избавит помещение от дополнительных столов, добавит уюта и простора в кухню. Мебель физически делит пространство на столовую и место для приготовления пищи. Дизайнеры часто используют барные конструкции для обустройства длинных узких комнат. Вид гармонично впишется в интерьер как классики, так и минимализма.
Миниатюрная
Компактная стойка подойдет для малогабаритной кухни. По высоте модель повторяет параметры стандартной обеденной группы – до 0,85 м. Столешница очень короткая – от 0,6 до 0,9 м. С одного края мебель фиксируют в стену или в гарнитур, со второго – на одну ножку. Если убрать опору, конструкция сложится.
Складывающийся вариант для кухниИсточник nazya.
com
Миниатюрная модель гармонично сочетается с любым дизайном кухни. Сооружение используют как разделочную доску или барную стойку для одного человека. Комфортная высота стульев – не более 60 см. В собранном режиме элемент не занимает полезные квадраты.
Особенности определения высоты барной стойки на кухне
Стойки изготавливают стандартных размеров – от 0,8 до 1,3 м. Традиционной считается высота в 1,15 м. Мебель обязана быть комфортной, при этом выполнять поставленные задачи и функции. Из-за эффектного внешнего вида конструкция станет акцентным элементом дизайна и сочетается с остальными предметами интерьера
При выборе модели обращают внимание на средний рост обитателей жилья. Если параметры не превышают 1,65 м, то отдают предпочтение конструкции до 1,1 м. При коэффициенте от 1,7 м можно брать решения до 1,3 м. Семье с маленькими детьми и пожилыми родственниками рекомендуют остановиться на мебели до 1 м.
Оригинальная барная конструкция Источник links-stroy.
ru
Высота барной модели зависит от типа. Комбинированная по столешнице согласовывается с остальными элементами в гарнитуре. Конструкция-перегородка чуть выше компонентов в комнате. В двухуровневых вариантах барная часть на 15-20 см выше рабочей зоны.
Высота предметов интерьераИсточник vplate.ru
Высокая стойка (1,1-1,3 м) подойдет для больших помещений. В компактных кухнях с низким потолком дизайнеры рекомендуют использовать модели до 90 см. Для квартиры-студии монтируют конструкции средних параметров (в пределах 1 м).
Высота барной стойкиИсточник yandex.ua
Кухня-гостиная с барной стойкой: примеры планировки
Заключение
Барная стойка – функциональная и красивая мебель, которая станет ярким элементом дизайна. Удобное и практичное решение используют для зонирования и создания отдельного рабочего (столового) места на кухне.
При выборе предметов интерьера акцентируют внимание на габаритах комнаты и физических параметрах домочадцев.
размеры, фото. Стандартные размеры барной стойки на кухне
Барные стойки на типовых российских кухнях давно уже стали обыденностью. Пережив бум популярности около 10 лет назад, они на какое-то время были преданы забвению, но сегодня снова возвращаются в дизайн обычных российских жилых квартир, домов и коттеджей. Их любят за удобство и компактность, за оригинальный вид и за возможность поэкспериментировать с дизайном всей кухни.
История барной стойки
Изначально бар — это атрибут питейного заведения, которое и получило свое имя от этой самой стойки. Бары в Америке обзавелись стойками во времена золотой лихорадки 18 века. Плита из камня или толстого дерева отделяла бармена от зала и давала ему укрытие на случай перестрелки или летящей в голову посуды и мебели.
Лихие времена в Штатах прошли, а стойки так и остались в каждом баре. Позже они перекочевали и в дома простых американцев, затем европейцев, а позднее и россиян.
Сегодня из ЛДСП, дерева, пластика, камня и даже из стекла может быть изготовлена барная стойка. Размеры, формы и даже разный функционал отличает их друг от друга.
Функционал
Когда барные стойки только появились в обычных американских домах, они несли ту же задачу, что и в современном баре — во время вечеринок хозяин, играя роль бармена, подавал гостям напитки, там же хранились бутылки с алкоголем, стаканы и прочий инвентарь. Однако позднее, на более ограниченных пространствах, стойки перестали быть самостоятельным объектом и стали частью кухни. Оказалось, что размеры барной стойки на кухне и ее высота очень удобны, чтобы быстро позавтракать или перекусить, выпить кофе на бегу. Сегодня барная стойка во многих домах попросту вытеснила кухонный стол — за ней обедают и ужинают, готовят и просто сидят с газетой и чашкой чая.
Со временем стойки вновь отделились от кухни, чтобы трансформироваться в кухонный остров — это высокий стол, по сути, барная стойка, в которую монтируют шкафы, варочные панели, духовки, раковины.
Удобство такого острова в том, что это и рабочая кухонная зона, и большой обеденный стол, и широкое поле для раскатывания теста, лепки домашних пельменей, готовки всей семьей или чего-то другого, столь же масштабного.
Типы стоек
По отношению к кухонному гарнитуру стойки можно подразделить на несколько типов:
- Пристенная.
- Стойка-перегородка.
- Остров.
Размеры барной стойки пристенного типа идеальны для маленьких кухонь. Ее узкий край крепится к стене, а длинный имеет подход с двух сторон, благодаря чему даже на маленькой кухне смогут уместиться несколько человек. Часто эта стойка является частью кухонной мебели и продолжением столешницы, также они комплектуются опорой, держащей стойку и верхний карниз. Карниз и опора также часто обыгрывается дизайнерами мебели — в карниз монтируются встроенные светильники или подвес для бокалов (привет первоначальной цели барной стойки), а к опоре корзины для фруктов или декора.
Стойка-перегородка может быть также пристенной, но у нее совершенно очевидная функция — перегородить или зонировать пространство.
Она часто применяется в больших помещениях совмещенной кухни-гостиной, где нужно как-то отделить собственно кухню и гостиную зоны. При этом размеры барной стойки на кухне-гостиной могут быть совершенно произвольными.
Барная стойка здесь имеет сразу несколько функций:
- Декоративную и зонирующую.
- Функцию стола для перекусов и бара.
- Продолжение рабочей зоны за счет большей высоты.
Остров — это отдельно стоящая барная стойка, которая вмещает в себя кухонные шкафы, встроенную бытовую технику, мойку. Это, по сути, отдельно стоящая часть кухонного гарнитура, которая используется и как рабочий, и как обеденный стол.
Размеры любой кухни подходят для размещения барной стойки, однако особое распространение она получила на маленьких кухнях. В них довольно сложно уместить и полноценную рабочую поверхность и обеденный стол, поэтому узкая и высокая барная стойка отличное решение.
Чтобы уместить ее на малогабаритной кухне, лучше делать ее одной высоты с основной столешницей, то есть 85-90 сантиметров.
Проектируя расположение стойки, не забывайте о рабочем треугольнике, то есть зоне между плитой, холодильником и мойкой. В этом треугольнике не должно быть никаких препятствий, поэтому ошибкой будет, например, отделять стойкой холодильник от рабочей зоны.
Также отличным решением для маленькой кухни станет барная стойка — продолжение подоконника. Сегодня можно заказать подоконную доску из любого материала и любой ширины. Подобная небольшая деталь может быть весьма функциональна. Такая стойка скроет под собой батарею под окном, а для расширения пространства к ней можно подобрать подходящие по высоте барные табуреты, которые полностью задвигаются под нее.
Маленькие кухни не терпят большой громоздкой мебели, поэтому для опоры барной стойки лучше выбирать хромированные трубки, они сделают стойку как бы парящей и легкой. Стулья к стойке можно подобрать из прозрачного пластика или на тонких хромированных ножках — они наименее заметны в пространстве, а значит, дарят ощущение большей пустоты и невесомости.
Барные стойки, размеры: высота
Высота барной стойки колеблется от 86 до 130 сантиметров. Такая разница объясняется функционалом стойки — чем она ниже, тем удобнее ее использовать как обеденный стол. Если стойка идет вровень с рабочей поверхностью кухни, то ее высота, как правило, около 86-90 см. Если стойка выполняет функцию перегородки, ее высота будет больше метра.
Возможны и разноуровневые стойки, когда одна ее часть равна по высоте кухонной столешнице, а другая выше и играет роль стола в компании высоких барных стульев.
Также при выборе высоты обращайте внимание на рост членов вашей семьи, если он выше среднего, то и высоту стойки можно брать до 130 сантиметров, соответственно, для невысоких хозяев это будет неудобным — высоту нужно делать около 1 метра.
Размеры барной стойки: длина
Длина стандартной стойки 120 сантиметров, но на самом деле она может быть совершенно любой, это зависит от предпочтений хозяина кухни и от ее размеров. При проектировании учитывайте, что для комфортного размещения одному человеку нужно не менее 60 см.
Обычно за стойкой сидят не более двух человек сразу, поэтому 120 сантиметров и стали универсальным вариантом.
Ширина
Стандартные размеры барной стойки по ширине, как правило, 55 см, конечно, можно и больше, однако это золотая середина. А вот делать ширину меньше 30 сантиметров не стоит — это будет неудобно и нефункционально. Стойка шириной 30 сантиметров тоже довольно узкая и не подойдет для полноценной сервировки обеда или ужина, но для малогабаритных квартир может стать идеальным вариантом.
Как подобрать барные стулья
Без стульев не обойдется ни одна барная стойка. Размеры специальных барных стульев — немаловажная деталь, ведь если к обычному столу подойдут любые, выбрать нужно лишь дизайн, то в случае с барной стойкой размер — первое дело.
Высота барных стульев, как правило, 75 или 85 сантиметров, но можно встретить в продаже и другие размеры, например в «Икеа», которая выпускает барные стулья высотой 63 см. Главное правило при выборе стульев — разница между стулом и столешницей должна быть не менее 30 см, иначе сидящему за стойкой человеку будет неудобно.
Для ориентира: если размеры кухонной барной стойки от 120 см, то берите стулья не ниже 85 сантиметров, а если стойка ниже, то достаточно 75-сантиметрового стула.
Барные стулья бывают со спинками или без, на четырех ножках или на одной, крутящиеся и стационарные. Стулья с высокой спинкой и подножкой максимально комфортны — на них можно сидеть довольно долго, не чувствуя, что ты завис на неудобной жердочке. А вот табуреты менее удобны, но экономят пространство — их легко задвинуть под стойку.
Мы постарались максимально подробно рассказать о том, какие имеет барная стойка размеры. Фото же, представленные в статье, помогут вам определиться с выбором этого популярного и востребованного элемента кухонной мебели.
Высота барной стойки для кухни: стандартная, какая должна быть, размеры,
Барная стойка на кухню: как выбрать правильно
Барная стойка не только украшает кухню, но и экономит пространство Барная стойка все чаще появляется в домах наших соотечественников.
Благодаря своей функциональности, она позволяет создавать современные и удобные интерьеры. Дизайн кухни с барной стойкой может быть разным – главное правильно выбрать ее, чтобы сохранить функциональность и расширить возможности кухни.
Зачем нужна барная стойка
Барная стойка в кухне студии считается обязательным элементом, делящим пространство на зоны На первый взгляд, барная стойка кажется вещью необязательной – многие думают, что она подходит только для дорогих интерьеров домов большой площади. На самом деле это не так. Барные стойки для кухни играют важную роль как раз в малогабаритных квартирах – более того, именно в них она бывает наиболее актуальна.
Барная стойка может быть:
- заменой обеденной зоны;
- играть роль разделителя между кухней и иным помещением – столовой, гостиной при сносе стены и расширении пространства при перепланировке малогабаритных квартир;
- играть роль собственно барной стойки;
- быть дополнительным местом хранения вещей на малогабаритных кухнях
Проект кухни, объединенной с гостиной с барной стойкой, предполагает тщательную проработку дизайна интерьера, ибо требуется подобрать мебель, соответствующую друг к другу по дизайну, техническим характеристикам, функционалу.
Виды барных стоек
Стеклянная барная стойка идеально подойдет для небольшой кухни, так как выглядит «невесомо» и визуально не будет скрадывать объем
Все варианты готовых стоек для кухни можно разделить на несколько групп:
- классические модели;
- островные модели;
- двухуровневые модели;
- мобильные модели
Классическая модель
Представляет собой столешницу, которая крепится на обычных консолях. Высота таких барных стоек составляет 1,1-1,15 м. Такая стойка хороша для малогабаритных квартир. Студия, оборудованная такой конструкцией, становится более функциональной и, в то же время, не такой загроможденной. Классическая барная стойка подходит небольшим семьям и может служить альтернативой обеденному столу.
Островная
Предназначена для квартир большой площади. В принципе, это может быть и большая квартира студия и кухня, совмещенная с гостиной или столовой. Если это угловая кухня с барной стойкой, то ее дизайн должен строиться таким образом, чтобы стойка стала объединяющим элементом.
Проект барной стойки в этом случае выполняется в виде отдельно стоящего острова. При этом, барная стойка может быть отдельным элементом, либо же быть частью рабочей зоны, вынесенной в остров. Она плавно перетекает в рабочую и варочную поверхность. Проект острова может быть П или Г-образным. Сама столешница стойки будет совмещать функции стола для гостей и рабочей зоны для резки продуктов.
Двухуровневые стойки
Включают в себя ярус столешницы и ярус полок. Возможен проект, когда отдельно имеется ярус столешницы, а ниже располагается рабочая поверхность. 1-2 уровневые стойки – самые практичные. Двухуровневые модели лучше всего выбрать, если предполагается при помощи барной стойки зонировать совмещенные помещения. В этом случае, к примеру, нижнюю столешницу используют как рабочий стол на кухне, а верхнюю – как стоку бара в гостиной или столовой.
Мобильная модель
Идеальна для маленьких кухонь. Такие варианты кухни с мобильной барной стойкой привлекают тем, что столешница выдвигается вбок, перемещаясь на стойке снабженной колесиками.
Мобильная барная стойка очень функциональна, ведь позволяет одним движением менять конфигурацию кухни Современная мода диктует свой стиль и барным стойкам — они становятся менее массивными и более строгими
Важно. Студия предполагает, что барная стойка играет роль разделителя — в этом случае лучше всего ориентироваться на многоуровневые стойки со стеллажами. Дизайн кухни с барной стойкой, совмещенной с иными комнатами или проходной, может быть разным, но здесь важно, чтобы стойка была выполнена из тех же материалов и в том же ключе, что и мебель в комнатах.
Как выбирать барную стойку
Материал может быть разным. Но главное здесь – подобрать модель, выполненную из такого же материала, что и у остальной кухонной мебели.
Критериев выбора стойки на самом деле не так много. Надо учесть:
- форму стойки;
- ее размер;
- материал;
- функции;
- дополнительные аксессуары.
Барные стойки с двумя столешницами — наиболее удобная разновидность Барную стойку можно сделать на основе окна в стене
Важно.
Не стоит выбирать стойку из дешевых материалов. В погоне за дешевизной придется пожертвовать качеством – такая стойка прослужит недолго. Лучше обратить внимание на ламинированный ДВП, МДФ, массив дерева.
Барная стойка на кухне — это идеальное выбор для небольшой семьи Размеры рассчитываются исходя из объемов кухни. Стандартная высота барной стойки на любой кухне не превышает 1,5 м. Наиболее распространенные размеры – 1,10-1,20 м.
По форме стойка может быть:
Линейная подходит для небольших пространств. Полукруглая и угловая лучше всего смотрятся в больших пространствах. При этом, чем больше размер барной стойки, тем больше и ее высота – стандарт в 1,5 м. лучше всего смотрится в планировке, где большая кухня совмещается с не менее большой столовой по площади. Полукруглые стойки могут служить полноценным баром.
К дополнительным аксессуарам относятся светильники, разнообразные полки, тумбы, выдвижные конструкции.
Важно. Лучше всего выглядит точечное освещение, смонтированное непосредственно в конструкции барной стойки.
Точечные светильники одновременно освещают рабочую зону и зонируют помещение.
Барную стойку можно приобрести в готовом варианте либо заказать ее изготовление в специализированной компании. В любом случае стоит руководствоваться основными принципами выбора, приведенными выше. Тогда барная стойка действительно станет неотъемлемой частью дизайна помещения дома и будет полностью отвечать потребностям его владельцев.
Внимание, только СЕГОДНЯ!
http://kitchenremont.ru
стандарты высоты от пола и ширины барного стола. Какой должна быть длина?
В западных странах барные стойки остаются популярным элементом кухонного интерьера на протяжении многих десятков лет. Однако в нашей стране такое решение начало распространяться только недавно. И теперь оно стремительно набирает популярность.
Какие размеры должна иметь такая мебель, рассмотрим в статье.
Особенности
Предназначение и особенности барных стоек, из-за которых многие люди мечтают приобрести ее себе в дом, включают несколько главных качеств.
- Наиболее популярны барные стойки среди хозяев, которые любят приглашать к себе в дом гостей и устраивать вечеринки. Стойка отлично подойдет как для спокойных посиделок с друзьями, так и для шумного праздника. Данный элемент интерьера позволит вам удобно готовить и подавать увеселительные напитки, добавляя при этом антуража происходящему. Пожалуй, каждый мужчина в своей жизни мечтал попробовать себя в роли бармена.
- Спустя непродолжительный срок эксплуатации в домашних условиях хозяева поняли, что стойка отлично подходит не только для распития напитков, но и для обычной трапезы. За ней можно удобно позавтракать или перекусить. А некоторым людям она может даже заменить собой кухонный стол.
А также на такой поверхности удобно готовить пищу. - Стойка может быть отличным дизайнерским решением, став одним из главных элементов необычного интерьера вашей кухни. При этом она может быть намного удобнее обычного стола в плане функциональности. Внутри барных стоек можно хранить, например, кухонную утварь и другие нужные вам предметы. С ее помощью можно разграничить или, наоборот, объединить разные комнаты.
По сути, данная мебель представляет собой простую столешницу с несколькими обязательными табуретами в комплекте.
Однако выбор подходящей стойки дело непростое, так как следует учесть множество нюансов.
Они отличаются друг от друга по множеству различных параметров, таких как размеры, дизайн и сочетаемость с общим видом комнаты.
Разновидности
В первую очередь следует учесть материал изготовления. Чаще всего встречаются комбинированные стойки. Отдельные детали могут быть выполнены из:
- дерева;
- камня;
- мрамора;
- стекла;
- пластика;
- гранита.
И также барные стойки имеют несколько разновидностей в зависимости от своего дизайна.
Благодаря этому можно выбрать подходящую для любой обстановки и пространства.
Перечислим наиболее распространенные виды.
- Островная – лучше всего впишется в просторную кухню. Размеры такой стойки могут различаться в зависимости от площади занимаемой комнаты.
Для удобства и повышенной функциональности в нее можно встроить кухонную плиту, посудомоечную машину, мини-холодильник и другую технику, какую позволят габариты.
- Пристенная – отличный вариант для маленьких кухонь. В некоторых случаях может и вовсе заменить собой стол. Один узкий край столешницы крепится к стене, второй – держится на ножке. Некоторые модели имеют возможность раскладываться, чтобы становиться больше, и экономить свободное пространство в сложенном положении. При помощи пристенной стойки можно разделить комнату на две зоны. Это хорошее решение для квартиры-студии.
- Встроенная – примыкает к прочей кухонной мебели. Как и предыдущая разновидность, отлично подходит для небольших кухонь. Такую стойку можно использовать как для трапезы, так и для удобной готовки. Так же, как и у пристенной стойки, один край держится на ножке, а второй крепится к гарнитуру.
При выборе стоит учесть, чтобы все элементы подходили друг к другу как по дизайну, так и по функционалу.
- Соединенная с подоконником – крепится к подоконнику, если он достаточно широк. Нередко многие хозяева использует широкие подоконники в качестве небольшого стола. Присоединение стойки добавит в комнату дополнительную поверхность. Ее также можно сделать складной, чтобы освобождать пространство, когда стойка не нужна. Дополнительным плюсом будет вид из окна во время трапезы.
- Комбинированная – как можно понять из названия, сочетает в себе качества и функции нескольких разновидностей. Чаще всего нижняя часть предназначена для эксплуатации, в то время как верхняя – является элементом декора.
Но важнейшим критерием выбора являются габариты барной стойки.
Далее мы подробнее поговорим о том, как правильно подобрать ее высоту, ширину и длину, а также расскажем, от каких характеристик вашего помещения нужно отталкиваться.
Стандарты высоты
Как правило, высота стандартной кухонной стойки колеблется от 80 до 130 сантиметров от пола. Самой распространенной сегодня считается высота 115 сантиметров. Но подходит она далеко не во всех случаях. Бывает и такое, что высота стойки выходит за пределы вышеуказанных стандартов.
Но это не столь важно, так как главным показателем является ее удобство. Поэтому в первую очередь необходимо учесть основные функции, которые она будет выполнять в вашем доме, а также место размещения. К примеру, если в вашей семье есть пожилые люди или маленькие дети, стоит отдать предпочтение небольшой высоте. Обратите внимание на средний рост всех домочадцев.
Если он не превышает 165 сантиметров, то максимальная высота стойки не должна превышать 110 сантиметров. Если – от 170 сантиметров и выше, то в этом случае 120-сантиметровая стойка является наилучшим решением.
Конечно, нельзя не учитывать и разновидность самой стойки. Давайте рассмотрим ее влияние на необходимую высоту на двух примерах.
Например, встроенная в гарнитур барная стойка. Следовательно, она должна быть согласована с высотой остальной мебели. Средняя высота кухонного гарнитура составляет 85-90 сантиметров.
Второй пример – стойка, используемая для разделения комнат или студии. В данном случае она является не только рабочей поверхностью, но и перегородкой. Поэтому такая мебель должна быть чуть выше. Минимальная высота составляет примерно 1 метр.
Сегодня становятся популярными разноуровневые модели.
Часть, расположенная в зоне кухни, по высоте соответствует гарнитуру.
А часть на территории другой комнаты – выше на 10-20 сантиметров. Барные стулья обычно располагаются с более высокой стороны.
Пристенная разновидность обычно имеет высоту от 110 до 125 сантиметров. Сочетание такого вида стойки и ее габаритов позволит сэкономить внутреннее пространство.
Какой должна быть длина?
Длина барной стойки может быть какой угодно в зависимости от доступного пространства, ваших личных предпочтений и возможностей. Стандартная, наиболее распространенная длина составляет 120 сантиметров. Но вы вольны экспериментировать. Не стоит забывать лишь о том, что стойка должна быть удобной для людей, которые проводят за ней время.
Норма пространства на одного человека – 62 сантиметра. Поэтому нужно взять в расчет количество людей, которые одновременно бывают за стойкой. А также придется учесть и физические данные этих людей. Крупному человеку может оказаться недостаточно обычной нормы, а значит, длину придется брать с запасом.
Человек не должен испытывать дискомфорта, сидя за стойкой.
Если же за ней собирается не так много народа, а всего 2-3 человека, можно приобрести короткую, но более широкую барную стойку. В таком случае несколько людей смогут расположиться друг напротив друга.
Ширина мебели
Ширина столешницы зависит от целей, в которых она будет чаще всего применяться. Средняя величина, установленная специалистами, составляет 55 сантиметров.
В случае если кухня имеет маленькую площадь, ширину можно уменьшить до 30 сантиметров. А более узкие стойки будут практически бесполезными, так как они лишатся дополнительной функциональности и будут неудобными даже для своего прямого назначения.
Поэтому запомните, что 30 сантиметров – это минимальная ширина.
В просторных кухнях и комнатах можно расположить более широкие барные стойки. Их максимальная ширина может достигать 90 сантиметров. Широкие столешницы отлично подходят для готовки или в качестве замены для обеденного стола. А также они позволяют нескольким людям одновременно разместиться с обеих сторон, не мешая друг другу.
Как выбрать правильные габариты?
Приобретение барной стойки является непростым решением.
Прежде чем его принять, вам придется взвесить множество за и против. Определенно такая мебель имеет весомые плюсы:
- не занимает много места;
- может заменить громоздкий стол;
- одновременно может заменить множество шкафов;
- отлично вписывается в квартиры-студии;
- придает особенность окружающему интерьеру.
Но и без минусов, увы, дело не обходится. К ним можно отнести:
- необходимость приобретения стульев соответствующей высоты;
- большая длина стойки, если в вашем доме проживает много людей;
- подбор стойки согласно дизайну и размерам прочей гарнитуры.
Ни один из этих недостатков не является значительным.
Если оптимальная длина зависит от количества домочадцев, то с шириной перебарщивать не стоит, все-таки она должна соответствовать барной стойке, не превращая ее в стол.
Специалисты рекомендуют по возможности выбирать столешницы с регулируемой высотой, что позволит подгонять ее под конкретные условия.
Согласно стандартам ГОСТа высота стойки для установки в заведениях общепита должна равняться 120 сантиметрам, однако в быту такая высота далеко не всегда является целесообразной.
Какими бы важными параметрами ни были высота, длина и ширина, выбор барной стойки ими не ограничивается. Ведь это не единственный элемент интерьера, который имеется на вашей кухне. К тому же вам потребуются специальные табуреты, а, может, и дополнительная мебель. Важно понимать, какую атмосферу должна подчеркивать стойка, будь это настоящий бар или паб. Или же вы захотите сохранить домашний уют.
В любом случае обойтись без барных табуретов не получится, ведь обычные кухонные стулья со стандартной высотой не очень удобны для применения в этих целях.
Высота правильных барных стульев должна быть чуть ниже стойки, но не более чем на 30 сантиметров. Самая распространенная высота табуретов колеблется от 70 до 85 сантиметров. Помочь с выбором может маркировка, которую производитель ставит на свои изделия:
- ТН – высокий табурет (95 см) для стоек от 125 до 135 сантиметров;
- ВН – низкий табурет (85 см) для стоек 110-115 сантиметров.
Однако такие стулья в основном используются в барах, кафе и других заведениях. Для домашней стойки может потребоваться нестандартное решение. Необязательно переплачивать за фирменные барные стулья.
Многие хозяева, руководствуясь необходимой высотой, приобретают обычные табуреты из дерева или пластика. Главное, чтобы они были удобными и устойчивыми.
А также часто встречаются модели с регулируемой высотой, что значительно упрощает процесс подбора. Механизм таких табуретов делится на два типа:
- винтообразный – наиболее простой и самый надежный механизм, который настраивается поворотом сиденья в разные стороны;
- газлифт – регулируется при помощи специального рычага, чья работа основана на пневматическом подъемном действии.
Итак, теперь вы знаете, какие стулья стоит выбрать для вашей стойки. А также вы сможете подобрать идеальную барную стойку в свою квартиру. А главное, что из такого приобретения всегда можно вынести определенную пользу. При этом оно будет радовать глаз на протяжении многих лет.
О том, как сделать барную стойку на кухню самостоятельно, смотрите далее.
Барная стойка на маленькой кухне: зачем нужна, размеры
Содержание статьи:
Вступление
Современная кухни с барной стойкой — это деталь планировки кухни или кухонной мебели, которая всегда шикарна и удобна. Используется ли барная стойка для непринужденной беседы с друзьями, для кофе по утрам или как площадка для вечеринок – современная кухня с барной стойкой чаще хорошая идея. В этой статье обсудим, зачем нужна и как смотрится барная стойка на маленькой кухне.
Что такое барная стойка на кухне
Все больше и больше людей хотят барную стойку, также известную как кухонная стойка или бар стойка на кухне.
Причины этого очевидны: еще несколько лет назад для подавляющего большинства наших соотечественников кухня в квартире или доме была только местом приготовления и быстрого приёма пищи. Основанная семейная жизнь протекала в других комнатах.
Сегодня ситуация кардинально изменилась. Сегодня кухня осталась центральным местом встречи семьи, и здесь проходят большинство встреч с друзьями, однако чаще для таких встреч уже не требуются обеденные зоны. Для быстрых завтраков по утрам и даже встреч с друзьями достаточно барной стойки с несколькими барными стульями.
Барная стойка это уменьшенный вариант обеденной зоны, где можно выпить кофе или перекусить. Высока стойки и сравнительное неудобство барных стульев не предполагает долгих посиделок и пышных празднеств. И к сожалению это, считается современным.
Помимо этого, классический обеденный стол занимает больше места, чем стойка. В небольших кухнях стол становится менее важным и часто заменяется современными вариациями гораздо меньших по размеру барных стоек.
При этом барная стойка на маленькой кухне создают на кухне уютное место для приема пищи.
Итак, барная стойка универсальный предмет интерьера, который можно удобно интегрировать практически в любую кухню. Для некоторых жизненных ситуаций – например, на небольших кухнях – барная стойка на маленькой кухне особенно хорошо подходит из-за их небольшого размера.
Барная стойка на маленькой кухне как часть мебели
К сожалению, в наших квартирах особенно старой постройки, кухня бывает довольно маленькой и на ней не хватает места для настоящего обеденного стола.
В таких случаях почти идеально обеденный стол заменяет небольшая барная стойка. Она занимает мало места и может функционально сочетаться с другими кухонными элементами.
Например, вы можете самостоятельно увеличить кухонную столешницу, опереть её на ножку и получить в результате простую барную стойку на кухне.
Если самоделка вас не устроит, нужно сразу приобрести кухню с барной стойкой — они есть в продаже.
Такая кухня не только имеет увеличенную рабочую поверхность, но создает обеденную зону с барными стульями.
На больших и просторных кухнях барная стойка часто отделяет разные зоны кухни друг от друга. В зависимости от ваших предпочтений вы можете использовать такую стойку, чтобы поесть с семьей, или вы можете использовать ее как буфет, чтобы освободить место за обеденным столом.
Барная стойка на маленькой кухне популярна, потому что занимает меньше места и стоящие гости занимают меньше пространства, чем за классическим столом со стульями.
Если вам нравится часто приглашать гостей, вы можете использовать стойку с парой барных стульев. Так вы можете предложить своим гостям места, не занимая дополнительных стульев у соседей и не садясь за стол слишком тесно. Кухонная барная стойка подойдет всем, кто любит общение.
Барная стойка на маленькой кухне в размерах
Кухонные столешницы относятся к наименее стандартизованной мебели. Поэтому почти каждую стойку можно спроектировать в соответствии с вашими предпочтениями.
Она может быть:
- Прямой,
- Изогнутый,
- Угловой,
- Размещенной на кухонной столешнице,
- Отдельно стоящий,
- С подстольем и полками или без них.
Вариантов почти столько же, сколько и кухонь. Однако, прежде чем дать волю своему творчеству, вам следует рассмотреть некоторые эмпирические значения размеров, которые хорошо зарекомендовали себя в повседневной кухонной жизни.
Идеальная ширина барной стойки
Правильная ширина стойки зависит в первую очередь от того, как вы собираетесь его использовать. Если вы планируете здесь только легкие закуски или напитки, достаточно ширины 40 сантиметров.
Если вы планируете регулярно обедать и ужинать за стойкой и, при определенных обстоятельствах, также хотите накрыть стол, то стойка должна быть от 50 до 60 сантиметров.
Правильная высота барной стойки
Высота барного стола зависит от роста тех, кто будет им пользоваться каждый день. Поэтому, если ваш рост отличается от среднего, вам определенно нужна индивидуальная высота стойки и здесь лучше посоветоваться с профессионалами.
Стандартная высота барной стойки на кухне от 113 до 115 сантиметров. Эта высота позволяет людям среднего роста, комфортно опираться предплечьями на стойку стоя. Кроме этого такая высота соответствует высоте барных стульев, которая обычно составляет от 60 до 85 сантиметров.
Барные стулья и барная стойка на маленькой кухне
Очень важно подобрать барные стулья с возможностью регулировки сиденья по высоте. Таким образом, каждый член семьи и каждый гость могут самостоятельно выбрать оптимальное положение для сидения.
С другой стороны, выбор стульев с обивкой и спинкой или даже с подлокотниками, зависит от планируемого использования стойки. Здесь действует следующее правило: чем чаще и дольше вы сидите за стойкой, тем удобнее должен быть барный стул.
Заключение
Итак, зачем и для чего нужна барная стойка на маленькой кухне.
- Во-первых, для экономии места и простора;
- Во-вторых, как дополнительная рабочая зона;
- В-третьих, для общения без тяжелого застолья;
- В-четвертых, возможно для зонирования пространства.

©remont-kuxni.ru
Еще статьи
Похожее
барная стойка или стол для кухни, преимущества
Центром кухни всегда был обеденный стол. Это обязательная часть кухонного гарнитура, без которой кухню нельзя было даже представить. Но жизнь меняется, меняются и традиции. Устойчивым трендом мебельной моды стала установка на кухне барной стойки как замены или дополнения к традиционному столу. Иногда это решение оправданно, но может стать и неудачным. Чтобы решить, что лучше – барная стойка или стол на кухню, нужно учитывать их особенности.
Содержание
- Преимущества и недостатки барной стойки
- Преимущества барной стойки
- Недостатки барной стойки
- Преимущества и недостатки обеденного стола
- Преимущества обеденного стола
- Недостатки обеденного стола
- Что учесть при выборе.
Преимущества и недостатки барной стойки
Барной стойкой называют стационарно закрепленную вытянутую столешницу высотой 100–120 см.
Раньше ее можно было увидеть только в барах или пабах, но стильная и функциональная мебель привлекла внимание западных дизайнеров, которые переместили ее в квартиры. Удобство оценили и в России. Сегодня, когда семейные праздники предпочитают проводить в кафе и можно обойтись без большого обеденного стола, удобной заменой стала компактная барная стойка.
Преимущества барной стойки
Компактная и функциональная мебель – оптимальное решение для малогабаритной кухни. Она занимает меньше места, чем обеденный стол, и разгружает центральное пространство. Есть и другие преимущества:
- расширение рабочей поверхности. Столешница может полностью заменить рабочую зону в маленькой кухне или стать ее дополнением. Иногда в нее даже встраивают варочную поверхность;
- эффективный инструмент зонирования. Удлиненная конструкция позволяет стильно и четко разделить пространство на зоны. С ее помощью в кухне обособляют рабочую и обеденную зоны, а квартиры-студии разделяют на кухню и гостиную;
- дополнительные места хранения.
Пространство под барной стойкой можно оборудовать полками, рейлингами и другими системами хранения. Также можно оборудовать пространство над столешницей, например прикрепить к вертикальной штанге карусели для бокалов, полочки для сувениров и прочих мелочей.
Недостатки барной стойки
Главная особенность стойки – высокая столешница, поэтому и стулья должны иметь соответствующую высоту. Если в семье есть пожилые люди, им будет дискомфортно пользоваться такой мебелью, а для маленьких детей попытка забраться на высокий стул может закончиться травмой. Кроме этого, барная стойка имеет ограниченную вместительность. За небольшой столешницей смогут комфортно расположиться не более 4 человек. Есть ограничения и по дизайну: барная стойка органично впишется в хай-тек, лофт и другие современные стили, а вот рядом с гарнитуром в стиле классика или прованс может выглядеть диссонансно.
Преимущества и недостатки обеденного стола
Независимо от изменений моды, обеденный стол по-прежнему востребован.
Современный рынок предлагает большое количество разнообразных моделей – от складных пластиковых для малогабаритных квартир до монументальных деревянных конструкций для просторных кухонь-столовых.
Преимущества обеденного стола
Очевидными преимуществами обеденного стола являются:
- вместительность. В отличие от барной стойки, рассчитанной на 3–4 человека, за ним может с комфортом разместиться большая компания;
- мобильность. Стол в любой момент можно передвинуть в другое место, в отличие от стойки, которая в большинстве случаев устанавливается стационарно.
Недостатки обеденного стола
Основным минусом стола является то, что он требует много места. Согласно стандартам, на одного человека за столом должно отводиться не менее 60 см ширины и 40 см глубины. Чем многочисленней семья, тем больших размеров должна быть столешница. Но для небольшой семьи можно найти подходящую модель стола даже для малогабаритной кухни.
Это может быть квадратный или угловой стол, который компактно поместится в углу. Также можно выбрать складную модель или установить столешницу, откидывающуюся от стены.
Что учесть при выборе
Решая, что выбрать – стол или барную стойку, нужно учитывать в первую очередь размеры кухни и состав семьи и только после этого обдумывать дизайн интерьера. Барная стойка – это современное стильное решение для зонирования кухонного пространства, очень популярное в квартирах-студиях, и компактная замена обеденного стола для маленьких кухонь. Но есть и ограничения. Барная стойка будет неудобна, если:
- в семье больше четырех человек;
- в семье есть маленькие дети и пожилые люди.
Обеденный стол позволит комфортно разместиться большой компании, но потребует много места, что станет проблемой для малогабаритной квартиры. Владельцы просторной кухни могут установить и полноценную обеденную группу, и барную стойку.
Стол будет местом для семейных ужинов, а стойка – эргономичным вариантом для быстрого перекуса и одновременно стильным элементом обстановки.
Мебельная Фабрика «Мария» предлагает широкий ассортимент кухонь европейского дизайна и качества. Мы изготовим кухонный гарнитур в любом стиле, с обеденным столом или барной стойкой. Обратитесь к дизайнеру, и он разработает для вас индивидуальный проект, отвечающий всем пожеланиям.
Автор: МФ Мария
Какая должна быть высота барной стойки на кухне: стандарты, рекомендации, фото
Барная стойка способна обогатить собой кухонное пространство, поскольку она является одной из интереснейших и колоритных деталей интерьера. Однако неправильно подобранная модель, обладающая неуместной высотой и длиной, будет выглядеть: либо чрезмерно громоздкой конструкцией на маленькой кухоньке, либо наоборот – занимать минимально возможную площадь в просторном помещении, нарушая тем самым общую эстетику комнаты.
Чтобы избежать подобного конфуза, прежде всего, рекомендуется определиться с размерами будущей стойки. Сколько должна составлять высота барной стойки? Как это сделать, и есть ли какие-то стандарты, которые следует учитывать при выборе? Скоро узнаете!
Высота моделей стойки
Выбирая дизайн барной стойки, следует учитывать её практичность в использовании и актуальность в общей дизайнерской задумке. Модельный ряд барных стоек современности столь разнообразен, что выбрать наиболее эргономичную конструкцию, всецело подходящую вам по высоте и основным габаритам, довольно несложно.
Барная стойка на кухне (фото)
«Остров»
Островная модель просто изумительно впишется во вместительное и дорого-оформленное кухонное помещение. На необычном и функциональном «острове» можно с успехом разместить стильную сенсорную электроплиту, современный духовой шкаф или шикарную мойку, либо добиться сочетания всех трёх (и более) элементов в комбинированном варианте.
Саму барную стойку подобного типа можно разделить на две зоны: рабочую область, где хозяюшка воплощает в жизнь свои кулинарные задумки, и обеденную, где, собственно, и восседают голодные домочадцы в ожидании их завтрака. Вторую часть, как правило, слегка приподнимают, добиваясь тем самым эффекта «барной стойки».
Барная стойка-остров
Размеры и оригинальная форма «острова» напрямую зависят от его функционального предназначения и нужд хозяина. Однако существует и оптимальный вариант – это стойка, занимающая 2,1 м в длину, при этом высота такой конструкции не превышает метра.
Зачастую добротный «остров» может подразумевать собой и чисто декоративный контекст. В таком случае его габариты сужаются до 0,6 м в высоту и 1,2 м в длину.
Нередко используется такая высота барного «острова», которая эквивалентна высоте столешницы кухонного гарнитура: в подобном оформлении стол используется для готовки.
Однако высота барной стойки на кухне может соответствовать и уровню барных стульев, – в этом случае стойка используется по своему прямому назначению.
Совместив эти два направления, получим двухуровневую модель.
Стойка-отросток
Подобная конструкция легко пропишется на самой малогабаритной кухне, предоставив свою столешницу в качестве альтернативы обеденному столу. Барная стойка-отросток пришла к нам с Запада, являя собой лучшие традиции и веяния популярного фаст-фуда. Как правило, её конструкция совмещена с общим кухонным гарнитуром, однако расположение её довольно своеобразное: ставится такая модель перпендикулярно основной кухонной композиции.
Оптимальная высота такой стойки равна 0,9 м. В этом случае барный «отросток» можно будет применять и в качестве разделочного стола. По сути, данная модель представляет собой стандартную мини-стойку, обладающую достаточным количеством функциональных и эстетических качеств, чтобы разместиться на любимой кухне-дюймовочке. Для более комфортных и неторопливых трапез, а также быстрой готовки – лучше всего подбирать стулья для бара, высота которых не превышает 0,6 м.
Барная стойка-отросток (фото)
Стойка-отросток является одной из самых лаконичных и максимально простых конструкций, однако визуальное восприятие такой модели относит её к категории лёгких и «воздушных» изделий, способных отлично зонировать кухню-студию.
Мини-стойка не отягощает помещение, создавая для него чарующую пространственную иллюзию. Традиционная мини-стойка крепится хромированной трубой к полу и потолку, на самой трубе размещаются разные бокалодержатели, фруктовницы, всевозможные подставки, «сеточные» круговые полочки и другие интересные аксессуары.
Пристенная стойка
Конструкция пристенной барной стойки является выгодным решением для небольшой семьи, имеющей вдобавок узкое или же очень маленькое кухонное помещение. Если же габариты кухни позволяют, то, конечно, можно поместить в уголок небольшой обеденный столик и накрывать его по выходным. Но, купив компактную пристенную стойку, вы сможете оборудовать её и в качестве полноценного и стильного стола.
Столешница конструкции может стоять как на одной, так и на обеих ножках, а может и просто «парить» в воздухе. Стандартный вид пристенной модели – узенькая и длинная столешница, которая:
- либо крепится на самой стене;
- либо просто вплотную к ней фиксируется.

Независимо от крепления, обычно этот вид стойки имеет стандартную высоту – 1,2 метра, то есть подобная модель может быть и высокой, однако габариты конструкции необходимо подбирать сообразно размерам кухни.
Пристенная барная стойка для небольшой кухни
Есть и отдельные раскладные модели мини-пристенных стоек, которые можно приспособить под кормление ребёнка. Это очень экономный вариант и смотрится такой элемент довольно эстетично и функционально. Наиболее удобным моментом является универсальность монтажа «детской» стойки: поскольку она, как правило, занимает минимум пространства, установить её можно на любой высоте.
Барная стойка на подоконнике
Барная конструкция, совмещённая с подоконником, либо просто прикреплённая к нему, отлично экономит пространство. Такое дизайнерское решение гармонично дополнит интерьер маленькой кухни. Модель, прикреплённую к подоконнику, можно оборудовать функциональным раскладным механизмом и выдвижными ножками-опорами.
Если в вашей квартире имеются оконные проёмы, обладающие довольно существенной глубиной, то не эксплуатируемый подоконник способен занять бессмысленно много места на кухне. Разумеется, можно оборудовать на нём дивный зелёный уголок, однако комнатку, зажатую в определённые габаритные рамки, лучше всего использовать более рационально.
По этой причине единственно оптимальным и разумным выходом из ситуации станет использование подоконника в ином виде: в роли обеденного столика с восхитительным видом за окном, либо, если высота позволяет, в качестве аналога барной стойке. Можно приобрести и откидную модель. Более широкую часть такой столешницы хозяйка на время убирает, к примеру, пока занята готовкой, а потом поднимает и сервирует для любимых домочадцев.
Барная стойка, совмещенная с подоконником (фото)
Откидной столик необычайно удобен при подоконнике со значительной широтой: в разложенном варианте подобный столик-стойка становится больше, поскольку к ней дополнительно присоединяется и обширная «подоконная» поверхность.
Высота такой модели естественным образом должна соответствовать высоте подоконной части. Единственным возможным неудобством в подобном совмещении стойки и подоконника будет недостаточная высота последнего.
Стандарты высоты
Стандартная высота классической модели барной стойки в квартире редко превышает 1,15 м. Для такой барной стойки, как правило, приобретаются изящные высокие стулья с эргономичными подставками для ног, надёжные табуреты, либо стильные полукресла, гармонично дополняющие её облик. Однако порой это правило нарушается: высота стойки может совпадать с высотой эксплуатируемой рабочей столешницей кухонной тумбы или обеденного стола. По этой причине столь востребованными сегодня считаются невысокие барные стулья, либо сиденья с регулируемой высотой.
Поклонники экстравагантного и яркого стиля предпочитают изрядно высокие модели со столешницей. Какая высота такой барной стойки? Это 1,2 м от пола и выше. Дизайнеры советуют применять это оформление только в случае зонирования кухонной части и столовой, однако и это «разрешение» не всегда уместно.
К примеру, в комнате, обладающей низкими потолками, чрезмерно высокое изделие меблировки станет слишко громоздким элементом.
Оптимальным решением, пригодным для всех видов кухонь, является стандарт высоты барной стойки, равный 0,9 м. Однако самым компромиссным вариантом станет эстетическая комбинация столешниц, которые рекомендуется устанавливать на 1,15 м и 0,9 м над полом. Конечно, не обязательно соблюдать классические стандарты высоты и добиваться традиционного оформления стоек, которые можно увидеть в роскошных ресторанах и доступных кафешках.
Барная стойка на современной кухне
Домашние барные стойки и табуреты могут располагаться значительно ниже традиционных моделей. Низенькие столики на ножках и изящные, подобранные со вкусом барные стулья – наполнят помещение особым теплом и приятной атмосферой, они весьма удобны, а также безопасны в применении. Высота модели, произведённой на заказ, варьируется от 0,7 до 12,5 м.
Выбирая подходящий уровень столешницы, следует учесть верное расстояние до других окружающих предметов. Дополнительно стоит позаботиться и о пропорциях барного комплекта: идеальная разница между уровнями столешницы и стульев составляет 0,3 м. Нередко сначала приобретаются стулья, а уже потом барная стойка, подогнанная под оптимальные габариты.
Таким образом, высота барной стойки должна выбираться с расчётом общих размеров кухонного помещения, личных предпочтений и исключительного предназначения отдельной модели. Ваша кухня станет по-настоящему «статусной» и стильной благодаря использованию в интерьере подходящей по габаритам барной конструкции.
Размеры барной стойки для завтрака: высота и глубина
Возможно, вы подумываете о том, чтобы добавить на кухню барную стойку. Все мечтают о большем встречном пространстве, не так ли? Но когда вы пытаетесь спланировать реконструкцию, важно знать размеры всего, что вы хотите включить. Можете ли вы даже установить барную стойку? Мы проконсультировались с мастерами по ремонту кухонь, и ответ довольно прост.
Барные стойки для завтрака чаще всего имеют высоту 42 дюйма, хотя другие размеры имеют высоту 30 или 36 дюймов.Барная стойка должна быть около 24 дюймов в глубину. Убедитесь, что вы оставили достаточно места за табуретками. Это оставляет место для ходьбы и для людей, чтобы вставать и спускаться по мере необходимости (около трех футов в идеале).
Продолжайте читать, пока мы подробно расскажем обо всех этих измерениях. В этой статье объясняется разница между высотами, какой вы хотите, и какие табуреты использовать. Вы также найдете информацию о том, сколько места необходимо для ног и ходьбы, как украсить барную стойку, подходит ли вам барная стойка и многое другое!
Насколько высока стандартная барная стойка?
Барные стойки для завтрака обычно имеют высоту 30, 36 или 42 дюйма (наиболее распространенный вариант — 42 дюйма).В зависимости от расположения и остального дизайна кухни, вы можете сделать барную стойку такой же высоты, как и любые другие соседние или близлежащие стойки.
Если барная стойка расположена как продолжение столешницы, высота между ними должна быть одинаковой.
С другой стороны, если барная стойка находится на противоположной стороне стойки, вы можете захотеть, чтобы она была немного выше или ниже. В этой установке прилавок функционирует как место для подготовки. Барная стойка напротив — место для приема пищи.Когда он выше (или ниже), он определяет два пространства как отдельные. Многим людям также нравится, когда место для еды находится выше, потому что оно естественным образом скрывает беспорядок, оставленный на столешнице для приготовления пищи. Вот пример барной стойки с высокой поверхностью для еды и нижней поверхностью для приготовления пищи.
Тридцать дюймов в высоту называют высотой стола. Поверхность высотой 36 дюймов считается противовесом. И окончательная высота, 42 дюйма, обычно называется высотой стержня.В то время как 42 дюйма чаще встречаются в барной стойке для завтрака, можно использовать любую из этих высот.
Например, в доме, где кто-то находится в инвалидной коляске, наиболее практичным вариантом является стойка с более низкой высотой стола. Дети также могут с большей легкостью пользоваться нижней стойкой.
Насколько глубока стандартная барная стойка?
Поверхность стержня должна быть 24 дюйма в глубину. Чуть больше и становится трудно дотянуться. Барная стойка также требует навеса. Это пространство между основанием стойки и краем стойки, где ваши ноги отдыхают, когда вы сидите.
Свес
Выступ обычно составляет от 12 до 18 дюймов. Если ваша семья очень высокая, вам понадобится больший свес (что означает больше места для ног). Высокие барные стойки и табуреты требуют меньше места для ног (около 12 дюймов). Сиденья с противовесом потребуют 15 дюймов свеса. Нижняя настольная барная стойка требует наибольшего пространства для ног (18 дюймов). Подробнее о факторах, влияющих на вылет, читайте здесь.
Зазор кресла
Расстояние от барной стойки до спинки табурета должно быть 18 дюймов, чтобы гости могли встать или сесть.Еще от 18 дюймов до трех футов, оставшихся позади табуретов, означает достаточное пространство для людей, чтобы ходить вокруг тех, кто сидит в баре, без пробок.
Планировка комнаты влияет на то, сколько места необходимо оставить за стульями. Например, если через комнату проходят другие маршруты для трафика, не так важно оставлять много места. Однако, если за табуретами есть стена и нет другого способа пересечь комнату, вам нужно много места, чтобы движение в комнате не останавливалось всякий раз, когда бар используется.
Табуретки для барной стойки
Барные стулья или барные стулья являются наиболее распространенными местами для сидения за барной стойкой. Барные стулья имеют высоту примерно от 28 до 30 дюймов, что дает около фута пространства между стулом и 42-дюймовой стойкой.
Встречные табуреты имеют высоту около 24 дюймов. Это подходит для меньшей (36 дюймов) барной стойки для завтрака и, опять же, оставляет рекомендуемый зазор в футах между табуретом и столешницей.
Этот классический стиль сиденья в виде седла является примером высоты стойки.
Если вы не хотите выбирать между ними, есть также настраиваемые параметры. Их можно перемещать вверх или вниз, чтобы использовать как барные стулья или барные стулья.
Просто убедитесь, что независимо от того, что вы выберете, высота барной стойки подходит. Необходимо оставить около одного фута между верхней частью табурета и нижней частью столешницы (но не намного больше, иначе слишком сложно дотянуться до стойки сидя).
Сколько места вам нужно на человека за барной стойкой?
Для достаточного пространства и оптимального комфорта оставьте не менее 24 дюймов для каждого человека за барной стойкой.
Для барных стульев с подлокотниками требуется немного больше места (около двух дюймов), чем для стульев без них, поэтому вы можете увеличить расстояние между сиденьями до 26 дюймов (или более). Подумайте о людях, которые чаще всего будут пользоваться барной стойкой. Ребенку, например, не потребуется столько места, сколько более высокому взрослому мужчине.
Должен ли я иметь барную стойку?
Если все вокруг вас установили новую барную стойку со своим последним ремонтом, но вы просто еще не проданы, это нормально.Добавление барной стойки на вашу кухню дает много преимуществ, но они подходят не для каждой ситуации. Некоторые плюсы включают в себя:
- Дополнительное рабочее пространство, которое является желанным товаром на многих кухнях. Никто не хочет тратить много денег на переделку кухни только для того, чтобы понять, что им все еще не хватает места на столешнице!
- Дополнительная поверхность для еды, особенно если вы хотите присматривать за детьми, которые едят, пока вы работаете на кухне.

- Больше места для развлечений.На вечеринках люди, как правило, тяготеют к таким поверхностям, как столы и прилавки. Еще одна хорошо спроектированная зона с сиденьями дает людям больше места, чтобы посидеть, пообщаться и пообщаться.
Однако они подходят не для всех помещений. Кухни, которые имеют более квадратную форму, как правило, обнаруживают, что легче вписать в комнату остров, чем барную стойку. Барная стойка для завтрака также хорошо вписывается в переходные пространства между кухней и другой комнатой, но это не в каждом доме.
Некоторые люди просто предпочитают кухонный остров.Они находят это более полезным и не имеют места для обоих. Кухонный остров может добавить больше места для хранения, чем барная стойка. Например, на этом острове есть три ящика, две полки и полка для специй.
Нажмите здесь, чтобы увидеть этот остров на Amazon.
Еще одним преимуществом островков является то, что, хотя они и не обеспечивают поверхность для еды, на них достаточно места для приготовления пищи.
В некоторых домохозяйствах достаточно места для приготовления пищи важнее, чем еще одно место, где можно посидеть и поесть.Оцените свои собственные потребности, чтобы сделать лучший выбор для вас.
Что вы кладете на барную стойку?
Существует множество отличных способов украсить барную стойку. Немного подумав, вы можете не допустить, чтобы это была еще одна безвкусная кухонная поверхность. Внешний вид может быть настолько смелым, уникальным или даже настолько громким, насколько вы хотите, что действительно поможет выделить его в море прилавков.
Фары
При правильном освещении, привлекающем внимание, вы действительно можете создать очаровательное и яркое пространство, которое стоит особняком.Рассмотрите эти великолепные многослойные светильники для деревенского вида.
Нажмите здесь, чтобы увидеть свет на Amazon.
Декор столешницы
Существует множество мелких предметов декора, которые могут персонализировать пространство и сделать его подходящим для вашего дома.
Небольшие декоративные сосуды, керамические фигурки и другие предметы, которые добавляют изюминку, но не занимают слишком много места, делают этот выбор «правильным».
Нажмите здесь, чтобы увидеть эту центральную часть столешницы на Amazon.
Раскрасьте цветы или вазу с фруктами
Цветы — это веселое и гостеприимное прикосновение. Для ярких красок и свежего аромата добавьте вазу с цветами. Этот набор из трех предметов имеет небольшой размер, а это означает, что вы все еще можете видеть по обеим сторонам барной стойки.
Нажмите здесь, чтобы увидеть этот набор ваз на Amazon.
Если вы предпочитаете более функциональный и практичный способ украшения, как насчет вазы с фруктами? Вы можете заполнить его красочными фруктами, чтобы ваши гости могли насладиться им, что сделает его более приятным для глаз.
Нажмите здесь, чтобы увидеть эту вазу с фруктами на Amazon.
Арт.
Конечно, вы можете использовать любые мелкие арты.
Однако самый простой способ — подобрать набор принтов. В наборе из четырех-шести отпечатков это кусок пирога, чтобы покрыть поверхность барной стойки. Поскольку это часть набора, вам не нужно заниматься смешиванием и сопоставлением самостоятельно. Еще один вариант — семейные фотографии в рамках.
Нажмите здесь, чтобы увидеть этот набор ручной работы на Amazon.
Свечи
Добавьте немного тепла (правда) с красивым набором свечей для классического стиля.
Нажмите здесь, чтобы увидеть этот набор свечей на Amazon.
Подводя итог
Барная стойка для завтрака имеет относительно стандартный размер, хотя высота может варьироваться. Высота столешницы 30 дюймов лучше всего подходит для детей или людей с ограниченной подвижностью. Бары столешницы 36 дюймов, а бары 42 дюйма. Сорок два дюйма являются наиболее распространенными, но разная высота может лучше подойти для вашей кухни (или для тех, кто использует ее чаще всего).
Глубина в двадцать четыре дюйма оставляет достаточно места для еды, не слишком трудно дотянуться до нее.
Оставьте около 24 дюймов между каждым сиденьем, чтобы не было тесно. Вам также понадобится не менее трех футов между краем бара и стеной, чтобы обеспечить достаточно места для сидения и движения по мере необходимости.
Стандартные размеры барной стойки для завтрака (с чертежами) — Модернизированный дом
Мечта каждого домовладельца — иметь больше места на столешнице. Когда появляется возможность переделать вашу кухню, вы хотите быть в курсе стандартных размеров и того, что включить.Используйте это как руководство, чтобы спланировать барную стойку, которая лучше всего подходит для вашей кухни и пространства.
Обычно барная стойка для завтрака имеет высоту 42 дюйма, но есть варианты высотой 30 и 36 дюймов. Барная стойка должна быть глубиной 24 дюйма. Если у вас есть барные стулья, оставьте за ними не менее 3 футов свободного пространства.
Каков средний размер барной стойки?
Наиболее распространенная высота барной стойки для завтрака составляет 42 дюйма от пола до верхней части барной стойки.
Есть также более короткие варианты: 30 дюймов в высоту, что соответствует высоте стола, и 36 дюймов в высоту, что соответствует высоте стойки.Высота барной стойки для завтрака, в конечном счете, зависит от ваших предпочтений.
Размеры стандартной барной стойки для завтрака
Барная стойка для завтрака популярна в открытых планировках, так как позволяет проводить неформальные встречи и проводить время с семьей. Кухня, возможно, является самой загруженной комнатой в доме и обеспечивает большую часть места для хранения и прилавка. Ваша барная стойка для завтрака должна быть функциональной, но при этом создавать пространство для общения.
При планировании барной стойки необходимо учитывать следующие параметры: высоту барной стойки, глубину барной стойки, выступ и расстояние между стульями.
Высота стойки для завтрака
Барные стойки для завтрака обычно имеют высоту 30, 36 или 42 дюйма. 42-дюймовые барные стойки для завтрака являются наиболее распространенной высотой.
Чтобы быть функциональными, прилавки должны быть не менее 30 дюймов в ширину и от 28 до 34 дюймов над полом.
При выборе высоты стойки не существует универсального решения, поскольку каждая высота должна соответствовать чьим-то индивидуальным потребностям. Невероятная высота бара также является опцией при объединении рабочей поверхности и поверхности для приема пищи.
Барная стойка для завтрака с рабочей поверхностью высотой 36 дюймов и обеденной поверхностью 30 дюймов может оказаться полезной. Это хорошо для пожилых людей, так как позволяет использовать стандартные кухонные стулья на обеденной поверхности. Эта высота также подходит для людей в инвалидной коляске.
36-дюймовое рабочее пространство и обеденная зона не создают различий между двумя пространствами. Эта высота барной стойки позволяет использовать барные стулья высотой от 24 до 27 дюймов.
Источник: Dimensions.com
36-дюймовое рабочее пространство и 42-дюймовая обеденная зона скрывают предметы на рабочем месте, но требуют барных стульев высотой от 28 до 33 дюймов.
Глубина стойки для завтрака
Поверхность барной стойки для завтрака должна быть 24 дюйма в глубину. Если полоса больше, до нее может быть трудно дотянуться. Барная стойка также требует навеса.
Свес
Выступ — это пространство между основанием стойки и краем стойки. Здесь ваши ноги отдыхают, когда вы сидите, а также здесь вы храните свои стулья, когда они не используются. Свес зависит от высоты барной стойки и стиля стульев, которые вы будете использовать.
В 30-дюймовой барной стойке для завтрака используются более низкие сиденья, требующие свеса в 18 дюймов для размещения ног в согнутом положении. Вы можете сочетать барную стойку для завтрака с высокими стульями или барными стульями. Для них требуется меньше места для ног, от 12 до 15 дюймов, потому что ваши ноги более вытянуты, когда вы сидите.
| ВЫСОТА ОСТРОВА | КОНСТРУКЦИЯ |
| 42 дюйма | 12 дюймов |
| 36 дюймов | 15 дюймов |
| 30 дюймов | 18 дюймов |
Зазор стула
От барной стойки до спинки стула должно быть 18 дюймов.
Это оставляет достаточно места для того, чтобы вы могли удобно садиться и вставать со стула. Оставьте дополнительное пространство от 18 дюймов до 3 футов за стулом, чтобы другие могли ходить, когда люди сидят.
При выборе подходящей высоты стула оставьте расстояние от 10 до 12 дюймов между сиденьем и нижней частью барной стойки.
Барный стул Размеры
Барные стулья бывают разных размеров. Барный стул, который вы выберете для своего бара, будет зависеть от его функции и использования. Наиболее распространенной высотой табуретов являются табуреты для прилавка, барные стулья и высокие барные стулья.
Табуреты для прилавков имеют высоту от 23 до 28 дюймов, а барные стулья — от 29 до 32 дюймов в высоту. Высокие барные стулья имеют высоту от 33 до 36 дюймов. Всегда оставляйте не менее 10 дюймов между верхней частью сиденья стула и нижней частью стойки.
Источник: Dimensions.com
Сколько места нужно каждому человеку за барной стойкой?
Планируя барную стойку, подумайте о людях, которые будут пользоваться барной стойкой чаще всего.
Не забудьте оставить не менее 24 дюймов пространства для каждого человека, сидящего за барной стойкой.Если у ваших барных стульев есть подлокотники, вам понадобится еще около 2 дюймов пространства.
Стойка для завтрака против барной стойки
Стойка для завтрака имеет ту же высоту, что и столешница, 36 дюймов в высоту. Каждому человеку нужно 24 дюйма ширины и 15 дюймов глубины, чтобы удобно сидеть и есть. Выбирая табуретки для завтрака, выберите высоту 24 дюйма и оставьте 15 дюймов пространства для ног.
Барная стойка для завтрака имеет стандартную высоту 42 дюйма. Как и прилавок для завтрака, каждому человеку нужно 24 дюйма ширины и 15 дюймов глубины, чтобы удобно сидеть.Барные стулья для завтрака должны быть 30 дюймов в высоту и оставлять 12 дюймов пространства для ног.
Что такое кухонный треугольник?
Концепция кухонного треугольника была введена в 1940-х годах как инструмент для принятия решения о том, где разместить плиту, холодильник и раковину.
Каждая сторона кухонного треугольника должна быть больше 4 футов, но меньше 9 футов. Длина сторон треугольника не должна превышать 26 футов.
Эта концепция может дать вам хорошее представление о том, как спланировать барную стойку для вашего помещения.
Другие стандартные кухонные зазоры
Используя концепцию кухонного треугольника для планирования кухонного пространства, учитывайте размеры основных бытовых приборов.
Зазор для раковины
При установке раковины в барную стойку помните об этом. С одной стороны раковины должно быть 36 дюймов пространства, а с другой — 18 дюймов. Вы можете интегрировать дополнительные 18 дюймов пространства в раковину в качестве сушилки.
Если у вас мало места на кухне, сушилка над раковиной может служить местом для сушки посуды.
Зазор зоны подготовки
Если вы готовите за барной стойкой, вам понадобится место для приготовления пищи. Необходима рабочая поверхность 36 дюймов и 24 дюйма глубиной рядом с раковиной.
Вы можете комбинировать это с 36-дюймовым зазором раковины, необходимым для небольших кухонь.
Допуск для посудомоечной машины
Если вы планируете установить посудомоечную машину рядом с барной стойкой, разместите ее рядом с раковиной. Также полезно, если это близлежащие шкафы, когда вы расставляете посуду.Тогда вам не придется ходить по кухне каждый раз, когда вы хотите что-то убрать.
Тем не менее, убедитесь, что дверца посудомоечной машины находится на расстоянии не менее 21 дюйма от ближайших шкафов. В идеале вы должны стоять рядом с посудомоечной машиной, а также у открытых шкафов, когда дверца посудомоечной машины опущена.
Зазор варочной поверхности
Рекомендуется площадь поверхности 15 дюймов и 12 дюймов по обе стороны от варочной поверхности. Если варочная поверхность находится на острове, столешница должна выступать за варочную поверхность не менее чем на 9 дюймов.
Вы не хотите, чтобы ваша кухня загорелась во время приготовления пищи.
Рекомендуется оставить 24 дюйма по вертикали над варочной поверхностью до негорючей поверхности над ней. Если поверхность над зоной приготовления пищи является горючей, требуется свободное пространство не менее 30 дюймов.
Зазор холодильника
Выбирая место для холодильника, обратите внимание на распашную дверь. Ваш холодильник должен открываться на сторону, обращенную к основной зоне приготовления. Если холодильник стоит у стены, а дверца открывается в сторону стены, рассмотрите возможность добавления буферного пространства.
Если вы не предусмотрели буферное пространство, такое как тонкий шкаф, дверь может не открыться полностью.
Связанные вопросы
Насколько далеко может выступать столешница без поддержки?
Стандартное правило установки гласит, что 70% общей ширины столешницы должны поддерживаться шкафами, коленчатыми стенками или выступами. Различные материалы столешницы имеют разные требования к поддержке.
Столешницы с твердой поверхностью, такие как фанерный настил, могут иметь выступ 6 дюймов без дополнительной поддержки.
3-сантиметровый искусственный камень может выдержать 14-дюймовый выступ без дополнительной поддержки. Кроме того, 3 сантиметра гранита не должны превышать 10 дюймов выступа без опоры.
Какой идеальный размер кухни?
Средний размер дома в Соединенных Штатах составляет около 1500 квадратных футов, включая квартиры и таунхаусы. Средний размер вновь построенного отдельного жилого дома составляет 2600 квадратных футов.
Обычно кухня занимает от 10 до 15% площади дома.Это означает, что для дома площадью 1500 квадратных футов площадь кухни должна составлять от 150 до 225 квадратных футов. Тем не менее, размер вашей кухни в конечном итоге будет зависеть от возраста дома и от того, сделали ли вы какие-либо обновления.
Конечно, при планировании кухни следует также учитывать личные предпочтения и образ жизни. Например, если вы любите готовить, вы можете выделить больше места в своем доме для кухни. И наоборот, если вы часто обедаете вне дома, то вам может хватить и более минималистичной кухни.
Связанные статьи
Стейси Рэндалл
Стейси Рэндалл — жена, мать и внештатный писатель из NOLA, которая всегда любила проекты «сделай сам», организацию дома и создание красивых пространств. Вместе со своим мужем она провела последние несколько лет, с любовью ремонтируя бывший дом своих бабушки и дедушки, делая его своим и узнавая много нового о жизни на этом пути.
Недавно опубликовано
ссылка на список отзыва посудомоечных машин GE (все модели и даты)
Список отзыва посудомоечных машин GE (все модели и даты)
GE может быть одним из крупнейших конгломератов в мире, но это не мешает им время от времени совершать ошибки.Несколько раз их посудомоечные машины выходили из строя или выходили из строя…
ссылка на список отзыва осушителей (все марки, даты и модели)
Насколько глубокой должна быть барная стойка?? – Кухня
Глубина приподнятой барной стойки для завтрака составляет 12 1/2 дюйма, что является минимумом для размещения полноразмерных тарелок.
Раковина заподлицо придает столешнице цельный вид; раковина должна быть не более 11 дюймов в глубину, чтобы спине было удобно.
Какой ширины должна быть барная стойка?
Верхняя часть задней перекладины обычно имеет ту же высоту, что и передняя перекладина, но может отличаться. » Домашние барные стойки обычно имеют ширину от 12 до 16 дюймов. Ширина коммерческих барных стоек варьируется от 20 до 28 дюймов, включая направляющую (или желоб) для напитков на серверной стороне бара. Направляющие для напитков обычно имеют глубину 3/4 дюйма и ширину 4 дюйма.
Какой высоты кухонная барная стойка?
Высота кухонного стола варьируется, но стандартная высота кухонного стола составляет 30 дюймов.Столы с высотой столешницы обычно составляют 36 дюймов, а столы с барной стойкой (часто называемые столами для пабов) обычно имеют высоту около 42 дюймов.
Кухонные полуострова устарели?
Полуострова
функционируют так же, как острова, но предлагают больше пространства на кухнях, которые, возможно, не в состоянии вместить настоящий остров.
Кухня в этом бунгало длинная и узкая, поэтому вместо острова здесь есть полуостров с достаточным количеством сидячих мест для троих.
Насколько далеко должна выступать барная стойка?
Табуреты для приподнятых 42-дюймовых столешниц обычно имеют высоту от 28 до 30 дюймов, что дает удобное пространство для коленей от 12 до 14 дюймов.Рекомендуемый выступ прилавка также зависит от высоты прилавка: эксперты предлагают от 15 до 18 дюймов для нижнего прилавка и 12 дюймов для приподнятого прилавка.
Насколько должна выступать барная стойка на кухне?
Выступ столешницы, установленной таким образом, должен составлять 18 дюймов, чтобы обеспечить достаточно места для коленей, когда вы сидите за столешницей на стандартном обеденном стуле. Для столешниц, используемых с табуретом высотой в прилавок, вам потребуется высота столешницы 36 дюймов.
Выступ на этих столешницах не должен быть более 15 дюймов.
Фото в статье «Википедии» https://en.wikipedia.org/wiki/The_Roosevelt_New_Orleans
Барные стулья — Табуреты для кухонной стойки
Барные стулья
Поднимите сиденье и пусть барные стулья станут отличным дополнением к вашей кухне или столовой. Они создают удобную, непринужденную атмосферу, предлагая ощущение, отличное от сидения за обычными обеденными или кухонными столами.Стулья барного стула отлично подходят для того, чтобы потягивать кофе, читая газету или завтракая за кухонным островом или подготовительным столом. Наслаждайтесь столиком во встроенном баре в своем кабинете или в подвале, демонстрируя свои навыки приготовления коктейлей перед друзьями или семьей. Наведите курсор на серванты, стойки или высокие столы с барными стульями, которые предлагают отличный современный способ обновить любое пространство. Хотя они могут помочь вам максимально увеличить пространство, предлагая интеллектуальную функциональность в небольших квартирах, они могут изменить конфигурацию вашего пространства любого размера.
Погрузитесь в домашнюю работу или займитесь декоративно-прикладным искусством вместе с малышами или приступайте к работе над головоломкой из тысячи частей, которую вы обязательно закончите быстрее с помощью этих удобных стульев.
Выберите правильный барный стул
Убедитесь, что барные стулья, которые вы выбираете для своего кухонного острова, барных столов или места, где вы играете в покер в пятницу, соответствуют вашим требованиям. То есть измерьте высоту своего стола или прилавка и узнайте, где ваша идеальная позиция, когда вы сидите, попивая утренний кофе, работаете на ноутбуке или обдираете всех желающих в техасском холдеме — «извините, бабушка, это моя брошюра». .” Совет: вычтите чуть меньше фута из высоты нижней части вашего стола или стойки, чтобы найти идеальную высоту для вашего барного стула.
Но измеряйте не только рост. Знайте свое пространство и подготовьтесь к правильному фэн-шуй с умными конструктивными особенностями, которые позволят вам максимально использовать пространство.
Выберите штабелируемые барные стулья или барные стулья, регулируемые по высоте, а также множество других вариантов, которые предназначены для установки под прилавками или заподлицо со столами, когда они не используются.
Тогда нужно подумать о стиле. Приготовьтесь выразить свое мнение с помощью стульев высотой с кухонную стойку и стульев для барных стульев, которые варьируются от деревенского белого цвета, который сочетается со всем, от мебели для кухни до мебели для спальни, до потрясающих современных предметов с искусно выгнутыми сиденьями, которые сочетают в себе нержавеющую сталь и сталь с порошковым покрытием. Вневременной вид удобных барных стульев, обитых плюшевой тканью из смеси белого хлопка и полиэстера, с изогнутой спинкой и прочными деревянными ножками, сделанными из прочного и привлекательного темного эвкалипта.Или выберите стильный металлический стиль штабелируемых черных барных стульев, которые позволят вам стильно позавтракать.
Конечно, благодаря продуманному дизайну ИКЕА форма соответствует функциональности.
Ставить барные стулья друг на друга или задвигать их под столы — не единственный способ сэкономить место. Выберите складные стулья, которые не будут мешать вам, как ваш друг Стив, после крупного проигрыша — всего 40 долларов — в покер. И всем, даже детям, проще подтянуть сиденье с несколькими вариантами в барных стульях с регулируемой высотой.Добавьте к этому другие функции, такие как мягкие подставки для ног, возможность поворачиваться к человеку рядом с вами, изогнутые и мягкие спинки сидений, а также удобные сиденья, и вы поймете, почему любой может подъехать к любому барному столику или кухонному острову и остаться там на целый день. хорошо давно.
Ищете другие способы удивить гостей? Найдите шкафы и буфеты для столовой, в которых можно стильно хранить и отображать все, что вам нужно для приготовления и подачи вкусных напитков.
Часто задаваемые вопросы о барных стульях
Какой высоты барные стулья?
Хотя высота барного стула зависит от стола или прилавка, к которому вы подъезжаете, учтите, что кухонные стойки и столы со стойкой обычно находятся на высоте 34–36 дюймов от пола.
Соответственно ищите места высотой 23-26 дюймов. Для высоких столов или стоек высотой от 39 до 42 дюймов, иначе называемых «высотой бара», выбирайте высоту сиденья 28–30 дюймов.
Как измерять барные стулья?
Измерьте свой барный стул от верхней части сиденья до пола.
Какое расстояние должно быть между барными стульями?
Между барными стульями должно быть достаточно места для удобного перемещения между сидящими за стойкой или столом. Представьте, что вы находитесь в переполненном баре.Барные стулья должны располагаться на достаточном расстоянии друг от друга, чтобы любой мог встать и удобно занять свое место.
Какой ширины должна быть кухонная барная стойка? – Firstlawcomic.com
Какой ширины должна быть кухонная барная стойка?
» Верхняя часть домашнего бара обычно имеет ширину от 12 до 16 дюймов. Варианты высоты барной стойки для завтрака Чтобы обеспечить доступную кухню, рабочее пространство на стойке должно быть не менее 30 дюймов в ширину, а столешницы должны находиться в диапазоне от 28 до 34 дюймов над полом.
Насколько широка средняя полоса?
Размеры стержня.Ваш стержень может быть любой длины, но профессиональные стержни имеют высоту 42 дюйма. Средняя верхняя часть стержня имеет ширину от 16 до 20 дюймов, а средний выступ стержня составляет 8 дюймов.
Насколько широка обычная столешница?
25,5 дюймов
Стандарты ширины столешницы Большинство домов оснащены кухонными столешницами шириной 25,5 дюймов (от стены до края стойки), а в некоторых случаях до 28 дюймов.
Какая стандартная ширина кухонной столешницы?
Стандартная ширина кухонной плиты составляет 25 дюймов, что для некоторых марок может означать до 25 1/5 дюймов.В любом случае, эта стандартная ширина соответствует стандартной ширине кухонного нижнего шкафа 24 дюйма. Также существует несколько готовых стандартных длин столешниц, таких как 4, 6, 8 и 10 футов.
Какой высоты должна быть столешница для барной стойки?
Но если вам нужна барная стойка, она должна быть не менее 13,5 дюймов в высоту.
Кроме того, поскольку вам нужно будет добавить дополнительные 1,5 дюйма для выступа, ваши столешницы станут около 15 дюймов. Несмотря на то, что стандартная высота столешницы составляет около 36 дюймов, если вы строите кухню на заказ, вы можете внести некоторые изменения.
Какой стандартный выступ над кухонной стойкой?
Стандартный выступ столешницы составляет 1 ½ дюйма. Имейте в виду, что это 1 ½ дюйма над передним краем базового шкафа. Хотя некоторые столешницы могут иметь разные размеры выступа, это число считается стандартным для дома.
Какова стандартная ширина барной стойки?
Какова стандартная ширина барной стойки? Кухонная барная стойка имеет стандартную высоту 42 дюйма (107 см).Стандарты гласят, что каждому человеку для комфортного приема пищи требуется ширина 24 дюйма (61 см) и глубина 12 дюймов (30 см).
Какова стандартная ширина барной стойки?
Барная стойка. Верхняя часть бара может быть любой ширины, но обычно она составляет от 50 до 75 см (от 20 до 30 дюймов).
Ваши размеры будут зависеть от места в вашем доме. Кроме того, выступ с обеих сторон бара (расстояние от опорной конструкции бара до края верхней части бара) должен составлять от 25 до 30 см (от 10 до 12 дюймов) со стороны посетителя.
Каковы размеры барной столешницы?
Ширина барных столешниц может незначительно отличаться; однако стандартная ширина большинства барных столешниц составляет 18 дюймов.
Какая стандартная ширина столешницы?
Стандартная ширина кухонной столешницы составляет 25 дюймов. В зависимости от вашего конкретного пространства это число может находиться в диапазоне от 24 ½ до 25 ½ дюймов. В ванной столешницы обычно имеют ширину от 19 ½ до 22 ½ дюймов. Как определяется стандартная ширина столешницы?
Какая стандартная высота кухонного бара?
Обычно стандартная высота барной стойки составляет 42 дюйма, но высота кухонной барной стойки может варьироваться.Некоторые бары имеют высоту 36 дюймов — высоту обычной кухонной стойки — в то время как другие имеют приподнятый элемент, который поднимает часть стойки до стандартной высоты бара.
14 ошибок дизайна кухонного острова, которых следует избегать | Ремонт, Рабочий процесс, Кухонный треугольник, Склад, Полы, Мусор, Освещение, Электричество, Сантехника, Готовка, Шкафы, Столешницы
Добавление островка к вашей новой кухне — отличный способ увеличить как рабочее пространство, так и место для хранения. Учитывая, что людям всегда нужно больше этих двух вещей, это огромная победа.Но многие люди совершают ошибки с кухонным островом. Вот некоторые ключевые проблемы дизайна кухни, которых следует избегать при планировании идеального острова.
1. Не продумать цель острова
Кухонный остров может выполнять любую из пяти кухонных функций: хранение, подготовка, приготовление пищи, сервировка и мытье посуды. Однако прежде чем что-либо спроектировать, вам нужно решить, какую роль (или роли) будет выполнять ваш остров. Это повлияет на ширину и глубину вашего острова, особенно если вам нужно место для крупной бытовой техники.
Если у вас достаточно места для широкого острова, в нем можно установить несколько кухонных станций – например, плиту и мойку.
Большинство людей также хотят разместить сидячие места на кухонном острове, хотя это не всегда хорошо сочетается с варочной панелью, если у вас более формальное пространство.
Если вы устанавливаете плиту на своем острове, не забудьте, что над ней вам понадобится вытяжка. (В противном случае ваш дом будет вечно пахнуть этим жареным луком.) Чтобы вытяжка не свисала в центр вашего пространства, вместо этого установите раковину на своем острове.
2. Сделать остров слишком большим
Теперь у вас может быть кухня хорошего размера, но если ваш кухонный остров слишком велик, это сделает вашу кухню тесной. Это одна из самых распространенных ошибок дизайна, которую мы видим: в стремлении максимально использовать столешницы и дополнительное пространство для хранения страдают проходы вокруг острова.
Общее правило заключается в том, что вам потребуется как минимум от 42 до 48 дюймов (от 106,68 до 121,92 см) открытого пространства вокруг вашего острова. Еще одно жизненно важное правило: если ширина вашей кухни менее 13 футов, мы вообще не рекомендуем добавлять остров.
А для U-образной кухни проем должен быть шириной не менее 10 футов, чтобы вместить остров, не вызывая клаустрофобии.
3. Препятствие рабочему процессу
Ваш кухонный остров должен быть размещен достаточно далеко, чтобы не пересекать путь между раковиной, плитой и холодильником, иначе известный как функциональный кухонный треугольник. Этот путь должен оставаться свободным, чтобы помочь вам работать максимально эффективно.
Это имеет большое значение для открытой планировки основных этажей в небольших домах.Если ваш дизайн кухни включает в себя остров в неправильном месте или он выступает в зону отдыха, возможно, остров не будет работать в вашем пространстве.
4. Сделать остров слишком маленьким
Кухонный остров должен быть минимум 4 фута в длину и 2 фута в ширину, чтобы быть полезным, но в идеале больше. Если у вас небольшая кухня и для этого недостаточно места, мы рекомендуем мобильную мясную блок-станцию или простой стол. Любой из них предоставит больше места для приготовления (и, возможно, дополнительное место для хранения на кухне), но не должен использоваться в качестве основного рабочего места.
Глубина островков должна быть 4 фута, чтобы в них можно было разместить два комплекта шкафов глубиной 24 дюйма, расположенных спиной к спине. Если вы планируете разместить барную стойку с одной стороны, вы потеряете ценное место для хранения. Остров будет иметь глубину в один набор кухонных шкафов, а барная стойка будет иметь выступ 12-18 дюймов. Имейте в виду, что вам нужно будет добавить дополнительное пространство для любой отделки.
5. Слишком много мест в баре
Для многих людей привлекательность кухонного острова зависит от возможности добавить барную стойку.Это отличный способ добавить дополнительные места для сидения за пределами столовой. Одной из ошибок, которых следует избегать, является заполнение бара сиденьями.
Размер вашего барного стула (или стула) повлияет на количество сидячих мест, которое у вас может быть. Убедитесь, что каждому человеку предоставлено не менее 24 дюймов пространства. В противном случае люди будут случайно толкать друг друга локтями во время еды.
Кроме того, если вы планируете добавить в кухонный остров дополнительные места для хранения или открытые полки вместо шкафов, выберите меньше стульев.
6.Плохое освещение
Измельчение пищи может быть опасным занятием, если у вас недостаточно света, чтобы видеть, что вы делаете, поэтому обязательно учитывайте освещение при реконструкции кухни. Изучение того, как правильно освещать различные области вашей кухни, включая использование акцентного освещения, может действительно поднять ваше пространство.
Три подвесных светильника — это элегантный способ усилить освещение над кухонным островом. Если вы едите на острове, стоит сделать их затемняемыми, потому что хорошее освещение для приготовления пищи может показаться болезненно ярким, когда вы садитесь за еду.
7. Напоминание: не забывайте об электричестве
Согласно строительным нормам Онтарио теперь на всех островах должен быть РАЗЪЕМНЫЙ КАБЕЛЬ. Острова часто используются для подготовительных работ, потому что они предлагают удобное рабочее пространство.
Однако некоторым подготовительным инструментам требуется электричество, поэтому избегайте одной из самых распространенных ошибок и встраивайте розетки в кухонный остров. (Это определенно сделает использование блендера и кухонного комбайна намного удобнее).
Если в вашей новой планировке предусмотрен двухъярусный остров с более высокой стойкой, на которой может сидеть ваша семья, дополнительный стояк между нижним уровнем подготовки и стойкой станет удобным местом для выхода.Конечно, острова, в которых есть плиты, посудомоечные машины и микроволновые печи, также потребуют надлежащего электричества и сантехники.
8. Забыть о веселье
Остров — отличное место, чтобы добавить ярких красок на вашу новую кухню. Развлекайтесь и поднимите свой интерьер на новый уровень, выбрав контрастный цвет столешницы или шкафа. Сиденья за барной стойкой могут быть яркими без каких-либо обязательств — если они вам надоест или вы продадите дом, их можно легко заменить или перенести в другие комнаты.
9.Забыть сантехнику
Если вы планируете использовать кухонный остров в качестве основного места для приготовления пищи, серьезно подумайте о том, чтобы встроить раковину в сам остров. Вы обнаружите, что это огромный бонус, как и посудомоечная машина! Это дополнение делает дизайн вашей кухни немного более сложным, но оно того стоит.
Во-первых, убедитесь, что функциональный кухонный треугольник не поврежден; каждый раз, когда вы готовите, вам нужно легко перемещаться от раковины к холодильнику и к плите. Затем наймите профессионала для обработки сантехники.Основные ошибки кухонного острова связаны с проблемами сантехники. Типичная раковина или посудомоечная машина имеют вентиляционные и сливные трубы, спрятанные в стенах; установка их на островах выполнима, но немного сложнее.
10. Отсутствие измерительных приборов
Одна из самых больших ошибок кухонного острова, которая может сорвать ваши планы по ремонту кухни в Оттаве, — это неспособность правильно измерить приборы.
Если вы планируете установить на своем острове плиту или посудомоечную машину, обратите внимание на размеры, когда устройство закрыто и когда все дверцы полностью открыты.Убедитесь, что ничто не мешает дорожке и другим приборам, ящикам или шкафам на кухне.
Остров также является эффективным способом размещения небольших бытовых приборов, таких как винные холодильники, микроволновые печи или нагревательные ящики. Опять же, одной из ошибок, которых следует избегать, является отсутствие планирования, поэтому один раз измерьте и дважды проверьте!
11. Неправильный материал столешницы
Цель добавления кухонного острова часто состоит в том, чтобы создать место для дополнительного хранения, оставляя вам много великолепного места на столешнице.Поэтому крайне важно выбрать подходящий материал столешницы для этой часто используемой столешницы.
Может быть, вы боретесь с дебатами кварц против гранита против мрамора или размышляете над блоком мясника? Каким бы ни было ваше решение, обязательно выберите что-то прочное.
И, если вы не можете выбрать один материал, попробуйте смешивать и сочетать; Ваш новый остров — идеальное место, чтобы проявить свои дизайнерские мускулы и добавить индивидуальности вашему пространству.
12. Пренебрежение местом для мусора
Управление мусором — не самая интересная часть дизайна кухни, но необходимая.Кухонные острова, к счастью, предлагают достаточно места для решения этой проблемы. Используйте дополнительные места для хранения в шкафах под островом, чтобы скрыть мусор, мусорные баки и даже контейнеры для компоста.
13. Неправильный выбор напольного покрытия
Любая реконструкция кухни, вероятно, включает в себя новый или обновленный пол. При выборе сочетающихся цветов и текстур для вашей новой комнаты обязательно посетите множество галерей дизайна кухни для вдохновения.
Но не останавливайтесь на достигнутом! На этапах планирования уделите особое внимание кухонным островам.Вы не можете прикрепить шкафы острова к стенным шпилькам, поэтому вам может потребоваться подготовка пола или чернового пола.
Кроме того, различные напольные покрытия (плитка, бетон, дерево, ламинат и т. д.) требуют особого внимания при укладке.
14. Не доверять экспертам
Кухонный остров должен органично интегрироваться в кухню вашей мечты и никогда не создавать ощущение тесноты. Избегайте дорогостоящих ошибок; Вы не должны идти в одиночку! Чтобы получить советы по дизайну острова и практические соображения относительно ремонта вашей кухни, обратитесь за помощью к профессиональному дизайнеру.Дизайнер кухни, поддерживаемый компанией с многолетним опытом, может гарантировать, что вы будете любить свой новый остров долгие годы.
Будьте уверены в своем дизайне
Остров должен органично интегрироваться в вашу кухню и никогда не создавать ощущение тесноты. Чтобы получить результаты, которыми вы будете довольны долгие годы, обязательно обратитесь за помощью к профессиональному дизайнеру. Поиск дизайнера, за которым стоит компания с многолетним опытом, может гарантировать, что вы будете любить свой остров долгие годы.
Посмотреть больше дизайнов кухонь в нашей галерее дизайна
размеры, фото. Стандартный размер барной стойки на кухню
Барные стойки на типичных русских кухнях уже давно стали обычным явлением. Пережив бум популярности около 10 лет назад, они на время были преданы забвению, но сегодня возвращаются в оформление обычных российских жилых квартир, домов и коттеджей. Их любят за удобство и компактность, за оригинальный вид и за возможность экспериментировать с дизайном всей кухни.
История бара
Изначально бар был атрибутом питейного заведения, которое и получило свое название от этой позиции. Бары в Америке приобрели статус во время золотой лихорадки 18 века. Плита из камня или толстого дерева отделяла буфетчика от зала и давала ему укрытие на случай выстрела или летящей в голову посуды и мебели.
Лихие времена в Штатах прошли, а стойки остались в каждом баре. Позже они переселились в дома простых американцев, затем европейцев, а позже и русских.
Сегодня барная стойка может быть изготовлена из ДСП, дерева, пластика, камня и даже стекла. Габариты, формы и даже разный функционал отличает их друг от друга.
Функциональный
Когда барные стойки только появились в обычных американских домах, они выполняли ту же задачу, что и в современном баре — во время вечеринок ведущий, играя роль бармена, подавал гостям напитки, бутылки с алкоголем, стаканы и другой инвентарь там же содержались. Однако позже, в более ограниченных пространствах, стеллажи перестали быть самостоятельным предметом и стали частью кухни.Оказалось, что размеры барной стойки на кухне и ее высота очень удобны, чтобы быстро позавтракать или перекусить, выпить кофе на бегу. Сегодня барная стойка во многих домах просто вытеснила кухонный стол – за ней обедают и обедают, готовят и просто сидят с газетой и чашкой чая.
Со временем стеллажи вновь отделились от кухни,превратившись в кухонный остров — это высокий стол, по сути, барная стойка, на которой установлены тумбы, варочные панели, духовки, мойки.
Удобство такого острова в том, что это рабочая кухонная зона, большой обеденный стол, широкое поле для раскатывания теста, приготовления домашних пельменей, готовки всей семьей или чего-то еще столь же масштабного.
Типы стеллажей
По отношению к кухонному гарнитуру стеллажи можно разделить на несколько типов:
- Настенные.
- Стеллаж-перегородка.
- Остров.
Размеры барной стойки пристенного типа идеально подходят для небольших кухонь.Его узкий край крепится к стене, а длинный имеет подход с обеих сторон, благодаря чему даже небольшая кухня может вместить несколько человек. Часто такая стойка является частью кухонной мебели и продолжением столешницы, а также они снабжены опорой, удерживающей стойку, и верхним карнизом. Карниз и опора также часто обыгрываются дизайнерами мебели – в карниз монтируются встроенные светильники или подвеска для стаканов (привет изначального назначения барной стойки), а к корзине-подставке для фруктов или декора .
Перегородка может быть и настенной, но у нее вполне очевидная функция — отгородить или зонировать пространство. Его часто используют в больших помещениях совмещенной кухни-гостиной, где нужно как-то разделить кухню и гостиную. При этом размеры барной стойки в кухне-гостиной могут быть совершенно произвольными.
Барная стойка здесь выполняет несколько функций:
- Декоративно-зонирующая.
- Функция стола для закусок и бара.
- Продолжение рабочей зоны за счет большей высоты.
Остров представляет собой отдельно стоящий бар, в состав которого входят кухонные шкафы, встроенная техника, мойка. Это, по сути, отдельная часть кухонного гарнитура, которая используется и как рабочий, и как обеденный стол.
Для маленькой кухни своя барная стойка
Габариты любой кухни подходят для размещения барной стойки, но особенно она получила распространение в небольших кухнях. В них довольно сложно разместить и полноценную рабочую поверхность, и обеденный стол, поэтому узкая и высокая барная стойка – отличное решение.![]()
Чтобы поместиться на маленькой кухне, лучше сделать ее одной высоты с основной столешницей, то есть 85-90 сантиметров. При проектировании расположения стеллажа не забывайте о рабочем треугольнике, то есть зоне между плитой, холодильником и мойкой. В этом треугольнике не должно быть препятствий, поэтому ошибкой будет, например, отделять холодильник от рабочей зоны стеллажом.
Также отличным решением для маленькой кухни станет барная стойка – продолжение подоконника.Сегодня вы можете заказать подоконную доску из любого материала и любой ширины. Такая маленькая деталь может быть очень функциональной. Такой стеллаж скроет под собой батарею под окном, а для расширения пространства к нему можно подобрать подходящие по высоте барные стулья, полностью задвигающиеся под него.
Маленькие кухни не терпят крупной громоздкой мебели, поэтому для поддержки барной стойки лучше выбирать хромированные трубы, они сделают стеллаж парящим и легким. Стулья к стойке можно подобрать из прозрачного пластика или на тонких хромированных ножках — они наименее заметны в пространстве, а потому дают ощущение большей пустоты и невесомости.
Стойки барные, размеры: высота
Высота барной стойки от 86 до 130см. Эта разница объясняется функциональностью стеллажа – чем он ниже, тем удобнее использовать его в качестве обеденного стола. Если стеллаж находится вровень с рабочей поверхностью кухни, то его высота, как правило, около 86-90 см. Если стеллаж выполняет функцию перегородки, его высота будет больше метра.
Возможны и разноуровневые стеллажи, когда одна его часть равна по высоте кухонной столешнице, а другая выше и играет роль стола в компании высоких барных стульев.
Также при выборе высоты обратите внимание на рост членов вашей семьи, если он выше среднего, то высоту стеллажа можно брать до 130 сантиметров, соответственно для невысоких владельцев это будет неудобно — высота должна быть около 1 метра.
Размеры барной стойки: длина
Длина стандартной стойки 120 сантиметров, но на самом деле она может быть абсолютно любой, это зависит от предпочтений владельца кухни и от ее размеров.
При проектировании учитывайте, что для комфортного проживания одному человеку необходимо не менее 60 см. Обычно за столом одновременно сидит не более двух человек, поэтому 120 сантиметров стали универсальным вариантом.
Ширина
Стандартные размеры барной стойки в ширину как правило 55 см, конечно можно и больше, но это золотая середина. А вот ширину меньше 30 сантиметров делать не стоит — будет неудобно и нефункционально. Стеллаж шириной 30 сантиметров тоже довольно узок и не подходит для полноценной подачи обеда или ужина, но для малогабаритных квартир может стать идеальным вариантом.
Как выбрать барные стулья
Без стульев не обходится ни один бар. Размер специальных барных стульев является важной деталью, ведь если подойдет любой из обычных столов, нужен только дизайн, то в случае с барной стойкой , размер — это первое.
Высота барных стульев обычно 75 или 85 сантиметров, но в продаже можно найти и другие размеры, например в Икеа, которая производит барные стулья высотой 63 см.
Главное правило при выборе стульев – разница между стулом и столешницей должна быть не менее 30 см, иначе человеку, сидящему за стойкой, будет неудобно.Для ориентира: если размер кухонной стойки 120 см, то стулья берите не менее 85 сантиметров, а если тумба пониже, то достаточно 75-сантиметрового стула.
Стулья барные бывают со спинками и без, на четырех ножках или на одной, вращающиеся и стационарные. Наиболее удобны стулья с высокой спинкой и изножьем – на них можно долго сидеть, не чувствуя, что вы висите на неудобном насесте. А вот табуретки менее удобны, зато экономят место — их легко можно задвинуть под прилавок.
Мы постарались максимально подробно рассказать о размерах барной стойки. Фото, представленные в статье, помогут вам определиться с выбором этого популярного и востребованного элемента кухонной мебели.
.![]()
Предусмотрены ящики и шкафы для хранения утвари.
А также на такой поверхности удобно готовить пищу.
Для удобства и повышенной функциональности в нее можно встроить кухонную плиту, посудомоечную машину, мини-холодильник и другую технику, какую позволят габариты.
При выборе стоит учесть, чтобы все элементы подходили друг к другу как по дизайну, так и по функционалу.
Часть, расположенная в зоне кухни, по высоте соответствует гарнитуру.



Пространство под барной стойкой можно оборудовать полками, рейлингами и другими системами хранения. Также можно оборудовать пространство над столешницей, например прикрепить к вертикальной штанге карусели для бокалов, полочки для сувениров и прочих мелочей.
