Как сделать шкаф под варочную панель и духовой шкаф: Как сделать шкаф под духовку своими руками дома?
Как сделать шкаф под духовку своими руками дома?
Встроенная модульная кухонная техника предусмотрена для того, чтобы вписать её в единый стиль фасада гарнитура или вставить в отдельный шкаф. Чтобы самостоятельно сделать шкаф для встроенной духовки и варочной панели, потребуется рассчитать размеры деталей, нарисовать план и чертежи.
Простой шкаф для духовки
Чертежи
В сопроводительной документации изготовители обычно указывают габариты встраиваемой духовки и варочной панели. Если таковой не оказалось в наличии, берите рулетку и линейку и делайте обмеры техники сами. Данные запишите на отдельном листе.
Чертёж тумбы подберите в интернете. Распечатайте на принтере. Сравните размеры на плане с вашими результатами обмеров. Обычно стандартные габариты совпадают. В противном случае размеры шкафа подгоните под вашу технику.
Мнение эксперта
Александр Диденко
Сборщик мебели в компании Мабакс
Вы должны понимать, что если высота, ширина и глубина проёма тумбы на чертеже больше или меньше вашей духовки, то надо соответственно добавить или сократить размеры деталей шкафа.
Откорректировав размеры, нарисуйте свой чертёж. При расчёте размеров плоскостей учитывайте толщину примыкающих деталей.
Схема строения стандартного шкафа под духовку
Материал
Важно определить, из чего вы собираетесь собирать шкаф. Для изготовления кухонной мебели обычно используют ламинированные листы ДСП (ЛДСП). Но я рекомендую взять МДФ. Это несколько дороже ЛДСП, но модифицированные плиты покрыты более прочной и термостойкой плёнкой.
Для боковых стоек и ящика вполне подходит толщина листа 10–12 мм. Для полок из-за высокой нагрузки лучше брать листы 16 мм. Если в вашей мастерской найдётся материал разной толщины, это сэкономит деньги. В противном случае лучше приобрести листы поперечным сечением 16 мм.
Расчёт деталей
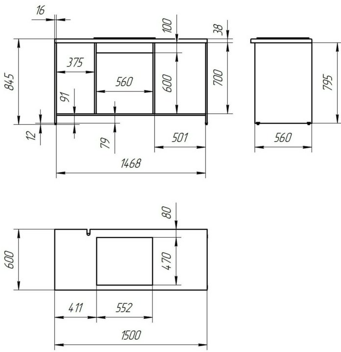
На основании чертежа определите размеры деталей мебели. Возьмём стандартный пример:
| № | Наименование детали | Количество, шт. | Размер, мм | Материал |
| 1 | Боковины | 2 | 704х560 | МДФ |
| 2 | Днище | 1 | 600х560 | — |
| 3 | Основание под духовку | 1 | 568х560 | — |
| 4 | Столешница | 1 | 600х560 | — |
| 5 | Задняя стенка | 1 | 550х129 | ЛДВП |
Отдельно зафиксируем размеры деталей ящика:
| № | Детали ящика | Кол-во, шт.![]() | Размер, мм | Материал |
| 6 | Боковые планки | 2 | 560х90 | МДФ |
| 7 | Поперечины | 2 | 518х90 | — |
| 8 | Фасад | 1 | 129х600 | — |
| 9 | Днище | 1 | 560х518 | ЛДВП |
Но эти размеры не догма. Сверьте со своими расчётными данными. Чтобы произвести наиболее экономный раскрой, нужно определить общую площадь МДФ. Согласно указанным спецификациям, потребуется: 2(0,7 х 0,56) + (0,6 х 0,56) + (0,57 х 0,56) + (0,6 х 0,56) + 2(0,56 х 0,090) + 2(0,52 х 0,09) + (0,6 х 0,13) = 2,3 м2.
Начертите на листе бумаги в удобном масштабе прямоугольник и разместите в нём контуры площадей деталировки. Делать это надо так, чтобы фрагменты поместились на плане. Листы МДФ продаются в торговой сети размером 2800 х 2070 мм, площадью 5,8 м2. Поэтому придётся покупать панель целиком.
МДФ — материал более прочный, чем ДСП.
Мнение эксперта
Башир Рабаданов
Технолог мебельной компании Woodband
Поверхности плит нередко делают со сложным рельефом для придания оригинальности мебельным фасадам. Древесно-стружечные плиты покрывают эмалями, акрилом и ПВХ-плёнкой. Производители создают также панели с поверхностью, имитирующей ценные породы дерева.
Соотношение размеров шкафа для духовки с учётом подведения газа
По расчётам, из одного листа можно будет нарезать детали для двух шкафов под духовку. Один комплект используйте по прямому назначению, а остаток плиты можно пустить на изготовление такой же или другой мебели.
Разметка, раскрой
Уложив лист МДФ на верстак или на чистый пол, перенесите разметку с чертежа на плиту. Для этого лучше использовать рейсшину или длинную линейку. Для нанесения перпендикулярных линий карандашом пользуйтесь угольником. Перед резкой перепроверьте все размеры разметки.
Если у вас нет опыта работы с электролобзиком, то сразу не приступайте к резке деталей.
Потренируйтесь на ненужных кусках ДСП. Добейтесь точности распила и только потом начинайте раскрой фрагментов шкафа. Работа требует предельной точности, иначе можно просто испортить материал и придётся покупать новый лист МДФ.
Инструмент
Для сборки тумбы под духовой шкаф понадобятся инструменты:
- электролобзик для выполнения ровной резки ДСП без заусенцев;
- струбцина для фиксации деталей;
- рулетка и угольник для разметки отверстий под крепёж;
- шуруповёрт;
- отвёртки;
- конфирматное сверло (зенкер) и вороток для установки евровинтов (конфирматов).
Зенкер, евровинт, заглушка и вороток
Крепёж
Для соединения элементов сборки шкафа понадобится крепёж:
- Конфирматы.
Конфирмат
- Саморезы (шурупы по дереву).
Для сборки шкафа нужны шурупы по дереву
- Шканты (деревянные дюбели).
Деревянные дюбели
- Ручка-скоба для фасада ящика.
Ручка с двумя точками крепежа — нужна для нижнего ящика
- Выдвижная система для ящика (2 штуки).

Шариковые направляющие
- Мебельные ножки — 4 шт.
Полимерные опоры с регулировкой высоты
Подготовительные работы
Для изготовления мебели желательно иметь мастерскую. Можно воспользоваться большим столом в свободном помещении. Предусмотрите наличие в шаговой доступности розетки для подключения электроинструмента и запаситесь удлинителем. Правильно организуйте освещение рабочего места.
Если собираетесь делать шкаф в нежилом помещении, то позаботьтесь об обогреве зимой и о принудительной вентиляции жарким летом. Большие оконные проёмы сэкономят расход электроэнергии в дневное время. Верстак, оборудованный упорами, гнёздами, тисками и струбцинами, будет хорошим подспорьем для сборки шкафа.
Пошаговая инструкция сборки тумбы под духовой шкаф
Когда будут нарезаны фрагменты тумбы, приступайте к изготовлению шкафа:
- Торцы деталей, которые будут видны, проклейте торцевой лентой с помощью утюга.
- На боковинах нанесите разметку отверстий под конфирматы и шканты.

- Дрелью просверлите посадочные места для шкантов.
- Конфирматным сверлом сделайте гнёзда в местах соединений боковых стоек с горизонтальными панелями.
- Закрепите на боковинах шариковые выдвижные консоли.
- Вверните воротком конфирматы, соединив все фрагменты в единый корпус.
- Закройте шляпки еврошурупов пластиковыми заглушками.
- С задней стороны тумбы прибейте гвоздиками планку из ЛДВП в отделении для ящика.
- К днищу шкафа прикрутите шурупами ножки.
Инструкция по установке столешницы
- К верхней поверхности столешницы приложите днище варочной панели и обведите его по периметру карандашом.
- По кромке разметки просверлите несколько отверстий так, чтобы они не выходили за пределы контура наружу. Они нужны для стартового движения пилки лобзика.
- Вырежьте электролобзиком проём для варочной консоли.
- Столешницу устанавливайте сверху на шканты в торцах боковин. Не забудьте предварительно смазать деревянные дюбели клеем ПВА.

Предварительные моменты
Варочные панели и духовые шкафы бывают газовые и электрические. Подключение оборудования к сети газоснабжения требует допуска профессионала — газовщика. Поэтому мы коснёмся установки своими руками только электрической техники.
Монтаж точки подключения к электросети
Прежде всего, розетка должна находиться в непосредственной близости от тумбы. Открытый задний проём шкафа позволяет беспрепятственно установить электрический разъём на стене с тыльной стороны мебели. Так как две единицы кухонного оборудования достаточно мощные, установите розетку с двумя гнёздами и заземлением.
Варочные панели и духовые шкафы не оснащаются вилками. Поэтому делать ли под них розетку, решайте сами. Я у себя дома подключил кабель панели параллельно с духовкой к питанию из подъезда через клеммники. В щитке подъезда на эту линию стоит отдельный автомат 32 А.
Подготовка проводов
Если трёхжильные кабели духовки и варочной панели не снабжены разъёмами, то нужно подсоединить к ним вилки с клеммами заземления.
Длина проводов должна быть такой, чтобы можно было перед установкой подключить технику и проверить её функционирование.
Схема подключения духовки и плиты
Монтаж варочной панели
Изготовитель обычно в комплект поставки вкладывает металлические пружинки-уплотнители, а также термостойкий двухсторонний скотч или специальный пластилин. Если их не оказалось, то по краю периметра проёма в столешнице нанесите дорожку силиконового герметика. Вячеслав Герасимов использует вместо герметика клей ПВА в несколько слоёв. Подробнее смотрите на видео.
После этого в проём проденьте провод с вилкой и подключите к розетке. Осторожно опустите варочную консоль. Влажной ветошью удалите со столешницы остатки силикона. Плита готова к эксплуатации.
Установка духовки
Вилку вставьте в розетку. Поднимайте и ставьте духовку в шкаф только вдвоём — это поможет избежать травм и сохранит в целости мебель и технику.
Боковые грани фасадной рамы под люком имеют монтажные отверстия.
Через них просверлите тонким сверлом неглубокие дырочки. Вложите пластиковые колпачки (из комплекта поставки) донышком внутрь. Вставьте саморезы и шуруповёртом вкрутите их в боковые торцы шкафа. Закройте люк. Духовка готова к работе.
Советы эксперта
Чтобы шкаф прилегал к стене, сделайте вырезы под плинтус в нижней части боковин шкафа. Оставьте несколько миллиметров зазора для естественной вентиляции внутреннего пространства шкафа.
Если у вас не получается сделать ровную резку листа МДФ электролобзиком, то отправляйтесь в строительный гипермаркет. Там обычно есть отдел по раскрою ДСП и МДФ панелей. По вашему чертежу нарежут детали шкафа и проклеят торцы полимерной лентой.
Для хранения тяжёлой кухонной утвари (сковородки, крышки кастрюль и пр.) лучше собрать ящик с днищем из более прочных материалов, чем ЛДВП. Используйте лист из пластика или алюминия. Не прикручивайте его шурупами. Вырежьте фрезером канавки по периметру бортов ящика и вставьте в них дно.
Формула шкафа под духовку
Привет, уважаемый читатель! Если Вы сейчас раздумываете над конструкцией тумбы под духовой шкаф, то дочитайте статью до конца и Вы узнаете почти все возможные варианты.
Подробно расскажу о плюсах и минусах каждой версии.
Результатом прочтения статьи будет Ваш осознанный выбор определённого модуля. Вы точно будете знать зачем Вам именно такой шкаф нужен и будете получать максимум удовольствия в дальнейшем от своего выбора.
Существует два основных вида модулей под духовой шкаф. Причём каждый из них имеет свою дополнительную вариацию. Самый распространённый вид это духовка под варочной панелью. И второй, на мой взгляд более удобный, это духовой шкаф в пенале.
Конструкция шкафа под варочной панелью имеет два варианта — с выдвижным ящиком снизу духового шкафа и с выдвижным ящиком сверху духового шкафа. О плюсах и минусах каждой конструкции расскажу в следующих абзацах.
Конструкция шкафа в пенале, на уровне глаз, имеет вариант с рабочей поверхностью над шкафом и в пенале на уровне глаз без столешницы.О плюсах и минусах каждой конструкции расскажу в следующих абзацах.
Преимущества и недостатки под варочной панелью
При расположении шкафа под варочной панелью создаётся общая зона для приготовления пищи.
Особенно актуальна конструкция для экономии пространства на кухне. Несомненный плюс в том, что такая тумба подойдёт для хозяйки с любым ростом.
Минусом, при таком расположении,является работа в согнутом состоянии. Вам придётся постоянно кланяться во время готовки и чистке духового шкафа. Если ваша женщина имеет больную спину, вы останетесь без печёных блюд.
Снизу варочной панели расположена охлаждающая вентиляция. При расположении ящика сверху, под варочной панелью, создаётся риск блокирования этой системы. Если в этот ящик попадёт лист бумаги, его элементарно засасывает и приток воздуха блокируется.
В шаговой доступности от Вас, размещена услуга по расчёту корпусной мебели.
Преимущества и недостатки конструкции в пенале
Расположение духовки на уровне груди это комфортная эксплуатация печки. Хозяйка с удовольствием готовит много вкусной пищи. Ей не приходится нагибаться, чтобы заглянуть в шкаф.
И уборка не отнимает много сил.
Пожалуй единственным недостатком, при расположении духовки в пенале, является сложность использования для женщин небольшого роста. Опять же, при проектировании мебели на заказ такая проблема легко устраняется.
Следует заострить внимание на усиление горизонта, на котором стоит духовой шкаф. Для этого необходимо прикрутить две планки к боковинам пенала, под несущим горизонтом. Печка имеет приличный вес и без усиления существует риск обрушения конструкции.
Размеры и схема сборки тумбы под духовой шкаф
Размеры духового встроенного шкафа остаются неизменными. Поэтому проектируя тумбу никогда не ошибёшься. Года 2 назад произошла замена петель на дверке шкафа. Теперь она не выпирает снизу при открытии.
Перед Вами стандартная схема сборки тумбы под духовой шкаф. Обратите внимание на внутренние боковины, они обязательны в конструкции — усиливают горизонт.
Днище и горизонт на 20 мм короче боковин, для вентиляции шкафа. На схеме не изображён ящик.
Деталировка
600×530 – 1 Днище
568×530 – 1 Несущий горизонт
704×550 – 2 Боковины
88×550 – 2 Опоры под горизонт
477×50– 2 Лобовая и задняя планки ящика
500×50 – 2 Боковые планки ящика
116×596 – 1 Фасад
115×595 – 1 ДВПО Задняя стенка
505×495 – 1 ДВПО Дно ящика
В шаговой доступности от Вас, размещена услуга по расчёту корпусной мебели.
Перед Вами стандартная схема сборки пенала с духовым шкафом. В конструкции также присутствуют планки усиливающие несущий горизонт. Горизонты над духовым шкафом короче по глубине на 20 мм. Для свободной циркуляции воздуха.
Деталировка
600×550 – 1 Днище
568×550 – 1 Несущий горизонт
2024×550 – 2 Боковины
60×550 – 2 Опоры под горизонт
568×530 – 2 Горизонты над шкафом
716×596 – 2 Фасад
715×595 – 1 ДВПО Задняя стенка низ
709×578 – 1 ДВПО Задняя стенка верх в паз
Схема сборки тумбы без боковин имеет ряд преимуществ перед другими вариантами.
Нет необходимости в усиливающих планках, соответственно шире ящик. Добавляется зазор по бокам от стенок духовки и конечно меньше расход материала.
Деталировка
600×550 – 2 Днище и крышка
88×550 – 2 Боковины
60×600 – 2 Планки для крепления шкафа
509×50 – 2 Лобовая и задняя планки ящика
500×50 – 2 Боковые планки ящика
116×596 – 1 Фасад
115×595 – 1 ДВПО Задняя стенка
537×495 – 1 ДВПО Дно ящика
Необходимая вентиляция
Особенно дотошные заказчики выражают недовольство по поводу лицевого зазора между столешницей и духовым шкафом в 5-6 мм. Такой зазор необходим для правильной работы варочной панели и духового шкафа.
Не все знают, что в варочных панелях существует система охлаждения, она расположена снизу конструкции. Через этот зазор циркулирует необходимый поток. Воздух заходит через расстояние между цоколем и дном тумбы, огибает по заду шкаф и выходит сверху.
Тему розеток для духового шкафа я подробно раскрыл в этой статье.
В которой рассказал где и как следует устанавливать розетки для духовки. Указал на частую ошибку. Если Вы планируете установку шкафа, Вам обязательно следует её прочитать.
Заключение
Духовой шкаф на кухне один из важных элементов и следует хорошо продумать его месторасположение. Чтобы в дальнейшем не сокрушаться над принятым решением. Надеюсь моя статья поможет Вам справиться с этой задачей.
Если Вам понадобится деталировка корпусной или встроенной мебели , обращайтесь. Мы обязательно обсудим условия сотрудничества и придём к единому мнению. За умеренный процент за свой труд, я подготовлю для Вас подробный проект в назначенные сроки.
Что бы Вам хотелось добавить к этой статье?
Расскажите мне о своём опыте в комментариях.
Мне будет очень интересно послушать Ваши истории!
С хорошими мыслями о Вас, всегда в опилках 🙂
Ре́кун Дмитрий.
Твитнуть
Не забудьте поделиться этой статьёй в социальных сетях
Как встроить духовой шкаф своими руками, чертежи и расчеты
В современных кухнях все чаще можно увидеть встраиваемую бытовую технику. И это неудивительно. Интегрированные в кухонный гарнитур плиты и холодильники, стиральные и посудомоечные машины, микроволновые и УВЧ- печи позволяют сохранить рабочую поверхность, более функционально распорядиться внутренним пространством шкафов. И, конечно же, придают более целостный и гармоничный вид общему дизайну кухни. Как встроить духовой шкаф своими руками? Начинать стоит с правильной планировки кухонного гарнитура.
Где должна быть розетка под духовой шкаф и варочную панель
При грамотном подходе в разработке дизайн-проекта кухни расположение отдельностоящей плиты или дуэта «духовой шкаф + варочная поверхность» неразрывно связано с подводом вытяжки к вентиляционной шахте. Поэтому еще на стадии начала ремонта можно четко определить место размещения духовки.
И, соответственно, предусмотреть розетки под ее подключение.
Однако тут не все однозначно. Располагать розетку строго за духовкой нельзя. При включенной в нее вилке образуется «мертвая» зона, которая не даст задвинуться духовому шкафу до нужной глубины.
Вариант расположения розетки ниже уровня духового шкафа также не очень удачен. Гораздо удобнее сначала отключить технику, а уже потом вынуть из кухонной тумбы. А не наоборот – при возникшей потребности в отключении от сети начинать выдвигать довольно тяжеловесный агрегат.
Самое оптимальное решение – вынести розетку ниже уровня столешницы в близлежащий шкаф-тумбу. Идеально, если в соседнем столе-тумбе около духового шкафа будут выдвижные ящики. Тогда в самой тумбе можно заднюю стенку не устанавливать вообще. Достаточно вынуть нужный ящик – и доступ к розетке открыт.
Также неплохое решение прикрутить накладную розетку к боковине шкафа с распашными створками. Мешать она внутреннему наполнению тумбы не будет, а пользоваться ею вполне удобно.
Главное чтобы этой тумбой не оказался стол под мойку. Столь близкое соседство с водой, сливом канализации нежелательно.
Чертежи как встроить духовой шкаф своими руками
Эта задача не так сложна, как может показаться на первый взгляд. Для облегчения встройки бытовая техника выпускается в определенных стандартных габаритах. Вы всегда можете поменять одну встроенный духовой шкаф на другой, не меняя при этом кухонную мебель.
Стандарты тут просты: любой электрический или газовый духовой шкаф встраивается в нишу 600х600 мм. Причем ширина ниши 600 мм с учетом толщины боковых стенок модуля под духовку (по требованиям большинства моделей чистовой размер проема должен быть минимум 560 мм).
Глубина духового шкафа рассчитана на размещение под столешницей стандартной ширины 600 мм. То есть корпус до переднего свеса должен быть 550-560 мм. Встроить духовой шкаф своими руками под зауженную столешницу не получится. А вот под расширенную, в различных дизайнерских вариациях, вполне.
Нюансы могут возникнуть в специфических нестандартных случаях. Поэтому внимательно изучайте инструкцию на этапе приобретения бытовой техники. Для некоторых духовых шкафов требуется предусмотреть в конструкции короба места для вентиляции.
А то и вовсе специальный вырез для циркуляции воздуха в дне шкафа или столешнице.
Типовая конструкция шкафа под духовой шкаф представлена на чертеже.
Если стол-тумба «зажимается» между соседними модулями, то нужды в верхней стягивающей планке нет. Многие мебельщики не ставят ее вообще.
Если высота кухонного гарнитура стандартная (840-850 мм при разных толщинах столешницы), то высота самой боковины шкафа под духовку будет 720 мм. Путем простых вычислений (720-600) получаем по низу встройки пространство в 120 мм. Точнее свободным пространством будет (120-32) всего 88 мм, за вычетом толщин дна и полки.
В это пространство обычно встраивают выдвижной ящик с коробом высотой 50-60 мм.
Если увеличить высоту нижнего ряда кухни под стать своему росту (про это можно почитать здесь), то выдвижной ящик будет более глубоким и функциональным.
Собственно, по тому же принципу тумба «превращается» в шкаф под встраиваемую духовку. Мы просто увеличиваем по высоте пространство нижнего ящика.
Но тут есть один важный нюанс. Глубину боковин увеличенного по высоте шкафа нужно также увеличивать, чтобы не было видно щели между стеной и корпусом шкафа.
А это значит, циркуляция воздуха возле встроенной таким образом духовки своими руками будет нарушена. Не зря ведь на инструкциях к духовым шкафам на встройку в пенал прилагается отдельный чертеж. В котором видно, что нужно оставить выпил под циркуляцию воздуха.
Поэтому в столешнице, покрывающей такой невысокий шкаф под встроенный духовой шкаф своими руками, следует предусмотреть вырез. Его можно прикрыть вентиляционной решеткой.
Тумба под духовой шкаф своими руками, чертежи и расчеты
Возьмем для примера расчета тумбового шкафа под встроенную духовку стандартных размеров.
Чертеж ее будет выглядеть следующим образом.
При ширине столешницы 600 мм, с учетом свеса спереди и сзади глубина корпуса будет варьироваться в пределах 460-500 мм.
Если решено ставить стягивающую планку по центру модуля, то ее следует опустить примерно на 10 мм относительно боковин. Иначе она помешает врезке варочной поверхности в столешницу над духовым шкафом своими руками.
Если корпус тумбы будет изготавливаться из ЛДСП толщиной 16 мм, то расчет деталей будет выглядеть следующим образом.
| № | Название детали | длина | ширина | кол-во |
| 1 | Дно | 600 | 500 | 1 |
| 2 | Полка | 568 | 500 | 1 |
| 3 | Боковины | 704 | 500 | 2 |
| 4 | Задник за ящиками | 88 | 568 | 1 |
| 5 | Бок ящика | 450 | 60 | 2 |
| 6 | Лоб ящика | 510 | 60 | 2 |
| 1 | Дно ящика (ДВП) | 540 | 448 | 1 |
| 2 | Фасад ящика (ЛДСП, МДФ, массив) | 116 | 596 | 1 |
Иногда от выдвижного ящика в конструкции короба под духовой шкаф отказываются вообще.
Он абсолютно не нужен, как место хранения, если кухня большая и ящиков, полок в ней хозяйке вполне хватает. Тогда на проем под духовкой ставят «обманку» (жестко закрепленный фасад).
тумба под варочную панель, размеры для встраиваемой техники, установка варочной поверхности в пенал своими руками
Совместное интегрирование кухонной мебели и техники дело непростое, особенно при небольших площадях в домах постройки прошлого века. Вошедшая в моду техника встроенная для кухни позволяет решить две сложные задачи: сэкономить объем и оформить кухню по собственному вкусу. Производители предлагают большой выбор приборов, что дает возможность создать уникальную комбинацию по стилю, функционалу. Кухонные гарнитуры в продаже могут иметь место для встраиваемой варочной поверхности и отдельный шкаф для духового шкафа или модуль, совмещающий оба элемента. А вот какая бывает индукционная варочная панель и как её подобрать для себя и кухни. можно увидеть тут.
Разновидности шкафов для варочной панели и духового шкафа
Короб для духового шкафа обязательный элемент на кухне, если духовой шкаф встраиваемого типа.
Он может быть установлен в любом месте.
Тумбы и пеналы для духовки
Есть два конструктивных варианта для размещения духового шкафа:
- в тумбе под варочной панелью;
Тумба для духовки стандартного размера
- в шкафу-пенале.
Шкаф пенал для духовки
Каждый из этих видов имеет свои преимущества и недостатки.
Короб под варочной поверхностью – это классический вариант.
Положительные стороны такого размещения:
- Приготовление пищи сосредоточено в одном месте, что облегчает процесс ухода за устройствами, экономит время и силы повара.
- Сохраняется вид стандартной кухонной печи при оригинальном дизайне варочной поверхности и духового шкафа.
- Удобно для людей любого роста.
Негативные стороны совмещения:
- Приготовление блюд в духовке потребует постоянных наклонов.
- Неудобно доставать горячий противень или жаровню.
- Мойка внутренней поверхности происходит в согнутом виде.

- Попадание воды с печки на электронную систему управления.
При размещении в пенале плюсом будет:
- возможность готовить и мыть духовку без наклона;
- подбор расположения агрегата соответственно роста куховара;
- создание современного кухонного дизайна.
Недостатком может быть непрочность конструкции, на которую поставлен духовой шкаф, вес которого может быть более 30-40 кг.
А вот чем отличается индукционная варочная панель от электрической и какую стоит выбрать, указано тут.
Видео: как установить встроенную варочную поверхность в стол и подключить своими руками
На видео – как происходит установка на месте:
youtube.com/embed/DQvSRD3sJh5?feature=oembed» frameborder=»0″ allow=»accelerometer; autoplay; encrypted-media; gyroscope; picture-in-picture» allowfullscreen=»»/>
Вопрос со шкафом или тумбой для встраиваемой техники можно решить 4 способами:
- купить в комплекте с духовым шкафом или варочной панелью;
- приобрести как отдельный элемент кухонного гарнитура;
- заказать в мебельной фирме;
- сделать самостоятельно.
В первом случае такое происходит нечасто: обычно встраиваемая техника продается без короба или столешницы.
При приобретении мебели необходимо обратить внимание на следующий момент: размеры короба должны превышать параметры духового шкафа на величину не более 15-20 мм.
Это жесткое ограничение, которое необходимо соблюдать, иначе возникнут проблемы во время работы или при установке духового шкафа:
- при меньшем зазоре между стенками короба и духовки не будет циркуляции воздуха, что приведет к перегреву устройства;
- при большем промежутке возникнут проблемы при монтаже.

При установке электроплиты необходимо предусмотреть подвод электропроводки.
А вот какие существуют плюсы индукционной плиты и по каким параметрам стоит их подбирать, подробно указано в статье по ссылке.
Видео: как выбрать плиту для готовки на кухню – варианты зависимых модулей
На видео – правило выбора зависимой варочной панели и духового шкафа:
Встраиваемая техника не имеет вилки, а подключается сразу в электросеть.
Опора для агрегата должна быть прочной, параллельной полу.
Дизайн приобретаемой мебели должен соответствовать стилю кухонного интерьера.
При изготовлении на заказ можно предусмотреть любой вариант, включая угловое размещение. Доверить дело профессионалу предпочтительнее, чем сделать самому, так как при все несложности конструкции установка короба и подключение требует знаний и опыта электрика.
А вот какая плита лучше индукционная или электрическая и по каким параметрам стоит её подбирать, указано тут.
Как выбрать
Встраиваемые варочные плиты и духовые шкафы продаются в комплекте или по отдельности.
По этой причине варочные панели делятся на зависимые и независимые:
- у зависимых поверхностей, продающихся в комплекте с духовкой, кнопки управления находятся на дверце духового шкафа;
- у независимых – управление расположено на ее поверхности.
Духовые шкафы, предназначенные для встраивания, имеют типоразмеры:
- ширину 60, 90, 45 см;
- высоту 45, 55 – 60 см;
- глубину 50 – 55 см.

В конструкции модуля учитываются размеры варочной плиты: расстояние до стены или других вертикальных поверхностей должно быть не менее 50 мм для циркуляции воздуха, чтобы не вызвать перегрева. Тумба под варочную поверхность и духовку может быть с выдвижным ящиком в верхней или в нижней части.
А вот какая газовая плита лучше для использования и по каким параметрам стоит подбирать, поможет понять данная информация.
На видео – как правильно сделать выбор:
Нельзя крепить плиту над духовкой, лишенной вентиляции.
Установка варочной плиты должна иметь идеально ровную поверхность, чтобы не нарушить ее эксплуатационные характеристики.
Подключение варочной плиты к электропроводке требует профессиональных знаний, так как сечение провода подключения рассчитывается самостоятельно в зависимости от мощности плиты.
Электропроводка должна быть защищена, необходимо установить выключатель для отключения плиты в аварийном состоянии.
При установке встраиваемой духовки необходимо соблюдение следующих правил:
- помещение должно быть сухим;
- иметь хорошую вентиляцию;
- расположение духовки должно обеспечить свободный доступ к элементам управления.
В конструкции короба необходимо учесть ширину, глубину духовки и размер зазора под нижний (верхний) выдвижной ящик.
Если в коробе для духового шкафа имеется задняя стенка, то в ней требуется вырезать отверстие для электрических проводов. Проводка должна соответствовать мощности электроприбора.
При установке газового духового шкафа требуется соединить магистральную линию со шлангом от духовки.
Выполнять подключение должен специалист.
После помещения духовки в короб необходимо отрегулировать ее положение по вертикали и горизонтали и закрепить.
При выборе кухонного гарнитура в первую очередь определяют «начинку»: встраиваемую технику. Предлагаемые модели варочных плит и духовых шкафов смотрятся стильно. Многообразие предлагаемых функций, габаритов, расцветок, дизайна дает возможность создать кухонную композицию, подходящую под квадратуру помещения и отвечающую запросам и требованиям хозяев. Встроенная техника размещается в шкафах, что позволяет органично вписать ее в кухонный ансамбль. Очень удобный вариант минимализировать лишние предметы – встроенные розетки в столешницу.
Видео: подключение панели в розетку
На видео – правило подключения панели к сети:
Шкаф для размещения варочной плиты и духового шкафа можно приобрести как элемент кухонного гарнитура. Если такое не предусмотрено, то его изготавливают на заказ или делают собственноручно. Установка и подключение варочной поверхности и духового шкафа требуют профессиональных знаний по электричеству и газовому хозяйству. Смотрите также информацию про мини духовку или мини печь и воздуховоды для вытяжки.
Тумбы под духовые шкафы своими руками: размеры, варочная панель, ящик
Встраиваемый духовой шкаф – модель очень удобная.
Далеко не всех устраивает вариант, когда духовка располагается под варочной панелью: особенно когда оба агрегата нужно включить одновременно. Независимую же модель можно разместить в любом месте и на любой высоте.
Тумбы под духовые шкафы
Размеры изделия
Начала производству духовых шкафов положили иностранные компании. Это заметно сказалось на габаритах изделия.
Стандартной считается ширина моделей в 90–120 см. Это соответствует европейскому представлению о комфорте.
- Однако стандарты российских кухонных гарнитуров совсем иные. Здесь тумба под духовой шкаф и варочную панель имеет ширину в 60 см. В данном случае уступили производители аппаратов и стали выпускать модели с соответствующей шириной. Например, известный производитель товаров для дома Икеа.
Для того чтобы обеспечить простоту монтажа, ширина духовки быть меньше на 1–2 см.
- Сегодня можно найти и совсем миниатюрные встраиваемые модели – с шириной в 45 см, и высотой в 60 см.
Однако, это скорее пробные образцы. Как правило, даже при ширине в 45 см, высота остается стандартной – 85 см. - Глубина в большинстве изделий составляет 50–55 см.
Тумба под встраиваемый духовой шкаф обычно оборудуется выдвижным ящиком для хранения противней, посуды и прочего.
Материалы и инструменты
Тумба под духовой шкаф своими руками – вполне реальная задача. Никаких особых сложностей здесь нет. Для ее изготовления понадобится следующее:
- фанера или ЛДСП толщиной в 16–18 мм;
- столешница толщиной в 28 мм или больше;
- ножки;
- мебельные конфирматы, шканты и саморезы;
- направляющие;
- электродрель;
- столярный клей.
Расчеты кухонной тумбы
Как правило, в инструкции к духовке имеются данные не только по габаритам самой модели, но и требования к установочной нише. Этим стоит воспользоваться при расчетах.
Тумба под духовой шкаф размеры имеет равные параметрам установочной ниши плюс толщина используемого материала.
По сути, она представляет собой короб с двойным дном – горизонтами 1 и 2 и горизонтальной перекладиной наверху – корпусной планкой. Последняя требуется для нормального крепления варочной панели к столешнице. К тому же эта деталь выдерживает расстояние между боковинами, что тоже немаловажно.
Сначала необходимо сделать расчеты, затем из листов ДСП или МДФ вырезают следующие детали:
- боковины – сумма высоты ниши, толщины столешницы и высоты ножек – 2 шт;
- горизонт – то есть, дно, размеры равны точно параметрам установочной ниши – глубине и ширине – 2 шт;
- корпусная планка – ее длине равна ширине ниши, а собственная ширина ее не превышает 100 мм.
Задняя стенка выдвижного ящика, как правило, в деталировку не входит: она изготавливается из обрезков ДВП. Обычно ее высота не превосходит 100 мм.
Детали выдвижного ящика рассчитываются остаточным методом. Сделать это несложно:
- высота фасада равна разности высоты кухонной тумбы, высоты ножек и толщины первого горизонта.
Фасад его не перекрывает из-за особенностей установки духового шкафа. Ширина соответствует 60 см за вычетом 3 мм. Как правило, здесь нет ручки: чтобы им было удобней пользоваться, на втором горизонте делают выемку; - боковые детали по длине равны глубине тумбы за вычетом зазоров, а по высоте – расстоянию между двумя горизонтами за вычетом зазоров;
- длина задней стенки учитывает толщину обоих боковин и толщину направляющих.
ДСП или МДФ можно нарезать по размерам в мастерской: на профессиональном оборудовании выкройка займет куда меньше времени, а точность гарантирована. К тому же в большинстве случаев здесь же детали кромкуют – закрывают торцы меламиновой планкой. В противном случае операцию придется выполнять своими руками.
Сборка изделия
Кухонная тумба под духовой шкаф и варочную панель собирается на конфирматы или шканты. Крепление последних дублируется клеем. Отверстия под них высверливаются заранее.
Допускается крепление на саморезы.
- Сначала нужно собрать сам короб – боковины и горизонтали.
- Затем закрепить корпусную планку, опуская ее на 10 мм от края боковины.
- Ко дну изделия нужно прикрепить саморезами ножки.
- Если выдвижной ящик решено сделать, то,прежде чем устанавливать первый горизонт,на стенках крепят направляющие – шарнирные или телескопические.
- Устанавливают заднюю стенку.
- Собирают изделие и устанавливают на направляющие.
Тумба под духовой шкаф своими руками готова. На фото можно видеть изделие, ничем не уступающие даже известным маркам, наподобие Икеа.
Шкаф под духовой шкаф и варочную панель: размеры тумбы
Благодаря появлению встроенных духовых шкафов появилась уникальная возможность не только получить экономию пространства на кухне, но и сделать ее дизайн более разнообразным и уникальным. Особенно если речь идет о раздельных моделях, в которых духовка монтируется и работает отдельно от варочной поверхности.
Рассмотрим, какие тумбы под духовые шкафы можно использовать и где лучше всего устанавливать такую технику.
Выбираем шкаф под духовой шкаф
Монтаж духового шкафа: выбираем высоту
Все чаще в интерьере кухни встречаются духовые шкафы, которые монтируются выше уровня стола. И это касается не новомодного направления. С появлением первых встраиваемых духовок независимого типа (произошло это событие более 50 лет тому назад), производители таких устройств сразу же предложили размещать их на значительной высоте, так как именно такой вариант монтажа значительно облегчает дальнейшую эксплуатацию устройства.
Такое высокое расположение духовых шкафов имеет и другие важные достоинства:
- за техникой очень просто ухаживать;
- оборудование будет недоступным для маленьких детей;
- извлекать из духового шкафа тяжелые блюда значительно легче и безопаснее.
Если был выбран именно такой способ монтажа оборудования, то тумба под духовой шкаф должна выбираться определенных параметров.
Помимо соответствия ее габаритов с духовкой, следует также подбирать конструкцию, которая сможет выдержать вес агрегата, а также тепловое воздействие с его поверхностью.
Что касается самой высоты размещения встраиваемого духового шкафа, то в данном вопросе следует ориентироваться на панель управления устройства. Оптимальной является установка, в результате которой такая панель находится выше пояса, но ниже уровня глаз хозяйки, как показано на фото.
Особенности установки оборудования под столешницей
Некоторые все же отдают предпочтение традиционной установке встраиваемых духовых шкафов под столешницей. В большинстве случаев духовка ставится непосредственно под варочной поверхностью, однако подобный вариант не является обязательным. Можно поставить оборудование в любом другом месте, где хозяйке будет более комфортно и удобно с ним работать.
Сделать это позволят всевозможные ящики, шкафы и тумбы – выбор будет напрямую зависеть от габаритов техники и предпочтений владельца дома.
При этом стоит выбирать шкаф под встроенный духовой шкаф, произведенный из прочных и высококачественных материалов.
Особенно правильной установка духовки ниже столешницы станет в том случае, если кухонное пространство имеет малые габариты. При обустройстве небольшого помещения высокие и громоздкие шкафы-колонны либо тумбы-пеналы с ящиками станут просто неуместными, так как они забирают и без того ограниченное пространство. В такой ситуации духовой шкаф лучше всего встраивать не в пенал, а в традиционную тумбу, позволяющую получить еще и дополнительное место для готовки.
Что касается интерьеров, то духовой шкаф под столешницей будет идеально смотреться на кухнях, выполненных в винтажном, классическом либо кантри-стиле. Такой способ установки внесет в атмосферу больше уюта и комфорта. Однако не стоит забывать, что размеры шкафа под духовой шкаф являются очень важным параметром, который стоит учитывать заранее.
Какие еще варианты мебели можно выбрать для установки духовки?
Если классический кухонный шкаф под духовой шкаф и варочную панель никак не вписывается в интерьер кухни, тогда можно остановиться и на других вариантах установки оборудования:
- Шкафы-пеналы – это идеальный вариант для просторных помещений, имеющих высокие потолки.

- Монтаж в остров. Сегодня просторные кухни очень часто укомплектовываются островами, которые имеют дополнительную рабочую поверхность. Данный вариант встраивания духового шкафа станет актуальным для тех семей, которые редко эксплуатируют духовку и не имеют маленьких деток, способных с легкостью к ней дотянуться.
- Высокая тумба – это наиболее распространенный вариант мебели для встраивания духового шкафа. Расположенная на краю кухонного гарнитура, такая мебель идеально подойдет для установки духовки. Вариант очень практичен, так как появляется дополнительная поверхность, которую можно использовать для хранения всевозможных кухонных принадлежностей – вазочек, сахарницы, баночек с крупами и т.п. Такой тип планировки лучше всего выбирать для кухонь, имеющих средние габариты и достаточную площадь для работы.
- Угловые мебельные конструкции. Чаще всего в углу монтируется мойка, однако при наличии возможностей данный элемент можно переместить ближе к окну, где освещение значительно лучше.
Свободный угол, таким образом, может быть использован для установки встраиваемого духового шкафа, который благодаря различным ящикам, тумбам и шкафчикам может размещаться совершенно на любой высоте.
Какой бы шкаф под встраиваемый духовой шкаф ни был выбран, он должен не только гармонично сочетаться со всем кухонным гарнитуром, но и иметь прочную и качественную конструкцию, способную выдержать вес оборудования.
Как сделать встроенный шкаф духовки | Руководства по дому
Встраиваемые духовки очень просты. Это простые ящики, поддерживаемые сосновым каркасом. Если у вас есть 30-дюймовый проем — или тот, который вы можете сделать в своих существующих шкафах, вы можете установить встроенную духовку в комплекте с собственным шкафом. Духовки не выделяют чрезмерного тепла с внешних сторон, поэтому вы можете использовать ту же фанеру, которая используется для ваших существующих шкафов. Лучше всего построить простую основу с боковинами, а затем добавить немного отделки снаружи, чтобы придать ей встроенный вид.
У шкафа не будет задней стенки, потому что для большинства духовок требуется полная глубина шкафа.
Поместите два куска сосны 3/4 на 3 на 28 1/2 дюйма на их края, параллельно друг другу на плоской поверхности. Поместите две детали размером 3/4 на 3 на 20 1/2 дюйма на их края между ними, заподлицо с концами. Проденьте четыре скобы по 1 1/2 дюйма через каждый угол длинных частей в концы коротких частей, чтобы сформировать прямоугольную рамку размером 22 на 28 1/2 дюйма.
Поместите кусок фанеры 3/4 на 24 на 28 1/2 дюйма поверх рамы заподлицо с трех сторон.Один конец фанеры будет выступать на 2 дюйма за конец рамы. Это передняя часть шкафа, выступающая кромка на всех базовых шкафах. Обстреляйте фанеру скобами по периметру, чтобы закрепить ее на сосновом основании.
Поставьте два куска фанеры 3/4 на 22 на 34 1/4 дюйма по бокам рамы. Промойте концы фанеры с рамой. Проденьте скобы в произвольном порядке по сторонам фанеры внизу, чтобы закрепить их по бокам рамы.
Поставьте духовку на основание.
Прикрутите один L-образный кронштейн против опрокидывания к задним нижним углам духовки. Для них будет отведенное место. Используйте винты 3/4 дюйма. Включите духовку и вставьте духовку и шкаф обратно в существующие шкафы под столешницей. Вставьте 3-дюймовый шуруп в дрель / отвертку. Ввинтите по одному винту в каждый нижний угол рамы. Наклоните привод на 30 градусов. Установите винт на 1 дюйм вверх и на 1 дюйм от угла. Ввинтите винт под углом в раму, чтобы он вошел в пол.
Измерьте расстояние между краем существующего шкафа с обеих сторон и стороной духовки и вычтите 1/2 дюйма. Используйте настольную пилу, чтобы отрезать два куска твердой древесины по размеру. Измерьте высоту деревянного каркаса на существующих шкафах. Отрежьте две доски по длине с помощью торцовочной пилы.
Нанесите клей на передние края духовки. Поместите деревянные доски на передние края духовки с обеих сторон. Между стенками духовки и деревянными досками должен быть зазор 1/4 дюйма.Вставьте шесть гвоздей диаметром 1 1/4 дюйма в доски из твердой древесины, равномерно расположив их, чтобы закрепить их по бокам шкафа.
При необходимости нанесите морилку и лак на шпатлевку из твердой древесины, чтобы она соответствовала существующим шкафам.
Советы
- Некоторые встраиваемые духовки поставляются с комплектом отделки. Вы можете использовать это, если есть зазор в верхней части духовки между столешницей или внизу. Или вы можете сделать один из твердых пород дерева самостоятельно.
- Размеры указаны для духовых шкафов и шкафов стандартных размеров.Ваш может отличаться. Внесите необходимые изменения, если у вас есть шкафы или духовка нестандартных размеров.
Предупреждения
- Надевайте защитные очки при работе с деревом.
Writer Bio
Специализируясь на мебели из твердых пород дерева, столярных изделиях, шкафах, обустройстве дома и архитектурных столярных изделиях, Уэйд Шэдди работал в жилищном строительстве с 1972 года. Шэдди также работал репортером и писателем в газетах, а также писал в Bicycling Журнал.Шэдди начал публиковаться в различных журналах в 1992 году, а в 2008 году опубликовал роман «Темный каньон».
Духовки и варочные панели | Домостроение
Когда дело доходит до выбора духовок и варочных панелей, выбор, доступный на рынке, просто поражает.
Подумайте, как вы хотите готовить, чтобы сузить круг ваших требований — если вы регулярно готовите для большого количества людей, вам следует подумать о двойной духовке или нескольких одинарных духовках. Также стоит подумать о дополнительных функциях, которые вы будете использовать регулярно — от функций приготовления в микроволновой печи до возможностей самоочистки.
Это удобное руководство направит вас на верный путь к выбору лучших духовок и варочных панелей для вашего дома.
( БОЛЬШЕ : 10 основных функций для новой кухни)
На что обращать внимание при выборе духовок и варочных панелей
Эта одинарная духовка от GoodHome Kitchens в B&Q имеет встроенную микроволновую печь с предварительно установленными настройками сохраняющие привычные блюда. (Изображение предоставлено B&Q)
Большинство встроенных духовок — электрические.
Это происходит главным образом потому, что газовые духовки не готовят так равномерно без электрического вентилятора, но также потому, что они, как правило, дороже и имеют гораздо меньше функций.
Все хорошие духовки в наши дни должны в стандартной комплектации поставляться с основами, а именно с приготовлением с помощью вентилятора и программируемым временем. Однако в дополнение к этому теперь есть огромное количество разнообразных расширенных функций на выбор.
Функции микроволновой печи и гриля особенно полезны, но вам также следует обратить внимание на другие, в том числе:
‘
- Размораживание
- Пицца
- Рецепт: позволяет программировать время и настройки, характерные для определенных продуктов
- Гриль: Для равномерного приготовления мяса
- Температурный зонд
- Пар: для удержания влаги — идеально подходит для некоторых продуктов, которые склонны к высыханию
- Самоочищающаяся
Индукционная плита Caple C970i имеет три большие зоны, что позволяет готовить с несколькими сковороды и разные температуры одновременно.
(Изображение предоставлено Caple)
Несмотря на популярность электрических духовок, газовые плиты по-прежнему являются предпочтительным выбором, поскольку газ обеспечивает превосходный мгновенный контроль нагрева. Однако индукция не за горами.
Gas: Варочные панели доступны как со съемными стойками, так и в виде герметичных конфорок, которые дороже, но их легче чистить. Выбирайте модель с электрическим зажиганием контрольной лампы.
Индукция: Конфорки с магнитной индукцией — отличный выбор; они более энергоэффективны, чем газ, и в два раза быстрее адаптируются к перепадам температуры.Однако индукционные варочные панели дороже покупать и позволяют использовать только сковороды из черного металла.
Керамика: Гладкие, герметичные керамические излучающие и галогенные варочные панели также доступны; они не так отзывчивы, как газовые или индукционные плиты, но могут иметь множество удобных функций, таких как таймеры, датчики, переключатели и сенсорное управление.
Они даже могут сообщить вам, когда плита остынет. Как правило, они намного дешевле индукционных.
При выборе конфигурации вашей варочной панели выбирайте различную силу кольца и рассмотрите конфорку вок, которая имеет тройное кольцо и очень быстро отдает тепло.Тепловое тепло измеряется в британских тепловых единицах (БТЕ) - чем выше число, тем интенсивнее тепло.
Как установить духовки и варочные панели
Духовки изготавливаются по стандартным размерам, поэтому они подходят для специального базового блока, но высота может варьироваться.
Базовый блок будет поставляться с направляющими, а к духовке будут прикреплены два соответствующих скользящих направляющих. Монтаж газовой или электрической плиты осуществляется путем вырезания отверстия в рабочей поверхности согласно размерам, указанным в инструкции.Любые подключения к газу должны выполняться установщиком, зарегистрированным CORGI.
Где лучше разместить духовку и плиту?
Расположить варочную панель таким образом, чтобы вы могли любоваться видами на улицу, — отличная идея, представленная здесь на кухне от Brayer Design.
(Изображение предоставлено: Brayer Design)
Не размещайте плиты возле окон, так как они представляют потенциальную опасность возгорания оконных украшений, а яркий солнечный свет может затруднить определение того, горят ли горелки.
Как плиту, так и духовку следует держать подальше от дверей, чтобы не подвергать опасности людей, входящих в комнату.В идеале должно быть 300 мм рабочего пространства по обе стороны от варочной панели, а в духовках необходимо рабочее пространство хотя бы с одной стороны. Варочные панели следует размещать только над духовкой или основанием, а не над такими приборами, как холодильник.
Между варочной панелью и вытяжкой должно быть минимальное расстояние по вертикали 650 мм и не менее 800 мм до легковоспламеняющейся поверхности. В идеале расположите варочную поверхность возле внешней стены, откуда можно легко отводить пар.
( БОЛЬШЕ : Руководство по вытяжкам)
Что выбрать: одинарную или двойную духовку?
Одна духовка может быть всем, что вам нужно, если вы выберете духовку со всеми необходимыми функциями.
Эта вентиляторная духовка Cooke & Lewis от B&Q — доступный вариант, идеально подходящий для небольших домов. (Изображение предоставлено B&Q)
Покупка двойной духовки имеет смысл для тех, у кого большая семья и кто часто готовит для толпы, что позволяет готовить сразу много разных видов пищи или сохранять пищу теплой в одной, а в другой готовить. Это позволит вам лучше использовать дополнительные функции.
Некоторые люди также предпочитают приобретать отдельную пароварку, которая работает за счет кипячения воды и подачи пара в камеру для приготовления пищи.
Некоторые из новейших моделей духовок позволяют готовить пищу при разных температурах в одной камере, а это означает, что те, у кого нет места для двойной духовки, могут по-прежнему пользоваться некоторыми преимуществами наличия двух.
Объем духовки измеряется в литрах (л). Емкость одинарных духовок составляет около 50-60 л, двойных — 70-80 л. Стандартная ширина 60 см.
Что такое самоочищающаяся духовка?
Духовки с функцией «самоочистки» являются обязательными для многих людей, так как они избавляют от хлопот, связанных с чисткой, сжигая грязь и жир при высокой температуре в течение нескольких часов; пепел просто сметают.
Существует два основных типа — пиролитический и каталитический — но некоторые компании ввели системы на водной основе, которые более экологичны.
Как установить настенную печь
Настенная печь обычно рассчитана на ограниченное количество размеров шкафа. По этой причине важно измерить проем шкафа и сравнить его с размерами духовки, указанными в документации. В некоторых случаях может потребоваться увеличить проем [источник: Frigidaire].
Внимание : Если вы не знакомы с электромонтажными работами или местные законы требуют наличия лицензированного электрика для выполнения задач по замене проводки, вам необходимо нанять квалифицированного электрика [источник: звонки на дом Рона Хейзелтона].
Вот как установить настенную печь:
- Выключите прерыватель цепи, подающий электроэнергию в духовку. Чтобы не рисковать, обмотайте автоматический выключатель лентой, чтобы предотвратить его случайное включение.

- Снимите дверцы старой духовки.
- Удалите крепежные винты и осторожно выдвиньте или поднимите духовку из шкафа. Вам может понадобиться помощь с этим.
- Обрежьте электрические провода, идущие к старой духовке.
- Найдите электрическую распределительную коробку в задней части шкафа. В некоторых домах коробка находится внутри стены. В этом случае вам придется разрезать сухую стену, чтобы обнажить ее.
- Измерьте размеры проема шкафа и сравните их с требуемыми размерами, указанными в документации на новую духовку.Если требуемый проем шире проема шкафа, разделите разницу на два, а затем отметьте и отрежьте половину этой величины с каждой стороны проема.
- Поместите новую духовку рядом с шкафом так, чтобы присоединенный армированный кабель мог доходить до электрической распределительной коробки.
- Прикрепите к кабелю угловой зажим.
- Скрутите вместе провод каждого дома и соответствующий провод кабеля печи. Закрепите провода проволочной гайкой.

- Аккуратно сложите соединенные провода внутри распределительной коробки, установите на место крышку и прикрепите угловой держатель кабеля к крышке.Если вы ранее прорезали стену, чтобы получить доступ к коробке, полностью закройте отверстие.
- Поднимите и вставьте новую духовку в шкаф (попросите кого-нибудь помочь вам с этим) и закрепите ее винтами.
- Прикрепите дверцы духового шкафа и любую входящую в комплект планку.
- Включите автоматический выключатель [источник: вызовы Рона Хейзелтона на дом].
Иммигрировать в Канаду в качестве краснодеревщика ⋆ Ваше полное руководство Щелкните здесь
Migrate Canada »Иммигрируйте в Канаду в качестве краснодеревщика
Как иммигрировать в Канаду в качестве краснодеревщика ?
Если вы собираетесь иммигрировать в Канаду в качестве краснодеревщика, вам повезло! Мастера кабинета пользуются спросом по всей Канаде, и вы можете получить канадскую визу на постоянное жительство с предложением работы или без него.
Несомненно, вы читали в Интернете, что наличие предложения о работе для переезда в Канаду является предварительным условием для доступа к процессу экспресс-въезда, но как краснодеревщик у вас также есть другие возможности для обеспечения своей канадской визы с самого начала.
Для начала, члены кабинета министров имеют право подать заявку на иммиграцию в Канаду в рамках иммиграционной программы правительства Канады, поскольку спрос на членов кабинета министров в Канаде настолько велик, что они включили эту профессию в список целевых профессий, известный как список NOC ( Список национальных кодов занятий).
Код краснодеревщика на NOC: 7272
Это отличная новость для квалифицированных краснодеревщиков со всего мира, которые хотят жить и работать в Канаде.
Express Entry for Canada — это вообще не класс визы, это просто метод (или база данных), который канадская иммиграционная служба использует для выбора правильных кандидатов на получение визы на постоянное жительство и в этом случае в качестве краснодеревщика, желающего иммигрировать в В Канаде мы рассмотрим программу федеральной визы для квалифицированных специалистов и провинциального номинанта.
Краснодеревщики со всего мира имеют право сделать экспресс-въезд на жительство в Канаде при условии, что они обладают необходимыми навыками, опытом и квалификацией в своей стране.
Краснодеревщики, желающие переехать в Канаду для работы в соответствии с этой категорией NOC 7272, могут быть наняты с такими названиями, как:
краснодеревщик
ученик краснодеревщика
сборщик рам и зеркал на заказ
производитель корпусов пианино на заказ
производитель деревянной мебели на заказ
изготовитель деревянных столов по индивидуальному заказу
краснодеревщик мебели
мастер-мастер по изготовлению изделий из дерева
подмастерье / столяр-краснодеревщик
маркер макета — столярное дело
мастер / женщина по образцу — литейное производство
ремесленник / женщина-краснодеревщик
Изготовитель моделей деревянной мебели и арматуры
Изготовитель деревянных моделей
Изготовитель деревянных форм
Инспектор деревянных моделей
Мастер по ремонту деревянных моделей / женщина — литейный цех
Изготовитель деревянных моделей
Все эти роли, выполняемые краснодеревщиками, могут быть поданы в данной конкретной категории NOC из 7272
Задачи е или те, кто хочет иммигрировать в Канаду в качестве краснодеревщика
В целом, краснодеревщики, переезжающие в Канаду, смогут продемонстрировать знания или опыт в следующих областях:
Изучить планы, спецификации или чертежи изделий, которые необходимо изготовить, или подготовить спецификации
Обозначение контуров или размеров деталей на дереве
Работайте на деревообрабатывающих станках, таких как электрические пилы, фуганки, долбежные станки и формовщики, и используйте ручные инструменты для резки, придания формы и формования деталей и компонентов сформируйте единое целое с помощью клея и зажимов и укрепите швы с помощью гвоздей, шурупов или других крепежных деталей
Отшлифуйте деревянные поверхности и нанесите шпон, морилку или полироль на готовые изделия
Ремонт или рестайлинг деревянной мебели, приспособлений и сопутствующих товаров
Можно оценить сумму, тип и стоимость необходимых материалов.
Хотя вышеизложенное является общим руководством, пройдите бесплатную онлайн-оценку для получения дополнительной информации и обязательно подробно перечислите свои навыки и квалификацию.
Emigrate Canada имеет специальный отдел краснодеревщиков Канады, который представляет только квалифицированных краснодеревщиков, иммигрирующих в Канаду. Они понимают вашу профессию и могут говорить на вашем языке, когда дело доходит до объяснения вашего иммиграционного пути и способа получения канадской визы для вас (и вашей семьи).
Краснодеревщик Квалификация, необходимая для иммиграции в Канаду в качестве краснодеревщика. Мы рады представлять клиентов Cabinet Maker со всего мира, поэтому, независимо от вашей страны квалификации, не стесняйтесь обращаться к нам сегодня, чтобы получить полную информацию о ваших шансах на иммиграцию в Канаду. Как иммигрировать в Канаду в качестве краснодеревщика
Первым этапом вашего иммиграционного процесса в Канаду является расчет ваших иммиграционных баллов в Канаду для экспресс-въезда с использованием Канадской комплексной рейтинговой системы.
Очки CRS присуждаются (помимо прочего)
Возраст
Квалификация
Знание английского языка
Знание французского
Навыки вашего партнера
Опыт работы
Помимо предоставления вам важных очков CRS, эти факторы также учитываются к вашему общему баллу иммиграционных баллов, который должен равняться или превышать в общей сложности 67
Возьмите наш f r ee онлайн-оценка визы , чтобы получить актуальный отчет о том, достаточно ли у вас баллов для иммиграции в Канаду в качестве краснодеревщика из обоих перспектива экспресс-въезда и иммиграционных пунктов.
После того, как вы получите ITA (приглашение на подачу заявления) от канадской иммиграционной службы в результате подачи заявления на экспресс-въезд, у вас будет всего 60 дней для подачи официального заявления, поэтому вы ни при каких обстоятельствах не должны подавать заявление на экспресс-въезд. ‘получить определенные баллы без предварительной проверки всех баллов с помощью различных тестов, сертификатов об эквивалентности образования и оценок квалифицированных профессий.
После того, как вас пригласили подать заявление на получение канадской визы, вы не можете вернуться и пройти ретроспективную проверку этих вещей, это необходимо сделать до того, как вы потребуете какие-либо баллы за них, и, учитывая, что ваш профиль экспресс-входа действителен только в течение одного года, это имеет смысл представить наилучший случай с самого начала.
Оценка навыков для иммиграции в Канаду в качестве краснодеревщика
Процесс проверки ваших навыков, опыта и квалификации в сфере столярного дела называется оценкой навыков и служит двум целям.
Канада Оценка навыков краснодеревщика цель первая: с положительной оценкой навыков вы сможете претендовать на необходимые баллы как в Express Entry CRS, так и в возможной программе Federal Skilled Trades.
Канада Оценка навыков краснодеревщика цель вторая: ваша положительная оценка навыков также будет удваиваться с квалификацией Red Seal, поэтому оценка ваших навыков краснодеревщика означает, что вы с первого дня получите квалификацию для работы краснодеревщиком в Канаде.
Как зарегистрироваться для иммиграции в Канаду в качестве краснодеревщика
В рамках вашего иммиграционного процесса специальный менеджер по работе с клиентами в Канаде организует для вас процесс эквивалентности Red Seal, поэтому вам не нужно беспокоиться о том, как переехать в Канада; мы позаботимся о вас, как только вы начнете.
Могу ли я иммигрировать в Канаду в качестве краснодеревщика без предложения о работе?
Ответ — твердое «да», при условии, что у вас есть разумный общий балл CRS в вашем заявлении на Express Entry и вы можете соответствовать порогу 67 иммиграционных баллов для вашей канадской федеральной визы для квалифицированных специалистов.
Технически не существует минимального балла CRS, необходимого для подачи профиля для экспресс-записи в Канаде.
Конечно, получение предложения о работе (задокументированное надлежащим образом для иммиграционных целей, например, LMT) даст вам мгновенное повышение CRS на 600 баллов, поэтому имеет смысл начать этот процесс, как только это будет практически возможно.
Вакансии краснодеревщика в Канаде
Профессии, включенные в список NOC Канады, могут быть классифицированы как «востребованные», а код производителя краснодеревщиков 7272 прочно вошел в этот список в течение многих лет с множеством возможностей для всех. страна.
Как квалифицированный новый и высококвалифицированный постоянный житель Канады, вы можете работать полный рабочий день с первого дня, либо в качестве прямого сотрудника, либо в качестве подрядчика, либо в качестве индивидуального предпринимателя. Работа краснодеревщика в Канаде часто оплачивается лучше, чем в Великобритании, Европе и Азии, и канадское трудовое законодательство соблюдает баланс между работой и личной жизнью. Кроме того, краснодеревщики в Канаде сильно объединены в профсоюзы, что, хотя во многих частях мира звучит как ругательство, на самом деле играет важную роль в отстаивании лучшей оплаты и условий труда во всем графстве.
Столярная промышленность обслуживается Ассоциацией краснодеревщиков и Канадской ассоциацией кухонных шкафов.
Emigrate Canada — это специалисты по визе в Канаду, специализирующиеся на кабинете министров, со специальным отделом квалифицированных специалистов, который идеально подходит не только для оформления ваших иммиграционных документов, но и для вашей регистрации на работу с первого дня.
Иммигрировать сейчас в Канаду в качестве краснодеревщика. Начните работу и пройдите нашу онлайн-оценку визы, чтобы убедиться, что вы имеете на это право.
Бесплатная онлайн-оценка визы
Иммигрировать в Канаду в качестве краснодеревщика
Средняя оценка: 1 отзыв
28 октября 2020 г.
от Mduduzi gumpo на Иммиграцию в Канаду в качестве краснодеревщика
Краснодеревщик
Иммигрировать в Канада как плотник
Как написать биографию (CV) для заявления о приеме на работу
Итак, вы ищете новую работу.
Кажется захватывающим, понятно? Такое множество захватывающих возможностей, и все, что нужно, чтобы ими воспользоваться, — это отправить хорошее резюме.
Представьте себе:
Вы нашли работу своей мечты. Вы знаете, что идеально подходите. Вы отправляете свое резюме и затаив дыхание ждете обратного звонка. Но этого никогда не бывает.
Знакомо? Да, для большинства из нас это так. Но как это возможно?
Я знаю ответ на этот вопрос:
Ваше резюме никогда не читали. Этого было недостаточно.
Мужайтесь, этот кошмарный сценарий больше не разворачивается.Это потому, что вы скоро научитесь верному способу превратить свое обычное резюме в потрясающее.
Прочтите это руководство, и вы увидите:
- Образец резюме лучше, чем 9 из 10 других резюме.
- Как написать биографию, даже если у вас нет опыта.
- Советы и примеры того, как отразить навыки и достижения в идеальном резюме.
- Как описать свой опыт в резюме, чтобы получить любую работу, которую вы хотите.

Вот пример бесплатного резюме, созданного с использованием нашего резюме и создателя резюме.
Хотите сэкономить время и подготовить свое резюме за 5 минут? Попробуйте наш конструктор резюме. Это быстро и легко. Кроме того, вы получите готовый контент, который можно добавить одним щелчком мыши. Посмотрите 20+ шаблонов резюме и создайте свое резюме здесь .
Создайте свое резюме прямо сейчас
Образец резюме, созданный с помощью нашего конструктора — Посмотрите другие шаблоны и создайте свое резюме здесь .
Один из наших пользователей, Никос, сказал следующее:
[Я использовал] хороший шаблон, который я нашел на Zety.В моем резюме теперь на одной странице , а не на на трех . То же самое.
Вот как написать резюме:
- Убедитесь, что вы знаете, когда использовать резюме
- Выберите лучший формат резюме
- Добавьте свою контактную информацию правильно
- Начните с личного резюме профиль (резюме или цель резюме)
- Укажите свой соответствующий опыт работы и ключевые достижения
- Правильно составьте образовательный раздел резюме
- Укажите соответствующие навыки, соответствующие вакансии
- Включите дополнительные разделы резюме, чтобы произвести впечатление на рекрутера
- Организуйте это все на шаблоне профессионального резюме
- Дополните свое резюме сопроводительным письмом
Хотите увидеть образец резюме, которое принесет пользу вашей профессии, и специальное руководство о том, как его написать? См .
: Примеры резюме и руководства для 99+ вакансий
Если вы пишете академическое резюме , перейдите на Руководство по написанию академического резюме и шаблон для копирования
Ищете работу в США? Узнайте, как написать американское резюме, которое выделяется из толпы.Прочтите наше руководство: Как составить резюме: пошаговое руководство (30+ примеров)
Если вы ищете работу в Индии, вам может понадобиться формат биоданных. У нас есть: Формат биоданных: бесплатные шаблоны для работы [Бесплатная загрузка]
1
Убедитесь, что вы знаете, когда использовать резюме
Давайте начнем с основ для упрощения написания резюме:
Что такое резюме?
В полной форме CV обозначает curriculum vitae (на латыни: жизненный путь).
В США, Канаде и Австралии резюме — это документ, который вы используете в академических целях. Академическое резюме США описывает каждую деталь вашей научной карьеры. В других странах CV является эквивалентом американского резюме . Вы используете его при приеме на работу.
Поскольку этот документ называется по-разному в разных странах, многие люди продолжают спрашивать:
В чем разница между резюме и резюме?
Давайте проясним это раз и навсегда:
В сфере найма в настоящее время практически нет формальной разницы между резюме и резюме.Это то же самое, что британцы называют резюме, а американцы — резюме.
Так же, как они делают с чипсами и картофелем фри, футболом и футболом или королевой Елизаветой и королевой Бей.
Итак, если вы подаете заявку в европейскую компанию, вам следует создать резюме. Но если вы подаете заявление к работодателю из США, вам следует составить резюме.
И нет, резюме не является сопроводительным письмом. Биографические данные — это подробный список спецификаций, а сопроводительное письмо — это полноценная маркетинговая кампания.
Вот тревожная мысль:
Каждый раз, когда вы ищете работу, вы соревнуетесь в среднем с 250 другими кандидатами.
Да, вы правильно прочитали.
Представьте , что вы, , рекрутер, и вам нужно просмотреть 250 заявлений о приеме на работу. Вы их все внимательно читаете? Нет, конечно, нет.
Рекрутеры тратят всего 6 секунд на сканирование каждого резюме.Итак, самое первое впечатление является ключевым. Если вы отправите аккуратный, правильно организованный документ, вы убедите рекрутеров потратить больше времени на ваше резюме.
С другой стороны, плохо отформатированное резюме будет отброшено в первом раунде проверки.
Вот как правильно отформатировать резюме.
Начните с создания схемы резюме, разделенной на следующие разделы:
CV: правильный порядок разделов
- Заголовок резюме с контактной информацией
- Личный профиль: цель резюме или резюме резюме
- Опыт работы
- Образование
- Навыки
- Дополнительные разделы
Профессиональный совет : Если вы только что закончили университет и вам нужно написать резюме студента без опыта, или если вы закончили очень в престижном учебном заведении за последние 5 лет, поставьте раздел образования выше своего опыта работы.
При заполнении разделов всегда помните о золотых правилах форматирования резюме:
Выбирайте четкие, разборчивые шрифты
Выберите один из стандартных шрифтов CV: Arial, Tahoma или Helvetica, если вы предпочитаете шрифты без засечек, и Times New Roman или Bookman Old Style, если вы обычно выбираете шрифты с засечками.
Используйте размер шрифта от 11 до 12 пунктов и одинарный интервал. Для вашего имени и заголовков разделов выберите размер шрифта от 14 до 16 пунктов.
Соответствуйте макету вашего резюме
Установите поля в один дюйм для всех четырех сторон.
Убедитесь, что заголовки ваших резюме единообразны — сделайте их крупнее и жирным, но не используйте курсив и подчеркивание.
Придерживайтесь единого формата даты в своем резюме: например, 11-2017 или ноябрь 2017 года.
Не забивайте свое резюме бесполезной графикой
Меньше значит больше.
Белое пространство — ваш друг — рекрутерам нужна передышка!
Кроме того, в большинстве случаев после того, как вы отправите свое резюме, оно будет напечатано черными чернилами на белой бумаге. Слишком большое количество изображений может сделать его неразборчивым.
Получите фотографии из вашего резюме
Если вас явно не попросят включить вашу фотографию в объявление о вакансии.
Если да, убедитесь, что используете профессионально выглядящую фотографию, но не такую жесткую, как фотография на удостоверение личности.
Сделайте свое резюме кратким и актуальным
Не входите в число тех кандидатов, застрявших в девяностых годах, которые думают, что они должны включить в свое резюме каждую деталь своей жизни.
В настоящее время найм — это чертовски беспокойный бизнес. Ни у кого нет времени заботиться о том, в какой средней школе вы учились, или читать более 10 пунктов с описанием прошлой работы. Мы вернемся к этому позже.
Совет для профессионалов : Когда вы закончите писать, сохраните свое резюме в формате PDF, чтобы убедиться, что макет вашего резюме не изменился.
Но обратите особое внимание на описание должности. Некоторые работодатели не принимают резюме в формате PDF. В таком случае отправьте свое резюме в Word.
Узнайте больше о форматировании резюме из этого краткого специального руководства, которое я недавно написал: Форматирование резюме — идеальная структура для резюме
Хорошо, поэтому у вас есть лучший шаблон резюме, готовый для вы знаете основные правила написания резюме. Пора нырнуть!
Вы хотите, чтобы рекрутеры перезвонили вам, поэтому вам нужно сообщить им, как они могут связаться с вами.
В разделе контактной информации введите свой:
Раздел контактной информации кажется довольно простым, но вот единственная причина, по которой это может быть сложно:
Рекрутеры будут использовать его для исследования вас онлайн. Если ваши профили в социальных сетях непрофессиональны или информация в вашем профиле LinkedIn не совпадает с данными в вашем резюме, вы немедленно выбываете из гонки.
Хотите избежать этого? Прочтите наше руководство: Как проверить свое присутствие в Интернете, прежде чем рекрутеры найдут вас .
4
Начните с личного профиля резюме (резюме или цель резюме)
После включения контактной информации в резюме большинство кандидатов сразу же переходят к своему опыту работы или образованию.
Но у вас все получится. Вас действительно запомнит работодатель.
Итак, как сделать резюме популярным?
Все, что нужно, — это заявление из личного профиля резюме — короткий, энергичный абзац из 100 слов, который объясняет рекрутерам, почему и — именно тот кандидат, которого они искали.
Ваш личный профиль будет либо целью резюме, либо резюме резюме.
В чем разница?
Цель CV показывает, какими навыками вы овладели и как бы вы подошли. Это хороший выбор, если у вас небольшой опыт работы, имеющий отношение к той работе, которую вы пытаетесь получить, например, если вы пишем студенческое резюме.
Резюме, в свою очередь, подчеркивает ваш карьерный прогресс и достижения. Используйте его, если вы опытный профессионал и имеете большой опыт работы в своей области.
А теперь взглянем на несколько примеров. Допустим, есть вакансия медсестры. Вот примеры целей и резюме медсестер.
Пример цели резюме
неправильно Медсестра, недавно получившая лицензию, ищет сложную сестринскую роль в медицинском учреждении, где я могу проверить свои навыки.
Не ужасно, правда? Проблема в том, что цель этого резюме сводится к следующему: «Я хочу работу, потому что я научился для этой работы.”
Взгляните на другой объективный образец CV.
Цель для резюме — пример
справа Надежная лицензированная медсестра NMC, обученная работать в условиях высокого стресса и сохранять спокойствие под давлением. Мы стремимся к тщательному учету и аналитическим навыкам, чтобы помочь больнице Святого Франциска решить ваши предстоящие проблемы.
Видите разницу? Последний кандидат сосредоточился исключительно на том, что она может предложить своему будущему работодателю.Она также упомянула название конкретной больницы, в которую она обращается.
И да, именование — это то, что вы тоже должны определенно сделать в своем резюме.
Верно, это означает, что вы не сможете рассылать свое резюме каждой компании, которая в настоящее время нанимает сотрудников, но, опять же, когда вы в последний раз отвечали на электронное письмо «Уважаемый пользователь»?
Как мы уже говорили, если у вас есть соответствующий опыт работы, начинайте свое резюме с резюме, а не с цели.
Ознакомьтесь с этими образцами резюме.
Образец резюме
справа Двуязычная (английский и голландский) педиатрическая медсестра с более чем 15-летним опытом работы в отделениях интенсивной и неонатальной терапии общественной больницы. Стремится использовать управленческий опыт в качестве старшей педиатрической медсестры в больнице общего профиля, помогая внедрять новые программы обучения персонала.
Главный директор больницы только что взял трубку, чтобы позвонить этому кандидату.
Что такого хорошего в этом резюме?
Прежде всего, он суперспецифичен. Он дает полное представление о биографии кандидата и показывает, как ее опыт поможет ей справиться с конкретными проблемами, с которыми сталкивается больница.
Вот еще один пример резюме.
CV Пример — краткое содержание
неверно Педиатрическая медсестра с многолетним опытом наблюдения за лекарствами и записями о состоянии здоровья новорожденных.
Этот, с другой стороны, говорит немного больше, чем «Я медсестра». Он не представляет ничего, кроме общих обязанностей всех медсестер.
В резюме никогда не употребляйте бессмысленные модные словечки.
При создании резюме в нашем конструкторе перетаскивайте пункты списка, навыки и автоматически заполняйте скучный материал. Проверка орфографии? Чек . Начните создавать свое резюме здесь .
Когда вы закончите, составитель резюме Zety оценит ваше резюме и скажет , ровно , как его улучшить.
Написать цель или резюме для вашего профессионального резюме сложно, и мы это знаем. Вот почему мы составили специальное руководство по созданию этого раздела: 20+ CV Личное заявление / Примеры личного профиля (Руководство по написанию)
Для получения более подробных примеров резюме или целей посетите: Как написать резюме: 21 лучший пример, который вы увидите и 20+ объективных примеров резюме — используйте их в своем резюме (советы)
5
Укажите свой соответствующий опыт работы и ключевые достижения
Чаще всего раздел об опыте работы является самой важной частью всего вашего резюме — той, которая привлекает больше всего внимания.
Если вы думаете: «Легко, мне просто нужно перечислить мои предыдущие должности, даты работы и мои обязанности», подумайте еще раз.
Все вышеперечисленное необходимо в базовом резюме. Но «базовый» не даст вам работу мечты.
Дело в том, что рекрутеры знают, что вы сделали. Они хотят знать , насколько хорошо вы это сделали, и , что вы можете предложить своему потенциальному работодателю.
Как найти работу: 5 советов
Ваши попытки найти новую работу не увенчались успехом? Вот список полезных советов, как получить должность своей мечты!
Добро пожаловать на наш полезный сайт — Мотивационные советы! 🙂
Иногда поиск работы может быть довольно утомительным как физически, так и психологически.
Найти работу своей мечты можно только позитивно в любой ситуации.
Но на самом деле не так просто избежать негативных эмоций по поводу трудоустройства, тем более, что отказы от работы так распространены.
Так как же нам всегда быть активными и не унывать?
Как найти достойную работу?
Вот что нужно запомнить!
5 советов по поиску работы
1. Качественно составленное резюме поможет вам найти работу!
Если у вас есть готовое резюме, его необходимо внимательно отредактировать и, возможно, отредактировать.
При написании резюме большинство людей стараются заполнить его как можно большей личной информацией, но работодателям обычно не нужна вся эта информация.
Некоторые профессиональные HR утверждают, что для каждого заявления требуется отдельное резюме.
Но этот метод очень трудоемкий. Разумнее иметь три типа резюме:
- Резюме с указанием навыков соискателя.
- Резюме с опытом и знаниями соискателя.
- Резюме с достижениями соискателя в определенной области.
Чаще всего, читая предложения о работе, сразу понимаешь, какой тип сотрудников нужен компании, чтобы иметь возможность скорректировать свое резюме.
Вы можете найти свои рекомендации по резюме здесь.
2. Сопроводительное письмо поможет вам найти работу!
Выберите работу, которая вам нравится, и вам никогда не придется работать ни дня в жизни.
Конфуций
Многие соискатели делают огромную ошибку, прикрепляя к своим резюме шаблон сопроводительного письма.
Но индивидуально подобранное сопроводительное письмо так же важно, как и идеально подходящее резюме! Его содержание также важно для демонстрации лучших качеств сотрудника.
Пожалуйста, укажите в сопроводительном письме вашу личную выгоду для компании и почему именно вы должны быть трудоустроены.
Напишите письмо так, чтобы оно привлекало внимание. Эта форма обращения должна отражать ваш самый высокий интерес к должности, на которую вы претендуете!
Хотите найти достойную работу?
Тогда не поленитесь, примите во внимание эти советы и улучшите свое будущее!
3.Смена квалификации поможет найти работу!
Те, кто долго не может найти работу в определенной области, могут подумать о расширении своего кругозора и попытаться применить свои навыки в другой профессиональной сфере.
Потратьте некоторое время на размышления о том, как вы можете реализовать свои таланты в других областях, и вы обязательно найдете новые способы достижения успеха!
4. Если хочешь найти хорошую работу, ставь перед собой новые цели!
Это грустно, когда ваши попытки найти работу не увенчаются успехом.
Наверное, нужно изменить тактику поиска?
Например, вы можете составить специальный список обязательных дел, выполнение которого поможет вам достичь своей конечной цели.
Если вы будете терпеливо выполнять все задания из вашего списка, вы не будете чувствовать себя застрявшим в поиске работы. Рано или поздно у тебя все получится.
5. На разных мероприятиях можно найти работу!
Посещайте различные мероприятия.





Иммигрировать в Канада как плотник


: Примеры резюме и руководства для 99+ вакансий
В США, Канаде и Австралии резюме — это документ, который вы используете в академических целях. Академическое резюме США описывает каждую деталь вашей научной карьеры. В других странах CV является эквивалентом американского резюме . Вы используете его при приеме на работу.

Выбирайте четкие, разборчивые шрифты

Соответствуйте макету вашего резюме
Не забивайте свое резюме бесполезной графикой

Получите фотографии из вашего резюме
Сделайте свое резюме кратким и актуальным
Но обратите особое внимание на описание должности. Некоторые работодатели не принимают резюме в формате PDF. В таком случае отправьте свое резюме в Word. Выберите работу, которая вам нравится, и вам никогда не придется работать ни дня в жизни.
Конфуций
Это грустно, когда ваши попытки найти работу не увенчаются успехом.







Однако, это скорее пробные образцы. Как правило, даже при ширине в 45 см, высота остается стандартной – 85 см.
Фасад его не перекрывает из-за особенностей установки духового шкафа. Ширина соответствует 60 см за вычетом 3 мм. Как правило, здесь нет ручки: чтобы им было удобней пользоваться, на втором горизонте делают выемку;
Свободный угол, таким образом, может быть использован для установки встраиваемого духового шкафа, который благодаря различным ящикам, тумбам и шкафчикам может размещаться совершенно на любой высоте.