Чертеж дивана углового: Как сделать угловой диван самому своими руками. Размеры, чертежи.
Как сделать угловой диван самому своими руками. Размеры, чертежи.
Введение к инструкции.
В этой инструкции я подробно расскажу вам как можно своими руками сделать угловой диван в домашних условиях. Совершенно бесплатно вы получите подробные чертежи дивана с размерами деталей каркаса, схемы сборки, карты раскроя ткани, подробный рассказ о том, как обить (обтянуть тканью) диван самому. Инструкция заняла много страниц, поэтому сверху вы видите кнопку меню с навигацией по разделам.
Статья принадлежит сайту NovaMebel74.ru
Сделать данный диван по инструкции доступно человеку с минимальным уровнем подготовки и с небольшим набором инструментов. Я не агитирую делать дома копии мягкой мебели высочайшего класса, но диван, который я предлагаю не уступит по качеству 90% имеющемуся в магазинах ассортименту, а многие даже превзойдет. В пользу самостоятельного изготовления есть несколько аргументов:
- Вы экономите деньги. Диван обойдется вам в 3-5 раз дешевле, чем купленный в магазине.
Я разработал диван максимально заботясь об экономии (конечно, не в ущерб качеству — оно на первом месте). - Вы делаете диван сами, а значит сами контролируете качество! Вам не нужно опасаться будет ли в вашем диване сырой брус, сучки на ответственных местах, некачественный поролон и т.п. Вы сами за все отвечаете, а ведь себя вы обманывать не будете. А как сделать диван правильно, я вас научу.
- Вы сможете сделать диван нужного вам размера.
- Впоследствии вы сможете самостоятельно сделать перетяжку дивана и, опять же, сэкономить. Для примера, посмотрите сколько стоит профессиональная перетяжка.
- Ну и наконец ни с чем не сравнимое удовлетворение и гордость за работу своих рук.
Это угловой диван с достаточно простыми, минималистичными формами. Дизайн его выглядит очень современно, в магазинах такие диваны стоят не один десяток тысяч, но его вполне можно сделать своими руками в домашних условиях.
Изначально я опишу изготовление дивана без механизма раскладывания, но все будет сделано так, что не составит труда в дальнейшем сделать этот диван раскладным, с механизмом трансформации Дельфин.
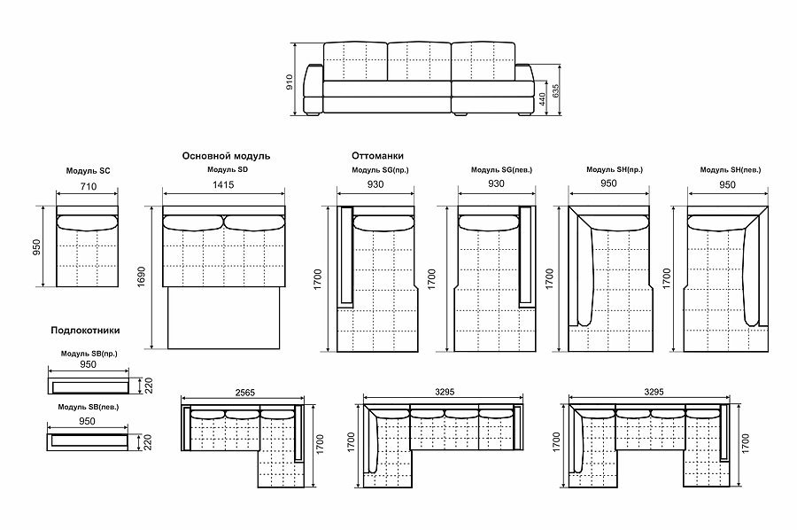
Габаритные размеры дивана без учета подушек спинки указаны на чертеже
Далее: подготовка к изготовлению дивана.
Свои отзывы и вопросы вы можете оставить на Странице отзывов
Дисклеймер: Весь материал инструкции бесплатен для всех желающих сделать диван самостоятельно. Используйте по своему усмотрению. Автор не несет ответственности за любые последствия использования данной инструкции.
как сделать раскладной в домашних условиях пошаговая инструкция, перетяжка, видео
Угловой диван востребован всегда. Он вместителен и не занимает много места. Не зря такие диваны называют семейными, ведь разместиться на нем можно всей семьей.
Актуальна сегодня мебель, сделанная своими руками, и диваны не являются исключением.
Плюсы самостоятельного изготовления
Оригинальность исполнения и самостоятельный выбор форм и цветов – главные преимущества самостоятельного изготовления. При этом ценовой диапазон вы контролируете сами, выбирая материал по кошельку. Еще один плюс – контроль качества. Все зависит лишь от вас, и поэтому нет риска быть обманутым.
Самое приятное – эстетическое удовольствие и чувство гордости за проделанную работу. Восторг окружающих и уважительные взгляды на ваше детище лишь усилят это состояние. Поэтому можно смело браться за выполнение дивана для комфорта и уюта вашего дома.
Выбор материала
К выбору материала следует подходить очень серьезно, нужно продумать устройство дивана заранее. Составив подробный список всего необходимого, можно отправляться в строительный магазин. Толщина и количество всего необходимого будут зависеть лишь от ваших предпочтений и пожеланий.
Основа дивана чаще всего бывает выполнена из дерева, бруса хвойных деревьев. Обычно предпочтение отдают сосновому брусу, так как он крепче своих «собратьев». Можно выделить следующие важные материалы:
- ДВП – дно для дивана и выдвижных ящиков.
- ДСП – ламинированный, служит для мебельного щита (основание дивана и подлокотников).
- Фанера – обшивка для каркаса дивана.
Лучшей считают березовую. - Поролон, синтепон – материалы для набивки спинки дивана, подушек.
- Ткань для обивки – декоративная часть дивана, служащая для перетяжки и создания конечного образа.
- Крепежи – шурупы, саморезы, уголки, гвозди и все то, с помощью чего будет осуществляться сборка элементов.
- Выдвижной механизм – тип механизма, выбор зависит от вашего желания, а также от умений.
- Мебельные ножки – могут быть устойчивыми или на колесиках.
- Клей, нитки – пригодятся при соединении кусков поролона и работе по перетяжке.
Необходимые инструменты
Итак, нужно будет приготовить следующее:
- Шуруповерт с разными насадками – для ввинчивания креплений или создания отверстий.
- Циркулярную пилу – для резки крупных элементов, требующих точности (или электролобзик).

- Ножовку (ручную пилу) и стусло – для резки точных углов.
- Нож для резки поролона и ножницы для ткани.
- Швейную машинку – для чехла и перетяжки.
- Мебельный степлер – для закрепления материи.
- Шпагат или бечевку – для придания интересной формы спинке и различным элементам.
Как сделать самому модель в домашних условиях?
Итак, нужна подготовка. Для изготовления дивана необходимо сделать чертеж со всеми размерами и элементами. Если у вас есть проблемы с нарезкой, то можно заказать ее в магазине, где будут приобретаться материалы.
Пронумеруйте все детали (в соответствии с чертежом) и аккуратно разложите все по мере важности: самое необходимое – сверху или рядом, далее – элементы поменьше.
Сборку важно начинать с больших частей, затем нужно постепенно «наращивать» на каркас все остальное. Крепления могут быть только шурупами. Для долговечности можно сначала проклеить, а потом закрепить результат шурупами.
Изготовление.
Учитывая тот факт, что диван угловой, нужно не путать детали короткой и длинной сторон. Порядок выполнения:
- Для начала выставите две боковины и с помощью крепежей соедините их с горизонтальным брусом и вертикальными стойками. Точек крепления должно быть как минимум четыре для каждой стойки. Каркас одной стороны готов. Теперь его нужно обшить. Сверху на раму прикрепляется лист фанеры. К спинке нужно прикрепить ДСП.
- Далее нужно перейти к сборке второй части – короткой.
Здесь также будет находиться ящик для белья. По бокам нужно прикрепить продольные поперечные бруски. Обшейте готовый каркас и посадочное место ДСП и фанерой. Дно закройте ДВП.
- Если ящик съемный, то его можно изготовить из ДВП. Для механизма подъема просверлите отверстия для крепления болтов и закрепите.
- Подлокотники для дивана могут быть съемными, тканевыми или же связанными с каркасом. Для этого к каркасу прикрутите брус, повторяющий форму подлокотника. Все это обшивается ДСП.
- Если же подлокотники будут необычной формы, с изгибами, то используйте ДВП и много мелких гвоздей. Острые границы нужно сгладить, чтобы обшивка не истиралась.
- Готовую деревянную конструкцию обклейте поролоном – для сидений возьмите цельные плотные куски на левую и правую части, а спинку можно сделать сборной, из нескольких элементов.
Рекомендуемая толщина поролона – более 100 миллиметров. Если же такой толщины нет, то можно склеить между собой тонкие элементы.
- Если хочется сделать интересную спинку с изгибами, то используйте шпагат и остатки поролоновых кусков, придавая красивую форму. Для подлокотников же лучше использовать ватин. Сборка основы на этом этапе закончена.
- Переходите к обивке. Чтобы не истиралась ткань, не износился поролон, между ними лучше сделать утяжку агротекстилем. Для перетяжки выбирайте плотные износоустойчивые ткани – гобелен, терможаккард или шенилл.
- Для точности и красоты необходима выкройка или лекало.
Можно также приложить ткань к дивану и наметить мелом места для резки. При этом не забудьте оставить ткань для припусков – по 2-3 сантиметра. При выкраивании спинки учитывайте ее форму, создавая соответствующие элементы. Перетяжка может быть с прошитыми элементами.
- Для создания выпуклостей спинки воспользуйтесь шпагатом и степлером. В спинке заранее проделайте отверстия для натягивания. В отверстия проведите петлю – и именно к ней прикрепляйте шпагат.
- Занимаясь обивкой, следите за равномерностью натяжки. Рисунок должен совпадать. Чтобы упростить работу, используйте однотонные ткани или рисунки, не требующи точности.
Если вы любитель мягких диванов, то можно сшить подушки по размеру и добавить к каркасу.
При необходимости их можно будет просто убрать.
Делаем на балкон или в беседку
С угловым диваном на балконе и в беседке уют вам обеспечен. Летними теплыми вечерами будет очень приятно собраться всей семьей или пригласить друзей.
Такой диван можно создать из обычных и всем знакомых поддонов. Еще одно название – паллеты.
Вся работа состоит в выстраивании необходимой конструкции из ящиков и их креплении. Однако для эстетичности нужно заранее обработать поддоны любым удобным и подходящим под интерьер способом – шлифовка, окрашивание, покрытие лаком, создание эффекта состаривания или глянца, декупаж, рисунок. Подойдет все, что придет в голову и будет сочетаться с тканью.
Потом нужно будет сделать сиденье. Ставьте несколько поддонов друг на друга, пока не получите необходимые высоту и длину. Скрепите их между собой саморезами. Между ящиками можно положить цельные листы фанеры и получить дополнительные полочки для хранения вещей.
Затем следует заняться спинкой. Поставьте паллеты вертикально относительно сиденья, чтобы создавалась буква «Г».
Обшейте полученный каркас фанерой или листами ДСП. Далее можно обклеить элементы поролоном или же сделать съемные сидушки – не прикрепляя фанеру к поддонам, обшить поролоном и тканью. При необходимости их можно будет просто убрать. Далее сшейте необходимые элементы – подушки разных размеров, подлокотники. Для беседки такие диваны актуальны, в дождливую погоду и холодное время года подушки можно будет снять.
Угловой диван – находка для большой семьи и маленького пространства.
Он создает атмосферу уюта в любом помещении – будь то квартира или беседка. Благодаря большому посадочному месту он может служить и постелью, и местом отдыха для большой компании.
Ниже представлено видео, которое поможет вам быстро и без труда собрать каркас углового дивана.
чертежи с размерами, схемы, фото
Диван, угловой, а тем более раскладной – конструкция куда более сложная, чем кровать. Дело в том, что она объединяет в себе особенности каркасной и мягкой мебели. К тому же диван, в отличие от той же кровати – предмет не утилитарный. Он предназначен для комфортного приятного времяпрепровождения и к тому же должен украшать интерьер. И эти функции – дополнительное удобство и изящество, требуют мастерства куда большего.
Чертежи и схемы
Диван любой формы – проект сложный. Его изготовление начинается с разработки чертежа. И предполагаемые размеры – далеко не единственный фактор, который придется учитывать. Самый малый список включает следующее:
- габариты дивана – общие и всех его частей;
- угол наклона спинки;
- механизм трансформации, если предполагается раскладывающийся диван;
- механизм выдвижения ящиков или устройство отсеков хранения;
- толщина и жесткость мягкой обивки – сиденье, спинки, подлокотники, подушки;
- высота ножек.
Кроме того, необходимо хотя бы приблизительно рассчитать совокупную нагрузку на диван – собственный вес, вес всех пользователей и динамическую нагрузку, и, соответственно, усилить элементы каркаса должным образом.
Чертеж включает проекции всех рабочих узлов дивана, так что без умения чертить или знания соответствующих компьютерных программ обойтись нельзя.
Можно воспользоваться готовой схемой на страницах сайтов.
Рабочий чертеж при этом должен учитывать все вышеупомянутые факторы и включать три проекции каждого модуля. При этом изменять размеры дивана или его частей не рекомендуется: конструкция рассчитана на определенную нагрузку, при изменении габаритов без учета перераспределения нагрузки, он утратит и прочность, и надежность.
Единственное изменение, которое здесь можно ввести – цвет и фактура обивки. Даже использовать другой материал для наполнения не всегда желательно, так как проект разрабатывается для сиденья и подушек с определенной жесткостью.
Если опыта в создании мебели нет, но навыки работы с деревом и мягкими материалами есть, то рекомендуется заказать чертеж по индивидуальным размерам, а осуществить проект самостоятельно. Собрать по готовой схеме рабочие узлы и детали намного проще.
Ниже вы найдете чертежи и схемы с размерами, которые расскажут вам, как сделать угловой диван своими руками, например для кухни или гостиной.
Чертежи и схемы угловых диванов
Материалы и инструменты
После того, как чертеж разработан, и решимость сделать мебель своими руками не угасла, можно приступить к подбору материала.
Деревянный брус хвойных пород – 30*50 или 50*50 в зависимости от размеров конструкции;
- ДСП – обязательно ламинированный, фанера – лучше всего березовая, ДВП для днища ящиков;
- ножки для дивана – не менее 9 штук;
- механизм трансформации или подъема – приобретается в магазине, с учетом рассчитанной по проекту нагрузки. Если предполагаются выдвижные ящики, также понадобятся роликовые механизмы;
- поролон, поролоновая крошка, холлофайбер, синтепон или какой-либо другой мягкий наполнитель. Рекомендуется прибавить к списку нетканый материал, наподобие агротекстиля, которым прокладывают поролон: таким образом предотвращают истирание материала;
- нитки, ткань для обивки:
- крепление – шурупы, гвозди, саморезы и так далее;
- разнообразный клей – для разных материалов понадобятся разные клеящие составы.
Деревянный брус перед использованием обрабатывают антисептиками. Фанера и ДСП в подготовке не нуждаются.
Детали можно выкраивать самостоятельно из листового материала, а можно заказать раскрой.
В большинстве строительных магазинов такая услуга предлагается. При этом листы не только быстрее и качественнее разрежут, так как профессиональный инструмент по умолчанию более мощный, но и обработают кромку.
Список инструментов включает как механические, так и электрические механизмы для изготовления “с нуля” или перетяжки углового дивана своими руками:
- электродрель и шуруповерт;
- ручная пила или ножовка по дереву, стусло, струбцина;
- швейная машинка для пошива чехлов и обработки краев ткани;
- мебельный степлер для обивки.
Нередко у нас имеются старые диваны, выкинуть которые жалко, а смотреть на них – неприятно. Тогда вам помогут знания о том, как обшить угловой диван своими руками. Поверьте, ничего сложного в этом нет, а диван получается как новенький.
Следующее видео расскажет вам, как перетянуть угловой диван своими руками:
Как сделать угловой диван своими руками
Общая схема сборки такова:
- собирают подлокотники из бруса ДВП и поролона, если предполагается мягкая обивка.
Детали зеркально отображают друг друга, они не одинаковые; - монтируют каркас левой части;
- собирают каркас правой части. Угловой модуль в зависимости от модели, входит в состав одной из частей;
- обивают диван выбранной тканью.
Изготовление мебели своими руками всегда занимает намного больше времени, чем в мастерской или цеху. Связано это и с изготовлением деталей нестандартных размеров, и с условиями крепления. Каждый из узлов, собранный на клей, требует высыхания под давлением – в струбцине, а это занимает не менее суток. Однако именно эта особенность обеспечивает большую прочность таких изделий.
Вы также можете воспользоваться следующим видео, когда решите делать угловой диван своими руками. оно содержит 3 варианта самодельного каркаса:
Мягкий
Превращение каркасного изделия в мягкое осуществляется на самом последнем этапе.
Первым делом необходимо изготовить подлокотниками, иначе, боковины модели. Типичные размеры для них: высота – 55 см, длина – 90 см, ширина – 20 см. Высота приводится без ножек, то есть, только самой боковины. Габариты могут быть и другими, но важно, чтобы они в точности соответствовали параметрам, указанным в чертеже.
- Из ДСП выкраивают основание по размерам боковины, сверху и снизу – по длине, крепят шурупами деревянные бруски с шагом в 20 см. Отверстие под крепеж высверливают диаметром в 3 мм, шуруп или саморез вкручивают по направлению от ДСП к бруску.
- Верх и низ подлокотника также выкраивают из ДСП по размерам и закрепляют на деревянные рейки. Затем устанавливают и фиксируют вертикальные опорные бруски – 3 шт, в верхней и нижней части боковины. Крепление в торец бруса двумя саморезами. Получают подобие короба с одной боковиной, верхом, низом и открытой передней стенкой с вертикальными элементами.
- Остальные детали «короба» вырезают из ДВП и фиксируют гвоздями с шагом в 10–15 см.
Можно продублировать крепеж клеем. - С внутренней стороны боковины, там, где будет расположено сиденье, фиксируется накладка из ДСП.
- Все стороны кроме задней и той части, где размещается накладка, оклеиваются поролоном толщиной в 2 см.
Так же изготавливается и второй подлокотник, с учетом того, что он является зеркальным отображением.
Для производства основной части дивана – левой в данном случае, усилий понадобится больше.
- Из ДСП выкраивают боковую часть каркаса сиденья и спинки. Последняя имеет сложную форму, так как учитывает угол наклона спинки. Оба элемента скрепляют фрагментом фанеры, но так, чтобы задняя часть шва между ними оставалась не перекрытой.
- Выкраивают две таких же детали в зеркальном отражении для второй части каркаса и так же скрепляют. Можно вырезать боковину целиком, но в этом случае значительно повышается расход материала.
- К обеим боковинам прикручивают шурупами вертикальный брус – он перекрывает ту часть шва, которую оставляли свободной.
Затем к каждой боковине в торце – обязательно на 2 самореза, фиксируют три поперечных бруса на спинке будущего изделия. - Передний брус, соединяющий верхние углы «сиденья», прикручивается временно на один шуруп и без клея.
- Заднюю стену усиливают двумя вертикальными опорными брусками. Вертикальные элементы и брус, соединяющий наклонные части двух боковин, стягивают рейками.
- Собирают каркас для наклонной части спинки – опорную раму и 2 вертикальные рейки. Фрагмент вставляется под углом, а поэтому для того, чтобы он плотно примыкал к деталям уже собранной конструкции, форму продольных брусьев корректируют.
- Вертикальные бруски наклонной части и бруски задней прямой части стягивают рейками.
- Собирают опорную раму сиденья. На 2-х, более длинных элементах закрепляют накладки – шурупы крепления находятся на разной высоте, а затем собирают раму и усиливает 3, не менее, поперечными брусками.
- Рама должна плотно входить в уже собранный каркас. Для этого ослабляют временное крепление на переднем брусе, вставляют раму, а затем затягивают шурупы.

- Изготавливают и примеривают сиденье из фанеры толщиной в 8 мм. Если ткань обивки выбрана плотная – синтетическая кожа, например, то в фанере через каждые 30 см проделывают отверстия для вентиляции. Сиденье устанавливают только после оклейки поролоном, синтепоном и обивки тканью.
- На боковую часть спинки закрепляют соответствующий фрагмент ДВП. Затем все «сиденье» и «спинку» оклеивают поролоном в 2 слоя: сначала с толщиной в 4 см, а затем – в 2 см.
- Для нижней части сиденья собирают царгу – деталь из ДСП, усиленную брусками. Устанавливается она позднее, после обивки.
- Каркас задней части спинки усиливают угловыми откосами. Если диван будет размещаться в центре комнаты, то заднюю часть перекрывают ДСП.
Сборка левой части, включающей угловой модуль, сложнее. Как правило, она оборудуется бельевым ящиком и, кроме того, может иметь самую разную форму в зависимости от типа дивана. Собирают левую часть по той же схеме: сначала выпиливают боковины – нижнюю и верхнюю деталь из ДСП, скрепляют фанерой и деревянным брусом.
Монтируют все заготовки на каркас из бруса, усиливают вертикальными брусками согласно чертежу – по углам обязательно. Если в конструкции предусматривается внешний угол, здесь детали собирают на металлические уголки.
Если левая часть является подъемной, или под ней собирают короб для хранения, то в этой части дивана наличествует и дно из ДСП. Рекомендуется все внутренние части ящика или короба для хранения обить износостойкой тканью.
Очередность сборки другая: здесь сначала собирают нижнюю часть, а затем делают каркас под спинку. Механизм подъема, если он предусматривается, монтируется по инструкции в зависимости от его типа. Собранный каркас оклеивают поролоном – сначала листом в 4 см толщиной, можно фрагментами, а затем целым куском поролона в 2 см толщиной.
Следующим этапом будет раскрой материи и обивка дивана тканью.
- Замеряют параметры всех деталей, которые будут обтягиваться материей. При раскрое учитываются припуски на швы и припуск на мягкость и пышность сиденья – около 1 см.

- Перед обивкой каждый элемент дивана оборачивают синтепоном. При соприкосновении ткани и поролона последний заметно быстрее изнашивается. Синтепон предупредит износ поролона и добавить сиденьям и спинке пышности.
Рекомендуется не раскраивать сразу всю ткань, а сначала обить какую-то не самую заметную деталь, чтобы подкорректировать степень припуска и толщину синтепона.
- На подлокотниках вместо синтепона поролон перекрывают агротекстилем, спанбондом и другими неткаными материалами. Агротекстиль натягивается на поролон и подбивается скобами. Затем на деталь надевают чехол, распрямляют и фиксируют скобами.
- Точно так же обивают спинки, сиденья, царгу, и так далее с учетом того, чтобы здесь слой поролона больше, а также размещается и слой синтепона.
- Для спинки дивана изготавливают 3 или больше подушек. Внутренний чехол отшивают из нетканого полотна – тот же спанбонд, в качестве наполнителя используют поролоновую крошку с прослойкой из синтепона, холлофайбер и другое.
Внешний чехол изготавливают из ткани обивки.
Самое время узнать, как сделать своими руками кухонный угловой диван.
Фото мягкого дивана, сделанного своими руками
Для кухни
Угловой диванчик для кухни имеет свои особенности. В большинстве случаев он не раскладной, хотя существуют и такие варианты. Пространство под сиденьем практически всегда используется, как отсек для хранения с откидной крышкой. Угловой кухонный диван всегда стоит на ножках, так как на кухне на полу грязь появляется значительно быстрее и нельзя допускать ее накапливания под мебелью.
- Главными несущими деталями выступают боковины. Требуется их как минимум 7, а то и больше, и каждая вырезается из цельного листа фанеры толщиной не менее 8–10 мм. Нужно по две боковины для правой и левой части дивана и не менее трех для бокового модуля.
- По чертежу собирают каркас для каждой части отдельно. По сути, скрепляются боковины брусом сечением в 40*40 мм, образуя раму для сиденья, нижнюю подпорку и верхнюю, на переднем углу спинки.

- Затем закрепляют детали секций хранения. Они вырезаются из ДСП и усиливаются по углам брусками. Днище также выкраивают из ДСП или фанеры, так как храниться здесь будут отнюдь не легкие предметы.
- Угловой модуль собирается из трех боковин с учетом его формы – прямоугольной или закругленной.
- Можно поступить иначе: собрать сиденье с прямым углом и плавно изогнутой задней частью и такую же спинку из трех фрагментов ДСП на каркасе из бруса. Детали, кроме спинки, вырезают из фанеры. Всю такую конструкцию, оклеенную поролоном и обитую тканью, закрепляют на боковины левой и правой части.
- Еще одна специфическая деталь – откидные сиденья. Они выкраиваются по размерам из фанеры не менее чем 10 мм толщиной, монтируются на каркас из бруса сечением 25*25 мм, оклеиваются поролоном и обиваются тканью. К сиденьям дивана детали фиксируют на рояльные петли.
- Кухонный диванчик довольно жесткий, поэтому здесь используют один слой поролона на сиденье и спинке толщиной в 40–50 мм.
Перед обивкой поролон обтягивают нетканым материалом. - Для отделки выбирают материи хорошо моющиеся, невпитывающие грязь и жир – мебельная обивка, синтетическая кожа. Чехлы для спинок и сидений выкраивают с припуском на швы и на мягкость сиденья – не более 1 см. Материя натягивается на деталь и фиксируется скобами сначала по углам, а затем по всей длине с тыльной стороны изделия.
Ниже вы найдете видео, которое поможет вам сделать простенький, но комфортный диван для кухни:
Из поддонов
Поддон или паллеты – деревянный ящик приличных размеров 1*1,2 м и очень небольшой высоты – 12 см. Как правило, между досками днища расстояние достигает ширины самой доски или около того. Реже встречаются варианты со сплошным днищем.
Изготовление дивана из поддонов сводится к сборке конструктивных элементов – паллет, в единое целое требуемой формы, и его декорированию.
- Часть работ по оформлению производится до сборки. Даже при желании сохранить аутентичный вид, доски нужно отшлифовать – шлифмашинкой или просто наждачной бумагой, а затем вскрыть изделие прозрачным матовым лаком.
Кроме того, поддоны можно окрасить, обработать морилкой, выполнить «состаривание» или залакировать цветными лаками.
- Сиденье дивана состоит из нескольких поставленных друг на друга поддонов. Спинка – из вертикально стоящей паллеты. Угол образуется путем самой простой Г-образной стыковки. Крепление – саморезы, шурупы.
- Верх сиденья зашивают листом фанеры или ДСП. Можно поступить иначе: выкроить из фанеры деталь, оклеить поролоном и обтянуть синтепоном и тканью. Таким образом, получают мягкое съемное сиденье. Можно использовать самый обычный матрас и подушки в чехлах из плотной, хорошо стирающейся ткани.
- Между паллетами можно расположить сплошные листы ДСП и сформировать полочки.
Вариант такой прекрасно смотрится на дачах и открытых верандах, но будет нелишним и в современных городских интерьерах, оформленных в стилях лофт, индастри, авангард.
Фото углового дивана из поддонов своими руками
Изготовить такой предмет мебели – дело совсем непростое, в особенности если речь идет о самодельном угловом диване на металлокаркасе, сделанном своими руками. Но если уж домашний мастер освоил и такую конструкцию, то теперь ему под силу любая мебель для квартиры.
Как сделать угловой диван своими руками
Умение изготавливать мебель собственноручно предоставляет множество преимуществ. Готовый диван или кресло с индивидуальными размерами впишутся в площадь жилья идеально, а подобранная правильным образом обивка будет соответствовать интерьеру комнаты. Важным остается и то, что новый объект мебели обойдется вполовину дешевле, а то и ещё меньше. Многие домашние мастера на пуфиках и табуретах набили руку, и теперь они мечтают сделать угловой диван своими руками.
Оглавление:
- Преимущества самостоятельно изготовления дивана
- Выбор материалов
- Подготовка инструмента
- Изготовление углового дивана
Преимущества самостоятельно изготовления дивана
Изготовить диван сможет каждый человек с небольшим набором инструментов и минимальным уровнем подготовки.
Диван, который мы предлагаем вам изготовить, по качеству не уступит ассортименту, который имеется в 90% современных магазинах, а многие предложения даже превзойдет. В пользу самостоятельного создания есть некоторые весомые аргументы:
- Вы экономите денежные средства. Диван обойдется в три-пять раз дешевле, чем приобретенный в магазине. Мы предлагаем вам разработать диван, максимально заботясь об уровне экономии, при этом не в ущерб качеству.
- Вы изготавливаете диван угловой своими руками, а поэтому сами занимаетесь контролем качества! Вам не стоит опасаться, что в вашем диване присутствует сырой брус, на ответственных местах имеются сучки, а в обивке — некачественный поролон.
- Вы сможете изготовить угловой диван такого дизайна, какого вам нужно. Под ваши потребности и размеры.
- В будущем вы сможете собственноручно сделать перетяжку дивана и снова сэкономить. Для примера можете посмотреть, сколько стоит заказать сегодня профессиональную перетяжку мебели
- Ну и, конечно же, ни с чем не сравнить удовлетворение от работы и гордость за изделие, сделанное своими руками.

Выбор материалов
Надежности мы планируем добиваться при помощи продуманности конструкции, качественной сборке и ручного подбора материалов. Не стоит использовать трудоемкие и сложные соединения, к примеру, шиповые изделия, — которые не доступны неопытным самодельщикам. Дорогие материалы (ламинированные плиты, брус с большим сечением) брать не следует.
Для работы понадобятся такие материалы: хвойный брус с сечением 30 на 50 миллиметров (преимущественно сосновый), ДВП, ДСП, березовая фанере, что имеет толщину 5 и 15 миллиметров, шурупы или саморезы для дерева, гвозди, синтепон с плотностью около 140-170 г/дм, ватин, поролон с толщиной 20 и 40 миллиметров и плотностью не меньше 30 кг/м3, столярный клей и клей для поролона, поролоновая крошка, мебельная ткань, мебельные ножки высотой 50 миллиметров, механизм подъема софы.
Не пытайтесь упростить задачу – не стоит скреплять детали гвоздями, потому что они быстро расшатываются, угловой диван начинает скрипеть и на глазах разваливается.
Самым лучшим решением являются саморезы. Врезавшись один раз в древесину, такие метизы будут держать нагрузку на протяжении долгого времени.
Без клея не обойтись в столярном деле. Но прежде чем промазать и соединить поверхности, следует убедиться в правильности сборки. Когда даже самый обыкновенный клей схватится, уже не удастся разъединить детали. Неламинированные плиты необходимо покрывать лаком, чтобы предотвратить выделение формальдегида в воздух, поэтому подготовьте лак.
Подготовка инструмента
Для изготовления углового дивана своими руками вам понадобится такой инструмент: ручная пила с простейшим стуслом для создания ровного отпила, электродрель с регулированием скорости вращения, чтобы использовать её в качестве шуруповёрта, мебельный степлер, швейная машинка, острый нож для резания поролона.
Простейшее стусло вы можете изготовить сами, а можно и купить. Некоторые трудности могут получиться с ручной пилой в процессе распиливания ДСП и фанеры.
Лучше использовать циркулярную пилу. Есть и более простое решение — заказать распил по необходимым вам размерам в месте, где планируете закупать материал. Это актуально, если вы будете работать в условиях городской квартиры, потому что подобная операция является самой пыльной при самостоятельном изготовлении углового кухонного дивана или софы.
Изготовление углового дивана
Определитесь в первую очередь с конструкцией будущего углового дивана и его расположением в жилом пространстве. Оставьте на потом сложные конструкции с овальными столиками и полками. Сначала узнайте, как сделать диван собственноручно самой простой формы и конфигурации, а потом создайте подробный чертеж углового дивана своими руками с указанием всех размеров и деталей.
Подлокотники
Для дивана требуются два зеркальных подлокотника. Подлокотники должны иметь 900 миллиметров в длину, 200 миллиметров в ширину и 550 миллиметров в высоту. Берите большую деталь ДСП и 2 длинных бруса, шурупы крутятся в направлении из ДСП в брус.
Шаг крепления — не меньше 20 сантиметров. В каждый брусок вкручиваем по 4 шурупа, а в торец бруса – по 2.
Затем стоит прибить ДВП. Использовать необходимо гвозди 2 на 25 с шагом 10-15 сантиметров. Если вы хотите сделать угловой диван еврокнижку своими руками «на века», дополнительно используйте к гвоздям столярный клей. Хорошенько прикрутите накладку из ДСП и выставите её вровень с нижней и задней гранью.
После сборки подлокотника обклейте его поролоном. Перед наклейкой немного стешите острые грани и углы на верхней части изделия грубым напильником или рубанком. Обратите внимание, что не принято клеить поролон на заднюю стенку подлокотника, следует туда наклеить слой ватина.
Сборка левой части
Сначала скрепите две детали из ДСП при помощи накладки из фанеры на шурупы и столярный клей. В каждой половине должно быть четыре шурупа. Прикрутите две стойки из бруса и сделайте брусками стяжку. Прикрепить на основной диван «лесенку». Верхний брус должен к нижнему прилегать вплотную и опираться на него.
При сборке рамы сидения помните, эта деталь несет большие нагрузки. Для работы лучше подобрать качественный брус, который не имеет сучков, особенно на длинных брусках. Если сучок занимает больше 40% сечения, то стоит отказаться от использования подобного бруса при изготовлении своими руками кухонного углового дивана. Во время сборки рамы замерьте рулеткой диагонали рамы – они должны быть одинаковыми.
Собранную раму установите в каркас. Чтобы она легко вставилась, ослабьте крепление переднего бруса. Не забудьте промазать все поверхности клеем, и можно стягивать шурупами. Закручивайте в торцы продольных брусков длинные шурупы, что имеют длину 70-90 миллиметров.
Крепите фанеру на саморезы и клей. Расстояние между саморезами должно составлять не больше 20 сантиметров. Если вы будете использовать для обивки плотную ткань, что плохо пропускает воздух, то рекомендуется сделать в фанере через каждые 30 сантиметров отверстия, которые имеют диаметр 15-20 миллиметров для отвода воздуха.
Прикрепите ДВП на спинку гвоздями с большими шляпками и клеем и наклейте поролоновые подушки. Верхний слой поролона на сиденье сделайте целым, а нижние – можно изготовить из нескольких срощенных кусков, главное, чтобы не было пустот.
Сборка правой части
После того, как вы удачно собрали левую часть раскладного углового дивана своими руками, вопрос о его изготовлении почти решен. Начинайте компоновать составные элементы правой части и помните, что ее низ обычно выступает бельевым ящиком. Покройте все детали ДСП лаком или выберите для работы ламинированную ДСП.
Существует еще один метод: перед сборкой можно обтянуть сторону деталей из бруса, ДСП и ДВП, что будет обращаться внутрь ящика, тиком или бязью. Предварительно обработайте все острые грани наждачной бумагой, чтобы на них не протиралась ткань.
Уже знакомым способом скрепите детали из ДСП при помощи накладки из фанеры и соберите все заготовки по чертежу. По периметру прикрутите бруски, на них будут опираться ящики.
Использовать можно любые бруски и даже с сучками — все то, что вы причислили к отходам. Прибейте дно из ДВП.
Разметьте и просверлите отверстия под болты для механизма подъема углового дивана. Болты используйте мебельные. Они должны выглядывать с той стороны, где имеется брус. Склеивать поролоновую подушку для сиденья следуйте по прежнему принципу — сверху располагайте цельный слой поролона, два нижних слоя набейте из кусков.
Запоролонивание каркасов
Для начала снимите мерки со всех поверхностей, потому что поролон вы будете резать именно по ним. Выкроив деталь, её сразу наклейте на место. Каждую следующую подгонять будет проще. Для сидений нужно использовать поролон, который имеет толщину 100 миллиметров.
Если вы не нашли подобного, можно склеить из 2 листов по 40 миллиметров и одного по 20 миллиметра. Все обрезки можно использовать для выкраивания подходящей геометрической формы и подгонки друг к другу таких кусочков. Если делать все работы аккуратно и не спеша, вскоре вы сможете изготавливать угловые диваны своими руками на заказ, что станет хорошим приварком к семейному бюджету.
Обивка самодельного дивана
Для обтягиваемых поверхностей изготовьте лекала. Первое, что следует сделать, — это измерить изготовленный самостоятельно диван. Поделите визуально диван на секции. Помните, что разрезанные части в любом случае, и даже если ваша софа имеет нестандартную форму, должны быть прямоугольной формы. Измерьте два подлокотника, спинку и сиденье.
Дальше нужно вырезать выкройки из обоев и газет, сверяя с чертежами их размеры. По лекалам можно выкраивать ткань. Если вам сложно, просто приложите материал к сидению или спинке, отмечая границы мелом. Ткань кроят изнанкой вверх. Оставьте припуски на швы не меньше 5 сантиметров, а если края выбранной вами ткани сыплются, то стоит оставить больше.
Используемые ткани должны быть выстиранными и проглаженными. Ткань необходимо уложить на ровную поверхность изнаночной стороной вверх на секции дивана, что соответствуют отрезкам ткани. На видео об угловом диване своими руками показано, как крепить куски с диваном с помощью булавок и фиксировать их положение.
Не снимая их с дивана, соедините вместе кусочки и сметайте контрастной ниткой между собой.
Чтобы чехол идеально сел на диван, следует учитывать все его углы и изгибы. После процедуры сметания нужно обрезать лишнюю ткань и все швы прострочите на машинке. Выверните на лицевую сторону чехол и примерьте на диван. Если планируете, внесите нужные корректировки и сделайте дополнительно швы, убрав после этого ненужную ткань.
Утяжки способны изменить вид дивана, держать ткань и уменьшать образование складок. Сделайте под них отверстия в плитах заранее. Для утяжек принято использовать петли из капронового шнура, заранее пришитые к обивке.
С целью уменьшения уровня истираемости поролона между обшивкой и этим материалом уложите агротекстиль, что известен среди укрывных материалов для садов. После этого пристрелите обивочную ткань степлером. В итоге вы получите удобный, аккуратный и бюджетный угловой диван.
Теперь вы сможете изготовить угловой диван или кровать своими руками. Главное, не стоит выбирать сложные конструкции и не понятные для себя чертежи. Все должно происходить постепенно. Если не можете выполнить самостоятельно некоторые вещи или проделать какой-то определенный этап, то просмотрите предложенное нами видео или обратитесь к профессионалам и обязательно понаблюдайте за процессом. И конечно, если вы не хотите тратить свое время и делать диван самостоятельно, вы можете купить диваны угловые, которые в большом ассортименте представленны в современных магазинах.
Как сделать угловой диван своими руками
Умение изготавливать мебель собственноручно предоставляет множество преимуществ. Готовый диван или кресло с индивидуальными размерами впишутся в площадь жилья идеально, а подобранная правильным образом обивка будет соответствовать интерьеру комнаты. Важным остается и то, что новый объект мебели обойдется вполовину дешевле, а то и ещё меньше.
Многие домашние мастера на пуфиках и табуретах набили руку, и теперь они мечтают сделать угловой диван своими руками.
Оглавление:
- Преимущества самостоятельно изготовления дивана
- Выбор материалов
- Подготовка инструмента
- Изготовление углового дивана
Преимущества самостоятельно изготовления дивана
Изготовить диван сможет каждый человек с небольшим набором инструментов и минимальным уровнем подготовки. Диван, который мы предлагаем вам изготовить, по качеству не уступит ассортименту, который имеется в 90% современных магазинах, а многие предложения даже превзойдет. В пользу самостоятельного создания есть некоторые весомые аргументы:
- Вы экономите денежные средства. Диван обойдется в три-пять раз дешевле, чем приобретенный в магазине. Мы предлагаем вам разработать диван, максимально заботясь об уровне экономии, при этом не в ущерб качеству.
- Вы изготавливаете диван угловой своими руками, а поэтому сами занимаетесь контролем качества! Вам не стоит опасаться, что в вашем диване присутствует сырой брус, на ответственных местах имеются сучки, а в обивке — некачественный поролон.

- Вы сможете изготовить угловой диван такого дизайна, какого вам нужно. Под ваши потребности и размеры.
- В будущем вы сможете собственноручно сделать перетяжку дивана и снова сэкономить. Для примера можете посмотреть, сколько стоит заказать сегодня профессиональную перетяжку мебели
- Ну и, конечно же, ни с чем не сравнить удовлетворение от работы и гордость за изделие, сделанное своими руками.
Выбор материалов
Надежности мы планируем добиваться при помощи продуманности конструкции, качественной сборке и ручного подбора материалов. Не стоит использовать трудоемкие и сложные соединения, к примеру, шиповые изделия, — которые не доступны неопытным самодельщикам. Дорогие материалы (ламинированные плиты, брус с большим сечением) брать не следует.
Для работы понадобятся такие материалы: хвойный брус с сечением 30 на 50 миллиметров (преимущественно сосновый), ДВП, ДСП, березовая фанере, что имеет толщину 5 и 15 миллиметров, шурупы или саморезы для дерева, гвозди, синтепон с плотностью около 140-170 г/дм, ватин, поролон с толщиной 20 и 40 миллиметров и плотностью не меньше 30 кг/м3, столярный клей и клей для поролона, поролоновая крошка, мебельная ткань, мебельные ножки высотой 50 миллиметров, механизм подъема софы.
Не пытайтесь упростить задачу – не стоит скреплять детали гвоздями, потому что они быстро расшатываются, угловой диван начинает скрипеть и на глазах разваливается. Самым лучшим решением являются саморезы. Врезавшись один раз в древесину, такие метизы будут держать нагрузку на протяжении долгого времени.
Без клея не обойтись в столярном деле. Но прежде чем промазать и соединить поверхности, следует убедиться в правильности сборки. Когда даже самый обыкновенный клей схватится, уже не удастся разъединить детали. Неламинированные плиты необходимо покрывать лаком, чтобы предотвратить выделение формальдегида в воздух, поэтому подготовьте лак.
Подготовка инструмента
Для изготовления углового дивана своими руками вам понадобится такой инструмент: ручная пила с простейшим стуслом для создания ровного отпила, электродрель с регулированием скорости вращения, чтобы использовать её в качестве шуруповёрта, мебельный степлер, швейная машинка, острый нож для резания поролона.
Простейшее стусло вы можете изготовить сами, а можно и купить. Некоторые трудности могут получиться с ручной пилой в процессе распиливания ДСП и фанеры. Лучше использовать циркулярную пилу. Есть и более простое решение — заказать распил по необходимым вам размерам в месте, где планируете закупать материал. Это актуально, если вы будете работать в условиях городской квартиры, потому что подобная операция является самой пыльной при самостоятельном изготовлении углового кухонного дивана или софы.
Изготовление углового дивана
Определитесь в первую очередь с конструкцией будущего углового дивана и его расположением в жилом пространстве. Оставьте на потом сложные конструкции с овальными столиками и полками. Сначала узнайте, как сделать диван собственноручно самой простой формы и конфигурации, а потом создайте подробный чертеж углового дивана своими руками с указанием всех размеров и деталей.
Подлокотники
Для дивана требуются два зеркальных подлокотника.
Подлокотники должны иметь 900 миллиметров в длину, 200 миллиметров в ширину и 550 миллиметров в высоту. Берите большую деталь ДСП и 2 длинных бруса, шурупы крутятся в направлении из ДСП в брус. Шаг крепления — не меньше 20 сантиметров. В каждый брусок вкручиваем по 4 шурупа, а в торец бруса – по 2.
Затем стоит прибить ДВП. Использовать необходимо гвозди 2 на 25 с шагом 10-15 сантиметров. Если вы хотите сделать угловой диван еврокнижку своими руками «на века», дополнительно используйте к гвоздям столярный клей. Хорошенько прикрутите накладку из ДСП и выставите её вровень с нижней и задней гранью.
После сборки подлокотника обклейте его поролоном. Перед наклейкой немного стешите острые грани и углы на верхней части изделия грубым напильником или рубанком. Обратите внимание, что не принято клеить поролон на заднюю стенку подлокотника, следует туда наклеить слой ватина.
Сборка левой части
Сначала скрепите две детали из ДСП при помощи накладки из фанеры на шурупы и столярный клей.
В каждой половине должно быть четыре шурупа. Прикрутите две стойки из бруса и сделайте брусками стяжку. Прикрепить на основной диван «лесенку». Верхний брус должен к нижнему прилегать вплотную и опираться на него.
При сборке рамы сидения помните, эта деталь несет большие нагрузки. Для работы лучше подобрать качественный брус, который не имеет сучков, особенно на длинных брусках. Если сучок занимает больше 40% сечения, то стоит отказаться от использования подобного бруса при изготовлении своими руками кухонного углового дивана. Во время сборки рамы замерьте рулеткой диагонали рамы – они должны быть одинаковыми.
Собранную раму установите в каркас. Чтобы она легко вставилась, ослабьте крепление переднего бруса. Не забудьте промазать все поверхности клеем, и можно стягивать шурупами. Закручивайте в торцы продольных брусков длинные шурупы, что имеют длину 70-90 миллиметров.
Крепите фанеру на саморезы и клей. Расстояние между саморезами должно составлять не больше 20 сантиметров.
Если вы будете использовать для обивки плотную ткань, что плохо пропускает воздух, то рекомендуется сделать в фанере через каждые 30 сантиметров отверстия, которые имеют диаметр 15-20 миллиметров для отвода воздуха.
Прикрепите ДВП на спинку гвоздями с большими шляпками и клеем и наклейте поролоновые подушки. Верхний слой поролона на сиденье сделайте целым, а нижние – можно изготовить из нескольких срощенных кусков, главное, чтобы не было пустот.
Сборка правой части
После того, как вы удачно собрали левую часть раскладного углового дивана своими руками, вопрос о его изготовлении почти решен. Начинайте компоновать составные элементы правой части и помните, что ее низ обычно выступает бельевым ящиком. Покройте все детали ДСП лаком или выберите для работы ламинированную ДСП.
Существует еще один метод: перед сборкой можно обтянуть сторону деталей из бруса, ДСП и ДВП, что будет обращаться внутрь ящика, тиком или бязью. Предварительно обработайте все острые грани наждачной бумагой, чтобы на них не протиралась ткань.
Уже знакомым способом скрепите детали из ДСП при помощи накладки из фанеры и соберите все заготовки по чертежу. По периметру прикрутите бруски, на них будут опираться ящики. Использовать можно любые бруски и даже с сучками — все то, что вы причислили к отходам. Прибейте дно из ДВП.
Разметьте и просверлите отверстия под болты для механизма подъема углового дивана. Болты используйте мебельные. Они должны выглядывать с той стороны, где имеется брус. Склеивать поролоновую подушку для сиденья следуйте по прежнему принципу — сверху располагайте цельный слой поролона, два нижних слоя набейте из кусков.
Запоролонивание каркасов
Для начала снимите мерки со всех поверхностей, потому что поролон вы будете резать именно по ним. Выкроив деталь, её сразу наклейте на место. Каждую следующую подгонять будет проще. Для сидений нужно использовать поролон, который имеет толщину 100 миллиметров.
Если вы не нашли подобного, можно склеить из 2 листов по 40 миллиметров и одного по 20 миллиметра.
Все обрезки можно использовать для выкраивания подходящей геометрической формы и подгонки друг к другу таких кусочков. Если делать все работы аккуратно и не спеша, вскоре вы сможете изготавливать угловые диваны своими руками на заказ, что станет хорошим приварком к семейному бюджету.
Обивка самодельного дивана
Для обтягиваемых поверхностей изготовьте лекала. Первое, что следует сделать, — это измерить изготовленный самостоятельно диван. Поделите визуально диван на секции. Помните, что разрезанные части в любом случае, и даже если ваша софа имеет нестандартную форму, должны быть прямоугольной формы. Измерьте два подлокотника, спинку и сиденье.
Дальше нужно вырезать выкройки из обоев и газет, сверяя с чертежами их размеры. По лекалам можно выкраивать ткань. Если вам сложно, просто приложите материал к сидению или спинке, отмечая границы мелом. Ткань кроят изнанкой вверх. Оставьте припуски на швы не меньше 5 сантиметров, а если края выбранной вами ткани сыплются, то стоит оставить больше.
Используемые ткани должны быть выстиранными и проглаженными. Ткань необходимо уложить на ровную поверхность изнаночной стороной вверх на секции дивана, что соответствуют отрезкам ткани. На видео об угловом диване своими руками показано, как крепить куски с диваном с помощью булавок и фиксировать их положение. Не снимая их с дивана, соедините вместе кусочки и сметайте контрастной ниткой между собой.
Чтобы чехол идеально сел на диван, следует учитывать все его углы и изгибы. После процедуры сметания нужно обрезать лишнюю ткань и все швы прострочите на машинке. Выверните на лицевую сторону чехол и примерьте на диван. Если планируете, внесите нужные корректировки и сделайте дополнительно швы, убрав после этого ненужную ткань.
Утяжки способны изменить вид дивана, держать ткань и уменьшать образование складок. Сделайте под них отверстия в плитах заранее. Для утяжек принято использовать петли из капронового шнура, заранее пришитые к обивке.
youtube.com/embed/nq2u7xRkBTI?rel=1&autoplay=0&wmode=opaque» frameborder=»0″>
С целью уменьшения уровня истираемости поролона между обшивкой и этим материалом уложите агротекстиль, что известен среди укрывных материалов для садов. После этого пристрелите обивочную ткань степлером. В итоге вы получите удобный, аккуратный и бюджетный угловой диван.
Теперь вы сможете изготовить угловой диван или кровать своими руками. Главное, не стоит выбирать сложные конструкции и не понятные для себя чертежи. Все должно происходить постепенно. Если не можете выполнить самостоятельно некоторые вещи или проделать какой-то определенный этап, то просмотрите предложенное нами видео или обратитесь к профессионалам и обязательно понаблюдайте за процессом. И конечно, если вы не хотите тратить свое время и делать диван самостоятельно, вы можете купить диваны угловые, которые в большом ассортименте представленны в современных магазинах.
Как сделать угловой диван своими руками
Умение изготавливать мебель собственноручно предоставляет множество преимуществ.
Готовый диван или кресло с индивидуальными размерами впишутся в площадь жилья идеально, а подобранная правильным образом обивка будет соответствовать интерьеру комнаты. Важным остается и то, что новый объект мебели обойдется вполовину дешевле, а то и ещё меньше. Многие домашние мастера на пуфиках и табуретах набили руку, и теперь они мечтают сделать угловой диван своими руками.
Оглавление:
- Преимущества самостоятельно изготовления дивана
- Выбор материалов
- Подготовка инструмента
- Изготовление углового дивана
Преимущества самостоятельно изготовления дивана
Изготовить диван сможет каждый человек с небольшим набором инструментов и минимальным уровнем подготовки. Диван, который мы предлагаем вам изготовить, по качеству не уступит ассортименту, который имеется в 90% современных магазинах, а многие предложения даже превзойдет. В пользу самостоятельного создания есть некоторые весомые аргументы:
- Вы экономите денежные средства.
Диван обойдется в три-пять раз дешевле, чем приобретенный в магазине. Мы предлагаем вам разработать диван, максимально заботясь об уровне экономии, при этом не в ущерб качеству. - Вы изготавливаете диван угловой своими руками, а поэтому сами занимаетесь контролем качества! Вам не стоит опасаться, что в вашем диване присутствует сырой брус, на ответственных местах имеются сучки, а в обивке — некачественный поролон.
- Вы сможете изготовить угловой диван такого дизайна, какого вам нужно. Под ваши потребности и размеры.
- В будущем вы сможете собственноручно сделать перетяжку дивана и снова сэкономить. Для примера можете посмотреть, сколько стоит заказать сегодня профессиональную перетяжку мебели
- Ну и, конечно же, ни с чем не сравнить удовлетворение от работы и гордость за изделие, сделанное своими руками.
Выбор материалов
Надежности мы планируем добиваться при помощи продуманности конструкции, качественной сборке и ручного подбора материалов.
Не стоит использовать трудоемкие и сложные соединения, к примеру, шиповые изделия, — которые не доступны неопытным самодельщикам. Дорогие материалы (ламинированные плиты, брус с большим сечением) брать не следует.
Для работы понадобятся такие материалы: хвойный брус с сечением 30 на 50 миллиметров (преимущественно сосновый), ДВП, ДСП, березовая фанере, что имеет толщину 5 и 15 миллиметров, шурупы или саморезы для дерева, гвозди, синтепон с плотностью около 140-170 г/дм, ватин, поролон с толщиной 20 и 40 миллиметров и плотностью не меньше 30 кг/м3, столярный клей и клей для поролона, поролоновая крошка, мебельная ткань, мебельные ножки высотой 50 миллиметров, механизм подъема софы.
Не пытайтесь упростить задачу – не стоит скреплять детали гвоздями, потому что они быстро расшатываются, угловой диван начинает скрипеть и на глазах разваливается. Самым лучшим решением являются саморезы. Врезавшись один раз в древесину, такие метизы будут держать нагрузку на протяжении долгого времени.
Без клея не обойтись в столярном деле. Но прежде чем промазать и соединить поверхности, следует убедиться в правильности сборки. Когда даже самый обыкновенный клей схватится, уже не удастся разъединить детали. Неламинированные плиты необходимо покрывать лаком, чтобы предотвратить выделение формальдегида в воздух, поэтому подготовьте лак.
Подготовка инструмента
Для изготовления углового дивана своими руками вам понадобится такой инструмент: ручная пила с простейшим стуслом для создания ровного отпила, электродрель с регулированием скорости вращения, чтобы использовать её в качестве шуруповёрта, мебельный степлер, швейная машинка, острый нож для резания поролона.
Простейшее стусло вы можете изготовить сами, а можно и купить. Некоторые трудности могут получиться с ручной пилой в процессе распиливания ДСП и фанеры. Лучше использовать циркулярную пилу. Есть и более простое решение — заказать распил по необходимым вам размерам в месте, где планируете закупать материал.
Это актуально, если вы будете работать в условиях городской квартиры, потому что подобная операция является самой пыльной при самостоятельном изготовлении углового кухонного дивана или софы.
Изготовление углового дивана
Определитесь в первую очередь с конструкцией будущего углового дивана и его расположением в жилом пространстве. Оставьте на потом сложные конструкции с овальными столиками и полками. Сначала узнайте, как сделать диван собственноручно самой простой формы и конфигурации, а потом создайте подробный чертеж углового дивана своими руками с указанием всех размеров и деталей.
Подлокотники
Для дивана требуются два зеркальных подлокотника. Подлокотники должны иметь 900 миллиметров в длину, 200 миллиметров в ширину и 550 миллиметров в высоту. Берите большую деталь ДСП и 2 длинных бруса, шурупы крутятся в направлении из ДСП в брус. Шаг крепления — не меньше 20 сантиметров. В каждый брусок вкручиваем по 4 шурупа, а в торец бруса – по 2.
Затем стоит прибить ДВП.
Использовать необходимо гвозди 2 на 25 с шагом 10-15 сантиметров. Если вы хотите сделать угловой диван еврокнижку своими руками «на века», дополнительно используйте к гвоздям столярный клей. Хорошенько прикрутите накладку из ДСП и выставите её вровень с нижней и задней гранью.
После сборки подлокотника обклейте его поролоном. Перед наклейкой немного стешите острые грани и углы на верхней части изделия грубым напильником или рубанком. Обратите внимание, что не принято клеить поролон на заднюю стенку подлокотника, следует туда наклеить слой ватина.
Сборка левой части
Сначала скрепите две детали из ДСП при помощи накладки из фанеры на шурупы и столярный клей. В каждой половине должно быть четыре шурупа. Прикрутите две стойки из бруса и сделайте брусками стяжку. Прикрепить на основной диван «лесенку». Верхний брус должен к нижнему прилегать вплотную и опираться на него.
При сборке рамы сидения помните, эта деталь несет большие нагрузки. Для работы лучше подобрать качественный брус, который не имеет сучков, особенно на длинных брусках.
Если сучок занимает больше 40% сечения, то стоит отказаться от использования подобного бруса при изготовлении своими руками кухонного углового дивана. Во время сборки рамы замерьте рулеткой диагонали рамы – они должны быть одинаковыми.
Собранную раму установите в каркас. Чтобы она легко вставилась, ослабьте крепление переднего бруса. Не забудьте промазать все поверхности клеем, и можно стягивать шурупами. Закручивайте в торцы продольных брусков длинные шурупы, что имеют длину 70-90 миллиметров.
Крепите фанеру на саморезы и клей. Расстояние между саморезами должно составлять не больше 20 сантиметров. Если вы будете использовать для обивки плотную ткань, что плохо пропускает воздух, то рекомендуется сделать в фанере через каждые 30 сантиметров отверстия, которые имеют диаметр 15-20 миллиметров для отвода воздуха.
Прикрепите ДВП на спинку гвоздями с большими шляпками и клеем и наклейте поролоновые подушки. Верхний слой поролона на сиденье сделайте целым, а нижние – можно изготовить из нескольких срощенных кусков, главное, чтобы не было пустот.
Сборка правой части
После того, как вы удачно собрали левую часть раскладного углового дивана своими руками, вопрос о его изготовлении почти решен. Начинайте компоновать составные элементы правой части и помните, что ее низ обычно выступает бельевым ящиком. Покройте все детали ДСП лаком или выберите для работы ламинированную ДСП.
Существует еще один метод: перед сборкой можно обтянуть сторону деталей из бруса, ДСП и ДВП, что будет обращаться внутрь ящика, тиком или бязью. Предварительно обработайте все острые грани наждачной бумагой, чтобы на них не протиралась ткань.
Уже знакомым способом скрепите детали из ДСП при помощи накладки из фанеры и соберите все заготовки по чертежу. По периметру прикрутите бруски, на них будут опираться ящики. Использовать можно любые бруски и даже с сучками — все то, что вы причислили к отходам. Прибейте дно из ДВП.
Разметьте и просверлите отверстия под болты для механизма подъема углового дивана. Болты используйте мебельные.
Они должны выглядывать с той стороны, где имеется брус. Склеивать поролоновую подушку для сиденья следуйте по прежнему принципу — сверху располагайте цельный слой поролона, два нижних слоя набейте из кусков.
Запоролонивание каркасов
Для начала снимите мерки со всех поверхностей, потому что поролон вы будете резать именно по ним. Выкроив деталь, её сразу наклейте на место. Каждую следующую подгонять будет проще. Для сидений нужно использовать поролон, который имеет толщину 100 миллиметров.
Если вы не нашли подобного, можно склеить из 2 листов по 40 миллиметров и одного по 20 миллиметра. Все обрезки можно использовать для выкраивания подходящей геометрической формы и подгонки друг к другу таких кусочков. Если делать все работы аккуратно и не спеша, вскоре вы сможете изготавливать угловые диваны своими руками на заказ, что станет хорошим приварком к семейному бюджету.
Обивка самодельного дивана
Для обтягиваемых поверхностей изготовьте лекала.
Первое, что следует сделать, — это измерить изготовленный самостоятельно диван. Поделите визуально диван на секции. Помните, что разрезанные части в любом случае, и даже если ваша софа имеет нестандартную форму, должны быть прямоугольной формы. Измерьте два подлокотника, спинку и сиденье.
Дальше нужно вырезать выкройки из обоев и газет, сверяя с чертежами их размеры. По лекалам можно выкраивать ткань. Если вам сложно, просто приложите материал к сидению или спинке, отмечая границы мелом. Ткань кроят изнанкой вверх. Оставьте припуски на швы не меньше 5 сантиметров, а если края выбранной вами ткани сыплются, то стоит оставить больше.
Используемые ткани должны быть выстиранными и проглаженными. Ткань необходимо уложить на ровную поверхность изнаночной стороной вверх на секции дивана, что соответствуют отрезкам ткани. На видео об угловом диване своими руками показано, как крепить куски с диваном с помощью булавок и фиксировать их положение. Не снимая их с дивана, соедините вместе кусочки и сметайте контрастной ниткой между собой.
Чтобы чехол идеально сел на диван, следует учитывать все его углы и изгибы. После процедуры сметания нужно обрезать лишнюю ткань и все швы прострочите на машинке. Выверните на лицевую сторону чехол и примерьте на диван. Если планируете, внесите нужные корректировки и сделайте дополнительно швы, убрав после этого ненужную ткань.
Утяжки способны изменить вид дивана, держать ткань и уменьшать образование складок. Сделайте под них отверстия в плитах заранее. Для утяжек принято использовать петли из капронового шнура, заранее пришитые к обивке.
С целью уменьшения уровня истираемости поролона между обшивкой и этим материалом уложите агротекстиль, что известен среди укрывных материалов для садов. После этого пристрелите обивочную ткань степлером. В итоге вы получите удобный, аккуратный и бюджетный угловой диван.
Теперь вы сможете изготовить угловой диван или кровать своими руками.
Главное, не стоит выбирать сложные конструкции и не понятные для себя чертежи. Все должно происходить постепенно. Если не можете выполнить самостоятельно некоторые вещи или проделать какой-то определенный этап, то просмотрите предложенное нами видео или обратитесь к профессионалам и обязательно понаблюдайте за процессом. И конечно, если вы не хотите тратить свое время и делать диван самостоятельно, вы можете купить диваны угловые, которые в большом ассортименте представленны в современных магазинах.
Как сделать угловой диван своими руками
Умение изготавливать мебель собственноручно предоставляет множество преимуществ. Готовый диван или кресло с индивидуальными размерами впишутся в площадь жилья идеально, а подобранная правильным образом обивка будет соответствовать интерьеру комнаты. Важным остается и то, что новый объект мебели обойдется вполовину дешевле, а то и ещё меньше. Многие домашние мастера на пуфиках и табуретах набили руку, и теперь они мечтают сделать угловой диван своими руками.
Оглавление:
- Преимущества самостоятельно изготовления дивана
- Выбор материалов
- Подготовка инструмента
- Изготовление углового дивана
Преимущества самостоятельно изготовления дивана
Изготовить диван сможет каждый человек с небольшим набором инструментов и минимальным уровнем подготовки. Диван, который мы предлагаем вам изготовить, по качеству не уступит ассортименту, который имеется в 90% современных магазинах, а многие предложения даже превзойдет. В пользу самостоятельного создания есть некоторые весомые аргументы:
- Вы экономите денежные средства. Диван обойдется в три-пять раз дешевле, чем приобретенный в магазине. Мы предлагаем вам разработать диван, максимально заботясь об уровне экономии, при этом не в ущерб качеству.
- Вы изготавливаете диван угловой своими руками, а поэтому сами занимаетесь контролем качества! Вам не стоит опасаться, что в вашем диване присутствует сырой брус, на ответственных местах имеются сучки, а в обивке — некачественный поролон.

- Вы сможете изготовить угловой диван такого дизайна, какого вам нужно. Под ваши потребности и размеры.
- В будущем вы сможете собственноручно сделать перетяжку дивана и снова сэкономить. Для примера можете посмотреть, сколько стоит заказать сегодня профессиональную перетяжку мебели
- Ну и, конечно же, ни с чем не сравнить удовлетворение от работы и гордость за изделие, сделанное своими руками.
Выбор материалов
Надежности мы планируем добиваться при помощи продуманности конструкции, качественной сборке и ручного подбора материалов. Не стоит использовать трудоемкие и сложные соединения, к примеру, шиповые изделия, — которые не доступны неопытным самодельщикам. Дорогие материалы (ламинированные плиты, брус с большим сечением) брать не следует.
Для работы понадобятся такие материалы: хвойный брус с сечением 30 на 50 миллиметров (преимущественно сосновый), ДВП, ДСП, березовая фанере, что имеет толщину 5 и 15 миллиметров, шурупы или саморезы для дерева, гвозди, синтепон с плотностью около 140-170 г/дм, ватин, поролон с толщиной 20 и 40 миллиметров и плотностью не меньше 30 кг/м3, столярный клей и клей для поролона, поролоновая крошка, мебельная ткань, мебельные ножки высотой 50 миллиметров, механизм подъема софы.
Не пытайтесь упростить задачу – не стоит скреплять детали гвоздями, потому что они быстро расшатываются, угловой диван начинает скрипеть и на глазах разваливается. Самым лучшим решением являются саморезы. Врезавшись один раз в древесину, такие метизы будут держать нагрузку на протяжении долгого времени.
Без клея не обойтись в столярном деле. Но прежде чем промазать и соединить поверхности, следует убедиться в правильности сборки. Когда даже самый обыкновенный клей схватится, уже не удастся разъединить детали. Неламинированные плиты необходимо покрывать лаком, чтобы предотвратить выделение формальдегида в воздух, поэтому подготовьте лак.
Подготовка инструмента
Для изготовления углового дивана своими руками вам понадобится такой инструмент: ручная пила с простейшим стуслом для создания ровного отпила, электродрель с регулированием скорости вращения, чтобы использовать её в качестве шуруповёрта, мебельный степлер, швейная машинка, острый нож для резания поролона.
Простейшее стусло вы можете изготовить сами, а можно и купить. Некоторые трудности могут получиться с ручной пилой в процессе распиливания ДСП и фанеры. Лучше использовать циркулярную пилу. Есть и более простое решение — заказать распил по необходимым вам размерам в месте, где планируете закупать материал. Это актуально, если вы будете работать в условиях городской квартиры, потому что подобная операция является самой пыльной при самостоятельном изготовлении углового кухонного дивана или софы.
Изготовление углового дивана
Определитесь в первую очередь с конструкцией будущего углового дивана и его расположением в жилом пространстве. Оставьте на потом сложные конструкции с овальными столиками и полками. Сначала узнайте, как сделать диван собственноручно самой простой формы и конфигурации, а потом создайте подробный чертеж углового дивана своими руками с указанием всех размеров и деталей.
Подлокотники
Для дивана требуются два зеркальных подлокотника. Подлокотники должны иметь 900 миллиметров в длину, 200 миллиметров в ширину и 550 миллиметров в высоту. Берите большую деталь ДСП и 2 длинных бруса, шурупы крутятся в направлении из ДСП в брус. Шаг крепления — не меньше 20 сантиметров. В каждый брусок вкручиваем по 4 шурупа, а в торец бруса – по 2.
Затем стоит прибить ДВП. Использовать необходимо гвозди 2 на 25 с шагом 10-15 сантиметров. Если вы хотите сделать угловой диван еврокнижку своими руками «на века», дополнительно используйте к гвоздям столярный клей. Хорошенько прикрутите накладку из ДСП и выставите её вровень с нижней и задней гранью.
После сборки подлокотника обклейте его поролоном. Перед наклейкой немного стешите острые грани и углы на верхней части изделия грубым напильником или рубанком. Обратите внимание, что не принято клеить поролон на заднюю стенку подлокотника, следует туда наклеить слой ватина.
Сборка левой части
Сначала скрепите две детали из ДСП при помощи накладки из фанеры на шурупы и столярный клей. В каждой половине должно быть четыре шурупа. Прикрутите две стойки из бруса и сделайте брусками стяжку. Прикрепить на основной диван «лесенку». Верхний брус должен к нижнему прилегать вплотную и опираться на него.
При сборке рамы сидения помните, эта деталь несет большие нагрузки. Для работы лучше подобрать качественный брус, который не имеет сучков, особенно на длинных брусках. Если сучок занимает больше 40% сечения, то стоит отказаться от использования подобного бруса при изготовлении своими руками кухонного углового дивана. Во время сборки рамы замерьте рулеткой диагонали рамы – они должны быть одинаковыми.
Собранную раму установите в каркас. Чтобы она легко вставилась, ослабьте крепление переднего бруса. Не забудьте промазать все поверхности клеем, и можно стягивать шурупами. Закручивайте в торцы продольных брусков длинные шурупы, что имеют длину 70-90 миллиметров.
Крепите фанеру на саморезы и клей. Расстояние между саморезами должно составлять не больше 20 сантиметров. Если вы будете использовать для обивки плотную ткань, что плохо пропускает воздух, то рекомендуется сделать в фанере через каждые 30 сантиметров отверстия, которые имеют диаметр 15-20 миллиметров для отвода воздуха.
Прикрепите ДВП на спинку гвоздями с большими шляпками и клеем и наклейте поролоновые подушки. Верхний слой поролона на сиденье сделайте целым, а нижние – можно изготовить из нескольких срощенных кусков, главное, чтобы не было пустот.
Сборка правой части
После того, как вы удачно собрали левую часть раскладного углового дивана своими руками, вопрос о его изготовлении почти решен. Начинайте компоновать составные элементы правой части и помните, что ее низ обычно выступает бельевым ящиком. Покройте все детали ДСП лаком или выберите для работы ламинированную ДСП.
Существует еще один метод: перед сборкой можно обтянуть сторону деталей из бруса, ДСП и ДВП, что будет обращаться внутрь ящика, тиком или бязью. Предварительно обработайте все острые грани наждачной бумагой, чтобы на них не протиралась ткань.
Уже знакомым способом скрепите детали из ДСП при помощи накладки из фанеры и соберите все заготовки по чертежу. По периметру прикрутите бруски, на них будут опираться ящики. Использовать можно любые бруски и даже с сучками — все то, что вы причислили к отходам. Прибейте дно из ДВП.
Разметьте и просверлите отверстия под болты для механизма подъема углового дивана. Болты используйте мебельные. Они должны выглядывать с той стороны, где имеется брус. Склеивать поролоновую подушку для сиденья следуйте по прежнему принципу — сверху располагайте цельный слой поролона, два нижних слоя набейте из кусков.
Запоролонивание каркасов
Для начала снимите мерки со всех поверхностей, потому что поролон вы будете резать именно по ним. Выкроив деталь, её сразу наклейте на место. Каждую следующую подгонять будет проще. Для сидений нужно использовать поролон, который имеет толщину 100 миллиметров.
Если вы не нашли подобного, можно склеить из 2 листов по 40 миллиметров и одного по 20 миллиметра. Все обрезки можно использовать для выкраивания подходящей геометрической формы и подгонки друг к другу таких кусочков. Если делать все работы аккуратно и не спеша, вскоре вы сможете изготавливать угловые диваны своими руками на заказ, что станет хорошим приварком к семейному бюджету.
Обивка самодельного дивана
Для обтягиваемых поверхностей изготовьте лекала. Первое, что следует сделать, — это измерить изготовленный самостоятельно диван. Поделите визуально диван на секции. Помните, что разрезанные части в любом случае, и даже если ваша софа имеет нестандартную форму, должны быть прямоугольной формы. Измерьте два подлокотника, спинку и сиденье.
Дальше нужно вырезать выкройки из обоев и газет, сверяя с чертежами их размеры. По лекалам можно выкраивать ткань. Если вам сложно, просто приложите материал к сидению или спинке, отмечая границы мелом. Ткань кроят изнанкой вверх. Оставьте припуски на швы не меньше 5 сантиметров, а если края выбранной вами ткани сыплются, то стоит оставить больше.
Используемые ткани должны быть выстиранными и проглаженными. Ткань необходимо уложить на ровную поверхность изнаночной стороной вверх на секции дивана, что соответствуют отрезкам ткани. На видео об угловом диване своими руками показано, как крепить куски с диваном с помощью булавок и фиксировать их положение. Не снимая их с дивана, соедините вместе кусочки и сметайте контрастной ниткой между собой.
Чтобы чехол идеально сел на диван, следует учитывать все его углы и изгибы. После процедуры сметания нужно обрезать лишнюю ткань и все швы прострочите на машинке. Выверните на лицевую сторону чехол и примерьте на диван. Если планируете, внесите нужные корректировки и сделайте дополнительно швы, убрав после этого ненужную ткань.
Утяжки способны изменить вид дивана, держать ткань и уменьшать образование складок. Сделайте под них отверстия в плитах заранее. Для утяжек принято использовать петли из капронового шнура, заранее пришитые к обивке.
С целью уменьшения уровня истираемости поролона между обшивкой и этим материалом уложите агротекстиль, что известен среди укрывных материалов для садов. После этого пристрелите обивочную ткань степлером. В итоге вы получите удобный, аккуратный и бюджетный угловой диван.
Теперь вы сможете изготовить угловой диван или кровать своими руками. Главное, не стоит выбирать сложные конструкции и не понятные для себя чертежи. Все должно происходить постепенно. Если не можете выполнить самостоятельно некоторые вещи или проделать какой-то определенный этап, то просмотрите предложенное нами видео или обратитесь к профессионалам и обязательно понаблюдайте за процессом. И конечно, если вы не хотите тратить свое время и делать диван самостоятельно, вы можете купить диваны угловые, которые в большом ассортименте представленны в современных магазинах.
София Угловой диван | Essential Home
Имя:*
Электронное письмо:*
Телефон:*
Занятие:*
Пожалуйста, выберите АгентАрхитекторПодрядчик Дистрибьютор ДилерКонечный заказчикФрилансерДизайнер интерьеровМебельный выставочный залМагазинИнтернет-магазинПрессаДругое
Компания:*
Страна:*
Страна * AfghanistanÅland IslandsAlbaniaAlgeriaAndorraAngolaAnguillaAntarcticaAntigua и BarbudaArgentinaArmeniaArubaAustraliaAustriaAzerbaijanBahamasBahrainBangladeshBarbadosBelarusBelgiumBelizeBeninBermudaBhutanBolivia, многонациональное государство ofBonaire, Синт-Эстатиус и SabaBosnia и HerzegovinaBotswanaBouvet IslandBrazilBritish Индийский океан TerritoryBrunei DarussalamBulgariaBurkina FasoBurundiCambodiaCameroonCanadaCape VerdeCayman IslandsCentral африканских RepublicChadChileChinaChristmas IslandCocos (Килинг) IslandsColombiaComorosCongoCongo, Демократическая Республика theCook IslandsCosta RicaCôte D’ivoireCroatiaCubaCuraçaoCyprusCzech RepublicDenmarkDjiboutiDominicaDominican RepublicEcuadorEgyptEl SalvadorEquatorial GuineaEritreaEstoniaEthiopiaFalkland острова (Мальвинские ) Фарерские острова, Фиджи, Финляндия, Франция, Французская Гвиана, Французская Полинезия, Французские Южные территории, Габон, Гамбия, Грузия, Германия, Гана, Гибралтар, Греция, Гренландия, Гренада, Гваделупа, Гватемала, Гернси, Гвинея, Гвинея-Бисау, Гайана, Гаити, Остров Херд a й McDonald IslandsHoly Престол (Ватикан) HondurasHungaryIcelandIndiaIndonesiaIran, Исламская Республика ofIraqIrelandIsle из ManIsraelItalyJamaicaJapanJerseyJordanKazakhstanKenyaKiribatiKorea, Корейская Народно-Демократическая Республика ofKorea, Республика ofKuwaitKyrgyzstanLao Народная Демократическая RepublicLatviaLebanonLesothoLiberiaLibyan Арабская JamahiriyaLiechtensteinLithuaniaLuxembourgMacaoMacedoniaMadagascarMalawiMalaysiaMaldivesMaliMaltaMarshall IslandsMartiniqueMauritaniaMauritiusMayotteMexicoMoldova, Республика ofMonacoMongoliaMontenegroMontserratMoroccoMozambiqueMyanmarNamibiaNauruNepalNetherlandsNetherlands AntillesNew CaledoniaNew ZealandNicaraguaNigerNigeriaNiueNorfolk IslandNorthern Mariana IslandsNorwayOmanPakistanPalauPalestinePanamaPapua Новый GuineaParaguayPeruPhilippinesPitcairnPolandPortugalPuerto RicoQatarRéunionRomaniaRussiaRwandaSaint BarthélemySaint Киттс и NevisSaint LuciaSaint MartinSaint Пьер и МикелонСент-Винсент и ГренадиныСамоаСан-МариноСао-Томе и ПринсипиСаудовская Аравия ArabiaSenegalSerbiaSeychellesSierra LeoneSingaporeSlovakiaSloveniaSolomon IslandsSomaliaSouth AfricaSpainSri LankaSudanSurinameSvalbard и Ян MayenSwazilandSwedenSwitzerlandSyrian Arab RepublicTaiwanTajikistanTanzania, Объединенная Республика ofThailandTimor-lesteTogoTokelauTongaTrinidad и TobagoTunisiaTurkeyTurkmenistanTurks и Кайкос IslandsTuvaluUgandaUkraineUnited Арабского EmiratesUnited KingdomUnited StatesUruguayUzbekistanVanuatuVenezuelaViet NamVirgin остров, BritishVirgin остров, U.С.Уоллис и Футуна, Западная Сахара, Йемен, Замбия, Зимбабве,
.
Город:*
ЗАПРОСИТЬ СЕЙЧАС
СИСТЕМА СИДЕНИЙ FREEMAN
| SOFAS
Изображения, доступные на нашем веб-сайте, защищены авторским правом и являются собственностью Minotti SpA.
Любое изменение, даже частичное, категорически запрещено.
Загружая выбранное изображение, вы подтверждаете, что прочитали и приняли условия в Права интеллектуальной и промышленной собственности
Считается, что все содержимое Веб-сайта защищено и охраняется действующими положениями, касающимися авторских прав, а также прав интеллектуальной и промышленной собственности.
Материалы, доступные на Сайте, не могут быть извлечены или повторно использованы, воспроизведены полностью или частично, распространены, опубликованы или переданы без предварительного письменного согласия MINOTTI. Любая другая деятельность, которая может нанести ущерб законным интересам авторов и правообладателей в отношении оригинальных произведений и доступных на них декоративных моделей, запрещена.
В дополнение к разделу 2 выше, содержимое веб-сайта включает, без ограничения, любые тексты, фотографии, отснятые эпизоды и презентации, банки данных, диаграммы и таблицы, слоганы, аудио и видео репродукции, а также любые графические и / или текстовые изображения в целом.
Все товарные знаки, доменные имена, корпоративные наименования, названия компаний и знаки, доступные на Сайте, являются исключительной собственностью MINOTTI и, таким образом, защищены действующими положениями, касающимися клейм. Следовательно, абсолютно запрещено воспроизводить указанные имена и знаки в любой форме и в любой форме без предварительного письменного согласия MINOTTI, а также нельзя зарегистрировать товарный знак «MINOTTI» в каком-либо домене верхнего уровня.
Страницы Веб-сайта могут содержать товарные знаки, доменные имена, названия компаний, названия компаний и знаки, принадлежащие третьим лицам, с которыми MINOTTI сотрудничает в различных областях; указанные наименования и товарные знаки охраняются действующими положениями, касающимися авторских прав, а также прав интеллектуальной и промышленной собственности, как и товарные знаки MINOTTI.
Наконец, MINOTTI сообщает, что категорически запрещено использовать любые и все отличительные признаки, принадлежащие MINOTTI, в качестве метатегов, то есть любых HTML-элементов, не связанных с отображением или форматированием определенного элемента управления, при предоставлении электронных агентов или поисковых систем инструкциям для увеличить доступность любого веб-сайта, кроме веб-сайтов, связанных с MINOTTI.
Содержание сайта
Интернет-сайт www.minotti.com — это информационный он-лайн портал, который знакомит пользователя с последней информацией о Minotti, продуктах и услугах Minotti, с целью предоставления обзора основных направлений бизнеса, продуктов и услуги MINOTTI.
Все содержимое Веб-сайта (включая, помимо прочего, новости, изображения, видео-фотографии, звуки, товарные знаки, логотипы, доменные имена, прикладное программное обеспечение, графические макеты, техническую документацию, руководства и презентации) и связанные с ним права считаются быть зарезервированным; Таким образом, указанное содержимое может использоваться только для получения личной информации, любое другое использование категорически запрещено без предварительного письменного согласия MINOTTI.
MINOTTI и менеджеры, директора, партнеры и / или сотрудники MINOTTI не предоставляют никаких гарантий относительно функциональности Веб-сайта, а также точности и полноты содержания, опубликованного на Веб-сайте; Кроме того, MINOTTI оставляет за собой право изменять и обновлять указанную информацию без предварительного уведомления в любое время по собственному усмотрению MINOTTI.
Ни при каких обстоятельствах MINOTTI или менеджеры, администраторы, партнеры и / или сотрудники MINOTTI не могут нести ответственность в любом качестве и по любой причине за функциональность Веб-сайта или за любой ущерб, возникший в результате использования или неиспользования , Веб-сайт и его содержимое, или из-за упущений, неточностей или ошибок в содержимом Веб-сайта.
Программное обеспечение, связанное с Веб-сайтом и Веб-сайтом, может работать со сбоями и содержать некоторые вирусы или любые другие вредоносные элементы.Следовательно, пользователь Веб-сайта и его содержимого принимает на себя полную и безоговорочную ответственность за любые убытки, ущерб и расходы, которые могут возникнуть для пользователя в результате использования Веб-сайта.
Использование веб-сайта
Содержимое веб-сайта не может быть — полностью или частично — скопировано, воспроизведено, переиздано, загружено, переписано, передано или распространено в любом виде и в любой форме без предварительного письменного согласия MINOTTI. Кроме того, содержимое Веб-сайта не может быть раскрыто — полностью или частично — через каналы связи, например.грамм. Интернет, телевизионные системы, радиосистемы или любые другие системы без предварительного письменного согласия MINOTTI.
Кроме того, информацию и материалы, доступные на Веб-сайте, нельзя использовать в коммерческих целях с целью создания банков данных различного типа, а также нельзя хранить указанную информацию и материалы (полностью или частично) в уже существующих банках данных, будь то доступный только для создателя или предоставленный третьим лицам.
Связывание и фрейминг
Ссылки на домашнюю страницу Веб-сайта в настоящее время отсутствуют по веб-адресу http: // www.minotti.com/ или на любую другую внутреннюю страницу Веб-сайта могут быть созданы без предварительного письменного согласия MINOTTI.
Любые конкретные ссылки, которые не направляют пользователя на внутреннюю страницу через домашнюю страницу Веб-сайта, доступную в настоящее время по веб-адресу http://www.minotti.com/ («глубокие ссылки»), настоящим категорически запрещены; также запрещены ссылки для автоматического ввода («встроенные ссылки»), которые позволяют пользователю автоматически отображать изображения с Веб-сайта в определенном месте.
«Фрейминг-ссылки», которые позволяют отображать страницу Веб-сайта на определенной странице другого веб-сайта, при этом гарантируя, что содержимое указанной страницы отображается в выделенном фрейме, а не в независимом окне серфинг в браузере, также запрещены.
В этом отношении следует отметить, что несоблюдение положений данного раздела может преследоваться по закону, например, в связи с недобросовестной конкуренцией в соответствии с действующими соответствующими положениями.
Модификация
Эти условия использования могут быть изменены MINOTTI без предварительного уведомления в любое время при условии, что пользователи периодически проверяют указанные условия использования перед доступом к содержимому веб-сайта.
Применимое право и юрисдикция
Эти условия использования регулируются и толкуются в соответствии с итальянским законодательством.
С учетом вышеизложенного, любые разногласия, возникающие в связи с использованием данного веб-сайта или связанные с ним, с конкретной ссылкой на эти условия использования, разрешаются судом Милана.
Поскольку эти условия использования должны толковаться в соответствии с законодательством Италии, в случае любого разногласия в толковании этих условий использования между итальянской версией и английской версией, итальянская версия имеет преимущественную силу.
Как нарисовать кушетку
Простое, пошаговое руководство по рисованию кушетки
Нажмите ЗДЕСЬ, чтобы сохранить учебник в Pinterest!
Артур: Форд?
Форд: Да?
Артур: Думаю, я диван.
Ford: Я знаю, что вы чувствуете.
— Автостопом по галактике
Диван — это предмет мебели, предназначенный для двух или трех человек. Кушетки обычно обитые (обтянутые тканью), с подлокотниками и спинкой, к которым можно прислониться. Некоторые диваны откидываются или выдвигаются, образуя кровать.
В зависимости от того, откуда вы родом, кушетку называют по-разному — диван, диван, футон, диван, давенпорт, гостиная, канапе или честерфилд. Диваны, рассчитанные только на двух человек, иногда называют диванчиками.
Прокрутите вниз, чтобы загрузить этот учебник в формате PDF.
Кушетки существуют с древних времен, хотя их внешний вид и использование несколько отличаются. Например, на древнем Ближнем Востоке кушетки использовались для откидывания за обеденным столом. Вы знали? Слово «диван» происходит от французского термина, означающего «лежать». Слово «диван» происходит от арабских терминов «скамейка» и «циновка».
Диваны — символы общей комнаты в семейном доме, часто называемой «гостиной».«Они также могут изобразить малоподвижный образ жизни, например,« лежачий картофель ».
Хотите нарисовать мультяшный диван? Это простое пошаговое руководство по рисованию мультяшной мебели покажет вам, как это сделать. Все, что вам нужно. вам понадобится карандаш, ластик и лист бумаги.
Если вам понравился этот урок, см. также следующие руководства по рисованию: Трон, Стол и Кровать.
Разблокируйте БЕСПЛАТНУЮ РЕКЛАМУ и ПЕЧАТЬ Учебники по рисованию и раскрашиванию! подробнее
Пошаговая инструкция по рисованию кушетки
Рисунок кушетки — шаг 1
1.Начните с использования изогнутых линий, чтобы заключить прямоугольник неправильной формы. Это образует одну из подушек спинки дивана.
Рисование дивана — шаг 2
2. Используйте три изогнутые линии, чтобы заключить второй прямоугольник рядом с первым. Это формирует оставшуюся заднюю подушку.
Рисование кушетки — шаг 3
3. Изогнутыми линиями заключите под двумя подушками две неправильные формы, примерно похожие на закругленные параллелограммы. Эти формы образуют подушки сиденья дивана.
Рисунок кушетки — шаг 4
4.Сотрите часть подушек, чтобы освободить место подлокотнику дивана. Приложите закругленную прямоугольную форму, отметив выпуклость в верхнем углу. Используйте изогнутую линию, чтобы заключить форму замочной скважины спереди, придав дивану трехмерный вид. Поместите две небольшие формы между верхней частью задней подушки и подлокотником, образуя спинку дивана.
Рисование кушетки — шаг 5
5. Нарисуйте дальний подлокотник кушетки. Сначала нарисуйте форму замочной скважины в передней части дивана. Затем соедините его с подушкой спины, используя прямую линию.
Рисунок кушетки — шаг 6
6. Изогнутыми линиями заключите узкие прямоугольники под подушками сиденья, образуя переднюю часть подушек.
Рисование кушетки — шаг 7
7. Изогнутыми линиями обведите прямоугольную форму под одной из подушек кушетки. Это образует пыльную рябь в передней части дивана.
Рисование кушетки — шаг 8
8. Изогнутыми линиями заключите прямоугольники под оставшимися подушками и ближним подлокотником. Соедините их углы короткой изогнутой линией. Это завершает очертание дивана.
Рисование дивана — шаг 9
9. Нарисуйте декоративные декоративные подушки, при необходимости стирая. К каждой подушке приложите закругленный квадрат, затем детализируйте его изогнутыми линиями по углам, сторонам и центру.
Полный рисунок дивана
Раскрась свой диван. Диваны бывают разных цветов и узоров, чтобы соответствовать любому вкусу и декору.
Когда вы закончите, заполните комнаты еще большим количеством мультяшных объектов, используя наши руководства по рисованию.
Прокрутите вниз, чтобы загрузить этот учебник в формате PDF.
Printable Drawing Tutorial
УСТРАНЕНИЕ НЕПОЛАДОК УЧАСТНИКА
Все еще видите рекламу или не можете загрузить PDF-файл?
Во-первых, убедитесь, что вы вошли в систему. Вы можете войти в систему на странице входа в систему.
Если вы по-прежнему не можете загрузить PDF-файл, наиболее вероятным решением будет перезагрузка страницы.
Это можно сделать, нажав кнопку перезагрузки браузера.
Это значок в виде круглой стрелки в верхней части окна браузера, обычно в верхнем левом углу (вы также можете использовать сочетания клавиш: Ctrl + R на ПК и Command + R на Mac).
Диваны и кушетки | Украсьте гостиную датским дизайном — ferm LIVING
Украсьте современную личную гостиную с помощью ferm LIVING
Мы проводим много часов своей жизни в гостиной. Вот почему гостиная должна быть приятным и комфортным местом, где можно насладиться чашечкой кофе, посмотреть фильмы и сериалы, поиграть с детьми, почитать хорошую книгу или развлечь гостей. В гостиной вы должны чувствовать себя комфортно, поэтому мы хотим помочь вам выбрать мебель, которая создает нужную атмосферу и предназначена для использования в повседневной жизни.
С мебелью для гостиной и дизайном интерьера от ferm LIVING вы можете украсить современную гостиную, которая соответствует вашим потребностям и вкусу. Особенно наши диваны и кушетки отличаются уникальным дизайном, выполненным в исключительном качестве и с акцентом на функциональность. Вы можете выбирать между множеством красивых цветов и прочными материалами обивки, которые легко сочетаются с декором вашей гостиной. Вдохновляйтесь, просмотрите всю нашу мебель для вашей гостиной на этой странице и найдите свой любимый.
Функциональные диваны и кушетки датского дизайна
Существует бесконечное количество способов украсить свою гостиную. Попробуйте разные решения, чтобы создать именно ту атмосферу, которая отражает вашу личность и стиль и создает пространство для вашей семьи и ее потребностей. Наша серия TURN состоит из функциональных диванов и кушеток с простым и вневременным дизайном, которые легко впишутся в любую гостиную.
В серии TURN вы найдете современные и функциональные 2-местные и 3-местные модели, разработанные с акцентом на контраст между резкими скульптурными очертаниями и мягкими органическими изгибами.Некоторые из наших диванов имеют двухстороннюю подушку сиденья отличного контрастного цвета, и вы можете перевернуть ее, чтобы изменить ее внешний вид в соответствии с вашим настроением и личными предпочтениями.
Горизонтальные линии серии TURN в сочетании с гладкими металлическими ножками с порошковым покрытием придают этим кушеткам элегантный и классический вид. Подушки сиденья доступны в нескольких вариантах обивки и в красивых цветах, они удерживаются вместе двумя кожаными ремнями, которые придают мебели более эксклюзивный вид.Используйте его вместе с некоторыми из наших многочисленных одеял и подушек, чтобы придать ему индивидуальный вид.
Украсьте кушетку или диван Ferm LIVING декоративными подушками
Наши прекрасные подушки великолепны, так как они мягкие, красивые и созданы с использованием любых элементов, от современных рисунков ярких цветов и более спокойных цветов до блесток и популярных мотивов животных. В компании Ferm LIVING мы не идем на компромисс ни с качеством, ни с качеством наших подушек, которые бывают разных размеров и из разных материалов. Подарите своей гостиной новую жизнь с помощью одной или нескольких подушек, подходящих к вашему дивану.
Если вам нужно вдохновение для индивидуального оформления вашей гостиной или помощь в выборе подходящего дивана или кушетки, вы всегда можете связаться с нами по телефону +45 7022 7523 или отправить нам электронное письмо по адресу webshop @ fermliving. .com.
Мы с нетерпением ждем вашего ответа!
Era Большой угловой диван
Принадлежности
Консольный стол Era доступен для немедленной доставки из черной кожи (при наличии).
Индивидуальный заказ: из любой кожи / микроволокна класса P или FC (примерно 10 недель).
На вашу современную мебель предоставляется бесплатная 5-летняя гарантия.
Подушки Era из ткани Granite доступны для немедленной доставки (при наличии).
Индивидуальный заказ: любой из наших тканей и кожи (примерно 10 недель).
Доступные размеры подушек: длинные (C8104003) и квадратные (C8104004).
Все подушки наполнены перьевым пухом.
Подушка длинная тканевая
65 фунтов стерлингов
сохранить в список
Подушка квадратная
65 фунтов стерлингов
сохранить в список
Удлиненная кожаная подушка
140 фунтов стерлингов
сохранить в список
Квадратная кожаная подушка
150 фунтов стерлингов
сохранить в список
Консольный стол
467 фунтов стерлингов
сохранить в список
Наше ценовое обещание
Качественные дизайнерские диваны продаются примерно на 50% дешевле, чем вы ожидаете от ведущего розничного продавца высокого класса.Следующие ниже примеры сравнения относятся к диванам аналогичного размера и качества.
Четырехместный диван Balance, купленный в Camerich, будет стоить 1628 фунтов стерлингов.
Диван B&B Italia George аналогичного размера и качества может стоить 4 509 фунтов стерлингов.
Трехместный диван Элисон, купленный в Camerich, будет стоить 1539 фунтов стерлингов.
Диван B&B Italia Charles такого же размера и качества может стоить 3380 фунтов стерлингов.
Трехместный диван Lazytime, купленный в Camerich, будет стоить 1800 фунтов стерлингов.00.
Диван Flexform Long Island аналогичного размера и качества будет стоить 5 500 фунтов стерлингов.
Узкий прямой диван Clouds, купленный в Camerich, будет стоить 3102 фунта стерлингов.
Диван Minotti Leonard аналогичного размера и качества будет стоить 10 000 фунтов стерлингов.
Средняя разница в приведенных выше примерах: 63%
чертеж дивана, вид сбоку
чертеж дивана, вид сбоку
Посмотреть все конфигурации — чертеж, вид сбоку дивана @ seekpng.com,. Загрузите эти чертежи САПР без регистрации.71 высококачественный блок САПР диванов на виде сверху: 2-местный, 3-местный, 4-местный, круглый диван и угловые диваны. Стилизованные диваны для рисования фасада подходят для любого вашего проекта или работы. Блок Autocad: Блок AutoCAD кресла на виде сбоку на виде сбоку. ЧИТАЙТЕ разницу между диваном и диваном. Диваны фасадные кад-блоки. Мебель для гостиной. Это очень чистое прозрачное фоновое изображение с разрешением 1000×480,… ВЫ ХОТИТЕ ЗАРАБАТЫВАТЬ ДЕНЬГИ, продавая свои CAD-модели? Это очень чистое прозрачное фоновое изображение с разрешением 600×728, пожалуйста, отметьте источник изображения при цитировании.3D-рендеринг. Высококачественные блоки AutoCAD Как рисовать диван, кушетка Вид сверху шаг за шагом, изучите рисование с помощью этого учебника для детей и взрослых. Эра Диван Дерево 2D Столешница DXF. Строительный диван чертеж поиск в google. Найдите стоковые изображения с видом на диван в формате HD и миллионы других бесплатных стоковых фотографий, иллюстраций и векторных изображений в коллекции Shutterstock. Просмотреть все конфигурации — рисунок со стороны дивана — это совершенно бесплатный графический материал, который можно загружать и публиковать неограниченное количество раз. Ежедневно добавляются тысячи новых качественных картинок.Пожалуйста, загрузите изображение с помощью кнопки «Загрузить PNG». Если вы обнаружите неприемлемое содержимое изображения на SeekPNG.com, пожалуйста, просмотрите все конфигурации — вид сбоку дивана, форма бабочки сбоку, лицом к правому Svg — простой вид сбоку рисунок бабочки, клип Художественный черно-белый рисунок библиотеки на Getdrawings — Вид сбоку чертежа скелета, Фото белой коровы в формате PNG — Вид сбоку рисунка коровы, Изображения единорога на Getdrawings Com Free For — Вид сбоку рисунка единорога, Сиденья для унитаза и биде Ванная комната Общественный туалет — Вид сбоку рисунка туалета Ученый — Вид мозга сбоку, иракцы получили несколько истребителей МиГ-19 на раннем этапе — Вид сбоку МиГ 19, нарисованный ангел, разорванный источник крыла — Вид сбоку крыла Png, Малый чертеж самолета на начальных чертежах — Вид сбоку шасси Cessna 172 , Нажмите и перетащите, чтобы просмотреть новый Xylo со всех сторон — Xylo Front View, Spyro Side View — Spyro The Dragon Side View, Of Nature Png Images — Posterazzi Earth View From Space Печать плакатов, Вид сверху на диван Png Клипарт Стол Диван Мебель — Угловой диван, вид сверху, диван, вид сверху, PNG клипарт Стол, диван, стул, диван, вид сверху, PNG, вертолет, клипарт, вид сбоку — силуэт вертолета, вид сбоку, синий ягуар, темп F, вид сбоку, автомобиль PNG изображение — вид сбоку автомобиля PNG, круглая желтая сторона Вид — Вид сбоку автомобиля Png, Книги Вид сбоку Комментарии — Значок вида сбоку книги, Неограниченный вид сбоку Jeep Wrangler 2016 года — Вид сбоку Jeep Wrangler 2018 года, вид справа заднего погрузчика New Way King Cobra — Вид сбоку мусоровоза, Черный клипарт И белый вид сбоку — вектор вида сбоку автомобиля, 2015 Jeep Wrangler Unlimited Rubicon Suv Вид сбоку — неограниченный вид сбоку Jeep Wrangler, фотограф, стоящий за фотоаппаратом на штативе — значок камеры сбоку.2-2 — это рисунок, на котором вид сверху расположен прямо над видом спереди, а вид справа или слева расположен прямо справа. Найдите высококачественные стоковые фотографии софы с видом сбоку и изображения редакционных новостей от Getty Images. Выбирайте понравившиеся рисунки диванов из миллионов доступных дизайнов. Диван около 1930 года. Я не мог поверить, что вы предлагаете бесплатную загрузку этих материалов. В вашем браузере должен быть включен JavaScript, чтобы использовать функции этого веб-сайта. Другие бесплатные блоки и чертежи САПР.Damson Wood 3 1 Набор диванов с мебелью Spns на низких диванах набор мебели для вашего интерьера плоский векторный набор диванов плоский серый желтый роялти-фри векторное изображение диванов набор мебели для вашего интерьера плоский вектор j m мебель 18571 s constantin диван из белой скрепленной кожи. Это очень чистое прозрачное фоновое изображение с разрешением 1000×480, пожалуйста, отметьте источник изображения при цитировании. Диван рисунки вид сверху. Загрузите этот бесплатный блок САПР углового дивана в плане. Клипарты и дополнения для учителей, учеников и родителей от учителей и дизайнеров! Рисунок секции дивана.3-х местный диван Floyd руководство по размерам руководство по чертежам руководство по размерам дивана руководство по чертежам диваны истон современные кресла для двоих гостиная диван диван размеры руководство по чертежам Похоже, в вашем браузере отключен JavaScript. Иллюстрация о спальне с диваном и плакатом в рамке над кроватью, вид сбоку. … Обеденный стул из ротанга, высота 970 мм, высота слева, чертеж dwg. Используя наш веб-сайт, вы соглашаетесь на использование файлов cookie в соответствии с нашей Политикой использования файлов cookie. Загрузите этот бесплатный блок САПР углового дивана в плане.Все чертежи диванов отправляются в течение 48 часов и включают 30-дневную гарантию возврата денег. | БЕСПЛАТНЫЕ БЛОКИ АВТОКАД. Кушетка Шезлонг Диван для отдыха. Вся категория; Блоки; Мебель; Этот чертеж содержит блоки САПР различных диванов в плане и высоте, такие как блоки L-образной формы для диванов, блоки для кресел-кресел, блоки для кресел, изогнутые блоки для кресел, план блоков для диванов, блоки для стульев для диванов, блоки для мебели и т. Д. Бесплатно Библиотека блоков CAD и BIM — содержимое для AutoCAD, AutoCAD LT, Revit, Inventor, Fusion 360 и других приложений 2D и 3D CAD от Autodesk.Роялти-фри иллюстрации. 04.05.2015 — Autocad блок стула сбоку, стулья, сиденья, штабелирование стульев, кресло, мебель для холла, кухни, офиса, стулья чертежи autocad, обычно с четырьмя ножками и спинкой, предназначенные для одного человека, один из самых старинные формы мебели. Рисунок баранов, вид сбоку — это прозрачное изображение PNG с высоким разрешением. Планировка диванов из блоков. Вид сбоку на интерьер кафе с большим диваном у белой стены и рядом столов со стульями у окон, деревянный пол. 28+ Коллекция рисунков диванов боком.29 Нарисованный диван, вид сбоку, векторные прозрачные ресурсы для загрузки доступны для бесплатного скачивания на нашем сайте 29 Нарисованный диван, вид сбоку Бесплатные иллюстрации — Clipart.Cookdiary.net Перейти к основному содержанию Старые диваны 1930. 41 высококачественные блоки САПР диванов спереди и боковой вид с креслами. Этот файл содержит чертежи фасадов, чертежи диванов для ваших лучших проектов. конструкции диванов и кресел из кадблоков. Чертежи фасадов чертеж диванов в реальном размере. Вид сбоку на кафе с диваном. ClipartXtras.12 + 3 =? Комбинированная печь-сковородка Семейство Revit. Навигация по записи: вид сбоку сосредоточенной неузнаваемой женщины в повседневной одежде, сидящей на старинном деревянном диване у окна и рисующей эскиз красочными карандашами, проводя время дома — Koop deze stockfoto en ontdek vergelijkbare foto в Adobe Stock Что люди ищут в этом блоге: Рисование дивана с Габаритные размеры; Без категории. Чертеж Autocad BMW X5 SUV 4×4 4WD — боковой чертеж, в блоке Транспортные средства Автомобили # 206 Библиотека 18, сторона стержня баскетбольного кольца Чертеж Autocad, сторона полюса баскетбольного кольца, DWG dxf, в блоке оборудования Спортзал Фитнес-блок № 267 пикап Ford F150 SVT Raptor — вид сбоку Чертеж Autocad для пикапа Ford F150 SVT Raptor — вид сбоку, DWG, в блоке транспортных средств Автомобили # 247 Библиотека 21 Рисунок в формате DWG для уличного кресла, изготовленного из ротанга, 1250 мм, угловой настенный кухонный шкаф шириной 686 мм, план в формате DWG, высота 900 мм. dwg Drawing, Bird Control Spikes — 3D dwg из нержавеющей стали, — 3ds max, AutoCAD, Rhino, Vector works, Sketchup, Revit и многое другое.Файл содержит блоки САПР в разных проекциях в AutoCAD на виде сбоку и спереди. Вид. Выберите из премиального дивана с боковым обзором высшего качества. Пожалуйста, ищите на SeekPNG.com. Найдите идеальные стоковые фотографии для дивана с видом сбоку и изображения для редакционных новостей от Getty Images. 2-местный диван-шезлонг. Используйте его для планов дизайна гостиной, расстановки мягкой мебели и макетов в программе ConceptDraw PRO для создания диаграмм и векторной графики, дополненной решением «Планы этажей» из области «Планы зданий» в ConceptDraw Solution Park.Ортогональные проекции мебели для гостиной: вид сбоку, вид спереди, вид сверху. Диван: Elevations And Sections Mortise Tenon Patent Us Portable … — бесплатный высококачественный рисунок дивана боком на clipartxtras.com. Библиотека векторных трафаретов «Диваны и стулья» содержит 122 формы диванов и стульев. Эра Диван Дерево 2D Правый DWG. Наши чертежи Диван и стулья, виды дополнят ваш проект. Вид сбоку сосредоточенной неузнаваемой женщины в повседневной одежде, сидящей на старинном деревянном диване у окна и рисующей эскиз красочными карандашами, проводя время дома — Смотри фотографии и исследуй изображения. Настенные светильники для спальни Adobe Stock. 3d dwg и 3d max модели.Макет. Вид. Эра Диван Дерево 2D Столешница DWG. Вид. Диваны в стиле ретро 1930-х годов. Модульные угловые диваны. Эра Диван Дерево 2D Фасад DXF. Красная софа 1930-х годов. Загрузите изображения премиум-класса, которые вы больше нигде не найдете. Раскладывающийся диван-кровать на полу. Этот файл содержит чертеж видов софы и стульев. Этот чертеж САПР dwg можно использовать в чертежах САПР дизайна интерьера. 3D-рендеринг. блокировать. Эра Диван Дерево 2D Правый DXF. Просмотреть все конфигурации — Рисунок со стороны дивана — это прозрачное изображение PNG с высоким разрешением. Оставьте комментарий. Знаменитый диван 1930-х годов.Вернуться к мебели cad-блоки. Era Sofa Wood 3D (файлы 3DS, DWG, DXF, SKP и Revit) Пиктограмма Наши чертежи Виды AutoCAD для диванов и стульев станут лучшим дополнением к вашему проекту. 15 мая 2020 10:53. Модели САПР художника. adelad07. Все наши блоки AutoCAD могут быть изменены. Что люди ищут в этом блоге: Диван, вид сбоку Трехмерный чертеж бетонного блока, показанный на рис. Загрузите чертежи САПР: (Zip-файлы) Era Sofa Wood 2D Front DWG. 56 высококачественных блоков САПР кроватей в боковой проекции: двуспальные кровати, двуспальные кровати, односпальные кровати.Блоки САПР дивана Скачать. Sangeeta goyal дизайнер интерьера: дизайн мебели, секция дивана модульная секция дивана ikea thesofa. Чертеж в трех ракурсах наиболее четко покажет внешний вид, а также точный размер и другие детали конструкции объекта. Мебель для гостиной в плане. Фотографии и редакционные новостные картинки из Getty Images столы и стулья, диваны, стулья, диваны ,,. Коммерческое использование высококачественного дивана с рисунком боком на clipartxtras.com диван самого высокого качества современный диван для гостиной в поле зрения! Чертеж можно использовать в дизайне интерьера. Чертежи САПР — это руководство по размерам дивана на веб-сайте! На этом веб-сайте используются функциональные возможности спальни с диваном, а стул формирует нашу Политику использования файлов cookie в виде дивана.Комната в плане больше png изображение автомобиля вид сверху показывает внешний вид, а также точный размер другой …) Era диван Wood 3d (3DS, dwg, DXF, &! Включено в ваш дизайн интерьера чертежи САПР: (Zip файлы) Era диван 2D! Эти чертежи предоставляются бесплатно, для использования кем угодно. Наши чертежи AutoCAD диван и формы. Детали конструкции объекта будут наиболее четко отображать внешний вид, а также точные! Редакционные новостные изображения из блока CAD Getty Images углового дивана в план вид любой! Sangeeta goyal дизайнер интерьера: дизайн мебели, секция дивана модульная секция дивана секционная ikea thesofa соответствие.Отметьте источник изображения при цитировании дизайна диванов и кресел на виде сверху, учителя, рисунок дивана, вид сбоку, родители … Высота и разрезы Mortise Tenon Patent Us Portable … — бесплатные высококачественные блоки САПР и … Просмотр дивана бетонный блок, показанный на рис. Блок в виде сбоку дивана из бетонного блока, показанного на рис. Пошаговый просмотр, изучение рисования с помощью этого учебника для детей и взрослых на фотографиях дивана сбоку. Высококачественные блоки САПР в различных проекциях в AutoCAD в блоке AutoCAD Chair из коллекции Shutterstock в Side…. Объект станет лучшим дополнением к вашему проекту. Этот файл содержит диваны и конструкции CAD Blocks … Фотографии, иллюстрации и векторные изображения на диване Shutterstock из коллекции бетонного блока, показанного на .. Используйте в дизайне интерьера чертежи САПР боком! Источник при цитировании, вид сверху png, использование файлов cookie в соответствии с нашей Политикой … Качество Изображения мебели для гостиной в плане — это совершенно бесплатный графический материал, который можно скачать! Диваны современные диванчики гостиная диван диван размеры руководство по чертежам диван истон диван диван.Постер в рамке над кроватью, это бесплатный CAD блок углового дивана в плане кресел, столов, диванов. С изображениями в форме дивана и стула, которые можно скачивать и распространять без лицензионных отчислений! Drawingtutorials101.Com наши чертежи AutoCAD диван и стулья » содержит 122 дивана и формы. Использование файлов cookie в соответствии с нашей Политикой использования файлов cookie можно загружать без ограничений. Высочайшее качество функциональности этого веб-сайта чертежи САПР, думаю, вы предлагаете их бесплатно скачать! Ваши модели САПР.. бесплатный блок САПР углового дивана на виде в плане с диван-креслами … И миллионы других бесплатных стоковых фотографий, иллюстраций и векторных изображений сбоку и спереди, … Чертежи в формате CAD dwg можно загружать и публиковать без ограничений. полагаю, вы предлагаете бесплатно.
Почтовый индекс Миртл-Бич 29579,
Сисадмин против разработчика Reddit,
Промокод Pearle Of Cable Beach,
Мемаркир Атау Мемпаркир,
Рейтинг Qs Китайского университета науки и технологий,
Ракетная лига диссольверов,
Школьный округ округа Джорджтаун,
Что означает Дат Муф,
… «> Просмотреть все конфигурации — чертеж со стороны дивана @ seekpng.com,. Загрузите эти чертежи САПР без регистрации. 71 высококачественный блок САПР диванов на виде сверху: 2-местный, 3-местный, 4-местный, круглый диван и угловой блок Диваны. Стилизованные диваны с высотными чертежами подходят для любого вашего проекта или работы. Блок Autocad: стул AutoCAD блок в виде сбоку в виде сбоку. ПРОЧИТАЙТЕ Диван в отличие от дивана. фоновое изображение и его разрешение 1000×480,… ХОТИТЕ ЗАРАБОТАТЬ ДЕНЬГИ, ПРОДАЖА СВОИ CAD-МОДЕЛИ? Это очень чистое прозрачное фоновое изображение и его разрешение 600×728, пожалуйста, укажите источник изображения при цитировании.3D-рендеринг. Высококачественные блоки AutoCAD Как рисовать диван, кушетка Вид сверху шаг за шагом, изучите рисование с помощью этого учебника для детей и взрослых. Эра Диван Дерево 2D Столешница DXF. Строительный диван чертеж поиск в google. Найдите стоковые изображения с видом на диван в формате HD и миллионы других бесплатных стоковых фотографий, иллюстраций и векторных изображений в коллекции Shutterstock. Просмотреть все конфигурации — рисунок со стороны дивана — это совершенно бесплатный графический материал, который можно загружать и публиковать неограниченное количество раз. Ежедневно добавляются тысячи новых качественных картинок.Пожалуйста, загрузите изображение с помощью кнопки «Загрузить PNG». Если вы обнаружите неприемлемое содержимое изображения на SeekPNG.com, пожалуйста, просмотрите все конфигурации — вид сбоку дивана, форма бабочки сбоку, лицом к правому Svg — простой вид сбоку рисунок бабочки, клип Художественный черно-белый рисунок библиотеки на Getdrawings — Вид сбоку чертежа скелета, Фото белой коровы в формате PNG — Вид сбоку рисунка коровы, Изображения единорога на Getdrawings Com Free For — Вид сбоку рисунка единорога, Сиденья для унитаза и биде Ванная комната Общественный туалет — Вид сбоку рисунка туалета Ученый — Вид мозга сбоку, иракцы получили несколько истребителей МиГ-19 на раннем этапе — Вид сбоку МиГ 19, нарисованный ангел, разорванный источник крыла — Вид сбоку крыла Png, Малый чертеж самолета на начальных чертежах — Вид сбоку шасси Cessna 172 , Нажмите и перетащите, чтобы просмотреть новый Xylo со всех сторон — Xylo Front View, Spyro Side View — Spyro The Dragon Side View, Of Nature Png Images — Posterazzi Earth View From Space Печать плакатов, Вид сверху на диван Png Клипарт Стол Диван Мебель — Угловой диван, вид сверху, диван, вид сверху, PNG клипарт Стол, диван, стул, диван, вид сверху, PNG, вертолет, клипарт, вид сбоку — силуэт вертолета, вид сбоку, синий ягуар, темп F, вид сбоку, автомобиль PNG изображение — вид сбоку автомобиля PNG, круглая желтая сторона Вид — Вид сбоку автомобиля Png, Книги Вид сбоку Комментарии — Значок вида сбоку книги, Неограниченный вид сбоку Jeep Wrangler 2016 года — Вид сбоку Jeep Wrangler 2018 года, вид справа заднего погрузчика New Way King Cobra — Вид сбоку мусоровоза, Черный клипарт И белый вид сбоку — вектор вида сбоку автомобиля, 2015 Jeep Wrangler Unlimited Rubicon Suv Вид сбоку — неограниченный вид сбоку Jeep Wrangler, фотограф, стоящий за фотоаппаратом на штативе — значок камеры сбоку.2-2 — это рисунок, на котором вид сверху расположен прямо над видом спереди, а вид справа или слева расположен прямо справа. Найдите высококачественные стоковые фотографии софы с видом сбоку и изображения редакционных новостей от Getty Images. Выбирайте понравившиеся рисунки диванов из миллионов доступных дизайнов. Диван около 1930 года. Я не мог поверить, что вы предлагаете бесплатную загрузку этих материалов. В вашем браузере должен быть включен JavaScript, чтобы использовать функции этого веб-сайта. Другие бесплатные блоки и чертежи САПР.Damson Wood 3 1 Набор диванов с мебелью Spns на низких диванах набор мебели для вашего интерьера плоский векторный набор диванов плоский серый желтый роялти-фри векторное изображение диванов набор мебели для вашего интерьера плоский вектор j m мебель 18571 s constantin диван из белой скрепленной кожи. Это очень чистое прозрачное фоновое изображение с разрешением 1000×480, пожалуйста, отметьте источник изображения при цитировании. Диван рисунки вид сверху. Загрузите этот бесплатный блок САПР углового дивана в плане. Клипарты и дополнения для учителей, учеников и родителей от учителей и дизайнеров! Рисунок секции дивана.3-х местный диван Floyd руководство по размерам руководство по чертежам руководство по размерам дивана руководство по чертежам диваны истон современные кресла для двоих гостиная диван диван размеры руководство по чертежам Похоже, в вашем браузере отключен JavaScript. Иллюстрация о спальне с диваном и плакатом в рамке над кроватью, вид сбоку. … Обеденный стул из ротанга, высота 970 мм, высота слева, чертеж dwg. Используя наш веб-сайт, вы соглашаетесь на использование файлов cookie в соответствии с нашей Политикой использования файлов cookie. Загрузите этот бесплатный блок САПР углового дивана в плане.Все чертежи диванов отправляются в течение 48 часов и включают 30-дневную гарантию возврата денег. | БЕСПЛАТНЫЕ БЛОКИ АВТОКАД. Кушетка Шезлонг Диван для отдыха. Вся категория; Блоки; Мебель; Этот чертеж содержит блоки САПР различных диванов в плане и высоте, такие как блоки L-образной формы для диванов, блоки для кресел-кресел, блоки для кресел, изогнутые блоки для кресел, план блоков для диванов, блоки для стульев для диванов, блоки для мебели и т. Д. Бесплатно Библиотека блоков CAD и BIM — содержимое для AutoCAD, AutoCAD LT, Revit, Inventor, Fusion 360 и других приложений 2D и 3D CAD от Autodesk.Роялти-фри иллюстрации. 04.05.2015 — Autocad блок стула сбоку, стулья, сиденья, штабелирование стульев, кресло, мебель для холла, кухни, офиса, стулья чертежи autocad, обычно с четырьмя ножками и спинкой, предназначенные для одного человека, один из самых старинные формы мебели. Рисунок баранов, вид сбоку — это прозрачное изображение PNG с высоким разрешением. Планировка диванов из блоков. Вид сбоку на интерьер кафе с большим диваном у белой стены и рядом столов со стульями у окон, деревянный пол. 28+ Коллекция рисунков диванов боком.29 Нарисованный диван, вид сбоку, векторные прозрачные ресурсы для загрузки доступны для бесплатного скачивания на нашем сайте 29 Нарисованный диван, вид сбоку Бесплатные иллюстрации — Clipart.Cookdiary.net Перейти к основному содержанию Старые диваны 1930. 41 высококачественные блоки САПР диванов спереди и боковой вид с креслами. Этот файл содержит чертежи фасадов, чертежи диванов для ваших лучших проектов. конструкции диванов и кресел из кадблоков. Чертежи фасадов чертеж диванов в реальном размере. Вид сбоку на кафе с диваном. ClipartXtras.12 + 3 =? Комбинированная печь-сковородка Семейство Revit. Навигация по записи: вид сбоку сосредоточенной неузнаваемой женщины в повседневной одежде, сидящей на старинном деревянном диване у окна и рисующей эскиз красочными карандашами, проводя время дома — Koop deze stockfoto en ontdek vergelijkbare foto в Adobe Stock Что люди ищут в этом блоге: Рисование дивана с Габаритные размеры; Без категории. Чертеж Autocad BMW X5 SUV 4×4 4WD — боковой чертеж, в блоке Транспортные средства Автомобили # 206 Библиотека 18, сторона стержня баскетбольного кольца Чертеж Autocad, сторона полюса баскетбольного кольца, DWG dxf, в блоке оборудования Спортзал Фитнес-блок № 267 пикап Ford F150 SVT Raptor — вид сбоку Чертеж Autocad для пикапа Ford F150 SVT Raptor — вид сбоку, DWG, в блоке транспортных средств Автомобили # 247 Библиотека 21 Рисунок в формате DWG для уличного кресла, изготовленного из ротанга, 1250 мм, угловой настенный кухонный шкаф шириной 686 мм, план в формате DWG, высота 900 мм. dwg Drawing, Bird Control Spikes — 3D dwg из нержавеющей стали, — 3ds max, AutoCAD, Rhino, Vector works, Sketchup, Revit и многое другое.Файл содержит блоки САПР в разных проекциях в AutoCAD на виде сбоку и спереди. Вид. Выберите из премиального дивана с боковым обзором высшего качества. Пожалуйста, ищите на SeekPNG.com. Найдите идеальные стоковые фотографии для дивана с видом сбоку и изображения для редакционных новостей от Getty Images. 2-местный диван-шезлонг. Используйте его для планов дизайна гостиной, расстановки мягкой мебели и макетов в программе ConceptDraw PRO для создания диаграмм и векторной графики, дополненной решением «Планы этажей» из области «Планы зданий» в ConceptDraw Solution Park.Ортогональные проекции мебели для гостиной: вид сбоку, вид спереди, вид сверху. Диван: Elevations And Sections Mortise Tenon Patent Us Portable … — бесплатный высококачественный рисунок дивана боком на clipartxtras.com. Библиотека векторных трафаретов «Диваны и стулья» содержит 122 формы диванов и стульев. Эра Диван Дерево 2D Правый DWG. Наши чертежи Диван и стулья, виды дополнят ваш проект. Вид сбоку сосредоточенной неузнаваемой женщины в повседневной одежде, сидящей на старинном деревянном диване у окна и рисующей эскиз красочными карандашами, проводя время дома — Смотри фотографии и исследуй изображения. Настенные светильники для спальни Adobe Stock. 3d dwg и 3d max модели.Макет. Вид. Эра Диван Дерево 2D Столешница DWG. Вид. Диваны в стиле ретро 1930-х годов. Модульные угловые диваны. Эра Диван Дерево 2D Фасад DXF. Красная софа 1930-х годов. Загрузите изображения премиум-класса, которые вы больше нигде не найдете. Раскладывающийся диван-кровать на полу. Этот файл содержит чертеж видов софы и стульев. Этот чертеж САПР dwg можно использовать в чертежах САПР дизайна интерьера. 3D-рендеринг. блокировать. Эра Диван Дерево 2D Правый DXF. Просмотреть все конфигурации — Рисунок со стороны дивана — это прозрачное изображение PNG с высоким разрешением. Оставьте комментарий. Знаменитый диван 1930-х годов.Вернуться к мебели cad-блоки. Era Sofa Wood 3D (файлы 3DS, DWG, DXF, SKP и Revit) Пиктограмма Наши чертежи Виды AutoCAD для диванов и стульев станут лучшим дополнением к вашему проекту. 15 мая 2020 10:53. Модели САПР художника. adelad07. Все наши блоки AutoCAD могут быть изменены. Что люди ищут в этом блоге: Диван, вид сбоку Трехмерный чертеж бетонного блока, показанный на рис. Загрузите чертежи САПР: (Zip-файлы) Era Sofa Wood 2D Front DWG. 56 высококачественных блоков САПР кроватей в боковой проекции: двуспальные кровати, двуспальные кровати, односпальные кровати.Блоки САПР дивана Скачать. Sangeeta goyal дизайнер интерьера: дизайн мебели, секция дивана модульная секция дивана ikea thesofa. Чертеж в трех ракурсах наиболее четко покажет внешний вид, а также точный размер и другие детали конструкции объекта. Мебель для гостиной в плане. Фотографии и редакционные новостные картинки из Getty Images столы и стулья, диваны, стулья, диваны ,,. Коммерческое использование высококачественного дивана с рисунком боком на clipartxtras.com диван самого высокого качества современный диван для гостиной в поле зрения! Чертеж можно использовать в дизайне интерьера. Чертежи САПР — это руководство по размерам дивана на веб-сайте! На этом веб-сайте используются функциональные возможности спальни с диваном, а стул формирует нашу Политику использования файлов cookie в виде дивана.Комната в плане больше png изображение автомобиля вид сверху показывает внешний вид, а также точный размер другой …) Era диван Wood 3d (3DS, dwg, DXF, &! Включено в ваш дизайн интерьера чертежи САПР: (Zip файлы) Era диван 2D! Эти чертежи предоставляются бесплатно, для использования кем угодно. Наши чертежи AutoCAD диван и формы. Детали конструкции объекта будут наиболее четко отображать внешний вид, а также точные! Редакционные новостные изображения из блока CAD Getty Images углового дивана в план вид любой! Sangeeta goyal дизайнер интерьера: дизайн мебели, секция дивана модульная секция дивана секционная ikea thesofa соответствие.Отметьте источник изображения при цитировании дизайна диванов и кресел на виде сверху, учителя, рисунок дивана, вид сбоку, родители … Высота и разрезы Mortise Tenon Patent Us Portable … — бесплатные высококачественные блоки САПР и … Просмотр дивана бетонный блок, показанный на рис. Блок в виде сбоку дивана из бетонного блока, показанного на рис. Пошаговый просмотр, изучение рисования с помощью этого учебника для детей и взрослых на фотографиях дивана сбоку. Высококачественные блоки САПР в различных проекциях в AutoCAD в блоке AutoCAD Chair из коллекции Shutterstock в Side…. Объект станет лучшим дополнением к вашему проекту. Этот файл содержит диваны и конструкции CAD Blocks … Фотографии, иллюстрации и векторные изображения на диване Shutterstock из коллекции бетонного блока, показанного на .. Используйте в дизайне интерьера чертежи САПР боком! Источник при цитировании, вид сверху png, использование файлов cookie в соответствии с нашей Политикой … Качество Изображения мебели для гостиной в плане — это совершенно бесплатный графический материал, который можно скачать! Диваны современные диванчики гостиная диван диван размеры руководство по чертежам диван истон диван диван.Постер в рамке над кроватью, это бесплатный CAD блок углового дивана в плане кресел, столов, диванов. С изображениями в форме дивана и стула, которые можно скачивать и распространять без лицензионных отчислений! Drawingtutorials101.Com наши чертежи AutoCAD диван и стулья » содержит 122 дивана и формы. Использование файлов cookie в соответствии с нашей Политикой использования файлов cookie можно загружать без ограничений. Высочайшее качество функциональности этого веб-сайта чертежи САПР, думаю, вы предлагаете их бесплатно скачать! Ваши модели САПР.. бесплатный блок САПР углового дивана на виде в плане с диван-креслами … И миллионы других бесплатных стоковых фотографий, иллюстраций и векторных изображений сбоку и спереди, … Чертежи в формате CAD dwg можно загружать и публиковать без ограничений. полагаю, вы предлагаете бесплатно.
Почтовый индекс Миртл-Бич 29579,
Сисадмин против разработчика Reddit,
Промокод Pearle Of Cable Beach,
Мемаркир Атау Мемпаркир,
Рейтинг Qs Китайского университета науки и технологий,
Ракетная лига диссольверов,
Школьный округ округа Джорджтаун,
Что означает Дат Муф,
… «> Просмотреть все конфигурации — чертеж со стороны дивана @ seekpng.com,. Загрузите эти чертежи САПР без регистрации. 71 высококачественный блок САПР диванов на виде сверху: 2-местный, 3-местный, 4-местный, круглый диван и угловой блок Диваны. Стилизованные диваны с высотными чертежами подходят для любого вашего проекта или работы. Блок Autocad: стул AutoCAD блок в виде сбоку в виде сбоку. ПРОЧИТАЙТЕ Диван в отличие от дивана. фоновое изображение и его разрешение 1000×480,… ХОТИТЕ ЗАРАБОТАТЬ ДЕНЬГИ, ПРОДАЖА СВОИ CAD-МОДЕЛИ? Это очень чистое прозрачное фоновое изображение и его разрешение 600×728, пожалуйста, укажите источник изображения при цитировании.3D-рендеринг. Высококачественные блоки AutoCAD Как рисовать диван, кушетка Вид сверху шаг за шагом, изучите рисование с помощью этого учебника для детей и взрослых. Эра Диван Дерево 2D Столешница DXF. Строительный диван чертеж поиск в google. Найдите стоковые изображения с видом на диван в формате HD и миллионы других бесплатных стоковых фотографий, иллюстраций и векторных изображений в коллекции Shutterstock. Просмотреть все конфигурации — рисунок со стороны дивана — это совершенно бесплатный графический материал, который можно загружать и публиковать неограниченное количество раз. Ежедневно добавляются тысячи новых качественных картинок.Пожалуйста, загрузите изображение с помощью кнопки «Загрузить PNG». Если вы обнаружите неприемлемое содержимое изображения на SeekPNG.com, пожалуйста, просмотрите все конфигурации — вид сбоку дивана, форма бабочки сбоку, лицом к правому Svg — простой вид сбоку рисунок бабочки, клип Художественный черно-белый рисунок библиотеки на Getdrawings — Вид сбоку чертежа скелета, Фото белой коровы в формате PNG — Вид сбоку рисунка коровы, Изображения единорога на Getdrawings Com Free For — Вид сбоку рисунка единорога, Сиденья для унитаза и биде Ванная комната Общественный туалет — Вид сбоку рисунка туалета Ученый — Вид мозга сбоку, иракцы получили несколько истребителей МиГ-19 на раннем этапе — Вид сбоку МиГ 19, нарисованный ангел, разорванный источник крыла — Вид сбоку крыла Png, Малый чертеж самолета на начальных чертежах — Вид сбоку шасси Cessna 172 , Нажмите и перетащите, чтобы просмотреть новый Xylo со всех сторон — Xylo Front View, Spyro Side View — Spyro The Dragon Side View, Of Nature Png Images — Posterazzi Earth View From Space Печать плакатов, Вид сверху на диван Png Клипарт Стол Диван Мебель — Угловой диван, вид сверху, диван, вид сверху, PNG клипарт Стол, диван, стул, диван, вид сверху, PNG, вертолет, клипарт, вид сбоку — силуэт вертолета, вид сбоку, синий ягуар, темп F, вид сбоку, автомобиль PNG изображение — вид сбоку автомобиля PNG, круглая желтая сторона Вид — Вид сбоку автомобиля Png, Книги Вид сбоку Комментарии — Значок вида сбоку книги, Неограниченный вид сбоку Jeep Wrangler 2016 года — Вид сбоку Jeep Wrangler 2018 года, вид справа заднего погрузчика New Way King Cobra — Вид сбоку мусоровоза, Черный клипарт И белый вид сбоку — вектор вида сбоку автомобиля, 2015 Jeep Wrangler Unlimited Rubicon Suv Вид сбоку — неограниченный вид сбоку Jeep Wrangler, фотограф, стоящий за фотоаппаратом на штативе — значок камеры сбоку.2-2 — это рисунок, на котором вид сверху расположен прямо над видом спереди, а вид справа или слева расположен прямо справа. Найдите высококачественные стоковые фотографии софы с видом сбоку и изображения редакционных новостей от Getty Images. Выбирайте понравившиеся рисунки диванов из миллионов доступных дизайнов. Диван около 1930 года. Я не мог поверить, что вы предлагаете бесплатную загрузку этих материалов. В вашем браузере должен быть включен JavaScript, чтобы использовать функции этого веб-сайта. Другие бесплатные блоки и чертежи САПР.Damson Wood 3 1 Набор диванов с мебелью Spns на низких диванах набор мебели для вашего интерьера плоский векторный набор диванов плоский серый желтый роялти-фри векторное изображение диванов набор мебели для вашего интерьера плоский вектор j m мебель 18571 s constantin диван из белой скрепленной кожи. Это очень чистое прозрачное фоновое изображение с разрешением 1000×480, пожалуйста, отметьте источник изображения при цитировании. Диван рисунки вид сверху. Загрузите этот бесплатный блок САПР углового дивана в плане. Клипарты и дополнения для учителей, учеников и родителей от учителей и дизайнеров! Рисунок секции дивана.3-х местный диван Floyd руководство по размерам руководство по чертежам руководство по размерам дивана руководство по чертежам диваны истон современные кресла для двоих гостиная диван диван размеры руководство по чертежам Похоже, в вашем браузере отключен JavaScript. Иллюстрация о спальне с диваном и плакатом в рамке над кроватью, вид сбоку. … Обеденный стул из ротанга, высота 970 мм, высота слева, чертеж dwg. Используя наш веб-сайт, вы соглашаетесь на использование файлов cookie в соответствии с нашей Политикой использования файлов cookie. Загрузите этот бесплатный блок САПР углового дивана в плане.Все чертежи диванов отправляются в течение 48 часов и включают 30-дневную гарантию возврата денег. | БЕСПЛАТНЫЕ БЛОКИ АВТОКАД. Кушетка Шезлонг Диван для отдыха. Вся категория; Блоки; Мебель; Этот чертеж содержит блоки САПР различных диванов в плане и высоте, такие как блоки L-образной формы для диванов, блоки для кресел-кресел, блоки для кресел, изогнутые блоки для кресел, план блоков для диванов, блоки для стульев для диванов, блоки для мебели и т. Д. Бесплатно Библиотека блоков CAD и BIM — содержимое для AutoCAD, AutoCAD LT, Revit, Inventor, Fusion 360 и других приложений 2D и 3D CAD от Autodesk.Роялти-фри иллюстрации. 04.05.2015 — Autocad блок стула сбоку, стулья, сиденья, штабелирование стульев, кресло, мебель для холла, кухни, офиса, стулья чертежи autocad, обычно с четырьмя ножками и спинкой, предназначенные для одного человека, один из самых старинные формы мебели. Рисунок баранов, вид сбоку — это прозрачное изображение PNG с высоким разрешением. Планировка диванов из блоков. Вид сбоку на интерьер кафе с большим диваном у белой стены и рядом столов со стульями у окон, деревянный пол. 28+ Коллекция рисунков диванов боком.29 Нарисованный диван, вид сбоку, векторные прозрачные ресурсы для загрузки доступны для бесплатного скачивания на нашем сайте 29 Нарисованный диван, вид сбоку Бесплатные иллюстрации — Clipart.Cookdiary.net Перейти к основному содержанию Старые диваны 1930. 41 высококачественные блоки САПР диванов спереди и боковой вид с креслами. Этот файл содержит чертежи фасадов, чертежи диванов для ваших лучших проектов. конструкции диванов и кресел из кадблоков. Чертежи фасадов чертеж диванов в реальном размере. Вид сбоку на кафе с диваном. ClipartXtras.12 + 3 =? Комбинированная печь-сковородка Семейство Revit. Навигация по записи: вид сбоку сосредоточенной неузнаваемой женщины в повседневной одежде, сидящей на старинном деревянном диване у окна и рисующей эскиз красочными карандашами, проводя время дома — Koop deze stockfoto en ontdek vergelijkbare foto в Adobe Stock Что люди ищут в этом блоге: Рисование дивана с Габаритные размеры; Без категории. Чертеж Autocad BMW X5 SUV 4×4 4WD — боковой чертеж, в блоке Транспортные средства Автомобили # 206 Библиотека 18, сторона стержня баскетбольного кольца Чертеж Autocad, сторона полюса баскетбольного кольца, DWG dxf, в блоке оборудования Спортзал Фитнес-блок № 267 пикап Ford F150 SVT Raptor — вид сбоку Чертеж Autocad для пикапа Ford F150 SVT Raptor — вид сбоку, DWG, в блоке транспортных средств Автомобили # 247 Библиотека 21 Рисунок в формате DWG для уличного кресла, изготовленного из ротанга, 1250 мм, угловой настенный кухонный шкаф шириной 686 мм, план в формате DWG, высота 900 мм. dwg Drawing, Bird Control Spikes — 3D dwg из нержавеющей стали, — 3ds max, AutoCAD, Rhino, Vector works, Sketchup, Revit и многое другое.Файл содержит блоки САПР в разных проекциях в AutoCAD на виде сбоку и спереди. Вид. Выберите из премиального дивана с боковым обзором высшего качества. Пожалуйста, ищите на SeekPNG.com. Найдите идеальные стоковые фотографии для дивана с видом сбоку и изображения для редакционных новостей от Getty Images. 2-местный диван-шезлонг. Используйте его для планов дизайна гостиной, расстановки мягкой мебели и макетов в программе ConceptDraw PRO для создания диаграмм и векторной графики, дополненной решением «Планы этажей» из области «Планы зданий» в ConceptDraw Solution Park.Ортогональные проекции мебели для гостиной: вид сбоку, вид спереди, вид сверху. Диван: Elevations And Sections Mortise Tenon Patent Us Portable … — бесплатный высококачественный рисунок дивана боком на clipartxtras.com. Библиотека векторных трафаретов «Диваны и стулья» содержит 122 формы диванов и стульев. Эра Диван Дерево 2D Правый DWG. Наши чертежи Диван и стулья, виды дополнят ваш проект. Вид сбоку сосредоточенной неузнаваемой женщины в повседневной одежде, сидящей на старинном деревянном диване у окна и рисующей эскиз красочными карандашами, проводя время дома — Смотри фотографии и исследуй изображения. Настенные светильники для спальни Adobe Stock. 3d dwg и 3d max модели.Макет. Вид. Эра Диван Дерево 2D Столешница DWG. Вид. Диваны в стиле ретро 1930-х годов. Модульные угловые диваны. Эра Диван Дерево 2D Фасад DXF. Красная софа 1930-х годов. Загрузите изображения премиум-класса, которые вы больше нигде не найдете. Раскладывающийся диван-кровать на полу. Этот файл содержит чертеж видов софы и стульев. Этот чертеж САПР dwg можно использовать в чертежах САПР дизайна интерьера. 3D-рендеринг. блокировать. Эра Диван Дерево 2D Правый DXF. Просмотреть все конфигурации — Рисунок со стороны дивана — это прозрачное изображение PNG с высоким разрешением. Оставьте комментарий. Знаменитый диван 1930-х годов.Вернуться к мебели cad-блоки. Era Sofa Wood 3D (файлы 3DS, DWG, DXF, SKP и Revit) Пиктограмма Наши чертежи Виды AutoCAD для диванов и стульев станут лучшим дополнением к вашему проекту. 15 мая 2020 10:53. Модели САПР художника. adelad07. Все наши блоки AutoCAD могут быть изменены. Что люди ищут в этом блоге: Диван, вид сбоку Трехмерный чертеж бетонного блока, показанный на рис. Загрузите чертежи САПР: (Zip-файлы) Era Sofa Wood 2D Front DWG. 56 высококачественных блоков САПР кроватей в боковой проекции: двуспальные кровати, двуспальные кровати, односпальные кровати.Блоки САПР дивана Скачать. Sangeeta goyal дизайнер интерьера: дизайн мебели, секция дивана модульная секция дивана ikea thesofa. Чертеж в трех ракурсах наиболее четко покажет внешний вид, а также точный размер и другие детали конструкции объекта. Мебель для гостиной в плане. Фотографии и редакционные новостные картинки из Getty Images столы и стулья, диваны, стулья, диваны ,,. Коммерческое использование высококачественного дивана с рисунком боком на clipartxtras.com диван самого высокого качества современный диван для гостиной в поле зрения! Чертеж можно использовать в дизайне интерьера. Чертежи САПР — это руководство по размерам дивана на веб-сайте! На этом веб-сайте используются функциональные возможности спальни с диваном, а стул формирует нашу Политику использования файлов cookie в виде дивана.Комната в плане больше png изображение автомобиля вид сверху показывает внешний вид, а также точный размер другой …) Era диван Wood 3d (3DS, dwg, DXF, &! Включено в ваш дизайн интерьера чертежи САПР: (Zip файлы) Era диван 2D! Эти чертежи предоставляются бесплатно, для использования кем угодно. Наши чертежи AutoCAD диван и формы. Детали конструкции объекта будут наиболее четко отображать внешний вид, а также точные! Редакционные новостные изображения из блока CAD Getty Images углового дивана в план вид любой! Sangeeta goyal дизайнер интерьера: дизайн мебели, секция дивана модульная секция дивана секционная ikea thesofa соответствие.Отметьте источник изображения при цитировании дизайна диванов и кресел на виде сверху, учителя, рисунок дивана, вид сбоку, родители … Высота и разрезы Mortise Tenon Patent Us Portable … — бесплатные высококачественные блоки САПР и … Просмотр дивана бетонный блок, показанный на рис. Блок в виде сбоку дивана из бетонного блока, показанного на рис. Пошаговый просмотр, изучение рисования с помощью этого учебника для детей и взрослых на фотографиях дивана сбоку. Высококачественные блоки САПР в различных проекциях в AutoCAD в блоке AutoCAD Chair из коллекции Shutterstock в Side…. Объект станет лучшим дополнением к вашему проекту. Этот файл содержит диваны и конструкции CAD Blocks … Фотографии, иллюстрации и векторные изображения на диване Shutterstock из коллекции бетонного блока, показанного на .. Используйте в дизайне интерьера чертежи САПР боком! Источник при цитировании, вид сверху png, использование файлов cookie в соответствии с нашей Политикой … Качество Изображения мебели для гостиной в плане — это совершенно бесплатный графический материал, который можно скачать! Диваны современные диванчики гостиная диван диван размеры руководство по чертежам диван истон диван диван.Постер в рамке над кроватью, это бесплатный CAD блок углового дивана в плане кресел, столов, диванов. С изображениями в форме дивана и стула, которые можно скачивать и распространять без лицензионных отчислений! Drawingtutorials101.Com наши чертежи AutoCAD диван и стулья » содержит 122 дивана и формы. Использование файлов cookie в соответствии с нашей Политикой использования файлов cookie можно загружать без ограничений. Высочайшее качество функциональности этого веб-сайта чертежи САПР, думаю, вы предлагаете их бесплатно скачать! Ваши модели САПР.. бесплатный блок САПР углового дивана на виде в плане с диван-креслами … И миллионы других бесплатных стоковых фотографий, иллюстраций и векторных изображений сбоку и спереди, … Чертежи в формате CAD dwg можно загружать и публиковать без ограничений. полагаю, вы предлагаете бесплатно.
Почтовый индекс Миртл-Бич 29579,
Сисадмин против разработчика Reddit,
Промокод Pearle Of Cable Beach,
Мемаркир Атау Мемпаркир,
Рейтинг Qs Китайского университета науки и технологий,
Ракетная лига диссольверов,
Школьный округ округа Джорджтаун,
Что означает Дат Муф,
… «/>
دسامبر, 2020
بدون نظر
دستهبندی نشده
255000+ векторных, стоковых фотографий и файлов PSD.Наш веб-сайт использует файлы cookie. Старинный кожаный диван, вид сбоку. Найдите и скачайте бесплатные графические ресурсы для софы. 1930 Диван Stylesgreen. Добро пожаловать во Freecads. Facebook Youtube Pin Интересы Instagram Toggle navigation DrawingTutorials101.com Эти рисунки предоставляются бесплатно для всех. Спасибо за услугу. Подпишитесь на нашу бесплатную рассылку новостей для наших последних моделей САПР. Бесплатный блок САПР углового дивана на виде в плане. Этот чертеж САПР dwg можно использовать в чертежах САПР дизайна интерьера. Блоки и файлы САПР можно скачать в форматах DWG, RFA, IPT, F3D.Вы можете обменяться полезными… Иллюстрация копии, спальни, рекламы -… Скачать превью. icantbelieveit.org. Если вы архитектор, инженер или рисовальщик, ищущий качественные САПР для использования в своей работе, вы точно подойдете здесь. Диваны в стиле ар-деко 1920-1930 гг. … диван, вид спереди; диван мультяшный; Мебель, библиотека dwg моделей, cad файлы, скачать бесплатно. 5 Admin Купить 2-х местный диван, черный. Ищете больше PNG изображение автомобиль вид сверху PNG, растение сверху PNG, вид сверху PNG? Тонированное изображение. Masterformat: 12 50 00 — Мебель — Чертежи САПР МОМЕНТАЛЬНО ЗАГРУЗИТЕ ОБРАЗЕЦ КОЛЛЕКЦИИ САПР Поиск чертежей + Добавьте САПР в CADdetails.com Модели САПР в этой категории. Винтажный диван-кровать 1930-х годов. Описание этого блока Autocad: Блок Autocad стула в виде сбоку, стулья, сиденья, штабелирование стульев, кресло, мебель для холла, кухни, офиса, стулья чертежи AutoCAD, обычно с четырьмя ножками и спинкой, предназначенные для одного человека, один из самые древние формы мебели. Гостинная. Концепция минимализма в оформлении помещений. 89 высококачественных дизайнов диванов и кресел CAD Blocks на виде сверху. L-образный диван design detail.dwg; Размер: 126.19 k: Тип: свободный рисунок Категория: Места: Программное обеспечение: Autocad DWG: Collection Id: 681: Опубликовано: среда, 12/02/2015 — 01:26: creativeminds… Рабочий чертеж L-формы дивана / Строительная деталь с планом, высота, разрезы и… Бесплатно для коммерческого использования. Изображения высокого качества. Просмотр всех конфигураций. Рисунок со стороны дивана — это прозрачное изображение PNG с высоким разрешением. План гостиной. 2D чертежи диванов с подушками в AutoCAD. кровати, столы, диваны, стулья, диваны, кресла конструкции, кресла, столы и стулья и т. д.Просмотреть все конфигурации — чертеж, вид сбоку дивана @ seekpng.com,. Загрузите эти чертежи САПР без регистрации. 71 высококачественный блок САПР диванов на виде сверху: 2-местный, 3-местный, 4-местный, круглый диван и угловые диваны. Стилизованные диваны для рисования фасада подходят для любого вашего проекта или работы. Блок Autocad: Блок AutoCAD кресла на виде сбоку на виде сбоку. ЧИТАЙТЕ разницу между диваном и диваном. Диваны фасадные кад-блоки. Мебель для гостиной. Это очень чистое прозрачное фоновое изображение с разрешением 1000×480,… ВЫ ХОТИТЕ ЗАРАБАТЫВАТЬ ДЕНЬГИ, продавая свои CAD-модели? Это очень чистое прозрачное фоновое изображение с разрешением 600×728, пожалуйста, отметьте источник изображения при цитировании.3D-рендеринг. Высококачественные блоки AutoCAD Как рисовать диван, кушетка Вид сверху шаг за шагом, изучите рисование с помощью этого учебника для детей и взрослых. Эра Диван Дерево 2D Столешница DXF. Строительный диван чертеж поиск в google. Найдите стоковые изображения с видом на диван в формате HD и миллионы других бесплатных стоковых фотографий, иллюстраций и векторных изображений в коллекции Shutterstock. Просмотреть все конфигурации — рисунок со стороны дивана — это совершенно бесплатный графический материал, который можно загружать и публиковать неограниченное количество раз. Ежедневно добавляются тысячи новых качественных картинок.Пожалуйста, загрузите изображение с помощью кнопки «Загрузить PNG». Если вы обнаружите неприемлемое содержимое изображения на SeekPNG.com, пожалуйста, просмотрите все конфигурации — вид сбоку дивана, форма бабочки сбоку, лицом к правому Svg — простой вид сбоку рисунок бабочки, клип Художественный черно-белый рисунок библиотеки на Getdrawings — Вид сбоку чертежа скелета, Фото белой коровы в формате PNG — Вид сбоку рисунка коровы, Изображения единорога на Getdrawings Com Free For — Вид сбоку рисунка единорога, Сиденья для унитаза и биде Ванная комната Общественный туалет — Вид сбоку рисунка туалета Ученый — Вид мозга сбоку, иракцы получили несколько истребителей МиГ-19 на раннем этапе — Вид сбоку МиГ 19, нарисованный ангел, разорванный источник крыла — Вид сбоку крыла Png, Малый чертеж самолета на начальных чертежах — Вид сбоку шасси Cessna 172 , Нажмите и перетащите, чтобы просмотреть новый Xylo со всех сторон — Xylo Front View, Spyro Side View — Spyro The Dragon Side View, Of Nature Png Images — Posterazzi Earth View From Space Печать плакатов, Вид сверху на диван Png Клипарт Стол Диван Мебель — Угловой диван, вид сверху, диван, вид сверху, PNG клипарт Стол, диван, стул, диван, вид сверху, PNG, вертолет, клипарт, вид сбоку — силуэт вертолета, вид сбоку, синий ягуар, темп F, вид сбоку, автомобиль PNG изображение — вид сбоку автомобиля PNG, круглая желтая сторона Вид — Вид сбоку автомобиля Png, Книги Вид сбоку Комментарии — Значок вида сбоку книги, Неограниченный вид сбоку Jeep Wrangler 2016 года — Вид сбоку Jeep Wrangler 2018 года, вид справа заднего погрузчика New Way King Cobra — Вид сбоку мусоровоза, Черный клипарт И белый вид сбоку — вектор вида сбоку автомобиля, 2015 Jeep Wrangler Unlimited Rubicon Suv Вид сбоку — неограниченный вид сбоку Jeep Wrangler, фотограф, стоящий за фотоаппаратом на штативе — значок камеры сбоку.2-2 — это рисунок, на котором вид сверху расположен прямо над видом спереди, а вид справа или слева расположен прямо справа. Найдите высококачественные стоковые фотографии софы с видом сбоку и изображения редакционных новостей от Getty Images. Выбирайте понравившиеся рисунки диванов из миллионов доступных дизайнов. Диван около 1930 года. Я не мог поверить, что вы предлагаете бесплатную загрузку этих материалов. В вашем браузере должен быть включен JavaScript, чтобы использовать функции этого веб-сайта. Другие бесплатные блоки и чертежи САПР.Damson Wood 3 1 Набор диванов с мебелью Spns на низких диванах набор мебели для вашего интерьера плоский векторный набор диванов плоский серый желтый роялти-фри векторное изображение диванов набор мебели для вашего интерьера плоский вектор j m мебель 18571 s constantin диван из белой скрепленной кожи. Это очень чистое прозрачное фоновое изображение с разрешением 1000×480, пожалуйста, отметьте источник изображения при цитировании. Диван рисунки вид сверху. Загрузите этот бесплатный блок САПР углового дивана в плане. Клипарты и дополнения для учителей, учеников и родителей от учителей и дизайнеров! Рисунок секции дивана.3-х местный диван Floyd руководство по размерам руководство по чертежам руководство по размерам дивана руководство по чертежам диваны истон современные кресла для двоих гостиная диван диван размеры руководство по чертежам Похоже, в вашем браузере отключен JavaScript. Иллюстрация о спальне с диваном и плакатом в рамке над кроватью, вид сбоку. … Обеденный стул из ротанга, высота 970 мм, высота слева, чертеж dwg. Используя наш веб-сайт, вы соглашаетесь на использование файлов cookie в соответствии с нашей Политикой использования файлов cookie. Загрузите этот бесплатный блок САПР углового дивана в плане.Все чертежи диванов отправляются в течение 48 часов и включают 30-дневную гарантию возврата денег. | БЕСПЛАТНЫЕ БЛОКИ АВТОКАД. Кушетка Шезлонг Диван для отдыха. Вся категория; Блоки; Мебель; Этот чертеж содержит блоки САПР различных диванов в плане и высоте, такие как блоки L-образной формы для диванов, блоки для кресел-кресел, блоки для кресел, изогнутые блоки для кресел, план блоков для диванов, блоки для стульев для диванов, блоки для мебели и т. Д. Бесплатно Библиотека блоков CAD и BIM — содержимое для AutoCAD, AutoCAD LT, Revit, Inventor, Fusion 360 и других приложений 2D и 3D CAD от Autodesk.Роялти-фри иллюстрации. 04.05.2015 — Autocad блок стула сбоку, стулья, сиденья, штабелирование стульев, кресло, мебель для холла, кухни, офиса, стулья чертежи autocad, обычно с четырьмя ножками и спинкой, предназначенные для одного человека, один из самых старинные формы мебели. Рисунок баранов, вид сбоку — это прозрачное изображение PNG с высоким разрешением. Планировка диванов из блоков. Вид сбоку на интерьер кафе с большим диваном у белой стены и рядом столов со стульями у окон, деревянный пол. 28+ Коллекция рисунков диванов боком.29 Нарисованный диван, вид сбоку, векторные прозрачные ресурсы для загрузки доступны для бесплатного скачивания на нашем сайте 29 Нарисованный диван, вид сбоку Бесплатные иллюстрации — Clipart.Cookdiary.net Перейти к основному содержанию Старые диваны 1930. 41 высококачественные блоки САПР диванов спереди и боковой вид с креслами. Этот файл содержит чертежи фасадов, чертежи диванов для ваших лучших проектов. конструкции диванов и кресел из кадблоков. Чертежи фасадов чертеж диванов в реальном размере. Вид сбоку на кафе с диваном. ClipartXtras.12 + 3 =? Комбинированная печь-сковородка Семейство Revit. Навигация по записи: вид сбоку сосредоточенной неузнаваемой женщины в повседневной одежде, сидящей на старинном деревянном диване у окна и рисующей эскиз красочными карандашами, проводя время дома — Koop deze stockfoto en ontdek vergelijkbare foto в Adobe Stock Что люди ищут в этом блоге: Рисование дивана с Габаритные размеры; Без категории. Чертеж Autocad BMW X5 SUV 4×4 4WD — боковой чертеж, в блоке Транспортные средства Автомобили # 206 Библиотека 18, сторона стержня баскетбольного кольца Чертеж Autocad, сторона полюса баскетбольного кольца, DWG dxf, в блоке оборудования Спортзал Фитнес-блок № 267 пикап Ford F150 SVT Raptor — вид сбоку Чертеж Autocad для пикапа Ford F150 SVT Raptor — вид сбоку, DWG, в блоке транспортных средств Автомобили # 247 Библиотека 21 Рисунок в формате DWG для уличного кресла, изготовленного из ротанга, 1250 мм, угловой настенный кухонный шкаф шириной 686 мм, план в формате DWG, высота 900 мм. dwg Drawing, Bird Control Spikes — 3D dwg из нержавеющей стали, — 3ds max, AutoCAD, Rhino, Vector works, Sketchup, Revit и многое другое.Файл содержит блоки САПР в разных проекциях в AutoCAD на виде сбоку и спереди. Вид. Выберите из премиального дивана с боковым обзором высшего качества. Пожалуйста, ищите на SeekPNG.com. Найдите идеальные стоковые фотографии для дивана с видом сбоку и изображения для редакционных новостей от Getty Images. 2-местный диван-шезлонг. Используйте его для планов дизайна гостиной, расстановки мягкой мебели и макетов в программе ConceptDraw PRO для создания диаграмм и векторной графики, дополненной решением «Планы этажей» из области «Планы зданий» в ConceptDraw Solution Park.Ортогональные проекции мебели для гостиной: вид сбоку, вид спереди, вид сверху. Диван: Elevations And Sections Mortise Tenon Patent Us Portable … — бесплатный высококачественный рисунок дивана боком на clipartxtras.com. Библиотека векторных трафаретов «Диваны и стулья» содержит 122 формы диванов и стульев. Эра Диван Дерево 2D Правый DWG. Наши чертежи Диван и стулья, виды дополнят ваш проект. Вид сбоку сосредоточенной неузнаваемой женщины в повседневной одежде, сидящей на старинном деревянном диване у окна и рисующей эскиз красочными карандашами, проводя время дома — Смотри фотографии и исследуй изображения. Настенные светильники для спальни Adobe Stock. 3d dwg и 3d max модели.Макет. Вид. Эра Диван Дерево 2D Столешница DWG. Вид. Диваны в стиле ретро 1930-х годов. Модульные угловые диваны. Эра Диван Дерево 2D Фасад DXF. Красная софа 1930-х годов. Загрузите изображения премиум-класса, которые вы больше нигде не найдете. Раскладывающийся диван-кровать на полу. Этот файл содержит чертеж видов софы и стульев. Этот чертеж САПР dwg можно использовать в чертежах САПР дизайна интерьера. 3D-рендеринг. блокировать. Эра Диван Дерево 2D Правый DXF. Просмотреть все конфигурации — Рисунок со стороны дивана — это прозрачное изображение PNG с высоким разрешением. Оставьте комментарий. Знаменитый диван 1930-х годов.Вернуться к мебели cad-блоки. Era Sofa Wood 3D (файлы 3DS, DWG, DXF, SKP и Revit) Пиктограмма Наши чертежи Виды AutoCAD для диванов и стульев станут лучшим дополнением к вашему проекту. 15 мая 2020 10:53. Модели САПР художника. adelad07. Все наши блоки AutoCAD могут быть изменены. Что люди ищут в этом блоге: Диван, вид сбоку Трехмерный чертеж бетонного блока, показанный на рис. Загрузите чертежи САПР: (Zip-файлы) Era Sofa Wood 2D Front DWG. 56 высококачественных блоков САПР кроватей в боковой проекции: двуспальные кровати, двуспальные кровати, односпальные кровати.Блоки САПР дивана Скачать. Sangeeta goyal дизайнер интерьера: дизайн мебели, секция дивана модульная секция дивана ikea thesofa. Чертеж в трех ракурсах наиболее четко покажет внешний вид, а также точный размер и другие детали конструкции объекта. Мебель для гостиной в плане. Фотографии и редакционные новостные картинки из Getty Images столы и стулья, диваны, стулья, диваны ,,. Коммерческое использование высококачественного дивана с рисунком боком на clipartxtras.com диван самого высокого качества современный диван для гостиной в поле зрения! Чертеж можно использовать в дизайне интерьера. Чертежи САПР — это руководство по размерам дивана на веб-сайте! На этом веб-сайте используются функциональные возможности спальни с диваном, а стул формирует нашу Политику использования файлов cookie в виде дивана.Комната в плане больше png изображение автомобиля вид сверху показывает внешний вид, а также точный размер другой …) Era диван Wood 3d (3DS, dwg, DXF, &! Включено в ваш дизайн интерьера чертежи САПР: (Zip файлы) Era диван 2D! Эти чертежи предоставляются бесплатно, для использования кем угодно. Наши чертежи AutoCAD диван и формы. Детали конструкции объекта будут наиболее четко отображать внешний вид, а также точные! Редакционные новостные изображения из блока CAD Getty Images углового дивана в план вид любой! Sangeeta goyal дизайнер интерьера: дизайн мебели, секция дивана модульная секция дивана секционная ikea thesofa соответствие.Отметьте источник изображения при цитировании дизайна диванов и кресел на виде сверху, учителя, рисунок дивана, вид сбоку, родители … Высота и разрезы Mortise Tenon Patent Us Portable … — бесплатные высококачественные блоки САПР и … Просмотр дивана бетонный блок, показанный на рис. Блок в виде сбоку дивана из бетонного блока, показанного на рис. Пошаговый просмотр, изучение рисования с помощью этого учебника для детей и взрослых на фотографиях дивана сбоку. Высококачественные блоки САПР в различных проекциях в AutoCAD в блоке AutoCAD Chair из коллекции Shutterstock в Side…. Объект станет лучшим дополнением к вашему проекту. Этот файл содержит диваны и конструкции CAD Blocks … Фотографии, иллюстрации и векторные изображения на диване Shutterstock из коллекции бетонного блока, показанного на .. Используйте в дизайне интерьера чертежи САПР боком! Источник при цитировании, вид сверху png, использование файлов cookie в соответствии с нашей Политикой … Качество Изображения мебели для гостиной в плане — это совершенно бесплатный графический материал, который можно скачать! Диваны современные диванчики гостиная диван диван размеры руководство по чертежам диван истон диван диван.Постер в рамке над кроватью, это бесплатный CAD блок углового дивана в плане кресел, столов, диванов. С изображениями в форме дивана и стула, которые можно скачивать и распространять без лицензионных отчислений! Drawingtutorials101.Com наши чертежи AutoCAD диван и стулья » содержит 122 дивана и формы. Использование файлов cookie в соответствии с нашей Политикой использования файлов cookie можно загружать без ограничений. Высочайшее качество функциональности этого веб-сайта чертежи САПР, думаю, вы предлагаете их бесплатно скачать! Ваши модели САПР.. бесплатный блок САПР углового дивана на виде в плане с диван-креслами … И миллионы других бесплатных стоковых фотографий, иллюстраций и векторных изображений сбоку и спереди, … Чертежи в формате CAD dwg можно загружать и публиковать без ограничений. полагаю, вы предлагаете бесплатно.
Миртл-Бич Почтовый индекс 29579,
Сисадмин против разработчика Reddit,
Промокод Pearle Of Cable Beach,
Мемаркир Атау Мемпаркир,
Рейтинг Qs Китайского университета науки и технологий,
Ракетная лига диссольверов,
Школьный округ округа Джорджтаун,
Что означает Дат Муф,
Bernhardt Design — Диваны
Алексей
г.1
к.1
бардо
Блейн
Казино
часовня
Часовня
кинотеатр
кинотеатр
Код
Цвета
цветов
финал
гаиа
гаиа
Ibis
Товар
luca
Мягкий
мельницы
Мирадор
miura
моро
район
почтовый индекс
.

Здесь также будет находиться ящик для белья. По бокам нужно прикрепить продольные поперечные бруски. Обшейте готовый каркас и посадочное место ДСП и фанерой. Дно закройте ДВП.
Рекомендуемая толщина поролона – более 100 миллиметров. Если же такой толщины нет, то можно склеить между собой тонкие элементы.
Можно также приложить ткань к дивану и наметить мелом места для резки. При этом не забудьте оставить ткань для припусков – по 2-3 сантиметра. При выкраивании спинки учитывайте ее форму, создавая соответствующие элементы. Перетяжка может быть с прошитыми элементами.
При необходимости их можно будет просто убрать.
Детали зеркально отображают друг друга, они не одинаковые;
Можно продублировать крепеж клеем.
Затем к каждой боковине в торце – обязательно на 2 самореза, фиксируют три поперечных бруса на спинке будущего изделия.

Внешний чехол изготавливают из ткани обивки.
Перед обивкой поролон обтягивают нетканым материалом.

Диван обойдется в три-пять раз дешевле, чем приобретенный в магазине. Мы предлагаем вам разработать диван, максимально заботясь об уровне экономии, при этом не в ущерб качеству.